logo

EP.249 รีวิว ASA อยุธยา-โรจนะ คอนโดสไตล์ญี่ปุ่น ติดโลตัสโรจนะ

โพสโดย : pure / วันที่ : 2 April 2018

EP.249 รีวิว ASA อยุธยา-โรจนะ คอนโดสไตล์ญี่ปุ่น ติดโลตัสโรจนะ

Written by : THAnATH

สวัสดีผู้อ่านชาว Condonayoo ทุกคนครับ วันนี้ผมพามาชมโครงการ ASA อยุธยา-โรจนะ จาก บริษัท อัลติจูด ดีเวลลอปเม้นท์ จำกัด ในจังหวัดอยุธยา ตัวโครงการตั้งอยู่ติดกับถนนโรจนะ ใกล้ทางหลวงเอเชียสาย 1 และถนนพหลโยธิน อยู่ไม่ไกลจากตัวเมืองอยุธยา ใกล้นิคมอุตสาหกรรมโรจนะ นิคมอุตสาหกรรมไฮเทค รายล้อมไปด้วยสิ่งอำนวยความสะดวกครบครัน

อาสะ อยุธยา-โรจนะ เป็นคอนโด Low Rise 8 ชั้น 1 อาคาร ออกแบบมาในสไตล์ญี่ปุ่น บนที่ดิน 1-3-97 ไร่ ห้องพักอาศัยมีทั้งหมด 242 ยูนิต มีห้องให้เลือกแบบ 1 ห้องนอน, 2 ห้องนอน และห้องแบบ Duo ขนาดห้องเริ่มต้นที่ 23.32 – 52 ตร.ม. คาดว่าสร้างเสร็จพร้อมอยู่ในเดือนกรกฎาคม 2562

สิ่งอำนวยความสะดวกภายในโครงการครบครัน อาทิ โถงต้อนรับ, สวนส่วนกลางสไตล์ Modern Zen, สระว่ายน้ำขนาดใหญ่, ฟิตเนส, Access Card Control, กล้องวงจรปิด พร้อม รปภ. 24 ชม. ราคาเริ่มต้น 1.09 ล้านบาท




ชื่อโครงการ อาสะ อยุธยา-โรจนะ ASA Ayutthaya Rojana
เจ้าของโครงการ บริษัท อัลติจูด ดีเวลลอปเม้นท์ จำกัด / Altitude Development
เนื้อที่ทั้งหมด 1-3-97 ไร่
จำนวนตึก 1 อาคาร
จำนวนชั้น 8 ชั้น
จำนวนห้อง 242 ยูนิต
ลักษณะห้องและขนาดห้อง
  • 1 Bedroom 23.32-36.17 ตร.ม.
  • 2 Bedroom 47.3-52.01 ตร.ม.
  • Duo Type 31.43-32.52 ตร.ม.
ที่จอดรถทั้งหมด คิดเป็น 40% รวมจอดซ้อนคัน
จำนวนลิฟท์
  • ลิฟท์โดยสาร 2 ตัว
  • ลิฟท์ขนของ 1 ตัว
โซน อยุธยา
ขนส่งสาธารณะ
  • รถเมล์สาย อยุธยา-วังน้อย
  • รถตู้อุทัย-ภาชี
รถโดยสารที่ผ่าน n/a
ที่ตั้ง ถนนโรจนะ ต.สามเรือน อ.บางปะอิน จ.อยุธยา
กำหนดการ
  • เปิดจอง 24-25 มี.ค. 61
  • เริ่มก่อสร้าง ไตรมาส 1 ปี 2562
ปีที่สร้างเสร็จ คาดว่าแล้วเสร็จ ก.ค. 2562
ราคา เริ่มต้น 1.09 ล้านบาท
ราคาเฉลี่ยต่อ ตร.ม เริ่มต้น 46,000 – 57,000 บาท/ตร.ม. (มี.ค.61)
ค่าส่วนกลางและกองทุน
  • ค่าส่วนกลาง 40 บาท/ตร.ม.
  • ค่ากองทุน 500 บาท/ตร.ม.
สถานที่สำคัญใกล้เคียง
  • Tesco Lotus นิคมโรจนะ : 0 ม. (ติดกับโครงการ)
  • Makro : 3.3 กม.
  • Big C อยุธยา : 8.4 กม.
  • Ayutthaya City Park : 10 กม.
  • รร.เอกอโยธยา : 2.6 กม.
  • รร.เซนต์แมรี่สินธิวา : 2.2 กม.
  • รร.ปัณณวิชญ์ : 3.3 กม.
  • ม.ราชภัฎพระนครศรีอยุธยา : 11.4 กม.
  • รพ.ราชธานี โรจนะ : 1.8 กม.
  • รพ.ราชธานี : 11.3 กม.
  • รพ.วังน้อย : 14 กม.
  • รพ.พระนครศรีอยุธยา : 12 กม.
  • วัดใหญ่ชัยมงคล : 8.5 กม.
  • วัดพนัญเชิงวรวิหาร : 10.5 กม.
  • นิคมฯไฮเทค : 12.6 กม.
  • สวนอุตสาหกรรมโรจนะ : 1.4 กม.
สิ่งอำนวยความสะดวก
  • โถงต้อนรับดีไซน์พิเศษ พร้อมห้องอเนกประสงค์
  • สวนส่วนกลางสไตล์ Modern Zen
  • สระว่ายน้ำขนาดใหญ่
  • ฟิตเนส
  • CCTV
  • ระบบรักษาความปลอดภัยตลอด 24 ชั่วโมง
จุดเด่นของโครงการ ASA อยุธยา-โรจนะ คอนโดสไตล์โมเดิร์นเจแปนนีส แห่งแรกในอยุธยา เดินทางสะดวก ติดโลตัส โรจนะ เพียง 3 นาที ถึงนิคมโรจนะ ตอบโจทย์ทุกไลฟ์สไตล์ในราคาไม่ถึงล้าน ผ่อนสบายเริ่มต้นเพียง 4,900 บาท*/เดือน


ที่ตั้งโครงการ

ถนนโรจนะ ต.สามเรือน อ.บางปะอิน จ.อยุธยา

Map

พิกัด Google โดยประมาณ : 14.309139, 100.645110

ที่ตั้งโครงการ ASA อยุธยา-โรจนะ ตั้งอยู่ใน ต.สามเรือน อ.บางปะอิน จ.อยุธยา ตัวโครงการอยู่ติดกับถนนโรจนะ ห่างจากแยกอุทัยมาประมาณ 270 ม. ตัวถนนโรจนะเป็นเส้นที่ตัดมาจากถนนพหลโยธินช่วงกิโลเมตรที่ 65 มาผ่านแยกอุทัย ผ่านนิคมอุตสาหกรรมโรจนะ ผ่านจุดตัดกับทางหลวงเอเชียสาย 1 ผ่านวางเวียนเจดีย์วัดสามปลื้ม ข้ามแม่น้ำป่าสักผ่านสะพานสมเด็จพระนเรศวรมหาราชเข้าสู่เกาะอยุธยา และไปสิ้นสุดที่ถนนศรีสรรเพญ์

การเดินทางเข้าเมือง ถ้าจะเข้าตัวเมืองอยุธยาก็ใช้ถนนโรจนะ จากโครงการไปจุดกลับรถประมาณ 1 กม​. และวิ่งมุ่งหน้าเข้าตัวเมือง ผ่านทางหลวงเอเชียสาย 1 ก็จะเริ่มเข้าสู่ตัวเมืองแล้ว ถ้าข้ามแม่น้ำป่าสักไปก็จะเข้าสู่เกาะอยุธยาครับ ส่วนถ้าจะเข้ากรุงเทพฯก็สะดวกเลย จากโครงการกลับรถมาที่แยกอุทัย แล้วเลี้ยวซ้ายเข้าถนน 3056 ไปเชื่อมออกทางหลวงเอเชียสาย 1 จากนั้นก็มุ่งหน้าเข้ากรุงเทพฯไปเชื่อมเข้าถนนพหลโยธินตรงแยกต่างระดับบางปะอิน จะไปผ่านนวนคร ผ่านรังสิต ดอนเมือง เกษตร ห้าแยกลาดพร้าว ยาวไปอนุสาวรีย์ชัยฯได้เลย มีทางด่วนโทลเวย์ให้ขึ้นตรงฟิวเจอร์รังสิต หรือจากแยกต่างระดับบางปะอินมาเข้าถนนกาญจนาภิเษกฝั่งตะวันตกจะผ่านปทุมธานี นนทบุรี และเข้าสู่เขตตลิ่งชันของกรุงเทพฯ ไปบางแค บางขุนเทียนได้ มีทางเชื่อมเข้าสู่กรุงเทพฯชั้นในได้ ส่วนถนนกาญจนาภิเษกฝั่งตะวันออกจะผ่านปทุมธานี และเข้าสู่พื้นที่กรุงเทพฯ เชื่อมออกสมุทรปราการได้

การเดินทางออกนอกเมือง ถ้าจะเดินทางไปยังอำเภอต่างๆในอยุธยา ถนนโรจนะวิ่งผ่านโครงการมายาวไปออกอำเภอวังน้อยได้ ตรงแยกอุทัยถ้ามาจากฝั่งโครงการเลี้ยวขวาตรงแยกตรงไปเข้าอำเภออุทัย และเชื่อมออกอำเภอภาชีได้ ถนนโรจนะวิ่งผ่านอำเภอพระนครศรีอยุธยาเชื่อมออกอำเภอบางบาล อำเภอบางปะหัน อำเภอนครหลวงได้ ถ้าจะออกต่างจังหวัด ถนนโรจนะวิ่งผ่านโครงการมาเข้าถนนพหลโยธินวิ่งออกสระบุรีได้ และสามารถเชื่อมต่อไปออกนครนายก ลพบุรี นครราชสีมา และจังหวัดใกล้เคียงได้ ส่วนทางหลวงเอเชียสาย 1 วิ่งออกไปอ่างทอง สิงห์บุรี นครสวรรค์ ยาวขึ้นไปทางภาคเหนือได้สบายๆครับ

การเดินทางโดยสาธารณะ ตามโครงการต่างจังหวัดส่วนใหญ่จะใช้รถส่วนตัวกันเป็นหลักอยู่แล้ว ส่วนระบบขนสงสาธารณะในจังหวัดจะมีรถสองแถววิ่งให้บริการซึ่งส่วนใหญ่จะอยู่ในตัวเมือง มีรถเมล์สายอยุธยา-วังน้อย มีรถตู้บริการกรุงเทพฯหมอชิต 2 – โรจนะ, ภาชี-อยุธยา ขอเบอร์ติดต่อไว้จะได้สะดวกครับ และมีรถไฟสายเหนือผ่านตัวจังหวัด

จากภาพถ่ายดาวเทียมจะเห็นว่าพื้นที่รอบๆโครงการส่วนใหญ่จะเป็นบ้านพักอาศัย อาคารพาณิชย์ ห้างสรรพสินค้า เนื่องจากเป็นพื้นที่ที่อยู่ใกล้กับนิคมอุตสาหกรรมโรจนะ เป็นแหล่งงานที่สำคัญของจังหวัดมีคนทำงานอยู่ในนี้เยอะครับ ทำให้มีความต้องการที่อยู่อาศัยที่อยู่ใกล้ๆนิคม โดยส่วนใหญ่จะเป็นโครงการบ้านต่างๆ และหอพักบ้าง ส่วนคอนโดมิเนียม ASA อยุธยา-โรจนะ อาจจะเป็นโครงการแรกในย่านนี้ครับ รอบๆโครงการยังมีพื้นที่ว่างเปล่าเหลืออีกพอสมควร

การเดินทางวันนี้เริ่มจากถนนพหลโยธินตรงแถวฟิวเจอร์พาร์ครังสิต จากนั้นมุ่งหน้าไปทางอยุธยา ผ่านนวนคร จากนั้นเบี่ยงซ้ายออกเพื่อเข้าทางหลวงเอเชียสาย 1 จากนั้นตรงตามทางไปและไปกลับรถและไปเลี้ยวเข้าถนนหมายเลข 3056 ตรงตามทางไปจนถึงสี่แยกอุทัย จากนั้นเลี้ยวขวาเข้าถนนโรจนะและตรงไปอีกประ 270 ม. จะเจอพื้นที่โครงการทางซ้ายมือครับ

สรุปการเดินทาง ถนนพหลโยธิน > ทางหลวงเอเชียสาย 1 > ถนน 3056 > ถนนโรจนะ > ASA อยุธยา-โรจนะ

เร่ิมจากถนนพหลโยธินมุ่งหน้าไปทางอยุธยา ขวามือเป็น Major รังสิต ใกล้ๆกันเป็น Future Park & Zpell รังสิต

ถัดมาซ้ายมือเป็นมหาวิทยาลัยกรุงเทพ

เลยมาอีกซ้ายมือเป็นมหาวิทยาลัยธรรมศาสตร์ศูนย์รังสิต

ถัดมาขวามือเป็นตลาดไท

ผ่านนวนคร ซ้ายมือเป็นโรงพยาบาลนวนคร

จากนั้นจะเจอป้ายให้เบี่ยงซ้ายออก ตามป้ายอยุธยาครับ

เบี่ยงซ้ายออกมาก็วิ่งตามป้ายอยุธยาต่อ ให้เบี่ยงซ้ายอีกทีครับตามป้าย

วิ่งตามทางไปจะไปเข้าทางหลวงเอเชียสาย 1

ตอนนี้เราอยู่บนทางหลวงเอเชียสาย 1 วิ่งตรงไปยาวๆครับ

จากนั้นซ้ายมือจะเจอ Tesco Lotus บางปะอิน

ขวามือเป็น FN Outlet อยุธยา

จากนั้นจะเจอป้ายบอกสะพานกลับรถให้ชิดซ้าย สังเกตตรงซ้ายมือจะมีปั๊ม PTT (การเดินทางไปโครงการเราจะใช้ทางหลวงเอเชียสาย 1 ตรงไปจนเข้าถนนโรจนะเลยก็ได้นะครับ แต่วันนี้ผมพาไปอีกทาง)

ชิดซ้ายตามป้ายสะพานกลับรถไปครับ

จากนั้นก็ขึ้นสะพานกลับรถไปอีกฝั่งครับ

กลับรถมาก็จะเป็นทางหลวงเอเชียสาย 1 ฝั่งมุ่งหน้าไปกรุงเทพฯ

จากนั้นให้เลี้ยวซ้ายเข้าถนน 3056 ปากทางมีป้ายบอกไปพระบรมราชานุสาวรีย์สมเด็จพระเจ้าตากสินมหาราช

เลี้ยวซ้ายเข้าถนน 3056

เลี้ยวเข้ามาก็วิ่งตรงตามทางไปครับ

ตามสองฝั่งทางจะเป็นอาคารพาณิชย์ พื้นที่ว่างเปล่า และบ้านพักอาศัย

ช่วงนี้จะมีร้านค้า ร้านอาหารริมทาง

ซ้ายมือเป็นโรงเรียนปัณณวิชญ์

ถัดมาจะมีตลาดสดขายอาหาร มีร้านสะดวกซื้อทั้ง 7-11 , Big Mini

ตรงมาจะเจอสี่แยกอุทัยให้เลี้ยวขวาครับ ถ้าเลี้ยวซ้ายจะไปทางอำเภอพระนครศรีอยุธยา

เลี้ยวขวามาจะเป็นถนนโรจนะ ตรงไปอีกประมาณ 270 ม. จะถึงพื้นที่โครงการ ให้เราเตรียมชิดซ้ายได้เลย

จากนั้นซ้ายมือจะเจอ Tesco Lotus นิคมอุตสาหกรรมโรจนะ

ติดกับ Tesco Lotus นิคมอุตสาหกรรมโรจนะ จะเป็นอาคารพาณิชย์ และจะมีซอยทางเข้าโครงการอยู่ครับ

พื้นที่โครงการทางทิศเหนือติดกับพื้นที่ของ Tesco Lotus นิคมอุตสาหกรรมโรจนะ ทิศใต้ติดกับบ้านพักอาศัยความสูง 1 ชั้น ทิศตะวันออกติดกับพื้นที่ว่างเปล่า และทิศตะวันตกเป็นด้านหน้าโครงการติดกับแนวอาคารพาณิชย์สูง 5 ชั้น และถนนโรจนะ

บริเวณด้านหน้าทางเข้าออกโครงการจะอยู่ติดกับถนนโรจนะ ขนาบข้างด้วยอาคารพาณิชย์ 5 ชั้น

มองไปทางซ้ายจะเห็นทางเข้า Tesco Lotus นิคมอุตสาหกรรมโรจนะ ซึ่งเดินจากโครงการไปได้สบายๆ

มองไปอีกฝั่งถัดไปประมาณ 300 ม. จะเป็น Mega Home โรจนะ

เดินเข้าไปดูพื้นที่โครงการด้านในกันต่อครับ

พื้นที่โครงการด้านในตอนนี้กำลังก่อสร้างอยู่ในส่วนรากฐานอาคาร

มองไปฝั่งด้านหน้าจะติดกับแนวอาคารพาณิชย์ 5 ชั้น

ฝั่งด้านข้างโครงการติดกับ Tesco Lotus นิคมอุตสาหกรรมโรจนะ

มองออกมาจากด้านหน้าโครงการจะเป็นถนนโรจนะ

มองไปทางซ้าย จุดกลับรถจะอยู่ถัดไปอีกประมาณ 1 กม.

มองไปอีกฝั่งจะเห็นสี่แยกอุทัย

เดินเข้าไปดูพื้นที่โครงการที่อยู่ติดกับ Tesco Lotus นิคมอุตสาหกรรมโรจนะ กันต่อครับ และตัว Sale Gallery ก็ตั้งอยู่ในนี้ด้วย

เดินเข้ามาเราจะเห็นพื้นที่โครงการทางขวามือครับ

แนวรั้วโครงการด้านข้างที่ติดกับ Tesco Lotus นิคมอุตสาหกรรมโรจนะ

ถัดเข้ามาด้านในจะเห็น Sale Gallery ตั้งอยู่

ด้านหลังพื้นที่โครงการจะติดกับพื้นที่ว่างเปล่า

เข้าไปดูด้านใน Sale Gallery กันหน่อยครับ ใครที่ผ่านไปมาแถวนี้ก็แวะเข้ามาชมกันได้ครับ จอดรถใน Tesco Lotus นิคมอุตสาหกรรมโรจนะได้เลย

ภายในมีชุดโซฟารองรับลูกค้า พร้อมโมเดลจำลองโครงการให้ชมกัน ด้านในมีห้องตัวอย่างให้ชม 2 แบบ

มองไปอีกฝั่ง

ติดกับ Sale Gallery จะเป็น Tesco Lotus นิคมอุตสาหกรรมโรจนะ มีทั้งร้านอาหาร ธนาคารต่างๆ หรือจะเลือกช้อปของใช้ เดินมาจากโครงการได้สบายๆ

เดี๋ยวผมพาไปดูใกล้ๆโครงการตามถนนโรจนะว่ามีอะไรบ้าง โดยจากโครงการตรงไปกลับรถ จากนั้นก็ขับมุ่งหน้าไปทางอำเภอพระนครศรีอยุธยาไปสิ้นสุดตรงวงเวียนเจดีย์วัดสามปลื้มครับ

ออกจากโครงการตรงไปกลับรถประมาณ 1 กม.

ถัดจากโครงการประมาณ 300 ม. จะเจอ Mega Home

และจะเจอจุดกลับรถ กลับรถไปครับ ถ้าตรงไปอีกจะเป็นอำเภอวังน้อย

กลับรถมาก็ขับตรงไปอย่างเดียวครับ

ผ่านหน้าโครงการขวามือ

และจะเจอสี่แยกอุทัย ตรงข้ามแยกไปครับ

จากนั้นจะเจอสามแยก เลี้ยวขวาจะเป็นซอยโรจนะ A ใครที่ทำงานอยู่ในนี้ก็สะดวกเลยอยู่ใกล้ๆกับโครงการ

ถัดมาขวามือจะเป็น Makro พระนครศรีอยุธยา

จากนั้นจะเจอทางแยก ซ้ายมือจะไปกรุงเทพฯ และนครสวรรค์ ซึ่งไปเข้าทางหลวงเอเชียสาย 1 นั่นเองครับ ผมจะพาขับตรงขึ้นสะพานข้ามทางหลวงเอเชียสาย 1

ข้ามมาซ้ายมือจะเป็นโรงพยาบาลราชธาณี

ถัดมาขวามือเป็น The Sky อยุธยา เป็นห้างสรรพสินค้ามีโรงหนัง Major ในนี้ด้วย

ตามสองฝั่งทางจะเป็นตึกแถวอาคารพาณิชย์ มีร้านค้าร้านอาหารเป็นระยะๆ

ถัดมาซ้ายมือเป็นวิทยาลัยเทคโนโลยีพณิชยการอยุธยา

และจะเจอวงเวียนเจดีย์วัดสามปลื้ม ถ้าตรงไปอีกก็จะข้ามแม่น้ำป่าสักมุ่งสู่เกาะเมืองพระนครศรีอยุธยา เจดีย์วัดสามปลื้มเป็นเจดีย์ทรงแปดเหลี่ยม ศิลปะสมัยอยุธยาตอนต้น กรมศิลปากรบูรณะเจดีย์องค์นี้ไว้ให้อยู่ในสภาพที่สมบูรณ์และคงลักษณะสำคัญโดยรวมเอาไว้

ความอุดมสมบูรณ์รอบๆโครงการในระยะเดินประมาณ 100 ม. เป็น Tesco Lotus เดินมาหาของกินของใช้ได้สบายๆไม่ต้องขับรถเลย ตามริมสองฝั่งทางถนนโรจนะจะมีร้านค้าร้านอาหารให้เลือกเป็นระยะๆ มีตลาดสดด้วย ถ้าจะให้เยอะหน่อยก็เข้าไปในตัวเมืองมีให้เลือกหลายร้านเลย ร้านขนมก็เยอะครับโดยเฉพาะโรตีสายไหม ร้านอาหารบรรยากาศดีๆก็มีอยู่ริมแม่น้ำ อย่าลืมไปทานกุ้งเผามันเยอะๆที่นี่สดและอร่อย ห้างสรรพสินค้าเส้นโรจนะมี Tesco Lotus, Mega Home, Makro, The Sky ตรงเส้นสายเอเชียมี Big C, Ayutthaya City Park, Robinson, Tesco Lotus, FN Outlet, Premium Outlet และยังใกล้กับสถานศึกษา สถานพยาบาล สถานที่ท่องเที่ยวทางประวัติศาสตร์ต่างๆ นอกจากนี้ยังอยู่ใกล้กับนิคมอุตสาหกรรมโรจนะ และนิคมอุตสาหกรรมไฮเทค อีกด้วย

สถานที่สำคัญใกล้เคียง

  • Tesco Lotus นิคมโรจนะ : 0 ม. (ติดกับโครงการ)
  • Makro : 3.3 กม.
  • Big C อยุธยา : 8.4 กม.
  • Ayutthaya City Park : 10 กม.
  • รร.เอกอโยธยา : 2.6 กม.
  • รร.เซนต์แมรี่สินธิวา : 2.2 กม.
  • รร.ปัณณวิชญ์ : 3.3 กม.
  • ม.ราชภัฎพระนครศรีอยุธยา : 11.4 กม.
  • รพ.ราชธานี โรจนะ : 1.8 กม.
  • รพ.ราชธานี : 11.3 กม.
  • รพ.วังน้อย : 14 กม.
  • รพ.พระนครศรีอยุธยา : 12 กม.
  • วัดใหญ่ชัยมงคล : 8.5 กม.
  • วัดพนัญเชิงวรวิหาร : 10.5 กม.
  • นิคมฯไฮเทค : 12.6 กม.
  • สวนอุตสาหกรรมโรจนะ : 1.4 กม.

แยกและถนนสำคัญใกล้เคียง

  • ถนน 3056 : 2.2 กม.
  • ทางหลวงเอเชียสาย 1 (AH 1) : 6.7 กม.
  • ถนนอู่ทอง : 11 กม.
  • ถนนพหลโยธิน : 11.6 กม.
  • แยกอุทัย : 2.2 กม.
  • วงเวียนเจดีย์วัดสามปลื้ม : 9.9 กม.
  • แยกต่างระดับบางปะอิน : 18.8 กม.

Model

ASA อยุธยา-โรจนะ เป็นคอนโด Low rise สูง 8 ชั้นจำนวน 1 อาคาร ตั้งอยู่บนที่ดินขนาด 1-3-94.7 ไร่ ตัวโครงการออกแบบในในสไตล์โมเดิร์นเจแปนนีส รูปทรงอาคารสี่เหลี่ยมมีส่วนที่อาคารเป็นมุม 90 องศา และเป็นมุมป้านออก สีภายนอกใช้โทนสีเทาเข้มและเทาอ่อน มีเล่นสีดูเหมือนขั้นบันได ที่ชั้น 1-2 จะเป็นชั้นส่วนกลาง และที่ชั้น 2-8 จะเป็นชั้นพักอาศัย ที่จอดรถจอดได้ที่ชั้น 1 ใต้อาคาร ทั้งโครงการจอดได้ 40% รวมจอดซ้อนคัน

ASA Ayutthaya-Rojjana

ภาพจำลองโครงการ ASA อยุธยา-โรจนะ

ด้านหน้าโครงการเป็นทิศตะวันตกติดกับถนนโรจนะ สองฝั่งทางเข้าขนาบข้างไปด้วยอาคารพาณิชย์ 5 ชั้น

มองจากมุมด้านบนลงมาจะเห็นแบบนี้

ตรงทางเข้าจะมีไม้กระดกแยกทางเข้าออก ซ้ายมือเป็นป้อม รปภ.

16

ภาพจำลองป้ายชื่อทางเข้าออกโครงการ ASA อยุธยา-โรจนะ

12

ภาพจำลองทางเข้า-ออกโครงการ ASA อยุธยา-โรจนะ

ผ่านไม้กระดกเข้าไปทางบังคับเลี้ยวซ้ายจะเจอจุด Drop Off อยู่หน้า Lobby ถนนในโครงการจะเป็นแบบ One way วนรอบอาคาร

1

ภาพจำลองตรงส่วน Drop Off ด้านหน้า Lobby ที่ชั้น 2 เป็นห้องฟิตเนส

20

ภาพบรรยากาศจำลอง Lobby ตกแต่งมาในสไตล์ Modern japanese พร้อมห้องอเนกประสงค์

21

ภาพบรรยากาศจำลองห้องอเนกประสงค์ อยู่ติดกับ Lobby มีบันไดเดินขึ้นไปห้องฟิตเนสที่ชั้นสองได้

19

ภาพบรรยากาศจำลองโถงลิฟท์โดยสาร และ ห้องจดหมาย

ด้านข้างโครงการเป็นทิศเหนือติดกับ Tesco Lotus นิคมอุตสาหกรรมโรจนะ

ด้านหลังโครงการเป็นทิศตะวันออกติดกับพื้นที่ว่างเปล่า

ด้านข้างโครงการอีกฝั่งเป็นทิศใต้ติดกับบ้านพักอาศัยสูงประมาณ 1 ชั้น

ฝั่งนี้ที่ชั้น 1 จะเป็นส่วนกลางของโครงการ จะมีสระว่ายน้ำ และสวนพักผ่อนสไตล์ Modern Zen และที่ชั้นสองซ้ายมือจะเป็นห้องฟิตเนส

สระว่ายน้ำระบบเกลือขนาด 20 x 4.5 ม.

ห้องฟิตเนสที่ชั้น 2 ผนังเป็นกระจกมองวิวสระว่ายน้ำได้

10

ภาพบรรยากาศจำลองสวนส่วนกลางสไตล์ Modern Zen

11

ภาพบรรยากาศจำลองสวนส่วนกลางสไตล์ Modern Zen

13

ภาพยรรยากาศจำลองสวนส่วนกลางสไตล์ Modern Zen

18

ภาพบรรยากาศจำลองพื้นที่พักผ่อนริมสระว่ายน้ำ และ ทางเดินริมสวน

17

ภาพยรรยากาศจำลองสระว่ายน้ำขนาดใหญ่ มองไปฝั่ง Lobby และห้องฟิตเนส

14

ภาพบรรยากาศจำลองพื้นที่พักผ่อนริมสระว่ายน้ำ

24

ภาพบรรยากาศจำลองห้องฟิตเนสที่ชั้น 2

Floor Plan

Master Plan โครงการ เริ่มจากด้านหน้าทางเข้าออกโครงการติดกับถนนโรจนะ เข้ามาจะเจอไม้กระดกและป้อม รปภ. ถัดเข้ามาจะเป็นถนนในโครงการบังคับเลี้ยวซ้ายจะเป็นจุด Drop Off หน้า Lobby ถนนในโครงการจะเป็นแบบ One way รถวิ่งวนรอบอาคารตามลูกศร จอดรถได้ที่ชั้น 1 ใต้อาคารเลย ทั้งโครงการจอดได้ 40% รวมซ้อนคัน จาก Lobby เข้ามาด้านหลังมีประตูเปิดเข้าออกไปยังสวนส่วนกลาง และสระว่ายน้ำได้ ถัดจาก Lobby จะเป็นโถงลิฟท์โดยสารมีลิฟท์ 2 ตัว และมีบันไดเดินขึ้นชั้น 2 ไปห้องฟิตเนส บันไดหนีไฟมี 2 ฝั่ง มีลิฟท์ขนของอีก 1 ตัว

f2

แปลนชั้น 2 จะเริ่มเป็นชั้นพักอาศัย มียูนิตพักอาศัยทั้งหมด 32 ยูนิต แบ่งเป็นห้อง 1 Bed 29 , 2 Bed 3 ยูนิต ตรงฝั่งทางทิศตะวันตกจะเป็นห้องฟิตเนส ลิฟท์โดยสารจะอยู่ใกล้ๆกับห้องฟิตเนส ยูนิตที่อยู่ทางฝั่งทิศตะวันออกระยะเดินจะไกลหน่อย บันไดหนีไฟมีสองจุด

f3

แปลนชั้น 3-8 เหมือนกันครับ จะเป็นชั้นพักอาศัยทั้งหมด มียูนิตพักอาศัย 35 ยูนิต ตำแหน่งห้องจะเหมือนชั้น 2 เลย แต่จะเพิ่มยูนิต 1 Bed มาอีก 2 ยูนิต และ 2 Bed 1 ยูนิต ตรงตำแหน่งห้องฟิตเนสนั่นเองครับ

Units Type

โครงการมีห้องให้เลือกแบบหลักๆดังนี้

  • 1 Bedroom ขนาด 23.32-36.17 ตร.ม.
  • 2 Bedroom 2 Bath ขนาด 47.3-52 ตร.ม.
  • Duo Type ขนาด 31.43-32.52 ตร.ม.

23.32

1 Bed ขนาด 23.32 ตร.ม.

Room-Layout-ASA_180309_0009

1 Bed ขนาด 23.32 ตร.ม.

A-3

1 Bed ขนาด 24.40 ตร.ม.

A-4

1 Bed ขนาด 26.62 ตร.ม.

a5

1 Bed ขนาด 30.76 ตร.ม.

a6

1 Bed ขนาด 31.87 ตร.ม.

a7

1 Bed ขนาด 36.17 ตร.ม.

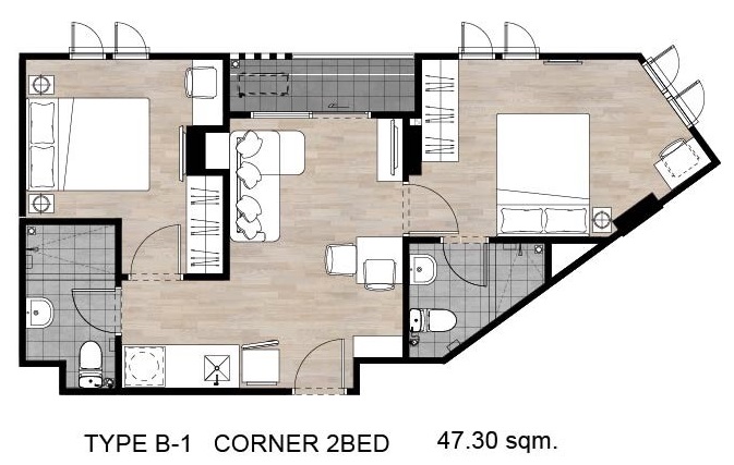
b1

2 Bed 2 Bath ขนาด 47.30 ตร.ม.

b2

2 Bed 2 Bath ขนาด 52 ตร.ม.

duo1

DUO ขนาด 31.43 ตร.ม.

duo2

DUO ขนาด 32.52 ตร.ม.

ห้องตัวอย่าง

ห้องตัวอย่างที่จะพามาชมวันนี้มี 2 แบบ

  • 1 Bedroom ขนาด 23.32 ตร.ม.
  • 1 Bedroom ขนาด 31.87 ตร.ม.

23.32

แบบแรกที่จะพามาชมเป็น 1 Bedroom ขนาด 23.32 ตร.ม. เดินเข้าห้องมาเจอส่วนห้องนั่งเล่นก่อน พื้นที่เปิดเชื่อมกับส่วนครัว ถัดจากครัวจะเป็นระเบียงมีประตูกระจกบานเลื่อน 2 เปิดออกมาจะเจอระเบียงที่สามารถวางเครื่องซักผ้า และราวตากเล็กๆได้ ฝั่งขวาในห้องจะเป็นห้องน้ำ มีพื้นที่ส่วนเปียกส่วนแห้ง ติดกับห้องน้ำจะเป็นห้องนอน ภายในห้องนอนมีพื้นที่สามารถวางโต๊ะ ตู้ เตียงได้

เดินเข้ามาจะเจอส่วนห้องนั่งเล่นก่อน พื้นที่เปิดเชื่อมกับส่วนครัว ขวามือเป็นห้องนอนและห้องน้ำ พื้นห้องเป็นกระเบื้องยางลายไม้คุณสมบัติคือทนน้ำได้ดีกว่าลามิเนต ฝ้าสูง 2.5 ม. ผนังได้ฉาบเรียบทาสีทั้งห้อง ไฟได้แบบดาวน์ไลท์ทุกส่วน

เดินเข้ามาแล้วมองกลับไปที่ประตูทางเข้าจะเห็นแบบนี้

ฝั่งนี้จะวางโซฟาและโต๊ะรับประทานอาหารไว้ติดกันเลย

ได้โซฟาขนาด 2 ที่นั่ง

ติดกันได้โต๊ะรับประทานอาหารพร้อมเก้าอี้ 1 ตัว ถ้าใช้งาน 2 คน อีกคนนั่งตรงโซฟาก็ได้ครับ

ระยะดูทีวีประมาณ 2.7 ม. ได้ชั้นวางของ และตู้วางทีวีตามนี้เลย ซ้ายมือเป็นห้องน้ำ และห้องนอน

ตู้วางทีวีจะเป็นบานเปิด 2 บาน ด้านในแบ่งช่องมาให้เก็บของได้

ภายในห้องน้ำมีพื้นที่ส่วนเปียกส่วนแห้ง

ได้อ่างล้างหน้าของ Hafele

ติดกันวางโถสุขภัณฑ์ของ Hafele พร้อมสายชำระ

ด้านในเป็นพื้นที่ส่วนเปียก ไม่มีฉากกั้นมาให้แต่สามารถติดเพิ่มเองได้ครับ

ด้านในติดฝักบัวไว้ที่ผนัง พร้อมชั้นวางสบู่ อาจจะต้องติดชั้นวางของเพิ่มครับ

หน้าตาฝักบัวที่ได้ขนาดพอดีมือของ Hafele

พื้นที่ส่วนเปียกขนาด 1 x 0.85 ม.

ออกจากห้องน้ำมาถัดไป ขวามือจะเป็นห้องนอน ซ้ายมือเป็นส่วนครัว

ภายในห้องนอนมีพื้นที่มาให้พอสมควร

ได้เตียงขนาด 5 ฟุต

พื้นที่ข้างเตียงเหลือประมาณ 35 ซม. ได้โต๊ะหัวเตียงไว้วางของ

ใต้เตียงมีช่องไว้ให้เก็บของจุกจิกได้

พื้นที่ปลายเตียงเหลือประมาณ 53 ซม.

ข้างเตียงอีกฝั่งเหลือประมาณ 55 ซม.

ระยะดูทีวีปลายเตียงประมาณ 2.5 ม. แอร์ติดปลายเตียง 1 ตัว

ได้ชั้นวางของตรงปลายเตียงตามนี้เลย

ฝั่งข้างเตียงด้านนอกวางตู้เสื้อผ้า และโต๊ะทำงาน มีหน้าต่างกระจกเป็นบานกระทุ้ง 2 บาน

ได้ตู้เสื้อผ้าแบบบานเลื่อน 2 บาน

ติดกันเป็นโต๊ะทำงานพร้อมเก้าอี้ 1 ตัว

มองกลับเข้ามาในห้องจะเห็นแบบนี้

ติดกับห้องนอน จะเป็นห้องครัวได้เป็นครัวเปิด

มีพื้นที่เหลือให้เดินได้ประมาณ 86 ซม.

ในครัวจะได้ชุดเคาน์เตอร์ครัวตามนี้เลย เครื่องใช้ไฟฟ้าได้ได้แถมให้นะครับ

ตู้ด้านบนเป็นแบบบานเปิด 3 บาน

ด้านล่างเป็นบานเปิด 2 บาน

ได้อ่างล้างจานแบบหลุมเดียวไม่มีที่พักจานของ Hafele เตาไฟฟ้าไม่ได้แถมให้ แต่เราซื้อมาวางเพิ่มเองได้ครับ

ถัดไปเป็นระเบียงมีประตูกระจกบานเลื่อน 2 บาน แอร์ห้อง Type นี้จะได้ในห้องนอนแค่ตัวเดียวนะครับ

เปิดประตูออกมาจะเจอระเบียงขนาด 1.65 x 1 ม.

ด้านข้างแขวนคอมเพลสเซอร์แอร์ได้ 2 ตัว ด้านล่างวางเครื่องซักผ้าได้ เดินระบบน้ำและไฟไว้ให้

มองกลับเข้ามาในห้องจะเห็นแบบนี้ครับ

a6

อีกแบบที่พามาชมเป็น 1 Bedroom ขนาด 31.87 ตร.ม. เดินเข้าห้องมาจะเจอส่วนห้องนครัวก่อน ได้เป็นครัวเปิดเชื่อมกับส่วนห้องนั่งเล่นด้านใน ติดกับห้องนั่งเล่นจะเป็นระเบียง ค่อนข้างกว้าง ฝั่งซ้ายจะเป็นห้องนอน ภายในห้องนอนมีพื้นที่มาให้กำลังดี ห้องน้ำจะอยู่ในห้องนอน

เดินเข้ามาจะเจอส่วนห้องครัวก่อน ถัดไปเป็นห้องนั่งเล่นและระเบียง ซ้ายมือเป็นห้องนอน ห้องน้ำจะอยู่ในห้องนอน พื้นห้องเป็นกระเบื้องยาง ฝ้าสูง 2.5 ม. ผนังได้ฉาบเรียบทาสีทั้งห้อง

เดินเข้ามาแล้วมองกลับไปที่ประตูทางเข้าจะเห็นส่วนครัวทางซ้ายมือ ขวามือมีตู้เก็บรองเท้ามาให้ด้วย

ได้ตู้เก็บรองเท้าเป็นบานเปิด 2 บาน

ส่วนครัวจะได้เป็นครัวเปิดแบบนี้

ชุดเคาน์เตอร์ครัวที่ได้เป็นแบบบานเปิด 2 บาน และลิ้นชัก 2 ช่อง ได้อ่างล้างจานแบบหลุมเดียวไม่มีที่พักจานของ Hafele พื้นที่บนเคาน์เตอร์มีให้เยอะกว่าห้องแรก

ถัดจากเคาน์เตอร์ครัวจะเป็นโต๊ะรับประทานอาหาร และโซฟานั่งเล่นวางไว้ฝั่งเดียวกันแบบนี้ ขนาดพื้นที่ส่วนนี้รวมทั้งหมดประมาณ 4.1 x 3 ม.

ได้โต๊ะรับประทานอาหารขนาด 2 ที่นั่ง

จากโต๊ะรับประทานอาหารมองดูทีวีตรงห้องนั่งเล่นได้แบบนี้

มองออกไปยังส่วนห้องนั่งเล่น

ได้โซฟาตัว L ตามนี้เลย มีพื้นที่เหลือให้เดินได้สบายๆ

ระยะดูทีวีประมาณ 3 ม.

ตู้วางทีวีได้แบบบานเปิด 2 บาน

ถัดไปเป็นระเบียงมีประตูกระจกบานเลื่อน 2 บาน ได้แอร์ติดเหนือประตู 1 ตัว

เปิดประตูออกมาจะเจอระเบียงขนาด 3.2 x 1 ม.

ฝั่งด้านข้างแขวนคอมเพลสเซอร์แอร์ 2 ตัว ด้านล่างวางเครื่องซักผ้าได้เดินระบบน้ำและไฟไว้ให้

มองกลับเข้ามาในห้องจะเห็นแบบนี้

ไปดูห้องนอนกันต่อ ส่วนตำแหน่งห้องน้ำจะอยู่ในห้องนอนครับ

ภายในห้องนอนมีพื้นที่มาให้กำลังดี ดูลงตัวกว่าห้องแรก ได้เตียงนอนขนาด 5 ฟุต

พื้นที่ข้างเตียงเหลือประมาณ 1 ม. ได้โต๊ะทำงานพร้อมเก้าอี้ 1 ตัว

ปลายเตียงเหลือพื้นที่ประมาณ 50 ซม.

ข้างเตียงอีกฝั่งเหลือประมาณ 56 ซม.

ระยะดูทีวีปลายเตียงประมาณ 2.5 ม. ได้ชั้นวางของทางขวามือ

หน้าต่างในห้องนอนเป็นแบบบานกระทุ้ง 2 บาน

ฝั่งด้านในวางตู้เสื้อผ้ามาให้ ซ้ายมือเป็นห้องน้ำ

ได้ตู้เสื้อผ้าแบบบานเลื่อน 2 บาน

ภายในห้องน้ำมีพื้นที่ส่วนเปียกส่วนแห้ง

สุขภัณฑ์ที่ได้ของ Hafele

ด้านในเป็นพื้นที่ส่วนเปียกติดตั้งฉากกั้นอาบน้ำเพิ่มเองได้ ด้านในติดฝักบัวไว้ที่ผนังพร้อมที่วางสบู่

พื้นที่ส่วนเปียกขนาด 1.1 x 0.85 ม.


ราคา (ก.ย.61)

  • 1 Bedroom ขนาด 23.32-36.17 ตร.ม. | ราคาเริ่ม 1.09 ล้านบาท
  • 2 Bedroom 2 Bath ขนาด 47.3-52 ตร.ม. | ราคาเริ่ม 2.2 ล้านบาท
  • Duo Type ขนาด 31.43-32.52 ตร.ม. | ราคาเริ่ม 1.52 ล้านบาท

ค่าส่วนกลาง 40 บาท/ตร.ม. : ค่ากองทุน 500 บาท/ตร.ม

เงินจอง 5,000 บาท และเงินทำสัญญา 40,000 บาท

***รายละเอียดอื่นๆโปรดสอบถามทางโครงการครับ


สรุป

ทำเลที่ตั้งโครงการ – ASA อยุธยา-โรจนะ อยู่ในตำบลสามเรือน อำเภอบางปะอิน จังหวัดอยุธยา ตัวโครงการอยู่ติดกับถนนโรจนะห่างจากแยกอุทัยมาประมาณ 270 ม. รอบๆโครงการส่วนใหญ่จะเป็นที่พักอาศัย ที่มีทั้งอาคารพาณิชย์ บ้าน หอพัก และพื้นที่ว่างเปล่า ความอุดมสมบูรณ์รอบๆโครงการในระยะเดินจากโครงการประมาณ 100 ม. มี Tesco Lotus ด้านในมีทั้งร้านอาหาร ธนาคาร มาเดินช้อปของใช้กันได้สบายๆ ตามสองฝั่งทางจะมีร้านค้า ร้านอาหารเป็นระยะๆ มีตลาดสด หรือถ้าจะให้เยอะหน่อยก็เข้าตัวเมืองไปเลยครับมีให้เลือกหลายร้านเลย ส่วนห้างสรรพสินค้าใกล้ๆตรงเส้นโรจนะมี Tesco Lotus, Mega Home, Makro, The Sky ตรงเส้นสายเอเชียมี Big C, Ayutthaya City Park, Robinson, Tesco Lotus, FN Outlet, Premium Outlet และยังใกล้กับสถานศึกษา สถานพยาบาล สถานที่ท่องเที่ยวทางประวัติศาสตร์ต่างๆ

การเดินทางด้วยรถยนต์ส่วนตัว – ถ้าจะเข้าตัวเมืองก็ใช้ถนนโรจนะผ่านทางหลวงเอเชียสาย 1 ก็จะเริ่มเข้าสู่ตัวเมืองแล้ว ถ้าข้ามแม่น้ำป่าสักไปก็จะเข้าสู่เกาะอยุธยาครับ วิ่งเข้าออกตัวเมืองอยุธยาได้สะดวก ถ้าจะเข้ากรุงเทพฯก็ง่ายเลย ใช้ถนน 3056 วิ่งมาเข้าทางหลวงเอเชียสาย 1 จากนั้นก็มุ่งหน้าเข้ากรุงเทพฯไปเชื่อมเข้าถนนพหลโยธินตรงแยกต่างระดับบางปะอิน จะไปผ่านนวนคร ผ่านรังสิต ดอนเมือง เกษตร ห้าแยกลาดพร้าว ยาวไปอนุสาวรีย์ชัยฯได้เลย มีทางด่วนโทลเวย์ให้ขึ้นตรงฟิวเจอร์รังสิต หรือจากแยกต่างระดับบางปะอินมาเข้าถนนกาญจนาภิเษกใช้วิ่งรอบนอกกรุงเทพฯได้ ถ้าจะเดินทางไปยังอำเภอต่างๆในอยุธยา ถนนโรจนะวิ่งผ่านโครงการมายาวไปออกอำเภอวังน้อยได้ ถนน 3056 ใช้วิ่งไปเข้าอำเภออุทัย และเชื่อมออกอำเภอภาชีได้ ถนนโรจนะวิ่งผ่านอำเภอพระนครศรีอยุธยาเชื่อมออกอำเภอบางบาล อำเภอบางปะหัน อำเภอนครหลวงได้ ถ้าจะออกต่างจังหวัด ถนนโรจนะวิ่งมาเข้าถนนพหลโยธินวิ่งออกสระบุรีได้ และสามารถเชื่อมต่อไปออกนครนายก ลพบุรี นครราชสีมา และจังหวัดใกล้เคียงได้ ส่วนทางหลวงเอเชียสาย 1 วิ่งออกไปอ่างทอง สิงห์บุรี นครสวรรค์ ยาวขึ้นไปทางภาคเหนือได้สบายๆครับ

การเดินทางด้วยรถสาธารณะ – โครงการต่างจังหวัดส่วนใหญ่จะใช้รถส่วนตัวกันเป็นหลักอยู่แล้ว ส่วนระบบขนสงสาธารณะในจังหวัดจะมีรถสองแถววิ่งให้บริการซึ่งส่วนใหญ่จะอยู่ในตัวเมือง มีรถประจำทาง มีรถตู้บริการกรุงเทพฯหมอชิต2 – โรจนะ, ภาชี-อยุธยา และมีรถไฟสายเหนือผ่านตัวจังหวัด

การออกแบบโครงการและวัสดุ – โครงการออกแบบมา 1 อาคาร สูง 8 ชั้น บนพื้นที่ดินขนาด 1-3-94.7 ไร่ อาคารรูปทรงสี่เหลี่ยม ออกแบบมาในสไตล์ Modern Japanese ชั้นพักอาศัยจะเริ่มที่ชั้น 2 – 8 ส่วนกลางหลักๆอยู่ที่ชั้น 1 และ 2 ชั้นจอดรถอยู่ชั้น 1 ใต้อาคาร

การออกแบบห้องพักอาศัยที่นี่มีให้เลือกแบบหลักๆ คือ 1 Bed ขนาด 23.32-36.17 ตร.ม. , 2 Bed 2 Bath ขนาด 47.3-52 ตร.ม. , Duo Type ขนาด 31.43-32.52 ตร.ม. ห้องออกแบบมาดูโปร่งไม่อึดอัด ฝ้าสูง 2.5 ม. โครงการขายแบบ Fully Furnished ของที่ได้จะมี โซฟา ชั้นวางทีวี โต๊ะรับประทานอาหาร ในห้องนอนได้เตียงขนาด 5 ฟุต ตู้เสื้อผ้า โต๊ะทำงาน ชุดครัวอ่างล้างจานของ Hafele สุขภัณฑ์ภายในห้องน้ำของ Hafele แอร์ได้แบบติดผนัง

สิ่งอำนวยความสะดวก – Facility หลักๆของโครงการอยู่ที่ชั้น 1 และ 2 ที่ชั้น 1 มี Lobby มีทางเดินเชื่อมไปออกสวนส่วนกลางพร้อมพื้นที่พักผ่อน และสระว่ายน้ำ ตกแต่งมาในสไตล์ Zen ขนาดสระว่ายน้ำ 20 x 4.5 ม. ระบบเกลือ ที่ชั้น 2 มีห้องฟิตเนสมีบันไดเดินขึ้นมาจากโถงลิฟท์ชั้น 1 ลิฟท์โดยสารมีให้ 2 ตัว และลิฟท์ขนของ 1 ตัว ที่จอดรถจอดได้ที่ชั้น 1 ทั้งโครงการจอดได้ 40% รวมซ้อนคัน ระบบรักษาความปลอดภัยมีรปภ. มี CCTV และผ่านเข้าออกด้วยระบบ Key Card Access


คะแนน

ทำเลที่ตั้งโครงการ 8.0 ตั้งอยู่ในย่านที่มีความอุดมสมบูรณ์ทั้งร้านค้า ร้านอาหาร ห้างสรรพสินค้า แหล่งงาน สถานศึกษา สถานพยาบาล
การเดินทาง ใช้รถ 8.0 เชื่อมออกได้หลายเส้นทาง เข้าออกเมืองสะดวก
การเดินทาง ไม่ใช้รถ 7.0 เหมาะกับคนที่มีรถส่วนตัว รถเมล์ รถตู้
ห้องและวัสดุ 7.5 ออกแบบมาน่าอยู่ วัสดุที่ใช้อยู่ในระดับมาตรฐาน ขายแบบ Fully Furnished หิ้วกระเป๋าเข้าอยู่ได้เลย
สิ่งอำนวยความสะดวก 7.5 Facility มี Lobby , สวนหย่อม , ฟิตเนส , สระว่ายน้ำ
ความคุ้มค่ากับราคา 7.5 รูปแบบโครงการออกแบบมาน่าอยู่อาศัย เหมาะกับคนที่ทำงานอยู่ในย่านนี้
คะแนนรวมเฉลี่ย 7.58 ดี

สอบถามรายละเอียดเพิ่มเติมได้ที่

Tel : 093-250-9599

Website : https://www.asacondo.com

หากเพื่อนๆเห็นว่ารีวิวนี้มีประโยชน์ ช่วยกด Like เพื่อเป็นกำลังใจให้ทีมงาน ขอบคุณครับ

และมีความคิดเห็นหรือข้อมูลเพิ่มเติมเกี่ยวกับตัวโครงการ สามารถ Comment ได้ที่ด้านล่างของรีวิวครับ


สนใจลงโฆษณากับทาง CONDONAYOO ติดต่อสอบถามรายละเอียดได้ที่
คุณวัน 086-1290293 
LINE ID : 123456786205 Email : wanchalearm.t@gmail.com
ทางเราเป็นเว็บไซต์ให้ข้อมูล ไม่ใช่เจ้าของโครงการนะครับ

แสดงความคิดเห็น เกี่ยวกับ " EP.249 รีวิว ASA อยุธยา-โรจนะ คอนโดสไตล์ญี่ปุ่น ติดโลตัสโรจนะ "

1 ความคิดเห็น

  1. ประทานพร

    ขอสอบถามว่า ถ้าซื้อแล้วปล่อยเช่า ค่าเช่าประมาณเท่าไหร่ต่อตารางเมตรคะ และห้อง duo ราคาเท่าไหร่ ยังมีเหลืออยู่ไหมคะ ช่วยโทรกลับ 0813757225 ด้วยคะ ขอบคุณค่ะ