
รีวิว คอนโด บีทนิค สุขุมวิท 32 BEATNIQ Sukhumvit 32 ใกล้รถไฟฟ้า BTS ทองหล่อ
สวัสดีค่ะ เพื่อนๆ Condonayoo วันนี้จะพาไปชม BEATNIQ สุขุมวิท 32 จาก SC ASSET ตั้งอยู่ในซอยสุขุมวิท 32 แขวงคลองตัน เขตคลองเตย กทม. กทม. ใกล้รถไฟฟ้า BTS ทองหล่อ ประมาณ 250 เมตร และ BTS พร้อมพงษ์ ประมาณ 700 เมตร ใกล้ Emporium, Emquartier, Market Place ทองหล่อ, Rain Hill, Park Lane เอกมัย, รร.นานาชาติ Bangkok Prep, รร.นานาชาติเอกมัย, ม.กรุงเทพ, รพ.สุขุมวิท, รพ.เทพธารินทร์ และ รพ.กล้วยน้ำไท
บีทนิค สุขุมวิท 32 เป็นคอนโด High Rise 34 ชั้น 1 อาคาร พื้นที่โครงการขนาด 1-3-69 ไร่ ห้องพักอาศัยรวม 197 ยูนิต มีห้องพักให้เลือกแบบ 1 ห้องนอน, 2 ห้องนอน, 3 ห้องนอน ขนาดเริ่มต้น 43.00 – 204.00 ตร.ม. สร้างเสร็จพร้อมอยู่ปี 2561
สิ่งอำนวยความสะดวกภายในโครงการครบครัน อาทิ โถงต้อนรับ, ห้องจดหมาย, สระว่ายน้ำ, จากุซซี่, ฟิตเนส, ซาวน่า, สวนพักผ่อน, ลิฟท์โดยสาร, ประตูคีย์การ์ด, ที่จอดรถ 193 คัน ไม่รวมจอดซ้อนคัน, กล้องวงจรปิด และ รปภ.24 ชม. ราคาเริ่มต้น 12 ล้านบาท Fully Fitted (ณ.วันเปิดตัว)
| ชื่อโครงการ | บีทนิค สุขุมวิท 32 BEATNIQ Sukhumvit 32 |
| เจ้าของโครงการ | เอสซี แอสเสท SC ASSET |
| ลักษณะห้องและขนาดห้อง | – 1 Bedroom : 43 – 59 sq.m. – 2 Bedrooms : 79 – 82 sq.m. – 2 Bedrooms Plus : 108 – 121 sq.m. – 2 Bedrooms Duplex : 95 – 100 sq.m. – 3 Bedroom : 160 – 204 sq.m. |
| เนื้อที่ทั้งหมด | 1-3-69 ไร่ |
| จำนวนตึก | 1 อาคาร |
| จำนวนชั้น | 34 ชั้น |
| จำนวนห้อง | 197 ยูนิต |
| ที่จอดรถทั้งหมด | 193 คันไม่รวมจอดซ้อนคัน คิดเป็น 98% ของจำนวนยูนิต |
| โซน | สุขุมวิท-เขตคลองเตย |
| ขนส่งสาธารณะ | – รถไฟฟ้า BTS ทองหล่อ, BTS พร้อมพงษ์ |
| รถโดยสารที่ผ่าน | รถโดยสารประจำทางสาย 2, 25, 38, 40, 48, 98, ปอ. 1, 8, 11, 13 ปอพ 19, 30 |
| ที่ตั้ง | ซอยสุขุมวิท 32 แขวงคลองตัน เขตคลองเตย กทม. |
| กำหนดการ | เริ่มก่อสร้าง มีนาคม 2559 |
| ปีที่สร้างเสร็จ | กันยายน 2561 |
| ราคา | เริ่มต้น 12 ล้านบาท Fully Fitted |
| ราคาเฉลี่ยต่อ ตร.ม | 285,000 บาท /ตร.ม. |
| ค่าส่วนกลางและกองทุน |
|
| สถานที่สำคัญใกล้เคียง |
|
| สิ่งอำนวยความสะดวก | – a hotel-standard lobby – swimming pool – steam and sauna – fully-equipped gym with boxing and yoga studio – reading lounge with meeting room – a rooftop outdoor recreational area – semi-outdoor jacuzzi pool |
| จุดเด่นของโครงการ | บีทนิค สุขุมวิท 32 (BEATNIQ Sukhumvit 32) โครงการใหม่จาก SC ASSET |
ที่ตั้งโครงการ
ซอยสุขุมวิท 32 แขวงคลองตัน เขตคลองเตย กทม.
พิกัด google map: 13.726157, 100.575526
ที่ตั้งโครงการ BEATNIQ สุขุมวิท 32 ตั้งอยู่ติดถนนใหญ่สุขุมวิทและติดกับซอยสุขุมวิท 32 ที่เป็นซอยตัน ซึ่งเป็นโซนที่ดินที่มีราคาสูงและอุดมสมบูรณ์มาก เนื่องจากทองหล่อและพร้อมพงษ์เป็นย่านที่เต็มไปด้วยแหล่งอาหารการกิน ห้างใหญ่สำหรับช้อปปิ้งและแหล่งตระเวนราตรีที่ครึกครื้นและเต็มไปด้วยสีสัน โดยตัวโครงการจะอยู่ห่างจาก BTS ทองหล่อ ประมาณ 250 m. และห่างจาก BTS พร้อมพงษ์ ประมาณ 700 เมตร
สำหรับคนไม่ใช้รถ นอกจาก BTS สองสถานีในระยะเดินไปได้แล้ว โซนนี้มีทั้งแท้กซี่ วินมอเตอร์ไซค์ แทบจะ 24 ชั่วโมงนะคะ จะไปไหนก็ไว รถติดก็มีทางเลี่ยงเยอะแยะ เพราะอยู่ใจกลางเมืองในแหล่งห้างสรรพสินค้าอยู่แล้ว อยากไปช็อปปิ้ง สามารถขึ้นรถไฟฟ้าไปได้ทั้ง เอมโพเรียม เอมควอเทียร์ เทอมินอล 21 ไม่ต้องรถติด ทั้งใกล้และสะดวก

สำหรับคนขับรถ โครงการ BEATNIQ สุขุมวิท 32 เป็นโครงการที่อยู่ติดถนนใหญ่สุขุมวิทระหว่างย่านทองหล่อกับพร้อมพงษ์ ซึ่งก็ถือว่าเป็นถนน CBD โซนในเลย ซึ่ง ถนนสุขุมวิทช่วงนี้จะเป็นจุดที่มีการจราจรหนาแน่นทั้งฝั่งเลขคู่และเลขคี่เลยค่ะ เนื่องจากเป็นจุดที่คนใช้เดินทางไป-มาระหว่างถนนสุขุมวิท ถนนพระรามสี่ และถนนเพชรบุรี ผ่านซอยน้อยใหญ่ต่างๆ ซึ่งรถแน่นทุกเส้น เพราะทั้งสามเส้นเป็นถนนสายหลัก บวกกับการที่โลเคชั่นอยู่ใจกลางเมือง ห้างเยอะ คอนโดเยอะ ออฟฟิศอาคารสำนักงานเยอะ คนใช้รถใช้ถนนจึงเยอะไปด้วย
ทำเลตรงนี้มีจุดขึ้นทางด่วนกระจายตัวอยู่รอบๆ ทั้ง ทางด่วนเพลินจิต, พระราม 4, เอกมัย – รามอินทรา, สุขุมวิท 50 ฯลฯ แต่เนื่องจากย่านนี้รถค่อนข้างติดค่ะ เพราะทุกเส้นอยู่ในตัวเมืองทั้งนั้น ทำให้การเดินทางโดย “เลี่ยงเมือง” ทำไม่ได้ แต่โดยรวมการเดินทางก็สะดวกอยู่แล้ว เพราะอย่างที่กล่าวไปข้างต้นว่าทำเลอยู่ในตัวเมืองอยู่แล้วด้วย
ตัวโครงการ BEATNIQ สุขุมวิท 32 อยู่ห่างจาก BTS ทองหล่อ ประมาณ 250 m. และห่างจาก BTS พร้อมพงษ์ ประมาณ 700 เมตร ถนนเส้นหลักคือถนนใหญ่สุขุมวิทฝั่งวิ่งเข้าเมืองไปพร้อมพงศ์ เพลินจิต สยาม นอกจากนี้จะมีทางเชื่อมซอยต่างๆวิ่งไปออกถนนพระราม 4 และ ถนนเพชรบุรีได้ พื้นที่ใกล้เคียงโครงการล้อมรอบไปด้วยห้างสรรพสินค้าชั้นนำ สถานที่ท่องเที่ยว และร้านอาหารมากมายค่ะ เช่น
จะเห็นว่าในระยะเดิน รอบๆโครงการ ร้านอาหาร ของกิน แหล่งช้อปปิ้งมีให้เลือกหลากหลายค่ะ ทั้งห้างหรูอย่างเอ็มโพเรียม เอ็มควอเทียร์ หรือพื้นที่สีเขียวไว้เดินเล่นอย่างสวนสาธารณะเบญจสิริ โรงหนังอย่างเมเจอร์ ไปดูดาวที่ท้องฟ้าจำลอง หรือแหล่งรวมร้านอาหารดีๆอย่าง Rain Hill หรือซุปเปอร์มาเกตอย่าง Tops ร้านอาหารสองฝั่งถนนใหญ่สุขุมวิทโซนนี้ก็มีร้านคุณภาพดีๆและมีคอนเซ็ปร้านเก๋ๆเยอะทีเดียว
หรือจะเข้าไปในทองหล่อ เอกมัย ก็มีชื่อเสียงอยู่แล้วเรื่องผับ บาร์ และร้านอาหารอีกเป็นร้อยร้าน เปิดทั้งกลางวันกลางคืน มีทั้งโรงพยาบาล,โรงหนัง, วัด, ห้างสรรพสินค้า, Community mall ผุดขึ้นมามากมาย นอกจากสาธารณูปโภคเหล่านี้ก็ยังมี ปั๊มน้ำมัน อู่ซ่อมรถอยู่อีกด้วย
ไม่ว่าจะซอยทองหล่อ เอกมัย หรือโซนพร้อมพงษ์อย่างซอยสุขุมวิท 24, 39 ก็ล้วนแต่เป็นย่านหรูที่เต็มไปด้วยแหล่งอาหารการกินที่มีชื่อเสียง และแหล่งตระเวนราตรีที่ครึกครื้นและเต็มไปด้วยสีสัน เป็นเหตุผลนึงที่ทำให้ย่านนี้เป็นย่านที่ขึ้นชื่อเรื่องความหรูหราและมีสไตล์ที่สุดแห่งนึงในกรุงเทพนะคะ
แต่ก็ต้องมีเงินในกระเป๋าที่หนักพอสมควรค่ะสำหรับการอยู่ในย่านที่ค่าครองชีพสูง ซึ่งเราว่ามันก็น่าจะตอบโจทย์กับไลฟ์สไตล์ของกลุ่มคนซื้อหรือเช่าคอนโดราคาระดับนี้นะคะ เนื่องจากย่านนี้(พร้อมพงษ์-ทองหล่อ)ร้านอาหารส่วนมากราคาเฉลี่ยอยู่ที่ประมาณ 200- 500 บาทต่อคนค่ะ
แต่ก็จะมีร้านข้างทางริมถนนใหญ่สุขุมวิทฝั่งโครงการ โดยเฉพาะช่วงต้นซอยสุขุมวิท 36, 38 ตรงข้ามซอยทองหล่อ และแผงขายอาหารข้างทางมากมายระหว่างทางเท้าที่เดินจากโครงการไปพร้อมพงษ์ ที่ราคาอาหารเฉลี่ยอยู่ที่ 30-50 บาทต่อคนเท่านั้น
วันนี้เรามีภาพการเดินทางโดยรถมาให้ชมกันก่อน เส้นทางการเดินทางตามลูกศรแดง โดยเริ่มเดินทางจาก ถนนสุขุมวิทจากทางฝั่งอ่อนนุช พระโขนง → ตรงตามเส้นรางรถไฟฟ้าสายสีเขียวบนถนนสุขุมวิทมาเรื่อยๆ → ผ่านสถานีทองหล่อ → ตรงไปประมาณ 250 เมตร จะเจอโครงการ BEATNIQ สุขุมวิท 32 อยู่ทางซ้ายมือแล้วค่า
เริ่มกันจากบนถนนใหญ่สุขุมวิท จากพระโขนงฝั่งมุ่งหน้าเข้าเมืองนะคะ เราตรงไปเรื่อยๆตามรางรถไฟฟ้าไปเลย
ตรงมาหน่อย ก่อนถึง BTS เอกมัย ซ้ายมือจะเป็น Gateway เอกมัย อีกห้างที่อยู่ใกล้โครงการนะคะ โดยจะห่างจากโครงการ BEATNIQ สุขุมวิท 32 แค่ประมาณ 1.4 กิโลเมตรเท่านั้น ภายในก็มีร้านอาหารและสิ่งอำนวยความสะดวกมากมาย
ตรงผ่าน BTS เอกมัยมา จะมีป้ายบอกทางให้เตรียมเลี้ยวขวาสำหรับคนที่จะไปเพชรบุรีหรือไปขึ้นทางด่วนรามอินทรา เอกมัย นะคะ ส่วนเราวันนี้ไปโครงการก็ตรงไปเรื่อยๆเลย
เลย BTS เอกมัยมาหน่อย จะมีแยกขวามือเป็นทางเข้าซอยเอกมัยหรือสุขุมวิท 63 ที่หัวมุมปากซอยจะมีโรงหนังเมเจอร์เอกมัยอยู่
ตรงต่อไป ฝั่งซ้ายมือตรงข้ามเมเจอร์เอกมัยจะเป็นศึกษาภัณฑ์แหล่งขายเครื่องมือการศึกษา ถัดไปจะเป็นท้องฟ้าจำลองกรุงเทพฯ
เอาภาพภายในท้องฟ้าจำลองกรุงเทพมาให้ดูกันจากแฟนเพจ ท้องฟ้าจำลองกรุงเทพ – Bangkok Planetarium มาให้ดูกันค่ะ เนื่องจากตอนนี้ปรับปรุงเสร็จแล้วนะคะ คิดตั๋วค่าเข้าแค่ 40 บาทเท่านั้นเอง ใครอยากเข้าไปดูดาวก็ถือว่าคุ้มมากๆ ส่วนตัวเราพยายามจะไปช่วงที่เปิดใหม่แรกๆ ปรากฏว่าคนเยอะะะะมากค่ะ แบบคิวยาว รอบหมด เลยยังไม่ได้ไปดูซักที ได้แต่เดินดูส่วนจัดแสดงรอบๆ แต่ยังไงก็เชียร์ให้ไปดูกันนะคะ โดยจะห่างจากโครงการ BEATNIQ สุขุมวิท 32 แค่ประมาณ 1.2 กิโลเมตรเท่านั้น
ตรงมาอีกหน่อยก็จะเจอ BTS ทองหล่อ จากตรงนี้ก็อยู่ใกล้โครงการ BEATNIQ สุขุมวิท 32 แค่ประมาณ 250 เมตรเท่านั้น
จากนี้ก็ตรงไปเรื่อยๆจะเจอโครงการ BEATNIQ อยู่ทางซ้ายมือแล้วค่ะ สังเกตถนนสุขุมวิทโซนใกล้ BTS ทองหล่อ ก็จะเป็นถนน 6 เลน มีเกาะและรางรถไฟฟ้าตรงกลางแบ่งเป็นขาเข้าและขาออกฝั่งละ 3 เลน โดยโครงการจะอยู่ฝั่งเข้าเมืองฝั่งในภาพนั่นเอง ทางเท้าข้างถนนกว้างเดินสบายๆมีคอนโดมีเนียมขึ้นเต็ม เดินปลอดภัยไม่เปลี่ยวค่ะ
โครงการ BEATNIQ จะอยู่ระหว่างช่วงสุขุมวิทซอย 32 และ 34 นะคะ พอเราขับมาเจอป้ายซอย 34 นี่ชิดซ้ายไว้เลยจะดีกว่า
ขับมาอีกนิดก็จะเจอสำนักงานขายโครงการ BEATNIQ ทางฝั่งซ้ายมือแล้วค่ะ
สำนักงานขายของโครงการจะมีทางเข้าด้านข้างไปที่จอดรถอยู่นะคะ ก่อนพาเข้าไปดูในโครงการเราขอพาไปเดินดูรอบๆกันก่อน
เนื่องจากตัวโครงการ BEATNIQ สุขุมวิท 32 อยู่ห่างจาก BTS ทองหล่อ ประมาณ 250 m. และห่างจาก BTS พร้อมพงษ์ ประมาณ 700 เมตร เราจะพาเดินจาก BTS ทองหล่อ ผ่านหน้าโครงการ ไป BTS พร้อมพงษ์ เพื่อให้เห็นภาพทางเดินเท้าและสิ่งอำนวยความสะดวกรอบๆโครงการกันนะคะ
เริ่มจาก BTS ทองหล่อ ออกมาประตู 2 ฝั่งสุขุมวิทซอยเลขคู่ตรงข้ามซอยทองหล่อนะ
จากบน BTS ทองหล่อ มองลงไปที่ถนนและทางเท้าด้านล่างจะเป็นถนนสุขุมวิทขาเข้าเมืองวิ่งไปพร้อมพงษ์ อโศก เพลินจิต สยาม ข้างทางมีคอนโดระดับ Luxury สร้างเสร็จแล้วเรียงรายกันไป ทำให้ทางเดินเท้ากว้างและค่อนข้างปลอดภัย ไม่เปลี่ยวค่ะ เพราะมีรปภ.ของคอนโดแต่ละโครงการคอยดูความเรียบร้อยอยู่อีกส่วนนึงนั่นเอง
ลงมาจาก BTS ทองหล่อ เดินไปโครงการ ทางเดินเท้าจะกว้างๆเดินสบายแบบนี้ คอนโดมิเนียม The Crest นี่จะเป็นคอนโดที่อยู่ใกล้โครงการ BEATNIQ ที่สุดโครงการนึงเลยค่ะ
ถัดมาจะเป็นซอยสุขุมวิท 34 เราตรงข้ามทางม้าลายไป ที่หัวมุมปากซอยจะมีพี่วินมอเตอร์ไซค์อยู่
ก็ถือเป็นวินมอเตอร์ไซค์ที่อยู่ใกล้โครงการที่สุดนะคะ โดยจะห่างจากโครงการ BEATNIQ เพียง 80 เมตรเท่านั้น
ถ่ายอัตราค่าโดยสารมาให้ดูกันค่ะ
ตรงต่อมาก็จะเจอป้ายรถเมล์ที่อยู่ห่างจากโครงการแค่ประมาณ 50 เมตรเท่านั้น
ตรงต่อมาก่อนถึงที่ตั้งโครงการ อาคารข้างทางก็จะเป็นอาคารพาณิชย์สูง 4 – 5 ชั้น ด้านล่างก็มีเปิดร้านนวดสปาบ้าง
ร้านขายเสื้อผ้าบ้าง ร้านอาหาร ร้านขายสมู้ธตี้บ้าง
จนมาถึงหน้าโครงการ BEATNIQ สุขุมวิท 32 แล้วค่ะ ก็นั่นล่ะฮะท่านผู้ชม ก่อนเข้าไปดูโครงการ สำนักงานขาย ห้องตัวอย่าง เดี๋ยวเราพาเดินต่อจากหน้าโครงการไป BTS พร้อมพงษ์กันต่อก่อนนะคะ
ถัดจากโครงการจะเป็นทางเข้าซอยสุขุมวิท 32 ซึ่งเป็นซอยตันนะ หัวมุมซอยเป็นร้านขายโคมไฟแขวน ย่านนี้นี่จริงๆนอกจากร้านอาหารเยอะ พวกร้านขายของตกแต่งบ้านจริงๆก็มีเยอะเหมือนกันค่ะ โดยเฉพาะภายในซอยทองหล่อนี่จะมีพวกโชว์รูมเฟอร์นิเจอร์และของตกแต่งบ้านระดับไฮเอนด์ค่อนข้างเยอะเลย พวกเฟอร์นิเจอร์อิมพอร์ทจากเยอรมัน จากอิตาลี สเปน พวกนี้ อันนี้บอกไว้เผื่อใครชอบดูหรืออยากช้อปเฟอร์นิเจอร์เพิ่มเติมนะคะ
เดินตรงผ่านอาคารพาณิชย์ข้างทางมาเรื่อยๆ
ก็จะเจอสถานฑูตของฟิลิปปินส์อยู่ทางซ้ายมือค่ะ
ตรงข้ามสถานฑูตฟิลิปปินส์ อีกฝั่งถนนจะเป็น Rain Hill คอมมิวนิตี้มอลล์ที่รวมร้านอาหารและบาร์ดีๆไว้หลายร้าน
เดินมาเรื่อยๆถึงสุขุมวิทซอย 30 ก็จะเจอร้านขายโคมไฟแชนเดอเลียอีกแล้วค่ะ
เดินชิวๆตรงมาเรื่อยๆก็จะเห็นร้านเก๋ๆเรื่อยๆ ซ้ายมือร้าน Peterson สีดำๆนี่เป็นร้านโชว์รูมเปียโนมือสองที่ใหญ่ที่สุดในประเทศไทยนะคะ เป็นเปียโนที่นำเข้าจากประเทศญี่ปุ่นและยุโรป ช่วงหลังๆนี่ปรับปรุงหน้าร้านใหม่ และเห็นว่ามีสอนเปียโนเพิ่มด้วย อันนี้ใครสนใจก็แวะเข้ามาดูกันได้นะคะ อยู่ระหว่างซอยสุขุมวิท 26 และ 28 ค่ะ
ตรงมาเรื่อยๆ พอใกล้ๆ BTS พร้อมพงษ์หน่อยก็จะเริ่มเห็นร้านอาหารแบบขายชาวต่างชาติ มีเมนูภาษาจีน ภาษาอังกฤษผุดขึ้นมาประปราย
รวมถึงพวกโรงแรมด้วยค่ะ เพราะโซนพร้อมพงษ์นี่ ด้วยความอุดมสมบูรณ์ ใกล้ห้างใหญ่ถึง 2 ห้างอย่างเอ็มโพเรี่ยมและเอ็มควอเทียร์ แถมมีสวนสาธารณะเบญจสิริ และใกล้รถไฟฟ้าสถานีในตัวเมือง CBD แบบนี้ ทำให้เป็นโซนที่มีโรงแรมทั้งแบบกลางๆและระดับหรูผุดขึ้นมารับนักท่องเที่ยวมากมาย
ตรงมาหน่อยก็จะเจอ BTS พร้อมพงษ์แล้วค่ะ
ตรงมาข้างทางก่อนทางขึ้น BTS ก็จะเจอร้านอาหารราคาย่อมเยาว์รสชาสดี และแผงขายอาหารข้างทางเรียงราย
สิ่งอำนวยความสะดวกก็เยอะค่ะ ส่วนนี้เราเดินมาถึงปากซอยสุขุมวิท 24 แล้ว
ซอยสุขุมวิท 24 เป็นอีกซอยนึงที่ค่อนข้างพีคสำหรับย่านพร้อมพงษ์นะคะ อีกซอยนึงคือซอยสุขุมวิท 39 ฝั่งตรงข้าม คือดังเพราะมีแหล่งร้านอาหารอร่อยๆเยอะค่ะ ลองเอาชื่อซอยไปเสิร์ชในเนตดูนะคะ ชื่อร้านอาหาร ร้านขนมดังๆขึ้นมาเพียบ
อย่างในซอยสุขุมวิท 24 นี่ด้านในจะมีโรงแรมหรูอย่าง Hilton, Mariot และโรงแรมพร้อมเซอร์วิสอพาร์ทเม้นท์หรูๆอยู่อีกหลายเจ้า ภายในซอยมีร้านอาหารดังๆเยอะ มี K Village มี Big C มีลานเล่นเซิร์ฟ และอื่นๆอีกมาก
ขึ้นไปดูบน BTS พร้อมพงษ์กันค่ะ คือก็เหมือน BTS หลายๆสถานีนะคะ ที่จะมีทางเชื่อมต่อไปห้างด้วย อย่าง BTS พร้อมพงษ์ก็จะเชื่อมกับห้างทั้ง Emporium และ Emquartier เลย
ขึ้นไปด้านบน BTS ฝั่งขวามือจะเป็นห้าง Emquartier ห้างใหม่ที่เพิ่งเปิดมาได้สักพัก และเป็นที่นิยมมากกว่าห้าง Emporium ห้างหรูฝั่งตรงข้ามที่อยู่มานานซะอีก น่าจะเพราะภายใน Emquartier นำแบรนด์สินค้าและมี Shop ใหม่ๆเข้ามาเยอะ และยังมีร้านอาหาร ร้านขนมของดารา ร้านขนมดังๆอิมพอร์ตเข้ามาค่อนข้างเยอะค่ะ ซึ่งราคาก็พอจับต้องได้ ทำให้มักจะมีคนคึกคักอยู่ตลอดเวลา
ฝั่งซ้ายมือฝั่งเดียวกันกับโครงการ BEATNIQ จะเป็นห้าง Emporium ห้างหรูที่ตอนนี้ก็ปรับปรุงใหม่และมี Shop ใหม่ๆอิมพอร์ตเข้ามาหลายร้านเหมือนกัน ริมด้านนอกนี่จะมีร้านเพชรทิฟฟานี่ ที่แหวนหมั้นในฝันของสาวๆหลายๆคนก็อยู่ใน Shop นี้ ข้างๆกันก็จะมี Shop ของคาร์เทียร์อยู่นะคะ

นอกจากนี้ BTS พร้อมพงษ์ก็จะมีบันไดทางลงไปที่ด้านหน้าของสวนสาธารณะเบญจสิริที่อยู่ข้างห้าง Emporium อีกด้วย
สวนสาธารณะเบญจสิริ เป็นสวนสาธารณะที่อยู่ใกล้โครงการที่สุดนะคะ โดยอยู่ห่างจากโครงการประมาณ 1 กิโลเมตร
สถานที่สำคัญใกล้เคียงโครงการ
ตัวโครงการ

โครงการ BEATNIQ สุขุมวิท 32 ทางเข้า-ออกอยู่ติดถนนใหญ่สุขุมวิท มีจุดกลับรถอยู่เลยทางเข้าโครงการไปนิดเดียว ซึ่งข้อดีคือสามารถกลับรถได้ทั้งสองทาง แต่จุดที่ทำให้ช้าคือรถที่มาจากซอยสุขุมวิท 49 ก็สามารถเลี้ยวออกมาต่อท้ายที่ถนนสุขุมวิทขาเข้าฝั่งโครงการได้ รวมถึงจากหน้าโครงการก็มีรถรอเลี้ยวเข้าซอยสุขุมวิท 49 เช่นกันทำให้มีการจราจรค่อนข้างหนาแน่นค่ะ
รอบๆที่ดินโครงการ ติดถนนใหญ่สุขุมวิทจะเป็นอาคารพาณิชย์สูงประมาณ 4-5 ชั้น บ้างเป็นร้านอาหาร ร้านนวดแผนโบราณ ร้านขายของ บ้างเป็นที่อยู่อาศัย ที่ดินโครงการทางทิศตะวันตกอยู่ติดซอยสุขุมวิท 32 ที่เป็นซอยตัน ซึ่งเป็นทางเข้าของบ้านพักอาอาศัยขนาดใหญ่หลายหลัง ข้อดีคือทำให้ไม่มีตึกสูงในระยะประชิดที่ดินโครงการค่ะ แต่ขยับออกมาทั้งฝั่งทิศะตะวันออกและตะวันตกก็จะมีคอนโดสูงสร้างเสร็จแล้วอยู่ทั้งคู่ ซึ่งก็มีผลกับวิวค่ะ แต่ไม่ได้บล๊อควิวเพราะไม่ได้อยู่ในระยะประชิดนั่นเอง เดี๋ยวเข้าไปดูที่ดินโครงการกันต่อเลยค่ะ
สำนักงานขายโครงการ BEATNIQ สุขุมวิท 32 จะมีทางเข้าไปส่วนจอดรถและส่วนทางเข้าสำนักงานขายที่อยู่ติดถนนใหญ่สุขุมวิทค่ะ ตัวอาคารเป็นสีเทาเข้ม มีการปาดเหลี่ยมมุมที่ดึงสายตาได้ดี
ไปจอดรถและดูที่ดินโครงการกันก่อน
ทิศตะวันออกของโครงการหันหน้าไปทาง BTS ทองหล่อค่ะ ถนนใหญ่สุขุมวิทอยู่ทางซ้ายมือ ติดถนนใหญ่ก็จะมีคอนโดแบบ High Rise ระดับราคาสูงเรียงรายกันไปตามเส้นถนนใหญ่สุขุมวิท ส่วนด้านในเข้ามาจะเป็นบ้านพักอาศัยหรืออพาร์ทเม้นท์สูงไม่เกิน 7 ชั้นเป็นส่วนใหญ่ค่ะ ที่ติดโครงการเลยทางทิศตะวันออกจะเป็นบ้านสูง 2 – 3 ชั้น

ทิศเหนือของโครงการหันไปทางถนนใหญ่สุขุมวิทค่ะ อย่างส่วนสำนักงานขายโครงการต่อไปยูนิตส่วนนั้นก็จะหันหน้าเข้าถนนสุขุมวิทเลย โดยจะมีรางรถไฟฟ้าสายสีเขียวสูงถึงประมาณชั้น 4 พาดผ่านถนน และ ติดข้างที่ดินโครงการริมถนนใหญ่จะเป็นตึกแถวอาคารพาณิชย์สูง 4 – 5 ชั้นอย่างในภาพค่ะ แต่เนื่องจากส่วนที่พักอาศัยของโครงการเริ่มต้นที่ชั้น 7 ขึ้นไป (เดี๋ยวจะมีผังโครงการมาให้ชมกันต่อนะคะ) เลยไม่ได้ถูกบล๊อควิวจากตึกรอบข้าง
ทิศใต้ของโครงการจะเป็นบ้านพักอาศัยสูง 2 – 3 ชั้นเป็นส่วนใหญ่ค่ะ
ทิศตะวันตกของโครงการตอนนี้เป็นส่วนของสำนักงานขายซึ่งสร้างอยู่บนที่ดินโครงการเช่นกัน ทำให้วิวที่เห็นตอนนี้ก็เป็นวิวจากลานจอดรถระดับพื้นดินเท่านั้นนะคะ วิวของจริงก็จะไม่ใช่แบบนี้แต่ก็คือเป็นทิศที่หันหน้าไปทาง BTS พร้อมพงษ์ ทางห้าง Emquartier, Emporium และสวนสาธารณะเบญจสิริข้างห้าง Emporium ที่อยู่ใกล้ในระยะเดินถึงนะคะ
เราไปดูสำนักงานขายโครงการ BEATNIQ กันต่อค่ะ ด้านหน้าตอนนี้จะดูเหมือนปิดอยู่นะคะ เนื่องจากเป็นโครงการที่เน้นขายกลุ่มลูกค้าระดับบนเนื่องจากราคาอยู่ใน Segment ที่สูงสำหรับคอนโดทั่วไป จึงค่อนข้างให้ความสำคัญกับความเป็นส่วนตัวของลูกค้าพอสมควร
ป้ายด้านหน้าสำนักงานขายออกแบบมาได้เก๋ไก๋ดีค่ะ คือแขวนตัวอักษรคำว่า BEATNIQ ทำผิวสแตนเลสเงาเรียงกันอยู่บนสระน้ำที่ไหลวนอยู่ตลอด ทำให้เกิดเงาสะท้อนที่เคลื่อนไหวอยู่บนพื้นผิวของตัวอักษรคำว่า BEATNIQ ไปด้วย
ทางเข้าสำนักงานขายที่ทำให้ดูเหมือนยังไม่เปิดแบบนี้
เปิดเข้าไปจะเจอห้องเพดานสูง พร้อมที่นั่งรับรองและโมเดลโครงการ BEATNIQ อยู่ ตกแต่งภายแบบโมเดิร์นมินิมอล ใช้โทนสี ขาว เทา ดำ แนวเข้มๆหน่อย แนวไฮเอนด์โมเดิร์นอิตาลี
ภายในสำนักงานขายจะมีส่วนเคาน์เตอร์ และเจ้าหน้าที่ฝ่ายขายคอยให้บริการข้อมูลอยู่ พร้อมโมเดลโครงการ BEATNIQ กลางห้อง ที่สำนักงานขายจะมีห้องตัวอย่างให้ชม 2 ห้องอยู่ชั้น 2 นะคะ ซึ่งเดี๋ยววันนี้เราจะพาไปชมกัน
โมเดลโครงการ BEATNIQ ค่ะ การออกแบบสีของโครงการ ใช้สีเทาเข้ม สีเทา สีขาว และส่วนประกอบของหินเป็นหลัก เพื่อความกลมกลืนของโทนสี โดยรับแนวคิดและแรงบนัดาลใจมาจากสถาปัตยกรรมของยุคศตวรรษที่ 20 แต่ตีความใหม่ให้มีความเป็น Mid Century Modern ของยุคสมัยนี้ด้วย

ภาพจำลองโครงการค่ะ ก็จะอยู่ติดถนนใหญ่สุขุมวิทแบบนี้ ภาพรวมของตึกทั้งหมด มีการเชื่อมต่อวัสดุหลายอย่างเข้าด้วยกันนะคะ ทั้งส่วนที่เป็นงานเหล็กกับกระจก และส่วนที่เป็นกรอบปูนทรงเลขาคณิตที่ทำหน้าที่เป็นครีบบังแดดและบล็อคลม สะท้อนถึงสถาปัตยกรรมแบบโมเดิร์น ช่วงกึ่งกลางศตวรรษที่ 20 ถูกนำมาต่อยอดและพัฒนามาเป็นจุดเด่นของโครงการ – ส่วน Grill และ Fin aluminum ซึ่งเป็นส่วนประกอบหลักโดยรอบของอาคาร สอดประสานมากับกรอบเรขาคณิตบล็อคลมด้านล่างด้วยการ ใช้เส้นแนวตั้งเป็นจุดดึงสายตาเชื่อมต่อองค์ประกอบจากด้านล่างสู่ยอดอาคาร และส่งผลให้รูปร่างของอาคารดูสูงขึ้นด้วย
ภาพจำลองด้านหน้าโครงการ จะเห็นว่าส่วน Podium ชั้น 1 – 6 Facade หรือเปลือกอาคารด้านหน้า ถือเป็นจุดเด่นสำคัญอย่างนึงของโครงการนี้ ซึ่งเป็นดีไซน์ที่ได้แรงบันดาลใจมาจากสถาปัตยกรรมของโรงแรม Rex ที่เคยตั้งอยู่ตรงนี้ด้วย โดยออกแบบมาเป็นบล๊อคลมทรงเรขาคณิต ที่นอกจากสื่อถึงสถาปัตยกรรมสมัยก่อนแล้ว ยังทำหน้าที่เป็นเหมือนครีบบังแสงแดดที่ส่องกระทบเข้ามายังตัวอาคารได้อีกทาง

มาดูผังชั้น Floor Plan หรือชั้นล่างกันก่อนค่ะ จะเห็นว่าโครงการ BEATNIQ ออกแบบพื้นที่ Drop off, ส่งคนเข้า Lobby และไปยังลิฟต์โดยสาร 3 ตัวของโครงการ จะแยกส่วนชัดเจนกับพื้นที่โหลดของขึ้นลิฟท์ขนของ ห้องแม่บ้าน เพื่อความเป็นส่วนตัวของคนในโครงการ ยกตัวอย่างเช่นหากมีคนมาส่งของก็ไม่จำเป็นที่จะต้องเดินเข้ามาในล้อบบี้เพื่อขึ้นลิฟท์รวมกับลิฟต์โดยสาร แต่สามารถนำของลงจากรถและโหลดขึ้นลิฟท์ขนของได้เลย
ส่วนด้านหน้าโครงการฝั่งที่อยู่ติดถนนใหญ่สุขุมวิท จะเป็นพื้นที่สีเขียวหรือสวนด้านหน้าโครงการ ซึ่งนอกจากจะสร้างบรรยากาศที่ร่มรื่นให้ภายในโครงการ ยังเป็นเหมือน Buffer หรือกันชนช่วยกันเสียงและฝุ่นควันจากถนนใหญ่ไม่ให้เข้าสู่ภายในโครงการด้วย
ภาพโมเดลส่วนทางเข้าด้านหน้าโครงการ จะเห็นว่าข้างทางเข้ารถทางซ้ายมือมีต้นไม้ใหญ่อยู่และส่วนทางเท้าเดินผ่านป้อมรปภ.เข้าไปด้านในโครงการ จะเห็นว่าส่วนทางเดินไปสวนด้านหน้าโครงการจะมีระแนงกันแดดมาให้ และสวนด้านหน้ามีลักษณะเป็นเนินแบบขั้นบันได กำแพงโครงการด้านหน้าและพื้นทางเข้าใช้วัสดุลายหินอ่อนสีขาวให้ลุคที่ดูหรูหรา
ภาพโมเดลของลานหน้าล็อบบี้ ถัดจากสวนหน้าโครงการ จะมี Dipping Pool ที่ใช้ลักษณะของสายน้ำ และเนินหญ้า สวนและธรรมชาติ สร้างบรรยากาศที่เป็นธรรมชาติและสงบเมื่อเข้าสู่โครงการ

ภาพจำลองมุมมองจากล็อบบี้ มองออกมาที่สวนและ Dipping Pool พร้อมม่านน้ำตกที่ลานหน้าล็อบบี้โครงการ ซึ่งทั้งเสียงของน้ำและสีเขียวของต้นไม้ให้ความรู้สึกที่เป็นธรรมชาติ และน้ำตกยังช่วยตัดเสียงความวุ่นวายของรถจากถนนด้านนอกออกไป และออกแบบให้มีกำแพงค่อนข้างสูง พร้อมที่นั่งข้างสระว่ายน้ำ และจะมี Moveable Wall เลื่อนเปิด – ปิดได้ เพื่อสร้างบรรยากาศ ช่วยความเป็นส่วนตัวให้กับผู้พักอาศัย
ผังชั้น 7 พื้นที่ส่วนกลางหลักๆจะอยู่ชั้นนี้ พร้อมยูนิตที่พักอาศัยจำนวนแค่ 4 ยูนิตเท่านั้น โดยส่วนกลางในชั้นนี้ประกอบด้วยสระว่ายน้ำพร้อมทางเดินลอยน้ำล้อมรอบ ที่ใช้นั่งเล่นชมวิวเมืองและเดินเล่นรอบสระได้ ถือเป็นจุดเด่นและมุมเด่นของโครงการมุมนึงเลยค่ะ, มีห้องฟิตเนสแบบ Double Volume ห้องฟิตเนสเพดานสูง ที่ประกอบด้วย Fully-Equipped Gym หรือยิมแบบเต็มรูปแบบพร้อมมุมต่อยมวย
ชั้น 7 ถือเป็นชั้นที่น่าอยู่มากที่สุดชั้นนึงค่ะ เนื่องจากเข้ามาใช้พื้นที่ส่วนกลางได้ง่ายทั้งสระว่ายน้ำและห้องฟิตเนส และยูนิตห้องมีความหนาแน่นต่ำ แต่ก็อาจจะมีเสียงรบกวนจากพื้นที่ส่วนกลางบ้าง อย่างเช่นคนที่ลงมาต่อยมวยตอนกลางคืน หรือเด็กๆที่มาเล่นน้ำวันหยุด
จากผังชั้น 7 จะเห็นว่าฝั่งซ้ายของสระว่ายน้ำจะมีบันไดวนขึ้นไปบนส่วนทางเดินซึ่งเชื่อมต่อไปยัง Kid’s Lounge ที่ชั้น 8 ได้ และบริเวณห้อง Fitness ก็มีบันได้เดินขึ้นไปยัง Yoga Studio ที่ชั้น 8 ได้เช่นกัน
ภาพจำลองมุมมองสระว่ายน้ำที่ชั้น 7 แสดงภาพมุมมองจากสระน้ำ มองออกไปที่ทางเดินรูปตัว U รอบสระที่มีชื่อว่า Hanging Pavilion ลอยอยู่เหนือพื้นน้ำ ช่วยให้ผู้เป็นเจ้าของได้เปิดรับมุมมองใหม่ของการชมวิวยามค่ำคืน วัสดุโครงการเลือกใช้เป็นหินอ่อนสีขาวให้ลุคที่หรูหรา ด้วยสไตล์ที่สะท้อนอัตลักษณ์ของโครงการ BEATNIQ ที่กล้าทำในสิ่งที่แตกต่างจากโครงการคอนโดมิเนียมทั่วไปในสมัยนี้ ที่เน้นเปิดวิวสระน้ำโดยไม่มีอะไรมาบังกันซะเป็นส่วนใหญ่
ภาพจำลองมุมมองของนายแบบที่นั่งข้างสระค่ะ โดยในมือนายแบบจะถือโบรชัวร์โครงการ BEATNIQ อยู่ (ล้อเล่นนะคะ 555+) อยากให้สังเกตว่าประโยคที่โครงการใช้คำว่า “Form Follows Life” นั้นก็มีความหมาย Relate ไปกับลักษณะสถาปัตยกรรมแบบโมเดิร์นยุคบุกเบิกหรือแบบที่ยึดหลัก Form Follows Function ซึ่งใครเรียนสถาปัตย์มาจะคุ้นเคยกันดีกับคำนี้นะคะ เพราะเป็นประโยคเด็ดของ Louis Sullivan สถาปนิกตัวพ่อในการออกแบบสถาปัตยกรรมแนวโมเดิร์นยุคบุกเบิกซึ่งก็เริ่มต้นในยุค 20’s เช่นกัน ประโยคนี้กลายเป็นเป็นแรงบันดาลใจของการออกแบบสถาปัตยกรรมแนวโมเดิร์นมากมาย ที่ส่วนใหญ่จะเป็นงาน Pure Form สไตล์เดียวกันกับโครงการ
ภาพจำลองมุมมองอาคารค่ะ จะเห็นว่าที่ส่วนขอบของสระว่ายน้ำชั้น 7 มีลักษณะเป็นน้ำตกด้วย ซึ่งเสียงของน้ำตกช่วยสร้างบรรยากาศที่เป็นธรรมชาติ และช่วยกลบเสียงรถราด้านนอกโครงการ
ผังชั้น 8 จะเป็นส่วนของ Pavilion Pool พร้อมทางเดินรูปตัว U (Hanging Pavilion) เชื่อมทางเดินระหว่าง Kid’s Lounge และYoga Studio บริเวณชั้น 8 ซึ่งก็ถือเป็นจุดเด่นของงานออกแบบโครงการ BEATNIQ ที่ไม่เหมือนใคร ชั้นนี้ก็จะมียูนิตที่พักอาศัยอยู่ 4 ยูนิตเช่นกันค่ะ ก็ถือเป็นชั้นที่มีความหนาแน่นต่ำและมีความเป็นส่วนตัวสูงนะคะ เนื่องจากโถงทางเดินเป็นแบบ single corridor ทั้งหมด โดยที่ไม่ได้มีส่วนทางเดินที่เชื่อมต่อกับพื้นที่ส่วนกลาง และสามารถมองวิวของ Pavilion Pool ได้จากโถงลิฟท์
ภาพโมเดลทางเดินรูปตัว U (Hanging Pavilion) เหนือสระว่ายน้ำที่ชั้น 8

ด้านข้างของโมเดลฝั่งซ้ายมือค่ะ จะพอเห็นบันไดที่พาดจากสระว่ายน้ำขึ้นมาที่ ทางเดินรูปตัว U (Hanging Pavilion)
ผังชั้น 9, 14 – 23 เป็น Typical Floor Plan มีทั้งหมด 9 ยูนิตต่อชั้น โดยยูนิตที่มีขนาดเล็กที่สุดคือ 43 ตารางเมตร จะอยู่ทางทิศตะวันตก ห้องแบบสองห้องนอนจะถูกจัดวางเอาไว้บริเวณมุม ทั้ง 3 ด้าน โดยมุมที่ดีที่สุดคือห้องมุมทางฝั่งล่างซ้ายในภาพค่ะ เนื่องจากหันไปทางด้านหน้าโครงการทางทิศตะวันออกเฉียงเหนือซึ่งลมดีแดดอ่อน และเห็นวิวสระว่ายน้ำของโครงการ และบรรยากาศถนนใหญ่สุขุมวิท
ผังชั้น 10,12,24 เป็นชั้นที่มีห้อง 2 ห้องนอน Duplex (หรือยูนิตที่มีบันไดอยู่ในห้องแบบบ้าน 2 ชั้น) อยู่ทางด้านทิศเหนือ หรือ 2 ยูนิตตรงกลางด้านล่างของภาพ
ผังชั้น 11,12a จะมีแค่ 7 ยูนิตซึ่งมีความหนาแน่นน้อยกว่าเพราะว่า 2 ยูนิตคู่หน้าเป็นห้อง Duplex นั่นเอง
ผังชั้น 25,27,29 จะมีห้อง 2 ห้องนอนแบบ Duplex ทางด้านทิศใต้เพิ่มขึ้นมา จำนวนยูนิตทั้งชั้นมี 7 ยูนิต เพราะสองยูนิตคู่หน้าเป็นห้อง Duplex ของชั้น 24,26,28 นั่นเอง
ความ แตกต่างเล็กๆของห้อง Duplex ทั้งสองฝั่ง (ยูนิตคู่ด้านบนตรงกลางและคู่ด้านล่างตรงกลางในภาพ) คือเมื่อมองจากภายนอกตึก ยูนิตคู่ด้านล่างที่หันไปทางทิศเหนือด้านหน้าโครงการจะเป็น Duplex ที่มีกระจกยาวตามระยะความสูงสูงตามความสูงห้องนั่งเล่น (คือประมาณ 6 เมตร) แต่มีคานคั่นอยู่ภายนอกอาคาร ในขณะที่ห้อง Duplex ด้านหลังโครงการจะเป็นกระจกแยกชุดกันตามชั้นค่ะ

ภาพโมเดลส่วนด้านหลังโครงการค่ะ
ผังชั้น 26,28 ก็มีแปลนห้องสองนอน Duplex ทั้งทิศเหนือและใต้ แต่ห้องคู่ทิศใต้จะเป็น Duplex ของชั้น 25 และ 27 ดังนั้นจำนวนยูนิตก็จะมีแค่ 7 ยูนิตเหมือนกัน เพราะนับที่ทางเข้าออกเป็นหลัก
ผังชั้น 30 – 33 ขึ้นไปจะเป็นส่วนของยูนิตแบบ Penthouse ซึ่งจากชั้น 30 ขึ้นไปโถงลิฟท์จะตกแต่งด้วยวัสดุพิเศษให้แตกต่างจากชั้นอื่นๆค่ะ โดยผังชั้น 30 จะมีห้องพิเศษ 3 ห้องนอน Duplex ขนาด 160 ตารางเมตร หน้ากว้างมากทางด้านทิศเหนือ หรือห้องตรงกลางด้านล่างของภาพ
ผังชั้น 31 มีความพิเศษของห้องถึง 3 ห้อง คือมีห้อง 2 นอนขนาด 121 ตารางเมตรทางด้านทิศใต้(ห้องกลางบนของภาพ)ที่มีระเบียงขนาดใหญ่ที่สุดเป็นรูปตัว L และห้องสองนอนมุมล่างซ้ายและขวาของภาพ ที่หันไปทางด้านหน้าอาคารจะมีเพดานสูงเป็นพิเศษถึง 3.5 เมตร (ชั้นปกติมีความสูงที่ 2.8 เมตร)
ผังชั้น 32 นั้นหรูหรามากทีเดียวค่ะ คือมีแค่ยูนิต Penthouse แบบ Pool Villa หรือห้องเพนท์เฮ้าส์ที่มีสระส่วนตัว 2 ยูนิตเท่านั้น สำหรับคอนโดในย่าน CBD ระหว่างพร้อมพงษ์และทองหล่อ ที่ที่ดินติดถนนใหญ่ราคาแพงขนาดนี้ ยูนิต Pool Villa แบบนี้จัดว่าหายากมากทีเดียว
นอกจากนั้นบนชั้น 32 ก็ยังมี Landscape Sky Garden เป็นสวนลอยฟ้าพร้อมด้วย Spiral Staircase บันไดวนเชื่อมต่อระหว่างส่วน Penthouse ขึ้นไปยังส่วนกลางชั้น 34 และวนลงมาสู่พื้นที่สีเขียวของสวนลอยฟ้าชั้นนี้

ภาพจำลองสวนลอยฟ้าชั้น 32 พร้อมบันไดเวียน
ผังชั้น 33 เป็น Penthouse แบบ 3 ห้องนอน 2 ยูนิตปีกซ้ายปีกขวา ตัวห้องจะมีขนาดเล็กกว่า Pool Villa ชั้น 32 เนื่องจาก Building code หรือกฏหมายอาคารสูงจะกำหนดระยะถอยของตึกเพื่อความปลอดภัยและบริบทของอาคารโดยรวม ทำให้ไม่สามารถมองลงไปดูสระว่ายน้ำส่วนตัวของชั้น 32 ได้ค่ะ แต่ที่ได้มาชดเชยก็คือเพดานห้องที่สูงถึง 3 เมตร

ภาพจากโมเดลส่วนยอดตึก จะเห็นว่าส่วนยอดชั้น 30 – 34 เปลือกอาคารด้านนอกจะเป็นสีเทา และมีการตกแต่งด้วย Grill และ Fin aluminum และ จะเห็นยูนิตชั้น 33 – 34 ส่วนยอดที่เจอ Set Back ร่นระยะถอยเข้าไปด้านใน
ผังชั้น 34 เป็นพื้นที่ส่วนกลางชั้นดาดฟ้า จะเป็นส่วนของห้องอเนกประสงค์ จะใช้นั่งชมวิวเมืองหรือจัดปาร์ตี้ก็ได้หรือ Multipurpose room with outdoor recreational area และ semi-outdoor Jacuzzi pool โดยส่วนของ Jacuzzi Pool จะยกระดับขึนไปเป็นเหมือนชั้นลอยจากชั้น 34 อีกทีโดยขึ้นบันไดไปใช้งานเพื่อความเป็นส่วนตัวนั่นเองค่ะ ด้านล่างจากุซซี่ก็จะเป็นส่วนของห้องน้ำชายหญิง
แบบห้อง
แบบห้องในโครงการจะมีให้เลือกตั้งแบบ 1 ห้องนอนถึง 3 ห้องนอน โดยแบบ 1 ห้องนอนมีขนาดเริ่มต้นตั้งแต่ 43 – 59 ตร.ม. 2 ห้องนอน 79 – 82 ตร.ม., 2 ห้องนอน Plus 108 – 121 ตร.ม., 2 ห้องนอน Duplex : 95 – 100 ตร.ม.
, 3 Bedroom 160 – 204 ตร.ม. ขายแบบ Fully Fitted หรือมีชุดครัวกับเฟอร์นิเจอร์ Built in มาให้ มีแบบไหนบ้างไปดูกันเลยค่ะ
ผัง 1 ห้องนอนแบบ 1B ขนาด 57.22 ตร.ม.
ผัง 1 ห้องนอนแบบ 1C ขนาด 42.95 ตร.ม.
ผัง 1 ห้องนอนแบบ 1D ขนาด 58.88 ตร.ม.
ผัง 2 ห้องนอนแบบ 2B ขนาด 79.45 ตร.ม.
ผัง 2 ห้องนอนแบบ 2C ขนาด 82.38 ตร.ม.
ผัง 2 ห้องนอนแบบ 2D ขนาด 108.81 ตร.ม.
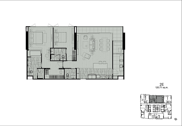
ผัง 2 ห้องนอนแบบ 2E ขนาด 120.71 ตร.ม.
ผัง 2 ห้องนอนแบบ 2F-M คือยูนิตแบบ Duplex คือมี 2 ชั้น ประตูทางเข้าห้องจะอยู่ชั้นล่างนะคะ และส่วนห้องนั่งเล่นจะเป็นแบบ Double Volume คือเพดานสูง ขนาด 95.30 ตร.ม.
ผัง 2 ห้องนอนแบบ 2G-M คือยูนิตแบบ Duplex พร้อมส่วนห้องนั่งเล่นแบบ Double Volume ขนาด 99.64 ตร.ม. 
ผัง 3 ห้องนอนแบบ 3A ชั้น 33 ซึ่งเป็นห้องแบบ Penthouse ขนาด 163.18 ตร.ม.
ผัง 3 ห้องนอนแบบ 3A-PV ชั้น 32 ซึ่งเป็นห้อง Penthouse แบบ Pool Villa ขนาด 204.07 ตร.ม.
ผัง 3 ห้องนอนแบบ 3B-PV ชั้น 32 ซึ่งเป็นห้อง Penthouse แบบ Pool Villa ขนาด 192.75 ตร.ม.
ห้องตัวอย่าง
โครงการ BEATNIQ จะมีห้องตัวอย่างมาให้ชม 2 ห้อง คือ 1 ห้องนอนขนาด 55 ตร.ม. Type 1A และ 2 ห้องนอนขนาด 107 ตร.ม. Type 2A จะเป็นอย่างไรไปสำรวจกันเลยค่าา

ห้องตัวอย่างห้องแรกที่จะพาไปสำรวจกันเป็นห้องแบบ 1 ห้องนอน Type 1 A ขนาด 53.76 ตารางเมตร ตัวห้องแบ่งส่วน Private และ Public มาชัดเจนด้วยผนังทึบและประตูแบบบานเปิด ส่วนไพรเวทอย่างห้องนอนและห้องน้ำจัดอยู่ฝั่งนึง ห้องน้ำมีทั้งห้องอาบน้ำแบบ Rain Shower พร้อมฝักบัว กับส่วนของอ่างอาบน้ำ
ส่วนพับลิคหน่อยอย่างห้องนั่งเล่นริมระเบียงและครัวอยู่อีกฝั่งนึง โดยขายแบบมีชุดครัวมาให้พร้อมเครื่องปรับอากาศและเฟอร์นิเจอร์ Built in หรือพูดง่ายๆว่าขายแบบ Fully Fitted นั่นเอง
ประตูห้องของจริงได้ตามนี้เลยค่ะ คือเป็นประตูปิดผิวลายไม้สีเข้ม บานสูงไซส์พิเศษคือสูง 2.6 เมตรเท่ากับระดับเพดานส่วนครัวที่อยู่ติดทางเข้าห้อง
มือจับเป็นเขาควายสแตนเลส ด้านนอกประตูเป็นแบบ Digital Door Lock ของ Hafele คือใช้แตะการ์ดเข้าไป ด้านในเป็นแบบบิดล็อกเปิดปิดแบบเรียบง่าย
ระบบไฟเป็นแบบ LED ทั้งหมด หน้าตาสวิตช์ไฟเป็นปุ่มกลมๆสีเงินของ Schneider และมีปุ่ม All Off หรือสั่งปิดไฟทั้งหมดก่อนออกจากห้องได้ นอกจากนี้มีออฟชั่นพิเศษที่ถ้าสนใจก็สามารถสั่งทำเพิ่มได้คือสามารถควบคุมงานระบบไฟฟ้าได้ระยะไกล และทางมือถือได้ด้วย
เข้าห้องมาจะเจอส่วนครัวมองต่อเนื่องไปที่ส่วนห้องนั่งเล่นที่เปิดออกไประเบียงได้ เพดานห้องสูง 2.8เมตร ไฟติดเพดานเป็นไฟดาวน์ไลท์
มองกลับไปที่ส่วนทางเข้าห้องจะเห็นภาพรวมส่วนครัวและส่วนประตูทางเข้าห้องแบบนี้ เพดานส่วนครัวมีดรอปความสูงลงมาประมาณ 15 เซนติเมตร เพื่อเดินงานระบบ เครื่องปรับอากาศทั้งส่วนห้องนอนและห้องนั่งเล่นจะทำเป็นแบบซ่อนฝ้า(Concealed Type) มาให้เรียบร้อยดี ของจริงได้ตามที่เห็นค่ะ เป็นแอร์ของ Daikin หรือแบรนด์เทียบเท่า
ชุดครัวออกแบบมาสวยหรูดูดีทีเดียว ส่วนตู้ชุดครัวหน้าบานเป็น Hi Gloss สีขาว มีความพิเศษคือตัดขอบตู้ด้วยอลูมิเนียมสีดำดูเก๋ๆไม่เหมือนใครดี พร้อมเคาน์เตอร์ครัวเป็นหินสังเคราะห์สีขาวลายหินอ่อน มีตู้เย็นมาให้แบบ Built in ด้วย เดี๋ยวเราพาเจาะดูทีละส่วนนะคะ
เปิดที่เก็บของในชุดครัวให้ดูค่ะ มีชั้นลอยมาให้เก็บจานชามหรือสิ่งของด้านบนเพิ่มได้ ข้อดีคือเพดานที่สูงของห้องทำให้ทำที่เก็บของแนวตั้งได้เยอะแบบนี้ สังเกตตู้เก็บของที่อยู่ใกล้ประตูก็ทำชั้นมาให้สูงเลยนะคะ ใครมีรองเท้าเยอะจะใช้เก็บรองเท้าก็ หรือใครเน้นตุนอาหาร อาจจะแบบชอบเที่ยวต่างประเทศ แล้วตุนขนมไว้กินเยอะๆ ก็มีช่องให้เก็บเต็มเลยแบบนี้
ชุดครัสและชั้นเก็บของเป็นของ Starmark ค่ะ บานพับเป็นแบบ Soft Closed Hinge เปิดปิดไม่มีเสียงดังปึ้งปั้งให้ตกใจกัน
ตู้เย็นเป็นแบบสั่งมาให้พอดีกับชุดครัว Built in ของแบรนด์ ELEXTROLUX ของจริงได้ตามนี้ค่ะ
ระยะเดินพื้นที่ใช้งานส่วนครัวกว้างประมาณ 70 เซนติเมตร เคาน์เตอร์เป็นหินสังเคราะห์ลายหินอ่อนสีขาวรูป L Shape
เปิดตู้และลิ้นชักให้ดูที่เก็บของค่ะ จะเห็นว่าเปิดบานตู้แล้วยังเหลือระยะเดินกับระยะถอยได้อยู่นะคะ
ลิ้นชักบนสุดจะมี Slot แบ่งสำหรับช้อนส้อมมาให้แบบนี้
อ่างล้างจานเป็นอ่างสแตนเลส 1 หลุมของ Teka พร้อมก๊อกผสมของ GROHE
เตาไฟฟ้าของ Küppersbusch แบบ 2 หลุม พร้อมเครื่องดูดควันของ Teka ผนังหลังเคาน์เตอร์ครัวกรุเป็นหินสังเคราะห์เข้าชุดกันทำให้เช็ดล้างทำความสะอาดได้ง่าย มีเต้าเสียบปลั๊กไฟมาให้ 2 จุด เผื่อเสียบปลั๊กเครื่องปั่นไฟฟ้า หรือเครื่องทำกาแฟ ขวามือเป็นไมโครเวฟ ของ Küppersbusch
จากครัวมองไปผนังอีกฝั่งมี Builin ตู้มาให้ 2 จุดติดกัน แบบหน้าบานไฮกรอสและหน้ากระจกเงา
เปิดบานตู้ให้ดูด้านใน ตู้หน้าบานไฮกรอสฝั่งซ้ายมือด้านในวางเครื่องซักผ้ามาให้ดูระยะใช้งาน พร้อมชั้นวางของด้านบนสำหรับวางอุปกรณ์ต่างๆ ส่วนหน้าบานฝั่งขวามือด้านในทำเป็นชั้นวางของ ด้านบนติดแผงงานระบบไฟเอาไว้
พื้น ส่วนครัวเป็นไม่ใช่กระเบื้องแกรนิตโต้ธรรมดาแต่เป็นแผ่นหินอ่อนสังเคราะห์สีขาว ส่วนห้องนั่งเล่น และห้องนอนเป็น Engineered wood หนา 14 มม. สี white oak จบพื้นด้วยเส้นสแตนเลสซึ่งมีความทนทานในระยะยาว
มาดูส่วนห้องนั่งเล่นกันต่อค่ะ เพดานสูง 2.8 เมตร ระยะดูทีวีจากโซฟาประมาณ 1.8 เมตร เหมาะจะวางทีวีขนาดประมาณ 50 นิ้ว แต่ทั้งนี้ทั้งนั้นจะเห็นว่าโซฟาไม่ได้วางชิดผนังนะคะ คือด้านหลังโซฟามีระยะพอวางโต๊ะกินข้าวแบบ 2 ที่นั่งได้
โดยห้องตัวอย่างจัดโซฟาแบบ 3 ที่นั่งพร้อมโต๊ะกาแฟ และเก้าอี้แบบอาร์มแชร์กับสตูลมาให้ดูระยะใช้งานอีกฝั่งละตัว ของจริงผนังห้องทั้งสองฝั่งจะเป็นผนังฉาบปูนเรียบทาสีนะคะ ผนังที่เห็นในห้องเป็นผนังตกแต่งค่ะ
ชั้นวางทีวีและชั้นลอยส่วนนี้ทำมาให้ดูเป็นไอเดียเฉยๆนะคะ ของจริงจะเป็นผนังโล่งค่ะ
ด้านหลังชุดโซฟาวางโต๊ะกินข้าวแบบ 2 ที่นั่งมาให้ดูระยะใช้งาน
ที่ห้องนั่งเล่นจะมีประตูบานสไลด์เปิดออกไประเบียงได้นะคะ เป็นประตูกระจกกรอบอลูมิเนียมสีเทาเข้ม โดยประตูและหน้าต่างของโครงการ BEATNIQ ทำความสูงมาให้จรดเพดานแบบ Full Height จึงให้ความรู้สึกสูงโปร่ง และรับแสงธรรมชาติเข้ามาได้ดี
มือจับเป็นแบบเซาะร่องมาตรฐาน ส่วนรางฝั่งพื้นกันสะดุดมาให้เรียบร้อย
พื้นระเบียงลดระดับลงต่ำกว่าพื้นห้องประมาณ 5 ซม. ตัวพื้นปูกระเบื้องเซรามิกผิวด้านสีเทาอ่อนขนาด 30 x 30 ซม. ราวกันตกเป็นกระจกเทมเปอร์พร้อมราวจับอลูมิเนียมหน้าตัดกลมได้ตามที่เห็นค่ะ ระเบียงไม่ได้ลึกมากขนาดวางโต๊ะนั่งเล่นได้นะคะ เหมือนจะเป็นระเบียงเอาไว้ยืนรับลมชมวิวหรือปลูกต้นไม้อะไรซะมากกว่า ที่ระเบียงจะมีประตูแบบกริลกั้นส่วนที่เป็นแอร์คอมเพรสเซอร์ไว้
เปิดออกมาจะเป็นแอร์คอมเพรสเซอร์สองตัว ตัวนึงวางพื้นตัวนึงตั้งบนโครงเหล็กมาให้ค่ะ

เข้ามาดูด้านในกันต่อค่ะ ด้านหลังห้องนั่งเล่นจะมีประตูเปิดเข้าไปส่วนห้องนอน
หน้าตาสวิตช์ไฟเป็นปุ่มกลมๆสีเงินของ Schneider แบบนี้
ส่วนห้องนอนวางเตียงขนาด 5 ฟุตมาให้ ระยะเดินรอบๆกว้างขวางดีค่ะ ปลายเตียงพอวางเตียงไปแล้วเหลือระยะปลายเตียงประมาณ 1.2 m. ระยะพอทำชั้นวางทีวีได้กำลังสวย อย่างที่เห็นในห้องตัวอย่าง
ส่วนห้องนอนมีหน้าต่างบานสูงจรดเพดานมาให้ด้านข้าง 1 ชุด โดยด้านล่างจะเป็นหน้าต่างบานฟิกซ์ ด้านบนจะเป็นแบบบานเปิด รางม่านซ่อนมาให้ของจริงได้ตามนี้
ข้างเตียงฝั่งติดหน้าต่างมีระยะประมาณ 40 เซนติเมตร วางโต๊ะข้างเตียงมาให้ดูระยะ
ส่วนห้องนอนจะมีจุดเด่นอยู่ที่ โต๊ะและตู้เสื้อผ้าแบบ Built-in Dressing Table หรือพื้นที่โต๊ะแต่งตัวที่จัดวางมาในตำแหน่งที่สามารถรับแสงธรรมชาติได้ดี และวางในตำแหน่งที่อยู่ใกล้กับ Walk-in Closet และห้องน้ำแบบ Sexy Bathroom ผนังกระจก (ที่สำหรับบางคนสามารถติดม่านบังตาเพิ่มได้นะคะ) ซึ่งทำให้ห้องดูกว้างและโปร่งขึ้น
โต๊ะจะอยู่ติดกับตู้เสื้อผ้า Built in แบบนี้ค่ะ โครงเป็นไม้สีเข้าชุดกัน ท้อปโต๊ะเป็นหินสีดำลายเส้นขาวชื่อ Black Lauren ตู้เสื้อผ้าทำมาเป็นบานเปิดปิดผิวลายไม้ กรอบอลูมิเนียมเข้าชุดกันกับเฟอร์นิเจอร์ Built in ตัวอื่นๆ
เปิดตู้ให้ดูจะเห็นว่าเก็บเสื้อผ้าได้เยอะพอสมควรเลยนะคะ สังเกตด้านในของหน้าบานบานขวาสุด เปิดออกมาจะเป็นกระจกเงาให้กับโต๊ะด้วย ในกรณีนั่งแต่งหน้าหรือเซตผมก็เปิดกระจกเงาออกมาได้ จัดว่าเป็นการจัดฟังก์ชั่นที่ลงตัวและช่างคิดดีค่ะ
เข้าไปดูในห้องน้ำกันต่อนะคะ ประตูห้องน้ำจะเป็นประตูบานสูงแบบนี้
ธรณีประตูเป็นหินสังเคราะห์แบบเดียวกันกับห้องน้ำ ข้อดีคือโดนความชื้นไปนานๆก็ไม่บวมหรือพองจนทำให้เปิดปิดประตูยาก จบพื้นเป็นสแตนเลสสีเงิน สังเกตหินที่ใช้ปูในห้องน้ำนะคะ ว่ามีลวดลายชัดเจน ไม่มีมางานสเป็คเพลย์เซฟเบาๆ อย่างหินขาวขีดเทาไวท์คาราร่าแบบคอนโดหรูทั่วไป แต่มาแบบชัดเจนสีดำลายขาวปนทองสตรองๆไปเลยแบบนี้ หินที่ใช้เป็นหินชื่อ Nero Portoro จากอิตาลี
โถสุขภัณฑ์เป็นแบบ Washlet หรือแบบอัตโนมัตของ TOTO ด้านหลังโถสุขภัณฑ์มี Lowwall ที่ด้านในเป็นงานระบบโถสุขภัณฑ์ ด้านบนใช้วางของเพิ่มได้
ฝั่งตรงข้ามโถสุขภัณฑ์มี Low Wall มาให้วางของเพิ่มอีก ใครมีของเยอะ ทำชั้นกระจกเพิ่มไปก็เพิ่มพื้นที่เก็บของได้เยอะอยู่นะคะ เนื่องจากเจาะช่องมาให้สูงเลย หรือใครติสๆหน่อยจะหาภาพที่ชอบมาติดก็เป็นตำแหน่งที่เหมาะดีเหมือนกัน ที่เพดานติดพัดลมดูดอากาศมาให้
ห้องน้ำจัดสุขภัณฑ์มาให้แบบ Full Bath คือมีทั้งส่วน Shower Box และ Bathtub เพื่อรองรับสไตล์การใช้งานที่หลากหลาย
ส่วนอ่างล้างมือทำเคาน์เตอร์มาให้ยาวสะใจดีค่ะ มีที่วางของได้เยอะ ด้านบนเป็นกระจกเงาทั้ง 4 บาน บานที่หน้าบานแคบจะเปิดออกมาเป็นชั้นวางของ ฝั่งละ 3 ชั้น
เทียบขนาดฝ่ามือกับอ่างให้ดูค่ะ
ส่วนอ่างอาบน้ำ สามารถแช่น้ำอุ่นไปดูทีวีในห้องนอนไปด้วยได้
อุปกรณ์ในอ่างอาบน้ำทั้งฝักบัว ก็อกน้ำ เป็นของ GROHE หรือแบรนด์เทียบเท่าค่ะ
ข้างๆอ่างอาบน้ำจะเป็นประตูเปิดเข้าไปส่วน Shower Box
ขนาดพื้นที่ด้านในค่ะ

ส่วนอาบน้ำมี Rain Shower มาให้พร้อมฝักบัวระบบเครื่องทำน้ำร้อน ของ STIEBEL ELTRON ติดตั้งมาให้เรียบร้อย ผนังข้างฝักบัวเจาะช่องมาให้วางสบู่แชมพูครีมนวดได้
เทียบขนาดฝ่ามือกับฝักบัวให้ดูค่ะ จะเห็นว่ามีขนาดใหญ่ทีเดียว

ห้องตัวอย่างห้องที่สองที่เราจะพาไปสำรวจกัน เป็นห้องแบบ 2 ห้องนอน Type A ขนาด 107.58 ตารางเมตร ตัวห้องแบ่งส่วน Private และ Public มาค่อนข้างชัดเจนเช่นกันค่ะ โดยแบ่งฝั่งห้องนอนทั้งสองห้องไว้ทางขวา ทั้งสองห้องจะมีห้องน้ำในตัวนะคะ และส่วนห้องนั่งเล่นไว้ทางซ้าย เข้ามาจะมีห้องน้ำแบบ Powder Room อยู่ทางขวามือ ต่อด้วยครัวแบบ Pantry และครัวแบบปิดมาให้
ห้องนี้มีความพิเศษคือมีระเบียง หรือ Extra Room เป็นแบบ Semi outdoor คือจะมีหน้าต่างอีกชั้นอยู่ที่ราวกันตกนะคะ สามารถเลือกเปิดหน้าต่าง เพื่อปรับ Function ของการใช้งานให้เป็นได้ทั้ง Balcony หรือส่วน Outdoor หรือจะปิดหน้าต่างใช้งานเป็นส่วนของ Additional Space รองรับการใช้งานตามความต้องการของผู้อยู่อาศัยได้
ประตู วัสดุ อุปกรณ์ ต่างๆจะเป็นแบบเดียวกันกับห้องแรกที่ไปชมกันนะคะ สำหรับห้องนี้ เปิดประตูเข้ามาจะเป็นโถงแบบนี้ เพดานห้องสูง 2.8 เมตร พื้นเป็น Engineering wood หนา 14 มม. เพดานติดไฟดาวน์ไลท์มาให้
มองกลับไปที่ประตูทางเข้าห้อง
ติดกับทางเข้าห้องจะเป็นทางเข้าห้องน้ำแบบ Powder Room
ห้องน้ำแบบ Powder Room หมายถึงห้องน้ำแบบที่ไม่มีส่วนอาบน้ำค่ะ โถสุขภัณฑ์เป็นแบบ Washlet ของ Toto หินที่พื้นใช้หินชื่อ Nero Portoro จากอิตาลี ก็คือใช้สเป็คแบบเดียวกันกับห้องตัวอย่างห้องแรกทั้งหมดค่ะ อ่างล้างมือและก็อกน้ำก็เช่นกัน ก็เป็นขนาดเดียวกันและมาพร้อมเคาน์เตอร์หินแบบเดียวกับพื้นห้อง
ผนังห้องน้ำปูกระเบื้องจรดเพดาน เพดานห้องน้ำติดพัดลมดูดอากาศมาให้ พร้อมไฟดาวน์ไลท์ และไฟซ่อนเหนือกระจกเงา
ออกมาจากห้องน้ำ ฝั่งตรงข้ามจะมีชั้น Built in ติดประตูทางเข้าห้องมาให้ หน้าบานติดกระจกเงาไว้สำหรับส่องก่อนออกนอกบ้าน เปิดบานตู้ออกมาจะมีชั้นที่เหมาะทำเป็นที่วางรองเท้า อุปกรณ์การกีฬา หรืออื่นๆนะคะ ก็เป็นชั้นที่ช่วยเพิ่มพื้นที่เก็บของให้กับห้องได้ดี
เข้าไปดูด้านในห้องกันต่อค่ะ
ชุดครัวแบบ Pantry จะเป็นแบบเดียวกันกับห้องตัวอย่างห้องแรกนะคะ คือส่วนตู้ชุดครัวหน้าบานเป็น Hi Gross สีขาว มีความพิเศษคือตัดขอบตู้ด้วยอลูมิเนียมสีดำ พร้อมเคาน์เตอร์ครัวเป็นหินสังเคราะห์สีขาวลายหินอ่อน เพดานส่วน Pantry จะลดระดับลงมาประมาณ 15 เซนติเมตร และมีเครื่องปรับอากาศแบบซ่อนฝ้ามาให้ได้ตามที่เห็นค่ะ
เปิดที่เก็บของในชุดครัวให้ดูค่ะ มีชั้นลอยมาให้เก็บจานชามหรือสิ่งของด้านบนเพิ่มได้ ข้อดีคือเพดานที่สูงของห้องทำให้ทำที่เก็บของแนวตั้งได้เยอะแบบนี้ มีตู้เย็นมาให้แบบ Built in ด้วยเช่นกัน
ระยะเดินประมาณ 70 เซนติเมตร
อ่างล้างจานจะได้เป็น 2 หลุมของ Teka ก๊อกน้ำเป็นของ GROHE
ตำไฟฟ้าของ Küppersbusch แบบ 4 หัว พร้อมเครื่องดูดควันของ Teka ด้านล่างเป็นเตาอบของ Küppersbusch ด้านหลังเคาน์เตอร์ทำ Back Splash หรือผนังกันเปื้อนมาให้เป็นหินสังเคราะห์แบบเดียวกับเคาน์เตอร์ทำให้เช็ดล้างทำความสะอาดได้ง่าย
ซ้ายมือมีไมโครเวฟของ Küppersbusch ติดมาให้ในชุดครัวเรียบร้อย บนล่างเปิดให้ดูเป็นชั้นเก็บของสูงจรดเพดาน
จาก Pantry เราไปดูส่วนห้องนั่งเล่นกลางห้องกันต่อค่ะ
ส่วนห้องนั่งเล่นจัดโซฟา 3 ที่นั่งพร้อมอาร์มแชร์ โต๊ะกาแฟ โต๊ะข้าง สตูลมาให้ดูระยะใช้งาน ว่าวางได้ครบชุดสบายๆนะคะ ใครจะเปลี่ยนเป็นโซฟา L Shape ก็สามารถทำได้เช่นกันเนื่องจากมีระยะพอ
มองไปทางโซนโต๊ะอาหารหน้าส่วน Pantry และครัว จัดมาเป็นโต๊ะสำหรับ 6 ที่นั่ง ระยะใช้งานพอดีๆ

ส่วนห้องนั่งเล่นค่ะ ห้องตัวอย่างเลือกเฟอร์นิเจอร์มาได้เท่ดี
ชั้นวางทีวีห้องตัวอย่างทำมาให้ดูเป็นไอเดีย ของจริงเป็นผนังฉาบปูนเรียบทาสี
ติดกับห้องนั่งเล่นจะเป็นผนังกระจกสูง กรอบอลูมิเนียมสีเทาเข้ม มีดรอปผ้าซ่อนรางม่านให้ ของจริงได้ตามนี้
ด้านหลังห้องนั่งเล่นจะเป็นประตูบานเลื่อนเปิดไปส่วน Semi Outdoor ซึ่งเป็นประตูเลื่อนกระจกแบบ 3 ตอน ข้อดีคือทำให้มีช่องเปิดที่กว้างกว่าแบบ 2 ตอนนะคะ
ห้องนี้มีความพิเศษคือมีส่วนระเบียง หรือ Extra Room เป็นแบบ Semi outdoor คือจะมีหน้าต่างอีกชั้นอยู่ที่ราวกันตกนะคะ สามารถเลือกเปิดหน้าต่าง เพื่อปรับ Function ของการใช้งานให้เป็นได้ทั้งที่นั่งพักผ่อนส่วย Balcony หรือส่วน Outdoor หรือจะปิดหน้าต่างใช้งานเป็นส่วนของ Additional Space รองรับการใช้งานตามความต้องการของผู้อยู่อาศัยได้หลากหลาย ทำเป็นห้องนอนก็ยังไหว
ส่วนหน้าต่างแบบบานเปิดหลังราวกันตกค่ะ สังเกตราวม่านดัดโค้งที่มุมทำให้การเปิดปิดม่านมีความต่อเนื่อง
เข้าไปดูส่วนห้องครัวกันต่อค่ะ
ส่วนนี้ทำเป็นครัวไทย มีประตูปิดเวลาทำอาหารไม่ให้ควันและกลิ่นเข้าไปในห้องส่วนๆอื่น และมีหน้าต่างบานสูงสำหรับเปิดระบายอากาศ
มองไปทางซ้ายมือจะมีชุดครัว Built in มาให้อีกชุดค่ะ หน้าบานปิดผิวลายไม้ โดยเคาน์เตอร์เป็นหินสังเคราะห์สีดำพร้อมอ่างล้างจานแบบ 1 หลุม และเตาไฟฟ้าแบบ 2 หัว แต่ชุดครัวส่วนนี้จะไม่มีเครื่องดูดควันมาให้นะคะ
เปิดชั้นลอยด้านบนให้ดูค่ะ เตรียมที่เก็บของมาให้เยอะดี
ฝั่งตรงข้ามชุดครัวจะเป็นเครื่องทำน้ำร้อนของ STIEBEL ซึ่งติดตั้งมาให้พร้อมกับห้องเรียบร้อย
ถัดไปจะเป็นเครื่องซักผ้าและเครื่องอบผ้าวางมาให้เห็นระยะใช้งานค่ะ
ถัดมาจะเป็นทางเข้าห้องนอนทั้ง 2 ห้องนะคะ ประตูก็จะเป็นแบบบานสูงจรดเพดาน ตั้งฉากกันอยู่ เราเข้าไปดูห้อง Master Bedroom ทางขวามือกันก่อนเลยค่ะ
ทางเข้า Master Bedroom หรือห้องนอนใหญ่จะเป็นทางเดินเข้าไปแบบนี้ ขวามือจะเป็นห้องน้ำในห้องนอนใหญ่แบบ Full Bath (Shower Box และ Bathtub) ส่วนซ้ายมือจะเป็นส่วนเตียงนอนค่ะ
ส่วนห้องนอนวางเตียงขนาดคิงส์ไซส์ 6 ฟุตได้สบายๆ ระยะเดินรอบๆกว้างขวางดีค่ะ 
ปลายเตียงพอวางเตียงไปแล้วเหลือระยะปลายเตียงประมาณ 1 m. ระยะพอทำชั้นวางทีวีได้และเหลือระยะเดินกำลังพอดีๆ อย่างที่เห็นในห้องตัวอย่าง สุดทางเป็นหน้าต่างสูงจรดเพดาน
ข้างเตียงฝั่งติดหน้าต่างมีระยะประมาณ 1.5 เมตร สามารถวางอาร์มแชร์พร้อมโต๊ะข้าง 2 ตัวได้แบบในห้องตัวอย่าง
มองกลับไปที่ห้องน้ำจะเห็นเครื่องปรับอากาศแบบฝังฝ้ามาให้ และห้องอาบน้ำแบบ Sexy Bath
ข้างเตียงอีกฝั่งมีระยะประมาณ 1.6 เมตร วางโต๊ะทำงานและโต๊ะข้างเตียงมาให้ดูระยะใช้งาน
ทางเข้าห้องน้ำจะมีตู้เสื้อผ้า Built in มาให้
เปิดภายในตู้ให้ดูค่ะ
สุดผนังมีโต๊ะเครื่องแป้งพร้อมกระจกเงามาให้ของจริงได้ตามนี้
ส่วนห้องน้ำเป็นแบบ Full Bath (Shower Box และ Bathtub) สเป็ควัสดุ สุขภัณฑ์เป็นสเป็คเดียวกันกับห้องน้ำในห้องตัวอย่างห้องแรกค่ะ แต่ห้องนี้ส่วนอ่างอาบน้ำจะไม่มีผนังหรือเสามากั้น ทำให้ภาพรวมของห้องเปิดโล่งกว่าอย่างที่เห็น
อ่างอาบน้ำและอุปกรณ์ฝักบัวและก็อกน้ำของ GROHE
ตรงข้ามอ่างอาบน้ำจะเป็นส่วนของเคาน์เตอร์อ่างล้างมือ กระจกเงา และโถสุขภัณฑ์
อ่างล้างมือห้องนี้จะมาเป็นอ่างแบบ His & Her คือให้มา 2 อ่างเลยค่ะ กรณีคู่สามีภรรยาใช้ห้องน้ำร่วมกันก็แยกของใครของคนนั้นไปได้เลย พร้อมเคาน์เตอร์วางของที่มีที่วางรอบๆค่อนข้างเยอะ
โถสุขภัณฑ์แบบ Washlet ของ TOTO แบบห้องอื่นๆ
ถัดมาจะเป็นทางเข้าไปห้องอาบน้ำซึ่งกั้นกระจกเทมเปอร์มาให้เรียบร้อย เพดานติดพัดลมดูดอากาศมาให้ ส่วนภายในห้องน้ำมีชุดฝักบัวพร้อม Rain Shower และที่ผนังเจาะช่องสำหรับวางสบู่และแชมพูมาให้เหมือนกันกับห้องน้ำในห้องตัวอย่างห้องแรกเลย
มาดูห้องนอนเล็กกันต่อค่ะ ถึงจะบอกว่าเป็นห้องนอนเล็ก แต่ก็มีห้องน้ำในตัวและสามารถใส่เตียงคู่ 5 ฟุตได้ พร้อมโต๊ะทำงาน โต๊ะข้าง และตู้เสื้อผ้าพร้อมชั้นวางทีวี
อย่างโต๊ะทำงานนี่ในห้องตัวอย่างทำโต๊ะ Built in ยาวเต็มความลึกผนังมาให้ดูเป็นไอเดียและให้เห็นระยะใช้งานว่าวางได้กว้างมากทีเดียว ระยะถอยเก้าอี้ก็พอดีๆไม่มาเบียดเตียง เดินผ่านไปผ่านมาได้ง่าย
ข้างเตียงอีกฝั่งจะมีตู้เสื้อผ้า Built in มาให้
เปิดตู้เสื้อผ้าให้ดูค่ะ ด้านในมีติดไฟให้ด้วย
ปลายเตียงเหลือระยะประมาณ 70 เซนติเมตร วางชั้นวางทีวีก็จะยังเหลือระยะเดินไปมาอยู่อย่างที่เห็นในห้องตัวอย่างค่ะ
เข้าไปดูห้องน้ำในห้องนอนเล็กกันต่อ
ห้องน้ำในห้องนอนเล็กจะไม่มีอ่างอาบน้ำมาให้ และโถสุขภัณฑ์เป็นแบบมีสายชำระ จะไม่ใช่แบบ Washlet แบบห้องอื่นๆนะคะ นอกนั้นสเป็ควัสดุอื่นๆ ไม่ว่าจะอ่างล้างมือ ก๊อกน้ำ ห้องอาบน้ำกระจกเทมเปอร์ ฝักบัว ได้เหมือนกันหมดค่ะ โดยจะมีหน้าต่างบานใหญ่ ด้านล่างเป็นบานฟิกซ์ ด้านบนเป็นบานกระทุ้งอยู่ในห้องน้ำ ช่วยนำแสงเข้ามาในห้องได้ดี แต่แนะนำให้ติดบังตาเพิ่มเพื่อความเป็นส่วนตัวเวลาอาบน้ำนะ

ด้านใต้ของทุกเคาน์เตอร์ในห้องน้ำจะทำที่เก็บของโดยมีบานปิดมาให้แบบนี้
เพดานห้องน้ำติดไฟดาวน์ไลท์และติดพัดลมดูดอากาศมาให้
ราคา (ก.พ.59)
**ห้องขายแบบ Fully Fitted พร้อมชุดครัวและเฟอร์นิเจอร์ Built in พร้อมเครื่องปรับอากาศแบบซ่อนฝ้าและเครื่องทำน้ำร้อน ลงทะเบียนรับข้อมูลข่าวสารเพิ่มเติมที่นี่ คลิก
ค่าส่วนกลาง : 90 บาท/ตร.ม./เดือน (เก็บล่วงหน้า 1 ปี)
ค่ากองทุน : 900 บาท/ตร.ม. (ชำระครั้งเดียว ณ วันโอน)
สอบถามราคาเพิ่มเติมกรุณาติดต่อสำนักงานขายเพื่อข้อมูลที่อัพเดตที่สุดค่ะ*
สรุป
ทำเลที่ตั้งโครงการ –โครงการ BEATNIQ สุขุมวิท 32 เป็นโครงการที่พูดได้ว่าสะดวกทั้งคนใช้รถและไม่ใช้รถค่ะ เพราะอยู่ติดถนนใหญ่สุขุมวิทโซน CBD แบบพีคๆอย่างทองหล่อ พร้อมพงษ์ ในระยะที่เดินไปขึ้นรถไฟฟ้า BTS สถานี ทองหล่อ 250 ม. ได้สบายๆ และสถานีพร้อมพงษ์ 700 ม. ได้แบบไม่ได้เหนื่อยมาก และมีทางเท้าที่กว้าง ไม่เปลี่ยว เดินไปได้สบายๆ นอกจากนี้ยังใกล้จุดขึ้นลงทางด่วนรามอินทราอาจณรงค์ที่ทำให้คนขับรถมีความสะดวกสบายเข้าเมืองออกเมืองได้สะดวก
ความอุดมสมบูรณ์ – ในระยะเดิน รอบๆโครงการ ร้านอาหาร ของกิน แหล่งช้อปปิ้งมีให้เลือกหลากหลายค่ะ ทั้งห้างหรูอย่างเอ็มโพเรียม เอ็มควอเทียร์ หรือพื้นที่สีเขียวไว้เดินเล่นอย่างสวนสาธารณะเบญจสิริ โรงหนังอย่างเมเจอร์ ไปดูดาวที่ท้องฟ้าจำลอง หรือแหล่งรวมร้านอาหารดีๆอย่าง Rain Hill หรือซุปเปอร์มาเกตอย่าง Tops ร้านอาหารสองฝั่งถนนใหญ่สุขุมวิทโซนนี้ก็มีร้านคุณภาพดีๆและมีคอนเซ็ปร้านเก๋ๆเยอะทีเดียว
หรือจะเข้าไปในทองหล่อ เอกมัย ก็มีชื่อเสียงอยู่แล้วเรื่องผับ บาร์ และร้านอาหารอีกเป็นร้อยร้าน เปิดทั้งกลางวันกลางคืน มีทั้งโรงพยาบาล,โรงหนัง, วัด, ห้างสรรพสินค้า, Community mall ผุดขึ้นมามากมาย นอกจากสาธารณูปโภคเหล่านี้ก็ยังมี ปั๊มน้ำมัน อู่ซ่อมรถอยู่อีกด้วย หรือโซนพร้อมพงษ์อย่างซอยสุขุมวิท 24, 39 ก็ล้วนแต่เป็นย่านหรูที่เต็มไปด้วยแหล่งอาหารการกินที่มีชื่อเสียง
แต่ทั้งนี้ทั้งนั้นก็ต้องมีเงินในกระเป๋าที่หนักพอสมควรค่ะสำหรับการอยู่ในย่านที่ค่าครองชีพสูง ซึ่งเราว่ามันก็น่าจะตอบโจทย์กับไลฟ์สไตล์ของกลุ่มคนซื้อหรือเช่าคอนโดราคาระดับนี้นะคะ เนื่องจากย่านนี้(พร้อมพงษ์-ทองหล่อ)ร้านอาหารส่วนมากราคาเฉลี่ยอยู่ที่ประมาณ 200- 500 บาทต่อคนค่ะ
แต่ก็จะมีร้านข้างทางริมถนนใหญ่สุขุมวิทฝั่งโครงการ โดยเฉพาะช่วงต้นซอยสุขุมวิท 36, 38 ตรงข้ามซอยทองหล่อ และแผงขายอาหารข้างทางมากมายระหว่างทางเท้าที่เดินจากโครงการไปพร้อมพงษ์ ที่ราคาอาหารเฉลี่ยอยู่ที่ 30-50 บาทต่อคนเท่านั้น ก็ถือว่ามีทางเลือกหลากหลายนะคะ
การเดินทางด้วยรถยนต์ส่วนตัว – สำหรับคนขับรถ โครงการอยู่ติดถนนใหญ่สุขุมวิทระหว่างย่านทองหล่อกับพร้อมพงษ์ ซึ่งก็ถือว่าเป็นถนน CBD โซนใน ซึ่ง ถนนสุขุมวิทช่วงนี้จะเป็นจุดที่มีการจราจรหนาแน่นทั้งฝั่งเลขคู่และเลขคี่เลยค่ะ เนื่องจากเป็นจุดที่คนใช้เดินทางไป-มาระหว่างถนนสุขุมวิท ถนนพระรามสี่ และถนนเพชรบุรี ผ่านซอยน้อยใหญ่ต่างๆ ซึ่งรถแน่นทุกเส้น เพราะทั้งสามเส้นเป็นถนนสายหลัก บวกกับการที่โลเคชั่นอยู่ใจกลางเมือง ห้างเยอะ คอนโดเยอะ ออฟฟิศอาคารสำนักงานเยอะ คนใช้รถใช้ถนนจึงเยอะไปด้วย
ทำเลตรงนี้มีจุดขึ้นทางด่วนกระจายตัวอยู่รอบๆ ทั้ง ทางด่วนเพลินจิต, พระราม 4, เอกมัย – รามอินทรา, สุขุมวิท 50 ฯลฯ แต่เนื่องจากย่านนี้รถค่อนข้างติดค่ะ เพราะทุกเส้นอยู่ในตัวเมืองทั้งนั้น ทำให้การเดินทางโดย “เลี่ยงเมือง” ทำไม่ได้ แต่โดยรวมการเดินทางก็สะดวกอยู่แล้ว เพราะอย่างที่กล่าวไปข้างต้นว่าทำเลอยู่ในตัวเมืองอยู่แล้วด้วย
การเดินทางด้วยรถสาธารณะ –แถวนี้คนไม่ขับรถไปไหนมาไหนง่ายมากค่ะ ถือเป็นจุดเด่นของโครงการนี้เลยก็ว่าได้อกจาก BTS สองสถานีในระยะเดินไปได้แล้ว โซนนี้มีทั้งแท้กซี่ วินมอเตอร์ไซค์ แทบจะ 24 ชั่วโมงนะคะ หน้าโครงการเดินไป 50เมตรก็มีป้ายรถเมล์ ห่างไป 80 เมตรก็มีพี่วินมอเตอร์ไซค์อยู่ จะไปไหนก็ไว รถติดก็มีทางเลี่ยงเยอะแยะ เพราะอยู่ใจกลางเมืองในแหล่งห้างสรรพสินค้าอยู่แล้ว อยากไปช็อปปิ้ง สามารถขึ้นรถไฟฟ้าไปได้ทั้ง เอมโพเรียม เอมควอเทียร์ เทอมินอล 21 ไม่ต้องรถติด ทั้งใกล้และสะดวก
การออกแบบโครงการและวัสดุ – จุดเด่นของ BEATNIQ ที่มากกว่าทำเลทองของโครงการ คือเรื่องของการออกแบบสไตล์ของโครงการเลยค่ะ ที่ได้รับแรงบันดาลใจมาจากสถาปัตยกรรมและไลฟ์สไตล์ยุค 20’s ซึ่งออกแบบมาได้ละเมียดละไมและมีรายละเอียดที่คิดมาเป็นอย่างดีแฝงอยู่ในภาพของความเก๋ เท่ของงานออกแบบโครงการ
อย่างภาพรวมของตึกทั้งหมด มีการเชื่อมต่อวัสดุหลายอย่างเข้าด้วยกัน ทั้งส่วนที่เป็นงานเหล็กกับกระจก และส่วนที่เป็นกรอบปูนทรงเลขาคณิตที่ทำหน้าที่เป็นครีบบังแดดและบล็อคลม สะท้อนถึงสถาปัตยกรรมแบบโมเดิร์น ช่วงกึ่งกลางศตวรรษที่ 20 ถูกนำมาต่อยอดและพัฒนามาเป็นจุดเด่นของโครงการ – ส่วน Grill และ Fin aluminum ซึ่งเป็นส่วนประกอบหลักโดยรอบของอาคาร สอดประสานมากับกรอบเรขาคณิตบล็อคลมด้านล่างด้วยการ ใช้เส้นแนวตั้งเป็นจุดดึงสายตาเชื่อมต่อองค์ประกอบจากด้านล่างสู่ยอดอาคาร และส่งผลให้รูปร่างของอาคารดูสูงขึ้นด้วย
ตัวห้องขายแบบ Fully Fitted คือมีชุดครัวและชุดเฟอร์นิเจอร์ Built in มาให้ ซึ่งสเป็คมาสวย เพิ่มที่เก็บของได้เยอะดี โดยเฉพาะชุดครัวที่ทำหน้าบานมาสวยไม่เหมือนใคร และมีความใส่ใจในรายละเอียด โดยชุดครัวเป็นหน้าบานสีขาวครีมไฮกรอส ขอบเป็นอลูมิเนียมสีเทาเข้ม ท้อปเป็นหินควอตซ์ลายหินอ่อนสีขาวลายเทา
โถสุขภัณฑ์แบบ Washlet และแบบสายฉีดของ TOTO ซึ่งอันนี้ถือว่าให้สเป็คมาสูงสมราคาค่ะ, ห้องน้ำมาแบบ Full Bath คือมีอ่างอาบน้ำติดผนังกระจกแบบ Sexy Bath และมีฉากกั้นห้องน้ำเป็นกระจกเทมเปอร์พร้อมฝักบัวและ Rain Shower มาให้ อ่างล้างหน้าทำเคาน์เตอร์มาให้สะใจดี ห้องแบบ 2 ห้องนอนมีอ่างล้างหน้าแบบ His&Her มาให้ด้วย และพื้นห้องน้ำก็เป็นหินลายไม่ธรรมดาเลยค่ะ มาเป็นหินสีดำลายขาวปนทองลายแบบไม่เพลย์เซฟจากอิตาลี
ฝ้าเพดานห้องสูง 2.8 เมตร ดรอปฝ้างานระบบลงมาบางส่วนสูง 2.65 m. พื้นเป็น Engineering wood 14 มม.กับพื้นหินอ่อนสังเคราะห์ 60 x 60 cm. มี Digital Doorlock มาให้
เรื่องการออกแบบห้อง มีมาให้เลือกหลายแบบตั้งแต่ห้องแบบ 1 ห้องนอน 43 ตรม. ซึ่งปรับแบบมาให้ลงตัวและมีห้องน้ำที่มีขนาดสบายๆใช้งานได้ไม่อึดอัด ไปจนถึงห้องแบบเพนท์เฮ้าส์แบบ Pool Villa ที่หาตามคอนโดติดถนนใหญ่แบบนี้ได้ค่อนข้างยากขนาด 204 ตารางเมตร และมี2ห้องนอนแบบ Duplex 2 ชั้น ให้บรรยากาศที่แตกต่างจากคอนโดทั่วไป ซึ่งก็ถือว่ามีตัวเลือกหลากหลาย เจาะลูกค้ากลุ่มไฮเอนด์ที่มองหาคอนโดที่สามารถใช้ชีวิตได้เหมือนบ้านใจกลางเมือง พร้อมการรักษาความปลอดภัยแบบคอนโดมิเนียมที่มีความปลอดภัยสูงนะคะ
สิ่งอำนวยความสะดวก – พื้นที่ส่วนกลางชั้น 1 คือสวนและล็อบบี้ และส่วนกลางหลักๆจะอยู่ที่ชั้น 7 โดยมีสระว่ายน้ำพร้อมทางเดินชมวิวรอบสระแบบ Floating Pool Pavilion รวมถึงห้องฟิตเนสที่ดูหรูหราและมีสไตล์ ด้วยการเลือกใช้วัสดุหินอ่อนสีขาว และห้องฟิตเนสแบบเพดานสูง แบบอุปกรณ์ออกกำลังกายครบถ้วนพร้อมลานซ้อมมวย โยคะสตูดิโอ และ Kid’s Lounge หรือห้องเด็กสำหรับคนมีครอบครัว และสวนลอยฟ้าชั้น 32 พร้อมบันไดวนไปยังห้องอเนกประสงค์และจากุซซี่ชั้นลอยของชั้น 34 ซึ่งฟังก์ชั่นเหล่านี้แสดงให้เห็นถึงความตั้งใจที่จะตอบโจทย์ไลฟ์สไตล์ของผู้ซื้อที่ดีค่ะ
คะแนน
| ทำเลที่ตั้งโครงการ | 9 | อยู่ติดถนนใหญ่สุขุมวิท CBD โซนในอย่างทองหล่อ พร้อมพงษ์ |
| การเดินทาง ใช้รถ | 9 | เดินทางสะดวกใกล้ทางด่วน ไปไหนมาไหนง่าย แต่ต้องระวังรถติด |
| การเดินทาง ไม่ใช้รถ | 9 | สะดวกมาก ใกล้ BTS 2 สถานีใจกลางเมืองอย่างทองหล่อและพร้อมพงษ์ แท็กซี่เยอะ วินมอเตอร์ไซค์เยอะ ใช้เลี่ยงรถติดได้ดี ทางเดินเท้ากว้างและดูไม่เปลี่ยว เดินไปไหนมาไหนได้สบายๆ |
| ห้องและวัสดุ | 9 | แปลนห้องแบ่งได้เป็นสัดส่วนลงตัว ขายแบบ Fully Fitted วัสดุและเฟอร์นิเจอร์ที่ได้มีความใส่ใจรายละเอียดดี |
| สิ่งอำนวยความสะดวก | 9 | มีให้ครบครันและออกแบบได้น่าใช้งาน |
| ความคุ้มค่ากับราคา | 9 | ราคาเริ่มต้นตอนนี้อยู่ที่ประมาณ 285,000 บาท/ตร.ม. ได้ทำเลพร้อมพงษ์ ทองหล่อ ใกล้รถไฟฟ้า, ใกล้ทางด่วน ใกล้ห้าง และคอนโดที่มีการออกแบบมาอย่างละเอียดและดีไซน์ไม่เหมือนใคร ส่วนที่มีมูลค่าสูงของโครงการคือทำเลที่ดินย่านนี้ที่เร่ิมหายากและมีความอุดมสมบูรณ์และสะดวกสบายสูง |
| คะแนนรวมเฉลี่ย | 9 | ดีมาก |
สอบถามเพิ่มเติมได้ที่
Tel : 1749
Website : http://www.beatniq32.com/
หากเพื่อนๆเห็นว่ารีวิวนี้มีประโยชน์ ช่วยกด Like เพื่อเป็นกำลังใจให้ทีมงาน ขอบคุณค่ะ
และมีความคิดเห็นหรือข้อมูลเพิ่มเติมเกี่ยวกับตัวโครงการ สามารถ Comment ได้ที่ด้านล่างของรีวิวค่ะ
แสดงความคิดเห็น เกี่ยวกับ " รีวิว คอนโด BEATNIQ สุขุมวิท 32 ใกล้รถไฟฟ้า BTS ทองหล่อ "