
คอนโด เซ็นทริค รัชดา-ห้วยขวาง CENTRIC RATCHADA – HUAI KHWANG
ปัจจุบัน เปลี่ยนชื่อเป็น คอนโด เซ็นทริค ห้วยขวาง สเตชั่น
คอนโดมิเนียมรูปแบบใหม่ใจกลางเมือง บนถนนรัชดาภิเษก ที่ให้ทุกความลงตัวของชีวิตเมืองอยู่ใกล้คุณ
| ชื่อโครงการ | คอนโด เซ็นทริค รัชดา-ห้วยขวาง / CENTRIC RATCHADA – HUAI KHWANG |
| เจ้าของโครงการ | เอสซี แอสเสท คอร์เปอเรชัน |
| ลักษณะห้องและขนาดห้อง | 1 Bed / 2 Bed / Duplex / ห้องชุดร้านค้า ขนาดห้องตั้งแต่ 25.70 – 88.40 ตร.ม. |
| เนื้อที่ทั้งหมด | 3 ไร่ 2งาน 91.00 ตร.ว. |
| จำนวนตึก | 1 อาคาร |
| จำนวนชั้น | 31 ชั้น |
| จำนวนห้อง | 674 ยูนิต |
| ที่จอดรถทั้งหมด | n/a |
| โซน | ห้วยขวาง, รัชดา, พระราม9 |
| ขนส่งสาธารณะ | รถไฟฟ้าใต้ดิน MRT สถานีห้วยขวาง 120 ม. |
| รถโดยสารที่ผ่าน | n/a |
| ที่ตั้ง | ถนนรัชดาภิเษก แขวงห้วยขวาง เขตห้วยขวาง กรุงเทพมหานคร |
| กำหนดการ | พ.ศ.2558 |
| ปีที่สร้างเสร็จ | n/a |
| ราคา | เริ่มต้น 3,090,000 บาท (ณ วันที่ 21 มิ.ย. 56) |
| ราคาเฉลี่ยต่อ ตร.ม | เริ่มต้น 120,200 บ./ตร.ม. |
| สถานที่สำคัญใกล้เคียง | 1. ห้างสรรพสินค้า เซ็นทรัล พระราม9 2. รถไฟฟ้าใต้ดิน MRT สถานีห้วยขวาง |
| สิ่งอำนวยความสะดวก | – ห้องสมุดส่วนตัว ที่ชั้น2 – สระว่ายน้ำส่วนกลางขนาดใหญ่ ที่ชั้น5 – JOGGING TRACK ที่ชั้น18 |
| จุดเด่นของโครงการ | – การออกแบบที่ทันสมัย – ใกล้รถไฟฟ้าใต้ดิน MRT สถานีห้วยขวาง 120 ม. |
ที่ตั้งโครงการ
ถนนรัชดาภิเษก แขวงห้วยขวาง เขตห้วยขวาง กรุงเทพมหานคร
แปลนอาคาร
Master Plan / 1st-2nd Floor / 3rd-4th Floor / 5th-8th Floor / 9th-11st Floor
12nd-14th Floor / 15th-16th Floor / 17th-18th Floor / 19th-20th Floor / 21st-22nd Floor
23rd-25th Floor / 26th-28th Floor / 29th-31st Floor
Type A1-01 / TypeA1-02 / Type A1-03 / Type A1-04 / Type A1-05
Type A1-06 / Type A1-07 / Type A1-08 / Type A1-09 / Type A1-10
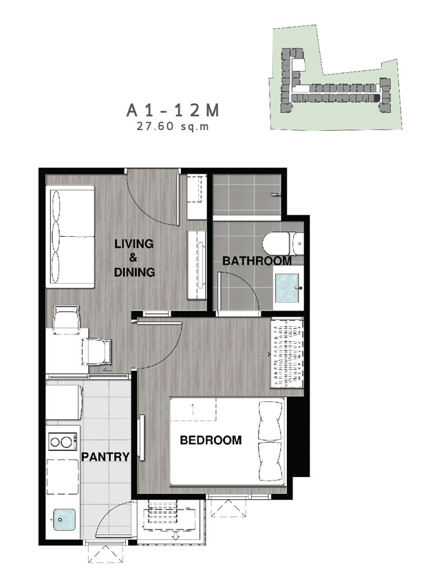
Type A1-11 / Type A1-12 / Type A1-12M / Type A2-01 / Type A2-10M
Type B1-04 / Type B1-05 / Type B1-06 / Type B1-06M / Type B1-07
Type B1-08 / Type B1-09 / Type B1-10 / Type B1-13 / Type B1-14
Type B1-15 / Type B2-01 / Type B2-01M / Type B2-02 / Type B2-03
Type B2-04 / Type B2-04M / Type B3-01 / Type B4-01 / Type B5-01
Type B5-02 / Type C1-01 / Type C1-02 / Type D3-01 / Type D3-01M
Type Du2-01 / Type Du2-02 / Type Du3-01 / Type D3-01M
ติดต่อสอบถามเพิ่มเติมได้ที่
Website : http://www.scasset.com/th/Condo/CTRH/default.aspx
แสดงความคิดเห็น เกี่ยวกับ " คอนโด เซ็นทริค รัชดา-ห้วยขวาง CENTRIC RATCHADA – HUAI KHWANG "