
คอนโด เชโลน่า เขาเต่า CHELONA KHAOTAO
คอนโด CHELONA เขาเต่า ที่ให้คุณ ได้สัมผัส ค้นหา สนุกสนาน ผ่อนคลาย และรับประสบการณ์ใหม่ๆ เขาเต่า วางตัวเงียบสงบให้บรรยากาศผ่อนพักอย่างเป็นส่วนตัว ชายทะเลสวย สะอาด หาดทรายละเอียด ของหาดเขาเต่า หาดทรายน้อย หาดทรายใหญ่ เรียงรายด้วยพันธ์ไม้ชายทะเลต่างๆ อย่างลงตัวร่มรื่น หมู่บ้านชาวประมงเล็กๆ กับร้านอาหารทะเลสดอร่อย ผู้คนอยู่กันแบบสบายๆ เสน่ห์ง่ายๆ ที่พานพบได้ ห่างจากหัวหินเพียง 20 กิโลเมตร
| ชื่อโครงการ | เชโลน่า เขาเต่า CHELONA KHAOTAO |
| เจ้าของโครงการ | แสนสิริ – SANSIRI |
| ลักษณะห้องและขนาดห้อง | – 1 Bed / 46.50 – 60 ตร.ม. – 2 Bed / 64 – 141.50 ตร.ม. – Penthouse / 241.50 – 254 ตร.ม. |
| เนื้อที่ทั้งหมด | 6 ไร่ 3 งาน 54.70 ตร.ว. |
| จำนวนตึก | 4 อาคาร |
| จำนวนชั้น | 7 ชั้น |
| จำนวนห้อง | 174 ยูนิต |
| ที่จอดรถทั้งหมด | n/a |
| โซน | หัวหิน |
| ขนส่งสาธารณะ | n/a |
| รถโดยสารที่ผ่าน | n/a |
| ที่ตั้ง | ถนนเขาเต่า (ซอยหัวหิน 101) ตำบลหนองแก อำเภอหัวหิน จังหวัดประจวบคีรีขันธ์ |
| กำหนดการ | n/a |
| ปีที่สร้างเสร็จ | พ.ศ. 2555 |
| ราคา | เริ่มต้น 2,990,000 บาท (ณ. วันเปิดตัว) |
| ราคาเฉลี่ยต่อ ตร.ม | เริ่มต้น 64,300 บ./ตร.ม. |
| สถานที่สำคัญใกล้เคียง | 1. ลาส ตอร์ตูกัส 2. บ้านนับคลื่น 3. ตลาดหัวหิน |
| สิ่งอำนวยความสะดวก | – สระว่ายน้ำ (พร้อมสระเด็ก), ฟิตเนส – รปภ., กล้องวงจรปิดโครงการ, ประตู Key Card – สวนหย่อม – Wi-Fi Internet บริเวณ Lobby (พร้อมบริเวณห้องออกกำลังกายและระเบียงสระว่ายน้ำ) |
| จุดเด่นของโครงการ | เขาเต่า วางตัวเงียบสงบให้บรรยากาศผ่อนพักอย่างเป็นส่วนตัว ชายทะเลสวย สะอาด หาดทรายละเอียด ของหาดเขาเต่า หาดทรายน้อย หาดทรายใหญ่ เรียงรายด้วยพันธ์ไม้ชายทะเลต่างๆ อย่างลงตัวร่มรื่น หมู่บ้านชาวประมงเล็กๆ กับร้านอาหารทะเลสดอร่อย ผู้คนอยู่กันแบบสบายๆ เสน่ห์ง่ายๆ ที่พานพบได้ ห่างจากหัวหินเพียง 20 กิโลเมตร |
ที่ตั้งโครงการ
ถนนเขาเต่า (ซอยหัวหิน 101) ตำบลหนองแก อำเภอหัวหิน จังหวัดประจวบคีรีขันธ์
คลิก เพื่อดูแผนที่ขนาดใหญ่
แปลนอาคาร
Master Plan




Tower A : 1st floor / 2nd floor / 3rd floor / 4th floor




Tower B : 1st floor / 2nd floor / 3rd floor / 4th floor




Tower C : 1st floor / 2nd floor / 3rd floor / 4th floor




Tower D : 1st floor / 2nd floor / 3rd floor / 4th floor








Tower E : Basement floor / 1st floor / 2nd floor / 3rd floor / 4th floor / 5th floor / 6th floor / 7th floor
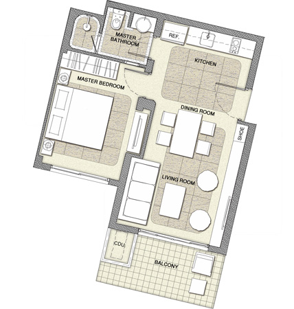
แปลนห้อง
แปลนห้องเพิ่มเติม ที่นี่
แกลเลอรี่
ดูวิดิโอโครงการ
สนใจติดต่อรายละเอียดเพิ่มเติมได้ที่
Call Center : 1685
E-mail : chelona@sansiri.com
Website : http://www.sansiri.com/condominium/chelona/th/
คอนโด หัวหิน ทำเลอื่นๆ ที่น่าสนใจ…
คอนโด มิคโคนอส หัวหิน
คอนโด บลู ชะอำ-หัวหิน
คอนโด ซัมเมอร์ หัวหิน
คอนโด เชโลน่า เขาเต่า
คอนโด ลาส ตอตูกัส
คอนโด บ้านแสนสุข
คอนโด เบลล่า คอสต้า หัวหิน
คอนโด เซเลสเต้ หัวหิน
คอนโด คิว ซีไซด์ หัวหิน
คอนโด โอกาส หัวหิน
คอนโด วันเวลา หัวหิน
แสดงความคิดเห็น เกี่ยวกับ " คอนโด เชโลน่า เขาเต่า CHELONA KHAOTAO "