
เดคโค่ คอนโด สุขุมวิท 70/5 Deco Condo Sukhumvit 70/5
Deco Condo สุขุมวิท 70/5 จาก บริษัท พรไพลิน จำกัด ตั้งอยู่บนซอยสุขุมวิท 70/5 ถนนสุขุมวิท แขวงบางนา เขตบางนา กทม. ใกล้รถไฟฟ้า BTS แบริ่ง ประมาณ 300 เมตร ใกล้ทางด่วนบางนา, เซ็นทรัล บางนา, บิ๊กซี, แม็คโคร, ไบเทค บางนา, รร.เซนต์แอนดรูว์ส, รร.นานาชาติบางกอกพัฒนา, รร.เซนต์โยเซฟ บางนา และ รพ.ไทยนครินทร์
เดคโค่ คอนโด สุขุมวิท 70/5 เป็นคอนโด Low-Rise 8 ชั้น 2 อาคาร พื้นที่โครงการขนาด 300 ตร.วา. ห้องพักอาศัยรวม 158 ยูนิต มีห้องพักให้เลือกแบบสตูดิโอ, 1 ห้องนอน, 2 ห้องนอน ขนาดเริ่มต้น 21.36-45.04 ตร.ม. สร้างเสร็จพร้อมอยู่ปี 2562
สิ่งอำนวยความสะดวกในโครงการครบครัน อาทิ โถงต้อนรับ, ห้องจดหมาย, ฟิตเนส, สวนพักผ่อน, ที่จอดรถ ประมาณ 30% รวมจอดซ้อนคัน, ประตูคีย์การ์ด, กล้องวงจรปิด และ ระบบรักษาความปลอดภัยตลอด 24 ชม. เริ่มต้น 92x,xxx บาท* (ณ.วันเปิดตัว)
| ชื่อโครงการ | เดคโค่ คอนโด สุขุมวิท 70/5 Deco Condo Sukhumvit 70/5 |
| เจ้าของโครงการ | บริษัท พรไพลิน จำกัด |
| เนื้อที่ทั้งหมด | ประมาณ 300 ตร.วา. |
| จำนวนตึก | 2 อาคาร |
| จำนวนชั้น | 8 ชั้น |
| จำนวนห้อง | – อาคาร A : 79 ยูนิต – อาคาร B : 79 ยูนิต |
| ลักษณะห้องและขนาดห้อง | – Studio 21.36 ตรม. – 1 Bedroom 23.12-26.00 ตร.ม. – 2 Bedrooms 35.73-45.04 ตร.ม. |
| ที่จอดรถทั้งหมด | ประมาณ 30% รวมจอดซ้อนคัน |
| โซน | สุขุมวิทช่วงปลาย |
| ขนส่งสาธารณะ | – รถไฟฟ้า BTS แบริ่ง 300 เมตร – ใกล้ทางด่วนบางนา |
| รถโดยสารที่ผ่าน | n/a |
| ที่ตั้ง | ซอยสุขุมวิท 70/5 แขวงบางนา เขตบางนา กทม. 10260 |
| กำหนดการ | – เริ่มก่อสร้าง ธ.ค. 2559 |
| ปีที่สร้างเสร็จ | – คาดว่าแล้วเสร็จ ปลายปี 2560 |
| ราคา | เริ่มต้น 92x,xxx บาท* |
| ราคาเฉลี่ยต่อ ตร.ม | ราคาเฉลี่ย 45,500 บาท/ตร.ม. |
| ค่าส่วนกลางและกองทุน | รอข้อมูลจากโครงการ |
| สถานที่สำคัญใกล้เคียง |
|
| สิ่งอำนวยความสะดวก |
|
| จุดเด่นของโครงการ | Deco Condo @ แบริ่ง สุขุมวิท 70/5 คอนโด Low-Rise ใกล้รถไฟฟ้า BTS เพียง 300 เมตร ผสมผสานความงามทางศิลปะเข้ากับธรรมชาติไว้อย่างลงตัว ด้วยการออกแบบทุกพื้นที่ใช้สอยให้เกิดประโยชน์สูงสุด พร้อมด้วยมุมผ่อนคลายเปรี่ยมด้วยพลังธรรมชาติกับ Private Garden Sky ห้องพักขนาดเริ่มต้น 21.36 – 45 ตร.ม. พร้อมให้คุณเป็นเจ้าของง่าย ๆ ราคาเริ่มต้น 92x,xxx บาท* |
ที่ตั้งโครงการ
ซอยสุขุมวิท 70/5 แขวงบางนา เขตบางนา กทม. 10260
:: ภาพประกอบการเดินทาง ::
พิกัด Google : 13.661083, 100.599296
การเดินทางเริ่มจากถนนสุขุมวิท ⇒ BTS บางนา ⇒ BTS แบริ่ง ⇒ แยกลาซาล ⇒ แยกแบริ่ง ⇒ กลับรถใต้สะพานสำโรงตรงไปอีก 1 กิโลเมตรถึง⇒ ซอยสุขุมวิท 70/5 อีก 250 เมตร Deco Condomimium แบริ่ง (สุขุมวิท 70/5)
เราเริ่มจากถนนสุขุมวิท มุ่งหน้าไปสมุทรปราการ ผ่าน BTS บางนา

ผ่าน BTS แบริ่ง แยกลาซาล และแยกแบริ่ง เราจะต้องตรงไปกลับรถใต้สะพานสำโรงค่ะ
กลับรถใต้สะพาน
ผ่านอิมพิเรียลฯ สำโรงตรงไปอีก 1 กิโลเมตรให้เลี้ยวซ้ายเข้าซอยสุขุมวิท 70/5
เลี้ยวเข้าซอยสุขุมวิท 70/5 จะมีป้ายบอกไปโครงการอยู่ค่ะ ตรงไปจุดทางถึงโครงการค่ะ
ถึงโครงการ Deco Condomimium แบริ่ง (สุขุมวิท 70/5)
:: บริเวณโดยรอบโครงการ ::
สถานที่สำคัญ
:: FLOOR PLAN ::
2nd – 6th Floor Plan
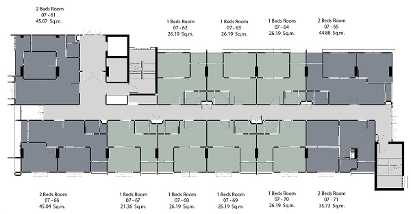
7th Floor Plan
8th Floor Plan
:: UNIT TYPE ::
Studio ขนาด 21.36 ตร.ม.
แบบ 1 ห้องนอน ขนาด 26.19 ตร.ม.
แบบ 1 ห้องนอน ขนาด 23.12 ตร.ม.
แบบ 2 ห้องนอน ขนาด 45.07 ตร.ม.
แบบ 1 ห้องนอน ขนาด 26.19 ตร.ม.
แบบ 1 ห้องนอน ขนาด 35.70 ตร.ม.
:: GALLERY ::
สอบถามรายละเอียดเพิ่มเติมได้ที่
Tel : 02-398-7391-2
Website : http://www.decocondo.com
You must be logged in to post a comment.
สนใจครับ
0639469961