
EP.111 รีวิว คอนโด Ideo O2 ไอดีโอ โอทู ใกล้ BTS บางนา และ Bangkok Mall
สวัสดีผู้อ่านชาว CONDONAYOO ทุกคนครับ วันนี้ผมพามาชมโครงการ Ideo O2 จาก Ananda Development ในทำเลย่านบางนา อยู่ติดถนนสรรพาวุธ ห่างจากแยกบางนามาประมาณ 250 ม. เป็นเส้นที่เชื่อมระหว่างถนนสุขุมวิท ถนนบางนาตราด และถนนรางรถไฟเก่า ใกล้ทางด่วนเฉลิมมหานคร ทางด่วนบูรพาวิถี และทางด่วนรามอินทรา-อาจณรงค์ ใกล้รถไฟฟ้า BTS บางนาเดินจากด้านหลังโครงการประมาณ 300 ม. รายล้อมไปด้วยแหล่งอำนวยความสะดวก และร้านค้าต่างๆ ใกล้ไบเทคบางนา และ Bangkok Mall
ไอดีโอ โอทู เป็นคอนโด High Rise จำนวน 3 อาคาร สูง 34 ชั้น บนที่ดิน 14-3-18.69 ไร่ ห้องพักอาศัยมีทั้งหมด 1,559 ยูนิต และยูนิตร้านค้า 10 ยูนิต มีห้องพักอาศัยให้เลือกแบบสตูดิโอ, 1 ห้องนอน, 2 ห้องนอน ขนาดห้องเริ่มต้นที่ 26.2 – 53 ตร.ม. โครงการสร้างเสร็จพร้อมเข้าอยู่ 2017
สิ่งอำนวยความสะดวก ภายในโครงการมีพื้นที่ส่วนกลางเกือบ 10 ไร่ และพื้นที่สีเขียวกว่า 5,000 ตร.ม. มีสระว่ายน้ำขนาดใหญ่ 3 สระ ห้องฟิตเนส, ซาวน่า, ห้องโยคะ, พื้นที่นั่งเล่น, Co-working space, Social Club, Meeting Room, Bike Lane, Futsal, Skate Park, สวนหย่อม, Access Card Control, กล้องวงจรปิด พร้อม รปภ. 24 ชม. ราคาเริ่มต้น 2.6 ล้านบาท
ส่วนรายละเอียดอื่นๆจะเป็นอย่างไรอ่านต่อด้านล่างได้เลยครับ
| ชื่อโครงการ | ไอดีโอ โอทู Ideo O2 |
| เจ้าของโครงการ | อนันดา ดีเวลลอปเม้นท์ Ananda Development |
| ลักษณะห้องและขนาดห้อง | – Studio : 26.2 ตร.ม. – 1 ห้องนอน, 1 ห้องน้ำ : 32.4 ตร.ม. – 2 ห้องนอน, 1 ห้องน้ำ : 46.2 ตร.ม. – 2 ห้องนอน, 2 ห้องน้ำ : 53 ตร.ม. |
| เนื้อที่ทั้งหมด | 14-3-18.69 ไร่ |
| จำนวนตึก | 3 อาคาร + อาคารร้านค้า 1 อาคาร |
| จำนวนชั้น | – อาคาร A : 34 ชั้น – อาคาร B : 34 ชั้น – อาคาร C : 33 ชั้น |
| จำนวนห้อง | – อาคาร A : 419 ยูนิต, ร้านค้า 5 ยูนิต – อาคาร B และ อาคาร C : 1,141 ยูนิต, ร้านค้า 1 ยูนิต |
| ที่จอดรถทั้งหมด | – ที่จอดรถชั้น 1-5 (ทุกอาคาร) 40% ไม่รวมซ้อนคัน |
| โซน | เขตบางนา |
| ขนส่งสาธารณะ | – รถไฟฟ้า BTS บางนา – ทางด่วนเฉลิมมหานคร – ทางด่วนบูรพาวิถี – ทางด่วนรามอินทรา-อาจณรงค์ |
| รถโดยสารที่ผ่าน | n/a |
| ที่ตั้ง | ถนนสรรพาวุธ แขวงบางนา เขตบางนา กทม. |
| กำหนดการ | เปิดจอง 12-16 ส.ค. 2558 |
| ปีที่สร้างเสร็จ | ธ.ค. 2560 |
| ราคา | เริ่มต้น 2.6 ล้านบาท |
| ราคาเฉลี่ยต่อ ตร.ม | ประมาณ 100,000 บาท/ ตร.ม. |
| ค่าส่วนกลางและกองทุน | – ค่าส่วนกลาง 45 บาท/ ตร.ม. – ค่ากองทุน 500 บาท/ ตร.ม. |
| สถานที่สำคัญใกล้เคียง |
|
| สิ่งอำนวยความสะดวก |
|
| จุดเด่นของโครงการ | ไอดีโอ โอทู โอเอซิสแห่งมหานครใกล้ BTS บางนา และ Bangkok Mall พร้อมส่วนกลางรวมกว่า 10 ไร่ |
ที่ตั้งโครงการ
ถนนสรรพาวุธ แขวงบางนา เขตบางนา กทม.
พิกัด Google โดยประมาณ : 13.673227, 100.604472
ที่ตั้งโครงการ Ideo O2 ตั้งอยู่ติดกับถนนสรรพาวุธ ตรงบริเวณปากซอยสรรพาวุธ 1 ห่างจากแยกบางนามาประมาณ 250 ม. ถนนสรรพาวุธเป็นเส้นที่เริ่มมาจากแยกบางนา เป็นจุดตัดกับถนนสุขุมวิท ถนนบางนาตราด ยาวมาสิ้นสุดที่แยกสรรพาวุธที่ตัดกับถนนรางรถไฟเก่า การเดินทางเข้าออกเมืองค่อนข้างสะดวก เชื่อมต่อได้หลายเส้นทาง
การเดินทางเข้าเมือง ถ้าใช้เส้นสุขุมวิทวิ่งมุ่งหน้าเข้าเมืองอย่างเดียววิ่งตามแนว BTS ไปเอกมัย ทองหล่อ พร้อมพงษ์ อโศก สยาม หรือเข้าถนนพระรามสี่ตรงแถวแยกพระโขนงวิ่งเข้าลุมพินี วิทยุ สาทร สีลม สามย่านได้เลย อีกทางคือใช้ถนนรางรถไฟเก่าวิ่งไปเข้าพระรามสี่ได้เลย นอกจากนี้ยังอยู่ใกล้จุดขึ้นลงทางด่วนเฉลิมมหานคร ใกล้ๆกับแยกบางนา โดยทางด่วนเส้นนี้ไปได้หลายที่ทั้ง พระรามเก้า ดาวคะนอง พระรามสอง แจ้งวัฒนะ ดินแดง วิภาวดีรังสิต รามอินทรา ขากลับก็มาลงทางด่วนบางนาได้เลย
การเดินทางออกนอกเมือง ถ้าใช้เส้นสุขุมวิท วิ่งไปออกสำโรง ปู่เจ้าสมิงพราย ยาวไปสมุทรปราการได้ หรือใช้เส้นเส้นสรรพาวุธมาออกปู่เจ้าสมิงพรายได้ หรือตรงแยกบางนาจะเชื่อมออกถนนบางนา-ตราด วิ่งไปเชื่อมถนนศรีนครินทร์ ถนนกาญจนาภิเษก ถนนกิ่งแก้ว ยาวเลยไปออกฉะเชิงเทรา ชลบุรี พัทยาได้เลย และที่สำคัญเส้นนี้มีทางด่วนบูรพาวิถีวิ่งไปจนถึงชลบุรีเลยสะดวกดี ถนนกาญจนาภิเษกวิ่งไปออกรังสิต ปทุมธานี อยุธายาได้ และถนนกิ่งแก้วไปสุววรณภูมิ ลาดกระบัง มีนบุรี ถ้าไปโซนรามอินทรา ลาดพร้าว เกษตรนวมินทร์ ก็ข้ึนทางด่วนไปได้เลยครับสะดวกดี
การเดินทางโดยสาธารณะ หน้าโครงการติดถนนสรรพาวุธมีรถ Taxi วิ่งผ่านไปมาตลอด มีรถสองแถววิ่งผ่านแยกบางนา-ท่าน้ำสรรพาวุธ ปากซอยสรรพาวุธ 1 มีวินมอเตอร์ไซค์เดินมาใช้บริการได้เลย ตัวโครงการอยู่ใกล้ BTS บางนา ถ้าเดินจากด้านหน้าโครงการเข้าซอยสรรพาวุธ 1 มาเชื่อมออกซอยเริ่มเจริญหรือซอยวัดบางนาใน มาเชื่อมออกริมถนนสุขุมวิทเดินไปสถานีประมาณ 650 ม. หรืออีกทางถ้าเดินออกจากด้านหลังโครงการเดินตามริมคลองจะไปเชื่อมตรงสะพานข้ามคลองแล้วเดินไปสถานีประมาณ 300 ม. ส่วนรถเมล์มาเส้นสุขุมวิทเลยมีป้ายรถเมล์ทั้งฝั่งขาเข้าและออกเมืองมีวิ่งผ่านหลายสายวิ่งเกือบทั้งคืน มีรถตู้ให้บริการวิ่งไปจนถึงสนามบินสุวรรณภูมิด้วยครับ ตรงแถวๆแยกบางนาจะมีวินรถตู้ต่างจังหวัด ภาพรวมถือว่าสะดวกไม่มีรถส่วนตัวก็อยู่โครงการนี้ได้สบายๆ
ทางด่วน ตัวโครงการอยู่ใกล้กับจุดขึ้นทางด่วนเฉลิมมหานคร ออกจากโครงการมาแล้วกลับรถ ก่อนถึงแยกบางนาจะเจอทางเลี้ยวซ้ายไปขึ้นทางด่วนระยะจากโครงการประมาณ 1.3 กม.
ทางด่วน ตัวโครงการอยู่ใกล้กับจุดขึ้นทางด่วนรามอินทราอาจณรงค์ โดยจะเชื่อมจากทางด่วนเฉลิมมหานคร ระยะจากโครงการประมาณ 4.8 กม.

ทางด่วน ตัวโครงการอยู่ใกล้กับจุดขึ้นทางด่วนบูรพาวิถี โดยวิ่งไปตามถนนบางนาตราด ก่อนถึง Central บางนาจะเจอจุดขึ้นทางด่วน ระยะจากโครงการประมาณ 3.3 กม.
จากภาพถ่ายดาวเทียมจะเห็นว่าพื้นที่รอบๆโครงการส่วนใหญ่จะเป็นบ้านพักอาศัย โรงเรียน และวัด ย่านนี้ออกแนวชุมชน มีคอนโดมิเนียมอย่าง The Coast อีกฝั่งเป็นไบเทคบางนาที่ไว้จัดงานต่างๆ ด้านหลังโครงการมีทางเดินริมคลองมาเชื่อมถนนสุขุมวิทเพื่อเดินไป BTS บางนาได้ในระยะประมาณ 300 ม. โดยทางโครงการได้ออกค่าใช้จ่ายให้ กทม. เป็นคนก่อสร้างเพื่อสาธารณะ

การเดินทางวันนี้เริ่มจากถนนสุขุมวิทมุ่งหน้าบางนา ขับตามแนวรถไฟฟ้า BTS มาจนถึงแยกบางนา และเลี้ยวขวาเข้าถนนสรรพาวุธ จากนั้นขับมาอีกประมาณ 250 ม. โครงการจะอยู่ทางซ้ายมือครับตรงปากซอยสรรพาวุธ 1
สรุปการเดินทาง ถนนสุขุมวิท > แยกบางนา > ถนนสรรพาวุธ > Ideo O2
เริ่มจากถนนสุขุมวิทมุ่งหน้าบางนา ตรงหน้าเป็น BTS พร้อมพงษ์
ซ้ายมือเป็น Emquartier ขวามือเป็น Emporium
เลยมาอีกจะเป็น Rain Hill
และจะเจอ BTS ทองหล่อ
ผ่านมาจะเจอแยกทองหล่อ ซ้ายมือเป็นซอยสุขุมวิท 55
จากนั้นจะเจอ Major เอกมัย
และจะเจอแยกเอกมัย ตรงหน้าเป็น BTS เอกมัย
จากนั้นซ้ายมือเป็นโรงพยาบาลสุขุมวิท
ถัดมาอีกจะเจอ BTS พระโขนง
ถัดมาเป็นแยกพระโขนง
ผ่านแยกมาซ้ายมือเป็น W District
จากนั้นจะเจอแยกสุขุมวิท 71 ฝั่งซ้ายจะเป็นซอยสุขุมวิท 71 หรือพระโขนงครับ
ตรงมาอีกจะเจอแยกอ่อนนุชข้างหน้าข้ามแยกไปครับ
ข้ามแยกอ่อนนุชมาจะเจอ สน.พระโขนงซ้ายมือ
จากนั้นจะเป็น BTS อ่อนนุช ขวามือมี Tesco Lotus
ฝั่งซ้ายจะเป็น Century อ่อนนุช มีโรงหนังในนี้ด้วยนะครับ ตอนนี้เปิดให้บริการบางส่วนแล้วเมื่อวันที่ 2 ธันวาคม 2560
ถัดมาจะเป็นโรงเรียนนานาชาติซ้ายมือ
และจะเจอ BTS บางจาก
จากนั้นจะเจอ สนง.ขนส่งกรุงเทพฯพื้นที่ 3
เลยมาอีกก็จะเป็น BTS ปุณณวิถี

ถัดมาจะเจอ BTS อุดมสุข

เลยมาซ้ายมือจะเจอซอยสุขุมวิท 103 ในซอยนี้ของกินเยอะเลยครับ
เลยมาขวามือด้านบนจะเห็นโครงสร้างเหล็กซึ่งจะเป็น Sky walk เชื่อมจาก BTS อุดมสุขไปถึง BTS บางนาเลยครับ
พอเจอแยกบางนาให้เลี้ยวขวาครับ
เลี้ยวขวามาจะเข้าถนนสรรพาวุธ ตรงไปอีกประมาณ 250 ม. โครงการจะอยู่ซ้ายมือ จากตรงนี้เราจะมองเห็นตัวอาคาร
ซ้ายมือมีวินมอเตอร์ไซค์ ข้างหน้าจะเห็นโครงการ
เลยมาอีกจะเจอ 7-11 ซ้ายมือ
และจะเจอวินมอเตอรืไซค์อีกตรงปากซอยสรรพาวุธ 1
และจะถึงพื้นที่โครงการครับ อยู่ติดกับปากซอยสรรพาวุธ 1 เลย
ขอบเขตด้านหน้าโครงการ

มองจากมุมด้านข้างอีกฝั่ง
ด้านหนาจะเป็นอาคาร A

มองจากภาพมุมสูง จะเห็นตัวอาคารทั้ง 3 อาคารครับ
พื้นที่โครงการจะยาวตั้งแต่ด้านหน้าที่ติดถนนสรรพาวุธไปจนถึงแนวคลองด้านหลังเลยระยะความยาวประมาณ 390 ม. ทิศเหนือคือด้านหน้าโครงการติดกับถนนสรรพาวุธ ฝั่งด้านหลังโครงการเป็นทิศใต้ติดกับแนวลำคลองมีทางเดินไป BTS บางนาได้ ฝั่งทิศตะวันออก และตะวันตกติดกับบ้านพักอาศัย โรงเรียน และพื้นที่วางเปล่าบางส่วน
ด้านหน้าโครงการติดกับถนนสรรพาวุธ
มองไปทางซ้าย
มองไปทางขวา
ฝั่งตรงข้ามโครงการจะเป็นตึกแถว มีร้านค้า ร้านอาหารต่างๆ
มองไปทางแยกบางนา
มองไปอีกฝั่ง
ความอุดมสมบูรณ์ รอบๆโครงการในระยะเดินภายในตัวโครงการเองมีร้าน Max Valu เดินย้อนหน้าโครงการมาหน่อยมี 7-11 และร้านอาหารหลายร้านเลยทั้งก๋วยเตี๋ยว อาหารตามสั่ง น้ำต่าง ผลไม่ ร้านค้าขายของใช้ มีตลาดสดบางนาใกล้ หรือเดินมาตรงโครงการ The Cosat ที่มี Community Mall ให้ใช้บริการ มีทั้งร้านอาหารชื่อดัง รวมถึง Shop สินค้า ให้เลือกซื้อ หรือจะไปอุดมสุขนั่ง BTS ไป 1 สถานี หรือจะเดิน Sky Walk (กำลังก่อสร้าง) ไปก็ได้ถ้าชอบเดิน จะมีร้านอาหารให้เลือกเยอะเลยตั้งแต่ปากซอยไปท้ายซอย ตรงไบเทคบางนาก็จะมีจัดงานแสดงสินค้าอยู่บ่อยๆเดินมาได้เลยสะดวกดี ส่วนห้างสรรพสินค้าใกล้ มี Makro เซ็นทรัล และบิ๊กซีบางนา เลยไปอีกมีเมกา และอิเกียบางนา หรือจะขึ้น BTS ไปลงตรงอ่อนนุช 4 สถานีมีโลตัส บิ๊กซี เซ็นจูรี่สาขาอ่อนนุชมีโรงหนังด้วยครับ หรือนั่ง BTS เลยไปเอกมัย ทองหล่อ พร้อมพงษ์ อโศก สยามเลยก็ง่ายดีต่อเดียวถึงเลย อนาคตตรงแยกบางนาจะมี Bangkok Mall แต่ตอนนี้ยังไม่เริ่มโครงการเลย ต้องรออีกพักใหญ่ๆเลย
สถานที่สำคัญใกล้เคียง
แยกและถนนสำคัญใกล้เคียง

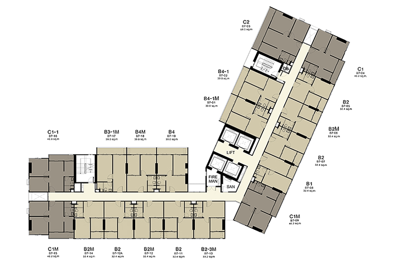
Floor Plan
Master Plan โครงการ จะเห็นว่าตัวพื้นที่โครงการยาวเข้ามาตั้งแต่ถนนสรรพาวุธไปจนถึงแนวลำคลองด้านหลังโครงการ แบ่งหลักๆเป็นอาคาร A, B, C และพื้นที่ส่วนกลาง
แปลนอาคาร A : ชั้น 1 มีสวน, ร้านค้า, Lobby, Mail Room โถงลิฟท์ โดยอาคาร A จะมีลิฟท์โดยสาร 2 ตัว ลิฟท์บริการ 1 ตัว
แปลนอาคาร A : ชั้น 2 มีห้องนิติบุคคล, ห้องประชุม, ฟิตเนส พร้อมห้องน้ำ-ล็อกเกอร์ แยกชาย-หญิง
แปลนอาคาร A : ชั้น 3-5 เป็นที่จอดรถ
แปลนอาคาร A : ชั้น 6- 10, 12- 15, 17 – 20, 22- 25, 27 – 30 ห้องพักหันทางทิศเหนือ-ทิศใต้ อัตราห้องพักอยู่ที่ 15 ห้อง โดยแบบ 2 ห้องนอน จะอยู่ตำแหน่งหัวมุมของอาคาร มีทั้งหมด 4 ห้อง TYPE A มีทั้งหมด 5 ห้อง และ TYPE B มีทั้งหมด 6 ห้อง
แปลนอาคาร A : ชั้น 11, 16, 21, 26, 31 อัตราส่วนห้องพัก อยู่ที่ 15 ห้อง เท่ากัน ตำแหน่งห้องพักเหมือนกัน แต่จะเพิ่มในส่วนของ Pocket Garden มาบริเวณกลางอาคาร
แปลนอาคาร A : ชั้น 32 ห้องพักด้านหน้าถูกร่นหายไป 1 ห้อง อัตราห้องพักอยู่ที่ 14 ห้อง
แปลนอาคาร A : ชั้น 33 มีห้องพักอยู่ที่ 9 ห้อง
แปลนอาคาร A : ชั้น 34 มีห้องพักน้อยที่สุด อยู่ที่ 6 ห้อง

แปลนชั้น 1 อาคาร B, C ที่ชั้น 1-5 จะเชื่อมกัน และไปแยกทาวเวอร์ออกเป็น B และ C ที่ชั้น 6 – 34 มีสระว่ายน้ำแยก 2 สระ ที่อาคาร B จะมีพื้นที่นั่งเล่น มีร้านค้า 1 ร้าน มีห้องประชุม มีห้อง Mail Box ติดกับอาคาร C เป็นห้อง Social Club และ ห้องฟิตเนส ตรงอาคาร C มี Co-working space พื้นที่นั่งเล่น ห้องน้ำแยกชายหญิง
แปลนอาคาร B,C : ชั้น 2-5 ฝั่งอาคาร C เป็นที่จอดรถ ตรงส่วนอาคาร B จะเริ่มมีห้องพักแล้ว เป็นห้องพักแบบ 1 ห้องนอน มีทั้งหมด 11 ห้อง
แปลนอาคาร B,C : ชั้น 6 เป็นส่วนของห้องพัก และ สวนพักผ่อน

แปลนอาคาร B ชั้น 7 เป็นชั้นพักอาศัยทั้งหมด 19 ยูนิต

แปลนอาคาร B ชั้น 8,10-15,17-21,23-25,27-32 จะเหมือนกัน มี 19 ยูนิต

แปลนอาคาร B ชั้น 9,16,22,26 จะเหมือนกัน มี 19 ยูนิต ตรงที่ติดกับโถงลิฟท์จะมีระเบียงสวนยื่นออกไป

แปลนอาคาร B ชั้น 33 มี 9 ยูนิต ตรงที่ติดกับโถงลิฟท์จะมีระเบียงสวนยื่นออกไป
แปลนอาคาร B ชั้น 34 มี 9 ยูนิต
แปลนอาคาร C ชั้น 7-10,12-16,18-20,22-27,29-30 โดยห้องพักชั้นที่บอกไป หันห้องทางทิศตะวันออก และ ทิศตะวันตก อัตรส่วนห้องพัก : 21 ห้อง | ชั้น โดยแบ่งเป็นห้องพัก TYPE A 14 ห้อง, TYPE B (W) 4 ห้อง ส่วน TYPE C 1 ห้อง จะอยู่หัวมุมอาคาร ได้เป็นสองวิว คือทางฝั่งทิศตะวันตก และ ทิศใต้ และ TYPE D 2 ห้อง ตำแหน่งอยู่มุมอาคารเช่นเดียวกัน
แปลนอาคาร C ชั้น 11,17,21,28 : อัตราส่วนห้องพัก อยู่ที่ 21 ห้อง เท่ากัน ตำแหน่งห้องพักเหมือนกัน แต่จะเพิ่มในส่วนของ Pocket Garden มาบริเวณกลางอาคาร ตรงข้ามกับโถงลิฟท์โดยสาร
แปลนอาคาร C ชั้น 31 : อัตราส่วนห้องพัก อยู่ที่ 18 ห้อง | ชั้น ร่นระยะห้องพักลงมาตามกฏหมาย โดยห้องพัก TYPE C จะถูกตัดออกไป แต่ฝั่ง TYPE D ยังคงมีอยู่เหมือนเดิม
แปลนอาคาร C ชั้น 32-33 : อัตราส่วนห้องพัก อยู่ที่ 9 ห้อง | ชั้น เป็นชั้นที่มีห้องพักน้อยที่สุด ส่วนตัวที่สุด เดินออกจากลิฟท์มา เลี้ยวซ้ายเป็นส่วนของห้องพักเลย โดยจะเป็นห้องพักแบบ TYPE A : 7 ห้อง และ แบบ TYPE D ตำแหน่งหัวมุมเช่นเคย อีก 2 ห้อง
โครงการ
จะเร่ิมจากด้านหน้าโครงการเข้ามา จะเจออาคาร A ก่อน มีสระว่ายน้ำด้านหลังอาคาร A ถัดเข้ามาอีกเป็นอาคาร B และ C มีสระว่ายน้ำแยกอีก 2 สระ ส่วนด้านหลังมี Bike Lane สนามฟุตซอล และ Skte Pakr มีประตูเดินเข้าออกด้านหลังโครงการ
เริ่มจากด้านหน้าทางเข้าออกโครงการ ตอนนี้ยังอยู่ในช่วงเก็บงานอยู่นะครับ
ด้านหน้าจะมีศาลตั้งอยู่
เงยหน้ามองจะเห็นอาคาร A สูง 34 ชั้น
จากภาพมุมสูงอาคาร A มองจากฝั่งด้านหน้าเข้าไป

อาคาร A มองจากฝั่งด้านหลัง
ถัดเข้ามาจะเป็นเลนแยกซ้ายขวา
ตรงกลางจะเป็นป้อมยาม จะมีไม้กระดกที่ทางเข้าออกครับ
ผ่านเข้ามาซ้ายมือจะเป็นทางเข้าที่จอดรถอาคาร A ถ้าตรงไปอีกจะไปอาคาร B , C
เรามาดูส่วนของอาคาร A กันก่อนนะครับ
เดินเข้ามาจะเจอที่จอดรถซ้ายขวา
ตรงเข้ามาสุดจะเจอทางเลี้ยวขวา เพื่อไปเข้าที่จอดรถในอาคาร
วนออกมาจะเป็นถนนด้านหลังอาคาร A
วนมาด้านข้างอาคาร A ซ้ายมือจะเจอทางขึ้นที่จอดรถในอาคาร
ตรงขึ้นไปได้เลยครับ ทางรถเป็นแบบวิ่งสวนกันได้
วนขึ้นตามทางไปทางขวา
วนมาจะเริ่มเจอที่จอดแบ่งซ้าย ขวา วนจอดได้ถึงชั้น 5
ที่จอดรถแต่ละชั้น จะมีทางเดินเชื่อมเข้าโถงลิฟท์ได้เลย

เดินมาดูด้านหน้าอาคาร A กันต่อ
เดินขึ้นมาขวามือจะเป็นทางเข้า Lobby อาคาร A
เดินผ่านมาอีก ขวามือจะเป็นร้านค้า Max Valu
ถัดเข้ามาอีก ตรงหน้าจะเป็นอาคารที่เป็นสำนักงานขายเดิม ซึ่งจะเปลี่ยนเป็น Shop สูง 2 ชั้นแบ่งเป็น 4 ยูนิต ตอนนี้ยังไม่รู้ว่าจะเป็นร้านอะไรครับ
ด้านในแบ่งเป็นอีก 2 Shop
มองกลับไปจะเห็นแบบนี้ ตรงส่วนร้านค้าคนภายนอกสามารถเข้ามาใช้บริการได้ครับ
ด้านหน้าทางเข้า Lobby A มีประตูกระจกบานเปิด 2 บาน
ภายใน Lobby A ตกแต่งมาแบบเรียบๆ ตอนนี้สำนักงานขายย้ายเข้ามาตั้งไว้ในนี้ชั่วคราวครับ
มองออกไปด้านนอก จะเป็นผนังกระจกสูงถึงฝ้า
มองไปฝั่งด้านข้าง
ฝั่งด้านในขวามือจะเป็นห้อง Mail Box ถัดมาอีกเป็นทางเดินขึ้นไปห้องฟิตเนส ฝั่งซ้ายเป็นทางเดินเข้าโถงลิฟท์ และทางเดินไปห้องเครื่องซักผ้า
ทางเดินไปห้องเครื่องซักผ้าหยอดเหรียญ
ทางเดินไปโถงลิฟท์
ภายในโถงลิฟท์ มีลิฟท์โดยสาร 2 ตัว
ด้านหน้าลิฟท์โดยสาร
ทางเดินไปยังห้องฟิตเนส
เดินขึ้นมาที่ชั้น 2 ซ้ายมือเป็นห้องนิติบุคคล ขวามือเป็นทางเดินไปห้องฟิตเนส
หน้าห้องนิติบุคคล ถ้าตรงไปอีกจะเจอทางขึ้นที่จอดรถ
เดินเข้าไปดูห้องฟิตเนสต่อ
เดินเข้ามาขวามือเป็นห้องฟิตเนส และห้องน้ำ ซ้ายมือเป็นทางเดินออกไปยังสระว่ายน้ำได้
เดินเข้ามาขวามือเป็นห้องน้ำแยกชายหญิง ซ้ายมือเป็นห้องฟิตเนส
ภายในห้องน้ำชายเดินเข้ามาจะเจอเคาน์เตอร์อ่างล้างหน้า
มีห้องน้ำ 2 ห้อง และห้องอาบน้ำ 1 ห้อง
ภายในห้องน้ำ
ภายในห้องอาบน้ำ
อีกฝั่งเป็นตู้ Locker
ออกจากห้องน้ำมาอีกฝั่งจะเป็นห้องฟิตเนส
ภายในห้องฟิตเนส
มีดัมเบล 1 ชุด
เครื่องบริหารช่วงแขน
เครื่อางบริหารกล้ามเนื้อ
ม้านั่งออกกำลังกาย
ลู่วิ่ง 3 เครื่อง
เครื่องเดิน แบบล้อหลัง และเครื่องปั่นจักรยาน
วิวจากห้องฟิตเนสมองออกไปที่สระว่ายน้ำชั้นล่าง
เดินออกไปดูสระว่ายน้ำกันต่อครับ
เปิดออกมาจะเจอระเบียงหญ้าเทียมโล่งๆ มีราวกันตกเป็นกระจกมองออกไปเห็นสระว่ายน้ำชั้นล่าง
มองไปทางขวา
มองไปอีกฝั่งจะเป็นบันไดทางลง
บันไดเดินขึ้นลงชั้น 1
เดินลงมาจะมีทางเดินเชื่อมไปยังสระว่ายน้ำกลางแจ้ง
ภาพมุมสูง จะเห็นสระว่ายน้ำที่อยู่หลังอาคาร A

สระว่ายน้ำจะเป็นทรงฟรีฟอร์มระบบเกลือ
ซ้ายมือเป็นจุดล้างตัว ขวามือเป็นบันไดเดินขึ้นสระว่ายน้ำ

เดินขึ้นมาจะเจอสระว่ายน้ำแบบฟรีฟอร์ม แบ่งสระเด็ก
มองจากปลายสระไปอีกฝั่ง
มีเตียงนอนริมสระไว้ให้
มี Pavilion ไว้ให้นั่งเล่นได้
เดินมาปลายสระอีกฝั่ง
จากปลายสระมองไปที่อาคาร A
เงยหน้าจะเห็นอาคาร A พอดี
จากปลายสระว่ายน้ำฝั่งนี้ จะมีทางเดินเชื่อมลงไป Pavilion ริมสระ และทางเดินไปอีกส่วน
เดินลงมาจะเจอทางเดินเชื่อมไปยังสระว่ายน้ำตรงอาคาร B
เดินมาริมสองฝั่งจะเป็นบ่อน้ำ
และจะเจอสระว่ายน้ำตรงอาคาร B ครับ
เรากลับมาตรงถนนหลัก ถัดจากทางเข้าที่จอดรถอาคาร A
ผ่านเข้าจะเจอร้านอีกร้านที่ชั้น 1
ติดกับร้านจะมีพื้นที่สำหรับวางโต๊ะกลางแจ้ง นั่งชมวิวสระว่ายน้ำได้เลย
มองเข้าไปที่ตัวร้านค้าจะเห็นแบบนี้
ออกมาตรงถนนหลักเดินเข้าไปด้านในกันต่อ ซ้ายมือเป็นสระว่ายน้ำตรงอาคาร A
ริมถนนจะทำเป็นเนินสูงและปลูกต้นไม้ ช่วยบังสายตาเวลาไว้น้ำได้
โค้งไปตามทางครับ
ช่วงโค้งตรงนี้จะเห็นสระว่ายน้ำตรงอาคาร B ครับ
เดินเข้าไปด้านในกันต่อครับ
เงยหน้ามองด้านบนจะเป็นอาคาร B
จากภาพมุมสูงอาคาร B และ C อาคาร B สูง 34 ชั้น และอาคาร C สูง 33 ชั้น มีส่วนของชั้นจอดรถที่เชื่อมกันจอดได้ชั้น 1-5
จากภาพมุมสูงอาคาร B และ C มองจากอีกฝั่ง เส้นสีแดงคือแนวรั้วโครงการ
ภาพมุมสูงอาคาร B และ C รูปทรงอาคารจะคล้ายๆอาคาร A
มองจากอีกมุม

ที่อาคาร B และ C จะมียูนิตพักอาศัยที่ชั้น 2-5 ได้วิวสระว่ายนำ้
บางชั้นส่วนที่เชื่อมกับโถงลิทฟ์ จะมีระเบียงสวนยื่นออกมา
ถัดมาอีกซ้ายมือจะมีที่จอดรถใต้อาคาร B
จากนั้นซ้ายมือจะเป็นทางเดินเข้าอาคาร B และทางลงที่จอดรถในอาคาร B, C
ประตูทางเดินเข้าอาคาร B
กลับออกมาด้านอนกต่อ เลี้ยวมาด้านข้างต่อ
ฝั่งนี้จะเป็นพื้นที่ด้านข้างโครงการ จะมีที่จอดรถใต้อาคารตลอดแนว
ตรงมาอีกจะเจอทางเข้าอาคาร C ซ้ายมือ
ถัดมาอีกจะเป็นทางเข้าที่จอดรถในอาคาร B, C ขึ้นทางเดียวกันครับ ในสุดจะเป็นทางตันนะครับ เป็นทางเดินเชื่อมเข้าสวนด้านหลัง
เข้าไปดูที่จอดรถอาคาร B, C กันต่อ
วนขึ้นไปตามลูกศรครับ
และจะเจอที่จอดรถขวามือ
ตรงมาจะแบ่งซ้ายขวา
และจะเจอโถงลิฟท์ของอาคาร C
และทางเชื่อมไปยังอาคาร B
ลูกบ้านอาคาร B ก็มาจอดใกล้ๆโถงลิฟท์หน่อยครับ
และจะเจอโถงลิฟท์ของอาคาร B
ภายในโถงลิฟท์ มีลิฟท์โดยสาร 3 ตัว
เรามาดูส่วนของอาคาร B กันต่อครับ
เดินเข้ามาซ้ายมือจะเจอ Mail Box ขวามือเป็นห้องลิฟท์ขนของ
ภายในส่วนของ Mail Box
ออกจาก Mail Box เดินออกมาด้านนอก
ถัดมาจะเจอพื้นที่เปิดโล่งแบบนี้
ฝั่งนี้เป็นโถงลิฟท์ มีประตูกระจกบานเปิด 2 บาน
ภายในโถงลิฟท์ มีลิฟท์โดยสาร 3 ตัว
ฝั่งตรงข้ามกับโถงลิฟท์มองออกไป จะเป็นส่วนพื้นที่นั่งเล่น
ด้านในเป็นร้านค้า 1 ร้าน
ส่วนนี้เป็นพื้นที่นั่งเล่น
ด้านหน้าจะเป็นประตูบานพับ
ด้านในเป็นพื้นที่นั่งพักผ่อน มีพัดลมเพดานให้ ส่วนนี้ไม่มีแอร์
วิวมองออกไปที่สระว่ายน้ำครับ
สระว่ายน้ำตรงนี้จะอยู่ระหว่างอาคาร B และ C
จากภาพมุมสูงจะเห็นสระว่ายน้ำ 2 สระที่อยู่ระหว่างอาคาร B และ C ออกแบบมาได้สวยน่าใช้งานเลยครับ

มองจากนอกรั้วเข้ามาจะเห็นแบบนี้ มีพื้นที่บุคคลอื่นกั้นระหว่าง 2 สระ ถ้าตรงนี้เชื่อมกันได้จะดีมากเลยครับ อารมณ์ประมาณสวนน้ำ
มองไปทางซ้าย จะเห็นสระว่ายน้ำตรงข้างอาคาร B
เดินตรงมาจะมีชุดโต๊ะเก้าอี้วางไว้ให้นั่ง
ตรงมุมอาคาร B มีห้องประชุม
ด้านในห้องมีโต๊ะและเก้าอี้วางไว้ มานั่งทำงานกันได้
ด้านในสุดแบ่งเป็นห้องประชุมส่วนตัว
กลับออกมาด้านนอก ไปดูสระว่ายน้ำต่อ
เดินมาจะเจอสระว่ายน้ำด้านข้างอาคาร B
เดินเข้ามาจะเจอบันไดขึ้นสระว่ายน้ำ
ปลายสระฝั่งนี้มี Pavilion
มองไปฝั่งตรงข้ามวางเตียงนอนริมสระไว้

มองไปปลายสระอีกฝั่ง สระเป็นทรงฟรีฟอร์ม สระนี้จะมีความยาวประมาณ 80 ม.
รอบๆสระจะปลูกต้นไม้ รอให้โตอีกหน่อยจะร่มรื่นดี
ริมสระมีทางเดิน
บริเวณทางเดินริมสระ เดินเชื่อมไปสระว่ายน้ำอาคาร A ได้
จากปลายสระฝั่งนี้มองกลับไป
เดินกลับเข้ามาดูสระว่ายน้ำอีกสระครับ ที่อยู่ระหว่างอาคาร B, C
เงยหน้ามองด้านบนจะเห็นอาคาร B (ขวามือ) และอาคาร C (ซ้ายมือ)
มาดูอีกสระที่อยู่หน้าอาคาร C
ซ้ายมือมีทางเดินเชื่อมไปยัง Pavilion ริมสระ
เดินเข้ามาจะเจอ Pavilion ออกแบบให้เป็นหลังคาเจาะช่องตรงกลางให้ต้นไม้แผ่กิ่งก้าน
มองกลับไปจะเห็นแบบนี้
เดินออกมาด้านนอก จะเห็นบันไดขึ้นไปสระว่ายน้ำ
สระว่ายน้ำทรงฟรีฟอร์ม สระนี้ใช้กระเบื้องสีเข้ม

มองจากอีกมุม
มีต้นไม้ตกแต่งสร้างความร่มรื่น
สระเชื่อมยาวเข้าไปอีกหน่อย
มีเตียงนอนริมสระ
ปลายสุดเป็นสระเด็ก ด้านบนที่เห็นคือส่วนของ Bike Lane
ตรงส่วนของสระเด็กมองขึ้นไปจะเห็นช่องกลมๆ ให้แสงส่องลงมาได้
มองกลับไปจะเห็นแบบนี้
จากสระว่ายน้ำมองเข้าไปที่อาคาร C ที่ชั้นล่างจะมีห้องฟิตเนส และ Social Club
เดินเข้ามาที่อาคาร C ส่วนนี้ฝั่งซ้ายเป็นพื้นที่นั่งเล่นเหมือนอาคาร B ขวามือเป็นห้องฟิตเนส
พื้นที่ส่วนนั่งเล่นอาคาร ฉ
ฝั่งนี้เป็นห้องฟิตเนส
ภายในห้องฟิตเนส
ฝั่งนี้มีทางเดินเชื่อมออกไปห้องนำ้ได้
มีเครื่องปั่นจักรยาน
เครื่องเดินล้อหลัง

เครื่องบริหารกล้ามเนื้อต่างๆ
ลู่วิ่ง
เครื่องบริหารช่วงไหล่ แขน อก
ม้านั่งออกกำลังกาย
ดัมเบล 1 ชุด
เครื่องยกน้ำหนัก
มองกลับไปประตูทางเข้า
ผนังฝั่งด้านนอกจะเป็นบานกระจกเปิดปิดรับลมด้านนอกได้ วิวมองออกไปที่สระว่ายน้ำ
ฝั่งด้านในสุดเป็นห้องโยคะ
ภายในจะเป็นห้องโล่งๆ
ติดกับห้องฟิตเนสจะเป็น Socila Club
ภายในห้อง Social Club มีโต๊ะพลู และโต๊ะโกล์
ภายในห้องพื้นที่กว้างพอสมควร
วิวมองออกไปที่สระว่ายน้ำ
ออกมาด้านนอกมองไปจะเห็นแบบนี้

เดินมาทางเข้าอาคาร C ต่อ ขวามือเป็นพื้นที่นั่งเล่น
ทางเข้าอาคาร C ตรงหน้าจะเห็นทางเข้าออกอาคาร C จากถนนในโครงการ
ฝั่งนี้จะเป็น Co-Working Space
เดินเข้ามาจะเจอส่วน Library มีชั้ววางของ และโต๊ะวางไว้ตามมุม
มีโต๊ะใหญ่มานั่งทำงานเป็นกลุ่มได้
ฝั่งด้านนอกเป็นกระจกมองวิวสระได้
ส่วนฝั่งด้านในจะเป็นห้องประชุม มีประตูกั้นแยกส่วน
ภายในห้องประประชุม จะมีชุดโต๊ะและเก้าอี้วางไว้ 2 ชุด ตรงกลางมีประตูกั้นแยกส่วนเป็น 2 ห้องได้
มองไปอีกฝั่ง
ติดกันมีห้องประชุมเล็กอีกห้อง
ออกจาก Co-working Space ฝั่งตรงข้ามจะเป็นทางเดินไปยัง โถงลิฟท์ Mail Box และห้องนำ้
เดินเข้ามาซ้ายมือเป็นโถงลิฟท์ของอาคาร C
ภายในโถงลิฟท์ มีลิฟท์โดยสาร 3 ตัว
ออกจากโถงลิฟท์จะมีทางเดินเชื่อมไปอีก ขวามือเป็นส่วนพื้นที่นั่งเล่น
เดินมาจะเจอห้อง Mail Box
ภายในห้อง Mail Box
ถัดมาอีกซ้ายมือจะเจอห้องน้ำแยกชายหญิง ขวามือเป็นห้องฟิตเนส
ทางเข้าห้องน้ำ
ภายในห้องน้ำชาย
มีห้องน้ำและห้องอาบน้ำ
ภายในห้องน้ำ
ภายในห้องอาบน้ำ
ด้านในสุดเป็นห้องซาวน่า
ออกจากห้องน้ำมาอีกฝั่งจะเป็นห้องฟิตเนส และทางเดินเชื่อมออกไปด้านนอก
มาดูส่วนกลางด้านหลังโครงการอีกจุดอยู่ติดกับอาคาร C มีทั้ง Bike Lane, Futsal, Skate Park ด้านหลังมีประตูคนเดินเข้าออก
ซูมเข้ามาใกล้ๆ
กลับออกมาตรงริมสระว่ายน้ำหน้าอาคาร C
จากสระว่ายน้ำจะมีทางเดินเชื่อมไปยังสวน และ Bike Lane
ทางเดินเชื่อม
เดินมาจะเจอจักรยานจอดไว้ให้ใช้งานได้เลย
ถัดมาจะเจอ Bike Lane
มีทางลาดเอียง
Bike Lane จะเป็นทางยกระดับ ด้านล่างจะเป็นสวนหย่อม
มองลงมาตรงนี้เห็นสนามเด็กเล่น
พื้นบางส่วนจะเป็นไม้แบบนี้
มองไปที่อาคาร C
จะเห็นช่องที่อยู่ตรงสระเด็ก หน้าอาคาร C
มองออกไปที่สระว่ายน้ำ

รอบๆจะมีต้นไม้ใหญ่ตลอดแนว
ทางจะโค้งเอียงสูงต่ำ ปั่นจักรยานในนี้จึงสามารถออกกำลังกายได้
มองลงมาตรงนี้จะเห็นสนามฟุตซอล
ช่วงโค้งออกแบบมารองรับองศาการเลี้ยว
ตรงนี้มองออกมานอกรั้วด้านหลังโครงการจะมีทางเดินเข้าออกด้านหลัง
มองไปทางขวา
มองไปทางซ้าย
วนลงมาด้านล่าง
ฝั่งนี้เป็นสนามฟุตซอล
มองไปด้านหลังสนามฟุตซอล มีเครื่องออกกำลังกายกลางแจ้ง
ติดกับประตูทางเดินเข้าออกด้านหลังโครงการ มีลานสเก็ตบอร์ด
ลานสเก็ตบอร์ด
มองกลับไปด้านใน

ด้านล่างของ Bike Lane จะเป็นทางเดินและสวนหย่อม
ตรงนี้เป็นสนามเด็กเล่น
เดินเชื่อมออกไปจะเจอที่จอดจักรยานพอดี

เดินออกมาจะเห็นตัวอาคาร C และ B
เดินมาดูประตูคนเดินเข้าออกด้านหลังโครงการต่อครับ ประตูส่วนนี้จะใช้เดินไปยัง BTS บางนาได้ในระยะทางประมาณ 300 ม.
เดินออกมา ขวามือเป็นป้อมยาม
เดินออกมาจะเจอถนนสาธารณะ ซึ่งวิ่งได้เฉพาะรถมอเตอร์ไซค์เท่านั้นครับ
มองกลับไปที่ประตูทางเข้าออก มีป้ายโครงการติดไว้ชัดเจน
มองไปทางซ้าย
มองไปอีกฝั่ง จะเห็นทางเดินริมน้ำ ส่วนนี้ทางโครงการจ่ายเงินให้ กทม. เป็นคนก่อสร้างครับ
แนวรั้วโครงการด้านหลัง และด้านข้าง
เดินมาตามทางเดินริมน้ำต่อ สองฝั่งคลองจะเป็นบ้านพักอาศัย มีต้นไม้ปกคลุมหนาแน่น
ริมทางเดินจะมีราวกันตกแบบนี้ไปจนถึงโครงการ ซ้ายมือเป็นพื้นที่ของวัดบางนาใน
ตรงมาสุดทางจะไปเชื่อมกับสะพานข้ามคลองตรงหน้า ซึ่งจะเป็นถนนสุขุมวิทพอดีครับ
จากนั้นเดินต่อไปอีกหน่อยก็จะถึงทางขึ้นสถานี BTS บางนา ระยะทางประมาณ 300 ม.
วิวฝั่งทิศเหนือหรือด้านหน้าโครงการ จะเห็นอาคาร และบ้านพักอาศัย
วิวทิศตะวันตกด้านข้างโครงการมองออกไปทางแม่น้ำเจ้าพระยา

ฝั่งทิศใต้ด้านหลังโครงการมองออกไปทางสำโรง สมุทรปราการ
วิวทิศตะวันออกมองไปฝั่งโครงการ The Coast และไบเทคบางนา

วิวทิศตะวันออกเฉียงเหนือมองมาทางแยกบางนา
Units Type
โครงการนี้มีห้องให้เลือก 4 แบบ
TYPE A1 : Studio 26.2 ตร.ม.
TYPE B1 : 1 Bedroom ขนาด 32.4 ตร.ม.
TYPE B2 : 1 Bedroom ขนาด 32.4 ตร.ม. (แบบครัวแยก)
TYPE C1 : 2 Bedroom 1 Bathroom ขนาด 46.2 ตร.ม.
TYPE D1 : 2 Bedroom 2 Bathroom ขนาด 53.00 ตร.ม.
ห้องตัวอย่าง
ห้องตัวอย่างที่จะพามาชมวันนี้มี 2 แบบ
แบบแรกที่จะพามาชมเป็น Studio ขนาด 26.2 ตร.ม. เดินเข้าห้องมาเจอส่วนห้องนั่งเล่นก่อน ถัดไปเป็นส่วนรับประทานอาหาร ด้านในสุดเป็นส่วนของห้องนอน ฝั่งซ้ายเป็นส่วนของห้องครัว ได้เป็นครัวปิดมีประตูบานเลื่อนให้ ห้องน้ำอยู่ติดห้องครัว ติดครัวอีกฝั่งเป็นระเบียง
เริ่มจากประตูทางเข้าเป็นบานลายไม้
ได้ Digital Door Lock ของ Samsung มือจับประตูเป็นแบบคันโยก
เปิดประตูเข้ามาจะเจอส่วนห้องนั่งเล่นก่อน ถัดไปเป็นส่วนรับประทานอาหาร ด้านในสุดเป็นส่วนของห้องนอน ขวามือเป็นทางเดินเข้าห้องครัว พื้นห้องนั่งเล่นเป็นลามิเนตหนา 8 มม. ฝ้าสูง 2.5 ม.
เดินเข้ามาแล้วมองกลับไปที่ประตูทางเข้าจะเห็นแบบนี้ แอร์ห้องนี้จะได้ 1 ตัว ติดตรงเหนือประตูทางเข้า
ฟังก์ชั่นการใช้งานจะวางไว้ฝั่งนี้
ได้โซฟาขนาด 2 ที่นั่ง พร้อมโต๊ะกลาง
ติดกันวางโต๊ะรับประทานอาหารขนาด 2 ที่นั่ง
ระยะดูทีวีประมาณ 2.5 ม. ได้ชั้นวางทีวีตามนี้เลย
ชั้นวางทีวีมีลิ้นชัก 2 ช่อง
ถัดเข้าไปอีกเป็นส่วนห้องนอน
ได้เตียงนอนขนาด 5 ฟุต
ใต้เตียงมีลิ้นชักไว้ให้เก็บของ
ข้างเตียงด้านในเหลือพื้นที่ประมาณ 60 ซม.
ปลายเตียงเหลือพื้นที่ประมาณ 57 ซม.
ปลายเตียงได้ตู้เสื้อผ้า และโต๊ะเครื่องแป้ง
โต๊ะเครื่องแป้งมีลิ้นชัก พร้อมเก้าอี้สตูล
ตู้เสื้อผ้าที่ได้ขนาด 4 บาน แบ่งเป็นบานเปิด 2 บาน และแบบบานเลื่อน 2 บาน
ด้านในมีหน้าต่างบานเลื่อน 2 บาน ที่เหลือเป็นบาน Fixed
วิวจากห้องตัวอย่างอาคาร A มองเข้าไปด้านหลังโครงการ
มองลงมาจะเห็นสระว่ายน้ำที่ชั้นล่าง
กลับเข้ามาด้านในห้อง
จากห้องนอน ปลายเตียงจะเห็นประตูบานเลื่อน 1 บาน เปิดไปจะเจอห้องครัว
ภายในห้องครัวจะได้ชุดครัว ยกเว้นเครื่องใช้ไฟฟ้า
ตู้ด้านบนเป็นบานเปิด 1 บาน
ด้านล่างเป็นบานเปิด 2 บาน และลิ้นชัก 1 ช่อง
อ่างล้างจานได้แบบหลุมเดียวของ Mex
ได้เตาไฟฟ้าหน้าเซรามิกแบบ 2 หัว พร้อมเครื่องดูดควันของ Mex ผนังด้านในกรุกระเบื้องมาให้ ทำความสะอาดง่าย
ฝั่งด้านนอกจะเป็นระเบียงห้อง มีประตูบานเลื่อน 3 ตอน
เปิดออกมาจะเจอระเบียงขนาด 1.59 x 1.09 ม.
ด้านบนแขวนคอมเพลสเซอร์แอร์ 1 ตัว
กลับเข้ามาด้านใน ฝั่งตรงข้ามจะเป็นห้องน้ำ
ภายในห้องน้ำ แบ่งส่วนเปียกส่วนแห้ง
ได้อ่างล้างหน้าทรงสี่เหลี่ยมของ American Standard
มีตู้ใต้อ่างล้างหน้าเป็นบานเปิด 1 บาน
ข้างอ่างล้างหน้ามีช่องแบ่ง 3 ชั้นให้วางอุปกรณ์ต่างๆ
ฝั่งนี้วางโถสุขภัณฑ์ของ American Standard
ฝั่งด้านในเป็นพื้นที่ส่วนเปียก ได้ฉากกั้นอาบน้ำแบบบานเปิด
ด้านในติดฝักบัวมาให้
หน้าตาฝักบัวที่ได้ทรงกลมของ American Standard
พื้นที่ส่วนเปียกขนาด 1.43 x 0.90 ม.
อีกแบบที่จะพามาชมเป็น 1 Bedroom ขนาด 32.4 ตร.ม. เดินเข้าห้องมาจะเจอส่วนห้องนั่งเล่นก่อน ฝั่งซ้ายเป็นห้องน้ำ ถัดเข้าไปซ้ายมือเป็นห้องนอน มีพื้นที่วางโต๊ะ ตู้ เตียงได้ครบ ส่วนอีกฝั่งเป็นห้องครัวได้เป็นครัวปิด มีฉากกั้นบานเลื่อนให้ ติดกับครัวเป็นระเบียงหลังห้อง
เดินเข้าห้องมาจะเจอส่วนห้องนั่งเล่นก่อนเลย ด้านในเป็นห้องนอน และห้องครัว ในสุดห้องครัวเป็นระเบียง ส่วนห้องน้ำอยู่ทางซ้ายมือครับ พื้นห้องนั่งเล่นและห้องนอนเป็นลามิเนตหนา 8 มม. ส่วนห้องครัวเป็นกระเบื้อง ฝ้าสูง 2.5 ม.
เดินเข้ามาแล้วมองกลับไปที่ประตูทางเข้าจะเห็นแบบนี้ แอร์ตรงส่วนห้องนั่งเล่นจะติดเหนือประตูห้อง 1 ตัว ซ้ายมือได้ตู้เก็บของตามนี้เลย

ตู้เก็บของเป็นบานเปิด 6 บาน
โซฟาได้ขนาด 2 ที่นั่ง พร้อมโต๊ะกลาง
ระยะดูทีวีประมาณ 3.48 ม. ได้ชั้นวางทีวีเหมือนห้องแรก ซ้ายมือเป็นห้องน้ำ
ภายในห้องน้ำแบ่งส่วนเปียกส่วนแห้ง
สุขภัณฑ์ที่ได้ของ American Standard
ด้านในเป็นพื้นที่ส่วนเปียก ได้ฉากกั้นอาบน้ำแบบบานเปิด
ด้านในติดฝักบัวมาให้ของ American Standard ขวามือมีชั้นสำหรับวางอุปกรณ์อาบน้ำ
พื้นที่ส่วนเปียกที่ยืนได้ขนาด 1.03 x 0.87 ม.
ถัดจากห้องนั่งเล่น ซ้ายมือเป็นห้องนอน ขวามือเป็นห้องครัว
ภายในห้องนอนมีพื้นที่มาให้พอสมควร
ได้เตียงนอนขนาด 5 ฟุต ปลายเตียงเหลือพื้นที่ประมาณ 48 ซม.
พื้นที่ข้างเตียงเหลือประมาณ 1.5 ม.
ข้างเตียงริมหน้าต่างเหลือพื้นที่ประมาณ 54 ซม.
ระยะดูทีวีปลายเตียงประมาณ 2.48 ม. แอร์ติดปลายเตียง 1 ตัว
ฝั่งด้านในเป็นหน้าต่างบานเลื่อน 2 บาน
วิวจากห้องตัวอย่างอาคาร A
ฝั่งด้านในได้ตู้เสื้อผ้า
ตู้เสื้อผ้าที่ได้เป็นบานเลื่อน 2 บาน ขวามือเป็นโต๊ะเครื่องแป้ง
ติดกับห้องนอนเป็นห้องครัว ได้เป็นครัวปิด มีฉากกั้นบานเลื่อนเปิดปิดแยกส่วนได้ ชุดเคาน์เตอร์ครัวได้ตามนี้เลย
ตู้ด้านบนเป็นบานเปิด 1 บาน
ด้านล่างเป็นบานเปิด 2 บาน และลิ้นชัก 1 ช่อง
ได้อ่างล้างจานแบบหลุมเดียว และเตาไฟฟ้าพร้อมเครื่องดูดควันของ Mex
อีกฝั่งวางโต๊ะรับประทานอาหารขนาด 2 ที่นั่ง ได้แบบนี้เลย
ถัดไปจะเป็นระเบียงหลังห้อง มีประตูบานเลื่อน 2 บาน
เปิดออกมาจะเจอระเบียงขนาด 2.25 x 1.09 ม.
ฝั่งด้านข้างแขวนคอมเพลสเซอร์แอร์ 2 ตัว
มองกลับเข้ามาด้านในครัวจะเห็นแบบนี้ครับ
ราคา (ธ.ค.60)
ค่าส่วนกลาง 45 บาท/ตร.ม. : ค่ากองทุน 500 บาท/ตร.ม
เงินจอง 10,000 บาท และโอนกรรมสิทธิ์ได้เลย
***โปรโมชั่นเมื่อจองและทำสัญญาภายในสิ้นเดือนธันวาคม 2560 อยู่ฟรี 1 ปี /ฟรีค่าใช้ ณ จ่ายวันโอน /ฟรีวอชเชอร์ Home Pro 30,000 บาท*
***รายละเอียดอื่นๆโปรดสอบถามทางโครงการครับ
สรุป
ทำเลที่ตั้งโครงการ – Ideo O2 ตั้งอยู่ในย่านโซนบางนา ห่างจากแยกบางนามาประมาณ 250 ม. ย่านนี้ส่วนใหญ่เป็นบ้านพักอาศัย มีตึกแถวอาคารพาณิชย์ตามสองฝั่งทางถนนสรรพาวุธ ย่านนี้มีความอุดมสมบูรณ์ในตัวพอสมควรมีร้านค้า ร้านอาหารให้เลือก มีตลาดสด ส่วนห้างสรรพสินค้าใกล้ๆ ตรงแยกบางนาอนาคตจะมีห้างสรรพสินค้าแห่งใหม่ Bangkok Mall แต่ต้องรออีกสักพักครับ ถัดมาอีกมีเซ็นทรัล และบิ๊กซีบางนา เลยไปอีกมีเมกา และอิเกียบางนา มี Makro ตรงอดมสุข หรือจะขึ้น BTS ไปลงตรงอ่อนนุชมีโลตัส บิ๊กซี เซ็นจูรี่ สาขาอ่อนนุชมีโรงหนังด้วยครับ หรือนั่ง BTS เลยไปเอกมัย ทองหล่อ พร้อมพงษ์ อโศก สยามเลยก็ง่ายดีครับ
การเดินทางด้วยรถยนต์ส่วนตัว – การเดินทางค่อนข้างสะดวกถ้าจะเข้าเมือง หลักๆก็ใช้เส้นสุขุมวิทวิ่งมุ่งหน้าเข้าเมืองอย่างเดียวไปเอกมัย ทองหล่อ พร้อมพงษ์ อโศก สยาม หรือเข้าถนนพระรามสี่ตรงแถวแยกพระโขนงว่งเข้าลุมพินี วิทยุ สาทร สีลม สามย่านได้เลย หรือใช้เส้นรางรถไฟเก่าวิ่งไปออกพระรามสี่ได้อีกทาง หรือจะใช้ทางด่วนเฉลิมมหานครจุดขึ้นอยู่ใกล้ๆ ไปได้หลายที่ทั้ง พระรามเก้า ดาวคะนอง พระรามสอง แจ้งวัฒนะ ดินแดง วิภาวดีรังสิต รามอินทรา ส่วนถ้าจะออกนอกเมืองเส้นบางนาตราดวิ่งไปออกฉะเชิงเทรา ชลบุรี พัทยา และที่สำคัญเส้นนี้มีทางด่วนบูรพาวิถีวิ่งไปจนถึงชลบุรีเลย ส่วนเส้นสุขุมวิทวิ่งไปโซนสำโรง สมุทรปราการ บางปู
การเดินทางด้วยรถสาธารณะ – จุดเด่นของโครงการสามารถเดินไป BTS บางนาได้ในระยะ 300 ม. โดยออกประตูด้านหลังโครงการและเดินเรียบคลองไป และที่ตัวโครงการมีบริการรถตู้รับส่งสถานี BTS แต่ต้องรอบดูทางนิติอีกทีว่าจะจัดตั้งอย่างไร หน้าโครงการโบกเรียก Taxi ได้เลย สองแถวก็มีวิ่งผ่านไปมา ส่วนรถเมล์ออกมาเส้นสุขุมวิทเลยมีป้ายรถเมล์ทั้งฝั่งขาเข้าและออกเมืองมีวิ่งผ่านหลายสายวิ่งเกือบทั้งคืน มีรถตู้ให้บริการวิ่งไปจนถึงสนามบินสุวรรณภูมิด้วยครับ ภาพรวมถือว่าสะดวกไม่มีรถส่วนตัวก็อยู่โครงการนี้ได้สบายๆ
การออกแบบโครงการและวัสดุ – โครงการออกแบบมา 3 อาคาร แบ่งเป็นอาคาร A สูง 34 ชั้น, อาคาร B สูง 34 ชั้น, อาคาร C สูง 33 ชั้น พร้อมพื้นที่ส่วนกลางขนาดใหญ่ บนพื้นที่ดินขนาด 14-3-18.69 ไร่ อาคารรูปทรงสี่เหลี่ยม ออกแบบมาเต็มพื้นที่ จอดรถได้ที่ชั้น 1 -5 ชั้นพักอาศัยจะเริ่มที่ชั้น 6 – 34 ส่วนกลางหลักๆอยู่ที่ชั้น 1 , 6
การออกแบบห้องพักอาศัยที่นี่มีให้เลือก 4 แบบหลักๆ คือ Studio ขนาด 26.2 ตร.ม., 1 Bedroom ขนาด 32.4 ตร.ม., 2 Bedroom 1 Bathroom ขนาด 46.2 ตร.ม., 2 Bedroom 2 Bathroom ขนาด 53 ตร.ม. ห้องออกแบบมาดูโปร่งไม่อึดอัด ฝ้าสูง 2.5 ม. โครงการขายแบบ Fully Furnished ของที่ได้จะมี ชุดโซฟาพร้อมโต๊ะกลาง ชั้นวางทีวี ตู้เก็บของ โต๊ะรับประทานอาหาร เตียงนอน 5 ฟุต ตู้เสื้อผ้า โต๊ะเครื่องแป้ง ชุดเคาน์เตอร์ครัว อ่างล้างจาน และ Hob & Hood ของ Mex สุขภัณฑ์ภายในห้องน้ำของ American Standard พร้อมฉากกั้นส่วนเปียก แอร์ได้แบบติดผนังตรงห้องนั่งเล่นและห้องนอน
สิ่งอำนวยความสะดวก – Facility ให้มาขนาดใหญ่หลากหลายและน่าใช้งานดีครับรวมพื้นที่ส่วนกลางเกือบ 10 ไร่ หลักๆจะอยู่ที่ชั้น 1 ทุกอาคารจะมี Lobby แยก ที่อาคาร A มีฟิตเนส สระว่ายน้ำพร้อมพื้นที่นั่งพักผ่อน ที่อาคาร B, C มีสระว่ายน้ำ 2 สระ ส่วนที่ยาวที่สุดกว่า 80 ม. ทรงฟรีฟอร์ม มีต้นไม้รอบๆสร้างความร่มรื่น มีห้องฟิตเนส ห้องโยคะ ห้อง Socila Club ห้องน้ำแยกชายหญิงพร้อมซาวน่า Co-working Space พื้นที่นั่งเล่น ด้านหลังโครงการเป็นพื้นที่สวนขนาดใหญ่มี Bike Lane ลอยฟ้า พร้อมจักรยานให้ใช้งานได้เลย มีสนามเด็กเล่น สนามฟุตซอล และลานสเก็ตบอร์ด มีทั้งต้นไม้ใหญ่ และไม้พุ่ม ออกแบบมาได้สวยเกือบทุกจุดเลยครับ รวมพื้นที่สีเขียวทั้งโครงการกว่า 5,000 ตร.ม. ตรงคอนเซ็ปตามชื่อโครงการคือ O2 ลิฟต์โดยสารอาคาร A มีให้ 2 ตัว ที่อาคาร B, C อาคารละ 3 ตัว มีลิฟท์ขนของอาคารละ 1 ตัว ที่จอดรถจอดได้ที่ชั้น 1-5 ทั้งโครงการคิดเป็น 40% ไม่รวมซ้อนคัน ระบบรักษาความปลอดภัยมีรปภ. มี CCTV และผ่านเข้าออกด้วยระบบ Key Card Access
คะแนน
| ทำเลที่ตั้งโครงการ | 7.5 | ติดถนนสรรพาวุธ ใกล้แยกบางนา มีความอุดมสมบูรณ์ในตัว |
| การเดินทาง ใช้รถ | 8.0 | เชื่อมออกได้หลายเส้นทาง ใกล้จุดขึ้นลงทางด่วน |
| การเดินทาง ไม่ใช้รถ | 7.5 | ห่างจาก BTS บางนา ประมาณ 300 ม. รถเมล์ วินมอเตอร์ไซค์ Taxi |
| ห้องและวัสดุ | 7.5 | ออกแบบมาเป็นสัดส่วน วัสดุที่ใช้อยู่ในระดับมาตรฐาน ขายแบบ Fully Furnished หิ้วกระเป๋าเข้าอยู่ได้เลย |
| สิ่งอำนวยความสะดวก | 8.5 | พื้นที่ส่วนกลางเกือบ 10 ไร่ มีให้หลากหลายน่าใช้งาน และออกแบบมาได้สวยงาม |
| ความคุ้มค่ากับราคา | 7.5 | รูปแบบโครงการออกแบบมาดี โดยเฉพาะพื้นที่ส่วนกลางให้มาเยอะดี ส่วนแปลนห้องก็มาตรฐานทั่วไป เหมาะกับคนที่ชอบส่วนกลางเยอะๆ |
| คะแนนรวมเฉลี่ย | 7.75 | ดี |
สอบถามรายละเอียดเพิ่มเติมได้ที่
Tel : 02-316-2222
Website : https://www.ananda.co.th/condo/projects/ideo-O2/
หากเพื่อนๆเห็นว่ารีวิวนี้มีประโยชน์ ช่วยกด Like เพื่อเป็นกำลังใจให้ทีมงาน ขอบคุณครับ
และมีความคิดเห็นหรือข้อมูลเพิ่มเติมเกี่ยวกับตัวโครงการ สามารถ Comment ได้ที่ด้านล่างของรีวิวครับ
แสดงความคิดเห็น เกี่ยวกับ " EP.111 รีวิว คอนโด Ideo O2 ไอดีโอ โอทู ใกล้ BTS บางนา พร้อมพื้นที่ส่วนกลางกว่า 10 ไร่ เริ่ม 2.3 ล้านบาท* "