
EP.81 รีวิว เจ อาร์ วาย คอนโด พระราม 9 JRY Condo Rama 9 เริ่ม 2.7 ล้านบาท
สวัสดีค่ะผู้อ่านชาว Condonayoo ที่รักทุกคน วันนี้เราจะขอพาไปชมโครงการ JRY Condo พระราม 9 คอนโดใกล้เสร็จพร้อมอยู่จาก JRY Group โดยที่ตั้งโครงการอยู่ในซอย 17 ถนนพระราม 9 เข้าซอยไปประมาณ 800 เมตร เดินทางสะดวก มีเส้นทางลัดออกถนนประดิษฐ์มนูธรรมและถนนเทียมร่วมมิตร ใกล้ทางด่วนศรีรัช และทางด่วนรามอินทรา – อาจณรงค์ ใกล้แนวรถไฟฟ้าสายสีส้มในอนาคต ใกล้แหล่ง อุดมสมบูรณ์โซนพระราม 9 และรัชดาภิเษก เช่น Central พระราม 9, Fortune Tower, The Street, Esplanade เป็นต้น
เจ อาร์ วาย คอนโด พระราม 9 เป็นคอนโด Low-Rise 8 ชั้น จำนวน 1 อาคาร มีทั้งหมด 157 ยูนิต บนเนื้อที่ 1 – 1 – 74 ไร่ มีขนาดห้องให้เลือกเป็น แบบ 1 Bedroom 31.8 – 35.6 ตร.ม., 2 Bedrooms 50.8 – 60.4 ตร.ม. และแบบ Duplex 36.5 – 60.7 ตร.ม. ความสูงฝ้าเพดาน 2.55 เมตร ขายแบบ Fully Furnished คาดว่าสร้างเสร็จพร้อมอยู่ ธ.ค. 2560
สิ่งอำนวยความสะดวกภายในโครงการ อาทิ โถงต้อนรับ, สระว่ายน้ำ, ฟิตเนส, Library, Rooftop Garden, ลิฟท์โดยสาร, Wifi พื้นที่ส่วนกลาง, Shuttle Bus รับส่งปากซอยพระราม 9 ซอย 17 และ MRT ศูนย์วัฒนธรรม, กล้องวงจรปิด และ รปภ. 24 ชม. ในราคาเริ่มต้นที่ 2.69 ล้านบาท (เฉลี่ย 84,900 บาท/ ตร.ม.)
| ชื่อโครงการ | เจ อาร์ วาย คอนโด พระราม 9 JRY Condo Rama 9 |
| เจ้าของโครงการ | JRY Group Co., Ltd. |
| ลักษณะห้องและขนาดห้อง |
|
| เนื้อที่ทั้งหมด | 1 ไร่ 1 งาน 74 ตร.วา. |
| จำนวนตึก | 1 อาคาร |
| จำนวนชั้น | 8 ชั้น |
| จำนวนห้อง | 157 ยูนิต |
| ที่จอดรถทั้งหมด | 60% รวมจอดซ้อนคัน |
| โซน | เขตห้วยขวาง |
| ขนส่งสาธารณะ | – ใกล้ทางด่วนรามอินทรา-อาจณรงค์ – ใกล้รถไฟฟ้า MRT ประดิษมนูธรรม โครงการในอนาคต |
| รถโดยสารที่ผ่าน | รถเมล์สาย 137, 168, 171ร, 515, 555 |
| ที่ตั้ง | ถนนพระราม 9 ซอย 17 แขวงบางกะปิ เขตห้วยขวาง กทม. |
| กำหนดการ | เปิดตัว มี.ค. 2559 |
| ปีที่สร้างเสร็จ | พ.ศ.2560 |
| ราคา | เริ่มต้น 2.69 ล้านบาท |
| ราคาเฉลี่ยต่อ ตร.ม | ประมาณ 84,900 บาท/ ตร.ม. |
| ค่าส่วนกลางและกองทุน | ค่าส่วนกลาง 40 บาท/ตร.ม. เงินกองทุน 400 บาท/ตร.ม. |
| สถานที่สำคัญใกล้เคียง | โซนรามคำแหง-พัฒนาการ
โซนเพชรบุรี-พระราม 9
โซนเอกมัย-ทองหล่อ
โซนพร้อมพงษ์-อโศก
โรงพยาบาล
สถานศึกษา
|
| สิ่งอำนวยความสะดวก |
|
| จุดเด่นของโครงการ | JRY คอนโด พระราม 9 คอนโด Low Rise มีความเป็นส่วนตัวบนถนนพระราม 9 ซอย 17 สิ่งอำนวยความสะดวกครบครัน พร้อมส่วนกลางที่มีความเป็นส่วนตัว ในราคาเริ่มต้น 2.69 ล้านบาท |
ที่ตั้งโครงการ
ถนนพระราม 9 ซอย 17 แขวงบางกะปิ เขตห้วยขวาง กทม.
พิกัด : 13.761761, 100.591462
แผนที่จากทางโครงการค่ะ
โครงการ JRY Condo Rama 9 ตั้งอยู่บนถนนพระราม 9 ซอย 17 ฝั่งมุ่งหน้าถนนเทียมร่วมมิตร การเดินทางด้วยรถยนต์ส่วนตัวสะดวกแต่ค่อนข้างหนาแน่นโดยเฉพาะช่วงเวลาเร่งด่วน โดยจากตัวซอยที่เชื่อมตรงถนนพระราม 9 และถนนเทียมร่วมมิตรซึ่งจะสามารถใช้วิ่งเข้าถนนเส้นสำคัญอื่นๆได้ เช่น ถนนประชาอุทิศ, ถนนวัฒนธรรมซึ่งสามารถใช้ลัดเข้าถนนรัชดาภิเษกเพื่อเลี่ยงรถติดบางช่วงได้ นอกจากนั้นยังมีซอยย่อยที่สามารถใช้วิ่งลัดเข้าถึงตัวโครงการได้จากถนนประดิษฐ์มนูธรรมได้อีกเส้นทาง สภาพโดยรวมภายในซอยจะเป็นถนนสองเลน มีสภาพแวดล้อมค่อนข้างหลากหลายทั้งบ้านเดี่ยว, อพาร์ทเมนท์, โรงแรม, โรงเรียน และโรงงาน จึงทำให้การจราจรในซอยคึกคักพอสมควรค่ะ
การเดินทางด้วยรถสาธารณะอาจจะไม่สะดวกเท่าไหร่ค่ะ เพราะเข้าซอยมาค่อนข้างลึก ประมาณ 800 เมตร เกินระยะเดินสบายและในซอยไม่มีฟุตบาทจึงเดินลำบากหน่อย ส่วนรถสาธารณะอื่นๆที่ผ่านในซอยจะมี Taxi และ วินมอเตอร์ไซค์ ส่วนป้ายรถเมล์จะมีระยะไม่ไกลจากหน้าปากซอย แต่ต้องข้ามถนนเข้าไปบนพระราม 9 เส้นหลักค่ะ โดยจะมีรถเมล์สาย 137, 168, 171ร, 515, 555 และทางโครงการมีรถรับส่งจากโครงการไปปากซอยฝั่งพระราม 9 และ MRT ศูนย์วัฒนธรรม ไว้อำนวยความสะดวกให้ นอกจากนั้นในอนาคตจะมีรถไฟฟ้าสายสีส้ม โดยสถานีที่ใกล้โครงการที่สุดจะเป็น สถานีประดิษฐ์มนูธรรม ตั้งอยู่ไม่ไกลจากซอยโครงการ ที่จะช่วยทำให้การเดินทางด้วยรถสาธารณะสะดวกขึ้นมากค่ะ
จุดขึ้นทางด่วนที่ใกล้โครงการที่สุดจะเป็นจุดขึ้นทางด่วนรามอินทรา – อาจณรงค์ ฝั่งขาเข้า โดยจะมีระยะทางจากโครงการประมาณ 3.6 กม. ใช้เวลาเดินทางประมาณ 6 – 10 นาทีค่ะ
และจุดขึ้นทางด่วนรามอินทรา – อาจณรงค์ฝั่งขาออกจะมีระยะทางจากโครงการประมาณ 2.5 กม. ใช้เวลาเดินทางประมาณ 4 – 10 นาที
ส่วนจุดขึ้นทางด่วนศรีรัชที่ใช้วิ่งเข้าเมืองไปอนุสาวรีย์ได้จะอยู่ห่างจากโครงการประมาณ 4.1 กม. ใช้เวลาเดินทางประมาณ 8 – 20 นาที
และจุดขึ้นทางด่วนศรีรัชฝั่งขาออกที่สามารถใช้วิ่งออกชลบุรีได้จะมีระยะทางจากโครงการประมาณ 5.5 กม. ใช้เวลาเดินทางประมาณ 7 – 15 นาทีค่ะ
ความอุดมสมบูรณ์ รอบๆโครงการในระยะเดินจะมีร้านตามสั่งและร้านส้มตำข้างโครงการ นอกจากนั้นก็จะมีซุ้มรถเข็นขายอาหารในต้นซอยจำเนียรเสถียรค่ะ ไกลออกมาอีกหน่อยช่วงกลางซอยจะมีร้าน Honey Bee ขายน้ำผึ้ง, อาหาร และร้านสะดวกซื้อจะมี 7 – 11 ต้นซอยค่ะ
ส่วนความอุดมสมบูรณ์อื่นๆจะต้องอาศัยขับรถออกมาไกลหน่อย ในโซนใกล้เคียงที่มีความอุดมสมบูรณ์สูงคือแยกพระราม 9 และเส้นรัชดาภิเษกทั้งเส้น ซึ่งจะมีทั้งห้างใหญ่หลายแห่ง เช่น Central พระราม 9 , Fortune Tower, The Street, Esplanade และร้านอาหารให้เลือกหลายร้าน ทั้งแบบราคาย่อมเยาว์และร้านดีๆ ส่วน Hyper Market ที่สามารถแวะซื้อของใช้ในบ้านได้จะมี Big C รัชดาภิเษกและมีตลาดนัดรถไฟรัชดาให้เดินเล่นค่ะ
สำหรับโรงพยาบาลและโรงเรียนที่ใกล้โครงการจะมี รพ.ปิยะเวท, รพ.กรุงเทพ โรงเรียนจะมี The Regent’s International School, รร.ชาญวิทย์, รร.สมาคมไทย – ญี่ปุ่น และรร.เตรียมอุดมศึกษาพัฒนาการ รัชดา
การเดินทาง
การเดินทางในวันนี้เราจะเริ่มต้นบนถนนพญาไทเข้าซอยรางน้ำ เลี้ยวซ้ายบนถนนราชปรารภ และเลี้ยวขวาเข้าถนนดินแดงขับตรงผ่านแยกโบสถ์แม่พระ ขึ้นสะพานข้ามแยกพระราม 9 เพื่อเข้าสู่ถนนพระราม 9 ลงจากสะพานข้ามแยกแล้วเบี่ยงซ้ายเข้าถนนจตุรทิศ ขับตรงไปเรื่อยๆแล้วเลี้ยวเข้าถนนพระราม 9 ซอย 17 ขับตรงต่อไปประมาณ 800 เมตร โครงการจะอยู่ทางซ้ายมือ ส่วน Sale Office จะเลยตัวโครงการไปอีกหน่อย ตั้งอยู่ทางขวามือค่ะ
สรุปการเดินทาง ถนนพญาไท > ซอยรางน้ำ > ถนนราชปรารภ > ถนนดินแดง > ถนนพระราม 9 > ถนนจตุรทิศ > ถนนพระราม 9 ซอย 17 > โครงการ JRY Condo Rama9
เริ่มการเดินทางกันบนถนนพญาไท บริเวณหน้าห้าง Century ฝั่งมุ่งหน้าราชเทวี
ถัดจาก Century มาแล้วเราเลี้ยวซ้ายเข้าซอยรางน้ำ
เข้ามาในซอยรางน้ำจะมี King Power ทางขวามือ
และสวนสันติภาพทางซ้ายมือ
ขับตรงมาจนสุดซอยรางน้ำจะออกมาเชื่อมกับถนนราชปรารภ เราเลี้ยวซ้าย
ออกมาบนถนนราชปรารภเราจะเห็นป้ายไปทางเส้นดินแดง เลี้ยวขวา
ขับตรงมาเรื่อยๆบนเส้นราชปรารภ ใช้เลนขวาเลี้ยวเข้าสู่ถนนดินแดง
ออกมาบนถนนดินแดงแล้วเราขับตรงต่อไป โดยจะเห็นป้ายชี้เส้นทางไปพระราม 9 ใช้เลนขวา
ขับเลนขวาตรงมาเรื่อยๆ ลอดอุโมงค์ข้ามแยกดินแดง
ขึ้นมาจากอุโมงค์เราก็จะเห็นป้ายบอกทางไปพระราม 9 ใช้ 2 เลนขวาเพื่อเตรียมขึ้นสะพาน
ขับตรงยาวมาเรื่อยๆ ขึ้นสะพานข้ามแยกโบสถ์แม่พระ
ลงจากสะพานข้ามแยกโบสถ์แม่พระแล้วขับตรงต่อเพื่อขึ้นสะพานข้ามแยกพระราม 9 หนีรถติดกันไปยาวๆค่ะ
ขึ้นสะพานยกระดับข้ามแยก
ขับตรงมาเรื่อยๆเราจะเห็นตึก G Tower ทางซ้าย
และถัดมาเป็นตึก Unilever
ลงจากสะพานมาแล้วเราก็จะเข้าสู่ถนนพระราม 9 ทางซ้ายมือจะเห็นพื้นที่ขนาดใหญ่ของรฟม.
ลงจากสะพานตรงมาไม่ไกล เราเบี่ยงซ้ายเพื่อเข้าถนนจตุรทิศ
เบี่ยงซ้ายมาแล้วเราขับตรงต่อไปเรื่อยๆ
ผ่านตึก KPN ทางซ้ายมือ
เราขับชิดเลนซ้ายยาวๆค่ะ
ขับตรงมาเรื่อยๆ สังเกตสะพานลอยข้ามฝั่ง ให้เราเตรียมตัวเลี้ยวซ้ายเข้าซอยค่ะ
ผ่านสะพานลอยมานิดเดียวก็จะถึงซอย 17 แล้วเราเลี้ยวซ้ายเข้าซอยไปเลยค่า
เข้ามาบนถนนพระราม 9 ซอย 17 ภายในซอยเป็นถนน 2 เลน มีสภาพแวดล้อมที่หลากหลาย โดยต้นซอยจะมีร้านสะดวกซื้อ 7 – 11 ถัดไปเป็นโรงเรียนชาญวิทย์ นอกจากนั้นก็จะมีทั้งคอนโด, แมนชั่น, โรงงานและ บริษัทหลายแห่งค่ะ โดยเมื่อเราเข้าซอยมาแล้วเราขับตรงไปตามซอยต่อไปประมาณ 900 เมตรก็จะถึงที่ตั้งโครงการทางซ้ายมือ ส่วน Sale Office จะอยู่เลยที่ตั้งโครงการไปหน่อย ทางขวามือค่ะ
เข้าซอยมาแล้วเราก็จะเห็นป้ายโฆษณาของโครงการ เราขับตรงตามป้ายไปเลยค่า
ต้นซอยจะมี 7 – 11 สามารถแวะซื้อของก่อนเข้าบ้านได้ค่ะ
ถัดจาก 7 – 11 มาหน่อยจะเป็นโรงเรียนชาญวิทย์
ภายในซอยจะมีโรงงานและบริษัทหลายแห่ง ยกตัวอย่างเช่น บริษัท Zenith Power
ถัดมาเป็นบริษัทรักษาความปลอดภัย G4S
เข้ามาอีกหน่อยเป็นบริษัทรับทำสติ๊กเกอร์ นอกจากนั้นในซอยจะมีคอนโด แมนชั่น และโรงแรม อย่างทางฝั่งขวามือที่เราผ่านจะเห็นโรงแรม Royal ์ine Residence ค่ะ
เข้ามาถึงช่วงหลายซอยจะเจอร้านอาหารที่แรก ชื่อร้าน Honey Bee ขายผลิตภัณฑ์จากน้ำผึ้งและอาหารเครื่องดื่ม
ถัดเข้ามาอีกหน่อยผ่านสมาคมสถาปนิกสยามทางซ้ายมือ
เราเข้าซอยมาเรื่อยๆ ช่วงใกล้ถึงโครงการเราจะเห็นโรงเรียนสมาคมไทย – ญี่ปุ่นทางขวามือ
ถัดจากรร.สมาคมไทย – ญี่ปุ่น เราจะเห็นทางแยกเข้าซอยจำเนียรเสถียรที่สามารถใช้ลัดไปถนนประดิษฐ์มนูธรรมได้
ขับตรงเลยทางแยกมาอีกหน่อยก็จะถึงตัวโครงการ JRY RAMA 9 Condo แล้วค่า
ส่วน Sale Office จะอยู่ทางขวามือเลยที่ตั้งโครงการมาหน่อยค่ะ
ภายใน Sale Office เข้ามาจะเจอโมเดลอาคารที่จัดแสดงไว้ให้ชม ส่วนด้านหลังจะมีเคาน์เตอร์เจ้าหน้าที่คอยพาชมโครงการและให้ข้อมูล
ฝั่งซ้ายมือเป็นที่นั่งรับรอง แยกเป็นสัดส่วนค่ะ
ถนนและแยกที่สำคัญรอบโครงการ
สถานที่สำคัญรอบๆโครงการ
โซนรามคำแหง-พัฒนาการ
โซนเพชรบุรี-พระราม 9
โซนเอกมัย-ทองหล่อ
โซนพร้อมพงษ์-อโศก
โรงพยาบาล
สถานศึกษา
รอบๆโครงการ
รอบๆโครงการ JRY RAMA9 CONDOMINIUM ส่วนใหญ่เป็นที่อยู่อาศัยแนวราบความสูงไม่เกิน 8 ชั้นและที่ดินเปล่า ส่วนอาคารสูงจะมีโรงแรมช่วงกลางซอยเท่านั้นซึ่งไม่ได้อยู่ในระยะประชิดจึงไม่มีผลเรื่องการถ่ายเทอากาศ และทัศนียภาพ
มาดูบรรยากาศของจริงกันบ้าง ทิศเหนือติดกับที่อยู่อาศัยสูง 1 และ 2 ชั้น โดยด้านหน้าติดถนนจะเป็นร้านขายอาหารตามสั่ง ถัดไปทางขวามือเป็นคอนโด สูง 7 ชั้นค่ะ
ฝั่งทิศใต้ หรือฝั่งขวามือโครงการจะเป็นที่อยู่อาศัยสูง 1 – 2 ชั้น ถัดไปเป็นอพาร์ทเมนท์ สูง 7 ชั้น
โดยจะมีเปิดเป็นร้านส้มดำและร้านขายของชำด้านหน้า
เยื้องๆกับโครงการทางฝั่งทิศตะวันออกเป็นซอยจำเนียรเสถียร เชื่อมไปออกถนนประดิษฐ์มนูธรรมได้ค่ะ ส่วนอาคารสีขาวที่เห็นด้านหลังเป็นโรงเรียนสมาคมไทย – ญี่ปุ่น
ภายในซอยจะมีรถขายอาหารมาเปิดขาย 2 – 3 ร้าน
และมีคิวพี่วินที่เราสามารถเดินมาเรียกใช้บริการออกไปหน้าปากซอยได้ค่ะ
ตัวโครงการ
โครงการ JRY Rama9 Condominium เป็นโครงการคอนโด Low Rise สูง 8 ชั้น จำนวนห้องพักอาศัย 157 ยูนิต บนที่ดิน 1-1-74 ไร่ การออกแบบตัวอาคารมาในสไตล์โมเดิร์นเรียบง่าย ใช้สีโทนขาวและน้ำตาลเทา รูปทรงแปลนอาคารเป็นรูปตัว U โครงการตั้งอยู่ติดถนนซอยพระราม 9 ซอย 17 บรรยากาศโดยรวมตัวโครงการดูร่มรื่น มีลงต้นไม้ไว้ให้รอบอาคาร
มาดูที่ผังอาคารกันต่อ เริ่มที่แปลนชั้น 1 ชั้นนี้จะไม่มีห้องพักอาศัย เป็นชั้นของที่จอดรถใต้อาคารทั้งหมด รวมที่จอดประมาณ 60% รวมจอดซ้อนคัน และ 45% ไม่รวมจอดซ้อนคันค่ะ ตรงกลางอาคารจะเป็น Core ประกอบด้วย Main Lobby, ห้องน้ำรับรอง และโถงลิฟท์ ซึ่งภายในจะมีลิฟท์ 2 ตัว คิดเป็นอัตราส่วน 1 : 78 ใช้งานกันได้สบายๆค่ะ
ขึ้นมาบนชั้น 2 จะมีส่วนของห้องพักอาศัยและ Main Facility แยกเป็นสัดส่วน โดยจะมีประตูทางเข้าส่วนกลางทั้งหมดเชื่อมจากโถงลิฟท์ สำหรับส่วนกลางจะมีทั้งส่วน Outdoor และ Indoor โดยส่วน Outdoor จะมีสระว่ายน้ำระบบเกลือแยกสระเด็ก สระผู้ใหญ่ ขนาด 6 x 16 เมตร โดยสระเด็กลึก 0.6 เมตร และสระผู้ใหญ่ลึก 1.2 เมตร มี Pool Terrace ริมสระ และสวนพักผ่อนรอบๆ สำหรับส่วนกลาง Indoor จะมี Fitness , ห้องสมุด
ส่วนพื้นที่ของห้องพักอาศัยของชั้นนี้จะมีทั้งหมด 20 ห้อง เป็นห้อง 1 Bedroom จำนวน 14 ห้อง และห้อง 2 Bedroom จำนวน 6 ห้อง โดยห้อง 2 Bedroom จะถูกจัดไว้เป็นห้องมุมเท่านั้นค่ะ ซึ่งแบบห้องจะมีทั้งหมด 5 แบบ คือ 1 Bedroom Type B ขนาด 34.5 ตร.ม. จำนวน 9 ห้อง , 1 Bedroom Type C ขนาด 35.6 ตร.ม. จำนวน 2 ห้อง , 2 Bedroom Type D ขนาด 50.8 ตร.ม. จำนวน 2 ห้อง , 2 Bedroom Type E ขนาด 60.2 ตร.ม. จำนวน 2 ห้อง และ 1 Bedroom Type F ขนาด 34.5 ตร.ม. จำนวน 5 ห้อง
แปลนอาคารชั้น 3 จะเป็นส่วนพักอาศัยทั้งชั้น มีจำนวนห้องทั้งหมด 25 ยูนิต ต่อชั้น โดยเป็นห้อง 2 Bedroom จำนวน 6 ห้อง จัดวางไว้ที่มุมของอาคาร และห้อง 1 Bedroom มีทั้งหมด 19 ห้องค่ะ โดยจากชั้น 3 จนถึง ชั้น 8 จะมีการวางผังที่เหมือนกันทั้งหมด มีต่างกันแค่ขนาดห้องแต่ละตำแหน่งนิดหน่อยค่ะ
แปลนอาคารชั้น 4 – 6 จะมีการวางผังเป็นยูนิตพักอาศัยทั้งชั้น ทั้งตำแหน่งการจัดวางและขนาดห้องจะเหมือนที่ชั้น 3 แบบเป๊ะๆค่ะ
แปลนอาคารชั้น 7 จะมีจำนวนห้องต่อชั้น 25 ห้องเช่นกัน แต่จะมีห้อง Duplex สูง 2 ชั้น จำนวน 13 ห้อง, ห้อง 1 Bedroom 12 ห้อง และห้อง 2 Bedrooms จำนวน 2 ห้องค่ะ
แปลนอาคารชั้น 8 ชั้นนี้จะมีส่วนที่เป็น Duplex ชั้น 2 ซึ่งจะกินพื้นที่ในชั้นไป 13 ห้อง ส่วนห้อง ห้อง 1 Bedroom ปกติจะมีจำนวน 12 ห้อง ซึ่งถ้านับๆดูแล้วชั้นนี้จะมีจำนวนยูนิตต่องชั้นน้อยที่สุด อยู่ที่ 14 ยูนิตต่อชั้น มีความเป็นส่วนตัวมากกว่าชั้นอื่นๆค่ะ
มาดูในส่วนของโมเดลอาคารกันบ้างค่ะ หน้าตาโดยรวมจะ Modern เรียบๆ ใช้โทนสีขาวและดำเป็นหลัก พื้นที่ข้างเคียงฝั่งซ้ายมือและขวามือจะเป็นที่อยู่อาศัย สูง 1 และ 2 ชั้น
ทางเข้าโครงการตั้งอยู่ติดกับถนนพระราม 9 ซอย 17 มีซุ้มป้อมรปภ.รักษาความปลอดภัยด้านข้าง
ภาพรวมตัวอาคารทางทิศเหนือใช้สีขาว ดำ เทา เป็นหลัก ตกแต่งด้วยเส้นกรอบสี่เหลี่ยมสีดำให้โดยรวมดูไม่เรียบเกินไป
ภาพรวมอาคารทางฝั่งทิศใต้ค่ะ
ภาพรวมอาคารจากทิศตะวันตก หรือด้านหลังอาคารจะเป็นเวิ้งรูปตัว U มีส่วนกลางหลักตรงกลาง สำหรับห้องที่หันหน้าเข้าส่วนกลางก็จะได้ความเป็นส่วนตัวที่มากขึ้นค่ะ
พื้นที่สวน Rooftop ด้านบนจะมีพื้นที่พักผ่อนที่จัดให้ตามรูปทรงอาคารเต็มพื้นที่ พร้อมลงต้นไม้และม้านั่งพักผ่อน
ส่วนกลางที่ชั้น 2 จากภายนอก เราจะเห็นตัวสระว่ายน้ำแบบ Outdoor พร้อม Pool Terrace รอบด้าน ซึ่งสามารถเข้าถึงตัวสระได้จากภายในอาคาร(ชั้น 2) และมีทางเดินเชื่อมลงมาที่สวนพักผ่อนรอบสระ โดยตัวสระจะแบ่งเป็นสระเด็ก สระผู้ใหญ่ และมี Beach Bed ให้นั่งพักผ่อน นอกจากนั้นห้อง Fitness และห้องสมุดก็จะอยู่ติดกับสระว่ายน้ำ ทำให้ได้ Take View สระไปด้วยค่ะ
บรรยากาศภายในห้อง Library จัดเป็นมุมอ่านหนังสือและมีโต๊ะสำหรับนั่งทำงาน
ภายในห้อง Fitness จะอยู่ติดกับสระว่ายน้ำ ทำให้สามารถได้วิวสระว่ายน้ำไปด้วยค่ะ
มุมมองจากพื้นที่สระมองออกไปยังด้านนอกอาคาร
ภาพจำลองบรรยากาศบริเวณสระว่ายน้ำ และสวนรอบสระ
รั้วโครงการด้านหน้ามีน้ำพุเล็กๆสร้างบรรยากาศให้ร่มรื่น ติดกับป้ายหลักหน้าโครงการ

มุมมองจาก Top View บรรยากาศภายนอก ในพื้นที่ของไซท์จริงพื้นที่ด้านข้างจะเป็นที่บ้านพักอาศัยข้างเคียงนะคะ ส่วนพื้นที่หลังโครงการจะเป็นที่ดินเปล่า
แบบห้อง
แบบห้องในโครงการจะมีทั้งหมด 3 แบบ คือ
ห้อง Type A1 เป็นห้องแบบ 1 Bedroom ขนาด 31.80 ตร.ม. ภายในห้องเข้าไปจะเจอกับส่วนครัว เป็นครัวแบบเปิด ถัดเข้าไปจะเป็นส่วนของห้องทานอาหารและห้องนั่งเล่น และระเบียงภายนอก และจากห้องครัวจะเชื่อมต่อเข้าไปในห้องน้ำ ภายในห้องน้ำแยกส่วนแห้งส่วนเปียกค่ะ ส่วนห้องนอนจะถูกกั้นแยกไว้เป็นสัดส่วน ตำแหน่งห้องจะวางอยู่ฝั่งด้านในตัว U ที่จุดเดียวกันในทุกชั้น ซึ่งจาก Key Plan จะเห็นว่าตำแหน่งของห้องแบบนี้จะโดนบล็อควิวมากกว่าแบบอื่นๆทั้งหมดเลยค่ะ
ห้อง Type B1 เป็นห้องแบบ 1 Bedroom ขนาด 34.50 ตร.ม. จาก Key Plan จะเห็นว่าห้อง Type นี้เป็นห้องแบบที่มีจำนวนเยอะสุดในโครงการค่ะ ขนาดภายในห้องจะใหญ่กว่าห้อง Type A1 นิดหน่อย แต่ภายในห้องจัดส่วนครัวแยกมาให้เป็นสัดส่วนกว่า และภายในห้องนอนมีขนาดกว้างกว่าด้วยค่ะ
ห้อง Type C1 เป็นห้องแบบ 1 Bedroom ขนาด 35.60 ตร.ม. ตำแหน่งห้องเป็นห้องมุมหันออกนอกอาคาร ทางทิศเหนือและใต้ ฟังก์ชั่นภายในห้องจะได้ส่วนครัวและห้องทานอาหารขนาดใหญ่สามารถกั้นห้องเป็นครัวปิดได้สะดวก 
ห้อง Type D1 เป็นห้องแบบ 2 Bedroom ขนาด 50.80 ตร.ม. ฟังก์ชั่นภายในห้องมี 2 ห้องนอน 1 ห้องน้ำ จุดเด่นของห้อง Type นี้คือเน้นพื้นที่ส่วนกลางคือโถงห้องทานอาหารและห้องนั่งเล่นขนาดใหญ่ ส่วนห้องครัวจะมีขนาดกระทัดรัดหน่อย แต่ดีตรงที่กั้นแยกเป็นสัดส่วนได้ง่ายค่ะ
ห้อง Type E1 เป็นห้องแบบ 1 Bedroom ขนาด 60.40 ตร.ม. เป็นห้อง 2 Bedroom ที่ขนาดใหญ่สุดในโครงการ ฟังก์ชั่นภายในห้อง 2 ห้องนอน และ 2 ห้องน้ำ สำหรับในห้อง Type นี้จะแบ่งพื้นที่ทุกส่วนเท่าๆกันค่ะ จุดเด่นของห้องนี้คือห้องครัวที่ได้เป็นครัวปิด และมีพื้นที่ใช้งานเยอะพอสมควร นอกจากนั้นก็จะได้ห้อง Master Bedroom ขนาดค่อนข้างใหญ่ ทำให้มีพื้นที่เป็น Walk – in Closet ขนาดเล็กๆในห้องนอน และได้ห้องน้ำในตัวสำหรับห้อง Master Bedroom ค่ะ
ห้อง Type F เป็นห้องแบบ Duplex ขนาด ชั้นล่าง 36.50 และชั้นบน 31.50 ตร.ม. เป็นห้อง Duplex หรือห้อง 2 ชั้น Type หลักของโครงการ โดยฟังก์ชั่นในห้องชั้นล่างจะเป็นส่วนของห้องครัวที่ได้เป็นครัวกั้นปิดแยกเป็นสัดส่วน, ห้องน้ำรับรอง, ห้องทานอาหาร, ระเบียงและห้องนั่งเล่น ส่วนบนชั้น 2 จะเป็นส่วนของห้องนอน 2 ห้องและห้องน้ำ 1 ห้องค่ะ โดยทางเข้าออกหลักของห้องจะอยู่ที่ชั้นล่างหรือชั้น 7 นะคะ ชั้นบนจะไม่สามารถออกสู่โถงทางเดินได้
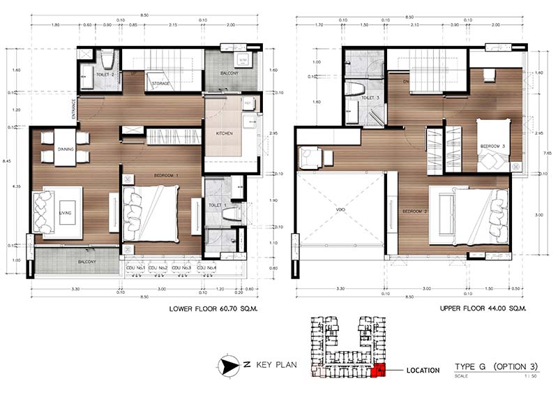
ห้อง Type G เป็นห้องแบบ Duplex ขนาด ชั้นล่าง 60.70 และชั้นบน 44.00 ตร.ม. จะมีแค่ 2 ห้องเท่านั้น เป็นห้องที่มีพื้นที่ใช้สอยมากที่สุดในโครงการ ฟังก์ชั่นชั้นล่างจะมีห้องครัวขนาดค่อนข้างใหญ่, ห้องทานอาหาร, ห้องนั่งเล่น และห้องนั่งเล่น ส่วนพื้นที่บนชั้น 2 จะมีห้องนอนรอง, ห้องน้ำ และพื้นที่โถงเอนกประสงค์ขนาดใหญ่ซึ่งสามารถปรับเป็นห้องนอนห้องที่ 3 ได้
ห้องตัวอย่าง
สำหรับห้องตัวอย่างวันนี้เราจะพาชมห้อง 2 แบบ คือห้อง 1 Bedroom และห้อง 2 Bedrooms นะคะ
เริ่มกันที่ห้องแรก จะเป็นห้อง Type B1 เป็นห้องแบบ 1 Bedroom ขนาด 34.50 ตร.ม. เป็นห้องแบบที่มีจำนวนเยอะสุดในโครงการค่ะ ขนาดภายในห้องจะค่อนข้างกว้างสำหรับอยู่อาศัยคนเดียว ภายในห้องจัดส่วนครัวแยกมาให้เป็นสัดส่วน และภายในห้องนอนมีขนาดกว้าง มีพื้นที่สำหรับติดตั้งโต๊ะเขียนหนังสือ และภายในห้องน้ำมีแยกส่วนแห้งส่วนเปียกไว้เป็นสัดส่วนค่ะ
ประตูทางเข้าได้ Digital Door Lock มือจับก้านโยกของ Samsung ใช้ได้ทั้งระบบ Key Card และรหัสผ่าน
พื้นห้องส่วนแรกปูด้วยกระเบื้องลายหิน สีครีม แต่ช่วงรอยต่อระหว่างพื้นห้องกับพื้นโถงทางเดินจะใช้เป็นกระเบื้องแกรนิตโต้สีดำโดยจะมีความสูงจากโถงทางเดินขึ้นมาประมาณ 3 ซม.
ด้านหลังบานประตูจะติดตั้งตัว Stopper มาให้เพื่อป้องกันประตูกระแทกเคาน์เตอร์ครัวด้านหลังค่ะ 
เข้ามาภายในห้องจะเจอกับพื้นที่ส่วนแรกคือห้องครัวและห้องน้ำ ถัดไปเป็นห้องนั่งเล่น ที่เชื่อมอยู่กับระเบียงและห้องนอน
เข้าห้องมาแล้วจะมีตู้สำหรับเก็บรองเท้าและลิ้นชักเก็บของติดตั้งมาให้ จะสามารถเก็บรองเท้าได้ประมาณ 8 คู่
เรามาดูพื้นที่ส่วนครัวกันก่อน โดยครัวที่ได้จะได้เป็นครัวเปิดแต่มีการแบ่งพื้นที่ให้ค่อนข้างเป็นสัดส่วนดี โดยพื้นส่วนครัวจะใช้เป็นกระเบื้องทั้งหมด ทำให้ง่ายต่อการทำความสะอาด และขนาดห้องครัวที่ได้ถือว่ามีขนาดกว้างสำหรับคอนโด 1 ห้องนอน สามารถที่จะยืนทำอาหารได้สะดวก
ชุดเคาน์เตอร์ครัวที่ทางโครงการติดตั้งมาให้ จะได้ครบชุดทั้งเคาน์เตอร์ล่างที่แบ่งเป็นตู้เก็บของใต้ซิงค์ล้างจาน 2 ตู้ และมีลิ้นชักสำหรับจัดเก็บของพวกจานชาม, ขวดซอส และช่องสำหรับวางเตาไมโครเวฟมาให้พร้อม(เตาไมโครเวฟไม่มีมาให้นะคะ) และตู้เก็บของด้านบน 3 ตู้พร้อมเครื่องดูดควัน
ลิ้นชักเก็บของด้านล่างจะมีตะแกรงจัดเก็บของมาให้แบบนี้ค่ะ
โดยบานเปิดตู้ทั้งหมดจะได้เป็นบานเปิดแบบ Soft Closed
ส่วนพื้นที่เคาน์เตอร์ Top หินสังเคราะห์ ติดตั้งซิงค์ล้างจานมาให้ แต่ไม่มีเตาไฟฟ้า พื้นที่สำหรับเตรียมอาหารค่อนข้างกว้างสามารถเตรียมอาหารได้สะดวก
ซิงค์ล้างจานได้เป็นซิงค์ทรงคางหมู ขนาดกระทัดรัด พร้อมก๊อกน้ำเย็นทรงโค้ง
อีกฝั่งของห้องครัวจะมีพื้นที่สำหรับวางตู้เย็น
พื้นที่ส่วนนี้จะมีความกว้างประมาณ 60 ซม. พอที่จะวางตู้เย็นไซส์มาตรฐานได้ค่ะ
เหนือตู้เย็นจะมีตู้เก็บของแบบลอยตัว
ถัดมาเราไปดูในห้องน้ำกันต่อ
พื้นห้องน้ำปูด้วยกระเบื้องเซรามิค ลดระดับลงไปประมาณ 3 ซม.
ภายในห้องน้ำใส่ฟังก์ชั่นมาให้ครบ แยกส่วนแห้งส่วนเปียก ผนังกรุกระเบื้องสีครีมทั้งห้อง ส่วนระบบระบายอากาศในห้องน้ำจะได้เป็นเครื่องดูดความชื้นติดตั้งมาให้บนฝ้าเพดานค่ะ
หลังบานประตูห้องน้ำมีติดตั้งตัว Stopper มาให้เพื่อป้องกันประตูกระแทกผนัง
พื้นที่ส่วนแห้งจะติดตั้งชุดเคาน์เตอร์อ่างล้างมือ พร้อมกระจกเงา, ช่องเก็บของ และปลั๊กไฟแบบมีฝาครอบกับน้ำ
อ่างล้างมือได้เป็นอ่างทรงกลมแบบยกสูงจากเคาน์เตอร์ ขนาดอ่างกว้างพอดีๆ พร้อมก๊อกน้ำเย็น ยี่ห้อ Kohler
ใต้อ่างมีลิ้นชักเก็บของและตู้เก็บของทั้งหมด 5 ช่อง
ติดกับอ่างล้างมือเป็นโถสุขภัณฑ์พร้อมอุปกรณ์สายชำระและที่วางกระดาษชำระครบชุด พื้นที่การใช้งานพอดีๆ ไม่แคบ
สายชำระสแตนเลสขนาดพอดีมือ สายแบบขดสปริงทำให้มีความยืดหยุ่นในการใช้งาน
ต่อมาเรามาดูในส่วนของห้องอาบน้ำกันต่อ โดยห้องอาบน้ำจะถูกแบ่งเป็นส่วนแห้ง ส่วนเปียก ติดตั้ง Shower Box มาให้เรียบร้อย บานประตูแบบบานผลักเข้าไปในห้องน้ำ มือจับประตูสามารถแขวนผ้าเช็ดตัวได้
เข้ามาภายในห้องน้ำจะติดตั้งฝักบัวแบบ Hand Shower ปรับระดับได้ พร้อมถาดวางสบู่และเดินสายไฟสำหรับเครื่องทำน้ำอุ่นมาให้เรียบร้อย โดยฝักบัวจะได้ของยี่ห้อ Kohler ขนาดพอดีๆ 
ขนาดห้องอาบน้ำประมาณ 0.9 x 1.5 เมตร กว้างพอให้ยืนอาบได้สบายๆ และมีธรณียกสูงขึ้นมาอีก 5 ซม.ช่วยกันน้ำออกไปนอกห้องอาบน้ำค่ะ 
กลับออกมาด้านนอก เราไปดูในส่วนของห้องนั่งเล่นและส่วนทานอาหารกันต่อ
เข้ามาในส่วนห้องนั่งเล่นจะถูกแบ่งมุมไว้วางโต๊ะทานอาหารขนาด 2 ที่นั่งได้พอดีๆ ระยะการใช้งานเหมาะสม และสังเกตพื้นห้องนั่งเล่นจะเปลี่ยนเป็นปูด้วยลามิเนตลายไม้ มีตัวจบลามิเนตสีเข้ากันแบ่งพื้นที่ชัดเจน
เข้ามาดูในส่วนพื้นที่นั่งเล่นกันต่อ โดยภายในห้องนั่งเล่นนี้จะได้แสงธรรมชาติมาจากประตูเชื่อมออกไประเบียงภายนอก ซึ่งสามารถเปิดเพื่อระบายอากาศได้ด้วยค่ะ
โซฟาในห้องนั่งเล่นจะได้เป็นโซฟาขนาด 2 – 3 ที่นั่ง เป็นขนาดที่เหมาะสมกับพื้นที่ดีแล้วค่ะ
ฝั่งตรงข้ามจะเป็นพื้นที่สำหรับวางทีวี
สำหรับพื้นที่วางทีวีทางโครงการจะติดตั้งตู้เตี้ยมาให้ พร้อมลิ้นชักเก็บของ 2 ช่อง ระดับที่ติดตั้งตู้มาให้สามารถวางทีวีได้พอดี หรือจะใช้วางของตกแต่งอื่นๆแล้วใช้เป็นทีวีติดผนังก็ได้ค่ะ
ระยะดูทีวีที่เหลือประมาณ 1.8 เมตร สามารถวางทีวีขนาด 42″ – 47″ จะได้ระยะดูทีวีที่สบายตา
โต๊ะกลางที่ได้จะมีฟังก์ชั่นที่สามารถเปิดเป็นช่องเก็บของ และลิ้นชักด้านล่างได้แบบนี้ค่ะ
จากห้องนั่งเล่นเราจะออกไปดูระเบียงภายนอกกันต่อ โดยบานประตูที่ได้จะได้เป็นบานเลื่อนคู่ บานกรอบอลูมิเนียมสีดำ กระจกเขียวตัดแสง พร้อมบานฟิกซ์ 1 บาน
มือจับบานประตูแบบเซาะร่องมาตรฐาน 
ระเบียงภายนอกจะมีธรณีประตูยกสูงขึ้นมาประมาณ 10 ซม. กันน้ำกระเซ็นเข้ามาภายในห้อง ขนาดระเบียงค่อนข้างกว้าง ประมาณ 1.1 เมตร สามารถที่จะวางเครื่องซักผ้าและราวตากผ้าได้สบายๆ ส่วนราวกันตกได้เป็นราวสแตนเลสกระจกใส
โดยทางโครงการจะติดตั้งก๊อกน้ำและปลั๊กไฟสำหรับรองรับการติดตั้งเครื่องซักผ้ามาให้เรียบร้อย
มุมจากระเบียงมองย้อนไปภายในห้องโดยรวม
กลับเข้ามาภายในห้องเราไปดูกันที่ห้องนอนต่อค่ะ โดยบานประตูห้องนอนจะได้เป็นบานสำเร็จรูป มือจับก้านโยก
เข้ามาภายในห้องนอน จะมีช่องแสง 1 จุด ขนาดห้องค่อนข้างกว้างค่ะ
สำหรับช่องแสงในห้องนอนจะได้เป็นหน้าต่างบานฟิกซ์ 2 บานและบานกระทุ้ง 1 บาน ขนาดบานหน้าต่างค่อนข้างใหญ่ สามารถที่จะเปิดระบายอากาศและรับแสงธรรมชาติเข้าห้องมาได้เยอะ
สำหรับเตียงที่ได้ในห้องนอนจะได้เป็นเตียงขนาดควีนไซส์มาให้ เมื่อจัดวางแล้วยังเหลือพื้นที่รอบเตียงให้ใช้งานได้สะดวก
พื้นที่ข้างเตียงฝั่งติดผนังจะเหลือค่อนข้างกว้าง สามารถวางตู้เก็บของหัวเตียงได้
อีกฝั่งของห้องติดตั้งตู้เสื้อผ้าแบบ Built – in พร้อมโต๊ะเครื่องแป้งมาให้
โดยตู้เสื้อผ้าที่ได้จะได้เป็นชุด Built – in ตู้บานเลื่อนแบบเปิดสลับ ด้านในมีราวแขวน, ลิ้นชัก, และชั้นเก็บผ้าปูที่นอนหรือผ้าเช็ดตัวด้านบน
ติดกับตู้เสื้อผ้าเป็นโต๊ะเครื่องแป้ง ติดตั้งกระจกเงาพร้อมตู้เก็บเครื่องประดับด้านหลัง
ส่วนด้างล่างจะมีลิ้นชักแบ่งช่องและตู้เก็บของใต้โต๊ะ
ระยะการใช้งานตู้เสื้อผ้าค่อนข้างกว้าง สามารถยืนแต่งตัวได้สบายๆค่ะ
พื้นที่ฝั่งปลายเตียงมีติดตั้งช่องสัญญาณทีวีและปลั๊กไว้ให้พร้อมค่ะ
ระยะปลายเตียงที่เหลือพอให้เดินผ่านได้สะดวก ไม่พอวางตู้อะไรแล้วค่ะ เพราะฉะนั้นทีวีที่จะเอามาใช้ในห้องนอนควรจะใช้แบบติดผนังนะคะ
ถัดมาเรามาดูห้องตัวอย่างแบบที่ 2 กันต่อ เป็นห้องแบบ 2 Bedrooms Type E1 เป็นห้องแบบ 2 Bedroom ขนาด 60.40 ตร.ม. เป็นห้อง 2 Bedroom ที่ขนาดใหญ่สุดในโครงการ ฟังก์ชั่นภายในห้อง 2 ห้องนอน และ 2 ห้องน้ำ สำหรับในห้อง Type นี้จะแบ่งพื้นที่ทุกส่วนเท่าๆกันค่ะ จุดเด่นของห้องนี้คือห้องครัวที่ได้เป็นครัวปิด และมีพื้นที่ใช้งานเยอะพอสมควร นอกจากนั้นก็จะได้ห้อง Master Bedroom ขนาดค่อนข้างใหญ่ ทำให้มีพื้นที่เป็น Walk – in Closet ขนาดเล็กๆในห้องนอน และได้ห้องน้ำในตัวสำหรับห้อง Master Bedroom ค่ะ
เข้ามาภายในห้องจะเจอกับโถงทางเดินที่เชื่อมห้องนอน Master Bedroom, ห้องนอนรอง, ห้องครัว และห้องน้ำรับรอง
ส่วนพื้นที่ห้องรับแขกจะถูกแยกเป็นสัดส่วนไว้ทางซ้ายมือค่ะ
สำหรับพื้นของโถงทางเดินจะปูด้วยกระเบื้องสีน้ำตาล ลายหิน ทำความสะอาดง่าย
เราเข้ามาดูภายในส่วนห้องนั่งเล่นกันก่อนค่ะ สำหรับพื้นที่ในห้องนั่งเล่นนี้มีขนาดที่ถือว่ากว้างเลยค่ะ จึงสามารถที่จะแบ่งเป็นส่วนทานอาหารและห้องนั่งเล่นได้สบายๆ
พื้นห้องนั่งเล่นจะปูด้วยลามิเนต มีตัวจบสีเข้ากันติดตั้งมาให้เรียบร้อย
พื้นที่ส่วนทานอาหารจะได้ชุดโต๊ะทานอาหารขนาด 4 ที่นั่ง ซึ่งมีระยะการใช้งานที่พอดีๆ ไม่อึดอัด และสามารถเพิ่มที่นั่งได้อีก 2 ที่นั่ง สำหรับใครที่มีเพื่อนมาเยี่ยมบ่อยๆค่ะ

ถัดมาดูส่วนของห้องนั่งเล่นกันต่อ โซฟาที่ได้จะเป็นโซฟาขนาด 2 – 3 ที่นั่ง จัดวางแล้วเหมาะสมกับขนาดของห้อง มีพื้นที่เหลือด้านข้างนิดหน่อย สามารถวางโคมไฟตั้งพื้นได้
ฝั่งตรงข้ามเป็นพื้นที่วางทีวี ติดตั้งตู้วางทีวีและเก็บของมาให้
ระยะดูทีวีประมาณ 2 เมตร สามารถวางโต๊ะกลาง และขนาดทีวีที่เหมาะสมจะเป็นขนาด 50″ – 55″ จะได้ระยะดูทีวีที่สบายตา
จากห้องนั่งเล่นจะเชื่อมต่อออกไปยังระเบียงภายนอก โดยบานประตูจะได้บานเลื่อนแบบเปิดสลับ และบานฟิกซ์ หน้ากว้างเต็มผนังทำให้มีแสงธรรมชาติส่องเข้ามาภายในห้องได้เยอะ
ระเบียงภายนอกได้ขนาดกว้างเลยค่ะ สามารถวางราวตากผ้า หรือปลูกไม้กระถางเล็กๆตกแต่งเพิ่มพื้นที่สีเขียวในห้องก็ยังได้ค่ะ
สำหรับพื้นที่ระเบียงของห้องนี้จะไม่มีก๊อกน้ำและปลั๊กติดตั้งมาให้นะคะ เพราะส่วนของเครื่องซักผ้าจะถูกจัดให้อยู่ในห้องครัวแทนค่ะ
ไฟระเบียงได้เป็นไฟดาวน์ไลท์ทรงกลม 1 ดวง
กลับเข้ามาภายในห้อง จากส่วนห้องนั่งเล่นเราจะไปดูห้องต่างๆในโถงทางเดินกันต่อนะคะ
โถงทางเดินกว้างประมาณ 1.2 เมตร เชื่อมห้องนอน, ห้องครัว และห้องน้ำ พร้อมติดตั้งตู้เก็บรองเท้าและชั้นวางของ
โดยตู้เก็บของตรงโถงทางเดินที่ได้จะได้เป็นตู้แบบ Built – in เข้ามุม
โดยตู้ลอยชั้นบนได้เป็นตู้บานเปิด ด้านในแบ่งเป็นชั้นเก็บของ 2 ชั้น
ชุดตู้ด้านล่างจะมีที่วางของด้านบน และลิ้นชักเก็บของ 2 ลิ้นชัก ส่วนด้านล่างเป็นช่องเก็บรองเท้า สามารถเก็บได้ประมาณ 16 คู่
เรามาดูในส่วนของห้องน้ำกันก่อนค่ะ
เข้ามาภายในห้องน้ำจะแยกส่วนแห้ง ส่วนเปียก มีขนาดกว้างพอใช้งานสะดวก ไม่อึดอัด โดยพื้นที่ส่วนแห้งจะมีอ่างล้างมือยี่ห้อ Kohler พร้อมกระจกเงามีที่เก็บของและเคาน์เตอร์ใต้อ่าง
ส่วนโถสุขภัณฑ์ใช้ของ Kohler พร้อมอุปกรณ์ครบชุด และราวแขวนผ้าเช็ดตัว 2 ชิ้น
พื้นที่ส่วนห้องอาบน้ำแยกให้เป็นสัดส่วน พร้อมติดตั้ง Shower Box มาให้
ภายในห้องอาบน้ำติดตั้งฝักบัวแบบ Hand Shower พร้อมถาดวางสบู่และเดินระบบไฟสำหรับติดตั้งเครื่องทำน้ำอุ่นไว้ให้เรียบร้อย
ขนาดห้องอาบน้ำประมาณ 0.9 x 1.5 เมตร ค่อนข้างกว้าง ยืนอาบได้สะดวก
กลับออกมาที่โถงทางเดิน เราเข้ามาดูพื้นที่โถงด้านในต่อ โดยจากภาพก็จะเห็นว่าโถงทางเดินด้านในจะเชื่อมกับห้องอีก 3 ห้อง คือห้องนอน 2 ห้องทางซ้าย และห้องครัวทางขวา
เรามาดูส่วนของห้องครัวทางขวามือกันก่อนค่ะ โดยห้องครัวที่ได้จะเป็นครัวที่แยกออกเป็นครัวปิดที่ชัดเจน ไม่ต้องกังวลเรื่องกลิ่นในห้องเลยค่ะ
ภายในห้องครัวติดตั้งเคาน์เตอร์ครัวมาให้ครบชุด พร้อมเครื่องดูดควัน แต่ไม่มีเตาไฟฟ้านะคะ
พื้นที่การใช้งานในครัวสามารถยืนทำครัวได้สบายๆ
ชุดเคาน์เตอร์ครัวชิ้นล่างมีซิงค์ล้างจานพร้อมก๊อกน้ำเย็นทรงโค้งติดตั้งมาให้ ส่วนตู้ด้านล่างจะแบ่งเป็นตู้เก็บของใต้ซิงค์, ช่องวางเตาไมโครเวฟ และลิ้นชักพร้อมตะแกรงเก็บพวกจาน ช้อน
พื้นที่เคาน์เตอร์ครัวด้านบนสามารถติดตั้งเตาไฟฟ้าได้ และจะยังเหลือพื้นที่เตรียมอาหารพอสมควรค่ะ
ตู้ด้านบนแบ่งเป็นตู้ย่อยอีก 4 บาน มีพื้นที่ให้เก็บของได้เยอะเลยค่ะ
ติดกับเคาน์เตอร์ครัว จะมีพื้นที่สำหรับวางตู้เย็นและเครื่องซักผ้าได้พอดีๆ
จากห้องครัวเราจะไปดูที่ห้องนอนรองกันต่อ
พื้นห้องนอนทั้ง 2 ห้องจะปูด้วยลามิเนตลายไม้ มีตัวจบติดตั้งไว้ให้เรียบร้อยนะคะ
เข้ามาภายในห้องนอนรองจะมีขนาดพอดีๆ จัดวางฟังก์ชั่นได้ครบไม่แคบค่ะ
จุดเด่นของห้องนี้คือช่องแสงบานใหญ่ กระจกเข้ามุม ที่ช่วยให้ห้องได้รับแสงธรรมชาติเข้ามาได้เต็มๆ และมีบานกระทุ้งที่สามารถเปิดเพื่อระบายอากาศได้ค่ะ
โดยขนาดเตียงที่เหมาะสมกับห้องนี้จะเป็นเตียงขนาด 3.5 ฟุต จะเหลือพื้นที่ข้างเตียงสำหรับวางโต๊ะหัวเตียงได้ แต่ถ้าใครชอบเตียงกว้างๆก็สามารถที่จะเปลี่ยนเป็นเตียงควีนไซส์ได้ แต่จะไม่เหลือพื้นที่ข้างเตียงให้วางโต๊ะหัวเตียงนะคะ
อีกฝั่งของห้องจัดวางตู้เสื้อผ้าและโต๊ะทำการบ้านมาให้ดูเป็นตัวอย่าง
ระยะการใช้งานปลายเตียงเหลือค่อนข้างกว้าง พอให้วางชั้นเก็บของเล็กๆปลายเตียงได้ และยังเหลือระยะเดินอีกพอสมควร
ตู้เสื้อผ้าในห้องนอนรองจะได้เป็นตู้บานเปิด 2 บาน เล็กกว่าในห้อง Master Bedroom ค่ะ
ชุดโต๊ะเขียนหนังสือไซส์มาตรฐาน มีลิ้นชัก 2 ช่อง ระยะการใช้งานพอดีๆ
ถัดมาเรามาดูห้องนอน Master Bedroom กันต่อค่ะ
เข้ามาภายในห้องส่วนแรกจะเป็นพื้นที่ Walk – in Closet ขนาดย่อมๆ ถัดไปเป็นส่วนของห้องนอน และทางขวามือจะเป็นห้องน้ำในตัว
ช่องแสงของห้องนี้ได้เป็นบานเต็มผนัง เป็นบานฟิกซ์ 1 บาน และบานกระทุ้ง 2 บาน
ตู้เสื้อผ้าจะได้เป็นบานสไลด์ 2 ด้าน พร้อมโต๊ะเครื่องแป้งด้านข้าง
ระยะการใช้งานส่วน Walk – in Closet กว้างประมาณ 1.35 เมตร
ขนาดเตียงในห้องนี้จะได้เป็นเตียงขนาดควีนไซส์
มีพื้นที่เหลือข้างเตียงฝั่งติดผนังนิดหน่อยพอให้เดินเข้าไปเปลี่ยนผ้าปูที่นอนได้
พื้นที่ข้างเตียงอีกฝั่งเหลือช่องพอให้วางโต๊ะหัวเตียงตัวเล็กๆได้ค่ะ
พื้นที่ปลายเตียงเหลือค่อนข้างกว้างสามารถวางชั้นวางของปลายเตียงขนาดไม่ใหญ่ได้
ภายในห้องนอนจะมีห้องน้ำในตัวตั้งอยู่ฝั่งปลายเตียง
ภายในห้องน้ำแยกส่วนแห้งส่วนเปียกและจะได้ช่องแสงเป็นหน้าต่างกระทุ้ง 1 บาน สำหรับเปิดระบายอากาศ สุขภัณฑ์ในห้องครบถ้วนทั้งชุดเคาน์เตอร์อ่างล้างมือ, กระจกเงา, โถสุขภัณฑ์พร้อมอุปกรณ์สายชำระ และที่วางผ้าขนหนู
ส่วนพื้นที่ห้องอาบน้ำจะติดตั้ง Shower Box มาให้เรียบร้อย
ภายในห้องอาบน้ำติดตั้งฝักบัวพร้อมเดินระบบไฟรองรับเครื่องทำน้ำอุ่น ส่วนผนังมีเจาะช่องให้เป็นพื้นที่สำหรับวางอุปกรณ์อาบน้ำ
ขนาดห้องอาบน้ำประมาณ 0.9 x 1.2 เมตร พอให้ยืนอาบได้สะดวกค่ะ
ราคา
สรุป
ทำเลที่ตั้งโครงการ – โครงการ JRY RAMA 9 Condo ตั้งอยู่ในซอยถนนพระราม 9 ซอย 17 เข้าซอยไปลึกประมาณ 800 เมตร ภายในซอยมีสภาพแวดล้อมค่อนข้างหลากหลายทั้งบ้านเดี่ยว, อพาร์ทเมนท์, โรงแรม, โรงเรียน และโรงงาน แต่บรรยากาศโดยรวมก็ยังดูเงียบๆ มีแต่รถที่เข้าออกซอยเยอะเท่านั้นค่ะ จึงทำให้การจราจรในซอยคึกคักพอสมควรค่ะ ส่วนความอุดมสมบูรณ์รอบๆโครงการในระยะเดินจะมีร้านตามสั่งและร้านส้มตำข้างโครงการ นอกจากนั้นก็จะมีซุ้มรถเข็นขายอาหารในต้นซอยจำเนียรเสถียรค่ะ ไกลออกมาอีกหน่อยช่วงกลางซอยจะมีร้าน Honey Bee ขายน้ำผึ้ง, อาหาร และร้านสะดวกซื้อจะมี 7 – 11 ต้นซอยค่ะ
นอกจากความอุดมสมบูรณ์ในซอยแล้วก็จะต้องขับรถออกมาไกลหน่อย อย่างเช่นโซนแยกพระราม 9 และเส้นรัชดาภิเษกทั้งเส้นซึ่งจะมีห้างใหญ่หลายแห่ง Central พระราม 9 , Fortune Tower The Street, Esplanade และร้านอาหารให้เลือกหลายร้าน ทั้งแบบราคาย่อมเยาว์และร้านดีๆ ส่วน Hyper Market ที่สามารถแวะซื้อของใช้ในบ้านได้จะมี Big C รัชดาภิเษกและมีตลาดนัดรถไฟรัชดาให้เดินเล่นค่ะ
การเดินทางด้วยรถยนต์ส่วนตัว – เนื่องจากตัวโครงการตั้งอยู่ในซอยระยะทางจากถนนใหญ่ 800 เมตร การใช้รถยนต์จึงสะดวกที่สุดค่ะ แต่การจราจรอาจจะหนาแน่นหน่อย โดยตัวซอยจะสามารถเชื่อมออกมาตรงถนนพระราม 9 และถนนเทียมร่วมมิตรได้ ซึ่งจะสามารถใช้วิ่งเข้าถนนเส้นสำคัญอื่นๆได้ เช่น ถนนประชาอุทิศ, ถนนวัฒนธรรมซึ่งสามารถใช้ลัดเข้าถนนรัชดาภิเษกเพื่อเลี่ยงรถติดบางช่วงได้ นอกจากนั้นยังมีซอยย่อยที่สามารถใช้วิ่งลัดเข้าถึงตัวโครงการได้จากถนนประดิษฐ์มนูธรรมได้อีกเส้นทาง สภาพโดยรวมภายในซอยจะเป็นถนนสองเลน มีสภาพแวดล้อมค่อนข้างหลากหลายทั้งบ้านเดี่ยว, อพาร์ทเมนท์, โรงแรม, โรงเรียน และโรงงาน จึงทำให้การจราจรในซอยคึกคักพอสมควรค่ะ
นอกจากนี้ยังใกล้จุดขึ้นลงทางด่วนศรีรัช และทางด่วนรามอินทรา – อาจณรงค์ สามารถวิ่งเข้าเมืองหรือออกเมืองไปเชื่อมกับถนนกาญจนาภิเษก และมอเตอร์เวย์ไปชลบุรี พัทยาสะดวกเลย
การเดินทางด้วยรถสาธารณะ –อาจจะไม่สะดวกเท่าไหร่ค่ะ เพราะเข้าซอยมาค่อนข้างลึก ประมาณ 800 เมตร แต่ก็ยังพอมีรถ Taxi วิ่งผ่านบ่อยๆ และ วินมอเตอร์ไซค์อยู่ไม่ไกลจากโครงการ ใช้วิ่งไปส่งหน้าปากซอยแล้วต่อรถเมล์ได้แต่ต้องข้ามถนนหน่อย โดยจะมีรถเมล์สาย 137, 168, 171ร, 515, 555 และทางโครงการมีรถรับส่งจากโครงการไปปากซอยฝั่งพระราม 9 และ MRT ศูนย์วัฒนธรรม ไว้อำนวยความสะดวกให้ ซึ่งต้องคอยดูว่าความหนาแน่นในการใช้บริการมีมากเท่าไหร่ ถ้าไม่ต้องรอคิวนานก็เดินทางกันได้สะดวกสบายเลยค่ะ นอกจากนั้นในอนาคตจะมีรถไฟฟ้าสายสีส้ม โดยสถานีที่ประดิษฐ์มนูธรรม ตั้งอยู่ไม่ไกลจากซอยโครงการ ที่จะช่วยทำให้การเดินทางด้วยรถสาธารณะสะดวกขึ้นมากค่ะ
การออกแบบโครงการและวัสดุ – โครงการ JRY Rama9 Condo ออกแบบมาเป็นอาคาร Low Rise สูง 8 ชั้น จำนวนยูนิตไม่เยอะ 157 ยูนิต บนพื้นที่ดินขนาด 1 – 1 – 74 ไร่ อาคารรูปทรงสี่เหลี่ยมเป็นตัว U เต็มที่ดิน จัดพื้นที่ส่วนกลางไว้กลางอาคาร ทำให้ได้ความเป็นส่วนตัวเหมือนหลบมาอยู่ใน Paradise ส่วนตัว สำหรับการออกแบบอาคารจะมาในสไตล์โมเดิร์นเรียบๆ ใช้โทนขาวและเทาเป็นหลัก ที่ชั้น 1 เป็นที่จอดรถ ทั้งใต้อาคาร และกลางแจ้ง ทั้งโครงการจอดได้ 70 คัน หรือ 45%ไม่รวมซ้อนคัน หรือ 60% รวมซ้อนคันค่ะ ส่วนชั้นพักอาศัยจะเริ่มที่ชั้น 2 – 8 ส่วนกลางหลักอยู่ที่ชั้น 2 ซึ่งลูกบ้านสามารถเข้าใช้ได้จากภายในอาคารA และ C
การออกแบบห้องพักอาศัยที่นี่มีให้เลือกทั้งแบบ 1 Bedroom, 2 Bedroom และ Duplex ห้องออกแบบมาดูโปร่งไม่อึดอัด ฝ้าสูง 2.55 ม. โครงการขายแบบ Fully Furnished ของที่ได้จะมี Digital Door Lock ชุดเคาน์เตอร์ครัว, ซิงค์ล้างจาน พร้อม Hob & Hood, ชั้นวางทีวี, ตู้เสื้อผ้า สุขภัณฑ์ภายในห้องน้ำของ Kohler พร้อมฉากกั้นส่วนเปียก แอร์ได้แบบติดผนังตรงห้องนั่งเล่นและทุกห้องนอน (1 Bedroom ได้แอร์ 2 ตัวและ 2 Bedroom ได้แอร์ 3 ตัว)
1สิ่งอำนวยความสะดวก – Facility หลักๆของโครงการจัดมาให้กลางๆ เหมาะกับขนาดโครงการ โดยที่ส่วนกลางหลักบนชั้น 2 จะมีสระว่ายน้ำระบบเกลือ ขนาด 6 x 16 เมตร แยกสระเด็กลึก 0.6 เมตร สระผู้ใหญ่ ลึก 1.2 เมตร, Fitness ภายในมีเครื่องเล่นประมาณ 8 ชิ้น, ห้องสมุด, สวน Rooftop และ Free WiFi บนพื้นที่ส่วนกลางทุกส่วน
ลิฟต์โดยสารมีให้ 2 ตัว ที่จอดรถจอดได้ 60% รวมซ้อนคัน ระบบรักษาความปลอดภัยมีรปภ. มี CCTV และผ่านเข้าออกด้วย Sticker ติดหน้ารถ
คะแนน
| ทำเลที่ตั้งโครงการ | 7.5 | เข้าซอยจากถนนหลักมาประมาณ 800 เมตร บรรยากาศโดยรวมสงบดี แต่รถผ่านไปมาในซอยเยอะ ความอุดมสมบูรณ์ในระยะใกล้มีพอประมาณ แต่ถ้าจะซื้อของใช้หลักๆก็จะต้องขับออกไปไกลหน่อยค่ะ แต่ยังอยู่ในโซนพระราม 9 |
| การเดินทาง ใช้รถ | 8.0 | เชื่อมออกได้หลายเส้นทาง เข้าออกเมืองสะดวก ใกล้จุดขึ้นลงทางด่วน |
| การเดินทาง ไม่ใช้รถ | 7.75 | มีรถรับส่งของโครงการออกมาปากซอยและไป MRT ศูนย์วัฒนธรรม, หน้าโครงการมี Taxi, วินมอเตอร์ไซค์, หน้าปากซอยมีรถเมล์ และอนาคตใกล้รถไฟฟ้าสายสีส้ม |
| ห้องและวัสดุ | 8.0 | มีขนาดห้องให้เลือกหลากหลาย ตั้งแต่ 1 Bed มาตรฐานไปจนถึง Duplex ขนาดใหญ่ โดยรวมออกแบบมาให้ความรู้สึกอบอุ่นดีค่ะ วัสดุที่ใช้อยู่ในระดับมาตรฐาน ขายแบบ Fully Furnished |
| สิ่งอำนวยความสะดวก | 7.75 | Facility มีครบ Lobby, สวนหย่อมรอบโครงการและ Rooftop, ฟิตเนส, สระว่ายน้ำ, ห้องสมุด |
| ความคุ้มค่ากับราคา | 7.75 | รูปแบบโครงการออกแบบมาได้น่าอยู่ ทำเลอนาคตใกล้รถไฟฟ้าสายสีส้ม แต่ถ้าไม่มีรถอาจจะเดินทางลำบากหน่อยและรถอาจจะติดในช่วงเวลาเร่งด่วนหนาแน่นเพราะมีโรงเรียน, โรงงานและบริษัทในซอยหลายแห่งค่ะ |
| คะแนนรวมเฉลี่ย | 7.79 | ดี |
สอบถามรายละเอียดเพิ่มเติมได้ที่
Tel : 091-718-7333 , 063-297-8333 , 02-719-7775
หากเพื่อนๆเห็นว่ารีวิวนี้มีประโยชน์ ช่วยกด Like เพื่อเป็นกำลังใจให้ทีมงาน ขอบคุณค่ะ
และมีความคิดเห็นหรือข้อมูลเพิ่มเติมเกี่ยวกับตัวโครงการ สามารถ Comment ได้ที่ด้านล่างของรีวิวค่ะ
แสดงความคิดเห็น เกี่ยวกับ " EP.81 รีวิว JRY คอนโด พระราม 9 ราคาเริ่ม 2.7 ล้านบาท "