
EP.15 รีวิว คอนโด ไนท์บริดจ์ แบริ่ง 6 (สุขุมวิท 107) Knightsbridge Bearing 6 (Sukhumvit 107)
สวัสดีผู้อ่าน Condonayoo ทุกคนค่ะ วันนี้เราจะพาไปชมทำเลของโครงการ Knightsbridge แบริ่ง 6 (สุขุมวิท 107) จาก Origin Property เป็นโครงการคอนโดมิเนียมบนถนนแบริ่ง ตำบลสำโรงเหนือ อำเภอเมืองสมุทรปราการ จังหวัดสมุทรปราการ อยู่ในย่านชุมชน ไม่ไกลจากสถานศึกษา, สถานที่ราชการ สองข้างทางมีร้านค้า ร้านอาหาร ไปยังห้างสรรพสินค้า, ตลาดสดและสถานีรถไฟฟ้าได้สะดวก
ไนท์บริดจ์ แบริ่ง 6 (สุขุมวิท 107) เป็นคอนโด High Rise สูง 25 ชั้น จำนวน 1 อาคาร พื้นที่โครงการ 1- 1 – 56.0 ไร่ ยูนิตพักอาศัย 276 ยูนิต มีให้เลือก 3 แบบ คือแบบ 1-2 ห้องนอนและ Duplex โดยขนาดพื้นที่ใช้สอยจะเริ่มตั้งแต่ 25.0-57.0 ตร.ม. สร้างเสร็จพร้อมอยู่ 2558
สิ่งอำนวยความสะดวก มีให้ครบครัน พื้นที่ส่วนกลางมีสระว่ายน้ำระบบเกลือ, ห้องออกกำลังกาย, พื้นที่พักผ่อนนั่งเล่นริมสระ, สวนดาดฟ้า, ลิฟต์โดยสาร 2 ตัว, พื้นที่จอดรถภายในอาคารและโดยรอบอาคาร ประมาณ 45% (รวมจอดซ้อนคัน), กล้องวงจรปิดภายในโครงการ และรปภ.ตลอด 24 ชั่วโมง ราคา Resale ปัจจุบันราคาเริ่มต้นประมาณ 2.2 ล้านบาท (เฉลี่ย 85,700-88,000 /ตร.ม.) (ส.ค.2560)
วันนี้เราจะพาท่านผู้อ่านไปสำรวจสถานที่ วิเคราะห์ทำเล และพื้นที่รอบๆโครงการว่าเป็นอย่างไรบ้างค่ะ
| ชื่อโครงการ | ไนท์บริดจ์ แบริ่ง 6 (สุขุมวิท 107) Knightsbridge Bearing 6 |
| เจ้าของโครงการ | ออริจิ้น พร๊อพเพอรตี้ |
| ลักษณะห้องและขนาดห้อง | 1 Bed / 25.0 – 46.0 ตร.ม. 2 Bed / 40.0 – 59.0 ตร.ม. Duplex / 46.5 – 57.0 ตร.ม. |
| เนื้อที่ทั้งหมด | 1 ไร่ 1 งาน 56.00 ตร.ม. |
| จำนวนตึก | 1 อาคาร |
| จำนวนชั้น | 25 ชั้น |
| จำนวนห้อง | 276 ยูนิต |
| ที่จอดรถทั้งหมด | ประมาณ 45% (รวมจอดซ้อนคัน) |
| โซน | สมุทรปราการ, บางพลี, บางบ่อ, พระประแดง |
| ขนส่งสาธารณะ | รถไฟฟ้า BTS แบริ่ง |
| รถโดยสารที่ผ่าน | n/a |
| ที่ตั้ง | ถนนสุขุมวิท 107 (ซอยแบริ่ง 6, ซอยสันติคาม 5) ตำบลสำโรงเหนือ อำเภอเมืองสมุทรปราการ จังหวัดสมุทรปราการ |
| กำหนดการ | n/a |
| ปีที่สร้างเสร็จ | พ.ศ. 2558 (สร้างเสร็จพร้อมอยู่) |
| ราคา | Resale เริ่มต้น 2.2 ล้านบาท (ก.ค.2560) |
| ราคาเฉลี่ยต่อ ตร.ม | เริ่มต้นเฉลี่ย 85,700-88,000 /ตร.ม. |
| สถานที่สำคัญใกล้เคียง |
|
| สิ่งอำนวยความสะดวก | – สระว่ายน้ำ – ฟิตเนส – ซาวน่า – รปภ.,กล้องวงจรปิดโครงการ – ประตู Key Card, สตรีม, สวนหย่อม, ห้องสมุด |
| จุดเด่นของโครงการ | Knights Bridge Condominium คอนโดไฮไรซ์ คอนโดระดับพรีเมียม สไตล์ อังกฤษ ตั้งอยู่บริเวณปากซฮยแบริ่ง 6 และ ถนนสุขุมวิท 107 โดยห่างจากถนนสุขุมวิทประมาณ 300 เมตร และห่างจากสถานีรถไฟฟ้า BTS ประมาณ 600 เมตร |
ที่ตั้งโครงการ
พิกัด google map : 13.657619, 100.603688
ถนนสุขุมวิท 107 (แบริ่ง) ตำบลสำโรงเหนือ อำเภอเมืองสมุทรปราการ จังหวัดสมุทรปราการ
โครงการ Knightsbridge แบริ่ง ตั้งอยู่บนถนนแบริ่ง (สุขุมวิท 107) เป็นถนนที่เชื่อมกับถนนสุขุมวิท และศรีนครินทร์ มีความอุดมสมบูรณ์ตลอดสองข้างทาง ร้านค้า และร้านอาหารมีตลอดแนว เป็นย่านพักอาศัยที่มีทั้งคอนโดมิเนียมและบ้านพักอาศัย 1-2 ชั้น บนถนนมีรถสองแถววิ่งผ่านเป็นระยะ สามารถไปยังรถไฟฟ้าสายสีเขียวอ่อนได้ง่าย สถานีที่ใกล้ที่สุดคือสถานีแบริ่ง
ที่ตั้งโครงการ ตั้งอยู่บนถนนแบริ่ง ซึ่งเป็นถนนที่เชื่อมระหว่างสุขุมวิทและถนนศรีนครินทร์ ขนานกับถนนลาซาลและเทพารักษ์ เดินทางลัดเลาะไปได้หลายเส้นทาง ใกล้จุดขึ้น-ลงทางด่วนบูรพาวิถีและวงแหวนรอบนอกกาญจนา
การเดินทางด้วยรถยนต์ส่วนตัว ถือว่าสะดวกทีเดียวเนื่องจากที่ตั้งโครงการเชื่อมกับสองถนนใหญ่นั่นคือสุขุมวิทและศรีนครินทร์ สามารถลัดเลาะไปถนนลาซาลและสุขุมวิท 109 ได้ไม่ยาก ทำให้สามารถไปเชื่อมกับถนนสุขุมวิทได้หลายจุด ถนนแบริ่งเป็นถนนสี่เลนใหญ่ไม่มีเกาะกลาง มีการสัญจรคึกคัก ปากทางเข้าเชื่อมระหว่างถนนสุขุมวิทอีกด้านคือถนนศรีนครินทร์ โดยถนนสุขุมวิทนั้นเป็นถนนหลักเส้นหนึ่งที่สามารถตรงเข้าตัวเมืองสมุทรปราการและตรงไปยังกรุงเทพมหานคร ถ้าตรงไปยังสมุทรปราการก็ผ่านสำโรง, ปากน้ำ, ถนนปู่เจ้าสมิงพรายและวิ่งข้ามไปยังพระราม 3 จากทางนี้ได้ ส่วนถนนศรีนครินทร์นั้นเป็นถนนเส้นยาวที่วิ่งคู่ไปกับถนนสุขุมวิทและไปเชื่อมกันแถวปากน้ำ ตรงไปยังถนนบางนาได้ ดังนั้นถ้ามาจากทางบางนา-ตราด,หรือเทพารักษ์ก็วิ่งถนนศรีนครินทร์จะคล่องตัวกว่า
ถนนสุขุมวิทนั้นถ้าวิ่งมุ่งหน้าตรงเข้าเมืองกรุงเทพก็จะผ่านถนนบางนา-ตราด, แยกอโศก ไปยังถนนพระราม 1,ถนนพระราม 4 และเนื่องจากเป็นถนนเส้นยาวจึงตรงไปได้หลายพื้นที่ทั้งพระราม 9, รามคำแหง,อ่อนนุช, พัฒนาการ,เพชรบุรี และจากที่ตั้งโครงการสามารถไปยังถนนเทพารักษ์ได้ไม่ยาก ถนนนี้จะเป็นย่านพักอาศัย โรงงาน บริษัทเอกชนดังนั้นถ้าใครทำงานย่านนี้ก็เดินทางได้สะดวก
การเดินทางด้วยรถสาธารณะ ถือว่าสะดวกพอสมควร หน้าโครงการมีรถสองแถวผ่านเป็นระยะ แท็กซี่ก็เรียกได้ไม่ยาก หรือจะนั่งวินมอเตอร์ไซค์ไปปากซอยแบริ่งประมาณ 10 บาท หรือถ้าไปสถานีรถไฟฟ้าแบริ่งก็ 20 บาท ส่วนถนนแบริ่งนั้นก็มีรถสองแถวผ่านเป็นระยะ แท็กซี่ก็เรียกได้ไม่ยาก อีกทั้งตรงถนนสุขุมวิทจะมีรถไฟฟ้าสายสีเขียว สถานีที่ใกล้ที่สุดคือสถานีแบริ่งซึ่งเป็นสถานีที่เชื่อมกับส่วนต่อขยาย ปัจจุบันสามารถไปถึงสถานีสำโรงได้
ส่วนต่อขยายจะเริ่มจากสถานีสำโรงวิ่งตามถนนสุขุมวิทเข้าสมุทรปราการไปจนถึงสถานีตำหรุ ซึ่งทำให้เดินทางไปยังสมุทรปราการได้สะดวกยิ่งขึ้นถ้ามีการเปิดใช้งาน
ทางด่วน อยู่ใกล้จุดขึ้น-ลงทางด่วนซึ่งเป็นจุดที่ต่อเนื่องระหว่างทางด่วนบูรพาวิถีและทางด่วนเฉลิมมหานคร โดยถ้าขึ้นแล้วตรงไปยังทางด่วนเฉลิมมหานครก็จะเข้าตัวเมืองกรุงเทพ แต่ถ้าไปแล้วตรงตามทางด่วนบูรพาวิถีก็จะเป็นเส้นที่ออกนอกเมืองตรงไปยังชลุบุรีได้ค่ะ
วงแหวนรอบนอกกาญจนา ไม่ไกลจากจุดขึ้น-ลงโดยเส้นนี้เป็นถนนที่เดินทางรอบนอกกรุงเทพได้สะดวก ทำให้ไปยังต่างจังหวัดและปริมณฑลได้
ความอุดมสมบูรณ์ เนื่องจากที่ตั้งโครงการอยู่ในย่านพักอาศัย โดยรอบเป็นบ้านพักอาศัยและอาคารพาณิชย์ มีทั้งบ้านพักอาศัยแบบบ้านเดี่ยว 1-2 ชั้นและคอนโดมิเนียม ไม่ไกลมีร้านสะดวกซื้อหรือถ้าเดินเลยไปอีกสองซอยประมาณซอย 10 ก็จะมีพื้นที่ร้านค้า ตรงนั้นจะมีทั้งร้านค้าและร้านอาหารหลากหลายค่ะ
ส่วนถนนแบริ่งนั้นก็คึกคัก สองข้างทางมีทั้งสถานศึกษาและร้านค้า ปากซอยเป็นโซนของร้านอาหารแบบสตรีทฟู้ด ร้านค้ารถเข็น มีทั้งวัตสันและร้านกาแฟด้วย โดยรอบทั้งถนนแบริ่งและลาซาลจะเป็นที่ตั้งของสถานศึกษาทั้งโรงเรียนนานาชาติและโรงเรียนมัธยม ไม่ไกลจากวัดวาอาราม ถ้าจะไปห้างสรรพสินค้าเพื่อจับจ่าใช้สอยก็ไปแถวสำโรงจะมีทั้ง BigC และ Imperial สำโรง อีกทั้งตรงนั้นจะไม่ไกลจากตลาดสดค่ะทั้งตลาดสำโรงและตลาดเอี่ยมเจริญ หรือจะลัดเลาะไปยังตลาดลาซาลก็สะดวก
ถ้าจะไปจับจ่ายใช้สอย ซื้อของ ซื้อเฟอร์นิเจอร์เข้าบ้าน ก็ไปเส้นบางนา-ตราด เส้นนั้นจะมีทั้งเซ็นทรัลบางนา, อิเกีย, เมกะบางนา เป็นห้างสรรพสินค้าใหญ่ที่รวมร้านค้าและร้านอาหารมากมาย สามารถไปพักผ่อนวันหยุด ไปทานอาหารอร่อยๆกันได้ไม่ยาก
แยกและถนนสำคัญใกล้เคียง
การเดินทาง
เรามีภาพการเดินทางโดยรถมาให้ชมกัน เส้นทางการเดินทางตามลูกศรแดง โดยเริ่มเดินทางจาก มุ่งหน้าไปตามถนนสุขุมวิท→ ผ่านแยกบางนา→ ผ่าน BTS บางนา → ผ่าน BTS แบริ่ง → เลี้ยวซ้ายเข้าถนนแบริ่ง(สุขุมวิท 107) → ตรงไปประมาณ 300 ม. ก็จะถึงโครงการ Knightsbridge แบริ่ง แล้วค่ะ
เดินทางตามถนนสุขุมวิทมาเรื่อยๆตรงไปยังสมุทรปราการ ผ่านถนนอุดมสุข
ตรงมาผ่านแยกบางนา แยกนี้ถ้าเลี้ยวซ้ายจะวิ่งเข้าถนนบางนา-ตราด เลี้ยวขวาเข้าถนนสรรพาวุธ
ตรงไปผ่าน Bitec บางนาทางซ้ายมือ
ผ่าน BTS บางนา
ผ่าน BTS แบริ่ง ด้านซ้ายวิ่งเข้าถนนลาซาล
ผ่าน BTS แบริ่งมาแยกแรกก็ให้เลี้ยวซ้ายเข้าถนนแบริ่งได้เลยค่ะ
จากถนนสุขุมวิทเลี้ยวเข้าถนนแบริ่งหรือถนนสุขุมวิท 107 ไปเพียง 300 ม.เท่านั้นค่ะ โครงการจะอยู่ทางขวามือ
ผ่านโรงเรียนนานาชาติ สองข้างทางมีร้านค้า ร้านอาหารมากมาย
ตรงมาเรื่อยๆในซอยยังคงมีร้านค้า และร้านอาหาร ด้านซ้ายส่วนใหญ่เป็นบ้านพักอาศัย ส่วนทางขวาเป็นร้านค้าและอาคารพาณิชย์
จากปากซอย 300 ม.ก็ถึงโครงการแล้วค่ะ โครงการจะอยู่ทางขวามือ ทางเข้า-ออกอยู่ติดกับถนนแบริ่ง
บริเวณโดยรอบโครงการ
โครงการ Knightsbridge แบริ่ง โดยรอบเป็นบ้านพักอาศัย 1-2 ชั้น และอยู่ติดกับคอนโดมิเนียมสูง 27 ชั้น ตรงข้ามเป็นสำนักงานขายคอนโดมิเนียม บ้านพักอาศัย 1-2 ชั้นและที่ดินเปล่า วิวห้องด้านหน้าจึงไม่โดนบังวิว ด้านหลังเป็นคอนโดมิเนียมสูง 8 ชั้น ใกล้กันนั้นยังไม่ค่อยมีอาคารสูง ทำให้ห้องในโครงการยังไม่โดนบังวิวค่ะ
หน้าโครงการเป็นถนนแบริ่ง ตรงข้ามเป็นพื้นที่ดินเปล่าและบ้านพักอาศัยสูง 1-2 ชั้น ทำให้โครงการไม่โดนบังวิว
ด้านขวามือตรงไปยังถนนศรีนครินทร์ สองข้างทางมีฟตุบาทให้เดินได้สะดวก
ติดกับโครงการเป็นซอยแบริ่ง 6 ปากซอยมีวินมอเตอร์ไซค์ สามารถเรียกใช้บริการได้สะดวก
ราคาวินมอเตอร์ไซค์ ณ เดือนกรกฎาคม 2560 ค่ะ
เดินมาไม่ไกลจะเป็นร้านค้า มีคาเฟ่ คลินิกและร้านขายยา
ติดกันนั้นก็มีร้านค้าและร้านอาหาร ตรงข้ามมีร้าน 7/11 ค่ะ
ต่อไปจะพาเดินไปชมทางซ้ายมือของโครงการ จนไปถึงรถไฟฟ้าสายสีเขียวสถานีแบริ่งกันเลยนะคะ
ทางขวามือตรงไปยังถนนสุขุมวิท ปากซอยจะมีร้านค้าและร้านอาหารมากมาย
ตรงมาสองข้างทางก็ยังคึกคัก มีร้านค้าและร้านอาหารตลอดทาง
ร้านอาหารญี่ปุ่น, คาเฟ่, ร้านอาหารไทยก็มีให้เลือก
ร้านอาหารและบ้านพักอาศัย
ร้านค้าและร้านอาหาร ฝั่งตรงข้ามเป็นบ้านพักอาศัยสูงไม่เกิน 2 ชั้น
ร้านค้าและอาคารพาณิชย์ริมข้างทาง
ร้านค้าและร้านอาหาร โดยจะมีตั้งแต่เช้าไปจนถึงเย็นๆ ตรงข้ามคือโรงเรียนนานาชาติ St.Andrew ติดกันนั้นมีร้านวัตสัน
ร้านค้าและร้านอาหารทั้งสองข้างทางค่ะ
ร้านอาหารทั้งความหวาน ผลไม้ และวินมอเตอร์ไซค์วินใหญ่อยู่ปากซอยเลย
ปากซอยแบริ่งจะเป็นถนนสุขุมวิท
ด้านซ้ายมี 7/11 ร้านใหญ่
ด้านขวาเป็นร้านค้าและร้านอาหาร มุ่งหน้าตรงไปยัง BTSแบริ่ง
ร้านผลไม้ร้านใหญ่ ราคาและชนิดผลไม้ก็มีให้เลือกหลากหลาย
อาคารพาณิชย์และคาเฟ่ ร้านกาแฟ
ข้างทางมีร้านกาแฟ ร้านอาหารอยู่ตลอดค่ะ
ใกล้ BTS ก็ยังคงมีร้านอาหารหลายร้าน ถนนเส้นนี้จะคึกคักตลอด ตอนดึกๆเลิกงานมาก็ไม่เปลี่ยวเพราะจะมีแม่ค้า พ่อค้ามาตั้งแผงขายของกันหลัง 6 โมงเย็นไปจนถึงสี่ทุ่มกันเลย
ร้านกาแฟอเมซอน และร้านอาหาร สถานีรถไฟฟ้าที่เห็นคือสถานีแบริ่งนะคะ เป็นสถานีที่ใกล้โครงการมากที่สุด สามารถมาใช้งานได้สะดวก

สถานที่สำคัญ
โครงการ
ประตูทางเข้า-ออกอยู่ติดกับถนนแบริ่ง ด้านข้างมีป้ายชื่อโครงการเห็นได้ชัดเจน ป้ายเป็นพุ่มไม้ที่มีตัวอักษรสีทอง
ด้านหน้าโครงการที่อยู่ติดกับถนนแบริ่ง ด้านข้างติดกับทางเข้า-ออกมีป้อม รปภ.ประจำป้อมตลอด 24 ชั่วโมง
ด้านข้างโครงการอีกฝั่งอยู่ติดกับบ้านพักอาศัย 1-2 ชั้น ทำให้ห้องฝั่งนี้ไม่โดนบังวิวเลยค่ะ
ด้านข้างของโครงการที่อยู่ติดกับซอย 6 อยู่ห่างจากโครงการด้านข้างพอสมควรเพราะมีซอย 6 กั้นอยู่ ทำให้ห้องในโครงการยังพอมีระยะห่างจากห้องของอีกโครงการ
ชั้น 1-5 จะเป็นพื้นที่ของชั้นจอดรถทั้งหมด ชั้น6 จะเป็นชั้นแรกของพื้นที่พักอาศัย ภายในตัวอาคารมีลิฟต์โดยสารให้ 2 ตัวและลิฟต์เซอร์วิสแยกต่างห่ากอีก 1 ตัว และโดยการจัดแผลนที่ให้ลิฟต์อยู่ตรงกลาง มีทางเดินไปยังสองฝั่งของอาคารทำให้ไม่มีห้องไหนต้องเดินไกลเกินไปค่ะ อีกทั้งชั้นนี้ห้องที่อยู่ติดริมถนนแบริ่งจะมีพื้นที่สวนที่เป็นพื้นที่สวนแนวยาวของโครงการ แต่ไม่สามารถออกไปใช้งานได้นะคะ
ชั้น 12 จะเป็นชั้นพักอาศัยทั้งหมด การวางแปลนแทบจะเหมือนชั้น 6 เลยเพียงแต่ต่างกันตรงที่ชั้นนี้จะมีห้อง Duplex ทั้มหมด 9 ห้อง โดยสังเกตได้จากห้องที่จะมีบันไดในตัว
ชั้น 12A จะเป็นชั้นบนของห้องแบบ Duplex ค่ะ ส่วนห้องอื่นก็เป็นห้องแบบ 1-2 ห้องนอน
ชั้น 14 เป็นชั้นพักอาศัยทั้งหมด มีห้องแบบ 1-2 ห้องนอน
ชั้น 21 เป็นชั้นพักอาศัยทั้งหมด มีห้องแบบ 1-2 ห้องนอน
ชั้น 22 เป็นชั้นพักอาศัยทั้งหมด มีห้องแบบ 1-2 ห้องนอน และ Duplex อีกทั้งด้าหน้าห้องที่อยู่ฝั่งติดถนนแบริ่งจะมีพื้นที่่สวนริมระเบียง แต่สวนไม่สามารถเดินเข้าไปใช้งานได้นะคะ โดยชั้นนี้เป็นชั้นพักอาศัยที่มีห้องน้อยลงค่ะ
ชั้น 23 เป็นชั้นพักอาศัยทั้งหมด มีห้องแบบ 1-2 ห้องนอน และ ชั้นบนของห้อง Duplex 
ชั้น 24 เป็นชั้นส่วนกลางทั้งหมด มีพื้นที่สระว่ายน้ำ ฟิตเนสและพื้นที่นั่งเล่น พักผ่อน
ภาพบรรยากาศจำลอง สระว่ายน้ำ
ชั้น 25 เป็นชั้นดาดฟ้า ซึ่งโครงการได้ทำเป็นสวน
ภาพบรรยากาศจำลอง สวนนั่งเล่นค่ะ
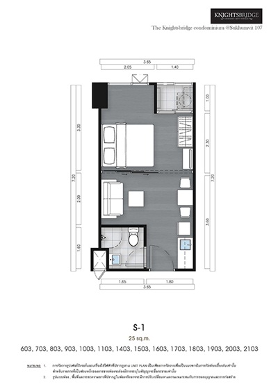
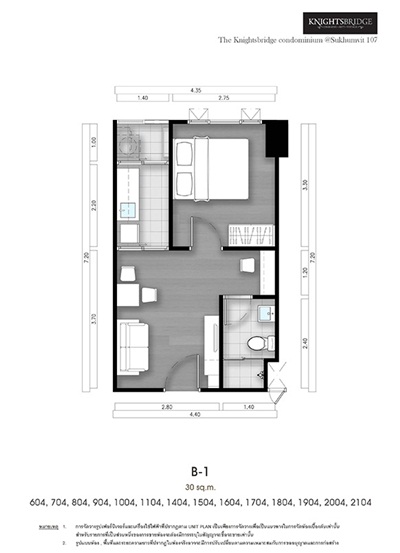
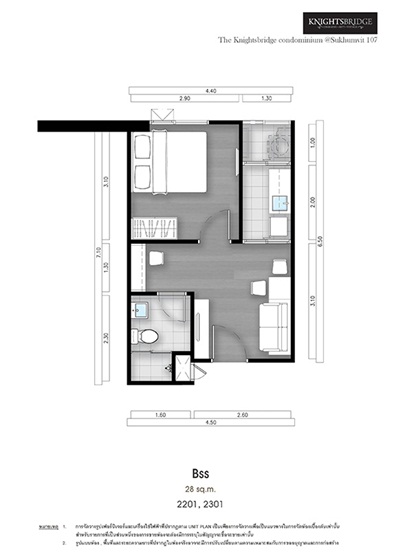
แบบห้องในโครงการ
มีทั้งหมด 16 แบบด้วยกัน
1 Bedroom Type S-1 / Sb-1 / Type Sx / Type Bs / Type Bss / Type B-1





1 Bedroom Type : Type Bb-1 / Type Bc / Type B-plus / Type Balcony-1 / Type 2Bs-2




2 Bedroom Type : Type 2B-1 / Type 2Bb-L / Type 2b-garden1 / Type Duplex-s1 / Type Duplex-1
ราคา (ส.ค.2560)
เนื่องจากโครงการนี้ได้ SOLD OUT หมดนานแล้ว ดังนั้นห้องที่ปล่อยขายหลังจากนี้จึงจะเป็นลักษณะ Resales หรือปล่อยเช่าค่ะ ซึ่งราคาจะขึ้นอยู่กับสภาพภายในห้อง และ การตกแต่งของเจ้าของห้อง หรือผู้เช่าเดิม หากผู้สนใจสามารถติดต่อเอเจนซี่ หรือเจ้าของห้อง เพื่อตกลงราคาซื้อขายกันต่อไปได้ค่ะ ซึ่งราคาที่เรานำเสนอด้านล่างนั้น เป็นเพียงการเก็บข้อมูลของผู้เขียนเท่านั้นนะคะ
สนใจติดต่อสอบถามเพิ่มเติมได้ที่
Tel : 02-744-4270
Website : http://knbcondo.origin.co.th/knb1/index.php
หากเพื่อนๆเห็นว่ารีวิวนี้มีประโยชน์ ช่วยกด Like เพื่อเป็นกำลังใจให้ทีมงาน ขอบคุณค่ะ
และมีความคิดเห็นหรือข้อมูลเพิ่มเติมเกี่ยวกับตัวโครงการ สามารถ Comment ได้ที่ด้านล่างของรีวิวค่ะ
คอนโด สมุทรปราการ ทำเลอื่นๆ ที่น่าสนใจ…
คอนโด ไอดีโอ สุขุมวิท 115
คอนโด Very III สุขุมวิท 72
คอนโด KNIGHTSBRIDGE SKY RIVER OCEAN
คอนโด THE KITH PLUS สุขุมวิท 113
คอนโด เอ สเปซ เมกา
คอนโด The Port Grand Riverfront
คอนโด The Port สุขสวัสดิ์
คอนโด นิช ไอดี สุขุมวิท 113
คอนโด The Gallery แบริ่ง 6
คอนโด Knightsbridge แบริ่ง 6 (สุขุมวิท 107)
คอนโด เคนซิงตัน แบริ่ง 12 (สุขุมวิท 107)
แสดงความคิดเห็น เกี่ยวกับ " EP.15 รีวิว คอนโด Knightsbridge แบริ่ง 6 (สุขุมวิท 107) ใกล้รถไฟฟ้า BTS แบริ่ง "