
คอนโด ลุมพินี เซ็นเตอร์ สุขุมวิท 77 Lumpini Center Sukhumvit 77
Lumpini Center สุขุมวิท 77 จาก LPN ตั้งอยู่บนถนนสุขุมวิท 77 แขวงสวนหลวง เขตสวนหลวง กทม. ใกล้รถไฟฟ้า BTS อ่อนนุช ใกล้ทางด่วนพิเศษฉลองรัช, เทสโก้ โลตัส อ่อนนุช, บิ๊กซี เอ็กซ์ตร้า อ่อนนุช, ตลาดอ่อนนุช, ซีคอนสแควร์, พาราไดซ์พาร์ค และ รพ.กล้วยน้ำไท
ลุมพินี เซ็นเตอร์ สุขุมวิท 77 เป็นคอนโด High Rise 9 ชั้น 5 อาคาร พื้นที่โครงการขนาด 2,640 ตร.วา. ห้องพักอาศัยรวม 872 ยูนิต มีห้องพักให้เลือกแบบสตูดิโอ, 1 ห้องนอน และ 2 ห้องนอน ขนาดเริ่มต้น 27.5-58.00 ตร.ม. สร้างเสร็จพร้อมอยู่ปี 2548
สิ่งอำนวยความสะดวกในโครงการครบครัน อาทิ โถงต้อนรับ, ห้องตู้จดหมาย, สระว่ายน้ำ, ฟิตเนส, สวนพักผ่อน, Access Card Control, ที่จอดรถ, กล้องวงจรปิด, ระบบรักษาความปลอดภัยตลอด 24 ชม. ราคาเริ่มต้น ประมาณ 1 ล้านบาท*
| ชื่อโครงการ | ลุมพินี เซ็นเตอร์ สุขุมวิท 77 Lumpini Center Sukhumvit 77 |
| เจ้าของโครงการ | ลุมพินี – LPN Development |
| ลักษณะห้องและขนาดห้อง | – Studio / 1 Bedroom /2 Bedroom – ขนาดเริ่มต้น 27.5-58.00 ตร.ม. |
| เนื้อที่ทั้งหมด | 2,640 ตร.วา. |
| จำนวนตึก | 5 อาคาร |
| จำนวนชั้น | 9 ชั้น |
| จำนวนห้อง | 872 ยูนิต |
| ที่จอดรถทั้งหมด | n/a |
| โซน | สุขุมวิท |
| ขนส่งสาธารณะ | รถไฟฟ้า BTS อ่อนนุช 900 เมตร |
| รถโดยสารที่ผ่าน | n/a |
| ที่ตั้ง | ซอยสุขุมวิท 77 ถนนอ่อนนุช แขวงสวนหลวง เขตสวนหลวง กทม.10250 |
| กำหนดการ | โครงการพร้อมอยู่ |
| ปีที่สร้างเสร็จ | n/a |
| ราคา | เริ่ม 1 ล้านบาท วันเปิดตัว |
| ราคาเฉลี่ยต่อ ตร.ม | เริ่มต้น ประมาณ 42,000 บาท/ตร.ม. |
| สถานที่สำคัญใกล้เคียง | – เทสโก้ โลตัส อ่อนนุช – บิ๊กซี เอ็กซ์ตร้า อ่อนนุช – ตลาดอ่อนนุช – ซีคอนสแควร์ – พาราไดซ์พาร์ค – รพ.กล้วยน้ำไท |
| สิ่งอำนวยความสะดวก |
|
ที่ตั้งโครงการ
ซอยสุขุมวิท 77 (อ่อนนุช) แขวงสวนหลวง เขตสวนหลวง กรุงเทพฯ
คลิก เพื่อดูแผนที่ขนาดใหญ่
การเดินทาง

คลิก เพื่อดูแผนที่ขนาดใหญ่
การเดินทางผมเริ่มจาก สี่แยกอโศก(สุขุมวิท) > ถนนสุขุมวิท > เลี้ยวซ้ายเข้า ถนนสุขุมวิท 77 (อ่อนนุช) > คอนโด ลุมพินี เซ็นเตอร์ สุขุมวิท 77
ผมเริ่มเดินทางจาก สี่แยกอโศก (สุขุมวิท) ขับไปทางบางนา
ขับมาเรื่อยๆ ผ่านสถานี ฺBTS พร้อมพงษ์
ผ่านสถานี BTS ทองหล่อ
ผ่านสถานี BTS เอกมัย
ผ่านสถานี BTS พระโขนง
หลังจากเราขับมาถึงแยกพระโขนง ให้เราขับตรงไปครับ
ผ่านแยก ปรีดี พนมยงค์ ตอนนี้ให้เราขับตรงไปครับ
ข้ามคลองพระโขนงมาแล้ว หลังจากนั้นให้เราเตรียมชิดซ้าย ก็จะใกล้ถึง สุขุมวิท 77 หรือ ถนนอ่อนนุชแล้วนะครับ
เลี้ยวซ้ายเข้าซอย สุขุมวิท 77 หรือ ถนนอ่อนชุช
ตอนนี้ผมอยู่บนถนนอ่อนนุช บริเวณหน้า Big C มองเห็นตึก U Delight @ อ่อนนุช สเตชั่น
จากนั้นเราก็จะเห็น คอนโด LPN บนถนนอ่อนนุชคือโครงการ ลุมพินี วิลล์ สุขุมวิท 77 และ ลุมพินี วิลล์ สุขุมวิท 77 (2)
ส่วนที่เราจะไปนั้น ก็คือ คอนโด ลุมพินี เซ็นเตอร์ สุขุมวิท 77 ซึ้งจะใช้ทางเข้าเดียวกัน กับ ลุมพินี วิลล์ สุขุมวิท 77 ครับ
เลี้ยวซ้ายเข้าคอนโด ลุมพินี วิลล์ สุขุมวิท 77 เพราะ คอนโด ลุมพินี เซ็นเตอร์ สุขุมวิท 77 พระเอกของเรานั้น จะอยู่ทางด้านในของ คอนโด ลุมพินี วิลล์ สุขุมวิท 77 ครับ

สถานที่สำคัญ
– BTS อ่อนนุช ระยะทาง 1 กม.
– Big C Extra อ่อนนุช ระยะทาง 500 เมตร
– เทสโก้โลตัส สุขุมวิท 50 (อ่อนนุช) ระยะทาง 1 กม.
– ซีคอนสแควร์ (เทสโก้โลตัส) ระยะทาง 6.3 กม.
– ตลาดนัดรถไฟ ศรีนครินทร์ ระยะทาง 7.1 กม.
– พาราไดซ์พาร์ค ศรีนครินทร์ ระยะทาง 7 กม.
– สวนหลวง ร.9 ระยะทาง 11.4 กม.
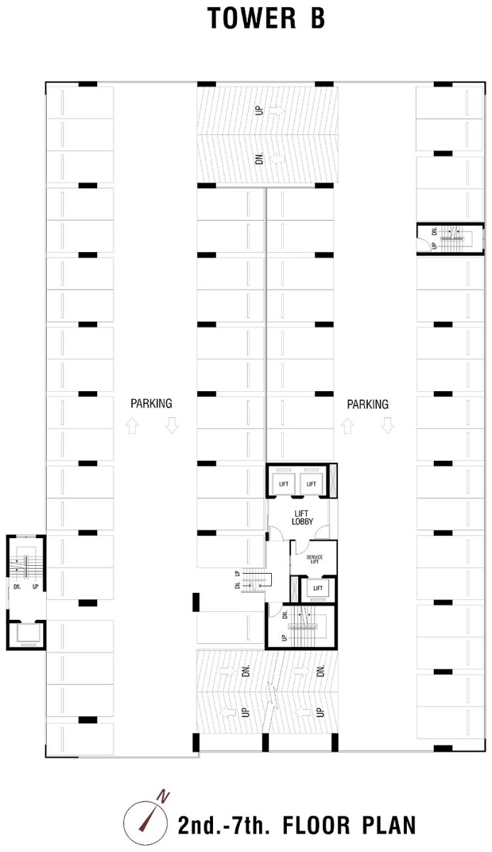
แปลนอาคาร
Block A Ground Floor





Block A : 2nd-23th Floor / Block B : Ground Floor / 2nd – 7th floor / 8th floor / 9th – 23th floor




Block B : Mezzanine Floor / Block C Ground Floor /
แกลเลอรี่
สนใจติดต่อรายละเอียดเพิ่มเติมได้ที่
บริษัท แอล.พี.เอ็น. ดีเวลลอปเมนท์ จำกัด (มหาชน)
1168/109 ชั้น 36 อาคารลุมพีนีทาวเวอร์ ถนนพระราม 4
แขวงทุ่งมหาเมฆ เขตสาทร กทม. 10120
โทรศัพท์ : 02-285-5011-6
Call Center 02-689-6888
สำนักงานขาย โทร : 0-2539-8811
Website : http://www.lpn.co.th/th/portfolio/viewitem.php?pid=9
แสดงความคิดเห็น เกี่ยวกับ " คอนโด ลุมพินี เซ็นเตอร์ สุขุมวิท 77 ใกล้รถไฟฟ้า BTS อ่อนนุช "