
Ep.58 รีวิว คอนโด ลุมพินี พาร์ค นวมินทร์-ศรีบูรพา LUMPINI PARK NAWAMIN-SI BURAPHA
สวัสดีครับ รีวิวฉบับนี้เราจะพาท่านไปชมโครงการใหม่ของ LPN เพิ่งเปิดขายไปเมื่อช่วงกลางเดือนมิถุนายน 2557 ที่ผ่านมา โครงการที่ผมพูดถึงนี้ก็คือ LUMPINI PARK นวมินทร์-ศรีบูรพา คอนโดสูง 15 ชั้นบนพื้นที่ผืนกว่า 15 ไร่ ติดถนนใหญ่เส้นนวมินทร์ระหว่างซอยนวมินทร์ 36 และ 38 ตรงข้ามตลาดอินทรารักษ์
| ชื่อโครงการ | ลุมพินี พาร์ค นวมินทร์-ศรีบูรพา / LUMPINI PARK NAWAMIN-SI BURAPHA |
| เจ้าของโครงการ | ลุมพินี / LPN |
| ลักษณะห้องและขนาดห้อง | 1 Bed / 22.50 – 26.00 sq.m. 2 Bed / 45.00 – 52.00 sq.m. |
| เนื้อที่ทั้งหมด | 15 ไร่เศษ |
| จำนวนตึก | 7 อาคารพักอาศัย 1 อาคารจอดรถ |
| จำนวนชั้น | 15 ชั้น สำหรับอาคารพักอาศัย 5 ชั้น สำหรับอาคารจอดรถ |
| จำนวนห้อง | 1,831 ยูนิตพักอาศัย 5 ยูนิตร้านค้า |
| ที่จอดรถทั้งหมด | ประมาณ 600 คัน คิดเป็น 30% (รวมซ้อนคัน) |
| โซน | นวมินทร์, ศรีบูรพา, บางกะปิ |
| ขนส่งสาธารณะ | n/a |
| รถโดยสารที่ผ่าน | รถประจำทาง : 22, 36, 60, 71, 73, 95, 96, 115, 156, 178, 501, 520 |
| ที่ตั้ง | ซอยนวมินทร์ 38 ถนนนวมินทร์ แขวงคลองกุ่ม เขตบึงกุ่ม กรุงเทพฯ |
| กำหนดการ | n/a |
| ปีที่สร้างเสร็จ | คาดว่าแล้วเสร็จ ต้นปี 2559 |
| ราคา | เริ่มต้น 1 ล้านบาท |
| ราคาเริ่มต้นต่อ ตร.ม | ประมาณ 44,444 บาท/ตร.ม. |
| สถานที่สำคัญใกล้เคียง | ตลาดอินทรารักษ์ – 100 เมตร สวนนวมินทร์ภิรมย์ – 1.3 กม. สวนการเคหะแห่งชาติ – 2.1 กม. สวนเสรีไทย – 5.5 กม. Chocolate Ville – 3.7 กม. Big C นวมินทร์ – 2.0 กม. Tesco Lotus บางกะปิ – 3.8 กม. The Mall บางกะปิ – 4.0 กม. Makro บางกะปิ – 4.2 กม. พันธ์ทิพย์ บางกะปิ – 3.6 กม. |
| สิ่งอำนวยความสะดวก | – สระว่ายน้ำ ขนาด 10×21 เมตร ระบบคลอรีน – ฟืตเนส – สวนรวมใจ – ห้องสมุด – ร้านค้า |
| จุดเด่นของโครงการ | ลุมพินี พาร์ค นวมินทร์ – ศรีบูรพา คอนโดใหม่ติดถนนนวมินทร์ (นวมินทร์ 38) ใกล้เดอะมอลล์ บางกะปิ |
ที่ตั้งโครงการ
ซอยนวมินทร์ 38 ถนนนวมินทร์ แขวงคลองกุ่ม เขตบึงกุ่ม กรุงเทพมหานคร
คลิก เพื่อดูแผนที่ขนาดใหญ่
การเดินทาง
ที่ตั้งโครงการอยู่ติดถนนใหญ่นวมินทร์ ช่วงซอย 36 และ 38 หากมาจากตัวเมืองเส้นหลักที่ใช้งานคือถนนรามคำแหงผ่านแยกลำสาลีและแยกบางกะปิเข้าสู่ถนนนวมินทร์ ตัวโครงการอยู่ตรงข้ามปั๊มบางจากให้เป็นจุดสังเกต
ผมเดินทางมาจากถนนสุขุมวิทโดยใช้เส้นสุขุมวิท 71 (ถนนปรีดี พนมยงค์) ตรงอย่างเดียวเข้าสู่ถนนรามคำแหงจากนั้นเลี้ยวซ้ายที่แยกลำสาลี ไปสู่ถนนนวมินทร์ซึ่งมีภาพประกอบการเดินทางด้านล่างครับ
บนถนนสุขุมวิทมุ่งหน้าไปทางอ่อนนุช
เลี้ยวซ้ายไปสุขุมวิท 71 หรือถนนปรีดี พนมยงค์
ขับมาตามทางจนถึงแยกคลองตัน
ผ่านแยกคลองตันมาจนถึงแยกพระราม 9 ให้ตรงไปเข้าสู่ถนนรามคำแหง
บนถนนรามคำแหงให้ขึ้นทางยกระดับแรกเพื่อเลี่ยงรถติด
พอถึงทางลงทางยกระดับให้เราเบี่ยงไปอยู่ช่องทางซ้าย
มีทางขึ้นสะพานข้ามแยกลำสาลี ซึ่งเราไม่ขึ้นครับให้เราเลียบไปช่องทางซ้าย
ที่แยกลำสาลีให้เราเลี้ยวซ้ายสู่ถนนศรีนครินทร์
สุดถนนศรีนครินทร์ให้เราเลี้ยวขวาไปเสรีไทย หากเลี้ยวซ้ายจะไปถนนลาดพร้าว The Mall บางกะปิ
ผ่านพันธุ์ทิพย์ บางกะปิมองเห็นป้ายสู่ถนนเกษตร์นวมินทร์
ถึงแยกบางกะปิให้เลี้ยวซ้าย เพื่อเข้าสู่ถนนนวมินทร์
ตอนนี้เราอยู่บนถนนนวมินทร์ มองเห็นสวนนวมินทร์ภิรมย์ทางขวามือ
ขับมาตามทางจนถึงช่วงที่เป็นทางโค้งซ้าย จนเจอปั๊มบางจากให้เราเตรียมชิดขวาเพื่อเตรียมกลับรถ ซึ่งตัวโครงการจะอยู่ตรงข้ามกับปั๊มแห่งนี้
เลยปั๊มบางจากสักครู่นี้มาประมาณ 300 เมตรจะเจอจุดกลับรถอยู่ตรงหน้าปั๊ม Esso พอดี
หลังจากกลับรถแล้วสังเกตป้ายโรงรับจำนำสีแดงเด่นนี้ครับ เพราะอยู่ที่ซอยนวมินทร์ 38 ถัดจากซอยนี้ไปประมาณ 20 เมตรคือที่ตั้งโครงการ
ถึงแล้วครับสำนักงานขายและที่ตั้งโครงการ ลุมพินี พาร์ค นวมินทร์-ศรีบูรพา
บริเวณโครงการ
สถานที่สำคัญบริเวณโครงการ
ตลาดอินทรารักษ์ – 100 เมตร
สวนนวมินทร์ภิรมย์ – 1.3 กม.
สวนการเคหะแห่งชาติ – 2.1 กม.
สวนเสรีไทย – 5.5 กม.
Chocolate Ville – 3.7 กม.
Big C นวมินทร์ – 2.0 กม.
Tesco Lotus บางกะปิ – 3.8 กม.
The Mall บางกะปิ – 4.0 กม.
Makro บางกะปิ – 4.2 กม.
พันธ์ทิพย์ บางกะปิ – 3.6 กม.
ทางโครงการได้ทำกราฟิกแสดงสถานที่สำคัญรอบๆโครงการรัศมีประมาณ 10 กม.
มี Shuttle Van บริการไปส่งที่เดอะมอลล์บางกะปิและท่าเรือบางกะปิ แต่ยังไม่มีข้อมูลเกี่ยวกับค่าบริการ คาดว่าน่าจะ 20 บาท/เที่ยว/คน
สำนักงานขายติดถนนใหญ่มี ATM กสิกรบริการด้านหน้า
ทางทิศเหนือโครงการเป็นตึกแถวสูง 3-4 ชั้น เข้าทางซอยนวมินทร์ 38
ทางทิศใต้ฝั่งที่ติดกับถนนคือธนาคารกสิกรไทย
โครงการ Work@Life โฮมออฟฟิศสูง 4 ชั้น อยุ่ทางทิศใต้
มองไปด้านในเป็นไซต์ก่อสร้าง
โครงการมีคอนเซปต์ในการประหยัดทรัพยากรโลก ส่งเสริมให้คนในโครงการหันมาใช้จักยานจึงมีที่จอดแยกให้โดยเฉพาะ
ตัวโครงการติดถนนใหญ่นวมินทร์ 6 เลนแบบมีเกาะกลางถนน
ฝั่งตรงข้ามมองเห็นปั๊มบางจาก
ธนาคารกสิกรไทยติดกับโครงการ
ทางเข้าโฮมออฟฟิศ Work@Life
ถ่ายจากบนสะพานลอยเห็นธนาคารกสิกรทางขวาและบางจากทางซ้าย ซึ่งเดี๋ยวเราจะเดินผ่านหน้าปั๊มบางจากไปยังตลาดอินทรารักษ์
อีกด้านของสะพานลอย โครงสร้างส่วนใหญ่บนถนนนวมินทร์คือเป็นอาคารพาณิชย์สูง 3-5 ชั้นเกือบทั้งเส้น
ถึงปั๊มบางจาก
มีบิ๊กซี มินิ และร้านกาแฟอินทนิล
ติดกับปั๊มคือหมู่บ้านปริญลักษณ์
มีป้ายรถประจำทางอยู่ตรงข้ามโครงการ แต่การข้ามถนนต้องใช้สะพานลอยครับ จุดแรกคือที่ผมขึ้นสักครู่นี้ จุดที่สองเดินเลยตลาดไปซึ่งเดี๋ยวจะได้เห็นกันครับเพราะผมต้องใช้ข้ามกลับมายังโครงการ
ตลาดอินทรารักษ์เข้าได้สองทางจากซอยนวมินทร์ 73 และ 75 ที่เห็นในภาพคือปากซอย 73 มีธนาคารทหารไทย
ทางเข้าตลาดจากซอยนวมินทร์ 73
มองย้อนกลับมาที่ทางเข้าตลาดเห็นป้ายโรงรับจำนำที่ติดกับโครงการ
ร้านกับข้าวแบบตักเป็นถุง
ตลาดสดอินทรารักษ์
บรรยากาศด้านในตลาด
ที่ผมไปเป็นช่วงบ่าย 2-3 โมง ตลาดเลยดูซึมๆ ปกติคนจะเยอะช่วงเช้าเย็นเหมือนตลาดอื่น
ออกจากตลาดทางซอยนวมินทร์ 75
ร้านผลไม้
ร้านกับข้าวบริเวณปากซอย 75
ของหวานก็มี
ออกมาบริเวณริมถนนก็ยังมีของขายอีกเพียบ
ร้านก๋วยเตี๋ยวริมทาง
ตอนนี้อยู่บนสะพานลอยจุดที่สองมองเห็นทางเข้าตลาดซอยนวมินทร์ 75 และทางซ้ายเห็นโรงรับจำนำ ที่ผมย้ำถึงโรงรับจำนำเพื่อให้ท่านคาดคะเนระยะเดินไปยังโครงการครับ
ซูมเข้าไปช่วงทางเข้าตลาดจะเห็นว่ามีร้านค้าหนาแน่นตลอดทาง
เลยตลาดไปก็ยังพอมีของกินบ้างซึ่งมี โลตัสเอ๊กซ์เพรสอยู่ในปั๊ม Esso
ถนนฝั่งโครงการ มีป้ายรถประจำทางฝั่งขาเข้าเมือง ซึ่งลูกบ้านในโครงการต้องมาใช้บริการที่ป้ายนี้
แถวป้ายรถเมล์ฝั่งโครงการก็ยังมีของกิน ในภาพคือผัดไทและหมูสะเต๊ะ
ข้าวมันไก่และอาหารตามสั่งอยู่หลังป้ายรถเมล์ และขอจบการเดินสำรวจบริเวณโครงการที่จุดนี้
ทางเข้าโครงการติดถนนใหญ่
ด้านหน้ามีเจ้าหน้าที่รักษาความปลอดภัยและ CCTV ตามมาตรฐานคอนโดสมัยใหม่
ตัวอาคารตั้งเป็นแนวยาวเข้าไปตามพื้นที่ของโครงการที่หน้าแคบแต่ลึก
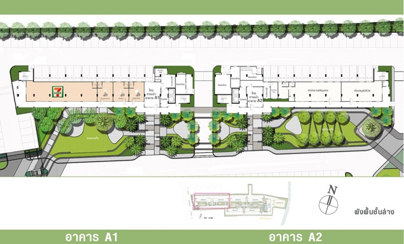
อาคาร A1 อยู่ใกล้ถนนที่สุด
ถัดไปเป็นอาคาร A2
ตามด้วยอาคาร B1 ซึ่งมีอาคาร C1 อยู่ฝั่งตรงข้ามคู่ขนานกันไป
อาคาร B2 ก็มีอาคาร C2 ตั้งขนานอยู่ด้วยเช่นกัน
อาคาร C1 ทิศเหนือมองเห็นอาคาร B1 เต็มๆ
อาคาร C2 ก็เช่นกัน โดนอาคาร B2 บล็อควิวฝั่งเหนือทั้งแผ่น
ส่วนอาคาร D อยู่ด้านในสุดหันหน้าด้านนึงเข้าหาอาคาร B2 และ C2 ส่วนอีกด้านติดกับอาคารจอดรถ 5 ชั้น
อาคารจอดรถอยู่ด้านในสุดของพื้นที่โครงการติดกับคลองบางเตย
เว้นช่องไฟระหว่างอาคารจอดรถกับอาคาร D ประมาณ 3 ช่วงรถ
แต่ละอาคารมีพื้นที่สีเขียวอยู่ด้านหน้า
พื้นที่สีเขียวระหว่างอาคาร C1 และ B1 มองเห็นลู่วิ่งจ๊อกกิ้งสีเทาดำ
สระว่ายน้ำและฟิตเนสตั้งอยู่บริเวณใต้อาคาร D
รอบพื้นที่โครงการส่วนใหญ่เป็นบ้านพักอาศัยสูงที่สุดก็ประมาณ 4 ชั้นเท่านั้น หากอาศัยอยู่เกินชั้น 5 ขึ้นไปวิวค่อนข้างเปิดโล่ง
ทิศเหนือ – ตึกแถวและหอพัก 3-4 ชั้น
ทิศตะวันออก – คลองบางเตย
ทิศใต้ – โฮมออฟฟิศรูปแบบทาวน์โฮมสูง 4 ชั้น และเพิงสังกะสีเตี้ยๆ 1 ชั้น
ทิศตะวันตก – ถนนนวมินทร์
Master Plan : โครงการ ลุมพินี พาร์ค นวมินทร์-ศรีบูรพา ตั้งอยู่บนพื้นที่กว่า 15 ไร่ที่มีลักษณะเป็นที่ดินแคบแต่ยาวตั้งแต่ถนนใหญ่ไปจนสุดคลองบางเตยที่อยู่ท้ายโครงการ อาคารพักอาศัยมี 7 อาคารแต่ละอาคารสูง 15 ชั้นเท่ากัน สิ่งอำนวยความสะดวกส่วนกลางจะเทไปอยู่ที่อาคาร D ทั้งสระว่ายน้ำ ฟิตเนส และอาคารจอดรถ ส่วนห้องสมุดมี 2 จุดอยู่ใต้อาคาร A2 และ B2 มีร้านสะดวกซื้อ 7-11 อยู่บริเวณทางเข้าโครงการที่อาคาร A1
อาคาร A1 ชั้น 1 : 7-11 อยู่ด้านหน้าสุดใกล้ทางเข้าออกโครงการ มีร้านอาหารและร้านซักรีด ไม่มียูนิตพักอาศัย
อาคาร A2 ชั้น 1 : สำนักงานนิติบุคคลและห้องสมุด ไม่มียูนิตพักอาศัย
อาคาร A1 ชั้น 2-15 : ยูนิตพักอาศัยหนาแน่น 19 ยูนิตต่อชั้น รวมทั้งอาคารมียูนิตพักอาศัย 266 ยูนิต
อาคาร A2 ชั้น 2-15 : ยูนิตพักอาศัยหนาแน่น 19 ยูนิตต่อชั้น รวมทั้งอาคารมียูนิตพักอาศัย 266 ยูนิต
อาคาร B1 ชั้น 1 : ยูนิตพักอาศัยมีตั้งแต่ชั้นแรก 7 ยูนิต
อาคาร B2 ชั้น 1 : ยูนิตพักอาศัยมี 4 ยูนิตและ ห้องสมุดโครงการ
อาคาร B1 ชั้น 2-15 : ยูนิตพักอาศัยหนาแน่น 19 ยูนิตต่อชั้น รวมทั้งอาคารมียูนิตพักอาศัย 273 ยูนิต (รวมชั้น 1 – 7 ยูนิต)
อาคาร B2 ชั้น 2-15 : ยูนิตพักอาศัยหนาแน่น 19 ยูนิตต่อชั้น รวมทั้งอาคารมียูนิตพักอาศัย 270 ยูนิต (รวมชั้น 1 – 4 ยูนิต)
อาคาร C1 ชั้น 1 : ยูนิตพักอาศัยมีตั้งแต่ชั้นแรก 7 ยูนิต
อาคาร C2 ชั้น 1 : ยูนิตพักอาศัยมีตั้งแต่ชั้นแรก 7 ยูนิต
อาคาร C1 ชั้น 2-15 : ยูนิตพักอาศัยหนาแน่น 19 ยูนิตต่อชั้น รวมทั้งอาคารมียูนิตพักอาศัย 273 ยูนิต (รวมชั้น 1 – 7 ยูนิต)
อาคาร C2 ชั้น 2-15 :ยูนิตพักอาศัยหนาแน่น 19 ยูนิตต่อชั้น รวมทั้งอาคารมียูนิตพักอาศัย 273 ยูนิต (รวมชั้น 1 – 7 ยูนิต)
อาคาร D ชั้น 1 : พื้นที่ส่วนกลางหลักอยู่ที่อาคาร D ทั้งสระว่ายน้ำและห้องออกกำลังกาย
อาคาร D ชั้น 2-15 : ยูนิตพักอาศัยหนาแน่นน้อยกว่าอาคารอื่นๆที่ 15 ยูนิตต่อชั้นรวมทั้งอาคารมีห้องพัก 210 ยูนิต
ห้องตัวอย่าง
ทางโครงการมีห้องตัวอย่างให้ดูทั้งหมด 3 แบบ คือห้องเริ่มต้น
– 1 Bedroom ขนาด 22.50 ตร.ม.
– 1 Bedroom ขนาด 26.00 ตร.ม.
– 2 Bedroom ขนาด 45.00 ตร.ม. ที่นำห้อง 1 Bed 22.50 ตร.ม. Combine กัน
รูปแบบประตูที่ทางโครงการใช้ สีทูโทน เทา-ขาว
ลูกบิดประตู Yale พร้อมตัวล็อคชั้นที่ 2
ห้องแรกที่เราจะไปดูกันคือ 1 Bed – 22.50 ตร.ม.
แปลนห้องหลักหน้าตาเหมือนโครงการอื่นๆของลุมพินี พื้นที่หน้ากว้างทำให้แบ่งพื้นที่เป็นโซนต่างๆได้ลงตัว
หน้ากว้างห้อง 5.20 เมตร / ลึก 4.50 เมตร
ทางห้องตัวอย่างที่กำลังจะได้รับชมทางโครงการตกแต่งด้วยเฟอร์บิลท์อินเรียบร้อยแล้ว ซึ่งเป็นออพชั่นที่เราสามารถเพิ่มเติมได้ ข้อดีคือนำไปผ่อนรวมกับราคาห้องชุดได้เลย สำหรับห้อง 22.50 ตร.ม. ราคาตกแต่งอยู่ที่ 155,000 บาท
Furniture Plan สำหรับชุดเฟอร์ฯออพชั่นเสริม
ส่วนห้องรับแขก
1. ตู้วางทีวี
2. ตู้ครอบเบรกเกอร์
3. โซฟามีกล่องลิ้นชัก
4. กล่อง+กรุชั้น และแผงบังไฟ
5. โต๊ะกลาง
6. โต๊ะอาหาร
7. กล่องชั้นติดผนัง
8. เก้าอี้ 2 ตัว
9. วอลล์เปเปอร์ (ทั้งห้อง)
ส่วนห้องนอน
10. ชั้นข้างเตียง + แผงหัวเตียง
11. เตียงนอนขนาด 5 ฟุต
12. ที่นอนขนาด 5 ฟุต
13. ชั้น+ตู้บานเปิดกระจกเงา
14. ผ้าม่านรูดจับจีบรางโชว์ (ตามขนาดหน้าต่างโครงการ)
15. วอลล์เปเปอร์ (ทั้งห้อง)
ส่วนครัว
16. กรุกระเบื้องกันเปื้อน
งานไฟฟ้า
เพิ่มไฟฟลูออเรสเซนต์T5 2 จุดพร้อมสวิชต์ 1 จุด
เพิ่มไฟดาวน์ไลท์ 2 จุดพร้อมสวิชต์ 2 จุด
เพิ่มไฟฮาโลเจน 1 จุดพร้อมสวิชต์ 1 จุด
ย้ายปลั๊กไฟ 2 จุด, ย้ายโทรศัพท์ 1 จุด
*วัสดุปิดผิวพาร์ติเคิลตามห้องตัวอย่าง
มองผ่านประตูห้องเข้าไป
ทางซ้ายมุม Living วางโซฟา
ด้านล่างโซฟามีลิ้นชักเก็บสอง 3 ช่อง
ด้านบนมีรางไฟซ่อนข้างหลัง
ข้างโซฟามีที่วางของ และตู้วางของแบบติดผนัง
ฝั่งตรงข้ามโซฟาเป็นชั้นวางทีวี 2 ชิ้นบนล่าง
ชั้นล่างเหมาะสำหรับเก็บรองเท้า ส่วนข้างบนเป็นช่องซ่อนแผงควบคุมไฟวางของได้นิดหน่อย
ห้องนอนกั้นด้วยบานเลื่อนอลูมิเนียมกระจก
เตียงนอน 5 ฟุต
ด้านหัวเตียงบิลท์แบบบุนวมพร้อมวอลล์เปเปอร์
ส่วนหน้าต่างในห้องนอนจะไม่ใช่แบบนี้ของจริงที่ได้เป็นแบบภาพด้านล่าง
หน้าต่างที่ได้เป็นแบบนี้ซึ่งผมยืมภาพมาจากห้อง 26.00 ตร.ม.
ที่ว่างด้านข้างเตียงฝั่งบานเลื่อน
ด้านล่างมีช่องใส่ของ
ปลายเตียงที่ว่างเดินสบาย
ส่วนที่ว่างฝั่งหน้าต่างเหลือพอเดินเปิดปิดกระจกได้
ตู้เสื้อผ้าปลายเตียงและชั้นวางของยิบย่อย บานกระจกสามารถเปิดเก็บของด้านหลังได้
ไปดูส่วนต่อไปของห้อง ทางเข้าห้องครัวตัดมุมกำแพงด้านขวาที่เป็นห้องน้ำให้เดินเข้าได้สะดวก
จริงๆเรียกห้องครัวก็ไม่ถูก เป็นแค่ส่วนเตรียมอาหารเท่านั้นเพราะไม่สามารถประกอบอาหารได้นอกจากใช้ไมโครเวฟเท่านั้น Pantryเป็นอุปกรณ์พื้นฐานขนาดกว้าง 1.20 ม. ส่วนด้านหลังกรุกระเบื้องกันเปื้อนให้เฉพาะในชุดออพชั่นเสริม
โต๊ะทานอาหาร 2 ที่นั่งหันหน้าเข้ากำแพง พร้อมชั้นวางอุปกรณ์ด้านบน
ช่องวางตู้เย็น
ระเบียงประตูเลื่อน
พื้นที่ระเบียงขนาดประมาณ 170 x 100 เมตร วางเครื่องซักผ้าที่จุดนี้
ราวเหล็กกันตกทาสีเขียว
แขวนคอมแอร์สองตัวเหนือ เครื่องซักผ้า
กลับหลังหันไปเห็นทางเข้าห้องน้ำ
ขอบธรณีระเบียงยกสูงประมาณ 10 ซม.
ธรณีห้องน้ำก่อสูงราว 10 ซม.
โถสุขภัณฑ์ยี่ห้อ American Standard มองทางขวาเป็นอ่างล้างหน้า
อ่างล้างหน้าแบบเต็มผนังของ Charmer ก๊อกน้ำ Hafele
กระจกบานใหญ่พอดีตัว
แขวนทิชชู่ด้านล่าง
อีกด้านเป็นห้องอาบน้ำฝักบัวของ Hafele พร้อมที่วางสบู่
พื้นที่ส่วนเปียกขนาด 80×80 ซม.
ต่อไปเป็นห้อง 1 Bed ขนาด 26.00 ตร.ม.
หน้าตาแปลนห้องเหมือนกับ 22.50 ตร.ม.หน้ากว้างเท่ากันแต่ยืดความลึกให้มีพื้นที่ใช้สอยมากขึ้น
หน้ากว้างห้อง 5.20 เมตร / ลึก 5.20 เมตร
ชุดตกแต่งสำหรับห้อง 26.00 ตร.ม. ราคาอยู่ที่ 225,000 บาท
รายชื่ออุปกรณ์ที่ได้รับในชุดตกแต่งพร้อมอยู่
ส่วนห้องรับแขก
1. ตู้วางทีวี
2. ตู้ครอบเบรกเกอร์
3. โซฟามีกล่องลิ้นชัก
4. โต๊ะทำงาน
5. ตู้ลอย + แผงบังไฟ
6. โต๊ะอาหาร
7. กล่องชั้นติดผนัง
8. เก้าอี้ 3 ตัว
9. วอลล์เปเปอร์ (ทั้งห้อง)
ส่วนห้องนอน
10. ชั้นข้างเตียง + แผงหัวเตียง
11. เตียงนอนขนาด 5 ฟุต
12. ที่นอนขนาด 5 ฟุต
13. ตู้บานเปิดกระจกเงา
14. ผ้าม่านรูดจับจีบรางโชว์ (ตามขนาดหน้าต่างโครงการ)
15. วอลล์เปเปอร์ (ทั้งห้อง)
ส่วนครัว
16. กรุกระเบื้องกันเปื้อน
งานไฟฟ้า
เพิ่มไฟฟลูออเรสเซนต์T5 2 จุดพร้อมสวิชต์ 1 จุด
เพิ่มไฟดาวน์ไลท์ 1 จุดพร้อมสวิชต์ 1 จุด
เพิ่มไฟฮาโลเจน 3 จุดพร้อมสวิชต์ 2 จุด
ย้ายปลั๊กไฟ 3 จุด, ย้ายโทรศัพท์ 1 จุด
*วัสดุปิดผิวพาร์ติเคิลตามห้องตัวอย่าง
มองผ่านประตูห้องเข้าไป
ทางด้านซ้ายเป็น Living ด้านในเป็นห้องนอนแบ่งส่วนด้วยบานเลื่อน
ชุดโซฟาและโต๊ะทำงาน
มีลิ้นชักด้านล่าง 2 ช่อง
โต๊ะทำงานแบบหน้าผิวกระจกสีดำ ลิ้นชักแบบมีช่องแบ่งประเภทใช้งาน
ตู้ด้านบน
ฝั่งตรงข้ามเป็นชั้นวางทีวี
ระยะดูทีวีห่างกำลังดี ลองเปิดช่องเก็บของบนล่าง
ประตูบานเลื่อนฟิกซ์ให้เปิดบานขวาได้เท่านั้น ซึ่งห้อง 22.50 ก็เป็นแบบนี้เช่นกัน
มือจับหน้าตาไร้ลูกเล่น
เตียงนอน 5 ฟุตพร้อมลิ้นชักด้านล่าง
ด้านข้างเตียงมีตู้อเนกประสงค์ทรงสูงติดเพดาน หน้าบานกระจกเงา
ระยะห่างเตียงหน้าตู้ประมาณ 80 ซม.
ลิ้นชักด้านล่างดึงออกมาแล้วยังมีพื้นที่เหลือให้เดินได้
พื้นที่ปลายเตียงกว้าง 70 ซม.
ส่วนข้างเตียงด้านหน้าต่างเหลือกว้าง 35 ซม.พอให้เดินเปิดปิดหน้าต่างได้
หน้าต่างบานเลื่อนขนาด 200 x 140 ซม. โดยประมาณ
ตู้เสื้อผ้าปลายเตียง
พื้นที่ด้านในตู้ กว้างกว่าบานประตูเล็กน้อย
ทางเข้าไปยังพื้นที่เตรียมอาหารและห้องน้ำ
เคาน์เตอร์กว้าง 150 ซม. ท็อปครัววัสดุพาร์ติเคิล
ด้านหลังมีช่องเว้าทำที่วางของได้ ซิงค์ของ Camar-Tec
โต๊ะทานข้าว 2 ที่นั่งผิวโต๊ะบานกระจก ชั้นเก็บของด้านบน 2 ช่องแบบมีบานปิดกระจก
พื้นที่รวมๆในส่วนของ Pantry
ช่องวางตู้เย็น
ประตูระเบียง
พื้นที่ระเบียง 170 x 120 ซม. โดยประมาณ
แขวนคอมแอร์ 2 ตัว
เข้าไปดูห้องน้ำกันบ้าง
ห้องน้ำก็หน้าตาไม่แตกต่างจากห้องแรก
ภาพมุมเงย
พื้นที่โดยรวมในห้องน้ำ
ส่วนที่เพิ่มเติมเข้ามาคือห้องนำส่วนเปียกมีฉากบานเลื่อนกันน้ำกระเด็นให้ของยี่ห้อ Charmer
พื้นที่อาบน้ำประมาณ 110 x 70 ซม.
ห้องสุดท้ายเป็นห้อง 2 Bedroom ขนาด 45.00 ตร.ม.
แปลนห้องคือการนำห้อง 22.50 ตร.ม. มาต่อกัน มีระเบียงและห้องน้ำ 2 ห้องในมุมตรงกันข้ามกัน
ชุดตกแต่งสำหรับห้อง 2 Bedroom ราคาอยู่ที่ 495,000 บาท
ส่วนห้องรับแขก
1. ตู้ครอบเบรกเกอร์ชั้นโชว์
2. ตู้โชว์กั้นส่วนโต๊ะอาหาร
3. โซฟา 1 ตัว
4. สตูล 1 ตัว
5. ตู้ทีวี
6. กรุซุ้มแผงไม้+ผนังหินทราย
7. โต๊ะอาหาร
8. ม้านั่ง
9. เก้าอี้ 2 ตัว
10. กรุกระเบื้องกันเปื้อน
11. ผ้าม่านรูดจับจีบ
12. วอลล์เปเปอร์ (ทั้งห้อง)
ส่วนห้องนอน 1
13. แผงหัวเตียง + ผนังตกแต่ง
14. เตียงนอนขนาด 5 ฟุต
15. ที่นอนขนาด 5 ฟุต
16. ชั้นวางของ
17. กล่องชั้นวาง
18. ผ้าม่านพับตามขนาดประตู/หน้าต่างโครงการ
19. ผ้าม่านมู่ลี่สลิมไลน์ขนาดตามหน้าต่างโครงการ
20. วอลล์เปเปอร์ (ทั้งห้อง)
ส่วนห้องนอน 2
21. เตียงนอนขนาด 3.5 ฟุต + แผงหัวเตียง
22. ที่นอนขนาด 3.5 ฟุต
23. ชั้นตู้ครอบเบรกเกอร์
24. โต๊ะแต่งตัว + แผงกระจกเงา
25. ตู้เสื้อผ้า
26. สตูล 1 ตัว
27. มู่ลี่สลิมไลน์จนามตามหน้าต่างโครงการ
28. วอลล์เปเปอร์ทั้งห้อง
งานไฟฟ้า
เพิ่มไฟ LED 1 จุดพร้อมสวิชต์ 1 จุด
เพิ่มโคมไฟแขวน 1 จุดพร้อมสวิชต์ 1 จุด
เพิ่มไฟดาวน์ไลท์ 1 จุดพร้อมสวิชต์ 1 จุด
เพิ่มไฟฮาโลเจน 3 จุดพร้อมสวิชต์ 2 จุด
ย้ายปลั๊กไฟ 3 จุด, ย้ายโทรศัพท์ 2 จุด
*วัสดุปิดผิวพาร์ติเคิลตามห้องตัวอย่าง
มองผ่านประตูห้องเข้าไป ทางซ้ายเป็นตู้รองเท้า ด้านในมีโซฟานั่งเล่น
ทางขวาเป็นโต๊ะทานข้าว
มองย้อนกลับไปยังทางเข้าห้อง
ตู้รองเท้าบานปิดกระจกเงา
โต๊ะทานข้าว อยู่หน้าทางเข้าห้องนอนเล็ก
โซฟามุมนั่งเล่น ด้านหลังเป็นทางไปยังส่วนเตรีบมอาหารและห้องน้ำ
ชั้นวางทีวีห่างจากโซฟา 185 ซม.
ทางเข้าไปยังห้องครัว
พื้นที่บริเวณหน้า Pantry
Pantry ครัว
เคาน์เตอร์กว้าง 120 ซม. ขนาดเท่ากับห้อง 22.50 ตร.ม.
ชั้นวางของตรงบริเวณตู้บิลท์อินหลังโซฟา
ทางออกไปยังระเบียง
ระเบียงขนาด 170 x 100 ซม.
ระเบียงด้านนี้แขวนคอมแอร์ 1 ตัว
ทางเข้าห้องน้ำ
หน้าตาและสุขภัณฑ์เหมือนกัน
เดินข้ามฝั่งไปดูห้องนอนกันบ้าง โดยเข้าไปดูห้องนอนเล่นก่อน
ห้องนอนเตียงขนาด 3.5 ฟุต
ภาพมุมสูงหน้าต่างที่เห็นด้านหลังจะตรงกับบริเวณ Walk-in Closet ของห้องนอนใหญ่ที่เดี๋ยวเราจะเข้าไปดูต่อจากนี้
ตู้เสื้อผ้า
โต๊ะเขียนหนังสือข้างหัวเตียง
บานกระจกเงาขนาดใหญ่ด้านหลัง ช่วยทำให้ห้องดูกว้างขึ้น
ทางเข้าห้องนอนใหญ่
วางเตียงขนาด 5 ฟุตติดหน้าต่าง
มองย้อนไปทางเข้าห้อง
พื้นที่ทางเดินข้างเตียง 60 ซม.
ทางเข้าไปยังส่วนของห้องแต่งตัวและห้องน้ำ
พื้นที่บริเวณ Walk-in Closet
พื้นที่ระเบียงเท่ากันที่ 170 x 100 ซม.
ระเบียงด้านนี้แขวนคอมแอร์ 2 ตัว
มองจากระเบียงเข้าไปด้านใน
ตู้เสื้อผ้าขนาดกว้าง 120 ซม. สูงติดเพดาน
ข้างๆตู้เสื้อผ้าเป็นช่องสำหรับโต๊ะเครื่องแป้ง
ฝั่งตรงข้ามโต๊ะเครื่องแป้งมีช่องว่างบิลท์ชั้นวางของ
หน้าต่างจุดนี้มองเห็นเข้าไปคือห้องนอนเล็ก
พื้นที่ส่วนแห้งภายในห้องน้ำ
ส่วนอาบน้ำแบบไม่มีฉากกั้น
ราคา
เงินจอง : 6,000 บาท
เงินผ่อนดาวน์ 16 งวด :-
งวด 1-15 : 6,000 บาท
งวด 16 ห้อง 22.50 ตร.ม. : 20,000 บาท
งวด 16 ห้อง 26.00 ตร.ม. : 40,000 บาท
อาคาร A1
ชั้น 6 / พื้นที่ 22.50 ตร.ม. : ราคา 1,190,000 บาท
ผ่อน 15 ปี : 9,700 บาท / ผ่อน 20 ปี : 8,400 บาท / ผ่อน 30 ปี : 7,200 บาท
ชั้น 15 / พื้นที่ 22.50 ตร.ม. : ราคา 1,250,000 บาท
ผ่อน 15 ปี : 10,200 บาท / ผ่อน 20 ปี : 8,800 บาท / ผ่อน 30 ปี : 7,600 บาท
ชั้น 15 / พื้นที่ 26.00 ตร.ม. : ราคา 1,460,000 บาท
ผ่อน 15 ปี : 12,000 บาท / ผ่อน 20 ปี : 10,300 บาท / ผ่อน 30 ปี : 8,900 บาท
อาคาร A2
ชั้น 6 / พื้นที่ 22.50 ตร.ม. : ราคา 1,120,000 บาท
ผ่อน 15 ปี : 9,100 บาท / ผ่อน 20 ปี : 7,800 บาท / ผ่อน 30 ปี : 6,700 บาท
ชั้น 15 / พื้นที่ 22.50 ตร.ม. : ราคา 1,190,000 บาท
ผ่อน 15 ปี : 9,700 บาท / ผ่อน 20 ปี : 8,400 บาท / ผ่อน 30 ปี : 7,200 บาท
อาคาร B1
ชั้น 3 / พื้นที่ 22.50 ตร.ม. : ราคา 1,040,000 บาท
ผ่อน 15 ปี : 8,400 บาท / ผ่อน 20 ปี : 7,200 บาท / ผ่อน 30 ปี : 6,200 บาท
ชั้น 15 / พื้นที่ 22.50 ตร.ม. : ราคา 1,110,000 บาท
ผ่อน 15 ปี : 9,000 บาท / ผ่อน 20 ปี : 7,800 บาท / ผ่อน 30 ปี : 6,700 บาท
ชั้น 6 / พื้นที่ 26.00 ตร.ม. : ราคา 1,290,000 บาท
ผ่อน 15 ปี : 10,400 บาท / ผ่อน 20 ปี : 9,000 บาท / ผ่อน 30 ปี : 7,700 บาท
ชั้น 15 / พื้นที่ 26.00 ตร.ม. : ราคา 1,300,000 บาท
ผ่อน 15 ปี : 10,500 บาท / ผ่อน 20 ปี : 9,100 บาท / ผ่อน 30 ปี : 7,800 บาท
อาคาร B2
ชั้น 3 / พื้นที่ 22.50 ตร.ม. : ราคา 1,070,000 บาท
ผ่อน 15 ปี : 8,600 บาท / ผ่อน 20 ปี : 7,400 บาท / ผ่อน 30 ปี : 6,400บาท
ชั้น 15 / พื้นที่ 22.50 ตร.ม. : ราคา 1,140,000 บาท
ผ่อน 15 ปี : 9,300 บาท / ผ่อน 20 ปี : 8,000 บาท / ผ่อน 30 ปี : 6,900 บาท
ชั้น 6 / พื้นที่ 26.00 ตร.ม. : ราคา 1,330,000 บาท
ผ่อน 15 ปี : 10,800 บาท / ผ่อน 20 ปี : 9,300 บาท / ผ่อน 30 ปี : 8,000 บาท
ชั้น 15 / พื้นที่ 26.00 ตร.ม. : ราคา 1,340,000 บาท
ผ่อน 15 ปี : 10,900 บาท / ผ่อน 20 ปี : 9,400 บาท / ผ่อน 30 ปี : 8,100 บาท
อาคาร C1
ชั้น 3 / พื้นที่ 22.50 ตร.ม. : ราคา 1,040,000 บาท
ผ่อน 15 ปี : 8,400 บาท / ผ่อน 20 ปี : 7,200 บาท / ผ่อน 30 ปี : 6,200 บาท
ชั้น 15 / พื้นที่ 22.50 ตร.ม. : ราคา 1,110,000 บาท
ผ่อน 15 ปี : 9,000 บาท / ผ่อน 20 ปี : 7,800 บาท / ผ่อน 30 ปี : 6,700 บาท
ชั้น 6 / พื้นที่ 26.00 ตร.ม. : ราคา 1,290,000 บาท
ผ่อน 15 ปี : 10,400 บาท / ผ่อน 20 ปี : 9,000 บาท / ผ่อน 30 ปี : 7,700 บาท
ชั้น 15 / พื้นที่ 26.00 ตร.ม. : ราคา 1,300,000 บาท
ผ่อน 15 ปี : 10,500 บาท / ผ่อน 20 ปี : 9,100 บาท / ผ่อน 30 ปี : 7,800 บาท
อาคาร C2
ชั้น 3 / พื้นที่ 22.50 ตร.ม. : ราคา 1,070,000 บาท
ผ่อน 15 ปี : 8,600 บาท / ผ่อน 20 ปี : 7,400 บาท / ผ่อน 30 ปี : 6,400บาท
ชั้น 15 / พื้นที่ 22.50 ตร.ม. : ราคา 1,140,000 บาท
ผ่อน 15 ปี : 9,300 บาท / ผ่อน 20 ปี : 8,000 บาท / ผ่อน 30 ปี : 6,900 บาท
ชั้น 6 / พื้นที่ 26.00 ตร.ม. : ราคา 1,330,000 บาท
ผ่อน 15 ปี : 10,800 บาท / ผ่อน 20 ปี : 9,300 บาท / ผ่อน 30 ปี : 8,000 บาท
ชั้น 15 / พื้นที่ 26.00 ตร.ม. : ราคา 1,340,000 บาท
ผ่อน 15 ปี : 10,900 บาท / ผ่อน 20 ปี : 9,400 บาท / ผ่อน 30 ปี : 8,100 บาท
อาคาร D
ชั้น 6 / พื้นที่ 22.50 ตร.ม. : ราคา 1,190,000 บาท
ผ่อน 15 ปี : 9,700 บาท / ผ่อน 20 ปี : 8,400 บาท / ผ่อน 30 ปี : 7,200 บาท
ชั้น 15 / พื้นที่ 22.50 ตร.ม. : ราคา 1,250,000 บาท
ผ่อน 15 ปี : 10,200 บาท / ผ่อน 20 ปี : 8,800 บาท / ผ่อน 30 ปี : 7,600 บาท
ชั้น 3 / พื้นที่ 26.00 ตร.ม. : ราคา 1,500,000 บาท
ผ่อน 15 ปี : 12,300 บาท / ผ่อน 20 ปี : 10,600 บาท / ผ่อน 30 ปี : 9,100 บาท
ค่ากองทุน : 300 บาท/ตร.ม. (ชำระครั้งเดียว ณ วันโอน)
ค่าส่วนกลาง : 30 บาท/ตร.ม./เดือน (เก็บล่วงหน้า 12 เดือน)
ค่าธรรมเนียมการโอน : 2% (ผู้ซื้อและผู้ขายชำระคนละครึ่ง)
เงินประกันมิเตอร์ไฟฟ้า : 2,000 บาท (ชำระครั้งเดียว)
เงินประกันใช้น้ำประปา : 500 บาท (ชำระครั้งเดียว)
ค่ารักษามาตรวัดน้ำประปา : 25 บาท/เดือน (เก็บล่วงหน้า 12 เดือน)
ค่าน้ำประปา : 18 บาท/หน่วย
ค่าที่จอดรถยนต์ : 300 บาท/คัน/เดือน
ค่าที่จอดรถจักรยานยนต์ : 50 บาท/คัน/เดือน
สรุป
– ทำเลที่ตั้งโครงการตั้งอยู่ติดกับถนนใหญ่นวมินทร์ ซึ่งเป็นถนนขนาดใหญ่ 6 เลนแบบมีเกาะกลางซึ่งเป็นตัวเชื่อมระหว่างรามอินทรา-สู่บางกะปิ เป็นถนนที่ขนานไปกับเส้นเลียบด่วนรามอินทรา ส่วนในละแวกพื้นที่ดังกล่าวเป็นแหล่งที่พักอาศัยโดยส่วนมากจะเป็นอาคารพาณิชย์ตึกแถวสูง 3-5 ชั้น ตัวโครงการตั้งอยู่ตรงข้ามกับตลาดสดอินทรารักษ์ ทำให้เรื่องของความอุดมสมบูรณ์มีสูงมาก
– การเดินทางด้วยรถยนต์ส่วนตัว ค่อนข้างติดขัดในช่วงเช้าและเย็นในวันทำงานจากปริมาณรถที่มากเนื่องจากบริเวณโซนดังกล่าวเป็นแหล่งที่อยู่อาศัยพอถึงช่วงเข้างานรถก็จะเดินทางไปในทิศทางเดียวกันคือเข้าเมืองทางด้านบางกะปิ และสลับด้านกันในช่วงเย็น ส่วนทางด่วนก็ไม่ได้อยู่ใกล้ตัวโครงการนักแต่มีให้เลือกเยอะถึง 3 ทางในรัศมีประมาณ 8-10 กม. คือทางด่วนรามอินทรา-อาจณรงค์ ทางด่วนกาญจนาภิเษก และทางด่วนพระราม 9
– การเดินทางโดยรถสาธารณะในบริเวณนี้ใช้รถประจำทางและสองแถวเป็นหลัก ตัวโครงการมีป้ายรถเมล์อยู่ใกล้ๆโครงการแบบเดินเหงื่อไม่ทันซึมทั้งขาเข้าและออก รวมถึงมีรถสองแถวเป็นตัวช่วยเสริมและรถแท๊กซี่ก็สามารหาได้ง่าย ทางโครงการมีอำนวยความสะดวก Shuttle Van ไปส่งที่บริเวณเดอะมอลล์ บางแค ซึ่งมีท่าเรือบางกะปิ เป็นอีกหนึ่งตัวเลือกสำหรับเข้าเมือง ส่วนการขนส่งระบบรางไม่มีในระยะที่ใช้งานได้เท่าไร ใกล้ที่สุดเป็น Airport Link รามคำแหงบริเวณแยกคลองตันที่ห่างออกไป 7 กม.
– แบบห้องโครงการไม่มีการเปลี่ยนแปลงอะไร เป็นแบบแปลนที่ลุมพินีใช้มานานและดูลงตัวที่สุดสำหรับห้องที่มีพื้นที่จำกัดเพราะเป็นแปลนห้องหน้ากว้าง ส่วนวัสดุเป็นเกรดกลางๆตามระดับคอนโดราคาที่เริ่มต้นประมาณ 45,000 บาท ส่วนเฟอร์นิเจอร์ที่เป็นชุดตกแต่งเพิ่มเติมก็แน่นอนว่าออกแบบมาให้เหมาะสมกับห้องของโครงการอยู่แล้วทำให้ผู้พักอาศัยใช้ประโยชน์จากพื้นที่ของห้องที่มีอยู่จำกัดได้ครบทุกตารางนิ้ว
– พื้นที่ส่วนกลางจัดสวนสีเขียวมาให้อยู่ทั่วโครงการพร้อมลู่วิ่งจ๊อกกิ้ง รวมถึงสระว่ายน้ำและฟิตเนสที่ตั้งอยู่บริเวณอาคาร D แต่ด้วยจำนวนยูนิตที่เยอะอาจจะต้องมองถึงเรื่องของความพอเพียงในการใช้งานด้วย เรื่องของลิฟต์โดยสารมี 2 ตัวต่ออาคาร สัดส่วนก็ประมาณ 130:1 ดูใกล้เลขมาตรฐาน ที่จอดรถมีอาคารแยกมาให้สูง 5 ชั้น สามารถจอดได้ประมาณ 600 คันรวมกับที่จอดรอบๆโครงการและจอดซ้อนคันแล้ว หากเทียบกับจำนวนห้องก็อยู่ที่ 30%
คะแนน
| ทำเลที่ตั้งโครงการ | 8.0 | ติดถนนใหญ่ ความอุดมสมบูรณ์สูง |
| การเดินทาง ใช้รถ | 7.5 | มีทางด่วนให้เลือกใช้งานตามจุดหมาย แต่ระยะห่างจากโครงการพอสมควร |
| การเดินทาง ไม่ใช้รถ | 7.5 | ป้ายรถประจำทางอยู่ใกล้ มีให้เลือกทั้งรถประจำทาง, สองแถว,แท๊กซี่ และเรือ ขาดแค่ระบบรางเพียงอย่างเดียว |
| ห้องและวัสดุ | 7.5 | แบบและวัสดุมาตรฐานตามแบบคอนโด ลุมพินี |
| สิ่งอำนวยความสะดวก | 7.0 | มีให้ครบครันแต่ไม่เพียงพอกับจำนวนยูนิตที่มีมาก |
| ความคุ้มค่ากับราคา | 7.5 | ราคาสมเหตุสมผลกับทำเล และห้องที่ได้รับ |
| คะแนนรวมเฉลี่ย | 7.5 | ดี |
**การให้คะแนนเป็นเพียงความคิดเห็นของทีมงานเพียงกลุ่มเดียว ไม่สามารถใช้อ้างอิงได้**
หากท่านเห็นว่ารีวิวนี้มีประโยชน์ ช่วยกด Like ให้กำลังใจให้ทีมงาน ขอบคุณครับ
หากท่านมีความคิดเห็นหรือข้อมูลเพิ่มเติมเกี่ยวกับตัวโครงการ สามารถ comment ได้ที่ด้านล่างของรีวิวครับ
สนใจติดต่อสอบถามเพิ่มเติมได้ที่
Tel : 02-375-6224
Website : http://www.lpn.co.th/condominium/index.php/lumpini/home/LPark-NS
แสดงความคิดเห็น เกี่ยวกับ " Ep.58 รีวิว คอนโด ลุมพินี พาร์ค นวมินทร์-ศรีบูรพา LUMPINI PARK NAWAMIN-SI BURAPHA "