
EP.324 รีวิว คอนโด ลุมพินี วิลล์ สุขุมวิท 101/1-ปุณณวิถี Lumpini Ville Sukhumvit 101/1-Punnawithi
Written by : THAnATH
สวัสดีผู้อ่านชาว Condonayooทุกคนครับ วันนี้ผมพามาชมโครงการ Lumpini Ville สุขุมวิท 101/1-ปุณณวิถี จาก L.P.N. ตั้งอยู่ในซอยสุขุมวิท 101/1 หรือถนนวชิรธรรมสาธิต แขวงบางจาก เขตพระโขนง กรุงเทพฯ
ซอยสุขุมวิท 101/1 เป็นซอยที่เชื่อมเข้าออกได้หลายทางทั้งถนนสุขุมวิท ถนนอ่อนนุช ถนนอุดมสุข และถนนศรีนครินทร์ ใกล้ทางด่วนเฉลิมมหานคร ทางด่วนบูรพาวิถี และทางด่วนรามอินทรา-อาจณรงค์ ใกล้ BTS ปุณณวิถี และรถไฟฟ้าสายสีเหลืองสถานีสวนหลวง ร.9 รายล้อมไปด้วยสิ่งอำนวยความสะดวกครบครัน
ลุมพินี วิลล์ สุขุมวิท 101/1-ปุณณวิถี เป็นคอนโด Low Rise สูง 8 ชั้น จำนวน 2 อาคาร บนที่ดิน 3-0-20 ไร่ ห้องพักอาศัยมีทั้งหมด 328 ยูนิต มีห้องให้เลือกแบบสตูดิโอ, 1 ห้องนอน, 2 ห้องนอน ขนาดห้องเริ่มต้นที่ 24.00 – 44.00 ตร.ม. คาดว่าสร้างเสร็จพร้อมอยู่ในปี 2563
สิ่งอำนวยความสะดวกภายในโครงการมีให้ครบครัน อาทิ โถงต้อนรับ, สระว่ายน้ำ, สวนพักผ่อน, ห้องฟิตเนส, ลานฟิตแอนด์เฟิร์ม, Co-Living Zone, Access Card Control, กล้องวงจรปิด พร้อม ระบบรักษาความปลอดภัย 24 ชม. ราคาเริ่มต้น 1.49 ล้านบาท*

ลงทะเบียนรับข้อมูลข่าวสารและสิทธิพิเศษ คลิก : https://bit.ly/2Kk2qKr
| ชื่อโครงการ | ลุมพินี วิลล์ สุขุมวิท 101/1-ปุณณวิถี / Lumpini Ville Sukhumvit 101/1-Punnawithi |
| เจ้าของโครงการ | ลุมพินี / L.P.N. |
| เนื้อที่ทั้งหมด | 3-0-20 ไร่ |
| จำนวนตึก | 2 อาคาร |
| จำนวนชั้น | 8 ชั้น |
| จำนวนห้อง | 328 ยูนิต |
| ลักษณะห้องและขนาดห้อง |
|
| ที่จอดรถทั้งหมด | 106 คัน หรือคิดเป็น 32% (ไม่รวมซ้อนคัน) |
| จำนวนลิฟต์ | อาคารละ 2 ตัว |
| โซน | เขตพระโขนง |
| ขนส่งสาธารณะ |
|
| รถโดยสารที่ผ่าน | n/a |
| ที่ตั้ง | ซอยสุขุมวิท 101/1 แขวงบางจาก เขตพระโขนง กทม. |
| กำหนดการ | เริ่มก่อสร้าง ตุลาคม 2562 |
| ปีที่สร้างเสร็จ | สิงหาคม 2563 |
| ราคา | เริ่มต้น 1.49 ล้านบาท* |
| ราคาเฉลี่ยต่อ ตร.ม | 70,000 บาท / ตร.ม. |
| ค่าส่วนกลางและกองทุน |
|
| สถานที่สำคัญใกล้เคียง | ห้างสรรพสินค้า
สถานศึกษา
โรงพยาบาล
|
| สิ่งอำนวยความสะดวก |
|
| จุดเด่นของโครงการ | Lumpini Ville สุขุมวิท 101/1-ปุณณวิถี คอนโดใหม่จาก L.P.N. บนทำเลศักยภาพใกล้ทางด่วน และรถไฟฟ้า ในราคาล้านต้นๆ |
ที่ตั้งโครงการ
ซอยสุขุมวิท 101/1 แขวงบางจาก เขตพระโขนง กทม.
พิกัด Google โดยประมาณ : 13.686143, 100.633690
Lumpini Ville สุขุมวิท 101/1-ปุณณวิถี ตั้งอยู่ในซอยสุขุมวิท 101/1 เป็นซอยที่เชื่อมต่อไปได้หลายเส้นทางทั้งสุขุมวิท อ่อนนุช อุดมสุข และศรีนครินทร์ ใกล้ทางด่วนเฉลิมมหานคร ทางด่วนบูรพาวิถี ใกล้ BTS ปุณณวิถี และรถไฟฟ้าสายสีเหลืองสถานีสวนหลวง ร.9 ใกล้ๆโครงการจะมีสิ่งอำนวยความสะดวกทั้งสถานศึกษาชื่อดัง โรงพยาบาลและห้างสรรพสินค้า อาทิ 101 The Third Place, One Udomsuk, Makro อุดมสุข, Bangkok Mall, Central Plaza บางนา, Big C บางนา, Little Walk, Chic Republic, Paradise Park, Paradise Place, Seacon Square ศรีนครินทร์, Tesco Lotus อ่อนนุช, Century อ่อนนุช
ที่ตั้งโครงการ Lumpini Ville สุขุมวิท 101/1-ปุณณวิถี ตั้งอยู่ในซอยสุขุมวิท 101/1 หรือวชิรธรรมสาธิต เป็นซอยที่เชื่อมกับถนนสุขุมวิท และเชื่อมไปออกถนนอ่อนนุช ถนนอุดมสุข และถนนศรีนครินทร์ได้ มีซอยย่อยลัดเลาะเชื่อมไปได้หลายซอย ตัวโครงการอยู่ห่างจากถนนสุขุมวิทประมาณ 2.5 กม.
การเดินทางเข้าเมือง หลักๆก็ใช้ถนนสุขุมวิทวิ่งมุ่งหน้าเข้าเมืองอย่างเดียวไปเอกมัย ทองหล่อ พร้อมพงษ์ อโศก สยาม หรือเข้าถนนพระรามสี่ตรงแถวแยกพระโขนงวิ่งเข้าลุมพินี วิทยุ สาทร สีลม สามย่านได้เลย ส่วนถ้าใครจะใช้ทางด่วน จากถนนสุขุมวิทไปเข้าซอยสุขุมวิท 62 ซึ่งเป็นซอยที่เป็นจุดขึ้นลงทางด่วนเฉลิมมหานครระยะจากโครงการถึงจุดขึ้นทางด่วนประมาณ 4.9 กม. ไปได้หลายที่ทั้ง พระรามเก้า ดาวคะนอง พระรามสอง แจ้งวัฒนะ ดินแดง วิภาวดีรังสิต รามอินทรา ขากลับก็มาลงตรงซอยสุขุมวิท 62 แล้วก็วิ่งกลับไปโครงการได้เลยสะดวกดี
การเดินทางออกนอกเมือง ถ้ามาโซนบางนาก็ใช้เส้นสุขุมวิท มาแยกบางนาวิ่งไปออกสำโรง ปู่เจ้าสมิงพราย ยาวไปสมุทรปราการได้ หรือตรงแยกบางนาจะเชื่อมออกถนนบางนา-ตราด ยาวเลยไปออกฉะเชิงเทรา ชลบุรี พัทยาได้เลย และที่สำคัญเส้นนี้มีทางด่วนบูรพาวิถีวิ่งไปจนถึงชลบุรีเลยสะดวกดี ถ้าจะไปโซนอ่อนนุชจากโครงการไปเข้าซอยวชิรธรรมสาธิต 57 เชื่อมไปซอยอ่อนนุช 44 ไปออกอ่อนนุชได้ ถ้าจะมาแถวอุดมสุขจากซอยวชิรธรรมสาธิต มีซอยย่อยเชื่อมไปออกถนนอุดมสุขได้หลายซอยเลย นอกจากนี้ยังมีซอยเชื่อมไปออกถนนศรีนครินทร์ได้อีกด้วยใช้เดินทางเชื่อมไปพัฒนาการ รามคำแหง สมุทรปราการได้ ถือว่าการเดินทางค่อนข้างสะดวกเชื่อมต่อได้หลายเส้นทาง
การเดินทางโดยสาธารณะ ในซอยสุขุมวิท 101/1 จะมีรถสองแถว รถกะป้อวิ่งผ่านไปมาหน้าโครงการเรียกได้เลยนั่งไปลงอุดมสุข ศรีนครินทร์ได้ Taxi และวินมอเตอร์ไซค์ก็มีวิ่งผ่านหน้าโครงการโบกเรียกได้เลย ถ้าออกมาตรงเส้นสุขุมวิทจะมีให้เลือกทั้ง Taxi วินมอเตอร์ไซค์ รถเมล์มีวิ่งผ่านหลายสายทั้งเข้าและออกเมือง มีรถตู้วิ่งไปจนถึงสนามบินสุวรรณภูมิด้วยครับ ตัวโครงการจะอยู่ห่างจากทางเดินเชื่อมไป BTS ปุณณวิถีประมาณ 2.5 กม. (ปากซอยสุขุมวิท 101/1) และห่างจาก BTS อุดมสุขประมาณ 2.9 กม. ตรง BTS อุดมสุขจะมีรถรับส่งบริการไปกลับ Central บางนา และไปกลับ Ikea บางนา ฟรี นอกจากนี้ยังอยู่ใกล้กับแนวรถไฟฟ้าสายสีเหลืองช่วงลาดพร้าว-สำโรงตรงเส้นศรีนครินทร์ โดยสถานีที่อยู่ใกล้โครงการคือสถานีสวนหลวง ร.9 ตอนนี้อยู่ในช่วงก่อสร้าง รอเปิดให้เปิดใช้บริการน่าจะสะดวกมากขึ้นครับ ตัวโครงการจะมีรถ Shuttle Bus บริการรับส่งลูกบ้านที่ BTS ส่วนค่าบริการต้องรอจัดตั้งนิติบุคคลอีกทีครับ
ทางด่วนที่อยู่ใกล้โครงการคือทางด่วนเฉลิมมหานครห่างจากโครงการประมาณ 4.9 กม. จากโครงการใช้ถนนสุขุมวิทวิ่งไปเข้าซอยสุขุมวิท 62 วิ่งตรงเชื่อมขึ้นทางด่วนได้เลย

ทางด่วนที่อยู่ใกล้โครงการอีกเส้นคือทางด่วนบูรพาวิถีห่างจากโครงการประมาณ 5 กม. จากโครงการมาเข้าซอยอุดมสุข 29 มาออกถนนอุดมสุขและมาเข้าซอยอุดมสุข 24 เชื่อมซอยบางนา-ตราด 3 มาออกถนนบางนา-ตราดตรงไปจะเจอจุดขึ้นทางด่วน

ทางด่วนที่อยู่ใกล้โครงการอีกเส้นคือรามอินทรา-อาจณรงค์ ใช้เส้นสุขุมวิทและวิ่งไปเข้าซอยสุขุมวิท 50 และจะมีป้ายบอกไปขึ้นทางด่วน ระยะห่างจากโครงการประมาณ 6.8 กม.
แยกและถนนสำคัญใกล้เคียง
จากภาพถ่ายดาวเทียมจะเห็นว่าพื้นที่รอบๆโครงการส่วนใหญ่จะเป็นบ้านพักอาศัย อาคารพาณิชย์ หอพัก และคอนโดมิเนียม ย่านนี้จะมีคอนโดมิเนียมหลายโครงการทั้งเก่าและใหม่
ความอุดมสมบูรณ์รอบๆโครงการในระยะเดินประมาณ 250 ม. มีตลาดขายอาหารต่างๆ เลยไปอีกมี MaxValu และประมาณ 550 ม. จะมีคอมมูนิตี้มอลล์ @Park ด้านในจะมีร้านค้า มี Lotus Express ถ้ามาตรงช่วงซอยวชิรธรรมสาธิต 26 จะมีตลาดสด รอบๆมีร้านค้า ร้านสะดวกซื้อ ร้านอาหารหลายร้านเลย คึกคักเกือบทั้งวัน ช่วงปากซอยก็มีร้านค้าครับ หรือใกล้ๆ BTS ปุณณวิถีจะมี 101 The Third Place ในนี้มีทั้งธนาคาร สำนักงาน ร้านค้า ร้านอาหารหลายร้านเลย หรือมาฝั่งถนนอุดมสุขก็มีร้านค้าร้านอาหารหลายร้านตั้งแต่ปากซอยจนถึงท้ายซอยเลือกทานได้เลย ส่วนห้างสรรพสินค้าใกล้เคียง ตรง BTS อ่อนนุช จะมี Tesco Lotus และ Century ในซอยสุขุมวิท 77 จะมีตลาดอ่อนนุช, Big C, People Park, Makro, Habito, Pickadaily ถ้ามาแถวแยกบางนามีไบเทคบางนา และอนาคตจะมีห้างสรรพสินค้าอย่าง Bangkok Mall แต่ต้องรออีกสักพักครับ ถัดมาอีกมี Central Plaza และ Big C บางนา เลยไปอีกมีเมกาและอิเกียบางนา เส้นศรีนครินทร์มี Makro , Seacon Square , Paradise Place , Paradise Park, ตลาดนัดรถไฟ หรือจะขึ้น BTS ไปเอกมัย ทองหล่อ พร้อมพงษ์ อโศก สยามเลยก็ง่ายดีครับต่อเดียวถึง
สถานที่สำคัญใกล้เคียง
ห้างสรรพสินค้า
สถานศึกษา
โรงพยาบาล
การเดินทางวันนี้เริ่มจากถนนสุขุมวิทตรง BTS อ่อนนุช มุ่งหน้าไปทางแยกบางนา ขับตามทางไปจนถึง BTS ปุณณวิถี จากนั้นเลี้ยวซ้ายเข้าซอยสุขุมวิท 101/1 หรือถนนวชิรธรรมสาธิต จากนั้นเข้าซอยไปอีกประมาณ 2.5 กม. จะเจอพื้นที่โครงการทางขวามือ
สรุปการเดินทาง ถนนสุขุมวิท > ซอยสุขุมวิท 101/1 หรือถนนวชิรธรรมสาธิต > Lumpini Ville สุขุมวิท 101/1 – ปุณณวิถี

เริ่มจาก BTS อ่อนนุช ขวามือเป็น Tesco Lotus ฝั่งซ้ายจะเป็น Century อ่อนนุช มีโรงหนังในนี้ด้วยนะครับ
ถัดมาเป็น BTS บางจาก
จากนั้นจะเป็น BTS ปุณณวิถี
จาก BTS ปุณณวิถี จะมี Sky Walk เชื่อมมาถึง 101 The Third Place ในนี้จะมีร้านค้า ร้านอาหารหลายร้าน รวมไปถึงอาคารสำนักงานด้วยครับ
ถัดมาจะเจอแยกไฟแดง ให้เลี้ยวซ้ายเข้าซอยสุขุมวิท 101/1 หรือถนนวชิรธรรมสาธิต สังเกตตัว Sky Walk จะยาวมาถึงแยกนี้เลย
จากนั้นเลี้ยวเข้าซอยสุขุมวิท 101/1 หรือถนนวชิรธรรมสาธิต เข้าไปอีกประมาณ 2.5 กม. จะเจอพื้นที่โครงการทางขวามือ
เลี้ยวซ้ายเข้าซอยสุขุมวิท 101/1 หรือถนนวชิรธรรมสาธิต
เลี้ยวมาจะเป็นซอยสุขุมวิท 101/1 หรือถนนวชิรธรรมสาธิต ตามริมสองฝั่งทางจะมีร้านค้าร้านอาหารหลายร้านเลย
ช่วงต้นซอยจะเป็นถนนขนาด 4 เลน แต่จะมีรถจอดบ้างตามริมทาง
เข้ามาจะเริ่มเห็นโครงการคอนโด Low Rise พอสมควร
ซ้ายมือมี Tops Daily
ถัดเข้ามาอีกจะมีตลาดมหาสิน มีร้านค้า ร้านสะดวกซื้อ คึกคักเกือบทั้งวัน
ในซอยนี้จะมีรถสองแถวและรถกะป้อวิ่งผ่าน
ถัดมาขวามือจะเป็น @ Park เป็นคอมมูนิตี้
และจะเจอพื้นที่โครงการทางขวามือ อยู่ฝั่งตรงข้ามกับปั๊ม Shell
บริเวณด้านหน้าโครงการ
พื้นที่โครงการทางทิศเหนือด้านหน้าหน้าโครงการติดกับถนนซอยสุขุมวิท 101/1 หรือถนนวชิรธรรมสาธิต ฝั่งทิศใต้ด้านหลังโครงการติดกับบ้านพักอาศัย ฝั่งทิศตะวันออกติดกับบริษัท ไทยโตอาอุตสาหกรรม จำกัด และฝั่งทิศตะวันตกติดกับอาคารพาณิชย์และบ้านพักอาศัย
ด้านหน้าโครงการติดกับถนนซอยสุขุมวิท 101/1 หรือถนนวชิรธรรมสาธิต
มองไปทางขวาติดกับอาคารพาณิชย์ 5 ชั้น
มองไปทางซ้ายติดกับ บริษัท ไทยโตอาอุตสาหกรรม จำกัด สูง 7 ชั้น
ฝั่งตรงข้ามด้านหน้าโครงการจะเป็นปั๊ม Shell
มองไปทางซ้าย
มองไปทางขวาจะเห็นซอยที่เป็นซอยลัดเชื่อมไปออกอ่อนนุช 44 ได้ หรือถ้าตรงเลยไปเลี้ยวขวาจะไปเชื่อมออกอุดมสุขได้ครับ
พื้นที่ด้านในโครงการ
มองไปทางฝั่งทิศตะวันออกจะเห็น บริษัท ไทยโตอาอุตสาหกรรม จำกัด มีอาคารสูง 7 ชั้นด้านหลังสูง 4 ชั้น และ 1 ชั้น
ฝั่งทิศตะวันตกจะเห็นอาคารพาณิชย์ด้านหน้า ด้านหลังจะเป็นบ้านพักอาศัยประมาณ 2 ชั้น
ด้านหลังโครงการทิศใต้ติดกับบ้านพักอาศัย วิวจะมองไปทางอุดมสุข
Sale Gallery ตั้งอยู่ในพื้นที่โครงการเลย ใครที่สนใจก็แวะเข้ามาชมห้องตัวอย่างกันได้ครับ
ด้านในจำลองบรรยากาศตรงส่วน Co-Living Zone ของโครงการให้ดู ส่วนด้านในตอนนี้มีโมเดลจำลองและห้องตัวอย่างให้ชม 2 แบบ
มีมุมที่เป็นโซฟา และชุดโต๊ะเก้าอี้เข้าชุดไว้ให้
Model

Lumpini Ville สุขุมวิท 101/1 – ปุณณวิถี เป็นคอนโด Low Rise สูง 8 ชั้น 2 อาคาร แบ่งเป็นอาคาร A และ อาคาร B ตั้งอยู่บนที่ดินขนาด 3-0-20 ไร่ ตัวอาคารรูปทรงสี่เหลี่ยนตัว L เรียบๆ สีภายนอกอาคารใช้โทนน้ำเงิน ฟ้า และเทา ตัดด้วยสีส้มอิฐ ที่ชั้น 1 จะเป็น Facility ทั้งหมด ชั้น 2-8 จะเป็นชั้นพักอาศัย ที่จอดรถอยู่ใต้อาคารและจอดแบบกลางแจ้ง ทั้งโครงการจอดได้ 106 คัน หรือคิดเป็น 32% ไม่รวมซ้อนคัน

ภาพจำลองโครงการ Lumpini Ville สุขุมวิท 101/1 – ปุณณวิถี
ด้านหน้าทางเข้าออกโคงรการติดกับซอยสุขุมวิท 101/1 ฝั่งด้านหน้าจะเป็นส่วนของอาคาร A ที่ชั้น 1 จะเป็น Lobby, Co-Living Zone ฝ้าสูงถึงชั้น 2

ภาพจำลองบรรยากาศด้านหน้าโครงการ
มองจากมุมด้านบน

ภาพจำลองบริเวณทางเข้าออกโครงการ
บริเวณทางเข้าออกจะเป็นไม้กระดก มีป้อมยามตรงกลาง ลูกบ้านใช้ระบบ Access Control
บริเวณส่วนของ Lobby ฝ้าสูงถึงชั้น 2 วิวมองออกมาด้านหน้าโครงการ มีสวนด้านหน้าและป้ายโครงการติดไว้ชัดเจน

ภาพจำลองด้านหน้าโครงการมองเข้าไปตรงส่วนอาคาร A

ภาพจำลองบริเวณ Lobby และ Co-Living Zone
ฝั่งด้านข้างโครงการทิศตะวันออกติดกับ บริษัท ไทยโตอาอุตสาหกรรม จำกัด จะมีอาคารสูง 7 ชั้นตรงส่วนด้านหน้า ด้านหลังจะโล่งกว่า
ส่วนกลางจะมีทั้งตรงอาคาร A และ อาคาร B ตรงอาคาร B จะมีสระว่ายน้ำ ฟิตเนส และลานฟิตแอนด์เฟิร์ม ที่จอดรถมีทั้งแบบใต้อาคาร และจอดแบบกลางแจ้ง ทั้งโครงการจอดได้ 106 คัน ไม่รวมซ้อนคัน
บริเวณอาคาร A
บริเวณอาคาร B
สระว่ายน้ำระบบเกลือขนาด 15 x 6.5 ม. มีพื้นที่นั่งริมสระ
ภาพจำลองสระว่ายน้ำตรงอาคาร B
ด้านในจะเป็นห้องฟิตเนส วิวมองออกมาที่สระว่ายน้ำ
มีลานฟิตแอนด์เฟิร์มด้านนอก วางเครื่องออกกำลังกายมาด้วย

ภาพจำลองบริเวณห้องฟิตเนส วิวมองออกไปที่สระว่ายน้ำด้านนอก
ด้านหลังโครงการทิศใต้ติดกับบ้านพักอาศัย
ด้านข้างฝั่งทิศตะวันตกจะติดกับอาคารพาณิชย์ และบ้านพักอาศัย
Floor Plan
Master Plan โครงการเริ่มจากด้านหน้าทางเข้าติดกับซอยสุขุมวิท 101/1 ผ่านเข้ามาจะเจอป้อมยามมีไม้กระดก ผ่านเข้ามาจะเป็นส่วนของอาคาร A ด้านในพื้นที่โครงการจะเป็นอาคาร B ที่จอดรถจะมีแบบจอดกลางแจ้ง และจอดใต้อาคาร ทั้งโครงการจอดได้ 106 คัน หรือคิดเป็น 32% ไม่รวมซ้อนคัน ตรงอาคาร A ที่ชั้น 1 จะเป็นส่วน Lobby & Co-Living Zone ติดกันเป็นห้องนิติบุคคล และห้อง Mail Room มีลิฟต์โดยสาร 2 ตัว ที่อาคาร B จะมี Lobby แยกส่วน Mail Room มีลิฟต์โดยสาร 2 ตัว ฝั่งทิศตะวันออกจะมีห้องฟิตเนส สระว่ายน้ำกลางแจ้ง และลานฟิตแอนด์เฟิร์ม
แปลนอาคาร A ชั้น 2 จะเริ่มเป็นชั้นพักอาศัย มีจำนวนยูนิตทั้งหมด 20 ยูนิต ฝั่งทิศตะวันตกจะเป็นห้องแบบ Studio ขนาด 24.00 ตร.ม. จำนวน 11 ยูนิต และฝั่งทิศตะวันออกจะเป็นห้องแบบ 1 Bedroom ขนาด 28.00 – 28.5.0 ตร.ม. จำนวน 9 ยูนิต ตรงด้านหน้าอาคารจะเป็นฝ้าของส่วน Lobby & Co-Living Zone ติดกันจะเป็นตำแหน่งลิฟต์โดยสาร
แปลนอาคาร A ชั้น 3-8 จะเหมือนกันทุกชั้นครับ เป็นชั้นพักอาศัยทั้งหมด ชั้นละ 24 ยูนิต ที่ตำแหน่ง 10-20 จะเป็นห้องแบบ Studio ขนาด 24.00 ตร.ม. จำนวน 11 ยูนิต และที่ตำแหน่ง 1-9 , 21-24 จะเป็นห้องแบบ 1 Bedroom ขนาด 28.00 – 34.00 ตร.ม. จำนวน 13 ยูนิต
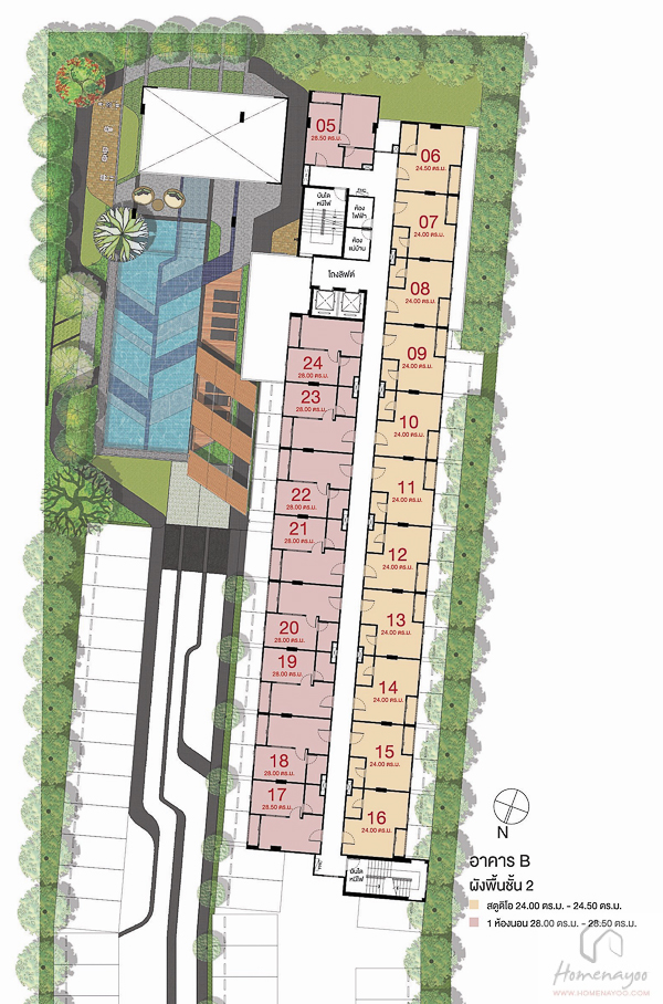
แปลนอาคาร B ชั้น 2 จะเริ่มเป็นชั้นพักอาศัยมีทั้งหมด 20 ยูนิต ที่ตำแหน่ง 06-16 จะเป็นห้องแบบ Studio ขนาด 24.00 – 24.50 จำนวน 11 ยูนิต และที่ตำแหน่ง 05, 17-24 จะเป็นห้องแบบ 1 Bedroom ขนาด 28.00 – 28.50 ตร.ม.
แปลนอาคาร B ชั้น 3-8 จะเหมือนกันทั้งหมด มีชั้นละ 24 ยูนิต ที่ตำแหน่ง 06 – 16 เป็นห้องแบบ Studio ขนาด 24.00 – 24.5.0 ตร.ม. จำนวน 11 ยูนิต และที่ตำแหน่ง 01, 04, 05, 17-24 เป็นห้องแบบ 1 Bedroom ขนาด 27.50 – 28.50 ตร.ม. และที่ตำแหน่ง 02, 03 เป็นห้องแบบ 2 Bedrooms ขนาด 44.00 ตร.ม. จำนวน 2 ยูนิต
Units Type
โครงการมีห้องให้เลือกแบบหลักๆดังนี้
ห้องตัวอย่าง
ห้องตัวอย่างที่จะพามาชมวันนี้มี 2 แบบ
แบบแรก ที่จะพามาชมเป็น Studio ขนาด 24.00 ตร.ม. พื้นที่ในห้องแต่ละส่วนจะเปิดโล่งเชื่อมต่อกันทั้งหมด เดินเข้าห้องมาเจอส่วนครัวและส่วนรับประทานอาหารก่อนเลย ถัดเข้าไปด้านในสุดเป็นส่วนห้องนั่งเล่นอยู่ติดกับระเบียงหลังห้อง ฝั่งขวาจะเป็นส่วนห้องนอนมีพื้นที่วางโต๊ะ ตู้ เตียงครบ มุมล่างขวาจะเป็นห้องน้ำ ภายในห้องน้ำมีพื้นที่ส่วนเปียกส่วนแห้ง
เริ่มจากประตูห้องเป็นแบบสีขาว
มือจับประตูเป็นแบบลูกบิดและตัวล็อคกุญแจ
เดินเข้าห้องมาจะเจอส่วนครัวก่อน เชื่อมกับห้องนั่งเล่นและห้องนอนด้านใน พื้นห้องจะเป็นไม้ลามิเนตหนา 8 มม. ฝ้าสูง 2.4 ม. ผนังจะได้ฉาบเรียบทาสีขาวทั้งหมด โครงการขายแบบ Fully Fitted เฟอร์นิเจอร์ที่ได้จะมีชุดเคาน์เตอร์ครัว แอร์ 1 ตัว และสุขภัณฑ์ในห้องน้ำ
เดินเข้ามาแล้วมองกลับไปที่ประตูห้อง
ชุดเคาน์เตอร์ครัวจะได้ตามนี้เลยเป็นแบบบานเปิด 2 บาน และลิ้นชัก 2 ช่อง
ได้อ่างล้างจานแบบหลุมเดียวไม่มีที่พักจาน ขนาดไม่ได้เล็กมาก ที่ผนังกรุกระเบื้องมาให้เรียบร้อยทำความสะอาดง่าย เตาไฟฟ้าไม่ได้แถมให้นะครับ แต่มีพื้นที่ไว้ให้เราซื้อมาวางเพิ่มได้
ถัดเข้าไปจะเป็นส่วนห้องนั่งเล่นและห้องนอน ห้องนี้จะได้แอร์ติดผนัง 1 ตัวครับ
วางโซฟาขนาด 2 ที่นั่งให้ดูพร้อมโต๊ะกาแฟ
ระยะดูทีวีประมาณ 2.2 ม. ซ้ายมือมีพื้นที่ไว้ให้วางตู้เย็น และโต๊ะรับประทานอาหารหรือโต๊ะทำงานได้
ถัดไปเป็นระเบียงมีประตูกระจกบานเลื่อน 2 บาน
เปิดออกมาจะเจอระเบียงขนาด 2.1 x 0.80 ม.
ด้านข้างจะติดราวตากผ้าแบบพับเก็บได้มาให้ด้วย
อีกฝั่งมีพื้นที่ไว้ให้วางเครื่องซักผ้า เดินระบบน้ำและไฟไว้ให้ครับ
ด้านบนจะแขวนคอมเพลสเซอร์แอร์ 1 ตัว เป่าลมออกด้านนอก
มองกลับเข้ามาในห้องจะเห็นแบบนี้
ด้านในจะเป็นส่วนของห้องนอน ขวามือจะเป็นห้องน้ำ
วางเตียง 5 ฟุตให้ดูพื้นที่รอบๆ
พื้นที่ข้างเตียงเหลือพื้นที่ประมาณ 1.42 ม.
พื้นที่ข้างเตียงอีกฝั่งเหลือประมาณ 54 ซม.
ปลายเตียงเหลือพื้นที่ประมาณ 45 ซม.
จากเตียงนอนเราใช้งานทีวีตรงห้องนั่งเล่นได้เลย ระยะประมาณ 4.6 ม.
ฝั่งข้างเตียงจะมีหน้าต่างบานเลื่อน 2 บาน
มองไปฝั่งด้านในห้อง จะเป็นห้องน้ำ
หน้าห้องน้ำมีพื้นที่ให้วางตู้เสื้อผ้าได้
ภายในห้องน้ำมีพื้นที่ส่วนเปียกส่วนแห้ง
ได้อ่างล้างหน้าทรงสี่เหลี่ยมของ Charmer มีพื้นที่ให้วางของด้านข้าง
ฝั่งนี้วางโถสุขภัณฑ์ของ American Standard พร้อมสายชำระ
อีกฝั่งเป็นพื้นที่ส่วนเปียก ไม่ได้แถมฉากกั้นอาบน้ำให้นะครับ แต่สามารถติดตั้งเพิ่มเองได้
ด้านในติดฝักบัวที่ผนังพร้อมที่วางสบู่
หน้าตาฝักบัวที่ได้ขนาดพอดีมือของ Hafele
พื้นที่ส่วนเปียกขนาด 1.18 x 0.74 ม.
มองออกมาจากห้องน้ำจะเห็นแบบนี้ครับ
แบบที่สอง เป็นห้องแบบ 1 Bedroom ขนาด 28.00 ตร.ม. เดินเข้าห้องมาจะเจอส่วนครัวก่อนจะได้เป็นครัวเปิด เชื่อมกับส่วนรับประทานอาหารและส่วนห้องนั่งเล่นด้านใน ในสุดจะเป็นระเบียง อีกฝั่งจะเป็นห้องนอน ภายในห้องนอนมีพื้นที่มาให้พอสมควร วางโต๊ะ ตู้ เตียงได้ครบ ห้องน้ำจะอยู่ในห้องนอนมีพื้นที่ส่วนเปียกส่วนแห้ง
เดินเข้าห้องมาจะเจอส่วนครัวก่อน ฝั่งซ้ายมีพื้นที่ให้วางตู้เย็น และโต๊ะรับประทานอาหาร ด้านในจะเป็นส่วนห้องนั่งเล่นอยู่ติดกับระเบียง ขวามือจะเป็นห้องนอน พื้นห้องเป็นไม้ลามิเนตหนา 8 มม. ฝ้าสูง 2.4 ม. ผนังได้ฉาบเรียบทาสีขาวทั้งห้อง
เดินเข้ามาแล้วมองกลับที่ประตูทางเข้าจะเห็นแบบนี้
ชุดเคาน์เตอร์ครัวจะได้ตามนี้เลย
จะได้เป็นตู้บานเปิด 5 บาน และลิ้นชัก 4 ช่อง
ได้อ่างล้างจานแบบหลุมเดียวไม่มีที่พักจาน มีพื้นที่ส่วนเตรียมอาหาร และไว้วางเตาไฟฟ้าได้อีก ผนังกรุกระเบื้องมาให้เรียบร้อย
ฝั่งตรงข้ามมีพื้นที่ไว้ให้วางตู้เก็บของ ตู้เย็น และโต๊ะรับประทานอาหารได้
ถัดเข้าไปจะเป็นห้องนั่งเล่น ขวามือเป็นห้องนอน
วางโซฟาขนาด 2 ที่นั่งให้ดู
ระยะดูทีวีประมาณ 2.19 ม.
ถัดไปเป็นระเบียง มีประตูกระจกบานเลื่อน 2 บาน ตรงห้องนั่งเล่นจะได้แอร์ติดผนัง 1 ตัว
เปิดประตูออกมาจะเป็นระเบียงขนาด 2.3 x 0.80 ม.
ด้านข้างจะติดราวตากผ้าแบบพับเก็บได้มาให้
อีกฝั่งมีพื้นที่ไว้ให้วางเครื่องซักผ้า เดินระบบน้ำและไฟไว้ให้
ด้านบนแขวนคอมเพลสเซอร์แอร์ 2 ตัว เป่าลมออกด้านนอก
มองกลับเข้ามาในห้องจะเห็นแบบนี้
ฝั่งด้านในจะเป็นห้องนอน ตรงผนังห้องจะเป็นกระจกบาน Fixed 2 บาน
ภายในห้องนอนมีพื้นที่มาให้พอประมาณ วางเตียง King Size ให้ดู
พื้นที่ข้างเตียงเหลือประมาณ 1.46 ม.
ข้างเตียงอีกฝั่งเหลือประมาณ 71 ซม.
ปลายเตียงเหลือพื้นที่ประมาณ 49 ซม.
ระยะดูทีวีปลายเตียงประมาณ 2.5 ม. แต่ต้องติดทีวีไว้ผนังฝั่งขวาครับ เพราะตรงกลางเป็นกระจก ในห้องนอนได้แอร์ติดผนัง 1 ตัว
ฝั่งด้านนอกมีหน้าต่างบานเลื่อน 2 บาน
ฝั่งด้านในเป็นห้องน้ำ หน้าห้องน้ำมีพื้นที่ให้วางตู้เสื้อผ้าได้
ภายในห้องน้ำมีพื้นที่ส่วนเปียกส่วนแห้ง ได้ตามนี้เลย
อ่างล้างหน้าที่ได้ของ Charmer โถสุขภัณฑ์ของ American Standard
ด้านในเป็นพื้นที่ส่วนเปียกติดฝักบัวมาให้
พื้นที่ส่วนเปียกขนาด 1.07 x 0.80 ม.
ราคา (พ.ค.62)
ค่าส่วนกลาง 48 บาท/ตร.ม. : ค่ากองทุน 500 บาท/ตร.ม
เงินจอง 10,000 – 15,000 บาท เงินทำสัญญา n/a บาท

***โครงการเปิดจองในวัน Pre-sale 25 พฤษภาคม 2562 ที่ Sale Gallery
ลงทะเบียนรับข้อมูลข่าวสารและสิทธิพิเศษ คลิก : https://bit.ly/2Kk2qKr
***รายละเอียดอื่นๆโปรดสอบถามทางโครงการครับ
สรุป
ทำเลที่ตั้งโครงการ – Lumpini Ville สุขุมวิท 101/1-ปุณณวิถี อยู่ในซอยสุขุมวิท 101/1 ทำเลรอบๆโครงการส่วนใหญ่จะเป็นที่อยู่อาศัยทั้ง อาคารพาณิชย์ บ้านพักอาศัย หอพัก และคอนโดมิเนียมทั้งเก่าและใหม่ ย่านนี้มีความอุดมสมบูรณ์ในตัวตั้งแต่ปากซอยจะมีร้านค้า ร้านอาหาร ตลาดสด ร้านสะดวกซื้อ ใกล้ๆ BTS ปุณณวิถีจะมี 101 The Third Place ถ้ามาแถวอุดมสุขก็มีร้านค้า ร้านอาหารหลายร้านเช่นกันครับ ส่วนห้างสรรพสินค้าใกล้เคียง ตรง BTS อ่อนนุช จะมี Tesco Lotus และ Century ในซอยสุขุมวิท 77 จะมีตลาดอ่อนนุช, Big C, People Park, Makro, Habito, Pickadaily ถ้ามาแถวแยกบางนามีไบเทคบางนา และอนาคตจะมีห้างสรรพสินค้าอย่าง Bangkok Mall แต่ต้องรออีกสักพักครับ ถัดมาอีกมี Central Plaza และ Big C บางนา เลยไปอีกมีเมกาและอิเกียบางนา เส้นศรีนครินทร์มี Makro , Seacon Square , Paradise Place , Paradise Park, ตลาดนัดรถไฟ หรือจะขึ้น BTS ไปเอกมัย ทองหล่อ พร้อมพงษ์ อโศก สยามเลยก็ง่ายดีครับต่อเดียวถึง
การเดินทางด้วยรถยนต์ส่วนตัว – การเดินทางค่อนข้างสะดวกเชื่อมต่อได้หลายเส้นทาง ตัวโครงการตั้งอยู่ในซอยสุขุมวิท 101/1 เป็นซอยที่เชื่อมเข้าออกได้จากถนนสุขุมวิท ในซอยจะมีซอยย่อยเชื่อมไปถนนอุดมสุขได้หลายซอย และมีซอยเชื่อมไปออกออ่อนนุช และศรีนครินทร์ได้อีกด้วยครับ ถ้าจะเข้าเมืองหลักๆก็ใช้เส้นสุขุมวิทวิ่งมุ่งหน้าเข้าเมืองอย่างเดียวไปเอกมัย ทองหล่อ พร้อมพงษ์ อโศก สยาม หรือเข้าถนนพระรามสี่ตรงแถวแยกพระโขนงว่งเข้าลุมพินี วิทยุ สาทร สีลม สามย่านได้เลย หรือจะใช้ทางด่วนเฉลิมมหานครโดยขึ้นตรงซอยสุขุมวิท 62 ไปได้หลายที่ทั้ง พระรามเก้า ดาวคะนอง พระรามสอง แจ้งวัฒนะ ดินแดง วิภาวดีรังสิต รามอินทรา ส่วนถ้าจะออกนอกเมืองเส้นศรีนครินทร์ไปเชื่อมออกรามคำแหง สมุทรปราการได้ อ่อนนุชวิ่งไปโซนลาดกระบัง สุวรรณภูมิได้ เส้นบางนาตราดวิ่งไปออกฉะเชิงเทรา ชลบุรี พัทยา และที่สำคัญเส้นนี้มีทางด่วนบูรพาวิถีวิ่งไปจนถึงชลบุรีเลย ส่วนเส้นสุขุมวิทวิ่งไปโซนสำโรง สมุทรปราการ บางปู
การเดินทางด้วยรถสาธารณะ – หน้าโครงการมี Taxi รถสองแถว รถกะป้อ วินมอเตอร์ไซค์วิ่งผ่านไปมาโบกเรียกหน้าโครงการได้เลย ถ้าออกมาตรงสุขุมวิทจะมีให้เลือกหลากหลายทั้งรถเมล์ รถตู้ Taxi วินมอเตอร์ไซค์ และรถไฟฟ้า BTS ปุณณวิถี โดยทางขึ้นเชื่อมไปสถานีห่างจากโครงการประมาณ 2.5 กม. นั่งเข้าเมืองต่อเดียวถึงเลยสะดวกดี นอกจากนี้ยังอยู่ใกล้กับแนวรถไฟฟ้าสายสีเหลืองสถานีสวนหลวง ร.9 อีกด้วยครับ ซึ่งตอนนี้อยู่ในช่วงก่อสร้างคงต้องรออีกสักพัก ที่โครงการนี้จะมีบริการ Shuttle Bus ไปกลับรถไฟฟ้า BTS แต่รายละเอียดต่างๆต้องรอจัดตั้งนิติบุคคลอีกทีครับ ภาพรวมถือว่าสะดวกพอประมาณครับ
การออกแบบโครงการและวัสดุ – โครงการออกแบบมา 2 อาคาร สูง 8 ชั้น บนพื้นที่ดินขนาด 3-0-20 ไร่ อาคารรูปทรงสี่เหลี่ยมตัว L เรียบๆ สีภายนอกใช้โทนน้ำเงิน ฟ้า และเทา ตัดด้วยสีส้มอิฐ ชั้นพักอาศัยจะเริ่มที่ชั้น 2-8 Facility หลักๆจะอยู่ที่ชั้น 1 ทั้งหมด
การออกแบบห้องพักอาศัยที่นี่มีให้เลือก 3 แบบหลักๆ คือ Studio ขนาด 24.00-24.50 ตร.ม. , 1 Bedroom ขนาด 27.50-34.00 ตร.ม. , 2 Bedrooms ขนาด 44.00 ตร.ม. ห้องออกแบบมาดูโปร่ง ฝ้าสูง 2.4 ม. โครงการขายแบบ Fully Fitted ของที่ได้จะมี ชุดเคาน์เตอร์ครัว อ่างล้างจาน สุขภัณฑ์ภายในห้องน้ำของ Charmer, American Standard, Hafele แอร์ได้แบบติดผนังตรงห้องนั่งเล่นและทุกห้องนอน พื้นในห้องเป็นไม้ลามิเนตหนา 8 มม. ผนังได้ฉาบเรียบทาสีขาวทั้งห้อง
สิ่งอำนวยความสะดวก – Facility ของโครงการอยู่ที่ชั้น 1 ทั้งหมด ตรงอาคาร A จะมี Lobby และส่วนที่เป็น Co-Living Zone ฝ้าส่วนนี้สูงถึงชั้น 2 และที่อาคาร B จะมี Lobby แยกให้อีก มีห้องฟิตเนส และสระว่ายน้ำกลางแจ้งขนาด 15 x 6.5 ม. มีลานฟิตแอนด์เฟิร์มพร้อมเครื่องออกกำลังกายกลางแจ้ง รอบๆจะตกแต่งด้วยสวนเพิ่มบรรยากาศให้ดูร่มรื่น ลิฟต์โดยสารมีให้อาคารละ 2 ตัว ที่จอดรถจอดที่ใต้อาคาร และจอดแบบกลางแจ้ง ทั้งโครงการจอดได้ 106 คัน หรือคิดเป็น 32% ไม่รวมซ้อนคัน ระบบรักษาความปลอดภัยมีรปภ. มี CCTV และผ่านเข้าออกด้วยระบบ Key Card Access
คะแนน
| ทำเลที่ตั้งโครงการ | 7.5 | อยู่ในซอยแต่เชื่อมออกได้หลายเส้นทาง มีความอุดมสมบูรณ์ในตัว |
| การเดินทาง ใช้รถ | 8.0 | เชื่อมออกได้หลายเส้นทาง ใกล้จุดขึ้นลงทางด่วน |
| การเดินทาง ไม่ใช้รถ | 7.5 | ห่างจาก BTS ปุณณวิถีประมาณ 2.5 กม. รถสองแถว รถกะป้อ รถเมล์ วินมอเตอร์ไซค์ Taxi รถไฟฟ้าสายสีเหลือง Shuttle Bus |
| ห้องและวัสดุ | 7.5 | ออกแบบมาเป็นสัดส่วน วัสดุที่ใช้อยู่ในระดับมาตรฐาน ขายแบบ Fully Fitted มี ชุดเคาน์เตอร์ครัว , แอร์ , สุขภัณฑ์ในห้องน้ำ |
| สิ่งอำนวยความสะดวก | 7.5 | Facility มี Lobby , สวนหย่อม , ฟิตเนส , สระว่ายน้ำ , Co-Living Zone , ลานฟิตแอนด์เฟิร์ม |
| ความคุ้มค่ากับราคา | 7.5 | รูปแบบโครงการออกแบบมาน่าอยู่อาศัยตามสไตล์ LPN แต่ก็มีตัวเลือกอีกหลายที่ในทำเลที่ใกล้เคียงกัน |
| คะแนนรวมเฉลี่ย | 7.58 | ดี |
สอบถามรายละเอียดเพิ่มเติมได้ที่
Tel : 02-689-6888
Website : https://www.lpn.co.th/
หากเพื่อนๆเห็นว่ารีวิวนี้มีประโยชน์ ช่วยกด Likeเพื่อเป็นกำลังใจให้ทีมงาน ขอบคุณครับ
และมีความคิดเห็นหรือข้อมูลเพิ่มเติมเกี่ยวกับตัวโครงการ สามารถ Commentได้ที่ด้านล่างของรีวิวครับ
แสดงความคิดเห็น เกี่ยวกับ " EP.324 รีวิว คอนโด ลุมพินี วิลล์ สุขุมวิท 101/1-ปุณณวิถี ใกล้ BTS ปุณณวิถี ราคาเริ่มต้น 1.49 ล้านบาท* "