
คอนโด แมนฮัตตัน พาร์ค เรสซิเดนซ์ Manhattan Park Residence
Manhattan Park Residence จาก Euro-Thai Property ตั้งอยู่บนซอยแบริ่ง 9 ถนนสุขุมวิท 107 แขวงบางนา เขตบางนา กทม. ใกล้รถไฟฟ้า BTS แบริ่ง ประมาณ 1.3 กม. ใกล้บิ๊กซี, เมเจอร์ ซีนีเพล็กซ์, ไบเทค บางนา, เซ็นทรัล บางนา, รร.เซนต์แอนดรูว์, รร.เซนต์โยเซฟ บางนา, รร.บางกอกพัฒนา และ รพ.ศิครินทร์
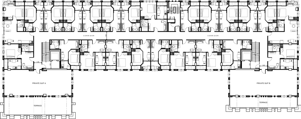
แมนฮัตตัน พาร์ค เรสซิเดนซ์ เป็นคอนโด Low Rise 8 ชั้น 1 อาคาร พื้นที่โครงการขนาด 309 ตร.วา. ห้องพักอาศัยรวม 79 ยูนิต มีห้องพักให้เลือกแบบสตูดิโอ, 1 ห้องนอน ขนาดเริ่มต้น 21.00-39.00 ตร.ม. สร้างเสร็จพร้อมอยู่ปี 2558
สิ่งอำนวยความสะดวกในโครงการครบครัน อาทิ โถงต้อนรับ, ห้องจดหมาย, สระว่ายน้ำ, ฟิตเนส, สวนพักผ่อน,พื้นที่โล่ง 63%, รถรับ-ส่งสถานีรถไฟฟ้า, ประตูคีย์การ์ด, ที่จอดรถ, ลิฟท์โดยสาร, กล้องวงจรปิด และ ระบบรักษาความปลอดภัยตลอด 24 ชม. ราคาเริ่มต้น 1.39 ล้านบาท (ณ.วันเปิดตัว)
| ชื่อโครงการ | แมนฮัตตัน พาร์ค เรสซิเดนซ์ Manhattan Park Residence |
| เจ้าของโครงการ | ยูโร-ไทย พร็อพเพอร์ตี้ / Euro-Thai Property |
| ลักษณะห้องและขนาดห้อง | Studio / 21 sq.m. 1 Bed / 24-39 sq.m. |
| เนื้อที่ทั้งหมด | 309 ตร.ว. |
| จำนวนตึก | 1 อาคาร |
| จำนวนชั้น | 8 ชั้น |
| จำนวนห้อง | 79 ยูนิต |
| ที่จอดรถทั้งหมด | n/a |
| โซน | บางนา, อ่อนนุช, ศรีนครินทร์ |
| ขนส่งสาธารณะ | รถไฟฟ้า BTS แบริ่ง |
| รถโดยสารที่ผ่าน | n/a |
| ที่ตั้ง | ซ.แบริ่ง 9 ถ.สุขุมวิท 107 แขวงบางนา เขตบางนา กรุงเทพฯ |
| กำหนดการ | เริ่มก่อสร้าง เม.ย. 2556 |
| ปีที่สร้างเสร็จ | คาดว่าแล้วเสร็จ ก.พ. 2558 |
| ราคา | เริ่มต้น 1.39 ล้านบาท |
| ราคาเฉลี่ยต่อ ตร.ม | n/a |
| สถานที่สำคัญใกล้เคียง | 1. ไบเทคบางนา 2. บิ๊กซี บางนา 3. เมเจอร์ บางนา 4. เซ็นทรัล บางนา 5. โรงเรียนเซนต์โยเซฟบางนา 6. โรงเรียนนานาชาติเซนต์แอนดรูว์ 7. โรงเรียนนานาชาติบางกอกพัฒนา |
| สิ่งอำนวยความสะดวก | – สระว่ายน้ำ – ฟิตเนส – ระบบโทรทัศน์วงจรปิด 24 ชม. – พื้นที่โล่ง 63% – รถรับส่งสถานีรถไฟฟ้าแบริ่ง – ที่จอดรถ |
| จุดเด่นของโครงการ | ด้วยแนวคิดที่โดดเด่นของ Manhattan Life Style Concept ทำให้ Manhattan Park Peninsula สามารถมอบความพึงพอใจ ด้วยสถาปัตยกรรมโอ่อ่าและสิ่งอำนวนความสะดวกครบครัน |
ที่ตั้งโครงการ
ซ.แบริ่ง 9 ถ.สุขุมวิท 107 แขวงบางนา เขตบางนา กรุงเทพฯ
คลิก เพื่อดูแผนที่ขนาดใหญ่
การเดินทาง
ทางพิเศษเฉลิมมหานคร ทางออก 17 B สมุทรปราการ ⇒ ถนนสุขุมวิท ⇒ BTS บางนา ⇒ BTS แบริ่ง ⇒ แยกแบริ่ง ⇒ ถนนแบริ่งหรือซอยสุขุมวิท 107 ⇒ ซอยแบริ่ง 9 ⇒ Manhattan Park Residences
การเดินทางเราใช้ทางพิเศษเฉลิมมหานคร โดยลงทางออก 17B ตามป้ายไปสมุทรปราการ
ผ่าน BTS บางนา
ผ่านแยกลาซาล และ BTS แบริ่ง
แยกแบริ่งแล้วเลี้ยวซ้ายเข้าสู่ถนนแบริ่งค่ะ
ขับตรงไปประมาณ 800 เมตรให้สังเกตขวามือเป็นโครงการ บีลอฟ แล้วเตรียมเลี้ยวเข้าซอยแบริ่ง 9 ทางลัดไปลาซาลค่ะ
เลี้ยวเข้าซอยแบริ่ง 9 ที่ลัดไปออกซอยลาซาล 8
หน้าโครงการยังไม่เสร็จดี ซอยนี้สามารถทะลุไปซอยลาซาลได้ค่ะ
บริเวณโดยรอบโครงการ
ศูนย์การค้า
ตลาด ร้านสะดวกซื้อ และอื่น ๆ
สถานศึกษา
โรงพยาบาลและศูนย์การแพทย์
อาคารสำนักงานและหน่วยงานอื่น ๆ
แปลนอาคาร
แปลนห้อง
แกลเลอรี
สนใจติดต่อสอบถามเพิ่มเติมได้ที่
Tel : 080-437-3888 / 080-437-3999
Website : www.manhattan-park.com
แสดงความคิดเห็น เกี่ยวกับ " คอนโด แมนฮัตตัน พาร์ค เรสซิเดนซ์ ใกล้รถไฟฟ้า BTS แบริ่ง "