
รีวิว เมทริส พัฒนาการ-เอกมัย Metris Pattanakarn-Ekkamai คอนโดพร้อมอยู่ เลี้ยงสัตว์ได้ ใกล้ Airport Link รามคำแหง เริ่มต้น 2.59 ล้าน*

Written by : THAnATH
สวัสดีผู้อ่านชาว Homenayoo ทุกคนครับ วันนี้ผมพามาชมโครงการ Metris พัฒนาการ-เอกมัย จาก Major Development
ตั้งอยู่ริมถนนพัฒนาการ ฝั่งขาเข้า ห่างจากแยกคลองตัน ประมาณ 600 ม. เชื่อมต่อเอกมัย-ทองหล่อได้ง่าย ใกล้ถนนเพชรบุรี, ถนนสุขุมวิท 71, ถนนรามคำแหง, ถนนศรีนครินทร์, ถนนพระราม 9 ใกล้จุดขึ้น-ลงทางด่วนฉลองรัช เพียง 100 ม. และใกล้ทางด่วนศรีรัช
ใกล้ ARL รามคำแหง ประมาณ 900 ม. เป็นสถานีเชื่อมต่อกับท่าเรือรามหนึ่ง จาก ARL รามคำแหงนั่งเพียง 1 สถานี เชื่อมต่อกับ MRT เพชรบุรี และ เพียง 4 สถานี เชื่อมต่อกับสนามบินสุวรรณภูมิ รายล้อมไปด้วยสิ่งอำนวยความสะดวกครบครัน
เมทริส พัฒนาการ-เอกมัย กับแนวคิด RECONNECT INSPIRATION OF PASSION เป็นคอนโด High Rise สูง 29 ชั้น 1 อาคาร บนที่ดิน 2-1-65 ไร่ มีความเป็นส่วนตัวด้วยจำนวนห้องพักอาศัยเพียง 341 ยูนิต มีห้องให้เลือกแบบ 1 Bedroom , 2 Bedrooms 1 Bathroom , 2 Bedrooms 2 Bathrooms ขนาดห้องเริ่มต้นที่ 29.80 – 61.90 ตร.ม. พร้อมระบบ Home Automation โครงการสร้างเสร็จพร้อมอยู่ในปี 2564
จุดเด่นของทุกโครงการในเครือ Major Development ที่แตกต่างจากโครงการทั่วไป เอาใจคนรักสัตว์ Pet-Friendly Residences หรือคอนโดมิเนียมที่อนุญาตให้เลี้ยงสัตว์ได้ และเข้าใจทุกความต้องการของคนรักสัตว์ พร้อมพื้นที่ Pet zone ขนาดใหญ่ที่สุดในเครือ Major Development และได้รับการรับรองจากโรงพยาบาลสัตว์ทองหล่อ
สิ่งอำนวยความสะดวกภายในโครงการมีให้ครบครัน อาทิ Lobby, Multi-Purpose Room, Co-Working Space, Mailbox & Smart Locker, BBQ Area, Multi-Purpose Court, Garden Area, Pet Zone, Jogging Track, Fitness, Sundeck, City Lounge, Swimming Pool, Steam Room, Sauna Room, Car Wash Area, EV Charger, Shuttle Service, Access Card Control, กล้องวงจรปิด พร้อม ระบบรักษาความปลอดภัย 24 ชม. ราคาเริ่มต้น 2.59 ล้านบาท* (ก.ย.64)
ลงทะเบียนรับสิทธิพิเศษ คลิก : https://bit.ly/3gW2UnF
สอบถามรายละเอียดเพิ่มเติม โทร : 02-116-1111
คอนโด Major Development ทำเลอื่นๆ ที่น่าสนใจ…
6 โครงการพร้อมอยู่ ทำเลคุณภาพ
มาเอสโตร 01 สาทร – เย็นอากาศ / 2 ห้องนอน เริ่ม 8.9 ล้านบาท
มาเอสโตร 19 รัชดา 19 – วิภา / 1 ห้องนอน เริ่ม 3.19 ล้านบาท
เมทริส พัฒนาการ – เอกมัย / 1 ห้องนอน เริ่ม 2.89 ล้านบาท
เมทริส พระราม 9 – รามคำแหง / 1 ห้องนอน เริ่ม 3.49 ล้านบาท
เมทริส ลาดพร้าว / 1 ห้องนอน เริ่ม 4.19 ล้านบาท
เอ็ม จตุจักร / 2 ห้องนอน เริ่ม 7.99 ล้านบาท
1 โครงการใหม่ ใจกลางห้าแยกลาดพร้าว
เมทริส ดิสทริค ลาดพร้าว / 1 ห้องนอน เริ่ม 3.69 ล้านบาท
| ชื่อโครงการ | เมทริส พัฒนาการ-เอกมัย Metris Pattanakarn-Ekkamai |
| เจ้าของโครงการ | บริษัท เมเจอร์ ดีเวลลอปเม้นท์ เอสเตท จำกัด |
| เนื้อที่ทั้งหมด | 2-1-65 ไร่ |
| จำนวนตึก | 1 อาคาร |
| จำนวนชั้น | 29 ชั้น |
| จำนวนห้อง | 341 ยูนิต |
| ลักษณะห้องและขนาดห้อง |
|
| ที่จอดรถทั้งหมด | 155 คัน หรือคิดเป็น 46% (ไม่รวมซ้อนคัน) |
| จำนวนลิฟต์ |
|
| โซน | พัฒนาการ |
| ขนส่งสาธารณะ |
|
| รถโดยสารที่ผ่าน | n/a |
| ที่ตั้ง | ถนนพัฒนาการ แขวงสวนหลวง เขตสวนหลวง กทม. |
| กำหนดการ | พ.ย.2562 |
| ปีที่สร้างเสร็จ | ปี 2564 |
| ราคา | เริ่มต้น ประมาณ 2.59 ล้านบาท* |
| ราคาเฉลี่ยต่อ ตร.ม | ประมาณ 100,000 บาท/ตร.ม. |
| ค่าส่วนกลางและกองทุน |
|
| สถานที่สำคัญใกล้เคียง | ห้างสรรพสินค้า โซนรามคำแหง-พัฒนาการ
โซนเพชรบุรี-พระราม 9
โซนเอกมัย-ทองหล่อ
โซนพร้อมพงษ์-อโศก
สถานศึกษา
ศูนย์การแพทย์
|
| สิ่งอำนวยความสะดวก |
|
| จุดเด่นของโครงการ | “METRIS พัฒนาการ-เอกมัย” คอนโดบนทำเลศักยภาพใกล้เอกมัย-ทองหล่อ เดินทางสะดวกสบาย เชื่อมต่อถนนสายสำคัญได้หลากหลาย เพียง 100 เมตร จากทางด่วนฉลองรัช เริ่ม 2.59 ล้านบาท* |
ที่ตั้งโครงการ
ถนนพัฒนาการ แขวงสวนหลวง เขตสวนหลวง กทม.
พิกัด Google โดยประมาณ : 13.738692, 100.605709
ทำเลที่ตั้ง โครงการ Metris พัฒนาการ-เอกมัย อยู่ติดกับถนนพัฒนาการ ฝั่งขาเข้า ห่างจากแยกคลองตันประมาณ 600 ม. ซึ่งเป็นจุดตัดกับถนนเพชรบุรี ถนนรามคำแหง และถนนซอยสุขุมวิท 71 แต่ละเส้นสามารถเชื่อมต่อได้ทั้งเข้าและออกเมือง
ส่วนถนนพัฒนาการเองเป็นเส้นที่ตัดผ่านเส้นสำคัญหลายเส้น โดยเริ่มมาจากแยกคลองตัน มาผ่านจุดขึ้นทางด่วนฉลองรัชที่อยู่ใกล้โครงการเพียง 100 ม. จากนั้นยาวมาแยกพัฒนาการตัดกับถนนศรีนครินทร์ จากนั้นมาตัดผ่านถนนอ่อนนุช และไปสิ้นสุดที่ถนนเฉลิมพระเกียรติ ร.9
โครงการยังอยู่ใกล้ ARL รามคำแหง ใช้เดินทางไปสนามบินสุวรรณภูมิได้สะดวก และยังเป็นสถานีเชื่อมต่อกับท่าเรือรามหนึ่งอีกด้วย รายล้อมไปด้วยแหล่งอำนวยความสะดวกครบครันทั้งศูนย์การค้า ตลาด สถานศึกษา โรงพยาบาล และอาคารสำนักงานต่างๆ
การเดินทางด้วยรถยนต์ จุดเด่นของโครงการอยู่ใกล้ทางด่วนฉลองรัชเพียง 100 ม. จะเป็นจุดขึ้นลงทางด่วนทั้งฝั่งไปโซนลาดพร้าว รามอินทรา และไปโซนบางนา มีจุดเชื่อมกับทางด่วนศรีรัช และทางด่วนเฉลิมมหานครได้ ช่วยให้การเดินทางเข้าออกเมืองได้สะดวก
ถ้าไม่ใช้ทางด่วนก็สะดวกเช่นกัน จากโครงการมาวิ่งมาแยกคลองตันใช้ได้ทั้งเส้นสุขุมวิท 71 เส้นเพชรบุรี และเส้นพระราม 9 ถ้าใช้เส้นสุขุมวิท 71 มาปากซอยจะเจอกับถนนสุขุมวิทซึ่งวิ่งไปเอกมัย ทองหล่อ อโศกยาวไปชิดลม สยามได้เลย หรือจากแยกพระโขนงสามารถมาเข้าถนนพระราม 4 ก็ได้ ไปออกลุมพินี สีลม สาทร ข้ามไปฝั่งธน หรือไปสามย่าน หัวลำโพง เยาวราช มีทางด่วนให้ขึ้นตรงท่าเรือครับ
ถ้าใช้เส้นเพชรบุรีก็วิ่งมุ่งหน้าเข้าเมืองอย่างเดียวเป็นเส้นที่วิ่งขนานกับสุขุมวิทและจะตัดเข้าท้ายซอยเอกมัย ทองหล่อ อโศก ชิดลม หรือยาวไปประตูน้ำ ราชเทวีได้เลย อีกเส้นคือพระราม 9 จากแยกคลองตันตัดเข้าถนนรามคำแหงวิ่งตรงไปเลี้ยวซ้ายเข้าถนนพระราม 9 ตรงแยกรามคำแหง จากนั้นวิ่งตรงไปแยกพระราม 9 เชื่อมต่อไปอโศก รัชดาภิเษก ดินแดง อนุสาวรีย์ชัยฯ หรือออกวิภาวดีรังสิตก็ได้ นอกจากนี้ยังมีจุดขึ้นทางด่วนศรีรัชตรงเส้นพระราม 9 อีกด้วยครับ
ถ้าออกนอกเมือง ใช้เส้นพัฒนาการ ก็กลับรถตรงด้านหน้าโครงการได้เลย จากนั้นขับตามถนนพัฒนาการออกมาตัดกับถนนศรีนครินทร์ ถนนอ่อนนุช ออกเฉลิมพระเกีรติ ร. 9 ได้ ถ้าใช้เส้นสุขุมวิท 71 ออกมาสุขุมวิทวิ่งตามแนว BTS ออกไปทางอุดมสุข แยกบางนา ตัดเข้าบางนาตราดได้ หรือข้ามแยกไปแบริ่งยาวไปสมุทรปราการได้เลย ถ้าไปเส้นรามคำแหงไปแยกลำสาลี บางกะปิ ลาดพร้าว มีนบุรี หนองจอก อีกเส้นคือพระรามเก้า ฝั่งขาออกเมืองจะไปตัดกับเส้นศรีนครินทร์ เส้นกาญจนาภิเษก ไปโซนลาดกระบัง และเชื่อมกับมอเตอร์เวย์วิ่งไปออกชลบุรี พัทยาได้เลย
ทางด่วน ที่อยู่ใกล้โครงการคือทางด่วนฉลองรัช ห่างจากโครงการเพียง 100 ม. จะเจอจุดขึ้นทางด่วนทั้งฝั่งไปโซนรามอินทรา และไปโซนบางนา
ทางด่วน ที่อยู่ใกล้โครงการคือทางด่วนศรีรัช ห่างจากโครงการประมาณ 2.4 กม. จากโครงการวิ่งไปเข้าถนนรามคำแหงและไปออกถนนพระรามเก้า จะเจอทางขึ้นทางด่วนครับเข้าเมืองได้เลยสะดวกดี
:: สรุปแยก และ ถนนสำคัญรอบโครงการ ::
การเดินทางโดยสาธารณะ ติดกับโครงการด้านหน้าร้านอาหารอีสานตะวันแดงมีป้ายรถเมล์ มีรถวิ่งผ่านหลายสายทั้งเข้าและออกเมือง หน้าโครงการโบกเรียก Taxi สองแถว และวินมอเตอร์ไซค์ได้เลยสะดวกดี ตัวโครงการมีบริการ Shuttle Service รับ-ส่งฟรีที่ ARL รามคำแหง ซึ่งอยู่ห่างจากโครงการประมาณ 900 ม. ระยะก็พอเดินได้ ระวังตอนข้ามถนนกันด้วยครับ
นั่ง ARL ไปลงมักกะสันห่างเพียง 1 สถานีจะเป็นจุดเชื่อมต่อกับ MRT เพชรบุรี ถ้าจะเปลี่ยนเป็น BTS ก็นั่ง MRT มาเปลี่ยนที่อโศก หรือนั่ง ARL ไปลงพญาไทได้เลย หรือถ้านั่งมาลงสถานีหัวหมาก มาเชื่อมต่อกับรถไฟฟ้าสายสีเหลืองสถานีพัฒนาการได้ ส่วนใครที่เดินทางไปสนามบินบ่อยๆ ขึ้น ARL ต่อเดียวถึงสนามบินสุวรรณภูมิเลยเพียง 4 สถานีเท่านั้น
นอกจากนี้ด้านหลังสถานี ARL รามคำแหง ยังมีท่าเรือด่วนคลองแสนแสบให้บริการอีกด้วย คือท่าเรือรามหนึ่ง และมีท่าเรือที่ใกล้โครงการอีกจุดคือท่าเรือสะพานคลองตัน ใช้เดินทางไปได้ทั้งอโศก ชิดลม ประตูน้ำ มาบุญคลอง ผ่านฟ้าลีลาศ หรือออกไปโซนรามคำแหงได้เลย และยังอยู่ใกล้แนวรถไฟฟ้าสายสีส้มอีกด้วยครับ
ความอุดมสมบูรณ์ ในระยะเดินประมาณ 300-500 ม. มีร้านค้า ร้านอาหารหลายร้าน ทั้งร้านส้มตำ ร้านข้าวหมูแดง ร้านก๋วยเตี๋ยว ข้าวราดแกง ร้านรถเข็นต่างๆ มีเต็นท์ขายอาหาร มี Family Mart ร้านขายยา ร้านผลไม้ หรือเลยไปอีกก็มีร้านตามสองฝั่งทางถนนพัฒนาการเป็นระยะๆ ช่วงเที่ยงจะคึกคักหน่อย เพราะแถวนี้มีอาคารสำนักงาน ถ้าเดินไปฝั่งแยกคลองตันมี 7-11 ร้านค้า ร้านอาหารต่างๆก็มีให้เลือกเยอะยาวไปจนเข้าไปทางซอยสุขุมวิท 71 มีตลาดคลองตันใกล้ๆ
ถ้ามาตรงถนนรามคำแหงก็มีหลายร้านเช่นกัน มีตลาดเอกรินทร์ตรงตึก UM Tower หรือเดินไปแถว ARL รามคำแหงมี NASA Street มี Starbuck , Subway และร้านค้าต่างๆ หรือจะขับรถเข้าเมืองไปเลยก็ง่ายดี นอกจากนี้ยังใกล้กับสถานศึกษาและโรงพยาบาลอีกหลายแห่ง
แหล่งอำนวยความสะดวกใกล้เคียง ห้างสรรพสินค้าตรงเส้นพัฒนาการมี London Street , Lotus , Max Value หรือจะไปแถวรามฯ จะมีห้างสรรพสินค้าอย่าง The Mall ราม 3 และ The Mall ราม 2 , Food Land , Major , หัวหมากทาวน์เซ็นเตอร์ , มีตลาดนัด กกท ซึ่งเป็นตลาดนัดชื่อดังย่านรามคำแหงเลยมีของกิน ของใช้ เสื้อผ้า รองเท้า มาเดินช้อปปิ้งได้
นอกจากนี้ยังมีสนามราชมังคลากีฬาสถาน ซึ่งเป็นสนามกีฬาขนาดใหญ่ที่สุดในประเทศไทย ทั้งเป็นที่จัดแข่งขันฟุตบอลนัดสำคัญต่างๆ และใช้สำหรับจัดการแสดงคอนเสิร์ต ส่วนสถานบันเทิงใกล้ๆคือ RCA หรือวิ่งเข้าโซนเอกมัย ทองหล่อ พร้อมพงษ์ อโศกได้เลยในระยะไม่เกิน 6 กม.

ส่วนสถานศึกษาย่านนี้มีทั้ง ม.เกษมบัณฑิต, สถาบันเทคโนฯ ไทย-ญี่ปุ่น, ม.รามคำแหง, ABAC ,รร.เตรียมอุดมศึกษาพัฒนาการ และ รร.สาธิต ม.ราม และยังใกล้โรงเรียนนานาชาติหลายแห่งทั้ง นานาชาติเซนต์มาร์ค, นานาชาติบีคอนเฮาส์ฯ, นานาชาติเอกมัย, นานาชาติเทร็ลล์, นานาชาติเซนต์แอนดรูว์ส
และยังใกล้โรงพยาบาลชั้นนำมากมาย ทั้ง รพ.เพชรเวช, รพ.รามคำแหง, รพ.สมิติเวช ศรีนครินทร์, รพ.คามิลเลียน, รพ.สมิติเวช สุขุมวิท, รพ.สุขุมวิท , รพ.กรุงเทพ และ รพ.ปิยะเวช ทั้งหมดอยู่ในรัศมีไม่เกิน 7 กม. ถึงโรงพยาบาลครับ
:: สรุปสถานที่สำคัญรอบโครงการ ::
ห้างสรรพสินค้า
โซนรามคำแหง-พัฒนาการ
โซนเพชรบุรี-พระราม 9
โซนเอกมัย-ทองหล่อ
โซนพร้อมพงษ์-อโศก
สถานศึกษา
ศูนย์การแพทย์
:::: การเดินทางสู่โครงการ ::::
วันนี้ทางทีมงาน Homenayoo มีภาพการเดินทางไปสู่ตัวโครงการโดยใช้รถยนต์ส่วนตัวมาฝากกันครับ โดยเราจะเริ่มการเดินทางจาก
ถนนสุขุมวิท > ถนนสุขุทวิท 71 > ถนนพัฒนาการ > Metris พัฒนาการ-เอกมัย

เริ่มจากถนนสุขุมวิท ตรง BTS พระโขนง
ตรง BTS พระโขนง ฝั่งซ้ายจะเป็น Summer Point ฝั่งขวาเป็น Summer Hill มีร้านค้าร้านอาหารหลายร้าน ตรงหน้าจะเป็นแยกพระโขนง

จากนั้นจะเจอแยกไฟแดงให้เลี้ยวซ้ายเข้าซอยสุขุมวิท 71
ช่วงปากซอยมีร้านค้า ร้านอาหารหลายร้าน
จากนั้นซ้ายมือจะเป็น Makro ขวามือเป็น MaxValu
ตรงมาสุดซอยจะเจอแยกคลองตัน ให้เลี้ยวขวาเข้าถนนพัฒนาการ
เลี้ยวขวามาจะเป็นถนนพัฒนาการ
จากนั้นจะผ่านทางด่วนฉลองรัช จุดขึ้นทางด่วนจะอยู่ใกล้โครงการเลยครับ
ถัดมาจะผ่านหน้าโครงการขวามือ เราต้องตรงไปกลับรถข้างหน้าครับ
และจะเจอจุดกลับรถ
กลับรถมาก็ตรงไปครับ เราจะเห็นตัวโครงการโดดเด่นอยู่ตรงหน้า
จากจุดกลับรถตรงมาประมาณ 1 กม. จะเจอโครงการทางซ้ายมือ เลี้ยวเข้าได้เลยสะดวกดี
:::: สภาพแวดล้อมรอบโครงการ ::::
ที่ดินโครงการ Metris พัฒนาการ-เอกมัย โดยรอบส่วนใหญ่จะเป็นบ้านพักอาศัย ร้านค้า และอาคารพาณิชย์ต่างๆ ใกล้ๆโครงการประมาณ 100 ม. จะมีแนวทางด่วนฉลองรัช ในระยะประชิดไม่มีอาคารสูงวิวค่อนข้างโล่งดี
หน้าโครงการติดกับถนนพัฒนาการ
ด้านขวาติดกับร้านอาหารอีสานตะวันแดง มีป้ายรถเมล์ด้านหน้า
ด้านซ้ายติดกับตลาดรถดีดี
ฝั่งตรงข้ามโครงการจะเป็นจุดกลับรถ ถัดไปประมาณ 100 ม. จะเป็นจุดขึ้นลงทางด่วนฉลองรัช ใครที่ใช้รถเดินทางได้สะดวกดี
มองจากมุมสูงจะเห็นตัวอาคารสีเหลืองมัสตาร์ด โดดเด่นในย่านพัฒนาการ
จากโครงการผมจะพาเดินไปดูใกล้ๆมีอะไรน่าสนใจบ้าง มีทางเท้าเดินได้สะดวก
ถัดมาจะเจอสะพานลอยเดินข้ามฝั่งได้สะดวก
และจะเริ่มเจอร้านค้าต่างๆ
มีร้านขายของกินของใช้
ถัดมาตรงปากซอยพัฒนาการ 18 จะมีเป็นศูนย์อาหาร
ด้านในมีร้านอาหารหลายร้านเลยครับ
ถัดมามี Family Mart
ถัดมาจะเป็นซอยพัฒนาการ 20 ซอยนี้เชื่อมไปออกอ่อนนุช(สุขุมวิท77) ได้ครับ
::: ตัวโครงการ :::
Metris เกิดจากการผสมผสานของคำว่า ‘Retro’ และ ‘Modernist’ นิยามถึงกลุ่มคนที่หลงใหลการออกแบบสถาปัตยกรรมสไตล์ Mid-Century Modern หัวใจสำคัญของการออกแบบและตกแต่งสไตล์นี้ คือ การลดทอนให้เรียบง่าย กลมกลืนกับธรรมชาติ และตอบโจทย์การใช้งานได้อย่างชาญฉลาด
Metris พัฒนาการ-เอกมัย กับแนวคิด RECONNECT INSPIRATION OF PASSION ตัวโครงการออกแบบมาในสไตล์ Mid-Century Modern เลือกสรรเทคนิคและวัสดุที่ทันสมัยในทุกองค์ประกอบ เพื่อคงคุณค่า เหนือกาลเวลา ตอบโจทย์การเป็นที่อยู่อาศัยที่สะท้อนตัวตนได้อย่างลึกซึ้งและสมบูรณ์แบบ สีภายนอกอาคารใช้สีเหลืองมัสตาร์ดดูโดดเด่น ตัวโครงการเป็นคอนโด High Rise 1 อาคาร สูง 29 ชั้น บนพื้นที่โครงการขนาด 2-1-65 ไร่ จำนวนยูนิตทั้งโครงการ 341 ยูนิต
จุดเด่นของทุกโครงการในเครือ Major Development ที่แตกต่างจากโครงการทั่วไป คือ Pet-Friendly Residences หรือคอนโดมิเนียมที่อนุญาตให้เลี้ยงสัตว์ได้ ซึ่งปัจจุบันได้ยกระดับไปสู่การเป็น Major Petscape หรือการพัฒนาที่อยู่อาศัยที่เข้าใจทุกความต้องการของคนรักสัตว์
กว่า 20 ปี ที่ทาง Major Development เรียนรู้และเก็บประสบการณ์ ทำให้มีทีมงานที่มีความพร้อมในการบริหารจัดการโครงการที่อยู่อาศัยเพื่อคนรักสัตว์ด้วยความเข้าใจในทุกองค์ประกอบ นอกจากนี้ยังได้ร่วมมือกับผู้เชี่ยวชาญจากหลายสาขาเพื่อทำให้มั่นใจว่า Major Development เป็นคำตอบเดียวสำหรับผู้ที่มองหาคอนโดเลี้ยงสัตว์ได้
เมทริส พัฒนาการ-เอกมัย มีฟังก์ชันและดีไซน์ที่ตอบโจทย์ ครอบคลุมการอยู่อาศัยของสัตว์เลี้ยงทุกรูปแบบ ในโครงการจะมี Pet zone หรือ พื้นที่ส่วนกลางเฉพาะของสัตว์เลี้ยง ทั้งสำหรับเดินเล่นและวิ่งออกกำลังกาย เพื่อให้เกิดการปรับเปลี่ยนบรรยากาศ ช่วยให้สัตว์เลี้ยงลดความเครียดจากการอยู่ในพื้นที่จำกัด มีอุปกรณ์เสริมการออกกำลังกายของสัตว์เลี้ยง พร้อม Double gate ที่ช่วยเพิ่มความปลอดภัยให้กับสัตว์เลี้ยง และแบ่งพื้นที่ขับถ่ายอย่างเป็นสัดส่วน
การออกแบบต่างๆ อยู่ภายใต้การรับรองจากผู้เชี่ยวชาญจากโรงพยาบาลสัตว์ทองหล่อ มีการเลือกใช้วัสดุที่เป็นมิตรกับสัตว์เลี้ยง ทั้งยังมีคุณสมบัติเก็บกลิ่นและทนน้ำ ง่ายต่อการล้างทำความสะอาด มีระบบคัดแยกประเภทขยะจากสัตว์เลี้ยงโดยเฉพาะเพื่อเข้าสู่กระบวนการจัดการที่ถูกต้อง และไม่กระทบต่อสิ่งแวดล้อมภายในโครงการ
นอกจากนี้โครงการยังใส่ใจในรายละเอียด ในการอยู่อาศัยร่วมกันระหว่างลูกบ้านที่เลี้ยงสัตว์และไม่เลี้ยงสัตว์ โดยได้กำหนดพื้นที่ส่วนกลางให้มีทั้งส่วนที่อนุญาตและไม่อนุญาตให้สัตว์เลี้ยงใช้งาน ขึ้นอยู่กับลักษณะการใช้งานจริงเพื่อสร้างความสมดุล เช่น จุดสัญจรหลักโซนล็อบบี้ สัตว์เลี้ยงจะต้องอยู่ในรถเข็นหรืออุปกรณ์เคลื่อนย้ายเท่านั้น ช่วยสร้างความอุ่นใจในด้านความปลอดภัยและสุขอนามัยภายในโครงการ
ส่วนภายในห้องพักอาศัยยังมีการออกแบบฟังก์ชันให้เอื้อต่อพฤติกรรมและความปลอดภัยของสัตว์เลี้ยง อาทิ ราวกันตกบริเวณระเบียงห้องชุดที่มีระยะห่างระหว่างซี่ไม่เกิน 7.5 เซนติเมตร ป้องกันสัตว์เลี้ยงที่มีขนาดเล็กมุดลอดจนเกิดอันตราย และกำหนดขนาดสัตว์เลี้ยงไม่เกิน 15 กิโลกรัม รวมถึงรูปแบบห้องพักที่มีความโปร่ง โล่ง เพื่อให้สัตว์เลี้ยงสามารถใช้ชีวิตอยู่ภายในห้องพักได้อย่างไม่อึดอัด
::: แปลนชั้น 1 :::
จากด้านหน้าทางเข้า-ออกโครงการจะติดกับถนนพัฒนาการ มีไม้กระดกและป้อม รปภ. ผ่านเข้าไปด้านใน มุมด้านหน้าอาคารจะเป็นพื้นที่สวนส่วนกลาง เป็นโซน BBQ และ Multi Purpose Court ถัดไปจะเป็นจุด Drop Off วนรถส่งหน้าทางเข้า Lobby ได้เลย ถนนในโครงการจะเป็นแบบ One way รถวนรอบอาคาร มีที่จอดรถใต้อาคาร มีจุดจอด EV Charger ด้านหลังจะเป็นทางขึ้น-ลงที่จอดรถในอาคารจอดได้ชั้น 1-6 ส่วนพื้นที่ด้านหลังอาคารจะเป็น Pet Zone พื้นที่สำหรับสัตว์เลี้ยง และ Jogging Track
ภายในตัวอาคารจะเป็น Lobby และจะแบ่งเป็นห้อง Co-working space, Multi-purpose room ถัดเข้าไปด้านในจะเป็นโซน Mailbox และ Smart Locker ถัดไปอีกโซนจะมีประตูกั้นแยกส่วนต้องใช้ Key card จะเป็นโถงลิฟต์โดยสาร 2 ตัว มีลิฟต์ขนของ 1 ตัว
ด้านหน้าโครงการจะมีไม้กระดกแยกทางเข้า-ออก มีป้อม รปภ. ตรงกลาง มีทางเดินเท้าแยกทั้งสองฝั่ง
ด้านข้างมีป้ายโครงการชัดเจน พร้อมสวนตกแต่ง
ผ่านเข้ามาด้านในตรงหน้าจะเป็นจุด Drop Off วนรถออกมาได้เลย
ถนนในโครงการจะเป็นแบบ One way วนรอบอาคาร
บริเวณจุด Drop Off วนส่งด้านหน้าทางเข้า Lobby ได้เลย
ด้านข้างอาคารจะมีที่จอดรถให้
และจุดจอด EV Charger
ด้านหลังอาคารจะเป็น Pet Zone โครงการนี้สามารถเลี้ยงสัตว์ได้* โดยเงื่อนไข 1 ห้องสามารถเลี้ยงได้ 1 ตัว น้ำหนักไม่เกิน 15 กก. มีค่าใช้จ่ายเพิ่มเติมจากค่าส่วนกลาง แบ่งเป็นค่ามัดจำครั้งแรก 5,000 บาท และรายปี 3,600 บาท
มองจากมุมด้านบนจะเห็นพื้นที่ Pet Zone และ Jogging Track รอบๆ มีสวนตกแต่งมาได้ร่มรื่น จุดเด่นโครงการนี้มี Pet Zone ขนาดใหญ่ที่สุดในเครือคอนโดของ Major ที่เคยทำมา และได้รับการรับรองจากโรงพยาบาลสัตว์ทองหล่ออีกด้วย
เดินเข้าไปดูด้านในกันครับ รอบๆออกแบบไว้ให้เป็น Jogging Track ตรงกลางมีรั้วรอบไว้สำหรับปล่อยสัตว์เลี้ยงให้เดินเล่นหรือทำธุระส่วนตัวได้
มีพื้นที่สำหรับล้างทำความสะอาด
อีกส่วนจะมีรั้วกั้นแยกอีก ด้านหน้ามีถังขยะ และมีอุปกรณ์ในการดูแลความสะอาดเรื่องการขับถ่ายให้ด้วย
ภายในจะเป็นสนามหญ้าโล่งๆ ปล่อยสัตว์เลี้ยงให้ทำธุระส่วนตัวได้เลยครับ มีที่นั่งพักมาให้ด้วย
ปลายสวนอีกฝั่งจะเป็นสนามหญ้าโล่งๆ ส่วนนี้สัตว์เลี้ยงต้องมีสายจูงเดินเล่นได้
จากสวนมองไปที่มุมด้านหลังอาคาร
ใต้อาคารด้านหลังมีที่จอดรถให้อีกจุด
และเป็นทางขึ้น-ลงที่จอดรถในอาคาร
ที่จอดรถวนจอดได้ถึงชั้น 6 ทั้งโครงการจอดได้ 155 คัน หรือคิดเป็น 46% ไม่รวมจอดซ้อนคัน
จากชั้นที่จอดรถจะเชื่อมกับโถงลิฟต์โดยสาร
ด้านข้างอาคารอีกฝั่งมีที่จอดรถเช่นกัน และมีที่สำหรับล้างรถตรงที่กรวยกั้นอยู่ โครงการนี้จะมี Shuttle Service บริการรับ-ส่งฟรีที่ ARL รามคำแหง
วนมาด้านหน้าอาคาร จะเจอสวนพักผ่อนด้านหน้า
ภายในสวนจะมีโซน BBQ และ Multi-purpose Court
บริเวณโซน BBQ มีที่นั่งไว้จัดปาร์ตี้เล็กๆได้
มีเตาย่าง และอ่างล้างจานมาให้เรียบร้อย
มองกลับไปอีกฝั่ง
ถัดมาเป็น Multi-purpose Court ไว้นั่งพักผ่อนหรือทำกิจกรรมต่างๆได้
มองกลับไปที่ตัวอาคาร
ด้านหน้าทางเข้าอาคาร อยู่ตรงจุด Drop Off พอดี ประตูทางเข้าเป็นประตูเลื่อนอัตโนมัติลดการสัมผัส เหมาะกับในยุคปัจจุบัน
เข้ามาด้านในจะเป็นโถง Lobby ฝ้าแบบ Double Volume สูงโปร่ง
มองกลับไปฝั่งประตูทางเข้า
โดดเด่นด้วยไฟที่เป็นแท่งทรงกลมหลายๆแท่ง มีชุดโซฟานั่งพักผ่อนจัดชุดมาให้หลายชุด
ผนังตรง Lobby จะเป็นกระจกสูงถึงฝ้าเปิดรับวิวด้านนอก
ฝั่งด้านในเป็นเคาน์เตอร์ต้อนรับ
ด้านข้างมีมุมนั่งพักผ่อนอีกจุด ซ้ายมือมีบันไดเดินขึ้นไปยังห้องนิติ
เดินเข้าไปดูด้านในกันต่อครับ
ติดกับเคาน์เตอร์ต้อนรับจะเป็น Co-working space ส่วนนี้ต้องใช้ Key Card
ภายในจะแบ่งชุดโต๊ะนั่งมาให้หลายชุด เข้ามานั่งทำงานกันได้
มองกลับไปฝั่งประตูห้อง
อีกฝั่งจะเป็น Multi-purpose room
ภายในวางชุดโซฟามาให้หลายชุด มานั่งพักผ่อน นั่งทำงาน หรือไว้เป็นจุดรับแขกส่วนตัวก็ได้
ถัดเข้ามาด้านในซ้ายมือจะเป็นประตูเชื่อมเข้าโถงลิฟต์ ขวามือเป็นทางเดินไปยัง Mailbox และห้องน้ำ
ทางเดินเชื่อมไปยัง Mailbox และ ห้องน้ำ
บริเวณส่วน Mailbox และ Smart Locker
ด้านในเป็นห้องน้ำแยกชายหญิง
ภายในห้องน้ำชาย
ถัดไปเป็นประตูทางเข้าโถงลิฟต์ ส่วนนี้ต้องใช้คีย์การ์ด
ผ่านเข้ามาขวามือเป็น Laundry room
ด้านในจะเป็นโถงลิฟต์ มีลิฟต์โดยสาร 2 ตัว
ตัวกดลิฟต์ด้านหน้าจะเป็นระบบ Sensor เพียงใช้มือปัดผ่าน Sensor เท่านั้น เพื่อลดการสัมผัสเหมาะกับในยุคนี้เลยครับ
ลิฟต์เป็นระบบล็อคชั้นต้องใช้ Key card ขึ้นได้เฉพาะชั้นตัวเองและชั้นส่วนกลางเท่านั้นครับ
::: แปลนชั้น 7 :::
ชั้น 7 จะเริ่มเป็นชั้นพักอาศัย มีจำนวนห้องพักอาศัย 11 ยูนิต แบ่งเป็นห้อง 1 Bed 8 ยูนิต และห้อง 2 Bed 3 ยูนิต และชั้นนี้จะเป็นชั้นส่วนกลางหลักของโครงการ จัดไว้ตรงโซนด้านหน้าอาคาร มีประตูแยกส่วนจากโถงลิฟต์ชัดเจน ส่วนกลางชั้นนี้จะมี City Lounge, Sundeck, Fitness, Swimming pool พร้อมพื้นที่พักผ่อน และมีห้องน้ำแยกชายหญิงพร้อมห้องซาวน่าและห้องสตรีม
จากโถงลิฟต์ชั้น 7 จะมีประตูแยกโซนสำหรับส่วนพักอาศัยต้องใช้ Key Card
บริเวณโถงทางเดินส่วนพักอาศัย
จากโถงลิฟต์อีกฝั่งจะเชื่อมออกไปยังพื้นที่ส่วนกลาง
เดินออกมาจะเจอกับโซน City Lounge
มีโต๊ะบาร์ให้นั่ง นำอาหารมานั่งทานพร้อมชมวิวไปด้วยครับ
ถัดไปจะเป็นโซน Sundeck มีสวนตกแต่งรอบๆ
Sundeck จะวางเตียง Daybed มาให้ มานอนอาบแดด รับลมชมวิวกันได้
ถัดมาอีกจะเป็นสระว่ายน้ำ ขวามือจะเป็นห้องฟิตเนสและห้องน้ำ
สระว่ายน้ำเป็นทรงตัว L ระบบเกลือ ความยาวอยู่ที่ 16 ม.
วาง Daybed ไว้ริมสระ
วิวจากสระว่ายน้ำมองไปฝั่งด้านหน้าโครงการทิศเหนือ
ฝั่งนี้ออกแบบเป็นระแนงตกแต่ง วิวมองไปทางทิศตะวันออก
มองไปฝั่งทิศตะวันตก
มองไปฝั่งตัวอาคาร
ด้านในจะมีจุดล้างตัว ถัดไปเป็นห้องน้ำ และห้องฟิตเนสซ้ายมือ
ห้องน้ำจะแยกชายหญิง
ภายในห้องน้ำชาย มีโซนอ่างล้างหน้า และโถปัสสาวะ
อีกฝั่งเป็นห้องน้ำและห้องอาบน้ำ
มีตู้ล็อคเกอร์ และห้องซาวน่า ส่วนฝั่งห้องน้ำหญิงจะเป็นห้องสตรีมครับ
ถัดมาเป็นห้องฟิตเนส
ภายในวางเครื่องออกกำลังกายมาหลากหลายชนิด ผนังห้องเป็นกระจกเปิดรับวิวด้านนอก
มีม้านั่งออกกำลังกาย เครื่องบริหารกล้ามเนื้อ เครื่องเดินออกกำลังกาย เครื่องปั่นจักรยาน ลู่วิ่ง และดัมเบล
วิวจากห้องฟิตเนสมองออกมาเห็นสระว่ายน้ำ
::: แปลนชั้น 8-29 :::
จะเป็นชั้นพักอาศัยทั้งหมด มีจำนวนห้องพักอาศัย 15 ยูนิตต่อชั้น ถือว่าไม่เยอะครับแต่ละชั้นค่อนข้างเป็นส่วนตัว โดยจะแบ่งเป็นห้อง 1 Bed 11 ยูนิต และห้อง 2 Bed 4 ยูนิต ตำแหน่งของลิฟต์โดยสารจะอยู่ช่วงกลางอาคารเดินเชื่อมไปแต่ละห้องได้สะดวก มีบันไดหนีไฟ 2 จุด
:::: วิวรอบโครงการ ::::
วิวทิศเหนือฝั่งด้านหน้าโครงการ จากชั้น 29 มองออกไปทางรามคำแหง
วิวทิศใต้ฝั่งด้านหลังโครงการ จากชั้น 29 วิวมองไปทางสุขุมวิท เห็นแนวอาคารสูงไกลๆ
วิวทิศตะวันออกจากชั้น 29 มองออกไปตามถนนพัฒนาการโซนนอกเมือง
วิวทิศตะวันตกชั้น 29 มองไปทางแยกคลองตัน เป็น City View เห็นแนวอาคารสูงไกลๆ
:::: แบบห้อง ::::
โครงการมีห้องให้เลือก 3 แบบ ดังนี้
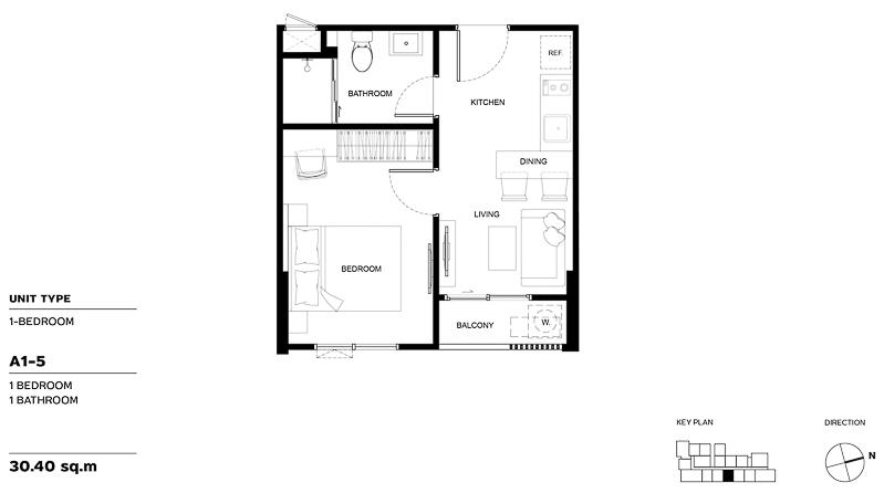
1 Bedroom 30.40 ตร.ม.
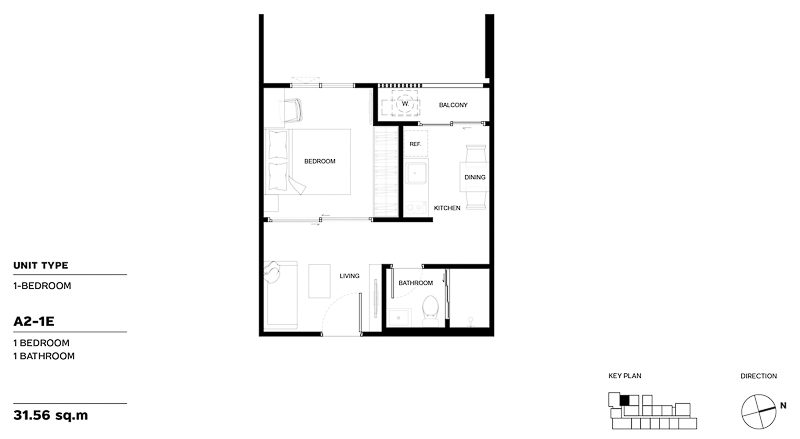
1 Bedroom 31.56 ตร.ม.
2 Bedrooms 2 Bathrooms 59.21 ตร.ม.
:::: ห้องตัวอย่าง ::::
วันนี้เรามีห้องตัวอย่างมาให้ชม 3 แบบ เป็นห้อง 1 Bedroom ขนาด 30.40 ตร.ม. , 1 Bedroom ขนาด 31.56 ตร.ม. และ 2 Bedrooms 2 Bathrooms ขนาด 59.21 ตร.ม. โดยโครงการขายแบบ Fully Fitted จะได้ชุดครัว แอร์ติดผนัง สุขภัณฑ์ในห้องน้ำ และระบบ Home Automation
แบบแรก 1 Bed ขนาด 30.40 ตร.ม. จุดเด่นของห้องนี้ ตรงส่วนครัวส่วนรับประทานอาหาร และห้องนั่งเล่นพื้นที่จะเปิดเชื่อมต่อกัน ยาวไปจนถึงระเบียงห้อง ช่วยดึงแสงจากภายนอกเข้ามาถึงส่วนครัวได้ ห้องนี้จะเหมาะกับคนที่ไม่ค่อยทำอาหาร หรือทำแบบเบาๆไม่ได้จริงจังมาก เนื่องจากได้เป็นครัวเปิด อาจส่งกลิ่นรบกวนภายในห้องได้
เดินเข้าห้องมาจะเจอส่วนครัวก่อน ได้เป็นครัวเปิดเชื่อมกับส่วนรับประทานอาหาร และส่วนห้องนั่งเล่น ติดกับห้องนั่งเล่นจะเป็นระเบียง อีกฝั่งจะเป็นห้องน้ำเข้าได้จากโซนห้องครัว ติดกันเป็นห้องนอน ภายในห้องนอนมีพื้นที่มาให้เยอะวางโต๊ะ ตู้ เตียงได้ครบ
เริ่มจากประตูห้องเป็นบานทึบลายไม้ มีป้ายเลขที่บ้านด้านข้าง
ประตูจะได้ Digital Door Lock ของ Hafele พร้อมมือจับแบบคันโยก ที่ประตูจะมี Door Sensor คอยตรวจจับการเปิด – ปิดประตู สามารถเช็คได้จากแอปพลิเคชันในมือถือของเรา และแอปนี้ยังควบคุมการเปิด – ปิดไฟและเครื่องปรับอากาศได้อีกด้วย ช่วยเสริมความปลอดภัยและสะดวกสบาย
เดินเข้าห้องมาจะเจอส่วนครัวก่อน พื้นที่เปิดโล่งเชื่อมกับส่วนรับประทานอาหารและส่วนห้องนั่งเล่น ในสุดจะเป็นระเบียง ขวามือจะเป็นห้องน้ำและห้องนอน พื้นห้องจะเป็นลามิเนตหนา 8 มม. ฝ้าเพดานสูง 2.7 ม. ผนังได้ฉาบเรียบทาสีพื้น ทุกห้องจะได้ระบบ Home Automation
เดินเข้ามาแล้วมองกลับไปที่ประตูห้อง ซ้ายมือเป็นห้องน้ำ ขวามือเป็นส่วนครัว
ภายในห้องน้ำแบ่งส่วนเปียกส่วนแห้ง กระจกเงาจะได้เป็นวงกลมตามนี้เลย
อ่างล้างหน้าที่ได้ของ Lavenz พร้อมช่องเก็บของใต้อ่าง ติดกันวางโถสุขภัณฑ์ของ Hafele พร้อมสายชำระ
ด้านในเป็นพื้นที่ส่วนเปียก ติดตั้งฉากกั้นอาบน้ำแบบบานเลื่อน ด้านในจะมีฝักบัวและชั้นวางอุปกรณ์อาบน้ำมาให้
ถัดมาเป็นส่วนครัว ได้เป็นครัวเปิด มีพื้นที่ให้วางตู้เย็นซ้ายมือ
ชุดเคาน์เตอร์ครัวจะได้ตามนี้เลย บานตู้จะมี Soft close ให้
ได้เตาไฟฟ้าแบบสองหัวพร้อมเครื่องดูดควันของ Hafele ส่วนอ่างล้างจานได้แบบหลุมเดียวฝังท็อปเคาน์เตอร์ และ Backsplash กรุกระเบื้องมาให้ทำความสะอาดง่าย
ติดกันวางโต๊ะรับประทานอาหารขนาด 2 ที่นั่งได้ หรือใครจะวางแบบโต๊ะบาร์ก็ได้
ถัดไปเป็นส่วนห้องนั่งเล่น ขวามือเป็นห้องนอน
วางโซฟาขนาด 2 ที่นั่งพร้อมโต๊ะกลางให้ดู ส่วนนี้จะได้แอร์ติดผนัง 1 ตัว
ระยะดูทีวีประมาณ 2.5 ม.
ถัดไปเป็นระเบียง มีประตูกระจกบานเลื่อน
ตรงระเบียงมีพื้นที่ประมาณ 2.3 x 0.76 ม.
ด้านข้างแขวนคอมเพลสเซอร์แอร์ 2 ตัว เป่าลมออกด้านนอก ด้านล่างมีพื้นที่ให้วางเครื่องซักผ้าได้
วิวจากระเบียงห้องตัวอย่างชั้น 10 ฝั่งทิศตะวันออก มองออกไปตามถนนพัฒนาการ
มองกลับเข้ามาในห้อง
ภายในห้องนอนมีพื้นที่มาให้ประมาณ 4 x 2.6 ม. วางเตียง 5 ฟุตมาให้ดู
มองไปฝั่งปลายเตียงติดทีวีที่ผนังได้ ในห้องนอนได้แอร์ติดผนัง 1 ตัว
หน้าต่างในห้องนอนขนาดใหญ่ มีบานกระทุ้ง 1 บาน
ฝั่งด้านในมีพื้นที่ให้วางตู้เสื้อผ้า และโต๊ะเครื่องแป้งหรือโต๊ะทำงานได้
แบบที่สอง 1 Bedroom ขนาด 31.56 ตร.ม. จุดเด่นของห้องนี้ ส่วนครัวจะได้เป็นครัวปิดแยกส่วนจากห้องนั่งเล่นและห้องนอน พื้นที่ภายในห้องแบ่งเป็นสัดส่วน เหมาะกับคนที่ชอบทำอาหาร ส่วนครัวอยู่ติดกับระเบียงเปิดระบายอากาศได้สะดวก
เดินเข้าห้องมาจะเจอส่วนห้องนั่งเล่นก่อน ถัดเข้ามาจะเป็นส่วนห้องนอน ประตูห้องนอนจะเป็นกระจกบานเลื่อนช่วยให้แสงส่องผ่านเข้ามาถึงห้องนั่งเล่นได้ ภายในห้องนอนมีพื้นที่มาให้เยอะ วางโต๊ะ ตู้ เตียงได้ครบ ถัดไปอีกโซนจะมีทางเดินเชื่อมเข้าไปจะเป็นห้องน้ำ และห้องครัวกับส่วนรับประทานอาหาร ส่วนห้องครัวเราสามารถทำประตูกั้นเพื่อแยกส่วนได้ ติดกับครัวจะเป็นระเบียง
เดินเข้าห้องมาจะเจอส่วนห้องนั่งเล่นก่อน ด้านในเป็นห้องนอน ขวามือจะเป็นห้องน้ำและห้องครัว
เดินเข้ามาแล้วมองกลับไปที่ประตูห้อง
วางโซฟาขนาด 2 ที่นั่งพร้อมโต๊ะกลางให้ดู หรือจะวางโซฟาแบบตัว L ก็ได้ ส่วนนี้จะได้แอร์ติดผนัง 1 ตัว
ระยะดูทีวีประมาณ 2.8 ม.
ถัดไปจะเป็นห้องนอน ประตูห้องจะได้เป็นกระจกบานเลื่อนสูงจากพื้นถึงฝ้า ช่วยดึงแสงเข้ามาด้านในและทำให้ห้องดูโปร่งมากขึ้น
ภายในห้องนอนมีพื้นที่มาให้ประมาณ 3 x 3.1 ม. วางเตียง 5 ฟุตให้ดู
ด้านข้างเตียงวางโต๊ะทำงานได้
มองไปฝั่งปลายเตียงมีพื้นที่ให้วางตู้เสื้อผ้า และบ้านสำหรับสัตว์เลี้ยงของเราได้ด้วยครับ ถ้าจะติดทีวีในห้องนอน ติดที่ผนังฝั่งซ้ายได้ครับ ในห้องนอนได้แอร์ติดผนัง 1 ตัว
หน้าต่างในห้องนอนขนาดใหญ่ มีบานกระทุ้ง 1 บาน
มองกลับเข้าไปในห้อง
ถัดมาจะมีทางเดินเชื่อมไปยังห้องน้ำและห้องครัว
หน้าห้องน้ำมีพื้นที่ไว้ให้วางของได้ ซ้ายมือจะเป็นห้องครัว
ในห้องน้ำแบ่งส่วนเปียกส่วนแห้ง อ่างล้างหน้าของ Lavenz และโถสุขภัณฑ์ของ Hafele
ถัดจากห้องน้ำมาจะเป็นห้องครัวและส่วนรับประทานอาหาร เราสามารถกั้นประตูแยกส่วนเพิ่มเองได้ครับ พื้นห้องครัวจะปูกระเบื้องมาให้
ชุดเคาน์เตอร์ครัวจะได้เหมือนห้องแรกเลย
ถัดไปเป็นระเบียงมีประตูกระจกบานเลื่อน
ตรงระเบียงมีพื้นที่ประมาณ 2.6 x 0.78 ม. ด้านข้างแขวนคอมเพลสเซอร์แอร์ 2 ตัว เป่าลมออกด้านนอก ด้านล่างมีพื้นที่ให้วางเครื่องซักผ้าได้
วิวจากระเบียงห้องตัวอย่างชั้น 10 วิวฝั่งทิศตะวันตก
แบบที่สาม 2 Bedrooms 2 Bathrooms ขนาด 59.21 ตร.ม. จุดเด่นของตำแหน่งห้อง 2 Bed คือจะอยู่ตรงมุมอาคารทั้งหมด ห้องนี้จะเป็นห้องหน้ากว้าง เดินเข้าห้องมาจะเจอส่วนห้องนั่งเล่นและส่วนรับประทานอาหาร พื้นที่เปิดเชื่อมต่อกันในสุดจะเป็นระเบียง ใกล้ๆกันจะเป็นห้องครัวอยู่มุมติดระเบียงได้เป็นครัวเปิด หรือเราจะกั้นเป็นครัวปิดเพิ่มเองก็ได้ ถัดไปจะเป็นห้องนอนเล็ก พื้นที่ในห้องวางเตียงเดี่ยวกำลังดี ฝั่งตรงข้ามเป็นห้องน้ำ ถัดไปมุมด้านในจะเป็น Master Bedroom ภายในห้องมีพื้นที่มาให้เยอะ วางเตียง King Size โต๊ะทำงาน ได้ มีห้องน้ำในห้องนอน หน้าห้องน้ำมีพื้นที่ให้วางตู้เสื้อผ้าได้
เดินเข้าห้องมาจะเจอส่วนห้องนั่งเล่นก่อน พื้นที่เปิดเชื่อมกับส่วนรับประทานอาหารด้านใน ขวามือเป็นส่วนครัว
เดินเข้ามาแล้วมองกลับไปที่ประตูห้อง
บริเวณส่วนห้องนั่งเล่นและส่วนรับประทานอาหารพื้นที่จะเปิดเชื่อมต่อกัน ได้แอร์ติดผนัง 1 ตัว
วางโซฟาขนาด 2-3 ที่นั่งพร้อมโต๊ะกลางให้ดู หรือจะวางโซฟาแบบตัว L ก็ได้
วางโต๊ะรับประทานอาหารขนาด 4 ที่นั่งให้ดู
ฝั่งนี้จะเป็นส่วนครัว ได้เป็นครัวเปิด
ชุดเคาน์เตอร์ครัวจะได้ตามนี้เลย พื้นที่จะเยอะกว่าห้อง 1 bed มีพื้นที่วางเครื่องซักผ้าตรงกลาง
ถัดไปเป็นระเบียงมีประตูกระจกบานเลื่อน
ตรงระเบียงมีพื้นที่ประมาณ 2.8 x 0.80 ม. ด้านข้างแขวนคอมเพลสเซอร์แอร์ 3 ตัว เป่าลมออกด้านนอก
วิวจากระเบียงห้องตัวอย่างชั้น 10 ฝั่งทิศตะวันออก
มองกลับเข้ามาในห้อง
ถัดไปขวามือจะเป็นห้องน้ำ ซ้ายมือเป็นห้องนอนเล็ก ตรงกลางเป็นห้อง Master Bedroom
ภายในห้องน้ำแบ่งส่วนเปียกส่วนแห้ง
ตรงข้ามห้องน้ำจะเป็นห้องนอนเล็ก มีพื้นที่ประมาณ 2.9 x 2.5 ม. วางเตียงเดี่ยวกำลังดี หรือจะทำเป็นห้องทำงานก็ได้ครับ
ได้แอร์ติดผนัง 1 ตัว
ฝั่งด้านในมีพื้นที่ให้วางตู้เสื้อผ้าได้
ถัดมาเป็นห้อง Master Bedroom มีพื้นที่ประมาณ 3.8 x 3 ม. วางเตียง King Size ได้สบายๆ
อีกฝั่งจะเป็นห้องน้ำ
หน้าห้องน้ำมีพื้นที่ประมาณ 1.5 x 1.4 ม. วางตู้เสื้อผ้าและโต๊ะเครื่องแป้งได้
ภายในห้องน้ำแบ่งส่วนเปียกส่วนแห้ง
:::: ราคา (ก.ย. 2564) ::::
ลงทะเบียนรับสิทธิพิเศษ คลิก : https://bit.ly/3gW2UnF
***ข้อมูลราคา และโปรโมชันอาจมีการเปลี่ยนแปลง โปรดติดต่อสำนักงานขายเพื่อสอบถามรายละเอียดเพิ่มเติม
:::: สรุป ::::
ทำเลที่ตั้งโครงการ – โครงการ Metris พัฒนาการ-เอกมัย ตั้งอยู่ในทำเลที่เดินทางเข้าออกเมืองได้สะดวก โดยรอบโครงการส่วนใหญ่เป็นบ้านพักอาศัย ย่านนี้มีความอุดมสมบูรณ์พอสมควรในระยะเดิน มีร้านค้า ร้านอาหารหลายร้าน มีเต็นท์ขายอาหาร มี Family Mart ถ้าเดินไปฝั่งแยกคลองตันมี 7-11 ร้านค้า ร้านอาหารต่างๆก็มีให้เลือกเยอะยาวจนเข้าไปทางซอยสุขุมวิท 71 มีตลาดคลองตันใกล้ๆ ถ้ามาแถวถนนรามคำแหงมีตลาดเอกรินทร์ตรงตึก UM Tower หรือเดินไปแถว ARL รามคำแหงมี NASA Street มี Starbuck , Subway และร้านค้าต่างๆ หรือจะขับรถเข้าเมืองไปเลยก็ง่ายดี
ห้างสรรพสินค้าตรงเส้นพัฒนาการมี London Street , Lotus , Max Value หรือจะไปแถวรามฯ จะมีห้างสรรพสินค้าอย่าง The Mall ราม 3 และ The Mall ราม 2 , Food Land , Major , หัวหมากทาวน์เซ็นเตอร์ , มีตลาดนัด กกท
ส่วนสถานศึกษามีทั้ง ม.เกษมบัณฑิต, สถาบันเทคโนฯ ไทย-ญี่ปุ่น, ม.รามคำแหง, ABAC ,รร.เตรียมอุดมศึกษาพัฒนาการ และ รร.สาธิต ม.ราม และยังใกล้โรงเรียนนานาชาติหลายแห่งทั้ง นานาชาติเซนต์มาร์ค, นานาชาติบีคอนเฮาส์ฯ, นานาชาติเอกมัย, นานาชาติเทร็ลล์, นานาชาติเซนต์แอนดรูว์ส
และยังใกล้โรงพยาบาลทั้ง รพ.เพชรเวช, รพ.รามคำแหง, รพ.สมิติเวช ศรีนครินทร์, รพ.คามิลเลียน, รพ.สมิติเวช สุขุมวิท, รพ.สุขุมวิท , รพ.กรุงเทพ และ รพ.ปิยะเวช ทั้งหมดอยู่ในรัศมีไม่เกิน 7 กม.
การเดินทางด้วยรถยนต์ส่วนตัว – เดินทางสะดวก อยู่ติดถนนใหญ่พัฒนาการ จุดเด่นโครงการอยู่ใกล้ทางด่วนฉลองรัชเพียง 100 ม. ไปได้ทั้งโซนลาดพร้าว รามอินทรา และไปโซนบางนา มีจุดเชื่อมกับทางด่วนศรีรัช และทางด่วนเฉลิมมหานครได้ ช่วยให้การเดินทางเข้าออกเมืองได้สะดวก
ถ้าไม่ใช้ทางด่วนจากโครงการมาวิ่งมาแยกคลองตันใช้ได้ทั้งเส้นสุขุมวิท 71 เส้นเพชรบุรี และเส้นพระราม 9 ถ้าใช้เส้นสุขุมวิท 71 มาปากซอยจะเจอกับถนนสุขุมวิทซึ่งวิ่งไปเอกมัย ทองหล่อ อโศกยาวไปชิดลม สยามได้เลย หรือจากแยกพระโขนงสามารถมาเข้าถนนพระราม 4 ไปออกลุมพินี สีลม สาทรได้เลย
เส้นเพชรบุรีวิ่งมุ่งหน้าเข้าเมืองอย่างเดียวเป็นเส้นที่วิ่งขนานกับสุขุมวิทและจะตัดเข้าท้ายซอยเอกมัย ทองหล่อ อโศก ชิดลม หรือยาวไปประตูน้ำ ราชเทวีได้เลย อีกเส้นที่สำคัญคือพระราม 9 วิ่งตรงไปแยกพระราม 9 เชื่อมต่อไปอโศก รัชดาภิเษก ดินแดง อนุสาวรีย์ชัยฯ หรือออกวิภาวดีรังสิตก็ได้ นอกจากนี้ยังมีจุดขึ้นทางด่วนศรีรัชตรงเส้นพระราม 9 อีกด้วยครับ
ถ้าออกนอกเมือง ใช้เส้นพัฒนาการมาตัดเข้าถนนศรีนครินทร์ ถนนอ่อนนุช ออกเฉลิมพระเกีรติ ร. 9 ได้ ถ้าใช้เส้นสุขุมวิท 71 ออกมาสุขุมวิทวิ่งตามแนว BTS ออกไปทางอุดมสุข แยกบางนา ตัดเข้าบางนาตราดได้ หรือข้ามแยกไปแบริ่งยาวไปสมุทรปราการได้เลย ถ้าไปเส้นรามคำแหงไปแยกลำสาลี บางกะปิ ลาดพร้าว มีนบุรี หนองจอก อีกเส้นคือพระรามเก้า ฝั่งขาออกเมืองจะไปโซนลาดกระบัง สุวรรณภูมิ และเชื่อมกับมอเตอร์เวย์วิ่งไปออกชลบุรี พัทยาได้เลย
การเดินทางโดยรถสาธารณะ – จุดเด่น อยู่ใกล้ ARL รามคำแหง ซึ่งอยู่ห่างจากโครงการประมาณ 900 ม. เป็นสถานีเชื่อมต่อกับท่าเรือรามหนึ่ง ที่ใช้เป็นตัวเลือกในการเดินทางเข้าออกเมืองได้อีกทาง โครงการมีบริการ Shuttle Service รับ-ส่งฟรีที่ สถานี ARL รามคำแหง
นั่ง ARL ไปลงมักกะสันเพียง 1 สถานีจะเป็นจุดเชื่อมต่อกับ MRT เพชรบุรี ถ้าจะเปลี่ยนเป็น BTS ก็นั่ง MRT มาเปลี่ยนที่อโศก หรือนั่ง ARL ไปลงพญาไทได้เลย หรือถ้านั่งมาลงสถานีหัวหมาก มาเชื่อมต่อกับรถไฟฟ้าสายสีเหลืองสถานีพัฒนาการได้ ส่วนใครที่เดินทางไปสนามบินบ่อยๆ ขึ้น ARL ต่อเดียวถึงสนามบินสุวรรณภูมิเลยเพียง 4 สถานีเท่านั้น
นอกจากนี้ติดกับโครงการด้านหน้าร้านอาหารอีสานตะวันแดงมีป้ายรถเมล์ มีรถวิ่งผ่านหลายสายทั้งเข้าและออกเมือง หน้าโครงการโบกเรียก Taxi สองแถว และวินมอเตอร์ไซค์ได้เลยสะดวกดี
การออกแบบโครงการ และวัสดุ ตัวโครงการออกแบบมาในสไตล์ Mid-Century Modern สีภายนอกอาคารใช้สีเหลืองมัสตาร์ดดูโดดเด่นในย่านพัฒนาการ อาคารสูง 29 ชั้น 1 อาคาร จอดรถได้ที่ชั้น 1-6 ชั้นพักอาศัยจะเริ่มที่ชั้น 7-29 ส่วนกลางจะอยู่ที่ชั้น 1 และ 7
การออกแบบในห้องพักอาศัยที่นี่มีให้เลือกแบบหลักๆคือ 1 Bedroom ขนาด 29.80 – 31.40 ตร.ม. , 2 Bedrooms 1 Bathroom ขนาด 53.40-54.30 ตร.ม. , 2 Bedrooms 2 Bathrooms ขนาด 57.10-61.90 ตร.ม. ห้องออกแบบมาได้กว้าง ฝ้าสูง 2.7 ม. แบ่งพื้นที่เป็นสัดส่วน มีช่องแสงที่ส่องเข้าถึงภายในห้องได้เยอะ แบบห้องมีให้เลือกทั้งแบบครัวปิด และครัวเปิดเพื่อให้เหมาะกับการใช้งานได้อย่างลงตัว
โครงการขายแบบ Fully Fitted ของที่ได้จะมีชุดเคาน์เตอร์ครัว Hob & Hoob และอ่างล้างจานของ Hafele ส่วนในห้องน้ำสุขภัณฑ์ที่ได้ของ Hafele และ Lavenz ได้แอร์ติดผนังตรงห้องนั่งเล่นและห้องนอน พร้อมระบบ Home Automation สามารถควมคุบการเปิด-ปิด ไฟ แอร์ และเช็คดูการเปิดปิดประตูห้องผ่านมือถือได้
สิ่งอำนวยความสะดวก และระบบรักษาความปลอดภัย ส่วนกลางที่นี่ออกแบบมาได้สวยน่าใช้งาน ฟังก์ชันหลากหลายรองรับกับทุกกิจกรรม โดยส่วนกลางจะอยู่ที่ชั้น 1 และ 7
ที่ชั้น 1 ด้านหน้าอาคารจะมีสวนพักผ่อน ภายในส่วนจะเป็นโซน BBQ มีโต๊ะนั่งและเตาปิ้ง อ่างล้างจานมาให้ จัดปาร์ตี้เล็กๆกันได้ อีกโซนจะเป็น Multi-purpose Court เป็นลานโล่งๆไว้ทำกิจกรรมต่างๆได้ ส่วนด้านหลังอาคารจะเป็น Pet Zone พื้นที่สำหรับสัตว์เลี้ยง และมีสวนพักผ่อนพร้อม Jogging Track
ภายในอาคารจะเป็น Lobby ฝ้าสูงโปร่งแบบ Double Volume วางชุดโซฟามาให้หลายชุด และมี Co-working space, Multi-purpose room แยกส่วนจาก Lobby ถัดเข้าไปจะเป็นส่วน Mailbox และ Smart Locker
ที่ชั้น 7 จะเป็นชั้นส่วนกลางหลักของโครงการ จะมี City Lounge, Sundeck ไว้มานั่งพักผ่อนชมวิวได้ ถัดมามีสระว่ายน้ำระบบเกลือยาว 16 ม. พร้อมพื้นที่พักผ่อนริมสระ ชมวิวได้ 180 องศา มีห้องฟิตเนสพร้อมเครื่องออกกำลังกายหลากหลายชนิด และมีห้องน้ำแยกชายหญิงพร้อมห้องซาวน่าและห้องสตรีม
ลิฟต์โดยสารมีให้ 2 ตัว ลิฟต์ขนของ 1 ตัว ตัวกดลิฟต์จะเป็นระบบ Sensor ที่จอดรถจอดได้ที่ชั้น 1-6 ทั้งโครงการจอดได้ 155 คัน หรือคิดเป็น 46% ไม่รวมจอดซ้อนคัน มีที่จอดสำหรับ EV Charger และพื้นที่สำหรับล้างรถ ระบบรักษาความปลอดภัยมีรปภ. มี CCTV ผ่านเข้าออกด้วยระบบ Key Card Access
:::: สอบถามรายละเอียดเพิ่มเติมได้ที่ ::::
Call Center : 02-116-1111
Website : http://www.mde.co.th
หากเพื่อนๆเห็นว่ารีวิวนี้มีประโยชน์ ช่วยกด Like เพื่อเป็นกำลังใจให้ทีมงาน ขอบคุณครับ
และมีความคิดเห็นหรือข้อมูลเพิ่มเติมเกี่ยวกับตัวโครงการ สามารถ Comment ได้ที่ด้านล่างของรีวิวครับ
คอนโดใหม่ บนทำเลอื่นๆ…ที่น่าสนใจ
คอนโด XT Huaikhwang ใกล้ MRT ห้วยขวาง เริ่ม 3.99 ล้าน*
คอนโด พาร์ค รามอินทรา แต่งครบพร้อมอยู่เริ่ม 1.59 ล้าน*
คอนโด Metris พัฒนาการ-เอกมัย พร้อมอยู่ เลี้ยงสัตว์ได้ เริ่ม 2.59 ล้าน*
คอนโด Life Ladprao Valley พร้อมอยู่ ติด BTS ห้าแยกลาดพร้าว เริ่ม 5.19 ล้านบาท*
Atmoz ลาดพร้าว 71 คอนโดพร้อมอยู่ พร้อมส่วนกลางกว่า 2 ไร่
Atmoz ลาดพร้าว 15 คอนโดแต่งครบพร้อมอยู่
Brown Condo พหลฯ-สะพานใหม่ ใกล้ BTS สายหยุด เริ่ม 2.59 ล้านบาท*
Aspire อโศก-รัชดา คอนโดพร้อมอยู่ ใกล้ MRT พระราม 9
ศุภาลัย เวอเรนด้า สถานีภาษีเจริญ คอนโดพร้อมอยู่ เริ่ม 1.79 ล้านบาท*
คอนโด Kave Town Space ส่วนกลางจัดเต็มกว่า 20 รายการ เริ่ม 1.79 ล้าน*
คอนโด ศุภาลัย ปาร์ค สถานีตลาดพลู
คอนโด The Origin Plug & Play รามอินทรา เริ่ม 2.39 ล้าน*
แสดงความคิดเห็น เกี่ยวกับ " รีวิว คอนโด METRIS พัฒนาการ-เอกมัย เพียง 100 เมตร จากทางด่วนรามอินทรา-อาจณรงค์ "