
โมเดิร์น คอนโด กัลปพฤกษ์-กำนันแม้น Modern Condo Kalapapruek-Kamnanmant
Modern Condo กัลปพฤกษ์-กำนันแม้น คอนโดใหม่สไตล์โมเดิร์น จาก บริษัท โมเดิร์น เฮาส์ พร็อพเพอร์ตี้ จำกัด ตั้งอยู่บนซอยกำนันแม้น 3 แขวงบางขุนเทียน เขตจอมทอง กทม. ใกล้ตลาดบางบอน, ตลาดวัดไทร, เทสโก้ โลตัส บางบอน, เดอะมอลล์ ท่าพระ, เซ็นทรัล พระราม 2, แม็คโคร บางบอน และ ศาลบางบอน
โมเดิร์น คอนโด กัลปพฤกษ์-กำนันแม้น เป็นคอนโด Low-Rise 5 ชั้น x อาคาร พื้นที่โครงการขนาด 2 ไร่ ห้องพักอาศัยจำนวน 156 ยูนิต มีห้องพักให้เลือกแบบสตูดิโอ, 1 ห้องนอน และ 2 ห้องนอน ขนาดเริ่มต้น 30.00-60.00 ตร.ม. คาดว่าแล้วเสร็จพร้อมอยู่ปี xxxx
สิ่งอำนวยความสะดวกภายในโครงการครบครัน อาทิ โถงต้อนรับ, ห้องจดหมาย, ฟิตเนส, สวนหย่อม, ลิฟต์โดยสาร, ประตูคีย์การ์ด, ที่จอดรถ, กล้องวงจรปิด และ ระบบรักษาความปลอดภัยตลอด 24 ชม. ราคาเริ่มต้น 1.19 ล้านบาท*
| ชื่อโครงการ | โมเดิร์น คอนโด กัลปพฤกษ์-กำนันแม้น Modern Condo Kalapapruek-Kamnanmant |
| เจ้าของโครงการ | บริษัท โมเดิร์น เฮาส์ พร็อพเพอร์ตี้ จำกัด |
| เนื้อที่ทั้งหมด | ประมาณ 2 ไร่ |
| จำนวนตึก | n/a |
| จำนวนชั้น | 5 ชั้น |
| จำนวนห้อง | 156 ยูนิต |
| ลักษณะห้องและขนาดห้อง |
|
| ที่จอดรถทั้งหมด | 132 คัน |
| จำนวนลิฟต์ | n/a |
| โซน | จอมทอง |
| ขนส่งสาธารณะ |
|
| รถโดยสารที่ผ่าน | n/a |
| ที่ตั้ง | ซอยกำนันแม้น 3 แขวงบางขุนเทียน เขตจอมทอง กทม. |
| กำหนดการ | n/a |
| ปีที่สร้างเสร็จ | n/a |
| ราคา | เริ่มต้น 1.19 ล้านบาท |
| ราคาเฉลี่ยต่อ ตร.ม | เริ่มต้น 39,600 บาท/ตร.ม. |
| ค่าส่วนกลางและกองทุน | n/a |
| สถานที่สำคัญใกล้เคียง |
|
| สิ่งอำนวยความสะดวก |
|
| จุดเด่นของโครงการ | Modern Condo กัลปพฤกษ์-กำนันแม้น คอนโดใหม่ ทันสมัย ใจกลางเมือง” ใกล้สถานีรถไฟฟ้า BTS และ MRT เดินทางสะดวก สบาย สาทร สีลม ใช้เวลา 15 นาที ผ่อนสบายๆ 3,900 บาทต่อเดือน ราคาเริ่มต้น 1.19 ลบ. |
ที่ตั้งโครงการ
ซอยกำนันแม้น 3 แขวงบางขุนเทียน เขตจอมทอง กทม.
พิกัด Google : 13°41’14.3″N 100°26’38.3″E
:: UNIT TYPE ::
แปลนห้องพักแบบ Studio ขนาด 30.00 ตร.ม.
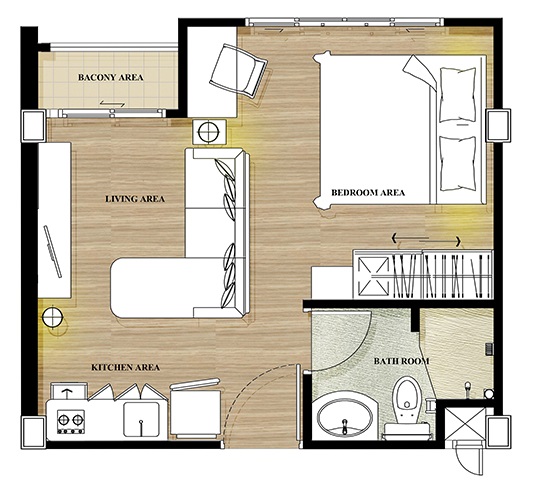
แปลนห้องพักแบบ 1 Bedroom ขนาด 31.00 ตร.ม.
แปลนห้องพักแบบ 2 Bedrooms ขนาด 60.00 ตร.ม.
:: GALLERY ::
สอบถามรายละเอียดเพิ่มเติมได้ที่
Tel : 02-416-8618
Website : http://www.modernhouse.co.th
แสดงความคิดเห็น เกี่ยวกับ " Modern Condo กัลปพฤกษ์-กำนันแม้น คอนโดพร้อมอยู่ เริ่ม 1.19 ลบ. "