
รีวิว คอนโด โนเบิล รีวอลฟ์ รัชดา 2 Noble Revolve Ratchada 2
Noble Revolve รัชดา 2 จาก Noble Development ตั้งอยู่บนถนนรัชดาภิเษก ซอย 6 แขวงห้วยขวาง เขตห้วยขวาง กทม. ใกล้ MRT ศูนย์วัฒนธรรม เพียง 80 เมตร ใกล้เซ็นทรัล พระราม 9, ฟอร์จูน, บิ๊กซี, โลตัส, เอสพลานาด รัชดา, ศูนย์วัฒนธรรมแห่งประเทศไทย และ รพ.พระราม 9
โนเบิล รีวอลฟ์ รัชดา 2 เป็นคอนโด High Rise 42 ชั้น 1 อาคาร พื้นที่โครงการขนาด 3-1-66.20 ไร่ ห้องพักจำนวน 755 ยูนิต มีห้องพักให้เลือกแบบ 1 ห้องนอน และ 2 ห้องนอน ขนาดเริ่มต้น 22.00-52.00 ตร.ม. สร้างเสร็จพร้อมอยู่ปี 2561
สิ่งอำนวยความสะดวกในโครงการครบครัน อาทิ โถงต้อนรับ, สระว่ายน้ำ, ฟิตเนส, สวนพักผ่อน, ประตูคีย์การ์ด, ที่จอดรถ ประมาณ 40%, กล้องวงจรปิด, ระบบรักษาความปลอดภัยตลอด 24 ชม. ราคาเริ่มต้น 4.3 ล้านบาท* (อัพเดต พ.ค.60)
| ชื่อโครงการ | โนเบิล รีวอลฟ์ รัชดา 2 Noble Revolve Ratchada 2 |
| เจ้าของโครงการ | โนเบิล – Noble Development |
| ลักษณะห้องและขนาดห้อง | – 1 Bedroom : ประมาณ 22 – 26 ตร.ม. – 2 Bedrooms : ประมาณ 38 – 52 ตร.ม. |
| เนื้อที่ทั้งหมด | 3 ไร่ 1 งาน 66.20 ตร.ว. |
| จำนวนตึก | 1 อาคาร |
| จำนวนชั้น | 42 ชั้น |
| จำนวนห้อง | 755 ยูนิต |
| ที่จอดรถทั้งหมด | ประมาณ 40% |
| โซน | รัชดา, ห้วยขวาง, พระราม 9, เพชรบุรี |
| ขนส่งสาธารณะ | รถไฟฟ้า MRT ศูนย์วัฒนธรรม 80 ม. |
| รถโดยสารที่ผ่าน | สาย 73, 73ก, 74ร, 136, 137, 163ร, 172ร, 185, 206, 514, 517, 529 |
| ที่ตั้ง | ซอยรัชดาภิเษก 6 ถนนรัชดาภิเษก แขวงห้วยขวาง เขตห้วยขวางกรุงเทพฯ |
| กำหนดการ | n/a |
| ปีที่สร้างเสร็จ | คาดว่าแล้วเสร็จ พ.ศ.2561 |
| ราคา | เริ่มต้น 4.3 ล้านบาท (อัพเดต พ.ค.60) |
| ราคาเฉลี่ยต่อ ตร.ม | เริ่มต้น xxx,xxx บ./ตร.ม. |
| สถานที่สำคัญใกล้เคียง |
|
| สิ่งอำนวยความสะดวก |
|
| จุดเด่นของโครงการ | Noble Revolve รัชดา 2 ไลฟ์สไตล์ใหม่ใจกลางรัชดา ย่านธุรกิจล่าสุดครบทุกฟังก์ชั่นชีวิต ระดับความสูง 42 ชั้น ระดับความสุข ไร้ขีดจำกัด ติดรถไฟฟ้าใต้ดิน เชื่อมต่อให้ชีวิตใกล้กัน แหวกว่ายไลฟ์สไตล์ไม่สิ้นสุดกับ Infinity Edge Pool |
ที่ตั้งโครงการ
ซอยรัชดาภิเษก 6 ถนนรัชดาภิเษก แขวงห้วยขวาง เขตห้วยขวาง กรุงเทพฯ
พิกัด : 13.763875,100.569108
แผนที่จากทางโครงการแสดงตำแหน่งที่ตั้งของโครงการคร่าวๆค่ะ
โครงการ Noble Revolve รัชดา 2 เป็นโครงการคอนโด High Rise สูง 42 ชั้น จะอยู่ติดกับโครงการรุ่นพี่คือ Noble Revolve รัชดา ที่ขายหมดเกลี้ยงไปแล้ว ตัวโครงการทั้งคู่จะตั้งอยู่ในรัชดาซอย 6 เป็นซอยตันตื้นๆ บนถนนรัชดาภิเษก ห่างจากแยกพระราม 9 ประมาณ 1 กม. และอยู่เยื้องกับ Esplanade รัชดาประมาณ 200 เมตร เรื่องทำเลถือว่าเป็นจุดขายของโครงการนี้เลยก็ว่าได้ค่ะ จากคำโปรยที่ว่า ตัวโครงการเป็น “ไข่แดงรัชดา” นั้นมีที่มาที่ไป
เนื่องจากทำเลนี้มีโอกาสที่ความเจริญและความหนาแน่นของทั้งอาคารสำนักงานและคอนโดจะไหลมาจากเส้นอโศก เห็นได้จากการที่เริ่มมีอาคารสำนักงานต่างๆมาเปิดตัว ทั้ง AIA Capital, ตลาดหลักทรัพย์ไทย, G Land และอื่นๆ ทำให้ย่านนี้เป็นอีกทำเลที่น่าจับตามอง โดยเฉพาะในช่วงต้นๆถนนของแยกตัดรัชดา – พระราม 9 ว่ามีศักยภาพที่จะเป็น New CBD ได้ในอนาคต
เพราะฉะนั้นแถวนี้ในช่วงกลางวันคึกคักแน่นอน ..และกลางคืนก็คึกคักเช่นกันทั้งจากตลาดตรง Esplanade เลยไปอีกหน่อยมีตลาดนัดรถไฟรัชดา และแน่นอนแถวรัชดานี้ต้องมีร้านนั่งยามค่ำคืน เพราะฉะนั้นใครที่อยากได้ความสงบอาจจะต้องนำจุดนี้ไปพิจารณาให้เหมาะกับ Life Style เราด้วยนะ
ในส่วนของการเดินทางด้วยรถยนต์ส่วนตัวสะดวกแน่นอน สามารถใช้เส้นรัชดาภิเษกเชื่อมได้ทั้งลาดพร้าวยาวไปถึงวงศ์สว่างฝั่งเข้าเมืองก็ขับนิดเดียวถึงอโศก, เพชรบุรีแล้วแต่รถจะติดหนักหน่อยในเส้นทางที่ใช้มุ่งหน้าเข้าเมือง โดยเฉพาะช่วงแยกตัดรัชดา – พระราม 9 แล้วถ้าจะเข้าเส้นอโศกนี่ไม่ต้องพูดถึง ยิ่งช่วงเวลาเร่งด่วนนะ อื้อหืออ เลี่ยงได้ควรเลี่ยงค่ะ แต่ข้อเสียสำหรับคนใช้รถก็มีเหมือนกันคือตัวโครงการนี้ไม่มีเส้นทางลัดใดๆ ต้องใช้เส้นรัชดาภิเษกอย่างไม่มีทางเลือก จะหาเส้นทางหนีรถติดก็ลำบากหน่อย ถ้ารีบจริงๆคงต้องทิ้งรถไว้แล้วใช้ MRT แทนค่ะ
สำหรับจุดขึ้นทางด่วนที่ใกล้โครงการที่สุดจะเป็นจุดขึ้นทางด่วนศรีรัช ที่จุดขึ้นทางด่วนพระราม 9 โดยระยะทางจากโครงการถึงจุดขึ้นทางด่วนนี้จะอยู่ที่ประมาณ 4.8 กม. ใช้เวลาเดินทางประมาณ 11 นาที
ทีเด็ดอีกอย่างคือตัวโครงการตั้งอยู่ใกล้รถไฟฟ้าใต้ดินสถานีศูนย์วัฒนธรรมแห่งประเทศไทย ในระยะเดินถึงได้สบายๆเลยค่ะ วัดจากตัวสถานีถึงปากทางเข้าหลักโครงการได้ระยะทางประมาณ 80 เมตร และวัดจากตัวสถานีถึงตัวโครงการอยู่ในระยะประมาณ 200 เมตร ใช้เวลาเดินไม่เกิน 5 นาทีก็ถึงตัวโครงการแล้วค่ะ เพราะสถานีนี้คนไม่เยอะค่ะมาก ขบวนเดียวก็ได้ขึ้นแล้ว 🙂
นอกจากนั้นยังมีแอร์พอร์ตลิ้งค์ สถานีมักกะสันให้เลือกใช้สำหรับเส้นทางสุวรรณภูมิ – พญาไท ส่วนรถสาธารณะอื่นๆอย่างพี่วินเท่าที่ไปสำรวจมาตอนนี้จะมีคิวที่อยู่ใกล้โครงการที่สุดเป็นคิวพี่วินหน้า MRT ศูนย์วัฒนธรรมแห่งประเทศไทย ป้ายรถเมล์ก็จะอยู่หน้า MRT เช่นกัน ส่วน Taxi ก็สามารถเรียกที่หน้าโครงการได้ตลอดค่ะ
ความน่าสนใจยังไม่หมดค่ะ ในอนาคตเมื่อรถไฟฟ้าสายสีส้มก่อสร้างเสร็จตัวสถานีศูนย์วัฒนธรรมจะกลายเป็นสถานี Interchange รถไฟฟ้าใต้ดินกับ BTS ทำให้การเดินทางสะดวกขึ้นไปอีกก แผนก่อสร้างรถไฟฟ้าสายสีส้มนี้จะเริ่มในปี 2560 กว่าโครงการจะเสร็จจริงก็ประมาณ 2563 ก็ดูดีมีอนาคตทีเดียวเชียวค่ะ
(คลิ๊กที่ภาพเพื่อดูเป็นภาพใหญ่ได้นะคะ)
โดยรถไฟฟ้าสายสีส้มนี้จะเป็นรถไฟฟ้าสายหลักที่ใช้เชื่อม ฝั่งตะวันออกและตะวันตกของกรุงเทพมหานคร แบ่งเป็น 2 ช่วง
จะมีสถานี Interchange จุดแรกคือเชื่อมต่อสถานีสายสีแดงและสีน้ำเงินที่สถานี บางขุนนนท์ ถัดมาเป็นจุดเชื่อมต่อรถไฟฟ้าสายสีม่วงที่สถานีอนุเสาวรีย์ประชาธิปไตย เชื่อมต่อรถไฟฟ้าสายสีเขียวที่สถานียมราช เชื่อมต่อ Airport Rail Link ที่สถานีราชปรารภ เชื่อมต่อสายสีน้ำเงินที่สถานีศูนย์วัฒนธรรม เชื่อมต่อสายสีเหลืองที่สถานีลำสาลี และเชื่อมต่อสายสีชมพูที่สถานีมีนบุรี รวมระยะทางประมาณ 39.8 กิโลเมตร นอกจากนั้นยังมีอาคารจอดรถที่สถานีคลองบ้านม้า จอดรถยนต์ได้ประมาณ 1,200 คัน และสถานีมีนบุรี (เป็นสถานีเชื่อมต่อรถไฟฟ้าสายสีชมพูกับสีส้ม) จอดรถยนต์ได้ประมาณ 3,000 คัน
เป็นโครงสร้างทางวิ่งใต้ดินระยะทางประมาณ 30.6 กิโลเมตร มีสถานีใต้ดิน จำนวน 23 สถานีและโครงสร้างทางวิ่งยกระดับ ระยะทางประมาณ 9.2 กิโลเมตร มี สถานียกระดับ จำนวน 7 สถานี
ขอขอบคุณภาพและข้อมูลจาก : http://www.mrta-orangeline.net/
ความอุดมสมบูรณ์ ของโครงการทำเลนี้ไม่ต้องพูดกันมาก อย่างที่บอกไปแล้วว่าเป็นทำเลที่เริ่มมีอาคารสำนักงานมาเปิดกันให้พรึ่บ เมื่อมีสำนักงานก็ต้องมีหนุ่มสาวออฟฟิศเป็นจำนวนมาก เพราะฉะนั้นจึงมีร้านอาหารให้พึ่งพาเยอะ หายห่วงเลยค่ะ ทั้งอาหารราคาพื้นๆ ที่ใกล้โครงการที่สุดเลยจะเป็นศูนย์อาหารฝั่งตรงข้ามเยื้องๆโครงการไปทาง Esplanade หรือถ้าเดินขึ้นมาทางถนนพระราม 9 ก็จะมีรัชดาซอย 4 ด้านในจะมี 7 – 11 และร้านอาหารเยอะแยะเลยค่ะ ถัดจากรัชดาซอย 4 มีอีกนิดหน่อยก็จะมีศูนย์อาหารรัชดา
ส่วนห้างใหญ่ๆแถวนี้ก็มีทั้ง Central พระราม 9, Fortune Town Esplanade และ The Street โดยทุกห้างอยู่ในระยะ 1 กม. สามารถเดินถึงได้เลย หรือถ้าขี้เกียจก็สามารถนั่งรถไฟฟ้า 1 สถานี หรือนั่งวินก็ได้ แปปเดียวก็ถึง Central พระราม 9 , Fortune แล้วค่ะ
การเดินทาง
สำหรับเส้นทางที่เราจะใช้ในการเดินทางไปยังโครงการในวันนี้คือถนนอโศก โดยผมมาจากทางศูนย์ประชุมแห่งชาติสิริกิติ์ วิ่งตรงผ่านแยกอโศกครับ
เราเริ่มการเดินทางที่แยกอโศกโดยมาจากทางคลองเตยวิ่งผ่านศูนย์ประชุมฯมุ่งหน้าไปถนนสุขุมวิท แล้วตรงผ่านแยกไปค่ะ
ตรงไปยาวๆ มุ่งหน้าพระราม 9
ถึงแยกพระราม 9 เราก็จะเริ่มเห็น Central พระราม 9 ทางขวาและ Fortune Town ทางซ้ายมือค่ะ เราตรงผ่านแยกไปเลยค่าา
ผ่านแยกมาแล้วเข้าสู่ถนนรัชดาภิเษก ด้านขวาเป็น เซ็นทรัล พระราม 9
ด้านซ้ายเป็น ฟอร์จูนทาวน์
พอเราวิ่งมาสักพักก่อนถึง Esplanade เราจะเห็นจุดกลับรถ
ขับตรงมาต่ออีกหน่อยค่ะ
มาถึงจุดกลับรถถัดมาแล้วเราก็กลับรถได้เลยค่ะ มีสัญญาณไฟเรียบร้อย
พอกลับรถมาเพียงครู่เดียวก็จะถึงรัชดาซอย 6 ละค่า ซึ่งมีจุดสังเกตคือหน้าปากซอยจะมีอาคารจอดรถของ MRT ศูนย์วัฒนธรรมแห่งประเทศไทยอยู่
พอเลี้ยวเข้ามาก็จะเห็นตัว Sale office เลยครับ
สถานที่สำคัญรอบๆโครงการ เช่น
ถนนและแยกที่สำคัญรอบๆโครงการ เช่น
การเดินทางจาก MRT ศูนย์วัฒนธรรมแห่งประเทศไทย
นอกจากเส้นทางทางเดินรถแล้ว วันนี้เราจะขอเพิ่มเติมเส้นทางของรถไฟฟ้ากันสักหน่อย และจะขอรวบไปกับการพาเดินดูทำเลแถวนี้ไปด้วยเลยนะคะ
จากภาพที่เรา Mark จุดไว้ให้จะเป็นอาคารและสถานที่สำคัญๆที่อยู่ในละแวกนี้จากตัวโครงการไปจนถึงสี่แยกพระราม 9 ค่ะ โดยสถานที่ๆแสดงด้วยจุดสีน้ำเงินคืออาคารสำนักงานที่เปิดใช้งานแล้ว ที่เป็นตัวทำให้แถวนี้มีโอกาสเป็น New CBD ตามที่ได้เกริ่นไว้ข้างบน ส่วนจุดสีเหลืองบนแผนที่จะแสดงอาคารเด่นๆโดยรอบ รวมไปถึงความอุดมสมบูรณ์ของละแวกนี้ด้วยค่ะ
เริ่มจากรถไฟฟ้าใต้ดิน สถานีศูนย์วัฒนธรรม เรามาถึงกันแล้วก็เดินทางตามป้ายไปทางออก 2 อาคารจอดรถค่ะ
ออกมาที่ทางออก 2 หันหน้ามาดูตัวสถานีเต็มๆซะหน่อย
เยื้องไปทางฝั่งตรงข้ามจะเป็น Esplanade รัชดา
หน้าสถานีจะมีพี่วินคอยให้บริการแบบนี้เลย
ราคาค่าโดยสารเริ่มต้นที่ 10 บาทค่ะ
อีกด้านก็จะมีป้ายรถเมล์ ป้ายนี้จะมีรถเมล์ผ่านหลายสายเลยค่ะ มีสาย 73, 73ก, 74ร, 136, 137, 163ร, 172ร, 185, 206, 514, 517, 529ร
ติดกับสถานีศูนย์วัฒนธรรมจะเป็นอาคารจอดรถของสถานี
ฝั่งตรงข้ามจะเป็นอาคารสำนักงาน ตึกทางขวามือเป็นอาคาร AIA Capital Center ส่วนตึกทางซ้ายเป็นอาคารตลาดหลักทรพย์แห่งประเทศไทย
เราเดินตรงไปทางแยกพระราม 9 กันต่อค่ะ ฟุตบาทค่อนข้างกว้าง ไม่มีแผงลอยมาตั้งขวางเกะกะ
เดินมาประมาณ 80 เมตร จะถึงรัชดาซอย 6
ซึ่งรัชดาซอย 6 นี้จะเป็นซอยตันตื้นๆ ให้ความรู้สึกเหมือนเป็นซอยของโครงการนี้เลยค่ะ อาคารที่เราเห็นว่าเริ่มเป็นรูปเป็นร่างแล้วนั้นจะเป็นโครงการ Noble Revolve รัชดา ตัวแรกนะคะ
ในซอยนอกจากตัวโครงการแล้วก็จะมีที่จอดรถของสถานีศูนย์วัฒนธรรมอีกหนึ่งจุด
ติดกับที่จอดรถก็จะเป็น Sale Office ของโครงการซึ่งเคยใช้เป็น Sale Office ของโครงการ Noble Revolve รัชดา ตัวแรก และที่ตรงนี้ในอนาคตจะเปลี่ยนเป็นทางเข้าของ Noble Revolve รัชดา 2 ค่ะ
กลับออกมาที่ถนนหลักกันอีกครั้ง เดินมุ่งหน้าต่อไปยังแยกพระราม 9 ค่ะ ลุยย
ที่ดินผืนติดกับถนนรัชดานี้จะเป็นที่ดินของ รฟม. ที่ตอนนี้ยังเป็นที่ดินเปล่าๆ แต่ในอนาคตอาจจะมีการพัฒนาเป็นอย่างอื่น ซึ่งก็ต้องรอดูกันต่อไปค่ะ
เดินมาเรื่อยๆเจอโครงการเพื่อนบ้าน Ivy Ampio ของพฤกษา
ถัดมาก็เป็นอาคารสำนักงาน True Tower ที่มีพนักงานเยอะเหมือนกัน
แหล่งความอุดมสมบูรณ์หลักของหนุ่มสาวออฟฟิศย่านนี้จุดแรกที่เราเจอก็คือรัชดาซอย 4 หรือที่เรียกกันคุ้นหูว่าตลาดละลายทรัพย์นั่นเองค่ะ
ด้านในจะมีที่จอดรถแบบเหมาๆ 12 ชั่วโมง 60 บาท มีรถจอดแน่นมากกกๆ เรียกได้ว่ามาช้าก็เต็มค่ะ แล้วต้องรออีกนานเลยเพราะส่วนใหญ่เค้าก็จะมาจอดทิ้งกันไว้นานๆทั้งนั้น
มี 7 – 11 เป้นเซเว่นที่ใกล้โครงการที่สุดแล้วค่ะ
ด้านในมีร้านอาหารให้เลือกมากมาย ราคากลางๆไม่แพงค่ะ
ออกมาจากรัชดา ซอย 4 เดินต่อมาอีกนิดจะเจอกับป้ายรถเมล์อีกจุดค่ะ
มีสะพานข้ามฟาก ถ้าใครที่เดินเท้ามาเพื่อจะไปฟอร์จูนก็สามารถข้ามสะพานตรงนี้ได้เลยนะ เพราะข้างหน้าจะไม่มีสะพานแล้วค่ะ อาคารที่อยู่ฝั่งตรงข้ามคืออาคารสำนักงานภคินท์ จำกัด
ติดกับสะพานเป็นศูนย์อาหารรัชดา ที่พึ่งของหนุ่มสามออฟฟิศอีกแห่ง
ถัดจากศูนย์อาหารมาจะเป็นศูนย์ Toyota
ฝั่งตรงข้ามมี Tesco Lotus ซึ่งจะผนวกอยู่กับอาคาร Fortune Town
เดินต่อมาอีกหน่อย ติดกับศูนย์ Toyota เป็นบริษัท Unicity
ถัดมาเป็น Central พระราม 9
มีพี่วินคอยให้บริการอยู่ด้วยค่ะ
อัตราค่าโดยสารวินรัชดา ซอย 2
ฝั่งตรงข้าม Central คือ Fortune Town ศูนย์รวมไอทีของย่านนี้ค่ะ
เดินดูทำเลกันไปเรียบร้อยเราก็กลับมาที่ Sale Office ค่ะ
ด้านใน Sale Office มีเคาน์เตอร์คอยให้บริการสอบถามข้อมูล และที่นั่งรับรองหลายชุดเลยค่ะ
ชุดโซฟานั่งรับรองแบบสบายๆ
ห้องตัวอย่างจะอยู่ใน Sale Office ข้างเคาน์เตอร์ต้อนรับค่ะ
ตัวโครงการ
โครงการ Noble Revolve รัชดา 2 เป็นเฟส 2 ต่อจากโครงการ Noble Revolve รัชดาตัวแรก ซึ่งตัว Noble Revole รัชดา 2 จะมีการพัฒนาจากตัวแรกคือจะมีส่วน Facility ที่ใหญ่ขึ้น จำนวนยูนิตต่อชั้นน้อยกว่าคือ 21 ยูนิต/ชั้น เป็นโครงการคอนโด High Rise สูง 42 ชั้น มีจำนวนยูนิตทั้งสิ้น 755 ยูนิต พื้นที่โครงการรวมประมาณ 3 – 1 – 66.2 ไร่ ซึ่งถือว่าเป็นโครงการที่มีขนาดกลางๆค่ะ ส่วนจุดเด่นของโครงการนี้นอกจากเรื่องทำเลแล้วยังมีจุดเด่นที่การจัดสรรพื้นที่ใช้สอยภายในห้องและขายแบบ Fully Furnished สถานะของโครงการตอนนี้กำลังจะเริ่มก่อสร้างค่ะ

มาเริ่มที่ผังรวมของโครงการกันก่อน ดูจากผังแล้วจะเห็นว่าตัวอาคารจะวางไว้ตรงกลางแปลงที่ดิน และมีถนนวิ่งรอบโครงการค่ะ ทางเข้าออกโครงการจะมีแค่ทางเดียวคือเข้าจากทางด้านหน้าโครงการโดยมีป้อมรปภ. แบ่งทางเข้า – ออก แยกจากกันเมื่อเข้ามาในโครงการแล้วจะมีจุด Drop Off ผู้โดยสารก่อนที่จะเข้าไปจอดรถค่ะ โดยโครงการนี้จะมีพื้นที่จอดรถอยู่ที่ประมาณ 40%
ด้านหน้าอาคารจะมีทางเข้า 2 ส่วนคือ ส่วน Lobby และ ส่วนของ Shop ค่ะ เมื่อเข้ามาในตัวอาคารจะเจอกับส่วน Lobby ขนาดค่อนข้างกว้าง จาก Lobby สามารถเชื่อมต่อไปยัง Mail Room และโถงลิฟท์ได้ค่ะ โดยลิฟท์โดยสารของที่นี่จะมีทั้งหมด 4 ตัว ความหนาแน่นเฉลี่ย 189 : 1 ถือว่าค่อนข้างแน่นไปหน่อย ช่วงเวลาเร่งด่วนอาจจะต้องเผื่อเวลารอลิฟท์กันไว้ด้วยนะคะ ส่วนการใช้ลิฟท์โดยสารของที่นี่จะต้องใช้ Key Card แบบ Lock ชั้น สามารถใช้จอดได้ที่ชั้นพักอาศัยและชั้นของส่วนกลางคือชั้น 6 และชั้น Roof Top เท่านั้น ไม่สามารถจะไปจอดชั้นอื่นๆได้ ทำให้มีความปลอดภัยในการพักอาศัยมากขึ้นค่ะ

มาลองดูตัวโมเดลประกอบด้วยจะได้เข้าใจง่ายๆนะคะ เริ่มจากหน้าตาโดยรวมโครงการเป็นตึกสูงตามแบบฉบับคอนโด High Rise ในเมืองทั่วๆไป
ทั้ง 2 โครงการใช้ทางเข้าออกหลักร่วมกัน โดยตัว Noble Revolve รัชดา 2 จะมีทางเข้าแยกจากทางเข้าหลักไปประมาณ 70 เมตร
ระยะห่างแคบสุดระหว่าง 2 โครงการอยู่ที่ 26 เมตร
เข้ามาในโครงการด้านหน้าจะมีที่สำหรับ Drop Off เล็กๆ เป็นทางเข้า Lobby ส่วนทางขวาจะเป็นส่วนของร้านค้าที่ทางโครงการจะให้มาเปิดบริการ ตอนนี้ยังไม่ทราบว่าจะเป็นร้านอะไร แต่คิดว่าน่าจะเป็นพวกร้านสะดวกซื้อค่ะ ชั้น 2 – 5 จะเป็นชั้นจอดรถ จอดได้ประมาณ 40%
รอบๆอาคารจะมีที่จอดรอบอาคารไว้ให้
ชั้น 6 จะเป็นชั้นของ Facility โดยฝั่งด้านหน้าอาคารจะเป็นส่วนของสระว่ายน้ำขนาด 8 x 22 เมตร ด้านในตัวอาคารจะเป็นห้องฟิตเนสขนาดใหญ่เชื่อม 2 ห้องติดกัน และมี 1 ห้องเล็กด้านหลัง ด้านหลังอาคารจะมีสวนหย่อมขนาด XX สำหรับออกมานั่งพักผ่อนหย่อนใจ นอกจากนั้นชั้นนี้จะมีความพิเศษคือมีฝ้าเพดานที่สูง คือสูงประมาณ 4 เมตร นอกจากนั้นในชั้นนี้จะมียูนิตพักอาศัยอยู่ด้วยนะคะ โดยจะวางไว้ขนาบส่วนกลาง ซ้ายและขวา ส่วนความสูงฝ้าเพดานของชั้นนี้ก็จะได้สูงตามตัว Facility คือ 4 เมตร เลยค่ะ
สระว่ายน้ำด้านหลังอาคาร จะได้วิวค่อนข้างดีนะคะ เพราะยังไม่มีตึกสูงขึ้นมาบังวิว
ภาพจำลองสระว่ายน้ำแบบ Infinity Edge Pool
ภาพจำลองวิวที่มองออกมาจากด้านในฟิตเนส
สวนหย่อมโครงการ วิวที่ได้จะเป็นวิวด้านหน้าโครงการ คือทางฝั่งถนนรัชดาภิเษกซึ่งก็จะมีอาคารสำนักงานสูงๆขึ้นมาบังวิวไว้อยู่พอสมควร แต่ไม่เป็นไร เราเน้นเดินเสพสีเขียวของต้นไม้ละกัน
ภาพจำลองสวนหย่อมด้านหน้าโครงการค่ะ
มุมมองจากในสวนย้อนไปทางส่วนกลางด้านในอาคาร
ชั้น 7 – 41 จะเป็นชั้นของยูนิตพักอาศัยล้วนๆ มีการวาง Layout เหมือนกันทุกชั้นเลยค่ะ โดยจะมีห้องขนาดตั้งแต่แบบ 1 ห้องนอนเล็ก ไม่ได้กั้นห้อง (Studio) ขนาดเริ่มต้นประมาณ 22 ตร.ม., แบบ 1 Bedroom ขนาดเริ่มต้นประมาณ 25 ตร.ม.และแบบ 2 Bedroom ประมาณ 38-52 ตร.ม. โดยแต่ละชั้นจะมีห้องแบบ Studio แค่ 2 ห้อง และแบบ 2 Bedroom แค่ชั้นละ 3 ห้อง ขนาดห้อง 38.60 ตร.ม, 50.37 ตร.ม, 52.77 ตร.ม ขนาดละห้อง นอกนั้นจะเป็นห้อง 1 Bedroom หมดเลยค่ะ
ส่วนชั้น 42 จะเป็นชั้น Penthouse และ Roof Top Garden ซึ่งตอนนี้ยังไม่มี Layout และยังไม่เปิดขายต้องรอติดตามดูนะคะว่าหน้าตาจะเป็นยังไง
ภาพจำลองสวนชั้น Roof Top
วิวรอบๆโครงการ
โดยปกติแล้วคนที่ซื้อคอนโด High Rise อาจจะหวังว่าจะได้เห็นวิวเมืองสวยๆ แต่ในกรณีของโครงการกลางเมืองย่านสำนักงานแบบนี้คงหวังที่จะได้เห็นวิวแบบโล่งๆยากสักหน่อย จากภาพมุมสูงที่ทีมงานเราเก็บมาให้จะเห็นว่ารอบโครงการจะรายล้อมไปด้วยอาคารสูง โดยทิศเหนือของโครงการจะอยู่ติดกับโครงการรุ่นพี่ Noble Revolve รัชดา สูง 38 ชั้น เพราะฉะนั้นคนที่อยู่ชั้น 39 – 42 ก็อาจจะได้วิวที่มีมุมมองกว้างขึ้นกว้างชั้นล่างๆหน่อยในทิศนี้ ส่วนทิศใต้จะมี True Tower เป็นอาคารสูงเช่นเดียวกัน ทิศที่ได้วิวดีที่สุดจะเป็นทิศตะวันออกค่ะ โดนจะมีอาคารธนาคารอาคารสงเคราะห์ เยื้องๆอยู่นิดหน่อย ไม่บังวิวเท่าด้านอื่นๆค่ะ
วิวทางทิศเหนือ ตอนนี้ยังโล่งๆ แต่ในอนาคตจะเป็นคอนโด Noble Revolve รัชดา ค่ะ
ทิศใต้จะเห็นธนาคารอาคารสงเคราะห์, True Tower และ Ive Ampio นิดหน่อย
วิวทางทิศตะวันออกยังโล่งๆ มองเห็นวิวไกลๆได้ค่ะ
ส่วนทิศตะวันตกจะเป็นทิศที่หันไปทางถนนรัชดา ตึกสูงเพียบ ทั้ง Ivy ampio, ตลาดหลักทรัพย์ และ AIA Capital Center
วิวทางทิศตะวันตก
แบบห้อง
แบบห้องของโครงการหลักๆ จะมีแค่ 3 แบบแยกตามขนาดเท่านั้นค่ะ คือ
แบบห้อง 1 ห้องนอนไม่กั้นห้องหรือแบบ Studio จะมีแค่ 2 ยูนิตต่อชั้น ขนาดเริ่มต้น 22.37 ตร.ม
แบบ 1 Bedroom แบบกั้นห้อง ขนาดตั้งแต่ 25-26 ตร.ม. เป็น Type ที่มีเยอะที่สุดในโครงการค่ะ
แบบ 2 Bedroom ขนาดห้อง 38.60 ตร.ม, 50.37 ตร.ม – 52.77 ตร.ม แต่ละชั้นจะมีแค่ 3 ยูนิตเท่านั้นค่ะ
ห้องตัวอย่าง
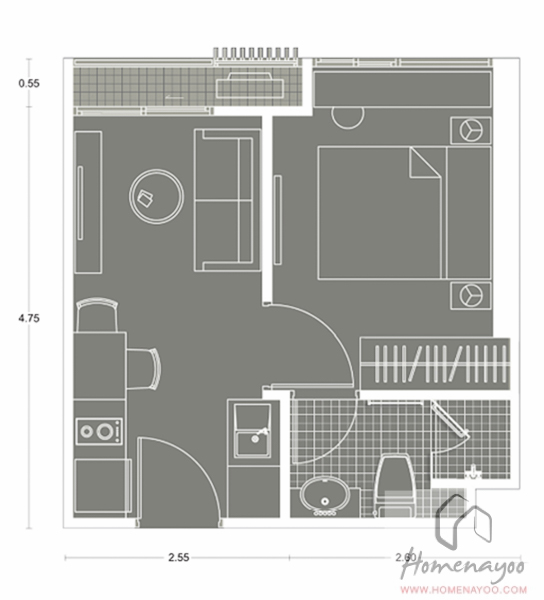
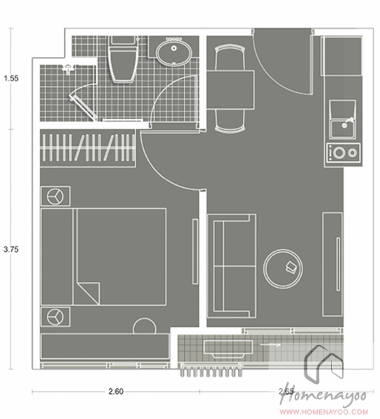
โครงการนี้จะมีห้องตัวอย่างมาให้ดูแค่ 2 แบบเท่านั้น เป็นแบบ 1 Bedroom ขนาด 25.24 ตร.ม และห้อง 2 Bedroom ขนาด 52.77 ตร.ม และวันนี้เราจะพาไปชมทั้ง 2 ห้องเลยค่ะ ซึ่งต้องขอบอกก่อนว่าโครงการนี้เค้าเปิดขายมานานแล้วและอาจจะมีการปรับปรุงรูปแบบของห้องที่ขายจริงบางส่วน โดยตอนนี้ทางโครงกาเค้าขายเป็นแบบ Fully Furnished ห้องตัวอย่างที่ปรับปรุงให้ใกล้เคียงแบบที่ขายจริงแล้วจะเป็นห้อง 1 Bedroom ส่วนห้องแบบ 2 Bedroom นั้นจะไม่เหมือนแบบที่ขายจริงซะทีเดียว เพราะทางโครงการทำการตกแต่งมาให้เข้ากับคอนเซ็ปตอนเปิดตัวโครงการเท่านั้น ซึ่งเราก็พาไปดูขนาดการจัดวางพื้นที่ใช้สอยกันแบบคร่าวๆ ถือซะว่าได้พาไปชมไอเดียการตกแต่งห้องกันนะคะ
มาดูห้องตัวอย่างกันค่ะ เริ่มกันที่ห้องแรก เป็นห้อง 1 Bedroom มีพื้นที่ใช้สอย 25.24 ตารางเมตร เป็นห้อง 1 ห้องนอนเปิดประตูห้องเข้ามาจะเจอกับพื้นที่ครัวเปิดวางชุดเคาน์เตอร์ครัวเล็กๆ ขนาบข้าง 2 ชุด มีซิงค์ล้างจานมาให้พร้อมมีเตาและ Hood ให้นะคะ อยู่ทางซ้ายมือจากในห้องตัวอย่าง พร้อมพื้นที่วางเครื่องซักผ้าและตุ้เย็นค่ะ ถัดจากครัวเป็นพื้นที่ทานอาหาร พื้นที่พอจะวางชุดโต๊ะทานข้าวเล็กๆได้ 1 ชุด ถัดจากส่วนทานอาหารเป็นพื้นที่นั่งเล่นติดระเบียง ทางด้านขวาจะเป็นห้องนอนวางเตียงขนาด 5 ฟุตได้ ส่วนห้องน้ำแบ่งแยกส่วนเปียกและส่วนแห้งอย่างชัดเจนด้วยกระจกกั้นอาบน้ำที่ทางโครงการติดตั้งมาให้เรียบร้อยแล้วค่ะ
มาดูของจริงกันบ้างค่ะ บานประตูที่ได้จะมีหน้าตาแบบนี้
ตัวล็อคและมือจับแบบก้านโยก
เข้ามาในห้องพื้นจะเป็นลามิเนตลายไม้สีน้ำตาลทั้งห้องยกเว้นห้องน้ำและระเบียง มีตัวจบกั้นไว้ให้เรียบร้อยค่ะ
เข้ามาในห้องจะเจอกับส่วนครัวประกบทางซ้ายและขวา ซึ่งจะได้เป็นครัวแบบเปิด สำหรับใครที่ใช้ชีวิตแบบคนเมืองสุดๆ ไม่คิดว่าจะทำกับข้าวทานเองก็สามารถจะเปิดครัวไว้โล่งๆ แบบนี้ได้เลย แต่ถ้าใครที่ชอบทำอาหารทานเอง แนะนำให้กั้นห้องนะคะ ไม่งั้นกลิ่นคงคละคลุ้งไปติดเฟอร์นิเจอร์เป็นแน่แท้ ส่วนการกั้นห้องสำหรับพื้นที่จำกัดแบบนี้เราก็แนะนำให้กั้นห้องด้วยวัสดุที่จะไม่ทำให้ห้องทึบตัน อย่างประตูบานกระจก และแนะนำอีกนิดว่าควรเป็นบานเลื่อนนะคะ ถ้าเป็นบานเปิดอาจจะเกะกะขวางทางเดินได้
มาดูพื้นที่ครัวทางขวามือกันก่อนค่ะ เนื่องจากทางโครงการจายเป็น Fully Furnished ชุดเคาน์เตอร์ครัวที่เราเห็นอยู่นี้จะได้ครบชุด รวมถึงเครื่องใช้ไฟฟ้าค่ะ โดยเครื่องใช้ไฟฟ้าที่เราจะได้แถมมาด้วยมี เครื่องซักผ้า แบบอบผ้าได้ในตัว , เตาไฟฟ้าและเครื่องดูดควัน, เตาไมโครเวฟ, ตู้เย็น, ทีวี, ระบบน้ำร้อน น้ำเย็น และ เครื่องปรับอากาศ 2 ตัวค่ะ
ชุดเคาน์เตอร์ครัวชิ้นแรกเป็นเคาน์เตอร์ครัว Top หินแกรนิตสังเคราะห์ พร้อมซิงค์ลางจานและช่องเก็บของใต้อ่าง
ชุดตู้เก็บของด้านบนจะมีทั้งหมด 2 ตู้ และช่องวางไมโครเวฟ
บานตู้ทุกบานที่ได้จะมีระบบ Soft Close ป้องกันการกระแทกเวลาเปิดปิดแรงๆ
มือจับบานตู้เป็นแบบลดขอบตัวตู้ลงเพื่อให้มีพื้นที่เหลือด้านบนบานตู้ให้ใช้จับค่ะ
ซิงค์ล้างจานรูปทรงสี่เหลี่ยม ขนาดกระทัดรัด
ผนังด้านหลังเคาน์เตอร์ของจริงจะได้เป็นผนังฉาบเรียบทาสีธรรมดา แนะนำให้ใช้กระเบื้องหรือผนังกระจกอย่างในห้องตัวอย่างก็จะช่วยให้ทำความสะอาดง่ายขึ้นเมื่อมีเศษอาหารกระเด็นไปโดนผนัง
ครัวอีกด้านจะได้ชุดเคาน์เตอร์ Hob & Hood มีพื้นที่เหลือสำหรับวางตู้เย็น (ตู้เย็นก็มีแถมมาให้ด้วยค่ะ)
เคาน์เตอร์ตัวล่างจะมีลิ้นชัก 2 ชั้น ชั้นบนสำหรับเก็บช้อนส้อม ส่วนชั้นล่างจะใหญ่กว่าหน่อยสำหรับเก็บพวกถ้วย ชาม
ส่วน Top จะได้เป็นแกรนิตสังเคราะห์ ติดตั้งเตาไฟฟ้าให้เรียบร้อย
ตู้เก็บของด้านบนจะมีช่องเก็บของ 2 ตู้ ชั้นเก็บของรวมทั้งหมด 5 ชั้น
ถัดจากส่วนครัวเข้ามาจะเป็นส่วนทานอาหารและ Living Room
หันกลับไปดูส่วนครัวสักหน่อย
ติดกับส่วนครัวเป็นพื้นที่ทานอาหาร สามารถวางโต๊ะขนาด 2 ที่นั่งได้แบบแน่นๆหลังชนโต๊ะวางทีวีนิดนึง ชุดโต๊ะทานอาหารนี้ก็แถมมาให้ด้วยนะคะ
ถัดไปเป็นห้องนั่งเล่นติดกับระเบียง โครงการเค้าจะให้ชุดผ้าม่านมาตามห้องตัวอย่างนี้เลย ทั้งในส่วนของห้องนั่งเล่นที่เราเห็นอยู่และในส่วนของห้องนอนค่ะ
ที่วางโซฟาจะสามารถวางโซฟาขนาด 2 ที่นั่งได้แบบพอดีๆ กว้างกว่านี้คงไม่ไหวแล้วค่ะ เพราะจะไปเกะกะทางเดินเข้าห้องนอน โซฟาชุดนี้ก็ได้แถมมาด้วยนะ
อีกด้านนึงเป็นพื้นที่สำหรับวางทีวี เราจะได้ทั้งทีวีและโต๊ะวางทีวีพร้อมช่องเก็บของ 2 ช่องมาด้วย ไม่ต้องลำบากไปหามาเพิ่มแล้วค่ะ ส่วนผนังกระจกที่เราเห็นด้านหลังนั้นจะช่วยให้ห้องดูกว้างและสว่างมากขึ้น ของจริงจะได้เป็นผนังเรียบฉาบสีธรรมดา ซึ่งตรงนี้สามารถเก็บไว้เป็นไอเดียตกแต่งห้องกันได้นะคะ
ตู้วางทีวีจะเป็นตู้แบบบานเลื่อนเปิดซ้าย และขวา ด้านในมีชั้นวางของ 2 ชั้น เก็บของได้พอสมควรค่ะ
สำหรับส่วน Living Room จะมีช่องแสงรับแสงธรรมชาติ 1 จุดคือประตูออกไปยังระเบียง เป็นประตูบานเลื่อนกระจกคู่ บานกรอบอลูมิเนียมสีธรรมชาติ
มือจับและตัวล็อคแบบเบสิค
ธรณีประตูจากห้องนั่งเล่นออกไปยังระเบียง พื้นที่ระเบียงไม่กว้างเท่าไหร่พอแค่ออกมายืนกินลมชมวิวได้เท่านั้นค่ะ
ราวกันตกเป็นเหล็กทาสีเทา
พื้นที่วางคอมเพรสเซอร์จะมีกริลบังสายตาไว้ให้ ทำให้ภายนอกจะดูเป็นระเบียบเรียบร้อย
อีกด้านของระเบียงค่ะ
กลับเข้ามาในห้องเราจะไปดูส่วนของห้องนอนกันต่อ โดยผนังกระจกที่ใช้กั้นระหว่างห้องนั้นของจริงจะได้เป็นกำแพงทึบนะคะ เนื่องจากจะต้องใช้ผนังด้านนี้เป็นที่สำหรับติดเครื่องปรับอากาศที่แถมมาให้ซึ่งถ้าใครสนใจอยากได้ผนังแบบกระจกแบบนี้ก็ต้องลองสอบถามโครงการกันดูนะคะว่าจะสามารถเลื่อนตำแหน่งเครื่องปรับอากาศได้หรือไม่
ส่วนห้องนอนมีช่องแสง 1 จุด เป็นช่องแสงบานใหญ่สูงจากพื้นถึงฝ้า ช่วยให้ได้รับแสงธรรมชาติเข้ามาได้เต็มๆ แถมยังได้วิวเมืองเต็มๆอีกด้วย โดยชุดหน้าต่างจะประกอบด้วยหน้าต่างบานเลื่อนเดี่ยว 1 บานและหน้าต่างบานฟิกซ์ 3 บาน
สำหรับเฟอร์นิเจอร์ที่เราจะได้ในห้องนี้จะมี ชุดผ้าม่านตามห้องตัวอย่าง, ชุด Built-in ของโต๊ะข้างเตียง, เตียง, โต๊ะทำงาน และสำหรับเตียงที่ได้จะเป็นเตียงขนาดควีนไซส์เมื่อวางลงไปแล้วจะเห็นว่าได้ขนาดเหมาะสมพอดีๆกับพื้นที่ห้องค่ะ
พื้นที่ข้างเตียงจะมีชั้นวางของที่สามารถใช้เป็นโต๊ะเขียนหนังสือยาวๆ Built – in มาให้ ดูจากระยะแล้วก็พอใช้เตียงแทนเก้าอี้ได้ แต่นั่งนานๆอาจจะปวดหลังหน่อยนะคะ
ตู้เก็บของข้างเตียงจะมีลิ้นชัก 3 ช่อง
และช่องเก็บของใต้ตู้อีก 2 ช่อง
อีกด้านจะเป็นพื้นที่วางตู้เสื้อผ้า ได้ตามแบบนี้เลยค่ะ

โดยตู้เสื้อผ้าที่ทางโครงการให้มาจะเป็นตู้เสื้อผ้าแบบบานเลื่อน 2 ด้าน มีกระจกเงาสำหรับส่องเช็คความเรียบร้อยก่อนออกจากบ้าน
พื้นที่ข้างเตียงฝั่งตู้เสื้อผ้าก็เหลือพอให้ใช้แต่งตัวได้ค่ะ ส่วนตู้ตรงหัวเตียงที่เราเห็นก็จะได้มาด้วยนะคะ
ตู้หัวเตียงที่ได้เป็นตู้ 2 ช่องลิ้นชัก สามารถเก็บของเล็กๆน้อยๆอย่างสมุดบันทึกหรือโทรศัพท์มือถือได้ค่ะ
ต่อไปเราจะเข้าไปดูในส่วนของห้องน้ำกันค่ะ พื้นห้องน้ำปูด้วยกระเบื้องเซรามิคสีขาว พื้นมีธรณีก่อขึ้นมากันน้ำกระเซ็นออกมาด้านนอกสูงประมาณ 2 ซม.
ด้านในห้องน้ำแยกส่วนแห้งส่วนเปียกชัดเจน มีสุขภัณฑ์มาให้ครบชุด พร้อมระบบน้ำร้อน น้ำเย็น โดยว่าโครงการจะตกแต่งห้องน้ำมาตามนี้เลยค่ะ รวมไปถึงกระจกบานเต็มและ Shower Box (ยกเว้นรางไฟในกระจกที่จะไม่ได้ติดตั้งให้นะคะ)
อ่างล้างมือทรงสี่เหลี่ยมแบบฝังเคาน์เตอร์ Critina ขนาดพอดีๆ มีพื้นที่วางของข้างอ่างพอประมาณค่ะ
ก๊อกน้ำ Grohe
ตัวเคาน์เตอร์ใต้อ่างเก็บของได้ค่อนข้างจุ แต่ไม่แนะนำให้ใส่ของเปียกๆ หนักๆนะคะ
โถสุขภัณฑ์ Nahm ระยะติดตั้งค่อนข้างกระทัดรัด คนตัวใหญ่ๆอาจจะอึดอัดหน่อยค่ะ
สายชำระขนาดพอดีๆ
ข้างโถสุขภัณฑ์จะมีช่องสำหรับวางถังขยะเล็กๆได้ ด้านบนก็จะมี Built ชั้นวางของให้นิดหน่อยค่ะ ซึ่งชั้นวางของนี้ก็จะให้ด้วยค่ะ แล้วแต่ Layout ของห้องนะคะ ถ้าเป็น layout แบบห้องตัวอย่างเลยก็จะได้แบบนี้เลยค่ะ
มาที่ส่วนอาบน้ำจะมีกระจกกั้นอาบน้ำไว้ให้ บานเปิดแบบผลักเข้าไปด้านในห้องอาบน้ำ
มือจับจับสะดวก สามารถนำผ้าขนหนูมาวางพาดไว้ได้ด้วยค่ะ
ด้านหลังบานประตูจะมีตัว Stopper มาให้ เพื่อกันความเสียหายจากการเปิดประตูกระแทกผนังค่ะ
ฝักบัวแบบปรับระดับได้ พร้อมที่วางสบู่ Grohe
ฝักบัวอาบน้ำขนาดพอดีๆ
พื้นห้องอาบน้ำลดระดับลงไปประมาณ 2.5 ซม. ขนาดของห้องอาบน้ำสามารถอาบได้แบบพอดีๆ ไม่อึดอัดเกินไปค่ะ
ห้องตัวอย่างแบบที่ 2 จะเป็นแบบ 2 Bedroom ขนาด 52.77 ตร.ม มี 2 ห้องนอน 2 ห้องน้ำ 1 ห้อง Living Room เมื่อเข้าห้องมาจะเจอกับส่วนครัวเล็กๆ เป็นครัวแบบเปิด ที่มีพื้นที่เชื่อมต่อไปยังส่วน Living Room โดยส่วน Living Room นี้ก็จะสามารถเชื่อมต่อกับระเบียงด้านนอกได้ค่ะ
ส่วนห้องนอนทั้ง 2 ห้อง จะถูกกั้นแยกไว้เป็นสัดเป็นส่วน ถ้าใครอยู่คนเดียวก็สามารถเปี่ยนห้องนอนเล็กเป็นห้องอื่นๆแทนได้ค่ะ ส่วน Master Bedroom จะได้ห้องน้ำในตัวและรัเบียงมาด้วยค่ะ
เข้ามาในห้องจะเจอกับส่วนครัวทางขวา ซึ่งจะได้เป็นครัวแบบเปิดค่ะ
ชุดเคาน์เตอร์ครัวจะได้เป็นเคาน์เตอร์ Top หินแกรนิตสังเคราะห์ พร้อมซิงค์ล้างจาน, เตาไฟฟ้า, ช่องเก็บของใต้อ่าง และลิ้นชักเก็บของ 2 ช่อง ช่องบนเป็นลิ้นชักตื้นๆสำหรับเก็บช้อน ส้อม ส่วนลิ้นชักล่างจะลึกหน่อย สำหรับเก็บถ้วยชามค่ะ
ชุดตู้เก็บของด้านบนจะมีทั้งหมด 2 ตู้ พร้อมเครื่องดูดควันค่ะ
ผนังด้านหลังเคาน์เตอร์ของจริงจะได้เป็นผนังฉาบเรียบทาสีธรรมดา แนะนำให้ใช้กระเบื้องหรือผนังกระจกอย่างในห้องตัวอย่างก็จะช่วยให้ทำความสะอาดง่ายขึ้นเมื่อมีเศษอาหารกระเด็นไปโดนผนังนะคะ
ซูมให้ดูตัวเตาไฟฟ้าและซิงค์ล้างจานที่ได้ค่ะ
ถัดจากส่วนครัวเข้ามาในห้องจะเจอกับส่วน Living Room ก่อน ส่วนผนังกั้นห้องที่เราเห็นเป็นผนังใสๆนั้นเป็นแค่ตัวอย่างการตกแต่งห้องเท่านั้น ของจริงที่เราจะได้เป็นผนังทึบค่ะ
ส่วน Living Room นี้จะมีช่องแสง 1 จุด เป็นชุดประตูบานเลื่อนเดี่ยวประกบข้างด้วยหน้าต่างบานฟิกซ์ ทั้งชุดจะได้เป็นบานกรอบอลูมิเนียมสีธรรมชาติ ช่องแสงขนาดใหญ่ที่ได้นี้จะช่วยให้แสงธรรมชาติเข้าห้องมาได้ค่อนข้างเยอะเลยค่ะ
ระเบียงขนาดไม่กว้างเท่าไหร่ พอแค่ให้ออกไปยืนกินลมชมวิว หรือพอตากผ้าได้ค่ะ
ลักษณะระเบียงจะเป็นแนวยาว มีกริลล์ช่วยบังสายตาจากคอมเพรสเซอร์แอร์
อีกด้านของระเบียง
กลับเข้ามาในห้องมองย้อนกลับไปทางส่วนครัวและห้องน้ำที่ใช้รับแขก
เข้าไปดูในห้องน้ำห้องแรกค่ะ
ด้านในห้องน้ำใช้วัสดุปูพื้นด้วยกระเบื้องเซรามิค ผนังกรุกระเบื้องสีเทา ห้องน้ำแยกส่วนแห้งส่วนเปียกเป็นสัดเป็นส่วนด้วย Shower Box ค่ะ
อ่างล้างมือทรงสี่เหลี่ยมแบบฝังเคาน์เตอร์ Critina ขนาดพอดีๆ มีพื้นที่วางของข้างอ่างพอประมาณและตัวเคาน์เตอร์ใต้อ่างเก็บของได้ค่อนข้างจุค่ะ
โถสุขภัณฑ์ Nahm ระยะติดตั้งค่อนข้างกระทัดรัด คนตัวใหญ่ๆอาจจะอึดอัดหน่อยค่ะ
มาที่ส่วนอาบน้ำจะมีกระจกกั้นอาบน้ำไว้ให้ บานเปิดแบบผลักเข้าไปด้านในห้องอาบน้ำ
ฝักบัวแบบปรับระดับได้ พร้อมที่วางสบู่ ยี่ห้อ Grohe
พื้นห้องอาบน้ำลดระดับลงไปประมาณ 2.5 ซม. ขนาดของห้องอาบน้ำสามารถอาบได้แบบพอดีๆ ไม่อึดอัดเกินไปค่ะ
ออกมาจากห้องน้ำเราจะไปดูส่วนของห้องนอนเล็กกันก่อนค่ะ ตรงนี้ของจริงเราจะได้เป็นผนังทึบกั้นนะคะ
ในส่วนห้องนอนเล็กนี้ของจริงเราจะได้เฟอร์นิเจอร์ครบชุดมาด้วย คือเตียงนอน, โต๊ะเล็กข้างหัวเตียง 2 ตัว และตู้เสื้อผ้าค่ะ
มีช่องแสง 1 จุด เป็นชุดหน้าต่างบานเลื่อนเดี่ยวประกบด้วยหน้าต่างบานฟิกซ์อีก 3 บาน
ถัดไปเราจะไปดูส่วน Master Bedroom กันต่อ โดยต้องเดินผ่านทางเดินระหว่างห้องนอนเล็กและห้องน้ำค่ะ
ทางเดินตรงนี้ของจริงจะดูกว้างกว่านี้อีกนิดหน่อยค่ะ เพราะจะไม่มีตู้เก็บของเหมือนห้องตัวอย่างติดตั้งมาให้
เข้าไปดูส่วนของห้องน้ำส่วนตัวกันก่อน
ธรณีห้องน้ำยกขึ้นสูงประมาณ 3 ซม. พื้นปูด้วยกระเบื้องเซรามิค
ด้านในห้องน้ำแยกส่วนแห้งส่วนเปียกมาให้เรียบร้อยค่ะ
อ่างล้างมือทรงสี่เหลี่ยมแบบฝังเคาน์เตอร์ Critina ขนาดพอดีๆ พร้อมก๊อกน้ำและเคาน์เตอร์ใต้อ่าง
โถสุขภัณฑ์ Nahm พร้อมสายชำระและที่วางกระดาษชำระ
มาที่ส่วนอาบน้ำจะมีกระจกกั้นอาบน้ำไว้ให้ บานเปิดแบบผลักเข้าไปด้านในห้องอาบน้ำ
ได้ฝักบัวแบบ Rain Shower และแบบธรรมดาปรับระดับได้ของ Grohe
ขนาดของห้องอาบน้ำสามารถอาบได้แบบพอดีๆค่ะ
ห้อง Master Bedroom จะมีขนาดค่อนข้างกว้างเลยค่ะ สามารถแบ่งพื้นที่เป็นโซนพักผ่อนย่อมๆได้ด้วย
มาดูหัวใจของห้องนี้กันก่อน คือส่วนห้องนอนค่ะ
ส่วนนี้จะมีช่องแสง 1 จุด เป็นชุดหน้าต่างบานเลื่อนเดี่ยว และบานฟิกซ์ บานกรอบอลูมิเนียมสีธรรมชาติ
เตียงที่ได้มาจะเป็นเตียงขนาดควีนไซส์ พร้อมโต๊ะเล็กข้างหัวเตียง
พื้นที่ข้างเตียงเหลือค่อนข้างเยอะ สามารถทำเป็นโต๊ะเขียนหนังสือได้ตามแบบนี้เลยค่ะ โต๊ะตัวนี้ทางโครงการก็ให้มาด้วยนะคะ
ระยะการใช้งานโต๊ะเขียนหนังสือแบบพอดีๆ
อีกด้านจะมีตู้เสื้อผ้าแบบ Built – in มาให้
ตู้ที่ได้จะเป็นบานเปิดคู่ ด้านในมีลิ้นชักมาให้ 4 ช่อง เก็บเสื้อผ้าได้พอประมาณไม่เยอะเท่าไหร่ค่ะ
พื้นที่เหลือข้างเตียงเหลือพอให้ใช้งานตู้เสื้อผ้าได้แบบพอดีๆค่ะ
โต๊ะข้างเตียงที่แถมมาอาจจะมีการเปลี่ยนแปลงนะคะ
พื้นที่ปลายเตียงจะถูกจัดเป็นโซนสำหรับนั่งพักผ่อนแบบส่วนตั๊วส่วนตัว มีโซฟาและติดตั้งทีวีไว้นั่งดูแบบชิลล์ๆ
สามารถวางโซฟานั่งพักผ่อนขนาด 2 ที่นั่งได้แบบพอดีๆ
จากส่วนนี้สามารถเชื่อมออกไปยังระเบียงด้านนอกได้ค่ะ
ประตูเชื่อมออกไปยังระเบียงเป็นประตูบานเลื่อนคู่ บานกรอบอลูมิเนียมสีธรรมชาติ
พื้นระเบียงมีธรณีสูงขึ้นมา 4 ซม. กันน้ำด้านนอกกระเซ็นเข้ามาในห้อง ขนาดระเบียงกว้างกว่าของห้อง Living Room นิดหน่อยค่ะ
ราวกันตกเป็นเหล็กทาสีเทา ริมระเบียงจะมีกริลล์บังคอมเพรสเซอร์แอร์
อีกด้านของระเบียง
ราคา
อัพเดท : รายละเอียดโปรโมชั่นใหม่ Noble Revolve Ratchada 2 สำหรับงาน Noble DDay วันที่ 18-30 มิถุนายนนี้
บทสรุปโครงการ
ที่ตั้งโครงการ : โครงการ Noble Revolve รัชดา 2 ตัวโครงการอยู่เกือบๆติดถนนรัชดาภิเษก ใกล้ MRT ศูนย์วัฒนธรรมแห่งประเทศไทยในระยะเดินถึงได้สบายๆ อยู่ในทำเลที่ดูดีมีอนาคต รอบๆมีอาคารสำนักงานหลายแห่งและเป็นที่จับตามองว่ามีศักยภาพที่จะเป็น New CBD ได้ในอนาคต
บรรยากาศโดยรอบโครงการค่อนข้างคึกคัก ทั้งกลางวันและกลางคืนจึงไม่เหามะกับใครที่อยากได้ความสงบเท่าไหร่นักค่ะ ส่วนความอุดมสมบูรณ์รอบๆก็มีเยอะ ตั้งแต่อาหารราคาทั่วๆไป ทั้งรัชดา ซอย 4, ศูนย์อาหารรัชดา และศูนย์อาหารบริเวณหน้า Esplanade ล้วนอยู่ในระยะที่เดินถึงได้ ไม่ไกลนัก นอกจากนั้นยังมีห้างสรรพสินค้าอย่าง Central พระราม 9, Fortune Town, Esplanade รัชดา, Tesco Lotus ที่อยู่ในระยะ 1 กม.อีกด้วย
การเดินทางโดยรถยนต์ส่วนตัว : การเดินทางด้วยรถยนต์ค่อนข้างสะดวก แต่รถจะติดมากก เพราะเส้นรัชดาภิเษกเชื่อมได้ทั้งลาดพร้าวยาวไปถึงวงศ์สว่างฝั่งเข้าเมืองก็ขับนิดเดียวถึงอโศก, เพชรบุรีแล้วค่ะ ส่วนข้อเสียก็คือตัวโครงการนี้ไม่มีเส้นทางลัดใดๆ ต้องใช้เส้นรัชดาภิเษกอย่างไม่มีทางเลือก จะหาเส้นทางหนีรถติดก็ลำบากหน่อย ถ้ารีบจริงๆคงต้องทิ้งรถไว้แล้วใช้ MRT แทนค่ะ
การเดินทางโดยรถสาธารณะ : สำหรับคนที่ต้องการหลีกเลี่ยงรถติด การเดินทางโดยรถสาธารณะเป็นทางเลือกที่เรียกได้ว่าสะดวกสุดสำหรับโครงการนี้ก็ว่าได้ เพราะตัวโครงการอยู่ใกล้ MRT ศูนย์วัฒนธรรมมากๆ เดินประมาณไม่เกิน 5 นาทีก็ถึงแล้ว แต่ในช่วง Prime time อาจจะต้องหงุดหงิดหน่อยเพราะต้องรอหลายขบวน เดี๋ยวนี้คนใช้บริการรถไฟฟ้าเยอะค่ะ นอกจากนั้นหน้า MRTศูนย์วัฒนธรรม ก็จะมีคิวพี่วินคอยให้บริการ ค่าบริการเริ่มต้น 10 บาทค่ะ นอกจากนั้นก็จะมีป้ายรถเมล์อยู่ไม่ไกล ส่วนรถ Taxi ก็มีผ่านหน้าปากซอยตลอดสามารถเรียกใช้บริการได้ค่ะ
การออกแบบโครงการและที่ดิน : โครงการ Noble Revolve รัชดา 2 เป็นคอนโด High Rise 42 ชั้น บนที่ดินขนาด 3 – 1 – 66.2 ไร่ ยูนิตพักอาศัย 755 ยูนิต อัตราส่วนของห้องพักอาศัยแต่ละชั้นอยู่ที่ประมาณ 21 ห้อง ไม่แน่นมากค่ะ ส่วนลิฟท์โดยสารจะมีให้ 4 ตัว อัตราส่วนลิฟท์โดยสารต่อยูนิตพักอาศัยจะอยู่ที่ 1 : 189 ซึ่งถือว่าค่อนข้างหนาแน่นไปหน่อยค่ะ
ในส่วนของห้องพักจะมีให้เลือก 3 แบบ โดยจะมีห้องขนาดตั้งแต่แบบ 1 ห้องนอนเล็ก ไม่ได้กั้นห้อง (Studio) ขนาดเริ่มต้นประมาณ 22 ตร.ม. แบบ 1 Bedroom ขนาดเริ่มต้นประมาณ 25 ตร.ม. และแบบ 2 Bedroom ประมาณ 38-52 ตร.ม. โดยแต่ละชั้นจะมีห้องแบบ Studio แค่ 2 ห้อง และแบบ 2 Bedroom แค่ชั้นละ 3 ห้องค่ะ
วัสดุ : วัสดุของโครงการนี้ใช้ของตาม Standard พื้นห้องทั่วไปปูด้วยลามิเนต, ห้องน้ำปูกระเบื้องเซรามิค, ผนังฉาบเรียบ ทาสี, ประตูและกระจกบานเลื่อนจะได้เป็นกรอบอลูมิเนียมสีธรรมชาติ ทีเด็ดจริงๆจะอยู่ที่ของแถม ให้มาแบบพร้อมอยู่จริงๆค่ะ ตั้งแต่เคาน์เตอร์ครัว Top หินสังเคราะห์ พร้อมเตาไฟฟ้าและเครื่องดูดควัน, โซฟารับแขก, ชั้นวางทีวี, ชุดโต๊ะทานอาหาร, ตู้เสื้อผ้า, โต๊ะข้างเตียง เครื่องใช้ไฟฟ้าก็มีให้ทั้งเครื่องซักผ้าฝาหน้า, ไมโครเวฟ, เครื่องปรับอากาศ 1 ตัว ในห้องน้ำมีแยกส่วนแห้งส่วนเปียก มี Shower Box ให้, อ่างล้างหน้าแบบฝังเคาน์เตอร์ของ Crtitina, ก๊อกน้ำของ Grohe, ฝักบัวอาบน้ำและโถสุขภัณฑ์แบบครบชุด แต่ Spec ยี่ห้อของที่ได้ต้องลองสอบถามอัพเดทกับทางโครงการอีกครั้งนะคะ เผื่อในอนาคตอาจจะมีการเปลี่ยนแปลง
สิ่งอำนวยความสะดวก : สิ่งอำนวยความสะดวกของโครงการนี้จะมีที่จอดรถที่ชั้น 2 – 5 จำนวนที่จอดประมาณ 40% ซึ่งถือว่าค่อนข้างน้อยไปหน่อยค่ะ สิ่งอำนวยความสะดวกอื่นๆจะมี Shop ที่ชั้น 1 , Mailroom และ Lobby หลักค่ะ ส่วนกลางของโครงการจะอยู่ที่ชั้น 6 มีสระว่ายน้ำขนาด 8 x 22 เมตร , Fitness, สวนหย่อมขนาด XX ตร.วา และ Roof Top Garden บนชั้นดาดฟ้าค่ะ
คะแนน
| ทำเลที่ตั้งโครงการ | 8.5 | ตั้งอยู่บนถนนรัชดาภิเษก รายล้อมด้วยอาคารสำนักงาน ความอุดมสมบูรณ์สูง ใกล้ห้างใหญ่ๆ 2 – 3 แห่ง คึกคักทั้งกลางวันกลางคืน |
| การเดินทาง ใช้รถ | 8.0 | ใช้ถนนเส้นรัชดาภิเษกเชื่อมไปยังถนนเส้นอื่นๆได้หลากหลาย ไม่ไกลจากอโศก แต่ไม่มีทางเลี่ยงทางลัดในการหลบหลีกรถติด |
| การเดินทาง ไม่ใช้รถ | 8.5 | ใกล้ MRT ศูนย์วัฒนธรรมแห่งประเทศไทย ในระยะ 80 เมตร มีพี่วินและป้ายรถเมล์บริเวณหน้าสถานี MRT นอกจากนั้นยังมี TAXI เรียกได้ที่หน้าโครงการบนถนนรัชดาภิเษก |
| ห้องและวัสดุ | 7.5 | ห้องพักมีให้เลือก 3 แบบ ตั้งแต่แบบ Studio 1 Bedroom 2 Bedroom ขายแบบ Fully Furnished วัสดุในห้องมาตรฐานทั่วไปแต่ได้เฟอร์นิเจอร์ให้มาครบค่ะ |
| สิ่งอำนวยความสะดวก | 7.0 | Facilities ครบครันแต่ค่อนข้างน้อยไปหน่อยเมื่อเทียบกับจำนวน 755 ยูนิต โดยจะมีสระว่ายน้ำ, ฟิตเนส, Roof Top Garden ที่ชั้นดาดฟ้า ที่จอดรถ 40% |
| ความคุ้มค่ากับราคา | 8.0 | เป็นคอนโดใจกลางเมืองที่ได้ความสงบและเดินทางสะดวก ใกล้รถไฟฟ้าและแหล่งความอุดมสมบูรณ์ เหมาะสำหรับอยู่อาศัยสำหรับคนที่ทำงานแถวอโศก รัชดา หรือใครที่อยากได้ที่อยู่กลางเมืองใกล้รถไฟฟ้าค่ะ เแต่ไม่เหมาะกับคนที่ชอบความสงบเท่าไหร่ค่ะ |
| คะแนนรวมเฉลี่ย | 7.9 | ดี |
สอบถามรายละเอียดเพิ่มเติมได้ที่
Tel : 02-251-9955
Website : คลิกที่นี่
หากเพื่อนๆเห็นว่ารีวิวนี้มีประโยชน์ โปรดกด Like เพื่อเป็นกำลังใจให้ทีมงาน
และมีความคิดเห็นหรือข้อมูลเพิ่มเติมเกี่ยวกับตัวโครงการ สามารถ Comment ได้ที่ด้านล่างของรีวิวค่ะ
แสดงความคิดเห็น เกี่ยวกับ " รีวิว คอนโด Noble Revolve รัชดา 2 ติดรถไฟฟ้า BTS ศูนย์วัฒนธรรม "