logo

EP.94 รีวิว คอนโด OKA HAUS สุขุมวิท 36 ใกล้ BTS ทองหล่อ

โพสโดย : pure / วันที่ : 22 December 2017

EP.94 รีวิว คอนโด โอกะ เฮ้าส์ สุขุมวิท 36 Oka Haus Sukhumvit 36

สวัสดีค่ะผู้อ่าน Condonayoo ที่รักทุกคน วันนี้เราจะพาไปชมโครงการ OKA HAUS สุขุมวิท 36 จาก แสนสิริ เป็นคอนโดย่านพระราม 4 ที่ตั้งโครงการอยู่บนถนนพระราม 4 แขวงคลองตัน เขตคลองเตย กทม. อยู่ใกล้ท้ายซอยสุขุมวิท 36 ไม่ไกลจากตลาดสด คอมมูนิตี้มอล ห้างสรรพสินค้า อีกทั้งยังไปสถานีรถไฟฟ้าสายสีเขียวสถานีทองหล่อ และสายสีน้ำเงินสถานีศูนย์ประชุมแห่งชาติสิริกิติ์ได้สะดวก

โอกะ เฮ้าส์ สุขุมวิท 36 เป็นคอนโดมิเนียม High Rise สูง 47 ชั้น พื้นที่โครงการประมาณ 5 ไร่ ห้องพักอาศัยรวม 1,178 ยูนิต มีห้องพักให้เลือกแบบ 1 – 3 ห้องนอน ขนาดเริ่มต้น 26.50 – 86.50 ตร.ม. ขายแบบ Fully Fitted พร้อม Digital door lock และ Home Automatic คาดว่าแล้วเสร็จปลายปี 2564

สิ่งอำนวยความสะดวก ในโครงการครบครัน Lobby , สระว่ายน้ำ, สระน้ำอุ่น, ฟิตเนส, ซาวน่า, สตรีม, พื้นที่สำหรับเด็ก, Co-Working Space, ลานภาพยนต์กลางแจ้ง, สวนพักผ่อน, พื้นที่สีเขียวรอบโครงการ, Access Card Control, กล้องวงจรปิด, รปภ. 24 ชม. ราคาเริ่มต้น 3.85 ล้านบาท*

วันนี้เราจะพาท่านผู้อ่านไปสำรวจสถานที่ วิเคราะห์ทำเล และดูห้องตัวอย่างกันค่ะ ว่าโครงการนี้เป็นอย่างไร : )



ชื่อโครงการ โอกะ เฮ้าส์ สุขุมวิท 36 Oka Haus Sukhumvit 36
เจ้าของโครงการ บมจ.แสนสิริ / Sansiri
เนื้อที่ทั้งหมด ประมาณ 5 ไร่
จำนวนตึก 1 อาคาร
จำนวนชั้น 47 ชั้น
จำนวนห้อง 1,178 ยูนิต
ลักษณะห้องและขนาดห้อง
  • 1 Bedroom 1 Bathroom ขนาด 26.5-34.75 ตร.ม.
  • 2 Bedroom 1 Bathroom ขนาด 40.5-41.00 ตร.ม.
  • 2 Bedroom 2 Bathroom ขนาด 49.25-49.50 ตร.ม.
  • 3 Bedroom 2 Bathroom ขนาด 86.25-86.5 ตร.ม.
ที่จอดรถทั้งหมด 49% ของยูนิตพักอาศัย
จำนวนลิฟต์ ลิฟต์โดยสาร 5 ตัว, ลิฟต์บริการ 1ตัว
โซน สุขุมวิท-พระราม 4
ขนส่งสาธารณะ
  • รถไฟฟ้า BTS ทองหล่อ
  • รถไฟฟ้า MRT ศูนย์ประชุมแห่งชาติสิริกิติ์
  • ทางพิเศษเฉลิมมหานคร
รถโดยสารที่ผ่าน 22, 45, 45ส, 46ร, 109ร, 113ร, 115ร, 149ร, 173ร, 519ร, 544ร
ที่ตั้ง ติดถนนพระราม 4 แขวงคลองตัน เขตคลองเตย กทม.
กำหนดการ เริ่มก่อสร้าง มิ.ย.ปี 2561
ปีที่สร้างเสร็จ ประมาณปี 2564
ราคา เริ่ม 3.85 ล้านบาท
ราคาเฉลี่ยต่อ ตร.ม เริ่มต้น 131,979 บาท/ตร.ม.
ค่าส่วนกลางและกองทุน
  • ค่าส่วนกลาง : 65 บาท/ตร.ม./เดือน
  • ค่ากองทุน : 600 บาท/ตร.ม. (ชำระครั้งเดียว ณ วันโอน)
สถานที่สำคัญใกล้เคียง
  • BTS สถานีทองหล่อ : 1.3 กม.
  • MRT สถานีศูนย์ประชุมแห่งชาติสิริกิติ์ : 2.2 กม.
  • Lotus พระราม 4 : 700 ม.
  • BigC พระราม 4 : 700 ม.
  • K Village : 850 ม.
  • สวนเพลินมาร์เก็ต : 850 ม.
  • ตลาดพูนทรัพย์ : 1.4 กม.
  • ตลาดท่าเรือคลองเตย : 1.6 กม.
  • Gateway เอกมัย : 1.7 กม.
  • Major Cineplex เอกมัย : 2.1 กม.
  • Miracle Mall : 2.1 กม.
  • Top Market ทองหล่อ : 2.4 กม.
  • EmQuartier : 2.7 กม.
  • Emporium : 2.7 กม.
  • BigC เอกมัย : 2.7 กม.
  • ตลาดพระโขนง : 3.1 กม.
  • ตลาดอ่อนนุช : 3.2 กม.
  • BigC อ่อนนุช : 3.3 กม.
  • Terminal 21 : 3.5 กม.
  • Lotus อ่อนนุช : 3.5 กม.
  • โรบินสัน สุขุมวิท : 3.6 กม.
  • Korean Town : 3.7 กม.
  • Central บางนา : 12.7 กม.
  • Ikea บางนา : 17.6 กม.
  • Mega บางนา : 17.6 กม.
  • ม.กรุงเทพ : 1.2 กม.
  • รร.สายน้ำผึ้ง : 2.0 กม.
  • รร.นานาชาติเอกมัย : 3.7 กม.
  • รร.สาธิต มศว : 4.1 กม.
  • รร.วัฒนาวิทยาลัย : 4.2 กม.
  • มหาวิทยาลัยศรีนครินทร์วิโรฒ : 4.3 กม.
  • รพ.เทพธารินทร์ : 400 ม.
  • รพ.ท่าเรือ : 1.3 กม.
  • รพ.กล้วยน้ำไท : 1.6 กม.
  • รพ.สุขุมวิท : 2.7 กม.
  • รพ.สมิติเวช : 3.6 กม.
  • ไปรษณีย์กล้วยน้ำไท : 1.1 กม.
  • ศูนย์ประชุมแห่งชาติสิริกิติ์ : 2.2 กม.
  • โรงงานยาสูบ : 2.4 กม.
  • สวนเบญจกิติ : 2.5 กม.
สิ่งอำนวยความสะดวก
  • พื้นที่โถงต้อนรับ
  • สวนส่วนกลาง พร้อมพื้นที่สันทนาการกลางแจ้ง
  • ห้องซักรีด
  • สระว่ายน้ำพร้อมจากุซซี่ สระพักผ่อนและสระเด็ก
  • สระน้ำอุ่น
  • พื้นที่สันทนาการสำหรับเด็ก
  • ห้องออกกำลังกาย พร้อมอุปกรณ์
  • ห้องอบไอน้ำแยกชาย/หญิง
  • เลาจน์
  • พื้นที่ทำงานส่วนกลาง
  • พื้นที่สันทนาการ
  • ลานภาพยนต์กลางแจ้ง
  • จุดบริการชาร์จแบตเตอรี่สำหรับรถยนต์พลังงานไฟฟ้า
  • เจ้าหน้าที่รักษาความปลอดภัย ตลอด 24 ชั่วโมง
  • กล้องวงจรปิดตลอด 24 ชั่วโมง
จุดเด่นของโครงการ Oka Haus สุขุมวิท 36 คอนโดใหม่สไตล์รีสอร์ท จาก แสนสิริ ยกธรรมชาติมาไว้ใจกลางเมือง บนทำเลที่เดินทางได้หลากหลาย ใกล้ BTS ทองหล่อ และ ทางพิเศษเฉลิมมหานคร เริ่ม 3.85 ล้านบาท*

คอนโด BTS ทองหล่อ  / คอนโดติดรถไฟฟ้า BTS ทองหล่อ
Thong lo Station (E6) | สายสุขุมวิท Sukhumvit Line
ติดถนนสุขุมวิท ใกล้ BTS ทองหล่อ
ซอยสุขุมวิท 53 (ซอยไปดีมาดี) ซอยสุขุมวิท 57 (ซอยบ้านกล้วยเหนือ) ซอยสุขุมวิท 59 (ซอยบุญชนะ) ถนนทองหล่อ (ซอยสุขุมวิท 55) ซอยสุขุมวิท 49 (ซอยกลาง)
ซอยสุขุมวิท 36 (ซอยนภาศัพท์-ซอยแสนสบาย)
ซอยสุขุมวิท 38 (ซอยสันติสุข) ซอยสุขุมวิท 40 (ซอยบ้านกล้วยใต้) ซอยสุขุมวิท 34 (ซอยสุภางค์) ซอยสุขุมวิท 30/1 (ซอยฟิลิปปินส์) ถนนพระราม 4 ถนนเพชรบุรี

ที่ตั้งโครงการ

ถนนพระราม 4 แขวงคลองตัน เขตคลองเตย กทม.
พิกัด google map: 13°42’57.0″N 100°34’29.9″E

map

โครงการ OKA HAUS สุขุมวิท 36 ตั้งอยู่บนถนนพระราม 4 ไม่ไกลจากซอยสุขุมวิท 36 เดินทางไปยังสุขุมวิทได้ จึงเดินทางไปยังถนนเส้นอื่นได้สะดวก อีกทั้งยังเดินทางด้วยรถสาธารณะ โดยไปขึ้นรถไฟฟ้าทองหล่อ หรือรถไฟฟ้าใต้ดินสถานีศูนย์ประชุมแห่งชาติสิริกิติ์ได้ ใกล้เคียงพอมีร้านค้า ร้านอาหารบ้าง แต่ไม่ไกลจากคอมมูนิตี้มอล ห้างสรรพสินค้า และตลาดสดตรงเส้นพระราม 4

map1

ที่ตั้งโครงการ อยู่ในบนถนนพระราม 4 ใกล้กับซอยสุขุมวิท 36 ซึ่งเป็นถนนที่ลัดไปยังถนนสุขุมวิทได้ สองเส้นนี้เป็นถนนเส้นใหญ่จึงเดินทางได้สะดวกหลากหลายเส้นทาง ไม่ไกลจากจุดขึ้น-ลงทางด่วน อีกทั้งร้านค้า ร้านอาหาร คอมมูนิตี้มอล ห้างสรรพสินค้าก็อยู่ในระยะที่เดินทางได้ง่าย

การเดินทางด้วยรถยนต์ส่วนตัว ถือว่าสะดวกพอสมควร เพราะอยู่ติดกับถนนพระราม 4 อีกทั้งยังไม่ไกลจากซอยสุขุมวิท 36 ซึ่งเป็นซอยที่ลัดไปยังถนนสุขุมวิทได้ ดังนั้นสามารถลัดเลาะไปได้หลายเส้นทาง สำหรับถนนพระราม 4 เส้นนี้เป็นเส้นที่การจราจรจะวิ่งคล่องตัวกว่าถนนสุขุมวิท วิ่งเชื่อมสุขุมวิทตรงแยกพระโขนง และตรงไปเชื่อมถนนพระราม 3 และถนนรัชดาภิเษกตรงแยกพระราม 4 ทำให้ไปได้หลายเส้นทาง จากตรงนั้นถ้าวิ่งเข้าพระราม 3 ก็ไปยังพระราม 2 ได้ไม่ยาก อีกทั้งเส้นพระราม 4 นี้ตรงไปยังสาทร วิ่งตรงไปจนถึงหัวลำโพงได้เลย

ถนนสุขุมวิทเป็นถนนหลักจึงเดินทางไปยังถนนอื่นๆได้หลากหลายสาย ถ้าตรงไปยังสุขุมวิทตอนปลาย ผ่านแยกพระโขนงก็จะตรงไปยังบางนา ยาวไปจนถึงสมุทรปราการ หรือถ้าผ่านแยกอ่อนนุชก็เลี้ยวไปลาดกระบัง, พัฒนาการ, ศรีนครินทร์ ถ้าตรงไปยังสุขุมวิทตอนต้น ก็จะไปยังแยกอโศก ตรงไปเรื่อยๆยังถนนพระราม 1, แยกราชประสงค์เข้าตัวเมืองกรุงเทพและย่านเศรษฐกิจได้

ปากซอยสุขุมวิท 36 จะอยู่ไม่ไกลจากซอยสุขุมวิท 55 (ทองหล่อ), ซอยสุขุมวิท 63 (ถนนเอกมัย) สองเส้นนี้วิ่งตรงไปยังถนนเพชรบุรีได้ ถนนเอกมัยถ้าวิ่งยาวตรงไปเรื่อยๆก็ไปยังเลียบด่วนรามอินทรา-อาจณรงค์ เชื่อมเข้าพระราม 9, ลาดพร้าวตรงไปจนถึงสายไหมได้เลยค่ะ

map5

ทางด่วน ที่ตั้งโครงการนั้นยังอยู่ไม่ไกลกับจุดขึ้น-ลงทางด่วนเฉลิมมหานคร ซึ่งทางด่วนเส้นนี้จะเป็นเส้นที่เชื่อมกับทางด่วนเส้นอื่นทั้งทางด่วนศรีรัช, รามอินทรา – อาจณรงค์ ดังนั้นทำให้เดินทางไปยังพื้นที่ต่างๆได้สะดวก

map3

การเดินทางด้วยรถสาธารณะ ถือว่าสะดวกค่ะ หน้าโครงการมีรถแท็กซี่เป็นระยะ วินมอเตอร์ไซค์และป้ายรถเมล์ก็อยู่ตรงท้ายซอยสุขุมวิท 36 ซึ่งไม่ไกลจากโครงการ แต่ถ้าจะไปใช้บริการรถไฟฟ้าก็สะดวกทั้งสายสีเขียวตรงเส้นสุขุมวิท และสายสีน้ำเงินตรงเส้นรัชดาภิเษก

  • รถไฟฟ้าสายสีเขียว(หมอชิต-สำโรง) สถานีทองหล่อ จะไปเชื่อมกับสายสีน้ำเงินตรงสถานีอโศกถัดจากโครงการเพียง 2 สถานีเท่านั้น
  • รถไฟฟ้าสายสีน้ำเงิน (บางซื่อ-ท่าพระ) สถานีศูนย์ประชุมแห่งชาติสิริกิติ์ จะไปเชื่อมกับสายสีม่วง (เตาปูน-คลองบางไผ่) ที่สถานีบางซื่อ

map9

สำหรับการเดินทางไปยังรถไฟฟ้าสายสีเขียวสถานีทองหล่อ เดินทางค่อนข้างสะดวกใช้วินมอเตอร์ไซค์ก็เพียง 15 บาท เพราะห่างจากโครงการประมาณ 1.3 กม.เท่านั้น

map4

ความอุดมสมบูรณ์โดยรอบ ที่ตั้งโครงการอยู่ในย่านพักอาศัยใกล้ย่านเศรษฐกิจ รอบๆโครงการพอมีร้านค้า ร้านอาหารบ้างแต่ที่อุดมสมบูรณ์เป็นแหล่งตลาดนัด ตลาดสดใกล้ๆในระยะเดินได้คือในซอยแสนสุข จะเป็นย่านร้านค้าเหมือนตลาดนัดที่มีทั้งอาหารคาวหวานมากมาย และในซอยสุขุมวิท 36 ก็มีร้านค้า ร้านอาหาร ร้านกาแฟอยู่ประปราย

สำหรับความอุดมสมบูรณ์จะเห็นว่าเกาะอยู่สองเส้นคือสุขุมวิทและพระราม 4 สำหรับถนนพระราม 4 นั้นจะมีทั้งคอมมูนิตี้มอลและห้างสรรพสินค้า โดยจะมีสวนเพลินมาร์เก็ต และ K Village เป็นคอมมูนิตี้มอลที่มีร้านค้าและร้านอาหารมากมาย ส่วน Hypermarket ก็จะมีทั้ง Lotus พระราม 4 และ Big C พระราม 4 อีกทั้งยังไม่ไกลจากตลาดสดด้วยค่ะ

สำหรับสุขุมวิทนั้น ตรงไปหน่อยก็จะเป็น Emporium, EmQuartier, Terminal 21, Central ชิดลม จากสุขุมวิทตรงไปถึงถนนพระราม 1 ได้ตรงนั้นจะมีห้างสรรพสินค้าทั้ง เกษร, อัมรินทร์พลาซ่า, บิ๊กซี ราชดำริ, Central World, Siam Paragon, Siam Center, Siam Discovery, Siam Square One และ MBK Center หรือถ้าไปทางเอกมัยก็จะมี Gateway เอกมัย, Major Cineplex และปากซอยสุขุมวิท 36 จะอยู่ไม่ไกลจากเส้นทองหล่อและเอกมัย สองเส้นนี้ก็จะมีผับ บาร์ ร้านอาหารมากมายให้เลือกใช้บริการได้

map2

แยกและถนนสำคัญใกล้เคียง

  • แยกกล้วยน้ำไท : 1.0 กม.
  • แยกพระราม 4 : 1.9 กม.
  • แยกพระโขนง :2.0 กม.
  • แยกอ่อนนุช : 3.0 กม.
  • แยกอโศก : 3.4 กม.
  • แยกเอกมัยเหนือ : 4.5 กม.
  • แยกอโศก-เพชรบุรี : 4.6 กม.
  • ถนนเกษมราษฎ์ : 900 ม.
  • ถนนกล้วยน้ำไท : 1.0 กม.
  • ถนนสุขุมวิท : 1.2 กม.
  • ถนนอาจณรงค์ : 1.4 กม.
  • ถนนสุนทรโกษา : 1.4 กม.
  • ถนนพระราม 3 : 1.9 กม.
  • ถนนรัชดาภิเษก : 1.9 กม.
  • ซอยสุขุมวิท 55 (ทองหล่อ) : 2.1 กม.
  • ซอยสุขุมวิท 63 (เอกมัย) : 2.4 กม.
  • ซอยสุขุมวิท 71 : 2.4 กม.
  • ซอยสุขุมวิท 77 (อ่อนนุช) : 3.0 กม.
  • ถนนอโศกมนตรี : 3.4 กม.
  • ถนนเพชรบุรี : 4.3 กม.
  • ถนนประดิษฐ์มนูธรรม : 4.5 กม.
  • ถนนพัฒนาการ : 5.6 กม.

การเดินทาง

map6

เรามีภาพการเดินทางมาให้ชมกัน เส้นทางการเดินทางตามลูกศรแดง โดยเริ่มเดินทางจาก จากแยกอโศก ตรงไปตามถนนสุขุมวิทผ่าน BTS ทองหล่อกลับรถเลี้ยวซ้ายเข้าซ.สุขุมวิท 36เลี้ยวขวาเข้าซอยนภาศัพท์แยก 4 เลี้ยวซ้ายเข้าซอยแสนสบายเลี้ยวซ้ายเข้าถนนพระราม 4 ตรงไปประมาณ 240 ม. ก็จะเจอพื้นที่โครงการ OKA HAUS สุขุมวิท 36 แล้วค่ะ

DSCF1432_resize

จากแยกอโศกมุ่งหน้าไปทางสุขุมวิทตอนปลาย

DSCF1440_resize

สองข้างทางจะมีอาคารพาณิชย์ อาคารสูง อาคารพักอาศัยและร้านค้า ร้านอาหารตลอดเส้นทาง

DSCF1444_resize

ตรงมาเรื่อยๆผ่าน BTS สถานีพร้อมพงษ์ ตรงนี้จะมีห้างสรรพสินค้าใหญ่อย่าง EmQuartier และ Emporium ซึ่งเป็นห้างที่ใกล้โครงการมากที่สุด

DSCF1461_resize

ตรงมาก็จะผ่าน BTS ทองหล่อ ถ้าวิ่งจากแยกอโศกที่ตั้งโครงการจะอยู่ทางขวามือตรง BTS ทองหล่อเลยค่ะ ดังนั้นเราจึงต้องไปกลับรถ

DSCF1464_resize

ตรงมาผ่านสามแยกไปยังสุขุมวิท 55 หรือถนนทองหล่อ เส้นนี้ก็มีความอุดมสมบูรณ์ มีร้านค้าและร้านอาหาร ผับ บาร์มากมาย

DSCF1472_resize

จากแยกถนนทองหล่อตรงมาเพียง 200 ม.ก็จะเจอจุดกลับรถ

DSCF1477_resize

เมื่อกลับรถมาแล้วก็จะผ่านแยกที่ตรงไปยังถนนทองหล่อและ BTS ทองหล่ออีกครั้งค่ะ

DSCF1484_resize

เลี้ยวซ้ายเข้าซ.สุขุมวิท 36 ด้านบนก็ยังเห็นทางขึ้น-ลงสถานีรถไฟฟ้าอยู่นะคะ

DSCF1496_resize

ในซอยสุขุมวิท 36 เป็นถนนกว้าง 2 เลน บางช่วงจะเห็นว่ามีไหล่ทาง ฟุตบาท สองข้างทางเป็นบ้านพักอาศัย มีร้านค้า ร้านอาหารบ้างเป็นระยะ

DSCF1500_resize

จากปากซอยมาประมาณ 450 ม.ให้เลี้ยวขวาเข้าซอยนภาศัพท์แยก 4

map7

ซอยนี้จะเป็นทางลัดเลาะไปยังโครงการ โดยโครงการสามารถตรงไปจนถึงท้ายซอยสุขุมวิท 36 ได้ค่ะ แต่ต้องไปกลับรถที่ถนนพระราม 4 ดังนั้นถ้าลัดทางนี้ก็จะง่ายกว่า

DSCF1507_resize

เข้ามาในซอย เป็นถนนเส้นเล็ก ส่วนใหญ่เป็นบ้านพักอาศัยจึงมีร้านค้าเล็กๆ ร้านอาหารรถเข็น

DSCF1509_resize

เลี้ยวซ้ายตามเส้นทางไปเลยค่ะ

DSCF1510_resize

เลี้ยวขวาเข้าซอยแสนสุข 10

DSCF1514_resize

แล้วก็เลี้ยวซ้ายเข้าซอยแสนสุข

DSCF1523_resize

ซอนนี้เป็นซอยเล็กเช่นกัน มีความคึกคักเพราะสองข้างทางมีร้านค้ารถเข็นแบบนี้ตลอดข้างทาง

DSCF1525_resize

ร้านค้าจะเริ่มตั้งแต่ปากซอยที่ติดกับถนนพระราม 4 ดังนั้นสามารถเดินมาจับจ่ายใช้สอยจากโครงการได้ไม่ยาก ตรงนี้ก็เลี้ยวซ้ายเข้าถนนพระราม 4 ได้เลยค่ะ

DSCF1529_resize

ถนนพระราม 4 เป็นถนนใหญ่แบ่งเป็น 6 เลนมีเกาะกลาง

IMG_7773_resize

จากซอยแสนสุขตรงมาเพียง 240 ม.ก็จะเจอที่ตั้งโครงการอยู่ทางซ้ายมือ จากตรงนี้จะเห็นโรงพยาบาลเทพธารินทร์อยู่ไม่ไกล

IMG_7780_resize

ด้านหน้าติดกับถนนพระราม 4 ตอนนี้จะเป็นที่ตั้งของสำนักงานขายค่ะ


บริเวณโดยรอบโครงการ

map8

โครงการ OKA HAUS สุขุมวิท 36 โดยรอบเป็นบ้านพักอาศัยสูง 1-3 ชั้น และอาคารพาณิชย์สูง 2-3 ชั้น ไม่มีอาคารสูงใกล้เคียงทำให้ไม่โดนบังวิว ด้านหน้าโครงการคือถนนพระราม 4 ที่ตั้งโครงการจะอยู่ระหว่างซอยแสนสุขและซอยสุขุมวิท 36 ซึ่งซอยแสงสุขจะมีร้านอาหาร ร้านโชห่วย ร้านค้าห้องแถวเล็กๆมากมายอยู่ในระยะที่เดินไปจับจ่ายใช้สอยได้ ไม่ไกลจากโครงการตรงท้ายซอยสุขุมวิท 36 จะมีป้ายรถเมล์ วินมอเตอร์ไซค์และร้านสะดวกซื้อค่ะ

อัปเดตภาพตึกจริงโครงการ Oka Haus สุขุมวิท 36 ค่ะ

IMG_5604_resize

หน้าโครงการคือถนนพระราม 4 เป็นถนนใหญ่ 6 เลนมีเกาะกลาง จุดกลับรถอยู่ไม่ไกลจากโครงการ ตรงข้ามไม่มีอาคารสูง

IMG_5606_resize

ด้านขวาตรงไปยังแยกพระราม 4 ซึ่งเป็นแยกที่เชื่อมระหว่างถนนพระราม 3 ถนนรัชดาภิเษกและไปยังทางขึ้น-ลงทางด่วนได้

IMG_5609_resize

ตรงไปอีกหน่อยจะมีร้านค้า ร้านกาแฟและปั๊มน้ำมัน ซอยใกล้โครงการคือซอยแสนสุขที่มีร้านอาหาร รถเข็นขายอาหารมากมายค่ะ

map9

จากโครงการสามารถตรงไปยัง BTS สายสีเขียวสถานีทองหล่อได้ ดังนั้นวันนี้ทีมงานจะพาเดินชมสองข้างทาง และเส้นทางในการเดินทางไปยังรถไฟฟ้าค่ะ

IMG_5613_resize

ด้านซ้ายตรงไปยังแยกพระโขนงเป็นเส้นที่เชื่อมกับถนนสุขุมวิท และจากตรงนี้จะใกล้กับถนนสุขุมวิท 36

IMG_5616_resize

ไม่ไกลจากโครงการมีป้ายรถเมล์ และสะพานลอยที่สามารถข้ามไปยังอีกฝั่งของถนนได้

IMG_5617_resize

เลยสะพานลอยมาเล็กน้อยคือซอยแสนสบาย หรือท้ายซอยสุขุมวิท 36 ตรงนี้จะมีร้านสะดวกซื้อและวินมอเตอร์ไซค์

IMG_5620_resize

ราคาวินมอเตอร์ไซค์ซอยแสนสบาย หรือท้ายซอยสุขุมวิท 36 ค่ะ

IMG_5621_resize

ซอยนี้จะเป็นถนนเส้นเล็ก สองข้างทางเป็นบ้านพักอาศัย มีร้านค้าและร้านอาหารประปราย

IMG_5631_resize

ประมาณกลางซอยสุขุมวิท 36 จะมีพื้นที่ร้านค้าที่เรียกว่า @36 ตรงนี้จะมีทั้งร้านนั่งชิว ร้านกาแฟ และร้านล้างรถ

IMG_5649_resize

สองข้างทางในซอยเป็นบ้านพักอาศัย มีร้านค้า ร้านอาหารบ้างประปราย ตรงมาใกล้ปากซอยจะมีร้านกาแฟและร้านอาหาร

IMG_5664_resize

ปากซอยสุขุมวิท 36 คือถนนสุขุมวิทตรงไปด้านซ้ายจะเป็นแยกอโศก สามารถตรงไปยังถนนพระราม 1 หรือจะเลี้ยวไปพระราม3, พระราม 9 ก็ได้เช่นกัน

ด้านบนจะเห็นทางเดินเชื่อมและทางเดินรถไฟฟ้าสายสีเขียว สถานีที่ใกล้ที่สุดคือสถานีทองหล่อ ตรงนี้ก็มีบันไดขึ้น-ลงสถานีถือว่าเป็นบันไดขึ้น-ลงที่ใกล้ที่สุดค่ะ

IMG_5669_resize

ด้านซ้ายตรงไปสุขุมวิทตอนปลาย มุ่งหน้าไปสมุทรปราการ ผ่านอ่อนนุช แยกบางนา

IMG_5677_resize

ข้างทางมีร้านค้าและร้านอาหาร

IMG_5679_resize

ย่านนี้จะคึกคักหน่อยนะคะเพราะอยู่ใกล้ทองหล่อ จึงมีร้านค้าและร้านอาหารทั้งร้านอาหารในอาคาร ร้านอาหารรถเข็น

IMG_5680_resize

ไม่ไกลจะมีร้านสะดวกซื้อ อยู่ใกล้กับทางขึ้น-ลง BTS ทองหล่ออีกจุด

map4

สถานที่สำคัญ

  • BTS สถานีทองหล่อ : 1.3 กม.
  • MRT สถานีศูนย์ประชุมแห่งชาติสิริกิติ์ : 2.2 กม.
  • Lotus พระราม 4 : 700 ม.
  • BigC พระราม 4 : 700 ม.
  • K Village : 850 ม.
  • สวนเพลินมาร์เก็ต : 850 ม.
  • ตลาดพูนทรัพย์ : 1.4 กม.
  • ตลาดท่าเรือคลองเตย : 1.6 กม.
  • Gateway เอกมัย : 1.7 กม.
  • Major Cineplex เอกมัย : 2.1 กม.
  • Miracle Mall : 2.1 กม.
  • Top Market ทองหล่อ : 2.4 กม.
  • EmQuartier : 2.7 กม.
  • Emporium : 2.7 กม.
  • BigC เอกมัย : 2.7 กม.
  • ตลาดพระโขนง : 3.1 กม.
  • ตลาดอ่อนนุช : 3.2 กม.
  • BigC อ่อนนุช : 3.3 กม.
  • Terminal 21 : 3.5 กม.
  • Lotus อ่อนนุช : 3.5 กม.
  • โรบินสัน สุขุมวิท : 3.6 กม.
  • Korean Town : 3.7 กม.
  • Central บางนา : 12.7 กม.
  • Ikea บางนา : 17.6 กม.
  • Mega บางนา : 17.6 กม.
  • ม.กรุงเทพ : 1.2 กม.
  • รร.สายน้ำผึ้ง : 2.0 กม.
  • รร.นานาชาติเอกมัย : 3.7 กม.
  • รร.สาธิต มศว : 4.1 กม.
  • รร.วัฒนาวิทยาลัย : 4.2 กม.
  • มหาวิทยาลัยศรีนครินทร์วิโรฒ : 4.3 กม.
  • รพ.เทพธารินทร์ : 400 ม.
  • รพ.ท่าเรือ : 1.3 กม.
  • รพ.กล้วยน้ำไท : 1.6 กม.
  • รพ.สุขุมวิท : 2.7 กม.
  • รพ.สมิติเวช : 3.6 กม.
  • ไปรษณีย์กล้วยน้ำไท : 1.1 กม.
  • ศูนย์ประชุมแห่งชาติสิริกิติ์ : 2.2 กม.
  • โรงงานยาสูบ : 2.4 กม.
  • สวนเบญจกิติ : 2.5 กม.

โครงการ

oka_1_resize

Master Plan โครงการ จะเห็นว่าทางเข้าอาคารอยู่ติดกับถนนพระราม 4 แต่ตัวอาคารจะอยู่ลึกเข้าไปไม่ติดกับถนนใหญ่นะคะ ภายในมีพื้นที่สีเขียวโดยรอบโครงการ ชั้นนี้จะเป็นส่วนของ Lobby และพื้นที่ส่วนกลางต่างๆ

oka_3_resize

ผังอาคารชั้น 8 จะเป็นชั้นพักอาศัยและพื้นที่ส่วนกลาง สำหรับชั้น 2-7 จะเป็นชั้นจอดรถของโครงการค่ะ ผังนี้จะแสดงให้เห็นส่วนห้องพักอาศัยและส่วนกลางที่เป็นพื้นที่ในร่ม

oka_4_resize

ผังอาคารชั้น 8 จะเป็นชั้นพักอาศัยและพื้นที่ส่วนกลาง ผังนี้จะแสดงให้เห็นทั้งห้องพัก(แต่ไม่ลงรายละเอียดมากนัก) และพื้นที่ส่วนกลางที่เป็นพื้นที่กลางแจ้ง โดยจะมีสระว่ายน้ำพร้อมจากุซซี่ สระพักผ่อนและสระเด็ก, สระน้ำอุ่น, พื้นที่สันทนาการสำหรับเด็ก, ห้องออกกำลังกาย พร้อมอุปกรณ์, ห้องอบไอน้ำแยกชาย/หญิง, ห้องซักรีด

oka_5_resize

 

ผังอาคารชั้น 9 มีบางส่วนเป็นห้องพักอาศัยและโถงสูงของห้องพื้นที่ส่วนกลางที่อยู่ชั้น 8

oka_2_resize

ผังอาคารชั้น 10 ชั้นนี้จะเป็นชั้นพักอาศัยทั้งหมด โดยตั้งแต่ชั้น 10 – 21 จะเป็นชั้นพักอาศัยทั้งหมดอาจมีแตกต่างในการจัดตำแหน่งของห้องบ้าง คือบางชั้นจะมีห้องแบบ 2 ห้องนอนเพิ่มขึ้น หรือบางชั้นก็มีการสลับห้องที่มี Bay Window สลับตำแหน่งกันไป

oka_8_resize

ผังอาคารชั้น 22 เป็นชั้นพักอาศัยและมีพื้นที่ส่วนกลางที่เป็นสวนเล็กๆ

oka_7_resize

ผังอาคารชั้น 23 เป็นชั้นพักอาศัย จะสังเกตเห็นว่าอาคารมีขนาดสั้นลงโดยถ้าเทียบกับชั้น 22 คือตัดส่วนที่เป็นตำแหน่งสวนออกไปนั่นเองค่ะ ทำให้ตั้งแต่ชั้นนี้เป็นต้นไปจะมีห้องพักอาศัยยูนิตน้อยกว่าชั้นก่อนหน้านี้

oka_9_resize

ผังอาคารชั้น 47 เป็นชั้นพักอาศัยและพื้นที่ส่วนกลาง

oka_6_resize

ผังอาคารชั้นดาดฟ้าเป็นชั้นของพื้นที่ส่วนกลางที่เป็นพื้นที่สวนทั้งหมด ทำให้สามารถขึ้นมารับวิวตอนเย็นๆ นั่งเล่นมองวิวเมืองได้บรรยากาศสบายๆ


ภาพจำลองบรรยากาศ

OKA HAUS Sukhumvit 36

ภาพจำลองบรรยากาศตัวโครงการ Oka Haus สุขุมวิท 36 ทางเข้าด้านหน้าที่เห็นจะเป็นทางเข้าที่อยู่ติดกับถนนพระราม 4 ค่ะ

OKA HAUS Sukhumvit 36 -1

ภาพจำลองบรรยากาศตัวอาคาร Oka Haus สุขุมวิท 36

Co-Playground

ภาพจำลองบรรยากาศ Co-Playground

Lobby

ภาพจำลองบรรยากาศ Lobby

Pool

ภาพจำลองบรรยากาศ Leiaure Pool

OKA HAUS Sukhumvit 36 -4

ภาพจำลองบรรยากาศ Leiaure Pool

OKA HAUS Sukhumvit 36 -2

ภาพจำลองบรรยากาศ Co-Kitchen

OKA HAUS Sukhumvit 36 -7

ภาพจำลองบรรยากาศ Sky Lounge

OKA HAUS Sukhumvit 36 -8

ภาพจำลองบรรยากาศ Sky Lounge

OKA HAUS Sukhumvit 36 -5

ภาพจำลองบรรยากาศ Rooftop-Theater

OKA HAUS Sukhumvit 36 -6

ภาพจำลองบรรยากาศ Sky Garden

oka

ภาพจำลองบรรยากาศภายนอกอาคาร ที่จะให้ห้องห้องที่มี Bay Window ซึ่งเป็นส่วนที่เปิดมุมมองในห้องให้ได้วิวกว้างขึ้น

Oka-Haus

โดยทุกห้องพักอาศัยจะได้รับความสะดวกด้วยเทคโนโลยีต่างๆที่โครงการมีห้องมาพร้อมกับห้องพัก โดยจะแบ่งเป็น

  • Smart Access คือ ทางโครงการจะมี VDO Door Phone ตรง Lobby ซึ่งสะดวกต่อลูกบ้านเพราะเมื่อมีแขกมา ก็สามารถติดต่อผ่าน VDO Door Phone กับ Touch Pad ที่โครงการมีให้ จึงไม่จำเป็นต้องลงไปเปิดประตูเพื่อพาแขกเข้าบ้านค่ะ
  • Smart Unit คือ โครงการมี Home Automatic ที่สามารถสั่งงานผ่านแอพพลิเคชั่นในมือถือหรือ Touch Pad ที่ทางโครงการมีให้ สะดวกต่อการควบคุมและเช็คเครื่องใช้ไฟฟ้าถ้าไม่อยู่บ้าน อีกทั้งยังเชื่อมต่อกับนิติบุคคลเพื่อเช็คของในกล่องจดหมายได้
  • Smart Facilities คือ สามารถจองพื้นที่ส่วนกลางให้เป็นพื้นที่ส่วนตัว, เช็คกล่องจดหมายและการรับพัสดุได้ตลอด 24 ชั่วโมง ผ่านแอพพลิเคชั่น ซึ่งสามารถตั้ง QR Codeได้, จุดบริการชาร์จแบตเตอรี่สำหรับรถยนต์พลังงานไฟฟ้า และการดูแลสวนผ่านมือถือ

แบบห้อง

โครงการมีห้องทั้งหมด 17 แบบ คือ

  • 1A 1 Bedroom ขนาดพื้นที่ใช้สอย 26.50 – 26.75 ตร.ม.
  • 1AM 1 Bedroom ขนาดพื้นที่ใช้สอย 26.50 – 26.75 ตร.ม.
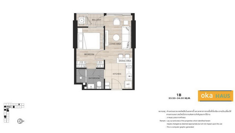
  • 1B 1 Bedroom ขนาดพื้นที่ใช้สอย 33.50 – 34.00 ตร.ม.
  • 1BM 1 Bedroom ขนาดพื้นที่ใช้สอย 33.50 – 34.00 ตร.ม.
  • 1B – BW 1 Bedroom ขนาดพื้นที่ใช้สอย 34.75 ตร.ม.
  • 1BM – BW 1 Bedroom ขนาดพื้นที่ใช้สอย 34.75 ตร.ม.
  • 1C 1 Bedroom ขนาดพื้นที่ใช้สอย 34.00 – 34.25 ตร.ม.
  • 1CM 1 Bedroom ขนาดพื้นที่ใช้สอย 33.75 ตร.ม.
  • 1D 1 Bedroom ขนาดพื้นที่ใช้สอย 34.25 – 34.75 ตร.ม.
  • 1DM 1 Bedroom ขนาดพื้นที่ใช้สอย 34.25 – 34.75 ตร.ม
  • 2A 2 Bedroom ขนาดพื้นที่ใช้สอย 40.50 – 41.00 ตร.ม.
  • 2AM 2 Bedroom ขนาดพื้นที่ใช้สอย 41.00 ตร.ม.
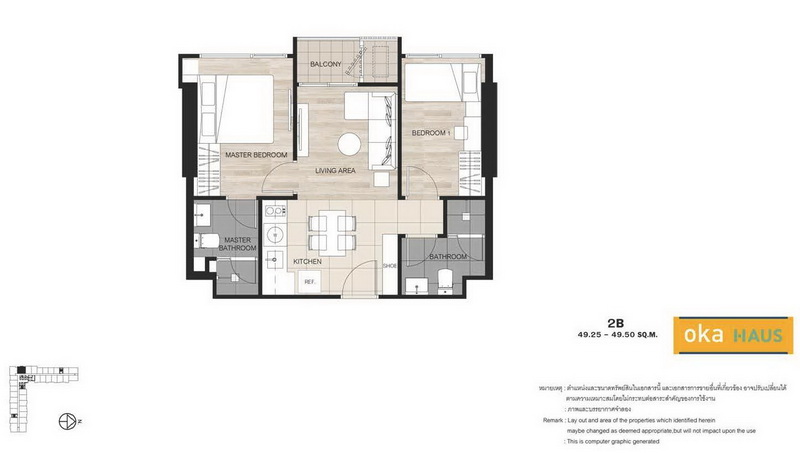
  • 2B 2 Bedroom ขนาดพื้นที่ใช้สอย 49.25 – 49.50 ตร.ม.
  • 2B-1 2 Bedroom ขนาดพื้นที่ใช้สอย 49.25 ตร.ม.
  • 2C 2 Bedroom ขนาดพื้นที่ใช้สอย 49.25 ตร.ม
  • 3C 3 Bedroom ขนาดพื้นที่ใช้สอย 86.25 ตร.ม.
  • 3AM 3 Bedroom ขนาดพื้นที่ใช้สอย 86.50 ตร.ม.

room oka_Page_01_resize

1A 1 Bedroom ขนาดพื้นที่ใช้สอย 26.50 – 26.75 ตร.ม.

room oka_Page_02_resize

1AM 1 Bedroom ขนาดพื้นที่ใช้สอย 26.50 – 26.75 ตร.ม.

room oka_Page_03_resize

1B 1 Bedroom ขนาดพื้นที่ใช้สอย 33.50 – 34.00 ตร.ม.

room oka_Page_04_resize

1BM 1 Bedroom ขนาดพื้นที่ใช้สอย 33.50 – 34.00 ตร.ม.

room oka_Page_05_resize

1B – BW 1 Bedroom ขนาดพื้นที่ใช้สอย 34.75 ตร.ม.

room oka_Page_06_resize

1BM – BW 1 Bedroom ขนาดพื้นที่ใช้สอย 34.75 ตร.ม.

room oka_Page_07_resize

1C 1 Bedroom ขนาดพื้นที่ใช้สอย 34.00 – 34.25 ตร.ม.

room oka_Page_08_resize

1CM 1 Bedroom ขนาดพื้นที่ใช้สอย 33.75 ตร.ม.

room oka_Page_09_resize

1D 1 Bedroom ขนาดพื้นที่ใช้สอย 34.25 – 34.75 ตร.ม.

room oka_Page_10_resize

1DM 1 Bedroom ขนาดพื้นที่ใช้สอย 34.25 – 34.75 ตร.ม.

room oka_Page_11_resize

2A 2 Bedroom ขนาดพื้นที่ใช้สอย 40.50 – 41.00 ตร.ม.

room oka_Page_12_resize

2AM 2 Bedroom ขนาดพื้นที่ใช้สอย 41.00 ตร.ม.

room oka_Page_13_resize

2B 2 Bedroom ขนาดพื้นที่ใช้สอย 49.25 – 49.50 ตร.ม.

room oka_Page_14_resize

2B-1 2 Bedroom ขนาดพื้นที่ใช้สอย 49.25 ตร.ม.

room oka_Page_15_resize

2C 2 Bedroom ขนาดพื้นที่ใช้สอย 49.25 ตร.ม.

room oka_Page_16_resize

3C 3 Bedroom ขนาดพื้นที่ใช้สอย 86.25 ตร.ม.

room oka_Page_17_resize

3AM 3 Bedroom ขนาดพื้นที่ใช้สอย 86.50 ตร.ม.


ห้องตัวอย่าง
โอกะ เฮ้าส์ สุขุมวิท 36 มีให้ชม 2 แบบด้วยกันคือ

  • 1D 1 Bedroom ขนาดพื้นที่ใช้สอย 34.25 – 34.75 ตร.ม.
  • 2B-1 2 Bedroom ขนาดพื้นที่ใช้สอย 49.25 ตร.ม.

room oka_Page_09_resize
1D 1 Bedroom ขนาดพื้นที่ใช้สอย 34.25 – 34.75 ตร.ม.พื้นที่ใช้สอยออกแบบและจัดวางภายในเป็นสัดส่วน เข้ามาในห้องส่วนแรกจะเป็นครัว ซึ่งอยู่ติดกับห้องนั่งเล่น โดยพื้นครัวและห้องนั่งเล่นจะแบ่งพื้นที่ด้วยพื้นที่ปูต่างชนิดกัน ติดกับประตูมีตู้รองเท้า ตู้เก็บของให้ สำหรับครัวก็เป็นครัวใหญ่ มีเคาน์เตอร์ตัว U และตู้เก็บของให้ทุกจุด ห้องนั่งเล่นแบ่งพื้นที่วางโต๊ะทานอาหารได้ อยู่ติดกับระเบียง โดยพื้นที่ส่วนนี้จะมีการ Built-in ตู้เก็บของให้หลายจุดทั้งตู้รองเท้า และตู้สำหรับวางเครื่องซักผ้า คือสามารถวางและเก็บของได้เป็นระเบียบเรียบร้อย ไม่จำเป็นต้องต่อเติมตู้เพิ่มเลยค่ะ

สำหรับห้องนอนจะมีพื้นที่กว้างมีมุมนั่งเล่นริมหน้าต่าง จะทำเป็นมุมโซฟาหรือวางโต๊ะทำงานก็สะดวก พื้นที่เพียงพอให้วางตู้เสื้อผ้าและโต๊ะเครื่องแป้ง มีห้องน้ำอยู่ในห้องนอน โดยห้องน้ำจะมีอ่างอาบน้ำ

* โครงการขายเป็น Fully Fitted คือมีชุดครัวให้ตามที่เห็นในห้องตัวอย่างยกเว้นของตกแต่ง,ตู้เก็บของตรงครัว,พร้อมทั้งเครื่องใช้ไฟฟ้าในครัวทั้งเตาและเครื่องดูดอากาศ, เครื่องปรับอากาศแบบฝังเพดานในห้องนั่งเล่น, เครื่องปรับอากาศแบบติดผนังในห้องนอน และ Digital door lock พร้อม Home Automatic ที่จะมี Touch Pad ให้ทุกห้องเพื่อสามารถควบคมการใช้งานได้สะดวกมายิ่งขึ้น

IMG_7769_resize

ประตูด้านหน้าเป็นประตูไม้ปิดผิวลามิเนตลายไม้และมีเส้นสายสีดำที่เป็นช่อง AIR VENTILATION SYSTEM ซึ่งเป็นช่องระบายอากาศสำหรับหมุนเวียนอากาศภายในห้องพัก

IMG_7595_resize

ทุกห้องจะมี Digital door lock ของ igloohome ให้ซึ่งสามารถเปิดห้องได้ด้วยกุญแจ, รหัสผ่าน และคีย์การ์ด โดยสามารถเชื่อมต่อกับ Touch Pad ที่โครงการมีให้

IMG_7601_resize

พื้นห้องจะสูงกว่าพื้นโถงทางเดินเล็กน้อย พื้นส่วนแรกที่เข้าไปเป็นพื้นแกรนิตโต้ขนาด 60×60 ซม. ซึ่งเป็นพื้นของห้องครัว

IMG_7602_resize

เมื่อเปิดประตูเข้ามาส่วนแรกที่เจอคือห้องครัว จากหน้าประตูจะเห็นไปจนถึงห้องนั่งเล่นที่อยู่ติดกัน ด้านขวามือก็จะเป็นห้องนอน มุมนี้ดูโปร่งและสว่างเพราะประตูระเบียงที่เป็นกระจกบานใหญ่ ทำให้มีแสงธรรมชาติส่องเข้ามาในห้องอีกทั้งฝ้าเพดานยังสูง 2.7 ม.

IMG_7608_resize

ด้านขวามือคือพื้นที่เคาน์เตอร์ครัว มุมนี้ทางโครงการจะมีให้ตามนี้ค่ะ ยกเว้นตู้เย็น, ไมโครเวฟและของตกแต่ง เคาน์เตอร์ครัวจะเป็นแนวยาวตามผนัง ด้านข้างมีพื้นที่สำหรับวางตู้เย็น

IMG_7614_resize

พื้นที่เคาน์เตอร์ครัวจะมีอ่างล้างจาน, เตาไฟฟ้าและที่ดูดควันของ Teka ให้ มีพื้นที่ให้เตรียมอาหารได้อีกเล็กน้อยเมื่อวางเตาและอ่างล้างจานไปแล้ว สำหรับ Top เคาน์เตอร์จะเป็นกระเบื้อง Porcelain เหนือเคาน์เตอร์มีกระจก Backsplash มาให้ ทำให้ง่ายต่อการทำความสะอาด

1

ด้านล่างจะมีตู้เก็บของและลิ้นชักให้ตามนี้ สามารถเก็บของได้เยอะ แบ่งเป็นสัดส่วน มีช่องสำหรับวางไมโครเวฟ โดยหน้าบานจะปิดด้วยเมลามีนลายผ้า

2

ด้านบนก็ยังมีตู้เก็บของและชั้นวางของให้ค่ะ สำหรับด้านบนหน้าบานจะปิดด้วย Acrylic High-Gloss ซึ่งจะเห็นว่าหน้าบานนี้ผิวจะมันวาวไม่เหมือนตู้ด้านล่างที่เป็นลายผ้า

IMG_7625_resize

ตรงข้ามเป็นมุมทานอาหารและตู้รองเท้า

3

มุมนี้สามารถวางตู้รองเท้า, ตู้เก็บของขนาดไม่ใหญ่นักแต่เน้นความสูงได้ ตรงนี้ทางโครงการไม่ได้มีมาให้นะคะ แต่เอาไปเป็นไอเดียได้ว่าเมื่อวางตู้และแบ่งชั้นต่างๆไปแล้ว ก็สามารถเก็บของได้เยอะเช่นกัน

IMG_7626_resize

ติดกันนั้นเป็นโต๊ะทานอาหารสำหรับ 2 ที่นั่ง พื้นที่ใช้งานได้สะดวก ขนาดโต๊ะพอเหมาะสำหรับ 2 คน

IMG_7629_resize

หันกลับไปตรงประตูห้อง จะเห็นว่าระยะห่างระหว่างเคาน์เตอร์ครัวและโต๊ะทานอาหารห่างกันพอสมควร ดังนั้นสามารถใช้งานได้สะดวก ถ้ามีคนกำลังทำกับข้าวอยู่ อีกคนก็สามารถเดินผ่านด้านหลังได้สะดวก

เพดานส่วนห้องครัวจะเตี้ยกว่าห้องนั่งเล่นเล็กน้อย โดยสูง 2.4 ม.เนื่องจากด้านบนจะเป็นแอร์แบบฝังฝ้า

IMG_7631_resize

ติดกับพื้นที่ครัวจะเป็นห้องนั่งเล่นค่ะ พื้นห้องนั่งเล่นเป็นลามิเนตลายไม้สีน้ำตาลอ่อน มุมนั่งเล่นจะดูสว่างและโปร่งกว่าเพราะฝ้าเพดานที่สูง 2.7 ม. อีกทั้งยังอยู่ติดกับระเบียงห้องที่มีประตูระเบียงเป็นประตูกระจก

IMG_7632_resize

พื้นที่ระหว่างห้องครัวและห้องนั่งเล่นจะมีพื้นที่ว่างตรงนี้ ถ้าจะวางโซฟาใหญ่กว่าห้องตัวอย่างก็ทำได้ หรือจะทำเป็นมุมชั้นวางของแบบนี้ก็เพิ่มพื้นที่การใช้งานในห้องได้นะคะ

IMG_7639_resize

มุมนี้วางโซฟาสำหรับ 2 ที่นั่งได้ จะเห็นพื้นที่ว่างด้านข้าง สามารถวางตัวใหญ่กว่านี้เป็นแบบ 3 ที่นั่งก็ได้เช่นกันค่ะ

IMG_7640_resize

ตรงข้ามเป็นมุมวางทีวี จะติดตั้งทีวีติดผนัง หรือมีชั้นวางทีวีก็จะสะดวกกว่าเพราะอาจต้องวางเครื่องรับสัญญาณต่างๆ

IMG_7635_resize

ด้านข้างทีวีจะเห็นว่ามี Touch Pad ให้นะคะซึ่งจะเป็นตัวที่เชื่อมต่อกับ Home Automatic ซึ่งจะสามารถควบคุมเครื่องใช้ไฟฟ้าอย่างเครื่องปรับอากาศ หรือไฟตามห้องต่างๆผ่านแอพพลิเคชั่นในมือถือได้

IMG_7593_resize

โดยตัว Touch Pad นั้นจะเชื่อมต่อกับ VDO Door Phone ที่ Lobby ด้วยค่ะ ซึ่งจะสะดวกสำหรับลูกบ้านเมื่อมีแขกหรือพนักงานมาส่งของ คือสามารถเปิดประตูผ่าน Touch Pad ได้เลยโดยที่เราจะเห็นหน้าแขกที่มาผ่านกล้อง และสามารถส่งโค้ดเพื่อให้ผ่านประตู ซึ่งโค้ดตัวนี้สามารถตั้งได้ว่าจะใช้ได้กี่นาที เพื่อความปลอดภัยเช่นถ้าแขกกลับเข้ามาก็ไม่สามารถใช้โค้ดเดิมเพื่อผ่านประตูได้

IMG_7644_resize

ระยะห่างจากโซฟาถึงผนังอีกด้านมีพอสมควร สามารถวางโต๊ะกาแฟด้านหน้าได้ ติดกันนั้นเป็นระเบียงห้องโดยประตูระเบียงเป็นประตูกระจกบานเลื่อนแบบ 3 ตอน กรอบอลูมิเนียมสีดำ กระจกตัดแสง

IMG_7648_resize

พื้นระเบียงจะปูด้วยกระเบื้องเซรามิคขนาด 30×30 ซม.

IMG_7651_resize

ด้านนอกเป็นระเบียงกว้างสามารถใช้งานได้สะดวก แบ่งพื้นที่สำหรับวางคอมเพลสเซอร์แอร์ด้วยการกั้นระแนงเหล็ก ด้านบนเป็นคอมเพลสเซอร์แอร์ ด้านล่างเป็นที่วางเครื่องซักผ้า มีประตูระแนงเหล็กปิดบังสายตาเพื่อความสวยงาม

IMG_7653_resize

ต่อไปมาดูอีกด้านของห้องกันค่ะ ระหว่างทีวีและโต๊ะทานอาหารจะเป็นประตูห้องนอน พื้นเป็นลามิเนตแบบเดียวกันปูต่อเนื่องเข้าไป

IMG_7658_resize

พื้นที่ภายในห้องนอนจะกว้างขวางและดูสว่าง กว้างและโปร่ง มีพื้นที่วางเฟอร์นิเจอร์ได้ครบ ในห้องนอนจะมีห้องน้ำในตัว

IMG_7659_resize

มุมนี้เป็นมุมพักผ่อนวางเตียงและมีมุมนั่งเล่น ตรงนี้จะดูสว่างหน่อยเพราะผนังด้านหนึ่งเป็นหน้าต่างกระจกบานใหญ่

IMG_7660_resize

เตียงสามารถวางขนาด 5 ฟุตได้สบายๆ พื้นที่ข้างเตียงและปลายเตียงเดินผ่านและใช้งานได้สะดวก

IMG_7661_resize

หัวเตียงวางโต๊ะทำงานหรือโต๊ะเครื่องแป้งเล็กๆได้

IMG_7664_resize

อีกด้านจะเป็นมุมนั่งเล่นริมหน้าต่าง มุมนี้วางโซฟาตัวยาวไว้นั่งอ่านหนังสือ นั่งพักผ่อน หรือจะวางเป็นโต๊ะทำงานก็สามารถทำได้นะคะ

IMG_7666_resize

อีกด้านของห้องจะเป็นมุมห้องน้ำและมุมแต่งตัว สำหรับในห้องนอนเครื่องปรับอากาศที่ได้จะเป็นแบบติดผนัง

IMG_7669_resize

มุมนี้เป็นมุมวางตู้เสื้อผ้าและโต๊ะเครื่องแป้ง ซึ่งโต๊ะเครื่องแป้งสามารถวางตัวใหญ่กว่านี้ได้ค่ะ ด้านข้างตู้เสื้อผ้าทำเป็นชั้นวางของ ก็สามารถเพิ่มพื้นที่วางเครื่องสำอางค์ หรือของใช้ต่างๆตรงนี้ได้

4

ตู้เสื้อผ้าทำหน้าบานเป็นกระจกเงา ก็จะสะดวกในการแต่งตัวมากยิ่งขึ้น ตรงนี้ทางโครงการไม่ได้มีให้นะคะ

IMG_7674_resize

ติดกันนั้นเป็นห้องน้ำ โดยในห้องน้ำทางโครงการจะมีลำโพง Bluetooth มาให้ ดังนั้นสามารถเชื่อมต่อกับมือถือเปิดฟังเพลง ฟังข่าวในห้องน้ำขณะใช้งานได้นะคะ

IMG_7677_resize

พื้นห้องน้ำลดระดับจากพื้นห้องนอนลงไปเล็กน้อย พื้นปูด้วยแกรนิตโต้ขนาด 60×60 ซม.

IMG_7678_resize

ภายในจะกั้นโซนแห้งและเปียกได้ในระดับหนึ่ง เพราะมีอ่างอาบน้ำและมีฉากกั้นเพียงครึ่งเดียว

IMG_7679_resize

เข้ามาในห้องด้านซ้ายมือเป็นตำแหน่งของโถสุขภัณฑ์ ซึ่งเป็น Washlet ของ Cotto มีปุ่มฟังก์ชั่นการใช้งานด้านข้าง ดังนั้นตรงนี้จะไม่มีสายฉีดชำระให้นะคะ

IMG_7681_resize

ด้านบนมีช่องวางของ สามารถวางหนังสือหรือกระถางต้นไม้เพื่อให้ห้องน้ำดูสดชื่น อีกด้านเป็นที่แขวนผ้าขนหนู

IMG_7682_resize

เมื่อเข้ามาในห้องน้ำด้านขวามือจะเป็นอ่างล้างหน้า ตรงนี้ทางโครงการจะมีตู้เก็บของด้านล่างให้ตามนี้ เหนืออ่างเป็นกระจกเงา ซึ่งติดกับกระจกเงาจะมีปลั๊กไฟให้

IMG_7684_resize

อ่างล้างหน้าของ Cotto พื้นที่ด้านบนวางของได้เล็กน้อย ส่วนด้านล่างอ่างจะมีตู้เก็บของและลิ้นชักเก็บของให้ตามนี้ สามารถเก็บของได้พอสมควรเลยค่ะ

IMG_7685_resize

อ่างอาบน้ำในห้องนี้จะมีฉากกั้นให้ครึ่งนึงนะคะ ดังนั้นก็กันน้ำกระเด็นได้ในระดับหนึ่ง

IMG_7688_resize

ฝักบัวและ Rain Shower พร้อมชั้นวางของด้านข้างค่ะ

room oka_Page_14_resize

2B-1 2 Bedroom ขนาดพื้นที่ใช้สอย 49.25 ตร.ม. พื้นที่ใช้สอยแบ่งเป็นสัดส่วนโดยห้องจะแบ่งเป็น 3 ฝั่งคือตรงกลางจะเป็นพื้นที่ส่วนกลางของห้องนั่นคือห้องครัวและห้องนั่งเล่น สำหรับห้องนอนจะขนาบทั้งสองฝั่งของห้องนั่งเล่น ด้านหนึ่งจะเป็นพื้นที่ของห้องนอนใหญ่ที่มีห้องน้ำในตัว อีกด้านจะเป็นห้องนอน 2 และห้องน้ำที่สามารถเข้าได้จากห้องครัว ดังนั้นจะสะดวกเวลามีแขกมาเยี่ยมบ้าน เพราะแขกจะเข้าห้องน้ำได้เลย ทำให้ห้องนอนมีความเป็นส่วนตัว

* โครงการขายเป็น Fully Fitted คือมีชุดครัวให้ตามที่เห็นในห้องตัวอย่างยกเว้นของตกแต่ง,ตู้เก็บของตรงครัว,พร้อมทั้งเครื่องใช้ไฟฟ้าในครัวทั้งเตาและเครื่องดูดอากาศ, เครื่องปรับอากาศแบบฝังเพดานในห้องนั่งเล่น, เครื่องปรับอากาศแบบติดผนังในห้องนอน และ Digital door lock พร้อม Home Automatic ที่จะมี Touch Pad ให้ทุกห้องเพื่อสามารถควบคมการใช้งานได้สะดวกมายิ่งขึ้น

IMG_7769_resize

ประตูด้านหน้าเป็นประตูไม้ปิดผิวลามิเนตลายไม้และมีเส้นสายสีดำที่เป็นช่อง AIR VENTILATION SYSTEM ซึ่งเป็นช่องระบายอากาศสำหรับหมุนเวียนอากาศภายในห้องพัก ทุกห้องจะมี Digital door lock ของ igloohome ให้ซึ่งสามารถเปิดห้องได้ด้วยกุญแจ, รหัสผ่าน และคีย์การ์ด โดยสามารถเชื่อมต่อกับ Touch Pad ที่โครงการมีให้

IMG_7593_resize

โดยตัว Touch Pad นั้นจะเชื่อมต่อกับ VDO Door Phone ที่ Lobby ด้วยค่ะ ซึ่งจะสะดวกสำหรับลูกบ้านเมื่อมีแขกหรือพนักงานมาส่งของ คือสามารถเปิดประตูผ่าน Touch Pad ได้เลยโดยที่เราจะเห็นหน้าแขกที่มาผ่านกล้อง และสามารถส่งโค้ดเพื่อให้ผ่านประตู ซึ่งโค้ดตัวนี้สามารถตั้งได้ว่าจะใช้ได้กี่นาที เพื่อความปลอดภัยเช่นถ้าแขกกลับเข้ามาก็ไม่สามารถใช้โค้ดเดิมเพื่อผ่านประตูได้

IMG_7691_resize

เมื่อเปิดเข้ามาด้านในพื้นที่ใช้สอยจะแบ่งเป็นสัดส่วน ตรงกลางคือห้องครัวและห้องนั่งเล่น พื้นที่ฝั่งขวาของห้องคือห้องนอนเล็กและห้องน้ำ ส่วนพื้นที่ฝั่งซ้ายจะเป็นห้องนอนใหญ่ที่มีห้องน้ำในตัว ห้องดูโปร่งและกว้างเนื่องจากฝ้าเพดานที่สูง 2.7 ม.ค่ะ

IMG_7698_resize

พื้นที่ส่วนด้านหน้าห้องจะเป็นห้องครัวและมุมทานอาหาร พื้นที่ส่วนนี้พื้นจะเป็นพื้นแกรนิตโต้ขนาด 60×60 ซม. ฝ้าเพดานสูง 2.4 เนื่องจากห้องครัวและห้องนั่งเล่นเครื่องปรับอากาศจะเป็นแบบฝังฝ้า ซึ่งอยู่เหนือห้องครัวนี้เองค่ะ

IMG_7699_resize

ติดกับประตูฝั่งนี้จะมีพื้นที่ทำชั้นวางของหรือตู้เก็บของตู้ใหญ่แบบนี้ได้ ถ้าไม่อยากให้ห้องดูทึบหรือแคบลง อาจแบ่งทำเป็นตู้เก็บของ ตู้เก็บรองเท้าและมีชั้นวางของแบบโปร่ง ก็จะทำให้ห้องดูไม่เล็กลง

IMG_7703_resize

ด้านนี้เป็นมุมครัวและโต๊ะทานอาหารค่ะ สำหรับห้องตัวอย่างได้ทำเป็นมุมเคาน์เตอร์เล็กอีกมุม แต่ห้องจริงเราสามารถวางโต๊ะทานอาหารตรงนี้ได้ มุมนี้ทางโครงการจะมีเคาน์เตอร์ครัวให้ตรงด้านหลังนะคะที่เป็นเคาน์เตอร์สีเข้ม ส่วนเคาน์เตอร์สีส้มนี้จะไม่ได้มีให้

IMG_7705_resize

วางโต๊ะสำหรับ 2-4 ที่นั่งได้ หรือจะทำเป็นเคาน์เตอร์ครัวแบบนี้ก็ได้เช่นกัน ทำเป็นเคาน์เตอร์บาร์ มีช่องและตู้เก็บของ

IMG_7707_resize

มุมนี้เป็นพื้นที่วางตู้เย็น สามารถวางตู้เย็นใบใหญ่แบบ 2 ตอนได้นะคะ

IMG_7708_resize

พื้นที่เคาน์เตอร์ครัวจะมีอ่างล้างจาน, เตาไฟฟ้าและที่ดูดควันของ Teka ให้ มีพื้นที่ให้เตรียมอาหารได้อีกพอสมควร สำหรับ Top เคาน์เตอร์จะเป็นกระเบื้อง Porcelain เหนือเคาน์เตอร์มีกระจก Backsplash มาให้ ทำให้ง่ายต่อการทำความสะอาด

5

ด้านล่างจะมีตู้เก็บของและลิ้นชักให้ตามนี้ สามารถเก็บของได้เยอะ แบ่งเป็นสัดส่วน มีช่องสำหรับวางไมโครเวฟ โดยหน้าบานจะปิดด้วย Acrylic High-Gloss

6

ด้านบนก็ยังมีตู้เก็บของและชั้นวางของให้ค่ะ สำหรับด้านบนหน้าบานจะปิดด้วยกระจก Backsplash

IMG_7716_resize

ติดกันนั้นเป็นห้องนั่งเล่น พื้นห้องนั่งเล่นเป็นลามิเนตลายไม้สีน้ำตาลอ่อน มุมนั่งเล่นจะดูสว่างและโปร่งกว่าเพราะฝ้าเพดานที่สูง 2.7 ม. อีกทั้งยังอยู่ติดกับระเบียงห้องที่มีประตูระเบียงเป็นประตูกระจก ด้านซ้ายคือห้องนอนใหญ่ ด้านขวาคือห้องนอน 2 ซึ่งห้องจริงที่จะได้เป็นผนังทึบ ไม่ได้เป็นกล่องกระจกตกแต่งให้แบบนี้นะคะ

IMG_7718_resize

ห้องนั่งเล่นอยู่ติดกับระเบียง ซึ่งมีแสงธรรมชาติส่องเข้ามา

IMG_7720_resize

มุมนี้สามารถวางโซฟาสำหรับ 2-3 ที่นั่งได้

IMG_7721_resize

ตรงข้ามเป็นมุมวางทีวี จะติดตั้งทีวีติดผนัง หรือมีชั้นวางทีวีก็จะสะดวกกว่าเพราะอาจต้องวางเครื่องรับสัญญาณต่างๆ ตรงกลางสามารถวางโต๊ะกาแฟเล็กๆแบบนี้ได้ค่ะ

IMG_7723_resize

ติดกันนั้นเป็นระเบียงห้องโดยประตูระเบียงเป็นประตูกระจกบานเลื่อนแบบ 3 ตอน กรอบอลูมิเนียมสีดำ กระจกตัดแสง

IMG_7724_resize

พื้นระเบียงจะปูด้วยกระเบื้องเซรามิคขนาด 30×30 ซม.

IMG_7725_resize

ด้านนอกเป็นระเบียงกว้างสามารถใช้งานได้สะดวก แบ่งพื้นที่สำหรับวางคอมเพลสเซอร์แอร์ด้วยการกั้นระแนงเหล็ก ด้านบนเป็นคอมเพลสเซอร์แอร์ ด้านล่างเป็นที่วางเครื่องซักผ้า มีประตูระแนงเหล็กปิดบังสายตาเพื่อความสวยงาม

IMG_7728_resize

ด้านนี้จะเป็นห้องนอน 2 และห้องน้ำ ห้องจริงที่ได้จะเป็นผนังทึบนะคะ ไม่ได้เป็นกล่องกระจกแบบนี้ โดยห้องตัวอย่างทำห้องนอน 2 ให้เป็นห้องทานอาหาร ซึ่งอาจเป็นไอเดียสำหรับคนที่อาจมีแขกมาบ้านบ่อยๆ ก็ทำให้เป็นห้องทานอาหารใหญ่ๆได้

IMG_7730_resize

ภายในห้องเป็นห้องทานอาหาร สามารถวางโต๊ะสำหรับ 4-6 ที่นั่งได้สบายๆ ห้องจริงที่ได้สามารถวางเตียงขนาด 3.5 ฟุต, ตู้เสื้อผ้าและโต๊ะทำงานเล็กๆได้

IMG_7732_resize

จะเห็นว่าสามารถวางโต๊ะใหญ่ได้เลย เหมาะสำหรับคนที่อาจมีแขกมาทานข้าวที่บ้านบ่อยๆ

IMG_7733_resize

ผนังด้านนี้เป็นหน้าต่างกระจกบานใหญ่เต็มพื้นที่ผนัง ทำให้ห้องนี้สว่างเพราะได้รับแสงธรรมชาติ

IMG_7734_resize

อีกด้านของห้องจะเป็นห้องน้ำ ห้องจริงที่ได้ห้องน้ำสามารถเข้าจากห้องนั่งเล่นได้ค่ะ ตรงนี้จริงๆจะมีผนังกั้นและมีประตู

IMG_7735_resize

พื้นห้องน้ำลดระดับจากพื้นห้องนอนลงไปเล็กน้อย พื้นปูด้วยแกรนิตโต้ขนาด 60×60 ซม.

IMG_7736_resize

ภายในสว่างและดูสะอาดตาเพราะห้องเป็นโทนสว่าง มีลายกระเบื้องตกแต่งบ้างบางจุด

IMG_7737_resize

โถสุขภัณฑ์และอ่างล้างหน้าของ Cotto ตรงนี้ทางโครงการจะมีตู้เก็บของด้านล่างให้ตามนี้

IMG_7739_resize

ด้านบนเป็นกระจกเงาและปลั๊กไฟ

IMG_7740_resize

ติดกันนั้นเป็นส่วนอาบน้ำ ห้องนี้จะแยกโซนแห้งและเปียกชัดเจนเพราะมีฉากกั้นอาบน้ำให้ค่ะ

IMG_7741_resize

พื้นระดับเดียวกันแต่มีขอบปูนกั้นขึ้นมา ทำให้ไม่มีน้ำไหลออกมาเลอะเทอะนอกโซนเปียก

IMG_7742_resize

ฝักบัวและ Rain Shower ที่ทางโครงการมีให้

IMG_7743_resize

ห้องสุดท้ายที่จะพาไปชมคือห้องนอนใหญ่หรือ Master Bedroom พื้นห้องเป็นลามิเนตแบบเดียวกับห้องนั่งเล่นปูต่อเนื่องเข้าไปเลย

IMG_7745_resize

พื้นที่ภายในห้องนอนจะกว้างขวางและดูสว่าง กว้างและโปร่ง มีพื้นที่วางเฟอร์นิเจอร์ได้ครบ ในห้องนอนจะมีห้องน้ำในตัว

IMG_7746_resize

เตียงสามารถวางขนาด 5 ฟุตได้สบายๆ พื้นที่ข้างเตียงและปลายเตียงเดินผ่านและใช้งานได้สะดวก แต่เนื่องจากห้องตัวอย่างทำฐานเตียงขนาดใหญ่ ดังนั้นจึงทำให้พื้นที่ดูแคบลง

IMG_7748_resize

ข้างเตียงมุมนี้เป็นหน้าต่างกระจกแบบเข้ามุม ทำให้ห้องดูกว้างค่ะ

IMG_7749_resize

ปลายเตียงติดตั้งทีวีสำหรับดูในห้องนอนได้ เป็นทีวีแบบติดผนัง

IMG_7750_resize

ข้างเตียงวางตู้เสื้อผ้าใบใหญ่แบบนี้ อาจทำเป็นแบบม่านโปร่งหรือทำเป็นตู้บานปิดแล้วหน้าบานเป็นกระจกก็จะสะดวกต่อการแต่งตัว หรือแต่งหน้านะคะ

IMG_7754_resize

ด้านนี้จะเป็นห้องน้ำที่อยู่ในห้องนอน โดยในห้องน้ำทางโครงการจะมีลำโพง Bluetooth มาให้ ดังนั้นสามารถเชื่อมต่อกับมือถือเปิดฟังเพลง ฟังข่าวในห้องน้ำขณะใช้งานได้นะคะ

IMG_7758_resize

พื้นห้องน้ำลดระดับจากพื้นห้องนอนลงไปเล็กน้อย พื้นปูด้วยแกรนิตโต้ขนาด 60×60 ซม.

IMG_7759_resize

ภายในจะกั้นโซนแห้งและเปียกได้ในระดับหนึ่ง เพราะมีอ่างอาบน้ำและมีฉากกั้นเพียงครึ่งเดียว ห้องจะดูสว่างเนื่องจากเป็นห้องมุม ทำให้มีหน้าต่างเล็กๆในห้องน้ำที่แสงธรรมชาติสามารถเข้ามาได้

IMG_7760_resize

เมื่อเข้ามาในห้องน้ำด้านขวามือจะเป็นอ่างล้างหน้า ตรงนี้ทางโครงการจะมีตู้เก็บของด้านล่างให้ตามนี้ เหนืออ่างเป็นกระจกเงา ซึ่งติดกับกระจกเงาจะมีปลั๊กไฟให้ อ่างล้างหน้าของ Cotto พื้นที่ด้านบนวางของได้เล็กน้อย

IMG_7761_resize

ติดกันนั้นเป็นโถสุขภัณฑ์ ซึ่งเป็น Washlet ของ Cotto มีปุ่มฟังก์ชั่นการใช้งานด้านข้าง ดังนั้นตรงนี้จะไม่มีสายฉีดชำระให้นะคะ

IMG_7762_resize

ด้านบนจะมีผนังเตี้ยทำให้วางของตรงนี้ได้อีกพอสมควร และมีหน้าต่างกระจกบานกระทุ้งบานเล็ก ทำให้มีแสงเข้ามาในห้อง จึงไม่จำเป็นต้องเปิดไฟเพื่อใช้งานในตอนกลางวัน อีกทั้งยังช่วยถ่ายเทอากาศได้ดีด้วยค่ะ

IMG_7764_resize

อ่างอาบน้ำในห้องนี้จะมีฉากกั้นให้ครึ่งนึงนะคะ ดังนั้นก็กันน้ำกระเด็นได้ในระดับหนึ่ง

IMG_7765_resize

พื้นที่อ่างอาบน้ำจะมีพื้นที่สำหรับวางของ อาจวางเป็นของตกแต่งหรืออุปกรณ์ในห้องน้ำได้

IMG_7766_resize

ฝักบัวและ Rain Shower พร้อมชั้นวางของด้านข้างค่ะ


ราคา (พ.ย.60)

  • 1A 1 Bedroom ขนาด 26.50 ตร.ม. ราคาเริ่มต้นอยู่ที่ 3.85 ล้านบาท หรือ 145,283 บาท/ตร.ม.
  • 1AM 1 Bedroom ขนาด 26.50 ตร.ม. ราคาเริ่มต้นอยู่ที่ 3.85 ล้านบาท หรือ 145,283 บาท/ตร.ม.
  • 1B 1 Bedroom ขนาด 33.50 ตร.ม. ราคาเริ่มต้นอยู่ที่ 4.5 ล้านบาท หรือ 134,328 บาท/ตร.ม.
  • 1BM 1 Bedroom ขนาด 33.50 ตร.ม. ราคาเริ่มต้นอยู่ที่ 4.5 ล้านบาท หรือ 134,3 28 บาท/ตร.ม.
  • 1B – BW 1 Bedroom ขนาด 34.75 ตร.ม. ราคาเริ่มต้นอยู่ที่ 4.9 ล้านบาท หรือ 141,000 บาท/ตร.ม.
  • 1BM – BW 1 Bedroom ขนาด 34.75 ตร.ม. ราคาเริ่มต้นอยู่ที่ 5.0 ล้านบาท หรือ 143,884 บาท/ตร.ม.
  • 1C 1 Bedroom ขนาด 34.00 ตร.ม. ราคาเริ่มต้นอยู่ที่ 4.7 ล้านบาท หรือ 138,235 บาท/ตร.ม.
  • 1CM 1 Bedroom ขนาด 33.75 ตร.ม. ราคาเริ่มต้นอยู่ที่ 4.5 ล้านบาท หรือ 133,333 บาท/ตร.ม.
  • Bedroom ขนาด 34.25 ตร.ม. ราคาเริ่มต้นอยู่ที่ 5.7 ล้านบาท หรือ 166,423 บาท/ตร.ม.
  • 1DM 1 Bedroom ขนาด 34.25 ตร.ม. ราคาเริ่มต้นอยู่ที่ 5.9 ล้านบาท หรือ 172.262 บาท/ตร.ม.
  • 2A 2 Bedroom ขนาด 40.50 ตร.ม. ราคาเริ่มต้นอยู่ที่ 5.7 ล้านบาท หรือ 140,740 บาท/ตร.ม.
  • 2AM 2 Bedroom ขนาด 41.00 ตร.ม. ราคาเริ่มต้นอยู่ที่ 6.8 ล้านบาท หรือ 165,853 บาท/ตร.ม.
  • 2B 2 Bedroom ขนาด 49.25 ตร.ม. ราคาเริ่มต้นอยู่ที่ 6.5 ล้านบาท หรือ 131,979 บาท/ตร.ม.
  • 2B-1 2 Bedroom ขนาด 49.25 ตร.ม. ราคาเริ่มต้นอยู่ที่ 7.7 ล้านบาท หรือ 156,345 บาท/ตร.ม.
  • 2C 2 Bedroom ขนาด 49.25 ตร.ม ราคาเริ่มต้นอยู่ที่ 7.2 ล้านบาท หรือ 146,192 บาท/ตร.ม.
  • 3C 3 Bedroom ขนาด 86.25 ตร.ม. Sold Out
  • 3AM 3 Bedroom ขนาด 86.50 ตร.ม. Sold Out

โครงการขายเป็น Fully Fitted คือมี Built-in ครัว, เตาและเครื่องดูดอากาศ, เครื่องปรับอากาศแบบฝังเพดานในห้องนั่งเล่น, เครื่องปรับอากาศแบบติดผนังในห้องนอน และ Digital door lock พร้อม Home Automatic ที่จะมี Touch Pad ให้ทุกห้องเพื่อสามารถควบคมการใช้งานได้สะดวกมายิ่งขึ้น

จอง 20,000 – 60,000 บาท ทำสัญญา 40,000 – 80,000 บาท
ค่าส่วนกลาง : 65 บาท/ตร.ม./เดือน (เก็บล่วงหน้า 1 ปี)
ค่ากองทุน : 600 บาท/ตร.ม. (ชำระครั้งเดียว ณ วันโอน)
สอบถามราคาเพิ่มเติมกรุณาติดต่อสำนักงานขายเพื่อข้อมูลที่อัพเดตที่สุดค่ะ


บทโครงการสรุป
ทำเลที่ตั้งโครงการ – โครงการ OKA HAUS สุขุมวิท 36 ตั้งอยู่บนถนนพระราม 4 ไม่ไกลจากซอยสุขุมวิท 36 เดินทางไปยังสุขุมวิทได้ จึงเดินทางไปยังถนนเส้นอื่นได้สะดวก อีกทั้งยังเดินทางด้วยรถสาธารณะ โดยไปขึ้นรถไฟฟ้าทองหล่อ หรือรถไฟฟ้าใต้ดินสถานีศูนย์ประชุมแห่งชาติสิริกิติ์ได้ ใกล้เคียงพอมีร้านค้า ร้านอาหารบ้าง แต่ไม่ไกลจากคอมมูนิตี้มอล ห้างสรรพสินค้า และตลาดสดตรงเส้นพระราม 4

ความอุดมสมบูรณ์ ที่ตั้งโครงการอยู่ในย่านพักอาศัยใกล้ย่านเศรษฐกิจ รอบๆโครงการพอมีร้านค้า ร้านอาหารบ้างแต่ที่อุดมสมบูรณ์เป็นแหล่งตลาดนัด ตลาดสดใกล้ๆในระยะเดินได้คือในซอยแสนสุข จะเป็นย่านร้านค้าเหมือนตลาดนัดที่มีทั้งอาหารคาวหวานมากมาย และในซอยสุขุมวิท 36 ก็มีร้านค้า ร้านอาหาร ร้านกาแฟอยู่ประปราย

สำหรับความอุดมสมบูรณ์จะเห็นว่าเกาะอยู่สองเส้นคือสุขุมวิทและพระราม 4 สำหรับถนนพระราม 4 นั้นจะมีทั้งคอมมูนิตี้มอลและห้างสรรพสินค้า โดยจะมีสวนเพลินมาร์เก็ต และ K Village เป็นคอมมูนิตี้มอลที่มีร้านค้าและร้านอาหารมากมาย ส่วน Hypermarket ก็จะมีทั้ง Lotus พระราม 4 และ Big C พระราม 4 อีกทั้งยังไม่ไกลจากตลาดสดด้วยค่ะ

สำหรับสุขุมวิทนั้น ตรงไปหน่อยก็จะเป็น Emporium, EmQuartier, Terminal 21, Central ชิดลม จากสุขุมวิทตรงไปถึงถนนพระราม 1 ได้ตรงนั้นจะมีห้างสรรพสินค้าทั้ง เกษร, อัมรินทร์พลาซ่า, บิ๊กซี ราชดำริ, Central World, Siam Paragon, Siam Center, Siam Discovery, Siam Square One และ MBK Center หรือถ้าไปทางเอกมัยก็จะมี Gateway เอกมัย, Major Cineplex และปากซอยสุขุมวิท 36 จะอยู่ไม่ไกลจากเส้นทองหล่อและเอกมัย สองเส้นนี้ก็จะมีผับ บาร์ ร้านอาหารมากมายให้เลือกใช้บริการได้

การเดินทางด้วยรถยนต์ส่วนตัวสำหรับคนขับรถ ถือว่าสะดวกพอสมควร เพราะอยู่ติดกับถนนพระราม 4 อีกทั้งยังไม่ไกลจากซอยสุขุมวิท 36 ซึ่งเป็นซอยที่ลัดไปยังถนนสุขุมวิทได้ ดังนั้นสามารถลัดเลาะไปได้หลายเส้นทาง สำหรับถนนพระราม 4 เส้นนี้เป็นเส้นที่การจราจรจะวิ่งคล่องตัวกว่าถนนสุขุมวิท วิ่งเชื่อมสุขุมวิทตรงแยกพระโขนง และตรงไปเชื่อมถนนพระราม 3 และถนนรัชดาภิเษกตรงแยกพระราม 4 ทำให้ไปได้หลายเส้นทาง จากตรงนั้นถ้าวิ่งเข้าพระราม 3 ก็ไปยังพระราม 2 ได้ไม่ยาก อีกทั้งเส้นพระราม 4 นี้ตรงไปยังสาทร วิ่งตรงไปจนถึงหัวลำโพงได้เลย

ถนนสุขุมวิทเป็นถนนหลักจึงเดินทางไปยังถนนอื่นๆได้หลากหลายสาย ถ้าตรงไปยังสุขุมวิทตอนปลาย ผ่านแยกพระโขนงก็จะตรงไปยังบางนา ยาวไปจนถึงสมุทรปราการ หรือถ้าผ่านแยกอ่อนนุชก็เลี้ยวไปลาดกระบัง, พัฒนาการ, ศรีนครินทร์ ถ้าตรงไปยังสุขุมวิทตอนต้น ก็จะไปยังแยกอโศก ตรงไปเรื่อยๆยังถนนพระราม 1, แยกราชประสงค์เข้าตัวเมืองกรุงเทพและย่านเศรษฐกิจได้

ปากซอยสุขุมวิท 36 จะอยู่ไม่ไกลจากซอยสุขุมวิท 55 (ทองหล่อ), ซอยสุขุมวิท 63 (ถนนเอกมัย) สองเส้นนี้วิ่งตรงไปยังถนนเพชรบุรีได้ ถนนเอกมัยถ้าวิ่งยาวตรงไปเรื่อยๆก็ไปยังเลียบด่วนรามอินทรา-อาจณรงค์ เชื่อมเข้าพระราม 9, ลาดพร้าวตรงไปจนถึงสายไหมได้เลยค่ะ

การเดินทางด้วยรถสาธารณะการเดินทางโดยไม่ใช้รถ ถือว่าสะดวกค่ะ หน้าโครงการมีรถแท็กซี่เป็นระยะ วินมอเตอร์ไซค์และป้ายรถเมล์ก็อยู่ตรงท้ายซอยสุขุมวิท 36 ซึ่งไม่ไกลจากโครงการ แต่ถ้าจะไปใช้บริการรถไฟฟ้าก็สะดวกทั้งสายสีเขียวตรงเส้นสุขุมวิทสถานีทองหล่อ และสายสีน้ำเงินตรงเส้นรัชดาภิเษก สถานีศูนย์ประชุมแห่งชาติสิริกิติ์

การออกแบบโครงการและวัสดุ – สำหรับการออกแบบโครงการ อาคารเป็นตัว L มีพื้นที่ส่วนกลางขนาดใหญ่และมีอยู่หลายชั้นตั้งแต่ชั้น 1 จะมีสวน ทางเดินรถริมทางก็จะมีต้นไม้ให้ความร่มรื่น ส่วนชั้น 8 ที่เป็นพื้นที่ส่วนกลางก็มีครบครัน ทั้งสระและสวนเล็กๆริมสระพร้อมพื้นที่นั่งเล่น ส่วนสวนขนาดใหญ่นั้นจะอยู่บนดาดฟ้า ทำให้สามารถไปเดินเล่นในสวนและชมวิวบนชั้นดาดฟ้าได้ค่ะ

สำหรับการออกแบบห้องถือว่าลงตัว จัดพื้นที่เป็นสัดส่วน แสงธรรมชาติสามารถเข้ามาในห้องได้จึงทำให้ห้องดูโปร่ง ห้องครัวแบ่งพื้นที่กับห้องนั่งเล่นด้วยวัสดุปูพื้นที่ต่างกัน ระเบียงก็กว้างและมีช่องสำหรับวางคอมเพลสเซอร์แอร์ และเครื่องซักผ้าโดยมีระแนงเหล็กบังสายตาเพื่อความสวยงาม

โครงการขายเป็น Fully Fitted คือมีชุดครัวให้ตามที่เห็นในห้องตัวอย่างยกเว้นของตกแต่ง,ตู้เก็บของตรงครัว,พร้อมทั้งเครื่องใช้ไฟฟ้าในครัวทั้งเตาและเครื่องดูดอากาศ, เครื่องปรับอากาศแบบฝังเพดานในห้องนั่งเล่น, เครื่องปรับอากาศแบบติดผนังในห้องนอน และ Digital door lock พร้อม Home Automatic ที่จะมี Touch Pad ให้ทุกห้องเพื่อสามารถควบคมการใช้งานได้สะดวกมายิ่งขึ้น วัสดุบางส่วนเช่นหินอ่อนก็จะเป็นหินนำเข้าจากอิตาลี

สิ่งอำนวยความสะดวก – ถือว่าให้มาแบบครบครันโดยจะมีพื้นที่สวนชั้น 1, ชั้น 8 จะมีสระว่ายน้ำพร้อมจากุซซี่ สระพักผ่อนและสระเด็ก, สระน้ำอุ่น, พื้นที่สันทนาการสำหรับเด็ก, ห้องออกกำลังกาย พร้อมอุปกรณ์, ห้องอบไอน้ำแยกชาย/หญิง, ห้องซักรีด

ชั้น 22 เป็นพื้นที่สวนขนาดเล็ก, ชั้นดาดฟ้าจะมีพื้นที่สวนขนาดใหญ่และมีลานภาพยนต์กลางแจ้งด้วยค่ะ อีกทั้งโครงการยังมีจุดบริการชาร์จแบตเตอรี่สำหรับรถยนต์พลังงานไฟฟ้า โครงการจะมีพื้นที่จอดรถ 49 % ลิฟต์โดยสาร 5 ตัว ลิฟต์บริการ 1 ตัว, ลิฟต์ล็อคชั้น, CCTV ภายในอาคาร พร้อมระบบรักษาความปลอดภัย 24 ชั่วโมง


คะแนน

ทำเลที่ตั้งโครงการ 8.0 อยู่บนถนนพระราม 4 ใกล้รถไฟฟ้าสายสีเขียวและสีน้ำเงิน ความอุดมสมบูรณ์อยู่โดยรอบ ไม่ไกลจากตลาดสด, ห้างสรรพสินค้า, คอมมูนิตี้มอล, สถานศึกษา, โรงพยาบาล
การเดินทาง ใช้รถ 8.5 เดินทางสะดวกเชื่อมต่อถนนหลายสาย ไปยังสุขุมวิท และลัดเลาะวิ่งในซอยได้
การเดินทาง ไม่ใช้รถ 7.75 อยู่ไม่ไกลรถไฟฟ้า BTS ทองหล่อ หน้าโครงการมีรถโดยสารวิ่งผ่าน แท็กซี่เรียกได้ไม่ยาก และมีวินมอเตอร์ไซค์อยู่ไม่ไกล
ห้องและวัสดุ 8.0 แปลนห้องแบ่งได้เป็นสัดส่วนลงตัว ห้องขายแบบ Fully Fitted มี Built-in ตู้ในครัว, Digital door lock พร้อม Home Automatic ที่จะมี Touch Pad เพื่อสะดวกต่อการใช้งาน
สิ่งอำนวยความสะดวก 7.75 ให้มาแบบครบครันมีทั้งสวนสาธารณะ พื้นที่นั่งเล่น สระว่ายน้ำขนาดใหญ่ ฟิตเนส ห้องเล่นเด็ก พื้นที่สวนดาดฟ้าและลานภาพยนต์กลางแจ้ง
ความคุ้มค่ากับราคา 8.0 ราคาเริ่มต้นตอนนี้อยู่ที่ประมาณ 131,979 บาท/ตร.ม. ได้ห้องแบบ Fully Fitted เฟอร์นิเจอร์ออกแบบมาอย่างลงตัวเข้ากับพื้นที่ใช้สอยภายในห้อง และเครื่องใช้ไฟฟ้าที่อำนวยความสะดวกต่อการพักอาศัย
คะแนนรวมเฉลี่ย 8.0 ดี

สนใจติดต่อรายละเอียดเพิ่มเติมได้ที่

Tel : 1685

Website : https://www.sansiri.com/condominium/oka-haus/th/

หากเพื่อนๆเห็นว่ารีวิวนี้มีประโยชน์ ช่วยกด Like เพื่อเป็นกำลังใจให้ทีมงาน ขอบคุณค่ะ

และมีความคิดเห็นหรือข้อมูลเพิ่มเติมเกี่ยวกับตัวโครงการ สามารถ Comment ได้ที่ด้านล่างของรีวิวค่ะ

อ่านเพิ่มเติม


สนใจลงโฆษณากับทาง CONDONAYOO ติดต่อสอบถามรายละเอียดได้ที่
คุณวัน 086-1290293 
LINE ID : 123456786205 Email : wanchalearm.t@gmail.com
ทางเราเป็นเว็บไซต์ให้ข้อมูล ไม่ใช่เจ้าของโครงการนะครับ

แสดงความคิดเห็น เกี่ยวกับ " EP.94 รีวิว คอนโด OKA HAUS สุขุมวิท 36 ใกล้ BTS ทองหล่อ "