
รีไฟน์ อารีย์-ราชครู Refyne Ari-Ratchakru คอนโด Low-Rise 36 ยูนิต เชื่อมต่อถนนพระราม 6 ใกล้ รพ.วิชัยยุทธ เริ่ม 7.19 ล้าน*
Refyne อารีย์-ราชครู คอนโด Low-Rise โครงการใหม่จาก TYK Estate ที่ตั้งโครงการอยู่บนถนนเศรษฐศิริ แขวงพญาไท เขตพญาไท กทม. เดินทางสะดวก เชื่อมต่อถนนพระราม 6 ใกล้จุดขึ้น-ลงทางด่วนศรีรัช และ BTS อารีย์
รายล้อมด้วยสถานที่สำคัญมากมายเช่น รพ.วิชัยยุทธ, รร.สามเสนวิทยาลัย, St. Andrews International School Bangkok Dusit Campus, Tipco, กรรมสรรพากร, ตลาดราชวัตร และ Supreme Complex
รีไฟน์ อารีย์-ราชครู เป็นคอนโด Low-Rise 8 ชั้น 1 อาคาร ตั้งอยู่บนที่ดินขนาดประมาณ 0-1-65.80 ไร่ เป็นส่วนตัวด้วยจำนวนห้องเพียง 36 ยูนิต มีห้องพักให้เลือก 6 แบบ ได้แก่ 1 Bedroom ขนาดเริ่มต้น 40.26-54.40 ตร.ม. และ 2 Bedroom ขนาดเริ่มต้น 60.92-68.27 ตร.ม.
สิ่งอำนวยความสะดวกมาตรฐานภายในโครงการครบครัน อาทิ Lobby, Mail Room, Juristic, Lounge, Co-Working Space, Rooftop Garden, ที่จอดรถ คิดเป็น 92% หรือประมาณ 33 คัน (ไม่รวมจอดซ้อนคัน), กล้องวงจรปิด CCTV พร้อม รปภ. 24 ชม. ราคาเริ่มต้น 7.12 ล้านบาท* (ม.ค. 69)
| ชื่อโครงการ | รีไฟน์ อารีย์-ราชครู Refyne Ari-Ratchakru |
| เจ้าของโครงการ | บริษัท ทีวายเค เอสเตท จํากัด / TYK Estate |
| เนื้อที่ทั้งหมด | 0-1-68.80 ไร่ |
| จำนวนตึก | 1 อาคาร |
| จำนวนชั้น | 8 ชั้น |
| จำนวนห้อง | 36 ยูนิต |
| ลักษณะห้องและขนาดห้อง |
|
| ที่จอดรถทั้งหมด | คิดเป็น 92% หรือประมาณ 33 คัน |
| จำนวนลิฟต์ | 1 ตัว |
| โซน | เขตพญาไท |
| เส้นทางคมนาคม |
|
| ที่ตั้ง | ถนนเศรษฐศิริ แขวงพญาไท เขตพญาไท กทม. |
| กำหนดการ | เปิดชมห้องตัวอย่าง ธ.ค. 68 |
| ปีที่สร้างเสร็จ | n/a |
| ราคา | เริ่ม 7.12 ล้านบาท* (ม.ค. 69) |
| ราคาเฉลี่ยต่อ ตร.ม | ประมาณ 176,000 บาท/ ตร.ม.* (ม.ค. 69) |
| ค่าส่วนกลางและกองทุน | n/a |
| สถานที่สำคัญใกล้เคียง | ศูนย์การค้าและไลฟ์สไตล์
สถานศึกษา
โรงพยาบาล
อื่น ๆ
|
| สิ่งอำนวยความสะดวก |
|
| Tel | 081-895-6699 |
| Line | https://bit.ly/3LxdxQn |
| Website | https://refynelife.com/ |
ถนนเศรษฐศิริ แขวงพญาไท เขตพญาไท กทม.
พิกัดโครงการ : https://maps.app.goo.gl/ahiCKdx82GR8xeVn9
ภาพและบรรยากาศจำลองภายนอกอาคาร Refyne อารีย์-ราชครู
ภาพและบรรยากาศจำลองภายใน Lobby และ Mail Room
ภาพและบรรยากาศจำลองภายใน Lounge และ Co-Working Space
ภาพและบรรยากาศจำลอง Rooftop Garden
แปลนอาคารชั้นใต้ดิน
แปลนอาคารชั้น 1
แปลนอาคารชั้น 2-7
แปลนอาคารชั้น 8
แปลนอาคารชั้นดาดฟ้า
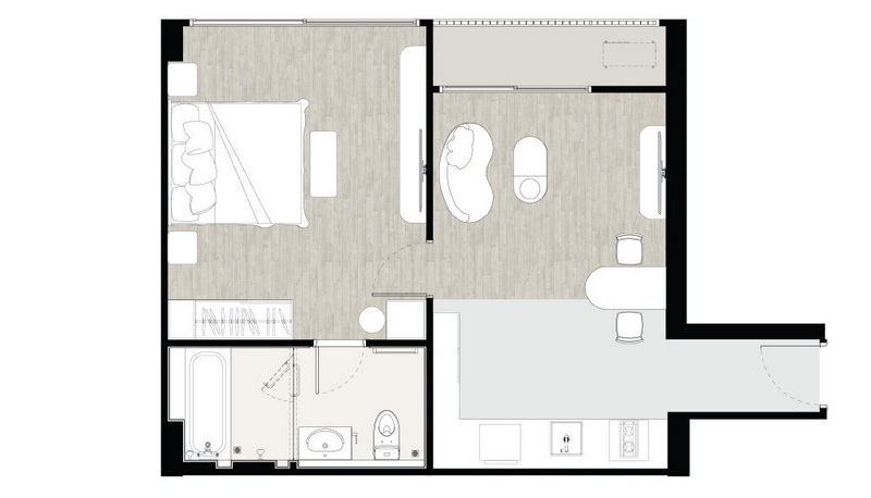
โครงการ Refyne อารีย์-ราชครู มีห้องพักให้เลือก 6 แบบ ได้แก่
Type A 1 Bedroom 40.81-40.86 ตร.ม.
Type B 1 Bedroom 42.68-42.72 ตร.ม.
Type C 1 Bedroom 40.26-40.28 ตร.ม.
Type D 2 Bedroom 60.92-61.12 ตร.ม.
Type E 2 Bedroom 68.18-68.27 ตร.ม.
Type F 1 Bedroom 54.40 ตร.ม.
ภาพและบรรยากาศจำลองภายในห้องพัก Type A
ภาพและบรรยากาศจำลองภายในห้องพัก Type B
ภาพและบรรยากาศจำลองภายในห้องพัก Type C
ภาพและบรรยากาศจำลองภายในห้องพัก Type D
ภาพและบรรยากาศจำลองภายในห้องพัก Type E
ภาพและบรรยากาศจำลองภายในห้องพัก Type F
Tel : 081-895-6699
Line : https://bit.ly/3LxdxQn
Website : https://refynelife.com/
แสดงความคิดเห็น เกี่ยวกับ " รีไฟน์ อารีย์-ราชครู Refyne Ari-Ratchakru คอนโด Low-Rise 36 ยูนิต เชื่อมต่อถนนพระราม 6 ใกล้ รพ.วิชัยยุทธ เริ่ม 7.19 ล้าน* "