
รีวิว คอนโด ซูเคร เขาใหญ่ SUCRE KHAOYAI
แนวคิดหลัก: ธรรมชาติที่ทันสมัย
จากแรงบันดาลใจที่มาจากความยิ่งใหญ่ของธรรมชาติและขุนเขา ผสมผสานกับแนวคิดที่จะสร้างสรรค์ บ้านพักตากอากาศเพื่อตอบรับ lifestyle ที่ทันสมัย มีเอกลักษณ์ไม่เหมือนใคร แนวคิดงานสถาปัตยกรรมเกิดจากการนำเส้นสายของธรรมชาติเบื้องหลัง ค่อยเรียงร้อย เกี่ยวพัน ผ่านพื้นที่ภูมิทัศน์โดยรอบสู่ตัวอาคาร จากภายนอกสู่ภายใน สร้างสรรค์พื้นที่ใช้งาน(อยู่อาศัย) ท่ามกลางบรรยากาศความเป็นธรรมชาติอย่างลงตัว เกิดเป็นรูปแบบอาคารซึ่งมีเอกลักษณ์เฉพาะตัว ทั้งดูทันสมัยและกลมกลืนกับธรรมชาติไปพร้อมกัน
| ชื่อโครงการ | ซูเคร เขาใหญ่ / SUCRE KHAOYAI |
| เจ้าของโครงการ | ซูเคร แอสเสท |
| ลักษณะห้องและขนาดห้อง | 1-3 Bed / 44.43 – 202.37 sq.m. |
| เนื้อที่ทั้งหมด | 1 ไร่ 1 งาน 76 ตร.ว. |
| จำนวนตึก | 2 อาคาร |
| จำนวนชั้น | 7 ชั้น |
| จำนวนห้อง | อาคาร Foresta 36 ยูนิต อาคาร Aqua 46 ยูนิต |
| ที่จอดรถทั้งหมด | n/a |
| โซน | นครราชสีมา, เขาใหญ่, ปากช่อง |
| ขนส่งสาธารณะ | n/a |
| รถโดยสารที่ผ่าน | n/a |
| ที่ตั้ง | ถ.กุดคล้า-ผ่านศึก ต.หมูสี อ.ปากช่อง จ.นครราชสีมา |
| กำหนดการ | n/a |
| ปีที่สร้างเสร็จ | พ.ศ. 2558 |
| ราคา | เริ่ม 2.7 ล้านบาท |
| ราคาเฉลี่ยต่อ ตร.ม | เริ่ม 44,400 บาท/ตร.ม. |
| สถานที่สำคัญใกล้เคียง | 1. พรีโม พอสโต 2. ปาลิโอ 3. อุทยานเขาใหญ่ |
| สิ่งอำนวยความสะดวก | 1. สระว่ายน้ำ แบบ Infinity-edged 2. ฟิตเนส 3. ลู่วิ่ง 4. พื้นที่สีเขียว 5. คีย์การ์ด 6. รปภ. และ CCTV 24 ชม. |
| จุดเด่นของโครงการ | – การประหยัดพลังงานของอาคาร โดยใช้การกำหนดทิศที่ตั้งที่ถูกต้อง – การเลือกใช้วัสดุที่ทดแทนวัสดุจากธรรมชาติ – การสร้างอารมณ์และบรรยากาศของแสงภายในห้อง ให้มีเอกลักษณ์พิเศษ ในช่วงเวลาต่างๆ – การนำองค์ประกอบที่อยู่ตามธรรมชาติ เช่น ต้นไม้ น้ำ และ หิน มาใช้ในการกำหนดรูปทรง สีสัน และ พื้นที่ว่าง |
78 หมู่ 10 ถ.กุดคล้า-ผ่านศึก ต.หมูสี อ.ปากช่อง จ.นครราชสีมา
คลิก เพื่อดูแผนที่ขนาดใหญ่
Foresta Building – 1st Floor



Foresta Building : 2nd Floor / 3rd Floor / 4th Floor
Foresta Building : 5th Floor / 6th Floor / 7th Floor
Aqua Building – 1st Floor



Aqua Building : 2nd Floor / 3rd Floor / 4th Floor



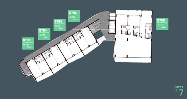
Aqua Building : 5th Floor / 6th Floor / 7th Floor
Foresta Building – Type 1 BR




Foresta Building : Type 1BR-M / Type 1BR-EF / Type 2BR / Type 2BR-1
Aqua Building – Type 1BR-A-3




Aqua Building : Type 1BR-EB / Type 1BR-E-1 / Type 2BR-EB-1 / 3BR
สนใจติดต่อสอบถามเพิ่มเติมได้ที่
Tel : 085-686-8448 / 087-089-9944
Website : http://www.sucrethailand.com/
แสดงความคิดเห็น เกี่ยวกับ " รีวิว คอนโด ซูเคร เขาใหญ่ SUCRE KHAOYAI "