
คอนโด แดน ลิฟวิ่ง รัชดา-ประชาอุทิศ Than Living Rachada-Prachautid
Than Living รัชดา-ประชาอุทิศ คอนโดพร้อมอยู่จาก สิราลัย ตั้งอยู่ภายในซอยจำเนียรเสริม ถนนประชาอุทิศ แขวงวังทองหลาง เขตวังทองหลาง กทม. ใกล้ MRT ห้วยขวาง, Central พระราม 9, Fortune, Big C, Lotus, Esplanade รัชดา, The Street รัชดา, ศูนย์วัฒนธรรมแห่งประเทศไทย และ รพ.พระราม 9
แดน ลิฟวิ่ง รัชดา-ประชาอุทิศ เป็นคอนโด Low Rise 8 ชั้น 3 อาคาร, คอนโด High-Rise 19-21 ชั้น 3 อาคาร จำนวนห้อง 824 ยูนิต มีห้องให้เลือกแบบ Studio, 1 Bed, 2 Bed, 3 Bed และ Duplex ขนาดเริ่มต้น 28-67.44 ตร.ม. สร้างเสร็จพร้อมอยู่ปี 2558
สิ่งอำนวยความสะดวกในโครงการครบครัน อาทิ โถงต้อนรับ, สระว่ายน้ำ, ฟิตเนส, สวนพักผ่อน, ห้องอเนกประสงค์ต่าง ๆ, ประตูคีย์การ์ด, ที่จอดรถ, กล้องวงจรปิด, ระบบรักษาความปลอดภัยตลอด 24 ชม. ราคาเริ่มต้น 2.2 ล้านบาท* (ณ.วันเปิดตัว)
| ชื่อโครงการ | แดน ลิฟวิ่ง THAN LIVING |
| เจ้าของโครงการ | สิราลัย – Siralai |
| ลักษณะห้องและขนาดห้อง | – Studio / 28.00 ตร.ม. – 1 Bed / 31.47 – 32.20 ตร.ม. – 2 Bed / 56.31 ตร.ม. – 3 Bed / 148.63 ตร.ม. – Duplex 1 bed 54.47 ตร.ม. – Duplex 2 bed 67.44 ตร.ม. |
| เนื้อที่ทั้งหมด | 8 ไร่ 1 งาน 82.00 ตร.ว. |
| จำนวนตึก | 6 อาคาร |
| จำนวนชั้น | อาคาร Smart 1 มี 19 ชั้น / อาคาร Smart 2 มี 20 ชั้น / อาคาร Smart 3 มี 21 ชั้น / อาคาร A Little Friend มี 8 ชั้น / อาคาร Be Healthy มี 8 ชั้น / และอาคาร C Curity มี 8 ชั้น |
| จำนวนห้อง | 824 ยูนิต |
| ที่จอดรถทั้งหมด | n/a |
| โซน | ลาดพร้าว, จตุจักร, ประชาชื่น |
| ขนส่งสาธารณะ | n/a |
| รถโดยสารที่ผ่าน | n/a |
| ที่ตั้ง | ซอยจำเนียรเสริม ถนนประชาอุทิศ แขวงวังทองหลาง เขตวังทองหลาง กทม. |
| กำหนดการ | n/a |
| ปีที่สร้างเสร็จ | พ.ศ 2558 |
| ราคา | เริ่มต้น 2,200,000 บาท (ณ วันเปิดตัว) |
| ราคาเฉลี่ยต่อ ตร.ม | เริ่มต้น 78,600 บาท / ตร.ม. |
| สถานที่สำคัญใกล้เคียง |
|
| สิ่งอำนวยความสะดวก |
|
| จุดเด่นของโครงการ | มากกว่า…คำว่าอิสระ เพราะชีวิตมีความต้องการที่แตกต่างกัน เราจึงขยายพื้นที่ให้มากขึ้น ด้วยดีไซน์ Double Space ตอบโจทย์ทุกไลฟ์สไตล์ที่แตกต่าง แต่ใช้ชีวิตได้อย่างลงตัว และเราเข้าใจว่าสัตว์เลี้ยงตัวโปรดคือเพื่อนที่ดีที่สุด ที่นี่จึงให้คุณใช้ชีวิตกับพวกเค้าได้ตลอด 24 ชม. ไม่ว่าจะอยู่ด้วยกันในห้องหรือพาไปเดินเล่น เพื่อให้ทั้งคุณและเพื่อนรักมีความสุขที่สุด แบบที่หาไม่ได้จากที่อื่น |
โครงการใกล้เคียง MRT ศูนย์วัฒนธรรมแห่งประเทศไทย
ที่ตั้งโครงการ
ซอยจำเนียรเสริม ถนนประชาอุทิศ แขวงวังทองหลาง เขตวังทองหลาง กทม.
คลิก เพื่อดูแผนที่ขนาดใหญ่
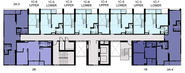
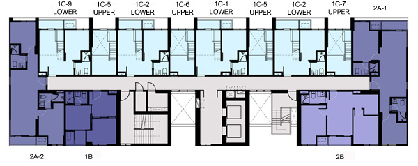
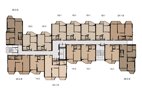
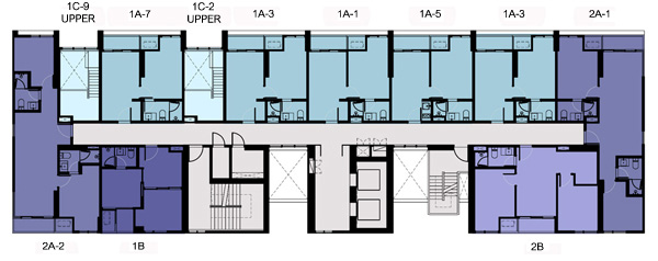
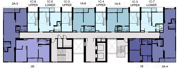
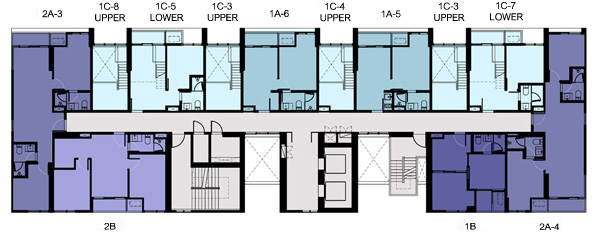
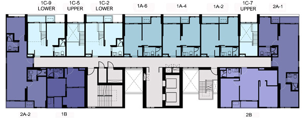
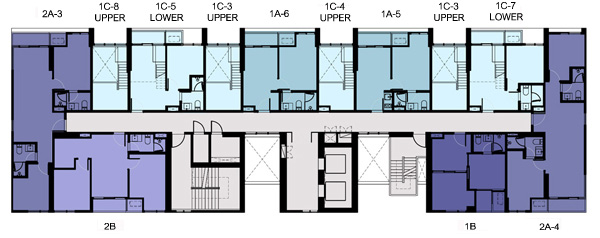
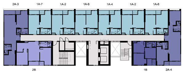
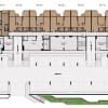
แปลนอาคาร
Master plan
Tower Smart 1 : ground floor / 2nd Floor / 3rd Floor / 4th Floor /
5th Floor / 6th Floor / 7th ,9th ,11th ,13th ,15th, 17th Floor / 8th, 10th, 12th, 14th, 16th Floor
Tower Smart 2 : ground floor / 2nd Floor / 3rd Floor / 4th Floor / 5th Floor
6th Floor / 7th Floor / 8thFloor / 9th Floor / 10th, 12th, 14th, 16th, Floor
11th, 13th, 15th, 17th Floor / 18th Floor /19th Floor /20th floor
Tower Smart 3 : ground floor / 2nd Floor / 3rd Floor / 4th, 7th, 10th Floor / 5th, 8th, 11th Floor
6th, 9th, 12th Floor / 13th Floor / 14th Floor / 15th Floor / 16th, 18th Floor
17th Floor / 19th Floor / 20th Floor / 21th Floor
Tower A Little Friend : ground floor / 2nd Floor / 3rd, 5th, 7th Floor / 4th, 6th, 8th Floor
Tower Be Healthy : ground floor / 2nd Floor / 3rd, 5th, 7th Floor / 4th, 6th, 8th Floor
Tower Curity : ground floor / 2nd Floor / 3rd, 5th, 7th Floor / 4th, 6th, 8th Floor
แปลนห้อง
Tower: Smart 1, Smart 2, Smart 3 = High Rise / Tower: A little Friend, Be Healthy, Curity = Low Rise
High Rise: Unit 1A-1 -1A-9 / Unit 2A-1 – 2A-4 / Unit 3A / Unit 1B / Unit 2B
High Rise: Unit 3B-1 – 3B-4 / Unit 1C-1 – 1C-9 / Unit 2C-1 – 2C-4 / Unit 1D-1 / Unit 1D-2
Low Rise : Unit 1A-1 – 1A-3 / Unit 2A / Unit 1B-1 – 1B-4 / Unit 2B-1-A, B / Unit 2B-2-A , B
Low Rise : Unit 2B-3-A, B / Unit 2B-4-A / Unit 1C-1 – 1C-4 / Unit 2C-A, B / Unit 1D-1, 2 /
Low Rise : Unit 2D-A, B / Unit 1E / Unit 2E / Unit 2F
GALLERY
สนใจติดต่อรายละเอียดเพิ่มเติมได้ที่
ถนน ประชาอุทิศ ซอยจำเนียรเสริม เขตวังทองหลาง กทม. 10310
Email : sales@thanliving.com
Tel : 02-275-8888
Website: http://www.thanliving.com/index.php/register
แสดงความคิดเห็น เกี่ยวกับ " คอนโด แดน ลิฟวิ่ง รัชดา-ประชาอุทิศ Than Living Rachada-Prachautid "