
EP.390 รีวิว ดิ เอส สุขุมวิท 36 THE ESSE Sukhumvit 36 คอนโดใหม่พร้อมอยู่ ติด BTS ทองหล่อ เริ่ม 11.9 ล้าน*
Written by : THAnATH
สวัสดีผู้อ่านชาว Condonayoo ทุกคนครับ วันนี้ผมพามาชมโครงการ THE ESSE SUKHUMVIT 36 (ทองหล่อ) จาก Singha Estate ที่มีการร่วมทุนกับทาง Hongkong Land บริษัทด้านการลงทุน การจัดการ และการพัฒนาอสังหาริมทรัพย์ชั้นนำ
โครงการตั้งอยู่ในย่านทองหล่อ ติดกับถนนสุขุมวิทและซอยสุขุมวิท 36 ที่เชื่อมต่อเข้า-ออกเมืองได้สะดวก ใกล้ถนนพระรามสี่ ถนนเพชรบุรี ใกล้ทางด่วนเฉลิมมหานคร และทางด่วนรามอินทรา-อาจณรงค์ ตัวโครงการติด BTS ทองหล่อ เชื่อมต่อ MRT สุขุมวิท เพียง 2 สถานี รายล้อมไปด้วยสิ่งอำนวยความสะดวกครบครัน
ดิ เอส สุขุมวิท 36 (ทองหล่อ) ออกแบบภายใต้คอนเซ็ปต์ “A Harmony of Contrast ความสมดุลแห่งความแตกต่างที่พอดี” ความสงบและความหรูหราสุดพิเศษที่ตรงข้ามกับชีวิตในเมืองที่วุ่นวายนั้น คือการหลบหนีจากชีวิตในเมืองที่วุ่นวายไปสู่สถานที่ที่ช่วยให้จิตใจได้รับการพักผ่อน และยังเป็นสถานที่ที่คุณสามารถเป็นตัวของตัวเองได้อย่างแท้จริง
รูปแบบโครงการเป็นคอนโด High Rise สูง 43 ชั้น จำนวน 1 อาคาร บนที่ดิน 2-2-0 ไร่ ห้องพักอาศัยมีทั้งหมด 338 ยูนิต มีห้องให้เลือกแบบ 1 Bed , 2 Bed , 3 Bed , Penthouse ห้องพักอาศัยมีฝ้าเพดานสูง 3 ม. ขนาดห้องเริ่มต้นที่ 38.50 – 252 ตร.ม. สร้างเสร็จพร้อมอยู่ในปี 2563
สิ่งอำนวยความสะดวกภายในโครงการมีให้ครบครัน อาทิ Lobby, Parking Spaces, Mailbox & Storage Space, Sunken Lawn Garden, Water Garden, Rice Field Garden, Roof Orchard, The Reading Lounge, Swimming Pool, Fitness, Virtual Bike, Golf Simulator, Steam Room, Horizon Onsen, Private Spa Room, Kid’s Room, Sky Lounge, The Residence Lounge, Sky Theatre, BBQ Deck, Free wi-fi, Concierge service, Auto Parking, Access Card Control, กล้องวงจรปิด พร้อมระบบรักษาความปลอดภัย 24 ชม. ราคาเริ่มต้น 11.9 ล้านบาท*
ลงทะเบียนเพื่อรับส่วนลดและสิทธิพิเศษคลิก : https://bit.ly/2Jss9A8
| ชื่อโครงการ | ดิ เอส สุขุมวิท 36 THE ESSE Sukhumvit 36 |
| เจ้าของโครงการ | บริษัท สิงห์ เอสเตท จำกัด (มหาชน) และ ฮ่องกง แลนด์ / Singha Estate and Hongkong Land |
| เนื้อที่ทั้งหมด | 2-2-0 ไร่ |
| จำนวนตึก | 1 อาคาร |
| จำนวนชั้น | 43 ชั้น |
| จำนวนห้อง | 338 ยูนิต |
| ลักษณะห้องและขนาดห้อง |
|
| ที่จอดรถทั้งหมด | คิดเป็น 100% รวมซ้อนคัน
|
| จำนวนลิฟต์ | ลิฟต์โดยสาร 4 ตัว, ลิฟต์บริการ 1ตัว |
| โซน | สุขุมวิท , ทองหล่อ |
| ขนส่งสาธารณะ |
|
| รถโดยสารที่ผ่าน | 2, 2, 25, 38, 40, 48, 98, 501, 508, 511 |
| ที่ตั้ง | ถนนสุขุมวิท แขวงพระโขนง เขตคลองเตย กทม. |
| กำหนดการ | เริ่มก่อสร้างต้นปี 2561 |
| ปีที่สร้างเสร็จ | แล้วเสร็จปี 2563 |
| ราคา | เริ่มต้น 11.9 ล้านบาท* (พ.ย.63) |
| ราคาเฉลี่ยต่อ ตร.ม | 330,000/ตร.ม. |
| ค่าส่วนกลางและกองทุน |
|
| สถานที่สำคัญใกล้เคียง | ห้างสรรพสินค้า
สถานศึกษา
โรงพยาบาล
|
| สิ่งอำนวยความสะดวก |
|
| จุดเด่นของโครงการ | THE ESSE สุขุมวิท 36 ตั้งอยู่บนทำเลศักยภาพใจกลางย่านธุรกิจ ที่เชื่อมต่อทุกการเดินทางที่หลากหลาย สัมผัสประสบการณ์แห่งการพักผ่อนที่ไม่เหมือนใคร ด้วยสิ่งอำนวยความสะดวกระดับซูเปอร์ลักชัวรีใส่ใจในรายละเอียดทุกตารางนิ้วตั้งแต่การออกแบบผังโครงการให้มีความเป็น ส่วนตัวสูง ไปจนถึงการคัดสรรวัสดุที่ใช้ในโครงการ ที่ตอบโจทย์ทั้งความมีรสนิยม และประโยชน์ใช้สอย |
ที่ตั้งโครงการ
ถนนสุขุมวิท แขวงพระโขนง เขตคลองเตย กทม.
พิกัด Google โดยประมาณ : 13.724127, 100.577630
โครงการ THE ESSE สุขุมวิท 36 ตั้งอยู่ติดถนนสุขุมวิท และซอยสุขุมวิท 36 เดินทางเชื่อมต่อเข้าออกได้สะดวก ใกล้ถนนพระรามสี่ และถนนเพชรบุรี ใกล้ทางด่วนเฉลิมมหานคร โครงการติด BTS ทองหล่อ เพียง 2 สถานีถึงจุดเชื่อมต่อรถไฟฟ้า MRT สุขุมวิท รายล้อมไปด้วยสิ่งอำนวยความสะดวกครบครัน ทั้งห้างสรรพสินค้า สถานศึกษา และโรงพยาบาล
ที่ตั้งโครงการ THE ESSE สุขุมวิท 36 (ทองหล่อ) ตั้งอยู่ติดถนนสุขุมวิทฝั่งซอยเลขคู่ หรือฝั่งเข้าเมืองนั่นเอง การเดินทางค่อนข้างสะดวกใช้เส้นสุขุมวิทเดินทางเข้าออกเมืองได้ง่าย หรือจะเชื่อมไปออกถนนพระรามสี่ก็ง่ายตรงซอยสุขุมวิท 36 หรือจะเชื่อมไปออกถนนเพชรบุรีก็สะดวกตรงซอยสุขุมวิท 55(ทองหล่อ) โครงการตั้งอยู่ในทำเลที่เดินทางได้สะดวกเชื่อมต่อเข้าซอยลัดเลาะไปได้หลายที่
การเดินทางเข้าเมือง ออกจากโครงการก็ใช้เส้นสุขุมวิทได้เลย วิ่งมุ่งหน้าเข้าเมืองอย่างเดียวไป พร้อมพงษ์ อโศก สยาม ได้เลย หรือถ้าจะเข้าซอยทองหล่อต้องไปกลับรถช่วงซอยสุขุมวิท 32 แล้วก็ไปเข้าซอยทองหล่อได้เลย หรือเลยไปเอกมัย ซอยทองหล่อและเอกมัยไปเชื่อมออกถนนเพชรบุรีได้ที่ท้ายซอย เส้นเพชรบุรีวิ่งเข้าเมืองไปอโศกมนตรี นานา ชิดลม ประตูน้ำ ราชเทวี มีเส้นเชื่อมไปออกถนนพระรามเก้าได้ ถ้าจะไปโซนพระรามสี่ก็ไปเข้าซอยสุขุมวิท 36 ที่อยู่เกือบติดโครงการเลย และวิ่งไปเชื่อมซอยแสนสบายจนไปออกถนนพระรามสี่ครับ จากนั้นก็วิ่งไปเข้าสวนลุม สาทร สีลม สามย่าน หัวลำโพงได้เลย
การเดินทางออกนอกเมือง ถ้าไปโซนพระโขนง อ่อนนุช บางนา ใช้เส้นสุขุมวิทวิ่งตามแนว BTS ไปได้เลยยาวไปจนถึงสมุทรปราการได้เลย ตรงแถวๆแยกพระโขนงมีจุดขึ้นทางด่วนรามอินทรา-อาจณรงค์ไปโซนรามอินทรา ลาดพร้าว เกษตรนวมินทร์ หรือตรงแยกบางนาตัดเข้าถนนบางนาตราด วิ่งออกฉะเชิงเทรา ชลบุรี มีทางด่วนบูรพาวิถีให้ขึ้นสะดวกดี ถ้าไปออกเส้นเพชรบุรีวิ่งไปเข้าพัฒนาการ ศรีนครินทร์ ลาดกระบังได้ ซอยเอกมัยวิ่งยาวไปออกถนนพระรามเก้าเชื่อมออกมอเตอร์เวย์ และเข้าถนนประดิษฐ์มนูธรรมได้
การเดินทางโดยสาธารณะ จุดเด่นของโครงการอยู่ติดกับ BTS ทองหล่อ หน้าโครงการมีลิฟต์ขึ้นไปยังสถานีได้ หรือใกล้ๆจะเป็นบันได และบันไดเลื่อนขึ้นสถานีได้เลย นั่งเพียง 2 สถานีไปลงอโศก จะเป็นสถานีเชื่อมต่อกับ MRT สุขุมวิท ต่อจาก MRT 1 สถานีไปลงที่สถานีเพชรบุรี เชื่อมต่อไปใช้แอร์พอร์ตลิ้งค์ต่อได้ครับ หรือจะโดยสารทางน้ำด้วยเรือคลองแสนแสบก็มีทางเรือทองหล่อช่วงท้ายซอยนั่งพี่วินมาได้ วินมอเตอร์ไซค์อยู่ตรงปากซอยสุขุมวิท 36 ติดกับโครงการเลย ใต้สถานี BTS ทองหล่อมีป้ายรถเมล์ มีรถวิ่งผ่านหลายสายทั้งเข้าและออกเมือง Taxi ก็วิ่งผ่านตลอดทั้งคืนเรียกหน้าโครงการได้เลย
ทางด่วน ที่อยู่ใกล้โครงการคือทางด่วนเฉลิมมหานคร ประมาณ 3.4 กม. จากโครงการมาเข้าซอยสุขุมวิท 36 มาออกถนนพระรามสี่ จากนั้นไปเข้าถนนเกษมราษฎร์ตรงไปจะเจอจุดขึ้นทางด่วน
แยกและถนนสำคัญใกล้เคียง
ความอุดมสมบูรณ์รอบๆโครงการ ที่ตั้งโครงการอยู่ในย่านพักอาศัยและย่านท่องเที่ยว ดังนั้นโดยรอบจะมีร้านค้าและร้านอาหารมากมายหลายแบบ ทั้งร้านเล็กๆอาหารตามสั่ง ก๋วยเตี๋ยว ร้านอาหารทั้งไทยและเทศ รวมไปถึงร้านนั่งเล่น ผับ บาร์ อีกทั้งยังไม่ไกลจากสถานศึกษา สถานที่ราชการและโรงพยาบาล
หน้าโครงการเดินมาหน่อยจะมี 7-11 หรือเดินมาช่วงปากซอยสุขุมวิท 38 จะมีร้านอาหารตามสั่ง ก๋วยเตี๋ยว ร้านยำ ร้านข้าวมันไก่ ขนมหวาน ส้มตำ ผมไม้ ข้าวเนียวมะม่วง แต่ร้านส่วนใหญ่จะเปิดช่วงเย็นไปถึงดึกๆครับ ตรงซอยสุขุมวิท 36 ก็มีร้านอาหาร 2-3 ร้านไปฝากท้องกันได้ หรือข้ามไปอีกฝั่งของ BTS ก็มีร้านอาหารให้เลือกหลายร้านเช่นกัน หรือเดินไปซอยสุขุมวิท 55 จะค่อนข้างครบครันตั้งแต่แผงผลไม้ ร้านอาหารที่มีให้เลือกหลากหลายทั้ง ไทย จีน ฝรั่ง เกาหลี ญี่ปุ่น เลือกได้ตามความชอบเลย หรือไปเอกมัยก็มีร้านอาหาร รวมไปถึงแหล่งท่องเที่ยวยามราตรี ใครที่เป็นนักเที่ยวอยู่แถวนี้ไม่ผิดหวังครับ
ห้างสรรพสินค้า และคอมมูนิตี้มอลล์ใกล้ๆมี Terminal 21 , Emporium , Emquartier , Rain Hill , Gateway เอกมัย , J Avanue , Market Place , Maze , The Commons , 72 Courtyard , The Taste , 9:53 Art Mall , 49 Terrace , ตึก Eight , Donki Mall , Major เอกมัย , K-Village , Big C เอกมัย , Lotus พระรามสี่ , Big พระรามสี่
นอกจากนั้นก็ยังมีสถานศึกษาที่อยู่ในโซนนี้ อย่าง มศว. และโรงเรียนนานาชาติอีกหลายแห่ง เช่น Bangkok Prep , Wells International School, The American School of Bangkok, Ekkamai International School เป็นต้น และโรงพยาบาลชั้นนำในโซนนี้ก็มี รพ.คามิลเลียน และ รพ.สมิติเวช สุขุมวิท ในระยะอุ่นใจ ขยับไปหน่อยก็มี รพ.กรุงเทพ, รพ.ปิยะเวท, รพ.สุขุมวิท, รพ.กล้วยน้ำไท เป็นต้น
สถานที่สำคัญใกล้เคียง
ห้างสรรพสินค้า
สถานศึกษา
โรงพยาบาล
การเดินทางวันนี้เริ่มจากแยกอโศกถนนสุขุมวิท ขับตามแนวรถไฟฟ้า BTS มาจนถึง BTS ทองหล่อ ไปกลับรถใกล้ๆแยกทองหล่อ จากนั้นตรงไปจะเจอพื้นที่โครงการทางซ้ายมือติดกับถนนสุขุมวิท ใต้สถานี BTS ทองหล่อ
สรุปการเดินทาง ถนนสุขุมวิท > BTS ทองหล่อ > กลับรถ > THE ESSE สุขุมวิท 36
เริ่มจากแยกอโศกบนถนนสุขุมวิท มุ่งหน้าไปทางทองหล่อ
จากนั้นจะผ่านแยกสวัสดี ขวามือจะเป็น Emsphere อยู่ในช่วงก่อสร้างอยู่
ถัดมาหน่อยจะเป็น BTS พร้อมพงษ์ ซ้ายมือเป็น EmQuartier ฝั่งขวาจะเป็น Emporium
ถัดมาอีกซ้ายมือเป็น Rain Hill
ถัดมาอีกซ้ายมือเป็นโรงเรียนนานาชาติ Bangkok Prep
และจะเจอ BTS ทองหล่อ ซึ่งอยู่ติดกับโครงการ THE ESSE สุขุมวิท 36 เราต้องตรงไปกลับรถข้างหน้า
ผ่านแยกทองหล่อ
จากนั้นจะเจอจุดกลับรถ ให้กลับรถไปอีกฝั่ง
กลับรถมาก็ตรงไปเลยครับ
ผ่านแยกทองหล่อ และ BTS ทองหล่อ
ซ้ายมือจะเจอป้ายรถเมล์
ชิดซ้ายและเลี้ยวเข้าโครงการได้เลย อยู่ใต้สถานี BTS ทองหล่อ
ทำเลโดยรอบโครงการ THE ESSE สุขุมวิท 36 ส่วนใหญ่จะเป็นอาคารพาณิชย์ บ้านพักอาศัย คอนโดมิเนียม ด้านหน้าโครงการจะเป็นทิศเหนือติดกับถนนสุขุมวิท และเป็นที่ตั้งของ BTS ทองหล่อ ฝั่งด้านหลังโครงการเป็นทิศใต้จะติดกับที่ดินบุคคลอื่น ด้านข้างฝั่งทิศตะวันออกติดกับที่ดินบุคคลอื่นและบ้านพักอาศัย ด้านข้างโครงการทิศตะวันตกติดกับที่ดินบุคคลอื่น ถัดออกมาเป็นซอยสุขุมวิท 36 และโครงการ Noble Remix สูง 33 และ 11 ชั้น
ด้านหน้าทางเข้าออกโครงการอยู่ซ้ายมือ ติดถนนสุขุมวิท ตอนนี้อยู่ในช่วงเก็บรายละเอียดงาน ยังมีส่วนที่ไม่เรียบร้อยอยู่
ภาพบรรยากาศจำลองด้านหน้าโครงการที่ติดกับถนนสุขุมวิท ด้านซ้ายจะเป็นถนนทางเดินรถเข้า-ออกโครงการ ติดกันนั้นจะมีป้อมรปภ.และทางเดินคนแยกส่วน
ด้านหน้ามีป้ายโครงการติดไว้ชัดเจน รั้วด้านหน้าจะเป็นหิน Picasso Grey กลึงให้มีความโค้งตามคอนเซ็ปต์ จั่วบ้านไทย ด้วยแผ่นอลูมิเนียมสีแชมเปญโกลด์ ของจริงดูหรูดีครับ
ติดกับรั้วโครงการด้านหน้าจะเป็นลิฟต์ของ BTS ทองหล่อ
ถัดมามีวินมอเตอร์ไซค์ตรงปากซอยสุขุมวิท 36
ตัวพื้นที่โครงการอยู่เกือบติดซอยสุขุมวิท 36 ซึ่งเป็นซอยที่เชื่อมไปออกถนนพระรามสี่ได้ตรงปากซอยแสนสบาย และมีซอยย่อยเชื่อมกับสุขุมวิท 38 ได้
มองไปยังตัวโครงการ
มองจากมุมด้านบน ตัวโครงการฝั่งทิศตะวันตกจะติดกับที่ดินของ Fragrant ยาวเข้าไปถึงด้านหลังโครงการ ถัดออกมาจะเป็นซอยสุขุมวิท 36 และโครงการ Noble Remix
เงยหน้ามองตัวอาคารดูสวยเด่นไม่แพ้โครงการอื่นๆในบริเวณใกล้เคียง
ภาพตัวอาคารจากมุม 2 ฝั่ง
จากโครงการเดินไปดูฝั่งซอยสุขุมวิท 38 กันต่อ พื้นที่ฝั่งทิศตะวันออกจะติดกับที่ดินบุคคลอื่น
เลยมาหน่อยจะเจอบันไดทางขึ้นลง BTS ทองหล่อ
ถัดมาอีกเป็นไปรษณีย์ไทย มีป้ายรถเมล์ด้านหน้า
ถัดมาอีกมี 7-11 และเป็นบันไดเลื่อนขึ้น BTS ทองหล่อ
และจะเจอซอยสุขุมวิท 38
ตรงช่วงปากซอยมีเป็นโซนขายอาหาร ร้านส่วนใหญ่เปิดช่วงเย็นถึงดึก
ข้ามไหนปดูอีกฝั่งของ BTS ทองหล่อ ติดกับสถานีฝั่งนี้เป็นโรงเรียนนานาชาติ Bangkok Prep
ถัดมาร้านค้าร้านอาหารต่างๆ
มี 7-11
มีร้านก๋วยเตี๋ยว ข้าวมันไก่
มี Subway
เลยมาอีกหน่อยก็จะเป็นซอยทองหล่อ หรือสุขุมวิท 55 ในซอยนี้ก็จะเต็มไปด้วยร้านค้าร้านอาหารหลายร้านตั้งแต่ปากซอยเข้าไปเลย หาของกินง่ายดีครับ
Floor Plan
Master Plan โครงการเริ่มจากด้านหน้าติดกับถนนสุขุมวิท และติด BTS ทองหล่อ มีลิฟต์ขึ้นสถานีอยู่ตรงหน้าโครงการเลย เข้ามาในโครงการโซนพื้นที่ด้านหน้า เป็นสวนที่มีต้นไม้ใหญ่ ไม้พุ่มและพื้นที่นั่งเล่น ถัดเข้ามาด้านในอีกหน่อยจะเป็น Library room รอบๆมีพื้นที่นั่งพัผผ่อนให้อีก ถัดมาอีกจะเป็น Automatic Parking ถัดมาอีกจะเป็นจุด Drop Off ด้านหน้า Lobby มีทางขึ้นที่จอดรถแบบปกติด้านข้างจอดได้ถึงชั้น 4 หรือวนไปด้านหลังจะมีที่จอดแบบ Automatic Parking อีกจุด ทั้งโครงการคิดเป็น 100% รวมซ้อนคัน ภายในอาคารชั้น 1 จะมี Lobby มี Mail Box มีห้องน้ำแยกชายหญิง มีลิฟต์โดยสาร 4 ตัว ด้านหลังมีลิฟต์ขนของ 1 ตัว
ผังอาคารชั้น 2-4 เป็นพื้นที่จอดรถแบบปกติ แต่ละชั้นจะมีทางเชื่อมเข้าโถงลิฟต์โดยสารได้เลย
ผังอาคารชั้น 5-6 เป็นพื้นที่จอดรถของ Automatic Parking สำหรับชั้นนี้ก็จะมีฝ้าเพดานไม่สูงนักจึงมีการแบ่งชั้นเป็นชั้นย่อยๆ ทำให้มีพื้นที่จอดรถได้มากขึ้นเพราะพื้นที่จอดรถ Automatic Parking นั้นจะมีถึง 70% ของยูนิตพักอาศัยเลยทีเดียว
ผังอาคารชั้น 7 จะเป็นชั้นของพื้นที่ส่วนกลางทั้งหมดมีทั้งสระว่ายน้ำระบบเกลือขนาด 25 ม. x 6 ม., สวนพร้อมพื้นที่นั่งเล่นในสวน, ห้องสปา, ห้องเด็กเล่น, ห้องน้ำและออนเซนแยกชายและหญิง สำหรับห้องสปาจะเป็นห้องที่เตรียมไว้สามารถเรียกพนักงานนวดมานวดให้ที่โครงการได้เลย โดยโครงการจะไม่ได้มีพนักงานนวดอยู่ประจำให้แต่จะเตรียมห้องพร้อมอุปกรณ์เช่นเตียงมีไว้ให้ในห้อง
ผังอาคารชั้น 8 จะเป็นพื้นที่ส่วนกลางอีกชั้น มีห้องฟิตเนส, Golf Simulator, Virtual Bike โดยพื้นที่ชั้นนี้จะสามารถออกกำลังกายแล้วเห็นสระว่ายน้ำของโครงการด้านหน้า ส่วนด้านหลังถูกออกแบบมาให้เป็น Double Volume ของ Onsen ชั้น 7 เพื่อให้มีความรู้สึกโปร่งมากขึ้น
ผังอาคารชั้น 9 เริ่มเป็นชั้นพักอาศัย เนื่องจากพื้นที่อาคารน้อยลงทำให้ยูนิตพักอาศัยแต่ละชั้นไม่เยอะ อย่างชั้นนี้ก็มีเพียงครึ่งเดียวเท่านั้นเพราะอีกส่วนจะเป็นฝ้าของพื้นที่ส่วนกลางชั้น 8 ที่สูงขึ้นมาถึงชั้น 9
ผังอาคารชั้น 10-35 เป็นชั้นพักอาศัยทั้งหมด โดยมีห้องพักเพียง 12 ยูนิตเท่านั้นซึ่งเป็นจำนวนต่อชั้นมากสุดในโครงการ ซึ่งก็ถือว่าน้อยกว่าโครงการอื่นๆ มีความเป็นส่วนตัวสูง โดยชั้นอื่นๆห้องจะใหญ่ขึ้นทำให้มียูนิตน้อยลง จุดเด่นของโครงการคือแปลนชั้นจะเป็นแบบ Single Corridor เปิดประตูห้องออกมาจะไม่เห็นห้องฝั่งตรงข้ามเลย นอกจากนี้จะเห็นว่าตัวอาคารจะมีช่องลมที่อากาศสามารถพัดผ่านเข้ามาได้ เป็นการดึงเอกลักษณ์ของบ้านไทยในเรื่องการระบายอากาศมาใช้อีกด้วย
ผังอาคารชั้น 36-38 เป็นชั้นพักอาศัยห้องจะมีพื้นที่ใช้สอยใหญ่ขึ้นทำให้มีเพียง 6 ยูนิตต่อชั้นเท่านั้น
ผังอาคารชั้น 39 เป็นชั้นพักอาศัย เป็นห้องแบบ Penthouse Duplex ทั้งโครงการมีเพียง 4 ยูนิตเท่านั้น ความพิเศษกว่าห้องอื่นคือลิฟต์โดยสารจะเปิดที่หน้าห้องเราเลย เหมือนเป็น Private Lift
ผังอาคารชั้น 40 จะเป็นส่วนชั้น 2 ของ Penthouse
ผังอาคารชั้น 41 เป็นพื้นที่ส่วนกลางทั้งชั้นโดยจะมี Sky Lounge, Sky Theatre, The Residence Lounge, พื้นที่สวน สนามหญ้า พร้อมพื้นที่นั่งเล่นในสวน
ผังอาคารชั้น 42 เป็นชั้นของงานระบบ
ผังอาคารชั้น 43 เป็นชั้นของพื้นที่ปลูกผักที่ลูกบ้านสามารถนำไปประกอบอาหารได้ อีกทั้งยังมีพื้นที่สำหรับ Workshop ให้ด้วย
ชั้นดาดฟ้าเป็นพื้นที่ปลูกผักและที่นั่งพักผ่อน ซึ่งจะอยู่เยื้องกับชั้น 43 ทำให้สามารถมองเห็นสวนของชั้นล่างได้
โครงการ
THE ESSE สุขุมวิท 36 (ทองหล่อ) เป็นคอนโดมิเนียม High Rise ระดับ Ultimate Luxury ที่เป็นความร่วมมือกันระหว่าง Singha Estate กับ Hongkong Land พร้อมทั้งบริษัทชั้นนำด้านการออกแบบที่มีส่วนในการออกแบบโครงการ เพื่อให้ทุกรายละเอียดคำนึงถึงผู้พักอาศัย โดยทีมออกแบบจะเป็นทีมชั้นนำไม่ว่าจะเป็นทีม SOM ซึ่งเป็นทีมสถาปนิกระดับแนวหน้าจากทางอเมริกา ซึ่งทำงานร่วมกับทีมสถาปนิกไทยจากบริษัท Tandem ที่มีผลงานเป็นที่รู้จักมากมาย โดยทีมสถาปนิกได้แนวความคิดในการออกแบบโครงการมาจากเอกลักษณ์ของบ้านไทย และภูมิปัญญาท้องถิ่น ไม่ว่าจะเป็นลวดลายประดับตามไม้ เสา , สวนในบ้าน และการที่บ้านไทยจะเป็นบ้านที่อากาศถ่ายเทได้ดี ทางทีมงานก็ได้ดึงส่วนนี้เข้ามาในตัวอาคาร โดยอาคารจะมีช่องทางเดินลมเพื่อให้ลมสามารถพัดผ่านตัวอาคารได้ ทำให้ภายในอาคารมีอากาศถ่ายเทอยู่ตลอดและยังช่วยประหยัดพลังงานอีกด้วย
อีกทั้งยังลงรายละเอียดอื่นๆในการออกแบบไม่ว่าจะเป็นภูมิทัศน์ และการตกแต่งภายใน มีการตกแต่งที่สอดคล้องไปกับ Concept โดยมีทีม Landscape จาก shma ซึ่งเป็นบริษัทภูมิสถาปนิกไทยที่ทำงานในระดับสากล สำหรับงานตกแต่งภายในจะเป็นทีม dwp เป็นบริษัทไทยที่มีชื่อเสียงเช่นเดียวกัน และยังได้ร่วมมือกับ Jim Thompson เพื่อออกแบบผ้าม่านและวอลเปเปอร์ ให้กับโครงการ
โครงการออกแบบภายใต้คอนเซ็ปต์ “A Harmony of Contrast ความสมดุลแห่งความแตกต่างที่พอดี” ความสงบและความหรูหราสุดพิเศษที่ตรงข้ามกับชีวิตในเมืองที่วุ่นวายนั้น คือการหลบหนีจากชีวิตในเมืองที่วุ่นวายไปสู่สถานที่ที่ช่วยให้จิตใจได้รับการพักผ่อน และยังเป็นสถานที่ที่คุณสามารถเป็นตัวของตัวเองได้อย่างแท้จริง
ตัวโครงการตั้งอยู่บนที่ดินขนาด 2-2-0 ไร่ อาคารสูง 43 ชั้น 1 อาคาร มีจำนวนยูนิตทั้งหมด 338 ยูนิต จัดวางอาคารยาวตามแนวที่ดิน โดยให้ตัวอาคารอยู่โซนด้านในสุดของพื้นที่เพื่อหลบให้พ้นโครงการ Noble Remix ที่สูง 33 ชั้นด้านหน้านั่นเองครับ ชั้นพักอาศัยจะเริ่มที่ชั้นที่ชั้น 9-40 Facility จะอยู่ที่ชั้น 1 , 7 , 8 , 41 , 43 , ดาดฟ้า จอดรถได้ที่ชั้น 2-4 และ มีที่จอดแบบ Auto Parking ท้ังโครงการคิดเป็น 100% รวมจอดซ้อนคัน
ด้านหน้าโครงการเข้าออกตอนนี้ยังอยู่ในช่วงเก็บรายละเอียดอยู่นะครับ เข้าโครงการมาขวามือจะเป็นพื้นที่สวนพักผ่อน ส่วนตัวอาคารออกแบบให้อยู่ด้านหลังพื้นที่โครงการด้านใน
เงยหน้ามองอาคาร จะเห็นตัว facade รูปทรงโค้งที่ได้แรงบันดาลใจมาจากจั่วเรือนไทย ทำจาก GRC และ Aluminium composite ขึ้นรูปพิเศษเฉพาะโครงการ The Esse สุขุมวิท 36 ช่วยทำให้ตัวอาคารดูมีมิติ และสบายตามากขึ้น ทำให้เห็นได้ถึงความใส่ใจในรายละเอียดของโครงการ
ถัดเข้ามาจะเจอทางเข้าที่จอดรถแบบ Automatic Parking
Automatic Parking จุดนี้จะมี 2 ช่องสำหรับจอดรถแบบ Sedan
ถัดมาเป็นจุด Drop off ด้านหน้าทางเข้า Lobby
ถัดจาก Drop Off เข้ามา ซ้ายมือจะเป็นทางขึ้นที่จอดรถในอาคาร จอดแบบปกติ
ด้านหลังฝั่งนี้จะมีทางออกจาก Automatic Parking ของรถ Sedan
มองไปฝั่งด้านหลังอาคาร ถนนจะรอบตัวอาคารรถวิ่งวนรอบได้หมด
มี Automatic Parking อีกจุดสำหรับรถแบบ SUV มีให้ 2 ช่อง
ขึ้นไปดูชั้นจอดรถแบบปกติกันต่อ
ช่องจอดรถจะแบบ 2 ฝั่ง จอดได้ถึงชั้น 4
แต่ละชั้นจะมีทางเดินเชื่อมเข้าโถงลิฟต์โดยสารได้เลย
กลับลงมาชั้นล่างด้านหน้าอาคาร จะมีสวนพักผ่อน
มีที่นั่งพักผ่อน วางโซฟาชุดใหญ่มาให้
มองไปด้านหน้าจะเห็นสวน
สวนจะมีสนามหญ้าโล่งๆตรงกลาง ล้อมรอบด้วยต้นไม้ใหญ่ ไม้พุ่ม ได้แรงบันดาลใจมาจาก ภูมิประเทศท้องถิ่นนาขั้นบันได สวนบริเวณนี้จะเป็น Buffe ระหว่างอาคารภายนอกให้ความรู้สึกเป็นส่วนตัว ปราศจากเสียงรบกวน และความรู้สึกสบายใจอยู่กับธรรมชาติ ซึ่งออกแบบ Landscape โดย shma ซึ่งเป็นบริษัทภูมิสถาปนิกไทยที่ทำงานในระดับสากล
เดินเข้ามาพื้นจะลดระดับลงเป็น Sunken seat ไว้นั่งพักผ่อนในสวนชิวๆ
จัดต้นไม้มาให้เยอะดี ต้นไม้ที่เลือกใช้จะเป็นพันธุ์ท้องถิ่นไทย และล้วนเป็นต้นไม้มงคลเช่น ต้นนางกวัก ต้นมั่งมี ดูร่มรื่น และสวยสบายตาดีครับ นอกจากนี้ยังมี Sculpture วางโชว์ในสวน ที่มีชื่อว่า Golden ears of rice Sculpture หรือรวงทอง การออกแบบได้รับแรงบันดาลใจจากรวงข้าวสีทอง
มองไปฝั่งตัวอาคาร
ด้านข้างฝั่งนี้มีสวนและพื้นที่นั่งพักผ่อนอีกจุด
มุมนั่งพักผ่อนตรงนี้จะเชื่อมออกมาจาก Library room
เดินเข้าไปดูตรงอาคารส่วนแรกกันต่อครับ ซ้ายมือจะมีพื้นที่นั่งพักผ่อน ขวามือจะเป็น Library room บริเวณส่วนนี้ออกแบบเหมือนใต้ถุนสูงของบ้านไทยสมัยก่อนที่ช่วยให้ลมพัดผ่านได้ตลอด การจัดวางแปลนพื้นที่การใช้งานต่างๆเหมือนเป็นชานบ้านที่เชื่อมเรือนต่างๆของบ้านไทย เช่นแยกเรือนรับรอง เรือนที่พักส่วนตัว ทำให้เกิดการแบ่งพื้นที่เป็นสัดส่วนและเป็นส่วนตัว แต่ก็ยังมีส่วนที่เชื่อมต่อกันได้อย่างลงตัว
ที่พื้นจะเป็นหิน Picasso Grey บางส่วนใช้วิธีปูแบบ Buzon คือการยกแผ่นหินขึ้นมาไม่ให้แผ่นหินสัมผัสพื้นด้านล่างโดยตรง ทำให้หินหายใจได้ไม่มีลักษณะของหินด่างเป็นจ้ำเพราะน้ำที่ซึมขึ้นมา
พื้นที่นั่งพักผ่อนด้านข้าง
มองไปฝั่ง Library room จะเป็นห้องกระจกมองเห็นวิวสวนด้านนอก
ภายในห้องจะมีพื้นที่นั่งพักผ่อนตามมุมต่างๆ ไว้นั่งอ่านหนังสือ ทำงาน หรือไว้รับแขกที่มาเยี่ยมเราก็ได้ Chandelier ด้านบนที่ทอจากเส้นใยทองเหลือง ได้รับแรงบันดาลใจมาจากผ้าไหมไทย ผนังที่เสาเป็นหิน Palissandro Copper Bronze ส่วนหินที่เคาน์เตอร์เป็น Black Forest
มุมด้านในอีกส่วน
เดินเข้ามาจะผ่าน Auto Parking ของรถ Sedan
และจะผ่านจุด Drop Off ตรงหน้าเราจะเป็นทางเข้า Lobby ของตัวอาคาร ประตูทางเข้าจะเป็นกระจกบานเปิด 2 บาน สูงจากพื้นถึงฝ้า มีพนักงานคอยเปิด-ปิดให้ตลอด
เดินเข้ามาด้านในโถง Lobby ความรู้สึกแรกที่เดินเข้าไปเหมือนเดินเข้า Lobby โรงแรม 5 ดาวเลย ทั้งโทนสี การตกแต่งต่างๆ มีการใส่ใจในรายละเอียดต่างๆ ดูเรียบหรูใช้ได้เลย อย่างที่พื้นของ Lobby ปูลาย pattern พื้นจากลายฝาปะกนของบ้านไทย ที่ผนัง และเคาน์เตอร์เป็นหิน Palissandro Bluette ต่อลาย และจะสะดุดตากับ Chandelier ด้านบนที่ทอจากเส้นใยทองเหลือง ได้รับแรงบันดาลใจมาจากผ้าไหมไทย
โครงการมีบริการ Concierge service จะประจำอยู่ตรงเคาน์เตอร์ส่วนนี้ โดยจะดูแลลูกบ้านติดต่อประสานงานบริการต่างๆ เช่น ร้านอาหาร, สปา, ซักรีด, รถรับส่ง, สำรองพื้นที่ส่วนกลาง ฯลฯ เพื่ออำนวยความสะดวกให้ลูกบ้านอยู่สะดวกดสบายที่สุด นอกจากนี้ใน Lobby และพื้นที่ส่วนกลางต่างๆจะติดตั้งเครื่องฟอกอากาศมาตรฐานโรงพยาบาล เพื่ออากาศบริสุทธิ์ ปลอดจากเชื้อไวรัส เชื้อรา เชื้อแบคทีเรีย ฝุ่นละอองต่างๆรวมถึง PM 2.5
มองกลับไปฝั่งประตูทางเข้า
ตรง Lobby จะมีพื้นที่นั่งพักผ่อน และนั่งรอรถของ Auto Parking มีจอแสดงสถานะให้ 2 จอ
มองไปอีกฝั่ง
มุมนั่งพักผ่อนอีกฝั่ง
ด้านในจะมีทางเดินไปยังห้องน้ำ และห้องนิติบุคคล
ภายในห้องน้ำชาย
โถสุขภัณฑ์ภายในห้องน้ำตัวกดใช้ระบบสัมผัสของ Geberit
อีกฝั่งจะเป็นส่วนของ Mail Room ประตูห้องเป็นแบบบานเปิดคู่เหมือนบ้านไทยสมัยก่อน
ภายใน Mail room
ถัดไปจะเป็นประตูทางเข้าโถงลิฟต์ ส่วนนี้ต้องใช้ Key Card ครับ
ภายในโถงลิฟต์โดยสาร มีลิฟต์ให้ 4 ตัว ตรงหน้าเป็นประตูเชื่อมออกไปยังลิฟต์ขนของ และออกไปตรง Auto Parking ของรถ SUV ได้
ระบบการใช้งานลิฟต์เป็นระบบล็อคชั้น ขึ้นได้เฉพาะชั้นของเราและชั้นส่วนกลาง ต้องใช้ Key Card แตะที่ใต้เครื่องนี้ และกดเลือกชั้นที่หน้าจอซึ่งเป็นระบบสัมผัสได้เลย จากนั้นก็รอลิฟต์เปิดก็เดินเข้าได้เลย ลิฟต์จะไปที่ชั้นเราเลือกตั้งแต่ด้านหน้า ภายในลิฟต์จะไม่มีตัวกดลิฟต์ให้นะครับต้องเลือกให้เรียบร้อยตั้งแต่ด้านหน้า ข้อเสียก็อาจจะมีคือถ้าเราอยากจะเปลี่ยนใจไปชั้นอื่นก็ต้องออกมากดเลือกชั้นด้านนอกก่อนแล้วรอเดินเข้าไปใหม่
ภายในโถงลิฟต์โดยสาร ประตูลิฟต์จะมีทางเข้าออก 2 ฝั่ง อีกฝั่งจะเป็นส่วนของห้อง Penthouse นั่นเองครับ ภายในลิฟต์จะมีปุ่มกดเปิดปิดลิฟต์ และโทรฉุกเฉินเท่านั้น
ขึ้นมาที่ชั้น 7 จะเป็นส่วนกลางทั้งชั้น เดินไปดูฝั่งด้านหลังกันก่อน จะเป็นพื้นที่นั่งพักผ่อน
พื้นที่นั่งพักผ่อนเปิดรับลมชมวิวด้านหลังโครงการ
เงยหน้ามองด้านบนจะเห็นตัวอาคารที่ออกแบบให้เป็นช่อง Void สูงขึ้นไปถึงชั้น 40 เป็นช่องที่ลมสามารถผ่านถ่ายเทได้ตลอดเวลา ซึ่งจะเชื่อมกับส่วน Corridor ของแต่ละชั้นทั้งหมด จะช่วยดึงอากาศภายในให้ถ่ายเทหมุนเวียนได้ตลอด
กลับเข้ามาตรงโถงลิฟต์ มองไปอีกฝั่งจะมีประตูเดินเชื่อมไปยัง Facility หลัก
เดินออกมาจะเป็นทางเดินแจกไปยังส่วนต่างๆ ทั้งแบบ Indoor และ Outdoor
เดินออกมาดูส่วน Out door กันก่อน จะมีสระว่ายน้ำและสวนพักผ่อน
สระว่ายน้ำระบบเกลือขนาดประมาณ 25 x 6 ม. แบ่งสระเด็ก
ด้านข้างฝั่งนี้จะเป็นส่วนนั่งพักผ่อน
มองไปริมสระอีกฝั่งจะมี Day Bed มาให้ มีแนวต้นไม้บังสายตาจากเพื่อนบ้าน
เดินมาอีกฝั่ง มีทางเดินเชื่อมไปยังส่วนของ Day Bed
มุมมองจาก Day Bed ได้วิวสระ
บริเวณสระว่ายน้ำมุมต่างๆ
ปลายสระจะมีส่วนที่เป็น Jacuzzi ไว้นั่งแช่ตัวชมวิวทองหล่อ
วิวฝั่งด้านหน้าโครงการมองไปฝั่งซอยสุขุมวิท 53
ฝั่งด้านข้างมองไปทางแยกทองหล่อ
มองกลับไปที่ตัวอาคาร
กลับเข้ามาด้านในไปดูส่วนอื่นกันต่อ ซ้ายมือจะเป็น Kid’s room ฝั่งขวาจะเป็น Private Spa room และมีบันไดเดินขึ้นไปชั้น 8 ซึ่งเป็นส่วนกลางอีกชั้นได้
Kid’s room จะอยู่ตรงข้ามกับห้องน้ำหญิง
ภายใน Kid’s room มีของเล่นเสริมสร้างพัฒนาการเด็กๆ พื้นจะเป็นพรมเพื่อรองรับแรงกระแทก
อีกฝั่งเป็น Private Spa Room อยู่หน้าห้องน้ำชาย
ภายใน Private Spa Room ด้านหน้าจะเป็นโถงรับรองมีโซฟาให้นั่งรอได้ และจะแบ่งเป็น 2 ห้องย่อย
ห้องแรกจะเป็นห้องไว้สำหรับแต่งตัว แต่งหน้า เผื่อใครจ้างช่างแต่งหน้าไปงานก็มาใช้งานที่ห้องนี้ได้ มีโต๊ะพร้อมกระจกบานใหญ่ให้
อีกห้องจะเป็นห้อง Spa มีเตียงสำหรับนวด และมีเคาน์เตอร์อ่างล้างหน้ามาให้ ลูกบ้านสามารถให้หมอนวดส่วนตัวมานวดให้ที่ห้องนี้ได้เลย โดยต้องจองล่วงหน้า
ภายในห้องน้ำชาย เข้ามาจะเจอเคาน์เตอร์อ่างล้างหน้า ซ้ายมือเป็นตู้ล็อคเกอร์
ด้านในจะมีโถปัสสาวะ และห้องน้ำ 3 ห้อง
ถัดมาด้านในจะมีห้องอาบน้ำ 4 ห้อง
ในสุดจะมีประตูเลื่อนเข้าไปยังห้อง Onsen
เข้ามาจะเจอตู้ล็อคเกอร์ก่อน
และจะมีประตูเข้ามายังห้อง Onsen จะมีแบบนี้ทั้งฝั่งห้องผู้หญิงและผู้ชาย
ฝั่งนี้เป็นห้อง Steam
อีกฝั่งเป็นที่นั่งอาบน้ำแบบญี่ปุ่น
ถัดเข้ามาซ้ายมือจะเป็นจุดล้างตัว
จุดล้างตัว ตรงกระจกจะมีม่านปิดให้นะครับ
ถัดเข้ามาด้านในจะเป็นบ่อ Onsen แบ่งเป็น 2 บ่อ
ด้านในสุดจะมีงานศิลป์ตั้งโชว์ Balancing stone Sculpture ที่สื่อถึงความโชคดี ให้ความรู้สึกผ่อนคลายและสงบนิ่งแบบ zen
ติดกับห้องน้ำชายจะเป็นบันไดเดินขึ้นไปยังชั้น 8
ขึ้นมาชั้น 8 จะเป็นห้องฟิตเนส
ภายในห้องฟิตเนสมีพื้นที่มาให้เยอะ วางเครื่องออกกำลังกายมาหลากหลายชนิด มีทั้งหมด 23 เครื่อง
มีเครื่องปั่นจักรยาน
วิวมองออกไปเห็นสระว่ายน้ำที่ชั้น 7
มีที่นั่งพัก ขวามือเป็นประตูเข้าออกได้จากชั้น 8 อีกทาง
มุมนี้เป็นลู่วิ่ง
เครื่องเดินออกกำลังกาย
ดัมเบลและม้านั่งออกกำลังกาย และเครื่องยกน้ำหนัก
เครื่องบริหารกล้ามเนื้อ
มองไปอีกฝั่ง
จากห้องฟิตเนสจะมีทางเดินเชื่อมไปอีกโซน
เดินมามุมนี้จะเป็นห้องโล่งๆไว้ให้ทำกิจกรรมออกกำลังกายต่างๆเช่น โยคะ คลาสเต้น
มุมด้านในจะเป็นห้อง Golf simulator และ Virtual bike
ภายในห้อง Golf simulator มีจอโปรเจ็คเตอร์ จอทีวี พร้อมอุปกรณ์ และที่นั่งพักให้
ภายในห้อง Virtual bike มีเครื่องปั่นจักรยาน 4 เครื่อง สามารถเชื่อมต่อแข่งกับเพื่อนได้ ไฟในห้องจะปรับเปลี่ยนสีได้ตามชอบ เพื่อความสนุกเป็นสีสันมากขึ้น
อีกฝั่งมีโซฟานั่งพัก
ขึ้นลิฟต์มาที่ชั้น 41 ซึ่งเป็นชั้นส่วนกลางทั้งชั้น แบ่งโซนเป็นแบบ Outdoor และ Indoor
เดินมาฝั่งโซนด้านหน้าอาคาร จะเป็นพื้นที่นั่งพักผ่อน ตรงกลางเป็น Silk Sculpture ที่ได้แรงบันดาลใจจากผ้าไหมไทยที่พริ้วไหว
มุมด้านหน้าจะเป็นที่นั่งชมวิวเมือง มีกระจกบานเลื่อนเปิดปิดรับลมได้
วิวมองไปฝั่งด้านหน้าโครงการ
เดินออกมาฝั่งด้านข้างจะมีพื้นที่สวน และที่นั่งพักผ่อน
สวนยาวเชื่อมไปด้านหลังของอาคาร
เดินมาโซนด้านหลัง มีที่นั่งพักผ่อนใต้ต้นไม้
ด้านในก็เป็นที่นั่งพักผ่อน
มีชิงช้าไว้นั่งชมวิวชิวๆ มีกระจกบานเลื่อนเปิดปิดได้
วิวด้านหลังมองไปเห็นบางกะเจ้า
มองกลับเข้าไปด้านในอาคาร ซ้ายมือจะเป็น Sky Lounge
ภายใน Sky Lounge ห้องนี้เราสามารถจองจัด Private Praty ได้ด้วยครับ
มีเคาน์เตอร์บาร์พร้อมแก้วเครื่องดื่ม พร้อมชมวิวบางกะเจ้าได้ด้วย
มีตู้เก็บของและอ่างล้างจานมาให้ด้วย
อีกมุมจะวางชุดโต๊ะนั่งไว้รองรับ
อารมณ์เหมือนไปนั่ง Rooftop bar ของโรงแรมเลย
วิวฝั่งนี้มองไปทางอโศก
อีกฝั่งจะวางโต๊ะพลูมาให้ ที่ผนังเป็นหินซ่อนไฟไว้ด้านหลัง และจะมีลิฟต์ที่ขึ้นไปยังชั้น 43 เป็นชั้นส่วนกลางอีก
ด้านหลังลิฟต์จะมีทางเดินเชื่อมไปอีกโซนได้
เดินออกมาซ้ายมือจะมีห้องน้ำแยกชายหญิง
ถัดมาจะเป็น Residence Lounge
ภายในจะห้องจะมีโต๊ะรับประทานอาหารขนาด 12 ที่นั่ง พร้อมชุดจาน ชาม แก้วไว้ให้ สามารถจองเพื่อจัด Private Dining ได้
ด้านในมีเคาน์เตอร์ส่วนเตรียมอาหารไว้รองรับ พร้อมอ่างล้างจาน
วิวจากห้องจะมองออกไปทางอโศก
ถัดมาจะเป็นห้อง Sky Theater
ภายในห้อง Sky Theater จะมีที่นั่งและจอโปรเจ็คเตอร์
ขึ้นลิฟต์จากตรงห้อง Sky Lounge มาที่ชั้น 43 เดินออกมาจะเชื่อมกับบันไดหนีไฟพอดี ซ้ายมือจะเป็นเดินออกไปยัง Roof Orchard
เดินออกมาจะเป็นแปลงพืชผักสวนครัว ลูกบ้านสามารถเก็บไปประกอบอาหารได้
มีพื้นที่ไว้สำหรับนั่งพักผ่อน หรือไว้ทำกิจกรรมต่างๆได้
จากชั้น 43 เดินขึ้นบันไดหนีไฟมาที่ชั้นดาดฟ้า จะเป็นจุดชมวิวของโครงการและมีแปลงผักสวนครัวอีกจุด
มีแปลงผัก และพื้นที่นั่งพักผ่อนชมวิว ฝั่งโซนด้านหลัง
แปลงผัก และพื้นที่นั่งพักผ่อนชมวิว ฝั่งโซนด้านหน้า
จากชั้นดาดฟ้ามองลงมาเห็นชั้น 43 แบบนี้
วิวฝั่งด้านหน้าโครงการทิศเหนือจะมองไปทางเพชรบุรี (ฝั่งสุขุมวิทเลขคี่)
วิวด้านข้างฝั่งทิศตะวันออกมองไปทางเอกมัย
ด้านข้างอีกฝั่งทิศตะวันตกวิวมองไปทางอโศก
ด้านหลังโครงการเป็นทิศใต้วิวมองออกไปเห็นบางกะเจ้า และโค้งแม่น้ำเจ้าพระยา
Units Type
โครงการมีแบบห้องให้เลือกดังนี้
1 Bedroom ขนาด 38.5 ตร.ม.
1 Bedroom ขนาด 43.25 ตร.ม.
2 Bedroom ขนาด 73.50 ตร.ม.
2 Bedroom ขนาด 77.00 ตร.ม.
3 Bedroom ขนาด 116.75 ตร.ม.
3 Bedroom ขนาด 124.25 ตร.ม.
Penthouse ขนาด 252.00 ตร.ม. (Lower) โดยห้องแบบ Penthouse จะเป็นห้องที่เมื่อเปิดลิฟต์จะเป็นห้องพักเลย
Penthouse ขนาด 252.00 ตร.ม. (Upper)
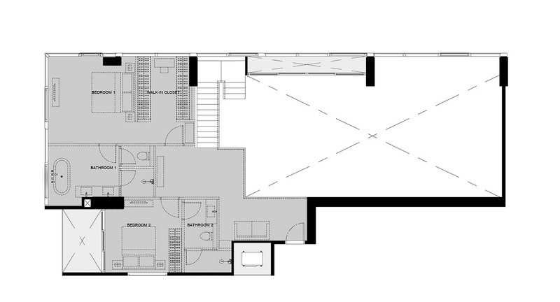
ห้องตัวอย่าง
ห้องตัวอย่างที่จะพามาชมวันนี้มี 2 แบบ
แบบแรก 1 Bedroom ขนาด 38.5 ตร.ม. เป็นห้องขนาดเริ่มต้นของโครงการ เดินเข้าห้องมาจะเจอส่วนครัวก่อนได้เป็นครัวเปิด เชื่อมกับส่วนห้องนั่งเล่น และส่วนรับประทานอาหาร ติดกับเคาน์เตอร์อ่างล้างจานจะเป็นตู้วางเครื่องซักผ้า ติดกับห้องนั่งเล่นจะเป็นระเบียง อีกฝั่งจะเป็นห้องนอน ภายในห้องนอนมีพื้นที่มาให้พอสมควร มีพื้นที่ Walk in closet ให้ ห้องน้ำจะอยู่ในห้องนอน ภายในห้องน้ำจะแบ่งส่วนเปียกส่วนแห้ง พร้อมอ่างอาบน้ำ
เริ่มจากประตูห้อง เป็นประตูบานใหญ่ วัสดุเป็นไม้อัดปิดผิวด้วยวีเนียร์ไม้สีน้ำตาลเข้ม ทุกห้องจะมี Digital door lock ให้ ของ Samsung ซึ่งสามารถเปิดห้องได้ด้วยกุญแจ, รหัสผ่าน, สแกนลายนิ้วมือ
เดินเข้าห้องมาจะเจอส่วนครัวก่อน ได้เป็นครัวเปิดเชื่อมกับส่วนห้องนั่งเล่นด้านใน พื้นส่วนครัวจะเป็นกระเบื้องพอร์ซเลนขนาด 60×60 ซม. ส่วนด้านในจะเป็น Engineered wood ฝ้าส่วนครัวสูง 2.7 ม. ส่วนห้องนั่งเล่นและห้องนอนสูง 3 ม. ผนังจะได้ฉาบเรียบติดวอลเปเปอร์ เป็นสีที่ออกแบบมาให้โครงการโดยเฉพาะ ของ Jim Thompson และจะได้ระบบ Home Automation จาก Schneider ควบคุมได้ทั้งระบบไฟ, เครื่องปรับอากาศ และม่าน สามารถควบคุมผ่าน Application ในมือถือได้
เดินเข้ามาแล้วมองกลับไปที่ส่วนครัว ขวามือจะเป็นประตูห้อง
บนฝ้าตรงประตูห้องจะมีไฟอัตโนมิตที่จะเปิดเองอัตโนมัติเมื่อมีการเปิดประตูห้อง
ชุดเคาน์เตอร์ครัวจะได้ตามนี้เลย หน้าบานตู้และผนังส่วนนี้จะปิดผิวด้วยกระจกเงาสีชาทองสูงจรดฝ้าเพดาน
ฝั่งนี้จะเป็นตู้เย็นของ Kuppersbusch โดย Built-in ฝังเป็นส่วนนึงของชุดครัวมาให้ ส่วนด้านบนเป็นตู้เก็บของ ติดกันเป็นตู้เก็บของ เก็บรองเท้า ตู้เป็นบานเปิดพร้อม Soft close ทุกบาน
ตู้เหนือเตาไฟฟ้าจะเปิดและปิดสะดวกด้วยระบบอัตโนมัติ คือกดเปิดตรงมุมตู้หน้าบานก็จะเปิดขึ้นไปด้านบน และสามารถกดปุ่มปิดด้านใน หน้าบานก็จะพับลงมาเองอัตโนมัติ มีไฟซ่อนอยู่ด้านในเปิดปิดพร้อมบานตู้
ด้านล่างจะเป็นลิ้นชัก 2 ช่อง และจะได้เตาอบ Built-in มาให้ของ Kuppersbusch
อีกฝั่งเป็นลิ้นชัก 3 ช่อง และตู้เก็บของใต้อ่างล้างจานแบบบานเปิด
ได้เตาไฟฟ้าหน้าเซรามิคและเครื่องดูดควันของ Kuppersbusch ท็อปเคาน์เตอร์ครัวและผนัง Backsplash จะเป็นหินควอทซ์สีดำลายขาว
อีกฝั่งเป็นอ่างล้างจานแบบหลุมเดียวของ Franke ฝังท็อปเคาน์เตอร์มาให้เรียบร้อย
ติดกับตรงอ่างล้างจานจะได้โต๊ะเคาน์เตอร์หินควอทซ์สีดำลายขาวแบบเดียวกับเคาน์เตอร์ครัว
ถัดไปเป็นส่วนห้องนั่งเล่น ฝั่งสูง 3 ม.
พื้นส่วนห้องนั่งเล่นและห้องนอนจะเป็น Engineering Wood สี Dark Oak ปูแบบ Herringbone Pattern หรือปูแบบลายก้างปลานั่นเองครับ
มุมนี้วางชุดโซฟาขนาด 2 ที่นั่งมาให้ดูพร้อมโต๊ะกลาง
ระยะดูทีวีประมาณ 3.1 ม. ตรงผนังด้านหลังทีวีจะได้เป็นหินอ่อน White Marmara ได้เต็มผนังและเว้นช่องสำหรับใส่ทีวีไว้ให้
ถัดไปจะเป็นระเบียงมีกระจกบานเลื่อนให้ โครงการจะให้ผ้าม่านพร้อมติดตั้งให้ทุกห้องออกแบบโดย Jim Thomson การเปิดปิดควบคุมผ่านระบบ Home Automation ได้ หรือเพียงกระตุกม่านเล็กน้อย ม่านก็จะเปิด-ปิดได้อัตโนมัติครับ
ตรงระเบียงมีพื้นที่ประมาณ 1.5 x 0.70 ม. ราวกันตกจะเป็นกระจกลามิเนต ไม่บังวิวด้านนอก
ด้านข้างจะเป็นพื้นที่วางคอมเพลสเซอร์แอร์ มีประตูระแนงเปิดปิดได้
วิวจากห้องตัวอย่างชั้น 15 มองไปทางทิศตะวันออก
มองกลับเข้ามาในห้องจะเห็นแบบนี้ แอร์จะได้เป็นแบบ Ceiling Concealed Type หรือฝังฝ้า
ถัดไปเป็นประตูเข้าห้องนอน หน้าประตูห้องนอนจะมีตู้สำหรับวางเครื่องซักผ้า
ตู้จะเป็นบานเปิด 2 บาน ภายในมีพื้นที่ให้วางเครื่องซักผ้าได้ เดินระบบท่อน้ำและไฟไว้รองรับ
ภายในห้องนอนมีพื้นที่มาให้พอประมาณ วางเตียง King Size ได้ ระยะดูทีวีปลายเตียงประมาณ 2.6 ม. กระจกในห้องบานใหญ่ เป็นบานกระทุ้ง 1 บาน ได้ผ้าม่านของ Jim Thomson
บานกระจกทุกห้องจะได้เป็น Insulated Glass Unit (IGU) เป็นกระจก 2 ชั้นเว้นช่องตรงกลาง มีประสิทธิภาพในการลดการถ่ายเทความร้อนจากภายนอกสู่ภายในตัวอาคารได้เป็นอย่างดีถึง 45% ทำให้ช่วยลดการใช้พลังงานในอาคาร และยังช่วยกันเสียงได้ดีอีกด้วยครับ
ฝั่งด้านในจะเป็น Walk in closet มีกระจกบานเลื่อนเปิดปิดแยกส่วนให้ตามนี้เลย และด้านในจะเป็นห้องน้ำ แอร์จะได้แบบ Ceiling Concealed Type
ภายใน Walk in closet จะได้ตู้เสื้อผ้าแบ่งสองฝั่งตามนี้เลย
ถัดเข้ามาจะเป็นห้องน้ำ ภายในแบ่งส่วนเปียกส่วนแห้ง ได้ตามนี้เลย
ตรงกระจกจะเป็นตู้เก็บของด้านหลัง
อ่างล้างหน้าได้ของ TOTO ฝังเคาน์เตอร์มาให้ ก็อกน้ำแบบผสมน้ำร้อนน้ำเย็นของ Gessi ท็อปเคาน์เตอร์เป็นหินอ่อน Laurent Brown ติดกันเป็นโถสุขภัณฑ์ของ Toto Washlet แบบอัตโนมัติ เป็นโถลอยตัวฝังติดกับผนังด้านหลัง
มีตู้เก็บของใต้อ่างล้างหน้า
อีกฝั่งเป็นพื้นที่ส่วนเปียก พร้อมติดตั้งฉากกั้นอาบน้ำแบบบานเปิด ภายในติดตั้ง Rain Shower & Hand Shower ก๊อกน้ำเป็นแบบผสมน้ำร้อนน้ำเย็นของ Gessi มีช่องสำหรับวางอุปกรณ์อาบน้ำมาให้ด้วย ผนังด้านในเป็นหินอ่อน Laurent Brown แบบเดียวกับเคาน์เตอร์อ่างล้างหน้า
อีกฝั่งเป็นอ่างอาบน้ำของ TOTO
มองออกมาจากห้องน้ำจะเห็นแบบนี้
แบบสอง 2 Bedroom ขนาด 73.50 ตร.ม. ตำแหน่งห้องนี้จะอยู่ตรงมุมอาคารทั้งหมด เดินเข้าห้องมาจะเจอส่วนครัวและส่วนรับประทานอาหารก่อน ถัดเข้าไปจะเป็นส่วนห้องนั่งเล่น และระเบียง ถัดเข้าไปจะเป็นห้องน้ำ และห้องนอน 2 ห้อง มุมฝั่งซ้ายจะเป็น Master Bedroom ภายในห้องมีพื้นที่มาให้เยอะ แบ่งเป็นส่วนห้องนอน ส่วน Walk in closet และมีห้องน้ำในห้องนอน มุมฝั่งขวาจะเป็นห้องนอนเล็ก มีพื้นที่มาให้พอประมาณวางโต๊ะ ตู้ เตียงได้ครบ
เดินเข้าห้องมาจะเจอส่วนครัวและส่วนรับประทานอาหาร เชื่อมกับส่วนห้องนั่งเล่นด้านใน พื้นส่วนครัวจะเป็นกระเบื้องพอร์ซเลนขนาด 60×60 ซม. ส่วนด้านในจะเป็น Engineered wood ฝ้าส่วนครัวสูง 2.7 ม. ส่วนห้องนั่งเล่นและห้องนอนสูง 3 ม. ผนังจะได้ฉาบเรียบติดวอลเปเปอร์ เป็นสีที่ออกแบบมาให้โครงการโดยเฉพาะ ของ Jim Thompson และจะได้ระบบ Home Automation จาก Schneider ควบคุมได้ทั้งระบบไฟ, เครื่องปรับอากาศ และม่าน สามารถควบคุมผ่าน Application ในมือถือได้
เดินเข้ามาแล้วมองกลับไปที่ประตูห้อง หน้าประตูจะได้ไฟเปิดปิดอัตโนมัติ
ติดกับประตูห้องจะเป็นตู้เก็บของ เก็บรองเท้า และตู้สำหรับวางเครื่องซักผ้า
ถัดเข้ามาเป็นส่วนครัว และส่วนรับประทานอาหารมีพื้นที่มาให้เยอะ
ชุดเคาน์เตอร์ครัวจะได้ตามนี้เลย
ได้ตู้เย็นของ Kuppersbusch โดย Built-in ฝังเป็นส่วนนึงของชุดครัวมาให้ ส่วนด้านบนเป็นตู้เก็บของ
ตู้ด้านบนจะเปิดและปิดสะดวกด้วยระบบอัตโนมัติ คือกดเปิดตรงมุมตู้หน้าบานก็จะเปิดขึ้นไปด้านบน และสามารถกดปุ่มปิดด้านใน หน้าบานก็จะพับลงมาเองอัตโนมัติ มีไฟซ่อนอยู่ด้านในเปิดปิดพร้อมบานตู้
ตู้ด้านล่างเป็นบานเปิด 1 บาน และลิ้นชัก 2 ช่อง
ได้เตาไฟฟ้าแบบ 4 หัวและเครื่องดูดควันของ Kuppersbusch ท็อปเคาน์เตอร์ครัวและ Backsplash จะเป็นหินควอทซ์สีดำลายขาว ติดกันเป็นอ่างล้างจานแบบ 2 หลุมของ Franke ฝังท็อปเคาน์เตอร์มาให้เรียบร้อย
อีกฝั่งเป็น Island วัสดุเป็นสเป็คเดียวกับเคาน์เตอร์ครัว มีตู้เก็บของบานเปิด ลิ้นชัก และจะได้เตาอบ Built-in มาให้ของ Kuppersbusch
ติดกันมีพื้นที่ให้วางโต๊ะรับประทานอาหารได้
ถัดไปเป็นส่วนห้องนั่งเล่น และระเบียง พื้นที่จะเปิดเชื่อมต่อกัน
วางโซฟาแบบตัว L มาให้ดูพร้อมโต๊ะกลาง
ระยะดูทีวีประมาณ 2.7 ม. ผนังหลังทีวีจะได้เป็นหินอ่อน Atlantic Grey แต่ละแบบห้องผนังหินอ่อนส่วนนี้จะได้ต่างกัน
ถัดไปเป็นระเบียงมีประตูกระจกบานเลื่อน 3 บาน ได้ผ้าม่านพร้อมติดตั้งของ Jim Thompson
เปิดประตูออกมาจะเป็นระเบียงขนาดประมาณ 3 x 0.70 ม. ราวกันตกจะเป็นกระจก ไม่บดบังวิวด้านนอก
วิวจากระเบียงห้องตัวอย่างชั้น 15 มองไปฝั่งด้านหน้าโครงการ
มองลงมาจะเห็นสระว่ายน้ำที่ชั้น 7 พอดี
มองกลับเข้ามาในห้อง แอร์ตรงส่วนห้องนั่งเล่นจะได้แบบ Ceiling Concealed Type
ถัดไปจะมีทางเดินเชื่อมไปยังห้องนอน 2 ห้อง และห้องน้ำ
ภายในห้องน้ำแบ่งส่วนเปียกส่วนแห้ง
ได้อ่างล้างหน้าของ TOTO ฝังเคาน์เตอร์มาให้ ก็อกน้ำแบบผสมน้ำร้อนน้ำเย็นของ Gessi ท็อปเคาน์เตอร์เป็นหินอ่อน Black Marquina ลายเดียวกับเคาน์เตอร์ครัว ติดกันเป็นโถสุขภัณฑ์ของ TOTO เป็นโถลอยตัวฝังติดกับผนังด้านหลัง
อีกฝั่งเป็นพื้นที่ส่วนเปียก พร้อมฉากกั้นส่วนเปียก ด้านในติดตั้ง Rain Shower & Hand Shower พร้อมช่องวางอุปกรณ์อาบน้ำ
ถัดจากห้องน้ำมาซ้ายมือจะเป็น Master Bedroom ขวามือเป็นห้องนอนเล็ก
เดินเข้าห้อง Master Bedroom มาจะเจอส่วน Walk in closet ก่อน ซ้ายมือเป็นห้องน้ำ ขวามือจะเป็นเตียงนอน
จะได้ตู้เสื้อผ้าแบบบานเปิด 3 บาน
อีกฝั่งเป็นตู้บานเปิด 2 บาน และมีพื้นที่ให้วางโต๊ะเครื่องแป้งได้
ภายในห้องน้ำแบ่งส่วนเปียกส่วนแห้ง อีกฝั่งเป็นอ่างอาบน้ำ
ตรงกระจกจะเป็นตู้บานเปิด 2 บาน
อ่างล้างหน้าจะได้แบบ His & Her ของ TOTO มีตู้เก็บของใต้อ่าง
โถสุขภัณฑ์ของ Toto Washlet แบบอัตโนมัติ เป็นโถลอยตัวฝังติดกับผนังด้านหลัง
ฝั่งด้านในจะเป็นพื้นที่ส่วนเปียกพร้อมฉากกั้นอาบน้ำ ด้านในติดตั้ง Rain Shower & Hand Shower พร้อมช่องวางอุปกรณ์อาบน้ำ
อีกฝั่งเป็นอ่างอาบน้ำของ TOTO วางไว้ติดหน้าต่างบานใหญ่ เป็นบานกระทุ้ง 1 บาน แช่น้ำชมวิวด้านนอกไปด้วยชิวดีครับ
เดินมาดูตรงส่วนห้องนอนจะมีพื้นที่มาให้พอสมควร วางเตียง King Size ได้สบายๆ
มองไปฝั่งปลายเตียง
หน้าต่างในห้องนอนจะเป็นแบบเข้ามุมบานใหญ่ ได้ผ้านม่านของ Jim Thompson
แอร์ในห้องนอนจะเป็นแบบ Ceiling Concealed Type
ภายในห้องนอนเล็ก วางเตียง 5 ฟุตให้ดูมีพื้นที่เหลือรอบด้าน
มองไปฝั่งปลายเตียง
แอร์ในห้องจะได้แบบ Ceiling Concealed Type ห้องนี้จะได้ตู้เสื้อผ้าแบบบานเลื่อน 2 บาน
ราคา (พ.ย.63)
ค่าส่วนกลาง 100 บาท/ตร.ม. : ค่ากองทุน 1,000 บาท/ตร.ม
ลงทะเบียนเพื่อรับส่วนลดและสิทธิพิเศษคลิก : https://bit.ly/2Jss9A8
***รายละเอียดอื่นๆโปรดสอบถามทางโครงการครับ***
สรุป
ทำเลที่ตั้งโครงการ – THE ESSE สุขุมวิท 36 ตั้งอยู่ในย่านทองหล่อ ติด BTS ทองหล่อ ย่านนี้มีความอุดมสมบูรณ์ในตัวอยู่แล้วมีร้านค้า ร้านอาหาร ร้านขนม ร้านคาเฟ่ ถ้าข้ามฝั่งไปทองหล่อจะเพียบพร้อมในทุกๆด้านมากกว่าตั้งแต่ปากซอยเข้าไปจนเกือบท้ายซอย ริมสองฝั่งทางถนนทองหล่อจะมีอาคารพาณิชย์ อาคารสำนักงาน โรงแรม และอพาร์ทเม้นท์ รวมไปถึงคอนโดมิเนียมระดับ Luxury หลายโครงการ มีร้านอาหารอร่อยๆตั้งแต่แบบริมทางไปจนถึงระดับ Hi-end ให้เลือกทั้งอาหาร ไทย ฝรั่ง จีน ญี่ปุ่น เกาหลี มีคอมมูนิตี้มอลล์ใกล้ๆอย่าง The Commons, J Avenue, 72 Courtyard, The Maze, The Taste, 9:53 Art Mall และ 49 Terrace ส่วนถ้าจะไปห้างสรรพสินค้าก็ขึ้น BTS ไปได้เลยสะดวกดีมีทั้งตรงเอกมัย พร้อมพงษ์ อโศก ยาวไปสยามเลย นอกจากนี้ยังเป็นย่านที่มีแหล่งสถานบันเทิงยามราตรีหลายร้านเลย
การเดินทางด้วยรถยนต์ส่วนตัว – ตัวโครงการตั้งอยู่ติดถนนสุขุมวิทเดินทางเข้าออกเมืองได้สะดวก ไม่ต้องเข้าซอยเหมือนโครงการอื่น ถ้าเข้าเมืองเส้นสุขุมวิทวิ่งไป พร้อมพงษ์ อโศก สยาม ได้เลย หรือถ้าจะเข้าซอยทองหล่อต้องไปกลับรถช่วงซอยสุขุมวิท 32 แล้วก็ไปเข้าซอยทองหล่อได้เลย หรือเลยไปเอกมัย ซอยทองหล่อและเอกมัยไปเชื่อมออกถนนเพชรบุรีได้ที่ท้ายซอยได้ ถ้าจะไปโซนพระรามสี่ก็ไปเข้าซอยสุขุมวิท 36 ที่อยู่ติดโครงการ และวิ่งไปเชื่อมซอยแสนสบายออกถนนพระรามสี่ จากนั้นก็วิ่งไปเข้าสวนลุม สาทร สีลม สามย่าน หัวลำโพงได้เลย
ถ้าออกนอกเมืองเส้นสุขุมวิทวิ่งไปโซนพระโขนง อ่อนนุช บางนายาวไปจนถึงสมุทรปราการได้เลย ตรงแถวๆแยกพระโขนงมีจุดขึ้นทางด่วนรามอินทรา-อาจณรงค์ไปโซนรามอินทรา ลาดพร้าว เกษตรนวมินทร์ได้ ตรงแยกบางนาตัดเข้าถนนบางนาตราด วิ่งออกฉะเชิงเทรา ชลบุรี มีทางด่วนบูรพาวิถีให้ขึ้น ถ้าไปออกเส้นเพชรบุรีวิ่งไปเข้าพัฒนาการ ศรีนครินทร์ ลาดกระบังได้
การเดินทางด้วยรถสาธารณะ – จุดเด่นของโครงการอยู่ติดกับ BTS ทองหล่อ ออกมาหน้าโครงการก็ขึ้นสถานีได้เลย นั่งเพียง 2 สถานีไปลงอโศก จะเป็นสถานีเชื่อมต่อกับ MRT สุขุมวิท ต่อจาก MRT 1 สถานีไปลงที่สถานีเพชรบุรี เชื่อมต่อไปใช้แอร์พอร์ตลิ้งค์ต่อได้ หรือจะโดยสารทางน้ำด้วยเรือคลองแสนแสบก็มีทางเรือทองหล่อช่วงท้ายซอยนั่งพี่วินมาได้ วินมอเตอร์ไซค์อยู่ตรงปากซอยสุขุมวิท 36 ติดกับโครงการเลย ใต้สถานี BTS ทองหล่อมีป้ายรถเมล์ มีรถวิ่งผ่านหลายสายทั้งเข้าและออกเมือง Taxi ก็วิ่งผ่านตลอดทั้งคืนเรียกหน้าโครงการได้เลย
การออกแบบโครงการและวัสดุ – โครงการออกแบบมา 1 อาคาร สูง 43 ชั้น บนพื้นที่ดินขนาด 2-2-0 ไร่ ชั้นพักอาศัยจะเริ่มที่ชั้น 9-40 Facility หลักๆจะอยู่ที่ชั้น 1 , 7 , 8 , 41 , 43 และชั้นดาดฟ้า สำหรับการออกแบบโครงการจะอยู่ภายใต้ Concept ความเป็นไทย ดึงเอกลักษณ์ของบ้านไทย ไม่ว่าจะเป็นลวดลายประดับตามไม้ เสา , สวนในบ้าน และการออกแบบให้อากาศถ่ายเทได้ดี ทางโครงการก็ได้ดึงส่วนต่างๆมาใช้ในการออกแบบ มาผสมผสานให้ดูร่วมสมัยขึ้น ส่วนวัสดุที่เลือกนำมาใช้ก็สเปคค่อนข้างสูง ทำให้ภาพรวมออกมาดูสวยเรียบหรูสมราคา การออกแบบในแต่ละส่วนสะท้อนให้เห็นถึงการใส่ใจในรายละเอียดต่างๆ ที่อยากให้โครงการออกมาดีที่สุด ซึ่งก็ทำออกมาได้ดีครับ
การออกแบบห้องพักอาศัยที่นี่มีให้เลือก 4 แบบหลักๆ คือ 1 Bed ขนาด 38.50-43.25 ตร.ม. , 2 Bed ขนาด 73.50-77 ตร.ม. , 3 Bed ขนาด 116.75-124.25 ตร.ม. , Penthouse Duplex ขนาด 252 ตร.ม. แต่ละแบบแบ่งพื้นที่มาเป็นสัดส่วน เน้นช่องแสงขนาดใหญ่ ห้องออกแบบมาดูโปร่ง ฝ้าสูง 3 ม. โครงการขายแบบ Fully Fitted ของที่ได้จะมี ตู้เก็บของ, ตู้เสื้อผ้า, ชุดครัว, อ่างล้างจาน ของ Franke และ Hob & Hood , ตู้เย็น , เตาอบของ Kuppersbusch ท็อปเคาน์เตอร์ครัว และโต๊ะรับประทานอาหารจะเป็นหินควอทซ์ ตรงผนังทีวีจะได้เป็นหินอ่อนสีและลายแต่ละแบบจากต่างกัน ในห้องน้ำสุขภัณฑ์ของ TOTO และ Gessi แอร์ได้แบบฝังฝ้า ประตูห้องจะได้ Digital door lock
ส่วนวัสุดอื่นอย่างพื้นก็เป็นกระเบื้องพอร์ซเลน (Porcelain) ตรงครัว, Engineered wood ในส่วนของห้องนั่งเล่นและห้องนอนปูลายก้างปลา ได้ระบบ Home Automation จาก Schneider ควบคุมการเปิดปิดไฟ แอร์ และผ้าม่าน ผ่านแอพพลิเคชั่นในมือถือได้ , ผนังจะได้ Wallpaper และได้ผ้าม่านของ Jim Thompson ที่ออกแบบมาเฉพาะสำหรับโครงการนี้เท่านั้น
สิ่งอำนวยความสะดวก – Facility ของโครงการออกแบบมาได้สวยและน่าใช้งาน โดยจะอยู่ที่ชั้น 1 , 7 , 8 , 41 , 43 และชั้นดาดฟ้า ที่ชั้น 1 ด้านหน้าอาคารจะเป็นสวนพักผ่อน ถัดเข้ามาจะเป็นห้องสมุด และ Lobby พื้นที่นั่งรอรถ Auto Parking มีห้องน้ำแยกชายหญิง และห้อง Mail Box
ที่ชั้น 7 จะมีทั้งสระว่ายน้ำระบบเกลือขนาด 25 x 6 ม. แบ่งสระเด็ก พร้อมส่วน Jacuzzi มีพื้นที่รอบๆสระ สวนพร้อมพื้นที่นั่งพักผ่อน , Private Spa Room , Kid’s Room , ห้องน้ำ Steam และ Onsen แยกชายและหญิง ที่ชั้น 8 จะเป็นห้องฟิตเนส, Golf Simulator, Virtual Bike
ที่ชั้น 41 จะเป็น Sky Lounge, Sky Theatre, The Residence Lounge, พื้นที่สวน สนามหญ้า พร้อมพื้นที่นั่งเล่นในสวน ที่ชั้น 43 และชั้นดาดฟ้า จะเป็นแปลงผักสวนครัว พร้อมที่นั่งพักผ่อนชมวิว มีบริการ Concierge service และบริเวณพื้นที่ส่วนกลางที่เป็นพื้นที่ปิดจะมีเครื่องฟอกอากาศมาตรฐานโรงพยาบาลให้ด้วย ส่วนกลางจัดมาให้ค่อนข้างเยอะและหลากหลายดี แต่ก็ต้องยอมแลกกับค่าส่วนกลางที่สูง
ลิฟต์โดยสารมีให้ 4 ตัว ลิฟต์ขนของ 1 ตัว ที่จอดรถเป็นแบบ Auto Parking และจอดแบบปกติ ทั้งโครงการคิดเป็น 100% รวมซ้อนคัน ระบบรักษาความปลอดภัยมีรปภ. มี CCTV และผ่านเข้าออกด้วยระบบ Key Card Access
สอบถามรายละเอียดเพิ่มเติมได้ที่
Tel : 1221
Website : https://bit.ly/2Jss9A8
หากเพื่อนๆเห็นว่ารีวิวนี้มีประโยชน์ ช่วยกด Likeเพื่อเป็นกำลังใจให้ทีมงาน ขอบคุณครับ
และมีความคิดเห็นหรือข้อมูลเพิ่มเติมเกี่ยวกับตัวโครงการ สามารถ Commentได้ที่ด้านล่างของรีวิวครับ
แสดงความคิดเห็น เกี่ยวกับ " EP.390 รีวิว THE ESSE สุขุมวิท 36 คอนโดใหม่พร้อมอยู่ ติด BTS ทองหล่อ เริ่ม 11.9 ล้าน* "