
คอนโด แวร์เด สุขุมวิท 49/15 Verde Sukhumvit 49/15
Verde สุขุมวิท 49/15 จาก บริษัท ซับเจคทีฟ จำกัด ตั้งอยู่บน 267/1 ซอยสุขุมวิท 49 แยก 15 ถนนสุขุมวิท แขวงคลองตันเหนือ เขตวัฒนา กทม. ใกล้รถไฟฟ้า BTS ทองหล่อ, รถไฟฟ้า BTS พร้อมพงษ์, Market Place ทองหล่อ, Rain Hill, Park Lane เอกมัย, รร.นานาชาติ Bangkok Prep, รร.นานาชาติเอกมัย, ม.กรุงเทพ, รพ.สุขุมวิท, รพ.เทพธารินทร์ และ รพ.กล้วยน้ำไท
แวร์เด สุขุมวิท 49/15 เป็นคอนโด Low Rise 7 ชั้น 1 อาคาร พื้นที่โครงการขนาด 305 ตารางวา ห้องพักอาศัยจำนวน 31 ยูนิต มีห้องพักให้เลือกแบบ 1 ห้องนอน, 2 ห้องนอน, Penthouse ขนาดเริ่มต้น 45.35-289.76 ตร.ม. สร้างเสร็จพร้อมอยู่ปี 2560
สิ่งอำนวยความสะดวกภายในโครงการครบครัน อาทิ โถงต้อนรับ, ห้องจดหมาย, สระว่ายน้ำระบบน้ำล้น, ฟิตเนส, สวนพักผ่อน, ลิฟท์โดยสาร, ประตูคีย์การ์ด, ที่จอดรถ, กล้องวงจรปิด และ รปภ.24 ชม. ราคาเริ่มต้น ประมาณ 7.3 ล้านบาท (ช่วงเปิดตัว)
| ชื่อโครงการ | แวร์เด สุขุมวิท 49/15 Verde Sukhumvit 49/15 |
| เจ้าของโครงการ | บริษัท ซับเจคทีฟ จำกัด |
| เนื้อที่ทั้งหมด | 305 ตารางวา |
| จำนวนตึก | 1 อาคาร |
| จำนวนชั้น | 7 ชั้น |
| จำนวนห้อง | 31 ยูนิต |
| ลักษณะห้องและขนาดห้อง | – 1 Bedroom : 45.35 – 76.37 ตร.ม. จำนวน 12 ยูนิต – 2 Bedrooms : 78.01 -106.46 ตร.ม. จำนวน 12 ยูนิต – Penthouse : 289.76 ตร.ม. จำนวน 12 ยูนิต |
| ที่จอดรถทั้งหมด | คิดเป็น 100% หรือ 33 คัน |
| โซน | สุขุมวิท |
| ขนส่งสาธารณะ | – รถไฟฟ้า BTS พร้อมพงษ์ – รถไฟฟ้า BTS ทองหล่อ – รถไฟฟ้า MRT เพชรบุรี |
| รถโดยสารที่ผ่าน | n/a |
| ที่ตั้ง | 267/1 ซอยสุขุมวิท 49 แยก 15 ถนนสุขุมวิท แขวงคลองตันเหนือ เขตวัฒนา กรุงเทพฯ |
| กำหนดการ | เริ่มก่อสร้าง 1 มี.ค. 2559 |
| ปีที่สร้างเสร็จ | คาดว่าแล้วเสร็จ มิ.ย. 2560 |
| ราคา | เริ่มต้น 7.3 ล้านบาท |
| ราคาเฉลี่ยต่อ ตร.ม | ประมาณ 165,000 บาท/ ตร.ม. |
| ค่าส่วนกลางและกองทุน | – ค่าส่วนกลาง 80 บาท/ ตร.ม./ เดือน (ชำระล่วงหน้า 1 ปี) – ค่ากองทุน 700 บาท/ ตร.ม. |
| สถานที่สำคัญใกล้เคียง |
|
| สิ่งอำนวยความสะดวก |
|
| จุดเด่นของโครงการ | แวร์เด สุขุมวิท 49/15 Verde Sukhumvit 49/15 คอนโด Low-Rise สไตล์วินเทจคลาสสิค บนทำเลศักยภาพโซนสุขุทวิท สะท้อนอัตลักษณ์ใหม่กับไลฟ์สไตล์ส่วนตัวที่พิเศษเหนือใครด้วยสาธารณูปโภคครบ ครันบนพื้นที่แห่งความสุขเหนือระดับ ราคาเริ่มต้น 7.3 ล้านบาท |

คอนโดติดถนนสุขุมวิท
คอนโดซอยสุขุมวิท 49 และซอยสุขุมวิท 51
คอนโดซอยสุขุมวิท 41 ,สุขุมวิท 43 และสุขุมวิท 47
คอนโดซอยสุขุมวิท 39
คอนโดซอยสุขุมวิท 31 และสุขุมวิท 33
ที่ตั้งโครงการ
267/1 ซอยสุขุมวิท 49 แยก 15 ถนนสุขุมวิท แขวงคลองตันเหนือ เขตวัฒนา กรุงเทพฯ
:: ภาพประกอบการเดินทาง ::
พิกัด Google : 13.741685, 100.575284
การเดินทางโดยรถยนต์ส่วนตัว เริ่มจากแยกอโศกมนตรี ถนนสุขุมวิท ⇒ BTS อโศก ⇒ BTS พร้อมพงษ์ ⇒ ซอยสุขุมวิท 49 ⇒ ซอยสุขุมวิท 49/15 ถึงโครงการ Verde สุขุมวิท 49/15

ภาพประกอบการเดิน เริ่มจากแยกอโศกฯ ผ่าน BTS อโศกมุ่งหน้าไปพร้อมพงษ์ จากแยกตรงไปประมาณ 1.8 กิโลเมตร ถึงซอยสุขุมวิท 49 ค่ะ (BTS ทองหล่อ ทางออก 1)

ผ่านแยกสวัสดิี

ผ่าน BTS พร้อมพงษ์ ,Em Quartier และEm Porium
ผ่าน Rain Hill และซอยสุขุมวิท 47 จากนั้นให้ชิดซ้าย
เลี้ยวเข้าซอยสุขุมวิท 49 ตรงไปเรื่อย ๆค่ะ
ผ่าน AEQUA Residence สุขุมวิท 49
ผ่าน LIV@ สุขุมวิท 49
ผ่าน The Alcove สุขุมวิท 49
พอผ่าน Via สุขุมวิท 49
แล้วเลี้ยวซ้าย
ผ่าน 49 Plus สุขุมวิท และ The Prestige สุขุมวิท 49
ผ่าน Wora สุขุมวิท 49
จากนั้นให้เราเลี้ยวซ้ายเข้าซอยสุขุมวิท 49/15 ตรงไปหน่อยก็ถึงโครงการแล้วค่ะ
ถึงโครงการ Verde สุขุมวิท 49/15
:: บริเวณโครงการ ::
ศูนย์การค้า และอื่นๆ
ศูนย์การแพทย์
สถานศึกษา
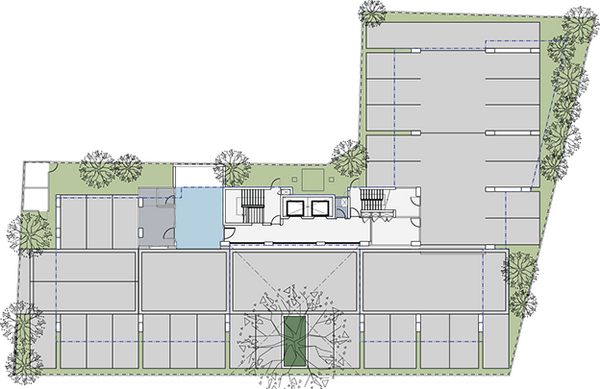
:: FLOOR PLAN ::
:: GALLERY ::
ทางเข้าโครงการ
Truly Living a Life of Freedom อิสระ เป็นส่วนตัวด้วยการออกแบบที่ให้ความสำคัญกับคุณภาพความเป็นอยู่ที่ดีที่สุด เพียง 31 ยูนิต พร้อมที่จอดรถมากกว่า 100 เปอร์เซ็นต์ ถึง 33 คัน
สะท้อนอัตลักษณ์ใหม่กับไลฟ์สไตล์ส่วนตัวที่พิเศษเหนือใครด้วยสาธารณูปโภคครบครันบนพื้นที่แห่งความสุขเหนือระดับ Elegant Lobby& Corridor พื้นที่ต้อนรับสง่างาม โปร่งสบายพร้อมเฟอร์นิเจอร์สไตล์แอนทีคให้ความรู้สึกอบอุ่นตกแต่งด้วย กระเบื้องพื้นและผนังระดับ Fine Material กรุกระจกโดยรอบเพิ่มมิติเรียบหรู และจำนวนลิฟต์โดยสารสไตล์วินเทจที่รองรับปริมาณผู้เข้าพักได้อย่างคล่องตัว Harmonizing the Connection เชื่อมต่อทุกองศาของไลฟ์สไตล์แบบไม่สะดุดกับสัญญาณ WiFi
Revival Fitness Suite พร้อมสรรพด้วยอุปกรณ์ฟิตเนสมาตรฐาน ห้องน้ำแยกชาย-หญิง ห้องเปลี่ยนเสื้อผ้า และห้องสตีม Natural Lap Pool สระว่ายน้ำระบบน้ำล้นดีไซน์สี่เหลี่ยมคางหมูพร้อมจุดสันทนาการริมสระ และจุดพักผ่อน พร้อม Lounge Seat เปิดรับทัศนียภาพมุมกว้าง Sensual Courtyard ผ่อนคลายผ่านมุมมองเสรี ด้วยช่องเปิดบริเวณกลางอาคาร แต่งแต้มอารมณ์ด้วยระเบียงเหล็ก Wrought Iron ใต้ร่มเงาต้นไม้ใหญ่ที่เป็นเสมือนแลนด์มาร์ก
High Security อุ่นใจด้วยระบบรักษาความปลอดภัย 24 ชั่วโมง พร้อม CCTV ครอบคลุมทั้งโครงการ เข้า-ออกด้วยระบบ Keycard Access และ VDO Door Phone ให้ทุกการเข้าถึงเป็นเอกสิทธิ์
:: INTERIOR ::
สอบถามรายละเอียดเพิ่มเติมได้ที่
Tel : 081-618-6666
Website : http://www.verdebangkok.com
แสดงความคิดเห็น เกี่ยวกับ " คอนโด แวร์เด สุขุมวิท 49/15 Verde ใกล้รถไฟฟ้า BTS ทองหล่อ "