รีวิว คอนโด วาย.อี.เอส. ระยอง Y.E.S. CONDO RAYONG
คอนโดในกลางเมืองระยอง ติดแม่น้ำ บรรยากาศร่มเย็น
อาคารชุดพักอาศัย 7 ชั้น 78 ยูนิต
ราคาเริ่มต้น 1.2xx ล้านบาท เฟอร์นิเจอร์ครบพร้อมอยู่
| ชื่อโครงการ | วาย.อี.เอส. คอนโด ระยอง / Y.E.S. CONDO RAYONG |
| เจ้าของโครงการ | วาย อี เอส พร็อพเพอร์ตี้ส์ |
| ลักษณะห้องและขนาดห้อง | 1 Bed / 37.00 sq.m. Studio / 31.00 sq.m. Special 1 / 47.18 sq.m. Special 2 / 52.80 sq.m. |
| เนื้อที่ทั้งหมด | ประมาณ 2 ไร่ |
| จำนวนตึก | 1 อาคาร |
| จำนวนชั้น | 7 ชั้น |
| จำนวนห้อง | 78 ยูนิต |
| ที่จอดรถทั้งหมด | 100% ของยูนิตทั้งหมด |
| โซน | ระยอง |
| ขนส่งสาธารณะ | n/a |
| รถโดยสารที่ผ่าน | n/a |
| ที่ตั้ง | ถนนราษฎร์บำรุง (สายล่าง) อำเภอเมือง จังหวัดระยอง |
| กำหนดการ | n/a |
| ปีที่สร้างเสร็จ | n/a |
| ราคา | เริ่มต้น 1.2xx ล้านบาท |
| ราคาเฉลี่ยต่อ ตร.ม | n/a |
| สถานที่สำคัญใกล้เคียง | 1. ติดแม่น้ำระยอง 2. ห้างแหลมทอง 3 นาที 3. โรงพยาบาลกรุงเทพระยอง 5 นาที |
| สิ่งอำนวยความสะดวก | n/a |
| จุดเด่นของโครงการ | คอนโดมิเนียมสุดหรูในกลางเมืองระยอง เดินทางสะดวก ปลอดภัย รายล้อมด้วยธรรมชาติ |
ที่ตั้งโครงการ
ถนนราษฎร์บำรุง (สายล่าง) อำเภอเมือง จังหวัดระยอง
คลิก เพื่อดูแผนที่ขนาดใหญ่
แปลนอาคาร
Master Plan
แปลนห้อง
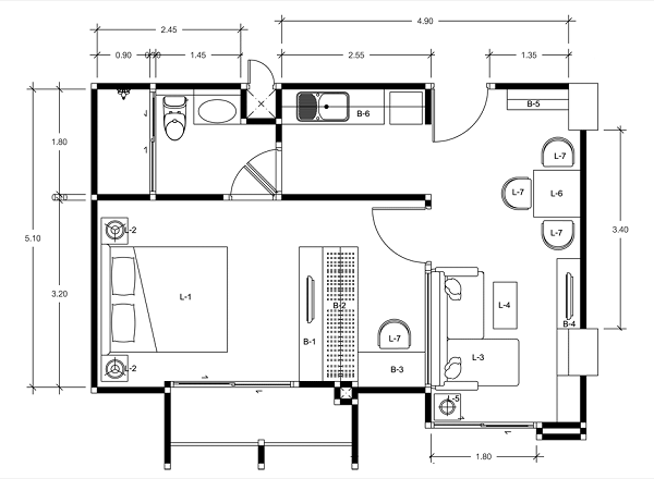
Room Plan – Type 1 Bedroom



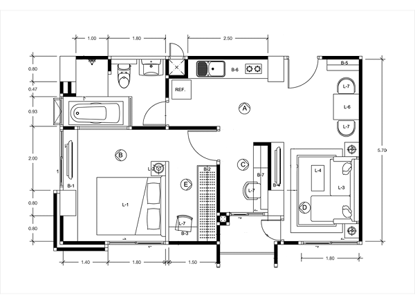
Room Plan : Studio / Special 1 / Special 2
แกลเลอรี
สนใจติดต่อสอบถามเพิ่มเติมได้ที่
Tel : 038-612-897 / 089-834-7673
Website : http://www.rayonghome.com/yescondo/
คอนโด ระยอง ทำเลอื่นๆ ที่น่าสนใจ…
The Landmark Condo ปลวกแดง
คอนโด เดอะ พาร์คแลนด์ ระยอง
คอนโด วาย.อี.เอส. ระยอง
คอนโด วิสดอม แกรนด์ดิออส ระยอง
คอนโด เดอะ ไฮ ริเวอร์พาร์ค ระยอง
คอนโด ศุภาลัย ซิตี้ รีสอร์ท ระยอง
ดีคอนโด เนินพระ ระยอง
ดีคอนโด นครระยอง
คอนโด ดิ อัลติเมท ริเวอร์ บีช
คอนโด เดอะ แลนด์สเคป ระยอง
แสดงความคิดเห็น เกี่ยวกับ " รีวิว คอนโด วาย.อี.เอส. ระยอง Y.E.S. CONDO RAYONG "