รีวิว แอสปาย อโศก-รัชดา Aspire Asoke-Ratchada คอนโดพร้อมอยู่ ทำเล New CBD ใกล้ MRT พระราม 9 | 2 Bedroom เริ่ม 4.89 ล้านบาท*
ค้นหาห้องเพื่อ ซื้อ หรือเช่า โครงการ Aspire Asoke-Ratchada
สวัสดีผู้อ่านทุกคนค่ะ วันนี้ทีมงาน CONDONAYOO จะพาไปชมคอนโดสร้างเสร็จพร้อมอยู่ย่านรัชดาฯ “Aspire อโศก-รัชดา“ จาก AP
ตัวโครงการตั้งอยู่บนทำเล New CBD โซนรัชดาภิเษก-พระราม 9 ในซอยรัชดาภิเษก 3 หรือซอยข้างสถานทูตจีน แขวงดินแดง เขตดินแดง กทม.
เดินทางสะดวกเชื่อมต่อถนน 3 เส้นหลัก ถนนพระราม 9, ถนนวิภาวดี และ ถนนดินแดง ใกล้ทางด่วนหลัก 2 สาย ทางพิเศษศรีรัช และ ดอนเมืองโทลล์เวย์
รายล้อมด้วยอาคารสำนักงานขนาดใหญ่ G Tower และห้างใหญ่ชั้นนำ ทั้ง Central พระราม 9, Fortune Town, Show DC เชื่อมเข้าสู่ย่าน CBD ชั้นในอย่างอโศกและสุขุมวิทได้ง่าย ใกล้รถไฟฟ้า MRT สถานีพระราม 9 พร้อม Shuttle Bus รับ-ส่ง หรือในระยะเดินไปได้ประมาณ 15 นาที ใกล้แยกพระราม 9 NEW CBD ใจกลางเมือง
แอสปาย อโศก-รัชดา เป็นโครงการคอนโดสูง 8 ชั้น 6 อาคาร บนที่ดินโครงการขนาด 11-0-41.1 ไร่ จำนวนยูนิตที่พักอาศัยรวมทั้งโครงการ 1,025 ยูนิต และมียูนิตร้านค้าอีก 3 ยูนิต ที่จอดรถ 387 คัน คิดเป็น 38% ของจำนวนยูนิตโครงการ มีห้องให้เลือกแบบ Studio, 1 Bedroom, 1 Bedroom Plus และ 2 Bedroom โดยมีขนาดเริ่มต้นที่ 25 – 51 ตร.ม. ขายแบบ Fully Fitted โครงการสร้างเสร็จพร้อมอยู่
สิ่งอำนวยความสะดวกในโครงการครบครัน อาทิ Lobby, Co-Working Space, Co-Living Space, สระว่ายน้ำ Sunctuary Bubble Pool และ Lap Pool, พื้นที่สีเขียวและลานพักผ่อนข้างสระ, ห้อง Sauna, ห้องฟิตเนส, สวนหย่อมรอบโครงการ พร้อมระบบการรักษาความปลอดภัยตลอด 24 ชม. และที่จอดรถ 38% ของจำนวนยูนิตโครงการ | 2 Bedroom ราคาเริ่มต้น 4.89 ล้านบาท* (ส.ค.64)
ลงทะเบียนรับสิทธิพิเศษ คลิก : https://www.apthai.com/th/
สอบถามรายละเอียดเพิ่มเติม โทร : 1623
สำหรับรายละเอียดทำเลที่ตั้งโครงการ, ห้องตัวอย่าง และ สิ่งอำนวยความสะดวกภายในโครงการจะมีความน่าสนใจอย่างไรบ้างนั้น ไปติดตามต่อได้ที่เนื้อหาด้านล่างเลยค่ะ
คอนโด Aspire ทำเลอื่นๆ ที่น่าสนใจ…
Aspire รัตนาธิเบศร์-เวสต์ตัน
Aspire รัตนาธิเบศร์
Aspire รัตนาธิเบศร์ 2
Aspire งามวงศ์วาน
Aspire อโศก-รัชดา
Aspire พระราม 4
Aspire เอราวัณ
Aspire เอราวัณ ไพรม์
Aspire พระราม 9
Aspire รัชดา-วงศ์สว่าง
Aspire สุขุมวิท 48
| ชื่อโครงการ | แอสปาย อโศก-รัชดา Aspire Asoke-Ratchada |
| ค้นหาห้องเพื่อเช่า | ดูประกาศเช่า คอนโด แอสปาย อโศก-รัชดา / Aspire Asoke-Ratchada |
| ค้นหาห้องเพื่อซื้อ | ดูประกาศขาย คอนโด แอสปาย อโศก-รัชดา / Aspire Asoke-Ratchada |
| เจ้าของโครงการ | เอพี ไทยแลนด์ / AP Thailand |
| เนื้อที่ทั้งหมด | 11-0-41.1 ไร่ |
| จำนวนตึก | 6 อาคาร |
| จำนวนชั้น | 8 ชั้น |
| จำนวนห้อง | 1,025 units + ยูนิตร้านค้า 3 ยูนิต |
| ลักษณะห้องและขนาดห้อง |
|
| ที่จอดรถทั้งหมด | 38% ของจำนวนยูนิตโครงการ |
| จำนวนลิฟต์ | ลิฟต์ล็อคชั้น อาคารละ 2 ตัว |
| โซน | อโศก-รัชดา |
| ขนส่งสาธารณะ |
|
| รถโดยสารที่ผ่าน | 73, 136, 137, 179, 185, 206, 514, 517 และ ปอ.529 |
| ที่ตั้ง | รัชดา ซอย 3, ถนนรัชดาภิเษก เขตดินแดง กทม. |
| กำหนดการ | สร้างเสร็จพร้อมอยู่ |
| ปีที่สร้างเสร็จ | สร้างเสร็จพร้อมอยู่ |
| ราคา | 2 Bedroom เริ่มต้น 4.89 ล้านบาท* (ส.ค.64) |
| ราคาเฉลี่ยต่อ ตร.ม | n/a |
| ค่าส่วนกลางและกองทุน |
|
| สถานที่สำคัญใกล้เคียง | ตลาดและห้างสรรพสินค้า
อาคารสำนักงาน
สถานศึกษา
อาคารราชการ
วัด
|
| สิ่งอำนวยความสะดวก |
|
| จุดเด่นของโครงการ | Aspire อโศก-รัชดา คอนโดใหม่จาก AP Thailand บนทำเลศักยภาพย่านอโศก-รัชดา ใกล้รถไฟฟ้า และ ทางด่วน |
ที่ตั้งโครงการ
รัชดา ซอย 3, ถนนรัชดาภิเษก เขตดินแดง กรุงเทพมหานคร
พิกัด Google Maps ที่ดินโครงการ : 13.764020, 100.560983
โครงการ Aspire อโศก-รัชดา ตั้งอยู่ในซอยมารวย 1 ซึ่งเป็นซอยที่เชื่อมต่อจากซอยรัชดาภิเษก 3 หรือที่เรียกว่าซอยข้างสถานฑูตจีน ที่อยู่ติดกับถนนเส้นหลักคือรัชดาภิเษก ซึ่งทำเลนี้จัดเป็นย่านที่อยู่อาศัย และเป็นอีกหนึ่งทำเล New CBD ที่รับการขยายตัวจากโซน CBD ชั้นในอย่างอโศก ซึ่งเป็นโซนของออฟฟิศ และอาคารสำนักงานใหญ่หลายแห่ง
มีการขยายตัวมาทางฝั่งรัชดาภิเษก ทำให้ทำเลโซนนี้มีความคึกคักสูง เป็นแหล่งอาคารสำนักงาน รวมถึงห้างสรรพสินค้าใหญ่อย่าง Central Plaza พระราม 9 และ Fortune Town ที่อยู่ไม่ไกลจากโครงการค่ะ รวมถึงยังมีการคมนาคมที่สะดวกสบาย เป็นจุดที่เชื่อมต่อโครงข่ายรถไฟฟ้าทั้ง BTS, MRT และ Airport Link อีกด้วย
การเดินทางด้วยรถยนต์ส่วนตัว เป็นทำเลที่คนใช้รถมีความสะดวกสบาย จากตัวโครงการในซอยรัชดาภิเษก 3 สามารถเข้าออกได้หลายเส้นทาง ทั้หลักๆ คือ ถนนรัชดาภิเษก แต่สำหรับคนที่อยู่ หรือทำงานในโซนนี้ก็จะทราบดีว่าการจราจรบนเส้นรัชดาภิเษก ซึ่งอยู่ในโซนธุรกิจแบบนี้จะค่อนข้างหนาแน่นเป็นปกติ โดยเฉพาะในเวลาเร่งด่วนจึงมักจะเลี่ยงเส้นทางหลักอย่างถนนรัชดาภิเษกถ้าไม่จำเป็น
ซึ่งจากตัวโครงการก็มีเส้นทางลัดเลาะไปเชื่อมกับถนนเส้นอื่นๆ ได้อีกหลายเส้น ไม่ว่าจะเป็น ถนนประชาสงเคราะห์, ถนนดินแดง และถนนวิภาวดีรังสิต รวมถึงยังมีตัวช่วยในการเดินทางทั้งทางด่วนศรีรัช ที่ใช้วิ่งไปได้ทั้งฝั่งพญาไท หรือไปต่อมอเตอร์เวย์ไปสุวรรณภูมิก็ได้ และทางยกระดับอัตราภิมุข ที่ใช้วิ่งเชื่อมไปดอนเมืองโทลเวย์สะดวก
ขาเข้าเมือง จากซอยรัชดาภิเษก 3 ออกมากลับรถที่เส้นรัชดาตรงเลยแยกพระราม 9 ไปก็เข้าสู่ถนนอโศก – ดินแดงแล้วค่ะ จะสามารถเชื่อมต่อไปยังถนนอโศกมนตรีเพียง 2.0 กม. เท่านั้น และยิงยาวเข้าถนนสุขุมวิทได้เลยค่ะ และจากถนนอโศก – ดินแดงสามารถเลี้ยวซ้ายเพื่อเข้าถนนเพชรบุรี เชื่อมไปยังย่านแห่งการสังสรรค์สุดชิคอย่าง ทองหล่อ-เอกมัย ได้ง่ายด้วย
ขาออกนอกเมือง จากแยกพระราม 9 จะสามารถเชื่อมสู่ถนนดินแดง ต่อไปยัง พหลโยธิน, วิภาวดี – รังสิต, ลาดพร้าว หรือไปทางถนนประดิษฐ์มนูธรรม, รามคำแหง สามารถไปถึง ห้าแยกลาดพร้าว, ประชาชื่น หรือบางกะปิได้ไม่ยาก ซึ่งแต่ละเส้นที่เชื่อมไปจะเป็นถนนขนาดใหญ่ค่ะ วิ่งได้สะดวก
ถ้าใครอยากเลี่ยงรถติดที่แยกพระราม 9 เราก็สามารถเลี้ยวเข้าถนนถนนวัฒนธรรมไปออกแยกอสมท. ที่ถนนพระราม 9 แต่เลยเส้นแยกพระราม 9 ไปหน่อยได้ค่ะ
ตัวโครงการตั้งอยู่ใกล้จุดขึ้นทางพิเศษศรีรัชถึง 2 ด่าน ฝั่งทางตะวันออกคือด่านอโศก 1 ซึ่งจากจุดนี้จะมีระยะทางจากโครงการประมาณ 3-3.5 กม. สามารถเชื่อมต่อไปยัง ทางพิเศษเฉลิมมหานคร และทางยกระดับอุตราภิมุข หรือ ดอนเมืองโทลล์เวย์ ไปได้ทั้งทาง ปากเกร็ด, รังสิต และ โซนพระราม 2 ได้สะดวก
ฝั่งตะวันตกคือด่านพระราม 9 สามารถเชื่อมต่อไปยัง ทางด่วนรามอินทรา – อาจณรงค์, ทางพิเศษบูรพาวิถี และ มอเตอร์เวย์ (กรุงเทพ-ชลบุรี สายใหม่) ไปทางรามอินทรา, บางนา หรือวิ่งออกชลบุรี ได้สะดวกอีกเช่นกันค่ะ
ส่วนจุดขึ้นทางด่วนเฉลิมมหานคร หรือทางยกระดับอัตราภิมุขจะอยู่ห่างจากโครงการประมาณ 2.4 กม. หรือใช้เวลาขับจากโครงการประมาณ 7-10 นาที ใช้วิ่งไปเชื่อมกับดอนเมืองโทลล์เวย์ได้ค่ะ
แยกและถนนใกล้เคียง
การเดินทางด้วยรถสาธารณะ หลักๆ แล้วลูกบ้านที่นี่จะใช้บริการพี่วินที่อยู่หน้าโครงการเลยค่ะ สะดวกมาก ถ้านั่งไป MRT พระราม 9 ก็จะมีค่าโดยสารอยู่ที่ประมาณ 20 บาท หรือถ้าใครฟิตๆ ชอบเดินออกกำลังกาย ก็จะมีระยะประมาณ 1 กม. นะคะ เดินสบายๆ ประมาณ 15-20 นาที ก็ถึงทางลงสถานีฝั่ง Fortune Town แล้วค่ะ นั่งไป 2 สถานีถึง MRT สุขุมวิท สถานี Interchange กับ BTS อโศกไปรถไฟฟ้าบนดินสายสีเขียวได้สบายๆ
และใครที่เดินทางไปต่างจังหวัด หรือต่างประเทศบ่อยๆ จาก MRT พระราม 9 นั่งไปเพียงสถานีเดียวถึง MRT เพชรบุรี ที่เชื่อมต่อกับแอร์พอร์ตลิงก์มักกะสัน นั่งไปสุวรรณภูมิได้เลย
นอกจากนั้นในอนาคตจะมีรถไฟฟ้าสายสีส้ม บางขุนนนท์-มีนบุรี ซึ่งจะแบ่งเป็น 2 ช่วงคือช่วงตลิ่งชัน-ศูนย์วัฒนธรรมฯ และ ศูนย์วัฒนธรรม-มีนบุรี เข้ามาช่วยให้การเดินทางในโซนนี้มีความหลากหลายมากยิ่งขึ้น โดยมีกำหนดการสร้างเสร็จ ประมาณ ช่วงปี 2567 ค่ะ
ความอุดมสมบูรณ์โดยรอบ ต้องบอกว่าในซอยรัชดาภิเษก 3 ถือเป็นอีกหนึ่งโซนที่มีคนอยู่อาศัยค่อนข้างคึกคักมานานพอสมควร ในซอยเองก็จะมีทั้งบ้านคนที่อยู่อาศัยเดิม คอนโด และ Apartment หลายแห่ง เพราะฉะนั้นเรื่องร้านอาหารนี่ไม่ต้องห่วงค่ะ มีให้เลือกเยอะมากๆ
ทั้งร้านอาหารแนว Street Food ราคาย่อมเยา และร้านที่นั่งดีๆ ก็พอมีให้เลือกทานอยู่พอสมควร และที่สำคัญ คือร้านสิ่งอำนวยความสะดวกอื่นๆ ไม่ว่าจะเป็นร้านเสริมสวย, ทำเล็บ, ร้านขายยา หรือแม้แต่คลินิคทันตแพทย์ก็มีค่ะ
รวมถึงพวกร้านสะดวกซื้อ 24 ชม. ในซอยมีหลายสาขาเลยค่ะ เฉพาะในซอยรัชดา 3 ก่อนถึงตัวโครงการเองก็นับได้ประมาณ 3 สาขา นี่ยังไม่รวมอีก 1 สาขาในตัวโครงการเองอีกด้วยนะคะ ใช้ชีวิตประจำวันได้สบายๆ
ส่วนห้างใหญ่, ตลาด และสิ่งอำนวยความสะดวกต่างๆ จะมาเกาะตัวกันอยู่บนเส้นถนนรัชดาภิเษกเป็นหลักนะคะ ในรัศมี 1 กิโลเมตร มีทั้ง Fortune Town, Central Plaza พระราม 9, Belle Rama 9, Esplanade, The Street และตลาดละลายทรัพย์ ซึ่งก็ถือว่าเป็นทำเลที่มีความอุดมสมบูรณ์และสะดวกสบายสูง
นอกจากนี้จาก MRT พระราม 9 ก็สามารถนั่งไป 2 สถานี ถึง MRT สุขุมวิท เชื่อมต่อ Terminal 21 และโรบินสัน หรือจะเปลี่ยนไปขึ้น BTS ไป Siam Paragon, Central World, Emporium, EmQuatier ก็เชื่อมต่อกับ BTS ได้ทั้งหมด และสามารถไปถึงจุดต่างๆได้ในเวลาไม่ถึงสิบห้านาที จัดเป็นทำเลที่มีความอุดมสมบูรณ์และสะดวกสบายทีเดียว
สถานที่สำคัญใกล้โครงการ
ตลาดและห้างสรรพสินค้า
อาคารสำนักงาน
สถานศึกษา
อาคารราชการ
วัด
การเดินทางไปโครงการ
เริ่มเดินทางจาก แยกพระราม 9 > ถนนรัชดาภิเษก > เลี้ยวซ้ายเข้ารัชดาซอย 3 (ซอยข้างสถานฑูตจีน) > เข้าซอยไปประมาณ 700 เมตร เลี้ยวขวาที่แยก จะเจอ โครงการ Aspire อโศก-รัชดา อยู่ทางซ้ายมือ
จากแยกพระราม 9 มุ่งหน้าไปทางถนนรัชดาภิเษก จุดสังเกตคือข้างหน้าเราจะเจอสะพานข้ามแยกพระราม 9 ฟอร์จูนทาวน์ โรงแรม Grand Mercure ทางฝั่งซ้ายมือ และที่เด่นๆเลยคือตึก G Tower จากโครงการ The Grand Rama 9 ทางขวามือ เป็นเมกะโปรเจ็คที่จะทำให้ย่านพระราม 9 นี้กลายเป็น New CBD ของกทม.นั่นเองค่ะ เป็นหมู่อาคารที่มีทั้งอาคารสำนักงาน, ห้างสรรพสินค้า, โรงแรม และคอนโดมิเนียมสำหรับพักอาศัย
เราตรงต่อไปนะคะ ถนนใหญ่รัชดาภิเษกเป็นถนน 8 เลน มีเกาะกั้นกลาง ซ้ายมือก็มีห้างใหญ่ที่เด่นเรื่องอุปกรณ์อิเล็กโทรนิกส์อย่าง Fortune Town ที่มี Tesco Lotus อยู่ในตัว ซึ่งเป็นห้างที่อยู่ใกล้โครงการที่สุดนะคะ สามารถเดินมาได้สบายๆ เพียง 1 กม.เท่านั้น ส่วนขวามือก็มีห้าง Central Plaza พระราม 9
ขับตรงต่อมาเราจะผ่านอาคารสำนักงาน Pakin Building ให้เราเตรียมชิดซ้ายเพื่อเลี้ยวเข้าซอยค่ะ
ตรงมาอีกหน่อย จะเจอรัชดาซอย 3 แล้วค่ะ ตรงหัวมุมทางเข้าซอยคือกำแพงของสถานฑูตจีน เราเลี้ยวซ้ายเข้ารัชดาซอย 3
จากถนนใหญ่รัชดาภิเษกเราจะขับเข้าซอยรัชดาภิเษก 3 ประมาณ 700 ม. แล้วเลี้ยวขวาเข้าซอยมารวย 1 จะเจอที่ตั้งโครงการทางซ้ายมือค่ะ
หน้าปากซอยจะมีคิวพี่วินขนาดใหญ่ทางซ้ายมือ ส่วนรั้วยาวๆ ที่เราเห็นทางฝั่งขวามือคือสถานฑูตจีนค่ะ
ภายในซอยนอกจากจะมีร้านอาหารราคาย่อมเยาและอร่อยอยู่หลายร้านมากๆ ยังมีสิ่งอำนวยความสะดวกหลากหลาย หาของกินง่ายทั้งกลางวันกลางคืนค่ะ
ขับตรงมาจนสุดทาง เราเลี้ยวขวา เข้าซอยมารวย 1
เลี้ยวเข้ามาแล้วขับต่อมาอีกไม่ไกล เราก็จะถึงที่ตั้งโครงการ Aspire อโศก-รัชดา อยู่ทางซ้ายมือค่ะ
สภาพแวดล้อมโดยรอบโครงการ
โครงการเป็นคอนโด Low Rise สูง 8 ชั้น รอบๆ โครงการส่วนใหญ่เป็นกลุ่มบ้าน 1-2 ชั้น และ Apartment 5-7 ชั้นค่ะ
เรามาเดินดูบรรยากาศรอบๆ กันค่ะ เริ่มจากหน้าโครงการจะติดกับโกดัง มีคิวพี่วินอยู่หน้าโครงการเลย นั่งไป MRT พระราม 9 ประมาณ 20 บาท
ฝั่งซ้ายมือเป็น Apartment สูง 5-7 ชั้น
เดินถัดเข้ามาทางฝั่งซ้ายมือของโครงการก็จะเป็นบ้านพักอาศัยดั้งเดิมของคนในโซนนี้ค่ะ บรรยากาศจะเงียบๆ แต่มีรถวิ่งไปมาตลอด
จากหน้าโครงการ เราเดินมาทางฝั่งขวามือกันบ้าง ติดกับทางเข้าโครงการจะเป็น Apartment สูง 5 ชั้น ด้านล่างมีเปิดเป็นคลินิคเสริมความงาม และร้าน Grooming น้องหมา น้องแมว
อีกฝั่งเป็นบ้าน 2 ชั้น
บริเวณแยกระหว่างซอยมารวย 1 และซอยรัชดาภิเษก 3 จะเป็นอาคารพาณิชย์ ด้านล่างมีร้านก๋วยเตี๋ยวเรือ และร้านอาหารอีสานเล็กๆ
ขยับมาทางฝั่งซอยรัชดาภิเษก 3 บรรยากาศจะคล้ายๆ กันค่ะ คือส่วนใหญ่จะเป็นบ้านพักอาศัย และอาคารพาณิชย์ดั้งเดิมในโซนนี้ที่มีเปิดเป็นร้านอาหาร, ร้านขายน้ำ และบริการต่างๆ นอกจากนั้นก็จะเป็น Apartment ที่มีความสูงประมาณ 5-7 ชั้น
และในซอยจะมีรถวิ่งไปมาตลอด มีฟุตบาทให้เดินเป็นช่วงๆ เวลาเดินไปไหนมาไหนก็จะต้องระวังรถนิดนึงค่ะ
สิ่งอำนวยความสะดวกในซอยเองก็ถือว่ามีครบนะคะ เดินออกมาเจอร้านขายยา, ร้านรับส่งไปรษณีย์
ใครทำงานพิมพ์ต่างๆ ก็มีร้านขายอุปกรณ์รองรับ
ร้านอาหารริมทางมีให้เลือกหลายร้าน มีทั้งร้านแบบซื้อกลับบ้าน และร้านที่เข้าไปนั่งทานสบายๆ ในร้านได้
7-11 หรือร้านสะดวกซื้อที่ใกล้โครงการสาขาแรกจะอยู่ห่างจากโครงการแค่ 220 เมตร เท่านั้นค่ะ
โซนร้านเสริมสวย ร้านทำเล็บก็มีค่ะ ไม่ต้องไปไกลบ้าน
เดินออกมาอีกหน่อยก็มีร้านขายยาอีกร้าน เป็นตัวเลือก
คลินิคทันตกรรมใกล้บ้านก็มีค่ะ
ถัดมาเป็นคอนโด Groove รัชดา
พอออกมาช่วงกลาง-ต้น ซอยก็จะคึกคักขึ้นไปอีกค่ะ มีร้านอาหารหลายร้าน
ร้าน Otteri ที่เป็นร้านซักอบผ้ายุคใหม่ก็มีให้บริการ
ถัดมาเป็นโครงการ Maestro 03 รัชดา-พระราม 9
ภาพรวมบริเวณโซนประมาณกลางๆ ซอยจะมีร้านอาหารให้เลือกเยอะมากๆ รวมถึงมีร้านกาแฟ Amazon และร้านขายยาอีก 1 ร้านค่ะ
ตัวโครงการ
โครงการ Aspire อโศก-รัชดา เป็นโครงการคอนโดสูง 8 ชั้น 6 อาคาร บนที่ดินโครงการขนาด 11-0-41.1 ไร่ จำนวนยูนิตที่พักอาศัยรวมทั้งโครงการ 1,025 ยูนิต และมียูนิตร้านค้าอีก 3 ร้าน
ที่จอดรถ 387 คัน คิดเป็น 38% ของจำนวนยูนิตโครงการ โดยชั้น 1 จะเป็นที่จอดรถกลางแจ้ง, ใต้อาคารและพื้นที่ส่วนกลาง

พื้นที่ส่วนกลางหลักๆอยู่ที่ชั้น 1-2 โดยจะมี Lobby, ห้องสมุด, สระว่ายน้ำแบบ Lap pool, พื้นที่สีเขียวและลานพักผ่อนข้างสระ, ห้อง Steam, Sauna, ห้องฟิตเนส, สวนหย่อมรอบโครงการ, Co-working space และ Co-Kitchen ให้จัดปาร์ตี้หรือทำอาหารกันได้ พร้อมระบบการรักษาความปลอดภัยตลอด 24 ชม.
มาดูผังอาคารทั้ง 6 อาคารกันต่อเลยค่ะ 5 อาคารจะวางตัวตามแนวที่ดินโครงการ ล้อมพื้นที่ส่วนกลางคือ สวน, สระว่ายน้ำ และ อาคาร F ซึ่งนอกจากจะเป็นอาคาร Clubhouse แล้ว ยังเป็นอาคารยูนิตที่พักอาศัยด้วย วิวฝั่งในของทุกอาคารจะได้วิวสวน ส่วนห้องที่ไม่ได้วิวสวนก็จะไม่มีตึกสูงบล็อควิว

ผังอาคาร A เป็นอาคารที่อยู่ใกล้ทางเข้าออกโครงการมากที่สุด และอยู่ติดสวนและวิวส่วนกลาง ชั้น 1 เป็นที่จอดรถ เข้ามาในอาคารจะเจอส่วน Lobby, ห้องจดหมาย และโถงลิฟต์โดยสาร 2 ตัว ยูนิตที่พักอาศัยเริ่มตั้งแต่ชั้น 2-8 ค่ะ ผังอาคารเป็นรูปตัว L โถงลิฟต์อยู่ตรงกลางค่อนมาทางทิศเหนือ ทางเดินเป็นแบบ Double Corridors คือแจกสองฝั่ง โครงการจัดห้องขนาดใหญ่ได้ระเบียงวิวด้านในโครงการ ส่วนยูนิตขนาดเริ่มต้นไว้วิวนอก

ผังอาคาร B เป็นอาคารที่อยู่ถัดจากอาคาร A เข้ามา และอยู่ติดสระว่ายน้ำแบบ Lap Pool สวนและวิวส่วนกลาง ชั้น 1 เป็นที่จอดรถ เข้ามาในอาคารจะเจอส่วน Lobby, ห้องจดหมาย และโถงลิฟต์โดยสาร 2 ตัว ยูนิตที่พักอาศัยเริ่มตั้งแต่ชั้น 2-8 ค่ะ ผังอาคารเป็นรูปตัว L โถงลิฟต์อยู่ตรงกลางค่อนมาทางทิศเหนือ ทางเดินเป็นแบบ Double Corridors คือแจกสองฝั่ง โครงการจัดห้องขนาดใหญ่ได้ระเบียงวิวด้านในโครงการ ส่วนยูนิตขนาดเริ่มต้นไว้วิวนอก
ผังอาคาร C เป็นอาคารที่อยู่ติดสระว่ายน้ำ, สวนและวิวส่วนกลาง ชั้น 1 เป็นที่จอดรถ เข้ามาในอาคารจะเจอส่วน Lobby, ห้องจดหมาย และโถงลิฟต์โดยสาร 2 ตัว ยูนิตที่พักอาศัยเริ่มตั้งแต่ชั้น 2-8 ค่ะ ผังอาคารเป็นรูปตัว I โถงลิฟต์อยู่ค่อนมาทางทิศใต้ ทางเดินเป็นแบบ Double Corridors คือแจกสองฝั่ง โครงการจัดห้องขนาดใหญ่ได้ระเบียงวิวด้านในโครงการ ส่วนยูนิตขนาดเริ่มต้นไว้วิวนอก
ผังอาคาร D เป็นอาคารที่อยู่ไกลทางเข้าออกโครงการมากที่สุด และอยู่ติดสวนและวิวส่วนกลาง ชั้น 1 เป็นที่จอดรถ เข้ามาในอาคารจะเจอส่วน Lobby, ห้องจดหมาย และโถงลิฟต์โดยสาร 2 ตัว ยูนิตที่พักอาศัยเริ่มตั้งแต่ชั้น 2-8 ค่ะ ผังอาคารเป็นรูปตัว L โถงลิฟต์อยู่ตรงกลางค่อนมาทางทิศใต้ ทางเดินเป็นแบบ Double Corridors คือแจกสองฝั่ง โครงการจัดห้องขนาดใหญ่ได้ระเบียงวิวด้านในโครงการ ส่วนยูนิตขนาดเริ่มต้นไว้วิวนอก
ผังอาคาร E เป็นอาคารที่อยู่ใกล้ทางเข้าออกโครงการมากที่สุด และอยู่ติดสวนและวิวส่วนกลาง ชั้น 1 เป็นที่จอดรถ เข้ามาในอาคารจะเจอส่วน Lobby, ห้องจดหมาย และโถงลิฟต์โดยสาร 2 ตัว ยูนิตที่พักอาศัยเริ่มตั้งแต่ชั้น 2-8 ค่ะ ผังอาคารเป็นรูปตัว I โถงลิฟต์อยู่ตรงกลางค่อนมาทางทิศเหนือ ทางเดินเป็นแบบ Double Corridors คือแจกสองฝั่ง โครงการจัดห้องขนาดใหญ่ได้ระเบียงวิวด้านในโครงการ ส่วนยูนิตขนาดเริ่มต้นไว้วิวนอก
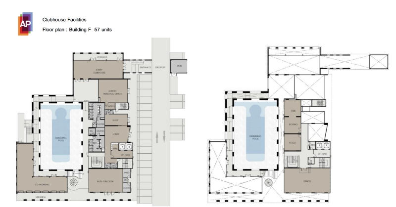
ผังอาคาร F เป็น Clubhouse ที่พื้นที่ส่วนกลางของโครงการอยู่ชั้น 1-2 และเป็นอาคารที่มียูนิตที่พักอาศัยตั้งแต่ชั้น 3 ขึ้นไป ข้อดีของอาคาร F คือเป็นอาคารที่ใกล้ซุ้มทางเข้าออกโครงการที่สุด และอยู่ใกล้พื้นที่ส่วนกลางที่สุดเพราะแค่ลงลิฟต์มาชั้น 1-2 ก็เจอแล้วนั่นเอง Lobby, ห้องสมุด, สระว่ายน้ำแบบ Lap pool, พื้นที่สีเขียวและลานพักผ่อนข้างสระ, ห้อง Steam, Sauna, ห้องฟิตเนส, สวนหย่อมรอบโครงการ, Co-working space และ Co-Kitchen ให้จัดปาร์ตี้หรือทำอาหารกันได้
ผังอาคาร F ยูนิตที่พักอาศัยเริ่มตั้งแต่ชั้น 3-8 ค่ะ เป็นอาคารที่แต่ละชั้นมีความเป็นส่วนตัวสูง และมีความหนาแน่นของยูนิตต่ำที่สุดใน 6 อาคาร โดยชั้น 3 จะมีสวนหย่อมอยู่ด้วย ผังอาคารเป็นรูปตัว I ทางเดินเป็นแบบ Double Corridors คือแจกสองฝั่ง
บรรยากาศของตัวโครงการจะทำออกมาให้มีความเป็นส่วนตัว เริ่มตั้งแต่ทางเข้าโครงการจะเป็นถนนทางเข้าที่มีระยะเซทเข้าไปจากถนนซอยพอสมควร ทำให้มีระยะในการจอดรถ หรือชะลอรถเพื่อแลกบัตรเข้า-ออกโครงการ พร้อมทำบรรยากาศในดูโปร่ง สบายตา ด้วยการใช้ไม้พุ่ม และน้ำพุตกแต่งเป็นรั้วโครงการ
พื้นที่บริเวณทางเข้าโครงการอีกฝั่งจะเป็นอาคารในส่วนของยูนิตร้านค้า ซึ่งในอนาคตจะเปิดเป็น 7-11 ทั้งอาคาร โดยการออกแบบตัวอาคารจะทำออกมาให้เข้ากับสไตล์โดยรวมของโครงการทั้งหมด คือสไตล์โคโลเนียล ทำให้ร้านค้าด้านหน้าเป็นเหมือนอีกส่วนหนึ่งของงานตกแต่งของโครงการค่ะ
ภายในตัวอาคารที่เป็นยูนิตร้านค้านี้เค้าจะทำเป็นทางเดินเข้าโครงการไปด้วยในตัวค่ะ
จากทางเดินเข้าด้านหน้าจะมีทางเดินในร่มเชื่อมมาตลอดทางจนผ่าน Main Gate เข้าไปในตัวอาคาร ช่วยบังแดดบังฝนได้
สำหรับ Main Gate จะดีไซน์เป็นซุ้มโครงเหล็กสีดำ ตกแต่งด้วยไม้เลื้อยให้ความรู้สึกสบายตา ตัวซุ้มแยกทางเข้า-ออก และแยกประตูสำหรับเดินเข้าโครงการไว้ด้านข้าง ติดกับป้อม รปภ. ซึ่งการเข้าออกใช้ระบบ Key Card เพื่อความปลอดภัย
และสำหรับรถลูกบ้านจะใช้ระบบ Easy Pass ในการเข้าออก ส่วน Visitor จะต้องแลกบัตรก่อนเข้าโครงการ
เข้ามาภายในโครงการจะเจอพื้นที่ของส่วน Main Lobby ซึ่งตรงนี้ก็มีการดีไซน์ให้เหมือนกับประตูทางเข้าอีกหนึ่งชั้น ทำให้ดูโอ่อ่าขึ้น เป็นเสมือนส่วนต้อนรับลูกบ้านเข้าสู่โครงการ
บริเวณส่วนด้านหน้าจะมีที่จอดรถรองรับมาให้ด้วยหลายช่องจอดค่ะ ตรงนี้เราสามารถเอาไว้รองรับแขกที่มานั่งคุยงาน หรือเพื่อนที่มารอพบลูกบ้านได้
สำหรับรถรับส่งที่ทางโครงการมีไว้ให้บริการไป-กลับ MRT พระราม 9 ก้จะอยู่บริเวณนี้ค่ะ ปัจจุบันจะมีรอบวิ่งทุก 30 นาที
เราไปดูในส่วน Main Lobby กันต่อ
ประตูทางเข้าตัว Lobby และพื้นที่ส่วนกลางทั้งหมดจะเป็นระบบอัตโนมัติ ลดการสัมผัสเพื่อสุขอนามัยของลูกบ้านภายในโครงการ
ภายใน Lobby ปัจจุบันจะใช้เป็นสำนักงานขายในตัวค่ะ งานตกแต่งถือว่าทำออกมาสวยหรู บรรยากาศเหมาะที่จะมานั่งทำงาน หรือใช้รับรองแขกได้เป็นอย่างดี
จากส่วน Lobby จะมีประตูที่เชื่อมออกไปยังพื้นที่ส่วนกลางหลักที่อาคาร F
ออกจาก Lobby มาจะเป็นโซนพื้นที่นั่งพักผ่อนในร่ม
บรรยากาศพื้นที่ตรงนี้เย็นสบาย มีการระบายอากาศดี จัดที่นั่งมาให้ทั้ง 2 ฝั่ง เป็นโซฟาชุดใหญ่นั่งได้หลายคน
จากมุมนี้จะมีทางเดินที่ใช้เดินได้รอบพื้นที่ส่วนกลาง จากมุมนี้แยกทางเดิน 2 ฝั่ง ซ้ายมือจะไปยังส่วนห้องน้ำ และขวามือจะเชื่อมขึ้นไปยังพื้นที่ส่วนกลางอื่นๆ
โดยส่วนกลางจะจัดมาให้ครบมากๆ ทั้งสระว่ายน้ำที่มีส่วน Lap Pool และ Bubble Pool, Co-Living Space, Co-Creation Space และ Fitness
มาดูที่ส่วนแรกคือ Luxe Sanctuary Bubble Pool ที่เป็นไฮไลต์ ตั้งอยู่ตรงศูนย์กลางของพื้นที่ส่วนกลาง โดยตัวสระนี้จะเน้นเป็นสระสำหรับพักผ่อน เหมือนสระ Jacuzzi สวยๆ พร้อมพื้นที่รอบสระที่จัดวาง Sunbed มาให้พร้อมใช้งาน
ตัวสระจะมีความเป็นส่วนตัวมาก เพราะถูกล้อมไว้ด้วยทางเดินโดยรอบ และยังมีบรรยากาศที่น่าใช้งานมากๆ ดูสดชื่นสบายตาด้วยพุ่มไม้เลื้อยที่ปลูกไว้บนกำแพงรอบๆ สระ
ส่วนกลางโซนด้านในตัวอาคาร รอบๆ Luxe Sanctuary Bubble Pool จะมีห้อง Co-Creation Space เป็นพื้นที่ห้องทำงานสำหรับคนยุคนี้ที่หลายๆ บริษัทไม่จำเป็นต้องเข้าไปทำงานที่ออฟฟิศแล้ว ก็จะมีพื้นที่ให้เปลี่ยนบรรยากาศจากในห้องพัก ออกมานั่งทำงานในห้อง Co-Creation กว้างๆ แทนค่ะ
นอกจากห้องสำหรับนั่งทำงานแล้วก็ยังมีพื้นที่สำหรับนั่งพักผ่อน พบปะสังสรรค์ ที่ Co-Living Space ที่มีการแบ่งโซนพื้นที่เป็นจุดๆ ให้มีความเป็นส่วนตัวในการเข้ามาใช้งาน
และส่วนกลางชั้นบนจะเป็นห้อง Fitness ขนาดใหญ่ จัดอุปกรณ์สำหรับคนรักการออกกำลังกายมาให้ครบ ทั้งการ Cardio และ Weight Training ในบรรยากาศห้องที่โปร่งโล่ง ฝ้าเพดานสูง พร้อมช่องแสงบานใหญ่ทำให้ไม่อึดอัด
จากโซนสระว่ายน้ำและพื้นที่ส่วนกลางด้านใน จะมีบันไดวนที่เชื่อมขึ้นไปยังพื้นที่สวน Rooftop Garden
พื้นที่สวนก็จะจัดออกมาในสไตล์ Colonial ได้กลิ่นอายยุโรป โดยจุดแรกจะทำเป็น Glass House ครอบตัวบันไดวนที่เราเดินขึ้นมาค่ะ
ส่วนสวนจะจัดแบบ Symmetry เน้นพื้นที่สำหรับการนั่งพักผ่อน ตรงกลางวางน้ำพุเป็นส่วนตกแต่ง และต้นไม้ส่วนใหญ่จะใช้เป็นไม้ทรงพุ่ม ทำให้สวนดูเป็นระเบียบเรียบร้อย ดูแลง่าย
จากสวนชั้นบนจะสามารถมองเห็นบรรยากาศที่เป็นส่วนตัวภายในโครงการ และสามารถมองลงไปเห็นสระว่ายน้ำด้านล่างด้วย
เข้ามาดูส่วนห้องน้ำบ้างค่ะ ที่นี่จะแยกห้องน้ำชาย-หญิง เป็นสัดส่วน
ด้านนอกมีห้องน้ำสำหรับผู้พิการ หรือสูงอายุแยกไว้ให้ต่างหาก
ภายในห้องน้ำทำออกมาดูดีโดยการใช้กระเบื้องลายหินอ่อนสีขาว และดำ ฟังก์ชั่นด้านในแบ่งโซนเป็นส่วนอ่างล้างมือ และส่วนห้องน้ำ, ห้องอาบน้ำ และห้อง Sauna
ภายในห้องน้ำและห้องอาบน้ำติดตั้งอุปกรณ์มาให้ครบพร้อมใช้งาน
สำหรับห้องน้ำชายจะมีโถปัสสาวะแยกมาให้อีกจุด
ห้อง Sauna จะมีให้บริการทั้งในห้องน้ำชายและหญิงค่ะ
นอกจากนั้นยังมีส่วน Locker อยู่โซนด้านในสุด ใช้สีขาวดูสะอาดตา หาของง่าย
ออกมาจากตัวอาคารหลัก พื้นที่ด้านนอกจะเป็น Lap Pool ที่มีความยาวถึง 50 ม. สามารถว่ายออกกำลังกายได้สบายๆ และมีพื้นที่ข้างสระเป็น Pool Terrace สำหรับการนั่งพักผ่อน หรือใครชอบนอนอาบแดดตรงนี้ก็เหมาะเลยค่ะ
ส่วนใครที่ไม่ได้อยากอยู่กลางแจ้ง ก็สามารถมานั่งพักรอสบายๆ ได้ที่บริเวณโถงทางเดินจากตัวอาคารคลับเฮ้าส์หลัก ที่เค้าจะใช้ประโยชน์จากพื้นที่ด้วยการทำเป็นที่นั่งมาให้หลายจุดเลยทีเดียวค่ะ
ติดกับตัวอาคารคลับเฮ้าส์จะมีพื้นที่อีกจุดนึงที่โดยส่วนตัวคิดว่าทำออกมาได้ดี คือพื้นที่ Courtyard เล่นระดับด้านนอก เป็นพื้นที่เปิดโล่งกลางโครงการ ทำให้บรรยากาศโดยรวมดูสบายตา ได้เปลี่ยน Mood จากการจราจรในตัวเมืองรัชดาเข้ามาในสวนขนาดใหญ่ที่หาได้ยากในโครงการ Low Rise กลางเมืองแบบนี้ค่ะ
ตัว Courtyard จะแบ่งเป็น 2 ฝั่ง คือพื้นที่ส่วนโล่งเป็นกึ่งๆ ลานอเนกประสงค์ทางฝั่งซ้ายมือ และโต๊ะนั่งกลางแจ้งทางฝั่งขวามือ
สำหรับโต๊ะกลางแจ้งนี้จะให้อารมณ์เหมือนเราได้มานั่งปิกนิกในสวน ซึ่งเค้าจะทำให้ดูมีความเป็นส่วนตัวมากขึ้นด้วยการทำเป็น Sunken Seat
พื้นที่ส่วนกลางทั้งหมดจะเชื่อมถึงกันหมดนะคะ เราสามารถเดินใช้งานได้รอบโดยไม่ติดขัด
เราลองมาดูบรรยากาศส่วนอื่นๆ ของโครงการกันบ้างค่ะ เริ่มจากถนนที่เชื่อมเข้ามาจาก Main Gate ตรงเข้ามาในโครงการ โดยถนนภายในโครงการจะใช้เป็น Concrete Stamp ค่ะ
เข้ามาเราจะผ่านอาคาร F ทางฝั่งขวามือ ซึ่งเป็นอาคารพักอาศัย และตัวคลับเฮ้าส์หรือส่วนกลางหลักที่เราไปชมกันมาแล้ว ระหว่างทางเราจะเห็นว่ามีการจัดพื้นที่ด้านข้างเป็นที่จอดรถทั้งหมด
ส่วนที่จอดรถภายในอาคารจะมีอยู่ในทุกอาคารนะคะ จัดแบ่งช่องจอดไว้ตามมาตรฐาน
เข้ามาด้านในสุดจะเป็นถนนทางเข้าที่จอดรถใต้อาคารที่จะแยกไป 2 ฝั่ง คืออาคาร C ทางซ้าย และอาคาร B ทางขวามือค่ะ
ถ้าเรามองย้อนกลับไปทางฝั่งขวามือก็จะเป็นส่วนของอาคาร F และคลับเฮ้าส์
ส่วนฝั่งซ้ายมือจะเป็นสวน และทางเดินที่เชื่อมไปถึงอาคาร D
พื้นที่สวนตรงนี้ถูกออกแบบมาให้เป็นทางเดินที่ให้ความรู้สึกว่าเราสามารถเดินไปแต่ละอาคารได้เพลินๆ ดูร่มร่ืน และมีพื้นที่นั่งพักผ่อน หรือนั่งพักคอยอยู่ตลอดทาง
ผ่านสวนเข้ามาก็จะเป็นส่วนของที่จอดรถรอบๆ อาคาร D และ อาคาร E เราจะเห็นว่าถนนด้านนอกจะใช้เป็น Concrete Stamp ทั้งหมด ซึ่งเป็นอีกส่วนที่ทำให้โครงการดูมีสวยขึ้นมากเลยค่ะ
สำหรับประตูทางเข้าหลักของแต่ละอาคารจะดีไซน์มาในแบบเดียวกัน สังเกตได้ง่าย และดูโดดเด่นจากส่วนอื่นๆ ของตัวอาคาร
บรรยากาศภายใน Lobby ของอาคารพักอาศัยแต่ละอาคารจะทำออกมาในรูปแบบคล้ายๆ กันทุกอาคารค่ะ คือจะทำเป็นฝ้าเพดานสูง ตกแต่งออกมาดูดีเลยทีเดียว
และทุกอาคารจะมีส่วนของห้องน้ำรับรองแยกชาย-หญิง มาให้ภายใน Lobby ด้วย
ด้านในแยกห้องน้ำชาย-หญิง มาให้เรียบร้อย
ภายในห้องน้ำแยกส่วนอ่างล้างมือและส่วนโถสุขภัณฑ์ ผนังกรุกระเบื้องลายหินอ่อนดูดี
ถัดเข้ามาจาก Lobby จะเชื่อมมายังโถงลิฟต์ และ Mail Room โดยในแต่ละอาคารจะไม่ได้มีหน้าตาแบบนี้เป๊ะๆ นะคะ จะมีแตกต่างกันเล็กน้อยตามรูปทรงของตัวอาคาร
ภายใน Mail Room จะมีพื้นที่สำหรับนั่งเช็กพัสดุ และมีรถเข็นไว้สำหรับขนของทุกอาคาร
ลิฟต์โดยสารจะใช้เป็นลิฟต์ล็อคชั้น อาคารละ 2 ตัวค่ะ
โถงลิฟต์ชั้นพักอาศัยทำออกมาเรียบๆ ดูแลรักษาง่าย
และในส่วนโถงทางเดินของชั้นพักอาศัยจะทำออกมาเรียบๆ เช่นกันค่ะ
แบบห้อง
ขายแบบ Fully Fitted มีห้องให้เลือก 4 แบบ ดังนี้
ห้องตัวอย่าง
สำหรับห้องในโครงการตอนนี้จะมีเฉพาะ 2 Bedroom นะคะ ห้องตัวอย่างที่เราจะพาชมวันนี้จึงเป็นห้อง 2 Bedroom ขนาดประมาณ 50 ตร.ม. ค่ะ
แปลนห้องส่วนแรกจะเป็นพื้นที่ส่วนห้องรับประทานอาหาร เชื่อมต่อกับห้องนั่งเล่นติดระเบียง และมีการจัดพื้นที่ภายในที่เพิ่มความเป็นส่วนตัวโดยห้องนอน 2 ห้อง แยกกันคนละฝั่ง และเป็นขนาดที่วางเตียงคู่ โต๊ะทำงาน และตู้เสื้อผ้าได้ทั้งสองห้อง โดยห้องนอนใหญ่หรือ Master Bedroom มีประตูเปิดไปห้องน้ำได้
ตัวห้องขายแบบ Fully Fitted คือมีชุดครัวมาให้พร้อมเครื่องปรับอากาศและชุดสุขภัณฑ์ค่ะ
มาดูห้องจริงกันเลย เริ่มที่ประตูได้บาน HDF สีเทาอมฟ้า มือจับก้านโยก
ติดตั้งตาแมวและ Digital Door Lock ยี่ห้อ Samsung ใช้งานด้วยระบบ Key Card และ Password
หลังบานประตูจะมีตัว Stopper ติดตั้งมาให้เพื่อกันประตูกระแทกผนังด้านหลัง
เข้ามาภายในห้อง ส่วนแรกเป็นพื้นที่ห้องทานอาหาร ซึ่งจะเป็นส่วน Common Area เชื่อมไปยังส่วนห้องนั่งเล่น ความสูงฝ้าเพดาน 2.5 ม. วัสดุพื้นปูลามิเนตสีอ่อน หนา 8 มม.
พื้นที่ในส่วนห้องทานอาหารจะสามารถวางโต๊ะขนาดประมาณ 4 ที่นั่ง กำลังดี มีพื้นที่ติดกับประตูที่เราสามารถทำชั้นวางรองเท้า หรือทำเป็นตู้เก็บรองเท้า และตู้อเนกประสงค์ได้
ระยะการใช้งานในส่วนโต๊ะทานอาหารขนาดประมาณ 4 ที่นั่ง ที่มีขนาดกลางๆ ไม่ใหญ่มาก แบบในห้องตัวอย่างจะเห็นว่ามีระยะให้เลื่อนเก้าอี้เข้าออกได้พอดีๆ นะคะ
ติดกับห้องทานอาหาร ทางฝั่งซ้ายมือจะเป็นส่วนของห้องน้ำ
ถัดเข้ามาจากส่วนห้องทานอาหารจะเป็นห้องนั่งเล่น
มุมห้องนั่งเล่นจัดออกมาเป็นสัดส่วนดีค่ะ ขนาดกำลังดีสำหรับอยู่กัน 2-3 คน
พื้นที่ในห้องนั่งเล่นสามารถวางโซฟา 2-3 ที่นั่งได้พอดี
ฝั่งตรงข้ามทำชั้นวางทีวี หรือติดทีวีแบบแขวน แล้วเพิ่ม Built-in ตู้เก็บของ/ตู้โชว์ของเพิ่มก็ได้
ติดกับห้องนั่งเล่นจะเป็นระเบียง ซึ่งตรงนี้จะใช้ประตูบานสไลด์ กรอบอลูมิเนียม ซึ่งเป็นช่องแสงหลักของห้องในส่วน Common Area ด้วย สามารถเปิดเพื่อรับแดด และระบายอากาศในห้องได้
ขนาดระเบียงถือว่าใช้งานได้จริงนะคะ สามารถวางราวตากผ้าได้ หรือจะทำสวนเล็กๆ ในห้องตัวเองก็ได้
บริเวณระเบียงจะติดไฟมาให้ 1 ดวง ส่วน Compressor แอร์จะมีทั้งที่ติดตั้งแบบแขวน และวางพื้นมาตรฐาน
มองย้อนกลับมาภายในภาพรวมส่วน Common Area
เรามาดูในส่วนห้อง Master Bedroom กันต่อ
ภายในห้อง Master Bedroom จะมีขนาดที่ถือว่ากว้างขวางทีเดียวค่ะ
พื้นที่ในห้องสามารถวางเตียงควีนไซซ์ หรือคิงส์ไซซ์ก็สบายๆ มีพื้นที่ข้างเตียงเหลือเฟือ สามารถวางโต๊ะหัวเตียง หรือโต๊ะเครื่องแป้งก็ได้
ช่องแสงในห้องจะเป็นหน้าต่างบานกระทุ้ง พร้อมเพิ่มพื้นที่รับแสงแดดด้วยบานฟิกซ์ที่จะช่วยให้ห้องดูโปร่งสบายขึ้น
พื้นที่บริเวณปลายเตียงจะมีระยะพอสมควร เราสามารถเดินผ่านได้ และสามารถติดทีวีแบบแขวนผนังได้ค่ะ เพราะเค้ามีเดินระบบช่องสัญญาณและเต้าเสียบมาให้เรียบร้อย
พื้นที่อีกฝั่งของห้องจะสามารถวางตู้เสื้อผ้าได้
มีระยะให้ยืนแต่งตัวกำลังดี
ภายในห้อง Master Bedroom จะเชื่อมต่อกับห้องน้ำ
โดยห้องน้ำจะสามารถเข้าออกได้ 2 ฝั่ง ทั้งจากห้อง Master Bedroom และจากห้องทานอาหารในส่วน Common Area
ตัวห้องน้ำที่นี่จะใช้เป็นห้องน้ำสำเร็จรูปตัวธรณีก็จะมีระยะที่สูงขึ้นมาหน่อย
ภายในห้องน้ำใช้สุขภัณฑ์ Cotto พื้นห้องน้ำเป็นกระเบื้องแกรนิตโต้แบบผิวด้านสีครีมขนาด 60 x 60 ซม. ระบายอากาศในห้องน้ำด้วยพัดลมดูดอากาศ
อ่างล้างมือได้เป็นอ่างแบบลอยตัวพร้อมช่องเก็บของใต้อ่าง ซึ่งเราสามารถใช้วางพวกผ้าเช็ดมือ หรือขวดสบู่ได้
โถสุขภัณฑ์ใช้แบบ Dual Flush ติดตั้งมาพร้อมสายชำระและที่วางกระดาษชำระ
ในส่วนห้องอาบน้ำจะมีขนาดที่พอให้ยืนอาบได้สบายๆ พร้อมติดตั้งชุดฝักบัวของ American Standard และถาดวางสบู่มาให้พร้อมใช้งานค่ะ
มีธรณีประตูกั้นส่วนเปียกขึ้นมาสูงประมาณ 2 ซม. เราสามารถกั้นฉากกั้นห้องกระจกเทมเปอร์เพิ่มเองได้เพื่อความเป็นสัดส่วน
อีกฝั่งของห้องจะเป็นโซนห้องครัวและห้องนอนรอง พร้อมห้อง Laundry
สำหรับห้องครัวจะอยู่ติดกับห้องทานอาหารค่ะ
ครัวที่ได้จะมีประตูกั้นเป็นครัวปิดมาให้เรียบร้อย เป็นสัดส่วน ช่วยกันกลิ่นและควันไม่ให้ไปรบกวนส่วนอื่นๆ ของห้อง
ภายในห้องครัวจะมีชุดเคาน์เตอร์ครัวติดตั้งมาให้ครบชุด ทั้งตัวเคาน์เตอร์, เตาไฟฟ้า, ซิ้งค์ล้างจาน และเครื่องดูดควัน
Top ครัวเป็นเมลามีนสีน้ำตาลอ่อน พร้อม Backsplash กันผนังเปื้อนติดตั้งมาให้ ทำให้เช็ดล้างทำความสะอาดได้ง่าย และมีเต้าเสียบปลั๊กไฟมาให้ ใช้เสียบเตาไมโครเวฟ เครื่องทำน้ำร้อน กาแฟ หรือ เครื่องปั่นน้ำผลไม้ได้
ใต้เคาน์เตอร์ครัวแบ่งเป็นลิ้นชักและช่องเก็บของตามนี้ โดยตัวหน้าบานจะปิดผิวเมลามีน บานพับ Soft Close ทั้งหมด
ตู้ลอยชั้นบนแบ่งเป็นช่องวางของ และตู้เก็บของเล็กๆ น้อยๆ
ฝั่งตรงข้ามเป็นพื้นที่สำหรับวางตู้เย็น
ติดกับครัวจะเป็นห้อง Laundry มีประตูปิดพร้อมช่องระบายความชื้นด้านล่าง ภายในห้องปูพื้นกระเบื้องเพื่อความสะดวกในการดูแลรักษา โดยห้องนี้เราสามารถเปลี่ยนเป็นห้องเก็บของก็ได้ ในกรณีที่เราส่งเสื้อผ้าซักเป็นปกติ
ติดกันเป็นส่วนห้องนอนรอง
ภายในห้องนอนรองก็ถือว่ามีพื้นที่ให้ใช้งานสะดวกค่ะ พร้อมช่องแสงช่วยให้ห้องโปร่งสบาย
พื้นที่ในห้องเหมาะที่จะวางเตียงเดี่ยว แต่ถ้าใครอยากขยับมาควีนไซซ์ก็ยังได้นะคะ แต่ก็จะไม่มีพื้นที่วางโต๊ะข้างเตียง
อีกฝั่งสามารถวางตู้เสื้อผ้าขนาดกลางได้พอดีกับพื้นที่
ราคา (ก.ค.2564)
ค่าส่วนกลาง : 57 บาท/ตร.ม./เดือน (เก็บล่วงหน้า 1 ปี)
ค่ากองทุน : 500 บาท/ตร.ม. (ชำระครั้งเดียว ณ วันโอน)
สอบถามราคาเพิ่มเติมกรุณาติดต่อสำนักงานขายเพื่อข้อมูลที่อัพเดตที่สุดค่ะ*
ลงทะเบียนรับสิทธิพิเศษ คลิก : https://www.apthai.com/th/
สรุป
ทำเลที่ตั้งโครงการ : เป็นทำเลที่สะดวกทั้งคนใช้รถและไม่ใช้รถค่ะ ไปไหนมาไหนก็จัดว่าสะดวกมาก เพราะอยู่ใจกลางเมืองอย่างรัชดาภิเษก-พระราม 9 ที่ขึ้นชื่อว่าเป็น New CBD อยู่แล้ว ตัวทำเลใกล้อโศก, สุขุมวิท, ใกล้ห้าง,ใกล้ทางด่วน, ใกล้โรงเรียน มหาวิทยาลัย ใกล้โรงพยาบาล สิ่งอำนวยความสะดวกต่างๆอยู่ในระยะที่พอเดินไปได้แทบทั้งหมด หรือนั่งรถไฟฟ้าก็ไม่กี่สถานีเท่านั้น
ของกินของใช้ก็หาซื้อได้ง่าย นอกจาก 7-11 หน้าโครงการ ใยซอยก็จะมีทั้งร้านขายยา, ร้านทำผม, ร้านอาหาร, ร้านอำนวยความสะดวกต่างๆ ที่มีให้เลือกเยอะมาก และในระยะแค่ 1 กม. ก็มีทั้ง Fortune Town และ Central Plaza พระราม 9, Belle Grand Rama 9
ถัดไปประมาณ 1.2 กม. ก็ มี Esplanade และ The Street สำหรับคนชอบเที่ยวกลางคืนก็มีแหล่งเที่ยวอยู่ที่ย่านรัชดา และ RCA ใกล้ ๆ และรัชดาซอย 4 ที่อยู่ไม่ไกล เป็นโซนที่หาของกินหรือแหล่งช้อปปิ้งได้ทั้งกลางวันกลางคืนค่ะ
เพราะอยู่ใกล้รถไฟฟ้า MRT ทั้งสถานีพระราม 9 และ สถานีศูนย์วัฒนธรรม ใกล้ Air Port Link สถานีมักกะสัน นอกจากนี้ยังใกล้จุดขึ้นลงทางด่วนพิเศษศรีรัชที่ทำให้คนขับรถมีความสะดวกสบายขึ้นเยอะ
ไปไหนมาไหนก็จัดว่าสะดวกมาก เพราะอยู่ใจกลางเมืองอย่างรัชดาภิเษก พระราม 9 ที่ขึ้นชื่อว่าเป็น New CBD อยู่แล้ว ใกล้อโศก สุขุมวิท ใกล้ห้าง ใกล้ทางด่วน ใกล้โรงเรียน มหาวิทยาลัย ใกล้โรงพยาบาล สิ่งอำนวยความสะดวกต่างๆอยู่ในระยะที่พอเดินไปได้แทบทั้งหมด หรือนั่งรถไฟฟ้าก็ไม่กี่สถานีเท่านั้น
การเดินทางด้วยรถยนต์ส่วนตัว : คนขับรถมีเส้นทางการเดินทางหลากหลาย หลักๆ คือถนนรัชดาภิเษกแต่ก็ยังมีทางลัดให้เลี่ยงรถติดไปยังถนนเส้นอื่นๆ นอกจากถนนรัชดาภิเษกหลายเส้นทาง ทั้งถนนประชาสงเคราะห์, ถนนดินแดง, ถนนวิภาวดีรังสิต และยังใกล้จุดขึ้นทางด่วนศรีรัชแค่ 2.1 กม. จะไปพญาไท หรือต่อมอเตอร์เวย์เพื่อไปสุวรรณภูมิก็ง่าย
จากรัชดาซอย 3 ออกมาถนนรัชดาภิเษกจะอยู่ฝั่งถนนมุ่งหน้าไปลาดพร้าวนะคะ ถ้าจะเข้าเมืองไปอโศก สุขุมวิท จุดกลับรถก็อยู่ไม่ไกล แต่เพราะเป็นทำเลในเมืองที่มีปริมาณรถมาก เวลาเข้าออกมีรถติดบ้างเป็นธรรมดา
การเดินทางด้วยรถสาธารณะ : เนื่องจากเป็นโซนที่มีคนอยู่อาศัยเยอะ ในซอยจึงพี่คิวพี่วินอยู่หลายจุดค่ะ ทั้งหน้าโครงการและกระจายทั่วไปในซอย เรียกใช้บริการได้ง่าย ไม่ว่าจะนั่งไปห้างใกล้ๆ หรือนั่งไปออฟฟิศในโซนนี้ก็สะดวก
หรือถ้าใครที่ทำงานในโซนใกล้เคียงที่ต้องนั่งรถไฟฟ้าต่อก็ไม่ไกลจาก MRT พระราม 9 ซึ่งทางโครงการเองจะมีรถ Shuttle Bus รับส่ง ที่มีรอบวิ่งทุก 30 นาที ก็ถือว่าสะดวกดีทีเดียวค่ะ และเป็นตัวเลือกสำหรับคนที่ใช้รถสาธารณะเป็นหลัก หรือคนที่ไม่อยากเสียเวลารถติดก็มีทางเลือกค่ะ
สำหรับคนที่เดินทางไปต่างประเทศบ่อย นั่ง MRT สถานีเดียวถึง Airport Link สถานีมักกะสัน โดยรวมจึงถือเป็นทำเลที่มีความสะดวกสบายสูงมากค่ะ
การออกแบบโครงการและวัสดุ : โครงการนี้เป็นคอนโด Low Rise พร้อมอยู่ ที่ถือว่ามีขนาดค่อนข้างใหญ่ จำนวนยูนิตเยอะพอสมควร แต่ข้อดีที่ตามมาของโครงการขนาดใหญ่ คือมีพื้นที่สำหรับ Facilities ในโครงการเยอะตามไปด้วย ซึ่งที่นี่ก็ได้ทำบรรยากาศในโครงการออกมาได้ดีมาก ส่วนกลางใหญ่ มีความเป็นส่วนตัว สภาพแวดล้อมในโครงการให้ความรู้สึกปลอดภัย แตกต่างจากบรรยากาศวุ่นวายในเมืองอย่างเห็นได้ชัด เหมาะกับการอยู่อาศัยค่ะ
ส่วนห้องพักที่นี่ขายแบบ Fully Fitted ได้ชุดครัว, ชุดสุขภัณฑ์ และเครื่องปรับอากาศมาให้ ซึ่งสเป็คมาสวยถ้าเทียบกับราคาและทำเลกับคอนโดอื่นๆ ในโซนเดียวกันก็ถือว่าอยู่ในเกณฑ์ค่อนข้างดี และมีความใส่ใจในรายละเอียด ชุดครัวเป็นหน้าบานสีครีมพร้อมชั้นลอย เตาไฟฟ้า เครื่องดูดควัน และอ่างล้างจานติดตั้งมาเรียบร้อย ห้องน้ำสำเร็จพร้อมมี Low Wall มาให้วางของเพิ่มได้ สุขภัณฑ์ Cotto ฝ้าเพดานสูง 2.5 m. พื้นเป็นลามิเนต 8 มม. กับแกรนิตโต้ 60 x 60 ซม.
สิ่งอำนวยความสะดวก : ถือว่าจัดเต็มมาให้ครบทุกฟังก์ชั่น มีพืน้ที่ให้พักผ่อนและทำกิจกรรมหลายจุด การดีไซน์ใช้สไตล์ Colonial ตั้งแต่หน้าโครงการ ให้บรรยากาศที่ดูหรูหรา บรรยากาศสไตล์ยุโรปที่ยังมีความร่วมสมัย และคุณภาพของงานส่วนกลางถือว่าทำออกมาสวยเลยทีเดียวค่ะ
ส่วนฟังก์ชั่นส่วนกลางที่จัดมาให้ก็จะมี Lobby, ห้องสมุด, สระว่ายน้ำ, พื้นที่สีเขียวและลานพักผ่อนข้างสระ, ห้อง Sauna, ห้องฟิตเนส, สวนหย่อมรอบโครงการ, Co-Working Space พร้อมระบบการรักษาความปลอดภัยตลอด 24 ชม. และที่จอดรถ 38% ของจำนวนยูนิตโครงการ
สอบถามรายละเอียดเพิ่มเติมได้ที่
Tel : 1623
Website : http://www.apthai.com/
หากเพื่อนๆเห็นว่ารีวิวนี้มีประโยชน์ ช่วยกด Like เพื่อเป็นกำลังใจให้ทีมงาน ขอบคุณค่ะ
และมีความคิดเห็นหรือข้อมูลเพิ่มเติมเกี่ยวกับตัวโครงการ สามารถ Comment ได้ที่ด้านล่างของรีวิวค่ะ
คอนโดใหม่ บนทำเลอื่นๆ…ที่น่าสนใจ
คอนโด XT Huaikhwang ใกล้ MRT ห้วยขวาง เริ่ม 3.99 ล้าน*
คอนโด พาร์ค รามอินทรา แต่งครบพร้อมอยู่เริ่ม 1.59 ล้าน*
คอนโด Metris พัฒนาการ-เอกมัย พร้อมอยู่ เลี้ยงสัตว์ได้ เริ่ม 2.59 ล้าน*
คอนโด Life Ladprao Valley พร้อมอยู่ ติด BTS ห้าแยกลาดพร้าว เริ่ม 5.19 ล้านบาท*
Atmoz ลาดพร้าว 71 คอนโดพร้อมอยู่ พร้อมส่วนกลางกว่า 2 ไร่
Atmoz ลาดพร้าว 15 คอนโดแต่งครบพร้อมอยู่
Brown Condo พหลฯ-สะพานใหม่ ใกล้ BTS สายหยุด เริ่ม 2.59 ล้านบาท*
Aspire อโศก-รัชดา คอนโดพร้อมอยู่ ใกล้ MRT พระราม 9
ศุภาลัย เวอเรนด้า สถานีภาษีเจริญ คอนโดพร้อมอยู่ เริ่ม 1.79 ล้านบาท*
คอนโด Kave Town Space ส่วนกลางจัดเต็มกว่า 20 รายการ เริ่ม 1.79 ล้าน*
คอนโด ศุภาลัย ปาร์ค สถานีตลาดพลู
คอนโด The Origin Plug & Play รามอินทรา เริ่ม 2.39 ล้าน*
แสดงความคิดเห็น เกี่ยวกับ " รีวิว แอสปาย อโศก-รัชดา Aspire Asoke-Ratchada คอนโดพร้อมอยู่ ทำเล New CBD ใกล้ MRT พระราม 9 "