
คอนโด บ้านไม้ขาว ภูเก็ต BAAN MAI KHAO PHUKET
บ้านไม้ขาว ภูเก็ต คอนโดมิเนียมระดับไฮเอนด์ติดชายหาดชื่อดัง “หาดไม้ขาว” ซึ่งนอกจากขึ้นชื่อในเรื่องความเป็นธรรมชาติอันสวยงาม สงบ และมีความเป็นส่วนตัวแล้ว ยังเป็นย่านพักตากอากาศระดับบนที่เป็นที่นิยมของกลุ่มนักท่องเที่ยวทั้งชาวไทยและชาวต่างชาติ
และเป็นที่ตั้งของโรงแรมห้าดาวชื่อดังหลายแห่งของเกาะภูเก็ตที่มีชื่อเสียงระดับโลก อาทิ เจ ดับบลิว แมริออท ภูเก็ต รีสอร์ท แอนด์ สปา, อนันตรา ภูเก็ต รีสอร์ท แอนด์ สปา, ศาลา ภูเก็ต และ เรเนซองส์ ภูเก็ต รีสอร์ท แอนด์ สปา และอยู่ใกล้สนามบินนานาชาติจังหวัดภูเก็ตเพียง 15 นาที
“บ้านไม้ขาว” จาก แสนสิริ ตั้งอยู่บนพื้นที่กว่า 13-2-90 ไร่ ประกอบด้วยอาคารที่พักอาศัย 3 ชั้น จำนวน 6 อาคาร และ 5 ชั้น จำนวน 3 อาคาร มีห้องชุดพักอาศัยจำนวน 206 ยูนิต พื้นที่ใช้สอยตั้งแต่ 59.50-263.50 ตร.ม.
ประกอบด้วยห้องพัก 5 รูปแบบ คือ ห้องชุด 1 ห้องนอน ขนาด 59.50-72.00 ตร.ม., ห้องชุด 2 ห้องนอน ขนาด 79.00-98.00 ตร.ม., ห้องชุด 2 ห้องนอนแบบดูเพล็กซ์ขนาด 115.00- 137.50 ตร.ม., ห้องชุด 3 ห้องนอน ขนาด 134.00- 162.50 ตร.ม. และเพนท์เฮาส์ ขนาด 260.00-263.50 ตร.ม.
โครงการบ้านไม้ขาวประกอบด้วยสิ่งอำนวยความสะดวกมากมาย อาทิ ที่จอดรถที่รองรับได้กว่า 100 คันเพียบพร้อมด้วยสนามหญ้าและสวนขนาดใหญ่, สระว่ายน้ำและห้องฟิตเนส พร้อมอินเทอร์เน็ตไร้สาย และระบบรักษาความปลอดภัยกล้องวงจรปิดตลอด 24 ชั่วโมง เดินเพียงไม่กี่ก้าวสู่บริการระดับห้าดาวไม่ว่าจะเป็น มื้ออาหารสุดพิเศษ บริการสปา และสันทนาการครบครันจากโรงแรมรีสอร์ทชื่อดังระดับโลกที่อยู่ใกล้เคียง
นอกจากนั้นโครงการบ้านไม้ขาวยังเป็นโครงการแรกของแสนสิริบนเกาะภูเก็ตที่มอบบริการ Concierge Service ที่พร้อมจะดูแลลูกบ้านของโครงการบ้านไม้ขาวนับตั้งแต่ก้าวแรกที่สัมผัสเมืองภูเก็ต อาทิ การจัดรถรับ-ส่งสนามบิน, บริการจัดหาพี่เลี้ยงเด็ก, บริการจัดส่งอาหารจากร้านดังทั่วเมืองภูเก็ตตรงถึงห้องคุณ เป็นต้นซึ่งเราเชื่อว่าทั้งหมดนี้จะช่วยเติมเต็มวันพักผ่อนของคุณให้อิ่มเอมยิ่งขึ้น
| ชื่อโครงการ | บ้านไม้ขาว ภูเก็ต BAAN MAI KHAO PHUKET |
| เจ้าของโครงการ | แสนสิริ |
| ลักษณะห้องและขนาดห้อง | – 1 Bed / 59.50 – 72.00 ตร.ม. – 2 Bed / 79.00 – 137.50 ตร.ม. – 3 Bed / 134.00 – 162.50 ตร.ม. – Penthouse / 260.00 – 263.50 ตร.ม. – Duplex / 115.00 – 137.50 ตร.ม. |
| เนื้อที่ทั้งหมด | 13 ไร่ 2 งาน 90.00 ตร.ว. |
| จำนวนตึก | 9 อาคาร |
| จำนวนชั้น | 3 ชั้น 6 อาคาร และ 5 ชั้น 3 อาคาร |
| จำนวนห้อง | 206 ยูนิต |
| ที่จอดรถทั้งหมด | 100 คัน |
| โซน | ภูเก็ต |
| ขนส่งสาธารณะ | n/a |
| รถโดยสารที่ผ่าน | n/a |
| ที่ตั้ง | ตำบลไม้ขาว อำเภอถลาง จังหวัดภูเก็ต |
| กำหนดการ | n/a |
| ปีที่สร้างเสร็จ | พ.ศ. 2558 |
| ราคา | 7,300,000 – 53,000,000 บาท (ณ. วันที่ 19 มีค. 56) |
| ราคาเฉลี่ยต่อ ตร.ม | เริ่มต้น 122,700 บ./ตร.ม. |
| สถานที่สำคัญใกล้เคียง | 1. ฮอลิเดย์ อินน์ รีสอร์ท 2. เรเนซองส์ ภูเก็ต รีสอร์ท แอนด์ สปา 3. ศาลา ภูเก็ต รีสอร์ท แอนด์ สปา ภูเก็ต |
| สิ่งอำนวยความสะดวก | – สระว่ายน้ำ (ความยาว 70 เมตร พร้อมสระเด็ก), ฟิตเนส – รปภ., กล้องวงจรปิดโครงการ – สวนหย่อม – Wi-Fi Internet บริเวณ Lobby (และสระว่ายน้ำ) – อื่นๆ (ที่จอดรถ, ล็อบบี้แบบ Semi-Outdoor) |
| จุดเด่นของโครงการ | คอนโดสูงกลางเมือง บนทำเลหาดไม้ขาว |
ที่ตั้งโครงการ
ตำบลไม้ขาว อำเภอถลาง จังหวัดภูเก็ต
คลิก เพื่อดูแผนที่ขนาดใหญ่
การเดินทาง
พิกัดโครงการ : https://maps.app.goo.gl/v3tqeCzUv5kJ5YK49
ถนนเทพกระษัตรี ⇒ ถนนเลียบพรุเจ๊สัน ⇒ บ้านไม้ขาว ภูเก็ต
เริ่มจากถนนเทพกระษัตรี ฝั่งขาออก
เลี้ยวซ้ายเข้าไปทางโรงแรม อนันตรา ไม้ขาว ภูเก็ต วิลล่า
ขับตรงไปตามทาง
ขับตรงไปตามเส้นเลียบหาดไม้ขาว
เชื่อมถนนเลียบพรุเจ๊สัน
ถึงโครงการ บ้านไม้ขาว ภูเก็ต
ด้านหน้าโครงการ บ้านไม้ขาว ภูเก็ต
บริเวณโดยรอบโครงการ
ห้างสรรพสินค้าและร้านค้า
สถานศึกษา
โรงพยาบาล
สถานที่ท่องเที่ยวและอื่น ๆ
แปลนอาคาร
Master Plan



Building A : 1st floor / 2nd floor / 3rd floor



Building B : 1st floor / 2nd floor / 3rd floor



Building C : 1st floor / 2nd floor / 3rd floor





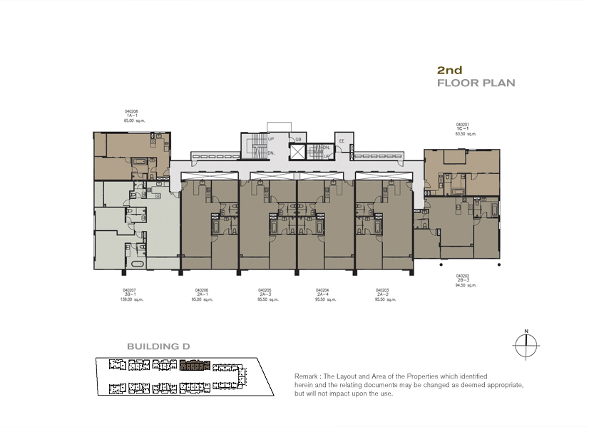
Building D : 1st floor / 2nd floor / 3rd floor / 4th floor/ 5th floor





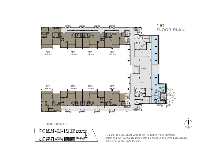
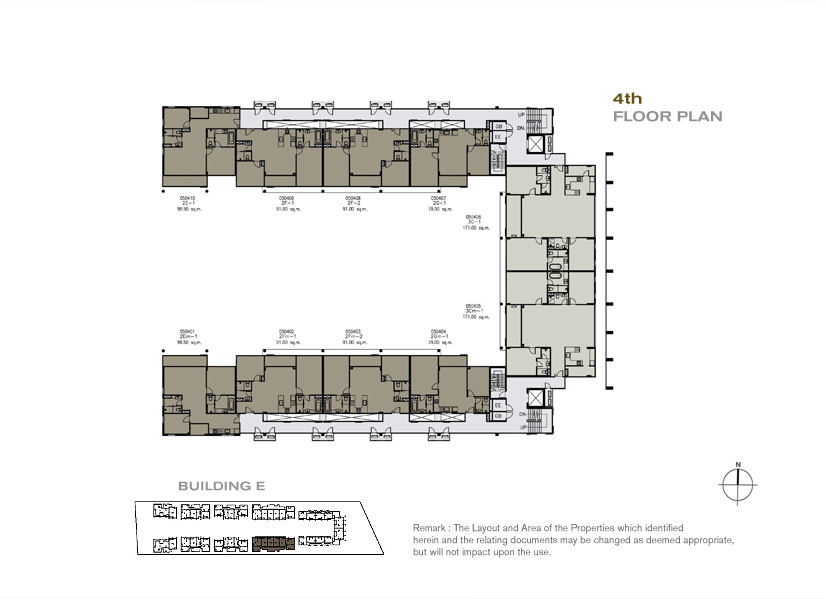
Building E : 1st floor / 2nd floor / 3rd floor / 4th floor/ 5th floor





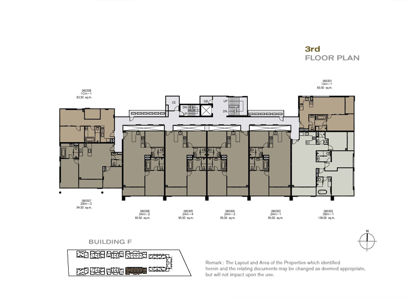
Building F : 1st floor / 2nd floor / 3rd floor / 4th floor/ 5th floor



Building G : 1st floor / 2nd floor / 3rd floor



Building H : 1st floor / 2nd floor / 3rd floor



Building I : 1st floor / 2nd floor / 3rd floor
แปลนห้อง
Type : 1A
แกลเลอรี่
สนใจติดต่อรายละเอียดเพิ่มเติมได้ที่
Call Center : 1685
Website : http://www.sansiri.com/condominium/baanmaikhao_phuket/
คอนโด ภูเก็ต ทำเลอื่นๆ ที่น่าสนใจ…
The Title Cielo ราไวย์ เริ่ม 3.9 ลบ.*
คอนโด บ้านไม้ขาว ภูเก็ต
คอนโด เดอะ โมเดวา เริ่ม 4.1-18.7 ล้าน*
คอนโด เดอะ โคลเวอร์ ภูเก็ต
คอนโด เดอะ เบส ไฮท์ ภูเก็ต
คอนโด ศุภาลัย ปาร์ค ดาวน์ทาวน์ ภูเก็ต
คอนโด ศุภาลัย ปาร์ค ภูเก็ต ซิตี้
ภูมันตรา เดอะ คอนโด ภูเก็ต
พลัส คอนโด ภูเก็ต 2
คอนโด เดอะ ฟิวเจอร์ ภูเก็ต
คอนโด ศุภาลัย ซิตี้ รีสอร์ท ภูเก็ต
แสดงความคิดเห็น เกี่ยวกับ " คอนโด บ้านไม้ขาว ภูเก็ต BAAN MAI KHAO PHUKET "