logo

รีวิว บราวน์ คอนโด รัชดา 32 BROWN CONDO RATCHADA 32

สวัสดีผู้อ่านชาว Homenayoo ทุกคนค่าา วันนี้ทางทีมงานของเราจะขอพาทุกคนไปชมโครงการแถวรัชดาภิเษกกัน กับโครงการ Brown รัชดา 32 คอนโดสไตล์ Luxury ส่วนกลางครบครัน Private club house, Jogging track, Sculptural playground, Healthy plants, Putting green, Swimming pool, Fitness และ Sky terrace ฝ้าเพดานสูงโปร่ง 2.8 เมตร พร้อม Bluetooth Sound System ทุกยูนิต ราคาเริ่มต้น 1.49 ล้านบาท เท่านั้น รายละเอียดจะเป็นอย่างไร เลื่อนลงไปชมด้านล่างกันเลยค่ะ ?



ชื่อโครงการ บราวน์ คอนโด รัชดา 32 / BROWN CONDO RATCHADA 32
เจ้าของโครงการ บริษัท แอสเซทไวส์ จำกัด / Asset Wise
ลักษณะห้องและขนาดห้อง
  • 1 BEDROOM ขนาด 23.96 – 25.48 ตร.ม. จำนวน 166 ยูนิต
  • 1 BEDROOM EXCLUSIVE ขนาด 29.79 – 34.78 ตร.ม. จำนวน 52 ยูนิต
  • 1 BEDROOM PLUS ขนาด 33.13 – 46.37 ตร.ม. จำนวน 24 ยูนิต
เนื้อที่ทั้งหมด 1-3-44 ไร่
จำนวนตึก อาคารที่พักอาศัยรูปทรง L Shape 1 อาคาร และ Private Club House 1 อาคาร
จำนวนชั้น 7 ชั้น
จำนวนห้อง 242 ยูนิต
ที่จอดรถทั้งหมด 92 คัน หรือประมาณ 38% (รวมจอดซ้อนคัน)
จำนวนลิฟต์ 2 ตัว
โซน รัชดาภิเษก, ลาดพร้าว
ขนส่งสาธารณะ รอข้อมูลจากทางโครงการ
รถโดยสารที่ผ่าน ถนนรัชดาภิเษก : รถเมล์สาย 38ร, 126ร, 136, 178, 179, 185, 191, 206, 529ร
ที่ตั้ง ซ.รัชดา 32 ถนนรัชดาภิเษก แขวงจันทรเกษม เขตจตุจักร กทม.
กำหนดการ เริ่มสร้าง พ.ศ. 2560
ปีที่สร้างเสร็จ พ.ศ.2561
ราคา เริ่มต้น 1.49 ล้านบาท
ราคาเฉลี่ยต่อ ตร.ม 70,000./ตร.ม.
ค่าส่วนกลางและกองทุน
  • ค่าใช้จ่ายส่วนกลาง 45 บาท/ตร.ม. ชำระล่วงหน้า 2 ปี
  • เงินกองทุน 500 บาท/ตร.ม. ชำระครั้งเดียว
สถานที่สำคัญใกล้เคียง
  • ศูนย์อาหารรัชดา 32 1.1 กม.
  • Tesco Lotus Express (รัชดา 32) 1 กม.
  • ม.ราชภัฎจันทรเกษม 1.4 กม.
  • รร.เซนต์จอห์น 4.4 กม.
  • รร.เสนานิคม 4.3 กม.
  • Green Plaza 1.4 กม.
  • Plaza Lagoon 900 กม.
  • The JAS 7.7 กม.
  • ตลาดวังหินยิ่งเจริญ 2.3 กม.
  • ตลาดสะพาน 2 4 กม.
  • ตลาดโชคชัย 4 4.1 กม.
  • Central ลาดพร้าว 5.1 กม.
  • Union Mall 4.5 กม.
  • Major รัชโยธิน 4.1 กม.
  • สวนจตุจักร 5.9 กม.
  • SCB Park 4.8 กม.
สิ่งอำนวยความสะดวก
  • Private Clubhouse : DUPLEX LOBBY LOUNGE / LIBRARY / PLAYROOM / THE GYM / SWIMMING POOL ขนาด 18 m x 5 m
  • Roof Garden : JOGGING TRACK /OUTDOOR EXERCISE ZONE /YOGA DECK /BARBECUE PARTY& WINE BAR/SCULPTURAL PLAYGROUND /DAYBED /OUTDOOR WORKING SPACE & COMMUNITY TABLE /HEALTHY PLANTS GARDEN /STARLIGHT TERRACE /PUTTING GREEN
จุดเด่นของโครงการ

โลเคชั่น ใจกลางรัชดา เขต New CBD /เข้าออกหลายเส้นทาง แหล่งอำนวยความสะดวกตลอด 24 ชม. รถไฟฟ้า 3สาย

Clubhouse แยกออกจากอาคารที่พักอาศัย มีความเป็นส่วนตัว มี Rooftop Garden พร้อม Function การพักผ่อนตาม Lifestyle คนเมือง ห้องพักอาศัยสูง 2.8 เมตร


Asher Naii Sutthisan-Saphankhwai VDO

พาชม Virtual Tour 360 บราวน์ คอนโด รัชดา 32


ที่ตั้งโครงการ

ซอยรัชดา 32 ถนนรัชดาภิเษก แขวงจันทรเกษม เขตจตุจักร กทม.
พิกัด GOOGLE MAPS : 13.818760, 100.584697
map
แผนที่จากทางโครงการ

Master

โครงการ Brown Condo รัชดา 32 นั้นอยู่ในย่านรัชดาซึ่งเป็นทำเลที่เป็นที่น่าจับตามองอยู่แล้วในช่วงหลายปีที่ผ่านมา เนื่องจากความเป็นไปได้ที่จะเป็น New CBD ถัดมาจากย่านอโศกนั่นเองค่ะ ส่วนที่ตั้งของตัวโครงการนี้ถึงแม้ว่าจะใช้ชื่อพ่วงท้ายว่ารัชดา 32 แต่ที่ตั้งจริงๆของโครงการจะอยู่ในซอยรัชดา 36 แยก 19 – 7 ค่ะ แต่จะใช้ชื่อนี้ก็ไม่ผิดนัก เพราะตัวโครงการสามารถเข้าได้ทั้งจากรัชดา 36 และ 32 ซึ่งถ้าเอาเส้นทางที่สะดวกก็จะต้องเข้าจากปากซอยรัชดา 32 หรือที่เรียกกันว่าตรงข้ามศาลอาญา หรือ ซอยข้างกรมส่งเสริมการส่งออกนั่นเองค่ะ

สำหรับสภาพแวดล้อมในซอยรัชดา 32 นี้ จะค่อนข้างสงบแต่ไม่เปลี่ยว มีความอุดมสมบูรณ์พอประมาณ เหมาะกับการอยู่อาศัย เห็นได้จากในตัวซอยจะมีอพาร์ทเมนท์มากมาย ซึ่งส่วนใหญ่จะเป็นพนักงานออฟฟิศในย่านนี้ คือรัชดารวมไปถึงแถวอโศก และสุขุมวิทเพราะอยู่ไม่ไกลจาก MRT ลาดพร้าวเท่าไหร่ ทำให้สะดวกในการเดินทางไปทำงานค่ะ

นอกจากตัวซอยรัชดา 32 แล้ว ยังมีซอยใกล้เคียงคือซอยรัชดา 36 หรือ ซอยเสือใหญ่ ที่อยู่ด้านหลังของมหาวิทยาลัยราชภัฏจันทรเกษม เป็นชุมชนเก่าอยู่เดิม และเนื่องจากอยู่ใกล้สถานศึกษาจึงทำให้มีหอพักต่างๆมากมาย รวมๆแล้วจะมีความคึกคักกว่าซอยรัชดา 32 อยู่พอประมาณเลย เพราะภายในซอยถือว่าเป็นเป็นแหล่งชุมชนมีความอุดมสมบูรณ์สูง มีทั้งร้านค้า ร้านอาหาร ตลาดสดครบครันค่ะ

สำหรับการเดินทางด้วยรถยนต์ ถือว่าสะดวกแต่รถอาจจะติดมากหน่อย โดยเฉพาะในช่วงเวลาเร่งด่วนค่ะ โดยตัวซอยสามารถทะลุออกถนนใหญ่ 2 เส้นคือ ถนนรัชดาที่สามารถใช้เดินทางเข้าเมืองไปย่านออฟฟิศช่วงรัชดา พระราม 9 ห้วยขวาง และออกนอกเมืองไปฝั่งบางซื่อ สะพานพระราม 7 ได้ และตัวซอยอีกด้านเชื่อมกับถนนลาดพร้าววังหิน ที่เชื่อมไปลาดพร้าวและเกษตรนวมินทร์ได้ นอกจากนั้นก็มีซอยเล็กซอยน้อยให้เลือกใช้ลัดเลาะหนีรถติดได้อีกหลายเส้นทางค่ะ

R1-2

สำหรับทางด่วนรอบๆโครงการ ก็มีให้เลือกใช้หลากเส้นทางเลยค่ะ โดยจุดขึ้นทางด่วนที่ใกล้โครงการที่สุด จะเป็นจุดขึ้นทางด่วนดอนเมืองฝั่งขาออก สามารถใช้เดินทางไปดอนเมืองยาวไปรังสิต ปทุมธานีได้ ซึ่งจุดขึ้นทางด่วนนี้จะมีระยะห่างจากโครงการประมาณ 6.5 กม. ใช้เวลาเดินทางประมาณ 7 – 15 นาทีแล้วแต่ช่วงเวลาค่ะ

R1

ส่วนจุดขึ้นทางด่วนดอนเมืองฝั่งขาเข้าเมืองก็จะมีระยะทางจากโครงการประมาณ 6.6 กม. ใช้เวลาเดินทางประมาณ 8 – 15 นาที

R2

ทางด่วนเส้นที่ 2 ที่อยู่ถัดมาจะเป็นทางด่วนศรีรัชค่ะ โดยจุดขึ้นทางด่วนที่ใกล้โครงการของทางด่วนเส้นนี้จะเป็นจุดขึ้นทางด่วนฝั่งขาเข้า มีระยะทางจากโครงการประมาณ 8.1 กม. ใช้เวลาเดินทางประมาณ 9 – 15 นาที

R2-1

ส่วนจุดขึ้นทางด่วนศรีรัชฝั่งขึ้นไปทางเหนือจะมีระยะห่างจากโครงการประมาณ 9.2 กม. ใช้เวลาเดินทางประมาณ 17 – 30 นาทีค่ะ

R3

ทางด่วนอีกเส้นที่สามารถเดินทางมาจากโครงการได้จะเป็นทางด่วนรามอินทรา – อาจณรงค์ โดยจุดขึ้นทางด่วนฝั่งขึ้นไปทางเหนือจะมีระยะห่างจากโครงการประมาณ 6.8 กม. ใช้เวลาเดินทางประมาณ 14 – 25 นาที

R3-2

และจุดขึ้นทางด่วนฝั่งลงทางทิศใต้จะมีระยะห่างจากโครงการประมาณ 9.7 กม. ใช้เวลาเดินทางประมาณ 17 – 30 นาทีค่ะ

BTS

ส่วนการเดินทางโดยรถสาธารณะ ในปัจจุบันจากตัวโครงการเลยอาจจะทุลักทุเลนิดนึงค่ะ เพราะมีตัวเลือกให้ไม่มากนัก ที่เห็นตอนนี้จะมีให้พึ่งพาแค่ Taxi บนซอยหลัก ต้องเดินออกมาจากซอยย่อยนิดหน่อย ประมาณ 55 เมตร แต่ถ้าเราออกมาจากตัวซอยได้ก็จะมีป้ายรถเมล์ฝั่งถนนรัชดา จะมีรถเมล์สาย 38ร, 126ร, 136, 178, 179, 185, 191, 206, 529ร ให้เลือกใช้ค่ะ

ส่วนรถไฟฟ้าที่มีระยะทางใกล้โครงการที่สุดจะเป็น MRT ลาดพร้าว โดยจะมีระยะทางจากโครงการประมาณ 2.5 กม. ใช้เวลาเดินทางประมาณ 10 นาทีค่ะ

ส่วนในอนาคตก็จะมีทางเลือกเพิ่มเข้ามาให้อีกคือรถไฟฟ้าสายสีเขียว(หมอชิตสะพานใหม่คูคต) สถานีที่ใกล้โครงการที่สุดจะเป็นสถานีรัชโยธิน บริเวณแยกรัชโยธิน และรถไฟฟ้าสายสีเหลือง(ช่วงลาดพร้าว-สำโรง) โดยสถานีที่ใกล้โครงการที่สุดคือสถานีรัชดา บริเวณแยกรัชดา – ลาดพร้าวค่ะ

อุดม

ความอุดมสมบูรณ์ของโครงการในระยะเดินจะมี 7 – 11 ที่หน้าปากซอยค่ะ ส่วนความอุดมสมบูรณ์อื่นๆจะต้องออกมาไกลเกินระยะเดินสบายหน่อย โดยความอุดมสมบูรณ์หลักๆในซอยรัชดา 32 จะอยู่ช่วงต้นซอย ประกอบไปด้วยศูนย์อาหารรัชดา 32 มีร้านอาหารเยอะหลายร้าน และ Tesco Lotus Express ค่ะ หรือจะออกไปซอยข้างเคียงคือซอยรัชดา 36 ก็จะมีตลาดสด ร้านอาหารให้เลือกหลายร้าน ราคาไม่แพง

นอกจากนั้นยังมีความอุดมสมบูรณ์ใหญ่ๆและสาธารณูปโภคครบครันอีกจุดอยู่บนถนนลาดพร้าววังหิน โดยจะมีตลาดสดวังหินยิ่งเจริญ, ตลาดสะพาน 2 และ ตลาดโชคชัย 4 ที่มีทั้งของสดของแห้งให้ได้เลือกซื้อไปประกอบอาหารได้และพวก Hyper Market จะมี Tesco Lotus และ Mini Big C ส่วน Community Mall ก็จะมี The JAS, Plaza Lagoon และ Green Plaza แต่ถ้าเป็นห้างใหญ่ๆที่ใกล้โครงการที่สุดจะเป็นห้าง Major รัชโยธิน ถ้าออกมาไกลหน่อยจะเป็น Central ลาดพร้าว, Union Mall บริเวณห้าแยกลาดพร้าวค่ะ

การเดินทาง

Route1

เส้นทางที่เราจะใช้ในการเดินทางวันนี้ จะเริ่มต้นกันที่บริเวณห้าแยกลาดพร้าวตรงไปบนถนนพหลโยธินมุ่งหน้าหลักสี่ ตรงไปเรื่อยๆถึงแยกรัชโยธินเลี้ยวขวาเข้าถนนรัชดาภิเษก ตรงไปตามถนนแล้วเข้าซอยรัชดา 32 และเข้าซอยรัชดา 36 แยก 19 – 7 ตรงไปประมาณ 50 เมตร ก็จะถึงตัวโครงการแล้วค่าา

สรุปการเดินทาง ห้าแยกลาดพร้าว > ถนนพหลโยธิน > แยกรัชโยธิน > ถนนรัชดา > ซอยรัชดา 32 > ซอยรัชดา 36 แยก 19 – 7 > Brown Condo รัชดา 32

the brown รัชดา 32-Route-2

เริ่มต้นการเดินทางบนถนนพหลโยธิน บริเวณห้าแยกลาดพร้าว

the brown รัชดา 32-Route-4

ผ่าน Central ลาดพร้าว ทางซ้ายและ Union Mall ทางขวามือ เราสามารถจอดแวะ Shopping กันก่อนได้ค่ะ

the brown รัชดา 32-Route-6

ตรงมาเรื่อยๆเราจะถึงแยกรัชโยธิน ตรงนี้เราสามารถที่จะเลี้ยวซ้ายเพื่อออกไปเส้นวิภาวดีรังสิตได้ ถ้าเราตรงต่อไปก็จะไปถึงแยกเกษตร

the brown รัชดา 32-Route-7

ถึงแยกเราเลี้ยวขวาเข้าถนนรัชดาภิเษกค่ะ

the brown รัชดา 32-Route-8

ตอนนี้เราอยู่บนถนนรัชดากันแล้วนะคะ ขับตรงต่อไปเรื่อยๆ

the brown รัชดา 32-Route-11

ขับตามทางมาประมาณ 1.6 กม. จะเห็นป้ายเส้นทางลัดไปลาดพร้าววังหิน ให้เราชิดซ้ายเตรียมเลี้ยวเข้าซอยได้เลยค่ะ

the brown รัชดา 32-Route-12

ถึงซอยรัชดา 32 เราเลี้ยวซ้ายเข้าซอยไปเลยค่าา

the brown รัชดา 32-Route-13

เข้ามาในซอยรัชดา 32 แล้วจะเห็นศูนย์อาหารรัชดา 32 ค่อนข้างคึกคักเลยค่ะ

the brown รัชดา 32-Route-14

ติดกันจะมี Tesco Lotus Express และ 7 – 11 สามารถแวะซื้อข้าวของก่อนได้เช่นกัน

the brown รัชดา 32-Route-15

บรรยากาศด้านในซอยส่วนใหญ่จะเป็นอพาร์ทเมนท์แบบ Low Rise คนอยู่อาศัยเยอะแต่ก็ยังคงมีความสงบอยู่ค่ะ

the brown รัชดา 32-Route-16

ผ่านซอยรัชดา 32 แยก 1 ทางซ้าย ส่วนทางขวาจะเป็นเส้นทางเข้าซอยรัชดา 32 ซึ่งด้านในจะแบ่งแยกเป็นซอยย่อยต่างๆอีกหลายซอยค่ะ

Brown 32-SF RE-8

ตรงมาอีกหน่อยจะถึงตัว Sale Office ทางซ้ายมือ เราตรงต่อไปเพื่อไปดูที่ตั้งโครงการกันต่อค่ะ

 

the brown รัชดา 32-Route-18

ตรงมาอีกหน่อยจะถึงแยกที่แบ่งเข้าซอยรัชดา 36 จากตรงนี้จะสิ้นสุดซอยรัชดา 32 และจะเริ่มเป็น ซอยรัชดา 36 แยกต่างๆแล้วนะคะ

the brown รัชดา 32-Route-19

ตรงมาอีกหน่อยจะมีแยกซ้ายแลกขวาแบ่งเข้าซอยรัชดา 36 แยก 19 -1 และ แยก 19 – 2

the brown รัชดา 32-Route-20

ระหว่างทางจะมีป้ายบอกทางเรื่อยๆ

the brown รัชดา 32-Route-21

ตรงมาอีกหน่อยจะถึงซอยรัชดา 36 แยก 19 – 7 จุดสังเกตุคือ 7 – 11 ทางขวามือ

the brown รัชดา 32-Route-22

เลี้ยวเข้ามาในซอยจะเห็นอพาร์ทเมนท์สูงประมาณ 5 ชั้นทางขวามือ

the brown รัชดา 32-Route-23

ตรงเข้ามาอีกประมาณ 50 เมตร ก็จะถึงที่ตั้งโครงการ Brown Condo รัขดา 32 แล้วค่าา

Master

ถนนและแยกที่สำคัญรอบๆโครงการ

  • แยกรัชโยธิน 4.6 กม.
  • แยกรัชดา – ลาดพร้าว 2.3 กม.
  • แยกวังหิน 2.3 กม.
  • แยกลาดพร้าว 4.5 กม.
  • ซอยรัชดา 36 1 กม.
  • ถนนพหลโยธิน 4.5
  • ถนนรัชดา 1.1 กม.
  • ถนนลาดพร้าว 2.3
  • ถนนลาดพร้าววังหิน 800 ม.
  • ถนนกำแพงเพชร 6.7 กม.

อุดม

สถานที่สำคัญรอบๆโครงการ

  • ศูนย์อาหารรัชดา 32 1.1 กม.
  • Tesco Lotus Express (รัชดา 32) 1 กม.
  • ม.ราชภัฎจันทรเกษม 1.4 กม.
  • รร.เซนต์จอห์น 4.4 กม.
  • รร.เสนานิคม 4.3 กม.
  • Green Plaza 1.4 กม.
  • Plaza Lagoon 900 กม.
  • The JAS 7.7 กม.
  • ตลาดวังหินยิ่งเจริญ 2.3 กม.
  • ตลาดสะพาน 2 4 กม.
  • ตลาดโชคชัย 4 4.1 กม.
  • Central ลาดพร้าว 5.1 กม.
  • Union Mall 4.5 กม.
  • Major รัชโยธิน 4.1 กม.
  • สวนจตุจักร 5.9 กม.
  • SCB Park 4.8 กม.

รอบๆโครงการ

SR

พื้นที่รอบๆโครงการ ทิศเหนือติดกับซอยรัชดาภิเษก 36 แยก 19 – 5 ทิศตะวันออกหรือหน้าโครงการติดกับซอยรัชดาภิเษก แยก 19 – 7 ฝั่งตรงข้ามถนนเป็นที่อยู่อาศัยประเภททาวน์โฮม บ้านเดี่ยว สูง 2 – 4 ชั้น ทิศใต้ติดกับด้านหลังของอาคารพาณิชย์ สูง 4 ชั้น ทิศตะวันตกหรือด้านหลังอาคาร ติดกับอพาร์ทเมนท์สูง 5 ชั้น

the brown รัชดา 32-SR-3

บรรยากาศภายในซอยย่อยจะมีความสงบกว่าตัวซอยหลักด้านนอกพอสมควร ในภาพคือมุมมองจากหน้าโครงการมองออกไปทางซอยหลัก

the brown รัชดา 32-SR-1

ฝั่งตรงข้ามด้านหน้าโครงการจะเป็นทาวน์เฮ้าส์ สูงประมาณ 3 – 4 ชั้น

the brown รัชดา 32-SR-2-1

ทางซ้ายมือของโครงการเป้นถนนซอยย่อยแยกไปซอยรัชดาภิเษก 36 แยก 19 -5 และตรงไปซอยรัชดาภิเษก 36 แยก 19 -1

the brown รัชดา 32-SR-4-1

ที่ดินของตัวโครงการจะเป็นที่ดินแปลงมุมแบบนี้ค่ะ

the brown รัชดา 32-SR-5

ด้านหลังโครงการจะติดกับอพาร์ทเมนท์สูง 5 ชั้น

the brown รัชดา 32-SR-6

บรรยากาศในซอยรัชดาภิเษก 36 แยก 19 – 5 จะเงียบๆ มีบ้านเดี่ยวและอพาร์ทเมนท์

the brown รัชดา 32-SR-7

หน้าตาที่ดินที่มองจากฝั่งด้านหลัง

Brown 32-SF RE-9

กลับมาที่ Sale Office หน้าตาโมเดิร์นโทนสีน้ำตาลเข้ากับชื่อโครงการ

Brown 32-SF RE-15

ภายใน Sale Office เข้ามาจะเจอกับ Model แบบจำลองตัวโครงการ ถัดไปเป็นเคาน์เตอร์ของเจ้าหน้าที่คอยให้คำแนะนำและข้อมูลโครงการค่ะ

Brown 32-SF RE-16

อีกฝั่งจะมีที่นั่งรับรองหลายชุดค่ะ

 

ตัวโครงการ

5_BROWN AR-Front-V3-01 (resize)

โครงการ Brown Condo Ratchada 32 เป็นโครงการคอนโด Low Rise สูง 7 ชั้น 1 อาคารพักอาศัย และ 1 อาคารส่วนกลาง (Facility) ตัวอาคารพักอาศัยเป็นรูปทรง L Shape จำนวนห้องพักอาศัยทั้งโครงการ 242 ยูนิต ส่วนตัวอาคาร Facility เป็นอาคารสูง 3 ชั้นตั้งอยู่บริเวณกลางโครงการค่ะ

2016-09-07-for saleok-01

ผังโครงการที่ชั้น 1 เมื่อเข้ามาในโครงการจะเจอถนนหลัก กว้างประมาณ 6 เมตร พื้นที่ในชั้น 1 จะเป็นที่จอดรถทั้งหมดประมาณ 92 คัน หรือ 38% ไม่รวมจอดซ้อนคัน หรือ 40% รวมจอดซ้อนคัน และ Lobby ของโครงการจะเป็นโถงเล็กๆ เชื่อมกับโถงลิฟท์เลย

Brown 32-Model RE-13

มาดูตัวโมเดลของโครงการกันบ้าง ภาพรวมออกแบบมาในโทนสีน้ำตาล สูง 7 ชั้น

Brown 32-Model RE-14

มาดูโมเดลโครงการกันบ้าง หน้าโครงการจะอยู่ติดกับซอย 36 แยก 19 – 7

Brown 32-Model RE-21

ทางเข้าและออกของโครงการ จะมีรปภ. คอยดูแล 24 ชม.

Brown 32-Model RE-17

ภายในโครงการแยกเป็น 2 อาคารคือาคารที่พักอาศัย และอาคาร Facility

5_BROWN AR-Front-V2-01 (No tree version)

ทางเข้าโครงการจากถนนในซอยย่อย

1474515129802

ภาพจำลองบรรยากาศภายใน Lobby

1474515135770

มุมจาก Lobby มองออกไปทางอาคารส่วนกลาง

BROWN Floor Plan for saleok-Fl.02

ผังโครงการ ชั้น 2 ตัวอาคารที่พักอาศัยเป็นส่วนของห้องพักอาศัย ซึ่งแบบห้องในชั้นนี้จะมีทุกแบบค่ะ ตั้งแต่ห้องแบบเล็กสุด Type A จนถึงห้องขนาดใหญ่สุดของโครงการ คือ Type C ลิฟท์ในโครงการมี 2 ตัว เป็นลิฟท์โดยสารและ Service ลิฟท์รวมกัน ตัวลิฟท์เป็นลิฟท์แบบล็อคชั้น ต้องใช้คีย์การ์ดในการขึ้นลงค่ะ ส่วนการวางโถงลิฟท์จะวางไว้ค่อนมาทางปีกอาคารทางทิศตะวันตก ทำให้ลูกบ้านที่อยู่ปลายสุดของอาคารฝั่งปีกอาคารทางทิศตะวันออกอาจจะต้องเดินกันไกลหน่อย แต่จะได้ในเรื่องของความเป็นส่วนตัวที่มากขึ้น เพราะฝั่งนี้จะไม่ค่อยมีคนเดินผ่านหน้าห้องบ่อยๆค่ะ ส่วนโถงทางเดินในอาคารทุกชั้นกว้าง 1.50 เมตร สูง 2.80 เมตร

ตัวอาคาร Facility ที่ชั้น 2 นี้จะมี Library Lobby พื้นที่ภายในขนาดประมาณ 95 ตร.ม. และ สระว่ายน้ำขนาด 18.55 x 5 เมตร

BROWN Floor Plan for saleok-Fl.03

ผังโครงการ ชั้น 3 ตัวอาคารที่พักอาศัยเป็นยูนิตพักอาศัยล้วนๆ เหมือนชั้น 2 แต่จะมีห้องเพิ่มมา 4 ห้อง ทางปีกด้านทิศตะวันตกของอาคาร

ส่วนตัวอาคาร Facility ที่ชั้น 3 นี้จะมี Fitness ขนาดพื้นที่ประมาณ 52 ตร.ม. และ Play Room พื้นที่ภายในขนาดประมาณ 30.70 ตร.ม.

1474515123869

ภาพจำลองบรรยากาศในห้องฟิตเนส

1474515118451

ภาพจำลองบรรยากาศในห้อง Playroom

 

BROWN Floor Plan for saleok-Fl.04-07

ผังโครงการ ชั้น 4 – 7 ตัวอาคารที่พักอาศัยเป็นยูนิตพักอาศัยล้วนๆ เช่นกันค่ะ

Rooftop-Floor-Brown

สำหรับชั้น Roof Top จะมีส่วนหย่อม ภายในประกอบไปด้วย Jogging Track, พื้นที่ BBQ, ลานโยคะ, Outdoor Working Space, สนามเด็กเล่น, พื้นที่ออกกำลังกายค่ะ

Brown 32-Model RE-20

โมเดลชั้น Roof Top เป็นพื้นที่ของ Roof Garden

 

แบบห้อง

แบบห้องของโครงการนี้จะมีทั้งหมด 3 แบบ คือ

Model Model Model Model Model Model

 

ห้อง Type A หรือ 1 Bedroom เป็นห้องแบบ 1 ห้องนอน 1 ห้องน้ำ ฟังก์ชั่นในห้องส่วนแรกจะเข้าไปเจอกับครัวแบบเปิด จากห้องครัวจะสามารถเข้าไปส่วนห้องน้ำได้ ถัดจากพื้นที่ครัวไปจะเป็นห้องรับแขก ที่เราต้องจัดเป้นพื้นที่ทานอาหารพ่วงไปด้วยค่ะ ส่วนห้องนอนจะอยู่ถัดมาจากห้องนั่งเล่น กั้นพื้นที่โดยใช้ประตูบานเลื่อนกระจกบานใหญ่ ที่มีข้อดีคือช่วยกั้นห้องให้เป็นสัดเป็นส่วน โดยที่ไม่ทำให้รู้สึกอึดอัด หรือทำให้ห้องดูแคบลงค่ะ และจากห้องนอนจะสามารถออกไปยังระเบียงด้านนอกได้ค่ะ

Model Model b1c Model

ห้อง Type B หรือ 1 Bedroom Exclusive ห้องแบบ 1 ห้องนอน 1 ห้องน้ำ เช่นกัน แต่ความแตกต่างของแบบ Type A และ Type B นอกจากขนาดพื้นที่ใช้สอยที่มากขึ้นแล้ว ยังมีข้อแตกต่างคือห้องแบบนี้จะมีการกั้นห้องทุกห้องแยกให้เป็นสัดส่วนมากกว่า ห้องครัวได้เป็นครัวปิดเลย เราไม่ต้องไปกั้นห้องแยกเอง Model Model c1c c1d Model Model

 

ห้อง Type C หรือ 1 Bedroom Plus ห้องแบบ 1 ห้องนอน 1 ห้องน้ำ และที่แตกต่างจากห้องอื่นๆคือจะมี 1 ห้องอเนกประสงค์เพิ่มเข้ามา ซึ่งห้องนี้เราสามารถที่จะจัดให้เป็นห้องนอนห้องที่ 2 ได้ค่ะ ส่วนขนาดของห้องนี้จะแตกต่างกันไปตามแต่ตำแหน่งที่วางในตัวอาคาร แต่ถ้าดูจากแปลนแล้วห้องอเนกประสงค์สามารถใช้เป็นห้องนอนรองได้ทุกแบบเลยค่ะ ส่วนฟังก์ชั่นอื่นๆจะได้มาครบตามปกติ แต่ห้องครัวที่ได้เป็นครัวเปิด ต้องไปกั้นแยกเอาเองถ้าไม่ชอบให้กลิ่นฟุ้งไปทั่วห้องนะคะ

 

ห้องตัวอย่าง

b1b

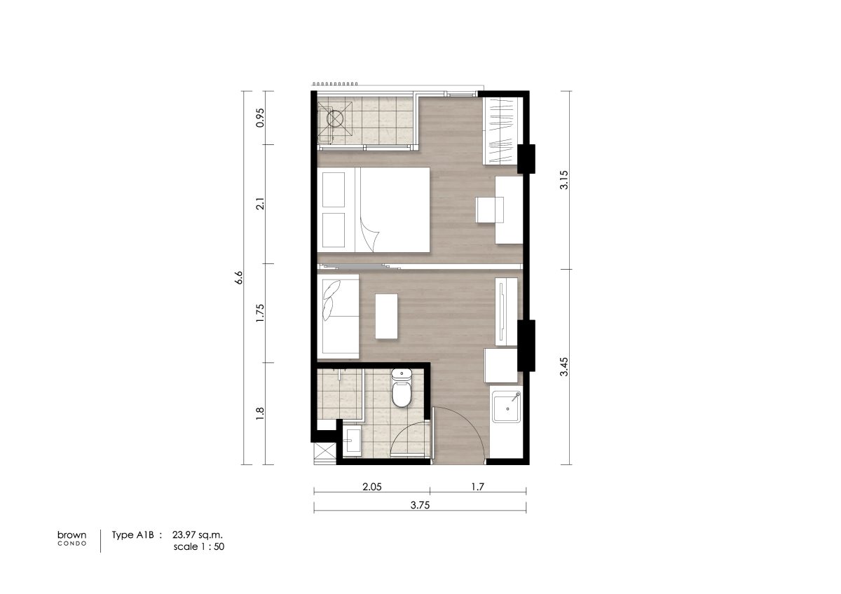
สำหรับห้องตัวอย่างที่เราจะพาไปดูกันโดยละเอียดวันนี้เราจะไปดูแบบแรกคือห้องแบบ 1 Bedroom Exclusive (Type B) ห้องนอน 1 ห้องน้ำ 1 ห้องนั่งเล่นและ 1 ห้องครัวแยก ขนาดพื้นที่ใช้สอยประมาณ 34 ตร.ม.

สำหรับฟังก์ชั่นของห้องนี้ เข้ามาจะเจอกับส่วนของห้องนั่งเล่นก่อน จากห้องนั่งเล่นจะมีพื้นที่เชื่อมต่อไปยังห้องต่างๆ โดยทางซ้ายมือจะเป็นส่วนของห้องน้ำ ซึ่งภายในห้องน้ำจะให้ Shower Box มาด้วยค่ะ ติดกับห้องน้ำจะเป็นส่วนของห้องนอน ซึ่งห้องนอนนี้จะกั้นแยกมาให้เป็นสัดเป็นส่วน ติดกบห้องนอนจะเป็นส่วนของห้องครัว จากห้องครัวจะมีพื้นที่เชื่อมออกไปยังระเบียงภายนอก และตัวห้องครัวนี้ก็จะกั้นห้องแยกมาให้เช่นกัน ทำให้เราไม่ต้องกังวลเรื่องกลิ่นอาหารที่จะเข้ามาติดเฟอร์นิเจอร์ในห้องอื่นๆค่ะ

Brown 32-หตย RE-23

มาดูของจริงกันบ้างค่ะ เริ่มจากประตูหน้าห้อง เป็นบานสำเร็จลายไม้

Brown 32-หตย RE-24.1

ติดตั้ง Digital Door Lock ยี่ห้อ Samsung พร้อมมือจับแบบก้านโยกมาให้

Brown 32-หตย RE-26

พื้นห้องปูด้วยไวนิล ลายไม้ มีตัวจบหินอ่อนสูงประมาณ 3 ซม. เก็บงานไว้ให้เรียบร้อย

Brown 32-หตย RE-27

ด้านหลังบานประตูจะมีตัว Stopper กันบานประตูกระแทกผนังด้านหลัง มาให้ในทุกห้อง

Brown 32-หตย RE-28

เข้ามาภายในห้องจะเจอกับส่วนของห้องนั่งเล่นก่อน มองตรงไปจะเห็นประตูทางเข้าห้องนอนทางซ้าย และห้องครัวทางขวา ภายในห้องนั่งเล่นจะแบ่งพื้นที่ส่วนหนึ่งเป็นพื้นที่ทานอาหารด้วย และจะมีช่องแสงหลัก 1 บานใหญ่ๆตรงพื้นที่ ที่ติดกับส่วนครัว

Brown 32-หตย RE-29

 

ภายในห้องนั่งเล่นจะมี Bluetooth Sound System ติดตั้งมาให้ด้วยในทุกห้อง

Brown 32-หตย RE-30

มาดูส่วนของห้องนั่งเล่นกันก่อน สำหรับโซฟาของจริงที่ได้ จะได้เป็นโซฟาขนาดประมาณ 2 – 3 ที่นั่งแบบนี้

Brown 32-หตย RE-37

ติดกับโซฟาจะเป็นพื้นที่ทานอาหาร ได้ชุดโต๊ะทานอาหารขนาด 2 ที่นั่ง ระยะการใช้งานแบบพอดีเป๊ะๆ ถ้าอยากตั้งโต๊ะที่มีขนาดใหญ่กว่านี้ก็อาจจะต้องลองจัดวางเฟอร์นิเจอร์ในห้องใหม่ซึ่งพื้นที่ในห้องก็ยังพอมีเหลือให้ขยับขยายได้ค่ะ

Brown 32-หตย RE-38.1

ติดกับพื้นที่ทานอาหารจะมีช่องแสงบานใหญ่ เป็นชุดหน้าต่างบานเลื่อนคู่ ผสมบานฟิกซ์ บานกรอบอลูมิเนียมสีดำ กระจกเขียวตัดแสง

Brown 32-หตย RE-31

ฝั่งตรงข้ามโซฟาเป็นตู้ลอยสำหรับวางทีวี ส่วนประตูทางขวามือที่เห็นคือห้องน้ำค่ะ

Brown 32-หตย RE-33.1

ตัวตู้ลอยที่ได้จะได้เป็นตู้มีช่องเก็บของ 1 ช่อง และตู้แบบบานเปิด 2 ช่อง

Brown 32-หตย RE-35

โดยระยะดูทีวีจะเหลือค่อนข้างกว้าง ประมาณ 2.7 เมตร สามารถติดตั้งทีวีได้ถึงขนาด 70″ เลยค่ะ

Brown 32-หตย RE-40

ถัดมาเรามาดูส่วนของห้องน้ำกันต่อค่ะ

Brown 32-หตย RE-41

พื้นห้องน้ำปูด้วยกระเบื้องเซรามิค ขนาด 30 x 30 ซม. และลดระดับลงไปประมาณ 1.5 ซม.Brown 32-หตย RE-43

สุขภัณฑ์ด้านในห้องน้ำจะได้ของ Mogen โดยอ่างล้างมือจะได้เป็นอ่างทรงสี่เหลี่ยมมีพื้นที่วางของข้างอ่างนิดหน่อยและมีเคาน์เตอร์ด้านล่างวางของได้อีกพอประมาณค่ะ

Brown 32-หตย RE-44

ขนาดอ่างล้างมือค่อนข้างกว้าง

Brown 32-หตย RE-45

ก๊อกน้ำหน้าตามาตรฐานได้ของ American Standard

Brown 32-หตย RE-46

ติดกับอ่างล้างมือจะเป็นโถสุขภัณฑ์พร้อมสายชำระและที่วางกระดาษชำระของ American Standard ระยะการติดตั้งพอดีๆค่ะ

Brown 32-หตย RE-47

สายชำระพลาสติกหน้าตาธรรมดาขนาดพอดีๆ

Brown 32-หตย RE-48.1

ติดกับโถสุขภัณฑ์จะเป็นส่วนของพื้นที่อาบน้ำโดยพื้นที่อาบน้ำจะกั้น Shower Box มาให้เป็นสัดเป็นส่วน โดยตัว shower box จะเป็นประตูบานเลื่อน 3 ตอน กระจกนิรภัยใส ช่วยกั้นแยกพื้นที่ส่วนแห้งและส่วนเปียกออกจากกันทำให้เวลาอาบน้ำ น้ำจะไม่กระเด็นออกมาเปียกพื้นที่ด้านนอกค่ะ

Brown 32-หตย RE-50

ด้านในพื้นที่อาบน้ำจะติดตั้งฝักบัวอาบน้ำมาให้ 2 แบบ คือแบบ Rain Shower และ Hand Shower ของ American Standard

Brown 32-หตย RE-51.1

ขนาดฝักบัวแบบ Hand Shower ค่อนข้างใหญ่อาบได้สะใจดีค่ะ

Brown 32-หตย RE-53

พื้นที่อาบน้ำขนาดประมาณ 1.4 x 1.2 เมตร ถือว่าค่อนข้างกว้าง สามารถขยับตัวอาบน้ำได้แบบสบายๆค่ะ

Brown 32-หตย RE-55

กลับออกมาที่ห้องนั่งเล่นเราจะไปดูส่วนของห้องนอนที่อยู่ติดกับห้องน้ำกันต่อค่ะ

Brown 32-หตย RE-56

พื้นห้องนอนปูด้วยไวนิลยาวต่อไปจากพื้นที่ส่วนห้องนั่งเล่นเลยค่ะ ไม่มีตัวจบกัน

Brown 32-หตย RE-57

เข้ามาในห้องนอนจะเห็นว่ามีช่องแสงบานใหญ่อยู่ที่อีกด้านหนึ่งของห้อง ซึ่งจะช่วยให้แสงธรรมชาติเข้ามาในห้องได้ค่อนข้างเยอะ

Brown 32-หตย RE-58.1

โดยช่องแสงบานใหญ่ที่ได้นี้จะเป็นชุดหน้าต่างบ้านเลื่อนคู่ผสมบานฟิกซ์ บานกรอบอลูมิเนียมสีดำ กระจกเขียวตัดแสง สามารถเปิดเพื่อระบายอากาศได้

Brown 32-หตย RE-61

มือจับและตัวล็อคของบานหน้าต่างแบบเซาะร่องหน้าตามาตรฐานค่ะ

Brown 32-หตย RE-62

ภายในห้องนี้จะวางเตียงขนาดควีนไซส์มาให้ดูเป็นตัวอย่าง จะเห็นว่าการจัดวางเตียงจะหลวมๆ มีพื้นที่ข้างเตียงเหลือให้สำหรับวางตู้หัวเตียงได้ทั้ง 2 ด้าน

Brown 32-หตย RE-63

พื้นที่ฝั่งปลายเตียงสามารถวางโต๊ะเขียนหนังสือและทางโครงการก็จะ built in ตู้เสื้อผ้ามาให้เรียบร้อยตามแบบในภาพเลยค่ะ

Brown 32-หตย RE-64

ระยะปลายเตียงที่เหลือหลังจากกวางโต๊ะเขียนหนังสือลงไปแล้ว จะเหลือประมาณ 75 เซนติเมตร ซึ่งก็พอดให้เดินผ่านได้สบายๆค่ะ

Brown 32-หตย RE-65.1

สำหรับตู้เสื้อผ้าที่ทางโครงการ Built – in มาให้ จะเป็นตู้แบบบานเปิดคู่ ลักษณะเป็นตู้ทรงค่อนข้างสูง ภายในจะแบ่งเป็นพื้นที่แขวนเสื้อผ้า ด้านล่างเป็นลิ้นชัก 2 ช่องและช่องเก็บของ 2 ช่องส่วนด้านบนจะกั้นไว้สำหรับวางพวกผ้าเช็ดตัวหรือผ้าปูที่นอนค่ะ

Brown 32-หตย RE-67

ตู้บานเปิดตู้จะเป็นแผ่นอลูมิเนียมแปะมาให้แบบนี้ทั้งสองด้าน

Brown 32-หตย RE-68.1

ถัดมาเราจะมาดูในส่วนของห้องครัวกันต่อค่ะ โดยห้องครัวที่ได้จะได้เป็นห้องครัวที่กั้นแยกมาให้เรียบร้อย ประตูที่ใช้กั้นพื้นที่ระหว่างห้องนั่งเล่นและห้องครัวจะได้เป็นบานยาวสูงจรดเพดานมาเลย ซึ่งถือว่าเป็นอีกหนึ่งจุดเด่นของโครงการนี้ค่ะ

Brown 32-หตย RE-70

ตัวรางเลื่อนของบานประตูจะเป็นแบบปิดที่พื้นด้วยแบบนี้ค่ะ

Brown 32-หตย RE-71

เข้ามาในครัวจะเห็นว่ามีช่องแสง 2 จุด เป็นช่องแสงบริเวณเคาน์เตอร์ครัวและช่องแสงที่ติดกับส่วนระเบียงด้านนอก

Brown 32-หตย RE-72

สำหรับภายในห้องครัวนี้ทางโครงการจะ Built – in เคาน์เตอร์ครัวมาให้ 1 ชุด ทั้งชิ้นล่างและชิ้นบน

Brown 32-หตย RE-73

เคาน์เตอร์ชิ้นล่างจะประกอบไปด้วยซิงค์ล้างจานและเตาไฟฟ้า โดยบริเวณซิงค์ล้างจานจะมีช่องแสงอยู่ด้านบนดวย เพื่อให้ใช้เปิดเพื่อระบายอากาศและรับแสงธรรมชาติเพื่อฆ่าเชื้อโรค

 

Brown 32-หตย RE-75

ซิงค์ล้างจานที่ได้มีขนาดพอดีๆ

Brown 32-หตย RE-76

เตาไฟฟ้า 2 หัว ได้ของ MEX

Brown 32-หตย RE-77.1

ด้านล่างเคาน์เตอร์จะมีช่องสำหรับวางเครื่องซักผ้า ตู้เก็บของใต้ซิงค์ล้างจาน ลิ้นชัก 2 ช่อง และช่องสำหรับวางเตาไมโครเวฟอีก 1 ช่อง

Brown 32-หตย RE-79.1

ตู้ด้านบนจะมีตู้เก็บของ 3 บาน ด้านในจะแบ่งเป็นช่องๆ ไว้ตามภาพ

Brown 32-หตย RE-82.1

ติดกันมีตู้อีก 1 บาน ด้านในแบ่งเป็นชั้นๆไว้ 2 ชั้น

Brown 32-หตย RE-84

ระยะยืนทำครัวเหลือประมาณ 95 ซม. พอให้ยืนทำครัวคนเดียวแบบสบายๆ แต่ถ้าเข้ามายืนพร้อมกัน 2 – 3 คน อาจจะแน่นๆไปหน่อยค่ะ

Brown 32-หตย RE-86

จากห้องครัวจะมีพื้นที่เชื่อมต่อออกไปยังระเบียงด้านนอก โดยประตูกั้นห้องที่ได้จะได้เป็นประตูบานเลื่อน บานกรอบอลูมิเนียมสีดำ

Brown 32-หตย RE-87

ออกมาระเบียงด้านนอก พื้นระเบียงปูด้วยกระเบื้องเซรามิค มีธรณีก่อขึ้นมาสูงประมาณ 8 ซม. ราวกันตกเป็นเหล็กซี่ๆ ทำสีดำ

Brown 32-หตย RE-89

พื้นที่ระเบียงฝั่งนึงจะติดตั้งกริลไว้เพื่อบังสายตาจากภายนอก เพื่อให้ดูเป็นระเบียบ

c1d

มาดูห้องตัวอย่างแบบใหญ่ที่สุดของโครงการ ห้องนี้จะเป็นห้องแบบ 1 Bedroom Plus Type C1D 1 ห้องนอน 1 ห้องน้ำ 1 ห้องครัว 1 ห้องนั่งเล่น และ 1 ห้องอเนกประสงค์ ซึ่งจริงๆแล้วถ้าดูกันตามแปลน จะเห็นว่าเราสามารถจัดห้องให้เป็น 2 Bedroom ได้ แต่ห้องที่เป็นห้องนอนรองจะค่อนข้างแคบหน่อย ส่วนฟังก์ชั่นอื่นๆในห้องยังคล้ายๆเดิม เพียงแต่ส่วนระเบียงจะเชื่อมกับห้องนอนแทนห้องครัวเท่านั้นค่ะ

Brown 32-หตย RE-91

เข้ามาในห้องจะเจอกับพื้นที่ทานอาหาร มองตรงไปเป็นส่วนของห้องนั่งเล่นและห้องอเนกประสงค์

Brown 32-หตย RE-109

ติดกับห้องนั่งเล่นเป็นห้องครัว

Brown 32-หตย RE-93

กลับมาดูที่ห้องนั่งเล่น ตรงส่วนพื้นที่ทานอาหารจะสามารถวางโต๊ะทานอาหารขนาดประมาณ 4 ที่นั่งได้ ระยะการวางพอดีๆ

Brown 32-หตย RE-94

ถัดมาเป็นส่วนของห้องนั่งเล่น

Brown 32-หตย RE-95

วางโซฟาขนาด 2 ที่นั่งมาให้แบบนี้

Brown 32-หตย RE-96

ฝั่งตรงข้ามเป็นผนังกั้นพื้นที่ครัวและห้องนั่งเล่น มีตู้ลอยสำหรับวางทีวี Built – in มาให้

Brown 32-หตย RE-97.1

ตัวตู้ลอยที่ติดตั้งมาให้จะมีช่องเก็บของ 2 ช่อง และตู้แบบบ้านเปิด 1 ช่อง

Brown 32-หตย RE-99

ระยะดูทีวีประมาณ 1.5 เมตร สามารถวางทีวีขนาดประมาณ 32″ – 42″ จะได้ระยะดูทีวีที่สบายตา

Brown 32-หตย RE-100.1

ติดกับห้องนั่งเล่นจะเป็นห้องอเนกประสงค์ กั้นพื้นที่ด้วยประตูบานเลื่อนกระจกใส 2 ตอน ทำให้ห้องดูไม่ทึบ

Brown 32-หตย RE-102

เข้ามาด้านในห้อง ทางโครงการจัดห้องมาเป็นห้องนอนรอง ซึ่งจริงๆแล้วเราสามารถที่จะจัดเป็นห้องอื่นๆได้ เช่น ห้องทำงาน หรือห้องหนังสือค่ะ

Brown 32-หตย RE-103

อีกด้านจัดเป็นตู้เสื้อผ้ามาให้ดูเป็นตัวอย่าง

Brown 32-หตย RE-104

ระยะทางเดินระหว่างโต๊ะเขียนหนังสือและตู้เสื้อผ้าประมาณ 1 เมตร

Brown 32-หตย RE-105

ทางโครงการวางเตียงขนาด 3 ฟุตมาให้ดูเป็นตัวอย่าง ซึ่งถ้าจะจัดเป็นห้องนอนรอง เตียงขนาดนี้ก็ถือว่าเหมาะสมกับขนาดห้องนี้ที่สุดแล้วค่ะ ถ้าเตียงใหญ่กว่านี้จะทำให้อึดอัดเกินไปหน่อย

Brown 32-หตย RE-106

ระยะปลายเตียงที่เหลือประมาณ 25 ซม. พอให้เดินผ่านได้

Brown 32-หตย RE-107

ช่องแสงที่ได้ในห้องนี้ก็เป็นช่องแสงบานใหญ่ เป็นหน้าต่างบานเลื่อนผสมบานฟิกซ์ สูงเกือบจรดเพดาน

Brown 32-หตย RE-108

มุมจากในห้องมองย้อนไปทางห้องนั่งเล่น

Brown 32-หตย RE-109

กลับมาดูในส่วนของห้องครัวกันต่อ พื้นที่ห้องครัวจะได้เป็นครัวเปิด มีพื้นที่เชื่อมต่อกับห้องนั่งเล่นแบบนี้ สำหรับใครที่กลัวว่ากลิ่นจากในครัวจะเข้ามาติดโวฟาก็สามารถกั้นห้องปิดได้ แต่แนะนำว่าควรกั้นเป็นประตูบานเลื่อนกระจกใสจะทำให้ห้องไม่ดูทึบมากขึ้น

Brown 32-หตย RE-110

ส่วนครัวจะได้เคาน์เตอร์ Built – in มาเหมือนห้องที่แล้ว

Brown 32-หตย RE-111.1

เคาน์เตอร์ชิ้นล่างจะประกอบไปด้วยซิงค์ล้างจานและเตาไฟฟ้า ด้านล่างเคาน์เตอร์จะมีช่องสำหรับวางเครื่องซักผ้า ตู้เก็บของใต้ซิงค์ล้างจาน ลิ้นชัก 2 ช่อง และช่องสำหรับวางเตาไมโครเวฟอีก 1 ช่อง

Brown 32-หตย RE-115.1

ตู้ด้านบนจะมีตู้เก็บของ 3 บาน ด้านในจะแบ่งเป็นช่องๆ ไว้ตามภาพ

 

Brown 32-หตย RE-117

ระยะยืนทำครัวเหลือประมาณ 1 เมตร

Brown 32-หตย RE-118

จากในครัวมองย้อนไปที่ห้องนั่งเล่น จะเห็นว่ามีพื้นที่สำหรับวางตู้เย็นอยู่ทางซ้ายมือ

Brown 32-หตย RE-119

พื้นที่วางตู้เย็นจะเป็นแบบเข้ามุม สามารถวางตู้เย็นขนาดกลางๆ ถึงขนาดใหญ่ได้เลยค่ะ

Brown 32-หตย RE-120

ติดกับห้องครัวจะเป็นส่วนของห้องน้ำ

Brown 32-หตย RE-121

พื้นห้องน้ำปูด้วยกระเบื้องเซรามิค ขนาด 30 x 30 ซม. และลดระดับลงไปประมาณ 1.5 ซม.

Brown 32-หตย RE-122

ภายในห้องน้ำมีฟังก์ชั่นครบแยกส่วนแห้งส่วนเปียก ให้เรียบร้อย

Brown 32-หตย RE-123

สุขภัณฑ์ด้านในห้องน้ำจะได้ของ Mogen และ American Standard โดยอ่างล้างมือจะได้เป็นอ่างทรงสี่เหลี่ยมมีพื้นที่วางของข้างอ่างนิดหน่อยและมีเคาน์เตอร์ด้านล่างวางของได้อีกพอประมาณ ติดกันเป็นโถสุขภัณฑ์พร้อมสายชำระและที่วางกระดาษชำระของ American Standard ระยะการติดตั้งพอดีๆค่ะ

Brown 32-หตย RE-124

ส่วนของพื้นที่อาบน้ำโดยพื้นที่อาบน้ำจะกั้น Shower Box มาให้เป็นสัดเป็นส่วน โดยตัว Shower Box จะเป็นประตูบานเลื่อน 3 ตอน กระจกนิรภัยใส ช่วยกั้นแยกพื้นที่ส่วนแห้งและส่วนเปียกออกจากกันทำให้เวลาอาบน้ำ น้ำจะไม่กระเด็นออกมาเปียกพื้นที่ด้านนอก

Brown 32-หตย RE-126

ด้านในพื้นที่อาบน้ำจะติดตั้งฝักบัวอาบน้ำมาให้ 2 แบบ คือแบบ Rain Shower และ Hand Shower ของ American Standard

Brown 32-หตย RE-125

พื้นที่อาบน้ำขนาดประมาณ 0.8 x 1.1 เมตร

Brown 32-หตย RE-127

ออกมาจากห้องน้ำกลับมาที่ห้องครัว มองไปทางขวามือจะเป็นส่วนของห้องนอนใหญ่ หรือ Master Bedroom ของห้องนี้

Brown 32-หตย RE-128

เข้ามาด้านในห้องตกแต่งแบบเรียบหรู มีช่องแสงบานใหญ่เป็นประตูบานเลื่อนเชื่อมพื้นที่ออกไปยังระเบียงด้านนอก

Brown 32-หตย RE-129

ห้องนี้จะวางเตียงขนาดควีนไซส์มาให้ดูเป็นตัวอย่าง มีพื้นที่ข้างเตียงเหลือให้สำหรับวางตู้หัวเตียงได้ 1 ด้าน

Brown 32-หตย RE-130.1

 

พื้นที่ข้างเตียงฝั่งซ้ายเหลือประมาณ 90 ซม. ส่วนพื้นที่ทางขวาเหลือประมาณ 30 ซม. พอให้เดินเข้าไปเปลี่ยนผ้าปูที่นอนได้

Brown 32-หตย RE-132

พื้นที่ฝั่งปลายเตียงสามารถวางโต๊ะเขียนหนังสือและทางโครงการก็จะ Built – in ตู้เสื้อผ้ามาให้เรียบร้อยตามแบบในภาพเลยค่ะ

Brown 32-หตย RE-133

ระยะปลายเตียงที่เหลือหลังจากกวางโต๊ะเขียนหนังสือลงไปแล้ว จะเหลือประมาณ 80 เซนติเมตร ซึ่งก็พอให้เดินผ่านได้สบายๆค่ะ

Brown 32-หตย RE-134.1

สำหรับตู้เสื้อผ้าที่ทางโครงการ Built – in มาให้ จะเป็นตู้แบบบานเปิดคู่ ภายในจะแบ่งเป็นพื้นที่แขวนเสื้อผ้า ด้านล่างเป็นลิ้นชัก 2 ช่องและช่องเก็บของ 2 ช่องส่วนด้านบนจะกั้นไว้สำหรับวางพวกผ้าเช็ดตัวค่ะ

Brown 32-หตย RE-136

จากห้องนอนเชื่อมต่อออกไปยังระเบียงด้านนอกด้วยประตูบานเลื่อนคู่ ผสมบานฟิกซ์

Brown 32-หตย RE-137

ระเบียงขนาดค่อนข้างกว้าง ประมาณ 3.6 x 1 เมตร สามารถวางราวตากผ้าได้ หรือจะวางชุดโต๊ะกาแฟเล็กๆก็ได้ค่ะ

Brown 32-หตย RE-138.1

ราวกันตกเป็นเหล็กซี่ทำสีดำ พื้นที่ระเบียงมีติดก๊อกน้ำมาให้ 1 จุด และอกด้านก็มีกริลบังสายตาจากคอมเพรสเซอร์แอร์ติดมาให้ด้วย

Brown 32-หตย RE-140

สวิทช์ไฟในโครงการใช้ของ SIEMENS หน้าตาโมเดิร์นแบบนี้


ราคา (ต.ค.59)

  • 1 Bedroom ขนาดห้องประมาณ 23 – 25.48 ตร.ม. ราคาเริ่มต้น 1.49 – 1.99 ล้านบาท
  • 1 Bedroom Exclusive ขนาดประมาณ 29.79 – 34.78 ตร.ม. ราคาเริ่มต้น 1.79 – 2.59 ล้านบาท
  • 1 Bedroom Plus ขนาดประมาณ 33.13 – 46.37 ตร.ม. ราคาเริ่มต้น 2.09 – 3.59 ล้านบ
  • เงินจอง : 10,000 บาท
  • ค่าใช้จ่ายส่วนกลาง 45 บาท/ตร.ม. ชำระล่วงหน้า 2 ปี
  • เงินกองทุน 500 บาท/ตร.ม. ชำระครั้งเดียว

Promotion

  • ตกแต่งครบ
  • ชุดครัว + ซิงค์ พร้อมเครื่องดูดควันและเตาไฟฟ้า
  • เครื่องปรับอากาศ
  • Blutooth Sound System (เมื่อชำระเงินจองพร้อมผ่อนดาวน์งวดที่ 1)
  • Digital Door Lock

*หมายเหตุ : ราคาขึ้นอยู่กับตำแหน่ง ชั้น และมุมของห้อง

พิเศษลงทะเบียนรับส่วนลดพิเศษ

bbๅ


บทสรุปโครงการ

ทำเลที่ตั้งโครงการ : Brown Condo Ratchada 32 ตั้งอยู่ในซอยรัชดา36 แยก 19 – 7 การเข้าถึงตัวโครงการสามารถเข้าได้ทั้งจากรัชดา 36 และ 32 ซึ่งเข้าจากปากซอยรัชดา 32 จะสะดวกที่สุด จึงเป็นที่มาของชื่อโครงการ สภาพแวดล้อมในซอยรัชดา 32 นี้ จะค่อนข้างสงบแต่ไม่เปลี่ยวในตัวซอยจะมีอพาร์ทเมนท์มากมาย ซึ่งส่วนใหญ่จะเป็นพนักงานออฟฟิศในย่านนี้ ทำให้มีความอุดมสมบูรณ์พอประมาณทั้งบริเวณต้นซอยรัชดา 32 และซอยรัชดา 36 ที่อยู่ด้านหลังมหาวิทยาลัยราชภัฏจันทรเกษม ภายในซอยมีความอุดมสมบูรณ์สูง มีทั้งร้านค้า ร้านอาหาร ตลาดสดครบครันเหมาะกับการอยู่อาศัย

การเดินทางโดยรถยนต์ส่วนตัว :ถือว่าสะดวกโดยตัวซอยสามารถทะลุออกถนนใหญ่ 2 เส้นคือ ถนนรัชดาที่สามารถใช้เดินทางเข้าเมืองไปย่านออฟฟิศช่วงรัชดา พระราม 9 ห้วยขวาง และออกนอกเมืองไปฝั่งบางซื่อ สะพานพระราม 7 ได้ และตัวซอยอีกด้านเชื่อมกับถนนลาดพร้าววังหิน ที่เชื่อมไปลาดพร้าวและเกษตรนวมินทร์ได้ นอกจากนั้นก็มีซอยเล็กซอยน้อยให้เลือกใช้ลัดเลาะหนีรถติดได้อีกหลายเส้นทางค่ะ แต่รถอาจจะติดมากหน่อย โดยเฉพาะในช่วงเวลาเร่งด่วนค่ะ

การเดินทางโดยรถสาธารณะ : ปัจจุบันมีตัวเลือกให้ไม่มากนักมีแค่ Taxi บนซอยหลัก ต้องเดินออกมาจากตัวโครงการประมาณ 55 เมตร และถ้าออกมาบนถนนรัชดา จะมีรถเมล์สาย 38ร, 126ร, 136, 178, 179, 185, 191, 206, 529ร ให้เลือกใช้

นอกจากนั้นจะมีรถไฟฟ้า MRT ลาดพร้าว ที่อยู่ใกล้โครงการที่สุดโดยจะมีระยะทางจากโครงการประมาณ 2.5 กม. ใช้เวลาเดินทางประมาณ 10 นาทีค่ะ

ส่วนในอนาคตก็จะมีรถไฟฟ้าสายสีเขียว(หมอชิตสะพานใหม่คูคต)สถานีที่ใกล้โครงการที่สุดจะเป็นสถานีรัชโยธิน บริเวณแยกรัชโยธิน และรถไฟฟ้าสายสีเหลือง(ช่วงลาดพร้าว-สำโรง) โดยสถานีที่ใกล้โครงการที่สุดคือสถานีรัชดา บริเวณแยกรัชดา – ลาดพร้าวค่ะ

การออกแบบโครงการและตัวที่ดิน : โครงการออกแบบสไตล์โมเดิร์น เป็นอาคาร Low Rise สูง 7 ชั้น 242 ยูนิต วิวรอบโครงการค่อนข้างโล่งเพราะไม่มีอาคารสูงมาบัง สำหรับเรื่องห้องพักอาศัย มีให้เลือก 3 แบบ เริ่มตั้งแต่ 1 ห้องนอน ขนาดประมาณ 23.00 ตร.ม. จนถึงแบบ 2 Bedroom 48 ตร.ม. ซึ่งการจัดฟังก์ชั่นในห้องถือว่าทำมาได้ดีตั้งแต่ห้องขนาดเล็กสุด ใส่ฟังก์ชั่นมาได้ครบ มีพื้นที่ใช้งานได้ไม่อึดอัดค่ะ

วัสดุ : สำหรับโครงการนี้ขายให้แบบ Fully Furnished ตกแต่งครบพร้อมอยู่ ถือว่าให้มาค่อนข้างคุ้มค่ะ โดยพื้นห้องปูด้วยไวนิลลายไม้ ห้องน้ำและระเบียงปูด้วยกระเบื้อง, ผนังห้องฉาบเรียบทาสีขาว, บานประตูไม้จริงปิดผิวไวนิล, ประตูและหน้าต่างบานเลื่อนในห้องเป็นบานกรอบอลูมิเนียมสีดำ, ไฟดาวน์ไลท์ทั้งห้อง

เฟอร์นิเจอร์จะได้เคาน์เตอร์ครัว Built – in พร้อมซิงค์ล้างจาน, เตาไฟฟ้าและเครื่องดูดควัน มีผนังกระเบื้องตรงหลังเคาน์เตอร์, ตู้เสื้อผ้าแบบ Built – in, โซฟาขนาด 2 ที่นั่ง ห้องน้ำได้อ่างล้างมือ Mogen โถสุขภัณฑ์ American Standard ก๊อกน้ำและฝักบัว Englefield พร้อม Shower Box กระจกเทมเปอร์

สาธารณูปโภค :โครงการให้มาค่อนข้างครบ ชั้น 1 จะมี Lobby และ Mail Room โดยจะมีอาคารตัวที่เป็น Facility แยกไว้ให้ ภายในจะมี Library Lobby พื้นที่ภายในขนาดประมาณ 95 ตร.ม., สระว่ายน้ำขนาด 18.55 x 5 เมตร, Fitness ขนาดพื้นที่ประมาณ 52 ตร.ม. และ Play Room พื้นที่ภายในขนาดประมาณ 30.70 ตร.ม. นอกจากนั้นจะมีส่วน Roof Top ประกอบไปด้วย Jogging Track, พื้นที่ BBQ, ลานโยคะ, Outdoor Working Space, สนามเด็กเล่น, พื้นที่ออกกำลังกายค่ะ

ลิฟท์โดยสารให้มา 2 ตัว เป็นลิฟท์แบบ Lock ชั้น ระบบรักษาความปลอดภัยเข้าออกโครงการ และตัวอาคารพักอาศัยด้วย Access Card Control มีรปภ.ดูแลรักษาความปลอดภัยตลอด 24 ชม. ค่ะ


คะแนน

ทำเลที่ตั้งโครงการ 7.75 อยู่ในซอยรัชดา 36 แต่เข้าได้สะดวกจากซอยรัชดา 32 สภาพแวดล้อมโดยรวมเป็นที่อยู่อาศัยประเภทอพาร์ทเมนท์ ความอุดมสมบูรณ์สูง แต่ต้องอาศัยขับรถออกมาหน้าปากซอยหน่อยค่ะ
การเดินทาง ใช้รถ 7.75 เดินทางสะดวกสามารถใช้เส้นรัชดาได้ แต่รถค่อนข้างติดหน่อย
การเดินทาง ไม่ใช้รถ 7.75 เดินทางจากตัวโครงการออกมาที่ถนนใหญ่ยังค่อนข้างลำบาก ต้องอาศัยพี่วินหรือ Taxi ที่ผ่านไปมาเท่านั้น แต่ถ้าออกมาบนถนนใหญ่ได้ก็สะดวกขึ้น มีรถเมล์ และออกไป MRT ลาดพร้าวได้ค่ะ
ห้องพักและวัสดุ 8.0 ขายแบบ Fully Furnished วัสดุให้มากลางๆแต่ได้เฟอร์นิเจอร์มาครบ ถือว่าคุ้มดีค่ะ
สิ่งอำนวยความสะดวก 8.0 Facilities ให้มาครบครัน รปภ.24ชม.
ความคุ้มค่ากับราคา 8.0 เป็นคอนโด Fully Furnished ทำเลกลางเมืองเหมาะกับคนที่ทำงานแถวรัชดา อโศก สุขุมวิท
คะแนนรวมเฉลี่ย 7.87 ดี

สอบถามรายละเอียดเพิ่มเติมได้ที่

Tel : 081-0643232

Website : www.browncondo.com

หากเพื่อนๆเห็นว่ารีวิวนี้มีประโยชน์ โปรดกด Like เพื่อเป็นกำลังใจให้ทีมงาน

และมีความคิดเห็นหรือข้อมูลเพิ่มเติมเกี่ยวกับตัวโครงการ สามารถ Comment ได้ที่ด้านล่างของรีวิวค่ะ


สนใจลงโฆษณากับทาง CONDONAYOO ติดต่อสอบถามรายละเอียดได้ที่
คุณวัน 086-1290293 
LINE ID : 123456786205 Email : wanchalearm.t@gmail.com
ทางเราเป็นเว็บไซต์ให้ข้อมูล ไม่ใช่เจ้าของโครงการนะครับ

แสดงความคิดเห็น เกี่ยวกับ " รีวิว บราวน์ คอนโด รัชดา 32 BROWN CONDO RATCHADA 32 "