คอนโด ลุมพินี เมกะซิตี้ บางนา Lumpini Mega City Bangna

Lumpini Mega City บางนา คอนโดพร้อมอยู่จาก LPN ตั้งอยู่บนถนนบางนา-ตราด กม.7.5 ต.บางแก้ว อ.บางพลี จ.สมุทรปราการ เดินทางสะดวกสบาย ติดถนนใหญ่บางนา-ตราด ใกล้ถนนกาญจนาภิเษก เชื่อมต่อการเดินทางด้วย BTS สถานีบางนา ใกล้ศูนย์การค้าขนาดใหญ่ Mega บางนา & Ikea บางนา
ลุมพินี เมกะ ซิตี้ บางนา เป็นคอนโด High-Rise 18-29 ชั้น จำนวน 5 อาคาร พื้นที่โครงการขนาด ประมาณ 17 ไร่ ที่จอดรถ 1,410 คัน ห้องชุดพักอาศัยจำนวน 4,047 ยูนิต และ ห้องชุดร้านค้า 11 ยูนิต มีห้องพักให้เลือกแบบ 1 Bedroom ขนาด 22.50-29.50 ตร.ม. และ 2 ห้องนอน 45.00 ตร.ม. โครงการสร้างเสร็จพร้อมอยู่ปี 2556
สิ่งอำนวยความสะดวกภายในโครงการครบครัน อาทิ Lobby, Mailbox, สระว่ายน้ำ, ฟิตเนส, สวนหย่อม, สนามเด็กเล่น, ร้านค้า, ร้านซัก อบ รีด, รปภ., กล้องวงจรปิดโครงการ, ประตู Key Card ราคาเริ่มต้น 1 ล้านบาท* (ณ. วันที่ 16 ตค. 55)
| ชื่อโครงการ | ลุมพินี เมกะซิตี้ บางนา LUMPINI MEGACITY BANGNA |
| เจ้าของโครงการ | ลุมพินี – LPN Development |
| ลักษณะห้องและขนาดห้อง | – 1 Bed / 22.50 – 29.50 ตร.ม. – 2 Bed / 45.00 ตร.ม. – ห้องชุดร้านค้า (2 ยูนิต) |
| เนื้อที่ทั้งหมด | 17 ไร่ |
| จำนวนตึก | 5 อาคาร |
| จำนวนชั้น | อาคาร A,E สูง 18 ชั้น / อาคาร B,D สูง 28 ชั้น / อาคาร C 29 ชั้น |
| จำนวนห้อง | ห้องชุดพักอาศัย 4,047 ยูนิต / ห้องชุดร้านค้า 11 ยูนิต |
| ที่จอดรถทั้งหมด | 1,410 คัน (อาคาร A 130 คัน, อาคาร B 340 คัน, อาคาร C 370 คัน, อาคาร D 370 คัน, อาคาร E 200 คัน) |
| โซน | สมุทรปราการ, บางพลี, บางบ่อ, พระประแดง |
| ขนส่งสาธารณะ | รถไฟฟ้า BTS บางนา, ใกล้ทางด่วน (บางนา) |
| รถโดยสารที่ผ่าน | n/a |
| ที่ตั้ง | ถนนบางนา-ตราด กม.7.5 ตำบลบางแก้ว อำเภอบางพลี จังหวัดสมุทรปราการ |
| กำหนดการ | โครงการพร้อมอยู่ |
| ปีที่สร้างเสร็จ | พ.ศ. 2556 |
| ราคา | เริ่มต้น 1,000,000 บาท (ณ. วันที่ 16 ตค. 55) |
| ราคาเฉลี่ยต่อ ตร.ม | เริ่มต้น 43,600 บ./ตร.ม. |
| สถานที่สำคัญใกล้เคียง | 1. ติดถนนบางนาตราด 2. โรงพยาบาลปิยะมินทร์ 3. ศูนย์การค้าเฟอร์นิเจอร์ IKEA 4. ห้างสรรพสินค้าเซ็นทรัล บางนา 5. ถนนวงแหวนกาญจนาภิเษก 6. ห้างสรรพสินค้า MEGA BANGNA 7. สนามบินสุวรรณภูมิ 8. มหาวิทยาลัยรามคำแหง 9. มหาวิทยาลัยเอแบค |
| สิ่งอำนวยความสะดวก | – สระว่ายน้ำ, ฟิตเนส – รปภ., กล้องวงจรปิดโครงการ, ประตู Key Card – ร้านค้า, ร้านซัก อบ รีด – สวนหย่อม – อื่นๆ (สนามเด็กเล่น) |
| จุดเด่นของโครงการ | คอนโดทำเลดีใจกลางบางนา สะดวกขึ้น-ลงทางด่วน และถนนกาญจนาภิเษก เชื่อมต่อการเดินทางด้วย BTS สถานีบางนา ติดถนนใหญ่บางนา-ตราด ใกล้ศูนย์การค้า MEGA BANGNA สนามบินสุวรรณภูมิ และมหาวิทยาลัยรามคำแหง และมหาวิทยาลัยเอแบค |
ที่ตั้งโครงการ
ถนนบางนา-ตราด กม.7.5 ตำบลบางแก้ว อำเภอบางพลี จังหวัดสมุทรปราการ
การเดินทาง
คลิก เพื่อดูแผนที่ขนาดใหญ่
การเดินทาง ผมเริ่มจาก BTS อุดมสุข ถนน สุขุมวิท มุ่งหน้าสู่ ถนนบางนาตราด > เลี้ยวซ้ายเข้าสู่ ถนน บางนาตราด > กลับรถ > คอนโด ลุมพินี เมกะซิตี้ บางนา
ผมเริ่มจาก BTS อุดมสุข มุ่งหน้าสู่ง ถนน บางนา-ตราด
จากนนั้นให้ตรงไปตาม ถ.สุขุมวิท
จากนั้นให้เบี่ยงซ้ายไปทางชลบุรี ถนน บางนา-ตราด
จากนั้นให้ตรงตาม ถนน บางนา-ตราด
ตรงไปเรื่อยๆ ตาม ถนน บางนา-ตราด
จากนั้นจะเห็นป้าย สะพานกลับรถ เมกา บางนา ให้ชิดซ้ายขึ้นสะพานกลับรถตามป้ายไป
จากนั้นขึ้นสะพานกลับรถครับ สะพานจะอยู่หน้า เทสโก้โลตัส บางนา
ให้ตามป้าย บางนาไปครับ
จากนั้นให้เลี้ยวขวาไป บางนาครับ
หลังจากลงจากสะพานมาแล้ว ให้ชิดซ้ายตามป้ายบางนาไปครับ
หลังจากลงสะพานมาแล้ว ขับมาอีก 800 เมตร จะเห็นโครงการอยู่ซ้ายมือครับ
ถึงโครงการแล้วครับ
คลิก เพื่อดูแผนที่ขนาดใหญ่
สถานที่สำคัญรอบโครงการ
– BTS อุดมสุข
– BTS บางนา
– BTS แบริ่ง
– วิทยาลัยเทคโนโลยีศรีวัฒนาบริหารธุรกิจ
– โรงเรียนพูนสิน
– โรงเรียนบางนาใน
– โรงเรียนประภามนตรี
– โรงเรียนอนุบาลเจริญพงษ์
– โรงเรียนประภามนตรี
– โรงเรียนคลองปลัดเปรียง
– โรงเรียนการเดินเรือเคมสตาร์
– โรงเรียนศรีเอี่ยมอนุสรณ์
– โรงเรียนเทคโนโลยีบริหารธุรกิจเปรมฤทัย
– โรงพยาบาลกลัวยน้ำท 2
– โรงพยาบาลไทยนครินทร์
– โรงพยาบาลปิยะมินทร์
– โรงพยาบาลบางนา
– โรงพยาบาลสัตว์บางนา
– โรงพยาบาล Health Land
– บิ๊กซี บางนา
– เซ็นทรัล ซิตี้ บางนา
– ไบเทคบางนา
– สนามบอล Skykick Arena
– ไบเทคบางนา
– การไฟฟ้านครหลวง สถานีย่อยแบริ่ง
– สถานีตำรวจนครบาลบางนา
– สำนักงานสรรพากรพื้นที่กรุงเทพมหานคร 17
– สำนักงานสรรพากรพื้นที่สมุทรปราการ 3
– สำนักงานคุมประพฤติประจำศาลแขวงพระโขนง
– สำนักงานจัดหางานกรุงเทพเขตพื้นที่ 8
– Hyundai บางนา
– โตโยต้า บางนา
– ปั๊มบางจาก
– ปั๊มเอสโซ่
– ปั๊มเชลล์
– ปั๊ม ปตท.
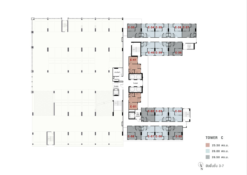
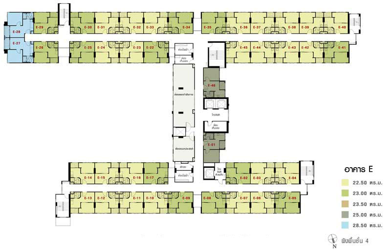
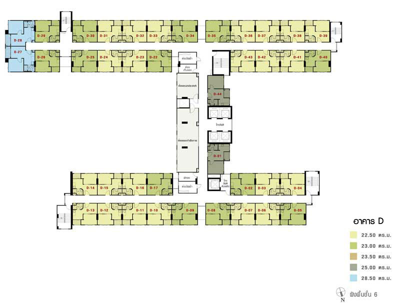
แปลนอาคาร


Tower A 1st Floor / 4th – 18th floor
Tower B : 1st floor / 3rd – 6th floor / 7th floor / 8th – 28th floor



Tower C : 1st floor /3rd – 7th floor / 8th floor / 9th – 29th floor



Tower D : 1st floor / 3rd – 5th floor / 6th floor / 7th – 28th floor



Tower E : 1st floor / 3rd floor / 4th floor / 5th -18th floor
แปลนห้อง
อาคาร E ขนาด 22.50 ตร.ม.
อาคาร E ขนาด 25.00 ตร.ม.
อาคาร E ขนาด 28.50 ตร.ม.
อาคาร E ขนาด 45.00 ตร.ม.(COMBINE)
ห้องตัวอย่าง
แกลเลอรี่
สนใจติดต่อรายละเอียดเพิ่มเติมได้ที่
บริษัท แอล.พี.เอ็น. ดีเวลลอปเมนท์ จำกัด (มหาชน)
1168/109 ชั้น 36 อาคารลุมพีนีทาวเวอร์ ถนนพระราม 4
แขวงทุ่งมหาเมฆ เขตสาทร กทม. 10120
โทรศัพท์ : 02-285-5011-6
Call Center 02-689-6888
สำนักงานขาย โทร : 02-316-2111
Website : http://www.lpn.co.th/lumpini2011/lm-bn/index.php
คอนโด สมุทรปราการ ทำเลอื่นๆ ที่น่าสนใจ…
คอนโด ดิ อเวนิว แอท เท็น
คอนโด สวิฟท์ (สมุทรปราการ)
คอนโด ลุมพินี วิลล์ สุขุมวิท 113
คอนโด เลอ บารอค บางนา-สุวรรณภูมิ
ดีคอนโด แคมปัส รีสอร์ท บางนา
คอนโด เดอะ ไมอามี่ บางปู
คอนโด B-LOFT สุขุมวิท 115
คอนโด เดอะคิทท์ สุขุมวิท 113
คอนโด EXCELLENCE สุขุมวิท
คอนโด ลุมพินี เมกะซิตี้ บางนา
คอนโด บิวมอนท์ สุขุมวิท 72
แสดงความคิดเห็น เกี่ยวกับ " คอนโด ลุมพินี เมกะซิตี้ บางนา LUMPINI MEGACITY BANGNA "