
EP.139 รีวิว คอนโด มิติ ชีวา เกษตร สเตชั่น Miti Chiva Kaset Station
สวัสดีผู้อ่านชาว Homenayoo ทุกคนครับ วันนี้ผมพามาชมโครงการ Miti Chiva เกษตร สเตชั่น จาก ONE Real Estate ในทำเลย่านเกษตร ตั้งอยู่ติดถนนประเสริฐมนูกิจ ห่างจากแยกเกษตรมาประมาณ 200 ม. ซึ่งเป็นจุดตัดกับถนนพหลโยธิน และถนนงามวงศ์วาน ใกล้ทางด่วนรามอินทรา-อาจณรงค์ ทางด่วนโทลเวย์ ทางด่วนศรีรัช และใกล้รถไฟฟ้า BTS ส่วนต่อขยายหมอชิต-สะพานใหม่-คูคต สถานี ม.เกษตรศาสตร์ ประมาณ 150 ม. และเป็นสถานีเชื่อมต่อกับรถไฟฟ้าสายสีน้ำตาลในอนาคต พร้อมสถานที่สำคัญต่างๆ ใกล้ ม.เกษตรศาสตร์, รร.สาธิตเกษตร, รร.สารวิทยา, รพ.วิภาวดี, รพ.เมโย, รพ.เปาโล เกษตร
มิติ ชีวา เกษตร สเตชั่น เป็นคอนโด High Rise 1 อาคาร สูง 23 ชั้น บนที่ดิน 1-2-6.7 ไร่ ห้องพักอาศัยมีทั้งหมด 200 ยูนิต มีห้องให้เลือกแบบสตูดิโอ, และ 1 ห้องนอน ฝ้าสูง 3 ม. และห้อง High Loft ฝ้าสูง 4.4 – 4.6 ม. ขนาดห้องเริ่มต้นที่ 23 – 34.5 ตร.ม. คาดว่าสร้างเสร็จพร้อมอยู่ในปี 2563
สิ่งอำนวยความสะดวก ภายในโครงการมีสิ่งอำนวยความสะดวกครบครันอาทิ โถงต้อนรับ, Meeting Room, สระว่ายน้ำ, ฟิตเนส, Sunken Seat, Steam Room, Co-Thinking Space, Sky Lounge, สวนหย่อม, Auto Parking, Access Card Control, กล้องวงจรปิด พร้อม รปภ. 24 ชม. ราคาเริ่มต้น 3.25 ล้านบาท
ส่วนรายละเอียดอื่นๆจะเป็นอย่างไรอ่านต่อด้านล่างได้เลยครับ
| ชื่อโครงการ | มิติ ชีวา เกษตร สเตชั่น Miti Chiva Kaset Station |
| เจ้าของโครงการ | บริษัท วัน เรียลเอสเตท จำกัด / ONE Real Estate |
| เนื้อที่ทั้งหมด | 1-2-6.7 ไร่ |
| จำนวนตึก | 1 อาคาร |
| จำนวนชั้น | 23 ชั้น |
| จำนวนห้อง | 200 ยูนิต |
| ลักษณะห้องและขนาดห้อง |
|
| ที่จอดรถทั้งหมด | ประมาณ 60% รวมซ้อนคัน |
| จำนวนลิฟต์ | 2 ตัว |
| โซน | เขตจตุจักร |
| ขนส่งสาธารณะ |
|
| รถโดยสารที่ผ่าน | n/a |
| ที่ตั้ง | ถนนประเสริฐมนูกิจ แขวงเสนานิคม เขตจตุจักร กทม. |
| กำหนดการ | เริ่มก่อสร้างปี 2561 |
| ปีที่สร้างเสร็จ | ปี 2563 |
| ราคา | เริ่ม 3.25 ล้านบาท |
| ราคาเฉลี่ยต่อ ตร.ม | ตารางเมตรละ 140,000 บาท |
| ค่าส่วนกลางและกองทุน |
|
| สถานที่สำคัญใกล้เคียง |
|
| สิ่งอำนวยความสะดวก |
|
| จุดเด่นของโครงการ | มิติ ชีวา เกษตร สเตชั่น จาก ONE Real Estate คอนโดใหม่ ติด ม.เกษตร เพียง 150 เมตร จาก BTS ม.เกษตรศาสตร์ เป็นส่วนตัวเพียง 200 ยูนิต ห้องออกแบบพิเศษ รูปแบบใหม่หน้ากว้าง 8 เมตร พร้อมความสูง 3-4.4 เมตร โปร่ง โล่ง สบาย พร้อมพื้นที่อำนวยความสะดวกลอยฟ้ามากถึง 4 ชั้น |
ที่ตั้งโครงการ
ถนนประเสริฐมนูกิจ แขวงเสนานิคม เขตจตุจักร กทม.
พิกัด Google โดยประมาณ : 13.840444, 100.577895
ที่ตั้งโครงการ Miti Chiva เกษตร สเตชั่น ตั้งอยู่ในย่านเกษตร ติดถนนประเสริฐมนูกิจห่างจากแยกเกษตรมาประมาณ 200 ม. ตัวเส้นถนนประเสริฐมนูกิจ หรือเส้นที่นิยมเรียกกันว่า ถนนเกษตร-นวมินทร์ เป็นเส้นที่เริ่มมาจากแยกเกษตรตัดกับถนนพหลโยธินและถนนงามวงศ์วาน ตัดมาข้ามผ่านคลองบางบัว ตัดผ่านถนนลาดปลาเค้า ถนนสุคนธสวัสดิ์และถนนประดิษฐ์มนูธรรม ข้ามคลองลำเจียก ตัดกับถนนรัชดา-รามอินทรา ผ่านถนนนวมินทร์ และไปสิ้นสุดที่ถนนทางหลวงแผ่นดินหมายเลข 3902
การเดินทางเข้าเมือง เลือกใช้ได้ทั้งเส้นพหลโยธิน และวิภาวดีรังสิต ออกจากโครงการมาต้องกลับรถมาทางแยกเกษตร ถ้าใช้เส้นพหลโยธินก็เลี้ยวซ้ายตรงแยกมุ่งหน้าเข้าเมือง ผ่านรัชโยธิน ตัดเข้าถนนรัชกาภิเษกได้ไปสุทธิสาร ห้วยขวาง พระรามเก้า เชื่อมเข้าอโศกได้เลย ถ้าข้ามแยกรัชโยธินไปจะไปผ่านห้าแยกลาดพร้าวตัดกับถนนวิภาวดีรังสิต ข้ามแยกไปจตุจักร สะพานความ อารีย์ ยาวไปอนุสาวรีย์ชัยฯได้เลย ถ้าใช้เส้นวิภาวดีรังสิตก็ข้ามแยกเกษตรเข้าถนนงามวงศ์วานและไปเลี้ยวเข้าถนนวิภาวดีรังสิต วิ่งเข้าเมืองได้เช่นกันจะมาตัดกับถนนพหลโยธินตรงห้าแยกลาดพร้าว ตรงไปอนุสาวรีย์ชัยฯได้อีกทาง มีทางด่วนโทลเวย์ให้ขึ้นเส้นนี้ด้วย
การเดินทางออกนอกเมือง ถนนประเสริฐมนูกิจ วิ่งออกไปแถวนวมินทร์ รามอินทรา เชื่อมออกมอเตอร์เวย์ได้ มีทางด่วนรามอินทรา-อาจณรงค์ให้ขึ้น ถ้าใช้เส้นพหลโยธินตรงไปผ่านวงเวียนหลักสี่ตัดเข้ารามอินทรา และแจ้งวัฒนะได้ หรือตรงเลยไปอีกจะไปผ่านสะพานใหม่ยาวไปออกรังสิต นวนคร อยุธยาได้เลย เส้นวิภาวดีรังสิตวิ่งออกนอกเมืองไปดอนเมือง รังสิตได้เลย เส้นงามวงศ์วานไปเข้าประชาชื่นได้ เลยไปแครายเข้ารัตนาธิเบศร์ยาวไปเชื่อมออกราชพฤกษ์ได้ เลยไปอีกเป็นถนนกาญจนาภิเษก หรือจะตัดเข้าถนนติวานนท์ก็ได้ครับไปเชื่อมกับนครอินทร์ พระรามห้าได้
ทางด่วน ที่อยู่ใกล้โครงการคือรามอินทรา-อาจณรงค์ ห่างจากโครงการประมาณ 6.9 กม. ใช้เส้นประเสริฐมนูกิจวิ่งออกมาจะเจอป้ายบอกไปขึ้นทางด่วน
ทางด่วน ที่อยู่ใกล้โครงการอีกเส้นคือโทลเวย์ ห่างจากโครงการประมาณ 8.1 กม. จากโครงการกลับรถมาทางแยกเกษตรเข้าถนนงามวงศ์วาน และมาออกถนนวิภาวดีรังสิต จากนั้นก็ขับตามทางมาจะเจอจุดขึ้นทางด่วนก่อนถึงห้าแยกลาดพร้าว
ทางด่วน ที่อยู่ใกล้โครงการอีกเส้นคือทางด่วนศรีรัช ห่างจากโครงการประมาณ 8.6 กม. โดยวิ่งตามถนนงามวงศ์วานไปเรื่อยๆจะเจอป้ายบอกไปขึ้นทางด่วน
การเดินทางโดยสาธารณะ จุดเด่นของโครงการอยู่ที่ห่างจาก BTS ม.เกษตรศาสตร์ ระยะเดินจากประตูด้านข้างโครงการประมาณ 150 ม. ซึ่งตอนนี้อยู่ในช่วงก่อสร้างอยู่ น่าจะเปิดใช้งานได้พร้อมๆกับโครงการสร้างเสร็จพอดี สามารถนั่งยาวๆเข้าเมืองไปถึงอนุสาวรีย์ชัยฯ สยาม ชิดลม เพลินจิต อโศก ทองหล่อ เอกมัยโดยที่ไม่ต้องเปลี่ยนสายเลย มีจุดเชื่อมต่อ MRT พหลโยธิน ตรงสถานีห้าแยกลาดพร้าว และตรงสถานี BTS พหลโยธิน 24 จะเป็นจุดเชื่อมต่อกับรถไฟฟ้าสายสีเหลืองในอนาคตครับ
นอกจากนี้ใกล้ๆโครงการจะมีป้ายรถเมล์มีรถวิ่งผ่านออกไปโซนรามอินทรา หรือถ้าจะให้หลากหลายเดินมาขึ้นตรงเส้นพหลโยธินมีทั้งรถเมล์ รถตู้ วิ่งผ่านหลายสายทั้งเข้าและออกเมือง มีทั้งไปรัชโยธิน เซ็นทรัลลาดพร้าว จตุจักร อนุสาวรีย์ ออกนอกเมืองไปเดอะมอลล์งามวงศ์วาน แคราย ติวานนท์ บางบัวทอง บางใหญ่ ด้านหน้าโครงการสามารถโบกเรียก Taxi และวินมอเตอร์ไซค์ได้เลยสะดวกดี

ในอนาคตจะมีแนวรถไฟฟ้าสายสีน้ำตาลช่วง แคราย-ลำสาลี ที่ตัดมาจากแยกแครายที่เป็นจุดเชื่อมต่อกับสายสีม่วง วิ่งตามแนวถนนงามวงศ์วานมาตัดกับรถไฟฟ้าชานเมืองสายสีแดงที่สถานีบางเขน และมาตัดผ่านแยกเกษตรซึ่งจะเชื่อมต่อกับสายสีเขียวที่สถานี ม.เกษตร ซึ่งเป็นสถานีที่ใกล้โครงการที่สุด เรียกได้ว่าสะดวกเลยทีเดียวถ้ารถไฟฟ้าเปิดใช้พร้อมกันทั้งหมด สามารถเลือกได้เลยว่าจะเดินทางไปโซนไหน
จากภาพถ่ายดาวเทียมจะเห็นว่าพื้นที่รอบๆโครงการส่วนใหญ่ตามริมถนนจะเป็นอาคารพาณิชย์ หอพักช่วงต้นซอย และในซอยบ้าง เนื่องจากอยู่ใกล้สถานศึกษา และสถานที่ทำงาน ถ้าเข้ามาในซอยส่วนใหญ่จะเป็นบ้านพักอาศัยครับ คอนโดมิเนียมก็มีโครงการใหม่ๆให้เห็นเรื่อยๆครับ ส่วนหนึ่งอาจเป็นเพราะการมาของรถไฟฟ้าส่วนต่อขยายนั่นเองครับ และอีกเส้นคือรถไฟฟ้าสายสีน้ำตาล ช่วงแคราย – ลำสาลี ซึ่งจะตัดผ่านหน้าโครงการพอดี

การเดินทางวันนี้เริ่มจากถนนวิภาวดีรังสิตมุ่งหน้าลาดพร้าว จากนั้นเลี้ยวเข้าถนนพหลโยธินตรงแยกลาดพร้าวมุ่งหน้าไปบางเขน ขับผ่านแยกรัชโยธินและมาถึงแยกเกษตร ข้ามแยกไปกลับรถ และมาเลี้ยวเข้าถนนประเสริฐมนูกิจ จากนั้นตรงไปอีกประมาณ 200 ม. โครงการจะอยู่ทางซ้ายมือ
สรุปการเดินทาง ถนนวิภาวดีรังสิต > ถนนพหลโยธิน > แยกเกษตร > ถนนประเสริฐมนูกิจ > Miti Chiva เกษตร สเตชั่น
เร่ิมจากถนนวิภาวดีรังสิตมุ่งหน้าลาดพร้าว
จะวิ่งเส้นคู่ขนาน หรือเส้นในก็ได้ครับ
จากนั้นจะเจอป้ายบอกไปลาดพร้าว เบี่ยงซ้ายออก
ซ้ายมือจะเจออาคารเล้าเป้งง้วง 1 และอาคาร T.S.T เบี่ยงซ้ายออกไปครับ
จากนั้นตามป้ายถนนลาดพร้าว-รัชโยธินไปอีกครับ
ขับตามทางมาจะเข้าถนนพหลโยธินฝั่งขาออก ตามป้ายบางเขนไป ที่เห็นก่อสร้างอยู่คือแนวรถไฟฟ้า BTS ส่วนต่อขยายช่วงหมอชิต-สะพานใหม่-คูคต
ถัดมาจะเห็น Central ลาดพร้าว ฝั่งขวาจะเป็น Union Mall
ถัดมาอีกซ้ายมือเป็นโรงเรียนหอวัง ขวามือเป็น Tesco Lotus
จากนั้นจะเจอตึกช้างขวามือ
และจะเจอแยกรัชโยธิน ขับตรงไปครับ
ข้ามแยกรัชโยธินมา ซ้ายมือจะเป็นเมเจอร์รัชโยธิน
ถัดมาจะเจอแยกเสนานิคม ขับตรงไปอีกครับ
ถัดมาซ้ายมือจะเป็นกรมพัฒนาที่ดิน
และจะเจอแยกเกษตร แยกนี้จริงๆจะเลี้ยวขวาได้ครับเพื่อเข้าถนนประเสริฐมนูกิจ แต่ตอนนี้อยู่ในช่วงก่อสร้างรถไฟฟ้า เราจะต้องตรงข้ามแยกเพื่อไปกลับรถครับ
ข้ามแยกมา ซ้ายมือจะเป็น ม.เกษตร
จากนั้นจะเจอจุดกลับรถ
กลับรถมาก็มุ่งหน้าไปแยกเกษตรต่อ
ถัดมาซ้ายมือจะเจอซอยพหลโยธิน 38 ซอยนี้จะเป็นซอยเข้าออกโครงการได้อีกทางครับ
จากนั้นจะเจอแยกเกษตร ให้เลี้ยวซ้ายเข้าถนนประเสริฐมนูกิจ
เลี้ยวมาจะเป็นถนนประเสริฐมนูกิจ ตรงไปอีกประมาณ 200 ม. โครงการจะอยู่ทางซ้ายมือ
และจะเจอพื้นที่โครงการด้านหน้า
ขอบเขตด้านหน้าโครงการคือเส้นสีแดงครับ
พื้นที่โครงการทางทิศเหนือด้านหลังโครงการติดกับบ้านพักอาศัย 2 ชั้น ฝั่งด้านหน้าโครงการเป็นทิศใต้ติดกับถนนประเสริฐมนูกิจ ฝั่งทิศตะวันออกติดกับธนาคารเพื่อการเกษตรและสหกรณ์เพื่อการเกษตร และทิศตะวันตกติดกับซอยส่วนบุคคลที่ไปเชื่อมกับซอยพหลโยธิน 38 ได้ ถัดออกไปเป็นบ้านพักอาศัย
ด้านหน้าโครงการติดกับถนนประเสริฐมนูกิจ
มองจากภาพมุมสูง พื้นที่โครงการขนาด 1-2-6.7 ไร่ ด้านหน้าติดกับถนนประเสริฐมนูกิจ ฝั่งซ้ายจะติดกับซอยส่วนบุคคล และขวามือจะเป็นธนาคารเพื่อการเกษตรและสหกรณ์การเกษตร
ด้านขวาติดกับธนาคารเพื่อการเกษตรและสหกรณ์การเกษตร
รั้วติดกันแบบนี้เลย
มองไปอีกฝั่งติดกับซอยส่วนบุคคล เป็นซอยที่ไปเชื่อมกับซอยพหลโยธิน 38 แต่ไม่ได้เปิดให้รถวิ่งผ่านเข้าไปซอยนี้ได้
รั้วโครงการจะอยู่ติดกับซอยส่วนบุคคล
มองออกมานอกรั้วโครงการ ที่พื้นจะเป็นพุ่มไม้ ฝั่งซ้ายจะเป็นบ้านพักอาศัย มองออกไปด้านหลังจะเห็นซอยพหลโยธิน 38
ฝั่งตรงข้ามด้านหน้าโครงการเป็นกรมยุทธโยธาทหารบก
มองไปทางซ้ายจะเห็นโครงการศุภาลัย
มองไปทางขวาจะเห็นแยกเกษตร

วิวฝั่งทิศเหนือ หรือด้านหลังโครงการมองออกไปทางปากซอยพหลโยธิน 38 ซึ่งจะเป็นที่ตั้งของ BTS ม.เกษตรศาสตร์ ขวามือจะมีอาคารสูงของ ธนาคารเพื่อการเกษตรและสหกรณ์การเกษตร
วิวฝั่งทิศใต้เป็นด้านหน้าโครงการมองไปในซอยย่อยพหลโยธิน และเสนานิคม
วิวฝั่งทิศตะวันตกมองไปทางแยกเกษตร ถัดออกไปเห็นทางด่วนโทลเวย์ตรงเส้นวิภาวดีรังสิต
วิวฝั่งทิศะวันออกมองออกนอกเมืองไปตามถนนประเสริฐมนูกิจ วิวจะโล่งยาวๆ ในอนาคตจะมีแนวรถไฟฟ้าสายสีน้ำตาลผ่านหน้าโครงการตามเส้นประเสริฐมนูกิจครับ
เดี๋ยวผมพาเดินไปดูตรงทางเข้าออกซอยพหลโยธิน 38 และพื้นที่รอบๆว่ามีอะไรบ้าง เดินตามทางเท้าไปครับ
เดินมาจะเจอหอพักสูง 5 ชั้น
ถัดมาเป็นป้ายรถเมล์
และจะเจอร้านอาหารอีสานเปิดช่วงเย็นๆ
และจะเจอแยกเกษตร มีแนวรถไฟฟ้าที่อยู่ในช่วงก่อสร้างอยู่
เดินเลี้ยวขวามาตามทางเท้า จะเห็นวินมอเตอร์ไซค์
เดินถัดมา ขวามือจะมีร้านค้า ร้านอาหาร
แถวนี้จะมีโรงพิมพ์หลายร้านเลย
ถัดมาจะเจออู่ซ่อมรถ ส่วนด้านหน้าจะแบ่งเป็นร้านอาหารครับ
ถัดมาจะเป็น TOT
และจะเจอซอยพหลโยธิน 38 ซึ่งช่วงปากซอยนี้จะเป็นที่ตั้งของรถไฟฟ้าสถานี ม.เกษตรศาสตร์
ภายในซอยพหลโยธิน 38 เป็นซอยที่มีรถวิ่งเข้าออกได้ ในนี้จะมีบ้านพักอาศัยอยู่
เดินเข้ามาในซอยจะมีรถจอดอยู่ฝั่งขวา
ถัดเข้ามาจะเริ่มเป็นบ้านพักอาศัย
ถัดเข้ามาอีกหน่อยจะมาเชื่อมกับซอยส่วนบุคคล
จากปากซอยเข้ามาประมาณ 150 ม. จะเจอรั้วโครงการ ฝั่งนี้จะมีทางเข้าออกโครงการอีกทางครับ
ขอบเขตรั้วด้านข้างโครงการ ส่วนด้านหลังจะติดกับบ้านพักอาศัย
กลับมาตรงแยกเกษตรต่อ เดี๋ยวผมพาเดินข้ามฝั่งไปดูว่ามีอะไรบ้าง
จากแยกมองไปฝั่งถนนงามวงศ์วาน

เดินข้ามฝั่งมาต่อจะเจอวินมอเตอร์ไซค์
เดินมาจะมีร้านอาหารหลายร้านเลย
ในซอยย่อยมีร้านก๋วยเตี๋ยว อาหารตามสั่ง
ถัดมามีร้านข้าวราดแกง
และจะเจอ 7-11
มีร้านขายเครื่องใช้ไฟฟ้า เดินเลยไปก็จะมีร้านค้า ร้านอาหารอีกหลายร้านครับ
ผมจะพาเดินข้ามถนนพหลโยธินไปดูอีกฝั่งกันครับ
ข้ามถนนมาซ้ายมือจะเป็นโครงการ Chapter One The Campus Kaset
จากนั้นเดินย้อนกลับไปทางแยกเกษตรต่อ ฝั่งนี้มีคลินิกทันตกรรม ร้านขายยา
ถัดมาเป็นธนาคารกสิกรไทย
มีร้านพิซซ่า Domino

และจะเจอตลาดอมรพันธ์
ด้านในมีทั้งร้านค้าและร้านอาหารต่างๆ
ปากซอยตรงนี้มีเป็นเหมือนศูนย์อาหาร มีร้านอาหารหลายร้านและมีโต๊ะให้นั่งตรงกลาง
ออกจากตรงร้านอาหารมาเราจะเห็นแยกเกษตรพอดีครับ
เลี้ยวซ้ายมาตามทางเดินจะมีร้านขายของ
ถัดมาจะเจอทางเข้าตลาดอมรพันธ์อีกทาง ตรงหน้ามีสะพานลอยเดินข้ามไปฝั่ง ม.เกษตรได้
ปากซอยมี 7-11 ช่วงเย็นๆจะมีร้านอาหารมาเปิดที่เว้นช่องเหลืองไว้
มีร้าน Watsons
ถัดเข้ามามีทั้ง อาหารญี่ปุ่น อาหารตามสั่ง สเต็ก และร้านค้าต่างๆ
ความอุดมสมบูรณ์รอบๆโครงการ เดินย้อนมาทางแยกเกษตรจะมีร้านอาหารตามริมทางเท้ายาวไปทางซอยพหลโยธิน 38 มีร้านอาหารอีสาน ก๋วยเตี๋ยว อาหารตามสั่ง หรือเดินย้อนมาอีกฝั่งก็มีให้เลือกหลายร้าน ฝั่งนี้มี 7-11 ถ้าเดินข้ามฝั่งไปจะมีตลาดอมรพันธ์ ร้านอาหารเยอะเลยทั้งแบบญี่ปุ่น สเต็ก ตามสั่ง ก๋วยเตี๋ยว แถวนี้น้องๆ ม.เกษตรฯ มาทานกันเยอะครับ หรือเราจะเข้าไปในโรงอาหารของ ม.เกษตรก็ได้ครับ อร่อยและประหยัดดีด้วยถ้าเข้าไปอย่าลืมทานน้ำใบเตยนะครับของขึ้นชื่อที่นี่เลย ตามเส้นงามวงศ์วานก็จะมีให้เลือกหลายร้านเช่นกัน ส่วนห้างสรรพสินค้าใกล้ๆก็มี The Mall งามวงศ์วาน เมเจอร์รัชโยธิน โลตัส เซ็นทรัลลาดพร้าว และยูเนี่ยนมอลล์ ตรงเส้นประเสริฐมนูกิจจะเป็นคอมมูนิตี้มอลล์อย่าง นวมินทร์ซิตี้ อเวนิว The Walk หรือตามเส้นเลียบด่วนก็จะมีตลาดนัดใหญ่ๆหลายแห่ง
สถานที่สำคัญใกล้เคียง
แยกและถนนสำคัญใกล้เคียง

Sale Galley
สำนักงานขายจะอยู่ตรงที่ดินโครงการเลย ใครผ่านไปมาแถวนี้ก็แวะเข้ามาชมห้องตัวอย่างกันได้ครับ
ทางเดินเข้าด้านใน ออกแบบเป็นอุโมงค์สี่เหลี่ยม ผนังฝั่งขวาจะเว้นช่องแสงให้แสงธรรมชาติส่องเข้ามาด้านในได้ ส่วนฝั่งซ้ายและด้านบนจะซ่อนไฟไว้ มีจุดนำสายตาคือประตูทางเข้า Sale galley
เข้ามาด้านในพื้นและเคาน์เตอร์จะเป็นลายหินอ่อน จำลองตรงส่วนของ Lobby ในอาคาร
มองไปทางซ้ายจัดชุดโซฟาวางไว้ต้อนรับ
อีกฝั่งมีโมเดลจำลองโครงการ และทางเดินไปยังห้องชมวิว 360 องศา กับห้องตัวอย่าง
ทางเข้าห้องชมวิว เหมือนเดินเข้าชมงานศิลป์เลย
ด้านในจะเป็นภาพวิวทั้ง 4 ทิศ ที่ชั้นบนสุดของอาคาร ตรงกลางจะวางแปลนอาคารไว้ให้ดูทิศ เข้ามาเลือกตำแหน่งห้องจากในนี้ได้เลย
มองไปอีกฝั่ง
ถัดมาด้านในจะเป็นห้องตัวอย่าง มีให้ชม 3 แบบครับ
Model
Miti Chiva เกษตร สเตชั่น เป็นคอนโด High Rise สูง 23 ชั้น 1 อาคาร ตั้งอยู่บนที่ดินขนาด 1-2-6.7 ไร่ ตัวอาคารรูปทรงสี่เหลี่ยมวางยาวขนานกับแนวที่ดิน ที่ชั้น 1 จะมี Lobby ที่จอดรถกลางแจ้งและใต้อาคาร ที่ชั้น 2-4 เป็นส่วนของ Auto Parking โดยมีลิฟท์จอดรถให้ 2 ตัว ทั้งโครงการสามารถจอดรถได้ประมาณ 60% รวมซ้อนคัน
ชั้นพักอาศัยจะเริ่มที่ชั้น 5-20 และชั้น 22-23 ส่วนกลางหลักๆจะอยู่ที่ชั้น 21 มีสระว่ายน้ำ, ฟิตเนส, ห้องน้ำแยกชายหญิงพร้อมห้องสตรีม, มีสวนหย่อมพร้อมที่นั่งแบบ Sunken Seat และที่ชั้น 22-23 ฝั่งด้านหน้าจะเป็น Co-Thinking Space และ Sky Lounge

ภาพจำลองโครงการ มองจากด้านหน้าโครงการที่ติดกับถนนประเสริฐมนูกิจ ซ้ายมือจะเห็นตัวสถานีรถไฟฟ้า ม.เกษตรศาสตร์ สีภายนอกอาคารจะใช้โทนเทา
ฝั่งด้านหน้าโครงการเป็นทิศใต้ติดกับถนนประเสริฐมนูกิจ ห่างจากแยกเกษตรมาประมาณ 200 ม.
จากด้านหน้าโครงการเข้าไปผ่านป้อมยามซ้ายมือ ตรงหน้าจะเป็นทางเข้า Lobby ถนนในโครงการจะเป็นแบบ One way วนไปทางซ้ายอ้อมไปด้านหลังแล้วออกมาด้านข้างอีกฝั่ง
มองจากด้านหน้าเข้าไป จะตรงกับ Lobby พอดี

ภาพจำลองด้านหน้าโครงการ มีน้ำพุตกแต่งขวามือ

ภาพส่วนของ Lobby ด้านใน ออกแบบมาเรียบๆแต่หรู
ที่ชั้น 21 จะเป็นสระว่ายน้ำตัว L และที่ชั้น 22 ด้านหน้านี้จะเป็น Co-Thinking Space ที่ชั้น 23 จะเป็น Sky Lounge ผนังจะเป็นกระจกแบบ Full Height ทั้ง 2 ชั้น

มองจากมุมด้านข้างจะเห็นสระว่ายน้ำตัว L
ฝั่งด้านข้างทิศตะวันตกฝั่งนี้จะติดกับซอยส่วนบุคคล ถัดออกมาเป็นบ้านพักอาศัย และจะเป็นถนนพหลโยธินที่มีแนวรถไฟฟ้าอยู่ มีสถานี ม.เกษตรศาสตร์ตั้งอยู่ตรงช่วงปากซอยพหลโยธิน 38
แนวรั้วโครงการจะอยู่ติดกับซอยส่วนบุคคลที่เชื่อมกับซอยพหลโยธิน 38 โดยทางโครงการจะมีทางเข้าออกโครงการอีกทางครับ ถ้าเดินจากประตูนี้ไปรถไฟฟ้าอยู่ประมาณ 150 ม. ครับ
ด้านในโครงการฝั่งนี้ที่ช้ัน 1 จะมีทางออกจากลิฟท์ Auto Parking และมีที่จอดรถแบบกลางแจ้ง
ซูมตรงประตูทางเข้าออก 2 เดินไปเชื่อมออกซอยพหลโยธิน 38 ได้

ที่ชั้น 21 ฝั่งนี้จะมองเห็นสระว่ายน้ำโซนด้านหน้า ด้านหลังจะเป็นสวน ตรงกลางจะเป็นห้องฟิตเนส และห้องน้ำ

ภาพจำลองส่วนของ Co-Thinking Space ที่ชั้น 22 ลูกบ้านขึ้นมานั่งทำงาน อ่านหนังสือ กันได้

ภาพจำลองส่วนของ Sky Lounge ที่ชั้น 23 มีบันไดวนขึ้นไปที่ชั้นลอย จัดชุดโซฟาไว้ให้

ภาพจำลองส่วนของห้องฟิตเนส ผนังห้องเป็นกระจกชมวิวด้านนอกได้
ฝั่งด้านหลังโครงการเป็นทิศเหนือติดกับบ้านพักอาศัย
ที่ชั้น 21 จะมีสวนพร้อมที่นั่งแบบ Sunken Seat

ฝั่งด้านข้างทิศตะวันออกติดกับธนาคารเพื่อการเกษตรและสหกรณ์การเกษตร ที่ชั้น 5 ฝั่งนี้จะมีสวนหย่อม
สวนชั้น 5 จะยาวตลอดแนวอาคาร
ที่ชั้น 21 จะเป็นสระว่ายน้ำตัว L ส่วนที่ยาวที่สุด 20 ม. ระบบเกลือ

ภาพจำลองชั้น 21-23
Floor Plan
Master Plan โครงการเริ่มจากทางเข้าออก ด้านหน้าติดถนนประเสริฐมนูกิจ ผ่านเข้ามาตรงหน้าจะเจอ Lobby ถนนในโครงการจะเป็นแบบ One way วนไปทางซ้ายจะเจอที่จอดรถกลางแจ้งยาวตลอดแนว มุมด้านหลังโครงการจะมีประตูทางเข้าออก 2 ที่ออกไปจะเป็นซอยส่วนบุคคลและไปเชื่อมออกซอยพหลโยธิน 38 ได้ครับ ในโครงการวนรถมาด้านข้างอีกฝั่งจะมีที่จอดรถใต้อาคาร และจะเจอทางเข้าลิฟท์จอดรถ Auto Parking มีลิฟท์ 2 ตัว ทั้งโครงการจอดได้ประมาณ 60% รวมซ้อนคัน เดินเข้าในอาคารส่วนแรกจะเป็น Lobby มีส่วนที่เป็นห้องประชุม ถัดเข้าไปจะเป็นส่วน Mail Box และโถงลิฟท์ มีลิฟท์โดยสาร 2 ตัว
แปลนชั้น 5 จะเริ่มเป็นชั้นพักอาศัย มีทั้งหมด 12 ยูนิต ฝั่งทิศตะวันออก และทิศเหนือกับใต้จะเป็นห้องแบบ 1 Bed Plus ขนาด 33.5 – 34.5 ตร.ม. ตรงตำแหน่ง 09 จะเป็นห้อง Studio ขนาด 23 ตร.ม. ส่วนฝั่งทิศตะวันตกจะเป็นห้อง Studio ขนาด 24-27 ตร.ม. ที่ชั้นนี้จะมีสวนส่วนกลางอยู่ฝั่งทิศตะวันออกยาวตลอดแนวอาคาร มีประตูแยกส่วนพักอาศัยให้ ลิฟท์โดยสารตำแหน่งจะอยู่ช่วงฝั่งด้านหน้า บันไดหนีไฟมี 2 ฝั่ง
แปลนชั้น 6-19 เหมือนกันครับ มีทั้งหมด 12 ยูนิต ฝั่งทิศตะวันออก และทิศเหนือกับใต้จะเป็นห้องแบบ 1 Bed Plus ขนาด 33.5 – 34.5 ตร.ม. และฝั่งทิศตะวันตกจะเป็นห้องขนาด 24-27 ตร.ม. 5 ยูนิต
แปลนชั้น 20 เหมือนชั้น 6-19 แต่จะพิเศษตรงยูนิตตำแหน่ง 01 – 07 จะเป็นห้องแบบ High Loft ฝ้าสูง 4.4-4.6 ม. โดยทั้งโครงการจะมีเพียง 15 ยูนิตเท่านั้น
แปลนชั้น 21 จะเป็นชั้นส่วนกลางทั้งชั้น ฝั่งด้านหน้าจะเป็นสระว่ายน้ำแบบตัว L ชมวิวได้ 180 องศา ฝั่งด้านหลังอาคารจะมีสวนพร้อมที่นั่งแบบ Sunken Seat ไว้นั่งชมวิว ฝั่งทิศตะวันตกจะเป็นห้องฟิตเนส มีห้องน้ำแยกชายหญิงพร้อมห้อง Steam
แปลนชั้น 22 จะมียูนิตพักอาศัยอยู่ที่ 4 ยูนิต และจะเป็นห้องแบบ High Loft ทั้งหมด ชั้นนี้จะเป็นแบบ Single corridor คือไม่มีห้องฝั่งตรงข้าม ค่อนข้างมีความเป็นส่วนตัวกว่าชั้นอื่น และฝั่งด้านหน้าอาคารจะเป็น CO-Thinking Space อยู่ติดกับโถงลิฟท์ ห้องนี้ผนังกระจกจะสูงถึงฝ้าเลย ชมวิวได้ 180 องศา
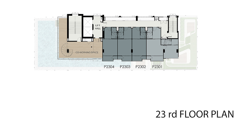
แปลนชั้น 23 เป็นชั้นบนสุดของอาคาร มีห้องพัก 4 ยูนิตเหมือนชั้น 22 เลย เป็นห้องแบบ High Loft ทั้งหมด ฝั่งด้านหน้าอาคารจะเป็น Sky Lounge มีบันไดวนและชั้นลอยด้านใน
Units Type
โครงการมีห้องให้เลือกดังนี้
Studio ขนาด 27 ตร.ม.
1 Bedroom Plus ขนาด 34 ตร.ม.
ห้องตัวอย่าง
ห้องตัวอย่างที่จะพามาชมวันนี้มี 2 แบบ
แบบแรกที่จะพามาชมเป็น Studio ขนาด 27.00 ตร.ม. เดินเข้าห้องมาเจอส่วนห้องครัวได้เป็นครัวปิด มีฉากกั้นบานเลื่อนเปิดปิดแยกส่วนได้ ถัดเข้าไปจะเป็นพื้นที่ส่วนห้องนั่งเล่น และห้องนอน ใช้พื้นที่ร่วมกัน ข้อดีคือเราสามารถปรับเปลี่ยนพื้นที่การใช้งานได้ตามความต้องการ ส่วนห้องน้ำอยู่ฝั่งติดกับครัว มีระเบียงด้านหลังห้อง
ที่ประตูห้องจะได้ Digital Door Lock ของ Yale ใช้งานได้ทั้งสแกนนิ้ว รหัส และ Key Card มือจับประตูเป็นแบบคันโยก
เดินเข้าห้องมาจะเจอส่วนห้องครัวก่อน ได้เป็นครัวปิดมีฉากกั้นบานเลื่อนเปิดปิดให้ ถัดเข้าไปติดกับครัวเป็นห้องน้ำ ด้านในเป็นส่วนของห้องนอนและห้องนั่งเล่นใช้พื้นที่ร่วมกัน มีระเบียงห้องอยู่ด้านในสุด พื้นส่วนครัวเป็นกระเบื้องแกรนิตโต้ ส่วนในห้องนอนจะเป็นไม้ลามิเนตหนา 12 มม. ฝ้าสูง 3 ม. ผนังได้ฉาบเรียบทาสีทั้งห้อง
เดินเข้ามาแล้วมองกลับไปที่ประตูทางเข้า
ชุดเคาน์เตอร์ครัวที่ได้ เป็นแบบบานเปิดและลิ้นชัก ทุกบานมี Soft close ให้
ได้เตาไฟฟ้าหน้าเซรามิกแบบ 2 หัว พร้อมเครื่องดูดควันแบบดูดออกภายนอกห้องของ Teka
อ่างล้างจานได้แบบหลุมเดียวฝังท็อปมาให้เรียบร้อยของ Teka ท็อปเคาน์เตอร์เป็นหินสังเคราะห์ ด้านบนอ่างล้างจานออกแบบให้เป็นชั้นคว่ำจาน
ฝั่งตรงข้ามเคาน์เตอร์ครัวเป็นพื้นที่วางตู้เย็น และเครื่องซักผ้า เดินระบบน้ำและไฟไว้ให้ ตรงผนังมีช่องไว้ให้ใส่ไมโครเวฟได้
พื้นที่เดินในครัวหลังจากวางเครื่องใช้ไฟฟ้าแล้วเหลือประมาณ 1.88 x 1.65 ม.
ถัดจากครัวจะมีประตูบานเลื่อน 2 บาน เปิดปิดแยกส่วนจากพื้นที่ด้านใน
พื้นในห้องด้านในจะเป็นไม้ลามิเนตหนา 12 มม.
เดินเข้ามาด้านใน ขวามือจะเป็นห้องน้ำ ถัดเข้าไปจะเป็นห้องนั่งเล่น และห้องนอนที่ใช้พื้นที่ร่วมกันครับ
ไปดูห้องน้ำกันก่อนอยู่ติดกับประตูครัวเลย
ภายในห้องน้ำมีพื้นที่มาให้พอประมาณ แบ่งส่วนเปียกส่วนแห้ง ได้กระจกเงาบานใหญ่เต็มบาน มีระบบดูดอากาศออกสู่ภายนอก
อ่างล้างหน้าที่ได้ทรงสี่เหลี่ยมมีพื้นที่วางของรอบๆอ่าง ของ Cristina
ใต้อ่างล้างหน้าเป็นตู้เก็บของแบบบานเปิด 1 บาน
ติดกันวางโถสุขภัณฑ์ของ Cristina ตัวฝาปิดด้านในจะไม่มีขอบ เวลาใช้งานนั่งพิงหลังจะใช้งานได้ดีกว่า
ด้านในเป็นพื้นที่ส่วนเปียกมีฉากกั้นให้เป็นกระจก Tempered Glass แบบบานเปิด
ด้านในติดตั้งฝักบัวพร้อม Rain Shower มาให้
หน้าตาฝักบัวที่ได้เป็นแท่งกลมๆของ Cristina ขนาดจับถนัดมือ
พื้นที่ส่วนเปียกขนาด 1 x 0.85 ม.
ออกจากห้องน้ำมาฝั่งตรงข้ามจะเป็นตู้เสื้อผ้าที่โครงการ Built-in มาให้เลย มีชั้นวางของด้านซ้าย
ตู้เสื้อผ้าที่ได้เป็นแบบบานเปิดขนาด 4 บาน สูงถึงฝ้า หน้าบานตู้ได้ตามนี้เลยเป็นกระจกสีออกทองๆ
ด้านข้างตู้เสื้อผ้าอีกฝั่งมีช่องเก็บของเล็กๆ
เปิดออกมาจะแบ่งเป็นชั้นไว้วางยา หรือของจุกจิกเล็กๆ ตรงบานเปิดมีกระจกติดมาให้ด้วย
พื้นที่ถัดเข้ามาจะเป็นส่วนของห้องนั่งเล่นและห้องนอนใช้งานร่วมกัน เราสามารถปรับเปลี่ยนพื้นที่ได้ตามความต้องการ
ห้องตัวอย่างแต่งห้องมาให้ดูเป็นไอเดีย ด้วยความที่ฝ้าสูง 3 ม. จึงวางเตียง 2 ชั้นมาให้ดูครับ วางโซฟาติดบันไดตรงบันไดขึ้นเตียงชั้น 2 ใช้พื้นที่ได้คุ้มดี หรือใครจะยกพื้นขึ้นและใช้เตียงที่สามารถยกขึ้นลงเพื่อเก็บของใต้เตียงก็ได้ครับ
ได้โซฟาขนาด 2 ที่นั่ง
ที่พื้นวางเตียง 5 ฟุตให้ดูชิดผนังด้านใน
ส่วนชั้นบนเป็นแบบเตียงเดี่ยว
บันไดเดินขึ้นเตียงชั้น 2 ทำให้ดูเป็นไอเดียนะครับ
เตียงชั้น 2 ยืนบนเตียงไม่ได้นะครับ หัวจะติดฝ้า ต้องก้มตัวหน่อย
มองจากเตียงชั้นสองไปที่ห้องครัว แอร์ห้องนี้จะได้ 1 ตัว ติดตรงผนังซ้ายมือ
มองลงมาด้านล่าง
ระยะดูทีวีจากโซฟาและเตียงนอนประมาณ 3.44 ม. ได้ชั้นวางทีวีตามนี้เลย
ชั้นวางทีวีเป็นลิ้นชัก 3 ช่อง
ฝั่งด้านนอกจะมีหน้าต่างตรงเตียงนอนเป็นบานกระทุ้ง 1 บาน ที่เหลือเป็นบาน Fixed ซ้ายมือเป็นระเบียงมีประตูบานเลื่อน 3 ตอน กรอบประตูและหน้าต่างเป็นอลูมิเนียมพาวเดอร์โค้ทผิวทราย บานกระจกเป็น Laminate Double สียูโรเกรย์ เก็บเสียงและกรองแสงจากด้านนอกได้ดี
มือจับประตูบานเลื่อน
พื้นที่ระเบียงขนาด 1.4 x 0.60 ม.
ด้านบนแขวนคอมเพลสเซอร์แอร์ 1 ตัวเป่าลมออกด้านนอก มีระแนงบังสายตามาให้เรียบร้อย
มองกลับเข้ามาในห้องจะเห็นแบบนี้ครับ

อีกแบบที่พามาชมเป็น 1 Bedroom Plus ขนาด 34 ตร.ม. ความพิเศษของห้องนี้คือเป็นห้องหน้ากว้าง 8 ม. แบ่งพื้นที่เป็นสัดส่วน เดินเข้าห้องมาจะเจอพื้นที่ส่วนรับประทานอาหาร และส่วนห้องนั่งเล่นก่อนเลย ด้านในจะเป็นระเบียง ฝั่งซ้ายจะเป็นห้องครัวได้เป็นครัวปิด ตรงข้ามกับครัวเป็นห้องอเนกประสงค์มีฉากกั้นบานเลื่อนให้ ทำเป็นห้องนอนอีกห้องได้ ถัดไปด้านในสุดเป็นห้องนอน พื้นที่ขนาดกว้างพอสมควร มีพื้นที่ทำห้องแต่งตัวมาให้ด้วย ส่วนห้องน้ำอยู่ติดกับห้องนอนครับ
เดินเข้าห้องมาจะเจอส่วนห้องนั่งเล่นและส่วนรับประทานอาหารใช้พื้นที่ร่วมกัน ด้านในเป็นระเบียง ซ้ายมือจะเป็นห้องครัวและทางเดินไปยังห้องนอน ห้องอเนกประสงค์ และห้องน้ำครับ พื้นห้องนั่งเล่นและห้องนอนเป็นไม้ลามิเนตหนา 12 มม. ห้องครัวเป็นกระเบื้องแกรนิตโต้ ฝ้าสูง 3 ม. ผนังจะได้ฉาบเรียบทาสีทั้งห้อง
เดินเข้ามาแล้วมองกลับไปที่ประตูทางเข้า ขวามือตรงฝั่งห้องครัวจะมีตู้ไว้ให้วางเครื่องซักผ้า
ตู้วางเครื่องซักผ้าเป็นแบบบานเปิด 2 บาน ด้านในเดินระบบน้ำและไฟไว้ให้ ไม่ต้องไปวางตรงระเบียงด้านนอกให้เสียพื้นที่
วางโซฟา และโต๊ะรับประทานอาหารไว้ฝั่งนี้
โต๊ะรับประทานอาหารวางขนาด 2 ที่นั่งให้ดู ถ้าใครจะวางใหญ่กว่านี้แนะนำให้ใช้แบบที่สามารถพับเก็บได้ จะได้ไม่เสียพื้นที่ถ้าไม่ใช้งาน
โซฟาจะได้ตามนี้เลย
ระยะดูทีวีประมาณ 3 ม. แอร์ได้ติดผนัง 1 ตัว ซ้ายมือเป็นห้องครัว และทางเดินไปยังส่วนอื่นๆ
ได้ชั้นวางทีวีเป็นลิ้นชัก 2 ช่อง
ด้านในสุดเป็นระเบียงมีประตูบานเลื่อน 3 ตอน กรอบประตูและหน้าต่างเป็นอลูมิเนียมพาวเดอร์โค้ทผิวทราย บานกระจกเป็น Laminate Double สียูโรเกรย์ เก็บเสียงและกรองแสงจากด้านนอกได้ดี
เปิดออกมาจะเจอระเบียงขนาด 2.8 x 0.60 ม.
ด้านข้างแขวนคอมเพลสเซอร์แอร์ 2 ตัว เป่าลมออกด้านนอก
มองกลัยบเข้ามาในห้อง
ไปดูส่วนครัวกันต่อ จะได้เป็นครัวปิด ผนังฝั่งนี้เป็นกระจกเข้ามุม ช่วยให้แสงส่องเข้าด้านในได้
ประตูส่วนครัวเป็นบานเลื่อน 3 ตอน
ขนาดพื้นที่ครัวด้านในให้ยืนได้ประมาณ 1.3 x 0.83 ม. พื้นเป็นกระเบื้องแกรนิตโต้
เคาน์เตอร์ครัวจะได้เป็นรูปตัว L มีพื้นที่วางตู้เย็นขวามือ
ตู้ด้านบนเป็นบานเปิดทั้งหมด
ด้านล่างเป็นแบบบานเปิดและลิ้นชัก ตู้ทุกบานมี Soft close
ท็อปเคาน์เตอร์เป็นหินสังเคราะห์ ได้อ่างล้างจานแบบหลุมเดียวฝังท็อป เตาไฟฟ้าได้แบบ 2 หัวพร้อมเครื่องดูดควันแบบดูดอากาศออกนอกห้องของ Teka
ออกจากห้องครัวมา ขวามือจะเป็นห้องอเนกประสงค์ ด้านในสุดเป็นห้องนอน
ห้องอเนกประสงค์จะได้ฉากกั้นบานเลื่อน 3 ตอน
พื้นที่ห้องด้านในขนาดประมาณ 2 x 1.88 ม. พื้นที่สามารถทำเป็นห้องนอนได้อีกห้อง วางเตียง 3 ฟุตได้พอดี ส่วนห้องตัวอย่างทำเป็นห้องทำงานให้ดูเป็นไอเดียครับ วางโต๊ะทำงานไว้ริมหน้าต่าง
ฝั่งด้านข้างทำเป็นชั้นวางหนังสือให้ดู
มองออกไปนอกห้องจะเห็นแบบนี้
ออกจากห้องอเนกประสงค์มา ซ้ายมือจะเป็นห้องน้ำ ขวาเป็นห้องนอน
ภายในห้องน้ำเหมือนห้องแรกเลย มีระบบดูดอากาศออกด้านนอก
สุขภัณฑ์ของ Cristina
ด้านในเป็นพื้นที่ส่วนเปียก ได้ฉากกั้นอาบน้ำแบบบานเปิด
ด้านในติดฝักบัวพร้อม Rain Shower มาให้
พื้นที่ส่วนเปียกขนาด 1 x 0.90 ม.
ภายในห้องนอนมีพื้นที่มาพอประมาณ
วางเตียง 5 ฟุตให้ดู ขนาดกำลังดี
พื้นที่ข้างเตียงเหลือประมาณ 88 ซม.
ปลายเตียงเหลือประมาณ 57 ซม.
ข้างเตียงอีกฝั่งเหลือประมาณ 66 ซม.
ระยะดูทีวีปลายเตียงประมาณ 2.5 ม.
ฝั่งด้านนอกเป็นหน้าต่างบานกระทุ้ง 1 บาน ที่เหลือเป็นบาน Fixed ให้มาบานใหญ่ดีแต่เฟรมเยอะไปหน่อย
ห้องตัวอย่างเป็นห้องมุม จะได้ส่วนที่เป็นกระจกเข้ามุมแบบนี้ครับ
ฝั่งด้านในเป็นพื้นที่ห้องแต่งตัว มีแอร์ติดผนัง 1 ตัว
ตรงห้องแต่งตัวเป็นกระจกบานเลื่อน 3 ตอน
ด้านในได้ตู้เสื้อผ้าแบบนี้ แบ่งช่องมาให้
มีพื้นที่ให้ยืนหรือวางของได้ ขนาดประมาณ 1.4 x 0.88 ม.
ราคา (ก.พ.60)
ค่าส่วนกลาง 65 บาท/ตร.ม. : ค่ากองทุน 650 บาท/ตร.ม
เงินจอง 10,000 บาท และ เงินทำสัญญา 50,000 บาท
ผ่อนดาวน์ 20 งวด
***รายละเอียดอื่นๆโปรดสอบถามทางโครงการครับ
สรุป
ทำเลที่ตั้งโครงการ – Miti Chiva เกษตร สเตชั่น ตั้งอยู่ในย่านเกษตร รอบๆโครงการส่วนใหญ่เป็นบ้านพักอาศัย หอพัก สถานที่ราชการ และมหาวิทยาลัยรัฐชื่อดังอย่าง ม.เกษตรฯ ย่านนี้มีความอุดมสมบูรณ์ในตัว ส่วนใหญ่จะอยู่ตามริม 2 ฝั่งทางเส้นพหลโยธิน โดยเฉพาะตรงแยกเกษตร มีตลาดอมรพันธ์เป็นแหล่งอาหารสำคัญของย่านนี้ มีทั้งอาหารตามสั่ง ก๋วยเตี๋ยว ข้าวราดแกง ส้มตำ สเต็ก อาหารญี่ปุ่น ร้านขนม ผลไม้ต่างๆ ร้านสะดวกซื้อก็มีหลายร้านเลย หรือจะเข้าไปฝากท้องใน ม.เกษตรก็ได้ครับ อร่อยและประหยัดด้วย ส่วนห้างสรรพสินค้าใกล้ๆ ก็มี The Mall งามวงศ์วาน เมเจอร์รัชโยธิน โลตัส เซ็นทรัลลาดพร้าว และยูเนี่ยนมอลล์ นอกนั้นก็เข้าเมือง หรือออกไปตามเส้นเลียบด่วนรามอินทราก็ได้
การเดินทางด้วยรถยนต์ส่วนตัว – ตัวโครงการอยู่ติดถนนประเสริฐมนูกิจ ถ้าจะใช้เส้นพหลโยธินต้องไปกลับรถเพื่อไปแยกเกษตรและจะเข้าถนนพหลโยธิน จากนั้นวิ่งมุ่งหน้าเข้าเมืองไปผ่านแยกรัชโยธิน แยกนี้ตัดเข้าถนนรัชดาภิเษกไปโซนพระรามเก้า เชื่อมเข้าเพชรบุรี อโศก และสุขุมวิทได้เลย หรือข้ามแยกรัชโยธินไปจะไปผ่านห้าแยกลาดพร้าวตัดกับถนนวิภาวดีรังสิต ผ่านจตุจักร อารีย์ยาวไปอนุสาวรีย์ได้เลย หรืออีกเส้นจากแยกเกษตรข้ามไปเข้าถนนวิภาวดีรังสิต จะไปผ่านห้าแยกลาดพร้าว ตรงไปดินแดงเข้าอนุสาวรีย์ชัยฯได้เช่นกัน ถ้าจะออกนอกเมือง เส้นประเสริฐมนูกิจวิ่งออกไปโซนรามอินทราได้ มีทางด่วนรามอินทรา-อาจณรงค์ วิ่งเข้าออกเมืองได้ ส่วนเส้นพหลโยธินวิ่งไปผ่านวงเวียนหลักสี่ตัดเข้ารามอินทรา และแจ้งวัฒนะได้ หรือตรงเลยไปอีกจะไปผ่านสะพานใหม่ยาวไปออกรังสิตได้เลย เส้นวิภาวดีรังสิตวิ่งออกดอนเมือง รังสิตได้อีกทาง เส้นงามวงศ์วานวิ่งไปแคราย ติวานนท์ รัตนาธิเบศร์ ออกบางบัวทอง บางใหญ่
การเดินทางด้วยรถสาธารณะ – จุดเด่นของโครงการคือใกล้กับรถไฟฟ้าหลายสาย แต่ที่ใกล้โครงการสุดตอนนี้คือรถไฟฟ้าสายสีเขียวส่วนต่อขยายช่วงหมอชิต-สะพานใหม่-คูคต โดยสถานีที่ใกล้โครงการคือสถานี ม.เกษตรศาสตร์ จะอยู่ตรงช่วงปากซอยพหลโยธิน 38 ซึ่งตัวโครงการทำทางเข้าออกอีกทางเพื่อเชื่อมออกไปยังซอยนี้ ระยะจากโครงการประมาณ 150 ม. ตอนนี้อยู่ในช่วงก่อสร้าง น่าจะเสร็จพร้อมๆกับโครงการ เราสามารถนั่งไปเปลี่ยนเป็น MRT ที่สถานีห้าแยกลาดพร้าวได้ ในอนาคตจะมีรถไฟฟ้าสายสีเหลืองตัดเชื่อมตรงแยกรัชโยธิน อีกเส้นคือสายสีน้ำตาลที่จะตัดผ่านหน้าโครงการโดยเป็นสถานีเชื่อมต่อตรงแยกเกษตร ซึ่งเดินจากโครงการไปได้สบายๆครับ ถัดออกไปอีกตรงวงเวียนหลักสี่จะมีรถไฟฟ้าสายสีชมพูมาเชื่อมกับสายสีเขียวอีกเส้น และตรงเส้นวิภาวดีรังสิตมีแนวรถไฟฟ้าชานเมืองสายสีแดง ซึ่งตอนนี้ตัวสถานีสร้างเสร็จหลายสถานีแล้ว น่าจะเปิดให้ใช้บริการได้เร็วๆนี้ครับ
นอกจากนี้ใกล้ๆโครงการจะมีป้ายรถเมล์มีรถวิ่งผ่านออกไปโซนรามอินทรา หรือถ้าจะให้หลากหลายเดินมาขึ้นตรงเส้นพหลโยธินมีทั้งรถเมล์ รถตู้ วิ่งผ่านหลายสายทั้งเข้าและออกเมือง มีทั้งไปรัชโยธิน เซ็นทรัลลาดพร้าว จตุจักร อนุสาวรีย์ ออกนอกเมืองไปเดอะมอลล์งามวงศ์วาน แคราย ติวานนท์ บางบัวทอง บางใหญ่ ด้านหน้าโครงการสามารถโบกเรียก Taxi และวินมอเตอร์ไซค์ได้เลยสะดวกดี
การออกแบบโครงการและวัสดุ – โครงการออกแบบมา 1 อาคาร สูง 23 ชั้น บนพื้นที่ดินขนาด 1-2-6.7 ไร่ อาคารรูปทรงสี่เหลี่ยมยาวขนานที่ดิน สีภายนอกใช้โทนเทา มีเล่นลายที่เปลือกอาคาร ที่ชั้น 1 รอบๆอาคารจะเป็นถนน มีที่จอดรถกลางแจ้งและใต้อาคาร ที่ชั้น 2-4 เป็นส่วนของระบบ Auto Parking ชั้นพักอาศัยจะเริ่มที่ชั้น 5 – 23 ส่วนกลางหลักๆอยู่ที่ชั้น 1 , 5 และ 21-23
การออกแบบห้องพักอาศัยที่นี่มีให้เลือก 2 แบบหลักๆ คือ Studio ขนาด 23.00-27.00 ตร.ม. , 1 Bedroom ขนาด 33.50-34.50 ตร.ม. ห้องออกแบบมาดูโปร่งไม่อึดอัด ฝ้าสูง 3 ม. และมียูนิตพิเศษเพียง 15 ยูนิตที่เป็นแบบ High Loft คือฝ้าจะสูง 4.4-4.6 ม.จะอยู่ที่ชั้น 20-23 ตัวโครงการขายแบบ Fully Furnished ของที่ได้จะมี ชุดครัวอ่างล้างจาน และ Hob & Hood ของ Teka สุขภัณฑ์ภายในห้องน้ำของ Cristina พร้อมฉากกั้นส่วนเปียก ได้โซฟา ตู้เสื้อผ้า ชั้นวางทีวี แอร์ได้แบบติดผนังตรงห้องนั่งเล่นและห้องนอน กรอบประตูและหน้าต่างเป็นอลูมิเนียมพาวเดอร์โค้ทผิวทราย บานกระจกเป็น Laminate Double สียูโรเกรย์ เก็บเสียงและกรองแสงจากด้านนอกได้ดี
สิ่งอำนวยความสะดวก – Facility หลักๆของโครงการอยู่ที่ชั้น 1 , 5 และ 21-23 ที่ชั้น 1 มี Lobby, Meeting Room ที่ชั้น 5 มีสวนหย่อม ที่ชั้น 21 มีสระว่ายน้ำทรงตัว L ระบบเกลือยาว 20 ม. ชมวิวได้ 180 องศา ฝั่งด้านหลังอาคารมีสวนหย่อมพร้อมที่นั่งแบบ Sunken Seat มีห้องฟิตเนส และห้องน้ำแยกชายหญิงพร้อมห้อง Steam ที่ชั้น 22 มี Co-Thinking Space ขึ้นมานั่งทำงานกันได้ และที่ชั้น 23 จะมี Sky Lounge ลิฟต์โดยสารมีให้ 2 ตัว ที่จอดรถเป็นระบบ Auto Parking มีลิฟท์ 2 ตัว มีที่จอดรถรอบๆอาคารและใต้อาคาร ทั้งโครงการจอดได้ประมาณ 60% รวมซ้อนคัน ระบบรักษาความปลอดภัยมีรปภ. มี CCTV และผ่านเข้าออกด้วยระบบ Key Card Access
คะแนน
| ทำเลที่ตั้งโครงการ | 8.0 | อยู่ในย่านชุมชน ใกล้สถานที่ราชการ สถานศึกษา มีความอุดมสมบูรณ์ในตัว |
| การเดินทาง ใช้รถ | 8.0 | ติดถนนหลักเชื่อมออกได้หลายเส้นทาง ใกล้ทางด่วน |
| การเดินทาง ไม่ใช้รถ | 8.5 | ห่างจาก BTS ม.เกษตรศาสตร์ ประมาณ 150 ม. เป็นจุดเชื่อมต่อกับรถไฟฟ้าสายสีน้ำตาล รถเมล์ รถตู้ วินมอเตอร์ไซค์ Taxi |
| ห้องและวัสดุ | 7.5 | ออกแบบมาดี วัสดุที่ใช้อยู่ในระดับมาตรฐาน |
| สิ่งอำนวยความสะดวก | 7.5 | Facility ออกแบบมาน่าใช้งาน มี Lobby , สวนหย่อม , ฟิตเนส , สระว่ายน้ำ , Co-Thinking Space , Sky Lounge , Meeting Room |
| ความคุ้มค่ากับราคา | 7.5 | รูปแบบโครงการออกแบบมาดี แต่ก็มีตัวเลือกอีกหลายที่ในทำเลที่ใกล้เคียงกัน และราคาที่ไม่ต่างกัน |
| คะแนนรวมเฉลี่ย | 7.83 | ดี |
สอบถามรายละเอียดเพิ่มเติมได้ที่
Tel : 085-911-8811
หากเพื่อนๆเห็นว่ารีวิวนี้มีประโยชน์ ช่วยกด Like เพื่อเป็นกำลังใจให้ทีมงาน ขอบคุณครับ
และมีความคิดเห็นหรือข้อมูลเพิ่มเติมเกี่ยวกับตัวโครงการ สามารถ Comment ได้ที่ด้านล่างของรีวิวครับ
แสดงความคิดเห็น เกี่ยวกับ " EP.139 รีวิว คอนโด MITI CHIVA เกษตร สเตชั่น ติด ม.เกษตร เพียง 150 เมตร จาก BTS ม.เกษตรศาสตร์ "