
รีวิว คอนโด ริทึ่ม อโศก 1 RHYTHM Asoke 1
RHYTHM อโศก 1 จาก AP ตั้งอยู่บนถนนอโศก-ดินแดง แขวงมักกะสัน เขตราชเทวี กทม. ใกล้ MRT พระราม 9 ประมาณ 300 เมตร และ Airport Link มักกะสัน ประมาณ 400 เมตร ใกล้เซ็นทรัล พระราม 9, ฟอร์จูน, เอสพลานาด รัชดา และ ศูนย์วัฒนธรรมแห่งประเทศไทย
ริทึ่ม อโศก 1 เป็นคอนโด High Rise 37 ชั้น 1 อาคาร พื้นที่โครงการขนาด 1-2-86 ไร่ ห้องพักจำนวน 385 ยูนิต มีห้องพักให้เลือกแบบสตูดิโอ, 1 ห้องนอน และ 2 ห้องนอน ขนาดเริ่มต้น 21.50-41.50 ตร.ม. สร้างเสร็จพร้อมอยู่ปี 2559
สิ่งอำนวยความสะดวกในโครงการครบครัน อาทิ โถงต้อนรับ, สระว่ายน้ำ, ฟิตเนส, ซาวน่า, สวนพักผ่อน, ประตูคีย์การ์ด, ที่จอดรถ, กล้องวงจรปิด, ระบบรักษาความปลอดภัยตลอด 24 ชม. ราคาเริ่มต้น 3.15 ล้านบาท*
| ชื่อโครงการ | ริทึ่ม อโศก Rhythm Asoke |
| เจ้าของโครงการ | เอพี ไทยแลนด์ AP Thailand |
| เนื้อที่ทั้งหมด | 1 ไร่ 2 งาน 86.00 ตร.วา. |
| จำนวนตึก | 1 อาคาร |
| จำนวนชั้น | 37 ชั้น |
| จำนวนห้อง | 385 ยูนิต |
| ลักษณะห้องและขนาดห้อง |
|
| ที่จอดรถทั้งหมด |
|
| จำนวนลิฟท์ |
|
| โซน | อโศก-ดินแดง |
| ขนส่งสาธารณะ |
|
| รถโดยสารที่ผ่าน | รถเมล์สาย 76, 98, 136, 185, 206 |
| ที่ตั้ง | ถนนอโศก-ดินแดง แขวงมักกะสัน เขตราชเทวี กทม. |
| กำหนดการ | เริ่มก่อสร้าง ม.ค. 2557 |
| ปีที่สร้างเสร็จ | สร้างเสร็จพร้อมอยู่ ต.ค. 2559 |
| ราคา | เริ่มต้น 3.15 ล้านบาท |
| ราคาเฉลี่ยต่อ ตร.ม | เริ่มต้น 147,000 บาท/ ตร.ม. |
| ค่าส่วนกลางและกองทุน |
|
| สถานที่สำคัญใกล้เคียง |
|
| สิ่งอำนวยความสะดวก |
|
| จุดเด่นของโครงการ | RHYTHM อโศก คอนโดใหม่พร้อมอยู่ สิ่งอำนวยความสะดวกภายในโครงการ ระดับพรีเมียม พร้อม Lobby แบบ Double Volume และ Triple Facilities เดินทางสะดวกสบาย ติดถนนใหญ่ อโศก-ดินแดง ใกล้รถไฟฟ้า MRT พระราม 9, MRT เพชรบุรี และ ทางพิเศษศรีรัช ราคาเริ่มต้น 3.15 ล้านบาท (พ.ย.59) |
ที่ตั้งโครงการ
ถนนอโศก-ดินแดง แขวงมักกะสัน เขตราชเทวี กทม.
พิกัด Google : 13.754289, 100.564480
:: ทำเลที่ตั้งโครงการ ::
คลิกที่รูป เพื่อดูแผนที่ขนาดใหญ่
ทำเลที่ตั้งโครงการ : ริทึ่ม อโศก คอนโดใหม่พร้อมอยู่ บนทำเลศักยภาพ New CBD แห่งใหม่ของกทม. ตั้งอยู่ติดถนนอโศก-ดินแดง ฝั่งมุ่งหน้าไปทางถนนรัชดาภิเษก ระหว่างถนนจตุรทิศ และ ถนนดินแดง ใกล้แยกพระราม 9 และ แยกอโศก-เพชรบุรี ใกล้รถไฟฟ้าใต้ดิน สถานีพระราม 9 และ Airport Link สถานีมักกะสัน ซึ่งย่านนี้ถือได้ว่าโซนของแหล่งธุรกิจสำคัญของกทม. มีความอุดมสมบูรณ์สูง ยิ่งอาคาร G-Tower ใกล้เปิด 100% แล้วด้วย ยิ่งทำให้มีพนักงานออฟฟิศตบเท้าเดินทางเข้ามาทำงาน เฉลี่ยหลายพันคนต่อวัน
นอกจาก G-Tower เฟสแรกแล้ว ในอนาคตจะ The Super Tower ตึกสูง 125 ชั้น ซึ่งจะเป็นตึกที่สูงที่สุดในประเทศไทย และ อาเซียน รับรองว่าทำเลนี้ จะยิ่งบูมเข้าไปใหญ่ นอกจากตึกใหม่ๆ ที่ว่าแล้ว ยังมีอาคารสำนักงาน ขนาดเล็ก-ขนาดใหญ่ดั้งเดิม กระจายอยู่มากมาย มีหน่วยงานราชการ, สถานฑูต รวมถึงศูนย์การค้าขนาดใหญ่อย่าง เซ็นทรัล พระราม 9, ฟอร์จูน รวมถึงสตรีทมอลล์แห่งใหม่อย่าง The Street ที่มีซุปเปอร์มาร์เก็ต และร้านอาหาร เปิดให้บริการตลอด 24 ชม. ใกล้สถานศึกษา, รร.นานาชาติ, มหาลัยชื่อดัง และ โรงพยาบาลชั้นนำมากมาย ถือได้ว่าเป็นอีกหนึ่งโครงการ ที่อยู่บนทำเลเมือง ที่ห้อมล้อมไปด้วยแหล่งอำนวยความสะดวก ที่เอื้อต่อการใช้ชีวิตประจำวันเป็นอย่างดีเลยทีเดียว
การเดินทางโดยรถยนต์ส่วนตัว : ทางเข้า-ออกโครงการ ติดถนนใหญ่ อโศก-ดินแดง ฝั่งขาออก หรือ ฝั่งที่มุ่งหน้าไปแยกพระราม 9 > ถนนรัชดาภิเษก สำหรับใครที่ต้องการเดินทางไปโซนรัชดา, เทียมร่วมมิตร, ห้วยขวาง, สุทธิสาร หรือออกไปยังโซนวิภาวดีรังสิต ถือว่าเดินทางกันได้สะดวก ออกจากหน้าโครงการ เลี้ยวซ้ายยิงยาวไปได้เลย แต่…ใครที่ต้องการเข้าเมืองไปยังโซนเพชรบุรี, อโศกมนตรี, สุขุมวิท หรือเข้าไปยังโซนสาทร, สีลม, พระราม 3 ก็ต้องไปกลับรถไกลหน่อย
เลือกจุดกลับรถได้หลักๆ 2 ที่ คือเลี้ยวขวาตรงแยกพระราม 9 แล้วกลับรถตรงแยกอสมท. วิ่งกลับเข้ามาบนถนนพระราม 9 แล้วเลี้ยวซ้ายเข้าสู่ถนนอโศก-ดินแดง ฝั่งที่มุ่งหน้าไปอโศกมนตรี และอีกทาง คือออกจากหน้าโครงการมา แล้วเลี้ยวซ้าย ขับตรงไปผ่านแยกพระราม 9 ขับตรงไปเรื่อยๆ จะมีจุดกลับรถตรงหน้า The Street รัชดาฯ ลองเลือกใช้เส้นทางกันดู
หากใครเร่งรีบกลัวรถติด ไปธุระ ไปทำงานกันไม่ทัน ก็มีทางด่วนให้เลือกใช้ถึง 2 ด่าน คือ ทางด่วนขั้นที่ 2 ด่านอโศก 1,2 และ ทางด่วนขั้นที่ 2 ด่านพระราม 9 สามารถใช้เข้าเมืองไปยังโซนอนุสาวรีย์, พระราม 6, อุรุพงษ์ ต่อเนื่องไปยังหัวลำโพง, สุรวงศ์ วิ่งไปลงสีลม-สาทรได้เลย แต่หากต้องการออกนอกเมือง ก็สามารถใช้ทางด่วนขั้นที่ 2 ฝั่งขาออก ไปเชื่อมกับทางด่วนรามอินทรา-อาจณรงค์ หรือ จะยิงยาวไปเชื่อมกับทางด่วนกรุงเทพ-ชลบุรีสายใหม่ ใช้ออกไปเที่ยวต่างจังหวัดกันได้ด้วย >< แต่ด้วยทำเลที่ตั้งโครงการ ขึ้นชื่อเรื่องรถติดมาก ก่อนออกเดินทางก็ศึกษาเส้นทางกันให้ดี แล้วเลือกใช้เส้นทางกันได้ตามสะดวกค่ะ
:: ภาพ Google ประกอบการเดินทาง ::
แยกและถนนสำคัญใกล้เคียง
:: การเดินทางโดยรถสาธารณะ ::
คลิกที่รูป เพื่อดูแผนที่ขนาดใหญ่
การเดินทางโดยรถไฟฟ้า : เดินทางสะดวกใกล้ทั้งรถไฟฟ้า MRT สถานีพระราม 9 ระยะทางเพียง 300 เมตร และ Airport Link มักกะสัน ระยะทางเพียง 400 เมตร สามารถเดินเท้ากันไปได้เลยชิวๆ หากเร่งด่วนไม่อยากเดิน ก็สามารถใช้บริการมอเตอร์ไซค์รับจ้าง จากหน้าโครงการได้เลย อัตราค่าโดยสารไปยังสถานีรถไฟฟ้า 20 บาท เท่ากันทั้ง 2 ที่ ส่วนใครที่ต้องการใช้บริการรถขสมก. ก็มีป้ายรถเมล์ตั้งอยู่ใกล้ๆ เดินเท้าไปประมาณ 220 เมตร มีรถเมล์ผ่านหลายสาย ครอบคลุมทั่วกทม.
:: ภาพประกอบการเดินทาง ::
คลิกที่รูป เพื่อดูแผนที่ขนาดใหญ่
การเดินทางเริ่มจาก ทางออก ตอ.2-02 ถนนรัชดาภิเษก (สี่แยกพระราม 9) ทางด่วนขั้นที่ 2 ⇒ ถนนอโศก-ดินแดง ⇒ 75 ม. ⇒ ริทึ่ม อโศก *ติดทางด่วนขั้นที่ 2 และใกล้แยกพระราม 9
การเดินทางเราเริ่มมาจากอนุเสาวรีย์ บนทางด่วนขั้นที่ 2 ตรงไปรัชดา-พระราม 9 จากนั้นให้ลงทางออก ตอ.2-02 ถ.รัชดาภิเษก (สี่แยกพระราม 9) ตามป้ายคะ
เลี้ยวซ้ายเข้าสู่ถนนอโศก-ดินแดง ตามป้ายไปสี่แยกพระราม 9 แล้วชิดซ้าย ตรงไปประมาณ 75 ม. ถึงโครงการคะ
ติดกันจะเป็นโครงการชีวาทัย เรสซิเดนซ์ อโศก
เลี้ยวซ้ายเข้าโครงการ ริทึ่ม อโศก 1 ตรงไปก็เป็นสี่แยกพระราม 9 แล้วคะ
:: สำรวจรอบโครงการ ::
นอกจากการเดินทางโดยรถยนต์แล้ว เราขอพาเดินสำรวจรอบๆโครงการ โดยจะเริ่มจากหน้าโครงการ เดินตามทางเท้า ข้ามแยกพระราม 9 ผ่านฟอร์จูน ไปยังรถไฟฟ้า MRT สถานีพระราม 9 ให้ดูกันด้วย..
เริ่มจากหน้าโครงการ ติดถนนอโศก-ดินแดง มองออกไปฝั่งตรงข้ามเป็น คอนโด ริทึ่ม อโศก 2 และ กรุงไทย คาร์เรนท์
จากหน้าโครงการ มองไปทางขวามือ จะเป็นแยกอโศก-เพชรบุรี ต่อเนื่องไปเป็น Airport Link มักกะสัน และ MRT เพชรบุรี
มองมาทางซ้ายมือ จะเป็นทางที่เราใช้เดินสำรวจ และ เดินไปยังสถานีรถไฟฟ้า วัดระยะทางจากหน้าโครงการ ไปยังสถานีพระราม 9 ประมาณ 300 เมตรค่ะ ถือว่าเป็นระยะเดินได้ชิวๆ อาจจะต้องข้ามแยกหลายสเต็ปหน่อย แต่ก็มีทางม้าลายให้เดินกันได้อย่างปลอดภัยนะ พร้อมแล้วเริ่มเลยค่ะ
ทางเท้าด้านหน้าโครงการ ยาวไปจนถึงแยกพระราม 9 ค่อนข้างกว้าง เดินไปไหนมาไหนได้สะดวก
ติดกับโครงการ เป็นพิชญา ลิฟวิ่ง อพาร์ทเมนท์ให้เช่า ชั้นล่างจะเปิดเป็นร้านค้า ประมาณ 2-3 ร้าน
ด้านหน้าอพาร์ทเม้นท์ เป็นที่ตั้งของวินมอเตอร์ไซค์ด้วยค่ะ อัตราค่าโดยสาร เริ่มต้นที่ 20 บาท
ชั้นล่างของอพาร์เม้นท์ มีร้านก๋วยเตี๋ยวเรือต่อชาม, ลูกชิ้นต่อไม้ สามารถเดินมาฝากท้องกันได้
ถัดมาเป็น ลาเมซอง คลินิกเวชกรรม
ติดกับลาเมซอง เป็นร้าน Fit Master ร้านขายเครื่องออกกำลังกาย และ จักรยานค่ะ
ผ่านอพาร์ทเม้นท์มา เราจะข้ามสะพานไปยังแยกพระราม 9 กัน
มองตรงไปข้างหน้า เห็นไอดีโอ โมบิ กับ G-Tower สูงเด่นเป็นสง่า
ลงบันไดเดินต่อไปโลดดดด ซ้ายมือเป็นแนวรั้วของ Amsterdam
ซ้ายมือเป็น Amsterdam อาบอบนวดเก่า ด้านหน้าจะมีทางม้าลายให้ข้ามไปฝั่งถนนรัชดาภิเษก
หากคนที่ใช้รถยนต์ เลี้ยวซ้ายตรงแยกนี้ จะเชื่อมสู่ถนนดินแดง มุ่งหน้าไปทางด่วน หรือ ออกไปถนนราชวิถีได้เลยค่ะ
ข้ามถนนที่หน้า Amsterdam มาแล้ว ข้ามถนนใหญ่ตรงแยกพระราม 9 อีก 2 สเต็ป
ข้ามแยกพระราม 9 มา จะเป็นถนนรัชดาภิเษก
ข้ามมาอยู่ฝั่งถนนรัชดาฯ ตรงนี้ยังคงมีทางเท้ากว้างๆ ให้เดินกันได้สะดวก
ซ้ายมือเป็นโรงแรม แกรนด์ เมอร์เคียว กรุงเทพฯ ฟอร์จูน
ขวามืออีกฝั่งถนน เป็นที่ตั้งของ G-Tower อาคารสำนักงานแห่งใหม่ 26 ชั้น และ 36 ชั้น ที่มีพื้นที่ให้เช่ากว่า 23,000 ตารางเมตร ปัจจุบันมีผู้เช่าแล้ว 70%
ถ่ายภาพให้ดูกันชัดๆ ปัจจุบันมีคนเค้าเปิดเฟสแรก ให้คนเข้าไปทำงานกันแล้วน้าาาา ใครที่ทำงานอยู่ที่นี่ สามารถเดินจากโครงการมาออฟฟิศได้เลย สะดวกสุดๆ
เดินต่อมาเรื่อยๆ ซ้ายมือเป็นทางเข้า ฟอร์จูน พระราม 9
ฟอร์จูน พระราม 9
ถึงแล้วจ้า สถานีรถไฟฟ้า พระราม 9 ประตู 1
มองไปฝั่งตรงข้ามเป็นเซ็นทรัล พระราม 9
:: บริเวณโดยรอบโครงการ ::
สถานที่สำคัญโดยรอบโครงการ รัศมี 10 กม. ความอุดมสมบูรณ์อยู่ในระดับที่ดี รายล้อมไปด้วยแหล่งอำนวยความสะดวกครบครัน ใกล้ฟอร์จูน และ เซ็นทรัล พระราม 9 ที่สามารถเดินไปฝากท้อง, ช๊อปปิ้ง, ดูหนัง กันได้เลย ถัดออกไปโซนรัชดา, ห้วยขวาง, สุทธิสาร จะมีอาคารสำนักงานขนาดใหญ่, หน่วยงาน และสถานที่ราชการที่สำคัญๆ เกาะตามแนวถนนหลัก และกระจายอยู่ตามซอยต่างๆ อยู่เยอะมาก
ยกตัวอย่างเช่น อาคาร Cyber World, AIA Capital Center, True Towe, RS Towe, อาคารตลาดหลักทรัพย์, สถานฑูตจีน, สถานฑูตเกาหลี, สถานฑูตลาว, สนง.ใหญ่ธอส. หากลงมาทางอโศกมนตรี ก็จะมีทั้ง Thai Summit Tower, OAI Tower, GMM, Sino-Tower, สถานฑูตอินเดีย และอื่นๆ อีกมากมาย ถือว่าเป็นแหล่งที่พักอาศัย ที่ตั้งอยู่บน New CBD ที่มีคนพลุกพล่านมากทีเดียว
ในส่วนของห้างสรรพสินค้า, ไฮเปอร์มาร์เก็ต และแหล่งช๊อปปิ้งอื่น ๆ มีให้เลือกมากมาย เกาะถนนใหญ่ ถนนรัชดาฯ ก็จะมีเซ็นทรัล พระราม 9 อย่างที่บอกไว้ข้างต้น มีฟอร์จูน, บิ๊กซี เอ็กซ์ตร้า, The Street รัชดา (เปิด 24 ชม.), เอสพลานาด ใกล้แหล่งช๊อปปิ้ง และ ตลาดนัดใหญ่ๆ อย่างตลาดนัดรถไฟรัชดา, ตลาดละลายทรัพย์ และ ที่ขาดไม่ได้เลยคือ ตลาดห้วยขวาง ซึ่งเป็นตลาดที่มีของขายเยอะมาก ทั้งยังเป็นแหล่งขายของกินร้านเด็ดๆ จะนั่ง MRT หรือ พี่วินไปก็ได้ค่ะ ค่าโดยสารประมาณ 40 บาท
ทั้งยังตั้งอยู่ใกล้กับสถานศึกษา, โรงเรียนนานาชาติมากมาย ไม่ว่าจะเป็น วิทยาลัยนานาชาติ The Regent’s (RIC), ร.ร.บางกอกทวิวิทย์, ร.ร.นานาชาติ NIS, ร.ร.นานาชาติ Anglo Campus 31, ร.ร.นานาชาติ Australian-ISB, ร.ร.นานาชาติ MISB, ร.ร.นานาชาติ ASB, รร. เซนต์ดอมินิก, รร.วัฒนาวิทยาลัย, ร.ร.สาธิต มศว.ประสานมิตร และ มศว.ประสานมิตร
นอกจากสถานศึกษาแล้ว ใกล้โรงพยาบาลชั้นนำ ทั้ง ร.พ.พระราม 9, ร.พ.ปิยะเวท, รพ.กรุงเทพ, รพ.บำรุงราษฎร์, รพ.สมิติเวช สุขุมวิท, รพ.คามิลเลียน, รพ.จักษุ รัตนิน และ รพ.ผิวหนังอโศก ทั้งหมดอยู่ในรัศมีอุ่นใจ เจ็บไข้ได้ป่วยมา ขับรถไปไม่เกิน 1.2-5.4 กม. ถึงโรงพยาบาลค่ะ
: โซนแยกพระราม 9 (ถนนรัชดาภิเษก) :
สถานที่อื่น ๆ
สถานศึกษา
ศูนย์การแพทย์
: โซนแยกอโศก-เพชรบุรี (ถนนอโศกมนตรี) :
สถานที่อื่น ๆ
สถานศึกษา
ศูนย์การแพทย์
:: ภาพมุมสูงโครงการ ::
ภาพมุมสูงโครงการ ริทึ่ม อโศก : คอนโด High Rise พร้อมอยู่ สูง 37 ชั้น 1 อาคาร ห้องพักอาศัยจำนวน 385 ยูนิต บนที่ดินขนาด 1 ไร่เศษ ตั้งอยู่บนถนนอโศก-ดินแดง ฝั่งขาออก ระหว่างถนนจตุรทิศ และ ถนนดินแดง หน้าโครงการหันไปทางทิศตะวันออก ติดถนนใหญ่ ตรงข้ามกับโครงการเป็นกรุงไทยคาร์เร้นท์ และ คอนโด ริทึ่ม อโศก 2 ที่สร้างเสร็จพร้อมอยู่เช่นเดียวกัน ด้านหลังโครงการฝั่งทิศตะวันตก ติดกับอพาร์ทเม้นท์สูง 5 ชั้น ห้องพักชั้น 7 ขึ้นไป ก็จะได้วิวบ้านพักอาศัยแนวราบ และ ที่ดินรฟท.มักกะสัน ที่เป็นพื้นที่สีเขียวขนาดใหญ่ ปอดใจกลางเมืองของชาวกทม.
ส่วนฝั่งทิศใต้ ติดคอนโด ชีวาทัย เรสซิเดนซ์ ความสูง 29 ชั้น ไม่ต้องกังวลว่าจะบังวิวนะ เพราะห้องส่วนใหญ่จะหันระเบียงทิศตะวันออก และ ทิศตะวันตก ส่วนฝั่งทิศเหนือ ติดอพาร์ทเม้นท์ 5 ชั้น ห้องพักชั้นบน ก็จะเริ่มได้วิวเมืองแยกพระราม 9 เห็นอาคาร G-Tower และในอนาคตจะเห็นตึก The Super Tower ซึ่งเป็นตึกที่สูงที่สุดในไทย และ อาเซียนด้วย เดี๋ยวเราพาไปดูภาพอาคารมุมสูงกันต่อ จะได้เห็นภาพชัดเจนยิ่งขึ้น
ภาพมุมสูงเปลือย ๆ แบบไม่มีกราฟฟิคบังค่ะ เห็นรูปแบบอาคารได้ชัดเจนขึ้น
มุมสูงฝั่งหน้าโครงการ ทิศตะวันออก ติดถนนอโศก-ดินแดง ระหว่างถนนจตุรทิศ และ ถนนพระราม 9, ถนนดินแดง
มุมสูงอาคารฝั่งทิศตะวันออกเฉียงเหนือ
มุมสูงอาคารฝั่งทิศเหนือ ติดอพาร์ทเม้นท์สูง 7 ชั้น
มุมสูงอาคารฝั่งทิศตะวันตกเฉียงเหนือ
มุมสูงอาคารฝั่งทิศตะวันตก ติดบ้านพักอาศัยแนวราบ
มุมสูงอาคารฝั่งทิศตะวันตกเฉียงใต้
มุมสูงอาคารฝั่งทิศตะวันตกเฉียงใต้ ติดคอนโด High Rise
มุมสูงอาคารฝั่งทิศตะวันออกเฉียงใต้
:: FLOOR PLAN ::
ก่อนที่จะไปดูอาคารจริงๆ ขออธิบายแปลนโครงการ ให้เข้าใจรายละเอียดต่างๆ กันก่อนนะคะ
Ground Floor Plan : ริทึ่ม อโศก ตั้งอยู่บนที่ดิน 1-2-86 ไร่ ทางเข้า-ออก โครงการติดถนนอโศก-ดินแดง มีพื้นที่สวนหย่อม พร้อมทางเดินทอดยาวเข้าไปยัง Lobby สำหรับโครงการนี้ ได้พื้นที่ Lobby ขนาดใหญ่ จัดชุดโต๊ะ-โซฟา สำหรับนั่งพักผ่อน มี Mail Box ครบทุกยูนิต, ห้องน้ำส่วนกลาง, ห้องนิติบุคคล และโถงลิฟท์ ระบบ Access Card มีลิฟท์โดยสาร 2 ตัว ลิฟท์บริการ 1 ตัว ที่จอดรถชั้น 1-6 + 1 ชั้นใต้ดิน คิดเป็น 46% หรือ จอดได้ประมาณ 178 คัน รวมจอดซ้อนคันค่ะ
แปลนอาคารชั้น 7 : สำหรับโครงการนี้ จัดพื้นที่ส่วนกลางให้แบบ Triple Facilities (ชั้น 7, ชั้น 8, ชั้น 9) มาดูรายละเอียดที่ชั้น 7 กันก่อน ประกอบไปด้วย สระว่ายน้ำระบบเกลือ ขนาด 7×21 เมตร พร้อมพื้นที่พักผ่อนริมสระว่ายน้ำ ล้อมรอบด้วยพื้นที่สีเขียวตามจุดต่างๆ เพิ่มความร่มรื่นให้แก่ผู้ที่มาใช้สระว่ายน้ำ ด้านข้างสระว่ายน้ำ มีห้องน้ำ, ห้องอาบน้ำ และซาวน่า แยกชาย-หญิงไว้เป็นสัดส่วน ในส่วนของห้องพักอาศัย มีทั้งหมด 12 ห้อง ระเบียงห้องพักหันทิศตะวันออก และทิศตะวันตก มุมของอาคาร จะได้เป็นห้องพักแบบ 2 ห้องนอน 3 ห้อง และ 1 ห้องนอน 1 ห้องค่ะ
แปลนอาคารฃั้น 8 : ตำแหน่งและจำนวนห้องพัก 12 ห้อง เท่ากัน โดยจะมีส่วนของ ห้องฟิตเนส ยื่นออกมา ตำแหน่งอยู่เหนือสระว่ายน้ำ เปิดรับวิวสระว่ายน้ำ และ วิวเมือง ขนาดห้องฟิตเนส ประมาณ 80 ตร.ม.
แปลนอาคารชั้น 9 : ตำแหน่งและจำนวนห้องพัก 12 ห้อง เท่ากัน โดยชั้นนี้ มี Facilities เป็นพื้นที่สวนหย่อม ตำแหน่งตั้งอยู่ด้านบนของฟิตเนส อีกชั้นนึง และ ห้องอเนกประสงค์ ตำแหน่งอยู่ระหว่างบันไดส่วนกลาง และ ประตูทางเข้าส่วนห้องพักอาศัยค่ะ
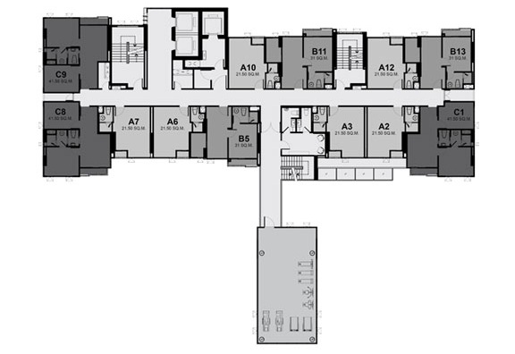
แปลนอาคารชั้น 10- 36 : เป็นชั้นพักอาศัยหลักค่ะ อัตราห้องพักอาศัยอยู่ที่ 13 ห้อง ต่อ 1 ชั้น แบ่งเป็นห้องพักแบบ Studio ขนาด 21.5 ตร.ม. 6 ห้อง, 1 Bedroom 31 ตร.ม. 4 ห้อง, 2 Bedrooms 41.5 ตร.ม. 3 ห้อง
แปลนอาคารชั้น 37 : เป็นชั้นดาดฟ้าของโครงการ จัดเป็น Roof Top Garden พร้อมลาน Jogging Track วิ่งออกกำลังกายจริงจังได้เลยค่ะ
:: บริเวณโครงการ ::
ตัวอาคาร ริทึ่ม อโศก คอนโดสไตล์โมเดิร์น สูง 37 ชั้น ห้องพักอาศัย 385 ยูนิต เป็นคอนโดสร้างเสร็จพร้อมอยู่ มาพร้อม Triple Facilities ภายนอกคุมโทนสีเทา ตัดด้วยสีขาว ดูทันสมัย ลงตัว ออกแบบภายใต้แนวคิด Where the wind blows…and life flows สถาปัตยกรรมแนวเปิดรับลมบริสุทธิ์ ให้พัดผ่านจากทิศเหนือ-ใต้ ไหลเวียนสู่อาคาร สอดประสานการตกแต่งภายนอกที่สะท้อนถึงสายลม
ภาพมุมสูงทางเข้า-ออก และ พื้นที่ชั้นล่างโครงการ
ป้ายโครงการ ริทึ่ม อโศก ตกแต่งด้วยหินอ่อนโทนสีขาว เล้นลายสีดำธรรมชาติ
เข้ามาด้านในโครงการ พื้นถนนด้านหน้าแสตมป์คอนกรีต สีดำ ตัดด้วยเส้นสายสีขาว มองตรงไปด้านหน้าเป็นสวนหย่อม และ ทางเข้าสู่ Lobby โครงการ
ทางเดินเชื่อมสู่ Lobby โครงการ
จุด Drop-Off สำหรับรับ-ส่ง และ พื้นที่สีเขียวด้านหน้าโครงการ ลงต้นไม้ใหญ่กระจายไว้ตามจุดต่างๆ สลับสนามหญ้าสีเขียว บรรยากาศร่มรื่นดีค่ะ
จากพื้นที่สวนหย่อม เงยหน้ามองขึ้นไป จะเห็นอาคารจอดรถ และ Triple Facilities เดี๋ยวเราพาขึ้นไปดูของจริงด้านบนกัน
จากหน้าโครงการ มองมาทางขวามือ จะเป็นทางถนนสำหรับรถยนต์ ใช้เชื่อมสู่อาคารจอดรถด้านในโครงการ
การเดินรถยนต์แบบ One-Way คือขับเข้ามาแล้ววนขวา เพื่อเข้าสู่อาคารจอดรถ
แยกทางรถยนต์เข้า-ออกไว้ชัดเจน โดยโครงการใช้ระบบ Access Card Control ติดตั้งไม้กระดกอัตโนมัติ + กล้องวงจรปิดจับภาพด้านหน้าคนขับฝั่งละ 1 ตัว
อาคารจอดรถจะเริ่มตั้งแต่ชั้น 1- ชั้น 6 พร้อมชั้นใต้ดินอีก 1 ชั้นค่ะ คิดเป็น 46% หรือ จอดได้ 178 คัน รวมจอดซ้อนคันแล้วค่ะ
ขับเข้ามาด้านในเป็นถนนคอนกรีตปาดเรียบ ความกว้างพอให้รถสวนกันได้สะดวก
พื้นที่จอดรถคอนกรีตขัดมัน ระยะห่างทางวันเวย์กว้างกำลังดี
เดินย้อนกลับมาที่หน้าโครงการ เดี๋ยวเราจะพาเดินเข้าไปชมภายในอาคารพักอาศัยกันต่อ
เปิดประตูเข้ามาด้านใน จะเจอกับ Lobby เป็นส่วนแรก ด้านหน้ามีเคาน์เตอร์ต้อนรับของ BC พร้อมบริการซื้อ-ขาย-เช่า
บรรยากาศภายใน Double Volume Lobby ตกแต่งสไตล์โมเดิร์น โทนสีขาว-ดำ สลับกับผนังหินอ่อน พร้อมจัดมุมรับรองไว้หลายจุด สามารถนัดคุยงาน พบประสังสรรค์กับเพื่อนบ้านได้เลยสบายๆ
ถ่ายจากอีกมุมย้อนกลับมาให้ดูค่ะ
ด้านท้ายของ Lobby เป็นห้องตู้จดหมาย ติดกันเป็นห้องน้ำส่วนกลาง แยกชาย-หญิงไว้เป็นสัดส่วน
บรรยากาศภายในห้องจดหมาย ตกแต่งสไตล์โมเดิร์น ตู้จดหมายแบบบิวท์อิน แยกแต่ละยูนิตชัดเจน
โถงลิฟท์โดยสาร เข้า-ออกด้วยประตู Key Card เพื่อความปลอดภัยค่ะ
โถงลิฟท์โดยสารคุมโทนสีดำ สวยหรูดี มีลิฟท์โดยสารแบบล็อคชั้นให้ 2 ตัว
ลิฟท์โดยสารแบบล็อคชั้น ของ OTIS ต้องแตะ Key Card ก่อน แล้วกดชั้นพักอาศัย แผงกดลิฟท์ดูทันสมัย มีจอ LED บอกสถานะด้วยค่ะ
โถงลิฟท์โดยสารชั้นพักอาศัย ตกแต่งด้วยกระเบื้องลายหินอ่อน โทนสีสว่างตา
ตอนนี้เราอยู่ที่ชั้น 7 เป็นชั้นเริ่มของ Facilities โครงการ เดี๋ยวเราเดินออกไปดูกัน
เอาภาพมุมสูง Triple Facilities ชั้น 7-8-9 มาให้ดูกันก่อน..
ผ่านประตูออกมา จะเป็นพื้นที่ส่วนกลางของ ซ้ายมือจะมีบันไดวน เพื่อเชื่อมสู่ส่วนกลางชั้น 8 ฟิตเนส, ชั้น 9 สวนพักผ่อน และ ห้องอเนกประสงค์
สำหรับชั้น 7 เป็นชั้นของสระว่ายน้ำ และ ห้องน้ำ-ห้องอาบน้ำ + ห้องซาวน่า
มองมาทางซ้ายมือ จะเห็นสระว่ายน้ำ และ พื้นที่พักผ่อนริมสระ มองออกจากอาคารไปเห็นคอนโด High Rise และ อาคาร G-Tower แบบนี้เลยนะ
เงยหน้ามองไปทางฝั่งขวา จะเห็นห้องฟิตเนส ที่ตั้งอยู่เหนือสระว่ายน้ำ ส่วนชั้นบนสุดเป็นสวนหย่อมลอยฟ้าค่ะ
สระว่ายน้ำระบบน้ำเกลือ แบบน้ำล้น ขนาด 7×21 เมตร ไม่มีสระเด็กนะคะ
ข้างๆสระว่ายน้ำ โครงการจัด Sun Bed ไว้ให้ 4 ที่นั่ง
เอาภาพมุมสูงมาให้ดู ด้านหลัง Sunbed ตกแต่งสวนสีเขียว และต้นไม้พันธุ์ใหญ่รอโตไว้ให้แบบในภาพด้วย
ถ่ายจากท้ายสระว่ายน้ำย้อนกลับมาให้ดู จะเห็นว่าห้องฟิตเนสชั้น 8 เป็นผนังกระจกใสค่ะ เวลาที่ออกกำลังกายก็จะได้วิวฝั่งสระว่ายน้ำด้วยเหมือนกัน
ถ่ายวิวฝั่งหน้าโครงการให้ดู ความสูงอยู่ที่ชั้น 7 มองออกไปเห็นถนนอโศก-ดินแดง ฝั่งขาเข้า และ ริทึ่ม อโศก 2
มองไปทางขวามือ จะเห็นตัวอาคาร ริทึ่ม อโศก 2 และ ทางด่วนค่ะ
มองไปทางซ้ายฝั่งแยกพระราม 9 เห็นอาคาร G-Tower, คอนโด ไอดีโอ โมบิ , เลตมิสท์ และ แอสปาย พระราม 9
ภาพมุมสูงสระว่ายน้ำ และ พื้นที่พักผ่อนริมสระว่ายน้ำ
ภาพถ่ายจากริมสระว่ายน้ำอีกฝั่ง ย้อนกลับเข้ามา เดี๋ยวพาไปดูห้องน้ำ และ ห้องซาวน่ากันต่อค่ะ
ทางเข้า-ออกห้องน้ำ และ ห้องซาวน่า
ด้านหน้าทางเข้าห้องน้ำ-ซาวน่า มีม้านั่งรอจัดไว้ให้ 1 ชุด พื้นส่วนนี้เป็นทรายล้าง ป้องกันการลื่นหกล้ม เวลาเท้าเปียกค่ะ
ห้องน้ำ, ห้องอาบน้ำ และซาวน่า แยกชาย-หญิงไว้ชัดเจน เป็นสัดส่วน
เข้ามาในห้องน้ำหญิงก่อน ขวามือมีเคาน์เตอร์อ่างล้างหน้า ฝังอ่างไว้ให้ 2 ชุด ด้านหน้าเป็นล็อกเกอร์สำหรับเก็บของ
ส่วนซ้ายมือมีห้องซาวน่า ถัดเข้าไปด้านในเป็นห้องน้ำ และ ห้องอาบน้ำค่ะ
ห้องซาวน่ามีให้ 1 ห้อง ขนาดกลางๆ นั่งได้ 3-4 คน กำลังดี
ต่อเนื่องเข้าไปขวามือเป็นห้องน้ำ มีให้ทั้งหมด 3 ห้อง
ส่วนซ้ายมือเป็นห้องอาบน้ำ มีให้ทั้งหมด 2 ห้องค่ะ
เข้ามาต่อที่ห้องน้ำชาย รูปแบบฟังก์ชั่นเหมือนกันกับห้องน้ำหญิง ส่วนที่เพิ่มเข้ามาก็คือชุดโถสุขภัณฑ์ 2 ตัว
ถัดเข้าไปด้านใน มองมาทางขวามือ มีล็อกเกอร์, ห้องซาวน่า, ห้องน้ำ และ ห้องอาบน้ำค่ะ
ห้องซาวน่ามีให้ 1 ห้อง ขนาดของห้องเท่ากันกับซาวน่าในห้องน้ำหญิงค่ะ
เดินต่อเข้ามาซ้ายมือเป็นห้องน้ำ มีให้ทั้งหมด 2 ห้อง
ฝั่งขวามือ และ ตรงกลาง เป็นตำแหน่งของห้องน้ำค่ะ มีมาให้ 2 ห้อง เช่นเดียวกันค่ะ
ออกจากห้องน้ำมา เจอกับม้านั่งแบบนี้..
เดินขึ้นบันไดไปต่อกันที่ชั้น 8 ค่ะ เป็นชั้นของห้องฟิตเนส
ห้องฟิตเนสขนาดไม่ใหญ่มาก แต่ก็ลงเครื่องออกกำลังกายไว้ให้ครบ มีทั้งเครื่องบริหารกล้ามเนื้อ, เครื่องนั่งปั่นจักรยานไฟฟ้า, เครื่องเอนปั่นจักรยานไฟฟ้า, เครื่องวิ่งออกกำลังกาย รวมถึงเครื่องซิทอัพ และ บาร์เบลมาตรฐานครบเซ็ทค่ะ
ผนังห้องก็ฟิตเนส จะเป็นกระจกแผงใหญ่ทั้งหมด เปิดรับวิวได้กว้างครบ 3 ฝั่งเลยค่ะ
ออกจากห้องฟิตเนส เดินขึ้นบันไดไปดูส่วนกลางชั้น 9 กันต่อ
เดินขึ้นบันไดวนไปค่าาาา ซ้ายมือจะเชื่อมสู่สวนพักผ่อนลอยฟ้า ส่วนขวามือจะเชื่อมต่อกับห้องอเนกประสงค์
ขึ้นไปดูสวนพักผ่อนลอยฟ้ากันก่อนแล้วกันนะ
ถึงแล้ว…ตรงนี้จะบิวท์อินม้านั่งยาว พร้อมจัดชุดโซฟาหวายเอาไว้ให้นั่งเล่นรับวิวเมืองกันชิวๆ
เดินย้อนลงมา ไปดูห้องอเนกประสงค์กัน
ห้องอเนกประสงค์ขนาดไม่ได้ใหญ่มาก
ขวามือจัดเคาน์เตอร์ + เก้าอี้บาร์ 6 ที่นั่ง ไว้นั่งทำงาน เปิดรับวิวเมืองกันชิวๆ
ส่วนฝั่งซ้ายจัดเก้าอี้เบาะผ้า พร้อมโต๊ะกลางไว้ให้ 2 ชุด
พื้นที่ของสวนพักผ่อนลอยฟ้า ขนาดใหญ่เต็มชั้น พร้อม Jogging Track สามารถวิ่งออกกำลังกายจริงจังได้เลย
บรรยากาศภาพรวมบริเวณสวนพักผ่อนชั้นดาดฟ้า เปิดรับวิวเมืองกว้างๆ ได้รอบทิศเลยนะ
วิวฝั่งทิศเหนือ มองออกไปเห็นแยกพระราม 9, บ้านพักอาศัยแนวราบ และ อาคาร G-Tower
วิวฝั่งทิศตะวันตกเฉียงเหนือ เห็นบ้านเมืองโซนดินแดง-พระราม 9
วิวฝั่งทิศตะวันออกเฉียงเหนือ เห็นอาคาร G-Tower และคอนโด High Rise ในอนาคตจะมี The Super Tower ซึ่งจะเป็นตึกที่สูงที่สุดในประเทศไทย และ อาเซียนด้วย ยิ่งสวยเข้าไปใหญ่เลย..
วิวฝั่งทิศตะวันออกเฉียงใต้เห็นอาคาร ริทึ่ม อโศก 2 และ ทางด่วนพิเศษศรีรัช
ส่วนฝั่งทิศตะวันตกเฉียงใต้ เห็นทางด่วนพิเศษศรีรัช, Airport Link มักกะสัน และ ที่ดินมักกะสัน (รฟท.) ที่เป็นพื้นที่สีเขียวขนาดใหญ่กว่า 497 ไร่ ปอดใจกลางเมืองผืนสุดท้ายของกทม. สุดยอดดดด
:: UNIT TYPE ::
โครงการริทึ่ม อโศก มีแบบห้องพักให้เลือกหลายแบบ ดังนี้
:: แปลนห้องพักแบบ STUDIO ::
TYPE A2 : Studio ขนาด 21.50 ตร.ม.
TYPE A3, A7 : Studio ขนาด 21.50 ตร.ม.
TYPE A6 : Studio ขนาด 21.50 ตร.ม.
TYPE A10, A12 : Studio ขนาด 21.50 ตร.ม.
:: แปลนห้องพักแบบ 1 Bedroom ::
TYPE B4 : 1 Bedroom ขนาด 31.00 ตร.ม.
TYPE B5 : 1 Bedroom ขนาด 31.00 ตร.ม.
TYPE B11, B13 : 1 Bedroom ขนาด 31.00 ตร.ม.
:: แปลนห้องพักแบบ 2 Bedrooms ::
TYPE C1 : 1 Bedroom ขนาด 41.50 ตร.ม.
TYPE C8 : 1 Bedroom ขนาด 41.50 ตร.ม.
TYPE C9 : 1 Bedroom ขนาด 41.50 ตร.ม.
:: ห้องตัวอย่าง ::
สำหรับวันนี้เราจะพาไปชมห้องตัวอย่างทั้งหมด 1 แบบ คือ แบบ 2 ห้องนอน + 1 ห้องน้ำ ขนาด 41.50 ตร.ม. โดยทางโครงการขายห้องพักให้แบบ Fully Fitted สิ่งที่ลูกค้าจะได้รับก็คือ เคาน์เตอร์ครัว Starmark + เตาเซรามิค 2 หัว + เครื่องดูดควัน ของ FRANKE สุขภัณฑ์ภายในห้องน้ำของ Kohler พร้อมติดตั้งเครื่องปรับอากาศแบบ Wall Type ของ Daikin ให้ครบทุกยูนิตค่ะ
:: ตัวอย่างประตูห้องพัก :
ประตูห้องไม้สำเร็จรูป บานปิดผิวหนังเทียมสีน้ำตาลเข้ม วงกบไม้เนื้อแข็ง กลอนประตู Digital Door Lock BY Samsung แบบ 2 ระบบ (แบบแตะคีย์การ์ด + กดรหัสผ่าน) มือจับประตูก้านโยกฝังล็อคใช้งานสะดวก
แปลนห้องพักแบบ 2 ห้องนอน ขนาด 41.50 ตร.ม. : ห้องพักแบบ 2 ห้องนอน แบ่งฟังก์ชั่นการใช้งานไว้เป็น 5 ส่วนหลักๆ เปิดประตูห้องพักเข้ามา จะเจอกับมุมครัว ต่อเนื่องไปเป็น Living Area จัดมุมทานอาหาร กับ มุมพักผ่อน ไว้ในพื้นที่เดียวกัน ติดกับมุมพักผ่อน เป็นระเบียงซักล้างแบบหน้ากว้าง ซ้ายมือแขวนคอมเพรสเซอร์แอร์ ปล่อยลมร้อนออกสู่นอกอาคาร ปีกซ้ายมือของห้องพัก เป็นห้องนอนรอง สามารถวางเตียงนอน 5 ฟุต + เฟอร์นิเจอร์มาตรฐานได้ ตรงกลางเป็นห้องน้ำ แบบ Double Access เข้า-ออกได้ 2 ทาง เชื่อมระหว่างส่วนนั่งเล่น และห้องนอนใหญ่
ข้อดีคือ เวลามีแขกมาที่บ้าน ก็สามารถเข้าใช้ห้องน้ำจากส่วนนั่งเล่นได้เลย ไม่ต้องเดินผ่านไปทางห้องนอน รักษาความเป็นส่วนตัวของเจ้าของบ้านได้เป็นอย่างดี ภายในห้องน้ำ ก็แยกฟังก์ชั่นส่วนแห้ง, เคาน์เตอร์อ่างล้างหน้า และส่วนอาบน้ำให้เรียบร้อย ในส่วนของห้องนอน มีประตูไม้กั้นปิดมิดชิด รองรับเตียงนอน 5-6 ฟุตได้สบายๆ มีหน้าต่างกระจกบานใหญ่ เปิดรับวิวภายนอกได้กว้างเลยค่ะ
เปิดประตูห้องพักเข้ามา จะเจอกับมุมครัวเป็นส่วนแรก มองต่อเนื่องไปเป็นมุมพักผ่อน และ ระเบียงซักล้าง พื้นห้องชุดปูไม้ลามิเนตสีอ่อน หนา 8 มม. เดินสบายเท้า ทนต่อรอยขีดข่วนได้ดี ดูแลรักษาได้ง่าย ความสูงพื้น-เพดาน 2.6 เมตร ผนังห้องมาตรฐานฉาบเรียบทาสีพื้น ฝ้าเพดานฉาบเรียบ ไฟภายในห้องแบบดาวน์ไลท์ทรงกลมทั้งหมดค่ะ
ภาพรวมฝั่งขวามือ ประกอบไปด้วยมุมครัว ต่อเนื่องไปเป็นมุมทานอาหาร, มุมนั่งเล่นพักผ่อน และ ระเบียงซักล้าง
ส่วนภาพรวมฝั่งซ้ายมือ ประกอบไปด้วยห้องนอนรอง, ห้องน้ำแบบ Double Access และห้องนอนใหญ่ค่ะ
มองย้อนกลับกลับมาทางฝั่งประตูห้องพัก ให้เห็นมุมครัวกันชัดๆ โดยทางโครงการบิวท์อินเคาน์เตอร์ครัว ขนาด 1.60 x 0.60 เมตร ให้แบบในภาพ ติดกันเป็นพื้นสำหรับวางตู้เย็น ความกว้าง 70 ซม. รองรับตู้เย็นขนาด 7-12 คิว กำลังพอดี
หน้า Top ครัวหินสังเคราะห์สีดำ แข็งแรง ทนต่อน้ำ-ทนความร้อนได้ดี ผนังครัวมี Backsplash แกรนิตโต้กันเปื้อนไว้ให้ เช็ดล้างทำความสะอาดได้ง่าย
ฝังเตาเซรามิค 2 หัว พร้อมเครื่องดูดควัน + ซิงค์ล้างจานสแตนเลสหลุมเดี่ยว ก๊อกน้ำล้างจานทรงสูงของ FRANK
ด้านล่างครัว แบ่งเป็นลิ้นชักเก็บช้อน-ส้อม ตู้เก็บของใช้ ส่วนใต้ซิงค์มีตู้เก็บของบานเปิด บานปิดผิวลามิเนต ฝังถังขยะแบบมีฝาปิดให้เรียบร้อย โดยตู้เก็บของทั้งหมด จะเป็นแบบ Soft Close เพื่อการใช้งานได้ยาวนานขึ้น
ตู้เก็บของด้านบน เป็นแบบบานเปิด บานปิดผิวลามิเนต มีทั้งหมด 4 ตู้ แบ่งชั้นให้วางของครบทุกตู้ สามารถเก็บของใช้ พวกจาน-ชาม-ถ้วย หรือเครื่องปรุง ได้เยอะพอสมควร
ถัดจากมุมครัวเข้ามา จัดเป็นมุมทานอาหาร และ มุมนั่งเล่นพักผ่อน
ภาพรวมมุมทานอาหาร และ มุมนั่งเล่นพักผ่อน บริเวณนี้ทางโครงการติดตั้งเครื่องปรับอากาศ แบบ Wall Type ของ Daikin ขนาด 12,000 BTU ให้ 1 เครื่อง
มุมทานอาหาร วางโต๊ะทานข้าวสี่เหลี่ยม + เก้าอี้มีพนักพิง 4 ตัว ให้ดูเป็นไอเดีย ระยะการใช้งานเลื่อนเก้าอี้เข้า-ออกได้สะดวก ไม่ติดขัดกับเฟอร์นิเจอร์ส่วนอื่นๆ
ส่วนมุมนั่งเล่น สามารถวางโซฟา Love Seat + โต๊ะกลางขนาดเล็กได้ 1 ตัว ระยะใช้งานกำลังพอดี นั่งดูทีวีอยู่ระดับสายตาที่ดี ระยะใช้งานเดินเข้า-ออกไปส่วนอื่นๆของห้องพักได้สะดวกค่ะ
ตรงข้ามกับโซฟา ห้องมาตรฐานจะเป็นผนังเปล่า รองรับตู้วางทีวีขนาดไม่เกิน 1 เมตร ผนังเดินงานระบบไฟฟ้า เต้าเสียบปลั๊กไฟ + ช่องสายเคเบิลทีวีให้พร้อมใช้งาน
ติดกับมุมพักผ่อนเป็นระเบียงซักล้าง กั้นประตูระเบียงกระจกเขียวตัดแสง กรอบอลูมิเนียม Powder Coat สีเทา ยกธรณีสูงประมาณ 15 ซม. กันน้ำฝน และสิ่งสกปรกพัดเข้าสู่ห้องพัก
ระเบียงซักล้างแบบหน้ากว้าง ปูกระเบื้องเซรามิคกันลื่น 30 x 30 ซม. พื้นที่ใช้งาน ขนาด 2.4 x 0.6 เมตร พร้อมติดตั้งก๊อกสนาม และ ท่อน้ำทิ้งให้ครบ
ติดตั้งราวระเบียงเหล็กสีเทา (ทาสีน้ำมัน + กันสนิม) ความสูงประมาณ 1.20 เมตร ฝั่งขวามือกั้นกริลอลูมิเนียมสูงจรดเพดาน แขวนคอมเพรสเซอร์แอร์ 3 เครื่อง ปล่อยลมร้อนออกนอกอาคารค่ะ
มองย้อนกลับเข้ามาในห้องพัก เดี๋ยวเราไปดูรายละเอียดอีกฝั่งของห้องกันต่อ
ดูภาพรวมกันก่อนนะ จากห้องแรกคือห้องนอนรอง ถัดมาเป็นห้องน้ำ และด้านในสุดเป็นห้องนอนใหญ่
เริ่มจากห้องนอนรอง ตรงข้ามกับมุมครัว กั้นประตูไม้สำเร็จรูป ปิดผิวหนังเทียม มือจับก้านโยก กลอนประตูแบบ Double Lock
เปิดประตูเข้ามาด้านใน พื้นที่ใช้งานขนาดกำลังดี สามารถปรับเปลี่ยนให้เป็นห้องทำงาน หรือ ห้องแต่งตัวก็ได้ค่ะ แล้วแต่ความต้องการของผู้อยู่อาศัย
โดยทางโครงการ ตกแต่งเป็นห้องนอนรองให้ดูเป็นไอเดีย สามารถวางเตียงขนาด 5 ฟุต ได้สบายๆ
ซ้ายมือวางตู้เสื้อผ้า + โต๊ะเครื่องแป้ง ความกว้าง 1.2 เมตร
ระยะห่างข้างเตียง-ตู้เสื้อผ้า เหลือประมาณ 70 ซม. หากไม่วางเฟอร์นิเจอร์จะเหลือพื้นที่ใช้งานถึง 1.10 เมตร
ปลายเตียงเป็นผนังเปล่า พร้อมเดินงานระบบไฟฟ้า เต้าเสียบปลั๊กไฟ + ช่องเสียบสายเคเบิลทีวี ให้เรียบร้อย ผนังด้านบนติดตั้งแอร์ Wall Type ของ Daikin ขนาด 9,000 BTU ให้ 1 เครื่องค่ะ
ระยะห่างปลายเตียง-ผนังห้อง กว้างประมาณ 60 ซม. แนะนำให้ติดทีวีแขวนผนัง เพื่อการเดินเข้า-ออกได้สะดวก
ภายในห้องนอนรอง มีหน้าต่างกระจกแบบบาน Fix + บานกระทุ้ง กรอบอลูมิเนียม Powder Coat สีเทา บานใหญ่ให้ 1 ชุด เปิดรับแสงรับลมธรรมชาติได้ดี แถมช่วยให้ภายในห้องดูโปร่งและกว้างขึ้นอีกด้วยค่ะ
ส่วนระยะห่างข้างเตียงฝั่งขวา-หน้าต่างห้อง กว้างประมาณ 60 ซม. หัวเตียงวางโต๊ะข้างได้อีก 1 ตัว
บรรยากาศภาพรวมภายในห้องนอนรองค่ะ
จากหน้าห้องนอนรอง มองออกมาจะเจอกับมุมครัวแบบในภาพ
ถัดจากห้องนอนรองมา เป็นห้องน้ำแบบ Double Access เชื่อมระหว่างพื้นที่นั่งเล่น และ ห้องนอนใหญ่ กั้นประตูกระจกฝ้าบานเลื่อน กรอบอลูมิเนียม Powder Coat สีเทา ความกว้างประมาณ 80 ซม. ยกธรณีแกรนิตโต้สูง 5 ซม.
เปิดประตูเข้ามา เปิดประตูเข้ามา..จะเจอกับห้องน้ำแบบ Powder room ก่อน พื้นห้องน้ำ และผนังห้องน้ำ ปูกระเบื้องแกรนิตโต้ 60 x 60 ซม. มีประตูบานเลื่อนกั้นอีกชั้น ก่อนจะเข้าสู่ห้องอาบน้ำ
โถสุขภัณฑ์ 2 Piece ของ Kohler ฝาเปิด-ปิด และฝารองนั่งเป็นแบบ Soft Close ช่วยลดแรงกระแทกขณะเปิด-ปิด ป้องกันฝาปิดกระแทกทับมือเด็กเล็ก พร้อมติดตั้งสายชำระโครเมียม + ที่ใส่กระดาษทิชชู่ไว้ให้ครบชุดค่ะ
ตรงข้ามโถสุขภัณฑ์ ติดตั้งอ่างล้างมือสี่เหลี่ยมขนาดกะทัดรัด + ก๊อกน้ำโครเมียมก้านโยก
จากห้องน้ำแบบ Powder room ต่อเนื่องมาเป็นส่วนแห้ง และห้องอาบน้ำ ตรงนี้จะมีประตูกระจกฝ้าบานเลื่อนกั้นอีกชั้น เพื่อความเป็นส่วนตัว สามารถใช้งานส่วนห้องน้ำ และห้องอาบน้ำพร้อมกันได้เลย
เปิดประตูบานเลื่อนเข้ามา จะเจอกับส่วนแห้ง และ ส่วนอาบน้ำแบบนี้
ซ้ายมือติดตั้งอ่างล้างหน้าทรงกลม ฝังก๊อกน้ำก้านโยก หน้าอ่างวางของใช้ได้เล็กน้อย ผนังด้านหลังอ่างติดตั้งกระจกเงาบานใหญ่ + เต้าเสียบปลั๊กไฟแบบกันน้ำเอาไว้ให้ด้วย
ถัดเข้าไปด้านในสุด เป็นส่วนอาบน้ำ ทางโครงการกั้นฉากอาบน้ำกระจกนิรภัย มือจับโครเมียมตัว U แขวนผ้าเช็ดตัวได้ ยกธรณีสูง 5 ซม. เพื่อกั้นระหว่างพื้นส่วนอาบน้ำ และส่วนแห้ง
ฝักบัวโครเมียมแบบ Rain Shower + Hand Shower พร้อมราวปรับระดับ ผนังมีชั้นวางอุปกรณ์อาบน้ำ และ ที่วางสบู่ พร้อมเดินงานระบบรองรับการติดตั้งเครื่องทำอุ่นไว้ให้ พร้อมใช้งานได้เลย
พื้นส่วนอาบน้ำปูกระเบื้องเซรามิคกันลื่น 60×60 ซม. ส่วนพื้นที่ใช้งาน ขนาด 1.10 x 1.20 เมตร ยืนอาบน้ำได้สบายๆ ไม่อึดอัด
จากส่วนอาบน้ำมองย้อนกลับออกมาค่ะ
จากห้องน้ำไปต่อกันที่ห้องนอนใหญ่ กั้นประตูไม้สำเร็จรูป วงกบประตูไม้เนื้อแข็ง ปิดผิวหนังเทียมสีน้ำตาลเช่นเดียวกัน
กลอนประตูห้องพัก ทั้งห้องนอนรอง และห้องนอนใหญ่ เป็นแบบ Double Lock มือจับประตูก้านโยกใช้งานง่าย
เปิดประตูห้องนอนเข้ามา จะเจอกับเตียงนอน และมุมทำงาน ความสูงเพดาน 2.6 เมตร ปูพื้นลามิเนต ผนังฉาบเรียบทาสีพื้น ไฟดาวน์ไลท์ทรงกลมเช่นเดียวกัน
ขวามือวางเตียงนอนขนาด 5 ฟุต สามารถเพิ่มขนาดเป็น 6 ฟุตได้ค่ะ
ข้างเตียงฝั่งซ้าย ระหว่างเตียงนอน กับประตูห้องน้ำ เหลือพื้นที่กว้าง ประมาณ 90 ซม. เดินเข้า-ออกได้สะดวก สามารถจัดวางโต๊ะทำงานขนาดเล็ก + เก้าอี้มีพนักพิงพิงได้อีก 1 ตัว หรือจะเปลี่ยนเป็นโต๊ะข้างเล็กๆ ก็ได้เหมือนกัน
ปลายเตียงทางโครงการวางตู้วางทีวี ความกว้าง 60 ซม. ติดกันเป็นตู้เสื้อผ้าแบบบานเปิด ความกว้าง 90 ซม. ให้ดูเป็นแนวทางค่ะ ผนังด้านหลังทีวี เดินงานระบบไฟฟ้า + ช่องเสียบสายเคเบิลให้พร้อมใช้งาน
ระยะห่างปลายเตียง-เฟอร์นิเจอร์ กว้างประมาณ 1 เมตร ยืนเลือกเสื้อผ้า, ยืนแต่งตัว รวมถึงเดินเข้า-ออกไปส่วนอื่นๆ ได้พอสะดวกค่ะ
ด้านในสุดมีหน้าต่างกระจกเขียวตัดแสงบานใหญ่ กรอบอลูมิเนียม Powder Coat สีเทา แบ่งเป็นแบบบาน Fix และ บานกระทุ้ง เปิดรับแสงในช่วงตอนกลางวันได้ดี นอนดูวิวกลางคืนได้สบายๆ รวมถึงจะเปิดตัวบานกระทุ้ง เพื่อระบายอากาศก็ได้เหมือนกัน
มองย้อนกลับมา ข้างๆประตูห้องน้ำ ติดตั้งเครื่องปรับอากาศแบบ Wall Type ขนาด 12,000 BTU ให้ 1 เครื่อง
:: ราคา (พ.ย.59) ::
:: บทสรุปโครงการ ::
♦ ทำเลที่ตั้งโครงการ : ริทึ่ม อโศก ตั้งอยู่ติดถนนอโศก-ดินแดง เป็นโครงการโซนอโศก-พระราม 9 ซึ่งเป็นทำเลบน New CBD แห่งใหม่ของกทม. จุดศูนย์กลางของสำนักงานขนาดใหญ่หลายแห่ง รวมไปถึงโครงการใหม่ อย่าง เดอะ แกรนด์ พระราม 9 จาก G Land ทั้งยังมีโครงการ The Super Tower อาคารที่สูงที่สุดในเอเซีย ทำให้ในอนาคตจะมีมนุษย์เงินเดือน ตั้งแต่ระดับทั่วไป จนถึงระดับผู้บริหาร เข้ามาทำงานในโซนนี้เป็นจำนวนมาก
ทำให้ทำเลโซนนี้ ถือได้ว่าเป็นทำเลทอง ที่น่าจับตามอง ไม่ว่าจะซื้อไว้เพื่ออยู่อาศัย ใกล้ที่ทำงาน หรือ ซื้อไว้เพื่อลงทุน ปล่อยเช่า ก็น่าสนใจ นอกจากนั้น ยังใกล้สถานที่สำคัญ และ แหล่งอำนวยความสะดวกเป็นจำนวนมาก ไม่ว่าจะเป็น เซ็นทรัล พระราม 9, ฟอร์จูน, เอสพลานาด รัชดา, ตลาดนัดรถไฟ, ตลาดห้วยขวาง รวมถึงคอมมูนิตี้มอลล์แห่งใหม่อย่าง The Street รัชดา ที่มีซุปเปอร์มาร์เก็ต-ร้านอาหารเปิด 24 ชั่วโมง
♦ การเดินทางโดยรถส่วนตัว : ตัวโครงการตั้งอยู่บนถนนอโศก-ดินแดง ใกล้แยกพระราม 9 เดินทางได้สะดวก เชื่อมต่อสู่ถนนสายสำคัญได้หลากหลาย หากต้องการเข้าเมือง อาจต้องกลับรถไกลหน่อย แต่ก็สามารถเชื่อมสู่แยกอโศก-มนตรี ออกไปเชื่อมกับถนนเส้นสุขุมวิท, เอกมัย-ทองหล่อ ได้เลย ทั้งยังตั้งอยู่ใกล้กับทางด่วนพิเศษศรีรัช หากต้องการเข้าเมืองเร็วๆ หรือ ออกไปนอกเมืองแบบไม่อารมณ์เสีย แนะนำให้ใช้เป็นทางด่วนเลยค่ะ
แต่…ถึงแม้จะเป็นถนนที่ไปได้หลายเส้นทางก็จริง เรื่องการจราจรบนทำเลนี้ ถือว่าค่อนข้างหนาแน่น ในช่วงเวลาเร่งด่วนอย่างช่วงเช้า ไปทำงาน ไปเรียน และช่วงเย็นที่เลิกงาน ถนนเส้นนี้รถจะติดยาวไปเลยค่ะ ถ้าอยากหลีกเลี่ยงรถติด ขอแนะนำให้ใช้เป็นรถไฟฟ้า น่าจะเป็นทางเลือกที่ดีที่สุด
♦ การเดินทางโดยรถสาธารณะ : เป็นการเดินทางที่สะดวกที่สุดค่ะ จากโครงการใกล้กับ MRT พระราม 9 เพียง 300 เมตร เดินเท้าจากหน้าโครงการไปสถานีรถไฟฟ้าได้สบายๆ หากต้องการเปลี่ยนการเดินทางจาก MRT ไปเป็น BTS ก็ง่าย โดยจะมีจุด Interchange ที่ สถานีสุขุมวิท และสถานีสีลม นอกจากรถไฟฟ้าใต้ดินแล้ว ยังมี Airport Link มักกะสัน ระยะทางไปประมาณ 400 เมตร เดินเท้า 1-2 นาที ก็ถึงแล้วค่ะ
โดยหน้าโครงการ มีวินมอเตอร์ไซค์ให้บริการ ราคาเริ่มต้นที่ 20 บาท นั่งไป MRT พระราม 9, MRT เพชรบุรี หรือ Airport Link มักกะสัน ราคา 20 บาท เท่ากันทั้งหมด หากต้องการใช้บริการ Taxi ก็สามารถเรียกได้จากหน้าโครงการเลย มีผ่านตลอดทั้งวัน ส่วนใครที่ต้องการใช้ระบบขนส่งรถสาธารณะ มีป้ายรถเมล์อยู่ไม่ไกลจากโครงการ ระยะทางเดินไปประมาณ 220 เมตร มีรถเมล์ให้เลือกใช้บริการหลายสาย และครอบคลุมเกือบทุกเส้นทางด้วยค่ะ
♦ การออกแบบโครงการ,ที่ดิน,ห้องพัก : ริทึ่ม อโศก ตั้งอยู่บนพื้นที่ 1-2-86 ไร่ เป็นคอนโด High Rise สูง 37 ชั้น อาคารเป็นรูปตัว I ออกแบบภายใต้ Concept Where The Wind Blows..And Life Flows สถาปัตยกรรมแนวเปิดรับลมบริสุทธิ์ ให้พัดผ่านจากทิศเหนือ-ใต้ ไหลเวียนสู่อาการ สอดประสานการตกแต่งภายนอกที่สะท้อนถึงสายลม มีห้องพักอาศัยทั้งหมด 385 ยูนิต สำหรับโครงการนี้ เป็น Project แรก ที่ทาง AP ลดขนาดห้องพักแบรนด์ริทึ่มลงมา โดยขนาดเริ่มต้น เป็นแบบ Studio 21.50 ตร.ม. ถัดขึ้นมาเป็นแบบ 1 Bed ขนาด 31 ตร.ม. และ แบบ 2 Bed ขนาด 41.5 ตร.ม.
โดยห้องพักที่เราพาไปชม เป็นแบบ 2 Bed ขนาด 41.5 ตร.ม. คือฟังดูจากขนาดแล้วอาจจะคิดว่าเล็ก แต่ในความเป็นจริง ทาง AP จัดฟังก์ชั่นการใช้งานได้อย่างลงตัว เป็นสัดส่วนดีเลยหละ จะอยู่อาศัยแบบคนโสด หรือ แบบครอบครัวเริ่มต้นก็ได้สบายๆ โครงการขายห้องพักให้แบบ Fully Fitted โดยจะได้เป็นห้องเปล่า พร้อมเคาน์เตอร์ครัว และ เครื่องใช้ไฟฟ้า สุขภัณฑ์ภายในห้องน้ำเกรดพรีเมียม ของ Cristina และ Kohler พร้อมฉากกั้นอาบน้ำแบบกระจก Tempered ผนังห้อง+ฝ้าฉาบเรียบทาสีขาว ไฟในห้องแบบดาวน์ไลท์ และเครื่องปรับอากาศแบบ Wall Type ครบทุกยูนิตค่ะ
♦ สิ่งอำนวยความสะดวก : ได้มาครบครัน มีจุดเด่นด้วย Lobby แบบ Double Volume พร้อม Triple Facilities ที่ชั้น 7,8,9 โดยแบ่งเป็นสระว่ายน้ำ ระบบเกลือ ขนาด 7×21 เมตร ที่ชั้น 7 ห้องฟิตเนส ที่ชั้น 8 และ สวนพักผ่อน ที่ชั้น 9 ส่วนชั้น 37 หรือ ชั้นดาดฟ้า จัดเป็น Roof Top Garden ขนาดใหญ่ มี Jogging Track ออกกำลังกายได้ แม้อยู่ในเมือง พร้อมพื้นที่นั่งเล่นพักผ่อน ขึ้นไปยืนชมวิวเมืองกว้างๆ ได้ด้วย
ห้องพักอาศัย เริ่มต้นที่ชั้น 7 แต่ห้องพักแบบเต็ม Floor จะอยู่ที่ชั้น 10-36 ค่ะ อัตราห้องพักต่อชั้นไม่หนาแน่น ได้ลิฟท์โดยสารแบบล็อคชั้น อาคารละ 2 ตัว พร้อมลิฟท์บริการ 1 ตัว ที่จอดรถชั้น 1-6 และ 1 ชั้นใต้ดิน คิดเป็น 46% จอดได้ประมาณ 178 คัน รวมจอดซ้อนคัน ระบบรักษาความปลอดภัยจัดเต็ม เข้า-ออกโครงการ และ ตัวอาคาร ด้วยระบบ Access Card Control ประตูห้องพักระบบ Digital Door Lock พร้อม รปภ. ดูแลรักษาความปลอดภัยตลอด 24 ชม.
:: คะแนน ::
| ทำเลที่ตั้งโครงการ | 8.0 | คอนโด High Rise สร้างเสร็จพร้อมเข้าอยู่ บนทำเล New CBD ติดถนนอโศก-ดินแดง ฝั่งมุ่งหน้าไปแยกพระราม 9 ใกล้ทางพิเศษศรีรัช, MRT พระราม 9 และ Airport Link มักกะสัน ใกล้อาคารสำนักงานขนาดใหญ่หลายแห่ง, ใกล้ฟอร์จูน และ เซ็นทรัล พระราม 9 ระยะเดินได้สบายๆ |
| การเดินทาง ใช้รถ | 7.5 | เดินทางได้สะดวก แต่รถติดช่วงเร่งด่วน ใกล้ทางด่วน เข้า-ออก และ เชื่อมต่อถนนสายสำคัญได้หลายเส้นทาง |
| การเดินทาง ไม่ใช้รถ | 8.5 | ใกล้ MRT พระราม 9, Airport Link มักกะสัน ระยะทางเพียง 300 เมตร เดินเท้าไปได้สะดวก มีวินมอเตอร์ไซค์ และ Taxi มีผ่านหน้าโครงการตลอดทั้งวัน |
| ห้องและวัสดุ | 7.8 | แปลนห้องแบ่งได้เป็นสัดส่วนลงตัว ขายแบบ Fully Fitted วัสดุ และเฟอร์นิเจอร์ที่ได้คุณภาพมาตรฐานเหมาะสมกับราคา |
| สิ่งอำนวยความสะดวก | 8.0 | มีให้ครบครัน และออกแบบได้น่าใช้งาน |
| ความคุ้มค่ากับราคา | 8.0 | ราคาเริ่มต้น ประมาณ 147,000บาท/ ตร.ม. ได้ทำเลอโศก-ดินแดง ใกล้รถไฟฟ้า, ใกล้ทางด่วน ใกล้ห้าง ส่วนที่มีมูลค่าสูงของโครงการคือทำเลที่ดินย่านนี้ที่เริ่มหายาก และมีความอุดมสมบูรณ์ รายล้อมด้วยสิ่งอำนวยความสะดวกต่างๆครบครัน เหมาะสำหรับคนทำงาน หรือ ซื้อไว้ลงทุน ปล่อยเช่า |
| คะแนนรวมเฉลี่ย | 7.96 | ดี |
หากต้องการเลือกคอนโดเพื่
โดย BC เป็นที่ปรึกษาด้านการลงทุน ทั้งการแนะนำเรื่องซื้อ-เช่า และรับฝากขาย-ปล่อยเช่าอสังหาริ
โดยเฉพาะพื้นที่ใจกลางธุรกิจ ซึ่งปัจจุบันมีมูลค่ารวมมากกว่า 20,000 ล้านบาท หากลูกค้าใช้บริการกับทาง BC มั่นใจได้ว่า จะได้ทุกสิ่งตามที่ลูกค้าต้
ลงทะเบียนรับโปรโมชั่นพิเศษ คลิกที่นี่
9 ยูนิต พิเศษ พร้อมตกแต่งเฟอร์ฯ ครบ*
คอนโดพร้อมอยู่ RHYTHM อโศก 1 และ RHYTHM อโศก 2 บนทำเล New CBD หรือศูนย์กลางย่านธุรกิจแห่งใหม่ของกรุงเทพฯ เดินทางสะดวกสบาย ไม่ว่าจะเป็นการเดินทางโดยรถยนต์ หรือรถไฟฟ้า เพียง 300 ม. (สำหรับ RHYTHM อโศก 1 – ฝั่งขาออกเมือง) และ 450 ม. (สำหรับ RHYTHM อโศก 2 – ฝั่งขาเข้าเมือง) ถึง MRT พระราม 9 มาพร้อมกับโปรโมชั่นพิเศษส่งท้ายปี…
โอนวันนี้ ฟรีทุกค่าใช้จ่าย*
เริ่ม 3.15 ล้าน*
เงื่อนไขการรรับโปรโมชั่น
– เฉพาะผู้ที่จองยูนิตในชั้น 20-26 ของโครงการ ภายในวันที่ 1-30 พ.ย. 2559 และดำเนินการโอนกรรมสิทธิ์ห้องชุดภายใน 30 พ.ย. 2559
– เฉพาะผู้ที่จองยูนิตในชั้น 27-29 ของโครงการ ภายในวันที่ 1 พ.ย. – 25 ธ.ค. 2559 และดำเนินการโอนกรรมสิทธิ์ห้องชุดภายใน 29 ธ.ค. 2559
– ห้อง A10, A12 ขนาด 21.5 ตร.ม. ได้แก่ SOFA 2 SEAT, COFFEE TABLE, TV CABINET, BED 5’ + HEADBOARD, WARDROBE SLIDE, NIGHT TABLE, LIVING CABINET
– ห้อง B11, B13 ขนาด 31 ตร.ม. ได้แก่ SOFA 2 SEAT, TV CABINET (LIVING AREA), TV CABINET (BEDROOM), DINING TABLE, DINING CHAIRx2, DRESSING TABLE+MIRROR, DRESSING CHAIR, BED 5’ + HEADBOARD, WARDROBE SLIDE, NIGHT TABLE (LIVING AREA), NIGHT TABLE (BEDROOM), SIDE BOARD
สอบถามรายละเอียดเพิ่มเติมได้ที่
TEL : 02-661-8999
WEBSITE : http://www.bkkcitismart.com/
หากเพื่อนๆเห็นว่ารีวิวนี้มีประโยชน์ ช่วยกด Like เพื่อเป็นกำลังใจให้ทีมงาน ขอบคุณค่ะ
และมีความคิดเห็นหรือข้อมูลเพิ่มเติมเกี่ยวกับตัวโครงการ สามารถ Comment ได้ที่ด้านล่างของรีวิวค่ะ
แสดงความคิดเห็น เกี่ยวกับ " รีวิว คอนโด RHYTHM อโศก ใกล้ MRT พระราม 9 และ Airport Link มักกะสัน "