
คอนโด ริทึ่ม พหล-อารีย์ Rhythm Phahol-Aree
Rhythm พหล-อารีย์ จาก AP ตั้งอยู่บนถนนพหลโยธิน แขวงสามเสนใน เขตพญาไท กทม. ใกล้รถไฟฟ้า BTS อารีย์, บิ๊กซี สะพานควาย, Villa Market, JJ Mall, สวนจตุจักร และ รพ.เปาโล พหลโยธิน
ริทึ่ม พหล-อารีย์ เป็นคอนโด High Rise 53 ชั้น 1 อาคาร พื้นที่โครงการขนาด 5-2-14.50 ไร่ ห้องพักอาศัย 809 ยูนิต มีห้องพักให้เลือกแบบ 1 ห้องนอน, 2 ห้องนอน ขนาดเริ่มต้น 45.00-65.70 ตร.ม. สร้างเสร็จพร้อมอยู่ปี 2556
สิ่งอำนวยความสะดวกในโครงการครบครัน อาทิ โถงต้อนรับ, ห้องจดหมาย, สระว่ายน้ำ, ฟิตเนส, สวนพักผ่อน, ลิฟท์โดยสาร, ที่จอดรถ 470 คัน, Access Card Control และ ระบบรักษาความปลอดภัยตลอด 24 ชม. ราคาเริ่มต้น 3.6 ล้านบาท*
| ชื่อโครงการ | ริทึ่ม พหล-อารีย์ Rhythm Phahol-Aree |
| เจ้าของโครงการ | เอพี (ไทยแลนด์) |
| ลักษณะห้องและขนาดห้อง | 1 Bed , 2 Bed ขนาดเริ่มต้น 45.00-65.70 ตร.ม. |
| เนื้อที่ทั้งหมด | 5 ไร่ 2 งาน 14.50 ตร.ว. |
| จำนวนตึก | 1 อาคาร |
| จำนวนชั้น | 53 ชั้น |
| จำนวนห้อง | 809 ยูนิต |
| ที่จอดรถทั้งหมด | 470 คัน |
| โซน | พญาไท,ราชเทวี,เพชรบุรีตัดใหม่,พระราม 6 |
| ขนส่งสาธารณะ | รถไฟฟ้า BTS สถานีอารีย์ |
| รถโดยสารที่ผ่าน | n/a |
| ที่ตั้ง | ถนนพหลโยธิน แขวงสามแสนใน เขตพญาไท กทม. |
| กำหนดการ | n/a |
| ปีที่สร้างเสร็จ | n/a |
| ราคา | เริ่มต้น 3,600,000 ( ณ วันที่ 4/ธ.ค./55) |
| ราคาเฉลี่ยต่อ ตร.ม | เริ่มต้น 80,000 |
| สถานที่สำคัญใกล้เคียง | 1.รถไฟฟ้า BTS สถานีอารีย์ 2.อนุเสวรีย์ชัยสมรภูมิ 3.บิกซี สะพานควาย 4.ตลาดนัดสวนจตุจักร 5.เซ็นทรัลบางนา |
| สิ่งอำนวยความสะดวก | -สระว่ายน้ำ -ฟิตเนส -ซ่าน่า -รปภ.,กล้องวงจรปิดโครงการ -ประตู คีย์การด์ -สวนหย่อม |
| จุดเด่นของโครงการ | พบปรากฎการณ์ใหม่ของคอนโดมิเนียม ล้ำยุค ที่ไม่มีใครเหมือน ตั้งแต่ High Ceiling ที่สูง 7 เมตร และ High Sky Facilties บนชั้นสูงสุด |
ที่ตั้งโครงการ
ถนนพหลโยธิน แขวงสามแสนใน เขตพญาไท กทม.
การเดินทาง

คลิกที่รูป เพื่อดูแผนที่ขนาดใหญ่
การเดินทาง ผมเริ่มจาก > สถานี BTS สนามเป้า > ถนนพหลโยธิน > คอนโด ริทึ่ม พหล-อารีย์ * เลยซอยพหลโยธิน 13 ไป ไม่เกิน 100 เมตร
ผมเรื่มจาก สถานี BTS สนามเป้า
ผ่านสถานีรถไฟฟ้า BTS อารีย์ ให้เราขับตรงไปครับ
ผ่านซอยพหลโยธิน 11 ตอนนี้ให้เราเตรียมชิดซ้ายไว้ครับ เพราะถ้าถึงซอยพหลโยธิน 13 และขับเลยไปไม่เกิน 100 เมตร เราจะเจอ คอนโด ริทึ่ม พหล-อารีย์ อยู่ทางซ้ายมือเราครับ
คอนโด ริทึ่ม พหล-อารีย์ จะอยู่ทางซ้ายมือเรานะครับ
ทางเข้า คอนโด ริทึ่ม พหล-อารีย์ ครับ
บริเวณด้านหน้า คอนโด ริทึ่ม พหล-อารีย์
บริเวณทางเข้าคอนโด ริทึ่ม พหล-อารีย์ อีกเช่นกันครับ
คลิกที่รูป เพื่อดูแผนที่ขนาดใหญ่
สถานที่สำคัญ
– BTS สะพานควาย
– BTS อารีย์
– บิ๊กซี สะพานควาย
– เซ็นเตอร์วัน
– เซ็นทรัลลาดพร้าว
– ยูเนี่ยน มอลล์
– ตลาด อ.ต.ก.
– ตลาดนัดจตุจักร
– โรงพยาบาลพญาไท 2 อินเตอร์เนชันแนล
– โรงพยาบาลราชวิถี
– โรงพยาบาลเปาโล เมมโมเรียล
– โรงพยาบาลทหารผ่านศึก
– โรงพยาบาลประสานมิตร
– โรงพยาบาลวิชัยยุทธ
– โรงเรียนสามแสนวิทยาลัย
– สถานีขนส่งหมอชิต 2
– ธนาคารออมสิน สำนักงานใหญ่




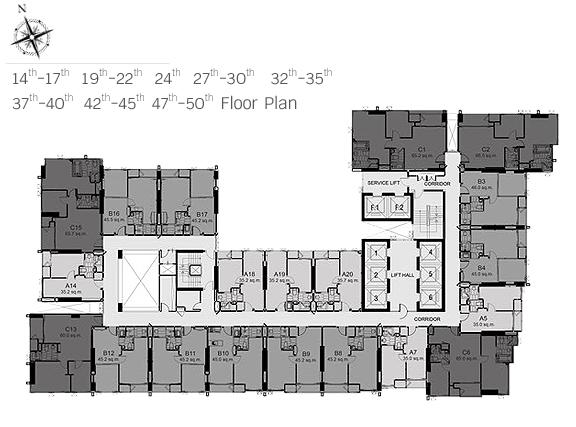
Floor Plan : 6th-10th Floor / 11th Floor / 12th Floor / 12th-a Floor


One Bedroom : Type A1 / Type A5
One Bedroom : Type A7 / Type A14 / Type A18 / Type A19 / Type A20




One Bedroom : Type B4 / Type B8 / Type B9 / Type B10




One Bedroom : Type B11 / Type B12 / Type B16 / Type B17




Two Bedroom : Type C2 / Type C6 / Type C13 / Type C15
สนใจติดต่อรายละเอียดเพิ่มเติมได้ที่
โทรศัพท์ : 02-610-3333
Website : http://www.apthai.com/RHYTHM/RHYTHM-Phahon-Ari/detail/
แสดงความคิดเห็น เกี่ยวกับ " คอนโด Rhythm พหล-อารีย์ ใกล้รถไฟฟ้า BTS อารีย์ "