รีวิว คอนโด เดอะไลน์ พหลฯ – ประดิพัทธ์ THE LINE PAHON – PRADIPAT
สวัสดีผู้อ่านชาว Homenayoo ทุกท่านค่ะ วันนี้จะพาไปชมโครงการ The Line พหลฯ-ประดิพัทธ์ จาก แสนสิริ ร่วมกับ BTS
เป็นคอนโด High Rise 46 ชั้น 1 อาคาร และอาคารส่วนกลางสูง 2 ชั้น มีทั้งหมด 981 ยูนิต ใกล้รถไฟฟ้า BTS สะพานควาย ในระยะประมาณ 550 เมตร
เดินทางสะดวก ติดถนนใหญ่ ถนนพหลโยธิน ใกล้ห้างสรรพสินค้า และ สิ่งอำนวยความสะดวกมากมาย
โครงการขายห้องให้แบบ Fully Furnished ในราคาเริ่มต้น 3.99 ล้าน เพียบพร้อมด้วย Facilities ครบครัน ตามไปดูรายละเอียดกันได้เลยค่าา
| ชื่อโครงการ | เดอะ ไลน์ พหลฯ-ประดิพัทธ์ THE LINE Phahol-Pradipat |
| เจ้าของโครงการ |
|
| เนื้อที่ทั้งหมด | ประมาณ 5 ไร่ |
| จำนวนตึก | อาคารพักอาศัย 1 อาคาร, อาคาร Club House สูง 2 ชั้น 1 อาคาร |
| จำนวนชั้น | 46 ชั้น |
| จำนวนห้อง | 981 + 1 ยูนิตร้านค้า |
| ลักษณะห้องและขนาดห้อง |
|
| ที่จอดรถทั้งหมด | 50% รวมจอดซ้อนคัน |
| จำนวนลิฟท์ | 6 ตัว |
| โซน | ประดิพัทธ์, สะพานควาย |
| ขนส่งสาธารณะ |
|
| รถโดยสารที่ผ่าน | รถเมล์สาย 3, 9, 9ร, 97, 117 |
| ที่ตั้ง | ซอยประดิพัทธ์ 21 แขวงสามเสนใน เขตพญาไท กทม. |
| กำหนดการ | เริ่มก่อสร้าง ม.ค. 2560 (เปิดจอง 19 – 20 พ.ย. 59) |
| ปีที่สร้างเสร็จ | ม.ค. 2563 |
| ราคา | เริ่มต้น 3.99 ล้านบาท |
| ราคาเฉลี่ยต่อ ตร.ม | ประมาณ 155,000 บาท/ ตร.ม. |
| ค่าส่วนกลางและกองทุน |
|
| สถานที่สำคัญใกล้เคียง |
|
| สิ่งอำนวยความสะดวก |
|
| จุดเด่นของโครงการ | The Line พหลฯ-ประดิพัทธ์ คอนโดใหม่ อบอุ่นเหมือนอยู่บ้าน บนทำเลศักยภาพ เดินทางสะดวกสบาย ใกล้ทางด่วน และ รถไฟฟ้า BTS สะพานควาย 550 เมตร เพียง 1 สถานี ถึง MRT จตุจักร ให้คุณเข้าถึงใจกลางเมืองได้รวดเร็ว พร้อมพื้นที่ส่วนกลางขนาดใหญ่ ครบ จัดเต็ม กว่าใคร ฟรี! iPhone 7* เริ่ม 3.99 ล้านบาท* |
ที่ตั้งโครงการ
ซอยประดิพัทธ์ 21 แขวงสามเสนใน เขตพญาไท กทม.
พิกัด : 13.790541, 100.546102
โครงการ The Line พหลฯ – ประดิพัทธ์ ตั้งอยู่บนถนนประดิพัทธ์ฝั่งมุ่งหน้าแยกสะพานควายระหว่างซอย 19-21 สภาพแวดล้อมโดยรวมคึกคักเพราะเป็นย่านชุมชนเก่า จุดเด่นของโครงการนอกจากจะตั้งอยู่ติดถนนใหญ่แล้วยังสร้างขึ้นมาตามรถไฟฟ้าสะพานควาย โดยมีระยะทางจากตัวสถานีถึงโครงการประมาณ 550 เมตร ซึ่งเกินระยะเดินสบายไปหน่อยแต่ก็ยังพอเดินได้เพราะตลอดทางจะเป็นฟุตบาทที่เดินค่อนข้างสะดวก แต่อาจจะมีคนเดินเยอะในช่วงเช้าและเย็น ประกอบกับริมฟุตบาทจะมีร้านอาหารมาตั้งขายเป็นวงกว้างจึงอาจจะเร่งฝีเท้าได้ไม่เท่าไหร่นะคะ
การเดินทางด้วยรถสาธารณะ เป็นการเดินทางที่สะดวกที่สุดสำหรับโครงการนี้ และแน่นอนเส้นทางที่สะดวกที่สุดคือการเดินทางด้วยรถไฟฟ้า สถานีที่ใกล้ที่สุดคือ BTS สะพานควาย มีระยะห่างจากโครงการประมาณ 550 เมตร เกินระยะเดินสบายไปหน่อยแต่ก็ยังเดินได้อยู่ และสามารถนั่งไปเปลี่ยนเป็นรถไฟฟ้าใต้ดินได้ที่ BTS สถานีหมอชิต 1 สถานีจาก BTS สะพานควาย
นอกจาก BTS แล้วก็สามารถเรียก Taxi ที่หน้าโครงการได้ มีวิ่งผ่านไปมาตลอดค่ะ หรือถ้าจะไปใกล้ๆ ก็มีคิวพี่วินอยู่บริเวณจ้นซอยประดิพัทธ์ 21 (เดินจากโครงการไปไม่ถึง 100 เมตร) นอกจากนั้นยังมีป้ายรถเมล์ที่อยู่ห่างจากโครงการไปประมาณ 65 เมตร โดยจะมีรถเมล์สาย 3, 9, 9ร, 97, 117 ค่ะ
การเดินทางด้วยรถยนต์ส่วนตัว ก็สะดวกค่ะ เนื่องจากตัวโครงการเกาะอยู่กับถนนประดิพัทธ์ ที่สามารถใช้วิ่งยาวไปเชื่อมกับถนนทหารและถนนสามเสน สามารถใช้ลัดไปถนนราชวิถีเพื่อไปฝั่งธนฯได้โดยไม่ต้องรถติดแถวสวนสัตว์ดุสิตหรืออนุสาวรีย์ชัยสมรภูมิค่ะ นอกจากนั้นถนนประดิพัทธ์จะยังใช้ไปถนนพระราม 6 , ถนนเทอดดำริ, ถนนพระราม 5 ที่สามารถใช้เชื่อมไปถนนประชาชื่นใช้วิ่งยาวผ่านรัชดาภิเษกไปจนถึงแจ้งวัฒนะ หลักสี่ได้ค่ะ และถ้าดูจาก Map แล้วจะเห็นว่ามีถนนเส้นหลักๆอีก 2 เส้นที่สามารถใช้เดินทางได้คือ
ส่วนทางด่วนรอบๆ มีให้เลือกใช้ใกล้ๆ 2 เส้น คือทางด่วนดอนเมืองโทลเวย์ และทางด่วนศรีรัช โดยจุดขึ้นทางด่วนที่ใกล้โครงการที่สุดจะเป็นจุดขึ้นทางด่วนศรีรัชฝั่งขึ้นไปทางทิศเหนือ สามารถใช้วิ่งไปบางเขน, ปากเกร็ดได้ โดยจุดขึ้นทางด่วนนี้จะมีระยะทางจากโครงการประมาณ 2.6 กม. ใช้เวลาประมาณ 10 นาทีค่ะ
และจุดขึ้นทางด่วนศรีรัชฝั่งมุ่งหน้าลงทิศใต้ที่ใช้วิ่งเข้าผ่านเมืองช่วงอนุสาวรีย์ชัยสมรภูมิ ลงไปถึงเจริญราษฎร์และใช้เชื่อมกับทางด่วนเฉลิมมหานครใช้วิ่งไปพระราม 2 , พระโขนงได้ โดยจุดขึ้นทางด่วนนี้จะมีระยะทางจากโครงการประมาณ 2.3 กม. ใช้เวลาเดินทางประมาณ 8 – 15 นาทีค่ะ
ส่วนจุดขึ้นทางด่วนดอนเมืองโทล์เวย์ฝั่งลงทิศใต้ที่ใช้วิ่งลงมาเข้าราชเทวีได้ จะมีระยะทางจากโครงการประมาณ 4 กม. ใช้เวลาเดินทางประมาณ 10 – 20 นาทีค่ะ
จุดขึ้นทางด่วนดอนเมืองโทลเวย์ฝั่งมุ่งหน้าขึ้นทางเหนือ สามารถใช้วิ่งไปดอนเมือง, รังสิตได้ โดยจุดขึ้นทางด่วนนี้จะมีระยะทางจากโครงการประมาณ 3.3 กม. ใช้เวลาเดินทางประมาณ 10 – 15 นาที
คาแร็คเตอร์ที่เด่นๆของย่านนี้ที่เราจะเห็นว่าค่อนข้างแปลกกว่าทำเลในเมืองย่านอื่นๆ คือแถวนี้จะเป็นถิ่นของร้านเก่าๆ โดยเฉพาะร้านพระเครื่องจะไม่ได้มีเฉพาะพระเครื่องเท่านั้น แต่พวกของเก่าอย่างเหรียญ นิตยสารเก่าๆ หรือเครื่องประดับเก่าๆ ก็มีมาวางขายเป็นในลักษณะของการตั้งร้านริมฟุตบาท มีทุกวันตั้งแต่เช้าถึงเย็น
ความอุดมสมบูรณ์โดยรอบโครงการค่อนข้างสูง หน้าโครงการจะมีร้านอาหารให้เลือกเยอะทั้งในเวลากลางวันและกลางคือ โดยบริเวณหน้าโครงการที่เป็นเส้นนประดิพัทธ์ช่วงแยกสะพานควายเป็นอีกหนึ่งแหล่งความอุดมสมบูรณ์ที่มีชื่อเสียงแบบเงียบๆมานาน จะมีร้านอาหารทั้งคาวหวานที่เปิดตั้งแต่ช่วงเย็นจนถึงดึกค่ะ นอกจากนั้นพวก Hyper Market ตัวหลักใหญ่ๆจะมี Big C รองลงมาเป็น Tesco Lotus Express (เปิด 24 ชม.) มีร้านค้า ร้านอาหารย่อยๆอยู่ทั่วไป ทั้งที่เปิดเป็นร้านแบบจริงจังและร้านข้างทางถือว่ามีความอุดมสมบูรณ์สูงเลยทีเดียวค่ะ นอกจากนั้นบนถน
ถัดมาอีกหน่อยจะเป็นโซนใกล้เคียงอย่างอารีย์ซึ่งเป็นที่รู้กันว่ามีร้านคาเฟ่น่ารักๆเพียบ และยังมี Villa Aree เป็น Community Mall ที่มีร้านอาหารชื่อดังด้านอยู่เยอะเลยค่ะ เช่น After You, กับข้าวกับปลา, Starbucks เป็นต้น นอกจากนั้นยังมีซอย Aqua ที่เพิ่งเปิดมาได้ไม่นานมานี้ เป็นซอยสั้นๆ แต่อัดแน่นไปด้วยร้านอาหารดีๆหลายร้าน และยังมีร้านเช่าชุดราตรี และ Fitness ด้วยค่ะ
การเดินทาง
การเดินทางด้วยรถยนต์วันนี้เราจะเริ่มต้นบนถนนพหลโยธินฝั่งมุ่งหน้าจตุจักร บริเวณ BTS อารีย์ ขับตรงไปเรื่อยๆ ถึงแยกสะพานควายเลี้ยวซ้ายเข้าถนนประดิพัทธ์ ขับตรงไปอีกประมาณ 240 เมตร จะเห็นตัวโครงการ THE LINE พหลฯ – ประดิพัทธ์ ทางขวามือค่าา
สรุปการเดินทาง ถนนพหลโยธิน(ฝั่งมุ่งหน้าจตุจักร) > แยกสะพานควาย > ถนนประดิพัทธ์ > THE LINE พหลฯ – ประดิพัทธ์
เริ่มต้นการเดินทางบนถนนพหลโยธิน ฝั่งมุ่งหน้าจตุจักร ผ่าน BTS อารีย์ไปนะคะ
ผ่าน BTS อารีย์มาหน่อยเดียวจะเห็นซอยอารีย์ทางซ้ายมือ ในซอยนี้มีร้านอาหารเพียบค่ะ ราคาตั้งแต่ถูกจนถึงแบบดีๆหน่อย สามารถแวะหาอาหารทานกันได้
ขับตรงมาเรื่อยๆเราจะถึงแยกสะพานควาย สำหรับแยกนี้ถ้าเราเลี้ยวซ้ายจะสามารถเข้าเส้นสุทธิสารได้ แต่วันนี้เราจะเลี้ยวซ้ายเพื่อเข้าถนนประดิพัทธ์นะคะ
เลี้ยวซ้ายเข้าถนนประดิพัทธ์มาแล้วตรงมาประมาณ 240 เมตร เราจะเห็นโครงการ THE LINE พหลฯ – ประดิพัทธ์ ทางขวามือค่าา
และเนื่องจากเป็นโครงการเกาะเส้นรถไฟฟ้า เราจะพาทุกคนเดินทางด้วยรถไฟฟ้า ลงที่สถานีสะพานควายแล้วเดินเท้าเพื่อดูบรรยากาศระหว่างทาง และถือโอกาศดูว่ามีความอุดมสมบูรณ์รอบๆประมาณไหนกันด้วยนะคะ โดยเราจะเริ่มต้นจากลงสถานีสะพานควาย ออกทางออกที่ 1 และเดินมุ่งหน้ามาทางแยกสะพานควายเลี้ยวขวา เข้าถนนประดิพัทธ์ เดินตรงไปอีกประมาณ 250 เมตร ผ่านซอยประดิพัทธ์ 25, 23 และ 21 เดินต่อไปอีกหน่อย จะถึงที่ตั้งโครงการทางขวามือค่ะ
มาถึงสถานีสะพานควายให้มองหาป้ายทางออก 1 เจอแล้วเลี้ยวขวาค่ะ
มีทางแยก 2 ฝั่ง โดยฝั่งซ้ายจะเป็นบันไดเลื่อน สำหรับขาเข้าสถานีเท่านั้น เราจึงต้องเดินออกทางขวาแทนนะคะ
ลงมาจากสถานีเราจะเห็นร้านต่างๆทางซ้ายมือ ตรงไปอีกหน่อยเป็นไปรษณีย์สามเสนใน
เราหันหลังกลับเดินย้อนไปทางแยกสะพานควาย
พื้นที่ใต้ทางเดิน BTS ส่วนใหญ่จะเปิดเป็นร้านนวดสมุนไพร 2 – 3 ร้าน
เดินเลยสถานีมาหน่อยจะเห็นโครงการ The Signature ทางขวามือ ถัดมาเป็น Tesco Lotus Express เปิด 24 ชม. สามารถซื้อของกินของใช้ก่อนได้ค่ะ
อย่างที่พูดถึงในส่วนของทำเลไปแล้วว่าย่านนรี้มีความเป็นชุมชนมาก่อน ทำให้มีความอุดมสมบูรณ์ค่อนข้างสูง ระหว่างทางเราก็จะเห็นอาคารพาณิชย์ที่ใช้เปิดเป็นร้านรวงต่างๆ และมีซอยแยกย่อยเข้าไปเป็นเวิ้งบ้าง อย่างเช่นซอยแรกที่เราผ่านนี้ ด้านหน้าจะมีร้านก๋วยเตี๋ยว ร้านน้ำปั่นเปิดอยู่
พอมองเข้ามาด้านในเวิ้งเราก็จะเห็นร้านอาหารอีกหลายร้าน เป็นร้านในสไตล์เป็นร้านข้างทางนิดนึง แต่คนเต็มตลอดนะคะ โดยเฉพาะช่วงเลิกงาน คนพรึ่บบค่ะ
เดินต่อมาก็จะเห็นร้านขายของอีกหลายประเภทที่สามารถใช้ในชีวิตประจำวัน เช่น ร้านขายของออแกนิค ร้านขายอุปกรณ์ของใช้เช่น ราวตากผ้า ชั้นวางของเป็นต้น
ถัดมาอีกหน่อยจะเจออีกเวิ้งด้านหน้ามีร้านข้าวมันไก่จานยักษ์ ที่เคยออกมาแล้วหลายรายการ และร้านก๋วยเตี๋ยวหมูต้มย้ำชื่อดังมีหลายสาขา
ฝั่งตรงข้ามเป็น Big C สะพานควาย เป็นสาขาค่อนข้างใหญ่ มีเครื่องอุปโภคบริโภคครบครัน
ผ่านคอนโด Onyx จากแสนสิริ เป็นโครงการแรกๆในย่านนี้
ร้านขายอุปกรณ์ตัดเย็บผ้าก็มีนะ
เดินมาแปปๆก็ถึงสี่แยกสะพานควายแล้วค่ะ เราก็ยังเดินตรงต่อไปตามทาง
ผ่านซอยประดิพัทธ์ 25
ซึ่งภายในซอยจะมีตลาดสดเจ้าใหญ่อยู่ สามารถมาซื้อของทำอาหารได้ และถ้าเดินเข้าไปลึกๆจะมีหอพัก และอพาร์ทเมนท์มากมายหลายตึกเลยค่ะ
เดินผ่านซอยประดิพัทธ์ 25 มาหน่อย จะมีสะพานข้ามฝั่ง เราเดินขึ้นมาถ่ายรูปให้ดูสภาพแวดล้อมโดยรวมของพื้นที่แถวนี้ โดยถนนสายนี้ตอนเย็นๆค่ำๆหน่อยจะมีร้านอาหารข้างทางมาเปิดให้พรึ่บบ ทั้งคาวหวาน เลือกทานกันได้เพลินนเลยค่ะ
เดินมาถึงซอยประดิพัทธ์ 23 ภายในซอยจะมีหอพักและมีทางเดินเชื่อมไปตลาดในซอยประดิพัทธ์ 25 ได้
เดินต่อมา แถวนี้จะมีร้านแลกเงินและร้านขายยาเยอะค่ะ
และมีร้านสะดวกซื้ออยู่ไม่ไกล
เดินมาเรื่อยๆถึงซอยประดิพัทธ์ 21
ภายในซอยจะเป็นตึกแถวที่อยู่ของชาวบ้านแถวนี้ ส่วนต้นๆซอยจะมีคิวพี่วินที่อยู่ใกล้โครงการที่สุด
อัตราค่าโดยสารของพี่วินเค้าค่ะ
ติดกับซอยประดิพัทธ์ 21 มาก็จะเป็นพื้นที่ของโครงการแล้วค่ะ
ตัว Sale Office จะใช้อาคาร Co-Living Space หรืออาคารส่วนกลางในยูนิตร้านค้าเป็นที่ประจำการ
ด้านหน้าอาคารส่วนกลางทำออกมาดูสวยดีค่ะ
ติดกันเป็นที่พื้นที่สร้างอาคารหลักหรืออาคารพักอาศัยในอนาคต
เข้ามาด้านใน พื้นที่ส่วนนี้จริงๆจะเป็น Secret Garden หรือสวนหย่อมหลักของโครงการ
มีที่จอดรถรับรองสำหรับผู้ที่มาเยี่ยมชมโครงการ
เราไปดูในส่วนของ Sale Office กัน
โดยการจะเข้าไปด้านในอาคารจะต้องผ่านประตูบานใหญ่ ลักษณะเป็นระแนงสามารถเปิดปิดเพื่อแยกพื้นที่สวนกับด้านในได้ แต่ทั้งนี้ทั้งนั้นจะขึ้นอยู่กับนิตินะคะ ว่าจะมีเวลาการเปิด ปิดเป็นอย่างไร
เข้ามาด้านในเจออาคาร 2 ชั้น
Sale Office จะอยู่ในอาคารหลักทางซ้ายมือ
ภายใน Sale Office มีโมเดลตั้งเด่นอยู่ตรงกลางแบบนี้ บรรยากาศการตกแต่งภายใน Sale Office จะแสดง Mood & Tone ของโครงการได้ดีค่ะ
ขวามือเป็นที่นั่งรับรองและโต๊ะเจ้าหน้าที่คอยให้ข้อมูล
ที่นั่งรับรองอีกจุดค่ะ
กลับมาที่โถงทางเดินอีกครั้ง จะเห็นว่ามีบันไดวนและลิฟท์สำหรับขึ้นไปชั้น 2
รอบๆบันไดวนจัดเป็นบ่อน้ำเล็กๆช่วยให้บรรยากาศไม่ดูแห้งแล้ง
ติดกับลิฟท์จะมีทางเดินลึกเข้าไปเป็นส่วนของห้องน้ำส่วนกลางค่ะ
แยกเป็นห้องน้ำหญิงทางซ้ายและห้องน้ำชายทางขวา
ภายในห้องน้ำหญิงเปิดเข้าไปจะเจออ่างล้างมือพร้อมกระจกเงา 2 ชุด สไตล์มินิมอล
อีกฝั่งเป็นห้องน้ำ 2 ห้อง ผนังเป็นกระจกเงาสามารถส่องเพื่อเช็คความเรียบร้อยได้
ภายในห้องน้ำ สุขภัณฑ์ครบชุด
ไปดูในห้องน้ำชายกันบ้าง
ด้านในมีอ่างล้างมือ 2 ชุดเช่นกัน ผนังกระจกใสเห็นต้นไม้ด้านนอก
มีโถปัสสาวะชาย 1 โถ และห้องน้ำ 1 ห้อง
ภายในห้องน้ำชายค่ะ
กลับมาที่โถงอีกครั้งเราขึ้นไปดูที่ชั้น 2 กันต่อ โดยจะใช้ลิฟท์โดยสารนะคะ
ภายในลิฟท์เรียบๆ แต่ดูดี โดยใช้ลิฟท์ของ Mitsubishi จุคนได้ประมาณ 8 คนหรือ 600 กิโลกรัม
แผงควบคุมหน้าปัดดิจิตอล
แผงควบคุมอีกด้าน
ขึ้นมาบนชั้น 2 จะเป็นส่วนของห้องตัวอย่าง 3 แบบ โดยในอนาคตพื้นที่ชั้น 2 นี้จะเป็น Co-Working Space และ Theatre Room ค่ะ
มองลงไปยังประตูบริเวณสวนด้านล่าง
ถนนและแยกที่สำคัญรอบๆโครงการ
สถานที่สำคัญรอบๆโครงการ
รอบๆโครงการ
สภาพแวดล้อมรอบๆโครงการจะเห็นว่าลักษณะของตัวที่ดินจะมีหน้าตาเกือบๆ C Shape โดยทิศเหนือโครงการจะติดกับซอยย่อยประดิพัทธ์ 21 , สปาและที่อยู่อาศัยเตี้ยๆ ทิศใต้หรือหน้าโครงการติดกับถนนประดิพัทธ์ ฝั่งตรงข้ามถนนเป็นอาคารพาณิชย์ซะส่วนใหญ่ ทิศตะวันตกติดกับที่ติดบ้านเดี่ยวและโบสถ์คริสต์ สูง 1 – 2 ชั้น จะเห็นว่ารอบๆโครงการเกือบทั้งหมดจะเป็นอาคารพาณิชย์หรือตึกแถวที่สูง 2 – 5 ชั้น ยกเว้นทางทิศตะวันออกบริเวณส่วนเว้าของตัว C ที่จะเป็นคอนโดรุ่นเก่า สูง 8 ชั้น แทรกเข้ามา
เรื่องวิวของโครงการนี้ค่อนข้างโปร่ง ไม่มีอาคารหรือคอนโดสูงๆในระยะประชิด โดยจะมีคอนโดเพื่อนบ้านรายล้อมอยู่รอบๆบ้าง แต่มีระยะที่ค่อนข้างห่างออกไปพอสมควรจึงทำให้ไม่มีผลเมื่ออยู่ในชั้นสูงๆของตึกเท่าไหร่ค่ะ
หน้าโครงการติดกับถนนประดิพัทธ์ ฝั่งตรงข้ามเป็นอาคารพาณิชย์และอาคารธนาคารกรุงเทพ
ฝั่งขวามือจะเป็นตึกแถวของชาวบ้านแถวนี้ยาวไปตลอดทาง
โดยตึกแถวก็จะมีการเปิดธุรกิจต่างๆเช่นร้านเกมส์
มีทางม้าลายอยู่ไม่ห่างจากโครงการ สามารถใช้ข้ามไปหาของกินฝั่งตรงข้ามได้
ถัดมาเป็นร้านก๋วยเตี๋ยวรสเด็ด
เดินมาอีกหน่อยก็จะมีร้านสะดวกซื้ออีกแห่ง เรียกว่าออกมาจากโครงการซ้ายหรือขวาก็เจอร้านสะดวกซื้อ สบายแฮ
กลับมาที่หน้าโครงการทางฝั่งซ้ายจะติดกับถนนประดิพัทธ์ฝั่งมุ่งหน้าแยกสะพานควาย
มีป้ายรถเมล์อยู่หน้าโครงการเลยค่ะ
ถนนฝั่งตรงข้ามก็เป็นอาคารพาณิชย์และตึกแถว มีร้านอาหารทั้งกลางวันและกลางคืน
ตัวโครงการ
โครงการ The Line พหลฯ – ประดิพัทธ์ เป็นคอนโด High Rise สูง 46 ชั้น ตัวโครงการติดถนนประดิพัทธ์ มีแนวคิดการออกแบบที่คำนึงถึงความกลมกลืน และสอดคล้องไปกับธรรมชาติ Concept การออกแบบที่ออกแบบมาที่ต้องการให้ผู้อยู่อาศัยรู้สึกเหมือนอยู่ในบ้านหลังใหญ่ บ้านที่ถูกโอบกอดด้วยธรรมชาติ และมีพื้นที่สำหรับทุกช่วงวัย ทุกไลฟ์สไตล์ โดยจะมีส่วนกลางให้ครบครันและค่อนข้างน่าสนใจเหมาะสมกับไลฟ์สไตล์ของคนในสมัยนี้
ส่วนการออกแบบสถาปัตยกรรม จะออกแบบตัวอาคารโดยรอบให้กลมกลืน กับธรรมชาติ ด้วยการบิดองศาของผนังของห้องเพื่อสร้างมุมมองภายในที่ไม่น่าเบื่อ และยังสามารถสัมผัสกับบรรยากาศของแสงและเงาที่แตกต่างกันในแต่ละช่วงเวลาได้ และตัวอาคารใช้การไล่เฉดสี EARTH TONE เพื่อเน้นให้กลมกลืนกับแสงธรรมชาติ และรู้สึกอบอุ่นเมื่อมองมาที่ตัวอาคารค่ะ
มาดูภาพรวมของตัวโครงการจาก Model ก่อนเพื่อจะได้เห็นภาพรวมกันก่อน สำหรับตัวโครงการนี้ภายในที่ดินจะแบ่งย่อยออกเป็น 2 อาคาร คืออาคารสำหรับพักอาศัย เป็นอาคารหลักสูง 46 ชั้น และอาคารส่วนกลาง ( Facility ) หรือ Co-Living Space สูง 2 ชั้น ซึ่งถึงจะมีการทำตัวอาคาร Facility แยกออกมาแล้ว แต่ทางโครงการก็ยังใส่ส่วนกลางอื่นๆไว้ในอาคารหลักด้วยค่ะ เช่น Lobby, สระว่ายน้ำ, สนามเด็กเล่น และ Rooftop Garden และเป็น Indoor Parking ในส่วนด้านหลังของอาคาร ชั้น 2 – 8
โดยตัวอาคารหลักจะแบ่งเป็นอาคารส่วนด้านหน้าสูง 35 ชั้น และอาคารด้านหลังสูง 46 ชั้น
ด้านข้างของตัวอาคารฝั่งทิศตะวันตกจะมี Outdoor Parking รองรับ
ตัวอาคารฝั่งทิศเหนือ
ตัวอาคารฝั่งทิศตะวันออก ด้านนี้จะเห็นองค์ประกอบโดยรวมของโครงการชัดสุด โดยเราจะเห็นที่จอดรถในส่วนของอาคารด้านหลัง และเหนือโพเดียมที่จอดรถจะทำเป็นพื้นที่สระว่ายน้ำ และเนื่องทางด้านนี้จะได้แดดเช้าเต็มๆ แต่ตอนช่วงเย็นจะไม่ค่อยโดนแดด ดังนั้นจึงสามารถมาใช้สระว่ายน้ำในช่วงเย็นได้สบายๆค่ะ
และจุดเด่นอีกอย่างของโครงการนี้คือจะใส่พื้นที่สีเขียวแทรกไว้ให้ในชั้น Typical Floor ด้วย โดยจะเรียกสวนเล็กๆนี้ว่า Pocket Garden ซึ่งจะมีอยู่ในชั้น 12, 15, 18, 24, 30 ส่วนชั้นอื่นๆในแนว Vertical จะเป็น Open Space ช่วยให้ตัวอาคารโปร่งค่ะ
มาดู Master Plan กันต่อ จากแปลนจะเห็นว่าทางเข้าออกโครงการจะมี 2 ทาง คือถ้าเดินเท้ามาโครงการก็สามารถเข้าได้จากทางสวน Secret Garden ติดกับอาคาร Co-Living Space ส่วนถ้าใรขับรถมาก็สามารถใช้ทางเข้าหลักจากถนนประดิพัทธ์ เมื่อเข้ามาในโครงการจากทางเข้าหลักจะต้องผ่านป้อมรปภ. และเข้ามายังพื้นที่ Drop Off จากนั้นก็สามารถวิ่งรถได้รอบอาคาร โดยถ้าออกไปทางซ้ายจะเจอกับที่จอดรถ Outdoor Parking ก่อน และไปเข้า indoor Parking ทางฝั่งตะวันออก
เมื่อเข้ามาในตัวอาคารส่วนแรกจะเจอกับ Lobby ฝ้าเพดานสูงโปร่งประมาณ 9.5 เมตร ถัดมาจาก Lobby จะเป็นโถงลิฟท์ภายในมีลิฟท์ทั้งหมด 6 ตัว เฉลี่ยลิฟท์ต่อห้องพักอาศํยประมาณ 1 : 163 ถือว่าค่อนข้างแน่นอาจจะต้องรอลิฟท์นานหน่อยโดยเฉพาะในช่วงเวลาเร่งด่วน
ดูโมเดลจะได้เห็นภาพมากขึ้นจะเห็นว่าสวน Secret Garden จะชอุ่มมาก เพราะทางโครงการตั้งใจจะสร้างให้เป็นพื้นที่สีเขียวในย่านนี้ ซึ่งน่าสนใจมากค่ะเพราะแถวนี้เรียกได้ว่า ไม่มีสวนเขียวๆน่ามองแบบนี้เลย
ภาพจำลองบรรยากาศ Lobby ดีไซน์โปร่ง โล่งเปิดรับลม ด้วยดีไซน์แบบ Triple Volume Lobby สูงถึง 9.5 เมตร ต้อนรับคุณอย่างอบอุ่น ด้วยการออกแบบพื้นที่ให้ มีความโปร่ง โล่ง เปิดรับลมได้เต็มที่ สามารถนั่งพักผ่อนรับลมได้สบายๆ โดยที่ไม่ต้องพึ่งพาพลังงานไฟฟ้าตลอดเวลา
วัสดุที่ใช้ในการตกแต่งภายในใช้วัสดุที่เป็นธรรมชาติ ทั้งหิน ไม้ รวมถึงใช้ผ้าในโทนสีที่ให้ความอบอุ่น ช่วยให้รู้สึกผ่อนคลายตลอดการพักผ่อน
ในส่วนของการจัดวางเฟอร์นิเจอร์ มีการจัดวางให้มีรูปแบบที่แตกต่างกันไปในแต่ละมุม เน้นให้ใกล้ชิดธรรมชาติ ให้ความรู้สึกเหมือนอยู่ในบ้านหลังใหญ่ มองออกไปด้านนอกก็จะเจอสวนร่มรื่นหน้าบ้าน
ผังโครงการชั้น 6, 7 และ 8 อาคารฝั่งหน้าจะเป็นส่วนพักอาศัยและอาคารฝั่งหลังจะเป็น Indoor Parking ค่ะ
ผังโครงการชั้น 9 จะเป็นส่วนพักอาศัย และมีส่วน Facility เรียกว่า Co-Recreation เป็นสระว่ายน้ำแบบ Outdoor ซึ่งจะประกอบไปด้วยสระว่ายน้ำขนาด 30 x 24 เมตร แยกสระเด็ก – สระผู้ใหญ่ พร้อม Pool Terrace ข้างสระ สำหรับนั่งพักผ่อน
ส่วนในตัวอาคารรอบๆสระว่ายน้ำจะมีห้อง Sauna & Stream ที่ผนังภายในห้องจะใช้หินเกลือผลึก Himalayan Salt ที่เชื่อกันว่าสามารถใช้เป็นหินบำบัดได้, ฟิตเนสและแยกห้อง Free Weight
ภาพ model แสดงรายละเอียดบริเวณสระว่ายน้ำ จะเห็นว่ามีลงต้นไม้ไว้ให้โดยรอบ ร่มรื่นดีค่ะ ส่วนห้องฟิตเนสและ Sauna & Stream จะอยู่ในอาคาร
ภาพจำลองบรรยากาศ Co-Recreation Swimming Pool เพิ่มบรรยากาศดีๆ ทำมาให้มีกลิ่นอายของบ้านพักตากอากาศ ที่ชั้น 9 ของโครงการที่มีทั้ง Swimming Pool, Leisure Pool, Jacuzzi และ Kid’s Pool ที่ถูกออกแบบให้ต่อเนื่องถึงกัน และในอาคารยังมีฟิตเนส
ผังโครงการชั้น 10 – 34 จะเป็นส่วนของยูนิตพักอาศัยล้วนๆ โดยในอาคารจะมี Pocket Garden แทรกอยู่ในชั้น 12, 15, 18, 24, 30 ค่ะ
ผังโครงการชั้น 35 จะเป็นส่วน Play Ground หรือ Kid’s Yard ด้านหน้า และยูนิตพักอาศัยด้านหลัง
Kid’s Yard (Play Ground)สนามเด็กเล่น มีเนินดินสำหรับปีนป่าย และมีเครื่องเล่นต่างๆ แทรกตัวอยู่ พื้นปูพื้นยางกันกระแทกเพื่อความปลอดภัย พร้อมด้วยที่นั่งรูปทรงสี่เหลี่ยมหลากสีสัน ที่กระจายตัวอยู่บนพื้นที่สีเขียว ช่วยสร้างบรรยากาศให้ดูสนุกสนาน รอบๆก็จะมีลงต้นไม้ทำให้บรรยากาศร่มรื่น
ผังโครงการชั้น 36 – 45 จะเป็นยูนิตพักอาศัยล้วนๆเช่นกัน แต่จะเหลือแค่ตัวอาคารฝั่งหลัง และจะมี Pocket Garden ในชั้น 36 36,39,42 ค่ะ
ผังโครงการชั้น 46 เป็นชั้นยูนิตพักอาศัยเช่นกัน แต่จะพิเศษตรงที่มีห้อง Sky Lounge มาให้นั่งพักผ่อนชมวิวเมืองค่ะ
SKY LOUNGE ห้องนั่งเล่นชั้น 46 ผนังกระจกรอบด้าน เปิดรับวิวเมืองได้ 360 องศา ทางโครงการทำมาให้เหมือนเป็นห้องนั่งเล่นประจำบ้าน ที่ให้ทุกคนเข้ามาใช้งานได้ค่ะ
มาดูที่ส่วนอาคารส่วนกลางกันบ้างค่ะ เริ่มจากพื้นที่ที่อยู่ติดกับโครงการจะเป็น Secret Garden เป็นสวนขนาดที่ถือว่าใหญ่ในละแวกนี้ ด้านในมีต้นไม้ปลูกไว้ให้เยอะค่ะ
Secret Garden แนวคิดการออกแบบสวน เพื่อการใช้ชีวิตส่วนตัวท่ามกลางธรรมชาติ ที่นี่จึงถูกดีไซน์ให้มีจุดพักผ่อนที่หลากหลายทั้งพื้นที่จิบชายามบ่าย หรือน้ำตกหินขนาดใหญ่ ที่แทรกตัวอยู่ในเนินดินธรรมชาติ
บรรยากาศภายใน Secret Garden ของจริงที่จัดมาเกือบสมบูรณ์แล้ว ร่มรื่นดีค่ะ
ด้านในตัวอาคารส่วนกลางชั้น 1 จะประกอบไปด้วยยูนิตร้านค้าที่ฝั่งด้านหน้าติดถนน และพื้นที่ BBQ ที่ทางโครงการทำให้เป็น Co-Kitchen ที่ลูกบ้านสามารถมาใช้ครัวทำอาหาร และนั่งทานกันได้ค่ะ
ตัวอาคาร Co-Living Spce
ฝั่งติดกับ Secret Garden มีทางเข้าไปส่วนโถงด้านใน
พื้นที่ BBQ Area และ Outdoor Dinning และบนชั้น 2 จะเป็นห้อง Theatre Room 
ออาคารฝั่งที่ติดกับตัวอาคารหลัก
ภาพจำลองบรรยากาศ Co-Kitchen พร้อมชุดอุปกรณ์จัดเตรียมอาหารครบครัน
Outdoor Dining ลานพื้นที่กลางแจ้ง ที่มาพร้อมวิวธรรมชาติมุมกว้างเชื่อมต่อกับครัวกลาง พอทำอาหารเสร็จ ก็สามารถยกมาทานที่นี่ได้ค่ะ
ชั้น 2 ด้านหน้าอาคารมี Co-Working Space ด้านหลังเป็น Theatre Room ส่วนการขึ้นมาบนชั้น 2 ก็สามารถใช้ทั้งบันไดวนและลิฟท์ค่ะ
Co-Living Space สามารถใช้เป็นพื้นที่นั่งทำงาน บรรยากาศภายในจะมาให้สบายตา มีที่นั่งหลายชุด พร้อม Meeting Room สามารถใช้ Present งานได้
อีกมุมหนึ่งค่ะ
ชั้นบนสุดจะเป็น Rooftop Garden
โมเดลจำลองส่วน Rooftop
ภาพบรรยากาศเป็นวิวเมืองรอบโครงการค่ะ
แบบห้อง
สำหรับแบบห้องในโครงการจะมีมากมายกว่า 39 แบบเลยค่ะ แต่สามารถแบ่งตามขนาดห้องได้ดังนี้
ห้องตัวอย่าง
สำหรับห้องตัวอย่างที่เราจะพาไปดูกันในวันนี้จะเป็นห้องแบบ 1 Bedroom ขนาด 33.50 ตร.ม ที่มีขนาดมากที่สุดในโครงการ และห้องแบบ 2 Bedroom ขนาด 51.50 ตร.ม ค่ะ ทางโครงการจะขายแบบ Fully Furnished โดยเฟอร์นิเจอร์ตัวหลักแบบ Built – in คือเคาน์เตอร์ครัวและตู้เสื้อผ้าจะได้มาตามแบบในห้องตัวอย่างเลย ซึ่งเป็นเฟอร์นิเจอร์รุ่นใหม่ๆของ แบรนด์ The Line ที่เค้าทำมาให้สามารถใช้พื้นที่ได้อย่างคุ้มค่าน่าสนใจทีเดียวค่ะ ส่วนเฟอร์นิเจอร์แบบลอยตัวอื่นๆจะหน้าตาไม่เหมือนในห้องตัวอย่าง แต่เดี๋ยวจะแนบรูปภาพเฟอร์นิเจอร์ตัวจริงไว้ให้ดูด้วยค่ะ ส่วนใครที่ไม่อยากได้เฟอร์นิเจอร์แบบลอยตัวที่แถมมาก็สามารถเลือกรับเป็นส่วนลดแทนได้ ตามนี้ค่ะ
มาดูห้องตัวอย่างแบบแรก เป็นห้องแบบ 1 Bedroom ขนาด 33.50 ตร.ม ภายในห้องจะแยกฟังก์ชั่นต่างๆมาค่อนข้างชัดเจน โดยเมื่อเข้ามาในห้องจะเจอกับพื้นที่ครัวก่อน โดยครัวที่ได้จะได้เป็นครัวปิด จากห้องครัวจะสามารถเชื่อมต่อไปยังห้องนั่งเล่น และห้องน้ำได้โดยห้องน้ำนี้จะสามารถเข้าใช้งานได้จากสองฝั่งคือจากส่วนห้องครัวและห้องนอนค่ะ
พื้นที่ห้องนั่งเล่นด้านในจะแบ่งพื้นที่เป็นส่วน Living Area และพื้นที่ทานอาหารค่ะ จากห้องนั่งเล่นก็จะสามารถเชื่อมไปยังห้องนอนได้ ภายในห้องนอนจะจัดเตียงขนาดควีนไซส์มาให้ มีพื้นที่ Walk – in Closet ที่เชื่อมต่อไปยังห้องน้ำ และจากห้องนอนจะสามารถออกไปยังระเบียงภายนอกได้ค่ะ
เฟอร์นิเจอร์ลอยตัวที่แถมมาในห้องแบบนี้ค่ะ
มาดูของจริงกันค่ะ เริ่มจากประตูหน้าห้องเป็นประตูปิดผิวด้วยลามิเนต มีความสูง 2.4 เมตร
มือจับประตูได้ Digital Door Lock ยี่ห้อ Yale นอกจากไขประตูตามปกติแล้วยังมีวิธีเปิดแบบอื่นๆด้วยคือ คีย์การ์ดสแกน, ใส่รหัส และ ใช้ Bluetooth จากโทรศัพท์มือถือค่ะ
พื้นห้องยกตัวขึ้นมาสูงประมาณ 5.5 ซม. ปิดผิวด้วยท็อปหินเทียม ส่วนพื้นภายในห้องปูด้วยกระเบื้อง
ด้านหลังบานประตูจะมีตัว Stopper ติดตั้งมาให้เพื่อป้องกันประตูกระแทกกับตู้ด้านหลัง
เข้ามาในห้องฝั่งขวามือจะเจอกับตู้ชุดแรก ถัดไปเป็นห้องน้ำ และห้องนั่งเล่น
ตู้ชุดแรกติดกับประตูทางเข้าและห้องน้ำจะเป็นตู้บานเปิด 2 บานบนและล่าง ส่วนตรงกลางเป็นช่องวางของ
ภายในช่องวางของตรงกลางจะมีตู้เก็บของซ่อนไว้ 2 ช่อง ฝังไฟส่องสว่างไว้ให้ด้วยค่ะ
ตู้ด้านล่างจะเป็นตู้สำหรับเก็บเครื่องซักผ้า บานเปิดแบบ Soft Close
มือจับบานเปิดตู้เป็นแผ่นเหล็กทรงตัว L จับได้สะดวกดีค่ะ
หลังบานประตูอีกด้านจะ built – in ให้เป็นตู้เก็บรองเท้า
มีชั้นรางเลื่อนสำหรับแขวนร่มหรือเสื้อโค้ทซ่อนมาให้ด้วยค่ะ
ถัดมาเป็นเคาน์เตอร์ครัว ทางโครงการจะ Built- in มาให้ครบชุดตามแบบนี้เลย ทั้งเคาน์เตอร์ชุดล่างและตู้ลอยด้านบน โดยบานเปิดตู้ลอยด้านบนจะได้หน้าบานเป็นกระจกซาติน สีแชมเปญ ซึ่งมีคุณสมบัติคือจะมีผิวสัมผัสเหมือนทรายละเอียด เวลาจับจะไม่ค่อยเป็นรอยนิ้วมือเหมือนกระจกเรียบทั่วๆไปนั่นเองค่ะ
ภายในตู้ลอยนอกจากชั้นวางของจำนวนมากและยังมีฟังก์ชั่นที่น่าสนใจอีกอย่างคือช่องสำหรับใส่กระดาษทิชชู่ มีช่องให้แผ่นกระดาษโผล่ลงไปด้านล่าง ทำให้สามารถใช้งานได้สะดวกรวดเร็ว และเก็บทิชชู่ไว้ได้เป็นสัดส่วน
ตัวเคาน์เตอร์ครัวชุดล่างจะได้ Top เป็น Porcelain Slab ที่มีจุดเด่นคือเป็นวัสดุที่มีความคงทนสูง และไม่ค่อยมีคราบติดเนื่องจากมีค่าความพรุนที่ต่ำกว่าวัสดุอื่นๆที่นิยมใช้กันทั่วๆไป
นอกจากนั้นจะได้ซิงค์ล้างจานและเตาไฟฟ้า 2 หัว ยี่ห้อ MEX
ด้านล่างแบ่งเป็น 5 ลิ้นชัก และช่องเก็บเคาไมโครเวฟ
ระยะยืนทำครัวประมาณ 1.2 เมตร สามารถยืนเตรียมอาหารได้สบายๆ
ไฟทั้งห้องได้เป็นดวงไฟแบบดาวน์ไลท์ กรอบสี่เหลี่ยม
จากห้องครัวสามารถเชื่อมไปยังห้องน้ำได้
พื้นห้องน้ำลดระดับลงไปประมาณ 3 ซม. พื้นปูด้วยกระเบื้องเซรามิคสีครีม ขนาด 60 x 60 ซม.
เข้ามาภายในห้องน้ำเราจะเห็นว่ามีทางเข้าออก 2 ทาง คือจากทางฝั่งห้องครัวและห้องนอน ส่วนฟังก์ชั่นในห้องน้ำนี้จะมีแยกส่วนแห้งและส่วนเปียกมาเรียบร้อย
กระจกเงาได้เป็นบานขนาดพอดีๆ ด้านล่างมีชั้นวางของ และหลังบานกระจกมีช่องเก็บของซ่อนมาให้เป็นชั้นวางของ 3 ชั้น สามารถใช้เก็บอุปกรณ์อาบน้ำหรือยาที่ต้องใช้ประจำได้ค่ะ
อ่างล้างมือที่ได้จะได้อ่างล้างมือทรงสี่เหลี่ยมแบบหลุม ยี่ห้อ Cotto Top วัสดุเป็น Porcelain Slab ใต้อ่างเป็นเคาน์เตอร์บานเปิดที่ทางโครงการเค้าทำรองรับการติดตั้งเครื่องทำน้ำร้อน หรือจะใช้เก็บของก็ได้ถ้าเราไม่ต้องการติดตั้งเครื่องทำน้ำร้อนค่ะ
ขนาดอ่างพอดีๆ
ก๊อกน้ำทรงสี่เหลี่ยมแบบ Hot and Cold
ข้างอ่างล้างมือฝั่งที่ติดกับโถสุขภัณฑ์จะทำเว้าไว้เป็นช่องเก็บของเพิ่มเติม
โถสุขภัณฑ์พร้อมสายชำระและที่วางกระดาษชำระของ Cotto ระยะการใช้งานสบายๆ
สายชำระหน้าตามาตรฐาน
อีกด้านเป็น Shower Box บานเปิดแบบผลักเข้าด้านใน
มือจับด้านนอกเป็นแท่งสแตนเลสสามารถวางผ้าขนหนูได้ ส่วนด้านในเป็นปุ่มยื่นออกมาพอให้จับสะดวกพร้อมติดยางกันกระแทกเพื่อกันประตูกระแทกผนัง
ภายในห้องอาบน้ำติดตั้งฝักบัวแบบ Rain Shower และ Hand Shower ขนาดค่อนข้างใหญ่ ยี่ห้อ Cotto
พื้นห้องน้ำมีธรณีก่อสูงขึ้นมาประมาณ 5 ซม. ขนาดห้องอาบน้ำประมาณ 1.14 x 0.80 เมตร พอให้ยืนอาบได้สบายๆ
กลับมาที่ส่วนครัวเราจะไปดูห้องนั่งเล่นกันต่อ โดยประตูที่เชื่อมพื้นที่ระหว่างห้องจะได้เป็นประตูบานเลื่อน 3 ตอน บานกรอบอลูมิเนียมสีดำ
มือจับและตัวล็อค
พื้นห้องนั่งเล่นด้านในปูด้วยลามิเนตลายไม้สีอ่อน
เข้ามาด้านในจะเห็นช่องแสงบานใหญ่ ความสูงเกือบจรดฝ้า
ทางโครงการวางโซฟาขนาด 3 ที่นั่งมาให้ดูเป็นตัวอย่าง เป็นขนาดที่เหมาะสมกับพื้นที่และตัวโซฟาจริงที่ได้แถมก็มีขนาดประมาณ 3 ที่นั่งเช่นกันค่ะ
ฝั่งตรงข้ามจะเป็นที่วางทีวี ซึ่งเฟอร์นิเจอร์ที่แถมจะมีชุดโต๊ะและตู้ลอยสำหรับวางทีวีมาให้ด้วย แต่จะเป็นตัวที่อยู่ในแคทตาล็อคด้านบนนะคะ
ระยะดูทีวีเหลือประมาณ 1.45 เมตร สามารถวางทีวีขนาดประมาณ 26″ – 32″ ค่ะ
พื้นที่อีกส่วนของห้องนั่งเล่นจะเหลือพื้นที่สำหรับจัดเป็นห้องทานอาหาร โดยห้องตัวอย่างจะจัดเป็นโต๊ะทรงโมเดิร์นมาให้ดูเป็นตัวอย่างแบบนี้ ส่วนของจริงจะได้โต๊ะขนาด 2 ที่นั่ง
ช่องแสงติดกับพื้นที่ทานอาหารเป็นหน้าต่างบานกระทุ้ง 1 บานและที่เหลือเป็นหน้าต่างบานฟิกซ์ค่ะ
ตัวหน้าต่างบานกระทุ้งเปิดได้พอประมาณ สำหรับระบายอากาศ
จากห้องนั่งเล่นเราไปดูในห้องนอนกันต่อ
เข้ามาภายในห้องนอนจะเห็นช่องแสงทางซ้ายมือคือประตูเชื่อมออกไประเบียงภายนอก
ทางโครงการวางเตียงขนาดควีนไซส์มาให้
ระยะข้างเตียงฝั่งระเบียงเหลือประมาณ 35 ซม. พอให้เดินไปเปลี่ยนผ้าปูที่นอนได้ และข้างเตียงฝั่ง Walk – in Closet เหลือประมาณ 75 ซม. สามารถวางตู้หัวเตียงได้
ปลายเตียงเหลือระยะประมาณ 40 ซม. พอให้เดินผ่านได้
จากห้องนอนออกไปยังระเบียงภายนอกจะต้องผ่านประตูบานเลื่อน 3 ตอน บานกรอบอลูมิเนียม
ระเบียงขนาดประมาณ 0.90 x 1.95 เมตร ค่อนข้างกว้างแต่ด้านยาวไม่มากเท่าไหร่ พอให้วางรางตากผ้าได้ หรือใครจะวางโต๊ะกาแฟเล็กๆก็พอได้อยู่ค่ะ
ราวกันตกเป็นราวสแตนเลสกระจกใส มีราวจับ
มีตะแกรงกั้นเป็นห้องสำหรับวางแอร์คอมเพรสเซอร์แยกไว้เป็นสัดส่วน
สำหรับ Facade บานเลื่อนที่เราเห็นอยู่นี้ช่วยในเรื่องของความเป็นส่วนตัว เราสามารถเลือกได้ว่าจะเลื่อนเปิดปิดแบบไหน แต่จะมีมาให้ในบางห้องเท่านั้นค่ะ
กลับเข้ามาในห้องนอน อีกด้านของห้องจะเป็นพื้นที่ Walk – in Closet
มี Built – in ตู้เสื้อผ้าและชั้นวางของมาให้ตามแบบ
ตู้เสื้อผ้าได้เป็นบานเปิดคู่ ด้านในแบ่งเป็นราวแขวนเสื้อ 2 ช่อง, 2 ลิ้นชัก เก็บของและ 1 รางเลื่อนสำหรับบาดกางเกง ส่วนด้านบนก็แบ่งช่องไว้ให้สำหรับเก็บพวกผ้าขนหนูหรืออื่นๆ
มือจับตู้เสื้อผ้าเป็นแผ่นยื่นออกมาพอให้จับได้สะดวก
ติดกับตู้เสื้อผ้าเป็นโต๊ะเครื่องแป้ง
ด้านล่างมีลิ้นชักเก็บของให้ 1 ช่อง
อีกฝั่งเป็นห้องน้ำ ทางเข้าจากห้องนอนที่เราเห็นจากห้องครัวนั่นเองค่ะ
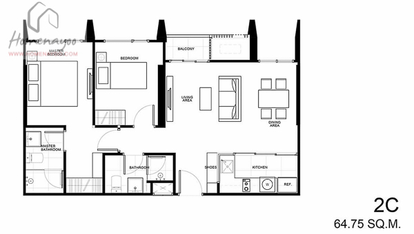
ห้องตัวอย่างแบบถัดมาเราจะมาดูห้องแบบ 2 Bedroom ขนาด 51.50 ตร.ม ฟังก์ชั่นในห้องเมื่อเข้ามาจะเจอกับพื้นที่โถงกว้างๆ แบ่งพื้นที่เป็นห้องทานอาหาร เชื่อมต่อไปยังห้องนั่งเล่นและระเบียงภายนอก ส่วนห้องครัวเมื่อเข้าห้องมาจะอยู่ทางซ้ายมือ ได้เป็นครัวปิด มีระเบียงภายนอก ส่วนทางขวามือจะเป็นห้องน้ำ ซึ่งจะมีเพียงห้องเดียว สามารถเข้าถึงได้ 2 ทาง จากทางห้องทานอาหารและห้อง Master Bedroom
ส่วนห้องนอนจะสามารถเข้าได้จากบริเวณห้องนั่งเล่น ฝั่งซ้ายเป็นห้องนอนรอง และฝั่งขวาเป็นห้อง Master Bedroom มีพื้นที่ Walk – in Closet และมีทางเข้าห้องน้ำด้วยค่ะ
เฟอร์นิเจอร์ที่ได้แถมมาในห้องค่ะ
มาดูของจริงกันต่อ เมื่อเข้ามาในห้องจะเจอกับพื้นที่ทานอาหารก่อน มองตรงไปเป็นส่วนของห้องนั่งเล่น ส่วนแสงธรรมชาติที่ได้ภายในห้องนี้จะมาจากประตูเชื่อมระเบียงภายนอก ความสูงฝ้าเพดาน 2.7 เมตร
มองย้อนกลับไปทางประตู ติดกับประตูเราสามารถ Built – in ตู้วางรองเท้าหรือตู้เก็บของได้
พื้นที่ห้องทานอาหารสามารถวางโต๊ะทานอาหารขนาดประมาณ 3 – 4 ที่นั่งได้ ส่วนเฟอร์นิเจอร์ที่ได้แถมมาจะเป็นโต๊ะทานอาหารขนาด 4 ที่นั่ง พอเหมาะพอดีกับพื้นที่ค่ะ
จากห้องทานอาหารเราไปดูห้องครัวทางซ้ายมือ โดยครัวที่ได้จะได้เป็นครัวปิด ประตูบานเลื่อนคู่ บานกรอบอลูมิเนียมกระจกใสช่วยให้ห้องไม่ทึบ
ภายในห้องครัวได้เคาน์เตอร์ครัว 2 ฝั่ง
โดยชุดเคาน์เตอร์ครัวที่ได้จะมี Spec เหมือนๆกับห้องตัวอย่างห้องที่แล้ว เพียงแต่จะได้ขนาดและฟังก์ชั่นเพิ่มเติมบางจุดเท่านั้น
ระยะทำครัวประมาณ 90 ซม. พอให้ยืนทำครัวคนเดียวได้สบาย แต่ถ้ามีคนมาช่วยอาจจะแน่นๆหน่อยนึง
จากห้องครัวจะมีพื้นที่เชื่อมออกไปยังระเบียงภายนอกด้วยประตูบานเลื่อนคู่
ระเบียงภาพนอกพื้นลดระดับลงไปประมาณ 10 ซม. ปูด้วยกระเบื้องเซรามิคขนาด 60 x 60 ซม.
ขนาดระเบียงประมาณ 2.2 x 0.6 เมตร
ติดโคมไฟติดผนังมาให้ 1 ดวง
Facade บานเลื่อนเราสามารถเลือกได้ว่าจะเลื่อนเปิดปิดแบบไหน แต่จะมีมาให้ในบางห้องเช่นกันค่ะ
จากภายในห้องครัวมองย้อนมาทางห้องทานอาหาร
ถัดมาเราจะไปดูในาส่วนของห้องนั่งเล่นกันต่อ
พื้นที่ห้องนั่งเล่นวางโซฟาขนาด 3 ที่นั่ง ได้ระยะการใช้งานที่พอดี เหมาะสมกับระยะของกำแพงที่เหลือ
ฝั่งตรงข้ามจะเป็นที่วางทีวี ซึ่งเฟอร์นิเจอร์ที่แถมจะมีชุดโต๊ะและตู้ลอยสำหรับวางทีวีมาให้ด้วย แต่จะเป็นตัวที่อยู่ในแคทตาล็อคค่ะ
ระยะดูทีวีเหลือประมาณ 1.6 เมตร สามารถวางทีวีขนาดประมาณ 26″ – 42″ ค่ะ
จากห้องนั่งเล่นสามารถเชื่อมต่อออกไปยังพื้นที่ระเบียงภายนอกได้ โดยระหว่างพื้นที่จะถูกกั้นด้วยประตูบานเลื่อน 3 ตอน
พื้นระเบียงลดระดับลงไปประมาณ 10 ซม. ระเบียงขนาดประมาณ 0.90 x 2.1 เมตร ค่อนข้างกว้าง พอให้วางรางตากผ้าได้ หรือใครจะวางโต๊ะกาแฟเล็กๆ/ไม้กระถางขนาดเล็กๆก็พอได้อยู่ค่ะ
มีตะแกรงกั้นเป็นห้องสำหรับวางแอร์คอมเพรสเซอร์แยกไว้เป็นสัดส่วน อีกด้านจะติดโคมไฟมาให้ 1 ดวง 
กลับเข้ามาในห้องนั่งเล่น มองย้อนไปทางห้องทานอาหาร
ต่อมาเราจะไปดูส่วนของห้อง Master Bedroom ต่อด้วยห้องน้ำห้องเดียวของห้องนี้กันต่อ
เข้ามาในห้องนอนจะเห็นว่าพื้นที่จะถูกแบ่งเป็น 2 ส่วน คือส่วน Walk – in Closet และ พื้นที่ห้องนอน
ตู้เสื้อผ้าได้เป็นบานเปิดคู่ ด้านในแบ่งเป็นราวแขวนเสื้อ 2 ช่อง, 2 ลิ้นชัก เก็บของและ 1 รางเลื่อนสำหรับบาดกางเกง ส่วนด้านบนก็แบ่งช่องไว้ให้สำหรับเก็บพวกผ้าขนหนูหรืออื่นๆ
ติดกับตู้เสื้อผ้าเป็นโต๊ะเครื่องแป้ง ด้านล่างมีลิ้นชักเก็บของให้ 1 ช่อง
ระยะใช้งานส่วน Walk – in Closet ประมาณ 1 เมตร
ในส่วนของห้องนอนจะได้ช่องแสงบานใหญ่ ความสูงเกือบจรดฝ้ามาด้วย ทำให้ห้องนี้ดูโปร่งมาก
โดยชุดช่องแสงบานใหญ่ที่ได้จะได้เป็นหน้าต่างบานกระทุ้งผสมบานฟิกซ์
ทางโครงการให้เตียงขนาดควีนไซส์
เมื่อวางเตียงลงไปแล้วจะเหลือระยะข้างเตียงประมาณ 55 ซม. และ 65 ซม. พอให้วางโต๊ะหัวเตียงได้ทั้ง 2 ด้านเลยค่ะ
มุมจากภายในห้องนอนมองย้อนไปทางห้อง Walk – in Closet และห้องน้ำ
ไปดูในส่วนของห้องน้ำกันต่อ
ภายในห้องน้ำมีทางเข้าออก 2 ทาง คือจากทางฝั่งห้องทานอาหารด้านนอกและตากห้องนอน Master Bedroom ส่วนฟังก์ชั่นในห้องน้ำนี้จะมีแยกส่วนแห้งและส่วนเปียกมาเรียบร้อย
อ่างล้างมือที่ได้จะได้อ่างล้างมือทรงสี่เหลี่ยมแบบหลุมและโถสุขภัณฑ์ ยี่ห้อ Cotto
ผนังข้างโถสุขภัณฑ์จะเว้าเข้าไปช่วยให้มีที่วางของเพิ่มขึ้น
อีกด้านเป็น Shower Box บานเปิดแบบผลักเข้าด้านใน
ภายในห้องอาบน้ำติดตั้งฝักบัวแบบ Rain Shower และ Hand Shower ขนาดค่อนข้างใหญ่ ยี่ห้อ Cotto
พื้นห้องน้ำมีธรณีก่อสูงขึ้นมาประมาณ 5 ซม. ขนาดห้องอาบน้ำประมาณ 1.20 x 0.80 เมตร พอให้ยืนอาบได้สบายๆ
ออกมาจากห้อง Master Bedroom ถัดมาเราไปดูในห้องนอนรองกันต่อ
ภายในห้องนอนรองทางโครงการจะจัดเป็นห้องนอนเด็ก ส่วนในห้องจริงจะได้เตียงขนาด 3.5 ฟุต ถ้าย้อนกลับขึ้นไปดูในแปลนจะเห็นว่าการจัดวางเตียงในห้องนี้จะมีระยะที่พอดีๆ เหลือพื้นที่ข้างเตียงค่อนข้างเยอะ สามารถวางโต๊ะหัวเตียงได้
ส่วนตู้เสื้อผ้าที่ได้แถมมาจะมี Spec เหมือนห้องอื่นๆทุกห้อง เพิ่มเติมตู้เก็บเครื่องประดับด้านข้างมา 1 ช่อง
ภายในห้องนอนรองจะมีช่องแสง 2 จุด ช่วยให้แสงธรรมชาติเข้าห้องมาค่อนข้างเยอะ
ราคา (ต.ค.59)
บทสรุปโครงการ
ทำเลที่ตั้งโครงการ The Line พหลฯ – สะพานควาย ตั้งอยู่ติดถนนประดิพัทธ์ฝั่งมุ่งหน้าแยกสะพานควาย จุดเด่นของโครงการนี้คือตั้งอยู่เกาะเส้น BTS ในระยะทางประมาณ 550 เมตร ที่ถึงแม้ว่าจะเกินระยะเดินสบายไปหน่อยแต่เส้นทางจาก BTS จนมาถึงตัวโครงการจะมีฟุตบาทตลอดทาง ทำให้การเดินเท้ามาโครงการยังพอรับได้อยู่ แต่เนื่องจากย่านนี้มีคนอาศัยอยู่เยอะ ทำให้เวลาเดินช่วงเช้าหรือเย็นๆจะมีคนค่อนข้างแน่น อาจจะต้องเผื่อเวลากันนิดนึงเพราะเราเร่งฝีเท้าไม่ค่อยได้ ต้องเดินตามสเต็ปไปค่ะ
จุดเด่นอีกอย่างของทำเลที่ตั้งโครงการคือความอุดมสมบูรณ์โดยรอบที่มีค่อนข้างเยอะ ออกมาหน้าโครงการก็มีร้านให้เลือกหลายร้านทั้งกลางวันและกลางคืน โดยจะเป็นร้านในราคาที่สามารถจับจ่ายในชีวิตประจำวันได้สบายๆค่ะ
การเดินทางด้วยรถยนต์ส่วนตัว สะดวกค่ะ ตัวโครงการติดถนนถนนประดิพัทธ์ ที่สามารถเชื่อมกับถนนเส้นหลักๆอย่างพหลโยธินและถนนสุทธิสารวินิจฉัยได้ นอกจากนั้นตัวถนนประดิพัทธ์เองยังใช้วิ่งยาวไปเชื่อมกับถนนทหารและถนนสามเสน ใช้ลัดไปถนนราชวิถีเพื่อไปฝั่งธนฯได้ นอกจากนั้นยังใช้ไปถนนพระราม 6 , ถนนเทอดดำริ, ถนนพระราม 5 ที่สามารถใช้เชื่อมไปถนนประชาชื่นใช้วิ่งยาวผ่านรัชดาภิเษกไปจนถึงแจ้งวัฒนะ หลักสี่ได้ค่ะ
การเดินทางด้วยรถสาธารณะ มีให้เลือกใช้หลายเส้นทาง โดยจุดเด่นของโครงการอยู่ที่ห่างจาก BTS สะพานควายประมาณ 550 ม. มีฟุตบาทตลอดทางจากโครงการถึงตัวสถานีจึงทำให้เดินได้สะดวกแต่จำนวนคนใช้ฟุตบาทจะเยอะหน่อย ทำให้ในเวลาเร่งด่วนอาจจะเร่งฝีเท้าไม่ค่อยได้ จึงต้องเผื่อเวลาเดินทางให้ดีค่ะ
นอกจากนั้นยังมีป้ายรถเมล์อยู่เยื้องจากหน้าโครงการ และพี่วินมอเตอร์ไซค์อยู่ตรงปากซอยประดิพัทธ์ 21 ที่ติดกับพื้นที่ของโครงการเลย ส่วน Taxi เรียกหน้าโครงการได้เลย ภาพรวมถือว่าสะดวกไม่มีรถส่วนตัวก็อยู่โครงการนี้ได้อย่างไม่ลำบากค่ะ
การออกแบบโครงการและวัสดุ โครงการออกแบบมา 1 อาคารพักอาศัย สูง 46 ชั้น และ 1 อาคารส่วนกลางสูง 2 ชั้น บนพื้นที่ดินขนาดประมาณ 5 ไร่ มีแนวคิดการออกแบบที่คำนึงถึงความกลมกลืน และสอดคล้องไปกับธรรมชาติ Concept การออกแบบที่ออกแบบมาที่ต้องการให้ผู้อยู่อาศัยรู้สึกเหมือนอยู่ในบ้านหลังใหญ่ที่ถูกโอบกอดด้วยธรรมชาติ
ตัวอาคารรูปทรงโมเดิร์น โทนสี Earth Tone มีการบิดองศาของผนังของห้อง การออกแบบโดยรวมเน้นพื้นที่สีเขียว ให้สวนหย่อมขนาดค่อนข้างใหญ่ ส่วนกลางให้มาค่อนข้างเยอะและน่าสนใจ นอกจากส่วนกลางมาตรฐานอย่างสระว่ายน้ำ ฟิตเนสและยังมี สนามเด็กเล่นที่ชั้น 35 , Secret Garden สวนขนาดใหญ่ อาคารส่วนกลางที่ภายในมี ยูนิตร้านค้า, Co-Kitchen และ Dinning Area บนชั้น 2 ก็มี Co-Working Space พื้นที่ทำงานขนาดใหญ่เหมาะกับไลฟสไตล์คนยุคนี้ ที่บางคนสามารถทำงานได้โดยไม่ต้องเข้าออฟฟิศ และยังมี Theatre Room สำหรับดูหนังหรือ Present งานด้วย
การออกแบบห้องพักอาศัยที่นี่มีให้เลือกมากถึง 39 แบบ แต่แยกเป็นแบบหลักๆได้ตามจำนวนห้องนอน คือ 1 Bedroom มีขนาดตั้งแต่ 26.25 – 40.75 ตร.ม. , 2 Bedroom ขนาดตั้งแต่ 51.50 – 67.00 ตร.ม. , 3 Bedroom ขนาดตั้งแต่ 79.00 – 111.50 ตร.ม.
โดยทุกแบบจะถูกออกแบบมาให้ดูโปร่งไม่อึดอัดด้วยความสูงฝ้าที่ห้องปกติ 2.7 ม. กระจกภายในห้องให้มาใหญ่ดี สูงจากพื้นจนเกือบถึงฝ้าเลย ช่วยในเรื่องแสงที่เข้าถึงในห้องได้ดี การจัดฟังก์ชั่นในห้องจากที่ได้ดูในห้องตัวอย่างก็ลงตัว ไม่มีจุดไหนที่ใช้งานแล้วรู้สึกติดขัด
โครงการขายแบบ Fully Furnished ตัวเฟอร์นิเจอร์วัสดุที่ได้ถือเป็นอีกจุดเด่นของโครงการ เพราะมีการดีไซน์มาให้ใช้พื้นที่ได้อย่างคุ้มค่า โดยเฟอร์นิเจอร์ตัวมาตรฐานหลักที่จะมีมาให้ทุกห้อง เป็นแบบ Built – in คือเคาน์เตอร์ครัว Top เป็น Porcelain Slab อ่างล้างจานฝังท็อป และ Hob & Hood ของ Mexและตู้เสื้อผ้าบานกระจกสีดำ ส่วนเฟอร์นิเจอร์แบบลอยตัวสามารถเลือกได้ว่าจะรับเฟอร์นิเจอร์ครบชุดหรือเลือกรับเป็นส่วนลดแทนได้
พื้นครัว, ระเบียงและห้องน้ำใช้กระเบื้อง ส่วนห้องนอนและห้องนั่งเล่นพื้นปูลามิเนต, ประตูทางเข้าห้องได้Digital Door Lock จาก Yale และสุขภัณฑ์ครบชุดจาก Cotto ทั้งหมด พร้อม Shower Box กระจกนิรภัย
สิ่งอำนวยความสะดวก Facility เป็นอีกจุดเด่นของโครงการ โดยรวมทำออกมาได้สวยน่าใช้ตามสไตล์แสนสิริ จะมีส่วนกลางมาตรฐานในอาคารหลักคือ Lobby สูง 9.5 เมตร ที่ชั้น 1, สระว่ายน้ำแยกสระเด็กสระผู้ใหญ่ ขนาด 30 x 7 เมตร พร้อม Pool Terrace, Play Ground, Rooftop Garden, Sky Lounge, Fitness, Sauna & Stream และอาคารส่วนกลางแยกจากอาคารหลัก มี Secret Garden, Co-Kitchen, Co-Working Space, Outdoor Dinning, Theatre Room ลิฟต์โดยสารมีให้ 6 ตัว อัตราส่วนอยู่ที่ 163 ต่อลิฟท์ 1 ตัว ที่จอดรถจอดได้ที่ชั้น 2 – 8 และรอบๆอาคาร ทั้งโครงการจอดได้ 49% รวมซ้อนคัน
คะแนน
| ทำเลที่ตั้งโครงการ | 8.0 | อยู่ติดถนนประดิพัทธ์ อยู่ในย่านชุมชน ความอุดมสมบูรณ์สูง |
| การเดินทาง ใช้รถ | 8.0 | เดินทางเข้าเมืองและออกไปชานเมืองฝั่งเหนือสะดวกติดถนนหลัก และสามารถเชื่อมไปยังถนนหลักเส้นอื่นๆได้สะดวก |
| การเดินทาง ไม่ใช้รถ | 8.5 | สะดวกใกล้ BTS สะพานควายในระยะ 550 เมตร เดินสะดวกมีฟุตบาทตลอดทาง นอกจากนั้นยังมีป้ายรถเมล์หน้าโครงการและคิวพี่วินที่อยู่ติดกับซอยข้างโครงการ |
| ห้องและวัสดุ | 8.0 | ออกแบบมาดี วัสดุที่ใช้อยู่ในระดับดี ค่อนข้างคุ้มเพราะขายแบบ Fully Furnished มี ชุดเคาน์เตอร์ครัว, Hob & Hood , แอร์ , สุขภัณฑ์ในห้องน้ำ และเฟอร์นิเจอร์ลอยตัวซึ่งสามารถเลือกรับเป็นส่วนลดแทนได้ |
| สิ่งอำนวยความสะดวก | 8.0 | Facility จัดเต็มตามจำนวนยูนิตที่เยอะ มี Lobby , สวนหย่อม , Co-Working Space , ฟิตเนส , สระว่ายน้ำ, Co-Kitchen , Rooftop Garden, Play Ground, Theatre Room, Outdoor Dinning |
| ความคุ้มค่ากับราคา | 8.5 | รูปแบบโครงการออกแบบมาดี อยู่ในทำเลน่าสนใจเพราะย่านนี้เริ่มจะหาที่ดินผืนใหญ่ๆได้ยากแล้ว ใกล้ BTS ในระดับกลางๆ แต่ให้เฟอร์นิเจอร์มาคุ้ม |
| คะแนนรวมเฉลี่ย | 8.16 | ดีมาก |
สอบถามรายละเอียดเพิ่มเติมได้ที่
Tel : 1685
Website : http://www.sansiri.com
หากเพื่อนๆเห็นว่ารีวิวนี้มีประโยชน์ ช่วยกด Like เพื่อเป็นกำลังใจให้ทีมงาน ขอบคุณค่ะ
และมีความคิดเห็นหรือข้อมูลเพิ่มเติมเกี่ยวกับตัวโครงการ สามารถ Comment ได้ที่ด้านล่างของรีวิวค่ะ
แสดงความคิดเห็น เกี่ยวกับ " รีวิว คอนโด The Line พหลฯ-ประดิพัทธ์ ใกล้ทางด่วน และ รถไฟฟ้า BTS สะพานควาย 550 เมตร "