logo

คอนโด เดอะ เบส ไฮท์ มิตรภาพ-ขอนแก่น THE BASE HEIGHT KHONKAEN

โพสโดย : kraisorn / วันที่ : 24 April 2017

คอนโด เดอะ เบส ไฮท์ มิตรภาพ-ขอนแก่น THE BASE HEIGHT KHONKAEN

ที่แรก… กับชีวิตบนชั้นบรรยากาศที่สูงที่สุดในขอนแก่น
ที่แรก… ที่คุณจะได้เห็นแสงแรกของวันใหม่ก่อนใคร
ที่แรก… ที่คุณและท้องฟ้าจะอยู่ใกล้กันแค่เอื้อม
เดอะ เบส ไฮท์ มิตรภาพ – ขอนแก่น ที่เดียวที่จะทำให้คุณพบบรรยากาศดีดีในทุกๆ วัน




ชื่อโครงการ  เดอะ เบส ไฮท์ มิตรภาพ – ขอนแก่น THE BASE HEIGHT KHONKAEN
เจ้าของโครงการ  แสนสิริSANSIRI
ลักษณะห้องและขนาดห้อง – 1 Bed / 29.00 – 31.50 ตร.ม.
– 2 Bed / 58.50 – 65.00 ตร.ม.
เนื้อที่ทั้งหมด  4 ไร่ 2 งาน 84.20 ตร.ว.
จำนวนตึก  อาคารพักอาศัย 1 อาคาร และอาคารจอดรถ 1 อาคาร
จำนวนชั้น  อาคารพักอาศัย สูง 36 ชั้น และอาคารจอดรถ สูง 6 ชั้น
จำนวนห้อง  983 ยูนิต
ที่จอดรถทั้งหมด  n/a
โซน  ขอนแก่น
ขนส่งสาธารณะ  n/a
รถโดยสารที่ผ่าน  n/a
ที่ตั้ง  ถนนมิตรภาพ อำเภอเมืองขอนแก่น จังหวัดขอนแก่น
กำหนดการ  n/a
ปีที่สร้างเสร็จ  พ.ศ. 2558
ราคา  เริ่มต้น 1,590,000 บาท (ณ. วันเปิดตัว)
ราคาเฉลี่ยต่อ ตร.ม  เริ่มต้น 54,800 บ./ตร.ม.
สถานที่สำคัญใกล้เคียง 1. ห้างสรรพสินค้าเซ็นทรัลพลาซ่า ขอนแก่น
2. มหาวิทยาลัยขอนแก่น
3. โรงพยาบาลแก่นราม
สิ่งอำนวยความสะดวก – สระว่ายน้ำ, ฟิตเนส
– รปภ., กล้องวงจรปิดโครงการ
– สวนหย่อม (พร้อมพื้นที่สันทนาการกลางแจ้ง), ห้องสมุด
– Wi-Fi Internet บริเวณ Lobby (และสระว่ายน้ำ)
– อื่นๆ (แสนสิริ แฟมิลี่), สนามออกกำลังกาย (สนามฟุตซอล)
จุดเด่นของโครงการ โดดเด่น สง่างามและ ทันสมัย กับความสูง 36 ชั้น ที่สูงที่สุดในขอนแก่น ด้วยการออกแบบอาคารให้มีเส้นสายแนวตั้ง และใช้โทรสีเทาที่แสดงออกถึงความมุ่งมั่นและหนักแน่น เด่นตระหง่าน อยู่บนถนนสายมิตรภาพ พร้อมเปิดมุมมองใหม่ๆ ให้กับชีวิตด้วยการออกแบบห้องกระจกให้ยื่นออกมาจากตัวอาคาร ให้คุณเห็นวิวทั้งเมืองได้เต็มสายตาอย่างที่ไม่เคยมาก่อน


ที่ตั้งโครงการ

ถนนมิตรภาพ อำเภอเมืองขอนแก่น จังหวัดขอนแก่น

คลิก เพื่อดูแผนที่ขนาดใหญ่

:: ภาพประกอบการเดินทาง ::

ขอนแก่น2

พิกัด Google : 16.435819, 102.826033

การเดินทางเริ่มจาก แยกมะลิวัลย์ ถ.มิตรภาพ ⇒ The Base Height มิตรภาพ-ขอนแก่น *ติด Central Plaza ขอนแก่น

Screenshot_62พ้ำ

ภาพประกอบการเดินทาง แยกมะลิวัลย์บน ถ.มิตรภาพ มุ่งหน้าไป Central Plaza ขอนแก่น ซึ่งโครงการจะอยู่ติดกับห้างเลยค่ะ

Screenshot_63

เราจะเห็นคอนโด The Base Height มิตรภาพ-ขอนแก่น และ Escent ขอนแก่น

Screenshot_64

:: บริเวณโดยรอบโครงการ ::

ขอนแก่น

ศูนย์การค้า

  • Central ขอนแก่น
  • Hugz Mall
  • Fairy Plaza
  • Big C
  • Lotus
  • Makro
  • Home Pro
  • Home Hub
  • ตลาดอู้ฟู้
  • ประตูน้ำขอนแก่น
  • Global House
  • สินสิริโฮมโปร
  • ดูโฮม
  • ไทวัสดุ
  • U Center
  • Complex

สถานศึกษา

  • ม.ขอนแก่น
  • รร.สาธิตฯ มข.

ศูนย์การแพทย์

  • รพ.กรุงเทพขอนแก่น
  • รพ.ราชพฤกษ์ขอนแก่น
  • รพ.ขอนแก่น

หน่วยงานอื่น ๆ

  • สนามบินขอนแก่น
  • ศาลากลาง จ.ขอนแก่น
  • สถานีรถไฟขอนแก่น

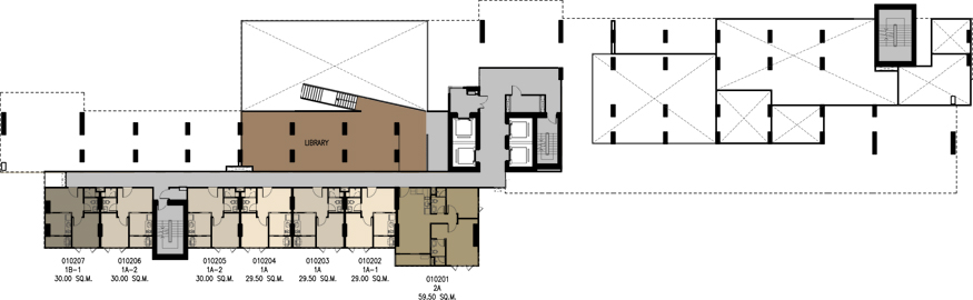
แปลนอาคาร

Master Plan


1st – 33rd floor


34th – 36th / roof

แปลนห้อง

1A


1A-1 / 1A-2 / 1A-3 / 1B / 1B-1


2A / 2B / 2C

แกลเลอรี่

สนใจติดต่อรายละเอียดเพิ่มเติมได้ที่

Call Center : 1685
E-mail : TheBase_Height@sansiri.com
Website : http://www.sansiri.com/condominium/thebase_height_khonkaen/th/


คอนโด ขอนแก่น ทำเลอื่นๆ ที่น่าสนใจ…

ไฮด์ คอนโด ขอนแก่น เริ่ม 1.49 ล้าน*
นอร์ธ พาร์ค คอนโด เอ ขอนแก่น เริ่ม 1.49 ล้าน*
ซิตี้ พาร์ค คอนโด บี ขอนแก่น เริ่ม 1.39 ล้าน*
คอนโด Ocean Residence มิตรภาพ-ขอนแก่น
คอนโด เดอะ เบส ไฮท์ มิตรภาพ-ขอนแก่น
คอนโด เดอะ เบส เทพารักษ์-ขอนแก่น


สนใจลงโฆษณากับทาง CONDONAYOO ติดต่อสอบถามรายละเอียดได้ที่
คุณวัน 086-1290293 
LINE ID : 123456786205 Email : wanchalearm.t@gmail.com
ทางเราเป็นเว็บไซต์ให้ข้อมูล ไม่ใช่เจ้าของโครงการนะครับ

แสดงความคิดเห็น เกี่ยวกับ " คอนโด เดอะ เบส ไฮท์ มิตรภาพ-ขอนแก่น THE BASE HEIGHT KHONKAEN "