
EP.283 รีวิว เดอะ ไลน์ อโศก-รัชดา THE LINE Asoke-Ratchada
Written by : THAnATH
สวัสดีผู้อ่านชาว Condonayoo ทุกคนครับ วันนี้ผมพามาชมโครงการ The Line อโศก-รัชดา จากการร่วมทุนกันระหว่าง Sansiri และ BTS ตัวพื้นที่โครงการตั้งอยู่ในทำเล New CBD ย่านพระรามเก้า ติดกับถนนดินแดงห่างจากแยกพระราม 9 ประมาณ 180 ม. ใกล้ทางด่วนศรีรัช และทางด่วนโทลล์เวย์ ห่างจาก MRT พระราม 9 ประมาณ 350 ม. และห่างจาก ARL มักกะสัน ประมาณ 750 ม. รายล้อมไปด้วยสิ่งอำนวยความสะดวกครบครัน
เดอะไลน์ อโศก-รัชดา เป็นคอนโด High Rise สูง 38 ชั้น จำนวน 1 อาคาร และอาคารจอดรถแยก 9 ชั้นพร้อมชั้นใต้ดิน 1 ชั้น จำนวน 1 อาคาร บนที่ดิน 2-2-0 ไร่ ห้องพักอาศัยมีทั้งหมด 473 ยูนิต มีห้องให้เลือกแบบ 1 ห้องนอน, 2 ห้องนอน ขนาดห้องเริ่มต้นที่ 27.5 – 50.25 ตร.ม. โครงการสร้างเสร็จพร้อมอยู่ในเดือนตุลาคม 2561
สิ่งอำนวยความสะดวกภายในโครงการมีให้ครบครัน อาทิโถงต้อนรับ, สวนส่วนกลาง พร้อมพื้นที่สันทนาการ, Smart Guest Registration, Smart Move, iBOX, BOX 24, สระว่ายน้ำ, Jacuzzi, ฟิตเนส, Steam Room, Cloud 9 Lounge, Roof top Garden, Free Wifi บริเวณส่วนกลาง, EV Charging Station, Access Card Control, กล้องวงจรปิด พร้อม รปภ. 24 ชม. ราคาเริ่มต้น 4.99 ล้านบาท
| ชื่อโครงการ | เดอะ ไลน์ อโศก-รัชดา THE LINE Asoke-Ratchada |
| เจ้าของโครงการ | บริษัท บีทีเอส แสนสิริ โฮลดิ้ง ไนน์ |
| เนื้อที่ทั้งหมด | 2-2-0 ไร่ |
| จำนวนตึก |
|
| จำนวนชั้น |
|
| จำนวนห้อง | 473 ยูนิต |
| ลักษณะห้องและขนาดห้อง |
|
| ที่จอดรถทั้งหมด | คิดเป็น 48% (รวมซ้อนคัน) |
| โซน | เขตดินแดง |
| ขนส่งสาธารณะ | – รถไฟฟ้า MRT พระรามเก้า 350 เมตร – Airport Link มักกะสัน 750 เมตร – ทางยกระดับศรีรัช (ทางด่วนขั้นที่ 2) |
| รถโดยสารที่ผ่าน | n/a |
| ที่ตั้ง | ถนนดินแดง แขวงดินแดง เขตดินแดง กทม. |
| กำหนดการ | เปิดจอง 25-26 มิ.ย. 2559 |
| ปีที่สร้างเสร็จ | ตุลาคม 2561 |
| ราคา | เริ่มต้น 4.99 ล้านบาท |
| ราคาเฉลี่ยต่อ ตร.ม | ประมาณ 174,000 บาท/ ตร.ม. |
| ค่าส่วนกลางและกองทุน |
|
| สถานที่สำคัญใกล้เคียง |
|
| สิ่งอำนวยความสะดวก |
|
| จุดเด่นของโครงการ | “เดอะ ไลน์ อโศก-รัชดา” THE LINE Asoke-Ratchada ภายใต้แนวคิด “Balance is Everything ชีวิตกับความสมดุล” เดินทางสะดวก เพียง 350 ถึง MRT พระราม 9 Pre-Sale 25-26 มิ.ย. นี้ ราคาเริ่มต้น 3.99 ล้านบาท* |
ที่ตั้งโครงการ
ติดถนนดินแดง แขวงดินแดง เขตดินแดง กทม.
พิกัด Google โดยประมาณ : 13.75601, 100.5632
The Line อโศก-รัชดา ตั้งอยู่ในโซนพระราม 9 ซึ่งเป็นย่าน New CBD แห่งใหม่ ถึงแม้ตัวโครงการจะมีชื่อ อโศก-รัชดา แต่จริงๆแล้วพื้นที่โครงการอยู่ติดกับถนนดินแดงครับ ห่างจากแยกพระราม 9 ประมาณ 180 ม. การเดินทางหลักๆค่อนข้างสะดวกพอสมควรเนื่องจากอยู่ในย่านที่เส้นทางเชื่อมต่อไปยังเส้นสำคัญต่างๆได้ ถนนดินแดงเป็นเส้นที่ตัดมาจากแยกสามเหลี่ยมดินแดงที่ตัดกับถนนราชวิถี และถนนราชปรารภ มาผ่านแยกดินแดงที่ติดกับถนนวิภาวดีรังสิต และมาสิ้นสุดที่แยกพระรามเก้า ที่ตัดกับถนนรัชดาภิเษก ถนนอโศกดินแดง และถนนพระราม 9 ตัวโครงการอยู่ใกล้กับจุดกลับรถทั้งจากฝั่งที่มุ่งหน้ามาแยกพระรามเก้า และฝั่งเดียวกับโครงการ
การเดินทางเข้าเมือง ถนนดินแดงวิ่งไปทางแยกสามเหลี่ยมดินแดงเชื่อมเข้าถนนราชวิถีก็ถึงแนุสาวรีย์ชัยฯแล้วครับ จากนั้นก็เชื่อมต่อไปพญาไท ราชเทวี สยามได้เลย หรือเส้นราชวิถีวิ่งเชื่อมเข้าเขตพระนครได้เลย ถนนอโศกดินแดงวิ่งไปเชื่อมกับถนนอโศกมนตรีตรงแยกอโศก-เพชรบุรี มาออกเส้นสุขุมวิทตรงแยกอโศกได้ จากนั้นก็วิ่งไปเพลินจิต ชิดลม สยามได้ หรืออีกฝั่งไปพร้อมพงษ์ ทองหล่อ เอกมัยก็ได้ครับ หรือจากแยกอโศกตรงข้ามแยกไปออกพระรามสี่ เชื่อมเข้าสีลม สาทรได้เลย และตรงถนนอโศกดินแดงจะมีจุดขึ้นทางด่วนศรีรัชให้ขึ้นอีกด้วย
การเดินทางออกนอกเมือง ถนนดินแดงวิ่งมาเข้าถนนวิภาวดีรังสิตวิ่งออกนอกเมืองไปผ่านห้าแยกลาดพร้าว ดอนเมือง ยาวออกรังสิต อยุธยาได้ มีทางด่วนโทลล์เวย์ให้ขึ้น จากถนนดินแดงถ้าไปเชื่อมเข้าถนนราชวิถีข้ามสะพานซังฮี้ไปโซนจรัญฯ ปิ่นเกล้าได้เลย ถนนรัชดาภิเษกวิ่งออกไปทางห้วยขวาง สุทธิสาร ลาดพร้าว เชื่อมกับพหลโยธินและวิภาวดีรังสิตได้ หรือยาวไปออกวงศ์สว่างได้ ถนนพระราม 9 สามารถไปประดิษฐ์มนูธรรม มีซอยเชื่อมถนนเพชรบุรีเข้าเอกมัย ทองหล่อได้โดยที่ไม่ต้องใช้เส้นสุขุมวิท หรือเลยไปรามคำแหง พัฒนาการ และเชื่อมออกมอเตอร์เวย์ได้เลย
ทางด่วน ที่อยู่ใกล้โครงการคือทางด่วนศรีรัชห่างจากโครงการประมาณ 1.2 กม. จากโครงการกลับรถแล้วมาเลี้ยวขวาเข้าถนนอโศกดินแดงจะเจอป้ายบอกขึ้นทางด่วน
ทางด่วน จุดขึ้นทางด่วนศรีรัชอีกฝั่งอยู่ห่างจากโครงการประมาณ 2.1 กม. จากโครงการกลับรถมาเข้าถนนพระราม 9 วิ่งตรงมาจะเจอป้ายบออกขึ้นทางด่วนครับ
การเดินทางโดยสาธารณะ มีให้เลือกหลากหลาย เลยหน้าโครงการไปหน่อยมีป้ายรถเมล์วิ่งผ่านหลายสาย วินมอเตอร์ไซค์จะอยู่ใกล้ๆ Amsterdam ประมาณ 80 ม. นอกจากนี้ยังมีรถตู้วิ่งผ่านหน้าโครงการโบกขึ้นได้เลยครับ หรือถ้าเดินมาหน้า ฟอร์จูน และหน้าเซ็นทรัลพระราม 9 มีรถเมล์วิ่งผ่านหลายสาย และมีรถตู้ให้ใช้บริการด้วยครับมีหลายสายเช่นกัน ส่วนการเดินทางโดยรถไฟฟ้าโดยโครงการห่างจากรถไฟฟ้าใต้ดินสถานีพระราม 9 (ประตู 1) ประมาณ 350 เมตร ถ้าใครทำงานหรือเรียนอยู่ย่านอโศก สีลม สามย่าน หรือตามแนวรถไฟฟ้า ถือว่าเดินทางได้โดยไม่ต้องใช้รถเลยไม่ต้องมานั่งเสียเวลารถติด และยังสามารถไปเปลี่ยนเป็น BTS โดยสถานีที่เชื่อมต่อได้มีสถานีสุขุมวิท และสีลม
หรือใครจะนั่ง MRT มาลงที่สถานีเพชรบุรีเพื่อมาต่อแอร์พอร์ตลิงค์สถานีมักกะสันก็ได้ครับ โดยตัวสถานีห่างจากโครงการประมาณ 750 ม. ระยะนี้ใครจะเดินก็พอไหว หรือไม่ก็พึ่งพี่วินก็ได้ครับ และห่างจากแอร์พอร์ตลิงค์สถานีพญาไทเพียง 2 สถานีเผื่อใครทำงานย่านนี้ก็สะดวกครับและเป็นจุดเชื่อมต่อกับ BTS พญาไทอีกด้วย และในอนาคตจะมีโครงการรถไฟฟ้ารถไฟฟ้าความเร็วสูงเชื่อม 3 สนามบิน ดอนเมือง-สุวรรณภูมิ-อู่ตะเภา ส่วนสถานีเชื่อมต่อต้องรอดูอีกทีครับ นอกจากนี้ยังมีบริการเรือด่วนคลองแสนแสบวิ่งระหว่างสะพานผ่านฟ้าถึงวัดศรีบุญเรือน โดยท่าเรือที่ใกล้โครงการคือท่าเรืออโศกห่างจากโครงการประมาณ 1.1 กม. โดยรวมถือว่าสะดวกสามารถเชื่อมต่อระบบขนส่งสาธารณะได้เยอะดี ไม่มีรถส่วนตัวก็อยู่โครงการนี้ได้สบายครับ
จากภาพถ่ายดาวเทียมจะเห็นว่าพื้นที่รอบๆโครงการส่วนใหญ่จะเต็มไปด้วยอาคารพาณิชย์ ตึกออฟฟิศ ห้างสรรพสินค้า และคอนโดมิเนียมที่ต่างก็เข้ามาจับจองที่ดินย่านนี้ ทำให้เกิดความคึกคักขึ้นมากพอสมควร พื้นที่โครงการ The Line อโศก-รัชดา ถ้าเทียบกับโครงการใกล้เคียง จะได้เปรียบเรื่องทำเลที่ใกล้ MRT และห้างสรรพสินค้ามากกว่า อีกเรื่องคือถ้าใช้รถส่วนตัวค่อนข้างสะดวกกว่าเพราะใกล้จุดกลับรถทั้งสองฝั่ง ในขณะที่โครงการตามแนวเส้นออโศกดินแดงจะยุ่งยากกว่าหน่อยครับ แต่ก็มีข้อเสียที่รอบด้านพื้นที่โครงการถูกบล็อควิวจากโครงการเพื่อนบ้านเกือบหมดเลยครับ ถ้าใครสนใจต้องลองขึ้นไปดูวิวจริงก่อนแล้วลองเปรียบเทียบราคาดูครับว่ารับได้มั้ย
การเดินทางวันนี้เริ่มจากถนนสุขุมวิทตรง BTS พร้อมพงษ์ ขับมาตรงแยกอโศกและเลี้ยวขวาเข้าถนนอโศกมนตรี ผ่านแยกเพชรบุรีเข้าถนนอโศกดินแดงมุ่งหน้าแยกพระรามเก้า จากนั้นให้เลี้ยวซ้ายตรงแยกพระรามเก้าเข้าถนนดินแดงประมาณ 180 ม. โครงการจะอยู่ซ้ายมือครับ
สรุปการเดินทาง ถนนสุขุมวิท > แยกอโศก > ถนนอโศกมนตรี > ถนนอโศกดินแดง > ถนนดินแดง > The Line อโศก-รัชดา
เร่ิมจากถนนสุขุมวิทมุ่งหน้าไปแยกอโศก ตรงหน้าเป็น BTS พร้อมพงษ์ สองฝั่งซ้ายขวาติดกับสถานีจะเป็น Emporium และ Emquartier
ถัดมาซ้ายมือเป็นสวนเบญจสิริ
เลยมาอีกหน่อยจะเป็น Emsphere กำลังเริ่มก่อสร้างครับ
จากนั้นชิดขวาตามป้ายเพชรบุรีครับ
และจะเจอแยกอโศก ให้เลี้ยวขวา ตรงหน้าจะเป็น BTS อโศกเป็นสถานีเชื่อมต่อกับ MRT สุขุมวิท
เลี้ยวขวามาจะเป็นถนนอโศกมนตรี ขับตรงไปครับ ย่านนี้จะเป็นย่าน CBD ที่สำคัญแห่งหนึ่งของกรุงเทพฯ รอบๆจะเต็มไปด้วยห้างสรรพสินค้า อาคารสำนักงาน บริษัทต่างๆ สถาบันการศึกษา รวมไม่ถึงโรงแรม และคอนโดมิเนียมระดับ High-End
ถนนเส้นนี้การจราจรค่อนข้างหนาแน่นใช่ช่วงเวลาเร่งด่วน
ถัดมาขวามือเป็น รพ.จักษุ รัตนิน
เลยมาอีกจะเป็นแยกอโศก-เพชรบุรี ขวามือเป็น Singha Complex ซึ่งเป็น Community Mall + Office Mix Use ขนาดใหญ่ของ บริษัท สิงห์ เอสเตท จำกัด (มหาชน) เป็นบริษัทในเครือของบริษัท บุญรอดบริวเวอรี่ จำกัด ผู้ผลิตเบียร์สิงห์นั่นเอง ตอนนี้เปิดให้ใช้บริการแล้วมีร้านค้า ร้านอาหารต่างๆหลายร้านเลย อยู่ห่างจากโครงการประมาณ 950 ม. มาเดินเล่นกันได้
ข้ามแยกมาตรงหน้าจะเป็น ARL มักกะสัน ตรงที่มีจุด Interchange ระหว่าง MRT เพชรบุรี และ ARL มักกะสันครับ ถ้าใครที่จะเดินทางด้วยแอร์พอร์ตลิงค์ต้องมาขึ้นที่นี่ครับ ห่างจากโครงการประมาณ 750 ม. ในอนาคต พื้นที่สีเขียวแปลงใหญ่บริเวณมักกะสัน 497 ไร่ ที่ติดกับตัวสถานี ARL มักกะสัน จะมีโครงการระดับประเทศที่กำลังวางแผนกันอยู่ ต้องรอกันอีกสักพักครับ
จากนั้นตรงมาแยกพระราม 9 แล้วให้เลี้ยวซ้ายต่อครับ
เลี้ยวมาจะเป็นถนนดินแดง ซ้ายมือจะเป็นพื้นที่โครงการ Ashton อโศก-พระราม 9 มองไปข้างหน้าเราก็จะเป็นตัวโครงการครับ
ถัดมาจะเป็นพื้นที่ก่อสร้างโรงแรม 26 ชั้น ซึ่งอยู่ติดกับรั้วโครงการเลย
และจะเจอทางเข้าออกโครงการอยู่ติดกับถนนดินแดงเลย
เงยหน้าจะมองเห็นตัวอาคารพอดี
พื้นที่โครงการทิศเหนือติดกับถนนดินแดง ฝั่งตรงข้ามส่วนใหญ่จะเป็นอาคารพาณิชย์ 3-5 ชั้น ทิศใต้หรือด้านหลังโครงการติดกับคลองสามเสน ถัดไปเป็นโครงการ Life อโศกพระราม 9 สูง 42, 45 ชั้น วิวก็โดนบังไปครับ ฝั่งตะวันตกเฉียใต้ยังมีพื้นที่ว่างเปล่าอยู่มองออกมาเห็นสวนมักกะสัน แต่ที่ดินค่อนข้างกว้างขึ้นอาคารสูงได้ อนาคตก็ไม่น่ารอดครับ ฝั่งทิศตะวันตกติดกับอาคารพาณิชย์ 5 ชั้น ถัดไปเป็นโครงการ KnightsBridge Space พระราม 9 สูง 27 ชั้นรูปแบบห้อง Loft ฝ้าสูง 4.2 ม. วิวฝั่งนี้ก็โดนบังเช่นกันครับ และทิศตะวันออกติดกับโรงแรมสูง 26 ชั้น ถัดออกไปอีกเป็นโครงการ Ashton อโศก-พระราม 9 สูง 46, 50 ชั้น
ด้านหน้าโครงการติดกับถนนดินแดง
ฝั่งด้านข้างโครงการซ้ายมือติดกับโรงแรม 26 ชั้น ถัดออกไปอีกเป็น Ashton อโศก-พระราม 9 สูง 40-50 ชั้น วิวก็โดนบล็อคไปครับฝั่งนี้
ด้านข้างโครงการอีกฝั่งติดกับอาคารพาณิชย์ 5 ชั้น ถัดออกไปอีกจะเป็นโครงการ KnightsBridge Space พระราม 9 สูง 27 ชั้น
ฝั่งตรงข้ามด้านหน้าโครงการจะเป็นสะพานข้ามแยกพระราม 9
มองไปทางซ้าย จะเห็นจุดกลับรถไปอีกฝั่ง
มองไปทางขวาก็เห็นจุดกลับรถอีกฝั่งครับ
เดี๋ยวผมพาเดินจากโครงการไป MRT พระราม 9 (ประตู 1) ระยะทางประมาณ 350 ม.
จากโครงการเดินตามทางเท้าไปข้ามทางม้าลายข้างหน้าครับ
ข้ามทางม้าลายไปอีกฝั่ง
มองไปฝั่งตรงข้ามจะเห็นร้านอาหารหลายร้านเลย
มองไปทางซ้าย ตามริมทางเท้าจะมีร้านค้าร้านอาหารหลายร้านเลย
มองไปอีกจะเห็นซอยอยู่เจริญ ปากซอยมี 7-11
ข้ามถนนมาแล้วเดินไปทางขวาตามลูกศรสีแดงไป ซ้ายมือเป็นซอยอยู่เจริญ
ภายในซอยอยู่เจริญจะมีร้านค้า ร้านอาหาร และตลาดอยู่เจริญในนี้ด้วย ซอยนี้จะไปเชื่อมกับซอยรัชดาภิเษก 3 ได้ครับ
หน้าปากซอยอยู่เจริญมี 7-11
เลยมามีร้านขายอุปกรณ์ก่อสร้าง
ถัดมาจะเจอซอยเกียรติชัยซ้ายมือ
เดินมาอีกจะเจอร้านขายยาซ้ายมือ
ตรงมาจะเจอแยกพระราม 9 เลี้ยวซ้ายตามทางเท้าไปครับ
เงยหน้าจะเห็น G Land Tower และ Unilever
จากแยกมองกลับไปที่ตัวโครงการ จะเห็นตัวอาคารโดดเด่น แต่อีก 2-3 ปี จะมีอีกหลายโครงการที่สร้างเสร็จ วิวจะไม่โล่งแบบนี้แล้วครับ
เดินตามทางเท้าไปอีกครับ ตอนนี้เราเดินอยู่ริมถนนรัชดาภิเษกแล้ว
เดินมาอีกนิดเดียวก็จะเจอ MRT พระราม 9 ประตู 1 ฝั่งเดียวกับ Fourtune Town ระยะเดินจากโครงการมาประมาณ 350 ม. สบายๆเลยครับ
มองไปฝั่งตรงข้ามจะเป็น Central พระราม 9 ถ้าจะเดินข้ามฝั่งก็มุดใต้ดินไปครับสะดวกสบาย

ความอุดมสมบูรณ์รอบๆโครงการในระยะเดินส่วนใหญ่จะอยู่ฝั่งตรงข้ามโครงการเดินข้ามถนนไปหน่อย มีร้านค้า ร้านขายยา ร้านอาหารตามสั่ง ร้านก๋วยเตี๋ยว มีร้านสะดวกซื้อ 7-11 อยู่หน้าปากซอยอยู่เจริญ ภายในซอยอยู่เจริญมีร้านค้า และตลาดอยู่เจริญด้านในเผื่อใครชอบทำอาหาร หรือเดินไปฟอร์จูน เซ็นทรัลพระรามเก้าเพียงไม่กี่ร้อยเมตรเลือกกินเลือกช้อปได้เลย ถ้ามาฝั่งอโศกมี Terminal21 และ โรบินสัน ตรงแยกเพชรบุรีมี Singha Complex ที่เปิดให้ใช้บริการแล้วมีร้านค้า ร้านอาหารให้เลือกพอสมควร ส่วนสถานศึกษาใกล้เคียงมีมหาวิทยาลัยศรีนครินทรวิโรฒ ประสานมิตร และโรงเรียนสาธิต มศว โรงเรียนนานาชาติ นอกจากนี้ยังมีสถานพยาบาลใกล้เคียงคือโรงพยาบาลพระราม 9 โรงพยาบาลปิยะเวท โรงพยาบาลบำรุงราษฎร์
สถานที่สำคัญใกล้เคียง
แยกและถนนสำคัญใกล้เคียง
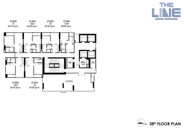
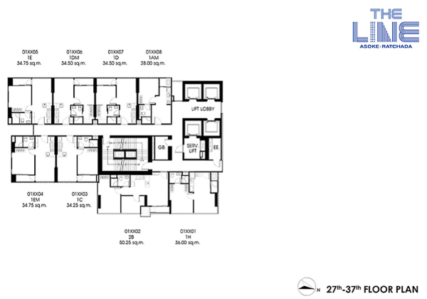
Floor Plan
Master Plan โครงการ จากทางเข้าโครงการมาจะเจอจุด Drop Off และป้อมยาม ถนนในโครงการเป็นแบบวิ่งสวนกันได้ เข้ามาจะเจอที่จอดรถใต้อาคารวนมาด้านหลังและด้านข้างอีกฝั่ง และมีทางเชื่อมไปยังอาคารจอดรถ 9 ชั้น และชั้นใต้ดิน 1 ชั้น ด้านหน้าอาคารจอดรถมีที่จอดกลางแจ้ง รวมทั้งโครงการ จอดซ้อนคันคิดเป็น 48% อาคารจอดรถมีลิฟท์โดยสารให้ 2 ตัว ในตัวอาคารชั้นล่างจะเป็น Lobby พื้นที่กว้างพอสมควรมีบันไดวนขึ้นไปยังชั้น 2 ลิฟท์โดยสารมี 3 ตัว อัตราส่วน 157 : 1 และลิฟท์ขนของ 1 ตัว
แปลนชั้น 2 ส่วนด้านหน้าจะเป็นส่วนของ Lobby ขึ้นได้จากบันไดวนที่ชั้น 1 ส่วนลูกบ้านชั้นนี้เดินออกมาได้เลยครับ มี Terrace Garden ยื่นออกไปด้านนอก ยูนิตพักอาศัยเริ่มที่ชั้นนี้อาจจะดูเตี้ยไปหน่อย มียูนิตทั้งหมด 12 ยูนิต
แปลนชั้น 3-22 เหมือนกันและเป็นชั้นที่มียูนิตเยอะที่สุดครับทั้งหมด 17 ยูนิต มี 1 Bedroom 16 ยูนิต และ 2 Bedroom 1 ยูนิต โครงการนี้จะเน้นห้อง 1 Bedroom มากกว่าครับ ส่วน 2 Bedroom ที่นี่จะมีชั้นละ 1 ห้องและบางชั้นไม่มี ตัวลิฟท์โดยสารจะอยู่ฝั่งทิศตะวันตก บันไดหนีไฟมี 2 จุดครับ
ชั้น 23 ห้องพักอาศัยจะเหลือ 9 ยูนิต ส่วนที่หายไปจะเป็นงานระบบของสระว่ายน้ำครับ ด้านหน้าจะมี Terrace ซึ่งลงมาได้จากชั้น 24 เท่านั้น
ชั้น 24 ห้องพักอาศัยมี 6 ยูนิต ชั้นนี้เป็น Facility หลักมีสระว่ายน้ำขนาด 30 x 5 ม. มีสระเด็ก และส่วนที่เป็น Jacuzzi มีห้องน้ำแยกชาย-หญิงพร้อม Steam Room ปลายสระด้านหน้าสามารถเดินลงไปยัง Terrace ชั้น 23 หรือเดินขึ้นไปชั้น 25 ที่เป็นห้องฟิตเนสได้
ชั้น 25 ห้องพักอาศัยมี 6 ยูนิต มีประตูกั้นแยกส่วนต้องใช้ Key Card ส่วนด้านหน้าเป็นห้องฟิตเนส จะขึ้นลิฟท์มาที่ชั้น 25 หรือเดินบันไดขึ้นมาจากชั้น 24 ตรงสระว่ายน้ำก็ได้ จากห้องฟิตเนสมีบันไดที่เดินขึ้นไปชั้น 26 ได้อีกครับ
ชั้น 26 มีห้องพักอาศัย 6 ยูนิต ชั้นนี้เดินออกมาสวนไม่ได้นะครับ สวนชั้น 26 เดินขึ้นได้จากชั้น 25 เท่านั้น
ชั้น 27-37 จะเป็นห้องพักอาศัยทั้งหมด ชั้นละ 8 ยูนิต ชั้นนี้จะเป็นส่วนยอดอาคาร
ชั้น 38 ห้องพักอาศัยเหลือ 6 ยูนิต อีก 2 ยูนิตที่หายไปจะเป็น Lounge ลูกบ้านขึ้นมานั่งเล่นชมวิว นั่งทำงาน ได้ที่ชั้นนี้ครับ
ชั้นดาดฟ้าจะเป็นสวน ขึ้นได้จากบันไดเท่านั้น ลิฟท์โดยสารจะถึงแค่ชั้น 38 พื้นที่จะแบ่งเป็นสนามหญ้า ที่นั่งแบบ Sitting Bench และ Sitting Corner ส่วนมุมด้านหน้าเป็น Skyline Day Bed
โครงการ
The Line อโศก-รัชดา เป็นโครงการที่ 4 ในแบรนด์ The Line ของแสนสิริ โดยโครงการนี้เปิดขายเมื่อวันที่ 25-26 มิถุนายน 2559 และปิดการขายได้ในวัน Pre-Sale ในราคาเปิดตัวห้องโปรโมชั่นเริ่มต้นที่ 3.99 ล้านบาท* ปัจจุบันโครงการสร้างแล้วเสร็จพร้อมเข้าอยู่ ตอนนี้อยู่ในช่วงโอนกรรมสิทธิ์ มีห้องหลุดดาวน์มาให้เลือกกันพอสมควร โดยที่โครงการขายอยู่ตอนนี้ 1 Bed เร่ิม 4.99 ล้านบาท ส่วนราคา Resale เฉลี่ยต่อตารางเมตรประมาณ 174,000 บาท ใครที่สนใจโครงการนี้ก็ลองแวะเข้าไปเยี่ยมชมกันได้ครับ
รูปแบบโครงการเป็นคอนโด High Rise สูง 38 ชั้น 1 อาคาร และอาคารจอดรถแยก 1 อาคารสูง 9 ชั้นและชั้นใต้ดิน 1 ชั้น ตั้งอยู่บนที่ดินขนาด 2-2-0 ไร่ โดยมีคอนเซ็ปต์คือ “Balance is everything” ด้วยทำเลที่ตั้งของโครงการที่เชื่อมต่อการเดินทางได้หลายเส้นทาง และด้วยบริบทของผังเมืองที่มีถนนเป็นแกน ได้นำเสนอส่วนโค้งของถนนออกมาแสดงให้เห็นเด่นชัดเหมือนแสงไฟของถนนในช่วงเวลากลางคืน แสดงถึงความลื่นไหล สอดคล้องกับสภาพเมืองหลวง การออกแบบตัวอาคารรูปทรงตัว I เรียบๆวางอาคารยาวตามแนวที่ดิน เล่นลวดลายที่ Facade ใช้วัสดุ Perforated Metal มีการเจาะรูกึ่งทึบกึ่งโปร่งมาใช้โดยแสงท่ีผ่านวัสดุเหมือนแสงไฟยามค่ำคืน สีภายนอกอาคารหลักๆจะใช้โทนเทาเข้ม ชั้นพักอาศัยจะเริ่มที่ชั้น 2-38 ส่วนกลางอยู่ที่ชั้น 1, 2, 23-26, ดาดฟ้า จอดรถได้ที่ชั้น 1 ใต้อาคาร และมีอาคารจอดรถแยก 9 ชั้นพร้อมชั้นใต้ดิน 1 ชั้น
โครงการนี้เป็นคอนโด Smart Building ที่แรกเลยก็ว่าได้ครับ โดยทางแสนสิริได้เพิ่มเทคโนโลยีใหม่ๆมาใช้ ครอบคลุมใน 3 ด้าน คือ iConvenience ความสะดวกสบาย, iSafe ความปลอดภัย, iGreen ด้านประหยัดพลังงาน เพื่อความสะดวกของลูกบ้านครับ
เร่ิมจากด้านหน้าโครงการติดกับถนนดินแดง มีทางเข้าสำหรับรถและประตูสำหรับคนเดินเข้าออก การออกแบบทางเข้ามีการออกแบบให้เกิดความ Balance ในแง่ของ SEE AND BE SEEN การมองเห็นภายในและภายนอกโครงการ เพื่อให้เกิดความน่าสนใจ โดยที่โครงการจะไม่ดูปิดกั้นจากสภาพแวดล้อม และดูเชื้อเชิญให้เห็นบรรยากาศภายในโครงการ โดยออกแบบรั้วทางเข้าแบบ Pixel มาประกอบกันด้วยวัสดุประเภทโลหะที่มีความสะท้อนมันวาวและมีการค่อยๆคลายตัว จากส่วนที่โปร่งที่สามารถมองเห็นบริเวณ Lobby โครงการบางส่วนไปสู่ส่วนที่ทึบที่เป็นพื้นที่สวนภายในโครงการด้วยเส้นสายที่เป็น Curve Line ทำให้เกิดการเคลื่อนไหวที่น่าสนใจและต่อเนื่องเข้าไปในโครงการที่เป็นพื้นที่สีเขียวได้อย่างลงตัว
รั้วด้านหน้าโครงการเป็นแบบ Pixel วัสดุประเภทโลหะที่มีความสะท้อนมันวาวดูสวยงาม
เดินเข้ามาจะเป็นถนนในโครงการเป็นแบบ Two way ตรงเข้าไปเป็นที่จอดรถ ขวามือเป็นจุด Drop Off ซ้ายมือเป็นป้อม รปภ.
บริเวณป้อม รปภ. ผนังตกแต่งเป็น Pixel เหมือนรั้วหน้าโครงการ
มองไปฝั่งจุด Drop Off
เงยหน้ามองตัวอาคาร
ถัดเข้ามาจะเจอไม้กระดกแยกทางเข้าออก
ใช้ Access Card เป็นแบบ Easy Pass และมีเครื่องสำหรับสแกน QR Code ไว้สำหรับผู้ที่มาติดต่อเวลามีเพื่อนมาหาเรา เราก็ส่ง QR Code ให้เพื่อน ใช้สแกนเข้าไปได้เลย
ผ่านเข้ามาขวามือจะมีที่จอดรถใต้อาคาร ซ้ายมือแนวรั้วโครงการปลูกต้นไม้ไว้ให้
ถัดเข้ามาขวามือจะเป็น EV Charging Station มีจำนวน 2 เครื่อง 4 หัวจ่ายไฟฟ้า
ส่วนกลางที่นี่จะมีบริการใหม่ของแสนสิริบนแพลตฟอร์ม “Smart Move” บริการยานพาหนะระบบเช่าในโครงการของแสนสิริเพื่ออำนวยความสะดวกให้ลูกบ้าน โดยได้ Haupcar (ฮอปคาร์) ผู้พัฒนาแพลตฟอร์มและให้บริการคาร์แชร์ริ่งเจ้าแรกของไทยเข้ามาเป็นพันธมิตรในการบริหารระบบจัดการ การจองและปล่อยเช่ารถในรูปแบบเอ็กซ์คลูซีฟเฉพาะสำหรับลูกบ้านในโครงการ โดยเปิดตัวให้บริการครั้งแรกที่โครงการ The Line จตุจักร-หมอชิต ด้วยรถยนต์ BMW i3 เป็นรถยนต์ไฟฟ้าเต็มรูปแบบ รุ่นแรกจาก BMW และอีกรุ่นคือ Hyundai IONIQ พร้อมเตรียมให้บริการในอีกหลายโครงการของแสนสิริเอง ซึ่ง The Line อโศก-รัชดา เป็นอีกโครงการที่นำมาใช้ครับ
Smart Move จะอำนวยความสะดวกให้กับลูกบ้านด้วยระบบจองรถและปลดล็อครถออนไลน์ได้ ผ่าน Home Service Application ซึ่งจะเชื่อมต่อไปยัง Haupcar Application โดยจะมีการคิดค่าบริการตามจริงเป็นราย 30 นาที โดยให้บริการรอบแรกเวลา 05.00 น. สิ้นสุดที่เวลา 02.00 น. ในแต่ละวัน เพื่อให้มีเวลาชาร์ตไฟฟ้าอย่างน้อย 3 ชั่วโมงต่อวัน
เดินมาด้านหลังอาคาร
วนมาด้านข้างอีกฝั่งมีที่จอดรถใต้อาคาร ซ้ายมือเป็นทางเชื่อมไปยังอาคารจอดรถ
เลี้ยวซ้ายมาจะเจอทางเข้าอาคารจอดรถ จะมีไม้กระดกกั้นอีกส่วน
อาคารจอดรถสูง 9 ชั้น และมีชั้นใต้ดิน 1 ชั้น
ผ่านเข้ามาจะมีที่จอดกลางแจ้งส่วนนี้ และเข้าไปจอดในอาคาร
เข้ามาในอาคารจอดรถ เลี้ยวขวาขึ้นไปชั้นบน หรือเบี่ยงซ้ายลงชั้นใต้ดิน
วนขึ้นไปดูชั้นบนครับ
ช่องจอดรถจะแบ่ง 2 ฝั่งซ้ายขวา แต่ละชั้นจะมีระบบ Telecom ไว้ให้ลูกบ้านติดต่อ รปภ. มาช่วยเลื่อนรถที่จอดซ้อนคันหรือกรณีฉุกเฉินได้
แต่ละชั้นจะมีทางเชื่อมเข้าลิฟท์ขึ้นลงอาคารจอดรถ มี 2 ตัว
ภายในลิฟท์โดยสาร
ลงมาชั้น 1 มีประตูเดินเชื่อมออกไปยังตัวอาคารพักอาศัย
เดินออกมาจากอาคารจอดรถ จะเห็นว่ามีหลังคายาวตามแนวทางเดิน แต่จะไม่ได้ช่วยกันแสงแดดหรือฝนแบบจริงจังนะครับ ถ้าฝนตกเบาๆก็พอช่วยได้บ้างครับ
เดินตามทางเท้าไปครับ
ทางเดินจะมาเชื่อมเข้า Lobby ได้พอดีครับ ตรงนี้จะมีสวนหย่อม
บริเวณทางเข้า Lobby ต้องใช้ Key Card
ถัดมาจะเป็นสวนด้านข้าง
รั้วส่วนนี้ออกแบบมาให้เป็นเหมือนกำแพงต้นไม้ บังวิวอาคารด้านข้างโครงการไปในตัวครับ
มีส่วนที่เชื่อมมาจากรั้วโครงการด้านหน้าที่เป็น Pixel
มองกลับไปฝั่งที่เราเดินมาครับ
มองไปฝั่งด้านหน้าอาคารจะเห็นแบบนี้
เดินออกมาจากสวนจะเจอจุด Drop Off พอดีครับ
ต้วอาคารด้านหน้าตกแต่งฟาซาดด้วย Perforated Metal ที่มีการเจาะรูกึ่งทึบกึ่งโปร่ง ยาวตลอดแนวอาคาร ใช้สีดำและสีน้ำเงิน มีลูกเล่นไฟส่องตรงเส้นสีน้ำเงินเวลากลางคืน
บริเวณจุด Drop Off
ประตูทางเข้า Lobby เป็นกระจกบานเปิด 2 บาน
อย่างที่บอกว่าโครงการนี้เป็นคอนโด Smart Building ได้เพิ่มเทคโนโลยีในด้าน iConvenience เพื่อเพิ่มความสะดวกสบาย อย่างตรงหน้าทางเข้า Lobby ใช้ระบบ Smart Guest Registration เป็นระบบลงทะเบียนสำหรับ Visitor หรือบุคคลภายนอกที่เข้ามาภายในโครงการ เป็นเทคโนโลยีที่แสนสิริพัฒนาขึ้นมาใช้กับโครงการนี้เป็นครั้งแรก โดยลูกบ้านสามารถสร้าง QR Code กำหนดวันเวลา ผ่านทาง Home Service Application ของแสนสิริ ให้กับเพื่อนของเรา เพื่อใช้สำหรับสแกนผ่านตั้งแต่ทางเข้าที่จอดรถ ประตูทางเข้า Lobby ไปจนถึงลิฟต์โดยสารเพื่อขึ้นไปห้องของเราได้โดยที่เราไม่ต้องลงมารับด้านล่าง ถ้าในกรณีที่ผู้มาติดต่อไม่ได้มีการนัดล่วงหน้ากับเจ้าของห้อง ผู้มาติดต่อสามารถใช้บัตรประชาชนลงทะเบียนที่เครื่องหน้าประตู เพื่อออก QR Code และเข้าไปนั่งรอลูกบ้านได้ที่ Lobby ในรูปที่เห็นกลมๆนั่นคือตัวสแกน QR Code ส่วนสี่เหลี่ยมเล็กๆนั่นคือตัวสแกนบัตรสำหรับลูกบ้าน ส่วนเครื่องที่มีจอคือใช้สำหรับลงทะเบียนนั่นเองครับ
เปิดประตูเข้ามาใน Lobby ตกแต่งมาแบบเรียบหรูใช้โทนสีเทาฟ้า เสมือนแสงไฟที่สะท้อนไปบนท้องฟ้ายามค่ำคืน และยังคงความหรูที่เป็น Signature ของแสนสิริเองคือใช้พื้นหิน Calcite Bianco เป็นพื้นหินควอร์ตที่มีสีฟ้าอ่อนที่เกิดจากน้ำแร่ ซึ่งเป็นหินที่ใช้ในการทำคริสตัล
เดินเข้ามาแล้วมองกลับไปที่ประตูทางเข้า
โถงล็อบบี้ส่วนแรกฝ้าสูงถึง 6.9 ม. วางชุดโซฟาไว้รองรับลูกบ้าน พื้นเป็นหิน Calcite Bianco และที่ผนังตกแต่งด้วยกระจกลายผ้า ที่ผนังด้านในเป็นกระจกบานใหญ่เปิดเป็นช่องแสงให้เข้ามาด้านใน
ด้วยโทนสีของพื้นที่ออกไปในโทนอ่อนๆ เลยจะดูเรียบๆหน่อย แต่ลองไปดูของจริงก็สวยใช้ได้ครับ
ตรงโถงล็อบบี้จะเพิ่มความน่าสนใจด้วย The Mobius Chandelier ที่ทำจากมือทีละชิ้นอย่างปราณีตแบรนด์ Grayplants จาก Sealttle อเมริกาที่ขึ้นชื่อระดับแนวหน้าของโลกกว่า 300 ดวง จัดวางให้พร้ิวไหวเหมือนกับก้อนเมฆที่ลอยอยู่บนท้องฟ้า ราคาไฟชุดนี้ก็ 7 หลักแล้วครับ
มองกลับไปอีกฝั่ง
ถัดเข้ามาอีกส่วนที่สะดุดตาและเป็น Signature ของแสนสิริคือโชว์ผนังหินต่อลาย ที่นี่ใช้หินอ่อน Azul Imperial จากประเทศบราซิลสีฟ้าเทาที่โดดเด่นด้วยลายแร่ที่ถูกสายน้ำใต้ดินพัดให้เกิดลวดลายมีสีแปลกตาและหาได้ยาก ส่วนนี้จะมีบันไดวนเดินขึ้นไปล็อบบี้ชั้น 2 ได้
มุมนี้วางโซฟาสีน้ำเงินสดพร้อมหมอนสีแดง เป็นสีที่ลงตัวกับพื้นและผนังหินต่อลายดีครับ
มองจากมุมด้านในกลับไป
ตัวบันไดวนกระจกจะเดินเชื่อมขึ้นไปยังพื้นที่ล็อบบี้ชั้น 2
มองไปฝั่งบันไดวนกระจก
ตัวบันไดใช้หิน Calcite Bianco แบบเดียวกับพื้น
ขึ้นมาที่ล็อบบี้ชั้น 2 จะเป็นพื้นที่นั่งพักผ่อนอีกส่วน พื้นเป็นหิน Calcite Bianco
มองกลับลงมาที่บันไดวน
อีกส่วนมองผ่าน Chandelier ลงไปจะเห็นแบบนี้
หันกลับมาล็อบบี้ชั้น 2 วางชุดโซฟา และเก้าอี้เข้าชุดไว้ให้ ด้านนอกเป็น Terrace Garden มีประตูบานเลื่อนเปิดปิด ต้องใช้ Key Card
ส่วนนี้มีทีวีให้ดูด้วยนะครับ ผนังห้องฝั่งนี้เป็น Silver Plate ดีไซน์พิเศษทำจากแผ่นเงินเปลวรมดำดูสวยดีครับ ซ้ายมือมีทางเดินเชื่อมไปยังส่วนพักอาศัย มีประตูกั้นแยกส่วนต้องใช้ Key Card
เดินออกมาตรง Terrace Garden
ตกแต่งเป็นสวนหย่อมเล็กๆ
มองไปฝั่งด้านหน้า
มองลงมาเห็นสวนที่ชั้น 1 พอดี
มองกลับเข้ามาด้านในล็อบบี้ชั้น 2
กลับลงมาที่ล็อบบี้ชั้นล่างกันต่อ ขวามือมีมุมนั่งพักผ่อนอีกจุด ด้านในเป็นห้องนิติบุคคล
วางชุดโซฟามารองรับลูกบ้าน
ผนังฝั่งนี้โชว์งานศิลป์
ผนังฝั่งนี้เป็นกระจกจากพื้นถึงฝ้าชมวิวสวนด้านนอกได้
มองกลับเข้าไปด้านใน
ด้านเข้ามาซ้ายมือเป็นห้องนิติบุคคล ติดกันเป็นห้องน้ำ และทางเข้าโถงลิฟต์
ห้องน้ำแยกชายหญิง
ภายในห้องน้ำชาย
ฝั่งด้านในเป็นโถปัสสาวะ
ถัดมาซ้ายมือเป็นทางเข้าโถงลิฟต์ ขวามือเป็นประตูเดินเชื่อมไปอาคารจอดรถครับ
ประตูทางเข้าโถงลิฟต์ต้องใช้ Key Card และมีตัวสแกน QR Code สำหรับผู้ที่มาติดต่อได้
เดินเข้ามาด้านในจะเจอส่วน Mail Box ก่อน ตรงกลางเป็นตู้ iBOX พื้นส่วนนี้ก็ใช้หิน Calcite Bianco
ตู้ iBOX ที่แสนสิริร่วมมือกับไปรษณีย์ไทย เพื่อเพิ่มความสะดวกสบายให้กับลูกบ้านในการรับพัสดุไม่ต้องผ่านนิติบุคคล โดยแจ้งผู้ส่งให้จ่าหน้าซองตามหน้าตู้ เมื่อของมาส่งผู้รับจะได้รับ SMS แจ้งรหัส OTP (รวมถึงการแจ้งเตือนใน Home Service Application) เพื่อใช้ในการเปิดตู้รับของภายใน 48 ชม. เมื่อมาถึงตู้ให้สอดบัตรประชาชนและใส่รหัสเพื่อรับพัสดุได้เลยสะดวกดี
อีกฝั่งจะเป็น BOX 24
BOX 24 เป็นเทคโนโลยีที่จะช่วยอำนวยความสะดวกในการรับส่งของ ของลูกบ้านได้สะดวกมากยิ่งขึ้นผ่านทาง (Kerry express / SCG Express) และสามารถสั่งสินค้าจากทาง Tesco Lotus, Big C ให้มาส่งที่ตู้ หรือจะส่งผ้าไปซักรีดและรับคืนผ่านตู้ BOX 24 รวมถึงรับฝากของส่วนบุคคลได้ โดยใช้บริการผ่าน BOX 24 Application ที่พร้อมให้บริการตลอด 24 ชั่วโมง
ถัดเข้ามาด้านในจะเป็นโถงลิฟต์ ซ้ายมือเป็นเครื่อง Refund Waste Machine
Refund Waste Machine ให้ลูกบ้านสามารถนำขวดน้ำที่ไม่ได้ใช้แล้วมาใส่ตู้นี้เพื่อช่วยในการแยกขยะ เราจะเลือกรับสะสมเป็นคะแนนเพื่อนำไปเป็นส่วนลดร้านค้าต่างๆที่ร่วมกิจกรรมหรือบริจาคให้มูลนิธิก็ได้ ซ้ายมือเป็น Laundry Room
Laundry Room จะมีเครื่องซักผ้า เครื่องอบผ้า และเครื่องกดน้ำหยอดเหรียญ ตัวเครื่องซักผ้าและเครื่องอบผ้าแบบหยอดเหรียญ เป็นระบบของ Trendy Wash ที่แสนสิริไปร่วม Partner ด้วย สามารถดูสถานะของเครื่องซักผ้าผ่าน Application ได้ว่าว่างใช้งาน หรือมีผู้ใช้งานอยู่ พอซักเสร็จจะแจ้งเตือนที่มือถือของเราด้วย ถ้าไม่พกเหรียญเค้าก็มีระบบ e-wallet ให้ตัดเงินผ่าน App ได้เลยสะดวกดีครับ ระบบและเครื่องทั้งหมดนี้จะนำไปใช้ในทุกโครงการของแสนสิริ
บริเวณโถงลิฟต์โดยสาร มีลิฟต์ 3 ตัว
ด้านในวางของตกแต่ง
ภายในลิฟต์โดยสารพื้นเป็นหิน Calcite Bianco ด้านในมีจอแสดงผลไว้แจ้งข่าวสารต่างๆ
แผงกดลิฟต์ด้านใน เป็นระบบล็อคชั้นขึ้นได้เฉพาะชั้นตัวเองและชั้นส่วนกลาง และมีตัวสแกน QR Code ไว้สำหรับผู้ที่มาติดต่ออีกด้วยครับ
ขึ้นลิฟต์มาที่ชั้น 24 ชั้นนี้จะมีส่วนกลาง และเป็นชั้นพักอาศัย
เดินออกมาจากโถงลิฟต์ จะมีป้ายบอกไปสระว่ายน้ำด้านนอก ขวามือเป็นประตูแยกส่วนพักอาศัย
ประตูส่วนพักอาศัยต้องใช้ Key Card และมีต้วสแกน QR Code อีกด้วยครับ
บริเวณโถงทางเดินส่วนพักอาศัย
ไปดูส่วนกลางกันต่อครับ มีประตูกระจกกั้นแยกส่วนต้องใช้ Key Card เท่านั้นครับ
เดินออกมาจะเป็นพื้นที่ส่วนกลาง พื้นและผนังจะเป็นหิน Silver Grey Slate
เดินออกเชื่อมออกมามีมุมนั่งพักผ่อน
มุมนี้ทำเป็น Deck ยกระดับไว้นั่งหรือนอนพักผ่อนชมวิว
วิวมองไปมุมด้านหลังฝั่ง ARL มักกะสัน แต่อีกหน่อยก็โดนบังหมดครับ ที่เห็นก่อสร้างนั่นคือโครงการ Life อโศก-พระราม 9
มองออกไปทางทิศตะวันออกเห็นแยกพระราม 9 แต่อีก 2-3 ปี ฝั่งนี้วิวก็โดนบล็อคไปครับ เพราะฝั่งนี้จะมีโรงแรม 26 ชั้น และโครงการ Ashton อโศก-พระราม9 สูง 46-50 ชั้น
มองไปฝั่งสระว่ายน้ำ
สระว่ายน้ำยาวประมาณ 30 x 5.5 ม. แบ่งสระเด็กขนาด 3.8 x 2.65 ม. ราวกันตกเป็นกระจกใสไม่บดบังวิวด้านนอก และที่นี่ยังมี iRobot Mirra 530 เป็นหุ่นยนต์ทำความสะอาดพื้นและผนังสระว่ายน้ำ สามารถเก็บเศษผง ใบไม้ กำจัดตะไคร่น้ําแบคทีเรียได้ ใช้ไฟโวลท์ต่ำ ทำงานได้แม้ขณะมีผู้ใช้งานสระว่ายน้ำอยู่
พื้นและผนังสระว่ายน้ำเป็นหิน Silver Grey Slate, Blue Champagne, White Cloud จัดเรียงตามเฉดสี เทา เทาอ่อน และสีขาวตามลำดับดูสวยไปอีกแบบครับ วิวมองไปทางแยกพระราม 9 เห็นอาคาร G และมองไปฝั่งสุทธิสาร
เดินออกมาตรงทางเดินริมสระอีกฝั่ง ทำเป็นทางลาดไว้เผื่อผู้ที่ใช้รถเข็น
ทางเดินริมสระว่ายน้ำ
เดินมาซ้ายมือจะเป็นห้องน้ำแยกชายหญิง และห้องน้ำสำหรับผู้ใช้รถเข็น
ภายในห้องน้ำชาย เข้าจะเจอเคาน์เตอร์อ่างล้างหน้าและตู้ล็อคเกอร์
อ่างล้างหน้าฝังท็อปหินอ่อน Palissandro Oniciato
อีกฝั่งเป็นโถปัสสาวะ
มองไปฝั่งด้านใน เป็นห้องน้ำ ห้องอาบน้ำ และห้องสตรีม
ภายในห้องน้ำ
ภายในห้องอาบน้ำ
ภายในห้องสตรีม
ถัดมาจะเป็นพื้นที่นั่งพักผ่อนวาง Day Bed มาให้
มุมปลายสระซ้ายมือจะเป็นส่วนของ Jacuzzi
ถัดมาอีกมี Pavilion ที่รอให้ต้นไม้เลื้อยให้เต็มลวดสลิง เป็นมุมนั่งพักผ่อนชิวดีครับ
วิวมองออกมาจาก Pavilion จะเห็นแบบนี้ ซ้ายมือมีบันไดเดินลงไปยังมุมพักผ่อนอีกจุด
บันไดเดินลงไป
เดินลงมาจะทำเป็น Deck ไว้นอนชมวิวฝั่งด้านหน้าโครงการ
วิวด้านหน้าโครงการมองไปโซนรัชดา
ฝั่งด้านข้างก็มองไปทางแยกพระราม 9
เงยหน้ามองกลับไปที่ตัวอาคาร จะเป็นส่วนยอดของอาคารชั้น 25-38 ส่วนที่ยื่นออกมานั่นเป็นห้องฟิตเนสอยู่ชั้น 25
กลับขึ้นมาริมสระว่ายน้ำ
ตรงมุมนั่งพักผ่อนมีทางเดินเชื่อมขึ้นบันไดไปชั้น 25 ได้
เดินเข้ามาซ้ายมือมีโต๊ะบาร์พร้อมเก้าอี้ 2 ตัว
อีกฝั่งเป็นโซฟายาวไว้นั่งชมวิวพระอาทิตย์ตกได้ ซ้ายมือเป็นบันไดเดินขึ้นไปฟิตเนสชั้น 25
วิวฝั่งด้านข้างทิศตะวันตกมองไปทางแยกดินแดง เห็นตึกใบหยกไกลๆ แต่อีก 2-3 ปีวิวจะโดนบล็อคจากโครงการ KnightsBridge Space พระราม 9 ครับ
เดินขึ้นบันไดไปชั้น 25 กันต่อ
เดินขึ้นมาจะมีป้ายบอกขวามือเป็นห้องฟิตเนส และซ้ายมือเดินขึ้นบันไดไปสวนชั้น 26
ทางเข้าห้องฟิตเนส
ภายในห้องฟิตเนสวางเครื่องออกกำลังกายยี่ห้อ Technogym พื้นห้องจะเป็นไวนิลมี Texture คุณสมบัติคงทน ระบายความชื้นได้ดี และทำความสะอาดง่าย
มีม้านั่งออกกำลังกาย และดัมเบล
เครื่องปั่นจักรยาน
เครื่องบริหารกล้ามเนื้อ
ลู่วิ่ง
เครื่องเดินแบบล้อหลัง
ถัดมาจะมีตู้ไว้เก็บของ มีตู้กดน้ำไว้ให้ด้วย ซ้ายมือเป็นประตูทางเข้าออกฟิตเนสจากโถงลิฟต์ชั้น 25 ครับ เข้าออกได้ 2 ทางนั่นเอง
ในตู้จะมีอุปกรณ์ช่วยชีวิต Automated External Defibrillator (AED) คือเครื่องวินิจฉัยการเต้นของหัวใจ และสามารถกระตุกหัวใจด้วย Pulse ไฟฟ้ากระแสตรง
มองกลับไปจะเห็นแบบนี้ครับ
วิวจากห้องฟิตเนสมองลงมาเห็นสระว่ายน้ำที่ชั้น 24 และวิวฝั่งทิศตะวันออก
จากห้องฟิตเนส เดินขึ้นบันไดไปสวนชั้น 26 กันต่อครับ
เดินขึ้นมาจะเจอประตูออกไปยังสวนด้านนอก
เดินออกมาจะเห็นสวนพร้อมพื้นที่นั่งพักผ่อน มีสนามหญ้าโล่งๆ
ขวามือมีที่นั่งพักผ่อน ตกแต่งด้วยระแนงอลูมิเนียม ส่วนที่เป็นสีน้ำเงินนั่นเป็นฟาซาดอาคารที่เชื่อมมาจากชั้นล่าง เป็น Perforated Metal ที่มีการเจาะรูกึ่งทึบกึ่งโปร่ง ยาวตลอดแนวอาคาร ใช้สีดำและสีน้ำเงิน
เงยหน้ามองส่วนยอดของอาคาร
ด้านในจะจะมุมนั่งพักผ่อน มีพุ่มไม้ตกแต่ง
มองกลับออกไปจะเห็นแบบนี้
มองไปฝั่งประตูที่เราเดินออกมา
วิวชั้นนี้มองไปฝั่งแยกพระราม 9 เหมือนชั้นสระว่ายน้ำ
ขึ้นลิฟต์มาที่ชั้น 38 มีส่วนกลางอยู่ที่ชั้นนี้อีก และเป็นชั้นพักอาศัยชั้นบนสุด
เดินมาจากโถงลิฟต์ จะเห็นป้ายบอกไป Cloud 9 Lounge ที่อยู่ด้านใน ส่วนขวามือเป็นส่วนพักอาศัยมีประตูกั้นแยกส่วน
เดินเข้ามาดูด้านใน จะเจอ Cloud 9 Lounge ส่วนนี้ต้องใช้ Key Card ครับ
เข้ามาด้านในจะแบ่งโซนไว้นั่งทำงาน นั่งพักผ่อน หรือประชุมกันได้ครับ พื้นห้องนี้ใช้ไวนิลลายไม้สีอ่อน ความสูงฝ้าห้องนี้ 3.1 ม. และเทคโนโลยีที่นำเข้ามาใช้ Smart Lighting Control เป็นระบบควบคุมการทำงานของไฟฟ้าส่วนกลางทั้งหมด เวลามีลูกบ้านมาใช้งานพื้นที่ส่วนกลางแล้วลืมปิดไฟ ปิดแอร์ นิติบุคคลจะมีเครื่องตรวจเช็คได้และสามารถควบคุมการเปิดปิดได้โดยที่ไม่ต้องขึ้นมาพื้นที่ส่วนกลางเลย ช่วยประหยัดพลังงานไฟฟ้าได้มากขึ้น ซึ่งก็ส่งผลดีต่อค่าใช้จ่ายส่วนกลางของลูกบ้านด้วยครับ
มุมนี้จะมีโต๊ะเคาน์เตอร์วางยาวตลอดแนว มีชั้นวางหนังสือของโชว์
ที่ผนังมี Wireless Charger หรือที่ชาร์จมือถือไร้สาย เพียงแค่วางมือถือไปที่แท่นนี้ครับ ผนังห้องส่วนนี้จะเป็น Silver Plate ดีไซน์พิเศษทำจากแผ่นเงินเปลวรมดำเหมือนตรง Lobby ชั้น 2 ครับ
วางสิงโตตั้งโชว์เท่ห์ๆ ไว้มุมนี้
โต๊ะเคาน์เตอร์หินอ่อน นั่งทำงานมองวิวฝั่งแยกพระราม 9 ไปด้วย
มีซ่อนช่องปลั๊กไฟ และช่องเสียบ USB ไว้แบบนี้
เดินมาดูอีกฝั่ง สะดุดตากับภาพศิลปะจากคุณโด่ง พงษ์ธัช อ่วยกลาง ศิลปินประติมากรรมแถวหน้าของไทย
มุมนี้วางโต๊ะยาวพร้อมเก้าอี้มาให้ 6 ตัว
เก้าอี้ตัวซ้ายมือ Victoria Ghost Chari by Kartell ออกแบบโดย Philippe Starck ขวามือตัวสีดำ Monster Chair by Marcel Wanders เก้าอี้จากดีไซน์เนอร์ชื่อดังจากแบรนด์ Moooi ประเทศ Natherland
ในสุดจะวางชุดโซฟาไว้เป็นมุมนั่งพักผ่อนชมวิวเมือง
มองกลับไปจากมุมฝั่งนี้
ตกแต่งด้วย Feature Wall Lucent Green เป็นหินอ่อนต่อลาย Bookmatch สร้างความโดดเด่นในห้อง
มุมมองอีกฝั่ง
ออกจาก Cloud 9 Lounge เดินไปทางประตูหนีไฟเพื่อเชื่อมไปยังสวนชั้นดาดฟ้า
เปิดประตูหนีไฟออกมาเดินขึ้นบันไดไปครับ
เดินขึ้นมาจะมีทางเดินเชื่อมไปอีก
เดินมาจะเจอชุดโซฟาวางไว้ ซ้ายและขวามีทางเดินเชื่อมไปยังสวน
เดินมาทางซ้ายจะเจอสวนหย่อมแบบนี้
มีจุดนั่งชมวิว
วิวมองมาทางสวนมักกะสันขนาดใหญ่ มีแนวอาคารเป็นกำแพงเมืองดูสวยดีครับ
มองลงมาที่เห็นก่อสร้างอยู่จะเป็นโครงการ Life อโศก-พระราม 9 ติดกันจะเป็นโครงการ Life Asoke Hype ขวามือยังเป็นพื้นที่ว่างเปล่าอยู่ อนาคตน่าจะขึ้นอาคารสูงครับ
มองกลับมาด้านใน
กลับเข้ามาด้านใน เดินไปดูสวนอีกฝั่ง
เดินขึ้นบันไดไปครับ
เดินขึ้นมาจะเจอสวนไว้ขึ้นมานั่งชมวิว
ทำเป็นที่นั่งพร้อมพุ่มไม้ตกแต่ง ขวามือมีทางเดินขึ้นไปจุดบนสุดของอาคารเดินขึ้นไปชมวิวได้ 360 องศา
อีกฝั่งทำไว้ให้นอนชมวิวได้
วิวจากชั้นบนสุดฝั่งทิศเหนือด้านหน้าโครงการมองไปโซนรัชดา วิวค่อนข้างโล่ง
วิวฝั่งทิศตะวันออกด้านข้างโครงการ มองไปทางแยกพระราม 9 อีก 2-3 ปี จะโดนบังวิวจาก Ashton อโศก-พระราม 9
ทิศตะวันออกเฉียงเหนือมองเป็น G Tower ส่วนแปลง Super Tower เดิมต้องรอดูอีกทีครับว่าจะทำเป็นอะไร
วิวฝั่งทิศตะวันตกมองไปทางแยกดินแดง เห็นตึกใบหยกไกลๆ ฝั่งนี้อีก 2-3 ปีจะโดนบล็อควิวจากโครงการ KnightsBridge Space พระราม 9
ฝั่งทิศใต้ด้านหลังโครงการมองไปโซนสุขุมวิท เห็นสวนมักกะสันและแนวอาคารที่เป็นกำแพงเมือง อีก 1-2 ปี จะโดนบล็อควิวจากโครงการ Life อโศก-พระราม 9 และโครงการ Life Asoke Hype แต่ฝั่งตะวันตกเฉียงใต้จะยังเป็นพื้นที่โล่งอยู่ให้มองวิวผ่านออกไปได้ แต่พื้นที่สามารถขึ้นตึกสูงได้อนาคตก็ไม่น่ารอดครับ
Units Type
โครงการมีห้องให้เลือกแบบหลักๆดังนี้
1 Bedroom 27.50 ตร.ม.
1 Bedroom 34 ตร.ม.
1 Bedroom 34.50 ตร.ม.
1 Bedroom 34.75 ตร.ม.
1 Bedroom 34.50 – 34.75 ตร.ม.
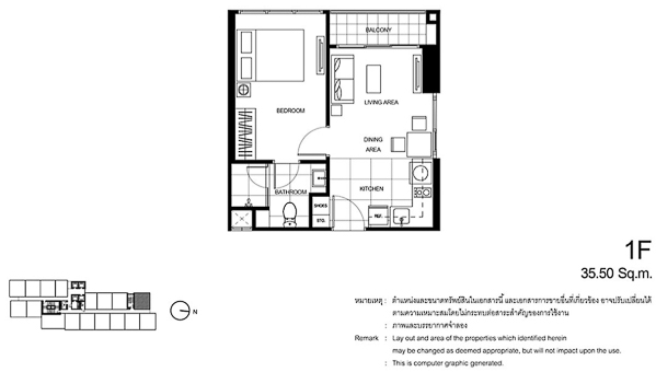
1 Bedroom 35.50 ตร.ม.
1 Bedroom 35.5 ตร.ม.
1 Bedroom 36 ตร.ม.
2 Bedroom 46.25 ตร.ม.
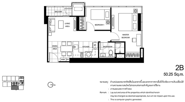
2 Bedroom 50.25 ตร.ม.
ห้องตัวอย่าง
ห้องตัวอย่างที่จะพามาชมวันนี้มี 1 แบบ
1 Bedroom ขนาด 34.5 ตร.ม. เดินเข้าห้องมาจะเจอส่วนครัวก่อนได้เป็นครัวเปิด เชื่อมกับห้องนั่งเล่นด้านใน ตรงห้องนั่งเล่นมีหน้าต่างบานกระทุ้ง 3 บาน จากห้องนั่งเล่นมีประตูบานเปิดออกไปยังระเบียงได้ ซึ่งระเบียงสามารถเข้าออกได้สองทางคือจากห้องนั่งเล่นและจากห้องนอน ห้องนอนจะอยู่อีกฝั่ง มีประตูกระจกบานเลื่อนเปิดออกไปยังระเบียงได้ ห้องน้ำจะอยู่ในห้องนอนแบ่งส่วนเปียกส่วนแห้ง
เริ่มจากประตูห้องเป็นบานโครงการไม้ Hollow Core ปิดไม้อัดยาง ปิดผิวลามิเนต
ประตูจะได้ Digital Door Lock ของ Yale เป็นแบบ 3 ระบบ สามารถใช้กุญแจ Key Card และรหัส มือจับเป็นแบบคันโยก
ตรงวงกบประตูทุกบานจะเป็นอลูมิเนียมทั้งหมด และจะติดยางกันเสียงมาให้เรียบร้อยทุกบานเช่นกัน
เดินเข้าห้องมาจะเจอส่วนห้องครัวก่อน ได้เป็นครัวเปิดเชื่อมกับห้องนั่งเล่น ขวามือเป็นห้องนอน ส่วนห้องน้ำจะอยู่ในห้องนอนครับ พื้นห้องส่วนครัวเป็นกระเบื้องแกรนิตโต้ขนาด 60 x 60 ซม. ส่วนห้องนั่งเล่นและห้องนอนจะปูด้วยไม้ลามิเนตหนา 12 มม. ผนังจะได้ฉาบเรียบทาสีขาวทั้งห้อง ฝ้าสูง 2.7 ม.
เดินเข้ามาแล้วมองกลับไปที่ประตูทางเข้า
ซ้ายมือจะได้ตู้เก็บของเป็นบานเปิด 4 บาน และลิ้นชัก 2 ชั้น พร้อมเก้าอี้สตูล 1 ตัว ได้ Soft Close ทุกบาน หน้าบานตู้จะเป็นกระจกเงาไว้ส่องตรวจสอบความเรียบร้อยก่อนออกจากบ้านได้
ภายในตู้ก็แบ่งช่องมาให้เก็บของที่จำเป็นเช่นรองเท้า ไม้กวาด ไม้ถูพื้น ร่ม
มีลิ้นชักเก็บของ และช่องใส่อุปกรณ์ต่างๆ พร้อมสตูล 1 ตัว ทำเป็นโต๊ะเครื่องแป้งมุมนี้ได้
อีกฝั่งจะเป็นชุดเคาน์เตอร์ครัวตัว L ได้ตามนี้เลย ไม่รวมเครื่องใช้ไฟฟ้า หน้าบานตู้บางส่วนเป็นกระจก
ตู้ด้านบนเป็นแบบบานเปิด 7 บาน มีลูกเล่นที่สามารถดึงตู้ด้านในเข้าออกเหมือนลิ้นชัก มีที่ใส่กระดาษเช็ดทำความสะอาด เพื่อให้การใช้งานสะดวกขึ้น
ด้านล่างเป็นลิ้นชัก 2 ชั้น ตู้ใต้อ่างล้างจานเป็นบานเปิด 1 บาน มีถังขยะติดมาให้ด้วย
ท็อป Pantry เป็น Black Granite ได้เตาไฟฟ้าหน้าเซรามิก 2 หัวพร้อมเครื่องดูดควัน ของ Mex ผนังด้านในกรุกระจกมาให้เพิ่มความสวยงามและทำความสะอาดได้ง่าย ผนังด้านในมีราวไว้แขวอุปกรณ์ พร้อมชั้นคว่ำจาน และแผ่นไม้สำหรับวางหนังสือหรือไอแพด เผื่อใครต้องดูวิธีทำประกอบไปด้วยไม่ต้องถือเกะกะ โครงการนี้เค้าใส่ใจรายละเอียดดีครับ
อ่างล้างจานได้แบบหลุมเดียว ไม่มีที่พักจานของ Mex ฝังท็อปมาให้เรียบร้อย หลุมค่อนข้างลึกพอสมควรแต่ขนาดความกว้างน้อยไปหน่อย
ติดกับเคาน์เตอร์ครัวอีกฝั่งวางโต๊ะร้บประทานอาหารแบบยาวขนาด 2 ที่นั่งให้ดูครับ
ถัดจากส่วนครัวไปจะเป็นพื้นที่ห้องนั่งเล่น ขวามือเป็นห้องนอน
พื้นถัดจากครัวจะเป็นไม้ลามิเนตหนา 12 มม. มีตัวจบด้วยสแตนเลส
บริเวณพื้นที่ห้องนั่งเล่น มีพื้นที่มาให้พรประมาณ
วางโซฟาขนาด 2 ที่นั่งพร้อมโต๊ะกลางให้ดู
ระยะดูทีวีประมาณ 2.58 ม. ขวามือเป็นประตูห้องนอน ซ้ายมือเป็นประตูออกไประเบียง แอร์ตรงห้องนั่งเล่นได้แบบติดผนัง 1 ตัว
ตรงห้องนั่งเล่นจะมีหน้าต่างกระจกบานกระทุ้ง 3 บาน สูงจากพื้นถึงฝ้าพร้อมราวกันตก ตัวกระจกจะได้สี Euro Grey ผ้าม่านจะได้สีตามห้องตัวอย่างมี 2 ชั้น ของ Pasaya พร้อมซ่อนรางม่านมาให้ตามนี้เลย
หน้าต่างกระจกบานกระทุ้ง 3 บานเปิดออกได้กว้างกำลังดี เปิดรับลมหรือระบายอากาศก็ได้ครับ
วิวจากห้องตัวอย่างชั้น 5 มองไปฝั่งทิศตะวันออก ฝั่งนี้อนาคตโดนบล็อควิวหมดครับ
ถัดไปเป็นระเบียงมีประตูบานเปิดออกไปได้
มือจับประตูเป็นแบบคันโยก
เปิดออกมาจะเจอระเบียงขนาด 2.68 x 1 ม. ราวกันตกเป็นกระจกไม่บดบังวิวด้านนอก ระเบียงส่วนนี้สามารถเข้าออกได้ 2 ทางคือจากห้องนั่งเล่นและห้องนอน
เหนือศรีษะเราจะแขวนคอมเพลสเซอร์แอร์ 2 ตัว มีระแนงบังสายตาเรียบร้อยดี
มองกลับไปอีกฝั่ง ซ้ายมือเป็นประตูเข้าห้องนอน
วิวตรงระเบียงเหมือนตรงห้องนั่งเล่น
กลับเข้ามาในห้องกันต่อครับ
ประตูห้องนอนอยู่ขวามือ
มือจับประตูเป็นแบบคันโยก
เข้ามาภายในห้องนอนมีพื้นที่มาให้พอสมควร
วางเตียง 5 ฟุตให้ดู พื้นที่ข้างเตียงเหลือฝั่งระประมาณ 75 ซม.
ปลายเตียงเหลือพื้นที่ประมาณ 55 ซม.
ระยะดูทีวีปลายเตียงประมาณ 2.55 ม.
ฝั่งด้านนอกเป็นระเบียง มีประตูกระจกบานเลื่อน 3 บาน เปิดออกไปยังระเบียงได้ ผ้าม่านได้เหมือนด้านนอกของ Pasaya พร้อมซ่อนรางม่าน
เปิดออกมาก็จะเจอระเบียง ซ้ายมือเป็นประตูเข้าออกระเบียงจากห้องนั่งเล่นนั่นเองครับ
กลับเข้ามาในห้องนอน ฝั่งด้านในจะเป็นห้องน้ำ ซ้ายมือเป็นตู้เสื้อผ้า Built-in มาให้สูงจากพื้นถึงฝ้า เหนือประตูห้องน้ำติดแอร์มา 1 ตัว
ตู้เสื้อผ้าที่ได้หน้าบานกระจกสีชา 2 บาน มีลิ้นชักราวแขวนกางเกงมาให้ และมีมือแบ่งช่องเก็บของและลิ้นชักสองชั้น ด้านข้างตู้เสื้อผ้ามีตู้สำหรับเก็บเครื่องประดับหลักๆก็เก็บสร้อยคอ สร้อยคอมือ
เดินเข้ามาดูห้องน้ำต่อ ภายในแบ่งส่วนเปียกส่วนแห้งมาเรียบร้อย
ตู้กระจกด้านในแบ่งชั้นมาไว้ให้วางของ
ชุดอ่างล้างหน้าที่ได้ของ Cotto มีตู้ใต้อ่างล้างหน้าเป็นบานเปิดสองบาน เก็บของได้ และเป็นตำแหน่งติดตั้งเครื่องทำน้ำร้อนครับ
ติดกับอ่างล้างหน้าเป็นโถสุขภัณฑ์ของ Cotto
ด้านในสุดเป็นพื้นที่ส่วนเปียก ได้ฉากกั้นอาบน้ำแบบบานเปิด ขวามือมีช่องไว้ให้วางของได้อีก
ด้านในมีฝักบัวปรับระดับสูงต่ำได้ ด้านบนเป็น Rain Shower
หน้าตาฝักบัวที่ได้ขนาดพอดีมือของ Cotto พร้อมก๊อกน้ำปรับน้ำร้อนน้ำเย็น ซ้ายมือมีชั้นวางอุปกรณ์อาบน้ำ
พื้นที่ส่วนเปียกขนาด 97 x 94 ซม.
ชุดปลั๊กและสวิตซ์ไฟของ Panasonic ทั้งหมด
ทุกห้องจะได้ระบบ Home Automation/Swipe จาก Fibaro เป็นเครื่องเปิดปิดระบบไฟฟ้าต่างๆในห้อง เช่นไฟตามส่วนต่าง ๆ แอร์ และอื่นๆเพิ่มเติมได้หรือสั่งให้เปิดปิดทั้งหมดพร้อมกันได้ เพียงแค่เลื่อนมือผ่านหน้าจอของเครื่องขนาดประมาณ iPad mini ระบบนี้สามารถใช้งานร่วมกับมือถือได้ผ่าน Wifi ครับ สั่งเปิดแอร์ หรือไฟก่อนที่จะถึงห้องได้เลย
ราคา (พ.ย.61)
ค่าส่วนกลาง 70 บาท/ตร.ม. : ค่ากองทุน 600 บาท/ตร.ม
เงินจอง โปรดสอบถามทางโครงการ
***รายละเอียดอื่นๆโปรดสอบถามทางโครงการครับ
สรุป
ทำเลที่ตั้งโครงการ – The Line อโศก-รัชดา ตั้งอยู่ในย่านพระรามเก้า New CBD ที่ฮอตที่สุดในปีนี้ มีโครงการคอนโดมิเนียมหลายโครงการที่เข้ามาจับจองที่ดินรอบๆ มีความเพียบพร้อมรายล้อมพอสมควร มีสำนักงานออฟฟิศ ห้างสรรพสินค้า คอนโดมิเนียม ร้านค้า ร้านอาหารที่มีตั้งแต่แบบข้างทางไปจนถึงร้านอาหารตามห้างสรรพสินค้า ฝั่งตรงข้ามโครงการประมาณ 60 ม.มี 7-11 มีร้านอาหารตามสั่ง ในซอยอยู่เจริญมีร้านค้า ร้านอาหาร และตลาดอยู่เจริญเผื่อใครชอบทำอาหารเอง ไม่ก็เดินไปอีกประมาณ 350 ม. มีฟอร์จูน มีโลตัสด้านใน หรือข้ามฝั่งไปเซ็นทรัลพระราม 9 เลือกกินได้เลย หรือนั่ง MRT ไปเพชรบุรีมี Singha Complex เลยไปลงอโศกมี Terminal 21 และ Robinson และสามารถต่อ BTS ไปเพลินจิต ชิดลม สยาม พร้อมพงษ์ ทองหล่อได้เลยสะดวกดี
การเดินทางด้วยรถยนต์ส่วนตัว – ตัวโครงการตั้งอยู่ติดกับถนนดินแดง ใกล้ๆโครงการมีจุดกลับรถทั้งมาจากฝั่งตรงข้ามโครงการ และฝั่งโครงการทำให้ดารเดินทางค่อนข้างสะดวกไม่ต้องอ้อมไกล จากโครงการถ้าใช้ถนนดินแดงวิ่งไปจะตัดกับถนนวิภาวดีรังสิตมีทางด่วนโทลเวย์ หรือข้ามวิภาวดีไปเชื่อมกับถนนราชวิถีเข้าอนุสาวรียชัยฯได้เลย แต่ถ้าจากโครงการไปฝั่งแยกพระราม 9 จะเป็นจุดตัดกับเส้นรัชดาภิเษกสามารถไปออกห้วยวาง สุทธิสาร ลาดพร้าว รัชโยธิน เลยไปสิ้นสุดที่แยกวงศ์สว่าง อีกเส้นคือพระราม 9 เส้นนี้จะเน้นออกนอกเมืองมากกว่าคือไปเชื่อมกับประดิษฐ์มนูธรรม รามคำแหง พัฒนาการและออกมอเตอร์เวย์ได้ แต่เส้นนี้ก็สามารถเข้าเมืองได้มีเส้นที่ทะลุไปเชื่อมกับเพชรบุรีได้ครับ และอีกเส้นคืออโศกดินแดงวิ่งเข้าเมืองเป็นหลัก เลยไปมีจุดขึ้นลงทางด่วนตรงเส้นนี้ สามารถไปเชื่อมกับถนนอโศกมนตรีตรงแยกเพชรบุรีวิ่งเข้าอโศก เส้นสุขุมวิท หรือไปออกถนนพระรามสี่ได้เลย
การเดินทางด้วยรถสาธารณะ – ตัวโครงการอยู่ห่างจาก MRT พระราม 9 (ประตู 1) ประมาณ 350 ม. เป็นระยะที่เดินได้สบายๆครับ มีทางเดินเท้าตลอดแต่ระวังเวลาข้ามถนนเท่านั้น เลยหน้าโครงการไปหน่อยมีป้ายรถเมล์ วินมอเตอร์ไซค์ มีรถตู้ และ Taxi วิ่งผ่านไปมาโบกขึ้นหน้าโครงการได้ จากโครงการถ้าเดินมาหน้า ฟอร์จูน และหน้าเซ็นทรัลพระราม 9 มีรถเมล์วิ่งผ่านหลายสาย และมีรถตู้ให้ใช้บริการด้วยครับมีหลายสายเช่นกัน หรือใครจะนั่ง MRT มาลงที่สถานีเพชรบุรีเพื่อมาต่อแอร์พอร์ตลิงค์สถานีมักกะสันก็ได้ครับ โดยตัวสถานีห่างจากโครงการประมาณ 750 ม. ระยะนี้ใครจะเดินก็พอไหว หรือไม่ก็พึ่งพี่วินก็ได้ครับ และห่างจากแอร์พอร์ตลิงค์สถานีพญาไทเพียง 2 สถานี เป็นจุดเชื่อมต่อกับ BTS พญาไทอีกด้วย เผื่อใครทำงานย่านนี้ก็สะดวกครับ นอกจากนี้ยังมีบริการเรือด่วนคลองแสนแสบวิ่งระหว่างสะพานผ่านฟ้าถึงวัดศรีบุญเรือง โดยท่าเรือที่ใกล้โครงการคือท่าเรืออโศกห่างจากโครงการประมาณ 1.1 กม. โดยรวมถือว่าสะดวกสามารถเชื่อมต่อระบบขนส่งสาธารณะได้เยอะดี ไม่มีรถส่วนตัวก็อยู่โครงการนี้ได้สบายครับ
การออกแบบโครงการและวัสดุ – ตัวอาคารออกแบบอาคารพักอาศัยมา 1 อาคาร สูง 38 ชั้น และอาคารจอดรถแยกส่วน 9 ชั้นพร้อมชั้นใต้ดิน 1 ชั้น บนพื้นที่ดินรูปตัว L ขนาด 2-2-0 ไร่ ออกแบบมาเรียบหรูตามสไตล์แสนสิริ ตัวอาคารรูปทรงสี่เหลี่ยมยาวตามแนวที่ดิน ตกแต่งฟาซาดใช้วัสดุ Perforated Metal มีการเจาะรูกึ่งทึบกึ่งโปร่งมาใช้โดยแสงท่ีผ่านวัสดุเหมือนแสงไฟยามค่ำคืน สีภายนอกอาคารหลักๆจะใช้โทนเทาเข้ม ชั้นพักอาศัยจะเริ่มที่ชั้น 2 – 38 ส่วนกลางจะอยู่ที่ชั้น 1, 2, 23, 24, 25, 26, 38, ดาดฟ้า
การออกแบบในห้องพักอาศัยที่นี่มีให้เลือกสองแบบหลักๆคือ 1 Bedroom ขนาด 27.50 – 28 ตร.ม. และ 34 – 36 ตร.ม. และ 2 Bedroom ขนาด 46.25 – 50.25 ตร.ม. จุดเด่นเลยคือฟังก์ชั่นต่างๆในห้องที่ให้ลูกเล่นมาพอสมควร โครงการขายแบบ Fully Fitted ของที่ได้ ตรงประตูทางเข้าจะได้ Digital Door Lock ของ Yeal สุขภัณฑ์ภายในห้องน้ำของ Cotto พร้อมฉากกั้นส่วนเปียก ชุดครัว อ่างล้างจานของ Mex เครื่องใช้ไฟฟ้ามี Hob & Hood หน้าเตาเซรามิก 2 หัวของ Mex ชุดเคาน์เตอร์ครัวแบ่งช่องเก็บของมาให้ และมีส่วนที่ยื่นเข้าออกได้ทำให้สะดวกกับการใช้งาน ท็อป Pantry เป็น Black Granite ผนังด้านในกรุกระจกมาให้เรียบร้อย ได้ตู้อเนกประสงค์ ในห้องนอนจะมีตู้เสื้อผ้า Built inให้ แอร์ได้แบบติดผนังตรงห้องนั่งเล่นและทุกห้องนอน มีผ้าม่านให้ของ Pasaya แบบสองชั้น พร้อมซ่อนรางม่าน ทุกห้องจะได้จะได้ระบบ Home Automation/Swipe จาก Fibaro สั่งเปิด-ปิดไฟ และเครื่องใช้ไฟฟ้าได้เพียงสไลด์มือที่หน้าตัวเครื่อง หรือสั่งการจากมือถือก็ได้
สิ่งอำนวยความสะดวก – Facility โครงการนี้ให้มาดีพอสมควรออกแบบมาได้สวยและน่าใช้งานไม่เสียชื่อแสนสิริ และจุดเด่นคือมีเทคโนโลยีใหม่ๆที่นำมาใช้ในโครงการเพื่ออำนวยความสะดวกให้แก่ลูกบ้าน โดยครอบคลุมใน 3 ด้าน คือ iConvenience ความสะดวกสบาย, iSafe ความปลอดภัย, iGreen ด้านประหยัดพลังงาน ซึ่งทางแสนสิริให้โครงการนี้เป็น Smart Building เต็มรูปแบบโครงการแรก และเป็นต้นแบบการนำไปใช้ในโครงการต่อไปของแสนสิริ
พื้นที่ส่วนกลางจะอยู่ที่ชั้น 1 – 2 ที่ชั้น 23 – 26 ที่ชั้น 38 และดาดฟ้า เริ่มจากชั้น 1 ด้านหน้าโครงการมีสวนหย่อมให้มองวิวออกมาจาก Lobby ได้ เข้ามาในตัวอาคารส่วนของ Lobby ฝ้าสูง 6.9 ม. ที่พื้น Lobby ใช้พื้นหิน Calcite Bianco เป็นพื้นหินควอร์ตที่มีสีฟ้าอ่อน ผนังตกแต่งด้วยกระจกลายผ้า และผนังหินต่อลาย ที่นี่ใช้หินอ่อน Azul Imperial จากประเทศบราซิล เพิ่มความน่าสนใจด้วย The Mobius Chandelier ที่ทำจากมือทีละชิ้นกว่า 300 ดวงอย่างปราณีตแบรนด์ Grayplants จาก Sealttle มีบันไดวนกระจกเดินเชื่อนขึ้นไปยัง Lobby ชั้น 2 ได้ ตรงส่วน Mail Box จะมี iBOX ตู้ไปรษณีย์อัจฉริยะ และ BOX 24 ตู้รับส่งของเพื่อความสะดวกของลูกบ้าน มีเครื่อง Refun Waste Machine มีเครื่องซักผ้าและเครื่องอบผ้าแบบหยอดเหรียญ เป็นระบบของ Trendy Wash ที่แสนสิริไปร่วม Partner
ที่ชั้น 2 เป็น Lobby อีกส่วนเป็นมุมไว้นั่งเล่นเกมส์ หรือดูหนังได้ ที่ผนังส่วนนี้จะตกแต่งด้วยแผ่นเงินเปลวรมดำ มี Terrace Garden ที่เดินเชื่อมออกไปได้ ที่ชั้น 23 จะมี Deck ไว้นอนชมวิวฝั่งด้านหน้าโครงการ ส่วนนี้จะมีบันไดเดินลงจากชั้น 24 ตรงปลายสระว่ายน้ำเท่านั้นครับ
ที่ชั้น 24 จะมีสระว่ายน้ำระบบเกลือขนาด 30 x 5.5 ม. แบ่งสระเด็กขนาด 3.8 x 2.65 ม. มีส่วนที่เป็น Jacuzzi ส่วนพื้นและผนังสระว่ายน้ำเป็นหิน Silver Grey Slate, Blue Champagne, White Cloud จัดเรียงตามเฉดสี เทา เทาอ่อน และสีขาวตามลำดับ มี iRobot Mirra 530 เป็นหุ่นยนต์ทำความสะอาดพื้นและผนังสระว่ายน้ำ ปลายสระมี Deck ไว้นั่งชมวิว พื้นที่ริมสระจะเป็นมุมนั่งพักผ่อน มีห้องน้ำแยกชายหญิงพร้อมห้องสตรีม ที่ชั้น 24 จะมีบันไดเดินลงไป Deck ที่ชั้น 23 และเดินขึ้นไปห้องฟิตเนสชั้น 25 ได้
ที่ชั้น 25 จะมีห้องฟิตเนสให้เครื่องออกกำลังกายแบรนด์ Technogym แบรนด์ดังจากอิตาลี พื้นห้องใช้ไวนิลแบบมี Texture มีอุปกรณ์ช่วยชีวิต Automated External Defibrillator (AED) จากชั้น 25 จะมีบันไดเดินเชื่อมขึ้นไปสวนชั้น 26 ซึ่งจะเป็นสวนที่มีสนามหญ้าไว้ให้ทำกิจกรรมอย่างการเล่นโยคะได้ มีมุมไว้ให้นั่งพักผ่อนชมวิว
ที่ชั้น 38 จะเป็น Cloud 9 Lounge ไว้สำหรับมานั่งทำงาน อ่านหนังสือ พักผ่อน หรือประชุมก็ได้ครับ มีโต๊ะไว้ให้นั่งทำงานพร้อมปลั๊กไฟ ช่องเสียบ USB มี Wireless Charger หรือที่ชาร์จมือถือไร้สาย ผนังโชว์ Feature Wall Lucent Green เป็นหินอ่อนต่อลาย Bookmatch และภาพศิลปะจากคุณโด่ง พงษ์ธัช อ่วยกลาง ศิลปินประติมากรรมแถวหน้าของไทย มีการเลือกใช้เฟอร์นิเจอร์จากดีไซน์เนอร์ชื่อดังอย่าง Philippe Starck จากชั้น 38 เดินขึ้นบันไดหนีไฟไปชั้นดาดฟ้าจะเป็นสวน และเป็นจุดชมวิวที่สูงที่สุดของอาคาร
นอกจากนี้ยังมีเทคโนโลยีใหม่ๆจากแสนสิริคือระบบ Smart Guest Registration เป็นระบบลงทะเบียนสำหรับ Visitor หรือบุคคลภายนอกที่เข้ามาภายในโครงการ โดยลูกบ้านสามารถสร้าง QR Code กำหนดวันเวลา ผ่านทาง Home Service Application ของแสนสิริ ให้กับเพื่อนของเรา เพื่อใช้สำหรับสแกนผ่านเข้าที่จอดรถ เข้า Lobby ไปจนถึงลิฟต์โดยสารเพื่อขึ้นไปห้องของเราได้เลย ที่อาคารจอดรถแต่ละชั้นจะมีระบบ Telecom ไว้ให้ลูกบ้านติดต่อ รปภ. มาช่วยเลื่อนรถที่จอดซ้อนคันหรือกรณีฉุกเฉินได้ Smart Lighting Control เป็นระบบควบคุมการทำงานของไฟฟ้าส่วนกลางทั้งหมดโดยนิติบุคคลสามารถควบคุมการเปิดปิดได้ ระบบ Smart Move บริการเช่ารถส่วนกลาง BMW i3 และ Hyundai IONIQ มี EV Charging Station จำนวน 2 เครื่อง 4 หัวจ่ายไฟฟ้า Wifi ฟรีที่ชั้นส่วนกลางทั้งหมด ลิฟต์โดยสารมีให้ 3 ตัว และลิฟต์ขนของ 1 ตัว ที่จอดรถจอดได้ที่ชั้น 1 และอาคารจอดรถชั้น 1-9 และชั้นใต้ดิน ทั้งโครงการจอดได้ประมาณ 48% รวมซ้อนคัน ระบบรักษาความปลอดภัยมีรปภ. มี CCTV และผ่านเข้าออกด้วยระบบ Key Card Access และระบบ Smart Door Monitoring โดยจะติด Magnetic Sensor ระบบตรวจสอบการเปิดปิดประตูหนีไฟ
คะแนน
| ทำเลที่ตั้งโครงการ | 8.5 | อยู่ใจกลางเมืองย่าน New CBD ใกล้ห้างสรรพสินค้า สำนักงานออฟฟิศ |
| การเดินทาง ใช้รถ | 8.0 | สามารถเชื่อมออกไปถนนเส้นสำคัญต่างๆได้สะดวก แต่จะติดขัดมากในช่วงเวลาเร่งด่วน |
| การเดินทาง ไม่ใช้รถ | 8.0 | ตัวเลือกการเดินทางมีหลากหลาย ทั้ง MRT, แอร์พอร์ตลิงค์ , BTS , รถเมล์, โดยสารทางเรือ , วินมอเตอร์ไซค์ , Taxi , รถตู้ |
| ห้องและวัสดุ | 8.0 | วัสดุที่ใช้อยู่ในระดับมาตรฐาน ได้ของดีมีลูกเล่น แต่บางส่วนก็ด้อยไปหน่อยเมื่อเทียบกับราคา ขายแบบ Fully Fitted มี ชุดเคาน์เตอร์ครัว, Hob & Hood , ตู้อเนกประสงค์ , ตู้เสื้อผ้า , แอร์ , สุขภัณฑ์ในห้องน้ำ , Digital Doorlock , Home Automation/Swipe |
| สิ่งอำนวยความสะดวก | 8.0 | Facility จัดเต็ม มีให้ครบและหลากหลาย ออกแบบมาได้สวยงามและน่าใช้งานตามสไตล์แสนสิริ อยู่ที่ชั้น 1-2 , 23-26 , 38, ดาดฟ้า มีระบบเทคโนโลยีใหม่ๆที่อำนวยความสะดวกมากขึ้น |
| ความคุ้มค่ากับราคา | 7.5 | มีตัวเลือกอีกหลายทีในทำเลที่ใกล้เคียงกัน และราคาที่ไม่ต่างกันมาก |
| คะแนนรวมเฉลี่ย | 8.0 | ดี |
สอบถามรายละเอียดเพิ่มเติมได้ที่
Tel : 1685
Website : www.sansiri.com/condominium/theline-asoke-ratchada
หากเพื่อนๆเห็นว่ารีวิวนี้มีประโยชน์ ช่วยกด Like เพื่อเป็นกำลังใจให้ทีมงาน ขอบคุณครับ
และมีความคิดเห็นหรือข้อมูลเพิ่มเติมเกี่ยวกับตัวโครงการ สามารถ Comment ได้ที่ด้านล่างของรีวิวครับ
แสดงความคิดเห็น เกี่ยวกับ " EP.283 รีวิว คอนโด THE LINE อโศก-รัชดา ใกล้รถไฟฟ้า MRT พระราม 9 (เพียง 300 ม.) "