
EP.135 รีวิว คอนโด เดอะ ไลน์ วงศ์สว่าง THE LINE Wongsawang ใกล้ MRT วงศ์สว่าง เริ่ม 1.99 ล้าน*
สวัสดีค่ะผู้อ่าน CONDONAYOO ทุกท่าน วันนี้เรามีรีวิวโครงการ THE LINE วงศ์สว่าง โครงการใหม่จาก แสนสิริ มาฝากกันค่ะ
เป็นคอนโดสร้างเสร็จพร้อมอยู่ ตั้งอยู่ใจกลางของย่านวงศ์สว่าง เพียง 200 เมตร ถึงรถไฟฟ้า MRT วงศ์สว่าง จุดเชื่อมต่อที่จะพาคุณเข้าถึงใจกลางเมืองได้อย่างรวดเร็ว ตอบโจทย์ชีวิตหลากสไตล์ เพียง 15 นาที ถึง อารีย์, จตุจักร, เซ็นทรัลลาดพร้าว อีกทั้งยังอยู่ใกล้จุดขึ้น-ลงทางด่วนศรีรัช ไปไหนมาไหนสะดวกสบายทั้งคนใช้รถไม่ใช้รถ
THE LINE วงศ์สว่าง เป็นโครงการ คอนโด High Rise 36 ชั้น 2 อาคาร อาคารแรกเป็นอาคารสำหรับพักอาศัย 1,287 ยูนิต และอาคารที่สองเป็นอาคารจอดรถ 9 ชั้นพร้อมร้านค้า 1 ยูนิต บนที่ดินประมาณ 7 ไร่ ห้องพักอาศัยเป็นรูปแบบ 1 Bedroom และ 2 Bedrooms โดยมีขนาดเริ่มต้นที่ 28 – 55.75 ตรม. ขายแบบ Fully Fitted พร้อมชุดสุขภัณฑ์, ชุดครัว และเครื่องปรับอากาศ คาดว่าสร้างเสร็จพร้อมอยู่เดือน มี.ค. 2561 นี้
สิ่งอำนวยความสะดวกในโครงการ จัดมาให้อย่างครบครันพร้อมให้คุณบาลานซ์ชีวิตอย่างลงตัว เลือกสรรทุกสิ่ง ตั้งแต่เลือกใช้แนวคิด “ก้อนเมฆ” มาเป็นแรงบันดาลใจในการออกแบบสถาปัตยกรรม ซึ่งให้ความรู้สึกเคลื่อนไหวบนความสงบนิ่ง ที่นี่…จึงเป็นที่ที่บรรจบของการอยู่อาศัยอย่างมีคุณภาพ พร้อมส่วนกลางอาทิเช่น Lobby, Mail room, Olympic-sized swimming pool ความยาว 50 เมตร, Kid’s pool, Floating Sunken Seat, Co-Working Space, Co-Kitchen Space, Kid’s Room, Sky cinema, Fitness, Skylounge พร้อมสวนพักผ่อน, สวนลอยฟ้า, Wifi ในพื้นที่ส่วนกลาง, EV Charger, CCTV, Access Card Control พร้อมรปภ. 24 ชม.ราคาเริ่มต้น 1.99 ล้านบาท* Presale 17 – 18 มี.ค. 61 นี้
รายละเอียดทำเลและตัวโครงการจะเป็นอย่างไรไปชมกันเลยค่า : )
ลงทะเบียนเพื่อรับข้อมูลเพิ่มเติม คลิกที่นี่ : https://goo.gl/ojRcYm
| ชื่อโครงการ | เดอะ ไลน์ วงศ์สว่าง THE LINE Wongsawang |
| เจ้าของโครงการ | บมจ.แสนสิริ / Sansiri |
| เนื้อที่ทั้งหมด | ประมาณ 7 ไร่ |
| จำนวนตึก |
|
| จำนวนชั้น | 36 ชั้น |
| จำนวนห้อง |
|
| ลักษณะห้องและขนาดห้อง |
|
| ที่จอดรถทั้งหมด | 537 คัน คิดเป็น 41% ของจำนวนยูนิตโครงการ |
| จำนวนลิฟต์ |
|
| โซน | เขตบางซื่อ |
| ขนส่งสาธารณะ |
|
| รถโดยสารที่ผ่าน | n/a |
| ที่ตั้ง | ถนนกรุงเทพ-นนทบุรี แขวงวงศ์สว่าง เขตบางซื่อ กทม. |
| กำหนดการ | เริ่มก่อสร้าง ก.ค. 2558 |
| ปีที่สร้างเสร็จ | คาดว่าจะแล้วเสร็จ มี.ค. 2561 |
| ราคา | เริ่มต้น 1.99 ล้านบาท |
| ราคาเฉลี่ยต่อ ตร.ม | ราคาเฉลี่ย ประมาณ 95,000 บาท/ตร.ม. |
| ค่าส่วนกลางและกองทุน | – ค่ากองทุน 500 บาท ต่อตารางเมตร ชำระครั้งเดียว ณ วันโอน- ค่าส่วนกลาง
|
| สถานที่สำคัญใกล้เคียง |
|
| สิ่งอำนวยความสะดวก |
|
| จุดเด่นของโครงการ | THE LINE วงศ์สว่าง คอนโดใหม่จาก Sansiri เลือก…ทุกรายละเอียดชีวิต เพียง 200 เมตร จาก MRT วงศ์สว่าง |
ที่ตั้งโครงการ
ถนนกรุงเทพ-นนทบุรี แขวงวงศ์สว่าง เขตบางซื่อ กทม.
พิกัด google map : 13.829189, 100.527178
โครงการ THE LINE วงศ์สว่าง ตั้งอยู่ใจกลางของย่านวงศ์สว่าง เพียง 200 เมตร ถึงรถไฟฟ้า MRT วงศ์สว่าง จุดเชื่อมต่อที่จะพาคุณเข้าถึงใจกลางเมืองได้อย่างรวดเร็ว ตอบโจทย์ชีวิตหลากสไตล์ เพียง 15 นาที ถึง อารีย์, จตุจักร, เซ็นทรัลลาดพร้าว อีกทั้งยังอยู่ใกล้จุดขึ้น-ลงทางด่วน ที่พร้อมนำคุณสู่ทุกจุดหมายได้อย่างง่ายดาย รายละเอียดและจุดเด่นของทำเลโครงการจะมีอะไรบ้าง ไปดูกันเลยค่ะ
สำหรับคนไม่ใช้รถโครงการ THE LINE วงศ์สว่าง มีจุดเด่นคือ จากโครงการเพียง 200 เมตร ถึงรถไฟฟ้า MRT วงศ์สว่าง ซึ่งตอนนี้รถไฟฟ้า สายสีม่วง ช่วงบางใหญ่-บางซื่อ เปิดให้บริการเต็มรูปแบบแล้ว จากโครงการสามารถไปไหนมาไหนได้ง่าย เลี่ยงรถติดได้ดี อยากไปอารีย์, จตุจักร, เซ็นทรัลลาดพร้าว ก็นั่งรถไฟฟ้าไปเพียง 15 นาทีเท่านั้น
สำหรับรถไฟฟ้าย่านนี้เดิมจะมี MRT สถานีบางซื่อ ที่ปกติคนย่านนี้นิยมใช้กันอยู่ สามารถนั่งไปเชื่อมต่อกับรถไฟฟ้า BTS สายสีเขียวได้ที่สถานีสวนจตุจักร ซึ่งสถานีบางซื่อจะมีส่วนต่อขยายไปเชื่อมกับรถไฟฟ้าสายสีม่วงได้ที่สถานีเตาปูนได้ และจะเป็นสถานีเชื่อมต่อกับสายสีแดงอ่อน และ สายสีแดงเข้มอีกด้วย
นอกจากนี้หน้าโครงการมีวินมอเตอร์ไซค์อยู่ เวลารถติดก็ใช้ลัดเลาะไปไหนมาไหนได้ง่าย และมีป้ายรถเมล์อยู่ห่างจากโครงการเพียง 70 เมตร โดยมีรถเมล์สาย 18, 30, 65 วิ่งผ่านหน้าโครงการนะคะ และมีแท็กซี่ผ่านไปมาอยู่เรื่อยๆและโครงการอยู่ติดถนนใหญ่อยู่แล้วเรียกรถได้สะดวกค่ะ
โครงการ THE LINE วงศ์สว่างตั้งอยู่ติดถนนกรุงเทพ-นนทบุรี ใกล้แยกวงศ์สว่าง เพียง 170 เมตร ซึ่งเป็นแยกที่เชื่อมกับถนนรัชดาภิเษก และ ถนนวงศ์สว่าง จากแยกวงศ์สว่างขับลงใต้ไปก็จะเป็นโซนบางซื่อที่มีรถไฟฟ้า MRT สถานีบางซื่อ และอาคารสำนักงานใหญ่ SCG ตั้งอยู่
จะเข้าเมืองก็วิ่งจากโครงการไปถนนรัชดาภิเษก ผ่านแยกประชานุกูล ขึ้นไปทางประชาชื่นไปออกแยกพงเพชร หรือตรงไปบนถนนรัชดาภิเษกไปเรื่อยๆไปออกแยกรัชโยธิน ไปถนนวิภาวดีรังสิต, พหลโยธิน, ลาดพร้าว, พระราม 9 ได้สบายในระยะขับรถสั้นๆ จัดเป็นโครงการที่สะดวกสบายในการเดินทางเหมาะกับคนขับรถ เพราะอยู่บนถนนที่เชื่อมต่อออกไปได้หลายเส้นทาง ทั้งเข้าเมืองและออกเมือง และยังใกล้จุดขึ้นลงทางด่วนศรีรัชและทางยกระดับอุตราภิมุขอีกด้วย
ถ้าต้องการออกเมือง จากถนนกรุงเทพ-นนท์หน้าโครงการ วิ่งไปติวานนท์ ตรงไปออกแยกแคราย ไปรัตนาธิเบศร์ได้ หรือขึ้นเหนือไปแจ้งวัฒนะ ขึ้นเหนือไปเรื่อยๆก็จะเป็นโซนรังสิต ปทุมธานี ถ้าขับไปทางทิศตะวันตกหรือมุ่งหน้าไปฝั่งแยกวงศ์สว่าง ข้ามสะพานพระราม 7 ไปก็จะเป็นถนนจรัญสนิทวงศ์
อีกข้อดีสำหรับคนใช้รถ คือจากโครงการอยู่ห่างจากจุดขึ้นทางด่วนศรีรัชในระยะเพียง 1.8 กม. หรือระยะขับรถประมาณ 3 นาทีเท่านั้นค่ะ สำหรับคนใช้รถใช้ทางด่วนเป็นประจำก็ถือว่าสะดวกมากทีเดียว
แยกและถนนใกล้เคียง
โครงการ THE LINE วงศ์สว่าง นั้นตั้งอยู่ติดถนนกรุงเทพ-นนทบุรี ฝั่งขาออกเมืองวิ่งไปแยกติวานนท์ ที่ตั้งโครงการจะเป็นถนนโซนที่อยู่ระหว่างแยกวงศ์สว่างและแยกติวานนท์ โดยอยู่ห่างจากแยกวงศ์สว่างประมาณ 170 เมตร บริเวณๆรอบๆในระยะเดินรอบโครงการจะเป็นชุมชน มีบ้านและคอนโดมิเนียมหลายแห่งใกล้ๆกัน จัดเป็นโซนมีความอุดมสมบูรณ์ค่ะ มีร้านสะดวกซื้อ, มึแผงอาหารข้างทาง, ร้านอาหาร และสิ่งอำนวยความสะดวกหลายร้าน
ในระยะเดินใกล้ๆโครงการก็จะมี Big C วงศ์สว่าง ที่ห่างจากโครงการเพียง 400 เมตร เท่านั้น เดินไปซื้อของได้สบายๆ นอกจากนี้ในระยะเดินถึงจะมีสวนสุขภาพประชานุกูล, โรงพยาบาลเกษมราษฎร์ที่ด้านในและรอบๆมีร้านอาหารและร้านสะดวกซื้อค่อนข้างมาก ซึ่งช่วยอำนวยความสะดวกได้ดี
ส่วนในระยะขับรถสั้นๆประมาณ 5 – 10 นาทีนั้นมีห้างและตลาดอยู่หลากหลายค่ะ ตรงไปทางแยกประชานุกูลขึ้นไปทางประชาชื่น ก็เป็นโซนที่มีร้านอาหารอร่อยๆอยู่เยอะ มีตลาดใหญ่ๆของกินเพียบอย่างตลาดบองมาเช่, ตลาดประชานิเวศน์อยู่ ขึ้นไปถึงแยกพงษ์เพชรก็มีห้างใหญ่อย่างเดอะมอลล์ งามวงศ์วาน, พันทิพย์ พลาซ่า และห้างแกรนด์ พลาซ่า ซึ่งเป็นสิ่งอำนวยความสะดวกในการเดินทางเป็นแหล่งวินรถตู้ขนาดใหญ่อยู่ด้วย
จากโครงการขับมาทางแยกรัชโยธิน ก็จะมี Major รัชโยธิน ที่นอกจากจะเป็นโรงหนังที่มีร้านอาหารเยอะมากแล้ว ยังมีตลาดนัดขายเสื้อผ้า ของกินต่างๆหน้าเมเจอร์ตอนกลางคืนอีกด้วย จากแยกรัชโยธินขับลงไปทางฝั่งลาดพร้าวก็จะมี Central ลาดพร้าว, ยูเนียนมอลล์ และสวนจตุจักร ให้เดินเล่นกัน ซึ่งก็เป็นอีกพื้นที่ที่มีความอุดมสมบูรณ์สูงใกล้เคียงโครงการค่ะ
สถานที่สำคัญใกล้เคียง
การเดินทาง
วันนี้เรามีภาพการเดินทางโดยรถมาให้ชมกันค่ะ เส้นทางการเดินทางตามลูกศรแดง โดยเริ่มเดินทางจาก ถนนกรุงเทพ-นนทบุรี→ มุ่งหน้าไปแยกวงศ์สว่าง → ตรงผ่านแยกวงศ์สว่างไปประมาณ 170 เมตร จะเจอโครงการ THE LINE วงศ์สว่าง อยู่ทางฝั่งซ้ายมือแล้วค่ะ
เราเริ่มเดินทางกันจากถนนกรุงเทพ-นนทบุรี มุ่งหน้าไปแยกวงศ์สว่าง ที่กลางถนนจะมีรางรถไฟฟ้าสายสีม่วงวิ่งผ่าน เราจะเจอรถไฟฟ้า MRT สถานี บางซ่อน ซึ่งเป็นสถานี Interchage กับรถไฟฟ้าสายสีแดง โดย MRT บางซ่อน จะอยู่ห่างจาก MRT วงศ์สว่าง ที่ใกล้โครงการ THE LINE วงศ์สว่าง ที่สุด เพียง 1 สถานีเท่านั้น
เราตรงข้ามรางรถไฟไปค่ะ ขวามือเราจะเห็นทางเดินเชื่อมไปสถานีรถไฟฟ้าสายสีแดงอยู่ เพราะ MRT สถานี บางซ่อน เป็นสถานี Interchage กับรถไฟฟ้าสายสีแดงนั่นเอง
ตรงไปอีกหน่อยจะเจอแยกวงศ์สว่างค่ะ เป็นแยกที่ถ้าเราเลี้ยวซ้ายจะเป็นถนนวงศ์สว่าง วิ่งไปขึ้นสะพานพระราม 7 ข้ามไปถนนจรัญสนิทวงศ์ได้ ถ้าเราเลี้ยวขวา จะเป็นถนนรัชดาภิเษก วิ่งไปทางด่วนศรีรัช, แยกรัชโยธิน, ลาดพร้าวได้ ส่วนวันนี้เราขับตรงผ่านแยกวงศ์สว่างไปโครงการ THE LINE วงศ์สว่าง กันค่ะ
จากแยกวงศ์สว่างตรงมาจะเจอ MRT วงศ์สว่างอยู่ ซึ่งเป็น MRT ที่อยู่ใกล้โครงการที่สุด ทางขึ้น MRT วงศ์สว่างอยู่ห่างจากโครงการเพียง 200 เมตรเท่านั้น
เราตรงมาหน่อยจะเจอคอนโด Parkland อยู่ทางฝั่งซ้ายมือ เป็นคอนโดเพื่อนบ้านของโครงการค่ะ โดยที่ดินโครงการ THE LINE วงศ์สว่าง จะอยู่ติดกันเลย
ตรงมาจากแยกวงศ์สว่างประมาณ 170 เมตร ก็จะเจอโครงการ THE LINE วงศ์สว่าง อยู่ทางฝั่งซ้ายมือแล้วค่ะ เราเลี้ยวซ้ายเข้าโครงการไปได้เลย หัวมุมหน้าทางเข้าโครงการมีป้ายรถเมล์อยู่ รอบๆโครงการจะเป็นอย่างไร ไปดูกันเลยค่ะ
รอบโครงการ
วันนี้เรามีภาพการเดินทางจากรถไฟฟ้า MRT สถานีวงศ์สว่าง มาโครงการ THE LINE วงศ์สว่าง พร้อมบรรยากาศรอบๆโครงการมาให้ดูกัน จะเป็นอย่างไรไปดูกันเลยค่ะ
เริ่มกันจากรถไฟฟ้า MRT สถานีวงศ์สว่าง ประตู 4 ที่เป็นประตูที่ใกล้โครงการที่สุดกันนะคะ ระยะเดินจากสถานีไปโครงการก็สั้นๆค่ะ เพียง 200 เมตรเท่านั้น เดินประมาณ 3 นาทีก็ถึงโครงการแล้วค่ะ
ภาพรวมหน้าทางขึ้นรถไฟฟ้า MRT สถานีวงศ์สว่าง ประตู 4 จะเห็นว่ามีขั้นบันไดขึ้นไปแบบนี้
ด้านหน้าทางขึ้นรถไฟฟ้า MRT สถานีวงศ์สว่าง ประตู 4 จะเป็นถนนวงศ์สว่างค่ะ ฝั่งตรงข้ามถนนจะมี Big C วงศ์สว่าง ห้างที่อยู่ห่างจากโครงการ THE LINE วงศ์สว่าง เพียง 400 เมตรเท่านั้น
จากสถานีเราเดินมาทางแยกวงศ์สว่างแล้วเลี้ยวซ้าย
พอเลี้ยวซ้ายมาจะเจอรถไฟฟ้า MRT สถานีวงศ์สว่างแล้วค่ะ
มองไปฝั่งตรงข้ามถนน ด้านข้างรถไฟฟ้า MRT วงศ์สว่าง จะมีสถานีดับเพลิงบางซ่อนอยู่
ด้านข้างสถานีดับเพลิงบางซ่อน จะเป็นทางขึ้นรถไฟฟ้า MRT สถานีวงศ์สว่าง ประตู 3 ค่ะ
เราเดินตรงต่อไปตามทางค่ะ ซ้ายมือจะเป็นทางเดินลัดไปขึ้นรถไฟฟ้า MRT สถานีวงศ์สว่าง ประตู 4 ได้
มองเข้าไปตามทางเดินลัดไปขึ้นรถไฟฟ้า MRT สถานีวงศ์สว่าง ประตู 4 จะเห็นว่าทางเดินเชื่อมไปรถไฟฟ้าด้านบน ช่วยกันแดดกันฝนให้คนเดินด้านล่างไปในตัว ทางนี้เป็นทางที่คนในโครงการน่าจะใช้ได้สะดวกที่สุดค่ะ
ใต้ทางขึ้นรถไฟฟ้ามีที่จอดจักรยานมาให้ด้วย
เราเดินตรงมาตามทางเท้าเลียบถนนกรุงเทพ-นนทบุรี มุ่งหน้าไปโครงการ ติดทางเท้าเป็นอาคารพาณิชย์สูง 4 ชั้น ด้านล่างมีสิ่งอำนวยความสะดวกหลายอย่าง
มี 7-11 ที่อยู่ใกล้โครงการที่สุดอยู่ด้วย โดยอยู่ห่างจากโครงการ THE LINE วงศ์สว่าง เพียง 120 เมตรเท่านั้น
ตรงต่อมาจะเจอคอนโด Parkland อยู่ทางฝั่งซ้ายมือ เป็นคอนโดเพื่อนบ้านของโครงการค่ะ โดยที่ดินโครงการ THE LINE วงศ์สว่าง จะอยู่ติดกันเลย
ถัดมาจะมีป้ายรถเมล์อยู่ ถัดจากป้ายรถเมล์ไปก็เป็นทางเข้าโครงการแล้วค่ะ โดยที่ป้ายรถเมล์จะมีรถเมล์สาย 18, 30, 65 ผ่าน
ทางเข้าโครงการ THE LINE วงศ์สว่าง จะอยู่ติดถนนกรุงเทพ-นนทบุรี ฝั่งซ้ายมือ หรือทิศตะวันออกเฉียงใต้คือคอนโด Parkland วงศ์สว่าง สูง 33 ชั้น ด้านหน้ามีป้ายรถเมล์ ฝั่งขวามือหรือทิศตะวันตกเฉียงเหนือติดถนกรุงเทพ-นนทบุรี เป็นอาคารพาณิชย์ 2 – 3 ชั้น
ภาพรวมโครงการ THE LINE วงศ์สว่าง จะเห็นว่าโครงการสร้างเสร็จพร้อมอยู่เรียบร้อยแล้วในช่วงเดือนมีนาคมนี้ ฝั่งขวามือของภาพหรือทิศตะวันตกเฉียงเหนือของโครงการ จะเห็นคอนโด Aspire วงศ์สว่าง สูง 27 ชั้นโครงการเพื่อนบ้านอยู่ถัดไป จะเห็นว่าการจัดผังอาคาร ส่วนระเบียงในยูนิตที่พักอาศัยไม่ได้หันเข้าหามุมตึกสูงใกล้ๆ แต่จะหันไปส่วนด้านหลังและด้านหน้าของโครงการที่มีวิวที่โล่งกว่ามาก และยังเป็นอาคารแนวราบ สูง 2-4 ชั้นอยู่
ฝั่งขวามือหรือทิศตะวันตกเฉียงเหนือติดถนกรุงเทพ-นนทบุรี เป็นอาคารพาณิชย์ 2 – 3 ชั้น ติดหัวมุมทางเข้าโครงการเป็นร้านขายไม้อัดกว้าง 3 – 4 คูหา
ที่กำแพงหัวมุมซอยทางเข้าโครงการ THE LINE วงศ์สว่าง เป็นวินมอเตอร์ไซค์ค่ะ อัตราค่าโดยสารตามภาพด้านบน จะเห็นว่านั่งไป MRT บางซื่อ 60 บาท และไปเตาปูน 50 บาท
ฝั่งซ้ายมือ หรือทิศตะวันออกเฉียงใต้ติดที่ดินโครงการคือโครงการ Parkland วงศ์สว่าง ด้านหน้ามีป้ายรถเมล์ ที่เราเดินผ่านกันมา
เดินเข้าไปดูด้านในที่ดินโครงการกันต่อค่ะ
จากโครงการมองไปด้านหน้าโครงการทางทิศตะวันออกเฉียงเหนือ จะเป็นถนนกรุงเทพ-นนทบุรี ที่มีรางรถไฟฟ้าสายสีม่วงวิ่งผ่าน ตัวรางมีความสูงประมาณตึก 6 ชั้น
ตัวโครงการ
ภาพจำลองบรรยากาศโครงการ THE LINE วงศ์สว่าง เป็นคอนโดสูง 36 ชั้น ที่พร้อมให้คุณบาลานซ์ชีวิตอย่างลงตัว โดยเลือกสรรทุกสิ่ง ตั้งแต่เลือกใช้แนวคิด “ก้อนเมฆ” มาเป็นแรงบันดาลใจในการออกแบบสถาปัตยกรรม ซึ่งให้ความรู้สึกเคลื่อนไหวบนความสงบนิ่ง จนถึง Facility ต่างๆที่ตอบไลฟ์ สไตล์การใช้ชีวิตรอบด้าน ที่นี่…จึงเป็นที่ที่บรรจบของการอยู่อาศัยอย่างมีคุณภาพ
ซึ่งตอนนี้โครงการก็สร้างเสร็จพร้อมอยู่เรียบร้อยแล้วค่ะ วันนี้เราจะพาเดินสำรวจพื้นที่ส่วนกลางโครงการให้ท่านผู้อ่านเห็นบรรยากาศจริงกันโดยไล่ไปทีละส่วนดังนี้
พื้นที่ส่วนกลางของโครงการ

ผังอาคารชั้นล่าง มีอาคาร 2 อาคาร ด้านหน้าโครงการเป็นอาคารจอดรถ 9 ชั้น รวมที่จอดรถทั้งในร่มและกลางแจ้งรวมแล้วสามารถจอดได้ 537 คัน ไม่รวมจอดซ้อนคัน หรือคิดเป็นประมาณ 41.7 % ของจำนวนยูนิตโครงการ และอาคารจอดรถจะเป็นอาคารที่มีพื้นที่ส่วนกลางหลักอยู่ด้วย ชั้นล่างเป็น Co-working space และ ยูนิตร้านค้า ด้านข้างอาคารจอดรถจะมีที่จอดรถกลางแจ้งและสนามฟุตซอล
ด้านหลังเป็นอาคารยูนิตที่พักอาศัย โดยมีสวนหย่อมขนาดใหญ่เกือบ 1 ไร่ คั่นระหว่างอาคารจอดรถและอาคารยูนิตที่พักอาศัย ด้านในอาคารยูนิตที่พักอาศัยจะมี Lobby, Juristic, Mail room โถงลิฟต์ และเริ่มมีห้องพักอาศัยตั้งแต่ชั้น 1 เลย โดยส่วนยูนิตที่พักอาศัยล้อมด้วยสวน ทำให้ได้รับวิวสวนทุกด้าน
เริ่มจากทางเข้าด้านหน้าโครงการ พื้นทางเข้าเป็นคอนกรีตสแตมป์สีเทาเข้มสลับอ่อน ซ้ายมือของภาพเป็นที่จอดรถกลางแจ้ง ขวามือเป็นพื้นที่สีเขียวที่อยู่ตรงกลางระหว่างอาคารที่พักอาศัยและอาคารจอดรถ
ซุ้มทางเข้าออกอาคารจอดรถของโครงการ (อาคารฝั่งขวามือในภาพ) เป็นไม้กระดก มีป้อมรปภ.อยู่ฝั่งซ้ายมือ รถเข้าโครงการฝั่งซ้าย ออกโครงการฝั่งขวา
ทางเข้าลานจอดรถจะเป็นรั้วไม้กระดก ผ่านเข้าออกด้วย Access Card และมีกล้อง CCTV จับหน้าและป้ายทะเบียนรถเข้าออก คนนอกแลกบัตรกับรปภ. นอกจากนี้ยังมีกล้องวงจรปิดหรือ CCTV รอบโครงการ
และจะมีลานจอดรถของ Visitor หรือผู้มาเยี่ยม ซึ่งเป็นลานจอดรถกลางแจ้งสำหรับคนนอก อยู่ทางฝั่งซ้ายมือของโครงการ
และจะมีศาลพระภูมิของโครงการอยู่ที่จุดนี้ด้วยค่ะ ตั้งอยู่บนสวนหย่อม ปูสนามหญ้าและทำทางเดินให้ไปสักการะได้ง่าย
มาดูสวนชั้นล่างที่เป็นพื้นที่สีเขียวที่อยู่ตรงกลางระหว่างอาคารที่พักอาศัยและอาคารจอดรถกันต่อค่ะ
พื้นที่สวนชั้นล่าง เป็นสวนขนาดใหญ่เกือบ 1 ไร่ ออกแบบมาเพื่อให้เกิด Activity ที่หลากหลาย โดยพื้นที่สวนนี้จะอยู่ตรงกลาง นอกจากแนวต้นไม้จะช่วยเป็น Buffer เพิ่มความเป็นส่วนตัวของอาคารที่พักอาศัยจากอาคารจอดรถแล้ว ยังทำให้ล็อบบี้ของอาคารที่พักอาศัย(อาคารฝั่งซ้ายมือในภาพ) ได้วิวสวนไปในตัว
ภายในสวนปลูกต้นไม้มาร่มรื่น ทำทางเดินสำหรับเดินเล่น และวิ่ง Jogging และม้านั่งยาวสาหรับนั่งพักผ่อน
ม้านั่งสำหรับนั่งพักผ่อนในส่วนเป็นม้านั่งยาวสีขาว รูปร่างโค้งมนไปตามคอนเซปต์ของ Landscape ในโครงการ
ทางเดินและสนามหญ้าในสวนออกแบบตามลายเส้นโค้งมนตามเส้นสายธรรมชาติ
ข้างสวนจะเป็นคลองลำรางที่พาดผ่านที่ดินโครงการ
ถัดจากสวนมาจะมีสนามฟุตซอล โดยอยู่ข้างลานจอดรถกลางแจ้งอีกฝั่ง
ลานจอดรถกลางแจ้งติดสนามฟุตซอลส่วนนี้จะอยู่ติดอาคารจอดรถหน้าโครงการ พื้นถนนเป็นลานคอนกรีต
โครงการมีสนามฟุตซอลมาให้ เอาใจคนชอบเตะบอลค่ะ โดยสนามฟุตซอลมีรั้วตะแกรงเหล็กกันเอาไว้ให้สูง กันบอลกระเด็นข้ามออกไปนอกสนามนั่นเอง
ภายในสนามฟุตซอล
ถัดมา เรามาดูส่วนอาคารจอดรถของโครงการกันต่อค่ะ ด้านบนเป็นภาพจำลองบรรยากาศพื้นที่ส่วนกลางบนตึกอาคารจอดรถ 9 ชั้น ที่ด้านบน เป็นสวนอเนกประสงค์และสระว่ายนำ้ขนาดโอลิมปิก 50 เมตร พร้อมพื้นที่จัดบาร์บีคิวชั้น 3 และ Co-working space ชั้น 1 ไว้แฮงค์เอ้าท์กับเพื่อน ตามแนวคิด Co-Living Space วิถีชีวิตใหม่ของการใช้ชีวิต มุ่งเน้นการอยู่อาศัยซึ่งแบ่งปันความสุขร่วมกัน จึงเกิดเป็นพื้นที่การแบ่งปันความสุข 3 แบบ ทั้ง Co-lifestyle, Co-creation และ Co-working สิ่งอำนวยความสะดวกที่สามารถตอบโจทย์ทุกความต้องการ เดี๋ยวเราพาไล่ดูกันไปทีละส่วนนะคะ
มองไปที่อาคารจอดรถ เป็นอาคารสูง 9 ชั้น ซึ่งเป็นอาคารพื้นที่ส่วนกลางหลักของโครงการ ที่ด้านนอกอาคารจะเห็นบันไดหนีไฟแบบเท่ๆที่จากชั้นดาดฟ้าใช้เดินลงมาชั้นล่างได้เลย อาคารจอดรถแบ่งพื้นที่ใช้งานดังนี้
เริ่มกันจากชั้นล่าง เราไปดูส่วน Co-working space ที่ชั้น 1 กันก่อนเลยค่ะ
ส่วน Co-Working Space ถูกออกแบบมาให้สามารถใช้นั่งทำงานได้หลากหลายสไตล์ตามวิถีชีวิตของคนยุคนี้ที่มีลักษณะงานหรือไลฟ์สไตล์ที่อิสระยิ่งขึ้น โดยพื้นที่ส่วนกลางของโครงการอย่างเช่น Co-Working Space นี้จะมีสัญญาณ Internet แบบ Wifi คอยให้บริการอยู่ค่ะ ห้องมีเพดานสูงถึง 4.3 เมตร ให้ความรู้สึกโปร่งและโอ่โถง
ภายใน Co-Working Space จัดสรรพื้นที่เพื่อรองรับการทำงาน พร้อมอุปกรณ์ทันสมัยไว้รองรับการทำงานแบบส่วนตัวหรือการประชุมแบบเป็นทีม โดยจัดโต๊ะประชุมไว้ตรงกลาง
และมีโต๊ะพร้อมเก้าอี้ทรงสูงแบบเคาน์เตอร์ให้นั่งทำงานได้
และมีโซฟายาวไว้ให้นั่งอ่านหนังสือ
ถัดจาก Co-Working Space มาจะเป็นโถงลิฟต์ของอาคารจอดรถ ผนังกรุด้วยพื้นผิวลายไม้แบบเดียวกัน
ขึ้นมาชั้น 3 ที่โถงลิฟต์จะมีประตูส่วนลานบาร์บีคิวแบบเอาท์ดอร์อยู่
ผังอาคารชั้น 3 ที่อาคารจอดรถจะมีลานบาร์บีคิวอยู่ พร้อมเคาน์เตอร์ยาว เตาบาร์บีคิว และอ่างล้างจาน พร้อมให้ใช้จัดปาร์ตี้บาร์บีคิวหรือขึ้นมานั่งพักผ่อน สังสรรค์กับเพื่อนฝูงได้สบายๆ
เปิดประตูออกมาจะเป็นส่วนลานบาร์บีคิวชั้น 3 จะเป็นสวนหย่อม พร้อมที่นั่งพักผ่อนให้ขึ้นมานั่งพักผ่อน พูดคุย สังสรรค์กับเพื่อนฝูงได้
มีม้านั่งริมกระถางต้นไม้แบบนี้มาให้ 3 จุด
มีชุดเก้าอี้หวายเทียม 3 ตัวพร้อมเบาะ หมอนอิง และโต๊ะกลางมาให้ 2 ชุด
และมีเคาน์เตอร์สำหรับจัดปาร์ตี้บาร์บีคิวกรุด้วยหินแกรนิตสีดำมาให้กว้างขวางแบบนี้ค่ะ ทำให้มีที่วางอาหารและเตรียมอาหารได้อย่างสบายๆ
บนเคาน์เตอร์มีเตาบาร์บีคิวติดตั้งมาให้เรียบร้อย
และมีอ่างล้างจานสแตนเลสแบบสองหลุมพร้อมตะแกรงมาให้แบบนี้ ใช้ล้างจานหรือล้างผักได้สบายๆ
จากเตาบาร์บีคิวมองกลับไปที่ลานบาร์บีคิวค่ะ เป็นพื้นที่ขนาดกำลังดี เหมาะสำหรับนั่งพักผ่อนหรือจัดปาร์ตี้แบบ 8 – 10 คนได้
ถัดมาเป็นห้องน้ำในอาคารจอดรถที่ชั้น 8 ค่ะ แบ่งเป็น 3 ห้อง ไล่จากซ้ายไปขวา คือห้องน้ำชาย ห้องน้ำหญิง และห้องน้ำคนพิการขวามือของภาพ

ผังอาคารชั้น 8 จะเห็นว่าส่วนอาคารจอดรถจะเป็นชั้นที่มีห้องน้ำขนาดใหญ่อยู่ แยกฝั่งหญิง ชาย คนพิการ โดยชั้นนี้จะเป็นชั้นที่อยู่ด้านล่างพื้นที่ส่วนกลางหลักๆที่ชั้น 9 อย่างสระว่ายน้ำและห้องฟิตเนส
ภายในห้องน้ำคนพิการกว้างขวาง สามารถเข็นรถเข็นเข้าไปได้สบายๆ และมีเคาน์เตอร์อ่างล้างมือยาวมาให้แบบนี้
ถัดมาเราเข้ามาดูในห้องน้ำหญิงกันต่อค่ะ เป็นห้องน้ำติดเครื่องปรับอากาศ แบบอากาศร้อนๆเดินเข้ามานี่เย็นสบายดีค่ะ ผนังห้องน้ำเป็นผนังกระจกดึงแสงธรรมชาติเข้ามาในห้องอย่างที่เห็น และมีเคาน์เตอร์อ่างล้างมือพร้อมเคาน์เตอร์สำหรับแต่งตัวแต่งหน้ามาให้แยกกันอย่างละชุด

เคาน์เตอร์อ่างล้างมือเป็นเคาน์เตอร์ลายหินอ่อนสีขาว น้ำตาล ชมพู พร้อมอ่างสลักแบบลาดลงไปตรงกลางดูหรูหราดี โดยติดตั้งอุปกรณ์ก๊อกน้ำมาให้ 4 ชุด
ฝั่งซ้ายมือเป็นห้องโถสุขภัณฑ์ 3 ห้อง ห้องอาบน้ำ 2 ห้อง
ภายในห้องโถสุขภัณฑ์ค่ะ
ขึ้นไปชั้น 9 กันต่อ ชั้นนี้จะมี Fitness center และ Olympic size swimming pool อยู่
ผังอาคารชั้น 9 ที่อาคารจอดรถเป็นชั้นดาดฟ้าค่ะ จะเป็นห้องฟิตเนส สระว่ายน้ำขนาดใหญ่แบบ Olympic Size ยาวสุด 50.00 ม. ส่วนกว้างสุด 9.00 ม.พร้อมสระเด็กและสวนหย่อม
จากโถงลิฟต์เดินเข้ามาจะมีบันไดหนีไฟอยู่ตรงกลาง ประตูห้องฟิตเนสขวามือ และประตูออกไปสระว่ายน้ำกลางแจ้งทางซ้ายมือ
เราเข้าไปดูในห้องฟิตเนสกันก่อนค่ะ
ภายในห้องฟิตเนส ออกแบบตามแนวคิด Co-Recreation เลือกสรร…เพื่อเติมเต็มกิจกรรมแห่งความสุข ให้สามารถเพลิดเพลินกับการออกกำลังกาย ที่ Fitness Room พร้อมอุปกรณ์ทันสมัยอย่าง Stepmill บันไดออกกำลังกายได้ในทุกวันๆ อีกทั้งยังมองเห็นวิวกว้าง 180 องศา ด้วยผนังกระจก 3 ทิศทาง
ผนังในห้องฟิตเนสฝั่งนึงเป็นผนังกระจกไว้ให้ส่องดูท่าเวลาออกกำลังกายได้ และมีทีวีติดตั้งมาให้เรียบร้อย โดยจะมีเครื่องซิทอัพมาให้ 2 เครื่องและบาร์ดัมเบล 1 ชุด
ถัดมามีเครื่องเพาะกายมาให้ 1 ชุด
มีเครื่องปั่นจักรยาน 3 ชุด, Stepmill บันไดออกกำลังกาย 1 ชุด และเครื่องวิ่ง 1 ชุด
และลู่วิ่งไฟฟ้า 5 เครื่อง วิวสระว่ายน้ำของโครงการ
วิวสระว่ายน้ำจากในห้องฟิตเนสมองออกมาค่ะ สระว่ายน้าหลัก ขนาดส่วนยาวสุด 50.00 ม. ส่วนกว้างสุด 9.00 ม. ลึก 1.20 ม. ขอบและกระเบื้องสระเป็นพื้นผิวแบบหินสีอ่อน และมีที่นั่งข้างสระมาให้หลายจุด
โดยสระว่ายน้ำจะอยู่ติดห้องฟิตเนสแบบนี้
เป็นสระน้ำล้น มีทางเดินข้างสระไปส่วนสวนดาดฟ้าและสระเด็กได้
จากทางเดินข้างสระจะมีบันไดหนีไฟเป็นทางลงไปได้ถึงชั้นล่างเลย ชอบที่ใช้บันไดเดินเล่นออกกำลังกายชมวิวโครงการไปด้วยได้เพราะออกแบบบันไดมาให้เปิดโล่ง ชมวิวสวนไปด้วยได้

และที่บันไดมีราวจับกันตกทั้งสองฝั่ง ไม่น่าหวาดเสียวเวลาเดินขึ้นลงดีค่ะ
ถัดมาเป็นสระว่ายน้ำเด็กพร้อมสไลเดอร์หินสีขาว ด้านหลังเป็นพื้นที่สีเขียว
ภาพรวมสระว่ายน้ำเด็ก
สวนหย่อมข้างสระว่ายน้ำเด็กจัด Landscape มากลมกลืนกันกับคอนเซปต์ ก้อนเมฆ ของโครงการ
ที่สวนหย่อมมีม้านั่งยาวมาให้ใช้นั่งพักผ่อนรับลมได้
จากสวนหย่อมมองกลับไปที่สระว่ายน้ำ
จะมีทางเดินกลับไปส่วนสระว่ายน้ำผู้ใหญ่ และพื้นที่ล้างตัวก่อนลงสระ
จุดล้างตัวก่อนลงสระเป็นฝักบัวแบบ Rain Shower มีมาให้ 2 จุด
ถัดมาจะมีที่นั่งทรงกลม มีลักษณะเป็นเกาะ ล้อมรอบด้วยน้ำตื้น และมีต้นไม้ตรงกลาง ให้ความรู้สึกสงบและเป็นส่วนตัว
ภาพที่นั่งทรงกลมจากอีกด้านค่ะ
ถัดมาจะเป็นทางลงสระผู้ใหญ่ เป็นทางลงแบบขั้นบันได มีเกาะต้นไม้อยู่ข้างสระ สร้างบรรยากาศที่เป็นธรรมชาติ
ถัดมาเป็นสระน้ำตื้นประมาณข้อเท้า และมี Day Bed แบบปรับเอนนอนบนสระว่ายน้ำและเอาเท้าจุ่มน้ำเล่นได้ 4 ตัว
และจะมีเก้าอี้หวายเทียมสีขาวครีม พร้อมเบาและหมอนอิงสีเทา พร้อมโต๊ะข้างมาให้ 3 ชุด
จากอาคารจอดรถ 9 ชั้น เราเดินข้ามมาดูพื้นที่ส่วนกลางของอาคารที่พักอาศัยกันต่อค่ะ เป็นอาคารที่พักอาศัยสูง 36 ชั้น ที่ชั้น 1 จะมีส่วน Lobby, Mailroom และชั้น 36 มีพื้นที่พักผ่อนชั้นดาดฟ้า Panoramic Sky lounge, Sky Cinema, Kid’s room, Kid’s outdoor playground ซึ่งเดี๋ยวเราจะพาไล่ดูกันไปทีละส่วนนะคะ
ระหว่างอาคารจอดรถและอาคารที่พักอาศัยจะมีทางเดินเป็นคอนกรีตสแตมป์ผ่านสวนไปแบบนี้
ทางเข้าส่วนล็อบบี้ของอาคารที่พักอาศัยเป็นผนังกระจก กรอบอลูมิเนียมสีดำ พื้นและเสาเป็นหินอ่อนสีขาวลายเทา มีขั้นบันได 4 ขั้นขึ้นไปส่วนประตูหน้า Lobby
ด้านข้างทางเข้า Lobby ฝั่งซ้ายมือมีทางลาดสำหรับรถเข็นคนพิการหรือรถเข็นสำหรับขนของมาให้เรียบร้อย
ด้านข้างทางเข้า Lobby ฝั่งขวามือ ข้างล็อบบี้มีน้ำพุมาให้เป็นแนวยาว เสียงของน้ำพุช่วยสร้างบรรยากาศที่เป็นธรรมชาติ
ผังอาคารยูนิตที่พักอาศัยชั้น 1 พอเข้าอาคารมาจะเป็น Lobby เพดานสูง ถัดมาเป็นสำนักงานนิติบุคคล ห้องน้ำ ห้องจดหมายและโถงลิฟต์ มีลิฟต์โดยสารทั้งหมด 4 ตัว ลิฟต์บริการเอาไว้ให้แม่บ้านขนขยะลงมา หรือคนงานขนของไปมาอีก 1 ตัว ยูนิตที่พักอาศัยจะเริ่มตั้งแต่ชั้นนี้เลย โดยจะมีประตูกั้นส่วนยูนิตที่พักอาศัยอีกชั้นหนึ่งเพื่อความปลอดภัยและเป็นส่วนตัว
ที่ประตูทางเข้าล็อบบี้ของอาคารยูนิตที่พักอาศัย คนในโครงการแตะการ์ดผ่านเข้าไปด้วยระบบ Access Card
เข้ามาภายในส่วนล็อบบี้ของโครงการมีเพดานสูง 5 เมตร ให้ความรู้สึกสูงโปร่ง ภายในจัดที่นั่งพักผ่อนมาให้หลายจุด ล็อบบี้ตกแต่งด้วยวัสดุที่ให้ความรู้สึกคลาสสิคและหรูหรา อย่างผนังและเสาไม้กรุผิวด้วยไม้สีวอลนัท
เพดานของล็อบบี้ถูกออกแบบให้มีเส้นสายพริ้วไหวตาม Concept ก้อนเมฆ และตกแต่งด้วยโคมไฟที่สั่งทำพิเศษ ได้แรงบันดาลใจจากก้อนเมฆที่มีแสงส่องผ่านลงมา
ทั้งเบาะพร้อมหมอนอิงบนม้านั่งล้อมรอบเสาขนาดใหญ่
และชุดเก้าอี้แบบอาร์มแชร์พร้อมโต๊ะกาแฟ โดยมีวิวสวนขนาบทั้งสองฝั่งของล็อบบี้
และจะมีส่วนสำนักงานนิติบุคคลกั้นห้องมาเป็นสัดส่วน โดยเจาะช่องมาให้ติดต่อรับเรื่องได้อย่างสะดวกที่ล็อบบี้ได้เลย พื้นและผนังของล็อบบี้จะเป็นวัสดุหินอ่อนสีขาวขีดเทา White Venus
ถัดจากสำนักงานนิติบุคคลจะเป็นทางเดินไปส่วนโถงลิฟต์และยูนิตที่พักอาศัย พื้นที่ส่วนนี้ก็จะมีที่นั่งรับรองมาให้อีกหลายชุด
โดยพื้นที่นั่งพักผ่อนส่วนนี้ของล็อบบี้จะเป็นวิวสวนที่คั่นระหว่างอาคารที่พักอาศัยและอาคารจอดรถ
ทางเข้าไปส่วนยูนิตที่พักอาศัยของชั้น 1 จะมีประตูกั้นเป็นสัดส่วน สแกนการ์ดผ่านเข้าไปได้เฉพาะชั้น
โถงทางเดินแจกไปยังยูนิตที่พักอาศัย แบบ Double Corridor พื้นและผนังตกแต่งมาในโทนสีครีมเรียบๆสบายตา
ผังอาคารยูนิตที่พักอาศัยชั้น 2 ส่วนกลางจะมีห้องซักรีด นอกนั้นเป็นยูนิตที่พักจำนวนเท่ากับชั้น 1 เนื่องจากส่วน Lobby ที่ชั้น 1 เป็นแบบเพดานสูง 5 เมตร ทำให้พื้นที่ชั้น 2 ส่วนล็อบบี้ถูกเว้นว่างไป

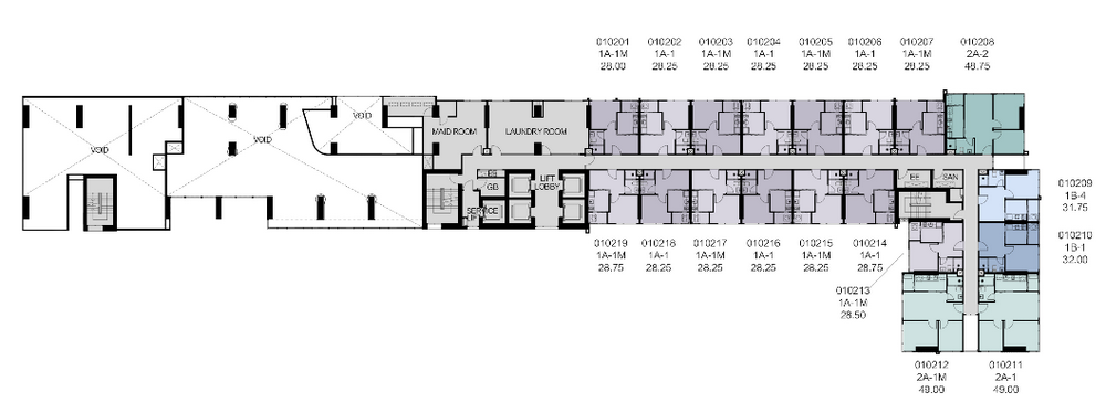
ผังอาคารยูนิตที่พักอาศัยชั้น 3-13 เป็น Typical Floor Plan ที่ตั้งแต่ชั้น 3 ขึ้นไปจะจัดผังเหมือนๆกันหมด โดยเป็นยูนิตที่พักอาศัยเท่านั้น จัดผังห้องให้ระเบียงหันไปในทิศเหนือ และทิศใต้เป็นหลัก ทำให้เลี่ยงแดดร้อนฝั่งทิศตะวันตกในช่วงบ่ายได้ดี
จัดโถงลิฟต์และพื้นที่ส่วนกลางไว้ตรงกลาง ทำให้ยูนิตริมสุดนั้นมีระยะเดินมาโถงลิฟต์ไม่ไกลมาก และมีระยะห่างทั้ง 2 ฝั่งเท่าๆกัน จัดห้อง 1 ห้องนอน 31.75 – 40.75 ตร.ม. (สีฟ้า) ไว้ทางฝั่งซ้ายหรือค่อนไปทางทิศตะวันออก ห้อง 1 ห้องนอน 28.25 – 28.75 ตร.ม. (สีม่วง) ไว้ทางฝั่งขวาหรือทิศตะวันตก ห้องแบบ 2 ห้องนอน (สีเขียว) วางไว้ส่วนมุมของอาคาร
ผังอาคารยูนิตที่พักอาศัยชั้น 14-36 ชั้นที่สูงขึ้นมา ได้วิวที่ดีและมองออกไปได้ไกลกว่า จะเห็นว่าผังอาคารชั้นๆบนจะมีห้องขนาดเล็ก 1 ห้องนอน 28.25 – 28.75 ตร.ม. (สีม่วง) น้อยลง และมี 1 ห้องนอน 31.75 – 40.75 ตร.ม. (สีฟ้า) มากขึ้น
ผังอาคารยูนิตที่พักอาศัยชั้นดาดฟ้า พื้นที่ส่วนกลางหลักๆอีกส่วนในโครงการจะอยู่ที่ชั้นนี้ค่ะ ประกอบด้วย Sky lounge, สวนชั้นดาดฟ้า, Sky Cinema หรือห้องดูหนังชั้นดาดฟ้า, Kid’s room และ Kid’s playground หรือสนามเด็กเล่นที่ให้เด็กๆมาเล่นสนุกกันได้เต็มที่
ลิฟต์ในโครงการเป็นลิฟต์ล็อกชั้นหรือ proxy lift เพื่อความปลอดภัยของคนในโครงการค่ะ ส่วนเราขึ้นลิฟต์ไปดูพื้นที่ส่วนกลางชั้นดาดฟ้าหรือชั้น 37 ของโครงการ
ที่ชั้น 37 จะมีส่วนห้องเด็ก หรือ KID’S ROOM อยู่
เป็นห้องที่คนที่มีลูก หลาน หรือเด็กเล็กๆน่าจะชอบกันค่ะ พาเด็กขึ้นมาเล่นเกมส์ อ่านนิทาน เล่นของเล่นด้วยกันได้ ภายในห้องเด็กจัดที่นั่งและเตรียมของเล่นมาให้หลากหลาย
มีม้าโยกมาให้ 2 ตัว ชั้นหนังสือ และมีของเล่นวางมาให้เล่นเยอะดี พื้นส่วนที่เล่นปูพื้นยางลานหมากรุกสีขาวดำมาให้
มองไปอีกฝั่งมีโคมไฟวงกลมสีขาว ที่ทำเป็นรูปลูกโป่ง มีภาพวาดหมีสีน้ำตาลถืออยู่ พร้อมเตรียมเกมส์และของเล่นสำหรับเด็กมาให้อีกหลายชุด
ถัดมาเป็นประตูเปิดไปสนามเด็กเล่นชั้นดาดฟ้า ที่มีชื่อว่า SKY PLAYGROUND WITH OUTDOOR RECREATION AREA
สนามเด็กเล่นประกอบด้วยพื้นที่เล่นสาหรับเด็กมีเครื่องเล่นสำหรับปีนป่าย,เนินยางกระโดดและสไลเดอร์พื้นยางสังเคราะห์ และปูสนามหญ้าและปลูกต้นไม้มาให้ร่มรื่น
เนินยางกระโดดและสไลเดอร์พื้นยางสังเคราะห์ ออกแบบมาด้วยสีสันสดใส เด็กๆเล่นกันได้อย่างปลอดภัย หกล้มก็มียางกันกระแทกอยู่
มีเครื่องเล่นแบบเชือกถักสีแดงสำหรับปีนป่าย พื้นเป็นยางและสนามหญ้า
ถัดมาอีกฝั่งของชั้น 37 จะเป็น SKY CINEMA หรือห้องดูหนังชั้นดาดฟ้า
ห้อง Sky Cinema ตามแนวคิดเลือกสรร…เพื่อเติมเต็มความบันเทิงให้ชีวิต ดื่มด่ำกับการดูภาพยนตร์เรื่องโปรดกับ Sky Cinema ที่ตกแต่งด้วยสีน้ำเงินคราม เพื่อสร้างสรรค์บรรยากาศของท้องฟ้าให้มาอยู่รอบตัว
ภายในห้องดูหนังจะมีโซฟาตัวยาวนั่งได้ 6 – 8 คนพร้อมหมอนอิงและโต๊ะข้างมาให้
และมีชั้นวางทีวีพร้อมจอทีวีติดตั้งมาให้เรียบร้อย
ถัดจากห้องดูหนังเป็นประตูเปิดออกไปสวนพักผ่อนชั้นดาดฟ้าและ Panoramic Sky Lounge
ออกมาจะเจอสวนชั้นดาดฟ้าและ Panoramic Sky lounge อยู่ทางฝั่งขวามือ
ภายใน Panoramic Sky lounge เป็นห้องเพดานสูง 5 เมตร ผนังรอบด้านเป็นกระจกที่สามารถดื่มด่ำบรรยากาศเมืองวิวสูง 360 องศาได้
ภายใน Panoramic Sky lounge จัดที่นั่งพักผ่อนมาให้หลายที่ ทั้งอาร์มแชร์ และม้านั่ง และที่พิเศษคือในห้องจะมีชุดเคาน์เตอร์ Pantry และ ตู้เย็นมาให้ด้วย
ชุดเคาน์เตอร์ครัวแบบ Pantry และตู้เย็นค่ะ สามารถนำเครื่องดื่มมาแช่เพื่อเปิดดื่มในสกายเลาจ์ได้ และประตูสีน้ำตาลที่เห็นข้างเคาน์เตอร์ครัวเป็นประตูห้องน้ำ
วิวเมืองที่เราเห็นจาก Panoramic Sky lounge มองไปทางฝั่งทิศเหนือ หรือฝั่งด้านหน้าโครงการ ฝั่งนี้จะเห็นบ้านเรือนเป็นแนวราบซะเป็นส่วนใหญ่ ทำให้มองวิวออกไปได้ไกล ไม่มีตึกสูงมาบังวิว
ถัดจากสกายเลาจน์มาเป็นสวนชั้นดาดฟ้า
ในสวนจัดที่นั่งพักผ่อนแบบกลางแจ้งมาให้หลายจุด ใช้นั่งพักผ่อนชมวิวเมืองหรือชมดาวในยามค่ำคืนก็เหมาะ นั่งรับลมตอนเย็นดูพระอาทิตย์ตกก็เหมาะเช่นกัน
วิวจากสวนชั้นดาดฟ้ามองไปทางทิศใต้ ฝั่งนี้มองไปทางถนนวงศ์สว่าง มุ่งหน้าไปสะพานพระราม 7 จะเห็นว่ารอบๆระยะใกล้เคียงโครงการก็เป็นพื้นที่แนวราบเช่นกัน ทำให้มองวิวออกไปได้ไกล ไม่มีตึกสูงมาบังวิว
:: UNIT TYPE ::
โครงการ THE LINE วงศ์สว่าง มีแบบห้องให้เลือก 2 แบบ ดังนี้
ผังห้องแต่ละแบบจะมีอะไรบ้าง มาดูกันเลยค่ะ
1 Bedroom : 28.00 ตร.ม.
1 Bedroom : 35.00 ตร.ม.
1 Bedroom : 40.75 ตร.ม.
2 Bedrooms : 47.75 ตร.ม.
2 Bedrooms : 49.00 ตร.ม.
2 Bedrooms : 54.00 ตร.ม.
ดูแบบแปลนห้องทั้งหมด คลิกที่นี่
ห้องตัวอย่าง
ห้องตัวอย่างห้องแรกที่พาไปชมเป็นห้องแบบ 1 Bedroom พื้นที่ใช้สอย 28 ตร.ม. ห้องจัดแบ่งเป็น 1 ห้องนอน 1 ห้องน้ำ 1 ห้องรับแขก 1 ห้องครัวปิดติดระเบียง เข้ามาจะเจอส่วนห้องนั่งเล่นและมีประตูห้องน้ำอยู่ฝั่งตรงข้าม ต่อด้วยประตูบานเปิดเข้าไปส่วนห้องนอน และครัวปิดช่วยกันกลิ่นและควันเข้าไปยังส่วนต่างๆในห้อง โดยครัวจะมีประตูบานเลื่อนเปิดออกไประเบียงใช้ช่วยระบายอากาศเวลาทำอาหารได้
โครงการขายแบบ Fully Fitted คือตามมาตรฐานจะได้ชุดครัว ชุดสุขภัณฑ์ และเครื่องปรับอากาศ แต่มีความพิเศษคือสามารถซื้อ Furniture Package แบบ Fully Furnished พร้อม Built in อย่างในห้องตัวอย่างได้ด้วย รายละเอียดสอบถามทางสำนักงานขายอีกทีนะคะ ตัวห้องจะเป็นอย่างไรไปดูกันเลยค่ะ
ประตูทางเข้าห้องเป็นประตูบานสำเร็จบานสูง กรุผิวลายไม้สีเข้ากันกับวงกบประตู พร้อมตาแมวไว้ให้ส่องคนมาเคาะประตูได้ และติดตั้ง Digital Door Lock มาให้ทุกบาน
ประตูห้องติด Digital Door Lock ของ Samsung สามารถเข้าห้องได้โดยแตะคีย์การ์ดและกดรหัสผ่าน พร้อมกลอนประตู Double Lock และมือจับแบบก้านโยกสแตนเลส
เข้าไปจะเจอส่วนห้องนั่งเล่นมองต่อเนื่องไปที่ส่วนห้องนอนและส่วนครัวที่เปิดออกไประเบียงได้ พื้นเป็นไม้ลามิเนต 8 มม. เพดานห้องสูง 2.65 เมตร ไฟดาวน์ไลท์ทั้งห้อง ผนังของจริงจะเป็นผนังฉาบปูนเรียบทาสีขาว เราพาไล่ดูกันไปทีละส่วนนะคะ
จากส่วนห้องนั่งเล่นมองกลับไปที่ประตูทางเข้าห้องค่ะ จะเห็นว่าติดตั้งเครื่องปรับอากาศมาให้เรียบร้อย ระยะดูทีวีจากโซฟาประมาณ 2.5 m.
ส่วนห้องนั่งเล่นวางโซฟาและโต๊ะกาแฟมาให้ โซฟาให้มาเป็นโซฟาหุ้มผ้าสีเทาอ่อนแบบ 2 ที่นั่ง มีที่วางแขนและมีพนักพิง พร้อมโต๊ะกาแฟและโต๊ะข้างที่ขยับไปมาได้ตามลักษณะการใช้งาน ผนังห้องของจริงเป็นผนังฉาบปูนเรียบทาสีขาว
มองไปทางชั้นวางทีวี Built in ชั้นวางของใต้ทีวีและชั้นลอยมาให้ ของจริงได้ตามนี้ ด้านข้างเป็นประตูห้องน้ำ
เปิดลิ้นชักแและช่องเก็บของใต้ชั้นวางทีวีและชั้นลอยให้ดู จะเห็นว่าเก็บของได้เยอะ ช่วยเพิ่มพื้นที่ใช้สอยได้ดี ติดประตูทางเข้าห้องทำ Built in เป็นชั้นวางของและชั้นวางรองเท้าสูงจรดเพดาน ช่วยเพิ่มพื้นที่ใช้สอยได้ดี หน้าบานติดกระจกเงาให้ใช้ส่องตรวจความเรียบร้อยของตัวเองก่อนออกจากห้องได้ ที่ผนังเตรียมเต้าเสียบปลั๊กพร้อมช่องเสียบสายสัญญาณทีวีมาให้เรียบร้อย
เข้าไปดูในห้องน้ำกันต่อค่ะ พื้นห้องน้ำลดระดับลงไปจากห้องนั่งเล่นประมาณ 5 cm.เพื่อกันน้ำและความชื่อจากห้องน้ำเข้าสู่พื้นห้องนั่งเล่น พื้นธรณีประตูเป็นกระเบื้องเซรามิ อันนี้ดีนะคะ เพราะโดนน้ำไปนานๆจะไม่บวมขึ้นมาแบบพื้นไม้ลามิเนต ที่ส่งผลทำให้ประตูเปิดปิดยากนั่นเอง
ภาพรวมห้องน้ำค่ะ ระยะใช้งานสบายๆ เดี๋ยวพาไล่ดูกันไปทีละอย่างนะคะ พื้นและผนังเป็นกระเบื้องเซรามิกขนาด 60 x 60 cm. สุขภัณฑ์ใช้ของ Cotto ส่วนอาบน้ำติดตั้งมาให้พร้อมฉากกระจกกั้นส่วนเปียก
ที่ผนังปูกระเบื้องจรดเพดาน เพดานติดไฟดาวน์ไลท์มาให้ พร้อมพัดลมดูดอากาศช่วยระบายอากาศ
อ่าง ตู้กระจก และตู้อ่างล้างหน้าพร้อมหน้าบานปิดผิวลายไม้ของ Starmark
เทียบฝ่ามือกับอ่างให้เห็นระยะใช้งานค่ะ ผนังหลังอ่างจะมีเต้าเสียบปลั๊กไฟ ใช้เสียบไดร์เป่าผมได้
ชอบที่กระจกเงาหน้าอ่างล้างมือเปิดออกมาแล้วมีช่องเก็บของมาให้เยอะแบบนี้ค่ะ มีชั้นมาให้หลายชั้น ใช้เก็บของกระจุกกระจิกได้สบายๆ มีราวสแตนเลสสำหรับแขวนผ้าเช็ดมือมาให้ในตัว หน้าบานปิดผิวลายไม้เข้าชุดกันกับตู้อ่างล้างมือ ผลิตโดย Starmark
โถสุขภัณฑ์เป็นของ Cotto แยกท่อระบายน้ำ 2 จุด คือที่ข้างโถสุขภัณฑ์ที่เป็นส่วนแห้งและส่วนเปียกในฉากกั้นห้องน้ำ
ฉากกั้นห้องอาบน้ำเป็นกระจกเทมเปอร์แบบบานเปิด มือจับเป็นรูปตัว U ใช้แขวนผ้าเช็ดตัวได้
ชอบที่ผนังข้างชุดฝักบัวเจาะช่องเป็นที่วางของมาให้ชั้นใหญ่ดีค่ะ เทียบกับฝ่ามือให้ดูขนาดฝักบัวจะเห็นว่าขนาดใหญ่เหมาะมือดี
และมี Rain Shower ติดตั้งมาให้ที่เพดานห้องอาบน้ำด้วย ของจริงได้ตามนี้
ถัดจากห้องนั่งเล่นเป็นส่วนครัวปิด มีฉากกั้นห้องเป็นกระจกใสเข้ามุมทำให้มุมมองดูกว้างขึ้น ไม่อับทึบ กรอบเป็นอลูมิเนียมสีดำแบบบานเลื่อน 3 บาน กั้นมาให้เป็นสัดส่วน ข้อดีคือมีช่องเปิดกว้างกว่าแบบ 2 บาน และช่วยกันกลิ่นอาหารจากครัวเข้าไปในส่วนห้องนอนและห้องนั่งเล่น
รางประตูฝังพื้นส่วนหนึ่ง และมีส่วนรางขึ้นมาบนพื้นส่วนหนึ่ง พื้นห้องครัวเป็นกระเบื้องเซรามิกขนาด 60 x 60 cm.
ชุดครัวด้านบนมีชั้นลอยพร้อมหน้าบานปิดลายไม้แบบเดียวกับเคาน์เตอร์ครัวชั้นล่าง ของจริงได้ตามที่เห็นทั้งบนและล่าง พร้อมวางตู้เย็นมาให้ดูระยะใช้งาน เปิดให้ดูช่องเก็บของด้านในมีที่เก็บของมาให้เยอะดีค่ะ เหมาะสำหรับใช้อุ่นอาหาร ล้างจาน หรืออาหารที่ประกอบง่ายๆไม่ซับซ้อน หน้าบานตู้ปิดผิวลายไม้ เปิดปิดแบบเซาะร่อง และเว้นช่องไว้ให้วางตู้เย็นเรียบร้อย
เปิดหน้าบานเคาน์เตอร์ครัวให้ดู จะเห็นว่ามีช่องกลมขอบสแตนเลสสำหรับวางช้อนส้อมมาให้ 3 ช่อง ส่วนด้านล่างที่วางช้อนส้อมจะเป็นที่พักจานค่ะ ขวามือของภาพที่ช่องเก็บของใต้อ่างล้างจานจะมีช่องใส่ถุงขยะติดกับหน้าบานมาให้
Top ครัวเป็นหินสังเคราะห์สีดำ มีติดกระเบื้องเซรามิกเป็น Backsplash ท่ีผนังหลังเคาน์เตอร์ครัว ทำให้เวลาทำครัวสามารถเช็ดล้างทำความสะอาดได้ง่าย ที่ผนังมีเต้าเสียบปลั๊กไฟมาให้เรียบร้อย
อ่างล้างจานสแตนเลสแบบ 1 หลุม ไม่มีที่พักจาน ของ MEX เทียบฝ่ามือให้เห็นขนาดอ่างนะคะ ก๊อกน้ำเป็นโครเมียมทรงโค้ง หมุนไปมาซ้ายขวาได้
ติดตั้งเตาไฟฟ้าแบบ 2 หัวและเครื่องดูดควันของ MEX มาให้เรียบร้อย
ผนังฝั่งตรงข้ามชุดครัวมีพื้นที่พอวางโต๊ะรับประทานอาหารแบบ 2 ที่นั่งได้แบบกำลังเหมาะ มีระยะเลื่อนเก้าอี้เข้าออกสบายๆ
จากครัวจะมีประตูเปิดออกไประเบียงได้ ธรณีประตูยกพื้นขึ้นมาประมาณ 5 เซนติเมตร พร้อมวางรางประตูด้านบนอีกที เพื่อกันฝุ่นและความชื้นจากระเบียง มือจับประตูเป็นแบบเซาะร่องมาตรฐาน และเป็นบานกระจกเขียวตัดแสงกรอบอลูมิเนียมสีดำแบบ 3 ตอน ข้อดีคือมีช่องเปิดกว้างกว่าแบบ 2 บาน ใช้เปิดระบายอากาศเวลาทำอาหารได้
ตัวพื้นระเบียงปูกระเบื้องเซรามิกขนาด 30 x 30 ซม. ผิวด้านสีเทา ราวกันตกเป็นเหล็กกล่องทาสีเทา
ส่วนแอร์คอมเพรสเซอร์แขวนมาให้ทั้ง 2 เครื่อง ทำให้สามารถใช้พื้นที่ใต้แอร์คอมเพรสเซอร์ได้อยู่ มีระแนงขึ้นมาบังส่วนแอร์คอมเพรสเซอร์

ติดไฟผนังที่ระเบียงมาให้เรียบร้อย
ถัดจากครัวเป็นประตูทางเข้าห้องนอน ห้องนอนอยู่ระหว่างครัวและห้องน้ำ โดยห้องนอนมีประตูบานเปิดมาให้เป็นสัดส่วน
ภายในห้องนอนวางเตียงขนาด 5 ฟุตพร้อมตู้เสื้อผ้า Built in มาให้
ส่วนปลายเตียง มีระยะเหลือประมาณ 60 ซม. พอเดินไปเดินมาได้สบายๆ ถ้าชอบดูทีวีในห้องนอนแนะนำใช้แบบแขวนผนังเหมือนในห้องตัวอย่างนะคะ โดยผนังฝั่งปลายเตียงเตรียมเต้าเสียบปลั๊กไฟและช่องเสียบสายสัญญาณทีวีมาให้เรียบร้อย
มองไปที่ผนังฝั่งปลายเตียง ถัดจากทีวีมา จะมี Built in ตู้เสื้อผ้าแบบบานเลื่อนมาให้ เปิดตู้เสื้อผ้าให้ดูพื้นที่เก็บของด้านใน
มองไปที่ผนังฝั่งทางเข้าห้องนอน ติดเครื่องปรับอากาศมาให้ของจริงได้ตามนี้
ข้างเตียงฝั่งติดประตูกว้างประมาณ 70 cm. กว้างพอเดินไปมาได้ และติดเต้าเสียบปลั๊กไฟที่ผนังมาเรียบร้อย สามารถวางโต๊ะข้างเตียงได้ ใครเสื้อผ้าเยอะก็สามารถใช้มุมนี้วางราวแขวนเสื้อผ้าหรือทำตู้เสื้อผ้าเพิ่มได้ค่ะ แต่แนะนำใช้หน้าบานเปิดแบบบานเลื่อนเพื่อประหยัดพื้นที่ในการเปิดค่ะ
มองไปข้างเตียงฝั่งติดหน้าต่าง ข้างเตียงจะเป็นหน้าต่างบานใหญ่แบบ Full Height มีส่วนที่เปิดปิดได้แบบหน้าต่างบานเปิดด้านบนขวา ส่วนด้านข้างและด้านล่างเป็นกระจกบานฟิกซ์ช่วยเพิ่มช่องแสงธรรมชาติ กรอบบานเป็นอลูมิเนียมสีดำ ลูกฟักกระจกเขียวตัดแสง
หน้าต่างบานเปิดด้านบนขวามีมือจับแบบก้านโยกสีดำเข้าชุดกันกับกรอบหน้าต่าง
ข้างเตียงฝั่งติดหน้าต่างกว้างประมาณ 40 cm. กว้างพอเดินไปมาได้ และติดเต้าเสียบปลั๊กไฟที่ผนังมาเรียบร้อย สามารถวางโต๊ะข้างเตียงได้
ห้องตัวอย่างห้องที่สองเป็นห้องแบบ 2 Bedrooms พื้นที่ใช้สอย 49 ตร.ม. ห้องจัดแบ่งเป็น 2 ห้องนอน 1 ห้องน้ำ 1 ห้องรับแขก 1 ห้องครัวปิดติดระเบียง ..เข้าห้องมาจะเจอส่วน Foyer หรือโถงที่วางชั้นวางรองเท้า ถัดมาเป็นห้องรับประทานอาหารและห้องนั่งเล่น, มีประตูห้องน้ำอยู่ฝั่งซ้ายมือ ใกล้กับประตูบานเลื่อนไปส่วนครัวปิด โดยครัวปิดช่วยกันกลิ่นและควันเข้าไปยังส่วนต่างๆในห้อง และจากครัวจะมีประตูบานเลื่อนเปิดออกไประเบียงใช้ช่วยระบายอากาศเวลาทำอาหารได้ ฝั่งขวามือเป็นส่วนห้องนอน 2 ห้อง แบ่งเป็นห้องนอนใหญ่ 1 ห้องและห้องนอนเล็ก 1 ห้อง มีประตูบานเปิดกั้นเป็นสัดส่วน
โครงการขายแบบ Fully Fitted คือตามมาตรฐานจะได้ชุดครัว ชุดสุขภัณฑ์ และเครื่องปรับอากาศ แต่มีความพิเศษคือสามารถซื้อ Furniture Package แบบ Fully Furnished พร้อม Built in อย่างในห้องตัวอย่างได้ด้วย รายละเอียดสอบถามทางสำนักงานขายอีกทีนะคะ ตัวห้องจะเป็นอย่างไรไปดูกันเลยค่ะ
จากส่วนห้องนั่งเล่นมองไปที่ประตูทางเข้าห้อง เข้าห้องมาจะเจอส่วน Foyer หรือโถงที่วางชั้นวางรองเท้า ถัดมาเป็นห้องรับประทานอาหาร ผนังห้องของจริงเป็นผนังฉาบปูนเรียบทาสีขาว พื้นห้องเป็นไม้ลามิเนต 8 มม. เพดานห้องสูง 2.65 เมตร ไฟดาวน์ไลท์ทั้งห้อง ผนังของจริงจะเป็นผนังฉาบปูนเรียบทาสีขาว ซ้ายมือในภาพเป็นประตูห้องนอน 2 ห้อง ขวามือเป็นห้องน้ำและประตูบานเลื่อนไปส่วนห้องครัว เดี๋ยวเราพาไล่ดูกันไปทีละส่วนนะคะ
เริ่มจากทางเข้าห้องกันก่อน เข้ามาจะเป็นส่วน Foyer โดยมี Built in ชั้นวางของสูงจรดเพดานใช้วางรองเท้าและเก็บของได้เยอะดี
ถัดไปจะเป็นส่วนห้องรับประทานอาหาร เชื่อมต่อกับส่วนห้องนั่งเล่น
ส่วนห้องรับประทานอาหารตั้งอยู่หน้าห้องครัวปิด ทำให้เวลายกและขนอาหารไปมาสะดวก ห้องตัวอย่างแขวนโคมไฟที่เพดาน พร้อมติดวอลเปเปอร์และตกแต่งผนังมาให้ดูเป็นไอเดีย จะเห็นว่าสามารถตกแต่งห้องได้สนุกเลยค่ะ เพราะเพดานห้องสูง 2.65 เมตร ซึ่งถือว่าให้มาสูง ส่วนผนังของจริงจะเป็นผนังฉาบปูนเรียบทาสีขาว
ส่วนห้องรับประทานอาหารจัดโต๊ะรับประทานอาหารมาให้แบบ 4 ที่นั่ง เป็นขนาดที่กำลังพอดีกับพื้นที่ใช้งาน จะเห็นว่ามีระยะพอให้ถอยเก้าอี้เข้าออกได้ และเดินรอบๆได้
ถัดมาเป็นส่วนห้องนั่งเล่น ผนังด้านข้างติดหน้าต่างบานใหญ่แบบ Full Height หรือหน้าต่างบานใหญ่ที่มีความสูงจากพื้นจรดเพดานมาให้ โดยมีระยะดูทีวีจากโซฟาประมาณ 2.5 m. สามารถวางทีวีจอใหญ่ 60-70 นิ้วได้สบายๆ
ภาพหน้าต่างส่วนห้องนั่งเล่นจากภายนอกอาคารค่ะ จะเห็นว่าเป็นหน้าต่างกรอบอลูมิเนียมสีเทาบานใหญ่ ที่ประกอบด้วยหน้าต่างบานฟิกซ์ 3 บาน ส่วนมุมขวาบนเป็นหน้าต่างบานเปิด ใช้เปิดระบายอากาศรับลมได้
ส่วนห้องนั่งเล่นวางโซฟาและโต๊ะกาแฟมาให้ โซฟาให้มาเป็นโซฟาหุ้มผ้าสีเทาอ่อนแบบ 2 ที่นั่ง มีที่วางแขนและมีพนักพิง พร้อมโต๊ะกาแฟและโต๊ะข้างที่ขยับไปมาได้ตามลักษณะการใช้งาน
เปิดลิ้นชักแและช่องเก็บของใต้ชั้นวางทีวีและชั้นลอยให้ดู จะเห็นว่าเก็บของได้เยอะ ช่วยเพิ่มพื้นที่ใช้สอยได้ดี ที่ผนังเตรียมเต้าเสียบปลั๊กพร้อมช่องเสียบสายสัญญาณทีวีมาให้เรียบร้อย
เข้าไปดูในห้องน้ำกันต่อค่ะ ประตูห้องน้ำจะตั้งฉากกับประตูห้องครัว พื้นห้องน้ำลดระดับลงไปจากห้องนั่งเล่นประมาณ 5 cm.เพื่อกันน้ำและความชื่อจากห้องน้ำเข้าสู่พื้นห้องนั่งเล่น พื้นธรณีประตูเป็นกระเบื้องเซรามิ อันนี้ดีนะคะ เพราะโดนน้ำไปนานๆจะไม่บวมขึ้นมาแบบพื้นไม้ลามิเนต ที่ส่งผลทำให้ประตูเปิดปิดยากนั่นเอง
ภาพรวมห้องน้ำค่ะ ระยะใช้งานสบายๆ เดี๋ยวพาไล่ดูกันไปทีละอย่างนะคะ พื้นและผนังเป็นกระเบื้องเซรามิกขนาด 60 x 60 cm. สุขภัณฑ์ใช้ของ Cotto ส่วนอาบน้ำติดตั้งมาให้พร้อมฉากกระจกกั้นส่วนเปียก
ที่ผนังปูกระเบื้องจรดเพดาน เพดานติดไฟดาวน์ไลท์มาให้ พร้อมพัดลมดูดอากาศช่วยระบายอากาศ
อ่าง ตู้กระจก และตู้อ่างล้างหน้าพร้อมหน้าบานปิดผิวลายไม้ของ Starmark
เทียบฝ่ามือกับอ่างให้เห็นระยะใช้งานค่ะ ผนังหลังอ่างจะมีเต้าเสียบปลั๊กไฟ ใช้เสียบไดร์เป่าผมได้
ชอบที่กระจกเงาหน้าอ่างล้างมือเปิดออกมาแล้วมีช่องเก็บของมาให้เยอะแบบนี้ค่ะ มีชั้นมาให้หลายชั้น ใช้เก็บของกระจุกกระจิกได้สบายๆ มีราวสแตนเลสสำหรับแขวนผ้าเช็ดมือมาให้ในตัว หน้าบานปิดผิวลายไม้เข้าชุดกันกับตู้อ่างล้างมือ ผลิตโดย Starmark
โถสุขภัณฑ์เป็นของ Cotto
ฉากกั้นห้องอาบน้ำเป็นกระจกเทมเปอร์แบบบานเปิด มือจับเป็นรูปตัว U ใช้แขวนผ้าเช็ดตัวได้
ห้องน้ำแยกท่อระบายน้ำ 2 จุด คือที่ข้างโถสุขภัณฑ์ที่เป็นส่วนแห้งและส่วนเปียกในฉากกั้นห้องอาบน้ำ ภายในห้องอาบน้ำมีม้านั่งสำหรับนั่งขัดผิวและอาบน้ำมาให้ ของจริงได้ตามนี้ จะใช้วางของก็วางได้เยอะดีค่ะ
ชอบที่ผนังข้างชุดฝักบัวติดตั้งชั้นวางของมาให้ชั้นใหญ่ดีค่ะ เทียบกับฝ่ามือให้ดูขนาดฝักบัวจะเห็นว่าขนาดใหญ่เหมาะมือดี
และมี Rain Shower ติดตั้งมาให้ที่เพดานห้องอาบน้ำด้วย ของจริงได้ตามนี้
ถัดมาเป็นส่วนครัวปิด มีฉากกั้นห้องกระจกใส กรอบอลูมิเนียมสีดำแบบบานเลื่อน 2 บาน กั้นมาให้เป็นสัดส่วน ข้อดีของครัวปิดคือช่วยกันกลิ่นอาหารจากครัวเข้าไปในส่วนห้องนั่งเล่น
ชุดครัวด้านบนมีชั้นลอยพร้อมหน้าบานปิดลายไม้แบบเดียวกับเคาน์เตอร์ครัวชั้นล่าง ของจริงได้ตามที่เห็นทั้งบนและล่าง พร้อมวางตู้เย็นมาให้ดูระยะใช้งาน เปิดให้ดูช่องเก็บของด้านในมีที่เก็บของมาให้เยอะดีค่ะ หน้าบานตู้ปิดผิวลายไม้ เปิดปิดแบบเซาะร่อง และเว้นช่องไว้ให้วางตู้เย็นเรียบร้อย
เปิดหน้าบานเคาน์เตอร์ครัวให้ดู จะเห็นว่าที่ช่องเก็บของใต้อ่างล้างจานจะมีช่องใส่ถุงขยะติดกับหน้าบานมาให้ อ่างล้างจานสแตนเลสแบบ 1 หลุม ไม่มีที่พักจาน ของ MEX ก๊อกน้ำเป็นโครเมียมทรงโค้ง หมุนไปมาซ้ายขวาได้
Top ครัวเป็นหินสังเคราะห์สีดำ มีติดกระเบื้องเซรามิกเป็น Backsplash ท่ีผนังหลังเคาน์เตอร์ครัว ทำให้เวลาทำครัวสามารถเช็ดล้างทำความสะอาดได้ง่าย จะเห็นว่ามีพื้นที่ให้วางของและประกอบอาหารได้สบายๆ และมีขนาดกว้างกว่าห้องครัวในห้องตัวอย่างห้องแรก
ติดตั้งเตาไฟฟ้าแบบ 2 หัวและเครื่องดูดควันของ MEX มาให้เรียบร้อย
จากครัวจะมีประตูเปิดออกไประเบียงได้ ธรณีประตูยกพื้นขึ้นมาประมาณ 5 เซนติเมตร พร้อมวางรางประตูด้านบนอีกที เพื่อกันฝุ่นและความชื้นจากระเบียง มือจับประตูเป็นแบบเซาะร่องมาตรฐาน และเป็นบานกระจกเขียวตัดแสงกรอบอลูมิเนียมสีดำแบบ 3 ตอน ข้อดีคือมีช่องเปิดกว้างกว่าแบบ 2 บาน ใช้เปิดระบายอากาศเวลาทำอาหารได้
ตัวพื้นระเบียงปูกระเบื้องเซรามิกขนาด 30 x 30 ซม. ผิวด้านสีเทา ราวกันตกเป็นเหล็กกล่องทาสีเทา

ภาพระเบียงจากภายนอกอาคาร ส่วนแอร์คอมเพรสเซอร์แขวนมาให้ทั้ง 2 เครื่อง และวางพื้นมาอีกเครื่อง มีระแนงขึ้นมาบังส่วนแอร์คอมเพรสเซอร์และติดไฟผนังที่ระเบียงมาให้เรียบร้อย
เราไปดูส่วนห้องนอนทั้งสองห้องกันต่อค่ะ ทั้งสองห้องนอนจะมีประตูบานปิดมาให้เป็นสัดส่วน
เริ่มจากห้องนอนใหญ่ ประตูจะอยู่ใกล้ส่วนห้องนั่งเล่น
ภายในห้องนอนวางเตียงขนาด 5 ฟุตพร้อมตู้เสื้อผ้าและชั้นวางทีวี Built in มาให้ดูระยะใช้งาน
ภาพหน้าต่างห้องนอนใหญ่จากภายนอกอาคารค่ะ จะอยู่ที่มุมอาคารพอดีแบบนี้ หน้าต่างในห้องนอนใหญ่เป็นกระจกเข้ามุม จะเห็นว่าเป็นหน้าต่างกรอบอลูมิเนียมสีเทาบานใหญ่ ที่ประกอบด้วยหน้าต่างบานฟิกซ์ 5 บาน ส่วนมุมขวาบนและซ้ายบนเป็นหน้าต่างบานเปิด ใช้เปิดระบายอากาศรับลมได้
ส่วนปลายเตียงมีระยะเหลือประมาณ 30 ซม. พอเดินไปเดินมาได้ และมีมุมยื่นออกไปให้สามารถวางชั้นวางทีวีได้ โดยผนังฝั่งปลายเตียงเตรียมเต้าเสียบปลั๊กไฟและช่องเสียบสายสัญญาณทีวีมาให้เรียบร้อย
มองไปทางฝั่งหัวเตียง ประตูทางเข้าห้องนอนจะอยู่ที่ผนังฝั่งนี้ ห้องตัวอย่างตกแต่งผนังฝั่งหัวเตียงมาให้ดูเป็นไอเดีย

ข้างเตียงฝั่งติดประตูหลังจากวางตู้เสื้อผ้าไปแล้วกว้างประมาณ 70 cm. กว้างพอเดินไปมาได้สบายๆ ฐานเตียงมีโต๊ะข้างเตียงในตัว
มองไปที่ผนังฝั่งข้างเตียง จะมี Built in ตู้เสื้อผ้ามาให้ และที่ผนังฝั่งนั้นติดเครื่องปรับอากาศมาให้เรียบร้อย
ตู้เสื้อผ้า Built in มาให้จรดเพดาน ตู้เสื้อผ้าแบบบานเปิด เปิดตู้เสื้อผ้าให้ดูพื้นที่เก็บของด้านใน
ไปดูห้องนอนเล็กกันต่อค่ะ ห้องนอนเล็กจะอยู่ใกล้ประตูทางเข้าห้อง
ภายในห้องนอนเล็กวางเตียงเดี่ยวขนาด 3.5 ฟุต พร้อมตู้เสื้อผ้า Built in และโต๊ะข้างเตียงมาให้ดูระยะใช้งาน ส่วนปลายเตียงมีระยะเหลือประมาณ 30 ซม. พอเดินไปเดินมาได้ โดยผนังฝั่งปลายเตียงเตรียมเต้าเสียบปลั๊กไฟและช่องเสียบสายสัญญาณทีวีมาให้เรียบร้อย
ข้างเตียงฝั่งติดหน้าต่างกว้างประมาณ 60 cm. กว้างพอเดินไปมา และมีพื้นที่วางโต๊ะข้างเตียงได้
มองไปทางฝั่งหัวเตียง ห้องตัวอย่างตกแต่งผนังฝั่งหัวเตียงมาให้ดูเป็นไอเดีย

ข้างเตียงฝั่งติดประตูหลังจากวางตู้เสื้อผ้าไปแล้วเหลือพื้นที่ใช้งานกว้างประมาณ 50 cm. กว้างพอเดินไปมาได้สบายๆ ผนังฝั่งข้างเตียงเตรียมเต้าเสียบปลั๊กไฟและช่องเสียบสายสัญญาณทีวีมาให้เรียบร้อย
มองไปที่ผนังฝั่งข้างเตียง จะมี Built in ตู้เสื้อผ้ามาให้ และติดเครื่องปรับอากาศมาให้เหนือประตูทางเข้าห้อง
ตู้เสื้อผ้า Built in มาให้จรดเพดาน ตู้เสื้อผ้าแบบบานเปิด เปิดตู้เสื้อผ้าให้ดูพื้นที่เก็บของด้านใน
ราคา (ก.พ. 61)
*โครงการขายแบบ Fully Fitted คือตามมาตรฐานจะได้ชุดครัว ชุดสุขภัณฑ์ และเครื่องปรับอากาศ แต่มีความพิเศษคือสามารถซื้อ Furniture Package แบบ Fully Furnished พร้อม Built in อย่างในห้องตัวอย่างได้ด้วย รายละเอียดสอบถามทางสำนักงานขายอีกทีนะคะ
– ค่ากองทุน 500 บาท ต่อตารางเมตร ชำระครั้งเดียว ณ วันโอน
– ค่าส่วนกลาง
สอบถามราคาเพิ่มเติมกรุณาติดต่อสำนักงานขายเพื่อข้อมูลที่อัพเดตที่สุดค่ะ*
สรุป
ทำเลที่ตั้งโครงการ – โครงการ THE LINE วงศ์สว่าง ตั้งอยู่ใจกลางของย่านวงศ์สว่าง เพียง 200 เมตร ถึงรถไฟฟ้า MRT วงศ์สว่าง จุดเชื่อมต่อที่จะพาคุณเข้าถึงใจกลางเมืองได้อย่างรวดเร็ว ตอบโจทย์ชีวิตหลากสไตล์ เพียง 15 นาที ถึง อารีย์, จตุจักร, เซ็นทรัลลาดพร้าว อีกทั้งยังอยู่ใกล้จุดขึ้น-ลงทางด่วน ที่พร้อมนำคุณสู่ทุกจุดหมายได้อย่างง่ายดาย
ความอุดมสมบูรณ์ – ในระยะเดินรอบโครงการจะเป็นชุมชน มีบ้านและคอนโดมิเนียมหลายแห่งใกล้ๆกัน จัดเป็นโซนมีความอุดมสมบูรณ์ มีร้านสะดวกซื้อ, มึแผงอาหารข้างทาง, ร้านอาหาร และสิ่งอำนวยความสะดวกหลายร้าน
ในระยะเดินใกล้ๆโครงการก็จะมี Big C วงศ์สว่าง ที่ห่างจากโครงการเพียง 400 เมตร เท่านั้น เดินไปซื้อของได้สบายๆ นอกจากนี้ในระยะเดินถึงจะมีสวนสุขภาพประชานุกูล, โรงพยาบาลเกษมราษฎร์ที่ด้านในและรอบๆมีร้านอาหารและร้านสะดวกซื้อค่อนข้างมาก ซึ่งช่วยอำนวยความสะดวกได้ดี
ส่วนในระยะขับรถสั้นๆประมาณ 5 – 10 นาทีนั้นมีห้างและตลาดอยู่หลากหลายค่ะ ตรงไปทางแยกประชานุกูลขึ้นไปทางประชาชื่น ก็เป็นโซนที่มีร้านอาหารอร่อยๆอยู่เยอะ มีตลาดใหญ่ๆของกินเพียบอย่างตลาดบองมาเช่, ตลาดประชานิเวศน์อยู่ ขึ้นไปถึงแยกพงษ์เพชรก็มีห้างใหญ่อย่างเดอะมอลล์ งามวงศ์วาน, พันทิพย์ พลาซ่า และห้างแกรนด์ พลาซ่า ซึ่งเป็นสิ่งอำนวยความสะดวกในการเดินทางเป็นแหล่งวินรถตู้ขนาดใหญ่อยู่ด้วย
จากโครงการขับมาทางแยกรัชโยธิน ก็จะมี Major รัชโยธิน ที่นอกจากจะเป็นโรงหนังที่มีร้านอาหารเยอะมากแล้ว ยังมีตลาดนัดขายเสื้อผ้า ของกินต่างๆหน้าเมเจอร์ตอนกลางคืนอีกด้วย จากแยกรัชโยธินขับลงไปทางฝั่งลาดพร้าวก็จะมี Central ลาดพร้าว, ยูเนียนมอลล์ และสวนจตุจักร ให้เดินเล่นกัน ซึ่งก็เป็นอีกพื้นที่ที่มีความอุดมสมบูรณ์สูงใกล้เคียงโครงการ
การเดินทางด้วยรถยนต์ส่วนตัว – สำหรับคนขับรถ โครงการตั้งอยู่ติดถนนกรุงเทพ-นนทบุรี ใกล้แยกวงศ์สว่าง เพียง 170 เมตร ซึ่งเป็นแยกที่เชื่อมกับถนนรัชดาภิเษก และ ถนนวงศ์สว่าง จากแยกวงศ์สว่างขับลงใต้ไปก็จะเป็นโซนบางซื่อที่มีรถไฟฟ้า MRT สถานีบางซื่อ และอาคารสำนักงานใหญ่ SCG ตั้งอยู่
จะเข้าเมืองก็วิ่งจากโครงการไปถนนรัชดาภิเษก ผ่านแยกประชานุกูล ขึ้นไปทางประชาชื่นไปออกแยกพงเพชร หรือตรงไปบนถนนรัชดาภิเษกไปเรื่อยๆไปออกแยกรัชโยธิน ไปถนนวิภาวดีรังสิต, พหลโยธิน, ลาดพร้าว, พระราม 9 ได้สบายในระยะขับรถสั้นๆ จัดเป็นโครงการที่สะดวกสบายในการเดินทางเหมาะกับคนขับรถ เพราะอยู่บนถนนที่เชื่อมต่อออกไปได้หลายเส้นทาง ทั้งเข้าเมืองและออกเมือง และยังใกล้จุดขึ้นลงทางด่วนศรีรัชและทางยกระดับอุตราภิมุขอีกด้วย โดยจากโครงการอยู่ห่างจากจุดขึ้นทางด่วนศรีรัชในระยะเพียง 1.8 กม. หรือระยะขับรถประมาณ 3 นาทีเท่านั้น สำหรับคนใช้รถใช้ทางด่วนเป็นประจำก็ถือว่าสะดวกมากทีเดียว
ถ้าต้องการออกเมือง จากถนนกรุงเทพ-นนท์หน้าโครงการ วิ่งไปติวานนท์ ตรงไปออกแยกแคราย ไปรัตนาธิเบศร์ได้ หรือขึ้นเหนือไปแจ้งวัฒนะ ขึ้นเหนือไปเรื่อยๆก็จะเป็นโซนรังสิต ปทุมธานี ถ้าขับไปทางทิศตะวันตกหรือมุ่งหน้าไปฝั่งแยกวงศ์สว่าง ข้ามสะพานพระราม 7 ไปก็จะเป็นถนนจรัญสนิทวงศ์
การเดินทางด้วยรถสาธารณะ – คนไม่ใช้รถไปไหนมาไหนง่ายมากค่ะ มีจุดเด่นคือ จากโครงการเพียง 200 เมตร ถึงรถไฟฟ้า MRT วงศ์สว่าง ซึ่งตอนนี้รถไฟฟ้า สายสีม่วง ช่วงบางใหญ่-บางซื่อ เปิดให้บริการเต็มรูปแบบแล้ว จากโครงการสามารถไปไหนมาไหนได้ง่าย เลี่ยงรถติดได้ดี อยากไปอารีย์, จตุจักร, เซ็นทรัลลาดพร้าว ก็นั่งรถไฟฟ้าไปเพียง 15 นาทีเท่านั้น
สำหรับรถไฟฟ้าย่านนี้เดิมจะมี MRT สถานีบางซื่อ ที่ปกติคนย่านนี้นิยมใช้กันอยู่ สามารถนั่งไปเชื่อมต่อกับรถไฟฟ้า BTS สายสีเขียวได้ที่สถานีสวนจตุจักร ซึ่งสถานีบางซื่อจะมีส่วนต่อขยายไปเชื่อมกับรถไฟฟ้าสายสีม่วงได้ที่สถานีเตาปูนได้ และจะเป็นสถานีเชื่อมต่อกับสายสีแดงอ่อน และ สายสีแดงเข้มอีกด้วย
นอกจากนี้หน้าโครงการมีวินมอเตอร์ไซค์อยู่ เวลารถติดก็ใช้ลัดเลาะไปไหนมาไหนได้ง่าย และมีป้ายรถเมล์อยู่ห่างจากโครงการเพียง 70 เมตร โดยมีรถเมล์สาย 18, 30, 65 วิ่งผ่านหน้าโครงการนะคะ และมีแท็กซี่ผ่านไปมาอยู่เรื่อยๆและโครงการอยู่ติดถนนใหญ่อยู่แล้วเรียกรถได้สะดวก
การออกแบบโครงการและวัสดุ – โครงการขายห้องแบบ Fully Fitted โดยให้ ชุดครัว , ชุดสุขภัณฑ์ และ เครื่องปรับอากาศ ชุดครัว มี Hob&Hood , Sink และ Back Splash กันผนังเปื้อนมาให้ ภายในห้องน้ำสุขภัณฑ์ Cotto ในห้องน้ำมีกระจกเทมเปอร์กั้นห้องอาบน้ำมาให้พร้อมฝักบัวแบบ Rain Shower พื้นห้องเป็นลามิเนตหนา 8 มม. พื้นครัวและห้องน้ำเป็นกระเบื้องเซรามิก 60 x 60 m. และเดินท่อระบบน้ำร้อนมาให้เรียบร้อย
การออกแบบทำมาดี มีการออกแบบตัวอาคารภายนอกและภายในตามคอนเซ็ป Cloud หรือก้อนเมฆ ซึ่งดูทันสมัยและออกแบบ Landscape มาได้เข้ากันได้ดี และเข้ากับบริบทของพื้นที่ เนื่องจากทั้งสองฝั่งของทิศตะวันออกและตะวันตกถูกขนาบด้วยคอนโดมิเนียมสูง ทางโครงการจึงหันระเบียงไปทางทิศเหนือใต้ ซึ่งนอกจากได้ลมดี แดดไม่ร้อนแล้วยังยังได้วิวที่โล่ง ไม่ถูกตึกสูงบล๊อกทำให้มองออกไปได้ไกล
วัสดุให้มาโอเคสำหรับราคาระดับนี้ค่ะ มีความใส่ใจรายละเอียดและใช้ของดีในส่วนที่ให้ แต่จริงๆแล้วคอนโดราคาแบบนี้ ความคุ้มค่าหรือสเป็คของวัสดุไม่ได้เป็นปัจจัยหลักสำหรับผู้ซื้อและผู้ขายมากนัก เพราะจริงๆราคานั้นถูกกำหนดด้วยราคาทำเลที่ตั้งและปริมาณพื้นที่รวมของตึกที่สามารถขายได้เป็นหลักมากกว่า หรือพูดง่ายๆว่าแพงเพราะทำเลที่เป็นที่ดินผืนหายากแล้วนั่นเอง
สิ่งอำนวยความสะดวก – โครงการนี้ให้พื้นที่ส่วนกลางมาเยอะทีเดียวค่ะ ใช้แนวคิด “ก้อนเมฆ” มาเป็นแรงบันดาลใจในการออกแบบสถาปัตยกรรม ซึ่งให้ความรู้สึกเคลื่อนไหวบนความสงบนิ่ง จนถึง Facility ต่างๆที่ตอบไลฟ์สไตล์การใช้ชีวิตรอบด้านของการอยู่อาศัยอย่างมีคุณภาพ พื้นที่ส่วนกลางหลักๆแบ่งเป็นสามส่วนคือ พื้นที่สีเขียวเชื่อมต่ออาคาร, อาคารจอดรถด้านหน้า สูง 9 ชั้น ซึ่งเป็นอาคารพื้นที่ส่วนกลางหลัก ประกอบด้วย Co-working space, สนามฟุตซอล,Outdoor BBQ area, Fitness center, Olympic size swimming pool และ อาคารยูนิตที่พักอาศัยสูง 36 ชั้น ประกอบด้วย Lobby, Mailroom, Panoramic Sky lounge, Sky Cinema, Kid’s room, Kid’s outdoor playground พร้อมรปภ. 24 ชั่วโมง, ลิฟต์ล็อกชั้น และการผ่านเข้าออกระบบ Access Card
คะแนน
| ทำเลที่ตั้งโครงการ | 8.0 | ติดถนนใหญ่กรุงเทพ-นนทบุรี ใกล้รถไฟฟ้า MRT วงศ์สว่าง และใกล้ทางด่วนศรีรัช |
| การเดินทาง ใช้รถ | 7.5 | เดินทางสะดวกไปไหนมาไหนง่ายทั้งเข้าเมืองและออกเมือง แต่ต้องระวังรถติดจากแยกใกล้เคียง |
| การเดินทาง ไม่ใช้รถ | 8.0 | สะดวกมาก มีป้ายรถเมล์, วินมอเตอร์ไซค์, ตุ๊กๆ, รถไฟฟ้า อยู่ใกล้สถานีรถไฟฟ้า MRT วงศ์สว่างในระยะเดินประมาณ 200 เมตร |
| ห้องและวัสดุ | 8 | แปลนห้องแบ่งได้เป็นสัดส่วนลงตัว วัสดุอยู่ในระดับดี – ของที่ให้มาเข้ากับคอนเซปต์ของโครงการ |
| สิ่งอำนวยความสะดวก | 9.0 | มีให้ครบครันและออกแบบได้น่าใช้งาน |
| ความคุ้มค่ากับราคา | 8.0 | ราคาเฉลี่ย 95,000 บาท/ ตร.ม. ได้คอนโดสร้างเสร็จพร้อมอยู่ บนพื้นที่ส่วนกลางขนาดใหญ่ ทำเลใกล้รถไฟฟ้า ห้องพักอาศัยและดีไซน์มีสไตล์ |
| คะแนนรวมเฉลี่ย | 8.2 | ดีมาก |
ลงทะเบียนเพื่อรับข้อมูลเพิ่มเติมและส่วนลดสูงสุด 20,000 บาทได้ที่นี่
สอบถามรายละเอียดเพิ่มเติมได้ที่
Tel : 1685
Website : https://www.sansiri.com
หากเพื่อนๆเห็นว่ารีวิวนี้มีประโยชน์ ช่วยกด Like เพื่อเป็นกำลังใจให้ทีมงาน ขอบคุณค่ะ
และมีความคิดเห็นหรือข้อมูลเพิ่มเติมเกี่ยวกับตัวโครงการ สามารถ Comment ได้ที่ด้านล่างของรีวิวค่ะ
แสดงความคิดเห็น เกี่ยวกับ " EP.135 รีวิว คอนโด THE LINE วงศ์สว่าง ใกล้รถไฟฟ้า MRT วงศ์สว่าง และทางด่วน ราคาเริ่มต้น 1.99 ล้านบาท* "