logo

รีวิว คอนโด THE PEACE ลาดพร้าว 15 ใกล้ MRT ลาดพร้าว

โพสโดย : am / วันที่ : 24 May 2017

รีวิว คอนโด เดอะ พีซ ลาดพร้าว 15 The Peace Ladprao 15

The Peace ลาดพร้าว 15 จาก Twelve Estate ตั้งอยู่ในซอยลาดพร้าว 15 ถนนลาดพร้าว แขวงจอมพล เขตจตุจักร กทม. ใกล้ MRT ลาดพร้าว , เซ็นทรัล ลาดพร้าว, ยูเนียนมอลล์, เทสโก้ โลตัส, บิ๊กซี, เมเจอร์ รัชโยธิน, สวนจตุจักร และ SCB Park

เดอะ พีซ ลาดพร้าว 15 เป็นคอนโด Low Rise 7 ชั้น 1 อาคาร พื้นที่โครงการขนาด 0-1-82 ไร่ ห้องพักจำนวน 27 ยูนิต มีห้องพักให้เลือกแบบ 1 ห้องนอน และ 2 ห้องนอน ขนาดเริ่มต้น 37.00-116.00 ตร.ม. สร้างเสร็จพร้อมอยู่ปี 2556

สิ่งอำนวยความสะดวกในโครงการครบครัน อาทิ โถงต้อนรับ, สระว่ายน้ำ, ฟิตเนส, ประตูคีย์การ์ด, ที่จอดรถ, กล้องวงจรปิด, ระบบรักษาความปลอดภัยตลอด 24 ชม. ราคาเริ่มต้น 2.99 ล้านบาท*



ชื่อโครงการ เดอะ พีช ลาดพร้าว 15 / The Peace @ Ladprao 15
เจ้าของโครงการ Twelve Estate (ทเวลฟ์ เอสเตท)
ลักษณะห้องและขนาดห้อง 1 Bed / 37.00 – 67.00 ตร.ม.
2 Bed / 80.00 – 116.00 ตร.ม.
เนื้อที่ทั้งหมด 1 งาน 82 ตร.ว.
จำนวนตึก 1 อาคาร
จำนวนชั้น 7 ชั้น
จำนวนห้อง 27 ยูนิต (เหลือ 10 Unit)
ที่จอดรถทั้งหมด 90% รวมจอดซ้อนคัน (ยูนิตละ 1 คัน)
โซน ลาดพร้าว
ขนส่งสาธารณะ รถไฟฟ้าใต้ดิน MRT สถานีลาดพร้าว ประมาณ 1.2 กม.
รถโดยสารที่ผ่าน 8, 27, 38, 44, 92, 96, 122, ปอ.2, ปอ.126, ปอ.145
ที่ตั้ง ซอยลาดพร้าว 15 แยก 7 ถนนลาดพร้าว เขตจตุจักรกรุงเทพมหานคร
กำหนดการ สร้างเสร็จพร้อมอยู่
ปีที่สร้างเสร็จ 2556
ราคา เริ่มต้น 2.99 ล้านบาท
ราคาเฉลี่ยต่อ ตร.ม 78,600-81,600 บาท
สถานที่สำคัญใกล้เคียง – MRT สถานีลาดพร้าว 1.2 กม.
– MRT สถานีพหลโยธิน 2.7 กม.
– Union Mall 1.9 กม.
– Big C ลาดพร้าว 1.3 กม.
– ศาลอาญา 2.3 กม.
– ม.ราชภัฏจันทรเกษม 3.7 กม.
– มหาวิทยาลัยเซนต์จอห์น 2.4 กม.
– สวนลุมไนท์บาซาร์ รัชดา 1.7 กม.
– วัดลาดพร้าว 3.3 กม.
– Central ลาดพร้าว 3.4 กม.
– สวนรถไฟ 3.3 กม.
– ตึกช้าง 3.9 กม.
สิ่งอำนวยความสะดวก – Office
– Lobby
– สระว่ายน้ำ (ขนาด 6.5 x 5.5 ม. ลึก 1.20 ม.)
– ฟิตเนส
– รปภ. 24 ชม.
– CCTV
จุดเด่นของโครงการ ยูนิตน้อย อยู่ในซอยไม่ติดถนนใหญ่ มีสภาพแวดล้อมเงียบสงบ เนื่องจากรอบข้างเป็นบ้านพักอาศัย

Asher Naii Sutthisan-Saphankhwai VDO

คอนโดใกล้เคียง

ที่ตั้งโครงการ

Untitled-7
แผนที่จากทางโครงการ

ที่อยู่โครงการ The Peace
บ้านเลขที่ 88 ซ.ลาดพร้าว 15 แขวงจอมพล เขตจตุจักร กทม. 10900

พิกัด Google Maps : 13.814799, 100.572314

 


การเดินทาง


คลิกที่รูป เพื่อดูแผนที่ขนาดใหญ่

โครงการ The Peace คอนโด : ลาดพร้าว 15 ตั้งอยู่ใน ซอยลาดพร้าว 15 แยก 7 ลึกจากปาก ซอยลาดพร้าว 15 ประมาณ 850 เมตร ถึงแม้โครงการจะอยู่ลึกจากถนนใหญ่ หากไม่มีรถยนต์ส่วนตัวจะลำบากเล็กน้อย แต่ถนนลาดพร้าวตอนต้นนั้นถือว่ามีความอุดมสมบูรณ์สูงมากๆ ทั้งรถไฟฟ้า รถประจำทาง โรงเรียน ออฟฟิศ ห้างสรรพสินค้าและตลาดมากมาย


map1
อีกทั้งยังเป็นโซนที่สามารถเดินทางไปสู่ ถนนรัชดาภิเษก ซึ่งตอนนี้มีตลาดมากมาย ทั้งตลาดนัดรถไฟ และสวนลุมไนท์บาซาร์เปิดใหม่ และสามารถออกสู่ 5 แยกลาดพร้าว ถนนพหลโยธิน และ แยกรัชโยธิน ซึ่งเป็นถนนที่มีความอุดมสมบูรณ์สูง เป็นย่านการค้าที่หนาแน่นมากๆ ซึ่งทำให้โซนนี้ โดยเฉพาะตั้งแต่ 5 แยกลาดพร้าวมุ่งหน้าสู่ แยกลำสาลี ขึ้นชื่อเรื่องการจราจรติดขัด หากต้องการเดินทางในเวลาเร่งรีบควรใช้บริการพี่วินมอเตอร์ไซค์ และต่อด้วยรถไฟฟ้าสถานีลาดพร้าวจะสะดวกที่สุดค่ะ

map2s_2-01-01-01
จากภาพแสดงระยะการเดินทางจากตัว โครงการ The Peace สู่ ถนนลาดพร้าว ค่ะ จะเห็นว่าจากหน้าโครงการ จนถึงปาก ซอยลาดพร้าว 15 จะมีระยะทาง 850 เมตร และจากปาก ซอยลาดพร้าว 15 จนถึงทางเข้า สถานี MRT ลาดพร้าว(ทางออก 3) มีระยะทาง 100 เมตรค่ะ ทำให้โครงการนี้เหมาะกับคนทำงานที่ชอบความเงียบสงบ

เนื่องจากสภาพแวดล้อมรอบๆโครงการนั้นเป็นบ้านพักอาศัย แต่พอออกจาก โครงการ The Peace สู่ถนนเส้นหลัก นั่นก็คือถนนลาดพร้าว ถนนรัชดาภิเษก และถนนพหลโยธินนั้น บรรยากาศจะกลายเป็นย่านการค้าที่มีความอุดมสมบูรณ์มากค่ะ มีร้านค้า ร้านอาหาร ห้องแถวมากมายให้เลือกกินเลือกใช้

แผนที่ทางลัด

map4-01
ภาพแสดงทางลัดออกสู่ถนนพหลโยธิน โดยใช้รถยนต์

เนื่องจากโครงการตั้งอยู่ภายในเกาะที่มี ถนนลาดพร้าว ถนนรัชดาภิเษก และ ถนนพหลโยธิน ตัดผ่าน ทำให้ซอยนี้มี ทางลัด ที่สามารถออกสู่ถนนพหลโยธิน และถนนรัชดาภิเษก ได้ค่ะ

ภาพด้านบนคือทางลัดออกสู่ ถนนพหลโยธิน สำหรับคนที่มีรถยนต์ส่วนตัวค่ะ สามารถทะลุออกสู่ ซ.พหลโยธิน 24 และ หลัง Union Mall ได้ โดยใช้ ซ.ลาดพร้าว 1

ทางลัดออกสู่ ซ.พหลโยธิน 24
จากหน้าโครงการไปทางซ้าย > ซ.ลาดพร้าว 15 > ซ.ลาดพร้าว 15 แยก 9 > ซ.ลาดพร้าว 1 แยก 14 > ซ. ลาดพร้าว 1 > ซ.ลาดพร้าว 1 แยก 7 > ซ.พหลโยธิน 24 แยก 2 > ซ.พหลโยธิน 24

ทางลัดออกสู่ ด้านหลัง Union Mall
จากหน้าโครงการไปทางซ้าย > ซ.ลาดพร้าว 15 > ซ.ลาดพร้าว 15 แยก 9 > ซ.ลาดพร้าว 1 แยก 14 > ซ. ลาดพร้าว 1 > Union Mall

map5
ภาพแสดงทางลัดออกสู่ถนนรัชดาภิเษก โดยใช้รถมอเตอร์ไซค์ หรือเดิน

แต่หากต้องการออกสู่ ถนนรัชดาภิเษก แนะนำให้ใช้มอเตอร์ไซค์นะคะ หรือโทรเรียกพี่วินก็ได้ค่ะ หากต้องการเดินก็ใช้เวลาประมาณ 12 นาทีค่ะ ระยะทาง 950 เมตร

การเดินทางโดยรถไฟฟ้า และรถประจำทาง

เนื่องจาก โครงการ The Peace อยู่ใกล้สถานีรถไฟฟ้าใต้ดิน MRT ลาดพร้าว ซึ่งเป็นสถานีส่วนต่อขยาย รถไฟฟ้าสายสีเหลือง (ลาดพร้าว-บางกะปิ-สำโรง)ในอนาคต มีแนวเส้นทางอยู่ด้านตะวันออกของกรุงเทพมหานครและสิ้นสุดเส้นทางในจังหวัดสมุทรปราการ เริ่มต้นจากปากทางถนนลาดพร้าว แล้ววิ่งไปจนถึงด้านหน้าของแฮปปี้แลนด์ จากนั้นก็จะวิ่งไปต่อบนถนนศรีนครินทร์จนถึงปลายทางย่านสำโรง อีกทั้งสถานีใกล้ๆกันนั่นก็คือ สถานี MRT พหลโยธิน ยังเป็นสถานีส่วนต่อขยาย รถไฟฟ้าบีทีเอส ส่วนต่อขยายหมอชิต-สะพานใหม่ ที่ สถานีห้าแยกลาดพร้าว ซึ่งเป็นสถานียกระดับบนถนนพหลโยธิน หน้าห้างเซ็นทรัลลาดพร้าว ระยะห่างจากสถานีพหลโยธินประมาณ 300 เมตร เชื่อมต่อกันด้วยสะพานทางเดินยกระดับ ทำให้ย่านนี้ในอนาคตอีกประมาณ 5 ปี จะสะดวกสบาย และรถจะติดน้อยลงแน่นอนค่ะ

การเดินทางสู่โครงการ โดยรถประจำทาง นั้นสะดวกมากค่ะ ถนนลาดพร้าวเป็นถนนที่มีทั้งรถประจำทาง รถแท๊กซี่ และวินมอเตอร์ไซค์บริการตลอดทั้งวัน

แต่ภายใน ซอยลาดพร้าว 15 แยก 7 (หน้าโครงการ The Peace) นั้นไม่มีรถสาธารณะเลยค่ะ เงียบสงบมากๆไม่ค่อยมีรถวิ่งด้วย ปั่นจักรยานได้สบาย แต่สามารถโทรเรียกวินมอเตอร์ไซค์ให้มารับ-ส่ง หรือซื้ออาหารได้ค่ะ

หากต้องการใช้บริการแท๊กซี่ แนะนำให้โทรเรียกหรือมีเบอร์แท๊กซี่ประจำ หรือสำหรับผู้มีสมาร์ทโฟนใช้ Application Grab Taxi, All Thai Taxi หรือ UBER จะสะดวกและปลอดภัยมากๆค่ะ

รถเมล์สายที่ผ่าน
8,27,38,44,92,96,122,ปอ.2,ปอ.126,ปอ.145

การเดินทางโดยใช้รถยนต์

map1_route-01
ภาพแสดงการเดินทางสู่โครงการโดยใช้รถยนต์

วันนี้ทีมรีวิวจะพาผู้อ่านเดินทางสู่โครงการจาก ถนนรัชดาภิเษก สู่โครงการกันนะคะ
โดยการเดินทาง ตามลูกศรเหลืองขอบแดง เริ่มจาก ถนนรัชดาภิเษก > แยกอโศก > ถนนอโศกมนตรี > แยกอโศก-เพชรบุรี > แยกพระราม9 > ถนนรัชดาภิเษก > แยกเทียมร่วมมิตร > อุโมงค์ใต้แยกตลาดห้วยขวาง > อุโมงค์ใต้แยกสุทธิสาร > เลี้ยวซ้ายที่แยกรัชดา – ลาดพร้าว > ถนนลาดพร้าว > ชิดขวา เลี้ยวขวาเข้า ซ. ลาดพร้าว 15 > ตรงเข้าไปประมาณ 850 เมตร จะเจอโครงการ The Peace อยู่ขวามือค่ะ

map2srou_1-01-01-01-01

โครงการอยู่ ซ. ลาดพร้าว15 แยก 7 แต่สามารถขับตรงไปจนสุดได้เลย
r1
ตอนนี้เราอยู่บนสะพานข้ามแยกพระราม 4 มุ่งหน้าสู่ ถนนรัชดาภิเษก ค่ะ สังเกตซ้ายมือจะเป็นอาคาร Settrade (ตลาดหลักทรัพย์) ถัดไปจะเป็นศูนย์ประชุมแห่งชาติสิริกิติ์

r2
วิ่ง ถนนรัชดาภิเษก ตรงมาเรื่อยๆจะเจอแยกอโศก ค่ะ ให้ตรงไป ออกสู่ถนนอโศกมนตรี

r3 ถนนอโศก รพจักษุ
ตอนนี้เราอยู่บน ถนนอโศกมนตรี แล้วค่ะ สังเกตด้านขวามือจะเจออาคาร GMM Grammy,มศว. และ โรงพยาบาลจักษุ รัตนิน ตามลำดับ

r4 แยกอโศก-เพชรบุรี
เจอ แยกอโศก- เพชรบุรี ให้ตรงไปค่ะ

r5 arlมักกะสัน
เลย แยกอโศก-เพชรบุรี ไป จะเจอ Sky Walk เชื่อมสถานี Airport Link มักกะสัน และสถานี MRT เพชรบุรี ตามภาพค่ะ

r6 แยกพระราม9
วิ่งไปอีกหน่อยจะเจอ แยกพระราม 9 ค่ะ ให้ตรงไปตามภาพ เพื่อออก ถนนรัชดาภิเษก

r7 central9 fortune
ตอนนี้เราอยู่บน ถนนรัชดาภิเษก แล้วค่ะ สังเกตซ้ายมือจะเป็นห้าง Fortune Town ขวามือคือ Central พระราม 9

r8
วิ่ง ถนนรัชดาภิเษก ตรงไปเรื่อยๆ จะเจอ แยกเทียมร่วมมิตร ค่ะ ให้ยึด ป้ายลาดพร้าวเอาไว้

r9
สังเกต ป้ายลาดพร้าว ให้เตรียมชิดขวา เพื่อวิ่ง ลงอุโมงค์ลอดใต้ แยกตลาดห้วยขวาง ค่ะ

r10
วิ่ง ถนนรัชดาภิเษก มาเรื่อยๆ สังเกต ป้ายลาดพร้าว เตรียมวิ่ง ลงอุโมงค์ อีกครั้งลอดใต้ แยกสุทธิสาร

r11 เตรียมชิดซ้ายr12
เมื่อขึ้นจากอุโมงค์แล้ว วิ่งตรงไป สังเกตป้ายลาดพร้าวให้ เตรียมชิดซ้ายค่ะ

r13 เลี้ยวซ้าย
ชิดซ้าย เตรียม เลี้ยวซ้ายที่ แยกรัชดา – ลาดพร้าว

r14 mrt ลาดพร้าว เตรียมชิดขวา
เมื่อเลี้ยวซ้ายมาแล้ว ตอนนี้เราอยู่บน ถนนลาดพร้าว ค่ะ สังเกตว่าสถานี MRT ลาดพร้าว(ทางออก1) จะอยู่ซ้ายมือ

r15 ชิดขวา
เตรียม ชิดขวา เพื่อเลี้ยวขวาเข้า ซ.ลาดพร้าว 15 ค่ะ

r16 เลี้ยวขวาเข้า ซ15
เลี้ยวขวาเข้า ซ.ลาดพร้าว 15
แยกนี้จะไม่มีสัญญาณไฟแดงนะคะ เป็นแยกวัดใจ

r18-2
วิ่งตรงไปตามลูกศรสีแดงค่ะ ด้านซ้ายมือจะเป็น ซ.ลาดพร้าว 15 แยก 3 ขวามือคือ แยก 2

r19 แยก5-ตรงไป
ตรงไปอีกจะเจอแยกค่ะ ซ้ายมือเป็น ซ.ลาดพร้าว 15 แยก 5 ให้ ตรงไป ค่ะ

r20-1 copy
สังเกตป้ายขวามือ จะเป็นป้ายทางลัดออกถนนพหลโยธิน ขับตรงไปตามถนนสีแดง คือ ถนนลาดพร้าว15 แยก 7 โครงการอยู่ด้านขวามือ

r21 The Peace
ถึงแล้วค่ะ โครงการ The Peace ลาดพร้าว 15

การเดินทางจากถนนฝั่งตรงข้าม

map6
คลิกที่รูป เพื่อดูแผนที่ขนาดใหญ่

หากมาจาก ถนนพหลโยธิน มุ่งหน้าสู่ ดอนเมือง ให้ออกทางคู่ขนาน แล้วสังเกตป้าย สะพานลอยลาดพร้าว- รัชโยธิน
วิ่งขึ้นสะพานลอยมาตามทางเรื่อยๆ โดยยึดป้ายบอกทาง ลาดพร้าว เป็นหลัก จะออกสู่ถนนลาดพร้าว เลี้ยวซ้ายเข้า ซ.ลาดพร้าว15 และเข้าสู่โครงการได้ตามภาพ

จุดขับรถขึ้นทางด่วน

จากโครงการสามารถวิ่งขึ้น ทางยกระดับอุตราภิมุข(ดอนเมืองโทลเวย์) เพื่อเข้าหรือออกตัวเมืองได้ค่ะ

tollway เข้า-01-01

tollway เข้า_pic
ภาพแสดงการขึ้นทางด่วน ดอนเมืองโทลเวย์ ขาเข้า
คลิกที่รูป เพื่อดูแผนที่ขนาดใหญ่

โดยจากภาพด้านบน ขาเข้า(มุ่งหน้าดินแดง) ทางขึ้นจะอยู่บริเวณโรงเรียนหอวัง / เซ็นทรัลลาดพร้าว

tollway ออก-01
tollway ออก_pic
ภาพแสดงการขึ้นทางด่วน ดอนเมืองโทลเวย์ ขาออก
คลิกที่รูป เพื่อดูแผนที่ขนาดใหญ่

และ ขาออก(มุ่งหน้ารังสิต) ทางขึ้นอยู่บริเวณหน้าอาคาร Energy Complex (สำนักงานใหญ่ บริษัท ปตท. จำกัด)

Donmuang tollway
ภาพแผนที่ทางยกระดับอุตราภิมุข (ดอนเมือง โทลล์เวย์)
คลิกที่รูป เพื่อดูแผนที่ขนาดใหญ่

ขอบคุณภาพจาก http://www.tollway.co.th/en/services/routes


สถานที่สำคัญใกล้เคียง

map1
mapSurround-01
คลิกที่รูป เพื่อดูแผนที่ขนาดใหญ่

– MRT สถานีลาดพร้าว 1.2 กม.
– MRT สถานีพหลโยธิน 2.7 กม.
– Union Mall 1.9 กม.
– Big C ลาดพร้าว 1.3 กม.
– ศาลอาญา 2.3 กม. (หากเดินเท้า 1 กม. ออกซอยข้างศาลอาญา)
– ม.ราชภัฏจันทรเกษม 3.7 กม.
– มหาวิทยาลัยเซนต์จอห์น
2.4 กม.
– สวนลุมไนท์บาซาร์ รัชดา 1.7 กม.
– วัดลาดพร้าว
3.3 กม.
– Central ลาดพร้าว
3.4 กม.
– สวนรถไฟ
3.3 กม.
– ตึกช้าง
3.9 กม.

**ระยะทางวัดจากการเดินทางจากรถยนต์ สู่จุดหมาย โดยถนนที่ใกล้ที่สุด**

 


บริเวณรอบโครงการ

map3_surround-01

IMG_0015
รอบโครงการ The Peace ลาดพร้าว 15 ใน รัศมี 300 เมตร นั้นส่วนใหญ่เป็นบ้านพักอาศัยและอพาร์ทเมนท์แทบทั้งสิ้น
ทิศเหนือ ใต้ และตะวันออก(ด้านหลัง)ของโครงการเป็นบ้านพักอาศัย 2-3 ชั้น ทิศตะวันตกติดกับ ถนนลาดพร้าว 15 แยก 7

IMG_0016
ภาพถ่ายพื้นที่ข้างเคียง ฝั่งซ้ายมือ เป็นบ้านพักอาศัย

IMG_0118
ภาพถ่ายพื้นที่ข้างเคียง ฝั่งขวามือ เป็นบ้านพักอาศัยเช่นกัน

IMG_0126
ภาพที่ดินว่างเปล่ามีต้นไม้ปกคลุม ฝั่งตรงข้ามของโครงการ มีรั้วกั้นสูง 2 ม.

IMG_0107 copy
หากเรายืนหันหน้าเข้าโครงการ มองไปทางซ้ายมือ นี่คือภาพมุมมองทางซ้ายมือของโครงการ
มองเข้าไปใน ซ.ลาดพร้าว15 แยก 7

IMG_0109 copy
มองไปด้านขวามือกันบ้าง หันหน้าออกสู่ทางที่ขับรถเข้าโครงการมาสักครู่นี้

IMG_0123 copy
ถนนหน้าโครงการนั้นเงียบมากๆเลยค่ะ ไม่มีรถประจำทางเลย หากไม่มีรถยนต์ส่วนตัวจะลำบากสักหน่อย
สามารถโทรเรียกพี่วิน หรือแท๊กซี่ให้เข้ามารับได้ค่ะ หรือถ้าใครมีจักรยานก็สะดวกดีค่ะ สามารถปั่นไปซื้อของกินในซอย หรือส่งผ้าซักได้
ภายในซอย มีร้านค้า ร้านอาหารบ้างประปราย แต่จะอุดมสมบูรณ์มากเมื่อออกสู่ถนนใหญ่ ทำให้โครงการมีความเงียบสงบและร่มรื่น

 


ตัวโครงการ

IMG_0009
นี่คือภาพด้านหน้า ซุ้มประตูของโครงการค่ะ เป็นคอนโด Low Rise มีทั้งหมด 7 ชั้น เรามาชมแปลนอาคารกันค่ะ

floorplan1_14

1st Floor Plan : ชั้นล่างเป็นพื้นที่จอดรถ ป้อมยาม โถงลิฟท์และบันได
ที่จอดรถคิดเป็น 90% ของทั้งหมด รวมจอดซ้อนคัน (ยูนิตละ 1 คัน มีทั้งหมด 27 ยูนิต)
จอดในช่องได้ทั้งหมด 19 คัน และจอดซ้อนได้ประมาณ 5 คัน

floorplan2_14

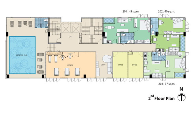
2nd Floor Plan : ชั้น 2 จะเป็น Office และพื้นที่ส่วนกลางค่ะ เพดานสูง 2.9 ม. มีสระว่ายน้ำ ฟิตเนส และห้อง One Bed จำนวน 3 ยูนิต

floorplan3_14

3rd-6th Floor Plan : ชั้น3-ชั้น6 จะเป็นพื้นที่พักอาศัยทั้งหมดค่ะ เพดานสูง 2.7 ม. แปลนชั้น 3-6 จะเหมือนกัน
มี Type Two Bed จำนวน 1 ยูนิต อยู่ด้านหน้ามองเห็นทางเข้าโครงการ (ห้อง301)
และ Type One Bed จำนวน 4 ยูนิตอยู่บริเวณ Corridor สองฝั่ง และเดินไปทางซ้ายมือจนสุด Corridor ค่ะ (ห้อง 302,303,304,305)

floorplan_14

7th Floor Plan : ผังพื้นชั้น7 ยูนิตที่ 701 จะเป็นที่อยู่ของเจ้าของโครงการค่ะ
มี Type One Bed ทั้งหมด 3 ยูนิต นั่นก็คือ 702,703,704 ไม่มี Type Two Bed

หน้าโครงการ และที่จอดรถ (ชั้น1)

ตอนนี้เราจะพาผู้อ่านเข้าไปชมภายในโครงการกันแล้วนะคะ เริ่มจากป้อมยามกันเลยค่ะ

IMG_0136
หน้าโครงการจะมีประตูเหล็กเลื่อนค่ะ มีรปภ.24. ชั่วโมง คอยเปิดประตูให้

IMG_0129
บ้านเลขที่ 88 ค่ะ

IMG_0139
ป้อมยามของโครงการ

IMG_0146
ตอนนี้เรายืนที่ประตูเหล็กเลื่อน หันหน้าเข้าที่จอดรถค่ะ

IMG_0023
มองไปทางขวามือจะเจอศาลพระภูมิ

IMG_0025
มองไปทางซ้ายมือจะเห็นที่จอดรถค่ะ

IMG_0131
มีกล้อง CCTV ติดอยู่ทั้งด้านหน้า และหลังของโครงการ

IMG_0028
มุมมองตรงไปด้านในที่จอดรถค่ะ โถงลิฟท์จะอยู่ซ้ายมือ

IMG_0027

IMG_0152
ด้านขวามือเป็นรั้วทาสีน้ำตาล มีกระถางต้นไม้ห้อยสวยงามน่ารักดีค่ะ

IMG_0032
มุมมองที่จอดรถ เดินเลยโถงลิฟท์มาหน่อย

IMG_0030
เดินไปทางซ้ายมือ ถ่ายให้เห็นพื้นที่จอดรถด้านข้าง บริเวณนี้จะไม่มีหลังคาคลุม

IMG_0034
มองย้อนกลับเข้ามาในที่จอดรถค่ะ ข้างโถงลิฟท์จะมี Fire Hose Cabinet อยู่

IMG_0036
มุมมองทางด้านหลังของโครงการ ปลูกต้นไผ่สวยงาม โครงการข้างเคียงเป็นบ้านพักอาศัย

IMG_0040
ด้านซ้ายของต้นไผ่จะเป็นห้องเก็บของ งานระบบ ห้องแม่บ้านค่ะ

IMG_0041
มองย้อนกลับไปหน้าโครงการ

โถงลิฟท์ (ชั้น1)

IMG_0029
บริเวณโถงลิฟท์เป็นประตูกระจกตัดแสงสีเขียวค่ะ

IMG_0188

IMG_0190
การเข้า-ออก ใช้ระบบคีย์การ์ด Door Access Control

IMG_0198
ลิฟท์โดยสารมีทั้งหมด 2 ตัว

IMG_0202
มีกล่องไปรษณีย์ทุกยูนิต

 

พื้นที่ส่วนกลาง(ชั้น2)

floorplan2_14

พื้นที่ส่วนกลางจะอยู่ชั้น 2 ของโครงการ และมีห้องพัก TYPE ONE BED 3 ยูนิต ลองดูแปลนควบคู่กันไปนะคะ

IMG_0206
พอขึ้นลิฟท์มา ถึงชั้น2 ประตูลิฟท์เปิด จะเจอภาพมุมนี้ก่อนเลยค่ะ คือห้องฟิตเนส ความสูงเพดานของชั้นนี้ทั้งหมดคือ 2.9 เมตรนะคะ

IMG_0214
หันหลังเข้าห้องฟิตเนส มองไปทางด้านซ้ายมือ จะเจอบันไดขึ้นสระว่ายน้ำ

ฟิตเนส
IMG_0063
เข้าไปในห้องฟิตเนสกันค่ะ พื้นจะเป็นไม้ปาร์เกต์ ผนังทาสีขาว ติดแอร์ หน้าต่างมีผ้าม่านสีขาวโปร่งแสง
ห้องฟิตเนสจะมีขนาด 11 x 5.5 ม. ค่ะ

IMG_0064
มองไปทางขวามือ

IMG_0233
มีหน้าต่างสามารถมองไปยังสระว่ายน้ำได้ด้วยค่ะ

IMG_0226
มองย้อนกลับไป ผนังอีกฝั่งนึงติดกระจกขนาดใหญ่

IMG_0236
เครื่องเล่นฟิตเนส มีลู่วิ่งไฟฟ้า 2 เครื่อง

IMG_0239
เครื่องปั่นจักรยานแม่เหล็ก 1 เครื่อง
เครื่องเดินวงรี 1 เครื่อง

IMG_0252
อุปกรณ์เล่นโยคะ Fly

IMG_0256
ชุดสร้างกล้ามเนื้อ 1 ชุด

IMG_0261
เครื่องออกกำลังกายต้นขา 1 เครื่อง

IMG_0264
ม้าราบฝึกดัมเบลล์ 1 ตัว

IMG_0268
ตู้กดน้ำร้อน และน้ำเย็น

Office ของโครงการ The Peace
DSCF1494
ถัดจากฟิตเนสมาทางด้านซ้ายมือ (หน้าออกจากโถงลิฟท์) จะเจอโถงต้อนรับ และออฟฟิศของโครงการ

DSCF1495
มองจากออฟฟิศ ย้อนกลับไปทางบันไดขึ้นสระว่ายน้ำ ด้านขวามือจะเป็นบันได

IMG_0045
เดินกลับเข้ามาที่หน้าโถงลิฟท์ค่ะ หันหน้าเข้าบันไดขึ้นสระว่ายน้ำ ขวามือจะเป็นบันไดหนีไฟ
ส่วนตู้ระหว่างบันไดหนีไฟ กับลิฟท์คือช่องเดินท่องานระบบค่ะ

 

สระว่ายน้ำ
IMG_0046
เราจะพาขึ้นไปชมสระว่ายน้ำกันแล้วค่ะ ก่อนขึ้นบันไดต้องถอดรองเท้าก่อนนะคะ

IMG_0047
เมื่อขึ้นบันไดมา นี่คือภาพแรกที่เห็นค่ะ
สระว่ายน้ำของที่นี่จะเป็นระบบน้ำเกลือนะคะ ขนาด 6.5×5.5 ม. ลึก 1.20 ม. ค่ะ

IMG_0048
จากหน้าบันได มองไปด้านซ้ายมือ มีโต๊ะสำหรับนั่งพักผ่อน

IMG_0282

โต๊ะและเก้าอี้เป็นวัสดุหวายเทียมค่ะ

IMG_0049
มุมมองจากโต๊ะที่นั่ง มองไปยังขวามือของบันได

IMG_0315
มีห้องน้ำเปลี่ยนเสื้อผ้า 2 ห้อง แยกหญิง-ชาย และอ่างล้างมือ 2 อ่างค่ะ

IMG_0057
ห้องน้ำถึงจะมีแค่สองห้องแต่ภายในกว้างนะคะ ยืนเปลี่ยนเสื้อผ้าได้สบาย

IMG_0059
ภาพอ่างล้างมือเซรามิก มีสบู่ และทิชชู่บริการ

IMG_0050
มุมมองจากหน้าห้องน้ำ ไปยังสระว่ายน้ำ

IMG_0060
บันไดขึ้นสระว่ายน้ำค่ะ ขอบสระจะเป็นหิน ภายในสระมีบันไดภายใน

IMG_0052
มีเตียงนอนพักผ่อนที่ข้างสระด้วยค่ะ

IMG_0054
มุมมองจากเตียงพักผ่อนสู่บันไดทางที่เราขึ้นมา

IMG_0308
พื้นที่อาบน้ำล้างตัว

IMG_0289
บริเวณขอบสระฝั่งที่ติดระแนง กว้าง 50 ซม. สามารถเดินได้รอบสระ และมองผ่านระแนงเห็นวิวสีเขียวหน้าโครงการได้

สรุปสิ่งอำนวยความสะดวกภายในโครงการ

– Office+Lobby
– Door Access : ระบบคีย์การ์ดที่หน้าโถงลิฟท์ชั้น 1
– สระว่ายน้ำ : ขนาด 6.5 x 5.5 ม. ลึก 1.20 ม. ระบบน้ำเกลือ พื้นที่โซนสระว่ายน้ำทั้งหมด 112 ตร.ม.
– Fitness : ขนาด 60 ตร.ม.
– CCTV : ถนนทางเข้า, ภายในลิฟท์, หน้าโถงลิฟท์ทุกชั้น
– รปภ. 24 ชม.

 


ห้องตัวอย่าง

floorplan3_14

ห้องตัวอย่างที่ปล่อยขายจะอยู่ที่ชั้น 3-6 นะคะ ชั้น 7 เต็มหมดแล้ว
โดยแบบห้องทั้งหมดจะมีสอง TYPE ค่ะ ประกอบด้วย


302-602
ภาพห้อง TYPE ONE BED ยูนิตที่ 302-602

303-603
ภาพห้อง TYPE ONE BED ยูนิตที่ 303-603



304-604

ภาพห้อง TYPE ONE BED ยูนิตที่ 304-604

305-605

ภาพห้อง TYPE ONE BED ยูนิตที่ 305-605

1. TYPE ONE BED : 37-67 ตร.ม. มีทั้งหมด 22 ยูนิต แต่ยูนิตที่ปล่อยขายมีทั้งสิ้น 9 ยูนิต คือ

ชั้น 3 : ยูนิตที่ 303,304,305 (ราคาเฉลี่ย 78,600 ต่อ ตร.ม.)
ชั้น 4 : ยูนิตที่ 402,403,405 (ราคาเฉลี่ย 79,600 ต่อ ตร.ม.)
ชั้น 6 : ยูนิตที่ 602,603,605 (ราคาเฉลี่ย 81,600 ต่อ ตร.ม.)

301-306
ห้อง TYPE TWO BED ยูนิตที่ 301-601
คลิกที่รูปเพื่อดูภาพขนาดใหญ่

2. TYPE TWO BED : 80-116 ตร.ม. มีทั้งหมด 5 ยูนิต แต่ยูนิตที่ปล่อยขายมีทั้งสิ้น 2 ยูนิต คือ

ชั้น 3 : ยูนิตที่ 301 (ราคาเฉลี่ย 78,600 ต่อ ตร.ม.)
ชั้น 6 : ยูนิตที่ 601 (ราคาเฉลี่ย 81,600 ต่อ ตร.ม.)

เพดานห้องทั้งสอง TYPE สูง 2.7 ม.
ตกแต่งแบบ Fully Furnished

สรุปสิ่งที่โครงการให้

ห้องครัว
– ชุด Counter ครัว Top หินแกรนิต พร้อมตู้เก็บของเหนือศีรษะ
– อ่างล้างจานแสตนเลส
– เตาสองหัว และเครื่องดูดควันยี่ห้อ MEX
– โต๊ะทานอาหาร
– ตู้เก็บของ
*ตู้เย็น ไมโครเวฟ ไม่รวมอยู่ในราคาขาย

ห้องนั่งเล่น
– ชุดโซฟากำมะหยี่สีเทา
– โต๊ะน้ำชา
– ตู้วางทีวี

ห้องนอน Single Bedroom
– เตียงนอน 3.5 x 5 ฟุต
– โต๊ะข้างเตียง
– โต๊ะเครื่องแป้งและตู้เสื้อผ้า Build-in
– โต๊ะวางทีวีปลายเตียง

ห้องนอน Master Bedroom
– เตียงนอน King Size
– โต๊ะข้างเตียง
– โต๊ะเครื่องแป้งและตู้เสื้อผ้า Build-in (TYPE TWO BED จะเป็น Walk-in Closet)
– โต๊ะวางทีวีปลายเตียง

ห้องน้ำ
– โถสุขภัณฑ์ Mogen
– อ่างล้างมือ Mogen
– เคาน์เตอร์อ่างล้างมือ Top หินแกรนิต ไม่มีตู้ด้านล่าง
– ที่แขวนทิชชู่ Mogen
– ที่แขวนผ้าเช็ดตัว Mogen
– ฉากกั้นห้องอาบน้ำกระจก
– เครื่องทำน้ำอุ่น Stiebel Eltron

อื่นๆ
– พื้นลามิเนตหนา 12 มม.
– บานประตูไม้จริงทำสีขาว
– บานประตูหน้าต่างระเบียง วัสดุ UPVC สีขาว กระจกตัดแสงสีเขียว
– ไฟ Down Light
– สวิตช์ไฟ Bticino
– แอร์ไดกิ้น


TYPE : ONE BED

302-602

นี่คือภาพ TYPE ONE BED ยูนิตที่เราจะพาไปดูกันนะคะ
การวางผังแยกส่วน Public, Private ชัดเจนค่ะ เปิดประตูเข้าห้องมาจะเจอห้องครัวและ Dining Area ก่อนเข้าสู่ Living Area และห้องนอน
มีห้องน้ำ 1 ห้อง ใช้ร่วมกันระหว่าง Living Area และห้องนอนค่ะ

ห้องครัว พื้นที่ 8.8 ตร.ม.
ระเบียง พื้นที่ 2 ตร.ม.
ห้องนั่งเล่น Living Area พื้นที่ 10.2 ตร.ม.
ห้องน้ำ พื้นที่ 5.2 ตร.ม.
ห้องนอน 14.5 ตร.ม.

ยูนิตนี้มีขนาด 42 ตร.ม. ค่ะ
โดยห้องที่พาไปดูนี้จะอยู่ ชั้น 6 ยูนิตที่ 602 เลขที่ห้อง 88/20


ภาพโถงหน้าห้องค่ะ

IMG_0637
ประตูหน้าห้อง และป้ายบอกยูนิตของห้อง 88/20

IMG_0642
มองเข้าไปในห้องเยื้องไปทางซ้ายมืออันดับแรกเลยจะเจอส่วนทานข้าว และห้องครัวค่ะ เพดานสูง 2.7 เมตร

IMG_0646
ประตูห้องเป็นบานไม้จริงนะคะ

DSCF1580

DSCF1582
มีอุปกรณ์ตาแมวติดทุกบาน

DSCF1579
ก้านมือจับประตูแสตนเลสค่ะ

DSCF1599
มี Door Stop ติดให้ที่พื้น

IMG_0652
เมื่อปิดประตูจะมีตู้เก็บของ Build in วางให้ค่ะ พื้นที่ข้างๆอาจวางตู้เก็บรองเท้าเพิ่มเติมได้

IMG_0654
ภายในตู้เก็บของ

IMG_0656
หน้าไปทางห้องครัวค่ะ พื้นที่ 8.8 ตร.ม. ด้านขวามือจะติดระเบียง มีโต๊ะทานข้าวสองที่นั่งวางให้
พื้นที่ใช้ในโครงการทั้งหมดจะเป็นลามิเนต หนา 12 mm.

IMG_0658
ชุดครัวทั้งหมดที่โครงการให้ค่ะ มีอ่างล้างหน้า ที่ดูดควัน และเตาสองหัวให้ ส่วนตู้เย็นกับไมโครเวฟต้องซื้อมาเองค่ะ

DSCF1597
ไฟ Down Light บนเพดาน

DSCF1524
สวิตช์ไฟทั้งโครงการเป็นของ Bticino

IMG_0666
ชุด Counter ครัว

IMG_0671
ตู้เก็บของด้านบน

IMG_0673
ซิงค์ครัวแสตนเลส Top เป็นหินแกรนิตค่ะ

DSCF1575
เครื่องดูดควันยี่ห้อ MEX

DSCF1576
เตาสองหัวก็ยี่ห้อ MEX เช่นกัน

IMG_0680
ชุดโต๊ะรับประทานอาหาร

IMG_0683
มุมมองไปยังประตูระเบียงค่ะ ขวามือจะเป็นห้องนั่งเล่น เราจะไปดูระเบียงกัน

DSCF1586
บานประตูระเบียง และหน้าต่างทั้งหมดจะใช้วัสดุ UPVC ค่ะ มือจับเป็นลักษณะแบบในรูป มีก้านโยกสำหรับล๊อคประตู

IMG_0693
พื้นระเบียงค่ะ ระเบียงนี้กว้าง 1 ม. พื้นระเบียงเป็นกระเบื้องเซรามิกสีน้ำตาลเข้ม ขนาด 30×30 ซม.

DSCF1587
มีโคมไฟติดผนังภายนอกระเบียง

IMG_0698
มุมมองจากระเบียงห้องค่ะ สังเกตดีๆทางโครงการจะติดตาข่ายกันนกให้ที่ระเบียงทุกห้องค่ะ
เนื่องจากโครงการนี้เจ้าของอยู่เองด้วยที่ชั้น 7
มีพื้นที่ระเบียงแถมให้ด้วยค่ะ 2 ตร.ม. นอกราวเหล็กกั้น

IMG_0706
มีก๊อกน้ำแสตนเลสให้

IMG_0708
ขวามือเป็นหน้าต่างห้องนั่งเล่น วัสดุ UPVC

IMG_0709
เข้าไปดูห้องนั่งเล่นกันบ้างค่ะ ทางเดินเข้าห้องนั่งเล่นจะติดมุมตู้สักนิดนึง แต่สามารถเดินผ่านได้สบายค่ะ กว้าง 80 ซม.
บางยูนิตจะกว้าง 1.2 ม. ค่ะ

IMG_0717
ชุดโซฟาและตู้วางทีวีค่ะ พื้นที่ห้องนั่งเล่น 10.2 ตร.ม.

IMG_0725
หากนั่งดูทีวี จะมีระยะห่างจากสายตา ถึง ทีวีประมาณ 2.7 ม.

IT_L9252
ภาพนี้จากทางโครงการค่ะ เป็นภาพบรรยากาศ ห้องนั่งเล่น TYPE ONE BED จากยูนิตที่ 201 ค่ะ

IT_L9295
ภาพบรรยากาศ ห้องนั่งเล่น TYPE ONE BED จากยูนิตที่ 201

IMG_0742
ย้อนกลับมาดูห้องตัวอย่าง ยูนิตที่ 602 กันค่ะ นี่คือภาพชุดตู้วางทีวี

IMG_0750
เปิดให้ดูภายในตู้ค่ะ สามารถเก็บของได้เยอะเลย

IMG_0726
โซฟาเป็นผ้ากำมะหยี่ค่ะ มีโต๊ะน้ำชาให้

IMG_0730
ข้างโซฟาเป็นหน้าต่างเปิดออกสู่ระเบียง

DSCF1589
หน้าต่าง UPVC สามารถเปิดได้กว้างทีเดียวค่ะ ระบายอากาศได้ดีมาก

DSCF1590
มือจับแบบก้านโยก

IMG_0734
ถัดจากห้องนั่งเล่นมองตรงไปเป็นห้องนอนค่ะ ประตูด้านขวามือเป็นห้องน้ำ
มีหน้าต่างอีกฝั่งหนึ่งของห้องนั่งเล่นด้วยแสงเข้าดีมาก ตอนกลางวันแทบไม่ต้องเปิดไฟเลย

IMG_0764
ประตูห้องนอน และห้องน้ำค่ะ
ยูนิต ONE BED มีห้องน้ำแค่ห้องเดียวนะคะ ใช้รวมกัน

IMG_0769
เข้าไปดูห้องนอนกันค่ะ ภาพมุมมองจากประตูห้องนอน
ห้องนอนขนาด 14.5 ตร.ม. ถือว่ากว้างขวางทีเดียวค่ะ

IMG_0771
เตียงนอนขนาด King Size

IMG_0785
มีพื้นที่ข้างเตียง 70 ซม. กว้างมากเลยค่ะ เดินจัดเตียงได้สบาย

IMG_0775
หน้าต่าง UPVC 4 บาน ค่ะ รับแสงธรรมชาติได้ดี

IMG_0780
หน้าต่างเป็นบานกระทุ้งออกด้านข้าง เปิดได้กว้าง ระบายอากาศดี

DSCF1591
มือจับแบบก้านโยก

IMG_0789
ดูภายในห้องกันต่อค่ะ มีตู้เสื้อผ้า Build in ให้เสร็จ ตู้ใหญ่มากกกก เก็บเสื้อผ้าได้เยอะเลย มีโต๊ะเครื่องแป้งให้ด้วย ติดหัวเตียงเลย

IMG_0800
ลิ้นชักภายในอีกเพียบ ตู้เสื้อผ้าเป็นบานเลื่อนนะคะ
บานเป็นกระจกเงา 1 บาน และกระจกฝ้า 1 บาน

IMG_0793
ภายในห้องนอนก็มีตู้วางทีวี

DSCF1595
มีแอร์ไดกิ้นติดอยู่เหนือตู้ ให้ทั้งห้องนั่งเล่น และห้องนอน

IMG_0812
ด้านซ้ายมือของตู้วางทีวีเป็นห้องน้ำค่ะ ห้องน้ำนี้จะใช้ร่วมกันกับห้องนั่งเล่นนะคะ มีประตูเชื่อมกัน

IMG_0850
เข้ามาดูในห้องน้ำกันเลย

IMG_0818
ห้องน้ำขนาด 5.2 ตร.ม. ค่ะ วัสดุพื้นกระเบื้องเซรามิกขนาด 30×30 ซม. เหมือนกับพื้นระเบียง

IMG_0820
ประตูสองบาน ซ้ายมือเชื่อมกับห้องนั่งเล่น ขวามือเชื่อมกับห้องนอน

DSCF1554
ลูกบิดประตูสามารถใช้เหรียญไขได้จากภายนอกค่ะ เพื่อความปลอดภัย

IMG_0826
ระยะระหว่างโถสุขภัณฑ์ กับฉากกระจกกั้นอาบน้ำ ผนังห้องน้ำใช้กระเบื้องสีขาวปูสูงถึงเพดาน

DSCF1566
สุขภัณฑ์ใช้ของ Mogen ทั้งหมดค่ะ มีสายชำระ และที่แขวนทิชชู่ติดให้ด้วย

DSCF1545
ที่แขวนทิชชู่ Mogen

DSCF1504
ที่แขวนผ้าเช็ดตัวก็ยี่ห้อ Mogen ค่ะ

IMG_0827
เคาน์เตอร์อ่างล้างมือ กระจกเต็มบาน Top เป็นหินแกรนิตค่ะ
ไม่มีตู้ใต้ Sink ให้นะคะ อยากได้ต้องติดเอง

DSCF1559
อ่างล้างมือของ Mogen

DSCF1560
ก๊อกน้ำของ Mogen ค่ะ

DSCF1553
ฉากกั้นห้องอาบน้ำ แบบมีเฟรม แข็งแรงค่ะ

DSCF1561
มือจับ สามารถแขวนผ้าเช็ดตัวได้

IMG_0864
มีการยกขอบพื้นที่อาบน้ำ 1 นิ้วค่ะ แยกส่วนเปียก ส่วนแห้ง

IMG_0867
เครื่องทำน้ำอุ่นยี่ห้อ STIEBEL ELTRON

IMG_0871
ฝักบัวอาบน้ำค่ะ

 

TYPE : TWO BED

มาดูห้องอีก TYPE กันบ้างนะคะ นั่นก็คือ TYPE TWO BED ค่ะ

301-306

นี่คือภาพแปลนห้อง TYPE TWO BED ที่เราจะพาไปดูกัน

สังเกตการวางผัง เมื่อเปิดประตูเข้ามาจะเจอ โถง และห้องครัวเป็นอันดับแรก เหมือนกันทุก UNIT ค่ะ
และจะเจอห้องนั่งเล่น และ Dining Area อยู่เยื้องๆกัน หากยืนที่โถง ห้อง Single Bedroom จะอยู่ทางด้านขวามือ ห้องนี้จะมีระเบียงส่วนตัว แต่ห้องน้ำใช้ร่วมกับ Living Area ส่วน Master Bedroom จะอยู่ทางด้านขวามือค่ะ มี Walk-in Closet และห้องน้ำส่วนตัว

ห้องครัวและโถง พื้นที่ 13.1 ตร.ม.
ระเบียงห้องครัว พื้นที่ 2.5 ตร.ม.
ห้องนั่งเล่น พื้นที่ 14.4 ตร.ม.
ห้อง Single Bedroom พื้นที่ 11.1 ตร.ม.
ระเบียงห้อง Single Bedroom พื้นที่ 2 ตร.ม.
ห้องน้ำรวม พื้นที่ 4.4 ตร.ม.
ห้อง Master Bedroom พื้นที่ 17.8 ตร.ม.
Walk-in Closet พื้นที่ 7.6 ตร.ม.
ห้องน้ำ Master Bedroom พื้นที่ 4.4 ตร.ม.

ยูนิตนี้มีขนาด 77.37 ตร.ม. ค่ะ
โดยห้องที่พาไปดูนี้จะอยู่ ชั้น 3 ยูนิตที่ 301 เลขที่ห้อง 88/4

IMG_0318
เข้ามากันเลยค่ะ

IMG_0321
วัสดุประตูจะเป็นบานไม้จริงเหมือนกันทุกห้องนะคะ

DSCF1551
มีระบบโช๊คติดให้ที่ประตูด้วย

IMG_0323
มองเข้าไปในห้องอันดับแรกเลยจะเจอครัวค่ะ ถัดมาด้านขวามือเป็นห้องนั่งเล่น และห้อง Single Bedroom
วัสดุพื้นใช้ลามิเนต หนา 12 มม. เหมือนกันทุก Unit ค่ะ เพดานสูง 2.7 เมตร

DSCF1529
ฝ้าเพดานค่ะ ไฟใช้เป็น Down Light

IMG_0353
มุมมองจากหน้าต่างห้องครัว มายังประตูทางเข้า โถงทางเข้าทั้งหมดที่เชื่อมกันมีพื้นที่ 8 ตร.ม. ไม่รวมพื้นที่ครัวนะคะ

IMG_0348
มองไปทางขวามือจะเป็นตู้เก็บของค่ะ ตรงกลางเป็นห้อง Master Bedroom

IMG_0361
ตู้เก็บของจะเหมือนห้อง Type One Bed

AIMG_0035-2
มาดูห้องครัวกันก่อนเลยค่ะ เฉพาะ Pantry ครัวโซนนี้มีพื้นที่ 5 ตร.ม.

AIMG_0058-2
ชุดห้องครัวจะมีให้ตามนี้ทั้งหมด Top เป็นหินแกรนิต มีซิงค์ เตาสองหัว และเครื่องดูดควันให้
ที่เหลือเป็นของตกแต่ง ไม่รวมอยู่ในราคาขายค่ะ

IMG_0394
ไมโครเวฟไม่รวมอยู่ในราคาขายนะคะ

DSCF1519
ภายในตู้เก็บของเหนือศรีษะ

IMG_0383
ตู้เก็บของ ซิงค์อ่างล้างมือ ทั้งหมดรวมอยู่ในราคาขาย ยกเว้นเครื่องปิ้งขนมปังกับ Prop ตกแต่งค่ะ

DSCF1512

DSCF1516
เตาและเครื่องดูดควันจะยี่ห้อ MEX เดียวกันทั้งโครงการ มีปลั๊กไฟอยู่ใต้ที่ดูดควันด้วยค่ะ

DSCF1517
ซิงค์อ่างล้างจานแสตนเลส

IMG_0401
มองออกไปนอกระเบียงค่ะ มีม่านมู่ลี่กรองแสงติดให้
มองออกไปนอกหน้าต่างคือพื้นที่ว่างเปล่าฝั่งตรงข้ามโครงการค่ะ

IMG_0403
ประตู UPVC บานเลื่อนคู่ กระจกตัดแสงสีเขียว มองออกไปด้านขวามือจะเป็นที่วางคอยล์ร้อนแอร์

IMG_0405
บานประตูหน้าต่างระเบียง อุปกรณ์มือจับทั้งหมดเป็นรูปแบบเดียวกันค่ะ

IMG_0413
คอยล์ร้อนแอร์

IMG_0330
ย้อนเข้ามาดูฝั่งขวามือ ห้องนั่งเล่น กันค่ะ

AIMG_0073-2
ห้องนั่งเล่นมีขนาด 14.4 ตร.ม.

IMG_0515
เข้ามาจะเป็นพื้นที่ทานอาหาร มีชุดโต๊ะทานอาหาร 4 ที่นั่ง

IMG_0519
ภาพโต๊ะรับประทานอาหารค่ะ

IMG_0525
มีตู้เก็บของ Build in ให้ด้วย ซึ่งห้อง Type One Bed จะไม่มีตู้นี้

IMG_0526
มองเข้าไปที่ห้องนั่งเล่นค่ะ กว้างขวางทีเดียว

Room_012
มุมมองย้อนกลับออกมาค่ะ

IMG_0083
ระยะสายตา – ทีวี ประมาณ 3.2 ม. นะคะ

IMG_0528
ชุดโซฟากำมะหยี่ และโต๊ะน้ำชา เหมือนกันทุก Unit

IMG_0530
ตู้วางทีวีค่ะ

Room_009
เป็นโซนนั่งพักผ่อนที่สบายทีเดียว

IMG_0544
หน้าต่าง UPVC บานกระทุ้งข้างติดกัน 3 บาน แต่อยู่ฝั่งตรงข้ามจอทีวีเลยค่ะ
ควรใช้ผ้าม่านทึบแสงนะคะ เวลาดูทีวีจะได้ไม่ย้อนแสง

IMG_0546
หน้าต่างบานกระทุ้งค่ะ มองออกไปจะเจอถนนหน้าโครงการ

Single Bedroom
ห้องนอนเตียงเดียวมีพื้นที่ทั้งหมด 11.1 ตร.ม.
มีระเบียงส่วนตัว พื้นที่ 2 ตร.ม.
และห้องน้ำใช้ร่วมกับห้องโถง ขนาด 4.4 ตร.ม.
IMG_0343
ที่เราพามาดูห้อง Single Bed กันก่อนเพราะเป็นห้องแรกที่เปิดประตูเข้าไปด้านขวามือ จะเจอเลยค่ะ
อยู่ติดกับห้องนั่งเล่น

IMG_0559
เข้ามาดูในห้องกัน พื้นที่ 11.1 ตร.ม. พื้นห้องเป็นลามิเนต หนา 12mm ค่ะ
IMG_0564
เตียงนอนขนาด 3.5 x 5 ฟุต
IMG_0566
มีตู้เสื้อผ้าติดกระจกเงา และโต๊ะเครื่องแป้งให้ค่ะ
IMG_0573
ภายในตู้เสื้อผ้า
IMG_0578
โต๊ะเครื่องแป้งมีลิ้นชักให้ด้านล่าง และตู้เก็บของให้ด้านบน
DSCF1523
ซ่อนไฟ LED Stripe
(โต๊ะเครื่องแป้งห้อง One Bed ก็มีซ่อนไฟเหมือนกันนะคะ)
DSCF1522
สวิตช์เปิด-ปิดไฟ LED อยู่ด้านขวามือ มีปลั๊กไฟสำหรับเสียบไดร์เป่าผม

IMG_0583
มีโต๊ะวางทีวีให้ภายในห้องด้วย
DSCF1525
สายดิน และปลั๊กไฟ ของ Bticino
IMG_0584
พื้นที่ข้างเตียงกว้าง 55 ซม. ค่ะ ติดประตูระเบียง
IMG_0586
มุมมองจากห้องออกสู่ประตูระเบียง
IMG_0592
พื้นที่ระเบียง 2 ตร.ม.
IMG_0593
ใช้วัสดุกระเบื้องเหมือนกันค่ะ แต่ระเบียงนี้ไม่มีติดตั้งก๊อกน้ำให้นะคะ
IMG_0595
ระเบียงกว้าง 1 ม. ติดตั้งคอยล์ร้อนแอร์ด้านบน
IMG_0599
มีตาข่ายกันนกติดให้ที่ระเบียงทุกยูนิตค่ะ
IMG_0602
ออกจากห้องนอน Single Bed มาดูห้องน้ำที่อยู่ติดกับห้องนอนนี้กันค่ะ
ออกจากประตูไป ห้องน้ำอยู่ด้านซ้ายมือ
IMG_0608
ห้องน้ำนี้ขนาด 4.4 ตร.ม. ค่ะ สุขภัณฑ์ในห้องน้ำใช้ของ Mogen เหมือนกันทั้งหมด
แยกโซนเปียก-แห้ง ชัดเจน โดยห้องน้ำนี้จะเป็นห้องน้ำที่ใช้ร่วมกับส่วนห้องนั่งเล่นด้วยค่ะ
แต่ไม่มีประตูเชื่อมกับห้องนอน ต้องเข้าจากโถงกลาง
IMG_0610
ชุด Counter อ่างล้างหน้า Mogen Top หินแกรนิต มีกระจกให้
DSCF1497

ขนาดอ่างล้างมือเทียบกับขนาดมือค่ะ
IMG_0611

ชุดโถสุขภัณฑ์ Mogen และสายชำระ
IMG_0616
ห้องอาบน้ำมีฉากกั้นให้ค่ะ
IMG_0619
ชุดเครื่องทำน้ำอุ่น Stiebel Eltron เหมือนกันทั้งโครงการ

IMG_0626
บริเวณธรณีประตู ลดระดับจากห้องโถง 2 ซม. กันน้ำไหลย้อนออก

 

Master Bedroom

ห้องนอนเตียงคู่ มีพื้นที่ทั้งหมด 17.8 ตร.ม.
Walk-in Closet ขนาด 7.6 ตร.ม.
ห้องน้ำส่วนตัว ขนาด 4.4 ตร.ม.
ไม่มีระเบียงส่วนตัว

IMG_0348
ห้อง Master Bedroom จะอยู่ถัดจากห้องครัว หากยืนหน้าประตูทางเข้า ให้มองไปด้านซ้ายมือ

mas12
เข้ามาดูห้อง Master Bedroom กันค่ะ

mas1
เตียงขนาด King Size มีหน้าต่างข้างเตียง พื้นที่ข้างเตียงค่อนข้างกว้างค่ะ ห้องนอนมีพื้นที่ 17.8 ตร.ม.
พื้นที่ข้างเตียงฝั่งซ้าย 1.5 ม.

mas2
พื้นที่ข้างเตียงฝั่งติดหน้าต่างประมาณ 80 ซม.

mas3
มีหน้าต่าง 4 บานข้างเตียง และโต๊ะวางทีวีฝั่งตรงข้ามเตียง

IMG_0437
หน้าต่าง UPVC บานกระทุ้งเปิดข้างค่ะ

IMG_0439
มุมมองออกไปนอกหน้าต่าง เห็นป้อมยาม ถนนหน้าโครงการ และพื้นที่โล่งฝั่งตรงข้าม

mas4
โต๊ะวางทีวี ด้านซ้ายมือเป็นมุมโต๊ะทำงาน สามารถหาซื้อเก้าอี้ขนาดพอเหมาะ มาวางเองได้ค่ะ

mas11
เข้ามาดู Walk-in Closet กันค่ะ ประตูเป็นบานเลื่อนไม้จริง

IMG_0457
รายละเอียดรางเลื่อนค่ะ

DSCF1532
มือจับประตู

IMG_0462
ภายใน Walk-in Closet ค่ะ ตู้เยอะมากๆ ใครที่มีเสื้อผ้าเยอะ ชอบแต่งตัว จะสะใจมากๆค่ะ
มีทั้งช่องใหญ่ ช่องเล็ก ลิ้นชักเก็บ Accessories โต๊ะเครื่องแป้ง

DSCF1534
ราวแขวนเสื้อผ้าค่ะ

DSCF1535
รายละเอียดหมุดยึดราวแขวนเสื้อผ้า เป็นแสตนเลสแข็งแรงมากค่ะ

IMG_0465
ประตูบานเลื่อนติดกระจกเงาภายใน

IMG_0472
มีโต๊ะเครื่องแป้งติดกระจกให้เช่นกันค่ะ รวมปลั๊กไฟบริเวณใต้กระจกสำหรับเสียบไดร์เป่าผม
Walk-in Closet จะเชื่อมกับห้องน้ำในตัวค่ะ อาบน้ำเสร็จแล้วออกมาเปลี่ยนเสื้อผ้าที่ห้องนี้ได้เลย

mas5
ภายในห้องน้ำของ Master Bedroom การตกแต่ง วัสดุอุปกรณ์จะเหมือนกันทั้งโครงการค่ะ

IMG_0475
พื้นกระเบื้องเซรามิก 30×30 ซม.

mas7
อ่างล้างมือ และกระจกบานใหญ่

mas8
อ่างล้างมือของ Mogen ค่ะ

DSCF1539
ซูมรายละเอียดก๊อกน้ำ ยี่ห้อ Mogen

DSCF1540
โถสุขภัณฑ์ก็ยี่ห้อ Mogen เช่นกัน

mas9
ฉากกั้นอาบน้ำค่ะ มีธรณีกั้นแยก ส่วนเปียก-แห้ง

mas10
เครื่องทำน้ำอุ่นยี่ห้อ Stiebel พร้อมฝักบัวอาบน้ำปรับระดับความสูงได้ และที่วางสบู่


ราคา (มีนาคม 2559)

ใบราคา copy
ภาพใบราคา จากทางโครงการ
คลิกที่ภาพ เพื่อดูรูปขนาดใหญ่

ห้อง TYPE ONE BED
ชั้น 3 ราคา 78,600 ต่อ ตร.ม.
ยูนิตที่ 303 : พื้นที่ 65.85 ตร.ม. : ราคา 5,176,000 บาท
ยูนิตที่ 304 : พื้นที่ 43.94 ตร.ม. : ราคา 3,454,000 บาท
ยูนิตที่ 305 : พื้นที่ 43.92 ตร.ม. : ราคา 3,454,000 บาท

ชั้น 4 ราคา 79,600 ต่อ ตร.ม.
ยูนิตที่ 402 : พื้นที่ 41.18 ตร.ม. : ราคา 3,278,000 บาท
ยูนิตที่ 403 : พื้นที่ 65.85 ตร.ม. : ราคา 5,242,000 บาท
ยูนิตที่ 405 : พื้นที่ 44.03 ตร.ม. : ราคา 3,505,000 บาท

ชั้น 6 ราคา 81,600 ต่อ ตร.ม.
ยูนิตที่ 602 : พื้นที่ 41.18 ตร.ม. : ราคา 3,361,000 บาท
ยูนิตที่ 603 : พื้นที่ 65.85 ตร.ม. : ราคา 5,374,000 บาท
ยูนิตที่ 605 : พื้นที่ 43.98 ตร.ม. : ราคา 3,589,000 บาท

ห้อง TYPE TWO BED
ชั้น 3 ยูนิตที่ 301 : พื้นที่ 77.37 ตร.ม. : ราคา 6,082,000 บาท หรือ 78,600 ต่อ ตร.ม.
ชั้น 6 ยูนิตที่ 601 : พื้นที่ 77.37 ตร.ม. : ราคา 6,314,000 บาท หรือ 81,600 ต่อ ตร.ม.

เงินจอง 9,999 บาท
เงินมัดจำ 50,000 บาท
ค่ากองทุน 600 บาท/ตร.ม. (ชำระครั้งเดียววันโอนกรรมสิทธิ์)
ค่าส่วนกลาง 45 บาท/ตร.ม./เดือน (จัดเก็บล่วงหน้า1 ปี นับจากวันโอนกรรมสิทธิ์)


สรุป

♦ ทำเลที่ตั้งโครงการ – โครงการ The Peace คอนโด ลาดพร้าว 15 ตั้งอยู่ในซ.ลาดพร้าว 15 แยก 7 ลึกจากปากซอย.ลาดพร้าว 15 ประมาณ 850 เมตร ซึ่งถือว่าลึกจากถนนใหญ่ แต่สภาพแวดล้อมรอบๆโครงการในรัศมี 300 เมตรนั้นเงียบสงบน่าอยู่ ส่วนใหญ่เป็นบ้านพักอาศัย และร้านค้า แต่เมื่อออกมาหน้าถนนใหญ่ปากซอย ซึ่งก็คือถนนลาดพร้าว นั้นมีความอุดมสมบูรณ์เป็นอย่างมาก สิ่งอำนวยความสะดวกครบครัน และเป็นย่านธุรกิจการค้าที่หนาแน่น มีทั้งห้างสรรพสินค้า โรงเรียน และโรงพยาบาล

อีกทั้งโครงการตั้งอยู่ภายในเกาะที่มีถนนเส้นใหญ่ สามเส้นตัดผ่าน นั่นก็คือถนนพหลโยธิน ที่ห้าแยกลาดพร้าว และถนนรัชดาภิเษก ที่แยกรัชดา-ลาดพร้าว และแยกรัชโยธิน ทำให้โครงการมีเส้นทางลัดที่จะออกสู่ถนนพหลโยธิน ทำให้สะดวกกับการเดินทาง หากใครที่มีชีวิตประจำวัน ต้องทำงานอยู่ในย่านนี้ถือว่าสะดวกมากๆเลยค่ะ

และโครงการยังอยู่ในโซนที่มีรถไฟฟ้าต่อขยายในอนาคตถึงสองสถานี นั่นก็คือสถานีลาดพร้าว(สถานีต่อขยายสายสีเหลือง) และสถานีพหลโยธิน – 5 แยกลาดพร้าว (ส่วนต่อขยายรถไฟฟ้าบีทีเอสหมอชิต-สะพานใหม่) ทำให้ในอนาคต ที่ดินในย่านนี้จะมีราคาสูงขึ้น และจราจรติดขัดน้อยลงอย่างแน่นอน

♦ การเดินทางโดยรถยนต์ส่วนตัว – สำหรับคนขับรถ การเดินทางจะใช้ถนนลาดพร้าวเป็นหลักค่ะ หากมาทางถนนพหลโยธิน ระยะทางจาก 5 แยกลาดพร้าว ถึงโครงการ 2.17 กม. แต่หากมาจากถนนรัชดาภิเษก ระยะจากแยกรัชดา-ลาดพร้าว ถึงโครงการจะเท่ากับ 1.45 กม. ค่ะ และจากโครงการสามารถวิ่งขึ้นทางยกระดับอุตราภิมุข(ดอนเมืองโทลเวย์)เพื่อเข้าหรือออกตัวเมืองได้ค่ะ โดยขาเข้า(มุ่งหน้าดินแดง) ทางขึ้นจะอยู่บริเวณโรงเรียนหอวัง และขาออก(มุ่งหน้ารังสิต) ทางขึ้นอยู่บริเวณหน้าอาคาร Energy Complex เนื่องจากตัวโครงการอยู่ลึกจากถนนใหญ่ 850 กม. หากมีรถยนต์ส่วนตัวจะสะดวกมากเลยค่ะ

♦ การเดินทางโดยรถสาธารณะ – หากผู้ที่ไม่มีรถยนต์ส่วนตัว สามารถเดินทางโดยรถไฟฟ้าใต้ดินได้ค่ะ โดยสถานีที่ใกล้ที่สุดคือสถานีลาดพร้าว ทางออก3(ปากซอยลาดพร้าว17) อีกทั้งสถานีลาดพร้าว ยังเป็นส่วนต่อขยายของสถานีรถไฟฟ้าสายสีเหลือง(ลาดพร้าว-บางกะปิ-สำโรง)ในอนาคต(5ปี) และสถานีพหลโยธิน – 5 แยกลาดพร้าว (ส่วนต่อขยายรถไฟฟ้าบีทีเอสหมอชิต-สะพานใหม่) การเดินทางด้วยรถไฟฟ้าจะสะดวกยิ่งขึ้นมากๆเลยค่ะ

รถเมล์สายที่ผ่าน 8,27,38,44,92,96,122,ปอ.2,ปอ.126,ปอ.145

หากต้องการใช้บริการพี่วิน หน้าโครงการไม่มีวินมอเตอร์ไซค์นะคะ แต่สามารถโทรเรียกให้มารับ หรือให้ไปซื้อของได้ค่ะ หรือหากต้องการใช้บริการแท๊กซี่หากมีเบอร์แท๊กซี่ประจำ หรือใช้ Application Grab Taxi, UBER หรือ All Thai Taxi จะสะดวกมากๆ แต่บริเวณถนนลาดพร้าว มีรถประจำทางและแท๊กซี่ครบนะคะ การเดินทางจากภายนอกเข้าสู่โครงการนั้นง่ายมากเลยค่ะ หน้าปากซอย และบริเวณรถไฟฟ้า มีพี่วินมอเตอร์ไซค์คอยบริการตั้งแต่เช้า ยันค่ำ

♦ การออกแบบโครงการและที่ดิน – โครงการ The Peace เป็นคอนโดขนาดเล็ก แบบ Low Rise สูง 7 ชั้น แต่มียูนิตทั้งหมดแค่ 27 ยูนิตซึ่งถือว่าน้อยเมื่อเทียบกับคอนโดขนาดเดียวกัน จุดเด่นของโครงการนี้คือคอนโดซึ่งมียูนิตน้อย ทำให้พื้นที่แต่ละยูนิตที่ได้นั้นกว้างขวาง ให้ความรู้สึกเหมือนอยู่บ้านเดียวมากกว่าคอนโดค่ะ

การจัดวางผัง ยูนิตที่อยู่ทางทิศเหนือ(บริเวณโถงลิฟท์)ได้เปรียบค่ะ จะไม่ค่อยร้อนถ้าเทียบกับยูนิตที่อยู่ทางทิศใต้ ยูนิต TWO BED จะได้เปรียบเรื่องการระบายอากาศที่สุดค่ะ
เพราะอยู่บริเวณหัวมุมและมีการเจาะช่องระบายอากาศ ช่องแสงที่สามารถ Flow ได้จากทิศเหนือ ใต้ และตะวันตกเลยค่ะ

การจัดวางผังภายในยูนิตถือว่าจัดวางแยกส่วนพื้นที่ความเป็นส่วนตัว และไม่ส่วนตัวได้ดีค่ะ และพื้นที่ภายในห้องนั้นกว้างขวาง เมื่อเทียบสัดส่วนห้องน้ำ ห้องนอน ห้องรับแขก แล้ว ของโครงการนี้ใหญ่และกว้างขวางพอๆกับอยู่บ้านเดี่ยวเลยทีเดียว

พื้นที่ส่วนกลางนั้นถือว่าเยอะถ้าเทียบกับจำนวนยูนิตที่น้อยค่ะ ทำให้มีความเป็นส่วนตัวอย่างมากเวลาว่ายน้ำ หรือออกกำลังกายในฟิตเนส

♦ วัสดุ – ในส่วนของห้องพัก ตกแต่งแบบ Fully Furnished ค่ะ หน้าตาโดยรวมของห้องทั้ง TYPE ONE BED และ TYPE TWO BED นั้นเหมือนกันค่ะ ตกแต่งด้วยโทนสี ขาว ครีม เทา แต่เคร่งขรึม Modern ด้วยเฟอร์นิเจอร์และผ้าม่านสีดำ ซึ่งสามารถตกแต่งเพิ่มเติมตามสไตล์ที่ผู้อยู่ชอบได้ง่าย

วัสดุพื้นใช้ไม้ลามิเนต หนา 12mm. ฝ้าเพดานสีขาว โคมไฟใช้แบบ Downlight
ห้องครัวมีซิงค์ล้างจานแสตนเลสให้ Top เป็นหินแกรนิต มีเตายี่ห้อ MEX แบบสองหัว และเครื่องดูดควันยี่ห้อ MEX ให้ ไม่มีตู้เย็นและไมโครเวฟ พื้นห้องน้ำใช้กระเบื้องเซรามิกสีน้ำตาลขนาด 30×30 ซม. ผนังห้องน้ำใช้กระเบื้องเซรามิกสีขาวปูสูงถึงเพดาน สุขภัณฑ์ใช้ยี่ห้อ Mogen ทั้งหมด บานประตูและตู้ทั้งหมด เป็นไม้จริงทำสี ส่วนบานประตูและหน้าต่างออกสู่ระเบียงจะใช้วัสดุ UPVC ค่ะ

♦ สิ่งอำนวยความสะดวก – โครงการมีฟิตเนสที่มีเครื่องเล่นที่สามารถออกกำลังกายได้ครบครัน และคุณภาพดี มีสระว่ายน้ำ ห้องน้ำ และส่วนอาบน้ำบริการ แต่สระว่ายน้ำจะมีข้อเสียตรงที่ความยาวสระจะไม่เหมาะสำหรับว่ายออกกำลังกายอย่างจริงจังค่ะ (ยาว 6.5 ม.) แต่สามารถว่ายเล่นพักผ่อนได้ค่ะ ฝ้าเพดานเหนือสระว่ายน้ำเป็น Fiber Optic หากเปิดตอนกลางคืนจะเหมือนว่ายอยู่ในกาแลกซี่เลยค่ะ

ระบบรักษาความปลอดภัย – มีรปภ. 24 ชั่วโมง และ CCTV บริเวณหน้าโครงการ ในลิฟท์ และหน้าโถงลิฟท์ทุกชั้นค่ะ โถงลิฟท์ชั้นล่างใช้ระบบคีย์การ์ด ประตูหน้าห้องพักใช้กุญแจค่ะ


คะแนน

ทำเลที่ตั้งโครงการ 7.5 โครงการตั้งอยู่ในซ.ลาดพร้าว 15 แยก 7 ซึ่งลึกจากถนนลาดพร้าว 850 เมตร แต่ก็เดินทางสะดวกด้วยรถไฟฟ้า หรือรถยนต์ส่วนตัว โครงการอยู่ในตัวเมืองรอบนอกมีความอุดมสมบูรณ์ครบครัน
การเดินทางโดยรถยนต์ส่วนตัว 7 โครงการอยู่ใกล้ทางด่วน ดอนเมืองโทลล์เวย์ สามารถเดินทางเข้าและออกเมืองได้สะดวก อีกทั้งโครงการนี้มีที่จอดรถถึง 80%แต่ขอหักคะแนนเล็กน้อยเนื่องจากต้องใช้ถนนลาดพร้าว เป็นทางสัญจรหลัก และถนนลาดพร้าวตอนต้นขึ้นชื่อเรื่องรถติดมากๆค่ะ
การเดินทางโดยรถสาธารณะ 7.5 บริเวณถนนลาดพร้าวปากซอยนั้นติดรถไฟฟ้า และมีทั้งรถเมล์ แท๊กซี่ มอเตอร์ไซค์รับจ้างวิ่งตลอดวัน ซึ่งถือว่าสะดวกสบายมากๆ ขอหักคะแนนเนื่องจากหากเดินทางจากหน้าโครงการจะลำบากสักนิดนึงค่ะ
บ้านและวัสดุ 8.0 แบบห้องทันสมัย Modern ใช้วัสดุคุณภาพดีและแข็งแรง
สิ่งอำนวยความสะดวก 7.5 ฟิตเนสและสระว่ายน้ำพื้นที่เยอะเมื่อเทียบกับจำนวนยูนิต มีความเป็นส่วนตัว
ความคุ้มค่ากับราคา 7.5 เหมาะสำหรับคนที่ต้องการหาที่อยู่ย่านลาดพร้าว-รัชดา-พหลโยธิน ห้องมีขนาดกว้าง ยูนิตน้อย สภาพแวดล้อมมีความเป็นส่วนตัวสูงมากๆ ราคาเฉลี่ยต่อตารางเมตรอยู่ที่ 78,600-81,600 บาท
คะแนนรวมเฉลี่ย 7.5 ดี

**การให้คะแนนเป็นเพียงความคิดเห็นของทีมงานเพียงกลุ่มเดียว ไม่สามารถใช้อ้างอิงได้**


สอบถามรายละเอียดเพิ่มเติมได้ที่

TEL : 02-938-7943, 089-990-2428
FAX : 02-938-5707
WEBSITE : www.thepeace-condo.com

หากท่านเห็นว่ารีวิวนี้มีประโยชน์ โปรดกด Like เพื่อเป็นกำลังใจให้ทีมงาน ขอบคุณค่ะ

หากท่านมีความคิดเห็นหรือข้อมูลเพิ่มเติมเกี่ยวกับตัวโครงการ สามารถ Comment ได้ที่ด้านล่างของรีวิวค่ะ


สนใจลงโฆษณากับทาง CONDONAYOO ติดต่อสอบถามรายละเอียดได้ที่
คุณวัน 086-1290293 
LINE ID : 123456786205 Email : wanchalearm.t@gmail.com
ทางเราเป็นเว็บไซต์ให้ข้อมูล ไม่ใช่เจ้าของโครงการนะครับ

แสดงความคิดเห็น เกี่ยวกับ " รีวิว คอนโด THE PEACE ลาดพร้าว 15 ใกล้ MRT ลาดพร้าว "