
Written by : Pure Thitapa
รีวิววันนี้ Condonayoo จะพาไปชมโครงการ ‘Via 61‘ Luxuruy Condominium โครงการใหม่จาก Sansiri บนทำเล Rare Items ใจกลางทองหล่อ-เอกมัย ภายในซอยสุขุมวิท 61 แขวงคลองตันเหนือ เขตวัฒนา กทม. ตรงข้าม Parklane เอกมัย ตอบโจทย์ทุกไลฟ์สไตล์การอยู่อาศัย เชื่อมต่อ Mass Transit และเชื่อมต่อไปยังจุดต่าง ๆ ได้อย่างสะดวก เพียง 1 นาที* จาก BTS เอกมัย และ 3 นาที* จากทองหล่อ
ใกล้แหล่งศูนย์รวมไลฟ์สไตล์ชั้นนำ และ Night Life อันครบครัน ทั้ง Community Mall, ร้านอาหารระดับ Michelin Star ในย่านเอกมัย-ทองหล่อ, Gateway Ekamai, Donki Mall และย่านสุขุมวิท-พร้อมพงษ์ ที่มี The Em District ตั้งอยู่ใกล้ ๆ รายล้อมด้วยโรงเรียนนานาชาติที่มีชื่อเสียง และโรงพยาบาลเอกชนขนาดใหญ่ในระยะอุ่นใจ
เวีย 61 คอนโด Low-Rise ระดับ Luxury ในรูปแบบ Pet Allowed เลี้ยงสัตว์ได้ทุกยูนิต มูลค่าโครงการ 1,200 ล้านบาท เป็นอาคารสูง 8 ชั้น + 1 ชั้นใต้ดิน จำนวน 1 อาคาร เป็นส่วนตัวเพียง 61 ยูนิต ออกแบบภายใต้แนวคิด ‘Unveil your Living Serenity ให้ความวุ่นวายอยู่ได้แค่ภายนอก’
Layout ห้องมีให้เลือกหลากหลาย เริ่มตั้งแต่ 1 Bedroom พื้นที่ใช้สอยเริ่มต้น 50 ตร.ม. ไปจนถึง Penthouse พื้นที่ใช้สอยสูงสุด 188.75 ตร.ม. ที่มีเพียง 2 ยูนิตเท่านั้น โดดเด่นด้วยห้องหน้ากว้าง เปิดรับวิวทั้ง 3 ด้าน
โครงการผ่าน EIA แล้ว ปัจจุบันอยู่ระหว่างการก่อสร้าง และคาดว่าจะแล้วเสร็จพร้อมอยู่ภายในปี 2569
สิ่งอำนวยความสะดวกภายในโครงการมีให้ครบครัน อาทิ Lobby, Waiting Lounge, Sky Lounge, Private Dining, Meeting Room, Gym, Sky Pool, Rooftop Terrace ครบทุกบริการหลังการขาย พร้อมมอบการดูแลลูกบ้านแบบ Exclusive ผ่านบริการ PLUS Luxury Service และ LIV-24 ศูนย์ควบคุมเพิ่มประสิทธิภาพความปลอดภัยแบบ Real-Time แห่งแรกของวงการอสังหาริมทรัพย์ไทย / ในราคาเริ่มต้น 10.9 ล้านบาท* (พ.ย. 67)
| ชื่อโครงการ | เวีย 61 / Via 61 |
| เจ้าของโครงการ | บริษัท แสนสิริ จำกัด (มหาชน) / Sansiri |
| เนื้อที่ทั้งหมด | ประมาณ 1 ไร่ |
| จำนวนตึก | 1 อาคาร |
| จำนวนชั้น | 8 ชั้น + 1 ชั้นใต้ดิน |
| จำนวนห้อง | 61 ยูนิต |
| ลักษณะห้องและขนาดห้อง |
|
| ที่จอดรถทั้งหมด |
|
| จำนวนลิฟต์ | ลิฟต์ล็อกชั้น 2 ตัว/อาคาร |
| โซน | เขตวัฒนา |
| เส้นทางคมนาคม |
|
| ที่ตั้ง | ซอยสุขุมวิท 61 แขวงคลองตันเหนือ เขตวัฒนา กทม. 10110 |
| กำหนดการ | เริ่มก่อสร้างปี 67 |
| ปีที่สร้างเสร็จ | คาดว่าแล้วเสร็จประมาณเดือน เม.ย. 69 |
| ราคา | เริ่ม 10.9-50 ล้าน* (ต.ค. 67) |
| ราคาเฉลี่ยต่อ ตร.ม | ประมาณ 219,000 บาท/ตร.ม.* |
| ค่าส่วนกลางและกองทุน |
|
| สถานที่สำคัญใกล้เคียง |
ศูนย์การค้า
Community Mall
สถานศึกษาและโรงเรียนนานาชาติ
โรงพยาบาล
อาคารสำนักงาน
อื่น ๆ
**ระยะทางวัดจากการเดินทางสู่จุดหมาย โดยถนนที่ใกล้ที่สุด** |
| สิ่งอำนวยความสะดวก |
|
| Tel | 1685 |
| Line | – |
| Website | https://www.sansiri.com/ |
ที่ตั้งโครงการ
ซอยสุขุมวิท 61 แขวงคลองตันเหนือ เขตวัฒนา กทม. 10110
พิกัดโครงการ : https://maps.app.goo.gl/nsbpqBSUN8HcmXn6A
โครงการ Via 61 (เวีย 61) เป็น Luxury Condominium ในรูปแบบ Pet Allowed ตั้งอยู่ในซอยสุขุมวิท 61 ทำเลใจกลางทองหล่อ-เอกมัย ที่โดดเด่นด้วยบรรยากาศเงียบสงบและร่มรื่นใจกลางสุขุมวิท ย่านนี้ขึ้นชื่อว่าเป็นหนึ่งในทำเลทองของกรุงเทพฯ ที่ให้ความเป็นส่วนตัว เหมาะสำหรับคนที่ชอบใช้ชีวิตในเมือง แต่ยังคงต้องการความเงียบสงบ
โดยซอยสุขุมวิท 61 ยังได้รับการยอมรับว่าเป็น “ซอยที่น่าอยู่ที่สุดในกรุงเทพฯ” ด้วยบรรยากาศที่เงียบสงบและเป็นระเบียบ มีความแตกต่างอย่างโดดเด่นจากซอยอื่น ๆ ในย่านสุขุมวิท ซึ่งส่วนใหญ่คึกคักและแออัด และเป็นซอยที่เต็มไปด้วยต้นไม้และความร่มรื่น บรรยากาศดูเป็นกันเองและผ่อนคลาย
ครบครันด้วยสิ่งอำนวยความสะดวกมากมาย ทั้งร้านอาหารระดับ Michelin Star, Community Mall, ศูนย์การค้าระดับ World Class, โรงเรียนนานาชาติ, โรงพยาบาล และสถานทูต อีกทั้งยังเดินทางได้สะดวก ใกล้ถนนสุขุมวิท เพียง 210 ม.* ใกล้ทางด่วน 2 สาย และใกล้กับ BTS เอกมัย เพียง 650 ม.* เท่านั้น ที่นี่จึงเหมาะกับลูกค้าชาวไทยและชาวต่างชาติ ทั้งเพื่ออยู่อาศัยเองและเพื่อการลงทุนระยะยาวด้วย Rental Yield ระดับ 5-6% ต่อปี
การเดินทางโดยรถส่วนตัว : เดินทางได้สะดวก ที่ตั้งของโครงการจะอยู่ภายในซอยสุขุมวิท 61 ที่เข้ามาจากถนนสุขุมวิท เพียง 210 ม.* ออกมาหน้าปากซอย เลี้ยวซ้ายไปสุขุมวิท ฝั่งขาออก จะผ่านแยกเอกมัยใต้, ถนนเอกมัย, ถนนปรีดีพนมยงค์ และใช้วิ่งไปโซนอ่อนนุช, แบริ่ง, บางนา เข้าตัวเมืองสมุทรปราการได้เลยค่ะ
ส่วนคนที่ต้องการเดินทางเข้าเมืองไปโซนอโศก หรือสุขุมวิทตอนต้น ก็กลับรถไปสุขุมวิท ฝั่งขาเข้า แล้ววิ่งตรงยาวได้เลย ถ้าไม่ใช้ช่วงเวลา Rush Hour จะใช้เวลาประมาณ 10-15 นาที* ระหว่างทางจะมีซอยสุขุมวิท 42, สุขุมวิท 40 และสุขุมวิท 36 ให้ใช้ลัดไปออกถนนพระราม 4 เพื่อวิ่งเข้า CBD ของกรุงเทพฯ ผ่านทางนี้ได้เลยนะคะ
ฝั่งตรงข้ามกับโครงการ จะเป็น Community Mall Parklane เอกมัย ที่มีทางลัดไปออกถนนเอกมัยได้ โดยไม่ต้องไปขับอ้อมบนถนนสุขุมวิท จากถนนเอกมัย จะมีทางลัดไปออกถนนทองหล่อ ผ่านซอยทองหล่อ 10 และซอยทองหล่อ 20 (ซอยแจ่มจันทร์) และจากถนนทองหล่อ ก็จะมีเส้นทางลัดไปออกซอยสุขุมวิท 49, ซอยพร้อมพงษ์ เชื่อมต่อโซนอโศก โดยไม่ต้องไปวิ่งบนถนนสุขุมวิทได้ด้วย
ทั้งยังเชื่อมต่อกับซอยสุขุมวิท 71 (ปรีดีพนมยงค์) ผ่านซอยเอกมัย 10 และซอยเอกมัย 12 ได้ในระยะทางสั้น ๆ ซึ่งความเหมือนกันของถนนเอกมัย ทองหล่อ และปรีดีพนมยงค์ คือ เป็นซอยที่เชื่อมถนนสุขุมวิทและถนนเพชรบุรีตัดใหม่เข้าด้วยกัน ทางลัดต่าง ๆ จึงสามารถใช้หลบเลี่ยงรถติดในบางจุดของถนนหลักได้เป็นอย่างดี
จากถนนเอกมัยและทองหล่อ วิ่งไปจนสุดจะเชื่อมกับถนนเพชรบุรี ที่ใช้วิ่งไปโซนพัฒนาการ, รามคำแหง และไปแหล่งงานทางฝั่งพระราม 9 ได้ใกล้ ๆ ยิ่งถ้าใช้งานจนชิน ใช้งานจนรู้จักทางลัดเลาะต่าง ๆ ที่อยู่รอบ ๆ เราจะพบว่าตรงนี้เดินทางด้วยรถยนต์ได้สะดวกมากทีเดียวค่ะ
ทางด่วน
โครงการ Via 61 จะอยู่ใกล้กับทางด่วนเส้นหลัก 2 สาย ใกล้ที่สุดจะเป็น ทางด่วนฉลองรัช ด่านพระโขนง ที่วิ่งออกมาทางถนนสุขุมวิท โดยจะอยู่ห่างจากโครงการประมาณ 2.8 กม.* หรือขับรถไปใช้งานได้ราว ๆ 4-8 นาที* ทางนี้จะเหมาะกับการใช้วิ่งไปพระราม 9, ลาดพร้าว, รามอินทรา, วัชรพล, สุขาภิบาล 5 ไปเชื่อมกับวงแหวนกาญจนาภิเษก ที่ใช้ออกเมืองไปโซนลำลูกกา-บางปะอินได้เลย
ทางด่วนอีกสายที่ใกล้ ๆ จะเป็น ทางด่วนเฉลิมมหานคร ด่านอาจณรงค์ ที่อยู่ห่างจากโครงการมาประมาณ 3.1 กม.* หรือขับรถมาได้ราว ๆ 6-10 นาที* ทางนี้จะเหมาะกับการใช้เดินทางเข้าเมือง เชื่อมทางด่วนศรีรัชไปโซนอื่น ๆ ได้ที่ด้านบน และใช้ออกไปโซนรอบนอกของกรุงเทพฯ ทางฝั่งสุขสวัสดิ์-พระราม 2 ได้สะดวกดีทีเดียวค่ะ
ถนนและแยกสำคัญใกล้เคียง
**ระยะทางวัดจากการเดินทางสู่จุดหมาย โดยถนนที่ใกล้ที่สุด**
การเดินทางโดยรถไฟฟ้า : ที่นี่จะอยู่ใกล้โครงข่ายของรถไฟฟ้าหลายสายเลยนะคะ ทั้งรถไฟฟ้าที่เปิดใช้งานแล้ว และรถไฟฟ้าโครงการในอนาคต อย่างที่ใช้งานกันหลัก ๆ ก็จะเป็น รถไฟฟ้า BTS ทองหล่อ ที่อยู่ห่างจากโครงการไป เพียง 450 ม.* เดินจากโครงการไปใช้งานได้ชิล ๆ
นั่งจากเอกมัย ไปแค่ 2 สถานี ถึง BTS พร้อมพงษ์ เป็น Hub ของ 3 ห้างใหญ่ในเครือ The Mall Group หรือนั่งต่อไปเพียง 3 สถานี จะเปลี่ยนเส้นทางไปรถไฟฟ้า MRT สถานีสุขุมวิทได้ หรือใครชอบไปเดินเล่นโซนสยาม ก็นั่งไปได้ง่าย ๆ เพียงแค่ 7 สถานี เท่านั้นค่ะ
ในอนาคตตรงสถานีทองหล่อ จะเป็นจุด Interchange ระหว่าง BTS และรถไฟฟ้าสายสีเทา ช่วงที่ 2 พระโขนง-พระราม 3 และยัง Interchange กับรถไฟฟ้าสายสีส้มได้ที่สถานีพระราม 9 ทำให้มีตัวเลือกในการเดินทางไปย่านต่าง ๆ ได้สะดวกมากขึ้น
นอกจากนั้นยังมี Airport Link รามคำแหง ที่วิ่งออกไปทางเพชรบุรีให้ใช้งาน ใครที่ต้องเดินทางไปสนามบินสุวรรณภูมิ เลือกใช้ Airport Link ได้เลย สะดวกดี และถัดไปอีกหน่อยจะมีรถไฟฟ้า MRT เพชรบุรี ตรงแยกอโศก-เพชรบุรี ให้ได้ใช้งานค่ะ
ส่วนการเดินทางโดยรถสาธารณะในรูปแบบอื่น ๆ ก็ทำได้ง่ายเหมือนกัน ด้วยโครงการอยู่ใจกลางเมือง ทำให้เรียกรถ Taxi ที่วิ่งผ่านหน้าโครงการ หรือเรียกรถผ่าน Application ต่าง ๆ ได้ง่าย มีรถ Standby รอบ ๆ อยู่แทบจะ 24 ชม.*
โครงการอยู่ใกล้กับ รถไฟฟ้า BTS สถานีเอกมัย ประตู 1 ประมาณ 450 ม.* ที่เดินไปใช้ชิล ๆ ประมาณ 5-10 นาที* ค่ะ
Via 61 ตั้งอยู่ในโซนเอกมัย-ทองหล่อ ซึ่งเป็นโซนที่อยู่อาศัยระดับ Hi-End ที่มีคนไทย ที่เป็นกลุ่ม Young Successor, Top Millionaire, Retirement Age และเป็นย่านที่กลุ่ม Expat ผู้บริหารชาวต่างชาติ หรือกลุ่มคนต่างชาติที่ทำงานในประเทศไทย โดยเฉพาะชาวญี่ปุ่นต่างให้ความนิยมมายาวนาน เพราะมีความสะดวกหลายประการ
ตลอดสองฝั่งถนนทองหล่อและเอกมัย รวมถึงบนถนนสุขุมวิท จะอัดแน่นไปด้วย Community Mall ที่มี Concept เก๋ ๆ มี Supermarket นานาชาติ และมีร้านอาหารทุกรูปแบบตั้งแต่ Local Restaurant, Michelin Star & Guide Restaurant, Omakaze, Chef Table หรือจะเป็นร้านนั่งชิลทางฝั่งทองหล่อก็มีให้เลือกเยอะ
สำหรับแหล่งจับจ่ายใช้สอยที่ใกล้คอนโดมากที่สุด ก็คือ Parklane เอกมัย ที่แค่ข้ามถนนซอยไปไม่กี่ก้าวก็ถึงแล้วค่ะ ที่นี่จะเป็น Community Mall ขนาดใหญ่ ที่มีร้านกาแฟ ร้านอาหารหลายประเภท อีกทั้งยังมีร้านทำผม-ทำเล็บ, โรงเรียนกวดวิชา, Jetts Fitness, Let’s Relax SPA และมี MaxValu Supermarket ตั้งอยู่ด้วย สะดวกต่อการใช้ชีวิตมาก ๆ
ขับออกไปหน้าปากซอยและไปทางเส้นเอกมัย ก็มีตัวเลือกเยอะ ทั้ง Major สุขุมวิท (เอกมัย), Earth Ekamai, Big C เอกมัย, เวิ้งโบราณ และ Park Avenue ขยับไปทางถนนทองหล่อ ที่อยู่เชื่อมกัน จะมี Lifestyle Mall, Community Mall และ Supermarket อีกเพียบ
เช่น Marché, Market Place, Town Hall 49, Park Avenue, J Avenue, Penny’s Balcony ทั้งยังใกล้กับ The Commons ที่ภายในมีร้านอาหารดี ๆ ถึง 4 โซน ได้แก่ Market, Village, Play Yard และ Top Yard อีกด้วย
หากจะไปห้างสรรพสินค้า ก็ออกไปทางเส้นสุขุมวิทได้เลย อย่างตรงแยกเอกมัยใต้ ก็จะมี Gateway เอกมัย หรือออกไปโซนพร้อมพงษ์ ตรงนี้จะเป็นโซนของ Em District ที่รวมทั้ง 3 ห้างใหญ่ อย่าง Emporium, Emquartier และที่เพิ่งเปิดไปไม่นาน อย่าง Emsphere ในเครือ The Mall Group ไว้เป็นอาณาจักรเลยค่ะ
ใกล้โรงเรียนและมหาวิทยาลัยชื่อดังของไทยมากกว่า 10 แห่ง + เพียง 700 ม.* ถึง Kids’ Academy และ 1.3 กม.* ถึง Wells (On Nut Campus) ถัดไปรอบ ๆ ก็จะมี รร.ทอสี, มศว.ประสานมิตร, รร.สาธิตฯ มศว.ประสานมิตร และ รร.เซนต์ดอมินิก ตั้งอยู่ไม่เกิน 5 กม.*
และด้วยทำเลที่เป็นกลุ่ม Top Millionaire และมีชาวต่างชาติเข้ามาอยู่อาศัยอยู่เยอะ ทำให้ใกล้ ๆ กับโครงการนี้ เค้าจะมีโรงเรียนนานาชาติรองรับบุตรหลานชาวไทยและต่างชาติอยู่หลายที่ ในระยะทางสั้น ๆ อย่างเช่น Trinity, St Andrews, Wells, EIS , Bangkok Prep, Ivy Bound และ Anglo Singapore 31 เป็นต้น
ใกล้โรงพยาบาลขนาดใหญ่หลายแห่ง ทำให้สามารถเข้าถึงบริการทางการแพทย์ได้อย่างรวดเร็ว มั่นใจได้ในกรณีฉุกเฉินตลอด 24 ชม. ทั้ง รพ.สุขุมวิท, รพ.กล้วยน้ำไท, รพ.วิมุตเทพธารินทร์, รพ.สมิติเวช สุขุมวิท, รพ.คามิลเลียน, รพ.เพชรเวช, รพ.จักษุ รัตนิน, รพ.กรุงเทพ อินเตอร์เนชั่นแนล และ รพ.พระราม 9
รายล้อมด้วยอาคารสำนักงานชั้นนำเกรด A โดยขอยกตัวอย่างบางส่วน ได้แก่ APAC Tower, T-One Building, Summer Hub Office, Park X Ekkamai, SSP Tower 1, Maleenont Tower, Exchange Tower, Interchange 21, Charn Issara Tower 2, Sino-Thai Tower, GMM, Italthai Tower และใกล้กับ FYI Center, Thaibev Quarter, The PARQ ที่อยู่ทางฝั่งพระราม 4 อีกด้วย
อีกทั้งยังอยู่ใกล้กับสถานที่ท่องเที่ยว, สวนสาธารณะใจกลางเมือง และอื่น ๆ อีกมากมายเลยค่ะ ทั้งท้องฟ้าจำลอง, สวนสมเด็จสราญราษฎร์มณีรมย์, สวนเบญจสิริ, สวนป่าเบญจกิติ-สวนลุมพินี และศูนย์ประชุมแห่งชาติสิริกิติ์ เป็นต้น
ศูนย์การค้า
Community Mall
สถานศึกษาและโรงเรียนนานาชาติ
โรงพยาบาล
อาคารสำนักงาน
อื่น ๆ
**ระยะทางวัดจากการเดินทางสู่จุดหมาย โดยถนนที่ใกล้ที่สุด**
พิกัดโครงการ : https://maps.app.goo.gl/nsbpqBSUN8HcmXn6A
การเดินทางเริ่มจาก BTS พร้อมพงษ์ ⇒ ถนนสุขุมวิท ฝั่งขาออก ⇒ ผ่านถนนทองหล่อ ⇒ เข้าซอยสุขุมวิท 61 ตรง Major เอกมัย ⇒ ตรงไปประมาณ 210 ม.* ถึงโครงการ Via 61 ทางฝั่งขวามือ ตรงข้ามกับ Parklane เอกมัย
เริ่มจากถนนสุขุมวิท ที่มาจากแยกอโศก ผ่าน BTS พร้อมพงษ์ และ 3 ห้างใหญ่ของ The Mall Group อย่าง Emsphere, Emporium และ Emquartier
ขับตรงไปบนถนนสุขุมวิท ฝั่งขาออก ผ่าน BTS ทองหล่อ
ผ่านถนนทองหล่อ หรือซอยสุขุมวิท 55 แล้วให้อยู่เลนซ้ายไว้นะคะ
ผ่านทองหล่อมาไม่ไกล ให้เลี้ยวซ้ายเข้าซอยสุขุมวิท 61 ตรงหน้า Major เอกมัย
จากถนนสุขุมวิท เข้าซอยสุขุมวิท 61 ไปประมาณ 210 ม.*
ขับเข้าไปในซอยสุขุมวิท 61
ตรงมาประมาณ 210 ม.* จะเจอโครงการ Via 61 ทางฝั่งซ้ายมือค่ะ
ภาพมุมสูงโครงการ Via 61 ตั้งอยู่ภายในซอยสุขุมวิท 61 เข้ามาจากถนนใหญ่สุขุมวิท ประมาณ 210 ม.* โครงการจะอยู่ทางฝั่งซ้ายมือ และอยู่ตรงข้ามกับทางเข้า-ออกด้านหลัง Parklane เอกมัย ที่เดินข้ามถนนไปจับจ่ายใช้สอย ออกไปทานข้าวที่ร้านอาหารภายใน Parklane ได้ใกล้ ๆ มาก ๆ
ส่วนบรรยากาศรอบ ๆ โครงการมีความเงียบสงบ เพราะส่วนมากจะเป็นที่อยู่อาศัยแนวราบ สลับกับอาคารสูงไม่เกิน 7 ชั้น และมีคอนโด Low-Rise ตั้งอยู่ในซอยประมาณ 3 โครงการ ที่สำคัญซอยนี้จะเป็นซอยตัน จึงมีความส่วนตัวสูง ไม่วุ่นวายเท่าฝั่งถนนเอกมัยค่ะ
รอบโครงการ
พาเดินดูบรรยากาศรอบ ๆ โครงการกันต่อค่ะ
มองตรงเข้าไปในซอยสุขุมวิท 61 จะเป็นซอยตัน และส่วนมากจะเป็นกลุ่มที่อยู่อาศัยแนวราบเกือบทั้งหมด
ตรงข้ามกับโครงการ คือ Parklane เอกมัย และ MaxValu Supermarket
ด้านซ้ายมือเป็นทางขึ้น-ลงชั้นจอดรถของ Parklane
ส่วนขวามือจะเป็นทางรถเข้า-ออกฝั่งหลัง Parklane ที่เราใช้เป็นทางลัดไปออกถนนเอกมัยได้โดยไม่ต้องขับไปอ้อมบนถนนสุขุมวิท
ตรงเข้ามาจะเจอกับ MaxValu ที่เปิดให้บริการตั้งแต่ 7 โมงเช้า ไปจนถึง 5 ทุ่มเลยค่ะ
ร้านค้า ร้านอาหารภายใน Parklane มีให้เลือกเยอะ
เดินเข้าไปในซอยจะเป็นบ้านพักอาศัย คอนโด Low-Rise และมีร้านอาหารชื่อดังเปิดอยู่หลายร้าน
เดินออกมาทางหน้าปากซอยจะมีร้านอาหาร บ้านพักอาศัย คอนโด และโฮมออฟฟิศ ตั้งอยู่สองฝั่ง
ปากซอยจะมีอู่ซ่อมรถ ร้านขายวัสดุก่อสร้าง ร้านตัดผม และร้านอาหารเปิดขายอยู่หลายร้าน
ซ้ายมือเป็นทางเข้าลานจอดรถ Major เอกมัย และมี EV Station ให้บริการด้วย
หน้าปากซอยสุขุมวิท 61 มีพี่วินให้บริการ
มี Major เอกมัย ตั้งอยู่ที่หน้าปากซอย นอกจากจะมีโรงหนังแล้ว ก็ยังมีร้านค้า ร้านอาหารอื่น ๆ อีกมากมายเลยค่ะ
มีป้ายรถเมล์ให้ใช้งานที่ด้านหน้า Major
ทางเข้า-ออก Major ฝั่งถนนใหญ่สุขุมวิท
ด้านหน้ามีวินมอเตอร์ไซค์ให้ใช้บริการอีกจุด
ถัดมาจะมีร้านรวงต่าง ๆ อีกเพียบ
เดินไปทางซ้าย จะเป็นทางที่ใช้เดินไปยังรถไฟฟ้า BTS เอกมัย ประตู 1
จากสถานีรถไฟฟ้าเอกมัย จะมี Skywalk ให้เดินเข้าห้างได้
มองไปฝั่งตรงข้ามจะมีร้านอาหารเจ้าดัง และเป็นที่ตั้งของขนส่งเอกมัยด้วย
ด้านบน Major มี Fitness
ตรงมาจะเจอกับแยกเอกมัยใต้
ซ้ายมือเป็นซอยสุขุมวิท 63 หรือถนนเอกมัย ด้านหน้ามีวินมอเตอร์ไซค์ให้บริการเช่นกัน
ข้ามทางม้าลายไปจะถึงสถานีรถไฟฟ้า
หัมุมนี้จะเป็น APAC Ekkamai
ข้ามทางม้าลายมาก็จะเจอกับสถานีรถไฟฟ้าเอกมัย ประตู 1 โดยมีระยะทางจากโครงการมาประมาณ 450 ม.* ถือว่าเดินมาใช้งานกันได้ชิล ๆ ค่ะ
PROJECT DETAIL
Via 61 (เวีย 61) Luxury Condominium แบบ Low-Rise โครงการ Masterpiece ล่าสุด หนึ่งใน Aesthetic Collection จาก Sansiri บนสุดยอดทำเล Rare Item ที่ดินหายากใจกลางย่านทองหล่อ-เอกมัย ที่ไม่ใช่ใครก็เป็นเจ้าของได้ ท่ามกลางสังคมคุณภาพการอยู่อาศัยระดับนานาชาติ และ Luxury Lifestyle ชูจุดเด่นเป็น ‘Hidden Gem’ สุด Private ในซอยสุขุมวิท 61 “ซอยที่น่าอยู่ที่สุดในกรุงเทพฯ”
พัฒนาโครงการเป็นคอนโด Low-Rise 8 ชั้น 1 ชั้นใต้ดิน บนเนื้อที่ประมาณ 1 ไร่ เป็นส่วนตัว เพียง 61 ยูนิต มีห้องพักให้เลือกตั้งแต่ 1 Bedroom ไปจนถึง Penthouse พื้นที่ใช้สอยเริ่มต้น 50.00-188.75 ตร.ม. โดยห้องแบบ Penthouse จะมีเพียง 2 ยูนิตเท่านั้น! อีกทั้งยังเป็นคอนโดแบบ Pet Allowed เลี้ยงสัตว์ได้ 100% ในราคาเริ่มต้นที่ 10.9-45 ล้านบาท*
ความโดดเด่นด้านการออกแบบสถาปัตยกรรมของโครงการ Via 61 นี้ ถูกพัฒนาออกมาภายใต้คอนเซ็ปต์ “Carve & Craft” โดยได้รับแรงบันดาลใจจากลักษณะเฉพาะของผู้อยู่อาศัยในซอยสุขุมวิท 61 ซึ่งมีความสุขุมแต่ยังคงแฝงความหรูหราไว้ภายใน การออกแบบที่เผยถึงความงามนี้สะท้อนออกมาผ่านการแกะสลัก (Carve) และการตกแต่งด้วยความละเอียดอ่อนและประณีต (Craft) ในทุกองค์ประกอบ
โครงสร้างอาคารเน้นการใช้วัสดุธรรมชาติ เช่น หิน Travertine ที่มีลายอันโดดเด่น และหิน Azul ที่สื่อถึงความแข็งแกร่ง สอดรับกับความเรียบหรูของตัวอาคาร ผิวสัมผัสที่หลากหลายผสานกับโลหะสีทองแดงที่เปล่งประกาย เพิ่มความอบอุ่นและหรูหรา ทำให้การออกแบบที่ดูเป็นธรรมชาตินี้สื่อถึงตัวตนของผู้อยู่อาศัยได้อย่างชัดเจนและงดงาม
แปลนชั้น 1 ที่ดินโครงการเป็นแบบตอนลึก หน้าโครงการและทางเข้า-ออกอยู่ติดซอยสุขุมวิท 61 ตรงข้ามกับ Parklane พอเข้ามาในโครงการจะเดินรถแบบ 2 Way ไปตามลูกศร โดยจะเชื่อมกับที่จอดรถปกติที่ใต้อาคาร, ชั้นใต้ดิน และเชื่อมกับ Auto Parking ที่ด้านหลัง โดยที่จอดรถของโครงการให้มาถึง 108% หรือประมาณ 66 คัน รับรองว่าจอดได้เพียงพอ
มีทางเข้า-ออกอาคารที่ด้านหน้า เป็นห้องฝ้าสูง 5.3 ม. เชื่อมต่อมายัง Lift Looby ที่มีลิฟต์โดยสารแบบล็อกชั้นให้ 2 ตัว ติดกันเป็นห้องนิติบุคคล ขยับไปที่ด้านหลังโครงการจะเป็นห้องเก็บของ และห้องพักคอย ใช้นั่งรอรถจาก Auto Parking ได้ และที่ด้านข้างโครงการ ทางทิศเหนือ จะมีสวนหย่อม และ Pet Park ให้พาสัตว์เลี้ยงลงมาเดินเล่นได้ อีกทั้งยังมี Delivery Parking ให้ Raider จอดส่งอาหารแยกมาให้ด้วยค่ะ
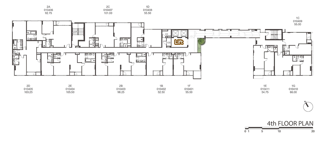
แปลนอาคารชั้น 2 เป็นชั้นเริ่มต้นของห้องพักอาศัย โดยโซนหน้าจะเชื่อมมาจากชั้น 1 มีประตู Key Card กั้นให้อีก 1 ชั้น เพื่อความปลอดภัย ส่วนห้องพักจะอยู่ทางด้านหลัง วางผังหันทิศเหนือและทิศใต้ มีห้องพักทั้งหมด 8 ยูนิต และที่ชั้น 2 ชั้น / 4 / 6 / 8 จะมีการสอดแทรก Pocket Garden เอาไว้ให้ด้วยค่ะ
แปลนอาคารชั้น 3 โซนหลังจะเป็น Typical Floor มีทั้งหมด 8 ยูนิต และโซนหน้าจะมีห้องพักเพียง 2 ยูนิต ได้ความเป็นส่วนตัวดีมาก ๆ ค่ะ
แปลนอาคารชั้น 4 วางผังโซนหลังมาเหมือนกันกับชั้น 2-3 แต่โซนหน้าจะเพิ่มจำนวนห้องมาเป็น 3 ยูนิต
แปลนอาคารชั้น 5 วางผังโซนหลังมาเหมือนกันกับชั้น 2-3-4 แต่โซนหน้าจะมีเพียง 1 ยูนิต เป็นห้อง Penthouse ขนาด 188.75 ตร.ม. ซึ่งมีความ Private ไม่เหมือนอยู่คอนโด Low-Rise เลยค่ะ
แปลนอาคารชั้น 6 วางผังห้องทุกจุดมาเหมือนกันกับแปลนชั้น 4
แปลนอาคารชั้น 7 วางผังโซนหลังมาเหมือนกันกับชั้นอื่น ๆ แต่โซนหน้าจะถูกเปลี่ยนมาเป็นห้องงานระบบของพื้นที่ส่วนกลางต่าง ๆ บนชั้น 8
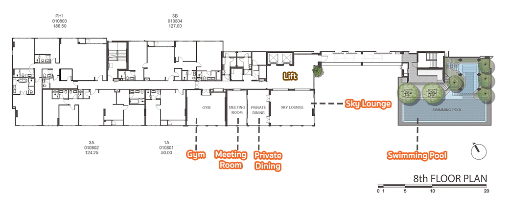
แปลนอาคารชั้น 8 จะมีความเป็นส่วนตัวสูงสุด และสามารถออกมาใช้งานส่วนกลางได้สะดวกมาก ๆ โดยห้องพักจะมีเพียง 4 ยูนิต และเป็นชั้นที่มีห้อง Penthouse ตั้งอยู่ที่มุมด้านใน ส่วน Main Facilities จะอยู่ที่ชั้น 8 ทางฝั่งทิศใต้ จะเป็น Gym, Meeting Room, Private Dining และ Sky Lounge ทั้ง 3 ห้องนี้จะมีประตูให้เปิดเชื่อมต่อถึงกันได้
ส่วนโซนหน้าจะเป็นสระว่ายน้ำแบบ Lap Pool ความยาว 15.60 ม. กว้าง 4.30 ม. มี Jacuzzi ให้แช่ตัวที่ด้านข้าง มี Pool Terrace ให้ที่ด้านข้าง และบันไดให้เดินขึ้นไปยัง Rooftop Terrace ที่ด้านบนได้ด้วยค่ะ
แปลนชั้นดาดฟ้า จะเป็น Rooftop Garden ที่เชื่อมต่อมาจากชั้น 8 ผ่านบันไดได้ค่ะ
ภาพและบรรยากาศจำลองสระว่ายน้ำบนชั้น 8 ได้เป็นสระ Lap Pool แบบน้ำล้น ความยาว 15.60 ม. กว้าง 4.3 ม. สามารถว่ายออกกำลังกายได้อย่างเต็มที่ มี Jacuzzi แบบในร่ม ให้ออกมานั่งแช่ผ่อนคลายได้ และที่ริมสระ จะเป็น Pool Terrace ไว้นั่งเล่น นั่งชมวิว โดยจะมีบันไดที่ด้านข้างให้เดินขึ้นไปยัง Rooftop Terrace ที่เป็นมุมพักผ่อนอีกจุดได้อีกทีค่ะ
ภาพและบรรยากาศจำลองภายใน Sky Lounge , Private Dining และ Meeting Room บนชั้น 8 ที่สามารถเปิดเชื่อมต่อกันได้ ภายในตกแต่งด้วยหิน Travertine และหิน Azul ผสมผสานกับงานศิลปะ และเฟอร์นิเจอร์นำเข้า บรรยากาศดูหรูหรา ผ่อนคลาย รองรับการจัดปาร์ตี้สังสรรค์ นั่งเล่นพักผ่อน หรือใช้เป็นพื้นที่นั่งทำงาน ประชุมงาน Online ได้เลยค่ะ
ภาพและบรรยากาศจำลองภายใน Gym บนชั้น 8 ออกแบบมาในสไตล์โมเดิร์น ใช้โทนสีและแสงไฟที่ดูอบอุ่น มีเครื่องออกกำลังกายที่ทันสมัยให้ครบครัน พร้อมช่องแสงกระจกขนาดใหญ่ให้มองวิวขณะออกกำลังกายได้เพลิน ๆ
UNIT TYPE
โครงการ Via 61 มีห้องพักให้เลือกหลายแบบ ได้แก่
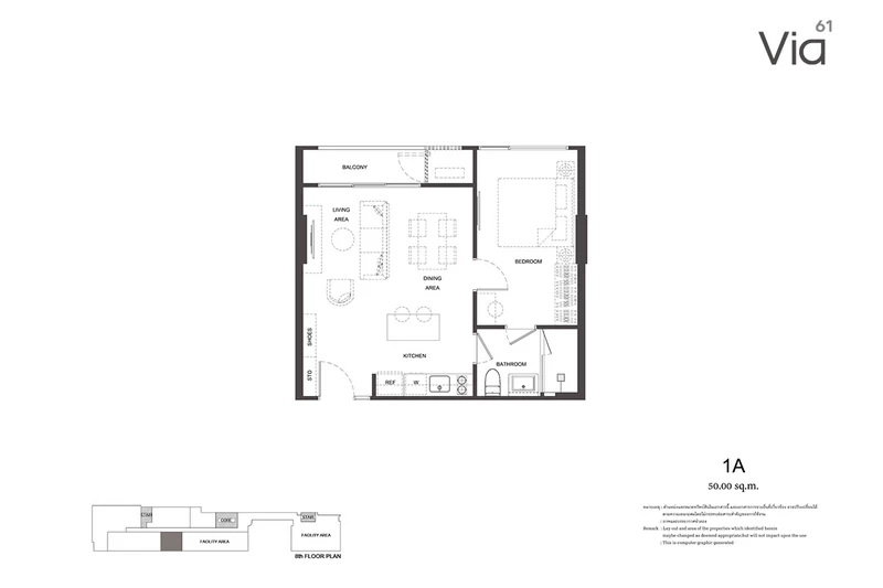
แปลนห้องพัก 1 Bedroom : Type 1A พื้นที่ใช้สอย 50.00 ตร.ม.
แปลนห้องพัก 1 Bedroom : Type 1B พื้นที่ใช้สอย 52.50 ตร.ม.
แปลนห้องพัก 1 Bedroom : Type 1C พื้นที่ใช้สอย 55.00 ตร.ม.
แปลนห้องพัก 1 Bedroom : Type 1D พื้นที่ใช้สอย 55.50 ตร.ม.
แปลนห้องพัก 1 Bedroom Plus : Type 1E พื้นที่ใช้สอย 54.75 ตร.ม.
แปลนห้องพัก 1 Bedroom Plus : Type 1F พื้นที่ใช้สอย 55.50 ตร.ม.
แปลนห้องพัก 1 Bedroom Plus : Type 1G พื้นที่ใช้สอย 66.00 ตร.ม.
แปลนห้องพัก 2 Bedroom : Type 2A พื้นที่ใช้สอย 92.75 ตร.ม.
แปลนห้องพัก 2 Bedroom Extra : Type 2B พื้นที่ใช้สอย 98.25 ตร.ม.
แปลนห้องพัก 2 Bedroom Extra : Type 2C พื้นที่ใช้สอย 101.00 ตร.ม.
แปลนห้องพัก 2 Bedroom Extra : Type 2D พื้นที่ใช้สอย 103.25 ตร.ม.
แปลนห้องพัก 2 Bedroom Extra : Type 2E พื้นที่ใช้สอย 105.50 ตร.ม.
แปลนห้องพัก 2 Bedroom Extra : Type 2F พื้นที่ใช้สอย 126.00 ตร.ม.
แปลนห้องพัก 3 Bedroom : Type 3A พื้นที่ใช้สอย 124.25 ตร.ม.
แปลนห้องพัก 3 Bedroom : Type 3B พื้นที่ใช้สอย 127.00 ตร.ม.
แปลนห้องพัก Penthouse : Type PH1 พื้นที่ใช้สอย 186.50 ตร.ม.
แปลนห้องพัก Penthouse : Type PH2 พื้นที่ใช้สอย 188.75 ตร.ม.
โครงการ Via 61 ลักซ์ชัวรี่คอนโดมิเนียมใหม่ ระดับมาสเตอร์พีซ ในรูปแบบ ‘Pet Allowed’ ชู Highlight / Penthouse เพียง 2 ยูนิต บนแลนด์มาร์กใหม่ สุดไพรเวทในซอยสุขุมวิท 61 ส่วนตัวเพียง 61 ยูนิต ในราคาเริ่มต้น 10.9 ล้านบาท*
ผ่าน EIA แล้ว พร้อมดำเนินการก่อสร้างแล้ว และคาดว่าจะแล้วเสร็จภายในปี 2569 จัดเต็ม Facilities บนชั้นดาดฟ้ารองรับไลฟ์สไตล์เหนือระดับ และที่จอดรถมากถึง 108%
ออกแบบภายใต้แนวคิด Unveil your Living Serenity ขึ้นแท่น Hidden Gem ระดับไอคอนิก สัมผัสความเงียบสงบบนทำเลสุดไพรเวท สะท้อนอันดับ 1 ผู้พัฒนาอสังหาฯ ระดับลักซ์ชัวรี่ และซูเปอร์ลักซ์ชัวรี่ของประเทศ
ตอบโจทย์ลูกค้าชาวไทยและชาวต่างชาติ ทั้งเพื่ออยู่อาศัยเองและเพื่อการลงทุน ด้วย Rental Yield ระดับ 5-6% ต่อปี รายล้อมด้วยแหล่งไลฟ์สไตล์ระดับเวิลด์คลาส ตอบรับกรุงเทพฯ มหานครแห่งเอเชีย
***ข้อมูลราคา และโปรโมชันอาจมีการเปลี่ยนแปลง โปรดติดต่อสำนักงานขายเพื่อสอบถามรายละเอียดเพิ่มเติม***
สอบถามรายละเอียดเพิ่มเติมได้ที่
Tel : 1685
Website : https://siri.ly/LUnNqP7
หากเพื่อน ๆ เห็นว่ารีวิวนี้มีประโยชน์ ช่วยกด Like เพื่อเป็นกำลังใจให้ทีมงาน ขอบคุณค่ะ
และมีความคิดเห็นหรือข้อมูลเพิ่มเติมเกี่ยวกับตัวโครงการ สามารถ Comment ได้ที่ด้านล่างของรีวิวค่ะ
คอนโด ทำเลอื่นๆ ที่น่าสนใจ…
รีวิว Porsche Design Tower Bangkok เริ่ม 525-1,400 ล้าน*
รีวิว RHYTHM เอกมัย เอสเตท เริ่ม 6.19 ล้าน*
รีวิว SUPALAI BLU สาทร-ราชพฤกษ์ เริ่ม 1.89 ล้าน*
รีวิว HyCondo Iconic Chiangmai เริ่ม 1.99 ล้าน
รีวิว Skypark Lucean Jomtien Pattaya เริ่ม 3.9 ล้าน*
รีวิว ASHER KOOP รัชดา เริ่ม 1.99 ล้าน*
รีวิว Niche Pride เอกมัย เริ่ม 4.99 ล้าน*
รีวิว THE RESIDENCES 38 เริ่ม 20.4-243 ล้าน*
รีวิว Life พระราม 4-อโศก เริ่ม 4.49 ล้าน*
รีวิว Sapphire Luxurious Condominium Rama 3 เริ่ม 2.99 ล้าน*
รีวิว The Address สยาม-ราชเทวี เริ่ม 8.59 ล้าน*
แสดงความคิดเห็น เกี่ยวกับ " รีวิว Via 61 | Luxuruy Condo ในรูปแบบ ‘Pet Allowed’ จาก Sansiri บนแลนด์มาร์กใหม่ ในซอยสุขุมวิท 61 เป็นส่วนตัว เพียง 61 ยูนิต เริ่ม 10.9 ล้าน* "