
รีวิว มาย คอนโด สาทร-ตากสิน / MY CONDO SATHORN-TAKSIN
สวัสดีค่าผู้อ่าน Condonayoo ทุกคนค่ะ วันนี้เราจะขอพาไปชมโครงการ My Condo สาทร-ตากสิน จาก พลัส พร็อพเพอร์ตี้ เป็นคอนโดสไตล์โมเดิร์น บนทำเล ถนนกรุงธนบุรี ภายใน ซ.กรุงธนบุรี 1 ที่มีสิ่งอำนวยความสะดวกครบครัน ใกล้ BTS วงเวียนใหญ่ ในระยะเดินเพียง 130 เมตรเท่านั้นค่ะ
มายคอนโด สาทร-ตากสิน เป็นคอนโด Low Rise สูง 8 ชั้น จำนวน 238 ยูนิต พื้นที่โครงการขนาด 2-2-35 ตร.วา มีห้องให้เลือก 3 แบบด้วยกันค่ะ นั่นก็คือ ห้อง Studio ขนาด 24 ตร.ม., 1 Bedroom ขนาด 34 ตร.ม. และ 2 Bedrooms ขนาด 53 ตร.ม. ปัจจุบันเป็นโครงการสร้างเสร็จพร้อมอยู่ ตั้งแต่ปี 2551 ค่ะ และขายหมดเป็นที่เรียบร้อยแล้ว รูปแบบการขายของโครงการในปัจจุบันจะเป็นแบบมือ 2
สิ่งอำนวยความสะดวก ประกอบด้วย ห้อง Fitness,สวนสาธารณะ, ห้องซักรีดส่วนกลาง, พื้นที่ร้านค้า ที่จอดรถประมาณ 100 คัน, ระบบ CCTV / Access Card พร้อมรปภ. 24 ชั่วโมง ราคา Resales ปัจจุบันเฉลี่ย 78,000 บาท/ตร.ม.
ส่วนรายละเอียดอื่นๆจะเป็นอย่างไร อ่านต่อด้านล่างได้เลยค่ะ
| ชื่อโครงการ | มาย คอนโด สาทร-ตากสิน / MY CONDO SATHORN-TAKSIN |
| เจ้าของโครงการ | พลัส พร็อพเพอร์ตี้ |
| ลักษณะห้องและขนาดห้อง |
|
| เนื้อที่ทั้งหมด | 2 ไร่ 2 งาน 35 ตร.ว. |
| จำนวนตึก | 2 อาคาร |
| จำนวนชั้น | 8 ชั้น |
| จำนวนห้อง | 238 ยูนิต |
| ที่จอดรถทั้งหมด | ประมาณ 50% ของยูนิตทั้งหมด |
| โซน | คลองสาน, วงเวียนใหญ่ |
| ขนส่งสาธารณะ | รถไฟฟ้า BTS สถานีวงเวียนใหญ่ (100 ม.) |
| รถโดยสารที่ผ่าน | n/a |
| ที่ตั้ง | ซอยกรุงธนบุรี 1 (ซอยสารภี) เขตคลองสาน กรุงเทพฯ |
| กำหนดการ | n/a |
| ปีที่สร้างเสร็จ | พ.ศ. 2551 |
| ราคา | เริ่มต้น 1,200,000 บาท |
| ราคาเฉลี่ยต่อ ตร.ม | เริ่มต้น 52,000 บาท/ตร.ม. |
| สถานที่สำคัญใกล้เคียง |
|
| สิ่งอำนวยความสะดวก | – Fitness – ห้องซักรีดส่วนกลาง – กล้องวงจรปิด – เจ้าหน้าที่รักษาความปลอดภัย 24 ชม. |
| จุดเด่นของโครงการ | – ใกล้รถไฟฟ้า BTS มาก ห่างเพียง 100 เมตร – แปลนห้องเป็นคอนโดหน้ากว้าง ได้พื้นที่สัมผัสภายนอกมาก ทุกห้องมีหน้าต่าง ได้วิว ไม่อึดอัด – ให้เฟอร์นิเจอร์Built-Inทุกชิ้นตามห้องตัวอย่าง โต๊ะกินข้าว ตู้หนังสือ ตู้เก็บของ ตู้รองเท้า ชั้นติดผนัง ตู้เสื้อผ้าบานเลื่อน ชุดครัว แอร์18000BTU ให้ตามจำนวนห้อง One Bedroom แถมสองตัว Studioแถมตัวเดียว – ให้เฟอร์นิเจอร์ลอยตัวทุกชิ้น เตียง โซฟา เก้าอี้ ฟูกที่นอน หมอน ผ้าปู – เพดานสูง 2.6 เมตร ระยะพื้นถึงพื้น 2.80 เมตร – ใกล้ร้านปูกุ้งอบวุ้นเส้นชื่อดัง สมศักดิ์ปูอบ |
:::: ที่ตั้งโครงการ ::::
ซอยกรุงธนบุรี 1 (ซอยสารภี) เขตคลองสาน กรุงเทพฯ
พิกัด GOOGLE MAP : 13.722598, 100.495624
ที่ตั้งของโครงการ My Condo สาทร-ตากสิน ตั้งอยู่บนใน ซอยกรุงธนบุรี 1 เข้าซอยประมาณ 130 ม. จัดเป็นทำเลฝั่งธนฯ ที่อยู่ไม่ไกลจากย่านธุรกิจอย่างสาทร สีลม เพียงแค่ข้ามแม่น้ำเจ้าพระยามาเท่านั้นค่ะ แต่เดิมทำเลนี้เคยเป็นแหล่งที่อยู่อาศัยดั้งเดิมที่อยู่ติดแม่น้ำ ปัจจุบันจะเห็นมีทั้งบ้านพักอาศัย และคอนโดผุดขึ้นกันอย่างต่อเนื่องมากขึ้น สืบเนื่องมาจากฝั่งสาทร-สีลมเริ่มหาที่ดินผืนใหญ่ๆ ได้ยากมากขึ้นและราคาก็แพงเกินจับต้องไหว จึงมีการขยับขยายจากศูนย์กลางธุรกิจอย่างสาทร-สีลมมาทางฝั่งธนฯ เรื่อยๆ ซึ่งย่านนี้ถือว่าอยู่ไม่ไกลจากสาทร เดินทางได้สะดวกด้วยรถยนต์และรถไฟฟ้าสายหลักไม่กี่สถานีเท่านั้น เมื่อเป็นเช่นนั้นราคาคอนโดมิเนียมแถบนี้ซึ่งเคยราคาต่อตารางเมตร ยังอยู่ในช่วงหลักหมื่นได้นั้น ปัจจุบันก็ได้เหยียบถึงหลักแสนก็แล้ว
การเดินทางด้วยรถยนต์ ตัวโครงการแม้จะอยู่ในซอย แต่ก็อยู่ใน ซอยกรุงธนบุรี 1 ซึ่งเป็นซอยหลักที่ภายในซอยสามารถไปลัดออกถนนเจริญรัถได้ด้วย รวมไปถึงยังอยู่ไม่ไกลจากถนนใหญ่อย่างกรุงธนบุรี อยู่ลึกไปเพียง 130 ม. เท่านั้น จัดว่ามีความสะดวกเทียบเท่ากับอยู่ติดถนนใหญ่ และได้ความสะดวกเพิ่มตรงที่สามารถวิ่งตรงไปออกถนนเจริญรัถด้านหลังได้ด้วยค่ะ
ความอุดมสมบูรณ์ สำหรับความอุดมสมบูรณ์ในเรื่องอาหารการกินในฝั่งโครงการและในซอยจัดว่ามีความอุดมสมบูรณ์พอตัว หาของกินง่าย ในราคาบ้านๆ ไม่แพง ในระยะเดินเพียบ 100 เมตรจากหน้าโครงการมีร้านสะดวกซื้อถึง 3 ร้านด้วยกันเลยค่ะ ไม่ว่าจะเป็น 7-11 , Lotus Express, Tops Daily นอกจากนี้ยังอยู่ไม่ไกลจากอาคารสำนักงานใหญ่ ซึ่งช่วงกลางวันบริเวณแถบอาคารสำนักงานจะคึกคักมาก มีของกินเยอะ ไปฝากท้องกันได้อีกเช่นกัน
ส่วนสำหรับผู้ที่ชื่นชอบช้อปปิ้ง ห้างสรรพสินค้าที่ใกล้ที่สุดก็คือ Platform วงเวียนใหญ่ ซึ่งก็อยู่ในระยะเดินนะคะ สามารถเดินไปชิวๆได้เพียง 450 เมตรจากหน้าโครงการ ทะลุ ถ.ลาดหญ้า ตำแหน่งหน้าห้างพอดีเลยค่ะ รวมถึงระหว่างทางก็ผ่าน ตลาดเจริญรัถ และตลาดวงเวียนใหญ่ ในระยะเดินเพียง 350 เมตรเท่านั้นด้วยค่ะ
ส่วนห้างสรรพสินค้าอื่นๆก็มี Sena Fest เดอะมอลล์ท่าพระ เอเชียทีคริเวอร์ฟร้อนท์ และ Central พระราม 3 ค่ะ มีอนาคตจะมีโครงการ ICON SIAM ตั้งอยู่ที่ถนนเจริญนคร บริเวณก่อนถึงแยกคลองสาน ซึ่งเป็นโครงการห้างสรรพสินค้าขนาดใหญ่ ในเครือสยามพิวรรธน์ หรือสยามพารากอนที่เรารู้จักกันนั่นเอง โดยรถไฟฟ้าสายสีทอง ที่เกิดขึ้นมาได้นั้นก็อานิสงส์มาจากโครงการไอคอนสยามนี้เอง
ส่วนถ้าจะเข้าเมือง เนื่องจากถนนหน้าโครงการเป็นถนน One Way จึงต้องวิ่งตามซอยกรุงธนบุรี 1 ไปออกทางถนนเจริญรัถก่อน แล้วค่อยเลี้ยวกลับเข้ามาถนนสมเด็จพระเจ้าตากสิน เพื่อเข้าถนนกรุงธนบุรีอีกรอบ โดยมีระยะทางจากโครงการไปถึงสะพานตากสินอยู่ที่ประมาณ 3.3 กม. ก็จัดว่าไกลพอสมควร ผนวกกับรถติดด้วย แต่จริงๆ แล้วยังพอมีเส้นทางลัดเลี่ยงการวนรถไกลอยู่คือไปลัดออก ซอยเจริญนคร 14 สามารถออกตรงเชิงสะพานตากสินได้เลย
จุดขึ้นทางด่วน
จุดขึ้นทางพิเศษศรีรัชไปยังแจ้งวัฒนะ หรือพระรามเก้า สามารถวิ่งข้ามสะพานตากสิน เลี้ยวซ้ายออกสู่ถนนจรูญเวียง และไปตามป้ายทางขึ้นทางพิเศษศรีรัชได้เลยค่ะ ส่วนหากจะวิ่งไปบางนานั้นไม่จำเป็นต้องใช้ทางพิเศษศรีรัชก็ได้นะคะ สามารถวิ่งตรงไปออกสู่ถนนพระราม 4 และใช้ทางขึ้นทางพิเศษเฉลิมมหานครด้านขวามือ จะประหยัดค่าเดินทางและระยะทางใกล้กว่าด้วย
การเดินทางด้วยรถสาธารณะ และรถไฟฟ้า
สำหรับการเดินทางด้วยรถสาธารณะนั้นถือเป็นอีกหนึ่งจุดเด่นของโครงการ เนื่องจากโครงการอยู่ห่างจากทางขึ้นรถไฟฟ้า BTS สถานีวงเวียนใหญ่เพียง 150 เมตร เท่านั้น ซึ่งบันไดขึ้น-ลง BTS ก็ตั้งอยู่บริเวณหน้าปากซอยโครงการเลย ไม่ต้องเดินไกล รวมไปถึงวินมอเตอร์ไซค์ และป้ายรถเมล์อีกด้วย เรียกได้ว่ามีรถสาธารณะให้เลือกมากมาย ครบครันมาก ไม่จำเป็นต้องพึ่งพารถยนต์ส่วนตัว
:::: การเดินทางสู่โครงการ ::::
วันนี้ทีมงาน Condonayoo มีภาพการเดินทางโดยรถยนต์ส่วนตัวมาให้ชมกันค่ะ เส้นทางการเดินทางตาม ลูกศรแดง โดยเริ่มเดินทางจาก
ทางพิเศษศรีรัช > ถนนสาทรใต้ > สะพานสมเด็จพระเจ้าตากสิน > ถนนกรุงธนบุรี > ซ.กรุงธนบุรี 1 > My Condo สาทร-ตากสิน

สรุปแยก และ ถนนสำคัญรอบโครงการ
สรุปสถานที่สำคัญรอบๆโครงการ
**ระยะทางวัดจากการเดินทางจากรถยนต์ สู่จุดหมาย โดยถนนที่ใกล้ที่สุด**
:::: สภาพแวดล้อมรอบโครงการ ::::
ตัวโครงการอยู่ลึกจากปากซอยกรุงธนบุรี 1 ประมาณ 130 เมตรค่ะ สภาพแวดล้อมโครงการจัดอยู่ในละแวกค่อนข้างคึกคัก โดยรอบสถานีวงเวียนใหญ่ มีทั้งชุมชนที่อาศัยอยู่ดั้งเดิม รวมกับคอนโดมิเนียมทั้งแบบ Low Rise และ High Rise อีกหลายโครงการทีเดียว รวมไปถึงอาคารสำนักงานขนาดใหญ่ จึงได้บรรยากาศที่ค่อนข้างคึกคัก ไม่เปลี่ยว ตัวโครงการแม้ด้านนึงจะอยู่ติดกับ Ideo Blucove สาทร และ Hive ตากสิน แต่ก็มีการออกแบบเว้นระยะอาคารให้ห่างจากคอนโดทั้ง 2 มากขึ้นเพื่อไม่ให้อยู่ในระยะประชิดจนเกินไป ถึงขั้นขาดความเป็นส่วนตัว
เริ่มต้นเส้นทางกันที่สถานี BTS วงเวียนใหญ่นะคะ
โดยเราจะออกบริเวณทางออก 3
ทางออก 3 จะเป็นทางเดินยาวๆ มีขาขึ้น-ลงอยู่ที่หน้าปากซอยกรุงธนบุรี 1 ซึ่งเป็นซอยโครงการเลยค่ะ
ในฝั่งนี้จะมีลิฟต์สำหรับผู้พิการด้วยนะคะ ค่อนข้างสะดวกสำหรับผู้สูงอายุหรือผู้พิการ
ลงมาก็มีทางลาดให้ลงไปยังฟุตบาทได้ง่าย
บริเวณฟุตบาทกว้างเดินได้ง่าย รอบๆ มีร้านค้า และบริษัทต่างๆ ซึ่งทำให้ทางเดินนี้ไม่เปลี่ยวมากนัก
บรรยากาศทางเดินค่อนข้างร่มรื่น เพราะได้อานิสงค์มาจากต้นไม้ริมฟุตบาทที่โตแล้วเป็นร่มเงาได้อย่างดี
หันกลับมาทางซอยกรุงธนบุรี 1 กันนะคะ บริเวณนี้จะเป็นหน้าปากซอยกรุงธนบุรี 1 หรือหน้าปากซอยโครงการค่ะ
ปากซอยมีพี่วินมอเตอร์ไซค์คอยให้บริการรับ-ส่งด้วยนะคะ สำหรับใครขี้เกียจเดินเข้าโครงการ (จริงๆ แล้วระยะทางจากหน้าปากซอยไม่ลึกมากนะคะ ถือว่ายังอยู่ในระยะเดินได้ง่าย) และมีป้ายวัดทองเพลง ตั้งอยู่
อัตราค่าตัวพี่วินมอเตอร์ไซค์ กรุงธนบุรี 1
บรรยากาศภายในซอยกรุงธนบุรี 1 ช่วงต้นซอยค่อนข้างคึกคักทีเดียวเต็มไปด้วยร้านรถเข็นต่างๆ ตลอดทางค่ะ
ตรงมาประมาณ 50 ม. ก็จะเจอโครงการเพื่อนบ้านอย่าง Ideo Blucove สาทร
ตลอดริมถนนช่วงต้นซอยนี้มีร้านอาหาร ร้านขายของชำ และร้านค้าต่างๆ ใต้ตึกแถวเต็มไปหมดเลยค่ะ ใครที่ขี้เกียจทำกับข้าวเองที่ห้องก็มาฝากท้องกันได้
บริเวณนี้มีทั้งขายของชำ ขายหนัง และร้านซักรีด เรยกว่าครบครันทีเดียว
เดี๋ยวเราตรงเข้าไปภายในซอยอีกหน่อย
ตรงมาหน่อยเจอ 7-11 ในซอยนี้ด้วยนะคะ เป็นแหล่งพึ่งพิงใกล้ๆ ไม่ต้องไปไกลก็หาซื้อของใช้ ของกินได้ตลอด 24 ชม.
ฝั่งตรงข้าม 7-11 ก็มีแผงผลไม้ขายด้วยนะ
มีร้านไส้กรอกอีสาน
ร้านหมูปิ้ง และร้านผลไม้ต่างๆ ครบครันมากๆ

ตรงมาอีกไม่ไกลก็เจอโครงการ My Condo สาทร-ตากสิน แล้วค่ะ
สำหรับตรงข้ามของโครงการเป็นร้านค้าขายผ้าส่ง และร้านขายยาจีน

และมีร้านขายอุปกรณ์ต่างๆ ด้วยนะคะ
ด้านข้างโครงการมีซอยชุมชนสองร้อยห้อง หรือ ซ.เจริญนคร14 แยก 25 นั่นเองค่ะ สามารถเป็นทางลัดขับรถออกไปที่ ถ.เจริญนครได้ ส่วนความกว้างถนนค่อนข้างแคบสำหรับเดินรถ 2 ทางนะคะ หากต้องการวิ่งไปเจริญนคร แนะนำให้ใช้ ซ.ราษฏร์ร่วมเจริญ, ถ.เจริญรัถ หรือถนนเส้นหลักกรุงธนบุรี จะขับสะดวกสบายกว่ามาก
มองย้อนกลับไปปากซอยที่เราเดินเข้ามาอีกรอบ
มาที่ทางเข้าโครงการกันต่อนะคะ บริเวณด้านหน้าโครงการจะมีป้อมยามอยู่ 1 จุดด้านข้าง ส่วนประตูทางเข้าจะเป็นบานพับที่เปิดไว้ให้เข้า-ออกได้ง่าย
ใต้อาคาร มีทำเป็นร้านค้า ซึ่งมีร้านค้า 1 ยูนิตเช่าอยู่
โดยจะเป็นร้านขายรองเท้าแฟชั่นผู้หญิง
หน้าตาอาคารชัดๆ เป็นอาคารสูง 8 ชั้น ตกแต่งสีอาคารด้วยสีสดใส
พาเดินดูสภาพแวดล้อมถัดจากโครงการเราไปในซอยอีกสักหน่อย ก็เป็นอาคารห้องแถวเช่นกัน
เยื้องโครงการเราเป็นซอยศักดิ์สินค่ะ ส่วนบรรยากาศบริเวณตอนกลางของซอยจะเงียบสงบกว่าช่วงต้นหน่อยนะคะ
ภายในซอยศักดิ์สิน
เดี๋ยวเราจะพาเดินไปดูช่วงภายในซอยลึกอีกหน่อยนะคะ
เดินตรงไปอีกหน่อย ก็จะเจอ Tesco Lotus Express ที่กำลังสร้างอยู่ค่ะ

ส่วนฝั่งตรงข้าม เยื้อง Lotus Express เป็น Tops Daily เช่นกันค่ะ ภายในซอยในระยะ 100 เมตรจากหน้าโครงการ มีร้านสะดวกซื้อถึง 3 ร้านด้วยกันเลยค่ะ
เมื่อเดินตามทางมาเรื่อยๆ เราจะมาหยุดเส้นทางกันที่บริเวณตรอกทองใบนะคะ ภายในซอยนี้จะเป็นชุมชนตรอกทองใบอยู่กันมาตั้งแต่ดั้งเดิม
:::: ตัวโครงการ ::::


โครงการ My Condo สาทร-ตากสิน เป็นคอนโด Low Rise สูง 8 ชั้น 2 อาคารค่ะ มีห้องพักทั้งหมด 238 ยูนิต พื้นที่โครงการขนาด 2-2-35 ตร.วา โดยชั้นล่างทั้งหมดเป็นที่จอดรถใต้อาคารค่ะ โดยอาคารด้านซ้ายมือ คืออาคาร A ส่วนขวามือ ติดกับหน้าโครงการ คืออาคาร B ค่ะ ซึ่งเป็นที่ตั้งของยูนิตร้านค้า สีเหลืองด้านหน้าเช่นกัน
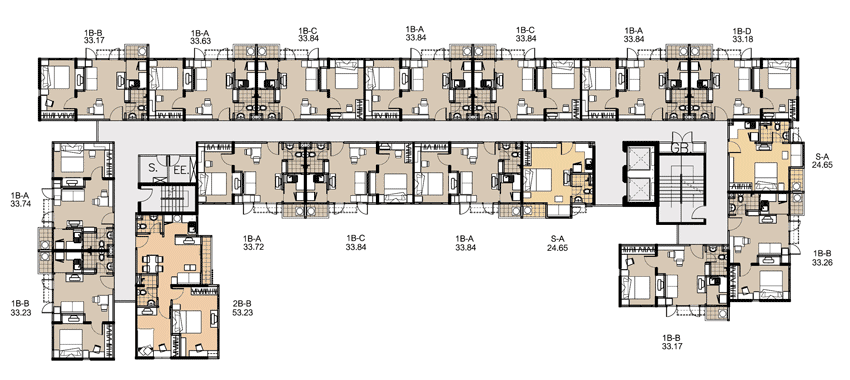
Tower A Floor Plan
Tower B Floor Plan
ชั้น 2-8 ขึ้นไปจะเป็นยูนิตพักอาศัย ซึ่งเป็น Typical Floor Plan ยูนิตสีส้มอ่อน คือห้อง Studio ขนาด 24 ตร.ม สีน้ำตาล คือห้อง 1 Bedroom ขนาด 34 ตร.ม. ส่วนสีส้มเข้ม คือห้องแบบ 2 Bedrooms ขนาด 53 ตร.ม. ค่ะ
:::: ราคา (ก.ย.2560) ::::
เนื่องจากโครงการนี้ ได้ SOLD OUT หมดนานแล้ว ดังนั้นห้องที่ปล่อยขายหลังจากนี้จึงจะเป็นลักษณะ Resales หรือปล่อยเช่าค่ะ ซึ่งราคาก็แล้วแต่สภาพภายในของห้อง การตกแต่งของเจ้าของห้องหรือผู้เช่าเดิม หากผู้สนใจสามารถติดต่อเอเจนซี่ หรือเจ้าของห้อง เพื่อตกลงราคาซื้อขายกันต่อไปได้ค่ะ ซึ่งราคาที่เรานำเสนอด้านล่างนั้น เป็นเพียงการเก็บข้อมูล ของผู้เขียนเท่านั้นนะคะ
1 Bedroom 34.38 ตร.ม. ราคาขายโดยประมาณปัจจุบัน (2560) 2.65 ล้านบาท
:::: สอบถามรายละเอียดเพิ่มเติมได้ที่ ::::
Tel : 02 688-7555
Website : http://www.mycondo.in.th/index_st.htm
หากท่านเห็นว่ารีวิวนี้มีประโยชน์ โปรดกด Like เพื่อเป็นกำลังใจให้ทีมงาน ขอบคุณค่ะ
หากท่านมีความคิดเห็นหรือข้อมูลเพิ่มเติมเกี่ยวกับตัวโครงการ สามารถ Comment ได้ที่ด้านล่างของรีวิวค่ะ
แสดงความคิดเห็น เกี่ยวกับ " รีวิว MY CONDO สาทร-ตากสิน ใกล้รถไฟฟ้า BTS วงเวียนใหญ่ "