
EP.009 รีวิว คอนโด ทีล สาทร-ตากสิน TEAL SATHORN-TAKSIN
สวัสดีค่ะ ผู้อ่าน Condonayoo ทุกคน วันนี้เราจะขอพาไปชมโครงการ TEAL สาทร-ตากสิน จาก แสนสิริ เป็นคอนโดสไตล์ Modern บนทำเลฝั่งธนฯ ตั้งอยู่บนกรุงธนบุรี ใกล้รถไฟฟ้าสถานีวงเวียนใหญ่
ทีล สาทร-ตากสิน เป็นคอนโด High Rise สูง 27 ชั้น จำนวน 409 ยูนิต พื้นที่โครงการขนาด 2-2-15 ไร่ มีห้องให้เลือกกี่ทั้งหมด 3 แบบด้วยกันคือ 1 Bedroom, 2 Bedroom+Duplex, 3 Bedrooms พื้นที่ใช้สอยเริ่มต้นตั้งแต่ 30.50-110 ตร.ม. ค่ะ ปัจจุบัน สร้างเสร็จพร้อมอยู่ ตั้งแต่ปี 2551 ค่ะ และขายหมดเป็นที่เรียบร้อยแล้ว รูปแบบการขายของโครงการในปัจจุบันจะเป็นแบบมือ 2
สิ่งอำนวยความสะดวกประกอบด้วย สวนสาธารณะ, สระว่ายน้ำระบบเกลือ, ห้องฟิตเนส, Lobby พักผ่อน, สวนลอยฟ้า, ลิฟท์โดยสาร 3 ตัว และ Fireman Lift 1 ตัว พร้อม Free Wifi, ระบบ CCTV / Access Card พร้อมรปภ. 24 ชั่วโมง ราคา Resales ปัจจุบันเฉลี่ย 128,200 บาท/ตร.ม.
ส่วนรายละเอียดอื่นๆจะเป็นอย่างไร อ่านต่อด้านล่างได้เลยค่ะ
| ชื่อโครงการ | ทีล สาทร – ตากสิน TEAL SATHORN – TAKSIN |
| เจ้าของโครงการ | แสนสิริ – SANSIRI |
| ลักษณะห้องและขนาดห้อง | 1 Bedroom 30.50-47 ตร.ม. 2 Bedrooms 58-72.50 ตร.ม. 3 Bedrooms 106.50-110 ตร.ม. |
| เนื้อที่ทั้งหมด | 2 ไร่ 2 งาน 15.00 ตร.ว. |
| จำนวนตึก | 1 อาคาร |
| จำนวนชั้น | 27 ชั้น |
| จำนวนห้อง | 409 ยูนิต |
| ที่จอดรถทั้งหมด | n/a |
| โซน | ธนบุรี |
| ขนส่งสาธารณะ | รถไฟฟ้า BTS วงเวียนใหญ่ 200 ม. |
| รถโดยสารที่ผ่าน | n/a |
| ที่ตั้ง | ถนนสมเด็จพระเจ้าตากสิน แขวงสำเหร่ เขตธนบุรีกรุงเทพมหานคร |
| กำหนดการ | n/a |
| ปีที่สร้างเสร็จ | พ.ศ. 2556 |
| ราคา | 2,690,000 – 9,700,000 บาท (ณ. วันที่ 17 ต.ค. 55) |
| ราคาเฉลี่ยต่อ ตร.ม | เริ่มต้น 88,200 บ./ตร.ม. |
| สถานที่สำคัญใกล้เคียง |
|
| สิ่งอำนวยความสะดวก | – สระว่ายน้ำ, ฟิตเนส – รปภ., กล้องวงจรปิดโครงการ, ประตู Key Card – สวนหย่อม, Wi-Fi Internet บริเวณ Lobby |
| จุดเด่นของโครงการ | ทีล สาทร ตากสิน หนึ่งในคอนโดมิเนียมคอลเลคชั่นล่าสุด จากแสนสิริ สร้างสมดุลให้ชีวิต ด้วยชีวิตใกล้ชิดธรรมชาติ พร้อมเฟอร์นิเจอร์ตกแต่งครบ |
:::: ที่ตั้งโครงการ ::::
ถนนสมเด็จพระเจ้าตากสิน แขวงสำเหร่ เขตธนบุรี กรุงเทพมหานคร
พิกัด GOOGLE MAP : 13.720217, 100.492718

โครงการ Teal สาทร-ตากสิน ตั้งอยู่บนถนนกรุงธนบุรี ภายในซอยสมเด็จพระเจ้าตากสิน 9/3 ลึกเข้าไป 35 เมตรเท่านั้นค่ะ ใกล้ BTS วงเวียนใหญ่สามารถใช้ทางออก 2 เดินมาได้เพียง 200 เมตรค่ะ จัดเป็นทำเลที่อยู่ถัดมาจากย่านธุรกิจ สาทร-สีลมไปเพียงข้ามแม่น้ำเจ้าพระยาเท่านั้น เดิมที่ทำเลนี้จัดเป็นแหล่งที่อยู่อาศัยเก่าแก่ของชุมชนที่อยู่ติดริมแม่น้ำ แต่ในปัจจุบันเมื่อโครงข่ายรถไฟฟ้าสายหลักอย่างสายสีเขียววิ่งผ่านก็ทำให้ย่านนี้มีการเปลี่ยนแปลงรูปแบบที่อยู่อาศัยจากที่เป็นชุมชนแนวราบ กลายมาเป็นชุมชนแนวสูงเกาะรางรถไฟฟ้าแทน
เนื่องจากเป็นทำเลที่เดินทางเข้าเมืองได้ง่าย ไม่กี่สถานีก็ถึงสาทร-สีลมที่เป็นย่านศูนย์กลางธุรกิจ และถัดไปอีกหน่อยก็ถัดสยาม แหล่งสถานศึกษาและแหล่งช็อปปิ้งใจกลางเมือง ทำให้กลุ่มคนที่ต้องการคอนโดใกล้รถไฟฟ้าเดินทางเข้าเมืองสะดวก รวมไปถึงคนในพื้นที่ที่ต้องการไลฟ์สไตล์ใหม่ เปลี่ยนจากบ้านมาอยู่คอนโด และเน้นเดินทางด้วยรถไฟฟ้า หันมาจับจองคอนโดมิเนียมในย่านนี้กันอย่างต่อเนื่อง จึงไม่น่าแปลกใจที่ราคาคอนโดมิเนียมในย่านนี้สูงขึ้นไปได้ถึง 100,000 กว่าบาทต่อตร.ม. เป็นที่เรียบร้อย
การเดินทางด้วยรถยนต์ จัดว่าสะดวกสำหรับคนที่เดินทางเข้าเมือง ข้ามสะพานตากสินก็มุ่งหน้าสู่ย่านสาทร-สีลมได้เลย แม้ตัวโครงการจะอยู่ฝั่งขาออกมุ่งหน้าไปทางถนนราชพฤกษ์ก็ตาม แต่ด้วยความที่ทางเข้า-ออกโครงการอยู่ไม่ไกลจากจุดกลับรถ และยังอยู่ในระยะที่กลับรถได้ จึงค่อนข้างสะดวกในการเดินทางเข้าเมืองเทียบเท่ากับโครงการที่อยู่ติดถนนฝั่งขาเข้าเมืองก็ว่าได้
จุดขึ้นทางด่วน
สำหรับใครที่ต้องการใช้ทางพิเศษศรีรัชมุ่งหน้าไปทางแจ้งวัฒนะ หรือพระราม 9 สามารถวิ่งข้ามสะพานตากสิน เลี้ยวซ้ายออกสู่ถนนจรูญเวียง และไปตามป้ายทางขึ้นทางพิเศษศรีรัชได้เลยค่ะ
ส่วนหากจะวิ่งไปบางนานั้นไม่จำเป็นต้องใช้ทางพิเศษศรีรัชก็ได้นะคะ สามารถวิ่งตรงไปออกสู่ถนนพระราม 4 และใช้ทางขึ้นทางพิเศษเฉลิมมหานครด้านขวามือ จะประหยัดค่าเดินทางและระยะทางใกล้กว่าด้วย
ส่วนใครที่เดินทางเข้าเมือง โดยการข้ามสะพานตากสินนั้นสะดวกและง่ายมาก เพราะออกจากโครงการก็เจอจุดกลับรถพอดี จากนั้นมุ่งหน้าไปทางสะพานตากสิน ข้ามสะพานแล้วก็ถึงย่านสาทร-สีลมแล้วค่ะ ใครทำงานแถบนี้ ตัวโครงการนี้ก็เป็นอีกตัวเลือกนึงที่น่าสนใจที่จะซื้ออยู่ เพราะการเดินทางที่สะดวก
สำหรับใครที่เดินทางไปบางนา หรือพระราม 2 ให้ขับตรงมุ่งหน้าข้ามสะพานตากสินมาจากนั้นกลับรถอีกทีที่แยกสาทรประมวญ แล้วชิดซ้ายขึ้นทางพิเศษศรีรัช ด่านสาทร จากนั้นตรงมาตามทาง ใครจะไปทางบางนาก็เลี้ยวซ้าย ใครไปพระราม 2 ก็เลี้ยวขวาเลยค่ะ
แต่จริงๆ มีอีกเส้นทางสำหรับคนที่ต้องการเดินทางไปทางบางนา เป็นเส้นทางที่ประหยัดทั้งค่าเดินทางและระยะทางด้วย โดยไม่จำเป็นต้องใช้ทางพิเศษศรีรัช โดยวิ่งตรงไปออกสู่ถนนพระราม 4 และใช้ทางขึ้นทางพิเศษเฉลิมมหานครด้านขวามือเท่านั้นค่ะ
การเดินทางด้วยรถสาธารณะ และรถไฟฟ้า
อีกจุดเด่นนึงของโครงการคือการเดินทางด้วยรถไฟฟ้า เพราะโครงการอยู่ใกล้ สถานีรถไฟฟ้าวงเวียนใหญ่ เดินประมาณ 200 เมตร ถ้ายึดแนวรถไฟฟ้า BTS จะวิ่งข้ามแม่น้ำ เข้าสาทร ผ่านช่องนนทรี เข้าสีลม มุ่งสู่สยาม ตอบโจทย์กลุ่มคนทำงานย่านสีลม-สาทร เพราะอยู่บนรถไฟฟ้าช่วงต้นๆ สาย วิ่งเข้าสาทรไม่กี่สถานี ไม่ต้องเปลี่ยนขบวน ส่วนการเดินทางด้วยระบบสาธารณะอื่นๆ ก็มีตัวเลือกอีกเยอะ ทั้ง Taxi รถเมล์ และวินมอเตอร์ไซค์ เนื่องจากตัวโครงการอยู่ไม่ไกลจากถนนกรุงธนบุรีมากนักจะเดินออกไปเรียกก็สะดวกและไม่เปลี่ยวด้วย
เนื่องจากโครงการอยู่ใจกลางเมือง เราจะพูดแต่รถไฟฟ้า BTS ก็คงไม่ได้ เพราะในอนาคตในย่านนี้รัศมีไม่เกิน 3 กิโลเมตร มีโครงข่ายรถไฟฟ้าตัดผ่านหลายสายเลยค่ะ โดยจะตัดบริเวณ รถไฟฟ้า BTS กรุงธนบุรี เชื่อมต่อกับ รถไฟฟ้าสายสีทอง ซึ่งสถานีกรุงธนบุรีนี้อยู่ห่างจากสถานีวงเวียนใหญ่ที่ใกล้กับโครงการมากที่สุดไปเพียง 1 สถานีเท่านั้น ทำให้มีความสะดวกสบายในการต่อรถ ไปยังรถไฟฟ้าสายอื่นๆที่เป็นโครงข่ายในอนาคต เช่น
ความอุดมสมบูรณ์ ในแง่ของความอุดมสมบูรณ์แม้จะไม่ได้คึกคักมากนัก เพราะไม่ได้อยู่ใกล้ตลาด หรือห้างสรรพสินค้าใหญ่ๆ แต่ยังจัดว่าไม่ได้แห้งแล้งเสียจนหาของกินไม่ได้ ด้วยความที่โครงการตั้งอยู่ในย่านที่อยู่อาศัยดั้งเดิม ดังนั้นเราก็ยังพอเห็นรถเข็นอาหาร ร้านอาหารใต้ตึกแถว และร้านอาหารริมถนนอยู่อย่างต่อเนื่อง และในอนาคตความอุดมสมบูรณ์ในละแวกนี้ก็ต้องมากขึ้นแน่นอนเพราะอย่างที่รู้ว่าแถบนี้มีคอนโดมิเนียมเยอะมาก จำนวนคนที่อยู่อาศัยก็มากตามไปด้วย เมื่อมี Demand ก็ย่อมมี Supply ผุดขึ้นเรื่อยๆ เพื่อรองรับคนในย่านนี้แน่นอนค่ะ แต่หากพูดถึงใจกลางความอุดมสมบูรณ์ในย่านนี้จริงๆ จะอยู่บริเวณถนนเจริญนครที่อยู่ติดกับแม่น้ำเจ้าพระยาซึ่งบริเวณนี้จะมีทั้งโรงแรมติดแม่น้ำ มี Community Mall และอนาคตที่สถานีกรุงธนบุรีที่เป็นจุด Interchange สำคัญตัดกับรถไฟฟ้าสายสีทองที่อนุมัติงบไปเรียบร้อย และบนถนนเส้นนี้ในอนาคตก็จะมี Icon Siam ซึ่งเป็นโครงการห้างสรรพสินค้าขนาดใหญ่ ในเครือสยามพิวรรธน์มาเปิดด้วย
:::: การเดินทางสู่โครงการ ::::
วันนี้ทีมงาน Condonayoo มีภาพการเดินทางโดยรถยนต์ส่วนตัวมาให้ชมกันค่ะ เส้นทางการเดินทางตาม ลูกศรแดง โดยเริ่มเดินทางจาก
ทางพิเศษศรีรัช > ถนนสาทรใต้ > สะพานสมเด็จพระเจ้าตากสิน > ถนนกรุงธนบุรี > TEAL สาทร-ตากสิน
ในส่วนจากทางเข้า-ออกซอยโครงการไปยังจุดกลับรถถือว่าไม่กระชั้นมาก อยู่ถัดจากคลองบางไส้ไก่่ะ ค่อนข้างสะดวกแต่อาจจะต้องมองรถฝั่งขวาหน่อยค่ะ ซึ่งใครที่เน้นเดินทางเข้าเมืองจะเลือกโครงการนี้ก็ได้เช่นกัน เนื่องจากอยู่ใกล้จุดกลับรถไม่เสียเวลารถติด และไม่ได้อยู่จุดที่กลับรถยากจึงค่อนข้างสะดวกในการเดินทางเข้าเมืองเช่นเดียวกับโครงการที่อยู่ฝั่งตรงข้าม
เข้าสู่ภายในซอยสมเด็จพระเจ้าตากสิน 9/3 ในซอยนี้เป็นซอยที่ใช้ร่วมกับอาคารพาณิชย์และบ้านพักอาศัยข้างเคียงโครงการ แม้จะไม่ได้เป็นส่วนตัวเหมือนถนนส่วนบุคคลเลย แต่ก็ได้อานิสงค์ในเรื่องของความคึกคัก หาของกินง่าย ไม่เปลี่ยว รวมไปถึงซอยนี้ยังสามารถไปทะลุออกถนนสมเด็จพระเจ้าตากสินได้โดยไม่ต้องไปเสียเวลาติดไฟแดงที่สี่แยกด้วยนะคะ ใครที่มาจากทางถนนสมเด็จพระเจ้าตากสินจึงเข้าถึงโครงการได้สะดวกเช่นกัน
เข้ามาหน่อยนึง ประมาณ 35 เมตร ก็ถึงแล้วค่ะ Teal สาทร-ตากสิน
ด้านหน้าโครงการ Teal สาทร-ตากสิน ค่ะ
สรุปแยก และ ถนนสำคัญรอบโครงการ
สรุปสถานที่สำคัญรอบๆโครงการ
**ระยะทางวัดจากการเดินทางจากรถยนต์ สู่จุดหมาย โดยถนนที่ใกล้ที่สุด**
:::: สภาพแวดล้อมรอบโครงการ ::::
สภาพแวดล้อมโครงการอยู่ท่ามกลางชุมชนบ้านพักอาศัยและอาคารพาณิชย์ที่อยู่กันมาดั้งเดิมแล้ว จึงเด่นแง่ความอุดมสมบูรณ์และความคึกคักพอสมควร รวมไปถึงมีความสงบในช่วงกลางคืนไม่วุ่นวาย เพราะไม่ได้อยู่ใกล้สถานบันเทิงแต่อย่างไร ตัวโครงการอยู่ภายในซอยสมเด็จพระเจ้าตากสิน 9/3 ลึกเข้าไปจากถนนกรุงธนบุรีไม่มากเลย ประมาณ 35 ม.เท่านั้น ทำให้เดินทางสะดวก เสมือนอยู่ติดถนนใหญ่ แต่ก็ยังมีความเป็นส่วนตัวไม่พลุกพล่านเท่า เดี๋ยวเราพาไปชมสภาพแวดล้อมโดยรอบโครงการกันต่อนะคะ
เริ่มต้นจากสถานีบีทีเอสวงเวียนใหญ่ เราจะออกไปทางทางออก 2 กัน
จาก BTS วงเวียนใหญ่ ใช้ทางออก 2 เดินไปทางฝั่งซ้ายมือ
เดินไปตามทาง เลี้ยวขวาลงบันได สถานีนี้มีข้อดีอย่างนึงคือเค้าทำ Sky Walk ยาวๆ ให้เดินไปจนสุดแยกที่ตัดกับถนนสมเด็จพระเจ้าตากสินเลย ดังนั้นลูกบ้านก็สามารถเลือกเดิน Sky Walk แทนได้ เนื่องจากเดินได้ง่ายกว่า ไม่ต้องหลบมอเตอร์ไซค์ที่ชอบมาวิ่งบนฟุตบาท หรือแม่ค้าร้านรถเข็น รวมไปถึงเหมาะกับสาวๆ ที่เดินช่วงกลางคืนด้วย เพราะมีความปลอดภัยมากกว่าเดินริมฟุตบาท
มุมมองจากสถานี ไปยังอาคารโครงการเราสีเขียวๆ ออกแบบให้เป็น Stack ขั้นๆ ค่อนข้างเด่นมากทีเดียว
เดินลงมาชมบรรยากาศริมฟุตบาท จะมีจุดรอแทกซี่ วินมอเตอร์ไซค์ และมีร้านรถเข็นเต็มเลยค่ะ บริเวณค่อนข้างคึกคักพอตัว
หันย้อนกลับไปทางขึ้น bts ขาขึ้น-ลงที่ใกล้โครงการมากที่สุดจะเป็นบันไดธรรมดานะคะ
เดินตรงมาเรื่อยๆ เจอเซเว่น ซึ่งเป็นเซเว่นที่ใกล้โครงการมากที่สุด
มีร้านอาหารและร้านรถเข็นเยอะมาก มาฝากท้องกันได้
ฟุตบาทบริเวณถนนกรุงธนบุรีทำออกมาได้กว้างขวางพอสมควร เดินได้ง่าย
ผ่านโครงการ The Rich สาทร-ตากสิน เป็นโครงการเพื่อนบ้านที่พึ่งสร้างเสร็จไปไม่นาน
เดินถัดมาเรื่อยๆ สภาพแวดล้อมจะเป็นอาคารพาณิชย์อยู่ตลอดริมฝั่งถนน
ก่อนถึงโครงการ เจอสะพานข้ามคลองบางไส้ไก่
ทางเข้าซอยโครงการมีป้ายโครงการเห็นได้ชัด
เข้ามาประมาณ 35 ม.ก็จะเจอกับซุ้มทางเข้าโครงการแล้วค่ะ
หน้าตาอาคารโครงการใช้สีสัน โทนสีเขียวดูสบายตาสอดคล้องกับธรรมชาติ
บรรยากาศภายในซอยโครงการ ตัวถนนสะอาดเรียบร้อยขนาดถนนเป็น 2 เลน แต่ก็มีรถมาจอดบ้างประปราบ ทำให้เหลือเลนรถเพียงเลนเดียวไว้ใช้งาน
ติดกับโครงการเป็นตึกแถวพักอาศัยยาวไปตลอดแนว
อีกฝั่งที่ติดกับโครงการเพียงมีคลองบางไส้ไก่คั่นอยู่จะเป็นศาลเจ้าเล็กๆ
เดินกลับออกมาที่ถนนใหญ่ ดูด้านหน้าอาคารพาณิชย์ มุ่งหน้าแยกตากสิน ส่วนที่ติดถนนใหญ่นี้มีร้านค้า ร้านอาหารและบ้านพักอาศัยอยู่ตลอดแนวถนนเลยค่ะ
บรรยากาศจะเป็นชุมชนแบบนี้
มีร้านค้าร้านอาหารขายในราคาย่อมเยา
ร้านเครื่องดื่ม นมปั่นต่างๆ ก็มีด้วยนะ ราคาก็สบายกระเป๋า
ซอยเล็กๆ เลาะไปด้านข้างอาคารพาณิชย์ สามารถเดินไปยังโครงการได้เช่นกันค่ะ
เราจะเดินตรงไปบริเวณสี่แยกที่ตัดกับถนนสมเด็จพระเจ้าตากสินและถนนราชพฤกษ์กันค่ะ
ใกล้ถึงแยกตากสิน จะเจอร้านขายมอไซค์ กับสวนสาธารณะ
มีร้านมอเตอร์ไซค์ขาย
ถึงแล้ว Sky Walk ข้ามแยกตากสิน
บริเวณใต้สะพานจัดให้เป็นพื้นที่ออกกำลังกาย จะให้มีเด็กๆ มาใช้พื้นที่นี้เล่นสเก็ตบอร์ดกันคึกคักเลย
อีกมุมมีเครื่องออกกำลังกายไว้บริการ และศาลานั่งเล่นขนาดกะทัดรัด
รวมไปถึงสนามบาสเก็ตบอลด้วยนะคะ รวมก๊วนมาออกกำลังกายได้
:::: ตัวโครงการ ::::
โครงการ TEAL สาทร-ตากสิน เป็นคอนโด High Rise สูง 27 ชั้น 1 อาคาร จำนวน 409 ยูนิต ตั้งอยู่บนพื้นที่ประมาณ 2-2-15 ไร่ ค่ะ โครงการออกแบบสไตล์ Modern โดยใช้โทนสีเขียว Teal ที่สอดคล้องกับชื่อโครงการ ดูสวยสบายตาดีค่ะ
ภาพด้านหลังโครงการ TEAL สาทร-ตากสิน
โครงการตั้งอยู่ใกล้กับรถไฟฟ้า BTS สถานีวงเวียนใหญ่ ในระยะทางประมาณ 200 ม.*

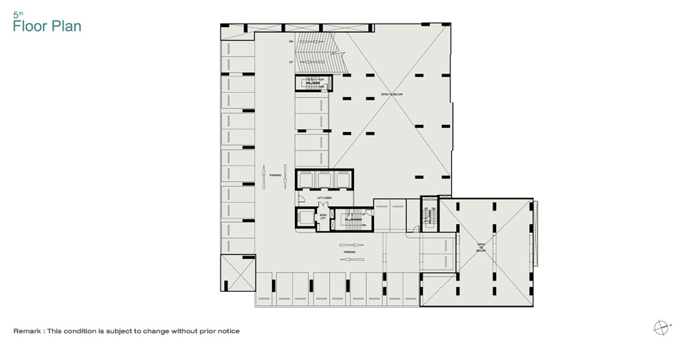
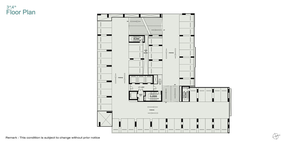
1st floor ผังพื้นชั้นล่างสุดจะเป็น Lobby ตัวอาคารทรงสี่เหลี่ยมจัตุรัสค่ะ โดยมี Core Lift อยู่ตรงกลาง จัดพื้นที่สวนอยู่ด้านหน้าโครงการ และพื้นที่จอดรถล้อมรอบ โดยมีทางขึ้นอาคารจอดรถ ชั้น 1-5 ส่วนห้องพักอาศัยเริ่มตั้งแต่ชั้น 6 เป็นต้นไปค่ะ โดยลิฟท์จะเป็นแบบล็อคชั้นโดยใช้คีย์การ์ด ประกอบด้วยลิฟท์โดยสาร 3 ตัว และลิฟท์บริการ 1 ตัว อัตราส่วน 137:1 หนาแน่นปานกลางค่ะ

2nd / 3rd – 4th / 5th Floor : เป็นอาคารจอดรถทั้งหมด

6th Floor : ชั้น 6 จะเป็นที่ตั้งของ Facilities ค่ะ ประกอบด้วยสระว่ายน้ำ แยกสระเด็ก, ผู้ใหญ่ พร้อมพื้นที่นั่งพักผ่อน และห้อง Fitness ที่หันวิวไปทางสระว่ายน้ำค่ะ

7th floor : ถัดขึ้นมาที่ชั้น 7 ก็จะเป็นยูนิตพักอาศัยอย่างเดียวแล้วค่ะ มีสูงสุด 22 ยูนิต/ชั้น โดยจัดเป็น Typical Floor Plan ที่เหมือนกันทุกชั้นอาจมีส่วนคล้ายกันเล็กน้อยที่ปลายอาคารฝั่งติดถนนที่เป็นการไล่ระดับขึ้นไปให้เกิดมิติสวยงามของตัวอาคารภายนอก 1 Bedroom จะอยู่ตรงกลาง ยูนิตสีเขียวๆค่ะ ส่วนยูนิตสีฟ้าเป็น 2 Bedrooms ทั้งหมด
8th Floor
9 th Floor : สังเกตว่าชั้น 8-9 จะเริ่มมียูนิต Duplux เพิ่มเติมขึ้นมาที่ปีดด้านขวามือยูนิตสีขียวอมน้ำตาลค่ะ





13rd / 14th / 15th /16th / 17th floor





18th / 19th / 20th / 21st/ 22nd floor
23rd / 24th /25th Floor : ตั้งแต่ชั้น 13-25 จำนวนยูนิตต่อชั้นจะค่อยๆ ลดลงเรื่อยๆค่ะ ไล่ระดับสู่ปลายสูงสุดอาคารขึ้นไป


26th /27th Floor : ส่วนชั้น 26-27 ก็จะเป็นชั้นที่มีจำนวนยูนิตน้อยที่สุดค่ะ และมียูนิตแบบ 3 Bedrooms เพิ่มเติมขึ้นมาทางฝั่งทิศตะวันออก
:::: Room Type ::::
สำหรับแบบห้องทั้งหมดของโครงการจะมีทั้งหมด 3 แบบด้วยกันค่ะ นั่นก็คือ
ปัจจุบันโครงการ SOLD OUT นานแล้วค่ะ สภาพห้องเริ่มแรกเปิดขายแบบ Fully Furnished เฟอร์นิเจอร์ครบค่ะ แต่ปัจจุบันสภาพจะเป็นอย่างไร หรือจะมีอะไรเพิ่มเติมมานั้นขึ้นอยู่กับเจ้าของห้องว่าต่อเติมอะไรเพิ่มหรือไม่ค่ะ
1 Bedroom 30.50-47 ตร.ม.
2 Bedrooms 58-72.50 ตร.ม.




2D-1 / 2D-2 / 2E / 2F-1 / 2F-2
2 Bedrooms Duplex
2E / 2G-1 / 2G-2
3 Bedrooms 106.50-110 ตร.ม.
3 BED ROOM TYPE A
3 BED ROOM TYPE B
:::: ราคา (ก.ย. 2560) ::::
เนื่องจากโครงการนี้ ได้ SOLD OUT หมดนานแล้ว ดังนั้นห้องที่ปล่อยขายหลังจากนี้จึงจะเป็นลักษณะ Resales หรือปล่อยเช่าค่ะ ซึ่งราคาก็แล้วแต่สภาพภายในของห้อง การตกแต่งของเจ้าของห้องหรือผู้เช่าเดิม หากผู้สนใจสามารถติดต่อเอเจนซี่ หรือเจ้าของห้อง เพื่อตกลงราคาซื้อขายกันต่อไปได้ค่ะ ซึ่งราคาที่เรานำเสนอด้านล่างนั้น เป็นเพียงการเก็บข้อมูล ของผู้เขียนเท่านั้นนะคะ
:::: สอบถามรายละเอียดเพิ่มเติมได้ที่ ::::
Call Center : 1685
E-mail : teal@sansiri.com
Website : http://www.sansiri.com/teal/th/
หากท่านเห็นว่ารีวิวนี้มีประโยชน์ โปรดกด Like เพื่อเป็นกำลังใจให้ทีมงาน ขอบคุณค่ะ
หากท่านมีความคิดเห็นหรือข้อมูลเพิ่มเติมเกี่ยวกับตัวโครงการ สามารถ Comment ได้ที่ด้านล่างของรีวิวค่ะ
แสดงความคิดเห็น เกี่ยวกับ " EP.009 รีวิว คอนโด TEAL สาทร-ตากสิน ใกล้รถไฟฟ้า BTS วงเวียนใหญ่ "