
คอนโด โนเบิล ไลท์ อารีย์ Noble Lite Aree
Noble Lite อารีย์ จาก โนเบิล ดีเวลลอปเม้นท์ ตั้งอยู่บนถนนพหลโยธิน (ซอยอารีย์ 1) แขวงสามเสนใน เขตพญาไท กทม. ติดรถไฟฟ้า BTS อารีย์ 150 เมตร ใกล้ La Villa, บิ๊กซี พหลโยธิน, ม.หอการค้า, ม.เซนต์จอนห์, รร.สามเสนวิทยาลัย, รพ.เปาโลเมโมเรียล และ รพ.พญาไท 2
โนเบิล ไลท์ อารีย์ เป็นคอนโด High Rise 24 ชั้น 1 อาคาร พื้นที่โครงการ 1-1-65 ไร่ ห้องพักอาศัย 217 ยูนิต มีห้องพักให้เลือกแบบสตูดิโอ, 1 ห้องนอน, 2 ห้องนอน และ 3 ห้องนอน ขนาดเริ่มต้น 33.03-148.43 ตร.ม. สร้างเสร็จพร้อมอยู่ปี 2549
สิ่งอำนวยความสะดวกในโครงครบครัน อาทิ โถงต้อนรับ, สระว่ายน้ำ, ฟิตเนส, ซาวน่า, สวนพักผ่อน, ลิฟท์โดยสาร, ที่จอดรถ, ประตูคีย์การ์ด และ รปภ. 24 ชม. เริ่มต้น ประมาณ 1.79 ล้านบาท* (วันเปิดตัว)
| ชื่อโครงการ | โนเบิล ไลท์ อารีย์ Noble Lite Aree |
| เจ้าของโครงการ | โนเบิล – Noble Development |
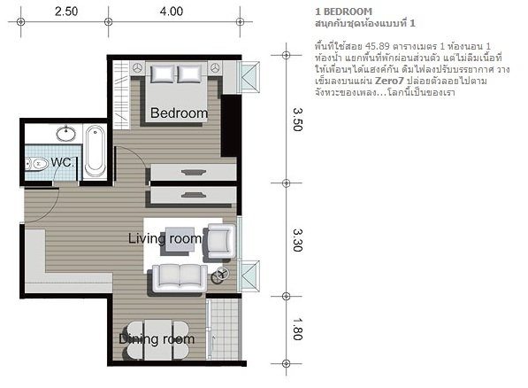
| ลักษณะห้องและขนาดห้อง | – Studio / 33.03 – 35.88 ตร.ม. – 1 Bed / 45.57 – 73.09 ตร.ม. – 2 Bed / 80.31 – 106.68 ตร.ม. – 3 Bed / 109.49 – 148.43 ตร.ม. |
| เนื้อที่ทั้งหมด | 1 ไร่ 1 งาน 65 ตร.ว. |
| จำนวนตึก | 1 อาคาร |
| จำนวนชั้น | 24 ชั้น |
| จำนวนห้อง | 217 ยูนิต |
| ที่จอดรถทั้งหมด | n/a |
| โซน | พญาไท |
| ขนส่งสาธารณะ | รถไฟฟ้า BTS อารีย์ 150 เมตร, ใกล้ทางด่วน |
| รถโดยสารที่ผ่าน | n/a |
| ที่ตั้ง | ซอยอารีย์ 1 อยู่ระหว่างซอยพหลโยธิน 1 (อารีย์) และ ซอยพหลโยธิน 2 (ราชครู) ถนนพหลโยธิน แขวงสามเสนใน เขตพญาไท กทม. |
| กำหนดการ | n/a |
| ปีที่สร้างเสร็จ | พ.ศ. 2549 |
| ราคา | 1.79 ล้านบาท |
| ราคาเฉลี่ยต่อ ตร.ม | n/a |
| สถานที่สำคัญใกล้เคียง | 1. โรงพยาบาลพญาไท 2 2. โรงพยาบาลราชวิถี |
| สิ่งอำนวยความสะดวก | – สระว่ายน้ำ – ฟิตเนส – ร้านค้า – รปภ., คีย์การ์ด, กล้องวงจรปิดโครงการ |
| จุดเด่นของโครงการ | ใช้ชีวิตให้แตกต่าง แบบ Crash-pads บน Noble Lite คอนโดมิเนียมสไตล์ห้องเดี่ยว ใกล้สถานีรถไฟฟ้าอารีย์ เพียง 300 เมตรจากถนนพหลโยธิน คุณสามารถกลับเข้าครัว มาทำซีซ่าร์สลัดกินกับเพื่อน ชั่วโมงถัดไปเปลี่ยนห้องเป็นโฮมเธียเตอร์ ดูหนังอินดี้จบก็เปลี่ยนห้องเป็นบาร์ยุค 80 โทรตามแก๊งค์มาร่วมแจม หรือจะชวนกันนั่งรถไฟฟ้าออกไปแฮงค์กันตามฮิปผับ …แล้วชิ้นส่วนความสุข ก็กลับมาต่อเติมชีวิตให้สนุกอีกครั้ง |
ที่ตั้งโครงการ
ถนนพหลโยธิน แขวงสามเสนใน เขตพญาไท กทม.
การเดินทาง

คลิกที่รูป เพื่อดูแผนที่ขนาดใหญ่
การเดินทาง ผมเริ่มจาก > สถานี BTS สนามเป้า > ถนนพหลโยธิน > ซอยพหลโยธิน 7 > ซอยอารีย์ 1 > คอนโด โนเบิล ไลท์ อารีย์ *เข้ามาในซอยอารีย์ 1 ประมาณ 350 เมตร
ผมเริ่มจาก สถานี BTS สนามเป้า
ผ่านสถานีรถไฟฟ้า BTS อารีย์ ตอนนี้ให้เราเตรียมชิดซ้ายได้เลยนะครับ
เลี้ยวซ้ายเข้าซอยพหลโยธิน 7
หลังจากเข้าซอยพหลโยธิน 7 มาแล้ว ขับมานิดเดียว เราจะเจอซอยอารีย์ 1 อยู่ทางซ้ายมือครับ
ให้เราเลี้ยวซ้ายเข้าซอยอารีย์ 1 เลยครับ
บรรยากาศ ภายในซอยอารีย์ 1 ครับ ให้เราขับไปอีก 350 เมตร เราก็จะเจอกับคอนโด โนเบิล ไลท์ อารีย์
คอนโด โนเบิล ไลท์ อารีย์ จะอยู่ทางซ้ายมือเรานะครับ
หน้าโครงการ โนเบิล ไลท์ อารีย์
ภายในซอยอารีย์ 1 และด้านหน้าคอนโด โนเบิล ไลท์ อารีย์ ครับ
คอนโด โนเบิล ไลท์ อารีย์

คลิกที่รูป เพื่อดูแผนที่ขนาดใหญ่
สถานที่สำคัญ
– BTS อารีย์
– บิ๊กซี สะพานควาย
– เซ็นเตอร์วัน
– เซ็นทรัลลาดพร้าว
– ยูเนี่ยน มอลล์
– ตลาด อ.ต.ก.
– โรงพยาบาลพญาไท 2 อินเตอร์เนชันแนล
– โรงพยาบาลราชวิถี
– โรงพยาบาลเปาโล เมมโมเรียล
– โรงพยาบาลทหารผ่านศึก
– โรงพยาบาลประสานมิตร
– โรงพยาบาลวิชัยยุทธ
– โรงเรียนสามแสนวิทยาลัย
– สถานีขนส่งหมอชิต 2
แปลนอาคาร
6th Floor





7th -13th Floor / 14th – 20th Floor / 21th Floor / 22th – 23th Floor / 24th Floor
แปลนห้อง
แกลเลอรี่
สนใจติดต่อรายละเอียดเพิ่มเติมได้ที่
โทรศัพท์ : 0-2251-9955
บริษัท โนเบิล ดีเวลลอปเมนท์ จำกัด (มหาชน) สำนักงานใหญ่
900 อาคารต้นสนทาวเวอร์ ชั้น 19 ถนนเพลินจิต แขวงลุมพินี
เขตปทุมวัน กรุงเทพฯ 10330
Website : http://www.noblehome.com/condominium/lite/concept.html
แสดงความคิดเห็น เกี่ยวกับ " คอนโด Noble Lite อารีย์ ติด BTS อารีย์ "