รีวิว คอนโด Notting Hill สุขุมวิท-แพรกษา ใกล้รถไฟฟ้า BTS แพรกษา
สวัสดีครับเพื่อนๆ Homenayoo วันนี้ผมจะพามาชมโครงการ Notting Hill สุขุมวิท-แพรกษา จาก Origin Property เป็นคอนโด High Rise สูง 35 ชั้น มีทั้งหมด 980 ยูนิต ขนาดห้องเริ่มที่ 23 ตร.ม. โครงการแรกบนถนนแพรกษา ใกล้ BTS แพรกษา ระยะเดินประมาณ 800 ม.
ภายในโครงการมีสิ่งอำนวยความสะดวกครบครัน พร้อมสวนลอยฟ้าชั้น 35 เปิดรับวิวมุมสูงได้อย่างไร้สิ่งกีดขวาง สามารถมองเห็นทิวทัศน์อันสวยงาม ได้แบบ 360 องศา ทั้งท้องทะเล แม่น้ำ และท้องฟ้า Open House 25 มี.ค. 60 ที่สำนักงานขาย ราคาเริ่มต้น 1.29 ล้านบาท
| ชื่อโครงการ | น็อตติ้ง ฮิลล์ สุขุมวิท-แพรกษา Notting Hill Sukhumvit -Praksa |
| เจ้าของโครงการ | บริษัท ออริจิ้น พร็อพเพอร์ตี้ จำกัด (มหาชน) / Origin Property |
| ลักษณะห้องและขนาดห้อง | – 1 Bedroom : 23.00-23.50 ตร.ม. – 1 Bedroom Plus 1 Bath : 35.00 , 40.00 ตร.ม. – 1 Bedroom Plus 2 Bath : 39.50 ตร.ม. |
| เนื้อที่ทั้งหมด | 3-1-91 ไร่ |
| จำนวนตึก | – อาคารพักอาศัย 1 อาคาร – อาคารพาณิชย์ 1 อาคาร – อาคารจอดรถ 1 อาคาร |
| จำนวนชั้น | – อาคารพักอาศัย 35 ชั้น – อาคารพาณิชย์ 2 ชั้น – อาคารจอดรถ 9 ชั้น |
| จำนวนห้อง | 980 ยูนิต |
| ที่จอดรถทั้งหมด | 343 คัน คิดเป็น 35% รวมจอดซ้อนคัน |
| โซน | สมุทรปราการ |
| ขนส่งสาธารณะ | – รถไฟฟ้า BTS แพรกษา 800 เมตร – ใกล้ถนนวงแหวนรอบนอก – ใกล้ทางด่วนบางนา |
| รถโดยสารที่ผ่าน | n/a |
| ที่ตั้ง | ถนนแพรกษา อ.เมืองสมุทรปราการ จ.สมุทรปราการ |
| กำหนดการ | เปิดจอง 25 ม.ค. 2560 |
| ปีที่สร้างเสร็จ | 2561 |
| ราคา | เริ่มต้น 1.29 ล้านบาท |
| ราคาเฉลี่ยต่อ ตร.ม | ราคาเฉลี่ย 55,000 บาท/ ตร.ม. |
| ค่าส่วนกลางและกองทุน | ค่าส่วนกลาง 35 บาท : ค่ากองทุน 500 บาท |
| สถานที่สำคัญใกล้เคียง |
|
| สิ่งอำนวยความสะดวก |
|
| จุดเด่นของโครงการ | น็อตติ้ง ฮิลล์ สุขุมวิท-แพรกษา Notting Hill Sukhumvit -Praksa คอนโดใหม่ วิวทะเล-แม่น้ำ ใกล้รถไฟฟ้า BTS แพรกษา เริ่ม 1.09 ล้านบาท |
ที่ตั้งโครงการ
ถนนแพรกษา อ.เมืองสมุทรปราการ จ.สมุทรปราการ

พิกัด Google : 13.585251, 100.613704
ที่ตั้งโครงการ Notting Hill สุขุมวิท – แพรกษา ตั้งอยู่ในจังหวัดสมุทรปราการ ติดกับถนนแพรกษาซึ่งเป็นเส้นที่เชื่อมระหว่างถนนสุขุมวิทและถนนตำหรุ – บางพลี การเดินทางถือว่าสะดวกถ้าจะเข้าเมืองออกจากโครงการมาต้องไปกลับรถก่อนเพื่อไปฝั่งสามแยกแพรกษา จากนั้นก็ใช้เส้นสุขุมวิทขับตามแนว BTS เข้าเมืองได้เลยมีทางด่วนกาญนาภิเษกตรงแถวๆช้างสามเศรียร และทางด่วนตรงสี่แยกบางนา หรือจะใช้เส้นศรีนครินทร์โดยจะมีสะพานลอยเบี่ยง ข้ามแยกการไฟฟ้าไปลงถนนศรีนครินทร์ได้เลยครับ วิ่งเข้าเมืองได้เช่นกัน เพราะจะวิ่งคู่ขนานกับสุขุมวิทและไปตัดเข้าพัฒนาการเข้าเพชรบุรี พระรามเก้าได้เลย มีทางด่วนกาญจนาภิเษกให้ขึ้นใกล้ๆตรงจุดตัดกันระหว่างศรีนครินทร์และกาญจนาภิเษก
การเดินทางออกนอกเมือง เส้นแพรกษาวิ่งมาออกถนนตำหรุ – บาลพลี จากนั้นถ้ามาออกสุขุมวิทวิ่งยาวไปทางชลบุรีได้เลย หรือไปออกฝั่งถนนกิ่งแก้วจะเป็นจุดตัดระหว่างถนนเทพารักษ์ ถนนกิ่งแก้ว และถนนตำหรุ – บางพลี ผ่านถนนกิ่งแก้วไปจะไปออกถนนบางนาตราดได้วิ่งออก ฉะเชิงเทรา ชลบุรี พัทยา ได้ หรือถ้าวิ่งตรงตามถนนกิ่งแก้วจะไปสุวรรณภูมิ ลาดกระบัง มีนบุรีได้ครับ ถ้าใช้เส้นกาญจนาภิเษกข้ามฝั่งไปสุขสวัสดิ์ บางขุนเทียน พระราม 2 บางแค บางใหญ่ หรืออีกฝั่งจะไปโซนมีนบุรี คลองสามวา ปทุมธานี รังสิต ยาวไปอยุธยาได้เลย
การเดินทางโดยสาธารณะ ด้านหน้าโครงการมีป้ายรถเมล์ยืนรอหน้าโครงการได้เลยแต่สายที่วิ่งจะไม่ได้เยอะเท่าไหร่ นอกจากนี้ยังมีรถสองแถวที่เป็นระบบขนส่งสำคัญย่านนี้ วินมอเตอร์ไซค์อยู่ปากซอยเทศบาลบางปู 26 ประมาณ 40 ม.เท่านั้น Taxi ก็เรียกได้สะดวกตั้งแต่หน้าโครงการ แต่ถ้ามาขึ้นตรงเส้นสุขุมวิทจะมีวิ่งหลากหลายเลยทั้งรถเมล์ที่มีวิ่งเข้าเมืองเกือบทั้งคืน รถสองแถวก็มีบริการหลายสาย มีรถตู้ที่วิ่งไปสำโรง บางนา สุวรรณภูมิ นอกจากนี้ตรงเส้นสุขุมวิทยังเป็นแนวรถไฟฟ้าสายสีเขียวส่วนต่อขยายช่วงแบริ่ง – สมุทรปราการ ซึ่งตอนนี้อยู่ในช่วงก่อสร้าง ตัวสถานีเริ่มเป็นรูปร่างพอสมควรอีกไม่นานเกินรอคงได้ใช้งานกันครับ สถานีที่ใกล้โครงการจะเป็นสถานี BTS แพรกษา โดยมีระยะเดินจากโครงการมาประมาณ 800 ม. เป็นระยะที่พอเดินได้ แต่ช่วงเย็นที่ไม่มีแดดแล้ว จะเดินสะดวกกว่าไม่เหนื่อยมาก

จากภาพถ่ายดาวเทียมจะเห็นว่าย่านนี้ส่วนใหญ่จะเป็นบ้านพักอาศัย อาคารพาณิชย์จะอยู่ตามแนวริมทางถนนสายหลัก เนื่องจากเป็นพื้นที่นิคมอุตสาหกรรม ย่านนี้จะมีโกดัง โรงงานบริษัทต่างๆให้เห็นเป็นระยะๆครับ มีห้างสรรพสินค้าเกาะตามแนวเส้นสุขุมวิท อย่าง Big C และ Robinson จากโครงการมีเส้นทางลัดเข้าออกทางด้านหลัง Robinson ได้ โดยใช้ซอยเทศบาลบางปู 29 และมาเข้าซอยเทศบาลบางปู 41 จะมีทางเชื่อมเข้าออกไปยังด้านหลังหลังห้างที่เป็นลานจอดรถ หรือเชื่อมออกถนนสุขุมวิทได้เลย
การเดินทางวันนี้เริ่มจากถนนศรีนครินทร์หน้าซีคอนสแควร์ มุ่งหน้าไปสมุทรปราการ ขับตรงตามถนนศรีนครินทร์จนมาถึงสามแยกการไฟฟ้าให้เลี้ยวซ้ายเข้าถนนสุขุมวิท จากนั้นก็วิ่งตามแนวรถไฟฟ้ามาจนถึงแยกแพรกษา ให้เลี้ยวซ้ายตรงแยกเข้าถนนแพรกษา จากนั้นตรงตามทางไปอีกประมาณ 550 ม. โครงการจะอยู่ทางซ้ายมือครับ
สรุปการเดินทาง ถนนศรีนครินทร์ > แยกการไฟฟ้า > ถนนสุขุมวิท > แยกแพรกษา > ถนนแพรกษา > Notting Hill สุขุมวิท – แพรกษา
เริ่มจากถนนศรีนครินทร์ ซ้ายมือเป็นซีคอนสแควร์ ขับตรงไปครับ
ติดกันเป็น HaHa Mall
ถัดมาอีกเป็นพาราไดซ์ พาร์ค
จากนั้นก็ขับลงอุโมงค์ไปครับ
อุโมงค์จะลอดใต้ทางแยกศรีอุดม
จากนั้นก็ตรงไปอีก ข้างหน้าจะเห็นแนวทางด่วนบูรพาวิถี
ตรงมาจะเจอศูนย์ Toyota ขวามือ
ซ้ายมือเป็นสนามกอล์ฟ ลาซานไดร์ฟวิ่งเรนจ์
เลยมาจะเจอ Makro และ Big c อยู่ใกล้ๆกันครับ
ถัดมาอีกมี Food Land
และจะเจอ KFC เปิดตลอด 24 ชม.
จากนั้นก็วิ่งตามป้ายสมุทรปราการไปครับ
ตรงมาจะเจอ Plus Mall ขวามือ
ตรงตามป้ายสมุทรปราการไปครับ ตรงนี้จะเป็นจุดตัดกับถนนกาญจนาภิเษก
ขับตรงไปครับ สังเกตจะมีป้ายโครงการทางขวามือ
จากนั้นให้ยึดป้ายไปบางปูครับ เตรีมชิดเลนซ้ายได้เลย
ตรงแยกการไฟฟ้าซ้ายมือจะมีคอมมูนิตี้มอลล์ชื่อว่า i Mall ซ้ายมือ เราจะเลี้ยวซ้ายตรงแยกข้างหน้าครับ
เลี้ยวซ้ายตรงแยกการไฟฟ้าได้เลย
เลี้ยวซ้ายมาจะเป็นถนนสุขุมวิท มุ่งหน้าไปทางบางปู และจะเห็นแนว BTS ส่วนต่อขยายช่วงแบริ่งสมุทรปราการ
จากนั้นจะเจอตัวสถานี BTS ศรีนครินทร์
เลยมาหน่อยจะเห็นป้ายโครงการทางซ้ายมือ
จากนั้นจะเจอแยกแพรกษาให้เลี้ยวซ้ายครับ
ถัดจากแยกแพรกษาไปหน่อยจะเป็นที่ตั้งของสถานี BTS แพรกษาที่ถูกขนาบข้างไปด้วย Big C และ Robinson ตัวสถานีห่างจากโครงการประมาณ 800 ม. เลี้ยวซ้ายตรงแยกแพรกษาไปโครงการต่อครับ
เลี้ยวซ้ายมาจะเป็นถนนแพรกษา จากแยกนี้เข้าไปอีกประมาณ 550 ม. ก็จะถึงโครงการ
ถนนแพรกษาเป็นถนนขนาด 6 เลนแบ่งฝั่งละ 3 เลนพร้อมเกาะกลาง เลนริมสุดจะมีรถจอดเป็นระยะๆ สองฝั่งทางส่วนใหญ่จะเป็นร้านค้า ร้านขายของ ร้านอาหารต่างๆ
ริมสองฝั่งทางส่วนใหญ่จะเป็นอาคารพาณิชย์ มีหอพักบ้างแต่จะอยู่ในซอยรวมไปถึงชุมชนบ้านพักอาศัย ทางขวามือเป็นซอยเทศบาลบางปู 29 ซึ่งเป็นซอยที่เข้าออกทางด้านหลังโรบินสันได้ และไปเชื่อมออกถนนสุขุมวิทหน้าโรบินสันได้เลย
จากนั้นจะเจอ 7-11 เตรียมชิดซ้ายได้เลย พื้นที่โครงการจะอยู่ถัดไปอีกประมาณ 50 ม.
ด้านหน้า 7-11 มีร้านรถเข็น ร้านส้มตำ
ติดกับ 7-11 จะเป็นซอยเทศบาลบางปู 26
ถัดจากซอยมาจะเป็นร้านขายวัสดุก่อสร้างซึ่งจะติดกับรั้วโครงการครับ
ภายในร้านขายวัสดุก่อสร้าง
ถัดมาอีกจะเป็นป้ายรถเมล์อยู่ด้านหน้าโครงการเลย
จากนั้นก็เลี้ยวซ้ายเข้าโครงการได้เลยครับ
ด้านหน้าโครงการอยู่ติดกับถนนแพรกษา ที่เห็นอยู่เป็นสำนักงานขายซึ่งเมื่อโครงการสร้างเสร็จส่วนนี้จะกลายเป็นร้านค้าที่เปิดให้คนภายนอกเข้ามาใช้บริการได้
มองไปฝั่งซ้ายที่ดินติดกับร้านขายวัสดุก่อสร้าง
มองไปฝั่งขวาที่ดินติดกับพื้นที่ว่างเปล่า ถัดไปเป็นโกดัง
ฝั่งตรงข้ามด้านหน้าโครงการเป็นอาคารพาณิชย์ ซึ่งเปิดเป็นร้านต่างๆ
มองไปทางซ้าย
มองไปฝั่งขวา
ไปดูพื้นที่ด้านข้างโครงการอีกฝั่ง
ฝั่งนี้จะติดกับพื้นที่ว่างเปล่าซึ่งตอนนี้ทำเป็นตลาดนัดอยู่ครับ พื้นที่ก็กว้างพอสมควร ถัดไปที่เห็นอาคารสีฟ้าจะเป็นโกดัง

พื้นที่โครงการโดยรอบจะไม่มีอาคารสูงเลยสูงสุด 5 ชั้นจะเป็นอาคารพาณิชย์ ฝั่งทิศเหนือหรือด้านหลังโครงการซึ่งเป็นอาคารจอดรถ อยู่ติดกับพื้นที่ของหอพักประมาณ 3-4 ชั้น ส่วนด้านหน้าโครงการเป็นทิศใต้อยู่ติดกับถนนแพรกษาขนาด 6 เลน ฝั่งตรงข้ามเป็นอาคารพาณิชย์ 4-5 ชั้น ด้านข้างโครงการฝั่งทิศตะวันออกติดกับพื้นที่ว่างเปล่าที่เปิดเป็นตลาดนัดเล็กๆ ถัดไปเป็นโกดัง และบ้านพักอาศัย และทิศตะวันตกติดกับร้านขายวัสดุก่อสร้าง ด้านหลังจะเป็นหอพัก 4 ชั้น วิวสำหรับห้องพักเลือกชั้น 6 ขึ้นไปก็ได้วิวโล่งๆแล้ว ยกเว้นฝั่งทิศเหนือยูนิตที่ตรงกับอาคารจอดรถก็เลือกชั้น 10 ขึ้นไปกำลังดีครับ
มาดูพื้นที่โครงการฝั่งทิศเหนือหรือด้านหลังโครงการจะติดกับพอพัก และบ้านพักอาศัย ซ้ายมือมีหอพัก 4 ชั้น
ฝั่งทิศตะวันออกด้านข้างโครงการติดกับพื้นที่ว่างเปล่าที่เปิดเป็นตลาดนัดเล็กๆ ถัดไปเป็นโกดัง และบ้านพักอาศัย
ฝั่งทิศตะวันตกติดกับร้านขายวัสดุก่อสสร้างยาวตลอดแนวรั้ว
ฝั่งทิศใต้หรือด้านหน้าโครงการติดกับถนนแพรกษาขนาด 6 เลน ฝั่งตรงข้ามเป็นอาคารพาณิชย์ 4-5 ชั้น
มาต่อกันที่สำนักงานขายมี 2 ชั้น หน้าตาโดดเด่นในย่านนี้เลย
ถ่ายอีกฝั่งให้ดู ตัวสำนักงานขายเมื่อปิดโครงการส่วนนี้จะกลายเป็นร้านค้าครับ
ด้านหน้าประตูทางเข้า
เข้ามาจะเจอโมเดลโครงการตั้งอยู่ด้านหน้าเคาน์เตอร์ต้อนรับ ซ้ายสุดเป็นบันไดขึ้นชั้นสอง
อีกฝั่งมีชุดโต๊ะรับแขก
เดินขึ้นไปดูชั้นสอง ฝั่งขวามือผนังจะเป็นกระจกทั้งหมดจากพื้นถึงบนหลังคา
เงยหน้ามองด้านบนจะเห็นแบบนี้ครับ เห็นกระจกส่วนที่เป็นจั่วหลังคา
ที่ชั้นสองจะเป็นห้องตัวอย่างสองแบบ ฝั่งซ้ายมองลงไปด้านล่างได้
มองลงมาทีชั้นล่าง เห็นไฟตกแต่งห้อยยาวลงไป สำนักงานขายออกแบบมาสวยดีครับ

ความอุดมสมบูรณ์ ย่านนี้มีความคึกคักพอประมาณเนื่องจากเป็นย่านชุมชน ตัวโครงการเองมีร้านค้า 3 ร้าน ตรงปากซอยเทศบาลบางปู 26 ห่างจากโครงการประมาณ 50 ม. มี 7-11 ติดกันก็มีร้านค้า ร้านอาหาร ร้านรถเข็นขายของกิน ฝั่งด้านข้างโครงการอีกฝั่งที่เป็นพื้นที่ว่างเปล่าตอนนี้เป็นตลาดนัดเล็กๆมีของสดขายด้วย ตามสองฝั่งทางถนนแพรกษามีร้านอาหารอยู่หลายร้านเช่นกัน มีร้านโชห่วย ร้านขายยา คลินิกสัตวแพทย์ ส่วนห้างสรรพสินค้าออกมาตรงเส้นสุขุมวิทห่างจากโครงการไม่เกิน 1 กม. มี Big C และ Robinson เส้นแพรกษาผ่านโครงการไปอีกมี Tesco Lotus และตลาดสดแพรกษา หรือเลยมาทางบางปูก็มี Tesco Lotus หรือขับไปเส้นศรีนครินทร์มีซีคอนสแควร์ , พาราไดซ์พาร์ค , HaHa Mall เส้นบางนาตราดมีเซ็นทรัล บิ๊กซี เมกาและอิเกียบางนา สถานศึกษาย่านนี้มีหลายโรงเรียนเลย ส่วนสถานที่ท่องเที่ยวสำคัญจะมีหอชมเมืองสมุทรปราการ ฟาร์มจระเข้ เมืองโบราณ สถานตากอากาศบางปู
สถานที่สำคัญใกล้เคียง
แยกและถนนสำคัญใกล้เคียง
Model
โมเดลจำลองโครงการ ด้านหน้าโครงการอยู่ติดถนนแพรกษา แบ่งอาคารหลักๆ เป็น 3 ส่วน คือด้านหน้าจะเป็นร้านค้าตอนนี้เป็นสำนักงานขายอยู่ ถัดเข้าไปเป็นอาคารพักอาศัยรูปทรงเหลี่ยมสูง 35 ชั้น มีห้องพักอาศัยทั้งหมด 980 ยูนิต บนสุดเป็นสวนลอยฟ้า ส่วนด้านหลังโครงการเป็นอาคารจอดรถแยกสูง 9 ชั้น

ภาพจำลองโครงการมองจากถนนสุขุมวิทเข้าไปที่แยกแพรกษา จะเห็นแนว BTS และสถานีแพรกษาฝั่งขวา
ภาพจำลองโครงการ จากฝั่งสถานี BTS แพรกษามองไปที่โครงการ
ภาพจำลองบรรยากาศโครงการ
พื้นที่ด้านหน้าโครงการ จะเห็นว่าตัวร้านค้าจะเปิดให้คนภายนอกเข้ามาใช้บริการได้ เพราะจะอยู่ติดกับทางเท้าด้านหน้าโครงการเลย ติดกันเป็นทางคนเดิน และทางรถวิ่งเข้า-ออก
มองจากมุมบนจะเห็นแบบนี้ รถวิ่งเข้าไปจะเจอ Drop Off ด้านในหน้าทางเข้า Lobby
ภาพจำลองทางเข้า-ออกด้านหน้าโครงการ
ส่วนยอดของอาคาร จะเห็นระยะร่นที่ชั้น 29 ตามกฎหมาย ชั้น 30 – 34 จะถอยเข้าไปอีก และที่ชั้น 35 จะเป็นสวนลอยฟ้า
ฝั่งทิศตะวันออกด้านข้างโครงการติดกับพื้นที่ว่างเปล่าที่เปิดเป็นตลาดนัดเล็กๆ ถัดออกมาเป็นโกดัง และบ้านพักอาศัย มองจากด้านข้างจะเห็นว่าขวามือมีอาคารจอดรถแยกส่วนจากอาคารพักอาศัยครับ ความสูง 9 ชั้น ชั้นบนสุดมีสวนมาให้อีก
ซูมพื้นที่ด้านข้างอาคารพักอาศัย จะเห็น Drop Off อยู่ด้านหน้าทางเข้า Lobby ถัดมาจะเป็นไม้กระดกเพื่อผ่านเข้าไปยังอาคารจอดรถด้านหลังโครงการ
ภาพจำลองส่วน Lobby
ภาพจำลองส่วน Co-working Space
ชั้น 35 ของอาคารพักอาศัยจะจัดเป็นสวนลอยฟ้า แบ่งเป็นสองฝั่งคือฝั่งด้านหน้าจะได้วิวที่มองไปทางอ่าวไทย ส่วนด้านหลังจะได้วิวในเมือง ได้วิวสองอารมณ์ จัดเป็นที่นั่งพักผ่อนตามจุดต่างๆ ลิฟท์จะขึ้นมาถึงชั้นนี้เลยครับ
ภาพจำลองโครงการสวดดาดฟ้าที่ชั้น 35
ภาพจำลองโครงการสวดดาดฟ้าที่ชั้น 35
อาคารจอดรถแยก 9 ชั้น ชั้นบนสุดมีสวนมาอีกจุด
ส่วนที่เชื่อมระหว่างอาคารพักอาศัย และอาคารจอดรถไม่มีหลังคามาให้ เวลาฝนตกก็ลำบากหน่อยครับ
ชั้นบนสุดของอาคารจอดรถจะเป็นสวนหย่อม มีสนามบาสแบบครึ่งสนามมาให้ด้วยครับ
ภาพจำลองสวนชั้นบนสุดของอาคารจอดรถ
ด้านหลังโครงการทิศเหนือพื้นที่ติดกับหอพัก บ้านพักอาศัย
มองจากด้านบนจะเห็นแบบนี้
ฝั่งทิศตะวันตกติดกับร้านขายวัสดุก่อสสร้างยาวตลอดแนวรั้ว ส่วนที่ติดกับอาคารจอดรถจะเป็นหอพัก 4 ชั้น ที่ชั้น 1 ฝั่งนี้จะมีสระว่ายน้ำ และฟิตเนส
โครงการจัดสระว่ายน้ำไว้ที่ชั้น 1 ติดกันเป็นห้องฟิตเนส ฝั่งขวาจะมีที่จอดรถใต้อาคาร
ขนาดสระว่ายน้ำ 20 x 8 ม. ลึก 1.2 ระบบเกลือ พื้นที่รอบนอกสระจัดตกแต่งเป็นสวนหย่อม ฝั่งซ้ายเป็นห้องฟิตเนสอยู่ใต้อาคาร
ภาพจำลองห้องฟิตเนสวิวมองออกไปที่สระว่ายน้ำด้านนอก
ภาพจำลองสระว่ายน้ำ มองไปฝั่งฟิตเนส
ด้านชั้นบนสุดของอาคารให้ดูจากฝั่งนี้ครับ
Floor Plan
Master Plan โครงการเริ่มจากทางเข้าออกอยู่ติดถนนแพรกษา แยกทางคนเดิน ด้านหน้าจะมีร้านค้า 2 ชั้นที่ทำเป็นสำนักงานขายอยู่ตอนนี้ เข้ามาจะเป็นถนนในโครงการรถวิ่งสวนกันได้ มีที่จอดรถใต้อาคาร อีกฝั่งตรงเข้ามาจะเป็น Drop Off อยู่ด้านหน้าทางเข้า Lobby หรือถ้าผ่าน Drop Off เข้ามาจะเจอไม้กระดกเพื่อเข้าไปยังอาคารจอดรถด้านหลังโครงการ ที่อาคารจอดรถจะแยกส่วนจากอาครพักอาศัยสูง 9 ชั้น ทั้งโครงการจอดได้ 343 คันหรือคิดเป็น 35% รวมจอดซ้อนคัน Facility ที่ชั้น 1 จะมี Lobby , Co-working space , สระว่ายน้ำ , ฟิตเนส ลิฟท์โดยสารมี 4 ตัว ลิฟท์ขนของ 1 ตัว
แปลนชั้น 2 – 29 จะเหมือนกันทุกชั้นโดยจะเริ่มเป็นชั้นพักอาศัยทั้งหมด แต่ละชั้นมี 30 ยูนิตแบ่งเป็น 1 Bedroom ขนาด 23 – 23.5 ตร.ม. (สีเหลืองในแปลน) 24 ยูนิต ที่เหลือจะเป็น 1 Bedroom Plus ขนาดต่างๆ จัดลิฟท์ไว้ตรงกลาง บันไดหนีไฟจะจัดไว้สามจุด
แปลนชั้น 30 – 34 จะเหมือนกันทั้งหมด ชั้นนี้จะร่นระยะฝั่งด้านหน้าเข้าไปจากชั้น 29 ยูนิตจะหายไป 2 ยูนิต เหลือชั้นละ 28 ยูนิต ตำแหน่งห้องก็เหมือนกับชั้น 2 – 29 ครับ

ชั้นบนสุด ของอาคารพักอาศัย คือชั้น 35 จัดเป็นสวนหย่อมให้ลูกบ้านขึ้นไปรับลมชมวิวได้ ซึ่งมีวิวสองแบบคือฝั่งด้านหน้าจะมองไปทางอ่าวไทย ส่วนด้านหลังจะได้วิวมองไปทางเมืองครับ ชั้นดาดฟ้าของอาคารจอดรถ 9 ชั้น ก็มีสวนมาให้เช่นกันลูกบ้านมาทำกิจกรรมต่างๆได้ มีสนามบาสแบบครึ่งสนาม
Units Layout
โครงการนี้มีห้องให้เลือก 4 แบบ

1 Bedroom 1 Bath 23.00 – 23.50 ตร.ม.
1 Bedroom Plus 1 Bath 35.00 ตร.ม.
1 Bedroom Plus 2 Bath 39.50 ตร.ม.
1 Bedroom Plus 1 Bath 40.00 ตร.ม.
ห้องตัวอย่าง
ห้องตัวอย่างที่จะพามาชมวันนี้มีสองแบบครับ จะเป็นแบบ 1 Bedroom 1 Bath ขนาด 23.5 ตร.ม. และ 1 Bedroom Plus 1 Bath ขนาด 35 ตร.ม.

1 Bedroom ขนาด 23 – 23.5 ตร.ม. เป็นห้องที่มีจำนวนเยอะที่สุดในโครงการครับ เดินเข้าห้องมาจะเจอส่วนครัวก่อนเลยได้เป็นครัวเปิด เชื่อมกับพื้นที่รับประทานอาหารและห้องนั่งเล่น ห้องนั่งเล่นจะอยู่ติดระเบียงด้านหลัง ฝั่งขวามือจะเป็นห้องนอน โดยที่มีห้องน้ำอยู่ในห้องนอนครับ ห้องน้ำแบ่งพื้นที่ส่วนเปียกส่วนแห้ง
เริ่มจากหน้าประตูทางเข้า ไม่มีประตูมาให้ดูนะครับ ของจริงจะเป็นบาน HDF
เดินเข้าห้องมาจะเจอส่วนครัวก่อน ได้เป็นครัวเปิดเชื่อมกับพื้นที่ห้องนั่งเล่น และยาวไปถึงระเบียงหลังห้อง ขวามือจะเป็นประตูเข้าห้องนอน ส่วนห้องน้ำจะอยู่ในห้องนอน พื้นห้องได้เป็นไม้ลามิเนตหนา 8 มม. ผนังจะได้ฉาบเรียบทาสีทั้งห้อง ฝ้าสูง 2.65 ม. ไฟจะได้แบบดาวน์ไลท์หลอด LED
เดินเข้าห้องมาแล้วมองกลับไปที่ประตูทางเข้า
ชุดเคาน์เตอร์ครัวที่ได้จะเป็นตู้บานเปิด 3 บาน มีช่องสำหรับวางเครื่องซักผ้าขนาด 8 กก.ได้
ได้เตาไฟฟ้าหน้าเซรามิค 2 หัววางแนวตั้งพร้อมเครื่องดูดควันของ Mex
อ่างล้างจานได้แบบหลุมเดียวไม่มีที่พักจานของ Mex
ฝั่งตรงข้ามชุดครัวจะเป็นพื้นที่วางตู้เย็น ติดกันวางโต๊ะรับประทานอาหารมาให้ดู
พื้นที่วางโต๊ะรับประทานอาหารวางเก้าอี้ได้ตัวเดียว แต่อีกคนสามารถใช้โซฟานั่งแทนได้
ถัดไปเป็นห้องนั่งเล่นพื้นที่เปิดเชื่อมส่วนครัว
วางโซฟาขนาด 2 ที่นั่งให้ดู
ระยะดูทีวีประมาณ 2.4 ม. จัดทีวีติดผนังไว้เผื่อประหยัดพื้นที่ครับ ขวามือเป็นห้องนอน แอร์ติดผนัง 1 ตัวของ Daikin
ถัดจากห้องนั่งเล่นเป็นระเบียง มีประตูกระจกบานเลื่อน 2 บาน
มือจับและตัวล็อคประตู
เปิดออกมาจะเจอระเบียงขนาด 2.4 x 0.60 ม. วางราวตากผ้าได้
ด้านบนจะแขวนคอมเพลสเซอร์แอร์ไว้สองตัวเป่าลมออกด้านนอก
มองไปทางซ้ายมือ
มองไปอีกฝั่ง
กลับเข้ามาด้านในห้อง ไปดูห้องนอนกันต่อ
ประตูทางเข้าห้องนอนจะอยู่ฝั่งทีวี
ภายในห้องนอนจัดวางมาให้ดูแบบนี้
วางเตียง 5 ฟุตให้ดูเหลือพื้นที่ปลายเตียงประมาณ 30 ซม.
พื้นที่ข้างเตียงหน้าตู้เสื้อผ้าเหลือประมาณ 1.4 ม.
พื้นที่ข้างเตียงอีกฝั่งเหลือประมาณ 20 ซม. ไวสำหรับผ้าม่าน
ระยะดูทีวีปลายเตียงประมาณ 2.3 ม. แอร์ติดผนังฝั่งนี้ 1 ตัว
ในห้องนอนมีหน้าต่างบานเลื่อน 2 บาน และบาน Fixed 1 บานด้านล่าง
ด้านข้างเตียงฝั่งด้านในเป็นตู้เสื้อผ้าวางอยู่หน้าห้องน้ำ
ตู้เสื้อผ้าทางโครงการมีมาให้เลยครับความสูงจากพื้นถึงฝ้า เป็นแบบบานเลื่อน 2 บานหน้าบานกระจก 1 บาน ด้านบนเป็นบานเปิด 2 บาน
ภายในห้องน้ำแบ่งส่วนเปียกส่วนแห้ง
อ่างล้างหน้าได้ของ American Standard
ติดกันเป็นโถสุขภัณฑ์ของ American Standard พร้อมสายชำระ
ด้านในเป็นพื้นที่ส่วนเปียกไม่มีฉากกั้นมาให้ต้องติดเพิ่มเอง ขวามือมีช่องสำหรับวางของได้ แบ่งมาให้ 2 ช่อง
ฝักบัวติดไว้ฝั่งนี้
หน้าตาฝักบัวที่ได้ของ American Standard ขนาดใหญ่
พื้นที่ส่วนเปียกขนาด 1 x 0.85 ม.
ธรณีสูงขึ้นมาประมาณ 5 ซม. กันน้ำไหลออกไปส่วนแห้งได้
ชุดปลั๊กและสวิตซ์ไฟที่ได้ เป็นของ Huco
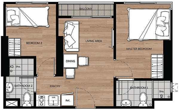
1 Bedroom Plus 1 Bath ขนาด 35 ตร.ม. ฟังก์ชั่นเหมือนกันต่างจากห้องแรกตรงที่มีห้องอเนกประสงค์เพิ่มมาอีกห้องที่สามารถทำเป็นห้องทำงาน ห้องเก็บของ หรือห้องนอนอีกห้องได้ครับ แปลนห้องหน้ากว้าง จัดส่วนห้องนอนและห้องนั่งเล่นไว้ตรงส่วนที่แสงเข้าถึงได้ เดินเข้าห้องมาจะเจอส่วนรับประทานอาหารก่อนเชื่อมกับห้องนั่งเล่นยาวไปจนถึงระเบียงด้านหลัง ฝั่งซ้ายจะมีทางเดินไปยังส่วนครัว ได้เป็นครัวเปิดเช่นกัน ถัดจากครัวจะเป็นห้องน้ำ พื้นที่แบ่งส่วนเปียกส่วนแห้งมีทางเข้าออกทางเดียว ฝั่งตรงข้ามเคาน์เตอร์ครัวจะเป็นห้องนอน และห้องอเนกประสงค์
เดินเข้าห้องมาจะเจอส่วนรับประทานอาหารที่เชื่อมกับห้องนั่งเล่นยาวไปจนถึงระเบียงหลังห้อง ฝั่งซ้ายจะมีทางเดินไปยังส่วนครัว ห้องน้ำ และห้องนอนกับห้องอเนกประสงค์ พื้นได้เป็นไม้ลามิเนตหนา 8 มม. ผนังได้ฉาบเรียบทาสีทั้งห้อง ฝ้าสูง 2.65 ม.
เดินเข้าห้องมาแล้วมองกลับไปที่ประตูทางเข้า
ส่วนแรกจะเป็นพื้นที่รับประทานอาหาร วางติดกับชุดโซฟาให้ดู
วางโต๊ะขนาด 4 ที่นั่งให้ดูครับ
ระยะพื้นที่เหลือไม่มาก ถ้าใครอยู่กันสองคนก็จัดโต๊ะชิดผนังไปเลยครับ
ถัดไปจะเป็นส่วนห้องนั่งเล่น
วางโซฟาให้ดูขนาด 3 ที่นั่ง พร้อมโต๊ะกลาง
ระยะดูทีวีประมาณ 2.4 ม. ติดทีวีไว้ตรงผนังเพื่อประหยัดพื้นที่ครับ
ถัดมาจะเป็นระเบียงมีประตูกระจกบานเลื่อน 2 บาน แอร์ติดเหนือประตู 1 ตัวของ Daikin
เปิดออกมาจะเจอระเบียงขนาด 2.4 x 0.60 ม.
แขวนคอมเพลสเซอร์แอร์ไว้ด้านบน
มองไปทางขวา
มองไปอีกฝั่ง
กลับเข้ามาด้านในห้อง
เดินไปดูอีกส่วนกันต่อ ฝั่งตรงข้ามกับส่วนรับประทานอาหารจะมีทางเดินไปส่วนครัว
ทางเดินเข้าไปยังส่วนครัว ฝั่งซ้าย และขวาวางชั้นวางของหรือชั้นวางรองเท้าได้
ชุดเคาน์เตอร์ครัวที่ได้เหมือนกับห้อง 1 Bedroom ขนาดเท่ากัน ฝั่งซ้ายมีพื้นที่วางตู้เย็น
ได้ Hob & Hood และอ่างล้างจานของ Mex
ถัดจากส่วนครัวจะเป็นโถงหน้าห้องน้ำซ้ายมือ ห้องนอน และห้องอเนกประสงค์ขวามือ
ภายในห้องน้ำแบ่งส่วนเปียกส่วนแห้ง
ชุดอ่างล้างหน้าที่ได้ของ American Standard
ติดกันวางโถสุขภัณฑ์ของ American Standard
ด้านในสุดเป็นพื้นที่ส่วนเปียก ซ้ายมือมีช่องวางอุปกรณ์ต่างๆมาให้สองช่อง
ฝักบัวได้ของ American Standard
พื้นที่ส่วนเปียกขนาด 1 x 0.85 ม.
ธรณีทำมาสูงประมาณ 5 ซม. กันน้ำเลอะเทอะด้านนอก
ออกจากห้องน้ำมาไปต่อกันที่ห้องนอนซ้ายมือ ขวามือเป็นห้องอเนกประสงค์
ภายในห้องนอนฟังก์ชั่นเหมือนห้องแรก วางเตียงชิดผนังด้านนอก
วางเตียงขนาด 5 ฟุตให้ดู พื้นที่ปลายเตียงเหลือประมาณ 50 ซม.
พื้นที่ข้างเตียงด้านในเหลือประมาณ 1.4 ม.
พื้นที่ข้างเตียงริมหน้าต่างเหลือประมาณ 20 ซม.ไว้เป็นช่องผ้าม่าน
ระยะดูทีวีปลายเตียงประมาณ 2.5 ม.
ฝั่งด้านข้างเตียงได้ตู้เสื้อผ้าสูงจากพื้นถึงฝ้า
ตู้ที่ได้เป็นบานเลื่อน 2 บาน และบานเปิดด้านบน 2 บาน
ภายในห้องอเนกประสงค์ ที่สามารถทำเป็นห้องทำงาน ห้องเก็บของ หรือห้องนอนเล็กอีกห้องเหมือนห้องตัวอย่างครับ
วางเตียงเดี่ยวให้ดูชิดผนัง
พื้นที่ข้างเตียงเหลือประมาณ 80 ซม.
พื้นที่ปลายเตียงเหลือประมาณ 20 ซม.
ระยะดูทีวีปลายเตียงประมาณ 2.2 ม. แอร์ติดผนัง 1 ตัว
ฝั่งด้านในมีตู้เสื้อผ้ามาให้
เป็นตู้บานเปิด 4 บาน ด้านในแบ่งช่องเก็บของ
ราคา
เริ่มต้น 2,190,000 บาท
ค่าส่วนกลาง 35 บาท/ตร.ม. : ค่ากองทุน 500 บาท/ตร.ม
***รายละเอียดอื่นๆโปรดสอบถามทางโครงการครับ
สรุป
ทำเลที่ตั้งโครงการ – Notting Hill สุขุมวิท – แพรกษา ตั้งอยู่ในจังหวัดสมุทรปราการ ติดถนนแพรกษา ความอุดมสมบูรณ์โดยรอบออกแนวชุมชนมีร้านโชห่วย ตลาดสด ตลาดนัด ร้านสะดวกซื้อห่างจากโครงการประมาณ 50 ม. ตามสองฝั่งทางถนนแพรกษามีร้านค้า ร้านอาหาร ให้เลือกพอสมควรหาของกินไม่ยากครับ ส่วนห้างสรรพสินค้าใกล้ๆตรงเส้นแพรกษามี Tesco Lotus เส้นสุขุมวิทมี Big C , Robinson แถวบางปูมี Tesco Lotus เส้นศรีนครินทร์มีซีคอนสแควร์ , พาราไดซ์ พาร์ค , HaHa Mall , ตลาดนัดรถไฟ ตรงเส้นบางนาตราดมีเซ็นทรัล บางนา , Big C , อิเกีย , เมกา บางนา
การเดินทางด้วยรถยนต์ส่วนตัว – ค่อนข้างสะดวกเนื่องจากโครงการติดถนนแพรกษาเป็นถนนขนาด 6 เลน พร้อมเกาะกลาง เส้นแพรกษาเป็นเส้นที่เชื่อมระหว่างถนนสุขุมวิทและถนนตำหรุ – บางพลี การเดินทางเข้าเมืองหลักๆใช้เส้นสุขุมวิท หรือเส้นศรีนครินทร์วิ่งเข้าเมืองได้เลยมีทางด่วนให้ขึ้นใกล้ๆคือ กาญจนาภิเษก หรือไปขึ้นแถวแยกบางนาก็ได้เช่นกัน หรือขึ้นแถวพัฒนาการก็ได้อีกจุดถ้าวิ่งเส้นศรีนครินทร์ ออกเมืองเส้นสุขุมวิทวิ่งไปทางฉะเชิงเทรา ชลบุรีได้เลย หรือวิ่งไปทางถนนกิ่งแก้วจะไปออกเส้นบางนาตราด เลยไปสุวรรณภูมิ ลาดกระบัง มีนบุรีครับ
การเดินทางด้วยรถสาธารณะ – ออกมาหน้าโครงการมีป้ายรถเมล์ แต่มีรถไม่กี่สาย สองแถวก็มีให้ขึ้นหน้าโครงการได้เลย วินมอเตอร์ไซค์จะอยู่ตรงปากซอยเทศบาลบางปู 26 ถ้าจะให้หลากหลายหน่อยต้องมาแถวเส้นสุขุมวิทมีทั้งรถเมล์ รถสองแถว รถตู้ มีวิ่งผ่านหลายสายทั้งเข้าและออกเมือง นอกจากนี้ยังอยู่ใกล้แนว BTS สายสีเขียวส่วนต่อขยายช่วงแบริ่ง – สมุทรปราการ โดยสถานีที่ใกล้สุดคือ BTS แพรกษาระยะห่างจากโครงการประมาณ 800 ม. ซึ่งตอนนนี้อยู่ในช่วงก่อสร้างอีกไม่นานคงได้ใช้กันครับ เมื่อเปิดใช้บริการคงจะสะดวกสบายมากขึ้นถ้าจะเดินทางเข้าเมือง
การออกแบบโครงการและวัสดุ – โครงการออกแบบมาเป็น 3 อาคาร ตั้งอยู่บนพื้นที่ดินขนาด 3 ไร่ 1 งาน 91 ตารางวา แบ่งเป็นร้านค้าสองชั้น 1 อาคารอยู่ด้านหน้าให้คนภายนอกเข้ามาใช้บริการได้ อาคารพักอาศัยสูง 35 ชั้นชั้นพักอาศัยเริ่มที่ชั้น 2 – 34 ที่ชั้น 35 จะเป็นสวนลอยฟ้า และพื้นที่ด้านหลังโครงการจะเป็นอาคารจอดรถ 9 ชั้น ชั้นดาดฟ้าจัดเป็นสวนหย่อมอีกจุด Facility หลักๆอยู่ที่ชั้น 1 ของอาคารพักอาศัย
การออกแบบในห้องพักอาศัยมีมาให้เลือก 4 แบบ มี 1 Bedroom ขนาด 23.00 – 23.50 ตร.ม. , 1 Bedroom Plus ขนาด 35.00 ตร.ม. , 1 Bedroom Plus ขนาด 39.50 ตร.ม. , 1 Bedroom Plus ขนาด 40.00 ตร.ม. ฟังก์ชั่นห้องจะคล้ายๆกันต่างกันตรงที่แบบ Plus จะมีห้องอเนกประสงค์เพิ่มมาให้ รูปแบบห้องออกแบบมาเน้นให้มีช่องแสงเข้าถึงเพื่อให้ห้องดูไม่อึดอัดแม้จะมีขนาดเล็ก
โครงการขายแบบ Fully Fitted มีเฟอร์นิเจอร์ให้บางส่วน เริ่มจากพื้นห้องได้เป็นไม้ลามิเนตหนา 8 มม. ฝ้าสูง 2.65 ม. ผนังจะได้ฉาบเรียบทาสีขาวทั้งห้อง ภายในทุกห้องนอนจะได้ตู้เสื้อผ้าขนาด 2 บาน ห้องอเนกประสงค์จะได้ขนาดเล็กกว่าหน่อย ครัวได้แบบเปิดมีชุดเคาน์เตอร์ครัว อ่างล้างจานได้แบบหลุมเดียวไม่มีที่พักจาน พร้อม Hob & Hood ของ Mex สุขภัณฑ์ในห้องน้ำเป็นของ American Standard ไม่มีฉากกั้นส่วนเปียกต้องติดเพิ่มเอง แอร์จะได้ตรงห้องนั่งเล่นและทุกห้องนอนของ Daikin
สิ่งอำนวยความสะดวก – Facility จัดมาให้เยอะพอสมควร หลักๆของโครงการจะอยู่ที่ชั้น 1 มี Lobby เชื่อมกับ Co-working space ลูกบ้านลงมานั่งทำงาน อ่านหนังสือได้ ฝั่งทางทิศตะวันตกมีสระว่ายน้ำ ติดตรงที่เอาไว้ชั้น 1 น่าจะยกไปไว้ชั้นบนสุดของอาคารจอดรถก็ยังดีครับ สระว่ายน้ำระบบเกลือขนาด 8 x 20 ม. ลึก 1.2 ม. พร้อมพื้นที่ริมสระ รอบนอกจัดตกแต่งสวนไว้ให้ครับ ติดกับสระว่ายน้ำมีห้องฟิตเนสผนังเป็นกระจกมองวิวสระว่ายน้ำและสวนหย่อมด้านนอกได้
และที่ชั้น 35 จัดเป็นสวนลอยฟ้ามาให้แบ่งวิวเป็นสองฝั่ง ด้านหน้าจะได้วิวมองไปทางอ่าวไทย และด้านหลังได้วิวในเมือง มีพื้นที่ให้นั่งรับลมชมวิว อีกจุดจะอยู่ที่ชั้นดาดฟ้าของอาคารจอดรถ 9 ชั้น จัดเป็นสวนหย่อมอีกจุด มีสนามบาสแบบครึ่งสนาม พร้อมที่นั่งพักผ่อนตามจุดต่างๆ ที่จอดรถทั้งโครงการรวมซ้อนคันจอดได้ 343 คัน หรือคิดเป็น 35% ลิฟท์โดยสารมี 4 ตัว อัตราส่วนอยู่ที่ 245 : 1 ถือว่าเยอะพอสมควรเวลาเร่งด่วนคงต้องรอกันนานหน่อย มีลิฟท์ขนของ 1 ตัว ระบบรักษาความปลอดภัยมีรปภ. CCTV และผ่านเข้าออกส่วนพักอาศัยด้วยระบบ Key Card Access
คะแนน
| ทำเลที่ตั้งโครงการ | 7.5 | อยู่ติดถนนใหญ่ 6 เลนไม่ต้องเข้าซอย มีความอุดมสมบูรณ์ในตัว |
| การเดินทาง ใช้รถ | 8.0 | การเดินทางสะดวกมีเส้นทางหลากหลาย แต่รถติดเส้นสุขุมวิท |
| การเดินทาง ไม่ใช้รถ | 8.0 | ห่างจาก BTS แพรกษาประมาณ 800 ม. มีรถเมล์, รถสองแถว, วินมอเตอร์ไซค์ , Taxi |
| ห้องและวัสดุ | 7.5 | วัสดุที่ใช้อยู่ในระดับมาตรฐานตามราคา ขายแบบ Fully Fitted |
| สิ่งอำนวยความสะดวก | 7.5 | Facility มีสระว่ายน้ำ , ฟิตเนส , สวนลอยฟ้า 2 จุด , สนามบาส , co-working space |
| ความคุ้มค่ากับราคา | 7.3 | เหมาะกับคนที่ทำงานอยู่โซนนี้ เดินทางเข้าออกเมืองบ้าง ใช้ทั้งรถส่วนตัวและระบบขนส่งสาธารณะ |
| คะแนนรวมเฉลี่ย | 7.63 | ดี |
สอบถามเพิ่มเติมได้ที่
Tel : 02-300-0000
Website : http://nottinghill.origin.co.th/praksa/
หากเพื่อนๆเห็นว่ารีวิวนี้มีประโยชน์ ช่วยกด Like เพื่อเป็นกำลังใจให้ทีมงาน ขอบคุณครับ
และมีความคิดเห็นหรือข้อมูลเพิ่มเติมเกี่ยวกับตัวโครงการ สามารถ Comment ได้ที่ด้านล่างของรีวิวครับ
คอนโด สมุทรปราการ ทำเลอื่นๆ ที่น่าสนใจ…
คอนโด Pause ID สุขุมวิท 107 (แบริ่ง 16) เริ่ม 1.49 ล้าน
คอนโด บลิซ แบริ่ง (สุขุมวิท 109)
คอนโด The Metropolis สำโรง อินเตอร์เชนจ์ เริ่ม 1.9 ล้าน
คอนโด ลุมพินี วิลล์ สุขุมวิท 76-แบริ่ง สเตชั่น
คอนโด ยูนิโอ สุขุมวิท 72 เริ่ม 9.5 แสน
คอนโด Notting Hill สุขุมวิท 107
คอนโด บี-ลอฟท์ สุขุมวิท 109
คอนโด Pause สุขุมวิท 107 เริ่ม 1.99 ล้าน
คอนโด Voque Place สุขุมวิท 107 (แบริ่ง)
คอนโด Notting Hill สุขุมวิท-แพรกษา
คอนโด ดิ อเวนิว แอท เท็น
แสดงความคิดเห็น เกี่ยวกับ " รีวิว คอนโด Notting Hill สุขุมวิท-แพรกษา ใกล้รถไฟฟ้า BTS แพรกษา "