
EP.375 รีวิว คอนโด ริธึ่ม เจริญกรุง พาวิลเลี่ยน RHYTHM Charoenkrung Pavillion
Written By Sawarose Tchnar
สวัสดีค่ะผู้อ่าน CONDONAYOO ทุกท่าน สำหรับใครที่กำลังมองหาคอนโดใกล้ใจกลางเมือง ใกล้รถไฟฟ้า เพื่ออยู่อาศัยหรือเพื่อการลงทุนกันอยู่นั้น วันนี้เรามีโครงการคอนโดหรูจากบริษัท AP มาฝากกันค่ะ กับโครงการ RHYTHM เจริญกรุง พาวิลเลี่ยน คอนโดใหม่วิวแม่น้ำเจ้าพระยา โครงการร่วมทุนลำดับที่ 18 ระหว่างบริษัท เอพี (ไทยแลนด์) จำกัด (มหาชน) และมิตซูบิชิ เอสเตท เรสซิเดนท์ (บริษัทในเครือมิตซูบิชิ เอสเตท กรุ๊ป) บนทำเลศักยภาพ ติดถนนเจริญกรุง แขวงวัดพระยาไกร เขตบางคอแหลม กทม.
ทำเลมีความสะดวกสบายและอุดมสมบูรณ์สูง ใกล้ทางด่วน และ CBD สาทร ใกล้สถานีรถไฟฟ้า BTS สะพานตากสิน ใกล้ Asiatique The Riverfront, Central พระราม 3, Tesco Lotus พระราม 3, Home Pro พระราม 3, รร.นานาชาติ โชรส์เบอรี่ (ริเวอร์ไซด์), รร.กรุงเทพคริสเตียน, รร.อัสสัมชัญ, รร.วัดสุทธิวราราม, รพ.เซนต์หลุยส์, รพ. BNH และ รพ.กรุงเทพคริสเตียน
ริธึ่ม เจริญกรุง พาวิลเลี่ยน เป็นคอนโด High Rise 44 ชั้น และ 1 ชั้นใต้ดิน และริธึ่ม พาวิลเลี่ยน 1 อาคาร สูง 1 ชั้น และ 2 ชั้นใต้ดิน พื้นที่โครงการ 4-2-76.6 ไร่ จำนวนยูนิต 421 ยูนิต (ร้านค้า 1 ยูนิต) มีห้องพักให้เลือกแบบ 1-4 ห้องนอน ยูนิตถึง 90% เห็นวิวแม่น้ำเจ้าพระยา ขนาดห้องเริ่มต้น 35.00-228.00 ตร.ม. คาดว่าแล้วเสร็จประมาณปี 2565
พื้นที่ส่วนกลางกว่า 3.5 ไร่* สิ่งอำนวยความสะดวกภายในโครงการครบครัน CLOSER TO EVERY LIFE JOURNEY โครงการต้นแบบภายใต้แนวคิด The Luxury Gated Community พร้อมคอมมิวนิตี้ที่เป็นส่วนตัว และปลอดภัย ตอบโจทย์ทุกเจเนอเรชั่นอาทิ Lobby, Mailbox, Sky Lounge, Play Space, Infinity Edge Pool ยาวกว่า 47 เมตร, Kid Pool, For Co-Generations Living, Fitness, ที่จอดรถ จำนวน 421 คัน (100% ไม่รวมจอดซ้อนคัน), ระบบ CCTV, ระบบ Key Card Access พร้อมระบบรักษาความปลอดภัยตลอด 24 ชม. 1 ห้องนอน (35 ตร.ม.) เริ่ม 4.9 ล้าน*
ลงทะเบียนเพื่อรับข้อมูล Exclusive ของโครงการ และส่วนลดเพิ่มสูงสุด 500,000 บาท* คลิก ➤ https://bit.ly/2ZYwcHB
| ชื่อโครงการ | ริธึ่ม เจริญกรุง พาวิลเลี่ยน RHYTHM Charoenkrung Pavillion |
| เจ้าของโครงการ | เอพี ไทยแลนด์ / AP Thailand |
| เนื้อที่ทั้งหมด | 4-2-76.6 ไร่ |
| จำนวนตึก | 1 อาคาร |
| จำนวนชั้น | 44 ชั้น + 1 ชั้นใต้ดิน |
| จำนวนห้อง | 4-2-76.6 ไร่ |
| ลักษณะห้องและขนาดห้อง |
|
| ที่จอดรถทั้งหมด | 421 คัน (100% ไม่รวมจอดซ้อนคัน) |
| จำนวนลิฟต์ | รอข้อมูลจากทางโครงการ |
| โซน | เจริญกรุง |
| ขนส่งสาธารณะ |
|
| ที่ตั้ง | ถนน เจริญกรุง แขวงวัดพระยาไกร เขตบางคอแหลม กรุงเทพมหานคร 10120 |
| กำหนดการ | เปิดขายปลายปี 2562 |
| ปีที่สร้างเสร็จ | ประมาณ Q4 ปี 2565 |
| ราคา | เริ่มต้น 4.9 ล้านบาท* |
| ราคาเฉลี่ยต่อ ตร.ม | ประมาณ 155,000 บาท/ตร.ม. |
| ค่าส่วนกลางและกองทุน |
|
| สถานที่สำคัญใกล้เคียง | ศูนย์การค้า
หน่วยงาน และอื่นๆ
สถานศึกษา
ศูนย์การแพทย์
|
| สิ่งอำนวยความสะดวก |
G FLOOR
2nd FLOOR
42nd FLOOR
43rd FLOOR
44th FLOOR
|
| จุดเด่นของโครงการ | RHYTHM เจริญกรุง พาวิลเลี่ยน พบคอนโดใหม่ระดับไฮเอนด์ เพื่อคุณภาพชีวิตที่ดีของคนทุกเจเนอเรชั่น ที่เจริญกรุง 73 เชื่อมต่อไปยังใจกลางสาทร CBD ตรงข้ามโรงเรียนนานาชาติโชรส์เบอรี่ |
ที่ตั้งโครงการ
ถนน เจริญกรุง แขวง วัดพระยาไกร เขตบางคอแหลม กรุงเทพมหานคร 10120
พิกัด Google Maps : https://goo.gl/maps/EfgPjstLCpQ5G1757
โครงการ RHYTHM เจริญกรุง พาวิลเลี่ยน คอนโดวิวแม่น้ำเจ้าพระยาโครงการใหม่ล่าสุดจาก AP ตั้งอยู่ติดถนนเจริญกรุงและถนนจันทน์ ห่างจาก CBD สาทร เพียง 1 กม. การเดินทางสะดวกสบายทั้งรถ-ราง-เรือ ใกล้ถนนเส้นหลัก, ทางด่วน และ มีเส้นทางลัดให้ได้ใช้หลายทาง
รวมถึงเป็นโครงการที่ใกล้กับรถไฟฟ้า BTS สะพานตากสิน ที่มีท่าเรือสาทร ตากสิน, ท่าเรือข้ามฟากตากสิน ให้เป็นอีกทางเลือกในการเดินทาง
ทั้งยังเป็นโครงการใหม่บนทำเลศูนย์กลางแหล่งธุรกิจสำคัญของกทม. ใกล้ทั้ง CBD สาทร-สีลม และ CBD สุขุมวิท รายล้อมไปด้วยแหล่งงาน และอาคารสำนักงานขนาดใหญ่ ความอุดมสมบูรณ์มีให้ครบรอบด้าน ทั้งร้านค้าดั้งเดิม, ร้านอาหารชื่อดัง และ ร้านอาหารนานาชาติเลิศรสมากมาย
ไม่ไกลจาก Asiatique The Riverfront ที่มีนักท่องเที่ยวชาวต่างชาติทั้งชาวเอเชีย และ ชาวยุโรป ตบเท้าเข้ามาเที่ยวตลอดทั้งปี และยังเป็นโครงการที่ใกล้โรงเรียนชื่อดัง และโรงพยาบาลชั้นนำมากมาย เป็นอีกหนึ่งโครงการที่อยู่บนทำเลใจกลางเมือง ที่รายล้อมไปด้วยแหล่งอำนวยความสะดวกที่เอื้อต่อการใช้ชีวิตประจำวันและการทำงานได้เป็นอย่างดีเลยทีเดียวค่ะ
การเดินทางโดยรถส่วนตัว : เดินทางด้วยรถยนต์ได้สะดวก โครงการ RHYTHM เจริญกรุง พาวิลเลี่ยน อยู่ตรงหัวมุมติดถนนเจริญกรุงและถนนจันทน์เลย โดยทางเข้าออกหลักของโครงการที่รถผ่านเข้าออกได้จะอยู่ฝั่งถนนจันทน์ ใช้เชื่อมต่อไปยังถนนเจริญราษฎร์, ถนนสาธุประดิษฐ์, ถนนนราธิวาส และ ออกไปถนนนางลิ้นจี่ ออกไปซอยเย็นอากาศ ลัดสู่พระราม 4 ได้ง่าย ๆ และ ทั้ง 3 เส้นหลักก็ยังสามารถใช้เชื่อมต่อไปยังถนนสาทร, ถนนพระราม 3 และ ถนนรัชดาภิเษกได้เช่นเดียวกัน
จากถนนเจริญกรุงหน้าโครงการเลย วิ่งฝั่งขาเข้าจะมีแยกเพื่อตัดเข้าสู่ถนนสาทร ขับตรงไปจะเชื่อมไปยังโซนบางรัก หากวิ่งฝั่งขาออกจะเชื่อมต่อไปยังถนนพระราม 3 ใช้ออกไปยังดาวคะนอง, พระราม 2, สุขสวัสดิ์, ประชาอุทิศ, พระประแดง หรือใช้ออกเมืองไปยังโซนปู่เจ้าฯ-สมุทรปราการได้เลย
หากต้องการไปโซนวงเวียนใหญ่, เพชรเกษม, ราชพฤกษ์ จากถนนเจริญกรุงนี้ เราขับตรงไปเชื่อมกับถนนสาทร วิ่งขึ้นสะพานตากสิน แล้ววิ่งตามแนวรถไฟฟ้า ก็จะสามารถเชื่อมสู่ถนนราชพฤกษ์, ถนนบรมราชชนนี, ถนนเพชรเกษม ได้อย่างรวดเร็ว
ส่วนคนที่จะเข้าเมืองไปทำงาน ไปออกกำลังกายที่สวนลุมพินี หรือ ออกไปเดินเล่นศูนย์การค้าใหญ่ ๆ ก็สามารถใช้เส้นสาทรฝั่งขาเข้า วิ่งไปยังพระราม 4, ถนนวิทยุ, ถนนเพลินจิต ออกไปถนนชิดลม และ ถนนเส้นหลักใจกลางเมืองชั้นในอื่น ๆ ได้ตามความต้องการ
รวมถึงเป็นโครงการที่ใกล้กับทางด่วนเส้นหลักหลายจุด ใกล้ที่สุดจะเป็นทางพิเศษศรีรัช ด่านถนนจันทน์ ขับรถออกจากโครงการมาเพียง 1 กม. ถึงจุดขึ้นทางด่วน นอกจากด่านถนนจันทน์ ก็ยังมีให้เลือกใช้อีกหลายจุด
ไม่ว่าจะเป็นจุดขึ้นทางด่วน ด่านสาทร, จุดขึ้นทางด่วน ด่านเจริญราษฎร์, จุดขึ้นทางด่วน ด่านนางลิ้นจี่ และ จุดขึ้นทาง ด่วนสุรวงศ์ ระยะทางจากโครงการไปจุดขึ้นทางด่วน ทุกด่านไม่เกิน 3 กม. ถ้าในช่วงการจราจรปกติ ประมาณ 5-10 นาที ก็ถึงแล้วค่ะ
ระยะทางจากแยกและถนนสำคัญโดยรอบจุดใกล้ที่สุด
:: การเดินทางโดยสาธารณะ ::
นอกจากจุดเด่นของโครงการ Rhythm เจริญกรุง พาวิลเลี่ยน ที่เป็นคอนโดใจกลางเมืองแล้ว ยังมีจุดเด่นอีกอย่างคือ เป็นคอนโดที่ใกล้ระบบคมนาคมครบทั้งรถ-ราง-เรือ มีรถสาธารณะต่าง ๆ ให้ได้ใช้ไปต่อกันได้ง่าย ๆ ทั้งจากถนนจันทน์ และถนนเจริญกรุง ออกมาหน้าโครงการจะมีรถสองแถวแดงผ่านหลายสาย ครอบคลุมเส้นทางรอบเมืองในย่านนี้ ส่วนมอเตอร์ไซค์รับจ้างมีผ่านหน้าโครงการตลอดทั้งวัน ใช้นั่งไปต่อรถไฟฟ้า หรือ นั่งไปหาของทานอร่อย ๆ ใกล้ ๆ ได้ง่าย
การเดินทางจากโครงการไปรถไฟฟ้า BTS สะพานตากสิน โดยระยะทางจากโครงการประมาณ 1.1 กม. อันนี้ก็แล้วแต่คนสะดวกค่ะ เดินไปได้ประมาณ 10 กว่านาทีถึง นั่งพี่วินมอเตอร์ไซค์ไปก็ 1 นาทีถึงละ
จุดเด่นของ BTS สถานีตากสิน คือถัดจากตัวสถานีรถไฟฟ้าเข้าไป จะมีท่าเรือด่วนสาทร-ตากสิน และ ท่าเรือข้ามฟากตากสิน ที่ใช้ข้ามไปฝั่งเจริญนคร ใครทำงานแถบ ๆ คลองสาน-เจริญนคร ใช้เรือข้ามฟากไปก็สะดวกค่ะ
ส่วนคนที่ต้องเดินทางไปต่อรถไฟฟ้าใต้ดิน ก็สามารถนั่งไปเปลี่ยนเส้นทางได้ที่สถานีศาลาแดง แล้วเดินบน Sky Walk ไปเชื่อมต่อรถไฟฟ้าใต้ดินได้ที่ MRT สีลม ส่วนใครที่จะนั่งไปเดินเล่นสยามสแควร์, สยามพารากอน ก็นั่งไปเปลี่ยนเป็นสายสุขุมวิทที่สถาชิดลม แล้วนั่งไปอีก 1 สถานีก็ถึงสยาม เดินเข้าทางเชื่อมไปยังสยามพากอนได้เลย
นอกจากรถสาธารณะ, รถไฟฟ้า-เรือด่วน-เรือข้ามฝากแล้ว ยังมีรถด่วนกทม. หรือ BRT ให้ได้ใช้กันด้วย โดยสถานีต้นทาง (สถานีสาทร) จะอยู่ตรงแยกสาทร-นราธิวาส โดยเส้นทางการเดินรถจะวนลูปเป็นรูปตัว U เริ่มบนเส้นถนนนราธิวาสฯ ผ่านถนนพระราม 3 และ สิ้นสุดที่สถานีราชพฤกษ์ ตรงแยกรัชดา-ตลาดพลูค่ะ
:: บริเวณโครงการ ::
สิ่งอำนวยความสะดวก และ สถานที่สำคัญโดยรอบโครงการ รัศมี 5 กม. ทำเลย่านถนนจันทน์ และ เจริญกรุง เป็นแหล่งที่อยู่อาศัยขนาดใหญ่ดั้งเดิมของคนไทยเชื้อสายจีน และ คนอิสลาม บวกกับเป็นย่านของแหล่งท่องเที่ยว และ ที่ตั้งของโรงแรมระดับ 4-5 ดาวหลายแห่ง ในทุก ๆ วันจะมีทัวร์จากประเทศต่าง ๆ มาเข้าพัก ทำให้ทำเลในย่านนี้มีความอุดมสมบูรณ์สูง รายล้อมไปด้วยแหล่งอำนวยความสะดวกครบครัน ที่สำคัญถนนจันทน์ และ ถนนเจริญกรุง ก็นับได้ว่าเป็นย่านที่ขึ้นชื่อในเรื่องของกินอร่อย ๆ มีร้านอาหารนานาชาติเลิศรส เจ้าเด็ดเจ้าดังเปิดขายเรียงราย ไม่แพ้เยาวราชเลยค่ะ
จากหน้าโครงการออกมาที่ถนนจันทน์ ตลอด 2 ข้างทางริมถนนจันทน์ เป็นแหล่งของร้านอาหารอร่อย ๆ ขึ้นชื่อมากมาย มีทั้งร้านก๋วยจั๊บมิสเตอร์โจ, ร้านก๋วยเตี๋ยวเป็ดกิตติ, ร้านหมูกระทะ เฮง เฮง เฮง, ร้านข้าวต้มปลาเฮียหวาน, ร้านเชลล์ชวนชิม หลับจั๊บ ส่วนร้านอาหารอีสานนี้ไม่ต้องพูดถึงค่ะ มีเป็นสิบ ๆ ร้าน เลือกทานได้ตามชอบ นอกจากของคาวแล้วยังมีคาเฟ่ขนมหวานแบบสมัยใหม่ให้เลือกอีกมากมายหลายร้าน
นอกจากคาเฟ่สมัยใหม่แล้ว ยังมีร้าน เซ็ง เซ็ม อี๊ สาขาตรอกจันทน์ สะพาน 3 ที่ตั้งอยู่ติดกับร้านเชนชวนชิม หลับจั๊บ เป็นร้านหวานเย็นเครื่องแน่น ที่สามารถนั่งทานที่ร้าน หรือ จะซื้อห่อกลับบ้านก็ได้ นอกจากนั้นยังมีตลาดสะพาน 3 และ ร้านอาหารในซอยเซนต์หลุยส์ให้ได้เลือกไปทานกัน
มี Vanilla Moon ที่เป็นคอมมูนิตี้มอลล์แห่งแรกของถนนจันทน์ ที่ห่างจากโครงการไปเพียงแค่ 1.3 กม. เท่านั้น ภายใน Vanilla Moon ก็จะมีทั้ง MaxValu ที่เปิดตลอด 24 ชม. มีร้านอาหารนานาชาติ, โรงเรียนกวดวิชา และ ร้านค้าต่าง ๆ มากมาย รวมถึงมีร้านกาแฟ Starbucks ที่ด้านหน้าไว้ให้ไปนั่งจิบชา-กาแฟ นั่งทำงาน หรือ ใช้เป็นสถานที่นัดคุยงาน พบปะพูดคุยกับเพื่อน ๆ กันได้
ไปที่ฝั่งถนนเจริญกรุง ก็จะมี Asiatique The Riverfront ออกจากหน้าปากซอยโครงการ แล้วเลี้ยวซ้ายเข้าสู่ถนนเจริญกรุง ตรงแยกตรอกจันทน์ ขับตรงไปอย่างเดียว Asiatique จะอยู่ทางฝั่งขวามือ ระยะทางจากโครงการไปประมาณ 1 กม. สามารถไปฝากท้อง กินดื่ม ช้อปปิ้ง เดินเล่นรับลม ชมวิวแม่น้ำเจ้าพระยาชิว ๆ กันได้ตามอัธยาศัย ถ้าใครรักสุขภาพสามารถปั่นจักรยานไปได้เลยค่ะ ในนั้นจะมีคาเฟ่สำหรับคนรักจักรยาน ไว้พบปะพูดคุยกันด้วย
ถ้าออกมาที่ถนนสาทรเหนือ-สาทรใต้ ส่วนมากจะเป็นอาคารสำนักงานขนาดใหญ่ และโรงแรมชั้นนำ ตั้งอยู่ติด ๆ กันเรียงยาวไปจนถึงถนนพระราม 4 ในส่วนของแหล่งช้อปปิ้ง ใกล้ที่สุดคือโรบินสัน บางรัก ห้างเก่าแก่ของคนย่านนี้เลย ตลอดทางเส้นบางรักก็จะมีร้านค้า ร้านอาหารแบบ Street Food ให้เลือกทานมากมาย
ถ้าไปทางพระราม 3 ก็จะมีเซ็นทรัล พระราม 3, เทสโก้ โลตัส พระราม 3, The Up พระราม 3 , Tree On 3 ในอนาคตอันใกล้นี้จะมี Icon Siam โปรเจคยักษ์ริมแม่น้ำเจ้าพระยา ที่ห่างจากโครงการเพียง 4.5 กม. เท่านั้นเอง
นอกจากเรื่องอาหารการกินแล้ว ก็ยังเป็นโครงการที่ใกล้กับโรงเรียนชื่อดังมากมาย ใกล้ที่สุดจะเป็น รร.นานาชาติ Shrewsbury ที่ห่างจากโครงการเพียง 100 เมตรเท่านั้น ถัดออกไปก็จะมี รร.วัดสุทธิวราราม, รร.สตรีศรีสุริโยทัย และ ม.ราชมงคลกรุงเทพฯ วิทยาเขตพระนครใต้
ออกไปโซนรอบ ๆ ทางฝั่งสาธุประดิษฐ์, นราธิวาสฯ, สาทร, นางลิ้นจี่ และ คอนแวนต์ ก็จะมี รร.พระแม่มารีสาทร, รร.กรุงเทพคริสเตียน, รร.สารสาสน์พิทยา, รร.นานาชาติสาทรใหม่, รร.สารสาสน์เอกตรา, รร.เซนต์หลุยส์, รร.นานาชาติ Raintree, รร.นานาชาติ Garden, รร.นานาชาติ Crescent, รร.เซนต์โยเซฟคอนแวนต์ และ ม.ราชมงคลกรุงเทพฯ
รวมถึงเป็นโซนของโรงเรียนในเครืออัสสัมชัญ มีกระจายไว้ครบทั้งแผนกประถม, มัธยม หญิง-ชาย และ ระดับพาณิชยการค่ะ
โรงพยาบาลก็มีกระจายไว้ครบ ใกล้ที่สุดจะเป็น รพ.เลิดสิน 1.6 กม. ถัดออกมาจะมี รพ.เซนต์หลุยส์, รพ. BNH, รพ.กรุงเทพคริสเตียน และ รพ.เจริญกรุงประชารักษ์ ทั้งหมดอยู่ในรัศมีไม่เกิน 4 กม. เจ็บไข้ได้ป่วยมาก็อุ่นใจค่ะ
ใกล้อาคารสำนักงานชื่อดังหลายแห่ง โดยหลัก ๆ จะเกาะอยู่บนเส้นสาทร ใกล้ทั้ง AIA Sathorn Tower ที่เป็นอาคารสำนักงานให้เช่าเกรดเอระดับพรีเมียม ในอนาคตนี่จะอยู่ติดกับสถานีศึกษาวิทยา ที่เป็นสถานีรถไฟฟ้าใหม่ของสายสีลมด้วย ถัดออกไปก็จะมี Chartered Square, TPIPL, JTC, Sathorn Square, Empire Tower, สาทรธานี คอมเพล็กซ์ และ Bangkok City Tower
สุดท้ายเป็นสถานที่ราชการ ตัวโครงการจะตั้งอยู่ใกล้กับศาลแพ่งกรุงเทพใต้ เพียง 600 เมตร คือสามารถเดินลัดขึ้นไปทางด้านหลังได้เลย ไม่ไกลจากสำนักงานเขตสาทร ซึ่งจะง่ายต่อการติดต่อธุระราชการ ทำเรื่องเอกสารงานทะเบียนราษฎร์ต่าง ๆ
มีสะพานปลากรุงเทพ ที่ตั้งอยู่ตรงข้ามกับศาลฯ กรุงเทพใต้ เป็นตลาดขายปลีก-ส่งอาหารทะเลขนาดใหญ่ ซึ่งหากวันไหนอยากกินอาหารทะเล สามารถเดินไปซื้อได้ง่าย ๆ ได้อาหารที่สดใหม่ แถมราคาไม่แพงอีกด้วยค่ะ
ศูนย์การค้า
หน่วยงาน และอื่นๆ
สถานศึกษา
ศูนย์การแพทย์
: ภาพประกอบการเดินทาง ::
วันนี้เรามีภาพการเดินทางจากรถไปสำนักงานขายโครงการมาให้ชมกันค่ะ เส้นทางการเดินทางตามลูกศรแดง โดยเริ่มเดินทางจากถนนราชดำริ => ถนนสีลม => เลี้ยวซ้ายเข้าถ.สุรศักดิ์ => เลี้ยวขวาเข้าถ.สาทร => จากถนนสาทรใต้ เราเลี้ยวซ้ายเข้าถนนเจริญกรุง ตรงไปประมาณ 1.1 กม.ก็จะเจอโครงการ Rhythm เจริญกรุง พาวิลเลี่ยน ทางซ้ายมือแล้วค่ะ
เราเริ่มเดินทางกันจากถนนราชดำริมุ่งหน้าไปสีลมค่ะ ที่จุดตัดระหว่างถนนราชดำริและถนนพระราม 4 เราจะเห็นสวนลุมพินี สวนสาธารณะใหญ่ใจกลางกรุงเทพฯทางด้านซ้าย
เราตรงผ่านสะพานไทย-ญี่ปุ่นเข้าถนนสีลม
พอเข้าถนนสีลมมาเราตรงผ่าน BTS ศาลาแดง ฝั่งซ้ายมือเป็นห้าง Silom Complex
ตรงต่อมาบนถนนสีลม ฝั่งซ้ายมือจะเป็นวัดแขก
เราเลี้ยวซ้ายเข้าถนนสุรศักดิ์
ตรงมาบนถนนสุรศักดิ์ ขวามือเป็นสน.ยานนาวา
ตรงมาจะเจอแยกให้เราเลี้ยวขวาเข้าถนนสาทร
บนถนนสาทร เราตรงไปตามป้ายไปเจริญกรุง
จากถนนสาทรใต้ เราเลี้ยวซ้ายเข้าถนนเจริญกรุง ตรงไปประมาณ 1.1 กม.ก็จะเจอโครงการ Rhythm เจริญกรุง พาวิลเลี่ยน ทางซ้ายมือแล้วค่ะ
จากถนนสาทรใต้ เราเลี้ยวซ้ายเข้าถนนเจริญกรุง
เราตรงมาบนถนนเจริญกรุง จะผ่านรร.วัดยานนาวาทางขวามือ
ตรงต่อมา จะผ่านศาลแพ่งทางฝั่งซ้ายมือ
ตรงต่อมาซ้ายมือจะเป็นวัดสุทธิวราราม ทางขวามือเป็นโรงเรียนวัดสุทธิ
เราตรงต่อไปผ่านจุดที่ตัดกับถนนจันทน์ จริงๆที่ดินโครงการ Rhythm เจริญกรุง พาวิลเลี่ยน จะอยู่ที่สี่แยกถนนจันทน์นี้เลยค่ะ
ผ่านสามแยกมาให้รีบชิดซ้าย ก็จะเจอกับที่ตั้งโครงการ Rhythm เจริญกรุง พาวิลเลี่ยน และสำนักงานขายทางฝั่งซ้ายมือแล้วค่ะ ที่ดินโครงการอยู่ติดซอยเจริญกรุง 73
รอบๆโครงการจะเป็นอย่างไรไปชมกันเลยค่ะ
:: รอบโครงการ ::
ที่ตั้งโครงการ Rhythm เจริญกรุง พาวิลเลี่ยน และสำนักงานขายอยู่ติดถนนเจริญกรุง(ติดซอยเจริญกรุง 73) และอยู่ติดถนนจันทน์ เรียกว่าอยู่ตรงแยกตรอกจันทน์พอดีค่ะ ทางเข้าออกหลักของโครงการอยู่ฝั่งถนนจันทน์ที่ใช้วิ่งไปขึ้นทางด่วนหรือเข้าสาทร-สีลมได้อย่างสะดวกสบาย
ทางเข้าฝั่งถนนเจริญกรุงเป็นทางเดินเท้า รอบๆโครงการมีความอุดมสมบูรณ์และสะดวกสบายสูงมาก ใกล้โรงเรียนนานาชาติโชรส์เบอรี่แบบ 100 เมตรถึง ใกล้ร้านอาหาร ร้านค้า แถมยังใกล้ BTS สะพานตากสินเพียงประมาณ 1.2 กม. ทำให้เป็นทำเลที่มีโรงแรมใหญ่ๆมากมาย
เรามีภาพบรรยากาศรอบๆโครงการและพาเดินจากโครงการไป BTS สะพานตากสินมาให้ชมกันค่ะ
เริ่มกันจากทางเข้า-ออกหลักของโครงการ Rhythm เจริญกรุง พาวิลเลี่ยน ที่เป็นทางเข้าออกสำหรับรถและคนเดินเท้าอยู่ติดกับถนนจันทน์แบบนี้
ภายในที่ดินโครงการและสำนักงานขายเตรียมที่จอดรถไว้ให้เรียบร้อยค่ะ
จากหน้าโครงการติดถนนจันทน์ มองไปฝั่งตรงข้ามเป็นมัสยิดดารุ้ลอาบิดีน
จากหน้าโครงการติดถนนจันทน์ มองไปด้านขวาตรงไปเป็นทางด่วนศรีรัช, ถนนสาธุประดิษฐ์และถนนนราธิวาส
อย่างที่บอกค่ะ ว่ารอบๆมีร้านอาหารเยอะมาก และหลากหลายสัญชาติค่ะ ทั้งร้านอาหารญี่ปุ่น
ร้านอาหารไทย ร้านอาหารจีน ร้านอาหารอินเดีย ร้านค้าและสิ่งอำนวยความสะดวกรอบๆก็มีมากมาย

จากหน้าโครงการติดถนนจันทน์มองไปทางด้านซ้ายเป็นแยกตรอกจันทน์ที่เชื่อมกับถนนเจริญกรุง
โครงการตั้งอยู่บนแยกตรอกจันทน์ แยกที่เชื่อมระหว่างถนนเจริญกรุงและถนนจันทน์
ด้านหน้าทางเข้าสำนักงานขายอยู่ติดฝั่งถนนเจริญกรุงและอยู่ติดซอยเจริญกรุง 73 แบบนี้
จากประตูทางเข้า-ออกสำหรับคนเดินเท้าจะเป็นถนนเจริญกรุง
จากหน้าโครงการติดถนนเจริญกรุงมองไปทางด้านซ้ายฝั่งนี้ตรงไปถนนพระราม 3
ฝั่งนี้ใกล้ๆโครงการมีร้านอาหารอินเดีย มีร้านขายยา มีร้านอาหารเยอะค่ะ เพราะอยู่ใกล้โรงแรมและโรงเรียนนานาชาติ
หน้าโครงการติดถนนเจริญกรุงมองไปด้านขวาตรงไปเชื่อมกับถนนสาทรและถนนจันทน์ ฝั่งตรงข้ามทางเข้าโครงการฝั่งนี้เป็นโรงแรม Chatrium
เดี๋ยวเราพาเดินจากหน้าโครงการ Rhythm เจริญกรุง พาวิลเลี่ยน ติดถนนเจริญกรุง ตรงไป BTS สะพานตากสิน กันค่ะ เดินประมาณ 1.2 กม. บรรยากาศจะเป็นอย่างไร ไปดูกันเลย
จากที่ตั้งโครงการ Rhythm เจริญกรุง พาวิลเลี่ยน เราเดินตรงไปตามถนนเจริญกรุงมุ่งหน้าไปสาทร รอบๆมีร้านค้าและร้านอาหารเรียงราย
เดินไปอีกหน่อยจะเจอโรงเรียนวัดสุทธิฝั่งซ้ายมือ
และเจอวัดสุทธิวรารามฝั่งขวา
ตรงต่อไปนี่เจอร้านค้าร้านอาหารต่างๆมากมายค่ะ อย่างที่เห็นว่าเป็นโซนชุมชน ใกล้วัด ใกล้โรงเรียน ใกล้แหล่งงาน ทำให้มีความอุดมสมบูรณ์สูง
ถัดมาเจอมหาวิทยาลัยเทคโนโลยีราชมงคลกรุงเทพ
ถัดมาเจอโรงเรียนวัดยานนาวา
ตรงมาเรื่อยๆจนถึงปากทางระหว่างถนนเจริญกรุงและถนนสาทร จุดนี้ห่างจากที่ตั้งโครงการประมาณ 1 กม. จะเจอสะพานสมเด็จพระเจ้าตากสิน
เดินตรงมาอีกนิด ซ้ายมือเราจะเจอสถานีรถไฟฟ้า BTS สะพานตากสิน แล้ว ส่วนตัวโครงการจะเป็นอย่างไร ไปดูกันต่อเลยค่ะ
:: ตัวโครงการ ::
Rhythm เจริญกรุง พาวิลเลี่ยน เป็นคอนโด High Rise 44 ชั้น และ 1 ชั้นใต้ดิน และริธึ่ม พาวิลเลี่ยน 1 อาคาร สูง 1 ชั้น และ 2 ชั้นใต้ดิน พื้นที่โครงการ 4-2-76.6 ไร่ จำนวนยูนิต 421 ยูนิต (ร้านค้า 1 ยูนิต) มีห้องพักให้เลือกแบบ 1-4 ห้องนอน ขนาดเริ่มต้น 35.00-228.00 ตร.ม. คาดว่าแล้วเสร็จประมาณปี 2565
รายละเอียดตัวโครงการจะเป็นอย่างไร ไปดูกันเลยค่ะ
เข้าไปดูภายในสำนักงานขายหรือ Sales Gallery ของโครงการกันต่อค่ะ
Sales Gallery ของโครงการ RHYTHM เจริญกรุง พาวิลเลี่ยน ตั้งอยู่บนที่ดินโครงการ ซึ่งมีทางเข้าได้สองทางคือถนนจันทน์และถนนเจริญกรุงอย่างที่ได้อธิบายไปข้างต้นนะคะ โดยทางเข้าสำนักงานขายจะอยู่ติดถนนเจริญกรุง 73
เข้ามาจะเจอส่วนเคาน์เตอร์ประชาสัมพันธ์พร้อมเจ้าหน้าที่ฝ่ายขาย คอยให้บริการข้อมูลและพาชมห้องตัวอย่างของโครงการ และจะมีบันไดขึ้นไปห้องตัวอย่างชั้นบน กลางห้องจะมีโมเดลของโครงการตั้งอยู่
ภายใน Sales Gallery ออกแบบมาโดยใช้การตกแต่งแบบเดียวกันกับ Lobby ของโครงการจริง คือใช้เพดานสูง และการตกแต่งด้วยผนังกระจก วิวสวน และ โคมระย้าคริสตัลให้ลุคที่หรูหราแต่ก็ไม่เหมือนใคร
ริธึ่ม เจริญกรุง พาวิลเลี่ยน เป็นคอนโด High Rise 44 ชั้น และ 1 ชั้นใต้ดิน และริธึ่ม พาวิลเลี่ยน 1 อาคาร สูง 1 ชั้น และ 2 ชั้นใต้ดิน พื้นที่โครงการ 4-2-76.6 ไร่ จำนวนยูนิต 421 ยูนิต (ร้านค้า 1 ยูนิต) มีห้องพักให้เลือกแบบ 1-4 ห้องนอน ขนาดเริ่มต้น 35.00-228.00 ตร.ม. คาดว่าแล้วเสร็จประมาณปี 2565
CLOSER TO EVERY LIFE JOURNEY โครงการต้นแบบภายใต้แนวคิด The Luxury Gated Community พร้อมคอมมิวนิตี้ที่เป็นส่วนตัว และปลอดภัย ตอบโจทย์ทุกเจเนอเรชั่น
จากโมเดลโครงการ Rhythm เจริญกรุง พาวิลเลี่ยน แบ่งพื้นที่ใช้งานตามชั้นได้ดังนี้
G FLOOR
2nd FLOOR
42nd FLOOR
43rd FLOOR
44th FLOOR
จากโมเดลจะเห็นทางเข้า-ออกโครงการมีสองจุด ทางเข้าหลักอยู่ตรงถนนจันทน์มีทั้งทางเข้าคนและรถ ส่วนตรงถนนเจริญกรุงเป็นทางเข้าสำหรับคนเดินเท้าเท่านั้น เข้ามาจะเจอกับพื้นที่ส่วนกลาง
ทางเข้าออกหลักของโครงการติดถนนจันทน์แบ่งรถขาเข้าฝั่งซ้าย ขาออกฝั่งขวา มีป้อมรปภ.ฝั่งขวามือ สวนหย่อมฝั่งซ้ายมือ
ทางเข้าอีกฝั่งติดถนนเจริญกรุงเป็นถนนคนเดินเท้า จะเห็นว่ารอบโครงการปลูกต้นไม้มาร่มรื่น
ตัวพื้นที่ส่วนกลางออกแบบเพื่อความปลอดภัยของผู้ใช้งาน เพราะแบ่งพื้นที่ชัดเจนไม่มีส่วนที่ตัดกับถนนในโครงการ ทำให้ผู้ปกครองสามารถปล่อยเด็กๆวิ่งเล่นในสวนได้อย่างหายห่วง
จากโมเดลโครงการจะเห็นว่าด้านอาคารหลัก จะมีอาคาร Pavillion 2 ชั้นที่สวนด้านหน้า เรียกว่าอาคาร B ค่ะ โดยจะมีสวนส่วนกลางคั่นระหว่างอาคาร A และ B โดยอาคาร B จะมีที่จอดรถชั้นใต้ดิน 2 ชั้น และมีพื้นรับรองแขกและส่วนที่ใช้เป็น Co-Working Space เรามีแปลนอาคาร B มาให้ดูกันค่ะ
BUILDING B FLOOR PLAN
อาคาร B ส่วนฟังก์ชั่นหลักคือจากสวนขึ้นบันไดมาจะแบ่งเป็น 3 ส่วนคือ Study Pavillion, Social Pavillion, Reading Pavillion และมีห้องน้ำด้านหลัง เป็นพื้นที่ที่ใช้รับรองแขกและใช้ทำงานพักผ่อนได้ดีค่ะ
อาคาร B ชั้นดาดฟ้า จะเป็นส่วนงานระบบและพื้นที่จอดเฮลิคอปเตอร์ชั้นดาดฟ้า
เรามาดูโมเดลส่วนอาคารหลักหรืออาคาร A กันต่อค่ะ เดี๋ยวเราไล่ดูกันไปทีละส่วนนะคะ
อาคาร A ชั้นล่างเข้าอาคารมาจะเป็นส่วน Lobby Reception, Welcome Foyer, อาคารสำนักงานนิติบุคคล, ยูนิตร้านค้า 1 ยูนิต, Mailroom และส่วนโถงลิฟต์ขึ้นไปยูนิตที่พักอาศัย
ส่วน Podium จะเป็นอาคารจอดรถไล่ตั้งแต่ชั้น 1-8 ค่ะ ส่วนชั้น 9-41 เป็นยูนิตที่พักอาศัย
ส่วนกลางหลักๆอีกส่วนจะอยู่ด้านบน ที่ชั้น 42, 43 และ 44 เพื่อให้ทุกคนได้ขึ้นมาชมวิวเมืองที่ชั้นสูงและใช้งานพื้นที่ส่วนกลางไปพร้อมกันด้วยได้
ชั้น 42 จะมีส่วนกลางคือ Sky Lounge, Sky Terrace, Semi-Outdoor Lounge, Meeting Room, Play Space
ชั้น 43 จะเป็นส่วนสระว่ายน้ำค่ะ โดยจะมีส่วน Infinity Edge Pool, Kid’s Pool, Jacuzzi นอกจากนั้นจะมีจุดชมวิวแม่น้ำเจ้าพระยาพร้อมพื้นที่พักผ่อน Cloud Pavillion
ชั้น 44 เป็นพื้นที่ออกกำลังกาย โดยจะมีส่วน Gym Private Gym, Yoga, Steam, Sauna
BUILDING A FLOOR PLAN
ผัง Master Plan ของโครงการชั้นล่างค่ะ โครงการ Rhythm เจริญกรุง พาวิลเลี่ยน ชั้นล่างไล่ตั้งแต่ถนนเจริญกรุงและถนนจันทน์ เข้ามาจะเจอสวนหย่อมหน้าโครงการ ส่วนด้านหลังอาคารเป็นทางเข้าลานจอดรถ โดยชั้น 1 – 8 เป็นที่จอดรถทั้งชั้น รวม 421 คัน (คิดเป็น 100% ของจำนวนยูนิต ไม่รวมจอดซ้อนคัน)
ชั้นล่างเข้าอาคารมาจะเป็นส่วน Lobby Reception, Welcome Foyer, อาคารสำนักงานนิติบุคคล, ยูนิตร้านค้า 1 ยูนิต, Mailroom และส่วนโถงลิฟต์ขึ้นไปยูนิตที่พักอาศัย
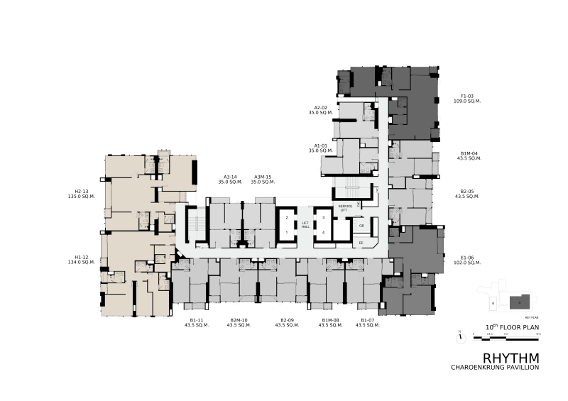
ผังอาคารชั้น 9 ส่วนยูนิตที่พักอาศัยจะเริ่มต้นที่ชั้น 9 เป็นชั้นเหนือส่วน podium ซึ่งใช้เป็นลานจอดรถที่ชั้น 1 – 8 ผังอาคารเป็นรูปตัว U โดยชั้นนี้จะมีสวนหย่อมอยู่ด้วย โดยจะมีทางเดินเชื่อมต่อจากโถงลิฟต์ โดยในสวนมีการเว้นระยะห่างจากระเบียงของยูนิตที่พักอาศัย ทำให้ระเบียงของยูนิตที่พักอาศัยมีความเป็นส่วนตัวมากขึ้น
โถงทางเดินแจกไปยังยูนิตที่พักอาศัยเป็นแบบ Double Corridor คือมันประตูห้องทั้งสองฝั่ง แต่จากผังจะเห็นว่าพยายามจัดประตูห้องส่วนใหญ่ไม่ให้อยู่ตรงกันทั้งสองฝั่ง คือรวมความหนาแน่นต่อชั้นอยู่ที่ 15 ห้อง
ผังอาคารชั้น 10-25 เป็น Typical Floor Plan คือจัดผังเหมือนกัน จะเห็นว่าจัดผังเหมือนชั้นล่าง 9 ทุกอย่าง โดยวางอาคารตามแนวเหนือ-ใต้และจัดผังห้องแบบเดียวกัน และมีความหนาแน่นของห้องเท่ากัน คือ 15 ยูนิต ต่างกันที่ชั้น 10 – 25 จะไม่มีสวนหย่อมเหมือนชั้น 9 นั่นเอง
ผังอาคารชั้น 26-35 เป็นชั้นสูงของโครงการ จะเห็นว่าจัดผังเหมือนชั้นล่างๆเลย คือว่าอาคารตามแนวเหนือใต้และจัดผังห้องแบบเดียวกัน ซึ่งท้ังโครงการมีเพียง 12 ยูนิตเท่านั้นอยู่ด้วย ความพิเศษคือเป็นยูนิตที่มีพื้นที่ระเบียงใหญ่กว่ายูนิตปกตินั่นเอง
ผังอาคารชั้น 36-37 เป็นชั้นสูงของโครงการ จะเห็นว่าจัดผังเหมือนชั้นล่างๆ แต่ชั้นนี้จะมีความหนาแน่นของห้องต่ำกว่า คือ 10 ยูนิต ก็คือหนาแน่นต่ำกว่าชั้นล่างๆ ส่วนนึงเพราะเจอระยะถอยร่นอาคารนั่นเอง
ผังอาคารชั้น 38-39 เป็นชั้นสูงของโครงการ จะเห็นว่าจัดผังเหมือนชั้นล่างๆ แต่ชั้นนี้จะมีความหนาแน่นของห้องต่ำกว่า คือ 8 ยูนิต ก็คือหนาแน่นต่ำกว่าชั้นล่างๆ ส่วนนึงเพราะเจอระยะถอยร่นอาคารนั่นเอง
ผังอาคารชั้น 40-41 เป็นชั้นสูงของโครงการ จะเห็นว่าจัดผังเหมือนชั้นล่างๆ แต่ชั้นนี้จะมีความหนาแน่นของห้องต่ำกว่า คือ 5 ยูนิต ก็คือหนาแน่นต่ำกว่าชั้นล่างๆ ส่วนนึงเพราะเจอระยะถอยร่นอาคารนั่นเอง
ผังอาคารชั้น 42 จะมีส่วนกลางคือ Sky Lounge, Sky Terrace, Semi-Outdoor Lounge, Meeting Room, Play Space
ผังอาคารชั้น 43 จะเป็นส่วนสระว่ายน้ำค่ะ โดยจะมีส่วน Infinity Edge Pool, Kid’s Pool, Jacuzzi นอกจากนั้นจะมีจุดชมวิวแม่น้ำเจ้าพระยาพร้อมพื้นที่พักผ่อน Cloud Pavillion
ผังอาคารชั้น 44 เป็นพื้นที่ออกกำลังกาย โดยจะมีส่วน Gym Private Gym, Yoga, Steam, Sauna
:: UNIT TYPE ::
RHYTHM เจริญกรุง พาวิลเลี่ยน มีห้องพักให้เลือกแบบ 1-4 ห้องนอน ขนาดเริ่มต้น 35.00-228.00 ตร.ม. แบบห้องมีดังนี้
:: ห้องตัวอย่าง ::
ประตูห้องตัวอย่างเจาะช่องขนาดเท่าบานประตูจริงขนาด 0.90 x 2.40 ม. ประตูทางเข้าทุกห้องติด Digital Door Lock มาให้
ห้องตัวอย่างห้องแรกที่จะพาไปชมกันเป็นห้องแบบ 1 Bedroom ขนาด 43.5 ตร.ม. เปิดประตูเข้ามาจะเจอห้องครัวปิดฝั่งซ้าย ห้องน้ำฝั่งขวา ตรงกลางเป็นส่วนห้องรับประทานอาหารเชื่อมต่อไปส่วนห้องนั่งเล่นติดระเบียง ห้องนอนมีประตูบานปิดเป็นสัดส่วน และมีประตูเปิดไปส่วนห้องน้ำได้
ตัวห้องขายแบบ Fully Fitted คือมีชุดครัวมาให้พร้อมชุดสุขภัณฑ์และเครื่องปรับอากาศ ตัวห้องจะเป็นอย่างไรไปชมกันเลยค่ะ
เปิดประตูเข้ามาจะเจอห้องครัวปิดฝั่งซ้าย ห้องน้ำฝั่งขวา ตรงกลางเป็นส่วนห้องรับประทานอาหารเชื่อมต่อไปส่วนห้องนั่งเล่นติดระเบียง เพดานห้องสูง 3 เมตรซึ่งถือว่าสูงโปร่งเลย ถ้าเทียบกับคอนโดทั่วๆไป ไฟติดเพดานเป็นไฟดาวน์ไลท์ LED ผนังเป็นผนังฉาบปูนเรียบทาสีขาว พื้นห้องเป็นไม้ Hybrid Engineering Wood สีอ่อนหนา 8 มม. เราพาไล่ดูกันไปทีละส่วนนะคะ
มองกลับไปที่ประตูทางเข้าห้องจะเห็นว่าส่วนทางเข้าห้องมีระยะใช้งานกำลังดี มีพื้นที่ให้วางโต๊ะข้างแบบในห้องตัวอย่างหรือตู้เก็บรองเท้าข้างๆได้ พร้อมติดเครื่องปรับอากาศมาให้ได้ตามนี้
หน้าทางเข้าห้องครัว ห้องตัวอย่างวางโต๊ะรับประทานอาหารพร้อมเก้าอี้มาให้ดูระยะใช้งาน
วางโต๊ะรับประทานอาหารแบบ 4 ที่นั่งมาให้ดูระยะใช้งานกำลังดี
สวิตช์ไฟเป็นแผงสีทองแบรนด์ Biticino หรือแบรนด์เทียบเท่า
ส่วนครัวปิด ประตูเป็นแบบบานเลื่อนกรอบบานอลูมิเนียม Powder coat สีเบจ ลูกฟักกระจกใส แบบ 3 ตอน ข้อดีคือมีช่องเปิดที่กว้างกว่าแบบ 2 ตอนนั่นเอง
รางประตูบานเลื่อนฝังพื้นมาให้แบบนี้ พื้นห้องเป็นไม้ Hybrid Engineering Wood สีอ่อนหนา 8 มม. แต่ส่วนครัวเป็นกระเบื้องแกรนิตโต้ขนาด 60×60 cm. ระยะใช้งานครัวสบายๆ นอกจากชุดครัว Built in มาให้แล้ว จะมีมุมที่เหมาะใช้วางตู้เย็นได้แบบกำลังเหมาะ
มาดูส่วนครัวกันต่อนะคะ หน้าบานเป็นเมลามีนลายไม้ ทำ Built in มาให้ทั้งบนและล่าง
เราเปิดชุดครัวให้ดูช่องเก็บของภายในนะคะ ทำชั้นเก็บของมาให้เยอะดี หน้าบานทุกตัวติด Soft closed มาให้ เปิดปิดไม่มีเสียงดังปึ้งปั้ง มีเว้นช่องมาให้สำหรับตู้เย็น และเครื่องซักผ้าแบบฝาหน้าขนาด 7 กก.มาให้
Top ครัวหินสังเคราะห์สีขาว แข็งแรง ทนต่อน้ำ-ทนความร้อนได้ดี ผนังครัวมี Backsplash ลายหินอ่อนกันเปื้อนไว้ให้ ทำให้เช็ดล้างทำความสะอาดได้ง่าย และมีเต้าเสียบปลั๊กไฟพร้อมฝาครอบกันน้ำมาให้
อุปกรณ์ครัวของ FRANKE หรือแบรนด์เทียบเท่า ส่วนเตามาเป็นเตาไฟฟ้าแบบ 2 หัวพร้อมเครื่องดูดควัน ด้านข้างเตาไฟฟ้ามีพื้นที่ว่างมาให้ เวลาประกอบอาหารสะดวกดีค่ะ เพราะมีที่พักหม้อพักกะทะ หรือวางวัตถุดิบด้านข้างมาให้แบบนี้ ฝังซิงค์ล้างจานสแตนเลสหลุมเดี่ยว ก๊อกน้ำล้างจานโครเมียมทรงสูง ปรับโยกซ้าย-ขวาได้ ช่วยให้ล้างจาน, ล้างผัก, ผลไม้ได้สะดวก
มีลิ้นชักพร้อมช่องแบ่งไว้เก็บช้อนส้อมมาให้เรียบร้อย
ถัดจากห้องรับประทานอาหารเป็นห้องนั่งเล่นติดระเบียง มีประตูแบบบานเลื่อนกรอบบานอลูมิเนียม Powder coat สีเบจ ลูกฟักกระจกใส แบบ 3 ตอนกั้นมาให้เป็นสัดส่วน ข้อดีคือมีช่องเปิดที่กว้างกว่าแบบ 2 ตอนนั่นเอง
ส่วนห้องนั่งเล่นมีระยะดูทีวีประมาณ 2 m. สามารถวางทีวีจอใหญ่ 60 – 70 นิ้วได้สบายๆ
ห้องตัวอย่างจัดโซฟาแบบ 3 ที่นั่ง พร้อมโต๊ะกาแฟ มาให้ดูระยะใช้งาน สามารถวางโซฟา L Shape ได้นะคะ เพราะมีระยะใช้งานพอ
มองไปทางชั้นวางทีวี ตกแต่งผนังและวางชั้นวางทีวีมาให้ดูเป็นไอเดีย
ภาพรวมห้องนั่งเล่นติดระเบียงค่ะ จะมีประตูเปิดออกไประเบียงได้
ประตูเปิดออกไประเบียงเป็นแบบบานเลื่อนกรอบบานอลูมิเนียม Powder coat สีเบจ ลูกฟักกระจกใส แบบ 3 ตอนกั้นมาให้เป็นสัดส่วน ข้อดีคือมีช่องเปิดที่กว้างกว่าแบบ 2 ตอนนั่นเอง
ธรณีประตูสูงขึ้นจากระเบียงประมาณ 5 cm. เพื่อกันน้ำและความชื้นจากระเบียง มือจับเซาะร่องมาตรฐาน พื้นส่วนระเบียงเป็นกระเบื้องแกรนิตโต้สีครีมขนาด 60 x 30 cm.
ส่วนราวกันตกระเบียงเป็นระแนงเหล็กสีเทา (ทาสีน้ำมัน + กันสนิม) ที่ระเบียงมีท่อระบายน้ำและก็อกน้ำติดตั้งมาให้เรียบร้อย แอร์คอมเพรสเซอร์แขวนมาให้ 2 วางพื้น 1 พร้อมมีประตูกริลบังแอร์คอมเพรสเซอร์มาให้เป็นสัดส่วน
อีกด้านของระเบียงเป็นผนังเรียบ มีเต้าเสียบปลั๊กไฟพร้อมฝาครอบกันน้ำติดตั้งมาให้เรียบร้อย
กลับเข้ามาในห้องกันต่อค่ะ ติดกับประตูห้องนอนจะเป็นประตูห้องน้ำ อยู่ติดกับประตูทางเข้าห้องและอยู่ตรงข้ามห้องครัว
ธรณีประตูห้องน้ำยกสูงขึ้นจากพื้นห้องประมาณ 5 cm. เพื่อกันฝุ่นและความชื้น ธรณีประตูเป็นหินสังเคราะห์ ข้อดีคือโดนน้ำไปนานๆก็ไม่บวมขึ้นมา ซึ่งเป็นปัญหาทำให้ประตูเปิดปิดยาก พื้นห้องน้ำเป็นกระเบื้องแกรนิตโต้ขนาด 60×60 cm.
ความพิเศษคือห้องน้ำของโครงการนี้เป็นแบบสำเร็จรูปนะคะ คือในตอนก่อสร้างเป็นแบบยกห้องน้ำมาใส่เลย เป็นห้องน้ำสำเร็จรูปที่ดีไซน์มาเนี้ยบดีค่ะ สุขภัณฑ์สีขาว
ผนังปูกระเบื้องจรดเพดาน และติดไฟดาวน์ไลท์กับพัดลมดูดอากาศมาให้เรียบร้อย
ระยะใช้งานในห้องน้ำสบายๆค่ะ มี Low Wall ด้านหลังโถสุขภัณฑ์และอ่างล้างมือมาให้วางของเพิ่มด้วย
อ่างล้างมือพร้อมกระจกเงาและชั้นวางของใต้อ่างพร้อมตัวแขวนสแตนเลสสำหรับแขวนผ้าเช็ดมือ และเต้าเสียบปลั๊กไฟพร้อมฝาครอบกันน้ำของจริงได้ตามนี้
โถสุขภัณฑ์ของ TOTO มีท่อระบายน้ำแยกส่วนเปียกและส่วนแห้งมาให้เรียบร้อย โดยส่วนแห้งจะอยู่ข้างโถสุขภัณฑ์ ติดที่แขวนทิชชู่มาให้พร้อมสายฉีดชำระสแตนเลสเข้าชุดกัน
ส่วนอาบน้ำมีฉากกั้นห้องมาให้เป็นกระจกเทมเปอร์ วางบนธรณีก่อสูงขึ้นมาประมาณ 3 ซม. เพื่อกั้นระหว่างพื้นส่วนเปียกส่วนแห้ง มือจับเป็นอลูมิเนียมรูปตัว U ใช้แขวนผ้าเช็ดตัวได้
ในห้องอาบน้ำมีพื้นที่อาบน้ำสบายๆค่ะ จะเห็นว่าส่วนเปียกส่วนแห้งแยกท่อระบายน้ำมาให้เรียบร้อย
ชุดฝักบัวเป็นเป็นแบบปรับระดับขนาดหยดน้ำได้มาพร้อมกับ Rain Shower ผนังข้างฝักบัวมีมุมมาให้ใช้วางชั้นวางของได้ 2 ชั้น
เราไปดูส่วนห้องนอนกันต่อค่ะ
ภายในห้องนอนสามารถวางเตียงคู่พร้อมตู้เสื้อผ้า โต๊ะเครื่องแป้ง และชั้นวางทีวี ได้สบายๆค่ะ อันนี้ห้องตัวอย่างวางเตียงพร้อม Built in Walk in closet และชั้นวางของ
เรามาดูส่วน Walk in closet กันก่อนนะคะ ห้องตัวอย่างทำ Built in Walk in closet รูปตัว L หน้าบานเป็นกระจกใส กรอบอลูมิเนียมสีดำเปิดปิดแบบบานเลื่อน
จากห้องน้ำมีข้อดีคือจะมีประตูเปิดไปส่วนห้องน้ำได้จากในห้องนอนเลย
วางเตียงนอนคู่พร้อม Built in โต๊ะเครื่องแป้งด้านข้างมาให้ดูเป็นไอเดีย
ระยะใช้งานค่ะ พื้นที่กว้างพอวางเตียงคู่คิงส์ไซส์ 6 ฟุตได้นะคะ แต่อาจต้องลดขนาด Walk in closet หรือโต๊ะเครื่องแป้งลง
พื้นที่โต๊ะเครื่องแป้งมีระยะใช้งานพอดีๆแบบนี้
ในห้องนอนจะมีหน้าต่างชุดมาให้ ทำให้ได้ช่องแสงธรรมชาติบานใหญ่ มีกระจกบานฟิกซ์ด้านข้างและด้านล่าง ส่วนบานขวาบนเป็นหน้าต่างบานกระทุ้งค่ะ
ปลายเตียงมีระยะเดินไปมาได้ประมาณ 30 cm. ที่ผนังฝั่งปลายเตียงมีเต้าเสียบปลั๊กไฟและช่องเสียบสายสัญญาณมาให้เรียบร้อย ถ้าอยากติดทีวีแบบแขวนผนังในห้องนอนก็สามารถทำได้ค่ะ
ห้องตัวอย่างห้องที่สองจะพาไปชมกันเป็นห้องแบบ 3 Bedroom ขนาด 135 ตร.ม. เปิดประตูเข้ามาจะเจอห้องครัวปิดฝั่งขวา ห้องแม่บ้านพร้อมห้องน้ำในตัวฝั่งขวา ตรงกลางเป็นส่วนห้องรับประทานอาหารเชื่อมต่อกับส่วนห้องนั่งเล่นติดระเบียงที่มี Pantry ในตัว ห้องนอนทั้ง 3 ห้องมีประตูบานปิดเป็นสัดส่วนและมีห้องน้ำในตัว
ห้องขายแบบ Fully Fitted คือมีชุดครัวมาให้พร้อมชุดสุขภัณฑ์และเครื่องปรับอากาศ ตัวห้องจะเป็นอย่างไรไปชมกันเลยค่ะ
เปิดประตูเข้ามาจะเจอโถงทางเดินตรงกลาง ห้องครัวปิดฝั่งขวา ส่วนพื้นที่ Laundry และห้องแม่บ้านอยู่ฝั่งซ้าย ทางเดินตรงกลางเชื่อมไปส่วนห้องรับประทานและส่วนห้องนั่งเล่นติดระเบียงที่มีครัวแบบ Pantry ในตัว
ไฟติดเพดานเป็นไฟดาวน์ไลท์ LED ผนังเป็นผนังฉาบปูนเรียบทาสีขาว พื้นห้องเป็นไม้ Hybrid Engineering Wood สีอ่อนหนา 8 มม. เราพาไล่ดูกันไปทีละส่วนนะคะ
ติดประตูทางเข้าห้องทางฝั่งซ้ายมือ ทำ Built in เคาน์เตอร์ชั้นวางของพร้อมบานปิดช่องเก็บของบนล่างและตู้เก็บรองเท้าข้างๆมาให้ดูเป็นไอเดีย ช่วยเพิ่มพื้นที่ใช้สอยในห้องได้เยอะดีค่ะ
ฝั่งขวามือเป็นครัวปิด สำหรับคนทำอาหารไทยที่มีควันหรือกลิ่นอาหารเยอะนะคะ ครัวส่วนนี้จะมีประตูบานเลื่อนมาให้
พื้นส่วนครัวเป็นกระเบื้องแกรนิตโต้ขนาด 60×60 cm.
พื้นที่ครัวปิดส่วนนี้จะไม่มีก่อเคาน์เตอร์ครัวมาให้นะคะ เป็นเหมือนห้องอเนกประสงค์ ใครไม่ได้ทำอาหารมาก แค่ชุดครัวแบบ Pantry ในห้องนั่งเล่นก็พอแล้วก็เอาห้องนี้ปรับการใช้งานเป็นฟังก์ชั่นอื่นได้ตามไลฟ์สไตล์ ระยะใช้งานครัวสบายๆ และเตรียมงานระบบมาให้เรียบร้อย
จากห้องครัวจะมีประตูบานเลื่อนอลูมิเนียมแบบ 3 ตอนเปิดระบายอากาศได้ ระเบียงส่วนนี้จะเห็นว่าแขวนแอร์คอมเพรสเซอร์มา 2 และวางพื้น 1 แบบนี้
ตรงข้ามห้องครัวปิดจะเป็นประตูบานเปิดไปส่วน Laundry และห้องแม่บ้านกัน
เข้ามาจะเป็นส่วน Laundry คือเป็นโถงพร้อมมีพื้นที่วางเครื่องซักผ้ามาให้
ห้องตัวอย่างทำ Built in ด้านบนเครื่องซักผ้าทำให้มีชั้นวางของด้านบนเพิ่มพื้นที่เก็บของ
ถัดเข้ามามีมุมไว้วางเตียงเดี่ยวตู้เสื้อผ้าห้องแม่บ้านได้ และมีพัดลมดูดอากาศมาให้้ด้านบน
และในส่วนห้องแม่บ้านจะมีห้องน้ำในตัว ธรณีประตูยกสูงขึ้นมาประมาณ 10 cm. กั้นส่วนเปียกส่วนแห้ง
ห้องน้ำแม่บ้านปูกระเบื้องผนังมาให้จรดเพดาน สุขภัณฑ์ของ American Standard
มี Low Wall หลังอ่างล้างมือและโถสุขภัณฑ์มาให้วางของเพิ่มได้
เหนืออ่างล้างมือติดกระจกเงา และราวแขวนผ้าเช็ดตัวสแตนเลสมาให้
และมีชุดฝักบัวมาให้เรียบร้อย
ถัดออกมาเราตรงมาดูส่วนห้องนั่งเล่นและห้องรับประทานอาหารติดระเบียงกันต่อค่ะ
ที่ห้องนั่งเล่นและห้องรับประทานอาหารนี้จะมีพื้นที่ส่วนครัวเปิดแบบ Pantry เป็นพื้นที่ที่ให้ความรู้สึกกว้างขวางเหมือนเข้ามาในบ้าน
มองกลับไปที่ประตูทางเข้าห้อง จะเห็นเพดานห้องสูง 3 เมตรซึ่งถือว่าสูงโปร่งเลย ถ้าเทียบกับคอนโดทั่วๆไป และจะเห็นว่าเพดานส่วนโถงทางเดินเข้ามาจนถึงส่วนครัวแบบ Pantry มีการดรอปฝ้าเพดานลงมาประมาณ 20 cm. เพื่อเดินงานระบบและติดตั้งแอร์ฝังผนังมาให้ได้ตามนี้
ชุดครัว Built in มาให้พร้อม Island ได้ตามที่เห็น เดี๋ยวเราไล่ดูกันไปทีละส่วนนะคะ
ชอบที่ส่วน Island นอกจากจะใช้เป็นพื้นที่ประกอบอาหารและเคาน์เตอร์บาร์ หรือโต๊ะอาหารได้แล้ว ด้านข้างยังมี Built in ช่องเก็บของและโต๊ะอาหารแบบเลื่อนเก็บได้มาให้อีกส่วนด้วย Top เคาน์เตอร์ครัวและ Island เป็นหินสังเคราะห์สีขาวเข้าชุดกัน ฐานเคาน์เตอร์เป็นไม้สีอ่อน
พื้นระหว่างชุดเคาน์เตอร์ครัวและ Island ปูกระเบื้องมาให้
เปิดชั้นเก็บของใต้ Island ให้ดูค่ะ มีชั้นวางของด้านใน ช่วยเพิ่มพื้นที่เก็บของหรือจานชามได้ดี จะเห็นว่ามีระยะใช้งานกำลังดีๆแบบนี้
มีอ่างล้างจานแบบหลุมเดียว ไม่มีที่พักจานด้านข้างของ FRANKE ก็อกน้ำเป็นโครเมียมสีเงิน หมุนไปมาซ้ายขวาได้
ชุดครัว Built in พร้อมชั้นลอยมาให้ได้ตามนี้ หน้าบานเคาน์เตอร์เป็นเมลามีนปิดผิวลายไม้ ชั้นลอยด้านบนปิดผิวสีเทาสบายตา และมีเว้นช่องสำหรับวางตู้เย็นมาให้เรียบร้อย เปิดตู้ให้ดูจะเห็นว่าทำชั้นเก็บของมาให้เยอะดีค่ะ
ใต้เตาไฟฟ้ามีลิ้กชักพร้อมช่องแบ่งสำหรับเก็บช้อนส้อมมาให้เรียบร้อย
Top เคาน์เตอร์ครัวเป็นหินสังเคราะห์สีขาว ติด Back splash หรือผนังกันเปื้อนลายหินอ่อนมาให้เรียบร้อย ทำให้เช็ดล้างทำความสะอาดได้ง่าย
เตาไฟฟ้าให้มาแบบ 4 หัว พร้อมเครื่องดูดควัน ของ FRANKE เคาน์เตอร์ครัวมีระยะใช้งานสบายๆ มีพื้นที่ว่างพอวางเครื่องชงกาแฟ หรือเตรียมอาหารได้ นอกจากพื้นที่ Island ที่จัดเตรียมมาให้
ระยะห่างระหว่างชุดครัวแบบ Pantry จากส่วนห้องนั่งเล่นและส่วนรับประทานอาหารมีระยะใช้งานสบายๆ แบบนี้
ถัดจากครัวเปิด เป็นส่วนห้องนั่งเล่นและห้องรับประทานอาหารติดระเบียงแบบ double skin เป็นพื้นที่ที่มีความ fliexible สามารถปรับให้เข้ากับไลฟ์สไตล์ของผู้ใช้งานที่มีความแตกต่างกันได้ดี
จุดเด่นของห้อง Type นี้คือเป็นห้องหน้ากว้าง ทำให้พื้นที่แต่ละส่วนมีช่องแสงธรรมชาติที่กว้าง ให้ความรู้สึกโปร่ง โล่ง เหมือนอยู่บ้านหลังใหญ่ๆ
ส่วนห้องนั่งเล่นมีระยะดูทีวีประมาณ 2.2 m. สามารถวางทีวีจอใหญ่ 60 – 70 นิ้วได้สบายๆ
ห้องตัวอย่างจัดโซฟาแบบ 3 ที่นั่ง พร้อมโต๊ะกาแฟ มาให้ดูระยะใช้งาน สามารถวางโซฟา L Shape ได้นะคะ เพราะมีระยะใช้งานพอ
มองไปทางชั้นวางทีวี ตกแต่งผนังและวางชั้นวางทีวีมาให้ดูเป็นไอเดีย
จากส่วนห้องนั่งเล่นมองไปส่วนรับประทานอาหาร
ส่วนรับประทานอาหารจัดชุดโต๊ะเก้าอี้สำหรับรับประทานอาหารแบบ 6 ที่นั่งมาให้
สามารถจัดโต๊ะแบบ 8 ที่นั่งได้เพราะมีระยะใช้งานพอค่ะ
ถัดจากส่วนห้องรับประทานอาหารจะมีมุมห้องทำงานมาให้ บางคนอาจปรับเป็นห้องนอน 3 เพราะมีประตูเปิดไปห้องน้ำจากในห้องได้ด้วย
เรียกว่าให้อารมณ์กว้างขวางกว่าบ้านบางหลังอีกค่ะ มุมห้องทำงานทำ Buit in ชั้นวางของเต็มความกว้างผนังพร้อมแต่งไฟซ่อนมาให้ดูเป็นไอเดีย
ที่ผนังอีกด้านของห้องทำงานติดเครื่องปรับอากาศแบบแขวนมาให้อีกตัว กรณีกั้นห้องเป็นสัดส่วนก็ติดตั้งแอร์มาให้ในห้องเรียบร้อยแล้ว
ที่มุมห้องทำงานมีชุดหน้าต่างบานใหญ่มาให้ โดยบานซ้ายบนเป็นหน้าต่างบานกระทุ้งบานล่างและบานขวาเป็นบานฟิกซ์ค่ะ ทำให้ต่อให้กั้นผนังทำห้องทำงานเพิ่ม พื้นที่ส่วนนี้ก็ยังสว่างด้วยแสงธรรมชาติในตอนกลางวัน
ถัดมาเป็นห้องน้ำค่ะ ประตูห้องน้ำจะมี 2 บาน สามารถเข้าได้จากห้องนั่งเล่นและจากห้องทำงานหรือห้องนอน 3 โดยธรณีห้องน้ำจะสูงกว่าพื้นห้องประมาณ 10 cm. พื้นธรณีประตูเป็นหินสังเคราะห์ อันนี้ดีค่ะ เพราะใช้ไปนานๆจะไม่บวมขึ้นมาแบบพื้นธรณีลามิเนตที่มีผลทำให้ประตูห้องน้ำเปิดปิดยาก
ห้องน้ำมีระยะใช้งานสบายๆ พื้นปูกระเบื้องลายแกรนิตโต้ลายหินอ่อนสีเบจเทาขนาด 60×60 cm. สุขภัณฑ์ใช้อุปกรณ์ของ TOTO พร้อมมีฉากกั้นอาบน้ำและ มี Low Wall หลังอ่างล้างมือและโถสุขภัณฑ์มาให้วางของเพิ่มได้ พร้อมติดกระจกเงามาให้เรียบร้อย
ประตูห้องน้ำจะมี 2 บาน สามารถเข้าได้จากห้องนั่งเล่นและจากห้องทำงานหรือห้องนอน 3
เคาน์เตอร์อ่างล้างมือมีช่องเก็บของใต้อ่างพร้อมบานปิดลายไม้ พร้อมราวแขวนผ้าเช็ดมือและผนังข้างอ่างติดเต้าเสียบปลั๊กไฟพร้อมฝาครอบกันน้ำมาให้้เสียบไดร์เป่าผมหรือเครื่องโกนหนวดกันได้
หลังอ่างล้างมือมี Low Wall มาให้วางของเพิ่มได้เยอะดี
ชุดโถสุขภัณฑ์มาพร้อมกับสายฉีดชำระและที่แขวนกระดาษชำระสแตนเลสของ TOTO หรือแบรนด์เทียบเท่า หลังโถสุขภัณฑ์มี Low Wall มาให้วางของได้
ฉากกั้นห้องอาบน้ำเป็นกระจกเทมเปอร์แบบบานเปิด มือจับเป็นรูปตัว U ใช้แขวนผ้าเช็ดตัวได้
แยกท่อระบายน้ำส่วนเปียกส่วนแห้งมาให้ได้ตามนี้
ส่วนอาบน้ำมี Rain Shower พร้อมชุดฝักบัวของ GROHE หรือแบรนด์เทียบเท่ามาให้ ส่วนฝักบัวมีขนาดใหญ่เหมาะมือ และสามารถปรับขนาดหยดน้ำได้
และที่ผนังมีเจาะชั้นเก็บของมาให้ 2 ชั้น
ไปดูห้องนอนอีกห้องกันต่อค่ะ ห้องนี้จะอยู่ติดกับห้องนั่งเล่นเลย
ภายในห้องนอน สามารถวางเตียงคู่ 5-6 ฟุตได้สบายๆ พร้อมตู้เสื้อผ้า โต๊ะทำงาน โต๊ะเครื่องแป้ง และชั้นวางทีวี ได้สบายๆ
ห้องนี้มีห้องน้ำในตัวและมีหน้าต่างบานใหญ่มาให้สองฝั่ง ทำให้ห้องโปร่งและสว่างด้วยแสงธรรมชาติ
มีหน้าต่างชุดใหญ่มาให้ เป็นหน้าต่างบานฟิกซ์ทั้งหมด ยกเว้นบานที่มุมซ้ายซึ่งเป็นหน้าต่างบานเปิด ใข้เปิดระบายอากาศได้ ทำให้ห้องมีช่องแสงธรรมชาติที่กว้าง ทำให้สว่างและโปร่งในตอนกลางวัน และเปิดรับวิวได้เป็นมุมกว้าง
ปลายเตียงหลังจากวางเตียงไปแล้วมีระยะเหลือประมาณ 70 cm. มีระยะพอวางชั้นวางทีวีและเหลือระยะเดินไปมาได้อยู่
ข้างเตียงฝั่งติดหน้าต่างมีระยะใช้งานประมาณ 60 cm. สามารถวางโต๊ะข้างเล็กๆหรือโคมไฟได้ จะเห็นว่าที่หัวเตียงมีหน้าต่างเข้ามุมแบบ Bay Window มาให้ ทำให้ได้มุมมองที่กว้างขึ้น
ภาพรวมส่วนเตียงนอนค่ะ รอบเตียงมีระยะเดินสบายๆ
ข้างเตียงฝั่งนี้กว้างขวางค่ะ วางโต๊ะเครื่องแป้งหรือโต๊ะทำงานพร้อมโต๊ะข้างและตู้เสื้อผ้าขนาดใหญ่ได้
ตู้เสื้อผ้า Built in เป็นรูปตัว L เปิดปิดแบบบานเปิด ถัดจากตู้เสื้อผ้าเป็นประตูห้องน้ำในห้องนอนค่ะ
ธรณีประตูห้องน้ำยกสูงขึ้นจากพื้นห้องประมาณ 5 cm. เพื่อกันความชื้นจากห้องน้ำ ธรณีประตูเป็นหินสังเคราะห์ ข้อดีคือโดนน้ำไปนานๆก็ไม่บวมขึ้นมา ซึ่งเป็นปัญหาทำให้ประตูเปิดปิดยาก
พื้นห้องน้ำเป็นกระเบื้องแกรนิตโต้ขนาด 60×60 cm. ระยะใช้งานในห้องน้ำสบายๆค่ะ มี Low Wall ด้านหลังโถสุขภัณฑ์และอ่างล้างมือมาให้วางของเพิ่มด้วย
ผนังปูกระเบื้องจรดเพดาน และติดไฟดาวน์ไลท์กับพัดลมดูดอากาศมาให้เรียบร้อย
อ่างล้างมือพร้อมกระจกเงาและชั้นวางของใต้อ่างพร้อมตัวแขวนสแตนเลสสำหรับแขวนผ้าเช็ดมือ และเต้าเสียบปลั๊กไฟพร้อมฝาครอบกันน้ำของจริงได้ตามนี้
กระจกเงาบานกว้างของจริงได้ตามนี้
หลังอ่างล้างมือมี Low Wall มาให้วางของเพิ่มได้เยอะดี
ชุดโถสุขภัณฑ์มาพร้อมกับสายฉีดชำระและที่แขวนกระดาษชำระสแตนเลสของ TOTO หรือแบรนด์เทียบเท่า หลังโถสุขภัณฑ์มี Low Wall มาให้วางของได้
ส่วนอาบน้ำมีฉากกั้นห้องมาให้เป็นกระจกเทมเปอร์ วางบนธรณีก่อสูงขึ้นมาประมาณ 3 ซม. เพื่อกั้นระหว่างพื้นส่วนเปียกส่วนแห้ง มือจับเป็นอลูมิเนียมรูปตัว U ใช้แขวนผ้าเช็ดตัวได้
ในห้องอาบน้ำมีพื้นที่อาบน้ำสบายๆค่ะ จะเห็นว่าส่วนเปียกส่วนแห้งแยกท่อระบายน้ำมาให้เรียบร้อย
ชุดฝักบัวเป็นเป็นแบบปรับระดับขนาดหยดน้ำได้มาพร้อมกับ Rain Shower ของ GROHE หรือแบรนด์เทียบเท่า ผนังข้างฝักบัวมีมุมมาให้ใช้วางชั้นวางของได้ 2 ชั้น
เราไปดูห้องนอนใหญ่หรือ Master Bedroom กันต่อค่ะ ประตูทางเข้าจะอยู่อีกด้านติดกับชุดครัว Pantry
Master Bedroom จะมีห้องน้ำในตัวที่พิเศษกว่าห้องนอนอื่นตรงที่เป็นแบบ Full Bath ค่ะ และมี Walk in closet พร้อมมุมสำหรับโต๊ะเครื่องแป้ง และโต๊ะทำงานที่กว้างขวางกว่าห้องนอนห้องอื่นๆ
ส่วนเตียงนอนอยู่ติดหน้าต่างบานใหญ่ ระยะรอบเตียงกว้างขวาง
ในห้องนอนแบบ Master Bedroom มีหน้าต่างชุดใหญ่มาให้ เป็นหน้าต่างบานฟิกซ์ทั้งหมด ยกเว้นบานที่สองตรงกลางซึ่งเป็นหน้าต่างบานเปิด ใข้เปิดระบายอากาศได้ ทำให้ห้องมีช่องแสงธรรมชาติที่กว้าง ทำให้สว่างและโปร่งในตอนกลางวัน และเปิดรับวิวได้เป็นมุมกว้าง
ข้างเตียงฝั่งหัวเตียง ติดหน้าต่างมีระยะใช้งานประมาณ 60 cm. สามารถวางโต๊ะข้างเล็กๆหรือโคมไฟได้ จะเห็นว่าที่หัวเตียงมีหน้าต่างเข้ามุมแบบ Bay Window มาให้ ทำให้ได้มุมมองที่กว้างขึ้น และมีเต้าเสียบปลั๊กไฟแบบฝังพื้นติดตั้งมาให้เรียบร้อย
ปลายเตียงกว้างประมาณ 90 cm. วางชั้นวางทีวีแล้วยังเหลือระยะเดินไปมาสบายๆ
ผนังข้างเตียงอีกฝั่งทำ Built in ตู้เสื้อผ้าสูงจรดเพดานพร้อมโต๊ะเครื่องแป้งมาให้เต็มความกว้างผนังแบบนี้
ข้างเตียงฝั่งนี้วางโต๊ะข้างเตียงแล้วยังเหลือระยะเปิดปิดตู้เสื้อผ้าสบายๆ
มองกลับไปที่ประตูทางเข้าห้องนอนใหญ่ จะเห็นประตูห้องน้ำในห้องนอนใหญ่อยู่ เราไปดูกันต่อเลยค่ะ
ห้องน้ำมีระยะใช้งานสบายๆ พื้นปูกระเบื้องลายแกรนิตโต้ลายหินอ่อนสีครีมขนาด 60×60 cm. สุขภัณฑ์ใช้อุปกรณ์ของ TOTO พร้อมมีฉากกั้นอาบน้ำและมี Low Wall หลังอ่างล้างมือและโถสุขภัณฑ์มาให้วางของเพิ่มได้ พร้อมติดกระจกเงามาให้เรียบร้อย จะเห็นว่าในห้องนี้มีอ่างอาบน้ำมาให้พร้อมหน้าต่างบานใหญ่
อ่างล้างมือพร้อมกระจกเงาและชั้นวางของใต้อ่างพร้อมตัวแขวนสแตนเลสสำหรับแขวนผ้าเช็ดมือ และเต้าเสียบปลั๊กไฟพร้อมฝาครอบกันน้ำของจริงได้ตามนี้
ได้กระจกเงาบานใหญ่ตามนี้
โถสุขภัณฑ์ของ TOTO มีท่อระบายน้ำแยกส่วนเปียกและส่วนแห้งมาให้เรียบร้อย โดยส่วนแห้งจะอยู่ข้างโถสุขภัณฑ์ ติดที่แขวนทิชชู่มาให้พร้อมสายฉีดชำระสแตนเลสเข้าชุดกัน
ส่วนอาบน้ำมีฉากกั้นห้องมาให้เป็นกระจกเทมเปอร์ วางบนธรณีก่อสูงขึ้นมาประมาณ 3 ซม. เพื่อกั้นระหว่างพื้นส่วนเปียกส่วนแห้ง มือจับเป็นอลูมิเนียมรูปตัว U ใช้แขวนผ้าเช็ดตัวได้
พื้นที่ส่วนแรกเป็นส่วนอาบน้ำแบบ Rain Shower อีกส่วนเป็นอ่างอาบน้ำริมหน้าต่าง
ชุดฝักบัวเป็นเป็นแบบปรับระดับขนาดหยดน้ำได้มาพร้อมกับ Rain Shower ของ GROHE หรือแบรนด์เทียบเท่า ผนังข้างฝักบัวมีมุมมาให้ใช้วางชั้นวางของได้ 2 ชั้น
ส่วนอ่างอาบน้ำอยู่ติดหน้าต่างชุดใหญ่เข้ามุมมาให้แบบนี้ค่ะ ทำให้ห้องน้ำสว่างและโปร่งด้วยแสงธรรมชาติ หน้าต่างบานกลางเป็นหน้าต่างบานกระทุ้ง ใช้เปิดระบายอากาศได้ บานข้างๆเป็นหน้าต่างบานฟิกซ์
มองไปที่เพดานจะเห็นว่ามูลี่แบบบานม้วนติดตั้งมาให้เรียบร้อย เวลาต้องการปิดม่านเพื่อความเป็นส่วนตัว
อ่างอาบน้ำเป็นอ่างสีขาว ทรงสี่เหลี่ยมขอบมน จะเห็นว่ามีพื้นที่พอวางของรอบๆอ่างได้เยอะทีเดียว
หน้าต่างเข้ามุมมาให้ทั้งสองฝั่ง ทำให้สามารถชมวิวเมืองมุมกว้างเวลานอนแช่น้ำอุ่นไปด้วยได้
อ่างอาบน้ำมีก๊อกน้ำร้อนน้ำเย็น และมีฝักบัวแบบปรับระดับหยดน้ำได้
ราคา (มี.ค. 63)
**ห้องขายแบบ Fully Fitted พร้อมชุดครัวและเฟอร์นิเจอร์ Built in พร้อมเครื่องปรับอากาศ และเครื่องทำน้ำร้อน
จอง : 50,000 บาท
ทำสัญญา :เริ่มที่ 200,000 บาท
ค่าส่วนกลาง : 50 บาท/ตร.ม./เดือน (เก็บล่วงหน้า 1 ปี)
ค่ากองทุน : 500 บาท/ตร.ม. (ชำระครั้งเดียว ณ วันโอน)
สอบถามราคาเพิ่มเติมกรุณาติดต่อสำนักงานขายเพื่อข้อมูลที่อัพเดตที่สุดค่ะ*
สรุป
ทำเลที่ตั้งโครงการ – Rhythm เจริญกรุง พาวิลเลี่ยน คอนโดวิวแม่น้ำเจ้าพระยา ตั้งอยู่บนถนนเจริญกรุงและถนนจันทน์ ถนนสายแรกของประเทศที่มีประวัติความเป็นมายาวนาน ตัวโครงการอยู่บนทำเลใจกลางเมืองโซน CBD สาทร-สีลม ใกล้ทางด่วน
รอบๆโครงการมีความอุดมสมบูรณ์และสะดวกสบายสูงมาก ใกล้โรงเรียนนานาชาติโชรส์เบอรี่แบบ 100 เมตรถึง ใกล้ร้านอาหาร ร้านค้า แถมยังใกล้ BTS สะพานตากสินเพียงประมาณ 1.2 กม. ทำให้เป็นทำเลที่มีโรงแรมใหญ่ๆมากมาย ที่สำคัญถนนจันทน์ และ ถนนเจริญกรุง ก็นับได้ว่าเป็นย่านที่ขึ้นชื่อในเรื่องของกินอร่อย ๆ มีร้านอาหารนานาชาติเลิศรส เจ้าเด็ดเจ้าดังเปิดขายเรียงราย ไม่แพ้เยาวราชเลยค่ะ
จุดเด่นคือโครงการอยู่ใกล้ Asiatique The Riverfront, Central พระราม 3, Tesco Lotus พระราม 3, Home Pro พระราม 3, รร.นานาชาติ โชรส์เบอรี่ (ริเวอร์ไซด์), รร.กรุงเทพคริสเตียน, รร.อัสสัมชัญ, รร.วัดสุทธิวราราม, รพ.เซนต์หลุยส์, รพ. BNH และ รพ.กรุงเทพคริสเตียน
การเดินทางด้วยรถยนต์ส่วนตัว – เดินทางได้อย่างสะดวกสบายเนื่องจากถนนเจริญกรุงและถนนจันทน์ถือว่าเป็นถนนสายสำคัญเส้นหนึ่งเพราะเป็นถนนที่เชื่อมต่อกับถนนสายสำคัญอื่นๆเช่น สาทร สีลม เยาวราช พระราม 4 เป็นต้น ทางด่วนมีทางด่วนศรีรัชให้ใช้งานในระยะทางที่ขึ้นลงสะดวก โดยจุดขึ้นทางพิเศษศรีรัช ด่านฯ ถ.จันทน์ระยะทาง 1 กม.จากโครงการ ใช้เวลาขับรถไปประมาณ 1 นาทีถึง
นอกจากนี้ไม่ว่าจะเป็นจุดขึ้นทางด่วน ด่านสาทร, จุดขึ้นทางด่วน ด่านเจริญราษฎร์, จุดขึ้นทางด่วน ด่านนางลิ้นจี่ และ จุดขึ้นทาง ด่วนสุรวงศ์ ระยะทางจากโครงการไปจุดขึ้นทางด่วน ทุกด่านไม่เกิน 3 กม. ถ้าในช่วงการจราจรปกติ ประมาณ 5-10 นาที ก็ถึงแล้วค่ะ
การเดินทางด้วยรถสาธารณะ – เป็นจุดเด่นของโครงการเลยก็ว่าได้ เพราะเป็นคอนโดที่ใกล้ระบบคมนาคมครบทั้งรถ-ราง-เรือ มีรถสาธารณะต่าง ๆ ให้ได้ใช้ไปต่อกันได้ง่าย ๆ ทั้งจากถนนจันทน์ และถนนเจริญกรุง ออกมาหน้าโครงการจะมีรถสองแถวแดงผ่านหลายสาย ครอบคลุมเส้นทางรอบเมืองในย่านนี้ ส่วนมอเตอร์ไซค์รับจ้างมีผ่านหน้าโครงการตลอดทั้งวัน ใช้นั่งไปต่อรถไฟฟ้า หรือ นั่งไปหาของทานอร่อย ๆ ใกล้ ๆ ได้ง่าย
ถัดจากตัวสถานีรถไฟฟ้า BTS สะพานตากสินเข้าไป จะมีท่าเรือด่วนสาทร-ตากสิน และ ท่าเรือข้ามฟากตากสิน ที่ใช้ข้ามไปฝั่งเจริญนคร ใครทำงานแถบ ๆ คลองสาน-เจริญนคร ใช้เรือข้ามฟากไปก็สะดวกค่ะ
การเดินทางจากโครงการไปรถไฟฟ้า BTS สะพานตากสิน โดยระยะทางจากโครงการประมาณ 1.1 กม. อันนี้ก็แล้วแต่คนสะดวกค่ะ เดินไปได้ประมาณ 10 กว่านาทีถึง นั่งพี่วินมอเตอร์ไซค์ไปก็ 1 นาทีถึงละ
การออกแบบโครงการและวัสดุ – การออกแบบโครงการมีความใส่ใจรายละเอียด ทั้งในแง่ของการดีไซน์ภาพรวม ฟังก์ชั่นมีความใส่ใจและออกแบบมาให้ตอบรับกับการใช้ชีวิตประจำวันได้อย่างน่าชื่นชม ภายใต้แนวคิด The Luxury Gated Community พร้อมคอมมิวนิตี้ที่เป็นส่วนตัว และปลอดภัย ตอบโจทย์ทุกเจเนอเรชั่น
ยูนิตในโครงการจะมี 5 แบบค่ะ คือแบบ 1 Bedroom ขนาด 35 ตร.ม., 1 Bedroom Plus ขนาด 43.5 ตร.ม., 2 Bedroom ขนาด 75.5-128.5 ตร.ม., 3 Bedroom ขนาด 134-159 ตร.ม. และ 4 Bedroom ขนาด 184-228 ตร.ม. ปรับแบบมาให้ลงตัวและมีห้องน้ำที่มีขนาดสบายๆใช้งานได้ไม่อึดอัด ตัวห้องขายแบบ Fully Fitted คือมีชุดครัวและชุดเฟอร์นิเจอร์ Built in มาให้ ซึ่งสเป็คมาสวย เพิ่มที่เก็บของได้เยอะดี เพดานห้องสูง 3 เมตรซึ่งถือว่าให้มาสูงโปร่งเลย ไฟติดเพดานเป็นไฟดาวน์ไลท์ LED ผนังเป็นผนังฉาบปูนเรียบทาสีขาว พื้นห้องเป็นไม้ Hybrid Engineering Wood สีอ่อนหนา 8 มม.
ท้อปครัวเป็นหินสังเคราะห์สีขาว ด้านหลังชุดครัวที่ผนังมี Back Splash กันผนังเปื้อนมาให้ เตาไฟฟ้าพร้อมเครื่องดูดควันของ FRANKE หน้าบานชุดครัวเป็นไฮกรอสสีขาวอมเทา ทำ Built in มาให้สูงจรดเพดาน เว้นช่องวางตู้เย็นมาให้ ทำชั้นเก็บของมาให้เยอะดี หน้าบานทุกตัวติด Soft closed มาให้ เปิดปิดไม่มีเสียงดังปึ้งปั้ง
ชุดสุขภัณฑ์ได้ของ TOTO และ GROHE ดูดี ในห้องอาบน้ำ มีฉากกั้นห้องน้ำเป็นกระจกเทมเปอร์พร้อมฝักบัวและ Rain Shower มาให้ ใต้อ่างติดเครื่องทำน้ำร้อนมาให้เรียบร้อย ผนังข้างอ่างมีเต้าเสียบปลั๊กไฟมาให้ กรณีเป่าผมหรือโกนหนวด ก็ถือว่าใส่ใจรายละเอียดและทำห้องน้ำให้มีระยะใช้งานสบายๆไม่อึดอัด
สิ่งอำนวยความสะดวก – จุดเด่นคือวิวอันสวยงามของแม่น้ำเจ้าพระยา และพื้นที่ส่วนกลางกว่า 3.5 ไร่ พร้อมสิ่งอำนวยความสะดวกภายในโครงการครบครัน อาทิ Lobby, Mailbox, Sky Lounge, Play Space, Infinity Edge Pool ยาวกว่า 47 เมตร, Kid Pool, For Co-Generations Living, Fitness, ที่จอดรถ จำนวน 421 คัน (100% ไม่รวมจอดซ้อนคัน), ระบบ CCTV, ระบบ Key Card Access พร้อมระบบรักษาความปลอดภัยตลอด 24 ชม.
ลงทะเบียนเพื่อรับข้อมูล Exclusive ของโครงการ และส่วนลดเพิ่มสูงสุด 500,000 บาท* คลิก ➤ https://bit.ly/2ZYwcHB
สอบถามรายละเอียดเพิ่มเติมได้ที่
Tel : 1623
Website : www.apthai.com
หากเพื่อนๆเห็นว่ารีวิวนี้มีประโยชน์ ช่วยกด Like เพื่อเป็นกำลังใจให้ทีมงาน ขอบคุณค่ะ
และมีความคิดเห็นหรือข้อมูลเพิ่มเติมเกี่ยวกับตัวโครงการ สามารถ Comment ได้ที่ด้านล่างของรีวิวค่ะ
แสดงความคิดเห็น เกี่ยวกับ " EP.375 รีวิว ริธึ่ม เจริญกรุง พาวิลเลี่ยน RHYTHM Charoenkrung Pavillion คอนโดวิวแม่น้ำเจ้าพระยา เพียง 100 ม. ถึง รร.นานาชาติโชรส์เบอรี่ เริ่ม 4.9 ล้าน* "