
รีวิว คอนโด แชมเบอร์ส ชาน ลาดพร้าว-วังหิน Chambers Chaan Ladprao-Wang Hin
Chambers Chaan ลาดพร้าว-วังหิน จาก SC ASSET ตั้งอยู่บนถนนลาดพร้าว-วังหิน แขวงลาดพร้าว เขตลาดพร้าว กทม. กทม.
ใกล้ BTS เสนานิคม, ใกล้เทสโก้ โลตัส วังหิน, Plaza Lagoon, Tha Jaz, ตลาดวังหินยิ่งเจริญ, ม.เกษตรศาสตร์, ม.ราชภัฎจันทรเกษม และ รพ.เปาโลเมโมเรียล โชคชัย 4
แชมเบอร์ส ชาน ลาดพร้าว-วังหิน เป็นคอนโด Low Rise 7-8 ชั้น 3 อาคาร พื้นที่โครงการขนาด 3-3-35 ไร่ ห้องพักอาศัย 317 ยูนิต มีห้องพักให้เลือกแบบสตูดิโอ, 1 ห้องนอน, 2 ห้องนอน ขนาดเริ่มต้น 26.00-56.00 ตร.ม. สร้างเสร็จพร้อมอยู่ปี 2560
สิ่งอำนวยความสะดวกครบครัน อาทิ โถงต้อนรับ, ห้องตู้จดหมาย, สระว่ายน้ำ, ฟิตเนส, ซาวน่า, ห้องอเนกประสงค์, ประตูคีย์การ์ด, ที่จอดรถ 156 คัน ไม่รวมจอดซ้อนคัน, กล้องวงจรปิด, รปภ. 24 ชม. ราคาเริ่มต้น 1.89 ล้านบาท*
| ชื่อโครงการ | แชมเบอร์ส ชาน ลาดพร้าว-วังหิน Chambers Chaan Ladprao-Wanghin |
| เจ้าของโครงการ | เอสซี แอสเสท SC ASSET |
| ลักษณะห้องและขนาดห้อง | – Studio, 1 Bedroom, 1 Bedroom Plus, 1 Bedroom Chaan, 2 Bedrooms, – ขนาดเริ่มต้น 26 – 56 ตร.ม. |
| เนื้อที่ทั้งหมด | 3-3-35 ไร่ |
| จำนวนตึก | 3 อาคาร |
| จำนวนชั้น | – อาคาร A : 8 ชั้น – อาคาร B 1 : 7 ชั้น – อาคาร B 2 : 8 ชั้น |
| จำนวนห้อง | – อาคาร A : 176 ยูนิต – อาคาร B 1 : 54 ยูนิต – อาคาร B 2 : 87 ยูนิต |
| ที่จอดรถทั้งหมด | ประมาณ 156 คัน คิดเป็น 50% ไม่รวมซ้อนคัน |
| โซน | ลาดพร้าว-วังหิน |
| ขนส่งสาธารณะ | สองแถว, วินมอเตอร์ไซค์, Taxi |
| รถโดยสารที่ผ่าน | n/a |
| ที่ตั้ง | ถนนลาดพร้าว-วังหิน แขวงลาดพร้าว เขตลาดพร้าว กทม. |
| กำหนดการ | Pre-Sale 17-18 ต.ค. 58 |
| ปีที่สร้างเสร็จ | พ.ศ.2560 |
| ราคา | เริ่มต้น 1.89 ล้านบาท |
| ราคาเฉลี่ยต่อ ตร.ม | ประมาณ 80,000 บาท/ ตร.ม. |
| ค่าส่วนกลางและกองทุน | – ค่าส่วนกลาง 45 บาท – กองทุน 500 บาท |
| สถานที่สำคัญใกล้เคียง |
|
| สิ่งอำนวยความสะดวก | – Lobby – สวนหย่อม – สวนชั้นดาดฟ้าที่อาคาร A – สระว่ายน้ำ พร้อมชานพักผ่อนริมสระ – ฟิตเนส – Access Card Control – CCTV – ระบบรักษาความปลอดภัยตลอด 24 ชม. |
| จุดเด่นของโครงการ | “Chambers Chaan แชมเบอร์ส ชาน ลาดพร้าว-วังหิน” คอนโดอารมณ์บ้าน ภายใต้คอนเซป “ชาน” (CHAAN) ที่หมายถึง เฉลียง ซึ่งเป็นส่วนหนึ่งของบ้าน ที่เป็นแรงบันดาลใจในการพัฒนาที่ให้ความรู้สึกอบอุ่นเหมือนอยู่บ้าน บนทำเล ลาดพร้าว-วังหิน |
ถนนลาดพร้าว-วังหิน แขวงลาดพร้าว เขตลาดพร้าว กทม.
พิกัด : 13.826367, 100.591870
แผนที่จากโครงการ
การเดินทาง
ตัวโครงการ Chambers Chaan ตั้งอยู่ในย่านที่อยู่อาศัยที่มีความคึกคักพอสมควร การเดินทางค่อนข้างสะดวกมีหลายเส้นทางให้เลือกโดยถ้าจะออกมาถนนลาดพร้าวก็ใช้เส้นลาดพร้าววังหิน หรือโชคชัย 4 ได้จะไปเชื่อมกับถนนลาดพร้าว ถ้าจะมาออกถนนรัชดาภิเษกก็มาเข้าซอยลัดไปออกซ.รัชดา 36, 32, 30 ได้ เส้นรัชดาภิเษกจะไปเชื่อมถนนวิภาวดีรังสิต ถนนพหลโยธิน ถนนลาดพร้าว หรือเข้าไปสุทธิสาร พระรามเก้าเชื่อมกับอโศกได้ ถ้าจะไปออกถนนพหลโยธินก็ใช้เสนานิคม 1 หรือจะใช้เส้นลาดปลาเค้าที่เชื่อมกับถนนประเสริฐมนูกิจไปออกรามอินทราได้ ตัวเลือกในการใช้เส้นทางค่อนข้างเยอะดีก่อนจะออกก็แค่เลือกว่าจะไปโซนไหนครับ ย่านนี้รถเยอะหน่อยติดขัดในช่วงเร่งด่วน และที่สำคัญคือย่านนี้มีร้านอาหารอร่อยๆหลายร้านจะมีรถจอดสองฝั่งถนนลาดพร้าววังหินจาก 4 เลนเหลือ 2 เลน ยิ่งทำให้การจราจรคล่องตัวช้าหน่อยแต่ก็เป็นบางช่วงเท่านั้นครับ
การเดินทางโดยรถสาธารณะด้านหน้าโครงการมีรถสองแถว และวินมอเตอร์ไซค์วิ่งผ่านไปมาตลอดเรียกขึ้นได้ที่หน้าโครงการเลย ส่วนรถเมล์และรถตู้ต้องออกไปเส้นรัชดาภิเษก ถนนพหลโยธิยน และถนนลาดพร้าวมีหลายสายวิ่งผ่านตลอดทั้งเข้าและออกเมืองตั้งแต่รังสิต สะพานใหม่ อนุสาวรีย์ชัยฯ หมอชิต ประตูน้ำ สยาม มาบุญคลอง ท่าเรือสี่พระยา นอกจากนี้ตัวโครงการอยู่ห่างจากสถานีรถไฟฟ้า MRT สถานีลาดพร้าวประมาณ 4.1 กม. และอยู่ใกล้แนวรถไฟฟ้าสายสีเขียวส่วนต่อขยายหมอชิต-คูคตซึ่งกำลังก่อสร้างกันอยู่ โดยสถานีที่ใกล้สุดคือสถานีเสนานิคมห่างจากโครงการประมาณ 2.8 กม. คงต้องพึ่งพี่วินเป็นส่วนใหญ่ครับถ้าจะใช้รถไฟฟ้า
การเดินทางวันนี้เริ่มจากแยกลาดพร้าวมุ่งหน้าไปเกษตร ผ่านแยกรัชโยธิน จะเจอแยกเสนานิคมเลี้ยวขวาเข้าซอยพหลโยธิน 32 หรือเสนานิคม 1 จากนั้นตรงไปจนเจอแยกวังหินเลี้ยวขวาเข้าถนนลาดพร้าววังหิน ประมาณ 600 ม.ก็จะถึงพื้นที่โครงการทางซ้ายมือครับ ส่วนสำนักงานขายจะถึงก่อนพื้นที่โครงการ
เริ่มตรงห้าแยกลาดพร้าว มีห้างสรรพสินค้ายอดฮิตย่านนี้เลย เราจะมุ่งหน้าไปเกษตรกันครับ
จากนั้นจะเจอ Lotus ขวามือ
จากนั้นจะเจอตึกช้าง
ตามป้ายเกษตรไปครับ
ผ่านแยกรัชโยธินมาจะเจอ เมเจอร์รัชโยธินซ้ายมือ ขวามือมีป้ายโครงการ
ตอนนี้เส้นพหลโยธินตรงสะพานข้ามแยกเกษตรปิดเพื่อสร้าง BTS สายสีเขียวส่วนต่อขยาย หมอชิต-คูคต การจราจรจะค่อนข้างติดขัดเกือบทั้งวันครับ
ถนนสี่เลนเบี่ยงเหลือสองเลนครับ ขวามือคือสะพานข้ามแยกเกษตรที่ปิดให้บริการแล้ว
จากนั้นจะเจอแยกเสนานิคม ให้เลี้ยวขวาไปซอยเสนานิคม 1 ครับ
เลี้ยวเข้ามาในซอยจะเจอกับถนน 4 เลน จะเห็นว่ารถฝั่งขวาเยอะพอสมควรเนื่องจากซอยนี้ไปเชื่อมกับถนนลาดปลาเค้าออกถนนประเสริฐมนูกิจได้ และเชื่อมกับถนนลาดพร้าววังหินซึ่งเป็นทางไปโครงการครับ
ตรงเข้ามาหน่อยจะเจอตลาดบางเขนซ้ายมือ ตรงช่วงเสนานิคม 1 ซอย 1
เลยมาจะเจอปั๊มซัสโก้ทางซ้ายมือ
จากนั้นจะเจอ เสนานิคม 1 ซอย 12 ซึ่งเป็นซอยที่ไปทะลุออกซอยพหลโยธิน 30 ได้
เลยมาจะเจอโครงการคอนโดยู รัชโยธินซ้ายมือ
จากนั้นจะเจอปั๊มเอสโซ่ทางขวามือ ตรงไปอีกครับ
จากนั้นจะเจอ 7-11 ขวามือ จะอยู่ตรงช่วงเสนานิคม 1 ซอย 26
จากนั้นก็ข้ามคลองลาดพร้าว
ข้ามคลองมาซ้ายมือจะเจอโรงเรียนเทพวิทยา ส่วนทางขวามือเป็นตลาดวังหินยิ่งเจริญ ห่างจากโครงการประมาณ 650 ม. ตรงไปข้างหน้าจะเป็นสี่แยกวังหิน
ตอนนี้เราอยู่ตรงสี่แยกวังหิน ตรงไปคือถนนเสนานิคม 1 เลี้ยวซ้ายเป็นถนนลาดปลาเค้าไปเชื่อมกับถนนประเสริฐมนูกิจ แต่เราจะเลี้ยวขวาเข้าถนนลาดพร้าววังหินครับ จากแยกนี้ถึงโครงการประมาณ 600 ม.
เลี้ยวขวามาจะเจอ Big C mini ทางขวามือห่างจากโครงการประมาณ 550 ม.
จากนั้นจะเจอปั๊มเชลล์ซ้ายมือ
เลยมาหน่อยเป็นหมู่บ้านโครงการ SOUL ลาดพร้าววังหิน
จากนั้นจะเจอป้ายโครงการ MITI คอนโดมิเนียมอยู่ตรงซอยลาดพร้าววังหิน 72 เลยไปหน่อยที่เห็นสีส้มๆตรงหน้าจะเป็นสำนักงานขาย Chambers Chaan ครับ
จากนั้นจะเจอสำนักงานขายซ้ายมือครับ จะอยู่เยื้องๆกับธนาคารกรุงศรีฯ
ด้านหน้าสำนักงานขาย แต่เราไปดูพื้นที่โครงการกันก่อนนะครับ
ฝั่งตรงข้ามเยื้องๆสำนักงานขายเป็นธนาคารกรุงศรี
ติดกับธนาคารกรุงศรีมี 7-11 ห่างจากโครงการประมาณ 100 ม. สองฝั่งข้างทางจะเป็นตึกแถวส่วนใหญ่เป็นร้านอาหารครับ มีให้เลือกกินสบายๆ
ถนนมีขนาด 4 เลน แต่จะมีรถของคนที่มาทานอาหารแถวนี้จอดฝั่งละ 1 เลนเป็นระยะๆ
มองไปฝั่งตรงข้ามเป็นร้านก๋วยเตี๋ยวเย็นตาโฟ สังเกตเห็นคนเต็มร้านเลย
เดินไปต่อครับร้านค้าจะมีเรื่อยๆจนเกือบถึงโครงการเลย มีวินมอเตอร์ไซค์วิ่งผ่านไปมาตลอด
มองไปฝั่งตรงข้ามก็เห็นร้านค้าร้านอาหารอีก
เดินต่อมาอีกหน่อยจะเห็นอู่ซ่อมรถซ้ายมือซึ่งรั้วอยู่ติดกับโครงการเลย ฝั่งตรงข้ามเป็น B.B.Learning center
B.B.Learning center ภายในมีสระว่ายน้ำ สถาบันสอนจินตคณิต สอนภาษา
ด้านหน้าอู่ซ่อมรถซ้ายมือมีร้านอาหารตามสั่งครับ ติดกันก็จะเป็นรั้วโครงการเลย
ด้านหน้าโครงการก็จะติดกบถนนลาดพร้าววังหิน
อีกฝั่งติดกับตึกแถว 3 ชั้น
เลยหน้าโครงการไปก็จะมีร้านค้า ร้านอาหารอีกครับ ค่อนขา้งคึกคักดี ถ้าขับตรงไปสามารถไปออกได้ทั้งถนนรัชดาภิเษก และโชคชัย 4 ที่ทะลุออกถนนลาดพร้าวได้ครับ
มองย้อนกลับไปฝั่งที่ติดกับอู่ซ่อมรถ

พื้นที่โครงการมีลักษณะเป็นสี่เหลี่ยมผืนผ้าด้านหน้าทิศตะวันตกติดกับถนนลาดพร้าววังหิน ฝั่งตรงข้ามเป็นบ้านพักอาศัยและตึก B.B.Learning center ทิศตะวันออกติดกับบ้านพักอาศัย 2 ชั้น ทิศใต้ติดกับตึกแถว 3 ชั้นโซนด้านหน้า ส่วนด้านหลังติดกับบ้านพักอาศัย 2 ชั้น และทิศเหนือโซนหน้าติดกับอู่ซ่อมรถ และบ้าน 4 ชั้น โซน้าน
ด้านหน้าโครงการหรือทิศตะวันตกติดกับถนนลาดพร้าววังหิน ฝั่งตรงข้ามเป็นซอยลาดพร้าววังหิน 85 และตึก B.BLearning center

วิวด้านหน้าโครงการหรือทิศตะวันตกจะมองเห็นแบบนี้ครับ
ด้านหลังโครงการหรือทิศตะวันออกจะติดกับบ้านพักอาศัยประมาณ 2 ชั้น

วิวด้านหลังโครงการหรือทิศตะวันออก จะเห็นหมู่บ้านเป็นส่วนใหญ่ไม่มีตึกสูงบัง
ด้านข้างโครงการฝั่งทิศใต้ โซนด้านหน้าติดกับตึกแถว 3 ชั้น ส่วนด้านในจะเป็นหมู่บ้านพักอาศัยประมาณ 2 ชั้น

วิวทิศใต้จะมองเห็นหมู่บ้านเป็นส่วนใหญ่
ด้านข้างโครงการฝั่งทิศเหนือ โซนด้านหน้าติดกับอูาซ่อมรถความสูงประมาณ 3 ชั้น ถัดเข้าไปด้านหลังจะมีบ้านพักอาศัย 2-4 ชั้น

วิวฝั่งทิศเหนือจะเห็นแบบนี้ครับ
พื้นที่โครงการจะเป็นสี่เหลี่ยมผืนผ้ายาวเข้าไปแบบนี้
ความอุดมสมบูรณ์รอบๆโครงการมีให้เลือกกินเยอะครับในระยะเดิน 100 ม. มี 7-11 ติดกับธนาคารกรุงศรี เลยไปอีกประมาณ 550 ม. มี Big Mini ส่วนตลาดสดมีตลาดวังหินยิ่งเจริญประมาณ 650 ม.อยู่ใกล้ๆแยกวังหิน สองฝั่งทางถนนลาดพร้าววังหินมีร้านก๋วยเตี๋ยว ร้านอาหารตามสั่ง ร้านค้า ร้านขายยา สถาบันกวดวิชา รวมไปถึงร้านอาหารดังๆย่านนี้อย่างเฝอ 54 , ซ้งเป็ดพะโล้และอีกหลายๆร้านที่ขึ้นชื้อเรื่องความอร่อย ประมาณ 250 ม.มีโลตัสวังหิน ฝั่งตรงข้ามเลยมาหน่อยเป็น The Jas และ Plaza Lagoon มีร้านค้าร้านอาหารในนี้ครับ ส่วนแนว Pub & Restaurant มีร้าน 3 วัน 2 คืน , Alpacas View Farm & Cuisine ส่วนห้างสรรพสินค้าใหญ่ๆต้องมาแถวเส้นพหลโยธินตั้งแต่เซ็นทรัลลาดพร้าว ยูเนี่ยนมอลล์ เมเจอร์รัชโยธิน
สถานที่สำคัญ
Model
เดินเข้าไปดูสำนักงานขายกันครับ
เปิดประตูเข้ามาจะโมเดล และชุดเก้าอี้วางไว้ มีระแนงไม้ตกแต่ง
มองอีกฝั่งจะเห็นเคาน์เตอร์พนักงาน
หน้าตาภายในอาคารใช้โทนสีเทาและน้ำตาล เล่นลวดลายที่ Facade ตัวอาคารแบ่งเป็น 3 อาคาร ทางเข้า-ออกอยู่ติดกับถนนลาดพร้าววังหิน
ด้านหน้าโครงการติดกับถนนลาดพร้าววังหิน ทางเข้า-ออกจะลอดใต้อาคาร A เข้าไปครับ ชั้นดาดฟ้ามีสวนส่วนกลางครับ
ภาพจำลองภายนอกอาคาร
สวนชั้นดาดฟ้าจะมีอยู่แค่ตรงด้านหน้าไม่ได้ยาวเต็มตามพื้นที่อาคาร A

ภาพจำลองสวนชั้นดาดฟ้าที่อาคาร A
มองด้านข้างฝั่งทิศใต้จะเห็นอาคารอยู่ 3 อาคาร ไล่จากด้านหน้าเข้าไปด้านหลังโครงการ A, B1, B2 ที่อาคาร A จะเห็นชานพักผ่อนใช้ได้เฉพาะลูกบ้านอาคาร A เท่านั้น
ชานพักผ่อนที่อาคาร A
ด้านหลังโครงการจะเป็นอาคาร B2 ติดกับบ้านพักอาศัย
มาดูด้านข้างอีกฝั่งส่วนกลางหลักๆจะอยู่ระหว่างอาคาร B1 และ B2 ที่อาคาร B1 จะพิเศษกว่าอาคารอื่นคือมีเพียง 7 ชั้น มีห้องแบบ Chaan (ชาน) ซึ่งเป็นคอนเซปของโครงการ และมีห้องแบบ Loft เพดานห้องสูง 4.3 ม. ที่ชั้น 6 ทั้งหมด ส่วนชั้น 7 ก็เป็นฝ้าสูงปกติ
มองมุมสูงลงไปยังส่วนกลางจะเห็นสระว่ายน้ำเป็นระบบเกลือขนาด 7.6 x 20 ม. ลึก 1.2 ม. มีสวนหย่อมรอบๆสระ
มองเข้าไปด้านในสระจะเห็นพื้นที่พักผ่อนริมสระว่ายน้ำ
ภาพจำลองสระว่ายน้ำ
ภาพจำลองชานพักผ่อนริมสระว่ายน้ำ ที่อาคาร B2 มีชิงช้าให้นั่งด้วย
Floor Plan
แปลนชั้น 1 ทางเข้าออกโครงการซ้ายมืออยู่ติดกับถนนลาดพร้าววังหิน ทางเข้าจะลอดใต้อาคาร A ผ่านเข้ามาเจอลานจอดรถกลางแจ้ง จากนั้นก็จะเป็นอาคาร B1 และจะเจอลานจอดรถกบางแจ้งอีกจุด และสามารถจอดรถที่ชั้น 1 ใต้อาคารทุกอาคารได้ ทั้งโครงการคิดเป็น 50% (ไม่รวมซ้อมคัน) เลยเข้าไปในสุดเป็นอาคาร B2 ส่วนกลางหลักๆจะอยู่ด้านในระหว่างอาคาร B1 และ B2 มี ฟิตเนส สระว่ายน้ำระบบเกลือขนาด 7.6 x 20 ม. รอบๆสระมีสวนหย่อม มีชานพักผ่อนริมสระว่ายน้ำให้ด้วย ลิฟท์มีให้อาคารละ 2 ตัว
แปลนอาคาร A ชั้น 2 จะเร่ิมเป็นชั้นพักอาศัยนับได้ทั้งหมด 22 ยูนิต ซ้ายมือบนสุดเป็นส่วนที่รถวิ่งเข้าโครงการจะเป็นยูนิตพักอาศัยที่ชั้น 3 ขึ้นไปครับห้องที่ลงสีชมพูเป็นแบบ 1 Bedroom ส่วนห้องสีเทาเป็นแบบ 1 Bedroom Plus บันไดหนีไฟมี 2 จุด
แปลนอาคาร A ชั้น 3, 4, 7, 8 มีทั้งหมด 26 ยูนิตแปลนเหมือนชั้น 2 แต่เพิ่มยูนิตส่วนที่รถลอดผ่านใต้อาคาร A เข้ามา 3 ห้อง และมีห้อง Studio ที่ลงสีเขียวอ่อนอีก 1 ห้อง (มุมล่าง) ซึ่งทั้งโครงการมีเพียง 4 ห้องเท่านั้น ที่ชั้น 5 และ 6 จะไม่มีห้องนี้ครับ
แปลนอาคาร A ชั้น 5-6 มีทั้งหมด 25 ยูนิต จะเห็นว่ายูนิตที่เป็น Studio จะหายไปแต่จะเป็นชานพักผ่อนแทน ซึ่งจะใช้งานได้เฉพาะลูกบ้านอาคาร A ที่ชั้น 5 เท่านั้นครับ
แปลนอาคาร B1 ชั้น 2 อาคารนี้จะมีความเป็นส่วนตัวมากที่สุดในโครงการมีทั้งหมด 7 ชั้น แต่ละชั้นมีจำนวนห้อง 9 ยูนิต ชั้นนี้จะแบ่งเป็นห้อง 1 Bedroom สีชมพูฝั่งซ้ายทั้งหมด 2 ห้อง ถัดมาเป็น 1 Bedroom Plus ที่ตำแหน่ง 02, 05, 07 มี 3 ห้อง และเป็นห้องแบบ Chaan (ชาน) ตำแหน่ง 01, 06 คือจะมีลักษณะเป็นระเบียงยื่นออกมาสามารถเลื่อนเปิดปิดกระจกเพื่อปรับเปลี่ยนฟังก์ชั่นการใช้งานได้ ส่วนห้อง 2 Bedroom จะอยู่ฝั่งขวาทั้งหมด 2 ห้อง
แปลนอาคาร B1 ชั้น 3-4 ชั้นนี้จะเหลือห้อง 1 Bedroom Plus เพียง 1 ห้องเปลี่ยนเป็นแบบ Chaan มี 4 ห้องนอกนั้นก็เหมือนเดิม
แปลนอาคาร B1 ชั้น 5 ห้อง Chaan จะเหลือ 2 ห้อง และ 1 Bedroom Plus 3 ห้องที่เหลือเหมือนเดิม
แปลนอาคาร B1 ชั้น 6-7 ห้องแบบ Chaan จะไม่มี เปลี่ยนเป็นห้อง 1 Bedroom Plus 5 ห้อง ที่เหลือก็เหมือนเดิม แต่ชั้น 6 จะต่างจากชั้น 7 ตรงที่ห้องจะเป็นแบบ Loft ทั้งหมดคือฝ้าตรงส่วนห้องนั่งเล่นจะสูง 4.3 ม. บริเวณส่วนอื่นจะสูง 2.6 ม. ส่วนชั้น 7 ฝ้าก็จะสูงปกติ 2.45 ม.
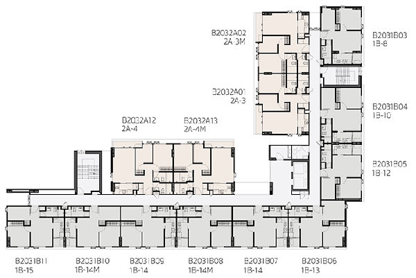
แปลนอาคาร B2 เป็นรูปตัว L อาคารนี้จะอยู่ติดกับสระว่ายน้ำเลย ชั้น 1 ยูนิตพักอาศัยเริ่มที่ชั้นนี้จำนวน 4 ห้อง แบ่งเป็นแบบ 2 Bedroom และ 1 Bedroom Plus อย่างละ 2 ห้อง
แปลนอาคาร B2 ชั้น 2 มี 5 ยูนิตเพิ่ม 1 Bedroom Plus มาอีก 1 ห้อง ที่เหลือก็เหมือนชั้น 1
แปลนอาคาร B2 ชั้น 3-8 จะเหมือนกันทุกชั้นมีชั้นละ 13 ยูนิต โดยแบ่งเป็นห้อง 2 Bedroom จำนวน 4 ห้องจะได้วิวทิศเหนือมองเห็นสระว่ายน้ำทั้งหมด ส่วนที่เหลืออีกฝั่งจะเป็น 1 Bedroom Plus ทั้งหมด 9 ห้องครับ
Unit Type
1 Bedroom 30-33 ตร.ม.
1 Bedroom Plus 40-44 ตร.ม.
1 Bedroom Chaan 40-42 ตร.ม.
2 Bedroom 55-56 ตร.ม.
ห้องตัวอย่าง
ห้องตัวอย่างที่จะพามาชมวันนี้เป็นแบบ 1 Bedroom ขนาด 30 ตร.ม. และ 1 Bedroom Plus ขนาด 40 ตร.ม. โดยโครงการนี้ขายแบบ Fully Fitted ของที่ได้คือ ตู้เก็บของ ตู้เสื้อผ้า ชุดเคาน์เตอร์ครัว และ แอร์มาให้ 1 เครื่องในห้องนอน
ห้องแรกแบบ 1 Bedroom เดินเข้ามาเจอส่วนห้องนั่งเล่นก่อน ถัดไปด้านในเป็นห้องนอนมีประตูกระจกบานเลื่อน 2 บานกั้นให้ ฝั่งซ้ายเป็นห้องครัวได้เป็นครัวปิดครับ คั่นกลางระหว่างห้องน้ำและระเบียงห้อง
เริ่มตั้งแต่ประตูหน้าห้องสีไม้อ่อนๆ
มือจับประตูแบบคันโยก
เดินเข้าห้องไปเจอส่วนห้องนั่งเล่นก่อน เชื่อมกับห้องนอนมีประตูบานเลื่อน 2 บาน ฝั่งซ้ายมือเป็นห้องครัวและห้องน้ำ พื้นห้องเป็นไม้ลามิเนตหนา 8 มม. ฝ้าสูง 2.45 ม. ผนังของจริงจะได้ฉาบเรียบทาสีทั้งหมด
วางชุดโซฟาขนาด 3 ที่นั่งให้ดูพร้อมโต๊ะกลางให้ดู
ระยะดูทีวีประมาณ 2.9 ม. ชั้นวางทีวีไม่ได้แถมให้นะครับต้องติดเพิ่มเอง ส่วนที่ได้คือตู้เก็บของซ้ายมือสีขาวสูงจากพื้นถึงฝ้า ขวามือเป็นทางเข้าห้องครัวเป็นครัวปิดมีประตูเลื่อนให้

ตู้เก็บของที่ได้เป็นบานเปิด แบ่งช่องมาให้เรียบร้อย ด้านบนสุดเป็นระบบไฟฟ้า
มองย้อนกลับไปที่ประตูทางเข้าจะเห็นพื้นที่สามารถวางโต๊ะทำงานได้ครับ
ถัดจากห้องนั่งเล่นเป็นห้องนอนมีประตูกระจกบานเลื่อน 2 บานกั้นอยู่
ประตูเลื่อนออกสองฝั่ง รางประตูซ่อนไว้ด้านบน เวลาทำความสะอาดจะได้สะดวกหน่อย
ภายในห้องนอนจะได้ตู้เสื้อผ้า และแอร์ Daikin 1 ตัวครับ ด้านในมีหน้าต่างสูงจากพื้นถึงฝ้าเลย แบ่งเป็นบานกระทุ้ง 1 บานฝั่งซ้าย ส่วนที่เหลือเป็นบาน Fixed ทั้งหมดครับ
วางเตียง 5 ฟุตพร้อมโต๊ะหัวเตียงให้ดู
พื้นที่ข้างเตียงเหลือประมาณ 45 ซม.
พื้นที่ปลายเตียงเหลือประมาณ 85 ซม.
พื้นที่ข้างเตียงริมหน้าต่างเหลือประมาณ 55 ซม.
ระยะดูทีวีปลายเตียงประมาณ 3 ม. แต่ต้องติดฝั่งซ้ายครับ ปลายเตียงวางตู้เสื้อผ้าที่โครงการแถมมาให้ขนาดตู้ 4 บาน
ตู้เป็นบานเปิดทั้งหมดด้านในมีลิ้นชักให้ บานตู้มี Soft Close ทุกบานครับ
แอร์ 1 ตัวของ Daikin ติดผนังเหนือประตูทางเข้า
ออกมาด้านนอกติดกับห้องนั่งเล่นอีกฝั่งมีประตูบานเลื่อนของห้องครัว
พื้นห้องครัวจะปูกระเบื้องแกรนิตโต้แบบด้าน
เดินเข้ามาจะเจอชุดเคาน์เตอร์ครัว ซ้ายมือมีพื้นที่วางตู้เย็นได้
ชุดตู้ด้านบนเป็นบานเปิดทั้งหมดแบ่งช่องมาให้เก็บของ ชุดตู้ทุกบานมี Soft Close ให้ทุกบาน
ตู้ด้านล่างก็เป็นบานเปิดครับ มีลิ้นชัก 2 อัน
ตู้ด้านล่างช่องวางไมโครเวฟก็เป็นบานเปิดเช่นกันครับ
Top ครัวเป็นหินแกรนิตสีดำ ได้ Sink ล้างจานแบบหลุมเดียว ไม่มีที่พักจานฝังมาให้เรียบร้อยของ Teka
เตาไฟฟ้าหน้าเซรามิก 2 หัวพร้อมเครื่องดูดควันของ Teka
ด้านในติดกับที่วางตู้เย็นเป็นห้องน้ำ
เดินเข้ามาเจอชุดอ่างล้างหน้า ด้านในเป็นพื้นที่อาบน้ำ
ชุดอ่างล้างหน้า และโถสุขภัณฑ์ของ American Standard ขวามือมีปลั๊กไฟ
ปลั๊กไฟมีฝาครอบกันน้ำมาให้เรียบร้อยดี
ด้านในเป็นพื้นที่ส่วนเปียก ไม่ได้แถมฉากกั้นให้ต้องติดเพิ่มเอง
มีฝักบัวมาให้ และช่องสำหรับวางอุปกรณ์อาบน้ำ
หน้าตาฝักบัวของ American Standard
พื้นที่ส่วนเปียกขนาด 0.75 x 1.05 ม.
ธรณีประตูสูงพอประมาณกั้นน้ำไหลออกด้านนอก
ฝั่งตรงข้ามห้องน้ำจะเป็นระเบียง มีประตูกระจกบานเลื่อน 3 บานให้
เลื่อนออกมาเจอพื้นระเบียงขนาด 1.17 x 1.4 ม.
มีพื้นที่วางเครื่องซักผ้าได้ เดินระบบน้ำและปลั๊กไฟไว้ให้
ด้านบนแขวนคอมเพลสเซอร์แอร์เป่าลมด้านใน
ฝั่งตรงข้ามติดไฟตรงระเบียงมาให้แบบนี้
มาต่อกันที่ห้อง 1 Bedroom Plus เดินเข้าห้องมาเจอห้องน้ำขวามือ ส่วนซ้ายมือเป็นห้องอเนกประสงค์มีประตูกระจกบานเลื่อน 2 บานให้สามารถทำเป็นห้องนอนหรือห้องทำงานได้ครับ มีตู้เสื้อผ้ามาให้ ถัดไปเป็นส่วนห้องนั่งเล่น และส่วนรับประทานอาหาร มีหน้าต่างให้ตรงส่วนนี้ ห้องนอนอยู่มุมซ้ายบนมีหน้าต่างในห้องนอน ส่วนห้องครัวอยู่ฝั่งขวาได้เป็นครัวปิด ชุดครัวเป็นแบบตัว L ในสุดเป็นระเบียงห้อง
เปิดประตูเข้าห้องมาเจอห้องน้ำขวามือ ซ้ายมือจะเป็นห้องอเนกประสงค์ ด้านในเป็นห้องนั่งเล่นคั่นกลางระหว่างห้องนอนและห้องครัวครับ พื้นเป็นไม้ลามิเนตหนา 8 มม. ผนังของจริงจะเป็นฉาบเรียบทาสีทั้งหมด ฝ้าสูง 2.45 ม.
ติดกับประตูทางเข้าห้องฝั่งหน้าห้องน้ำทำตู้เก็บของมาให้
ตู้เป็นบานเปิด ด้านในแบ่งช่องมาให้
เดินเข้ามาให้ห้องน้ำ ส่วนหน้าจะแคบหน่อยลักษณะเหมือนคอขวด
ผ่านเข้ามาก็จะเจอชุดอ่างล้างหน้าและโถสุขภัณฑ์พร้อมสายชำระของ American Standard มีปลั๊กไฟขวามือข้างอ่างล้างหน้าพร้อมฝาครอบให้เช่นกัน
ด้านในเป็นพื้นที่ส่วนเปียก มีช่องวางอุปกรณ์อาบน้ำมาให้ ไม่ได้แถวฉากกั้นให้ต้องติดเพิ่มเอง
พื้นที่ส่วนเปียกขนาด 0.80 x 1 ม.
ธรณีประตูสูงกำลังดี
ฝั่งตรงข้ามห้องน้ำเป็นห้องอเนกประสงค์มีประตูบานเลื่อน 2 บานให้
มือจับประตูบานเลื่อน
ภายในห้องขนาด 2.7 x 1.85 ม. สามารถทำเป็นห้องนอนวางเตียงเดี่ยวกำลังดี หรือทำเป็นห้องทำงานก็ได้ครับ
โครงการทำเป็นห้องทำงานให้ดูเป็นไอเดีย ใครชอบก็ทำตามได้
อีกฝั่งที่ติดกับประตูทำตู้เสื้อผ้ามาให้ขนาด 2 บาน
ตู้เป็นบานเปิดมี Soft Close ให้
ออกมาด้านนอกถัดจากห้องน้ำ และห้องอเนกประสงค์เป็นห้องนั่งเล่น มีหน้าต่างบานกระทุ้ง 1 บาน และบาน Fiexd 3 บาน สูงจากพื้นถึงฝ้า ช่วยให้แสงส่องเข้ามาในห้องได้เยอะดี
วางชุดโซฟาขนาด 3 ที่นั่งพร้อมโต๊ะกลางให้ดู มีพื้นที่เหลือพอวางโซฟารูปตัว L ได้ครับ
ระยะดูทีวีประมาณ 2.9 ม. ซ้ายมือเป็นทางเข้าห้องนอน
มองย้อนกลับไปยังประตูทางเข้าห้องจะเห็นแบบนี้ครับ ฝั่งซ้ายมีพื้นที่สำหรับวางโต๊ะรับประทานอาหารได้ขนาด 2 ที่นั่ง
เข้ามาดูภายในห้องนอนกันต่อ
วางเตียงขนาด 5 ฟุตให้ดูระยะ พื้นที่ข้างเตียงเหลือฝั่งละประมาณ 60 ซม.
พื้นที่ปลายเตียงเหลือประมาณ 60 ซม.
ระยะดูทีวีปลายเตียงประมาณ 2.65 ม.
หน้าต่างในห้องนอนแบบเดียวกับส่วนห้องนั่งเล่น
ฝั่งด้านในทำตู้เสื้อผ้ามาให้ขนาด 4 บานแบบห้อง 1 Bedroom แอร์ติดผนังด้านนี้ 1 ตัวของ Daikin
ตู้เป็นบานเปิด 4 บานมีลิ้นชัก 2 อัน
กลับออกมาด้านนอกฝั่งตรงข้ามห้องนอนเป็นห้องครัว ได้เป็นครัวปิดมีประตูบานเลื่อน 1 บาน
เปิดเข้ามาจะเจอชุดเคาน์เตอร์ครัวรูปตัว L
ชุดตู้ด้านบนเป็นแบบนี้
ตู้เป็นบานเปิดมี Soft Close ให้ทุกบาน
ตู้ด้านล่างจะเป็นตัว L
ตู้ด้านล่างเป็นบานเปิดมี Soft Close ให้ทุกบานเช่นกัน
Sink ล้างจานแบบฝังไม่มีที่พักจานของ Teka
เตาไฟฟ้าหน้าเซรามิกแบบ 2 หัววางแนวนอนใช้งานสะดวกกว่าแนวตั้งพร้อมเครื่องดูดควันของ Teka ส่วน Top เป็นหินแกรนิต
มีพื้นที่สำหรับวางเครื่องซักผ้าแบบฝาหน้าขนาด 7 kg ใหญ่กว่านี้ไม่ได้ ริมสุดมีพื้นที่วางตู้เย็นได้
ในสุดเป็นระเบียงห้องมีประตูกระจกบานเลื่อน 3 บาน
ขนาดระเบียง 1.1 x 1.40 ม.
ถ้าติดแอร์ 3 ตัวจะวางคอมเพลสเซอร์แบบนี้ครับ ลมเป่าด้านในแนะนำให้ติดกริลเป่าออกด้านนอกครับ
ราคา
เงินจอง/ทำสัญญา
***โปรโมชั่นส่วนลดพิเศษสอบถามโครงการอีกทีครับ
ค่าส่วนกลาง 45 บาท/ตร.ม. : ค่ากองทุน 550 บาท/ตร.ม
***รายละเอียดอื่นๆโปรดสอบถามทางโครงการครับ
สรุป
ทำเลที่ตั้งโครงการ – Chambers Chaan ลาดพร้าว-วังหิน ตั้งอยู่ในย่านแหล่งชุมชนที่อยู่อาศัย อยู่ติดกับถนนลาดพร้าววังหินห่างจากแยกวังหินประมาณ 600 ม. ย่านนี้ค่อนข้างอุดมสมบูรณ์เรื่องอาหารการกินครับมีร้านอาหารตั้งแต่ริมทาง จนไปถึงร้านติดแอร์เย็นๆก็มี มีทั้งก๋วยเตี๋ยว ติ่มซำ อาหารตามสั่ง เฝอก็มี ร้าค้าก็มีหลายร้าน มีร้านขายยา ร้านสะดวกซื้ออย่าง 7-11 ห่างจากโครงการประมาณ 100 ม.ตลาดสดใกล้อยู่ตรงแยกวังหิน ร้านแนว Pub & Restaurant ก็มีใกล้ๆ นอกจากนี้ยังมี Community Mall ใกล้คือ The Jas, Green Plaza, Plaza Lagoon ห้างสรรพสินค้าใกล้ๆคือโลตัสวังหินห่างจากโครงการประมาณ 250 ม.
การเดินทางด้วยรถยนต์ส่วนตัว – มีตัวเลือกในการเดินทางหลายเส้นทางดีครับสามารถไปเชื่อมออกได้ทั้งถนนลาดพร้าว ถนนรัชดาภิเษก ถนนพหลโยธิน ถนนลาดปลาเค้า ถนนประเสริฐมนูกิจ ถนนโชคชัยสี่ ซึ่งบางเส้นต้องผ่านซอยย่อยออกไปแต่บางเส้นก็เชื่อมกับถนนลาดพร้าววิงหินเลย จึงทำให้การเดินทางเข้าออกเมืองค่อนข้างสะดวกในระดับนึง ถ้าเส้นนี้รถติดก็เปลี่ยนไปอีกเส้นได้สบายๆ แต่ย่านนี้รถเยอะเป็นปกติอยู่แล้วทั้งคนแถวนี้และคนที่มาหาร้านอาหารกินแถวนี้อีก แต่ก็ติดขัดเป็นบางช่วงเวลาครับไม่ได้ติดตลอดทั้งวัน ส่วนทางด่วนใกล้ๆก็ต้องเป็นแถวรามอินทรา หรือไปแถวเส้นวิภาวดีรังสิต
การเดินทางด้วยรถสาธารณะ – หน้าโครงการสามารถโบกรถสองแถว วินมอเตอร์ไซค์ และ Taxi ได้เลยมีวิ่งผ่านตลอด แต่ถ้าจะนั่งรถเมล์ต้องพึ่งพี่วินออกมาแถวถนนรัชดาภิเษก ถนนลาดพร้าว และถนนพหลโยธินจะเยอะหน่อยมีวิ่งผ่านหลายสายรวมไปถึงรถตู้ที่มีให้เลือกทั้งเข้าและออกเมืองวิ่งตั้งแต่รังสิตถึงอนุสาวรีย์ชัยฯ ประตูน้ำ สยาม มาบุญคลอง ท่าเรือสี่พระยา มีนบุรี รามคำแหง ส่วนรถไฟฟ้าที่ใกล้โครงการจะเป็นสายสีเขียวส่วนต่อขยายหมอชิต-คูคตที่สถานีเสนานิคม ห่างจากโครงการประมาณ 2.8 กม. แต่ก็ต้องรออีกหน่อยตอนนี้กำลังก่อสร้างอยู่ครับ
การออกแบบโครงการและวัสดุ – ตัวโครงการแบ่งอาคารออกเป็น 3 อาคาร ยาวลึกเข้าไปด้านในเต็มพื้นที่โครงการขนาด 3-3-35 ไร่ ที่ชั้น 1 จะเป็นที่จอดรถทั้งกลางแจ้ง และใต้อาคารบางส่วน ส่วนกลางหลักๆอยู่ระหว่างอาคาร B1 และ B2 การออกแบบห้องพักภายใต้คอนเซป “ชาน” (CHAAN) ที่หมายถึง เฉลียง ซึ่งเป็นส่วนหนึ่งของบ้าน แต่มีห้อง Type นี้ที่อาคาร B1 เท่านั้น Type ที่เยอะสุดจะเป็นแบบ 1 Bedroom และ 1 Bedroom Plus ออกแบบมาให้ใช้ประโยชน์ได้ทุกพื้นที่ในห้องเน้นหน้าต่างกระจกบานใหญ่สูงจากพื้นถึงฝ้าทำให้ห้องดูสว่างและโล่ง พื้นห้องได้เป็นไม้ลามิเนตหนา 8 มม. ผนังได้เป็นฉาบเรียนทาสีทั้งหมด ฝ้าสูง 2.45 (ห้องแบบ Loft ฝ้าส่วนห้องนั่งเล่นสูง 4.3 ม. ส่วนอื่นๆสูง 2.6 ม.) พื้นในห้องครัวเป็นกระเบื้องแกรนิตโต้ผิวแบบด้าน ได้ตูเก็บของสูงจากพื้นถึงฝ้า ในห้องนอนได้ตู้เสื้อผ้าขนาด 4 บานมี Soft Close ให้ทุกบาน และแอร์ 1 ตัวของ Daikin ส่วนครัวได้ชุดเคาน์เตอร์ครัว Top หินแกรนิต Sink ล้างจานฝังมาให้แบบหลุมเดียวไม่มีที่พักจานของ Teka เตาไฟฟ้าหน้าเซรามิก 2 หัวพร้อมเครื่องดูดควันของ Teka เช่นกันครับ ชุดสุขภัณฑ์ในห้องน้ำเป็นของ American Standard ทั้งหมด
สิ่งอำนวยความสะดวก – มีสวนดาดฟ้าที่อาคาร A ส่วนกลางหลักๆอยู่ระหว่างอาคาร B1 และ B2 มีสระว่ายน้ำระบบเกลือขนาด 7.6 x 20 ม.พร้อมชานพักผ่อนริมสระว่ายน้ำ และสวนรอบๆ มีห้องฟิตเนตใต้อาคาร B1 ลิฟท์มีให้อาคารละ 2 ตัว ที่อาคาร B1 จะมีอัตราส่วนน้อยสุดเพราะมียูนิตน้อยที่สุดในโครงการครับ ที่จอดรถทั้งโครงการคิดเป็น 50% ไม่รวมซ้อนคัน ระบบรักษาความปลอดภัยมีรปภ. CCTV และผ่านเข้าออกด้วยระบบ Key Card Access
คะแนน
| ทำเลที่ตั้งโครงการ | 7.5 | ติดถนนลาดพร้าววังหิน อุดมสมบูรณ์เรื่องอาหาร |
| การเดินทาง ใช้รถ | 8.0 | ถนนลาดพร้าววังหินเป็นเส้นที่เชื่อมกับเส้นหลักและซอยย่อยที่ไปทะลุออกเส้นหลักได้หลายเส้นทาง แต่รถติดบางช่วงเวลา |
| การเดินทาง ไม่ใช้รถ | 7.0 | ต้องพึ่งวินมอเตอร์ไซค์ สองแถว และ Taxi เป็นส่วนใหญ่ |
| ห้องและวัสดุ | 7.3 | วัสดุที่ใช้อยู่ในระดับมาตรฐาน ขายแบบ Fully Fitted ต้องซื้อเพิ่มบางส่วน |
| สิ่งอำนวยความสะดวก | 7.0 | ส่วนกลางหลักๆอยู่ที่ชั้น 1ใกล้กับอาคาร B2 มากที่สุด มีสวนดาดฟ้าที่อาคาร A มาอีกจุด |
| ความคุ้มค่ากับราคา | 7.0 | เหมาะกับคนที่ชอบทำเลย่านนี้ เน้นรถส่วนตัวเป็นหลัก ราคาสูงไปหน่อยถ้าเทียบกับทำเล |
| คะแนนรวมเฉลี่ย | 7.3 | ดี |
สอบถามเพิ่มเติมได้ที่
Tel : 1749
Website : http://www.scasset.com
หากเพื่อนๆเห็นว่ารีวิวนี้มีประโยชน์ ช่วยกด Like เพื่อเป็นกำลังใจให้ทีมงาน ขอบคุณครับ
และมีความคิดเห็นหรือข้อมูลเพิ่มเติมเกี่ยวกับตัวโครงการ สามารถ Comment ได้ที่ด้านล่างของรีวิวครับ
แสดงความคิดเห็น เกี่ยวกับ " รีวิว คอนโด แชมเบอร์ส ชาน ลาดพร้าว-วังหิน Chambers Chaan Ladprao-Wang Hin ใกล้ BTS เสนานิคม "