logo

รีวิว มิติ คอนโด ลาดพร้าววังหิน 72 MITI Condo Ladprao-Wanghin ใกล้ BTS เสนานิคม

โพสโดย : nan / วันที่ : 31 May 2017

รีวิว มิติ คอนโด ลาดพร้าววังหิน 72 MITI Condo ชีวิตที่แตกต่างอย่างลงตัว เริ่ม 2.11 ล้านบาท

MITI Condo ลาดพร้าว-วังหิน จาก One Real Estate ตั้งอยู่บนถนนลาดพร้าว-วังหิน ซอย 72 แขวงลาดพร้าว เขตลาดพร้าว กทม. กทม.

ใกล้ BTS เสนานิคม, ใกล้เทสโก้ โลตัส วังหิน, Plaza Lagoon, Tha Jaz, ตลาดวังหินยิ่งเจริญ, ม.เกษตรศาสตร์, ม.ราชภัฎจันทรเกษม  และ รพ.เปาโลเมโมเรียล โชคชัย 4

มิติ คอนโด ลาดพร้าว-วังหิน เป็นคอนโด Low Rise 7 ชั้น 1 อาคาร + อาคารคลับเฮ้าส์ 3 ชั้น 1 อาคาร พื้นที่โครงการขนาด 2-0-9 ไร่ ห้องพักอาศัย 198 ยูนิต มีห้องพักให้เลือกแบบ 1 ห้องนอน, 2 ห้องนอน ขนาดเริ่มต้น 28.00-60.00 ตร.ม. สร้างเสร็จพร้อมอยู่ปี 2560

สิ่งอำนวยความสะดวกครบครัน อาทิ โถงต้อนรับ, ห้องตู้จดหมาย, สระว่ายน้ำ, ฟิตเนส, ซาวน่า, ห้องอเนกประสงค์, ประตูคีย์การ์ด, ที่จอดรถ ประมาณ 60% รวมจอดซ้อนคัน, กล้องวงจรปิด, รปภ. 24 ชม. ราคาเริ่มต้น 2.11 ล้านบาท*




ชื่อโครงการ MITI Condo Ladprao-Wanghin / มิติ คอนโด ลาดพร้าว-วังหิน
เจ้าของโครงการ วัน เรียลเอสเตท / One Real Estate
ลักษณะห้องและขนาดห้อง – 1 Bedroom, 2 Bedrooms
– ขนาดเริ่มต้น 28.00-60.00 ตร.ม.
เนื้อที่ทั้งหมด 2-0-9 ไร่
จำนวนตึก – อาคารพักอาศัย 1 อาคาร
– อาคารส่วนกลาง 1 อาคาร
จำนวนชั้น – อาคารพักอาศัย 7 ชั้น
– อาคารส่วนกลาง 3 ชั้น
จำนวนห้อง 198 ยูนิต
ที่จอดรถทั้งหมด ประมาณ 60% รวมจอดซ้อนคัน
โซน เขตลาดพร้าว
ขนส่งสาธารณะ – ใกล้ถนนเลียบทางด่วนรามอินทรา-อาจณรงค์
– รถไฟฟ้าสายสีเขียว
– รถไฟฟ้าสายสีน้ำเงิน
– รถไฟฟ้าสายสีเหลือง
รถโดยสารที่ผ่าน รถกระป๊อ
ที่ตั้ง ถนนลาดพร้าววังหิน ซอย 72 แขวงลาดพร้าว เขตลาดพร้าว กทม.
กำหนดการ เริ่มสร้างปี 2559
ปีที่สร้างเสร็จ คาดว่าแล้วเสร็จไตรมาส 3 ของปี 2560
ราคา เริ่มต้น 2.11 ล้านบาท (พ.ค. 2559)
ราคาเฉลี่ยต่อ ตร.ม ประมาณ 63,900 บาท/ตร.ม.
ค่าส่วนกลางและกองทุน – ค่าส่วนกลาง 48 บาท/ตร.ม./เดือน
– ค่ากองทุน 500 บาท/ตร.ม.
สถานที่สำคัญใกล้เคียง – ตลาดวังหิน : 400 เมตร
– ตลาดโชคชัย 4 : 4.7 กม.
– โลตัส วังหิน : 500 เมตร
– The Jas : 550 เมตร
– เมเจอร์ รัชโยธิน : 3.2 กม.
– Central ลาดพร้าว : 5.0 กม.
– ยูเนี่ยน มอลล์ : 5.1 กม.
– The Crystal : 6.1 กม.
– Central Eastville : 6.8 กม.
– มหาวิทยาลัยราชภัฎจันทรเกษม : 3.0 กม.
– รพ.เปาโล : 3.8 กม.
สิ่งอำนวยความสะดวก – Lobby
– สระว่ายน้ำ
– ฟิตเนส
– CCTV
– Access Card Control
– รปภ. 24 ชม.
จุดเด่นของโครงการ มิติ คอนโด คอนโดที่เพิ่มโลกใบใหม่ เพื่อการอยู่อาศัยที่ดีกว่า ติดถนนลาดพร้าววังหิน ซอย 72 เดินทางเชื่อมต่อ 5 เส้นทางหลัก 3 เส้นทางรถไฟฟ้า



Sena Nikhom Station (N12) | สายสุขุมวิท Sukhumvit Line
ติดถนนพหลโยธิน
ถนนเสนานิคม 1 หรือซอยพหลโยธิน 32 ถนนเสนานิคม 2 หรือซอยพหลโยธิน 34

ที่ตั้งโครงการ

ถนนลาดพร้าววังหิน ซอย 72 แขวงลาดพร้าว เขตลาดพร้าว กทม.

พิกัด : 13.828402, 100.591837

Map MITI CONDO LADPRAO-WANGHIN

แผนที่จากทางโครงการ

ทำเล 1

Miti Condo ลาดพร้าว-วังหิน ตั้งอยู่บนถนนลาดพร้าววังหิน บริเวณหน้าปากซอยลาดพร้าววังหิน 72 ทำเลดังกล่าวเป็นแหล่งที่มีคนอยู่อาศัยค่อนข้างหนาแน่นโดยจะเป็นที่พักอาศัยในรูปแบบของตึกแถว อาคารพาณิชย์ ทาวน์โฮม หอพักและคอนโดมิเนียม Low-Rise ไม่เกิน 8 ชั้น บริเวณดังกล่าวจึงค่อนข้างพลุกพล่านที่เดียวทั้งช่วงระหว่างวันและช่วงเย็นจนถึงค่ำๆ

ถนนลาดพร้าววังหินเป็นถนนเส้นรองที่สามารถเข้าออกได้หลายทางและยังใช้เป็นทางลัดหลีกเลี่ยงรถติดได้ด้วยจึงทำให้มีปริมาณรถสัญจรผ่านเข้าออกเยอะ โดยด้านเหนือใช้งานไปยังถนนเกษตร-นวมินทร์ ด้านตะวันตกเชื่อมต่อกับถนนรัชดาภิเษกและพหลโยธิน ด้านทิศใต้เดินทางสู่ลาดพร้าวและทิศตะวันออกคือทางด่วนรามอินทราหรือถนนประดิษฐ์มนูธรรม รวมแล้วมีถนนเส้นสำคัญที่รายล้อมอยู่รอบโครงการทั้งสิ่้น 5 เส้นด้วยกัน ทำให้เรื่องของการเดินทางนั้นดูจะเป็นเรื่องที่สะดวกมากสำหรับคนที่ใช้รถส่วนตัว

ทำเล 3 - อุดม

ส่วนความอุดมสมบูรณ์แน่นอนว่าได้รับอานิสงค์จากการที่เป็นแหล่งชุมชนคนพักอาศัยเยอะ ทำให้ร้านค้าร้านอาหารมีมากขึ้นตามเพื่อรองรับให้เพียงพอต่อความต้องการ ซึ่งถนนลาดพร้าววังหินเองขึ้นชื่อเรื่องของอร่อยอยู่แล้ว มีให้เลือกอยู่ครบทุกรูปแบบตลอดสองข้างทางของถนน ทั้งแบบร้านข้างถนนราคาย่อมเยาว์หรือคอมมูนิตี้ มอลล์ ที่มีทั้ง The Jas, Green Plaza, Plaza Lagoon และ Tesco Lotus วังหิน ส่วนรอบนอกก็น่าสนใจไม่แพ้กันมีห้างใหญ่ที่เพิ่งเปิดไม่นานอย่าง Central Festival Eastville บนถนนประดิษฐ์มนูธรรม หรือจะไปตรงห้าแยกลาดพร้าวก็มี Central ลาดพร้าว และยูเนี่ยนมอลล์ แหล่งช้อปปิ้งยอดนิยมของคนในยุคนี้

ทำเล 4

ต่อไปผมจะพูดถึงระยะทางจากโครงการถึงถนนใหญ่แต่ละด้าน โดยเริ่มจากถนนลาดพร้าวเข้าออกผ่านทางถนนโชคชัย 4 ระยะทางด้านนี้อยู่ที่ 4.5 กม.

ทำเล 5

เส้นทางต่อมาคือจากถนนรัชดาภิเษก จริงๆแล้วสามารถใช้ได้ทั้งซอยรัชดาภิเษก 32 และ 36 แต่ผมขอแนะนำเป็นซอย 32 เพราะมีขนาดของถนนที่กว้างและวิ่งได้ตรงยาวๆไม่ต้องเลี้ยวเข้าซอยย่อย ระยะทางจากปากซอยรัชดาภิเษก 32 ถึงโครงการมิติ คอนโด อยู่ที่ 2.8 กม.

ทำเล 3

อีก 2 เส้นทางที่ใช้เดินทางโซนด้านเหนือคือถนนเสนานิคมใช้งานไปยังถนนพหลโยธินระยะทางอยู่ที่ 2.6 กม. และอีกเส้นทางคือถนนเกษตร-นวมินทร์ผ่านทางถนนลาดปลาเค้า ระยะทางอยู่ที่ 1.5 กม.

ทำเล 6

รถไฟฟ้าถ้ามองในระยะยาวมีให้เลือกถึง 3 เส้นให้เลือกใช้ได้แก่

1. รถไฟฟ้าสายสีน้ำเงิน หัวลำโพง-บางซื่อ : สำหรับเส้นนี้เป็นเส้นเปิดใช้งานอยู่ในปุจจุบันโดยสถานีที่ใกล้โครงการที่สุดคือสถานีลาดพร้าวระยะทาง 4.1 กม.

2. รถไฟฟ้าสายสีเขียว หมอชิต-สะพานใหม่-คูคต : สายนี้ยังอยู่ในช่วงของการก่อสร้าง เปิดให้ใช้งานในอนาคตคาดว่าเปิดใช้บริการปี 2563

3. รถไฟฟ้าสายสีเหลือง ลาดพร้าว-สำโรง : เส้นนี้ก็ยังอยู่ในช่วงของการวางแผนงานโดยคาดว่าจะแล้วเสร็จในปี 2563

การเดินทาง

เดินทาง 1

เส้นทางที่ผมใช้เดินทางมายังโครงการในวันนี้ ผมเดินทางมาตามถนนรัชดาภิเษกจากนั้นเข้าสู่ถนนลาดพร้าว โดยมุ่งหน้าสู่ถนนลาดพร้าววังหินผ่านทางซอยลาดพร้าว 41 โดยมีภาพประกอบการเดินทางดังนี้

การเดินทาง : ถนนรัชดาภิเษก > แยกรัชดา-ลาดพร้าว > ถนนลาดพร้าว > แยกภาวนา > ลาดพร้าว 41 > ถนนลาดพร้าววังหิน > ซอยลาดพร้าววังหิน 72 > มิติ คอนโด ลาดพร้าว-วังหิน

1

เริ่มต้นอธิบายจากบนถนนรัชดาภิเษก บริเวณแยกเทียมร่วมมิตร ฝั่งที่มุ่งหน้าไปยังลาดพร้าว

2

มุ่งหน้าไปตามป้ายลาดพร้าว โดยจะมีอุโมงค์ให้ลง 2 อุโมงค์ด้วยกัน

3

ลงอุโมงค์แรกเพื่อลอดใต้แยกห้วยขวาง

4

ขึ้นจากอุโมงค์ที่ 1 ยังคงอยู่ทางเลนขวา

5

ลงอุโมงค์ 2 ลอดใต้แยกสุทธิสาร

5.1

พอขึ้นจากอุโมงค์มาแล้ว ทางซ้ายมือเราจะเห็นสถานีรถไฟฟ้ารัชดาภิเษกให้เราเตรียมชิดซ้ายอยู่ช่องจราจรที่ 2

6

แยกข้างหน้าจะเป็นแยกรัชดา-ลาดพร้าว ให้เราเลี้ยวขวาเพื่อไปทางฝั่งบางกะปิ

7

เลี่ยวขวาที่แยกรัชดา-ลาดพร้าว

8

ขับมาตามถนนลาดพร้าวจนถึงแยกภาวนา ให้เบี่ยงออกซ้ายเข้าซอยลาดพร้าว 41

9

จากนั้นขับไปตามทาง

10

เจอแยกแรกให้เลี้ยวซ้าย

11

จากนั้นเลี้ยวขวาทันที

13

มุ่งหน้ามาตามทางจนถึงถนนลาดพร้าววังหินให้เลี้ยวซ้ายครับ

14

มุ่งหน้าตรงอย่างเดียวบนถนนลาดพร้าววังหิน

15

ผ่าน Tesco Lotus วังหิน

16

ผ่านวัดสิริกมลาวาส

17

วิ่งมาจนเห็นธนาคารกรุงศรีอยุธยาด้านซ้าย ให้เราเตรียมชะลอรถและเปิดไฟเลี้ยวขวาได้เลย

18

ถึงลาดพร้าววังหิน 72 ให้เลี้ยวขวาเข้าตัวโครงการได้เลยครับ ที่ตั้งโครงการนั้นอยู่บริเวณหัวมุมของซอย 72

บริเวณโครงการ

ทำเล 3 - อุดม

สถานที่สำคัญบริเวณโครงการ

– ตลาดวังหิน : 400 เมตร
– ตลาดโชคชัย 4 : 4.7 กม.
– โลตัส วังหิน : 500 เมตร
– The Jas : 550 เมตร
– เมเจอร์ รัชโยธิน : 3.2 กม.
– Central ลาดพร้าว : 5.0 กม.
– ยูเนี่ยน มอลล์ : 5.1 กม.
– The Crystal : 6.1 กม.
– Central Eastville : 6.8 กม.
– มหาวิทยาลัยราชภัฎจันทรเกษม : 3.0 กม.
– รพ.เปาโล : 3.8 กม.

ทำเล 2 - แยก

แยกและถนนสำคัญใกล้เคียง

– แยกวังหิน : 400 เมตร
– แยกโชคชัย 4 (ถนนลาดพร้าว) : 4.4 กม.
– แยกเกษตร : 3.6 กม.
– แยกรัชโยธิน : 3.4 กม.
– แยกรัชดา-ลาดพร้าว : 4.0 กม.
– ห้าแยกลาดพร้าว : 5.3 กม.- ถนนเกษตร-นวมินทร์ : 1.5 กม.
– ถนนพหลโยธิน : 3.2 กม.
– ถนนรัชดาภิเษก : 2.8 กม.
– ถนนเลียบด่วนรามอินทรา (ประดิษฐ์มนูธรรม) : 5.6 กม.

บริเวณ 2

ภาพมุมสูงบริเวณโครงการ องค์ประกอบภายในซอยลาดพร้าววังหินส่วนใหญ่เป็นที่พักอาศัยในรูปแบบแนวราบ โดยทั่วไปนั้นจะสูง 2-3 ชั้นแต่ส่วนที่ติดริมถนนลาดพร้าววังหินจะสูงหน่อยคือ 4 ชั้น ฉะนั้นเรื่องการบังวิวนั้นไม่ต้องกังวลแต่อย่างใดสามารถรับลมและมองเห็นทิวทัศน์ได้อย่างอิสระไม่อึดอัด

บริเวณ (1)

ผมจะพาไปเดินชมบริเวณโครงการกันครับโดยเริ่มจากด้านในสำนักงานขายที่ในอนาคตจะปรับเปลี่ยนให้เป็นอาคารคลับเฮ้าส์ที่ประกอบด้วย Lobby, ฟิตเนสและสระว่ายน้ำ

บริเวณ (2)

ตัวอาคารโปร่งสบายเหมาะแก่การนั่งพักผ่อนอ่านหนังสือหรือยกโน๊ตบุ้คมานั่งทำงาน

บริเวณ (8)

เดินออกมาด้านหลังอาคารคลับเฮ้าส์ มีห้องน้ำแยกชายหญิง

บริเวณ (5)

พื้นที่สนามหญ้าเทียมด้านหลังนี้คือตำแหน่งของสระว่ายน้ำ

บริเวณ (6)

อาคารคลับเฮ้าส์สูง 2 ชั้น ด้านบนเป็นห้องฟิตเนส แต่ในปัจจุบันยังไม่ได้ลงอุปกรณ์ใดๆให้นะครับ

บริเวณ (7)

สระว่ายน้ำยาว 15 เมตร ใช้ว่ายเพื่อออกกำลังกายได้เลย

บริเวณ (11)

กลับมาที่ด้านหน้าสำนักงานขาย ถนนตรงนี้คือทางเข้าไปยังตัวอาคาร

บริเวณ (12)

ปัจจุบันยังอยู่ในส่วนของการเริ่มดำเนินการก่อสร้าง โดยคาดว่าจะแล้วเสร็จในช่วงไตรมาสที่ 3 ของปี 2560

บริเวณ (14)

ทางเข้าออกโครงการ

บริเวณ (15)

อาคารคลับเฮ้าส์รูปทรงโมเดิร์น

บริเวณ (9)

ต่อไปเราไปดูบรรยากาศบนถนนลาดพร้าววังหินแถวๆหน้าโครงการกันครับ

บริเวณ (17)

ถนนลาดพร้าววังหินบริเวณหน้าโครงการ

บริเวณ (18)

ริมถนนใหญ่ส่วนมากจะเป็นอาคารพาณิชย์ โดยยูนิตที่ติดกับโครงการจะเป็นร้านขายสีทั้งสองฝั่งถนน

บริเวณ (21)

อีกด้านของตัวโครงการอยู่ติดกับซอยลาดพร้าววังหิน 72

บริเวณ (24)

ภายในซอยลาดพร้าววังหิน 72 เป็นหมู่บ้านดวงแก้ว บ้านพักอาศัยสูง 2 ชั้น

บริเวณ (22)

อีกด้านของซอย 72 ติดกับตึกแถวสูง 4 ชั้น

บริเวณ (25)

ไปเดินเล่นหาดูความอุดมสมบูรณ์ในระยะเดินเท้ากันครับ

บริเวณ (27)

ใกล้ๆกันมีสำนักงานขายของ Chambers Chaan

บริเวณ (28)

ธนาคารกรุงศรีอยุธยาอยู่ฝั่งตรงข้าม

บริเวณ (29)

ลาดพร้าววังหินซอย 68 เป็นหมู่บ้าน บ้านแก้ววิลล่า 2

บริเวณ (30)

หน้าปากซอยดังกล่าวมีร้านข้าวแกง

บริเวณ (32)

ข้ามถนนมาเจอกับร้านก๋วยเตี๋ยวหมูต้มยำใบตำลึง

บริเวณ (34)

เดินย้อนกลับไปทางทางฟุตบาทฝั่งตรงข้ามโครงการเจอร้านก๋วยเตี๋ยวลูกชิ้นปลาเยาวราช

บริเวณ (33)

โต๊ะนั่งยาวไปตามฟุตบาท

บริเวณ (35)

ติดกับร้านก๋วยเตี๋ยวมี 7-11

บริเวณ (37)

ร้านก๋วยเตี๋ยวเรือนี้อยู่เกือบจะตรงข้ามกับโครงการ

บริเวณ (38)

มองกลับไปทางโครงการ มิติ คอนโด ลาดพร้าว-วังหิน

บริเวณ (40)

ภาพรวมด้านหน้าโครงการจากฝั่งตรงข้าม

บริเวณ (39)

ด้านข้างเป็นร้านขายสี

บริเวณ (41)

เดินเลยต่อไปเป็นหมู่บ้าน Soul

บริเวณ (42)

ร้านอาหารญี่ปุ่น

บริเวณ (43)

ร้านครัวพริกเผ็ด

บริเวณ (44)

ก๋วยเตี๋ยวไก่มะระ

บริเวณ (45)

ปั๊มแก๊ส LPG ปตท.

บริเวณ (46)

ถัดจากปั๊มมาจะเป็นโซนร้านอาหารยาวอีกหลายร้าน แต่จะเป็นโซนที่เปิดบริการในช่วงค่ำ

บริเวณ (47)

ร้านชาบูนี่ก็ยังไม่เปิดนะครับ เปิดตอนเย็นๆ

บริเวณ (48)

ร้านอาหารอีสานพาแลง

บริเวณ (49)
Big C mini

บริเวณ (50)

Lotus Express

บริเวณ (51)

เดินมาจนถึงสี่แยกลาดพร้าววังหิน ระยะทางจากโครงการประมาณ 400 เมตร

บริเวณ (52)

ตลาดวังหินตั้งอยู่บริเวณหัวมุมของสี่แยก

บริเวณ (53)

รอบนอกของตลาดมีร้านขายอาหารอยู่หลายเจ้า ส่วนใหญ่เป็นข้าวแกง อาหารตามสั่ง

บริเวณ (54)

ส่วนของตลาดสดด้านในดูจะวายไปแล้วเพราะผมมาในช่วงบ่าย ตัวตลาดจะคึกคักในช่วงเช้าตรู่

บริเวณ (55)

โดยปกติแล้วคนที่อาศัยคอนโดอาจไม่ได้ประกอบอาหารทานเองมากนัก แต่มีตลาดอยู่ใกล้ๆก็ถือเป็นเรื่องที่อุ่นใจดีนะครับ

บริเวณ (56)

พวกร้านขายไข่ เครื่องปรุง ภาชนะ อาหารแห้ง หาซื้อได้ตลอดทั้งวันในตลาด

บริเวณ (57)

ขึ้นมาบนสะพานลอยเพื่อดูภาพมุมสูงของสี่แยกวังหิน

บริเวณ (58)

ถนนลาดพร้าววังหิน

บริเวณ (59)

มุ่งหน้ากลับสู่ตัวโครงการผ่านร้านซ้งเป็ดพะโล้ หัวปลาหม้อไฟ ร้านชื่อดังของย่านนี้

บริเวณ (60)

เปิดช่วงเย็นนะครับ ปิดนู้นเลยตี 4 ดึกแค่ไหนก็มีที่ฝากท้อง

บริเวณ (61)

ปั๊ม Shell

บริเวณ (62)

ร้านกล้วยทอด มีทั้งมันทอด เผือกทอด ข้าวเม่าทอด

บริเวณ (63)

ปากซอยลาดพร้าววังหิน 76 มีอู่ซ่อมรถ e-garage

บริเวณ (64)

กลับมาถึงโครงการ

บริเวณ (65)

เข้าไปชมส่วนถัดไปคือโมเดล, แปลนและห้องตัวอย่างกันครับ

โมเดลอาคาร

โมเดล (1)

มาดูโมเดลอาคารกันครับ

โมเดล (2)

ด้านหน้าทางเข้าออกโครงการอยุ่ทางทิศตะวันตก

โมเดล (3)

ทางทิศใต้ของอาคารติดกับซอยลาดพร้าววังหิน 72 ที่อีกด้านของถนนจะเป็นบ้านพักอาศัยสูง 2 ชั้น

โมเดล (4)

อาคารคลับเฮ้าส์ถูกวางไว้อยู่ด้านหน้าสุดของพื้นที่ ใช้เป็น Lobby ในการรับรองผู้มาติดต่อจากด้านนอกเพิ่มความเป็นส่วนตัวและปลอดภัยให้กับพื้นที่ด้านในได้เป็นอย่างดี

โมเดล (20)

ทางเข้าออกโครงการนั้นจะมีไม้กระดกกั้น ใช้ Key Card แตะเพื่อเปิด

โมเดล (19)

หน้าตาของอาคารคลับเฮ้าส์และถือเป็นหน้าตาของโครงการด้วย เพราะถูกมองเห็นได้จากคนที่สัญจรผ่านไปมาด้านนอก

โมเดล-6

ด้านหลังของอาคารคลับเฮ้าส์มีสระว่ายน้ำขนาด 15 x 5 เมตร ลึก 1.2 เมตร ระบบเกลือ ชั้นสองเป็นฟิตเนส ชั้นดาดฟ้ามีสวนนั่งเล่น outdoor

11

ภาพจำลอง Lobby

02

ภาพจำลองพื้นที่ส่วนกลางบริเวณด้านหลังอาคารคลับเฮ้าส์

10

ภาพจำลองห้องฟิตเนส

โมเดล (7)

ทางเดินจากคลับเฮ้าส์เชื่อมต่อไปยังส่วนของที่พักอาศัย

โมเดล (8)

ตัวอาคารสูง 7 ชั้น ที่โดยปกติแล้วคอนโด Low-rise นิยมสร้างกัน 8 ชั้น แต่ด้วยความที่ห้องพักอาศัยนั้นเป็นห้องที่มีความสูงของฝ้าเพดานถึง 2.8 เมตร จึงทำให้ต้องลดจำนวนชั้นลงนั่นเอง

โมเดล (9)

ทางด้านทิศเหนือของอาคารนั้นติดกับบ้านพักอาศัยสูง 2 ชั้น

โมเดล (11)

สำหรับชั้น 1 และด้านท้ายอาคารเป็นพื้นที่จอดรถทั้งหมดที่สามารถจอดได้ประมาณ 60% รวมซ้อนคันแล้ว

โมเดล (15)

ตัวอาคารออกแบบทางเดินให้มีสวน Pocket Garden แทรกอยู่ด้วยเพื่อช่วยเพื่มพื้นที่สีเขียว ลดความอึดอัดและรับแสงธรรมชาติเข้าสู่ภายในตัวอาคารได้ดี ยกระดับโถงทางเดินให้ต่างจากคอนโดทั่วไป

โมเดล (16)

สวนดังกล่าวนั้นจะมีอยู่ที่ชั้น 2 และ 5

โมเดล (18)

และมีอยู่ทั้งสองด้านของตัวอาคาร

แปลนอาคาร

floor246

Floor Plan ชั้น 2, 4, 6 : ความหนาแน่นในแต่ละชั้นจะเท่ากันที่ 33 ยูนิต จัดวางโถงลิฟต์ให้อยู่ช่วงต้นของอาคาร ยูนิต 2 Bed ขนาด 60 ตร.ม. อยู่ที่ด้านซ้ายสุดของอาคาร (สีฟ้า) และยูนิตพิเศษ 1 Bed ขนาด 41 และ 52 ตร.ม. อยู่ติดกับ Pocket Garden การจัดวาง โถงลิฟต์แบบนี้ทำให้ยูนิตที่อยู่ด้านหลังอาคารเดินไกลหน่อย ยังดีที่การเดินนั้นต้องผ่าน Pocket Garden ที่ช่วยสร้างบรรยากาศ ถ่ายเทอากาศและความโปร่งสบายในโถงทางเดินได้ดี ส่วนดังกล่าวมีอยู่ที่ชั้น 2 กับ 5 ชั้นอื่นๆนั้นถึงแม้จะไม่มีสวนแต่ก็ยังถูกเปิดโล่งเช่นกัน

floor357

Floor Plan ชั้น 3, 5, 7 : การวางแปลนเหมือนกันกับชั้น 2, 4, 6 จุดแตกต่างมีเพียงเล็กน้อยตรงขนาดห้องของ 2 Bed ที่แตกต่างระหว่าง 60.00 กับ 60.50 ตร.ม.

ห้องตัวอย่าง

 ห้องตัวอย่าง 28 sq.m (1)

ทางโครงการจัดทำห้องตัวอย่างให้ดู 2 แบบคือห้องแบบ 1 Bedroom ขนาด 28 ตร.ม. และ 33 ตร.ม. ขายแบบ Fully Furnished รวมถึงเครื่องใช้ไฟฟ้าเครื่องปรับอากาศ, ฮอบและฮูด ยกเว้นฟูกที่นอน, ผ้าม่านและเฟอร์นิเจอร์ลอยตัว ซึ่งในขณะที่ชมภาพห้องตัวอย่างผมจะเสริมข้อมูลเพิ่มเติมให้ในแต่ละจุดครับ

28 sq.m.

แปลนห้อง 1 Bedroom ขนาด 28 ตร.ม. รูปแบบห้องนั้นจะเป็นทรงหน้าแคบแต่ลึก การจัดวางฟังก์ชั่นทำได้ดีแบ่งโซนการใช้งานเป็นสัดส่วนระหว่างโซนนั่งเล่น โซนครัวและโซนห้องนอน เปิดประตูเข้ามาเจอกับเคาน์เตอร์ครัวที่เป็นครัวแบบเปิด ตรงข้ามเป็นห้องน้ำที่แบ่งแยกโซนเปียกโซนแห้งด้วยฉากบานเลื่อน ส่วนที่สองเป็นห้องนั่งเล่นที่ต้องใช้งานเป็นห้องทานข้าวไปในตัว ด้านในเป็นพื้นที่ห้องนอนที่แบ่งส่วนด้วยฉากบานเลื่อนกระจกมีข้อดีตรงที่ทำให้ห้องนั่งเล่นสามารถรับแสงธรรมชาติจากหน้าต่างในห้องนอนไปด้วย ด้านปลายเตียงจัดวางตู้เสื้อผ้ากับโต๊ะเครื่องแป้ง วางโต๊ะทำงานที่มุมข้างระเบียงติดกับหน้าต่าง

 ห้องตัวอย่าง 28 sq.m (2)

เข้าไปดูห้องตัวอย่างกันครับ

 ห้องตัวอย่าง 28 sq.m (3)

ประตูห้องเป็นประตูไม้ลามิเนต

 ห้องตัวอย่าง 28 sq.m (4)

ลูกบิดประตูแบบ Digital Door Lock ของ Alpha

 ห้องตัวอย่าง 28 sq.m (5)

มือจับด้านในเป็นแบบก้านโยก แยกตัวล็อคให้อีกชั้นนึง

 

Door Stopper

 ห้องตัวอย่าง 28 sq.m (6)

พื้นห้องปูด้วยลามิเนตหนา 8 มม. ฝ้าเพดานสูงถึง 2.8 เมตรระบบไฟใช้แบบดาวน์ไลท์ทั้งหมด

 ห้องตัวอย่าง 28 sq.m (8)

ภาพรวมด้านใน มุมมองย้อนกลับไปยังทางเข้าห้อง

 ห้องตัวอย่าง 28 sq.m (7)

โฟกัสไปที่ห้องครัวมีเคาน์เตอร์ให้บนล่างพร้อมใช้งานยกเว้นไมโครเวฟกับตู้เย็น

 ห้องตัวอย่าง 28 sq.m (9)

เคาน์เตอร์ด้านล่างบานปิด ปิดผิวด้วยลามิเนต มีช่องวางไมโครเวฟอยู่ด้านล่าง

ห้องตัวอย่าง 28 sq.m (10)

ด้านหลังครัวติดตั้งกระจกกันเปื้อนให้เรียบร้อย ท็อปครัวหินสังเคราะห์

 ห้องตัวอย่าง 28 sq.m (2)

บานปิดด้านบนลามิเนตเช่นกัน ส่วนการเปิดปิดไม่มีระบบ soft close

ห้องตัวอย่าง 28 sq.m (11)

ช่องวางตู้เย็นขนาดประมาณ 8 คิวกำลังเหมาะ

ห้องตัวอย่าง 28 sq.m (13)

ซิงค์ของ Teka แบบหลุมเดี่ยว

ห้องตัวอย่าง 28 sq.m (14)

เตาเซรามิค 2 หัวของ Teka

ห้องตัวอย่าง 28 sq.m (15)

เครื่องดูดควันของ Teka ระบบ Exhaust ที่ดูดควันออกไปด้านนอกอาหาร

ห้องตัวอย่าง 28 sq.m (16)

เข้าไปดูห้องน้ำที่อยู่ฝั่งตรงข้ามกันครับ

ห้องตัวอย่าง 33 sq.m (19)

พื้นห้องน้ำลดระดับลงเล็กน้อยกันน้ำไหล

ห้องตัวอย่าง 28 sq.m (17)

พื้นห้องน้ำปูด้วยกระเบื้องแกรนิตโต้พื้นหยาบกันลื่น แยกสัดส่วนระหว่างเปียกกับแห้งด้วยฉากบานเลื่อน

ห้องตัวอย่าง 28 sq.m (19)

ทางซ้ายวางอ่างล้างมือกับโถสุขภัณฑ์ ผนังปูกระเบื้องสีเทาควันบุหรี่ ติดกระจกเงายาวเต็มผนัง

ห้องตัวอย่าง 28 sq.m (20)

อ่างล้างมือทรงเหลี่ยมของ Cristina ขนาดกำลังดีต่อการใช้งานจริง ด้านหลังมีพื้นที่ให้วางอุปกรณ์ได้อีกเล็กน้อย

 ห้องตัวอย่าง 28 sq.m (3)

ด้านล่างอ่างมีตู้เก็บของ

ห้องตัวอย่าง 28 sq.m (21)

โถสุขภัณฑ์ของ Cristina จัดวางในระยะที่นั่งสบาย

ห้องตัวอย่าง 28 sq.m (22)

โถสุขภัณฑ์แบบชิ้นเดียวดูสวยงามหรูหรากว่าแบบทูพีซทั่วไป

ห้องตัวอย่าง 28 sq.m (23)

หัวสายฉีดชำระ

ห้องตัวอย่าง 28 sq.m (24)

ที่แขวนทิชชู่

ห้องตัวอย่าง 28 sq.m (26)

ส่วนเปียกอาบน้ำกันด้วยฉากบานเลื่อนกระจกนิรภัยของ Cristina เช่นกัน

ห้องตัวอย่าง 28 sq.m (27)

มือจับฉากบานเลื่อนทรงกลม

ห้องตัวอย่าง 28 sq.m (28)

ฉากบานเลื่อนดังกล่าวติดตั้งอยู่บนธรณีก่อเพื่อกันน้ำไหล

ห้องตัวอย่าง 28 sq.m (29)

พื้นที่ส่วนเปียกประมาณ 1.3 x 0.8 ตร.ม.

ห้องตัวอย่าง 28 sq.m (30)

ราวแขวนฝักบัวและหัวฝักบัวของ Cristina

ห้องตัวอย่าง 28 sq.m (31)

ก้านที่ยึดฝักบัวนี้สามารถปรับระดับได้ ด้านหลังจะมีสลักให้กดเพื่อคลายล็อค

ห้องตัวอย่าง 28 sq.m (32)

มีที่วางสบู่ในตัว

ห้องตัวอย่าง 28 sq.m (33)

หน้าตาฝักบัว

ห้องตัวอย่าง 28 sq.m (25)

ในห้องน้ำให้ดวงไฟดาวน์ไลท์ 2 ดวงพร้อมที่ดูดอากาศ

ห้องตัวอย่าง 28 sq.m (34)

สวิชต์ไฟ Schneider

ห้องตัวอย่าง 28 sq.m (35)

ออกจากห้องน้ำเพื่อไปดูพื้นที่นั่งเล่นกันต่อ

ห้องตัวอย่าง 28 sq.m (36)

ห้องนั่งเล่นได้รับแสงธรรมชาติจากหน้าต่างและระเบียงห้องนอน เนื่องจากทางโครงการเลือกใช้การแบ่งพื้นที่ด้วยฉากบานเลื่อนกระจกใสขนาดใหญ่

ห้องตัวอย่าง 28 sq.m (39)

ทางโครงการมีโซฟาขนาด 2 ที่นั่งวางเข้ามุมในระยะที่พอดี แต่ยกเว้นโต๊ะกลางที่ไม่ได้แถมให้ ในความเป็นจริงโต๊ะกลางตรงนี้อาจจะต้องใช้เป็นที่สำหรับนั่งรับประทาน

อาหารด้วย จึงควรจะเลือกขนาดที่ใหญ่กว่านี้เพื่อให้วางกับข้าวและทานอาหารได้สะดวก

ห้องตัวอย่าง 28 sq.m (40)

ฝั่งชั้นวางทีวีให้เป็นบิลท์อินทั้งเซท

 ห้องตัวอย่าง 28 sq.m (4)

ด้านข้างมีตู้เก็บรองเท้า

 ห้องตัวอย่าง 28 sq.m (5)

ด้านล่างชั้นวางมีช่องสำหรับวางอุปกรณ์เอนเตอร์เทนเมนต์ จำพวกเครื่องเล่นดีวีดี เครื่องเกม เครื่องเสียง

ห้องตัวอย่าง 28 sq.m (41)

ด้านบนมีตู้เก็บของลอยตัวอีกชิ้น บานปิดกระจกแบบใช้เลื่อนเพื่อเปิด

ห้องตัวอย่าง 28 sq.m (43)

ไปดูห้องนอนกันต่อเลยครับ

ห้องตัวอย่าง 28 sq.m (44)

ห้องนอนแบ่งส่วนด้วยฉากบานเลื่อน 3 ตอนสูงเต็มฝ้าเพดาน 2.8 เมตร

ห้องตัวอย่าง 28 sq.m (46)

มือจับเซาะร่อง

ห้องตัวอย่าง 28 sq.m (47)

ดานล่างมีรางสำหรับวัสดุนั้นเป็น อลูมิเนียมเคลือบด้วยสีซาฮาร่า

ห้องตัวอย่าง 28 sq.m (49)

บรรยากาศภายในห้องนอนโปร่งสบายด้วยแสงธรรมชาติที่เข้ามาจากหน้าต่างขนาดใหญ่และประตูระเบียง ประกอบกับฝ้าเพดานที่สูง 2.8 เมตร

ห้องตัวอย่าง 28 sq.m (48)

ห้องนอนวางเตียงขนาด 5 ฟุตมีเตียงให้แต่ไม่รวมฟูกและเครื่องนอน

ห้องตัวอย่าง 28 sq.m (50)

ทางเดินข้างเตียงเหลือให้เดินได้สะดวก วางโต๊ะหัวเตียงขนาดเล็กได้

ห้องตัวอย่าง 28 sq.m (51)

ทางเดินอีกด้านก็เหลือพอประมาณ เดินเข้าออกระเบียงหรือไปยังมุมทำงานไม่ลำบาก

ห้องตัวอย่าง 28 sq.m (52)

โต๊ะทำงานวางเข้ามุมด้านข้างระเบียงติดกับหน้าต่าง

ห้องตัวอย่าง 28 sq.m (53)

เฟอร์นิเจอร์ตรงจุดนี้ไม่มีให้นะครับ สามารถปรับเปลี่ยนเป็นมุมอ่านหนังสือหรือใช้สอยอย่างอื่นก็ได้ตามความประสงค์

ห้องตัวอย่าง 28 sq.m (54)

หน้าต่างขนาดใหญ่แบ่งออกเป็น 4 ช่อง ไม่มีผ้าม่านให้

ห้องตัวอย่าง 28 sq.m (55)

เปิดรับลมถ่ายเทอากาศได้ 1 ช่องแบบบานกระทุ้ง

ห้องตัวอย่าง 28 sq.m (56)

มองไปด้านปลายเตียงมีตู้เสื้อผ้ากับชั้นวางของบิลท์อิน

ห้องตัวอย่าง 28 sq.m (57)

พื้นที่ใช้งานได้ปลายเตียงประมาณ 50 ซม.

ห้องตัวอย่าง 28 sq.m (58)

ชั้นวางของบิลท์ให้แบบนี้ จะใช้วางทีวีก็ได้เพราะด้านหลังทางโครงการต่อเต้าเสียบสายไฟและสายอากาศไว้ให้ด้วย

ห้องตัวอย่าง 28 sq.m (59)

ตู้เสื้อผ้าทรงสูงติดผนัง หมดปัญหาเรื่องฝุ่นหลังตู้เสื้อผ้าที่ทำความสะอาดยาก มีบานกระจกเงาสำหรับแต่งตัวให้เรียบร้อย

ห้องตัวอย่าง 28 sq.m (61)

ประตูระเบียงใช้วัสดุอลูมิเนียมสีซาฮาร่าเช่นกัน ส่วนกระจกนั้นวัสดุ Euro Grey ทำหน้าที่กรองรังสี UV ได้ดี

ห้องตัวอย่าง 28 sq.m (63)

วางบนของธรณีที่สูงประมาณ 10 ซม. กันน้ำเข้าเวลาฝนตก

ห้องตัวอย่าง 28 sq.m (64)

มือจับเซาะร่อง

ห้องตัวอย่าง 28 sq.m (65)

พื้นระเบียงปูกระเบื้องเซรามิคขนาดประมาณ 1.80 x 0.8 ม. สำหรับวางเครื่องซักผ้า

ห้องตัวอย่าง 28 sq.m (66)

ราวกันตกเหล็ก พร้อมระแนงบังคอมแอร์

ห้องตัวอย่าง 28 sq.m (68)

โคมไฟระเบียง

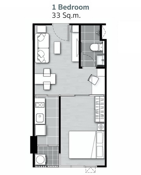
ต่อไปเป็นห้อง 1 Bedroom ขนาด 33 ตร.ม.

33 sq.m.

แปลนห้อง 33 ตร.ม. รูปแบบแตกต่างจากห้องเมื่อสักครู่นี้พอสมควร ด้วยขนาดที่เพิ่มขึ้นจึงสามารถแบ่งพื้นที่แต่ละโซนให้เป็นสัดส่วนได้มากขึ้น โดยเฉพาะห้องครัวที่

จะได้เป็นแบบปิด และมีพื้นที่สำหรับรับประทานอาหารให้เป็นกิจลักษณะ

 ห้องตัวอย่าง 33 sq.m (1)

มองผ่านประตูห้องเข้าไปด้านในห้อง 33 ตร.ม.

 ห้องตัวอย่าง 33 sq.m (2)

ส่วนแรกเป็นพื้นที่ห้องนั่งเล่น ด้านในยังคงใช้การแบ่งพื้นที่ต่างๆด้วยฉากบานเลื่อนทรงสูงทำให้ห้องดูโปร่งสบายและรับแสงธรรมชาติได้อย่างทั่วถึง

 ห้องตัวอย่าง 33 sq.m (3)

รายละเอียดอุปกรณ์พื้นฐานเหมือนกันทั้งพื้นลามิเนต ไฟดาวน์ไลท์ เพดานสูง 2.8 เมตร

 ห้องตัวอย่าง 33 sq.m (4)

ด้านในเป็นห้องนอนและครัวปิด

 ห้องตัวอย่าง 33 sq.m (5)

ระยะนั่งดูทีวีจะแคบลงเพราะด้านหลังของผนังชั้นวางทีวีนั้นถูกแบ่งเป็นพื้นที่ห้องน้ำ ทำให้ระยะเหลืออยู่ที่เกือบ 2 เมตร

 ห้องตัวอย่าง 33 sq.m (7)

ผนังด้านนี้แบ่งกันใช้งานระหว่างโต๊ะทานข้าวและโซฟา

 ห้องตัวอย่าง 33 sq.m (8)

โซฟาขนาด 2 ที่นั่ง ไม่รวมโต๊ะกลาง

 ห้องตัวอย่าง 33 sq.m (9)

ชั้นวางทีวีบิลท์อินครบเซต

ห้องตัวอย่าง 33 sq.m (10)

ตู้เก็บรองเท้าด้านบนเพิ่มมาอีก 1 ชั้นให้เก็บของได้มากขึ้น

ห้องตัวอย่าง 33 sq.m (11)

วางทีวีขนาด 32 นิ้วกำลังดีกับระยะสายตา

ห้องตัวอย่าง 33 sq.m (12)

ชั้นวางของเหนือทีวีบานปิดกระจก เลื่อนเปิดปิด

ห้องตัวอย่าง 33 sq.m (14)

สำหรับโต๊ะทานอาหารไม่มีให้ การวางต้องจัดวางชิดกำแพงแบบนี้นะครับ จะวางเข้ามุมแล้วเอาเก้าอี้มาไว้ด้านนอกไม่ได้เพราะจะขวางทางเดินเข้าครัว

ห้องตัวอย่าง 33 sq.m (15)

ทางเข้าห้องน้ำอยู่ด้านหลังผนังชั้นวางทีวี

ห้องตัวอย่าง 33 sq.m (16)

หน้าห้องน้ำมีเฟอร์บิลท์อินให้แบบนี้ จะใช้เป็นโต๊ะทำงานหรือโต๊ะเครื่องแป้งก็แล้วแต่ความประสงค์

 ห้องตัวอย่าง 33 sq.m (2)

บิลท์อินลอยตัวให้แบบนี้ไม่มีเก้าอี้หรือสตูลให้

 ห้องตัวอย่าง 33 sq.m (1)

ช่องเก็บของด้านบนมีบานปิดแบบเลื่อนไฮกรอส

ห้องตัวอย่าง 33 sq.m (17)

เข้าไปดูห้องน้ำกัน

ห้องตัวอย่าง 33 sq.m (18)

การจัดวางนั้นจะเรียงแถวเข้าไปด้านในตามความลึกของพื้นที่

ห้องตัวอย่าง 33 sq.m (22)

อ่างล้างหน้าแบบมีตู้ลอย

ห้องตัวอย่าง 33 sq.m (21)

ด้านหลังโถสุขภัณฑ์มีพื้นที่วางของได้เล็กน้อย

ห้องตัวอย่าง 33 sq.m (23)

ติดตั้งบานกระจกเงายาวเต็มผนัง

ห้องตัวอย่าง 33 sq.m (24)

ไฟสองดวงพร้อมพัดลมดูดอากาศ

ห้องตัวอย่าง 33 sq.m (25)

ห้องอาบน้ำกั้นส่วนด้วยบานเลื่อน

ห้องตัวอย่าง 33 sq.m (26)

พื้นที่อาบน้ำ 1.2 x 0.8 ม.

ห้องตัวอย่าง 33 sq.m (27)

ราวแขวนฝักบัว

ห้องตัวอย่าง 33 sq.m (28)

เหลืออีกสองส่วนคือห้องครัวและห้องนอน ซึ่งทั้งสองห้องใช้บานเลื่อนเป็นตัวแบ่งพื้นที่

ห้องตัวอย่าง 33 sq.m (29)

ไปดูครัวกันก่อน

ห้องตัวอย่าง 33 sq.m (31)

พื้นห้องครัวปูด้วยแกรนิตโต้ ดีต่อการใช้งานจริงมากกว่าลามิเนตโดยเฉพาะเรื่องความทนทานและการทำความสะอาด

ห้องตัวอย่าง 33 sq.m (32)

มีเคาน์เตอร์ให้บนล่างเหมือนกัน ท็อปครัวหินสังเคราะห์ ด้านหลังกรุกระจกกันเปื้อนเรียบร้อย

ห้องตัวอย่าง 33 sq.m (33)

เคาน์เตอร์ด้านบนบานปิดลามิเนต

ห้องตัวอย่าง 33 sq.m (34)

เหลือพื้นที่ให้วางตู้เย็นด้านในสุด

ห้องตัวอย่าง 33 sq.m (36)

ประตูระเบียงวางบนธรณีก่อ

ห้องตัวอย่าง 33 sq.m (37)

ขนาดระเบียง 1.4 x 1.1 ม.

ห้องตัวอย่าง 33 sq.m (38)

ราวกันตกเและระแนงบังสายตา

ห้องตัวอย่าง 33 sq.m (39)

ต่อปลั๊กไฟและท่อน้ำทิ้งให้แล้ว

ห้องตัวอย่าง 33 sq.m (40)

หัวมุมด้านนี้ เห็นกระจกแบบเข้ามุมของห้องนอน

ห้องตัวอย่าง 33 sq.m (41)

ไปดูห้องนอนกันต่อเนื่องเลยครับ

ห้องตัวอย่าง 33 sq.m (42)

ห้องนี้จะได้พื้นที่สำหรับแต่งตัวหน้าตู้เสื้อผ้าเยอะหน่อย

ห้องตัวอย่าง 33 sq.m (43)

วางเตียง 5 ฟุต

ห้องตัวอย่าง 33 sq.m (44)

ตู้เสื้อผ้าบิลท์อินสูงติดเพดาน

ห้องตัวอย่าง 33 sq.m (45)

ทางเดินข้างเตียงเหลือ 30 ซม. เดินเปิดปิดหน้าต่างหรือจัดเตียงได้ง่าย

ห้องตัวอย่าง 33 sq.m (46)

มองย้อนกลับไปยังทางเข้าห้องนอน

ห้องตัวอย่าง 33 sq.m (47)

พื้นที่ใช้งานในห้องนอน

ห้องตัวอย่าง 33 sq.m (48)

ยังคงคอนเซปต์เรื่องความโปร่งสบายด้วยการติดตั้งกระจกแบบเข้ามุม เพื่อให้แสงเข้ามาภายในได้มากขึ้น รวมถึงสามารถมองออกไปด้านนอกได้กว้างขึ้นเช่นกัน

ห้องตัวอย่าง 33 sq.m (50)

เปิดปิดได้ 1 บานแบบบานกระทุ้ง

ห้องตัวอย่าง 33 sq.m (51)

ด้านล่างเตียงมีลิ้นชักเก็บของ

ราคา (พ.ค. 2559)

1 Bedroom 27.5 – 28 sq.m. : ราคา 2.11 ล้านบาท
– จอง 10,000 บาท
– ทำสัญญา 40,000 บาท
– เงินดาวน์ 168,700 บาท
แบ่งเป็น 9,900 x 13 งวด และงวดพิเศษ 40,000 บาท

1 Bedroom 32-36 sq.m. : ราคา 2.59 ล้านบาท
– จอง 10,000 บาท
– ทำสัญญา 50,000 บาท
– เงินดาวน์ 193,000 บาท
แบ่งเป็น 11,000 x 13 งวด และงวดพิเศษ 50,000 บาท

2 Bedroom 60 sq.m. : ราคา 4.41 ล้านบาท
– จอง 10,000 บาท
– ทำสัญญา 90,000 บาท
– เงินดาวน์ 324,000 บาท
แบ่งเป็น 18,000 x 13 งวด และงวดพิเศษ 90,000 บาท

ค่าส่วนกลาง 48 บาท/เดือน/ตร.ม.
ค่ากองทุน 500 บาท/ตร.ม.

บทสรุปโครงการ

ทำเลที่ตั้งโครงการ – Miti Condo ลาดพร้าว-วังหิน ตั้งอยู่บนถนนลาดพร้าววังหิน บริเวณปากซอยลาดพร้าววังหิน 72 สามารถเข้าออกได้หลายทางและเป็นถนนที่สามารถทะลุไปออกถนนหลักสายสำคัญๆได้ หลายเส้นจึงทำให้บริเวณถนนใหญ่หน้าโครงการมีรถสัญจรผ่านอยู่ตลอดเวลาแต่ด้านในตัวโครงการเองด้านข้างที่ติดกับซอย 72 เป็นซอยหมู่บ้านส่วนบุคคลมีบ้านพักอาศัยอยู่ไม่หนาแน่นจึงทำให้บรรยากาศโดยรวมค่อนข้าง เงียบสงบเป็นส่วนตัวเหมาะแก่การพักผ่อน

ความอุดมสมบูรณ์ ซอยลาดพร้าววังหินเป็นย่านที่สามารถหาของกินได้ง่ายมาก มีร้านข้าวร้านก๋วยเตี๋ยวอยู่ตลอดทั้งเส้นโดยแค่ในบริเวณโครงการที่สามารถ เดินด้วยเท้าได้ก็ร่วมๆ 10 ร้านแล้ว บริเวณสี่แยกวังหิน (400 เมตร) มีตลาดสดวังหินไว้จับจ่ายวัตถุดิบในการประกอบอาหาร ร้านสะดวกซื้อมี 7-11 อยู่เยื้องๆฝั่งตรงข้ามกับโครงการ ส่วนห้างใหญ่ที่ใกล้ที่สุดเป็น Tesco Lotus วังหิน ห่างโครงการแค่ 500 เมตรถ้าขยันหน่อยเดินเอาก็ไหวอยู่ครับ

การเดินทางด้วยรถยนต์ส่วนตัว – ถนนลาดพร้าววังหินเป็นถนนเส้นรองที่สามารถใช้เชื่อมต่อเข้าสู่ถนนเส้นหลัก ได้อย่างหลากหลายได้แก่ถนนลาดพร้าว, ถนนรัชดาภิเษก, ถนนพหลโยธิน, เลียบด่วนเอกมัย-รามอินทรา และเกษตร-นวมินทร์ เรื่องของทางด่วนอาจจะไม่ใช่จุดแข็งของโครงการเนื่องจากว่าอยู่ห่างจากจุดขึ้นลงทางด่วนพอสมควรแต่มีให้เลือกหลากหลายตามจุดหมายการเดินทางโดยโครงการจะ ตั้งอยู่บริเวณกึ่งกลางได้แก่ทางด่วนรามอินทรา, ทางด่วนโทลล์เวย์และทางด่วนศรัรัช ระยะทางห่างจากจุดขึ้นลงประมาณ 5-8 กม. ภายในโครงการมีที่จอดรถให้ 60% รวมซ้อนคันถือว่าเป็นตัวเลขที่เอื้ออำนวยแก่การใช้รถยนต์ส่วนตัว

การเดินทางด้วยรถสาธารณะ – ข้อดีสำหรับคนที่นิยมเดินทางด้วยรถสาธารณะคือโครงการอยู่ติดถนนใหญ่ นั่นหมายถึงสามารถเรียกใช้งานรถสาธารณะได้ง่าย สำหรับถนนลาดพร้าววังหินมีรถกระป๊อรถสองแถวเป็นตัวเลือกหลักๆของคนในย่านนี้ เดินทางได้คลอบคลุมเส้นวังหิน-เสนา-โชคชัย 4 ส่วนแท๊กซี่หาเรียกได้ง่ายมีผ่านให้เรียกอย่างต่อเนื่อง ตัวรถไฟฟ้าสถานีที่ใกล้ที่สุดคือ MRT ลาดพร้าว ที่อยู่บริเวณแยกรัชดา-ลาดพร้าวห่างจากโครงการร่วมๆ 4 กม.ไม่มีสองแถวไปถึงสถานีดังกล่าวต้องใช้บริการวินมอไซค์ค่าบริการอยู่ที่ 30-40 บาท ส่วนในอนาคตมีแผนงานรถไฟฟ้าอีก 2 สายได้แก่สายสีเหลืองส่วนต่อขยาย ลาดพร้าว-สำโรง และสายสีเขียว หมอชิต-สะพานใหม่-คูคต

การออกแบบโครงการและวัสดุ – Miti Condo ลาดพร้าว-วังหิน เป็นคอนโด Low-Rise 2 อาคาร แบ่งเป็นอาคารคลับเฮ้าส์ 2 ชั้น 1 อาคาร และอาคารพักอาศัยสูง 7 ชั้น 1 อาคาร จำนวน 198 ยูนิต บนพื้นที่ประมาณ 2 ไร่เศษ ออกแบบโครงการด้วยคอนเซปต์ “ชีวิตที่แตกต่างอย่างลงตัว” เน้นความโปร่งสบายของผู้พักอาศัยและพยายามมสอดแทรกพื้นที่สีเขียวให้ลูกบ้านได้ใกล้ชิดธรรมชาติมากขึ้น

– รูปแบบ Layout ออกแบบได้น่าสนใจด้วยการเน้นรับแสงธรรมชาติจากหน้าต่างบานใหญ่ แบ่งโซนกั้นส่วนต่างๆด้วยฉากบานเลื่อนกระจกบานใหญ่เพื่อให้แสงนั้นส่งต่อไปยังส่วนต่างๆของห้องได้อย่างมีประสิทธิภาพ ประกอบกับจุดเด่นที่ทางโครงการกล้าให้มากกว่าที่อื่นคือฝ้าเพดานสูงถึง 2.8 เมตร ทำให้รู้สึกได้ถึงความโล่ง โปร่ง อยู่สบายตอบโจทย์ตามคอนเซปต์ที่วางไว้ได้อย่างลงตัว

– โครงการขายแบบ Fully Furnished โดยวัสดุอุปกรณ์ที่ทางโครงการให้มาจัดว่าอยู่ในระดับมาตรฐาน และดีกว่ามาตรฐานทั่วไปในหลายจุด เริ่มจากชุดครัวครบเซ็ตท็อปครัวหินสังเคราะห์ ฮอบฮูด ซิงค์ Teka, บานเลื่อนกรอบอลูมิเนียมสีน้ำตาลซาฮาร่าที่ดูสวยทนทานต่อรอยขีดข่วนได้ดี, ประตู Digital Door Lock, สุขภัณฑ์ในห้องน้ำจาก Cristina โดยให้โถสุขภัณฑ์แบบวันพีช, กระจกด้านนอกวัสดุ Euro Grey ที่ช่วยกรองแสงยูวีได้ดี นอกจากนั้นยังให้เฟอร์นิเจอร์ครบครันทั้งโซฟา, ชั้นวางทีวี, ตู้รองเท้า, ตู้เสื้อผ้า, เตียง (ไม่รวมฟูก) และเครื่องปรับอากาศ 2 ตัว

สิ่งอำนวยความสะดวก – พื้นที่ส่วนกลางน่าสนใจด้วยอาคารคลับเฮ้าส์รูปทรงทันสมัยด้านหน้าโครงการ ที่ด้านในประกอบด้วย Lobby สำหรับรองรับแขกซึ่งช่วยในการคัดกรองคนนอกเข้าไปด้านในส่วนอาคารพักอาศัยได้ดี ได้ทั้งความเป็นส่วนตัวและความปลอดภัย สระว่ายน้ำระบบเกลือขนาด 15×5 เมตร ลึก 1.2 เมตร ยาวพอให้ว่ายออกกำลังกายได้ และชั้นบนของอาคารเป็นห้องฟิตเนสและห้องอ่านหนังสือ ถือว่าสิ่งอำนวยความสะดวกพื้นฐานมีให้ครบครันไม่บกพร่อง เรื่องความระบบรักษาความปลอดภัยตามมาตรฐานแตก Key Card เพื่อเข้าออกลานจอดรถและโถงลิฟต์ มีกล้อง CCTV และเจ้าหน้าที่รักษาความปลอดภัย 24 ชม.

คะแนน

ทำเลที่ตั้งโครงการ 7.75 บรรยากาศเงียบสงบ เหมาะแก่การพักผ่อน อุดมสมบูรณ์
การเดินทาง ใช้รถ 8.0 สามารถเข้าออกได้หลายทาง เชื่อมต่อกับถนนเส้นสำคัญๆ เช่นลาดพร้าว, รัชดาฯ, เกษตร-นวมินทร์, พหลโยธินและเอกมัย-รามอินทรา มีที่จอดรถจำนวนเกินครึ่งของยูนิตทั้งหมด
การเดินทาง ไม่ใช้รถ 7.5 เรียกหารถสาธารณะได้ง่าย มีสองแถวผ่านหน้าโครงการ มีรถไฟฟ้า MRT ลาดพร้าวให้ใช้บริการแต่ไม่ได้อยู่ในระยะที่เดินทางไปได้สะดวกนัก
ห้องและวัสดุ 8.5 ออกแบบได้อย่างน่าพักอาศัย เน้นความโปร่งสบาย ฝ้าเพดาน 2.8 เมตร วัสดุคุณภาพสูง
สิ่งอำนวยความสะดวก 8.5 ครบครันด้วยอาคารคลับเฮ้าส์มีทั้งสระว่ายน้ำ, ฟิตเนส, ห้องอ่านหนังสือ และ Lobby เพียงพอต่อการใช้งานด้วยจำนวนยูนิตที่น้อย
ความคุ้มค่ากับราคา 8.5 ขายแบบ Fully Furnished ให้วัสดุและเฟอร์นิเจอร์คุณภาพดี แบบห้องน่าอยู่ คุ้มค่าเมื่อเทียบกับราคา
คะแนนรวมเฉลี่ย 8.13 ดีมาก

สอบถามเพิ่มเติมได้ที่

Tel : 085-911-8811

Website : http://www.miticondo.com/#home

หากเพื่อนๆเห็นว่ารีวิวนี้มีประโยชน์ ช่วยกด Like เพื่อเป็นกำลังใจให้ทีมงาน ขอบคุณครับ

และมีความคิดเห็นหรือข้อมูลเพิ่มเติมเกี่ยวกับตัวโครงการ สามารถ Comment ได้ที่ด้านล่างของรีวิวครับ


สนใจลงโฆษณากับทาง CONDONAYOO ติดต่อสอบถามรายละเอียดได้ที่
คุณวัน 086-1290293 
LINE ID : 123456786205 Email : wanchalearm.t@gmail.com
ทางเราเป็นเว็บไซต์ให้ข้อมูล ไม่ใช่เจ้าของโครงการนะครับ

แสดงความคิดเห็น เกี่ยวกับ " รีวิว มิติ คอนโด ลาดพร้าววังหิน 72 MITI Condo Ladprao-Wanghin ใกล้ BTS เสนานิคม "