
Quad สาทร จาก บริษัท ควอด จำกัด ตั้งอยู่บนซอย 6 ถ.นราธิวาสราชนครินทร์ แขวงทุ่งมหาเมฆ เขตยานนาวา กทม. ใกล้ตลาดสวนพลู, รถไฟฟ้า BTS ช่องนนทรี, รถไฟฟ้า MRT ลุมพินี, แม็คโคร, เทสโก้ โลตัส, เซ็นทรัล พระราม 3, Empire Tower, Market Place นางลิ้นจี่, ม.เทคโนโลยีราชมงคลกรุงเทพ, เซนต์โยเซฟคอนเวนต์, รพ.BNH และ รพ.เซนต์หลุยส์
ควอด สาทร เป็นคอนโด Low Rise 5 ชั้น 1 อาคาร พื้นที่โครงการขนาด 228 ตร.วา. ห้องพักอาศัยจำนวน 64 ยูนิต มีห้องพักให้เลือกแบบสตูดิโอ ขนาดเริ่มต้น 23.00-29.00 ตร.ม. โครงการพร้อมอยู่ปี 2556
สิ่งอำนวยความสะดวกภายในโครงการครบครัน อาทิ โถงต้อนรับ, ห้องจดหมาย, ฟิตเนส, สวนพักผ่อน, ลิฟต์โดยสาร, ที่จอดรถ, Access Card Control, CCTV, ระบบรักษาความปลอดภัยตลอด 24 ชม. ราคาเริ่มต้น 2.2 ล้านบาท*
| ชื่อโครงการ | ควอด สาทร Quad Sathon |
| เจ้าของโครงการ | ควอด Quad |
| ลักษณะห้องและขนาดห้อง | – Studio 23 – 29 ตร.ม. ขนาดห้องพร้อมพื้นที่ระเบียง)) |
| เนื้อที่ทั้งหมด | 228 ตร.วา. |
| จำนวนตึก | 1 อาคาร |
| จำนวนชั้น | 5 ชั้น |
| จำนวนห้อง | 64 ยูนิต |
| ที่จอดรถทั้งหมด | n/a |
| โซน | สาทร, พระรามที่ 3, พระรามที่ 4, ยานนาวา |
| ขนส่งสาธารณะ | – รถไฟฟ้า BTS ช่องนนทรี 500 ม. – BRT อาคารสงเคราะห์ 20 ม. |
| รถโดยสารที่ผ่าน | n/a |
| ที่ตั้ง | ซอย 6 ถนนนราธิวาสราชนครินทร์ แขวงยานนาวา เขตสาทร กรุงเทพ |
| กำหนดการ | n/a |
| ปีที่สร้างเสร็จ | พ.ศ. 2556 |
| ราคา | 2,200,000 – 2,900,000 บาท (ณ. วันที่ 12/4/2013) |
| ราคาเฉลี่ยต่อ ตร.ม | เริ่มต้น 95,700 บ./ตร.ม. |
| สถานที่สำคัญใกล้เคียง | 1. รถไฟฟ้าบีทีเอส สถานี ช่องนนทรี 2. The City Viva 3. The Empire Tower 4. Max Value 5. แมคโคร |
| สิ่งอำนวยความสะดวก | – ฟิตเนส (ที่ดาดฟ้า) – รปภ. – กล้องวงจรปิดโครงการ – สวนหย่อม (ที่ดาดฟ้า) – Wi-Fi Internet บริเวณ Lobby (บริเวณดาดฟ้า) |
| จุดเด่นของโครงการ | “คอนโดใหม่ใจกลางเมืองใกล้รถไฟฟ้าบีทีเอส ช่องนนทรี เพียง 500 เมตร เพราะเราทุกคนรู้ว่าเวลาเป็นสิ่งมีค่า สัมผัสชีวิตที่เหนือกว่าที่ Quad Sathon เมื่อทุกสิ่งอยู่ใกล้แค่เดิน นี่คือมาตรฐานของชีวิตและความสะดวกสบายที่มากกว่าคนอื่นอยู่ก้าวหนึ่งเสมอ” |
ที่ตั้งโครงการ
ซอย 6 ถนนนราธิวาสราชนครินทร์ แขวงยานนาวา เขตสาทร กรุงเทพ
: ภาพ Google ประกอบการเดินทาง :
พิกัด Google : 13.717434, 100.530612
การเดินทาง : ถนนนราธิวาสราชนครินทร์ (BRT อาคารสงเคราะห์) ⇒ ซอยนราธิวาสฯ 6 ขับตรงไปอีก 150 เมตรถึงโครงการ Quad Sathorn *ใกล้ BRT อาคารสงเคราห์
ภาพประกอบการเดินทาง เราจะเริ่มจาก BRT สถานีอาคารสงเคราะห์ ห่างจากปากโครงการ Quad Sathon ประมาณ 240 เมตรค่ะ
ตัวโครงการอยู่ในซอยนราธิวาสฯ 6 ห่างจากปากซอยประมาณ 160 เมตร
ถึงโครงการ Quad Sathorn
:: สถานที่โดยรอบโครงการ ::
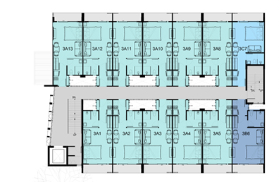
แปลนอาคาร
1 Floor 2 Floor 3 Floor
4 Floor 5 Floor
GALLERY
สอบถามรายละเอียดเพิ่มเติมได้ที่
TEL : 02-636-7799
WEBSITE : http://www.quadsathon.com
แสดงความคิดเห็น เกี่ยวกับ " คอนโด ควอด สาทร Quad Sathon "