
รีวิว คอนโด เดอะ รีเซิร์ฟ เกษมสันต์ 3 THE RESERVE KASEMSAN 3 ใกล้ BTS สนามกีฬาแห่งชาติ

วันนี้เราจะพาไปชมโครงการ The Reserve เกษมสันต์ 3 คอนโดพร้อมอยู่จาก พฤกษา เรียลเอสเตท ตั้งอยู่บน ซอยเกษมสันต์ 3 ถนนพระราม 1 แขวงวังใหม่ เขตปทุมวัน กทม. เดินทางสะดวก ใกล้ถนนพระราม 1, ถนนพญาไท และ รถไฟฟ้า BTS สนามกีฬาแห่งชาติ ใกล้สยามพารากอน, สยามสแควร์ และ จุฬาลงกรณ์มหาวิทยาลัย
เดอะ รีเซิร์ฟ เกษมสันต์ 3 เป็นคอนโด Low-Rise 7 ชั้น + 1 ชั้นใต้ดิน 2 อาคาร พื้นที่โครงการขนาด 3-2-57.1 ไร่ จำนวนห้อง 273 ยูนิต มีห้องพักให้เลือกแบบสตูดิโอ 27.87-28.33 ตร.ม., 1 ห้องนอน 38.41-39.61 ตร.ม. และ 2 ห้องนอน 57.25 ตร.ม. โครงการสร้างเสร็จพร้อมอยู่ปี 2558
สิ่งอำนวยความสะดวกมาตรฐานครบครัน อาทิ Lobby, Mailbox, สระว่ายน้ำ, ฟิตเนส, สวนหย่อม, ระบบ Key Card Access, กล้องวงจรปิด CCTV พร้อมรปภ. 24 ชม. ราคาเริ่มต้น 4.5 ล้านบาท* (ณ.วันเปิดตัว)
| ชื่อโครงการ | เดอะ รีเซิร์ฟ เกษมสันต์ 3 THE RESERVE KASEMSAN 3 |
| เจ้าของโครงการ | พฤกษา เรียลเอสเตท – Pruksa Real Estate |
| ลักษณะห้องและขนาดห้อง | – Studio 27.87 – 28.33 ตร.ม. 79 ยูนิต – 1 Bedroom 38.41 – 39.61 ตร.ม. 151 ยูนิต – 2 Bedrooms 57.25 ตร.ม. 43 ยูนิต |
| เนื้อที่ทั้งหมด | 3-2-57.1 ไร่ |
| จำนวนตึก | 2 อาคาร |
| จำนวนชั้น | 7 ชั้น + 1 ชั้นใต้ดิน |
| จำนวนห้อง | 273 ยูนิต |
| ที่จอดรถทั้งหมด | 50% ของยูนิตโครงการ ไม่รวมจอดซ้อนคัน |
| โซน | ปทุมวัน, เพลินจิต, ราชดำริ, ชิดลม |
| ขนส่งสาธารณะ | รถไฟฟ้า BTS สนามกีฬาแห่งชาติ |
| รถโดยสารที่ผ่าน | n/a |
| ที่ตั้ง | ซอยเกษมสันต์ 3 ถนนพระราม 1 แขวงวังใหม่ เขตปทุมวัน กทม. |
| กำหนดการ | เริ่มก่อสร้าง พ.ย. 2556 |
| ปีที่สร้างเสร็จ | ปี 2558 |
| ราคา | เริ่มต้น 4,500,000 บาท |
| ราคาเฉลี่ยต่อ ตร.ม | 150,000 บาท/ ตร.ม. |
| สถานที่สำคัญใกล้เคียง | 1. สยาม พารากอน, สยาม เซ็นเตอร์, สยาม ดิสคัฟเวอรี่, เซ็นทรัล เวิลด์ 2. จุฬาลงกรณ์ มหาวิทยาลัย 3. โรงพยาบาลจุฬาลงกรณ์, โรงพยาบาลตำรวจ 4. วัดปทุมวนาราม ราชวรวิหาร |
| สิ่งอำนวยความสะดวก | – สระว่ายน้ำ, ฟิตเนส, รปภ., กล้องวงจรปิดโครงการ, ประตู Key Card, สวนหย่อม, Wi-Fi Internet บริเวณ Lobby |
| จุดเด่นของโครงการ | เดอะ รีเซิร์ฟ เกษมสันต์ 3 บูทีคคอนโดใหม่ แห่งสุดท้ายใจกลางสยาม แต่งครบ เริ่ม 4.5 ลบ. |
ที่ตั้งโครงการ
ซอยเกษมสันต์ 3 ถนนพระราม 1 แขวงวังใหม่ เขตปทุมวัน กทม.
พิกัด google map : 13.749051, 100.527438

โครงการ The Reserve เกษมสันต์ 3 ตั้งอยู่ในซอยเกษมสันต์ 3 ห่างจาก BTS สนามกีฬาแห่งชาติประมาณ 350 เมตรค่ะ ที่ตั้งโครงการอยู่ฝั่งขาเข้าของถนนพระราม 1 วิ่งไปทางแยกปทุมวัน สยาม ชิดลม เพลินจิต อโศก สีลม ถ้าใครทำงานในเมืองโซนนี้ ขับรถจากโครงการไปก็สะดวกมากค่ะ เพราะก็อยู่ในโซนใจกลางเมืองด้วยกันอยู่แล้ว การวิ่งไปจุดต่างๆในย่าน CBD จริงๆก็ไม่ได้ห่างกันซักเท่าไหร่
สำหรับคนไม่ใช้รถ ด้วยระยะห่างเพียงแค่ประมาณ 550 เมตรจากโครงการถึงแยกปทุมวันก็คงจะบ่งบอกได้แล้วว่า โครงการนี้อยู่ในใจกลางกรุงเทพมหานครแค่ไหน และการที่อยู่ห่างจากสถานีสยามแค่เพียงสถานีเดียวก็ย่อมมีความแตกต่างกับคนที่ต้องนั่งรถไฟฟ้ามาจากแบริ่งเพื่อมาสยามแน่นอน ระยะเวลาที่ใช้มันต่างกันเกือบ 10 เท่า (3 นาทีกับครึ่งชั่วโมง) ทำให้การใช้ชีวิตอยู่แถวนี้ดูจะเป็นเรื่องง่ายไปเลย
จากสถานีสนามกีฬาแห่งชาติรถไฟฟ้าก็จะวิ่งไปทางสายสีลม สนามกีฬาแห่งชาติ – บางหว้า คนที่ทำงานโซนสีลม สาทร ก็ไม่ต้องเปลี่ยนสถานีค่ะ สามารถนั่งยาวไปลงได้เลย แต่ถ้าทำโซนเพลินจิต อโศก ทองหล่อ ก็นั่งมาสถานีเดียวถึงสถานีสยามซึ่งเป็นสถานี Interchange หมอชิต – แบริ่ง แล้วเปลี่ยนสายไปทางแบริ่งต่อนั่นเอง

จาก Map จะเห็นความหนาแน่นของห้างใหญ่ๆและสิ่งอำนวยความสะดวกต่างๆในย่านนี้นะคะ
จากที่ตั้งโครงการในซอยเกษมสันต์ 3 เราสามารถเดินออกจากห้องไปดูหอศิลป์กรุงเทพ BACC,ห้าง Tokyu, MBK เดินบน Sky walk ของ BTS สนามกีฬาข้ามแยกปทุมวันเชื่อมไปสถานีสยามได้เลย ข้ามไปก็จะเจอ สยามสแควร์, สยามดิส, สยามพารากอน, สยามเซ็นเตอร์, สยามสแควร์วันห้างเปิดใหม่ ได้อย่างสบายๆ
ใครเรียนจุฬาวันไหนรีบไปเรียนนั่งมอเตอร์ไซค์หน้าปากซอยไป 5-10 นาทีถึงคณะได้ชิวๆ หรือจะเดินมาขึ้น BTS เที่ยว ห้างใหญ่ติด BTS ใกล้ๆให้ช้อปปิ้งก็มีเยอะ Terminal 21 ที่ BTS อโศก, Central Embassy, Central ชิดลม ที่ BTS เพลินจิต หรือจะไปหาอะไรทานที่ Emporium หรือห้างเปิดใหม่ Emquartier และเดินเล่นที่สวนสาธารณะเบญจสิริ ก็ลง BTS พร้อมพงษ์ได้สบายๆค่ะ ถ้าอยากซื้อของสดเข้าบ้าน ไม่ไป Tokyu ก็จะมี Lotus อยู่ใกล้ๆ เดินไปซื้อของสดเข้าห้องได้สบายๆค่ะ

ถนนเส้นหลักของโครงการคือถนนพระราม 1 ซึ่งก็เป็นโซนที่พักอาศัยของคนอยู่ย่านสยามนี้นะคะในขณะที่ถนนพญาไทหรือเพชรบุรีจะน้อยกว่าและมีพวกอาคารสำนักงานมากกว่า ถ้าจะขับเข้าเมืองไปอโศกหรือสุขุมวิทก็ขับตามทางไปตรงๆง่ายๆเลยค่ะไม่ซับซ้อน เพราะเป็นถนนพระราม 1 มุ่งหน้าไปทางแยกปทุมวัน วิ่งเข้าเมืองย่าน CBD อยู่แล้ว จากแยกปทุมวันตรงไปแยกราชประสงค์ตรงไปเป็นเพลินจิต สุขุมวิท อโศก ส่วนคนที่ทำงานย่านสีลมพอเจอแยกราชประสงค์วิ่งลงทางทิศใต้หรือวิ่งทางถนนราชดำริลงไปจะเจอถนนสีลมแล้วค่ะ
สำหรับคนที่ใช้ทางด่วนนะคะ คือจุดขึ้นลงมันไม่ได้อยู่ที่เส้นพระราม 1 ตรงๆ แต่จากโครงการ เราขับมาแยกปทุมวันเหมือนเดิม แล้วเลี้ยวซ้ายขึ้นไปทางถนนพญาไทจนเจอแยกราชเทวี เลี้ยวซ้ายอีกทีไปทางถนนเพชรบุรีทิศตะวันตกมุ่งหน้าไปเรื่อยๆจะเจอถนนบรรทัดทอง และไปตัดกับถนนพระราม 6 ที่แยกอุรุพงษ์ ซึ่งตรงนี้ก็คือทางขึ้น-ลงทางด่วนยมราชนั่นเองค่ะ เราลากเส้นประสีแดงมาให้ดูกันงงใน map แล้วค่ะ ก็คือจากโครงการไปขึ้นทางด่วนด่านยมราชนะคะ ส่วนถนนเพชรบุรีทิศตะวันออก วิ่งไปเรื่อยๆก็จะไปเจอทางขึ้นทางด่วนไปบางนา-ดาวคะนอง ที่เลยถนนวิทยุไปอีกหน่อย ก่อนจะถึงนานาเหนือที่วิ่งไปเข้าอโศก สุขุมวิทได้เหมือนกัน

สำหรับคนที่ต้องเดินทางไปต่างประเทศหรือต้องไปสนามบินบ่อยๆ จะเดินทางไปต่อ Airport link ไปสุวรรณภูมิที่สถานีพญาไทก็ทำได้ง่ายค่ะ ก็คือนั่ง BTS ไปสถานีพญาไทซึ่งอยู่ห่างออกไป 3 สถานีแล้วต่อ Airport link พญาไท เข้าไป ชั่วโมงเร่งด่วนรถติดมากๆเดินออกมาปากซอยแค่ 100 เมตรก็มีวินมอเตอร์ไซค์รับจ้างพาหลบรถติดไปไหนมาไหน รถ Taxi หรือตุ๊กๆ แถวนี้ก็หาง่าย
หรือจะขึ้นเรือโดยสารคลองแสนแสบที่ท่าเรือสะพานหัวช้าง ไปเที่ยวย่านเก่าๆอย่างไปลงท่าเรือผ่านฟ้าลีลาศ หรือจะไปเปลี่ยนสายที่สายที่ท่าเรือประตูน้ำวิ่งไปทางทองหล่อหรือบางกะปิได้ (เช็คเส้นทางเดินเรือได้ที่นี่ค่ะ) ทำให้การคมนาคมในย่านสยามโดยไม่ใช้รถยนต์จะสะดวกกว่าการใช้รถในระยะใกล้ๆอย่างที่ยกตัวอย่างไปค่ะ ซึ่งก็เป็นเหตุผลหลักๆที่ย่านนี้มีโรงแรมเยอะ เพราะนอกจากจะใกล้ห้างและแหล่งช้อปปิ้งมากมายแล้ว ความสะดวกสบายในการเดินทางก็เป็นอีกปัจจัยสำคัญที่ทำให้บรรดานักท่องเที่ยวชอบมาพักที่โซนนี้ค่ะ

วันนี้เรามีภาพการเดินทางโดยรถมาให้ชมกัน เส้นทางการเดินทางตามลูกศรแดงโดยเริ่มเดินทางจาก แยกอุรุพงษ์ → ถนนเพชรบุรี → เลี้ยวขวาเข้าถนนบรรทัดทอง → เลี้ยวซ้ายเข้าถนนพระราม 1 → เลี้ยวซ้ายเข้าซอยเกษมสันต์ 3 → ตรงไปประมาณ 240 เมตรก็จะเจอโครงการ The Reserve เกษมสันต์ 3 อยู่ทางซ้ายมือแล้วค่ะ

เริ่มกันจากแยกอุรุพงษ์มุ่งหน้าไปถนนเพชรบุรีนะคะ

เราตรงไปบนถนนเพชรบุรีเพื่อเลี้ยวขวาเข้าถนนบรรทัดทอง สองฝั่งของถนนเพชรบุรีส่วนใหญ่ก็จะเป็นอาคารสำนักงาน ธนาคาร ซะเป็นส่วนใหญ่

เลี้ยวขวาเข้าถนนบรรทัดทอง

ถนนบรรทัดทองส่วนนี้เป็นถนนที่เชื่อมอยู่ระหว่างถนนเพชรบุรีและถนนพระราม 1 ซึ่งรถบนเส้นบรรทัดทองนี่จะติดน้อยกว่าบนเส้นพญาไทนะคะ เพราะถ้าวิ่งไปพญาไทนี่ต้องผ่านแยกราชเทวี วิ่งมาแยกปทุมวันเข้าพระราม 1 มากลับรถอีกที ขาเข้าโครงการเราเลยแนะนำว่ามาทางนี้เลี่ยงรถติดได้ดีกว่าค่ะ สองฝั่งข้างทางของถนนบรรทัดทองก็จะเป็นแนวตึกแถวเก่าๆแบบนี้

ที่หัวมุมระหว่างถนนบรรทัดทองกับถนนพระราม 1 ฝั่งซ้ายมือจะเป็น Tesco Lotus พระราม 1 ซึ่งจะอยู่ห่างจากโครงการ The Reserve เกษมสันต์ 3 ประมาณ 500 เมตร จากตรงนี้เราเลี้ยวซ้ายเข้าถนนพระราม 1

บนถนนพระราม 1 เราจะเห็น Tesco Lotus พระราม 1 อยู่ ทางเข้าหลักของโลตัสจะหันมาทางฝั่งถนนพระราม 1 นะคะ ข้างหน้าก็จะเห็นรางรถไฟฟ้าแล้วค่ะ

เราตรงไปเรื่อยๆซ้ายมือจะเป็นสถาบันเทคโนโลยีปทุมวัน ขวามือจะเป็นกรมพลศึกษา ด้านหลังกรมพลศึกษาจะเป็นสนามกีฬาศุภชลาศัยหรือสนามกีฬาแห่งชาตินั่นเอง
ส่วนตึกสูงสีน้ำตาลที่เราเห็นทางซ้ายมือคือโรงแรม Siam@siam ที่อยู่หัวมุมของซอยเกษมสันต์ 3 หรือซอยโครงการที่เรามาสำรวจกันวันนี้นะคะ พอเห็นอาคารโรงแรมนี้ก็เตรียมเลี้ยวซ้ายเข้าซอยได้เลย

เลี้ยวซ้ายเข้าซอยเกษมสันต์ 3 ได้เลยค่า

ถนนซอยเกษมสันต์ 3 เป็นถนน 2 เลนแบบที่รถพอสวนเข้าออกได้ แต่ถ้ามีรถมาจอดข้างทางนี่จะแบบว่ามีความตะกุกตะกักนิดหน่อย ต้องมีรอๆถอยๆกันบ้าง ในซอยมีแท็กซี่เข้าออกเยอะค่ะ เพราะนอกจากโรงแรม Siam@siam ที่หัวมุมปากซอยแล้ว ภายในซอยเองก็ยังมีโรงแรมอีกหลายเจ้า

ตรงเข้าซอยไปประมาณ 240 เมตร ก็จะเจอโครงการ The Reserve เกษมสันต์ 3 อยู่ทางซ้ายมือแล้วค่า เนื่องจากเป็นโครงการใกล้ BTS สนามกีฬาแห่งชาติ ก่อนเข้าไปสำรวจภายในโครงการ เรามีเส้นทางเดินเท้าจาก BTS สนามกีฬาแห่งชาติมาฝากกันด้วยค่ะ

โครงการ The Reserve เกษมสันต์ 3 ตั้งอยู่ในซอยเกษมสันต์ 3 ห่างจาก BTS สนามกีฬาแห่งชาติประมาณ 350 เมตรค่ะ ที่ตั้งโครงการอยู่ฝั่งขาเข้าของถนนพระราม 1 วิ่งไปทางแยกปทุมวัน สยาม ชิดลม เพลินจิต อโศก สีลม
เนื่องจากโครงการตั้งอยู่ใกล้สยาม ใกล้แยกปทุมวัน ซึ่งเป็นทำเลหายากที่ไม่ได้มีโครงการคอนโดขึ้นมาให้เห็นบ่อยนักนะคะ ส่วนใหญ่ย่านนี้จะเป็นโรงแรมซะมากกว่า พอเวลามีโครงการขึ้นมาส่วนใหญ่ราคาก็อยู่ระดับ Luxury เหมือนๆกันกับ The Reserve เกษมสันต์ 3 นี้แทบจะทั้งหมดค่ะ ไปดูภาพเส้นทางจาก BTS สนามกีฬาแห่งชาติมาโครงการกันต่อเลยค่ะ

เริ่มกันจากสถานีสนามกีฬาแห่งชาติ สถานีที่อยู่ห่างจากโครงการ The Reserve เกษมสันต์ 3 ประมาณ 350 เมตร

ตัวสถานีสนามกีฬาแห่งชาติจะมีทางเชื่อมไปห้าง Tokyu และ MBK

และมีทางเชื่อมไปหอศิลป์กรุงเทพหรือ BACC ด้วยค่ะ ใครชอบเดินดูงานอาร์ตก็มาเดินเล่นได้แบบสบายๆ แถมมีห้องสมุดและร้านกาแฟดีๆอยู่ชั้นล่างของหอศิลป์ให้ไปนั่งดื่มชิวๆอีกด้วย

จากสถานีสนามกีฬาฯ จะมี Sky walk ข้ามแยกปทุมวันเชื่อมไปสถานีสยามได้

สยามเป็นอีกหนึ่งจุดที่มีความเจริญสูงสุดของประเทศ ใกล้จุฬาฯ แถมได้แสงสีของตัวเมืองเต็มๆ และยังใกล้ห้างใหญ่นับสิบห้าง อยากได้อะไรมีหมด มีสยามพารากอน เซ็นทรัลเวิร์ล สยามสแควร์ MBK ฯลฯ บวก Detail ปลีกย่อยอื่นๆย่านนี้ยังมีอีกเพียบ ร้านกินร้านนั่งร้านนอนเป็นร้อยร้าน แหล่งช้อปปิ้งชั้นดี และบรรดาแผงขายของริมถนนใกล้ BTS สยามที่ไม่แน่ใจเหมือนกันว่ากทม.จะจัดการอย่างไรในอนาคตนะคะ แต่ก็มีของสวยๆล่อตาล่อใจเพียบ นอกจากนี้ยังอยู่ใกล้กับจุฬาลงกรณ์มหาวิทยาลัย มหาวิทยาลัยอันดับหนึ่งของประเทศ ซึ่งมันก็มีความเจริญและคับคั่งของย่านมหาวิทยาลัยอยู่ สาวๆหนุ่มๆนักศึกษาเยอะ เสื้อผ้าแฟชั่น อาหาร ความบันเทิงย่านนี้ก็เยอะตามไปด้วย และมีหลายเรตราคาให้บริโภค มีทั้งราคาถูกยันราคาแพง และมีความอินเทรนด์อยู่เสมอ

ที่ BTS สยาม ฝั่งตรงข้ามพารากอนจะมีห้างใหม่ชื่อ Siam Square One ที่มีร้านอาหาร ร้านขนมมาเปิดเพียบ เพิ่มความอุดมสมบูรณ์ของย่านนี้ขึ้นไปอีก

ไปโครงการ The Reserve เกษมสันต์ 3 ออกทางออก 1 เลยค่า

ลงมาจะเห็นป้ายรถเมล์ตรงข้ามสนามกีฬาศุภชลาศัยอยู่นะคะ รถเมล์สายที่วิ่งผ่านจะมีสาย 15, 47, 48ร, 73, 73ก, 204, 508 ส่วนสายไหนจะวิ่งไปไหนบ้างนั้นเข้าไปอ่านข้อมูลเพิ่มเติมได้ที่นี่ค่ะ แถวด้านหลังป้ายรถเมล์จะมี 7-11 อยู่ด้วย แต่พอเราลงมา ให้หันหลังกลับเดินไปอีกทางนะคะ

เราหันหลังกลับเดินมาทางโรงแรม Mercure

ตรงไปเรื่อยๆ แถวนี้โรงแรมเยอะ รถ Taxi เยอะค่ะ แต่ Taxi แถวนี้ไม่ค่อยรับคนไทยนะคะจากที่สังเกตมา เน้นรับนักท่องเที่ยวกันมากกว่า

ถัดมาหน่อยนึงก็จะเจอพี่วินมอเตอร์ไซค์

อัตราค่าโดยสารค่ะ จริงๆจากตรงนี้เดินไปโครงการได้สบายๆ แต่ถ้าจะนั่งมอเตอร์ไซค์ไปโครงการจริงๆคิด 15 บาทค่ะ วินมอเตอร์ไซค์นี่จะตั้งอยู่ใต้บันไดเลื่อนขึ้น BTS สนามกีฬาฯ ซึ่งห่างจากโครงการประมาณ 350 เมตรเท่านั้น

ผ่านออกมาก็จะเจอบันไดเลื่อนขึ้น BTS สนามกีฬาฯแล้วค่ะ

หน้าบันไดเลื่อนจะเป็นซอยเกษมสันต์ 2 ปากซอยเป็น Nissan Service Center

มองไปที่ถนนฝั่งตรงข้ามจะมีศึกษาภัณฑ์พาณิชย์ที่ขายอุปกรณ์เกี่ยวกับการศึกษาอยู่

เดินตรงต่อมาขวามือจะเป็นโรงแรม Holiday inn Express ค่ะ

มองเข้าไปในโรงแรม Holiday inn Express จะมี Mc Donald อยู่ด้วย

เดินตรงผ่านโรงแรม Holiday inn Express มาจะเจอแผงขายอาหารข้างทางเอาไว้ขายพนักงานแถวนี้อยู่หลายแผง

ตรงมาอีกหน่อยหน้าธนาคารกรุงไทยจะมีป้ายแท้กซี่อัจฉริยะอยู่ แต่เห็นรถตุ๊กๆมาจอดเพียบเลย

ถัดมาก็จะเป็นโรงแรม Siam@Siam Design ปากซอยเกษมสันต์ 3 ซอยโครงการ The Reserve เกษมสันต์ 3 นั่นเองค่ะ เข้าไปดูในซอยกันต่อเลยนะคะ

จากต้นซอยเกษมสันต์ 3 ตรงเข้าซอยไปประมาณ 240 เมตร ก็จะเจอโครงการ The Reserve เกษมสันต์ 3 อยู่ทางซ้ายมือแล้วค่า ในซอยจะเป็นอย่างไรเข้าไปดูกันเลย

เดินเข้าไปในซอยจะเห็นบรรดานักท่องเที่ยวที่มาพักโรงแรมในซอยเดินสวนออกมาให้เห็นอยู่เรื่อยๆค่ะ ฝรั่งบ้างจีนบ้าง เข้ามานิดนึงจะเห็นบริษัท GEM Production อยู่ทางขวามือ เป็นบริษัทสูง 4 ชั้น

เดินมาอีกหน่อยฝั่งซ้ายมือจะเป็นโรงแรมชื่อ Vista Residence Bangkok สูง 4 ชั้น ค่าที่พักวันละประมาณ 1,700 – 1,900 บาท ไม่มีลิฟต์นะคะ

ภายในซอยจะมีแผงขายอาหารมาตั้งขายเป็นระยะๆ มองในแง่หาของกินง่ายมันก็ดีค่ะ แต่สำหรับคนขับรถ ในซอย 2 เลนค่อนข้างแคบแบบนี้บางทีก็ทำให้ขับรถเข้าออกตะกุกตะกักอยู่บ้าง

เข้าซอยไปประมาณ 240 เมตร ก็จะเจอโครงการ The Reserve เกษมสันต์ 3 อยู่ทางซ้ายมือแล้วค่ะ เราไปดูรอบๆโครงการกันต่อนะคะ

โครงการ The Reserve เกษมสันต์ 3 เป็นคอนโด Low Rise สูง 8 ชั้น รอบๆโครงการติดฝั่งทิศตะวันออก จะเป็นบ้านพักอาศัยสูง 3 – 4 ชั้น, คอนโดปทุมวันโอเอซิสสูง 8 ชั้น ถัดมาเป็นถนนซอยเกษมสันต์ 3 ซึ่งเป็นซอยตันนะคะ แต่ปลายซอยจะมีสะพานสำหรับเดินข้ามคลองแสนแสบอยู่ ฝั่งตรงข้ามถนนกับโครงการจะเป็นคอนโดมิเนียมสูง 8 ชั้น ชื่อคอนโด One Siam
ทิศเหนือของโครงการอยู่ติดคลองแสนแสบ และทิศใต้ติด 74 Mansion เป็นอพาร์ทเม้นท์สูง 6 ชั้น ส่วนด้านหลังโครงการทิศตะวันตกเป็นพื้นที่ดินเปล่าและบ้านสูง 2 ชั้น เรามาดูภาพรอบๆโครงการกันต่อค่ะ

จากถนนในซอยมองเข้าไปในโครงการ The Reserve เกษมสันต์ 3 จะเป็นทางเดินยาวเข้าไปแบบนี้

จากหน้าโครงการ มองออกไปที่ปากซอยเกษมสันต์ 3 จะเห็นว่าอาคารที่พักอาศัยในซอยนี้ส่วนใหญ่จะเป็นคอนโดมิเนียม low rise และโรงแรม หรือเซอร์วิสอพาร์ทเม้นท์ซะเป็นส่วนใหญ่ค่ะ

ฝั่งตรงข้ามโครงการเลยคือ Condo One Siam เป็นคอนโดมิเนียมสูง 8 ชั้น

จากหน้าโครงการมองไปที่ท้ายซอยค่ะ

ท้ายซอยจะเป็นทางตันสำหรับรถนะคะ คือรถผ่านไม่ได้แต่คนยังเดินข้ามสะพานข้ามคลองแสนแสบไปได้ แถวใต้สะพานมีร้านส้มตำ ร้านอาหารอิสลามอยู่ อาจจะดูไม่หรูหราก็จริง แต่เห็นคนมานั่งกินกันหลายคนและก็ยังดีที่ทำให้ส่วนริมคลองนี่ไม่เปลี่ยวนะคะ

สถานที่สำคัญใกล้โครงการ
ตัวโครงการ

เริ่มกันที่ Ground Floor Plan หรือส่วนชั้นล่างกันก่อนเลยนะคะ จากในแปลนจะเห็นว่ามีทางเข้าอยู่ด้วยกันทั้งหมด 2 ทาง คือ Sub Entrance หรือทางเข้ารองข้างๆคอนโดปทุมวัน Oasis ที่จากต้นซอยจะถึงก่อนและตรงเข้าไปที่ตึก A เลยโดยไม่ต้องผ่านลานส่วนกลางเหมือนทางเข้าหลักฝั่งตรงข้าม Condo One Siam
โครงการ อาคารสูง 7 ชั้น พร้อมกับชั้นใต้ดิน 1 ชั้น และ2 อาคาร ที่จอดรถทั้งหมดจะอยู่ที่ชั้นใต้ดิน คิดเป็น 50% ของจำนวนยูนิตโครงการค่ะ พื้นที่ส่วนกลางก็จะอยู่ที่ชั้นล่างแทบทั้งหมดค่ะ จากลานกลางแจ้งที่เป็นจุด Drop off หน้า Lobby ที่เชื่อมเข้าสู่ตัวอาคารและพื้นที่ส่วนกลางชั้นล่างอย่างสระว่ายน้ำกลางแจ้ง, Tea Room, ห้องฟิตเนสและห้องน้ำแยกชาย-หญิง และมุมนั่งเล่นในโครงการ และส่วนของออฟฟิศนิติบุคคล โถงลิฟต์มีลิฟท์มาให้ 2 ตัวต่ออาคาร ทั้งหมดตกแต่งมาในแนวโมเดิร์นคลาสสิค ซึ่งตอนนี้ก็สร้างเสร็จพร้อมอยู่แล้วนะคะ เราไปดูภาพอาคารชั้นล่างกันเลยค่ะ

จากทางเข้าติดถนนในซอยเกษมสันต์ 3 จะมีป้ายโครงการด้านหน้าและป้อมรปภ. พื้นถนนทางเข้าโครงการเป็นคอนกรีตสแตมป์

ถนนเข้าสู่ด้านในโครงการยาวประมาณ 30 เมตร เป็นกำแพงตกแต่งสไตล์คลาสสิคสีเทา ติดไฟสำหรับตอนกลางคืนมาให้เรียบร้อย

เข้ามาจะเป็นลานกว้างและอาคารสีขาว เทา และแต่งขอบดำเพิ่มมิติให้ตัวอาคาร จากด้านหน้ามองเห็นล็อบบี้ที่ออกแบบมาเป็นศาลากระจกเพดานสูง แต่งเสาและเฟรมสีดำดูเด่นและสร้างบรรยากาศทางเข้าโครงการในสไตล์นิวคลาสสิคได้หรูหราดี

มองไปทางขวาเป็นอาคาร B ที่ตอนนี้อยู่ระหว่างการเก็บความเรียบร้อยหน้างาน

ทางฝั่งซ้ายมือเป็นอาคาร A ที่เดี๋ยววันนี้เราจะพาเข้าไปสำรวจกันค่ะ

มองกลับไปที่ทางเข้าหลักจะเห็นรั้วโครงการสีเทาสูง 3 เมตร ติดรั้วโครงการเป็นบ้านพักอาศัยสูง 2-3 ชั้น

ทั้งอาคาร A และ B จะมีทางลงไปที่จอดรถชั้นใต้ดินของอาคารอยู่นะคะ

สังเกตว่างานกราฟฟิคอาคารใช้คอนเซ็ปคลาสสิคด้วยเหมือนกัน อย่างป้ายที่จอดรถนี่ก็เป็นกราฟฟิครูปรถม้าแบบยุโรป

ทางลงไปส่วนลานจอดรถชั้นใต้ดินจะมีรั้วไม้กระดกกั้นอยู่ เข้าออกโดยระบบ Access Card ระยะใกล้

ลานจอดรถเป็นลานคอนกรีต เสาทาสีเทา เพดานทาสีขาว ติดไฟมาให้สว่างเรียบร้อยดี

จากลานจอดรถจะมีลิฟต์ขึ้นไปส่วนที่พักอาศัยได้เลย ลิฟต์ที่นี่เป็นแบบล็อกชั้น คือใช้การ์ดสแกนก่อนถึงจะกดชั้นได้นะคะ

เข้าไปดูส่วน Lobby ตรงกลางกันต่อค่ะ

ตอนนี้ก็จะเป็นส่วนของสำนักงานขาย

ภายในตกแต่งมาแนวคลาสสิคหรูหรา ด้วยโทนสีขาวดำ ทั้งพื้นลายหมากรุก ผนังสีขาวกรุคิ้วสีดำ เพดานสูง ฝั่งนี้มองไปทางขวาเป็นประตูออกไปอาคาร B จะเห็นเคาน์เตอร์ประชาสัมพันธ์สีขาวตั้งอยู่

มองไปทางฝั่งซ้ายจะเป็นประตูออกไปสระว่ายน้ำ พื้นที่ส่วนกลางต่างๆ และทางเดินไปอาคาร A ค่ะ

ต้องสแกนบัตรผ่านประตูเข้าไปนะคะ

เปิดเข้าไปก็จะเห็นสระว่ายน้ำกลางแจ้งของโครงการ เป็นสระระบบเกลือ ขนาด 6 x 32 m. หน้าสระมีสระเล็กๆก่อนลงสระ และที่นั่งข้างสระมาให้หลายจุด พื้นเป็นคอนกรีตสแตมป์

มีที่นั่งแบบม้านั่งรูปตัว U มาให้ 2 จุด ด้านหลังปลูกรั้วต้นไม้เพื่อช่วยเพิ่มความเป็นส่วนตัวของส่วนที่พักอาศัยในชั้น 1

ถัดมาหลัง Lobby จะมีลานวางโต๊ะเก้าอี้เอาไว้ให้ 3 ชุด ชุดนึงมีเก้าอี้ 4 ตัวค่ะ

จากสระว่ายน้ำ มองกลับไปที่ล็อบบี้ จะเห็นบ่อเล็กก่อนลงสระ ว่ายกพื้นมาให้ใช้นั่งเล่นกันได้เช่นกัน

สระเป็นบ่อน้ำล้น ขอบสระโรยหินแม่น้ำสีน้ำตาล และจะเห็นที่พื้นสระว่ามีขั้นบันไดลงสระอยู่เป็นสเต็ปอย่างในภาพ ก็คือจะไม่มีราวเหล็กลงสระแบบทั่วไปนะคะ เนื่องจากอยากให้เป็นบรรยากาศคลาสสิคแบบสวนอังกฤษนั่นเอง

จุดล้างตัวก่อนลงสระ เป็น Rain Shower 1 ที่แบบนี้

ข้างสระตามแนวยาวจะมีที่นั่งแบบปรับเอนนอนเล่นข้างสระมาให้เป็นแนว

เป็นที่นั่งแบบเอาต์ดอร์หวายเทียมสีดำ เบาะสีขาว พร้อมโต๊ะกาแฟมาให้อย่างที่เห็น

นอกจากนี้ยังมีที่นั่งแบบศาลาเล็กๆพร้อมม่านสีขาวแบบนี้ในวันที่อยากหลบแดดอีกด้วย ลานข้างสระส่วนท้ายหน้าอาคาร A นี่กว้างขวางดีค่ะ สามารถใช้เป็นลานจัดกิจกรรมได้ง่าย

มองกลับไปที่ฝั่ง Lobby อีกที จะเห็นว่าสองฝั่งสระปลูกต้นไม้ไว้ทั้งสนามหญ้า ไม้พุ่ม รั้วไม้พุ่ม และไม้ยืนต้นเป็นแนว เพื่อสร้างบรรยากาศที่ร่มรื่นให้กับตัวสระ

พื้นที่ส่วนกลางหลักๆที่เหลือจะอยู่ใต้อาคาร A ค่ะ เข้าไปดูกันต่อเลย

ส่วนนี้เป็นชุดที่นั่งพักผ่อนในร่ม จัดมาให้เป็นชุดโต๊ะเก้าอี้ 2 ชุด ชุดนึงมีเก้าอี้ 4 ตัว เป็นมุมที่อยู่หน้าห้องน้ำชาค่ะ

ห้องน้ำชา หรือ Tea Room เป็นฟังก์ชั่นที่เข้ากับคอนเซ็ปคลาสสิคอังกฤษของโครงการได้ดีค่ะ

ตัวห้องน้ำชาออกแบบมาได้หรูหราน่าใช้งานดีค่ะ พื้นปูแผ่นไม้ลายก้างปลา ผนังสีเทาอ่อนกรุคิ้ว และเฟอร์นิเจอร์สไตล์คลาสสิคแบบร้านน้ำชาที่เหมาะจะมานั่งเล่นอ่านหนังสือตอนบ่ายๆ หรือพบปะพูดคุยกับเพื่อนบ้านในโครงการด้วยกัน

ในห้องน้ำชาจะมี Island พร้อมเก้าอี้ สำหรับจัดเตรียมขนม หรืออาหาร เคาน์เตอร์ด้านหลังมีโถใส่ชากาแฟและน้ำตาลไว้บริการด้วยค่ะ และจะมีช่องเจาะเพดานโค้งไปสู่ส่วนที่นั่งที่เห็นวิวสระว่ายน้ำ

ส่วนที่นั่งที่เห็นวิวสระว่ายน้ำจัดมาแบบร้านกาแฟแนวคลาสสิคแบบนี้

ตรงกันข้ามกับห้องน้ำชา จะเป็นห้องจดหมาย

ภายในห้องจดหมายค่ะ

เข้าไปดูห้องฟิตเนสกันต่อ

ห้องฟิตเนสโครงการเป็นห้องแนวยาวหันไปหาวิวสระว่ายน้ำ ผนังฝั่งตรงข้ามหน้าต่างติดกระจกเงาเป็นแนวยาว มีเครื่องเล่นมาให้ประมาณ 10 เครื่อง

ในห้องฟิตเนสมีลู่วิ่งมาให้สามตัว

เครื่องปั่นจักรยานอีก 2 ตัว

เครื่องซิทอัพ 1 ตัว ชุดเวทยกน้ำหนัก 1 ชุด

เครื่องเล่นกล้ามอีก 3 เครื่อง

ข้างห้องฟิตเนสจะเป็นประตูโค้งไปห้องน้ำแยกชายหญิง

ห้องน้ำชายถึงก่อนอยู่ฝั่งซ้ายมือ ส่วนห้องน้ำหญิงตรงไปค่ะ

เราพาเข้าไปดูภายในห้องน้ำหญิงกันต่อค่ะ สังเกตป้ายหน้าห้องน้ำหญิง กระโปรงสุ่มไก่ตามคอนเซ็ปมาเลย

เข้ามาจะมีส่วนล็อกเกอร์ไว้ให้เก็บของก่อนลงสระว่ายน้ำ

มีอ่างล้างมือมาให้ 2 อ่าง

เข้ามาจะมีทางแจกไปส่วนห้องอาบน้ำและห้องโถสุขภัณฑ์แบบนี้

ภายในห้องอาบน้ำจะมีที่นั่งให้ใช้วางของหรือเปลี่ยนเสื้อผ้าได้โดยแยกพื้นส่วนเปียกส่วนแห้งมาให้ ถือว่าใส่ใจรายละเอียดดีค่ะจุดนี้ต้องชมเลย

ห้องโถสุขภัณฑ์

ห้อง Steam หรือห้องอบไอน้ำ

ทางเดินด้านข้างที่ชั้น 1 ของอาคาร A จะมีประตูเปิดออกไป Sub Entrance ได้ แต่ตอนนี้ปิดอยู่นะคะ

เข้าไปดูภายในอาคารกันต่อ เราเข้าฝั่งอาคาร A ช่องทางเข้าเจาะเป็นทรงโค้ง ทำให้เสาและคานดูมีความต่อเนื่องกัน

ก่อนทางเข้าไปโถงลิฟต์ของอาคาร จะเป็นลานคอนกรีตสแตมป์ และมีชุดที่นั่งแบบเอาต์ดอร์มาให้ 2 ชุด กรณีนั่งรอหรือนั่งเล่นก่อนขึ้นอาคารค่ะ

ทางเข้าไปโถงลิฟต์ต้องสแกนบัตรเข้าไปค่ะ

โถงลิฟต์จะมีลิฟต์ 2 ตัว ขอบประตูลิฟต์กรุลายหินอ่อนสีขาว

ลิฟต์เป็นแบบล็อกชั้น คือต้องแตะบัตรก่อนกดชั้นค่ะ หน้าตาแผงระบบลิฟต์ดูทันสมัยดี

มาดูแปลนชั้น 2 กันต่อนะคะ ก็คือจะแบ่งเป็น 2 อาคาร คือ A และ B เป็นอาคารรูปตัว L กลับด้านทั้งคู่ โดยอาคาร A นี่ก็มีข้อดีคืออยู่ใกล้พื้นที่ส่วนกลางหลักๆอย่างสระว่ายน้ำ ห้องน้ำชา หรือห้องฟิตเนสมากกว่าอาคาร B และยังมีทางเข้า Sub Entrance ซึ่งอยู่ใกล้ถนนใหญ่มากกว่าอีกด้วย
แต่อาคาร A ก็มีข้อด้อยกว่าอาคาร B คือ ส่วนอาคาร Aวิวนอกจะอยู่ทางฝั่งทิศใต้ซึ่งเจอแดดแทบทั้งวันและล้อมติดด้วยคอนโดมิเนียมเพื่อนบ้านซึ่งสูง 6 – 7 ชั้นทั้งทิศใต้และทิศตะวันออกเลย ซึ่งยูนิตที่อยู่ซีกนี้ก็จะเป็นยูนิตห้องเล็ก 28 ตารางเมตรซะเป็นส่วนใหญ่ค่ะ ส่วนวิวด้านในของอาคาร A นี่จะเห็นวิวสระและสวนส่วนกลางสวยกว่าอาคาร B ซึ่งจะอยู่ทางลานด้านหน้าและ Lobby ซะมากกว่า
อาคาร B จะอยู่ติดกับคลองแสนแสบ มีฝั่งที่เป็นวิวติดด้านนอกมองออกไปยังคลองแสนแสบทางทิศเหนือนี่จะได้แสงดี ลมดี และวิวที่โปร่งโล่ง มองไปได้ไกลกว่า แต่คนที่เลือกชั้นล่างๆอาจมีเสียงรบกวนจากเรือด่วน และกลิ่นของน้ำในคลองแสนแสบอยู่บ้าง

ชั้น 3 – 7 การจัดผังแทบจะไม่แตกต่างกับชั้น 2 เลยค่ะ ต่างกันที่มีความหนาแน่นยูนิตสูงสุดของอาคาร A อยู่ที่ 23 ยูนิต และอาคาร B ที่ 19 ยูนิต ซึ่งจะมากกว่าชั้น 2 เนื่องจากบางยูนิตในชั้น 2 จะหายไปเนื่องจากเพดานสูงแบบ Double Space ในชั้น 1 ค่ะ

ภาพโถงทางเดินหน้าลิฟต์ชั้น 2 -7 จะเป็นโถงเปิดโล่งแบบ Open Air รับแสงรับลมด้านนอกและมองลงไปยังคอร์ตยาร์ดด้านล่างได้

โถงทางเดินส่วนยูนิตที่พักอาศัยกว้างประมาณ 1.5 เมตร เพดานติดไฟดาวน์ไลท์มาให้แบบนี้
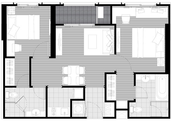
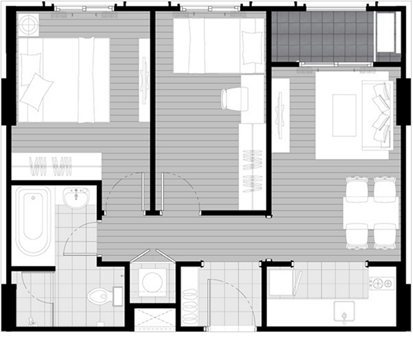
แปลนห้อง
โครงการมีห้อง 3 แบบให้เลือกนะคะ คือแบบ Studio, 1 Bedroom, 2 Bedrooms

แปลนยูนิตแบบ Studio มีขนาดตั้งแต่ 27.87 – 28.33 ตร.ม.

แปลนยูนิต 1 Bedroom มีขนาดตั้งแต่ 38.41 – 39.61 ตร.ม.

แปลนยูนิต 2 Bedrooms มีขนาด 57.25 ตร.ม. แบบ 2 ห้องนอน 2 ห้องน้ำ นี่ผังห้องจะมีการจัดผังที่ต่างกันอยู่นะคะ อย่างผังห้องด้านบนเข้ามาจะเป็นครัวและห้องนั่งเล่นที่มีระเบียงอยู่ตรงกลาง ก่อนแยกสองฝั่งไปห้องนอนซึ่งอยู่คนละฝั่งกัน

แปลนยูนิต 2 Bedrooms มีขนาด 57.25 ตร.ม. ผังห้องด้านบนเข้ามาจะเป็นโถงแจกไปห้องนอน 2 ห้อง และจัดครัวกับห้องนั่งเล่นไว้ติดริมฝั่งขวา และมีห้องน้ำห้องเดียวค่ะ
ห้องตัวอย่าง

ห้องตัวอย่างที่เราจะพาไปดูกันเป็นห้องแบบ Studio ขนาด 28 ตารางเมตร จัดเป็นห้องขนาดเล็กที่สุดของโครงการค่ะ เปิดเข้าไปจะเป็นครัว ต่อด้วยห้องนอนเลย ซึ่งดูมีระยะใช้งานกำลังสบายๆ แต่จะไม่มีห้องนั่งเล่นนะคะ คือเน้นห้องนอน แบบว่าดูทีวี กินข้าว ทำงานในห้องนอนไปเลย จากห้องนอนจะมีส่วน Walk-in Closet และเข้าไปยังห้องน้ำค่ะ ไปดูภาพของจริงกันเลยค่ะว่าเป็นอย่างไร

ประตูที่ได้จะเป็นบาน HDF ทำสีเทาขนาด 0.9 x 2.2 m. มีเซาะร่องเป็นลายได้แบบที่เห็น และมีตาแมวไว้ส่องดูคนที่มาเคาะประตูเพื่อความปลอดภัย

มือจับเป็นแบบเขาควายสแตนเลสสีเงิน ด้านนอกเป็นช่องเสียบกุญแจด้านล่าง ด้านในเป็นลูกบิดหมุนล็อก

ธรณีประตูเข้าห้องปูกระเบื้องและยกขึ้นสูงจากพื้นทางเดินด้านนอกประมาณ 1 – 2 เซนติเมตร ช่วยกันฝุ่นผงจากพื้นทางเดินไม่ให้เข้าไปด้านในห้อง ส่วนพื้นในห้องส่วนแรกเป็นกระเบื้องเซรามิกขนาด 30 x 30 cm. สีขาวลายเทา

เปิดประตูเข้าไปจะเจอส่วนครัวมองต่อเนื่องไปที่ส่วนห้องนั่งเล่นที่เปิดออกไประเบียงได้ เพดานห้องสูง 2.6 เมตร ไฟติดเพดานเป็นไฟดาวน์ไลท์

มองกลับไปที่ประตูทางเข้าห้อง ส่วนครัวปูกระเบื้องและมีเคาน์เตอร์ชุดครัวมาให้เป็นแนวยาว และมีชั้นลอยติดมาให้ของจริงได้ตามนี้ ระยะใช้งานสบายๆไม่อึดอัดดี

เปิดบานตู้ชุดเคาน์เตอร์ครัวฝั่งขวามือให้ดูก่อนนะคะ ถือว่าใส่ใจรายละเอียดและออกแบบมาได้ดี คือด้านล่างจะมีชั้นวางของแบบมีบานปิดสีขาว

ท้อปเคาน์เตอร์เป็นหินแกรนิตสีดำ อ่างล้างจานสแตนเลสแบบ 1 หลุม เตาไฟฟ้าแบบ 2 หัว ด้านบนติดเครื่องดูดควันมาให้พร้อม หลังเคาน์เตอร์ติด Backsplash เป็นกระเบื้องเคลือบสีขาวกันผนังเปื้อนมาให้ ทำให้เช็ดทำความสะอาดได้ง่าย

สำหรับเคาน์เตอร์ครัวในห้อง 28 ตรม. ถือว่าได้เคาน์เตอร์มายาว และมีพื้นที่ประกอบอาหารค่อนข้างเยอะทีเดียว

มือจับเป็นแนวคลาสสิควินเทจเข้าชุดกันแบบนี้

เปิดบานตู้ชุดเคาน์เตอร์ฝั่งซ้ายมือใกล้ประตูให้ดูนะคะ ถือว่าใส่ใจรายละเอียดและออกแบบมาได้ยืดหยุ่นดีค่ะ คือด้านล่างจะมีชั้นวางรองเท้าและชั้นวางของแบบมีบานปิดมาให้ ท้อปเคาน์เตอร์เป็นหินแกรนิตสีดำ สามารถใช้เป็นที่ประกอบอาหาร หรือใครไม่ชอบทำอาหารจะใช้เป็นที่วางของก็ได้ค่ะ ด้านบนเป็นบานปิดซ่อนงานระบบไฟฟ้าไว้ด้านใน

เข้าไปดูส่วนห้องนอนกันต่อค่ะ

ติดกับเคาน์เตอร์ชุดครัวมีมุมสำหรับวางตู้เย็นมาให้ ธรณีประตูห้องนอนเป็นไม้ลามิเนต ส่วนพื้นห้องนอนจะเป็นพื้นลามิเนตหนา 8 มม.

ส่วนห้องนอนวางเตียงขนาด 5 ฟุตมาให้ ฐานเตียงเราได้ตามที่เห็น พร้อมโต๊ะข้างสองฝั่งเตียงของจริงได้ตามนี้ ระยะเดินรอบเตียงสบายๆค่ะ

ผนังฝั่งปลายเตียงบิล์ทอินโต๊ะทำงานมาให้ ของจริงได้ตามนี้นะคะ ห้องตัวอย่างวางของมาให้ดูเป็นไอเดีย

เปิดตู้ให้ดูด้านใน

พอวางโต๊ะไปแล้วปลายเตียงเหลือระยะเดินประมาณ 70 เซนติเมตร

จากปลายเตียงจะเป็นทางเดินไปประตูบานเลื่อนเฟรมอลูมิเนียมสีดำแบบ 2 บาน มือจับเซาะร่องมาตรฐาน

พื้นระเบียงลดระดับลงต่ำกว่าธรณีประตูประมาณ 5 ซม. ตัวพื้นระเบียงปูกระเบื้องเซรามิกผิวด้านสีเทาขนาด 30 x 30 ซม.

ที่ระเบียงแขวนแอร์คอมเพรสเซอร์มาให้พร้อมกริลแอร์เฉียงเพื่อดันลมออกไปด้านนอกระเบียง ที่ระเบียงจะมีเต้าเสียบปลั๊กไฟพร้อมฝาครอบกันน้ำและก๊อกน้ำมาให้ กรณีซักล้างที่ระเบียง

ข้างเตียงฝั่งติดระเบียงมีระยะเดินประมาณ 40 เซนติเมตร

มีมุมนั่งเล่นติดหน้าต่างมาให้ข้างเตียงแบบนี้

มองไปที่อีกฝั่งของห้องนอนจะเป็นทางไปห้องน้ำ ผ่าน Walk in closet

ข้างเตียงฝั่งทางเดินไปห้องน้ำกว้างประมาณ 50 เซนติเมตร

สวิตช์ไฟของ Bticino สีขาว

ทางเดินไปห้องน้ำมีตู้เสื้อผ้าแบบบานเปิดมาให้ 2 ฝั่งของจริงได้ตามนี้

เปิดบานตู้ให้ดูนะคะ ด้านในจะมีส่วนรางแขวนเสื้อผ้าล่างบนและชั้นวางของพร้อมลิ้นชักมาให้

ประตูห้องน้ำเป็นประตูบานเลื่อน 2 ฝั่งแบบนี้

ห้องน้ำทำขนาดมากำลังดีค่ะ แยกส่วนแห้งและส่วนเปียกมาให้ ระยะใช้งานกำลังสบายๆไม่อึดอัด สุขภัณฑ์เป็นของ American Standard พื้นปูกระเบื้องเซรามิกผิวด้านสีขาวลายหินอ่อนแบบไวท์คาราร่าขนาด 30 x 30 ซม.

อ่างล้างมือทำเคาน์เตอร์มาให้วางของขนาดพอดีความกว้างกำแพง ซึ่งก็มีระยะให้วางของแบบกำลังดี และมีที่เก็บของมาให้ด้านล่างด้วย

เทียบขนาดฝ่ามือกับอ่างให้ดูระยะใช้งานค่ะ

โถสุขภัณฑ์ของ American Standard ด้านข้างผนังติดตั้งรางแขวนทิชชู่ และที่แขวนผ้าเช็ดตัวมาให้

ผนังปูกระเบื้องสีขาวมาให้จรดเพดาน เหนือโถสุขภัณฑ์มีพัดลมดูดอากาศมาให้

ส่วนเปียกในห้องน้ำมีฉากกั้นส่วนเปียกเป็นกระจกเทมเปอร์มาให้ พร้อมมือจับรูปตัว U ใช้เป็นรางแขวนผ้าเช็ดตัวได้ ก่อธรณีกั้นส่วนเปียกขึ้นมาประมาณ 5 เซนติเมตร

หน้าตาชุดฝักบัวดูเป็นแนววินเทจนิดๆ น่ารักดีค่ะ ไม่ค่อยเห็นสเป็คแบบนี้มากนัก เทียบขนาดฝ่ามือกับฝักบัวมาให้ดูจะเห็นว่ามีขนาดใหญ่ดีค่ะ มีที่วางสบู่ขนาดกะทัดรัดติดมากับชุดฝักบัว

และมีชั้นวางของพื้นกระจกมาให้ วางขวดแชมพูให้ดูระยะใช้งาน จะเห็นว่าวางได้หลายขวดนะคะ
ดูวิดิโอโครงการ

ราคา
– Studio ขนาด 27.87 – 28.33 sq.m. ราคา 4.68 – 4.89 ล้านบาท เงินจอง 50,000 บาท เงินทำสัญญา 100,000 บาท
– 1 Bedroom ขนาด 38.41 – 39.61 sq.m.ราคา 6.33 – 7.19 ล้านบาท เงินจอง 50,000 บาท เงินทำสัญญา 150,000 บาท
– 2 Bedrooms ขนาด 57.25 sq.m. ราคา 10.32 – 10.53 ล้านบาท เงินจอง 100,000 บาท เงินทำสัญญา 200,000 บาท
ขายแบบ Fully Furnished พร้อมเครื่องปรับอากาศ
ค่าส่วนกลาง : 65 บาท/ตร.ม./เดือน (เก็บล่วงหน้า 2 ปี)
ค่ากองทุน : 500 บาท/ตร.ม. (ชำระครั้งเดียว ณ วันโอน)
สอบถามราคาเพิ่มเติมกรุณาติดต่อสำนักงานขายเพื่อข้อมูลที่อัพเดตที่สุดค่ะ*
สรุป
ทำเลที่ตั้งโครงการ – คอนโด The Reserve เกษมสันต์ 3 ตั้งอยู่ในซอยเกษมสันต์ 3 ห่างจาก BTS สนามกีฬาแห่งชาติประมาณ 350 เมตรค่ะ ที่ตั้งโครงการอยู่ฝั่งขาเข้าของถนนพระราม 1 วิ่งไปทางแยกปทุมวัน สยาม ชิดลม เพลินจิต อโศก สีลม ถ้าใครทำงานในเมืองโซนนี้ ขับรถจากโครงการไปก็สะดวกมากค่ะ เพราะก็อยู่ในโซนใจกลางเมืองด้วยกันอยู่แล้ว การวิ่งไปจุดต่างๆในย่าน CBD จริงๆก็ไม่ได้ห่างกันซักเท่าไหร่
ความอุดมสมบูรณ์ – อุดมสมบูรณ์มากค่ะย่านนี้ จากที่ตั้งโครงการในซอยเกษมสันต์ 3 เราสามารถเดินออกจากห้องไปดูหอศิลป์กรุงเทพ BACC,ห้าง Tokyu, MBK เดินบน Sky walk ของ BTS สนามกีฬาข้ามแยกปทุมวันเชื่อมไปสถานีสยามได้เลย ข้ามไปก็จะเจอ สยามสแควร์, สยามดิส, สยามพารากอน, สยามเซ็นเตอร์, สยามสแควร์วันห้างเปิดใหม่ ได้อย่างสบายๆ
ใครเรียนจุฬาวันไหนรีบไปเรียนนั่งมอเตอร์ไซค์หน้าปากซอยไป 5-10 นาทีถึงคณะได้ชิวๆ หรือจะเดินมาขึ้น BTS เที่ยว ห้างใหญ่ติด BTS ใกล้ๆให้ช้อปปิ้งก็มีเยอะ Terminal 21 ที่ BTS อโศก, Central Embassy, Central ชิดลม ที่ BTS เพลินจิต หรือจะไปหาอะไรทานที่ Emporium หรือห้างเปิดใหม่ Emquartier และเดินเล่นที่สวนสาธารณะเบญจสิริ ก็ลง BTS พร้อมพงษ์ได้สบายๆค่ะ ถ้าอยากซื้อของสดเข้าบ้าน ไม่ไป Tokyu ก็จะมี Lotus อยู่ใกล้ๆ เดินไปซื้อของสดเข้าห้องได้สบายๆค่ะ
การเดินทางด้วยรถยนต์ส่วนตัว – สำหรับคนขับรถ ถนนเส้นหลักของโครงการคือถนนพระราม 1 ซึ่งก็เป็นโซนที่พักอาศัยของคนอยู่ย่านสยามนี้นะคะในขณะที่ถนนพญาไทหรือเพชรบุรีจะน้อยกว่าและมีพวกอาคารสำนักงานมากกว่า ถ้าจะขับเข้าเมืองไปอโศกหรือสุขุมวิทก็ขับตามทางไปตรงๆง่ายๆเลยค่ะไม่ซับซ้อน เพราะเป็นถนนพระราม 1 มุ่งหน้าไปทางแยกปทุมวัน วิ่งเข้าเมืองย่าน CBD อยู่แล้ว จากแยกปทุมวันตรงไปแยกราชประสงค์ตรงไปเป็นเพลินจิต สุขุมวิท อโศก ส่วนคนที่ทำงานย่านสีลมพอเจอแยกราชประสงค์วิ่งลงทางทิศใต้หรือวิ่งทางถนนราชดำริลงไปจะเจอถนนสีลมแล้วค่ะ
สำหรับคนที่ใช้ทางด่วนนะคะ คือจุดขึ้นลงมันไม่ได้อยู่ที่เส้นพระราม 1 ตรงๆ แต่จากโครงการ เราขับมาแยกปทุมวันเหมือนเดิม แล้วเลี้ยวซ้ายขึ้นไปทางถนนพญาไทจนเจอแยกราชเทวี เลี้ยวซ้ายอีกทีไปทางถนนเพชรบุรีทิศตะวันตกมุ่งหน้าไปเรื่อยๆจะเจอถนนบรรทัดทอง และไปตัดกับถนนพระราม 6 ที่แยกอุรุพงษ์ ซึ่งตรงนี้ก็คือทางขึ้น-ลงทางด่วนยมราชนั่นเองค่ะ
ส่วนถนนเพชรบุรีทิศตะวันออก วิ่งไปเรื่อยๆก็จะไปเจอทางขึ้นทางด่วนไปบางนา-ดาวคะนอง ที่เลยถนนวิทยุไปอีกหน่อย ก่อนจะถึงนานาเหนือที่วิ่งไปเข้าอโศก สุขุมวิทได้เหมือนกัน
การเดินทางด้วยรถสาธารณะ – สำหรับคนไม่ใช้รถ ด้วยระยะห่างเพียงแค่ประมาณ 550 เมตรจากโครงการถึงแยกปทุมวันก็คงจะบ่งบอกได้แล้วว่า โครงการนี้อยู่ในใจกลางกรุงเทพมหานครแค่ไหน และการที่อยู่ห่างจากสถานีสยามแค่เพียงสถานีเดียวก็ย่อมมีความแตกต่างกับคนที่ต้องนั่งรถไฟฟ้ามาจากแบริ่งเพื่อมาสยามแน่นอน ระยะเวลาที่ใช้มันต่างกันเกือบ 10 เท่า (3 นาทีกับครึ่งชั่วโมง) ทำให้การใช้ชีวิตอยู่แถวนี้ดูจะเป็นเรื่องง่ายไปเลย
จากสถานีสนามกีฬาแห่งชาติรถไฟฟ้าก็จะวิ่งไปทางสายสีลม สนามกีฬาแห่งชาติ – บางหว้า คนที่ทำงานโซนสีลม สาทร ก็ไม่ต้องเปลี่ยนสถานีค่ะ สามารถนั่งยาวไปลงได้เลย แต่ถ้าทำโซนเพลินจิต อโศก ทองหล่อ ก็นั่งมาสถานีเดียวถึงสถานีสยามซึ่งเป็นสถานี Interchange หมอชิต – แบริ่ง แล้วเปลี่ยนสายไปทางแบริ่งต่อนั่นเอง
สำหรับคนที่ต้องเดินทางไปต่างประเทศหรือต้องไปสนามบินบ่อยๆ จะเดินทางไปต่อ Airport link ไปสุวรรณภูมิที่สถานีพญาไทก็ทำได้ง่ายค่ะ ก็คือนั่ง BTS ไปสถานีพญาไทซึ่งอยู่ห่างออกไป 3 สถานีแล้วต่อ Airport link พญาไท เข้าไป ชั่วโมงเร่งด่วนรถติดมากๆเดินออกมาปากซอยแค่ 100 เมตรก็มีวินมอเตอร์ไซค์รับจ้างพาหลบรถติดไปไหนมาไหน รถ Taxi หรือตุ๊กๆ แถวนี้ก็หาง่าย หรือจะขึ้นเรือโดยสารคลองแสนแสบที่ท่าเรือสะพานหัวช้าง ไปเที่ยวย่านเก่าๆอย่างไปลงท่าเรือผ่านฟ้าลีลาศ หรือจะไปเปลี่ยนสายที่สายที่ท่าเรือประตูน้ำวิ่งไปทางทองหล่อหรือบางกะปิได้
ทำให้การคมนาคมในย่านสยามโดยไม่ใช้รถยนต์จะสะดวกกว่าการใช้รถในระยะใกล้ๆอย่างที่ยกตัวอย่างไปค่ะ ซึ่งก็เป็นเหตุผลหลักๆที่ย่านนี้มีโรงแรมเยอะ เพราะนอกจากจะใกล้ห้างและแหล่งช้อปปิ้งมากมายแล้ว ความสะดวกสบายในการเดินทางก็เป็นอีกปัจจัยสำคัญที่ทำให้บรรดานักท่องเที่ยวชอบมาพักที่โซนนี้ค่ะ
การออกแบบโครงการและวัสดุ – ตัวห้องขายแบบ Fully Furnished คือมีชุดครัวและชุดเฟอร์นิเจอร์และเครื่องปรับอากาศมาให้ ซึ่งสเป็คมาสวยและมีความใส่ใจในรายละเอียด และมีสไตล์ที่เลือกมาให้เข้ากับคอนเซ็ปคอนโดแบบยุโรปคลาสสิค เฟอร์นิเจอร์สีเข้ากันทั้งชุดและช่วยเพิ่มพื้นที่ใช้งานให้กับตัวห้องได้ดี สุขภัณฑ์เป็นของ American Standard พื้นห้องน้ำและห้องครัวปูกระเบื้องเซรามิกสีขาวลายหินอ่อนสีเทาขนาด 30 x 30 ซม. และฝ้าเพดานสูง 2.6 m. พื้นห้องนอนเป็นลามิเนต 8 มม.
สิ่งอำนวยความสะดวก – ออกแบบมาสวย มุมตึกต่างๆก็คิดมาแล้วว่าจะให้ถูกบังน้อยที่สุด และเห็นวิวสวนส่วนกลางที่คอร์ทยาร์ดซึ่งถือเป็นวิวที่เปิดโล่งและดีกว่าวิวจากบริบทด้านนอกในภาพรวม และคุมคอนเซ็ปแบบยุโรปคลาสสิคได้เป็นอย่างดี ทั้งแง่ของสถาปัตยกรรมภายนอกและภายใน รวมถึงงานดีไซน์ต่างๆและสเป็ควัสดุที่เลือกมาใช้ก็คุมธีมได้ดี สระว่ายน้ำความกว้าง 6 เมตร ยาว 32 เมตร มี Tea Room หรือห้องน้ำชาที่ดูน่าใช้งาน และมีฟิตเนสพร้อมกับเครื่องเล่นประมาณ 10 เครื่อง กับ Lobby ที่ดูหรูหราและมีเพดานสูงซึ่งสร้างความประทับใจได้ดี กับค่าส่วนกลาง 65 บาทต่อตารางเมตร ถือว่าเป็นโครงการที่ทำพื้นที่ได้สวย และเก็บรายละเอียดได้ดีมากโครงการหนึ่งค่ะ
คะแนน
| ทำเลที่ตั้งโครงการ | 8.5 | อยู่ในย่าน CBD อย่างสยาม ใกล้ BTS สนามกีฬาแห่งชาติ ใกล้ถนนพระราม 1 และแยกปทุมวัน |
| ฯการเดินทาง ใช้รถ | 8 | เดินทางสะดวกใกล้ทางด่วน ไปไหนมาไหนง่าย แต่ต้องระวังรถติด |
| การเดินทาง ไม่ใช้รถ | 8.5 | สะดวกมาก เดิน 550 เมตรถึงรถไฟฟ้าสถานีสนามกีฬาแห่งชาติ มีวินมอเตอร์ไซค์เยอะแท็กซี่เยอะ ทางไม่เปลี่ยว คนอยู่เยอะ และมีความอุดมสมบูรณ์สูง |
| ห้องและวัสดุ | 8 | แปลนห้องแบ่งได้เป็นสัดส่วนลงตัว ขายแบบ Fully Furnished วัสดุและเฟอร์นิเจอร์ที่ได้มีความใส่ใจรายละเอียดดี |
| สิ่งอำนวยความสะดวก | 8.0 | มีให้ครบครันและออกแบบได้น่าใช้งาน |
| ความคุ้มค่ากับราคา | 8.0 | ราคาเริ่มต้นตอนนี้อยู่ที่ประมาณ 150,000บาท/ ตร.ม. ได้ทำเลใจกลางเมืองใกล้รถไฟฟ้า,ใกล้ห้าง ใกล้ถนนใหญ่หลายสาย และมีความสะดวกสบายสูง |
| คะแนนรวมเฉลี่ย | 8.4 | ดี |
สอบถามเพิ่มเติมได้ที่
Tel :1739
Website : http://www.stylishresidences.com/
หากเพื่อนๆเห็นว่ารีวิวนี้มีประโยชน์ ช่วยกด Like เพื่อเป็นกำลังใจให้ทีมงาน ขอบคุณค่ะ
และมีความคิดเห็นหรือข้อมูลเพิ่มเติมเกี่ยวกับตัวโครงการ สามารถ Comment ได้ที่ด้านล่างของรีวิวค่ะ
แสดงความคิดเห็น เกี่ยวกับ " รีวิว คอนโด THE RESERVE เกษมสันต์ 3 คอนโดพร้อมอยู่ ใกล้ BTS สนามกีฬาแห่งชาติ "