
คอนโด เซอร์เคิล สุขุมวิท 12 CIRCLE SUKHUMVIT 12
Circle สุขุมวิท 12 จาก เฟรเกรนท์ พร็อพเพอร์ตี้ ตั้งอยู่ในซอยสุขุมวิท12 ถนนสุขุมวิท เขตคลองเตย กทม. ใกล้แยกอโศก, BTS อโศก และ MRT สุขุมวิท ใกล้ Terminal 21, Robinson สุขุมวิท, ม.ศ.ว., อาคาร GMM และ รพ.สมิติเวช สุขุมวิท
เซอร์เคิล สุขุมวิท 12 เป็นคอนโด Low-Rise 8 ชั้น 1 อาคาร พื้นที่โครงการ 1-0-4 ไร่ ห้องพักอาศัยจำนวน 110 ยูนิต มีห้องพักให้เลือกแบบ Studio, 1-2 Bedroom และ Penthouse ขนาดเริ่มต้น ประมาณ 33-188 ตร.ม. โครงการสร้างเสร็จพร้อมอยู่ปี 2556
สิ่งอำนวยความสะดวกภายในโครงการครบครัน อาทิ โถงต้อนรับ, ห้องจดหมาย, สระว่ายน้ำ, ฟิตเนส, สวนพักผ่อน, ลิฟต์โดยสาร, ประตูคีย์การ์ด, ที่จอดรถ, กล้องวงจรปิด และ รปภ.24 ชม.
คอนโด Circle ทำเลอื่นๆ ที่น่าสนใจ…
Circle 1 เพชรบุรี
Circle Living Prototype
Circle สุขุมวิท 11
Circle สุขุมวิท 12
Circle Rein สุขุมวิท 12
Circle สุขุมวิท 31
| ชื่อโครงการ | เซอร์เคิล สุขุมวิท 12 / CIRCLE SUKHUMVIT 12 |
| เจ้าของโครงการ | เฟรเกรนท์ พร็อพเพอร์ตี |
| ลักษณะห้องและขนาดห้อง | Studio / 1 Bed / 2 Bed / Penthouse ขนาดห้องตั้งแต่ 33.00 – 188.00 ตร.ม. |
| เนื้อที่ทั้งหมด | 1 ไร่ 4 ตารางวา |
| จำนวนตึก | 1 อาคาร |
| จำนวนชั้น | 8 ชั้น |
| จำนวนห้อง | 110 ยูนิต |
| ที่จอดรถทั้งหมด | n/a |
| โซน | สุขุมวิท, อโศก, เพชรบุรี |
| ขนส่งสาธารณะ | – รถไฟฟ้าใต้ดิน MRT สถานีสุขุมวิท – รถไฟฟ้า BTS สถานีอโศก |
| รถโดยสารที่ผ่าน | n/a |
| ที่ตั้ง | ซอยสุขุมวิท 12 (ซอยสุขใจ) ถนนสุขุมวิท แขวงคลองเตย เขตคลองเตย กรุงเทพมหานคร |
| กำหนดการ | พ.ศ.2556 |
| ปีที่สร้างเสร็จ | n/a |
| ราคา | n/a |
| ราคาเฉลี่ยต่อ ตร.ม | เริ่มต้น 99,000 บ./ตร.ม. |
| สถานที่สำคัญใกล้เคียง | 1. ห้างสรรพสินค้า Terminal 21 2. Korean Town 3. รถไฟฟ้าใต้ดิน MRT สถานีสุขุมวิท 4. รถไฟฟ้า BTS สถานีอโศก |
| สิ่งอำนวยความสะดวก | – สระว่ายน้ำ – ฟิตเนส – สวนหย่อม – ลิฟท์ 2 ตัว – กล้องวงจรปิด – รปภ. 24 ช.ม. |
| จุดเด่นของโครงการ | – สะดวกสบาย ใกล้กับBTS อโศก และ MRT สุขุมวิท |
ที่ตั้งโครงการ
ซอยสุขุมวิท 12 (ซอยสุขใจ) ถนนสุขุมวิท แขวงคลองเตย เขตคลองเตย กรุงเทพมหานคร
การเดินทาง
คลิกที่รูป เพื่อดูแผนที่ขนาดใหญ่
การเดินทาง เริ่มจาก แยกอโศก > BTS อโศก > ซอยสุขุมวิท 12 > Circle สุขุมวิท 12 *ใกล้ซอยสุขุมวิท 10 และ ซอยสุขุมวิท 14
การเดินทางเราเริ่มจาก แยกอโศก ที่มาจาก ศูนย์ประชุมแห่งชาติสิริกิติ์ ถนนรัชดาภิเษก แล้วเลี้ยวซ้ายไป ถนนเพลินจิต เข้าสู่ ถนนสุขุมวิท ตามป้าย
พอเข้าสู่ ถนนสุขุมวิท มาแล้วจะผ่าน BTS อโศก ขับตรงไปประมาณ 180 เมตร ถึง ซอยสุขุมวิท 12
เลี้ยวเข้า ซอยสุขุมวิท 12 ขับตรงไป 350 เมตร ถึงโครงการค่ะ ตัวโครงการ Circle สุขุมวิท 12 อยู่ติดกับ Circle Rein สุขุมวิท 12
ผ่าน Circle Rein สุขุมวิท 12 ถัดไปเป็นโครงการ Circle สุขุมวิท 12
ถึงโครงการ Circle สุขุมวิท 12 ตรงข้ามที่กำลังสร้างอาจจะเป็น โรงแรม
บริเวณโดยรอบโครงการ
คลิกที่รูป เพื่อดูแผนที่ขนาดใหญ่
สถานที่สำคัญ
– BTS อโศก
– BTS นานา
– MRT สุขุมวิท
– Airport Link มักกะสัน
– Terminal 21 Shopping Mall
– Robinson สุขุมวิท
– ตึก GMM.
– โรงพยาบาลบำรุงราษฎร์
– โรงพยาบาลจักษุรัตนิน
– โรงเรียนนานาชาติ NIST
– โรงเรียนวัฒนาวิทยาลัย
– มหาวิทยาลัยศรีนครินทรวิโรฒ
คลิกที่รูป เพื่อดูแผนที่ขนาดใหญ่
คอนโดข้างเคียง
– คอนโด เลอ โคเต้ สุขุมวิท 14
– คอนโด เซอร์เคิล สุขุมวิท 12
– คอนโด เซอร์เคิล ไรน์ สุขุมวิท 12
– คอนโด บ้านสิริ สุขุมวิท 10
– คอนโด สุขุมวิท ปาร์ค (สุขุมวิท 10)
– คอนโด สุขุมวิท คาซ่า (สุขุมวิท 10)
– เลค กรีน คอนโด สุขุมวิท 8
– คอนโด บ้านปรีดา (สุขุมวิท 8)
– คอนโด เดอะ เฮอริเทจ (สุขุมวิท 8)
– คอนโด สยาม เพนท์เฮาส์ 1
– คอนโด สิริ ออน 8 (สุขุมวิท 8)
– คอนโด อีเทอร์นิตี้ สุขุมวิท 8
– คอนโด คิว สุขุมวิท
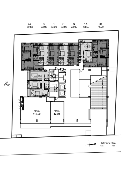
แปลนอาคาร
1st Floor / 2nd Floor / 3rd-4th Floor / 5th Floor / 6th Floor
7th Floor / 8th Floor
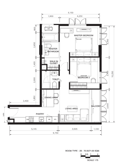
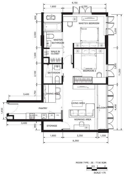
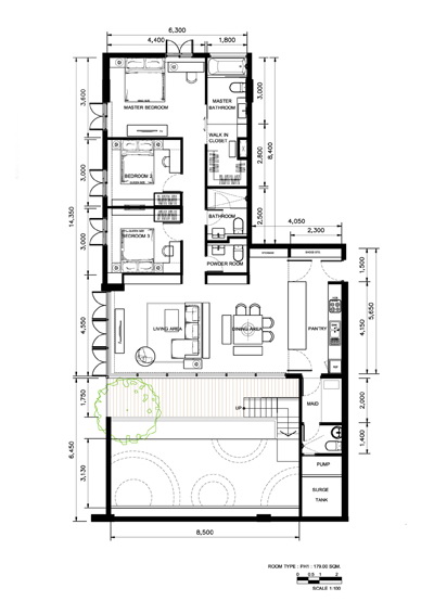
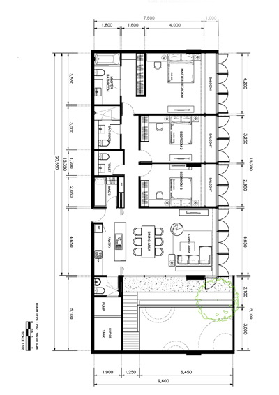
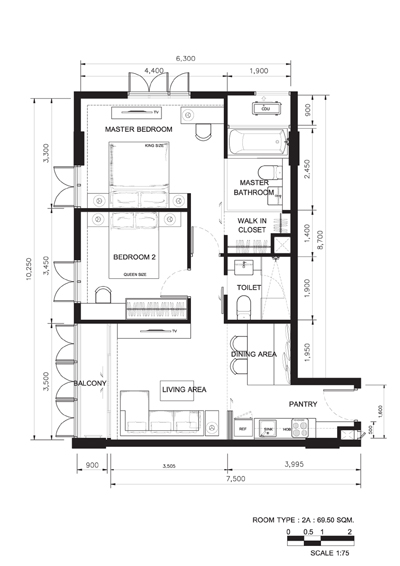
แปลนห้อง
Type 1Bed-1A / Type 1Bed_traditional / Type 1Bed_lifestyle / Type 1Bed_free_space / Type 1Bed_enjoy_working
Type 1Bed-1B / Type 2Bed-2A / Type 2Bed-2B / Type 2Bed-2C / Type 2Bed-2D
Type 2Bed-2E / Type 2Bed-2F / Type Studio
Type PH1 / Type PH2 / Type PH3
แกลลอรี

สนใจติดต่อรายละเอียดเพิ่มเติมได้ที่
Tel. 02-652-9999
แสดงความคิดเห็น เกี่ยวกับ " คอนโด CIRCLE สุขุมวิท 12 ใกล้รถไฟฟ้า BTS อโศก และ MRT สุขุมวิท "