
คอนโด เดอะ คริส เอ็กซ์ตร้า 7 The Kris Extra 7
The Kris Extra 7 จาก เอคิว เอสเตท ตั้งอยู่บนซอยรัชดาภิเษก 17 แขวงดินแดง เขตห้วยขวาง กทม. ใกล้รถไฟฟ้า MRT สุทธิสาร ประมาณ 500 เมตร, เซ็นทรัล พระราม 9, ฟอร์จูน พระราม 9, บิ๊กซี เอ็กซ์ตร้า, The Street รัชดา, เอสพลานาด รัชดา และ รพ.พระราม 9
เดอะ คริส เอ็กซ์ตร้า 7 เป็นคอนโด Low-Rise 8 ชั้น 1 อาคาร พร้อมอาคาร Sport complex แบบครบวงจร พื้นที่โครงการขนาด 7 ไร่ ห้องพักอาศัยรวม 170 ยูนิต มีห้องพักให้เลือกแบบสตูดิโอ, 1 ห้องนอน, 2 ห้องนอน ขนาดเริ่มต้น 22.5-45.00 ตร.ม. สร้างเสร็จพร้อมอยู่ปี 2557
สิ่งอำนวยความสะดวกครบครัน อาทิ โถงต้อนรับ, ห้องตู้จดหมาย, สระว่ายน้ำ, ฟิตเนส, สวนพักผ่อน, ประตูคีย์การ์ด, ที่จอดรถ, กล้องวงจรปิด, รปภ. 24 ชม. ราคาเริ่มต้น 1.89 ล้านบาท*
| ชื่อโครงการ | เดอะ คริส เอ็กซ์ตร้า 7 The Kris Extra 7 |
| เจ้าของโครงการ | เอคิว เอสเตท / AQ Estate |
| ลักษณะห้องและขนาดห้อง | – Studio (22.5 – 25.5 ตร.ม.) – 1 Bed (28 – 34 ตร.ม.) – 2 Bed (25.5 – 45 ตร.ม.) |
| เนื้อที่ทั้งหมด | 7 ไร่ |
| จำนวนตึก | 1 อาคาร |
| จำนวนชั้น | 8 ชั้น |
| จำนวนห้อง | 170 ยูนิต |
| ที่จอดรถทั้งหมด | n/a |
| โซน | รัชดา, ห้วยขวาง, พระรามที่ 9, เพชรบุรี |
| ขนส่งสาธารณะ | – รถไฟฟ้า MRT สุทธิสาร 500 ม. |
| รถโดยสารที่ผ่าน | n/a |
| ที่ตั้ง | รัชดาภิเษก ซอย 17 ถนนรัชดาภิเษก แขวงดินแดง เขตห้วยขวาง กรุงเทพฯ |
| กำหนดการ | n/a |
| ปีที่สร้างเสร็จ | พ.ศ. 2557 |
| ราคา | เริ่มต้น 1,890,000 บาท (ณ. วันเปิดตัว) |
| ราคาเฉลี่ยต่อ ตร.ม | เริ่มต้น 84,000 บ./ตร.ม. |
| สถานที่สำคัญใกล้เคียง | 1. อาคารเมืองไทยภัทรฯ 2. ศูนย์วัฒนธรรม 3. โรบินสัน รัชดา 4. เทสโก้ โลตัส 5. ฟอร์จูน 6. เซ็นทรัลลาดพร้าว 7. มหาวิทยาลัยหอการค้าไทย |
| สิ่งอำนวยความสะดวก | – สระว่ายน้ำ, ฟิตเนส, ซาวน่า, รปภ., กล้องวงจรปิดโครงการ, อื่นๆ (คลับเฮ้าส์, Finger Scan) |
| จุดเด่นของโครงการ | “อาคารชุดสุดหรูใหม่ล่าสุด ที่พร้อมให้ท่านอิ่มเอมกับอารมณ์สุนทรีย์ ท่ามกลางกลิ่นอายของความสุข ความสงบ และความเป็นส่วนตัวสูงสุดบนที่สุดแห่งทำเลใจกลางเมืองย่านรัชดา เพียง 5 นาที จากสถานีรถไฟฟ้าสุทธิสาร” |
รัชดาภิเษก ซอย 17 ถนนรัชดาภิเษก แขวงดินแดง เขตห้วยขวาง กรุงเทพฯ
การเดินทาง
คลิกที่รูป เพื่อดูแผนที่ขนาดใหญ่
การเดินทาง เริ่มจาก ถนนรัชดาภิเษก แยกเทียมร่วมมิตร > แยกตลาดห้วยขวาง > ซอยรัชดาภิเษก 17 > — 180 ม. —> The Kris Extra 7 *ใกล้ซอยรัชดาภิเษก 13
การเดินทางเราเริ่มที่ ถนนรัชดาภิเษกจาก แยกเทียมร่วมมิตร มุ่งตรงไปลาดพร้าว ลอดอุโมงค์แยกตลาดห้วยขวาง สังเกตแยกนี้จะมีตึก Cyber World ขวามือ
ตรงไปเรื่อยๆ จะผ่านโครงการอื่นๆ หลายโครงการเลยค่ะ ลอดอุโมงค์แยกตลาดห้วยขวาง อีกประมาณ 800 เมตร ถึง ซอยรัชดาภิเษก 17 ค่ะ
เลี้ยวเข้า ซอยรัชดาภิเษก 17
ถึง ซ.รัชดาภิเษก 17 ตรงไปหน่อยก็จะเห็นตัวโครงการของ The Kris รัชดา 17 ที่มีทั้งหมด 7 อาคาร ( อาคารที่ 6 และ 7 เป็นอาคารพึ่งสร้างเสร็จค่ะ )
ถึงตัวโครงการ The Kris Extra 7 จะเป็นตัวอาคาร 7 ค่ะ
คลิกที่รูป เพื่อดูแผนที่ขนาดใหญ่
อาคารสูง
– Cyber World Tower
– AIA Capital Center
– สำนักงานใหญ่ตลาดหลักทรัพย์ (SET)
– True Tower
– G Land Tower
สถานที่สำคัญ
– MRT ห้วยขวาง
– MRT ศูนย์วัฒนธรรม
– ทางพิเศษศรีรัช
– Esplanade รัชดาภิเษก
– Big C รัชดาภิเษก
– Central Plaza Grand พระราม 9
– Foretune Town
– Tesco Lotus Foretune Town
– บุญถาวร
– สถานฑูตฯ จีน
– ศูนย์วัฒนธรรมแห่งประเทศไทย
– สยามนิรมิตร
– ตลาดเมืองไทยภัทร
– ตลาดนัดสวนรถไฟ
– สวนลุมไนท์บาซาร์ รัชดาภิเษก
– โรงพยาบาลพระราม 9
– โรงพยาบาลปิยะเวท
– โรงพยาบาลเปาโล เมมโมเรียล โชคชัย 4
– โรงเรียนเตรียมอุดมศึกษาพัฒนาการ รัชดา
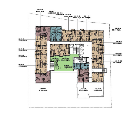
แปลนอาคาร
2 nd Floor Plan 3th-8wh Floor Plan
แบบห้อง
Deluxe Studio
ชีวิตอิสระ …สำหรับคนอินเทรนด์ ด้วยรูปแบบ ของห้องชุดที่มีขนาด และพื้นที่ใช้สอยพอเหมาะกับการใช้ชีวิตของวัยมัน เปิดรับทัศนียภาพ และแสงธรรมชาติจากภายนอกตัว อาคารได้อย่างเต็มที่ ด้วยกระจกใสบานใหญ่ จากพื้นจดฝ้าเพดาน เพิ่มมุมมอง จากภายในห้องให้โปร่งโล่ง สบาย ตอบรับ กับการใช้อิสระของวัยมันอย่างแท้จริง
พื้นที่ 22.5 – 25.5 ตร.ม.
แปลนห้อง
Supreme Suite ( 1 Bedroom )
GALLERY
สนใจติดต่อรายละเอียดเพิ่มเติมได้ที่
TEL : 02-693-5790-5
WEBSITE : http://www.kmc.co.th/page_a.php?cid=29&cname=Project%20info
You must be logged in to post a comment.
สนใจ The Kris 7 รัชดา 17 ครับ 080-082-2247